architecture portfolio

Page 1

ZAHRA
ENA FES4eme année Académique/personnel VOL 2 02.22
PORTFOLIO FATIMA
ROUAS

FAMILY

L e s u s e s q u e e n d e p o n d e d p a r v s u e à c t e a pp q u e m u e s o n d e s é é m e n t s d e m o b e r c a r a c t é s q u e d e s n é e u e s m a o c n s s e x p m e n t a h e s s e e s t y e e a a d o n e u s m o s c é e n d s a m b a n c e s q u ac o n e n d e s é c s d f é e n s e s m a t é a u x u t s é é t a e n e n m a o t é d e s m é a u x c o m b n é a v e c d u r e o u d e c su x e q u e s f a t r e s s e m b e r d v a n t a g e à d e s b o u e r e s q u à d e s m e u b e s A f n d a d a p t e e u s e a u y e v e c o n e m p o r a n e a u x né e u m n m a u x e s n é c e a d e f a e é v o u e e d en o u e e r s o n d e s g n o u e n c o n s v n e s p a r c u é s c é e s c - d e u s M o n d e s g n f m e c o m m e n o v e a u m d è e d e u m n a r e s a é é d é v e o p p é s u v a n e s é a p e s s u v a n t e s • L e g o n n a g e e t a d é n n d e c n c e p g é n é a g s s a n e d e g n p u s e h o x d u m o d e e p u s r é u s s • E t a b s s e m n d u o u g d e s g n

L a a c d e c o u L e e s s c o u N o m o

CONTENU UN QUART ER D ECO - NNOVAT ON UN DÉVE OPPEMENT URBA N DURAB E ET FONDÉ SUR LA CONNA SSANCE S TU DANS A NATURE QU REL E A V LE LA MER ET A ORÊT NNOVAT ON ET L EUX DE RENCONTRE PROMOUVO R NNOVAT ON GRÂCE À DES L EUX DE RENCONTRE FLEX BLES DE RECH RCHE ET DE LABORATO RES ET UNE NT RACT ON ÉTRO TE ENTRE LA CONNA SSANCE LES ENTREPR SES ET LA SOC ÉTÉ UNE PLATEFORME OÙ LA CONNA SSANCE ET LA V E DES AF A RES SE RENCONTRENT DAVANTAGE D ÉTABL SSEMENTS DE LA CONNA SSANCE CRÉ R DE ESPACE POUR A V E DES ENTREPR SES À FORTE NT NS TÉ DE CONNA SSANCES ET DÉVELO PER L NNOVAT ON UNE AT TRACT ON NTERNAT ONALE GRÂCE À UNE PROGRAMMAT ON DÉL BÉRÉE ET LE DÉVELOPPEMENT DE BÂT MEN S ET DE ZONES MULT FONCT ONNELS M SE À L ÉCHELLE ET NTERNATIONAL SATION SE CONCENTRER SUR L ÉTAB SSEMENT DE START-UPS SSUES DE SC ENT F QUES ET DES CHERCHEURS ET EN ÉTRO E NTERACT ON AVEC LES ENTREPR SES ENTREPR SES MATURES DU QUART ER ACCÈS AUX CHERCHEURS ET AUX ÉTUD ANTS CONT NUER À D VE OPPER DES COMMUNAUTÉS SC ENT QUES FORT S AVEC DES CHERCHEURS EXCEPT ONNE S ET DES ÉTUD ANTS MOT VÉS QU DÉVELOPPENT DE NOUVEL ES CONNA SSANCES ET LES D FUSENT DANS LA SOC ÉTÉ 1- ACTIV TÉS SPORT VES 2- TERT A RE 3- CO -WORK NG/ TERT A RE 4- PARC L NÉA RE 5- NDUSTRIE 6- ACT V TÉS D VERSES 7 7- HU D NNOVAT ON 8- ÉCOLE DE DES GN NDUSTR EL 9-PARK NG 10- NCUBATEURS PLE N-AIR + CO -WORKING 1 - CENTRE COMMUNAUTA RE ( BIBLIOTHÈQUE/SERVICES) 12-ATEL ERS D ART SANAT 13 - CITÉ UNIVERS TA RE 14- HAB TAT MOYEN-STANDG +COMMERCE 15- HAB TAT HAUT STAND NG 16 CENTRE COMMERC AL 17- HÔTEL 18- CENTRE CULTUREL 19- BELVÉDÈRE LE RÉ EAU SU ES GRAND S VO ES EX TAN ES A N D MA NTEN UN SY TÈM DE CONT NU TÉ PHY QUE DAN L NOUVEAU P AN UN RÉ EAU DE ROUT S ACCES B ES SU LOG QU DE LA V L POU FOU N R UN BASE À UN URBAN SME Q P END EN COMP E E FRON D MER L NOUV AU QUA T R ND STR E OF RE UNE COMMUNAU É TR S AC E À MARCH R T DYNAM QUE TOU EN RE AN DE ACT T S D F ÉR NTE ON RÉ EAU P TONN R D V END A LA BAS DU T SU D QUAR E N ORMANT LE M RE N ES DES BÂ MENTS A EC NE VOLUMÉ R E QU XP O T A NATU E U S TE BO C E COMM R A T AN ORM N N E PAR U E A COMM R A T P É E E R E NE BO E P R EN E P U L R NC O GA S EU U P AN S U E C N U E V R E CON UE QU S R E T E LONG DU F ON D M R E P RC UR A E A E E N C R C È E S R OU E A ONG E R - R L AN L E A V E UN É D COU O R E OND R E N A E NT R ENS MB E D Q AR R D NN V T ON L OU E UR DU E E S A M R P RM E R E P U D S CE PU C AU B RD D E U PO R L C MMUN UT E NE P R E D N R E DE L V E E S E U P OT C O P R X E S N D P S GE QU D S P AC O D S A U S E L ME A D C É R D S A X US CA M S FAVOR A T E C V T S D O S R N U Q E OU EN A OU AN N V A E P OT C O E DA T L S T M Ê E N E B S NT S R A C Y S NO R E E U S A D 6 D D L R H ECT E T ÉO C E DU E GN CHR S O HE A XA D R L V L S U S M - AT C O E A T V É NT E RO S N T S U E PO E T CO R OR D V X GE CE E A ME OUVERT ET INCLUS DÉV LO PEMEN D LA DE PUB CS AT TRAYAN S AC DEN T C A RE QU REND UN QUA T R OUV RT E AC AV C D AÇAD S OUVE T CULTUR L ES E DE SYNER D S ON BL OUR OUS ACT ES E QUAR ER DE ÉV NTA L E A O ULAT O DÉVELOPPEMENT DU PARTI ET CONCEPT RENOUVE QUARTIER ROUAS FAT MA
a S 7 E N A F E S
D e s g n d e R o u a s F a t i m a Z a h HABITAT LEGO MÉMORIAL DE L’ABANDON D’AMOUR URBANISME VILLA B³ CENTRE D AUTISME DESIGN DE PRODUIT
r CLUB DESERT CAFE
S u m e s e s q u s s e s o u s p o u v e z v o é o u t o n d u c o n c e p t J a f n a e m e n c h o s c d e s g n p a r c e q e n r e a c e e s o m e s m od e e s a v e c e s a d o n s a r s a n a e s e n c o m b a n t e m n m as m e a v c u n e n e m e n a t o n u b t e E n d a u t e s m e s c e s t a b s t a c o n d u u s t e r a d o n n e a f o m e p u e d u c u b e a f o m e m d e r n e p e e e n c e q u a e mp a c é o r m e o g n q u e d e s u s e s t d t o n n e s m a s e n m ê m e t e m s e e a t o u o u u s n p a r a b a s e n u é e d e s o t e q u e d e c h a q u e n g e v o u s o b n e z u n p e c t a c e d é r e n t e e d u s u r é e c t e u r s d e u m è e n c u v é s n o u s d o n n e n t o u c h e f n a e a v e c u m o t e n c a s t é s E n m e s d e f o n c t o n n a é e p u e n d a a m p e e x b e e a d a p t a b à o u s p a c e e a r é a é e e n p e o r m e 2 0 c m p a 2 0 c m 7 0 c m e n h a u t e u r e o u s a o r m e d u n e a p p u e m u e c â b é e m n e d u n n e r u p t e u r o n /o s u r e s u p p o r t d e m o n t a g e p o u r a v o u n a s p e c t p r o p e s u e m u a n s c â b e s e t d o n c s s e e s p e a e u s e c n c e n r e u e e u d o m b e e d e è é

HABITAT LEGO

Ce projet est une réponse a un probleme de logement marocain spécifique, celui de la difficulté que trouve les jeunes lors de la recherche d’un logement, souvent des familles a enfants refuse leur emménagement. Donc, c’est difficile pour eux d’être indépendants et gagner leur vie, surtout avec l’âge digital des Freelancer, youtubeurs, etc.…, on trouve que plus de jeunes marocains préfèrent travailler de chez eux Ajoutant à ce problème celui de la durabilité, du manque d’espaces verts dans nos bâtiments, ce qui fait que le mot abordable va rarement aux paires avec celui de qualité.

Ce projet se base sur La théorie de GOTTFRIED SEMPER « Les quatre éléments de l’architecture » :

1. Le feu : dansv ce projet il est représenté par un foyer externe

2. La structure : ici, l’utilisation d’une trame qui ordonne les éléments structuraux

3. Le revêtement : les panneaux d’aluminium, les revêtements Lego et les peaux Voronoi

4. Base : Les poteaux du Rdc

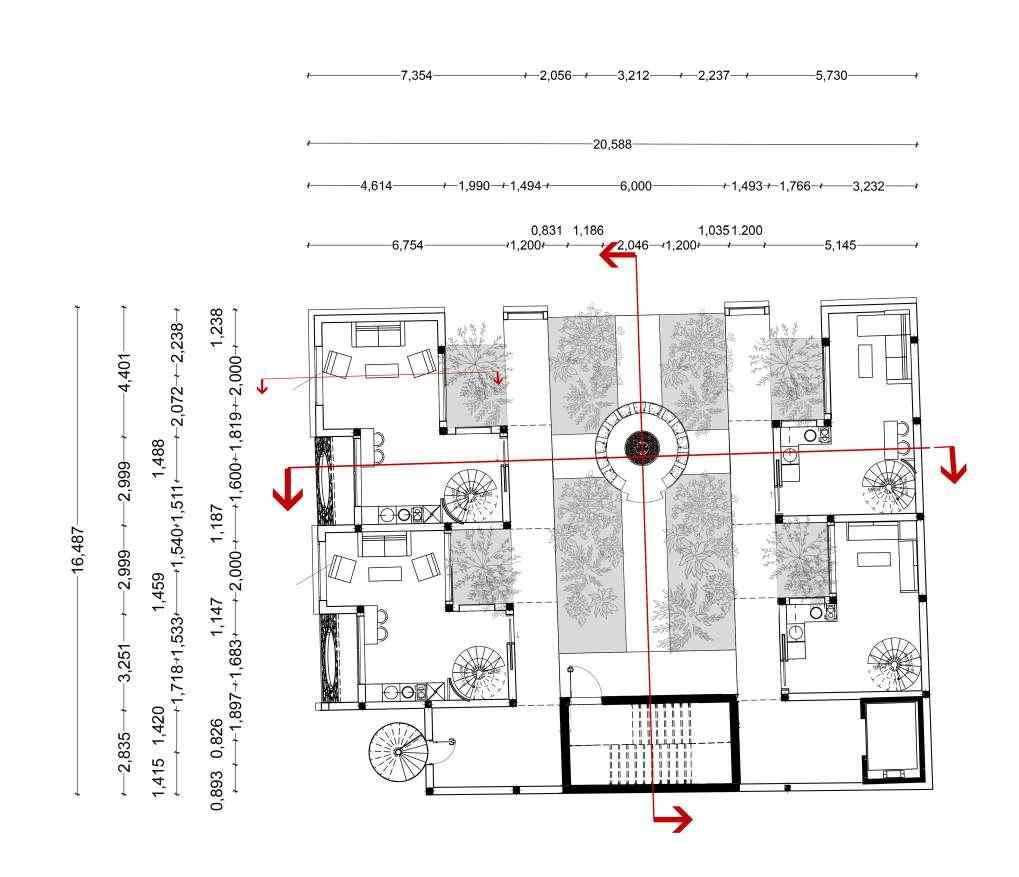
Afin de fluidifier la circulation au sein du bâtiment, d’assurer plus au moins une égalité de superficie entre appartements, plus d’accès vers la lumière de jour et ventilation naturelle, et une longue vue sur le jardin et le foyer du premier étage, j’ai opté pour des duplexes, chacun avec son propre Terrasse-jardin de 6 m d’hauteur et des couloirs libres du côté cour et qui se répètent chaque 2 niveaux pour assurer l’intimité des habitants.

Sous-sol

RDC

Le rdc est l’espace d’accès principale, comprenant un café-kiosk ,un espace de skate

MEZZANINE RDC

1er et 4éme ETAGEs 2éme et 3éme ETAGEs

Le plan du premier étage se répète dans le 3eme étage (mais sans jardin) on peut voir comment l’espace de circulation s’ouvre sur deux couloirs permettant l’accès vers les duplexes et au jardin et le foyer extérieur de feu.

On trouve ici les niveaux inferieures des duplexes et leurs terrasses-jardins

On trouve les niveaux supérieurs dans le deuxième étage, ce plan et le même que celui du quatrième

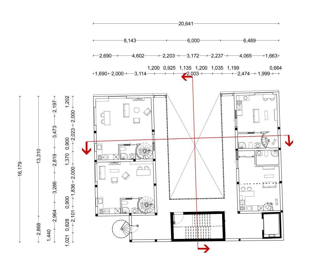
5éme ETAGE

Pour s’adapter à la réglementation qui impose un retrait de 3 m dans le 6eme étage, et donc moins d’espace pour celui-ci, J’ai déplacé les terrasses vers l’espace du retrait et j’ai élargi les appartements du cinquième étage.

Le 7 -ème étage est destiné aux locaux techniques

6éme ETAGE

7éme ETAGE

COUPE-FACADE BB

COUPE-FACADE AA

La coupe-façade BB montre bien que les escaliers sont l’épine dorsale du Bâtiment, le jeu de volumétrie entre Terrasse, duplexes et couloirs dans la façade et leur hauteur, la forme organique des poteaux et le contraste qui s’y trouve, ainsi que le kiosk-café

De même pour l’autre coupe qui montre cette fois l’espace de skate

COUPE CC + DETAIL

La coupe-façade BB montre bien que les escaliers sont l’épine dorsale du Bâtiment, le jeu de volumétrie entre Terrasse, duplexes et couloirs dans la façade et leur hauteur, la forme organique des poteaux et le contraste qui s’y trouve, ainsi que le kiosk-café

De même pour l’autre coupe qui montre cette fois l’espace de skate

FACADE SUD

FACADE NORD

Les façades sont en nid d’abeilles, pour en contraster j’ai ajouté une seconde peau en Voronoi aux balcons et escaliers de secours ainsi que des fenêtres rondes (contraste carré-cercle), et entre le volume compact d’habitat avec celui légers et fluide du RdcVF

Le revêtement des façades est en panneaux d’aluminium qui permettent une réflexion de la lumière de jour, Quant aux poteaux j’ai opté pour un revêtement LEGO qui va aux paires avec la fonction du RdC et le thème de jeunesse

VILLA B³

Le défi de ce projet était l’adaptation a la topographie de site, mais plus que cela il faut respecter la réglementation et songer au bien être des habitants dans notre démarche. La villa B³ tient son nom des matériaux majeurs de sa construction : Béton, Bois, et Brique. J’ai opté pour des Matériaux dans leur forme brute, parce que les textures affectent nos sensés et donc permettent de renforcer l’expérience spatiale du bâtiment, surtout la brique que j’ai choisi appliquer dans les éléments clé du projet : le Mur paramétrique en brique et les secondes peaux qui rappelle son effet dans différentes parties.

Le concept c’était de repartir le programme suivant les niveaux de courbes majeurs du terrain, Il y’en a quatre : le plus haut niveau était dédié au RDC, celui qui le suit pour un salon a doublé hauteur, le 3eme pour le sous-sol et le plus bas pour un patio a piscinez

Contraste assuré par le mur curviligne et Dynamisme par la rotation des escalier

Le RDC comporte deux ailes en L, ou sont loges les fonctions de jour reparties autour d’une cheminée centrale qui joue le rôle à la fois de l’objet unificateur et de séparateur de l’espace en organise le liens visuel et physique de ce niveau entre salle à manger et le salon qui se trouve à quelques marches plus basses.

Les escaliers par leur forme dynamique communiquent entre les différents niveaux

FACADE PRINCIPALE
FACADE SUD

MEMORIAL

ce projet a commencé par une étude de maquette de tragédies amoureuses, j’ai lu et relu les mythologies amoureuses arabes et grecques et leurs tragédies.

l’une des choses les plus importantes du projet est son site, inspiré du mythe de la falaise blanche d’où Apollon, Artémis et Aphrodite se sont jetés pour se guérir de l’amour, se tuant par cet acte.

et bien d’autres histoires (ORphis et Eurydice, Apollon et Daphné etc..) et de la poésie arabe (Kaiss et Laila, Kathir et Anza...)

Pour moi, le but n’était pas de capturer l’essence de l’amour tragique, mais d’en créer une abstraction, un mémorial au sommet d’une falaise et de faire voyager le visiteur et de jeter un souvenir qui lui rappelle ses amants, en l’enterrant toujours.

INSPIRATION ET CROQUIS DE RECHERCHE: DU FIGURATION VERS ABSTRACTION

souvenirs

CENTRE D’AUTISME

Le projet est unique, surtout que les mesures d’accessibilité ne traitent pas cet handicap dans l’architecture des espaces, donc en ce basant sur des études qui ont été faites par des architectes et étudiants, j’ai adopté une approche sensorielle dans ma conception architecturelle en commençant par un volume qui est compacte mais qui, en même temps, divise entre les enfants selon le degré sensoriel de l’espace passant de l’hyper-sensoriel vers l’hypo-sensoriel créant ainsi une transition du rdc vers le 2eme étage, les niveaux sont liées par une rampe qui permet d’abord d’inclure les PMRs en leur apprenant d’être indépendants et deuxièmes de transition entre les différents espaces et de calmer les enfants lors de leur crise par moyen de marche.

Le bâtiment se lie à la terre afin d’inviter le public en un acte d’inclusion à travers des rampes qui mènent vers un jardins-terrasse.

La double-peau unifie le bâtiment, filtre la lumière et avec les séparations végétales crée un monde en lui-même qui va assurer la concentration et bon apprentissage des enfants

L e p r o j e t R O U A S F A T M A Z A H R A S 7 E N A F E S
M o d é s a o n 3 D e t r e n d u

FAMILY CLUB

Aperçu du Projet :

J’ai eu le plaisir de collaborer avec une Cliente sur un projet passionnant de conception d’intérieur pour leur Club Familial via la plateforme freelance Fiverr. L’objectif principal était de créer un espace dynamique et élégant, en harmonie avec les couleurs de la marque du client, le vert et l’orange, tout en assurant une atmosphère conviviale pour les familles.

Palette de Couleurs :

La palette de couleurs choisie, le vert et l’orange, s’intègre parfaitement à la marque du client tout en apportant une énergie dynamique et vivante à l’espace. La sélection méticuleuse et l’équilibre de ces couleurs contribuent à une atmosphère à la fois accueillante et sophistiquée.

Processus de Conceptualisation :

Le processus de conception a impliqué un échange collaboratif d’idées entre moi-même et le client, où plusieurs suggestions ont été prises en compte avant d’arriver au concept final. L’incorporation des teintes de vert et d’orange n’était pas seulement une représentation de la marque, mais aussi une décision stratégique pour évoquer un sentiment de fraîcheur, de chaleur et de vitalité dans l’ensemble du Club Familial.

Disposition Spatiale :

La disposition spatiale a été soigneusement planifiée pour accueillir diverses activités familiales et rassemblements. Des zones distinctes ont été créées, permettant une circulation fluide entre les espaces récréatifs, les espaces de restauration et les zones de détente. L’arrangement visait à favoriser un sentiment de convivialité tout en assurant l’intimité quand cela était nécessaire.

Design final
1ere suggestion

CAFE DU DESERT

Le succès de ce projet réside dans la réalisation du thème oriental avec un équilibre parfait entre les couleurs, les textures, et les motifs. Chaque élément a été choisi avec soin pour créer une fusion harmonieuse et captivante, faisant du café un lieu unique dans le paysage des cafés.

Ce projet de conception d’intérieur pour le café oriental est une démonstration de ma capacité à créer des espaces qui vont au-delà de l’esthétique, offrant des expériences mémorables aux clients. Je suis ravi d’inclure cette réalisation inspirante dans mon portfolio.

Le café offre non seulement une expérience visuelle exceptionnelle mais s’engage également dans une expérience sensorielle holistique. Des sièges confortables, des textures tactiles, et une variété de saveurs exquises s’associent pour créer une expérience unique pour les visiteurs.

Motifs Variés :

Pour immerger les visiteurs dans un voyage oriental, une variété de motifs inspirés de l’Orient a été intégrée dans la conception. Des arabesques délicates, des motifs géométriques complexes et des détails floraux subtils sont disséminés dans l’espace, invitant les visiteurs à explorer et à découvrir de nouvelles facettes à chaque regard.

Turn static files into dynamic content formats.

Create a flipbook
Issuu converts static files into: digital portfolios, online yearbooks, online catalogs, digital photo albums and more. Sign up and create your flipbook.