Jacksonville Daily Record 11/14/24

Page 1


e asked Jacksonville Daily Record readers to share their Cool Construction projects in Northeast Florida — projects with the “wow” factor you want everyone to know about. The projects must have been completed in the Jacksonville metro area of Baker, Clay, Duval, Nassau and St. Johns counties between Sept. 15, 2023, and Sept. 15, 2024. Dozens were submitted and we selected 25 for this special edition.

WHAT’S TRENDING

St. Augustine Bass Pro Shops grand opening is Nov. 20

Bass Pro Shops announced the grand opening of its St. Augustine store will be Nov. 20.

The 100,000-square-foot store that sells outdoor gear is at 355 World Commerce Parkway on 18.11 acres, south of Buc-ee’s and Costco Wholesale.

It is west of Interstate 95 at the International Golf Parkway exit, south of World Golf Village.

The grand-opening event begins at 5 p.m. with a performance by country music singer and songwriter Tim Dugger.

An “Evening for Conservation” program starts at 6 p.m. followed by a ribbon-cutting at 6:30 p.m.

After the event, the store will officially open for business. The store will close at 9 p.m.

The event will continue through the weekend with musical performances, celebrity appearances and giveaways.

The store will begin regular operating hours Nov. 21. They are 9 a.m. to 9 p.m. Monday-Saturday and 10 a.m. to 7 p.m. Sunday.

JACKSONVILLE

Daily Record

121 W. Forsyth St., Suite 150, Jacksonville, FL, 32202

Phone: 904-356-2466, Fax: 904-353-2628 jaxdailyrecord.com

The Jacksonville Daily Record and JaxDailyRecord.com are a division of Observer Media Group Inc. The Daily Record is published 52 times a year in print on Thursdays and at JaxDailyRecord.com seven days a week.

Established in 1912, the Jacksonville Daily Record is Northeast Florida’s newspaper for business leaders. Editorial content focuses on news and trends, with a concentration on development, real estate, construction, law, companies, economic and industry trends and how local and state government affects business. The Jacksonville Daily Record is the leading publisher of public notices in three Northeast Florida counties: Duval, Clay and St. Johns.

Publisher Angie Campbell acampbell@jaxdailyrecord.com

Multimedia Advertising Executive | Kristen Knudsen kknudsen@jaxdailyrecord.com

Advertising Coordinator | Codi Gildberg adassist@jaxdailyrecord.com

Legal Advertising Manager | Rhonda Fisher legal@jaxdailyrecord.com

Legal Advertising Associate | Nichol Stringer legal@jaxdailyrecord.com

Network Administrator | Erik Wagner webadmin@jaxdailyrecord.com

Circulation Customer Service Team subscriptions@jaxdailyrecord.com

Editor Monty Zickuhr mzickuhr@jaxdailyrecord.com

Editor at Large | Karen Brune Mathis kmathis@jaxdailyrecord.com

Assistant Editor | David Crumpler dcrumpler@jaxdailyrecord.com

Associate Editor Legal Affairs | Max Marbut mmarbut@jaxdailyrecord.com

Associate Editor Government Affairs | Ric Anderson randerson@jaxdailyrecord.com

Staff Writer | Dan Macdonald dmacdonald@jaxdailyrecord.com

Staff Writer | J. Brooks Terry bterry@jaxdailyrecord.com

Contributing Writer | Mark Basch mbasch@jaxdailyrecord.com

CEO | Matt Walsh | mwalsh@jaxdailyrecord.com

Publisher Emeritus | James F. Bailey Jr. | jbailey@jaxdailyrecord.com

HOW TO REACH US

EDITORIAL: To submit a news release or editorial inquiry visit JaxDailyRecord.com/ submit-news-release or email editorial@JaxDailyRecord.com. Article reprints are available at JaxDailyRecord.com

LEGAL ADVERTISING: Submit public notices via email to legal@JaxDailyRecord.com. List the county name in the subject line and attach notice. Deadline 2 p.m. Wednesday.

DISPLAY & ONLINE ADVERTISING: Call 904-356-2466 or email advertise@ JaxDailyRecord.com. Deadline for display advertising is 3 p.m. Thursday.

Airport Commerce Center takes step forward

Plans for the proposed Airport Commerce Center in North Jacksonville are taking off after a Nov. 7 vote by the Jacksonville Planning Commission.

The commission voted 6-0 to approve both a rezoning request (Ordinance 2024-0717) and a large-scale amendment to the city’s 2045 comprehensive plan (2024-0716) for the proposed industrial park north of the Jacksonville International Airport.

Commissioner Julius Harden was not present for the vote. There was no public comment.

“This has been a long time coming,” said Michael Sittner, an attorney representing the project. “This project has been in the works for two and half years.

The rezoning request approval came on condition that the developer perform a traffic study.

Flint Development LLC of Kansas is developing the 315.42-acre site, with plans to build up to 3.1 million square feet of industrial space. The land is

owned by Subema LLC of Tallahassee. The site, west of Interstate 95 and Pecan Park Road, is bordered to the north by a solar farm, to the east by Pecan Park Road, to the south by Jacksonville International Airport and to the west by Seton Creek.

American Freight furniture stores to close

Franchise Group Inc., which filed for Chapter 11 bankruptcy protection Nov. 3, says it will close all of its American Freight furniture stores, including three in Jacksonville.

American Freight says it sells “affordable, high-quality furniture, mattresses and appliances through its direct-toconsumer, warehouse-style stores.” The company says it has more than 370 U.S. locations in 40 states.

HOW TO FIND US

The American Freight stores in Jacksonville are at 6024 103rd St., 8661 Old Kings Road S. and 11111 San Jose Blvd.

“American Freight is being wound down and commencing store closing sales at locations nationwide and online on November 5,” FRG said on its website. Delaware, Ohio-based FRG also owns Pet Supplies Plus, The Vitamin Shoppe and Buddy’s Home Furnishings. It says it plans to keep those stores open.

The Jacksonville Daily Record is available by mailed subscription and at newsstands. Subscribe online at jaxdailyrecord.com/subscribe or contact our subscription department by phone at 877-231-8834 or via email at subscriptions@jaxdailyrecord.com

The Jacksonville Daily Record is distributed in key business nodes throughout Northeast Florida. Individual copies are free. To find a location near you, visit JaxDailyRecord.com/rack-locations.

POSTAL INFORMATION

The Jacksonville Daily Record is published weekly by Daily Record & Observer LLC, 121 W. Forsyth St., Suite 150, Jacksonville, FL, 32202. Periodicals postage paid at Jacksonville, Florida, and at additional mailing offices. The Jacksonville Daily Record is circulated in Duval, Clay, Nassau and St. Johns counties. Under no circumstances will any news or records of Duval County be suppressed for anyone. Information in this publication is for our subscribers only and must not be used by anyone for publication purposes.

POSTMASTER: Send changes of address to the Jacksonville Daily Record, Observer Media Group, 1970 Main Street, Floor 3, Sarasota, FL 34236

PUBLIC NOTICES

The Jacksonville Daily Record meets the legal requirements to publish legal notices in Duval, Clay, Nassau and St. Johns counties, per F.S. 50.0111(1)(e). USPS Periodicals Permit (190-620)

STATEMENT OF OWNERSHIP

The Jacksonville Daily Record 2023 Statement of Ownership can be accessed at this link.

AUDITOR INFORMATION

Circulation Verification Council 12166 Old Big Bend Road, Suite 210 Kirkwood, Missouri, 63122 314-966-7711 cvcaudit.com

Special to the Daily Record
A rendering of the St. Augustine Bass Pro Shops at 355 World Commerce Parkway near Buc-ee’s and Costco off Interstate 95.

RESTAURANTS

Cousins Maine Lobster food truck launches

Jacksonville is the 75th market for the franchise made famous on the “Shark Tank” TV show.

The goal of some food truck operators is to generate enough sales and popularity to open a brick-and-mortar location.

Damon Cole and Mandy Ottesen see their Cousins Maine Lobster business hitting the road. Theirs is the 75th Cousins Maine Lobster food truck in the U.S.

The 22-foot black truck is detailed with red lobsters and a video screen showing menu items and pictures of the founders and “Shark Tank” entrepreneur Barbara Corcoran, who invested $55,000 for 15% equity in the lobster roll company.

Cousins is the third-largest buyer of Maine lobster behind Carnival Cruise Lines and Costco, Ottesen said.

Cousins Sabin Lomac and Jim Tselikis founded the company in 2012 in Portland, Maine.

The CousinsMaineLobster. com site says “a franchise offering requires an initial investment of $194,000 to $644,700 for our food trucks and $266,700 to $968,900 for our restaurants.”

Cole and Ottesen declined to disclose their costs.

Maine lobster rolls may be delicious but they are not cheap. A basic roll starts at $20.

Ottesen, 48, and Cole, 46, initially wanted a Cousins store.

Cole has been a fan of lobster since youth. His father was a marine engineer and often traveled to Maine. Before flying home, he would buy live lobsters to bring to Jacksonville.

“Back then you could fly with them as carry on,” Cole said.

“You didn’t have to check them and they would stay alive until they got to Jacksonville. We’d have a little party and invite everybody over. He did that once a month, and that’s how I knew about Maine lobster.”

Cole also worked 12-hour shifts as a marine engineer at Mayport for 17 years. He would frequently reward himself with a lobster roll

at the Cousins Maine Lobster location at 630 Atlantic Blvd. in the Seminole Shoppes strip mall in Neptune Beach. The franchise is not affiliated with the Neptune Beach store.

He took Ottesen there and the Key West native experienced Maine lobster, which, unlike Florida lobster, includes claw and knuckle meat. She also enjoyed the Maine lobster roll.

Ottesen reached out to the company to inquire about franchise opportunities.

However, as they looked into starting a Cousins franchise they began to create the business plan.

They soon decided a better plan would be to bring the lobster rolls to the customers. They decided

on four wheels instead of four walls.

“Our pricing is right in line, or probably even a little bit less than you would get on the Maine coast,” Ottesen said.

“The fact that we’re in a truck and we can come to people, they’ll get so excited when they see it. It kind of creates that excitement, right? ”

Their territory is Northeast Florida and as far north as Savannah, Georgia. While they plan to work every day, the wide territory means that the truck may be in one neighborhood only a few times a year.

Their truck debuted Nov. 9 in front of Beer:30 at 1543 San Marco Blvd.

The marketing plan is to part-

ner with similar drink businesses, as well as setting up at festivals and neighborhood gatherings. They also cater. They have hired 10 employees.

Cousins Maine Lobster has an app that shows when and where the truck will be. They also plan to use social media to tell customers when they are in their area.

The couple wanted to start a business together. It is a business that is much more than four hours at a festival or a planned gathering. They have a nondescript office space off Philips Highway. There they receive the packaged lobster claw and knuckle meat. They also use the prep kitchen there to prepare the side orders.

After an event, they will clean the truck’s kitchen, and well as have a cleaning crew scour the truck at night.

The couple praised the Cousins training method. The company had them travel to Maine. They were on a lobster boat. They saw the packaging process. Later, they went to Nashville, Tennessee, to learn how to take an order and deliver it in less than four minutes. They even learned how to drive the truck.

Ottesen works the internet pitching places to set up the truck in front of businesses.

Without serving the first lobster roll, they are booked through the first of the year with just a few open dates.

DMACDONALD@ JAXDAILYRECORD.COM 904-356-2466

Photo by Dan Macdonald
Cousins Maine Lobster food truck owners Mandy Ottesen and Damon Cole launched their lobster roll business Nov. 9. The truck can be tracked at cousinsmainelobster.com/locations/jacksonville-fl/.

THE MATHIS REPORT

Jacksonville Armada expects stadium land deal in November

The professional soccer team seeks permitting for the $18.2 million construction Downtown for completion in 2025 and play in 2026.

Almost a year after the Jacksonville Armada Football Club released renderings of the soccer stadium it plans to build Downtown, the professional soccer team applied to the city for a permit to build the project at a job cost of $18.2 million.

The application comes after the city issued a permit Oct. 16 to clear the 4.84-acre site at a cost of $11.5 million.

The site is at 1041 Albert St., at northeast A. Philip Randolph Boulevard and Albert Street, north of the Arlington Expressway and northwest of EverBank Stadium.

The site is in the Sports and Entertainment District.

The construction permit application shows a 14,000-square-foot stadium with 2,545 seats.

The Armada plans to join the MLS NEXT Pro league, a step up from the National Premier Soccer League under-23 team it currently fields.

Armada President and General Manager Nathan Walter said Nov. 6 that groundbreaking would be scheduled after confirmation of the land closing, which he expects in seven to 10 days.

The land is owned by the city of Jacksonville, which has agreed to sell a 5-acre property for $1 to team owner RP Sports Investment Inc. for the stadium.

Walter estimates construction completion by year-end 2025 and play to begin the following year.

“We will start playing in the stadium in 2026, once completed,” Walter said by email.

Groundbreaking has been delayed at least 10 months later than initially expected.

The Armada professional soccer club announced Nov. 2, 2023, that it would break ground on the stadium in January 2024 “with all hopes of final permitting and stadium construction to allow for the club’s first MLS NEXT Pro season to be in 2025.”

News4Jax.com reported Feb. 24, 2024, that the completion date for the proposed stadium was pushed back.

It reported that Jacksonville City Council extended the start date for construction and pushed the deadline for the project to wrap up to March 1, 2026.

The renderings released Nov. 15, 2023, show a stadium with seating on four sides. Two of the sides have two-level covered tiers. There are lower, uncovered seating areas along the other two sides.

Council voted to rezone 7.58 acres to Planned Unit Development to include the soccer

entertainment complex as well as commercial, office and multifamily residential uses.

A conceptual map of the stadium showed 2,500 seats in Phase 1 of the project and 6,972 seats in Phase 2 for a total of 9,472 seats. The map says there are 307 parking spaces in Phase 1.

That map showed a 25,000-square-foot office building on the south side of the stadium in Phase 1 and a 95,000-square-foot building on the west side of the stadium for Phase 2.

Stewart Green of Colt-Green Construction will lead the development team and Gilbane Building Co. will be the construction partner.

The project legal team is Driver, McAfee, Hawthorne & Diebenow, led by Steve Diebenow and Cyndy Trimmer.

Waitz & Moye was named the civil engineer for the project’s

site planning. Kasper architects + associates is the architect.

RP Sports founder Robert Palmer bought the Armada from the North American Soccer League in July 2017. Palmer is the founder and owner of Lake Mary-based mortgage brokerage RP Funding Inc.

That league folded, and the Armada currently competes in the National Premier Soccer League as an under-23 team.

The team played for several seasons at the Baseball Grounds and EverBank Field before relocating to Hodges Stadium at the University of North Florida.

Jacksonville Armada FC and Jacksonville University announced March 13, 2024, they were facility partners for the 2024 National Premier Soccer League and Women’s Premier Soccer League regular season matches.

Matches took place at Southern Oak Stadium on the JU campus in Arlington.

Walter said Nov. 6 the Armada has not confirmed it is playing at JU in 2025.

Stonepeak buys nine warehouses in Jacksonville

Deeds have been recorded as of Nov. 12 for seven of the nine properties that New York Citybased Stonepeak announced Nov. 4 that it bought in Jacksonville.

Stonepeak, which calls itself a leading alternative investment firm specializing in infrastructure and real assets, said the nine assets total 1.8 million square feet.

It did not identify the assets, the seller or the amount it paid.

The seven properties identified through deeds were sold by LLCs that are in care of Link Logistics Real Estate LLC of Fort

Washington, Pennsylvania.

The seven deeds total $130.22 million and show a total square footage of 1.241 million, according to Duval County Property Appraiser records.

The properties are in North and Northwest Jacksonville and were built between 1972 and 2001.

For the first seven, here is the sale price, address, acreage, size and year built:

$39.442 million at 2855 Faye Road, 27.53 acres, 364,560 square feet, one story, built in 2001. Last sold Nov. 10, 2017, for $24.38 million.

$26.262 million at 10301 Busch Drive N., 13.78 acres, 220,548 square feet, one story, built in 1996. Last sold Jan. 17, 2017, for $8.836 million.

$15.922 million at 10490 Busch Drive N., 7.82 acres, 168,380 square feet, one story, built in 1976. Last sold Jan. 17, 2017, for $6.976 million.

$13.492 million at 227 Gun Club Road, 6.32 acres, 131,887 square feet, one story, built in 1972. Last sold Jan. 12, 2017, for $6.352 million.

$13.012 million at 560 Zoo Parkway, 4.88 acres, 130,960 square feet, one story, built in 1978, and adjacent vacant 1.48 acres. Last sold Jan. 17, 2017, for $5 million.

$11.792 million at 5301 W. Fifth St., 6.217 acres, 120,200 square feet, one story, built in 1973. Last sold for $3.744 million in 2006.

$10.412 million at 5540 Broadway Ave., 6.89 acres, 104,565 square feet, one story, built in 1974. Last sold for $3.456 on July 19, 2006.

State corporate records show that Stonepeak formed LLCs to acquire the properties.

The Prudential Insurance Co. of America issued a $120 million mortgage to one of the LLCs, SP

A rendering of the Jacksonville Armada soccer stadium planned in Downtown Jacksonville.
rendering
The Jacksonville Armada soccer stadium is planned at 1041 Albert St., at northeast A. Philip Randolph Boulevard and Albert Street northwest of EverBank Stadium.

Jacksonville Faye Road LLC, but the mortgage document was not posted as of Nov. 12.

The mortgage and deeds were executed Nov. 1.

Link Logistics was established by Blackstone in 2019.

Stonepeak says it has about $70 billion of assets under management.

“We believe that high-quality real estate adjacent to transport infrastructure will continue to outperform given its missioncritical role in local and national supply chains,” said Phill Solomond, Stonepeak senior managing director and head of real estate, in the Nov. 4 release.

Simpson Thacher & Bartlett LLP served as legal counsel and Jones Lang LaSalle served as financial adviser to Stonepeak.

The release said the assets are near JaxPort, which is investing more than $1 billion over the next five years to improve access and use.

It said Jacksonville’s transportation infrastructure is further supported by a rail network anchored by CSX, Norfolk Southern and Florida East Coast Railway.

20 years after opening, Town Center showing signs of change

They are signs of the times.

Almost 20 years after it opened, St. Johns Town Center is replacing four main entry signs that have greeted visitors since the project launched its first phase of shopping in 2005.

The city issued permits Nov. 6 for three of the four entry monument signs and Nov. 12 for the fourth, all along Town Center

span the center’s four phases.

St. Johns Town Center opened its first phase March 18, 2005.

St. Johns Town Center adding a Marc Jacobs store

Fashion designer Marc Jacobs is opening at St. Johns Town Center, where it appears to be leasing space next to the Talbots women’s clothing store.

Talbots is in city review for a split into at least two spaces, and it looks like Marc Jacobs will take one of them.

New York City-based Marc Jacobs sells ready-to-wear apparel along with its signature tote bag and other handbags, fragrances, jewelry, shoes, accessories and more.

The city is reviewing a permit to split the 6,269-square-foot Talbots space into at least two spaces at an estimated project cost of $250,000.

A Talbots associate was unaware of the plans Nov. 7 and said the store was not moving, so it appears that Marc Jacobs could be taking the other part of the split space.

Talbots is at 4812 River City Drive, Unit 119.

Parkway.

The costs total $402,880.

Dowling Signs of North Central Florida LLC, based in High Springs, is the contractor on the four permits – two at the main entrance at 10210 and 10211

Midtown Parkway and the others at 4815 Big Island Drive and 4605 Town Center Parkway.

The existing multitenant monument signs will be removed and replaced.

The two main signs that flank the first-phase entrance at Mid-

town Parkway - the road that leads to Maggiano’s Little Italywill be replaced at a project cost of $91,450 each.

The third sign’s project cost is $117,000. That signage is at the connection of Town Center Parkway and Big Island Drive, which wraps around the second and third phases of St. Johns Town Center that include Nordstrom and The Capital Grille.

The fourth, at $102,980, is at the entrance between McDonald’s and Chick-fil-A at River

Helping Move Your Business Forward

Marsh Drive.

In addition to the name St. Johns Town Center, A Simon Mall, tenant names among the signs could include Dillard’s, Dick’s Sporting Goods, Nordstrom, RH, AC Marriott, Pinstripes, The Cheesecake Factory and P.F. Chang’s China Bistro.

Simon Property Group of Indianapolis is the landlord of the center, which anchors northwest Butler Boulevard and Interstate 295.

The signage tenant names

The city is reviewing a permit for Marc Jacobs in 2,786 square feet of space at 4812 River City Drive, Unit 119A, at an estimated cost of $125,000. The layout indicates a focus on handbags and accessories.

Site plans and the St. Johns Town Center directory map indicate that the Marc Jacobs and Talbots stores are in the strip of storefronts anchored by Lilly Pulitzer and Tommy Bahama. The stores are near Nordstrom. Marc Jacobs operates 280 stores worldwide.

Special to the Daily Record
Left, the current St. Johns Town Center monument sign from when the shopping center was built in 2005. Right, a rendering of the new monument sign planned at Midtown Parkway and Town Center Parkway. This is the entrance that leads directly toward Maggiano’s Little Italy restaurant.

Construction bids kicking off for $1.4 billion Stadium of the Future

Companies who want to join the development team for the renovated EverBank Stadium are invited to compete for the work.

It’s game on with bidders for work on the $1.4 billion Stadium of the Future.

With Jacksonville City Council and the NFL owners approving the deal for the city and the Jacksonville Jaguars to proceed with the project, the team ownership is assembling the team of services and contractors so that work can start on the 29-year-old EverBank Stadium when the 2024 season ends.

The Jaguars already have chosen 10 bidders and are negotiating with two more for services.

Jaguars Director of Business Communications Lyndsay Rossman said Nov. 6 two bid packages are expected to be out Nov. 7 and Dec. 19 for 24 total scopes of work for major construction work.

The first will comprise six scopes of work from demolition to concrete foundations.

That one, Bid Package IFC #2A, includes demolition, site preparation, concrete foundations, castin-place concrete, joint sealants

and expansion joints.

The Jaguars posted a notice that the bid documents will be issued Nov. 14 for Bid Package IFC #2A.

Construction services manager AECOM Hunt/Barton Malow will receive bids by 2 p.m. Dec. 12.

Rossman said interested bidders can attend a pre-proposal meeting scheduled at 4 p.m. Nov. 20 in Gallagher West Club at EverBank Stadium to learn more about the project.

IFC is “Issuance for Construction,” basically the designs, drawings or documents for the services/scopes.

Bid Package IFC #2B, which will be released Dec. 19, includes 18 scopes of work, such as precast concrete, structural steel, building steel, fire protection, plumbing, AV and video production.

There will also be an RFP for building commissioning posted before Thanksgiving.

The Jaguars have been working for months with city and service agencies to prepare to start renovations on EverBank Stadium in 2025 for the Stadium of the Future.

The structure at 1 EverBank Stadium Drive anchors the Sports & Entertainment District on the eastern edge of Downtown.

The NFL owners’ group gave final approval Oct. 15 to the Jaguars’ deal with the city. The Jaguars lease the stadium from the city, which owns it.

In the RFPs, the Jaguars,

through Jax Stadium LLC, issues notices of competitive selection after receiving and evaluating responses. The Jaguars then prepare to negotiate a contract with the top-ranked respondent.

The team’s timeline calls for the stadium construction to begin in February 2025.

The Jaguars will play at EverBank Stadium during the 2025 NFL season with a slightly reduced capacity, then will return to EverBank in 2026 with a stadium capacity of about 43,500.

In 2027, the Jaguars will play their home games in Orlando or Gainesville, but with the possibility of playing three home games in London.

The renovated stadium would open in August 2028.

RFP SELECTIONS

Rossman said that the Jaguars are handling all bid negotiations for the Stadium of the Future.

She said Stadium of the Future awardee information is at jaguars.com/stadiumofthefuture/ employment, which is also where RFP/bid packages are hosted.

In the latest two RFPs, Terracon Consultants Inc. is the topranked among seven respondents for construction materials testing and for special inspections/ threshold services.

Langan Engineering and Environmental Services Inc. is topranked among seven respondents

for deep foundations and geotechnical testing.

Rossman said there is no set timing on negotiations with those respondents.

Both already are top bidders on the first 10 RFPs for the projects.

The Jaguars have selected, negotiated and awarded RFPs to:

AECOM Hunt/Barton Malow for preconstruction services.

HOK, already a design partner, for architect of record services. HOK is based in St. Louis.

 Terracon Consultants for the Phase 1 environmental site assessment services. Terracon is based in Olathe, Kansas, near Kansas City, and has an office in Jacksonville.

 ETM Surveying & Mapping for surveying and subsurface utility engineering services. Known as ETM Survey, the company is affiliated with Jacksonville-based England-Thims & Miller Inc.

 Langan for geotechnical services. Langan Engineering & Environmental Services is based in Parsippany, New Jersey, and has an office in Jacksonville.

ImpactDM for project management. Impact Development Management, based in Atlanta, says it is a commercial real estate development management firm that helps clients “execute economical, functional, and aesthetically pleasing projects.”

Rider Levett Bucknall for the role of cost consultant. RLB.com

says it is an advisory, cost management and project management services firm. It is a London-based global company with 15 offices in the U.S. among 20 in North America.

 ME Engineers, an international company, for technology services.

 Gallagher Insurance Co. for insurance broker services. It is based in Rolling Meadows, Illinois, with offices in Jacksonville.

Walter P. Moore & Associates Inc. of Denver as the structural engineer of record.

PROGRESS TO DATE

Reviews to start construction in 2025 for the Stadium of Future began at least in May, and the city and the Jacksonville Jaguars took another step Oct. 28.

A joint venture of Hunt Construction and Barton Malow are seeking a permit at a job cost of almost $1.53 million for test piles around the foundation of the stadium.

The NFL owners vote allowed the team to proceed toward remaking and modernizing EverBank Stadium with such features as a partial roof cover, expanded and elevated concourses, a park-like entrance, corner openings to improve airflow and a reflective outer coating designed to reduce interior heat.

KMATHIS@JAXDAILYRECORD.COM

904-356-2466

University of Florida Health provides some of the country’s most renowned health care. Families from every corner of Florida and more than 40 countries around the globe turn to UF Health for advanced, comprehensive care — and for good reason. With 12 hospitals, more than 115 physician practice locations, six distinguished health colleges, and 10 major research institutes, our leading-edge research is advancing treatments for some of the most devastating illnesses. And, as a safety net provider for Florida, we deliver compassionate care for everyone in our communities, including those with little or no insurance. So, take a moment to check that UF Health is in network for your health insurance.

Having access to Florida’s most advanced health care is the best way to ensure the highest level of care for you and your family. So, check your health plan. Make sure it includes UF Health.

NOTICE of PUBLIC HEARINGS for AMENDMENTS of LAND

USE to THE 2045 COMPREHENSIVE

PLAN

For TEXT and SMALL-SCALE

THE CITY OF JACKSONVILLE INTENDS TO ADOP T THREE (3) SMALL -SCALE AMENDMENTS AND TRANSMIT ONE (1) TEXT AMENDMENT TO THE FUTURE LAND USE

MAP SERIES (FLUMS) OF THE 2045 COMPREHENSIVE PLAN. SPECIFICALLY, THE FOUR (4) PROPOSED AMENDMENTS FROM THE 2023C, 2024C, AND 2024B SERIES FILED BY THE OWNERS, THEIR AUTHORIZED AGENTS, OR THE CITY FOR CERTAIN REAL PROPERTY LOCATED WITHIN THE CITY OF JACKSONVILLE A RE IDENTIFIED BY THE ORDINANCES BELOW.

Pursuant to the provisions of Sections 163.3184 and 163.3187, Florida Statutes and Section 650.406, City of Jacksonville Ordinance Code , public hearings on the proposed amendments have been scheduled as follows:

Citizen Information Meeting (CIM)

To be held virtually via Zoom

Monday, November 18, 2024

3 p.m.

See website below for notice on how to join or call 904-255-7800 www.Jacksonville.gov/departments/ planning-and-development/communityplanning-division/land-use-notices

By Jacksonville Planning Commission Acting as Local Planning Agency (LPA)

Thursday, December 5, 2024

1 p.m.

Ed Ball Building

214 N Hogan St., 1st Floor Room 1002

By City Council * Tuesday, December 10, 2024

5 p.m.

By Land Use and Zoning (LUZ) Committee *

Tuesday, January 7, 2025

5 p.m.

By City Council *

Tuesday, January 14, 2025

5 p.m.

* City Council and LUZ Committee Public Hearings: Council Chambers, 1st floor 117 West Duval Street

If a person decides to appeal any decision made by City Council with respect to the adoption of the proposed amendments, he/ she will need a record of the proceedings and should ensure that a verbatim record of the proceedings is made, which record includes the testimony and evidence upon which the appeal is to be based in order to qualify to participate in administrative proceedings regarding the DEO ’s determination of compliance or noncompliance of this amendment to the 2045 Comprehensive Plan , as adopted, under Chapter 163, Part II, Florida Statutes, that person shall have submitted oral or written objections during local government review and adoption proceedings.

Persons needing special accommodations to attend any hearing noticed shall contact the Legislative Services Division, (904) 630-1404 not less than 48 hours before a hearing or meeting in order to make arrangements.

Attest: Merriane G. Lahmeur

The Honorable Randy White Jacksonville City Council President

ORDINANCE 2023-325

AN ORDINANCE ADOPTING A SMALL-SCALE AMENDMENT TO THE FUTURE LAND USE MAP SERIES OF THE 2045 COMPREHENSIVE PLAN BY CHANGING THE FUTURE LAND USE DESIGNATION FROM LOW DENSITY RESIDENTIAL (LDR) TO AGRICULTURE (AGR) ON APPROXIMATELY 33.95± ACRES LOCATED IN COUNCIL DISTRICT 12 AT 0 BRANDY BRANCH ROAD, BETWEEN U.S. HIGHWAY 301 SOUTH AND THE DUVAL/ NASSAU COUNTY BOUNDARY LINE (R.E. NO. 000890-0100 (PORTION)), OWNED BY JMC DUVAL COUNTY PROPERTIES, LLC, AS MORE PARTICULARLY DESCRIBED HEREIN, PURSUANT TO APPLICATION NUMBER L-5797-23C; PROVIDING A DISCLAIMER THAT THE AMENDMENT GRANTED HEREIN SHALL NOT BE CONSTRUED AS AN EXEMPTION FROM ANY OTHER APPLICABLE LAWS; PROVIDING AN EFFECTIVE DATE.

ORDINANCE 2024-859

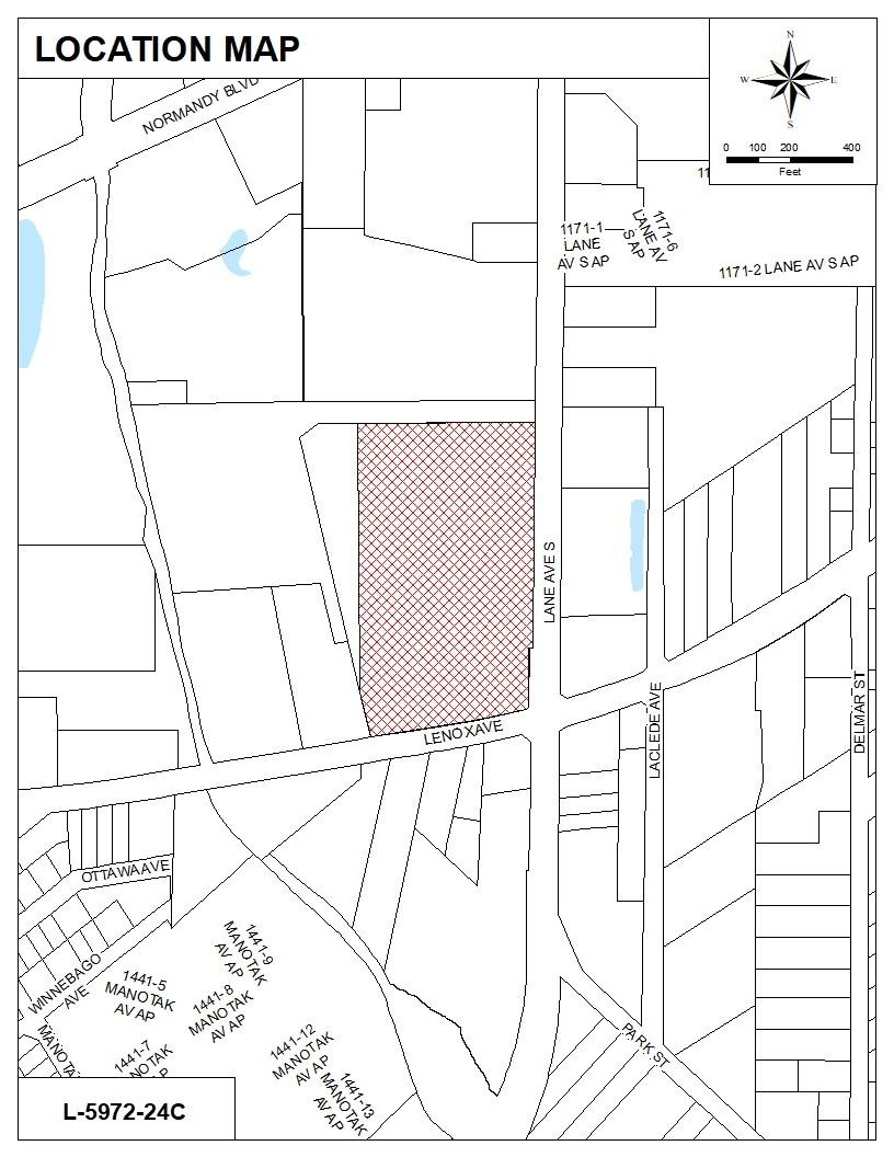
AN ORDINANCE ADOPTING A SMALL-SCALE AMENDMENT TO THE FUTURE LAND USE MAP SERIES OF THE 2045 COMPREHENSIVE PLAN BY CHANGING THE FUTURE LAND USE DESIGNATION FROM COMMUNITY/GENERAL COMMERCIAL (CGC) TO MEDIUM DENSITY RESIDENTIAL (MDR) ON APPROXIMATELY 12.0± ACRES LOCATED IN COUNCIL DISTRICT 9 AT 0 LANE AVENUE, BETWEEN NORMANDY BOULEVARD AND LENOX AVENUE (A PORTION OF R.E. NO(S). 011778-0055), OWNED BY IPS ENTERPRISES, INC., AS MORE PARTICULARLY DESCRIBED HEREIN, PURSUANT TO APPLICATION NUMBER L-5972-24C; PROVIDING A DISCLAIMER THAT THE AMENDMENT GRANTED HEREIN SHALL NOT BE CONSTRUED AS AN EXEMPTION FROM ANY OTHER APPLICABLE LAWS; PROVIDING AN EFFECTIVE DATE.

ORDINANCE 2024-861

AN ORDINANCE ADOPTING A SMALL-SCALE AMENDMENT TO THE FUTURE LAND USE MAP SERIES OF THE 2045 COMPREHENSIVE PLAN BY CHANGING THE FUTURE LAND USE DESIGNATION FROM RURAL RESIDENTIAL (RR) TO MEDIUM DENSITY RESIDENTIAL (MDR) ON APPROXIMATELY 9.8± ACRES LOCATED IN COUNCIL DISTRICT 8 AT 3701 HEMLOCK STREET, 3697 HEMLOCK STREET, AND 3731 HEMLOCK STREET, WEST OF LEM TURNER ROAD (R.E. NO(S). 0194660170, 019466-0020, 019466-0180, and 019466-0030), OWNED BY DREW DONOVAN HOOD, TERRI L. HOOD AND DAVID D. HOOD, AS MORE PARTICULARLY DESCRIBED HEREIN, PURSUANT TO APPLICATION NUMBER L -5960-24C; PROVIDING A DISCLAIMER THAT THE AMENDMENT GRANTED HEREIN SHALL NOT BE CONSTRUED AS AN EXEMPTION FROM ANY OTHER APPLICABLE LAWS; PROVIDING AN EFFECTIVE DATE.

ORDINANCE 2024-868

AN ORDINANCE APPROVING THE PROPOSED 2024B SERIES TEXT AMENDMENT TO THE FUTURE LAND USE ELEMENT OF THE 2045 COMPREHENSIVE PLAN OF THE CITY OF JACKSONVILLE TO AMEND THE OPERATIVE PROVISIONS AND THE LOW DENSITY RESIDENTIAL (LDR) AND MEDIUM DENSITY RESIDENTIAL (MDR) CATEGORIES RELATING TO DUPLEXES, TRI-PLEXES AND QUAD-PLEXES AND DENSITY IN THE MISSING MIDDLE AND ADOPTING THE MISSING MIDDLE OVERLAY MAP, FOR TRANSMITTAL TO THE STATE OF FLORIDA’S VARIOUS AGENCIES FOR REVIEW; PROVIDING A DISCLAIMER THAT THE AMENDMENT TRANSMITTED HEREIN SHALL NOT BE CONSTRUED AS AN EXEMPTION FROM ANY OTHER APPLICABLE LAWS; PROVIDING AN EFFECTIVE DATE.

Persons interested in commenting on these proposed amendments to the 2045 Comprehensive Plan may appear and shall be given an opportunity to speak at the public hearings. The proposed land use amendments, if adopted, will change the permitted uses of these properties and may result in a rezoning of the affected properties. All interested persons are invited and encouraged to review the referenced legislation in this advertisement that indicates the proposed amendments and to appear at the public hearings and be heard regarding the adoption of the proposed amendments. Written comments may be mailed or delivered to the City Council Legislative Services Division, 4 th Floor, City Hall at St. James Building, 117 West Duval Street, Jacksonville, Florida 32202 until the day of the public hearing. Copies of the amendments are available for public inspection at the Council Legislative Services Division and at the Jacksonville Planning and Development Department, 214 North Hogan Street, Edward Ball Building, Suite 300, Jacksonville, Florida 32202. For additional information call (904) 255 -7800. Please visit www.Jacksonville.gov for meeting information and more information regarding COVID-19 procedures/precautions for accessing public buildings.

CITY GOVERNMENT

Council members push for renegotiation of incentives for Project Paper Company

Working independently of each other, Will Lahnen and Nick Howland raised concerns about how a portion of the funding would affect the city budget.

Two Jacksonville City Council members have asked for a proposed incentive package to fuel expansion of a local financial services company to be renegotiated and revised.

After legislation containing the $21 million package for the code-named Project Paper Company began making its way through the Council process, members Nick Howland and Will Lahnen contacted parties involved in negotiating the deal in hopes of reducing its impact on the city budget and lowering the city’s financial risk.

Based on details in city documentation, Project Paper Company matches Intercontinental Exchange Inc. The city says the company’s expansion plan would add 500 employees to its current 1,500-member workforce.

As originally proposed, the package would provide a $10 million Recapture Enhanced Value Grant over 13 years; a $5 million Business Expansion Grant over 10 years; a Job Creation Grant up to $3 million; and a Job Retention Grant up to $3 million.

Working independently of each other, Lahnen and Howland said they both raised concerns to Mayor Donna Deegan’s administration and the JAX Chamber, which helped negotiate the package, about how the Business Expansion Grant, Job Creation Grant and Job Retention Grant would affect the city’s general

fund at a time when Council auditors are projecting budget deficits of $44 million to $105 million through 2029.

Those grants, which total $11 million, would be paid out of the city’s general fund, which essentially acts as its savings account.

A REV grant is a refund on ad valorem tax revenue generated by a new development.

Howland said he supported Project Paper Company but hoped a revised package would include a substantially larger portion of REV grant funding, which would protect the general fund. Lahnen said he also would like to see a higher mix of REV grant funding.

“The way REV grants work is theoretically you’re still winning, because someone is building something bigger, they’re building on vacant land or doing something else where you were not getting any tax dollars for and now you’re getting some-

thing,” he said.

“You’re just not getting as much as you would have if you didn’t give them the incentive. I’d much rather see that than us writing a check out of our general fund.”

Lahnen also voiced concerns about the Job Retention Grant.

“An incentive, in an ideal world, is to get people to come here,” he said.

Lahnen and other Council members came out of this year’s city budget hearings saying they planned to more closely scrutinize incentive requests given the city’s budget limitations. In recent years, Council has almost inevitably approved incentive packages, often with little discussion.

Both Lahnen and Howland contacted Deegan’s administration and the JAX Chamber, which has been involved in the negotiations with Project Paper Company, to revisit the package.

Legislation containing the package, Ordinance 2024-0836, was deferred in the Council Finance Committee on Nov. 6. Howland said he believed a revised version could be brought before Council in as little as two weeks.

Ron Salem, Finance Committee chair, commended Lahnen and Howland and said he also had concerns about the incentives.

According to a Sept. 30 city memo, Project Paper Company is an existing financial services company seeking to expand and establish its national headquarters for its Mortgage/Technology Division in Jacksonville.

The 500 new jobs would be created by Dec. 31, 2031, creating a payroll topping $50 million not counting benefits.

The project would create a capital investment of at least $173 million and up to $216 million “to construct and out-fit existing and future expansion office space” by Dec. 31, 2029, city documents state.

Intercontinental Exchange Inc. describes itself as a Fortune 500 company that designs, builds and “operates digital networks that connect people to opportunity.”

“We provide financial technology and data services across major asset classes helping our customers access mission-critical workflow tools that increase transparency and efficiency.”

ICE has said already it was expanding in Jacksonville.

In February, ICE reported a big increase in mortgage technology revenue in the fourth quarter after completing its acquisition of Jacksonville-based Black Knight Inc. in September 2023.

Black Knight is a software, data and analytics company that serves the housing finance market, including real estate data, mortgage lending and servicing, as well as the secondary markets.

“I think it is somewhat of a slippery slope if we start paying these retention grants just to get people to stay in Jacksonville. We could run out of money really fast if we start playing defense to where other companies are thinking about moving elsewhere and next thing you know we’re approving retention grants for them as well.”

The project plans at least a $173 million capital investment and possibly more than $216 million over five years in construction, equipment and building improvements, it says.

The memo says the incentives are a material factor in remaining and expanding in Jacksonville instead of relocating and expanding in “another large Southeastern metropolitan area in which it has a presence.”

The memo says the newly created jobs would pay an average base wage of $100,000 that rises to $125,000 with benefits.

ICE, best known as the operator of the New York Stock Exchange, also said it is upgrading the former Black Knight headquarters at 601 Riverside Ave. in the Brooklyn area of Downtown Jacksonville.

During ICE’s year-end conference call with analysts Feb. 8, Chief Financial Officer Warren Gardiner said its capital spending plans for 2024 include “$100 million related to the new office space and expansion and improvement across New York, London and Jacksonville,” according to a call transcript.

The operation would include front-office and C-suite jobs.

ICE, which lists headquarters offices in New York and Atlanta, now owns the 327,000-squarefoot Black Knight building along the St. Johns River.

File photo
The Black Knight offices at 601 Riverside Ave. in Brooklyn will be upgraded, according to the company’s new owner, Intercontinental Exchange Inc.
Howland
Lahnen
Salem

CITY GOVERNMENT

JEA executive: Old HQ expected to be put on market in early 2025

Jordan Pope says the utility’s goal with the sale is to further contribute to Downtown redevelopment.

Look for JEA’s former Downtown headquarters campus to hit the market early next year, an executive for the city-owned utility told Jacksonville commercial real estate agents and developers Nov. 7.

“We intend to go out with an RFP (request for proposal) for these buildings in probably early to mid-January,” said Jordan Pope, JEA’s director of administrative services, speaking to the NAIOP Commercial Real Estate Development Association Northeast Florida Chapter.

“I’ll tell you that JEA’s goal with these buildings is to further contribute to the development and/ or redevelopment of Downtown Jacksonville.”

Pope addressed JEA’s plans for its former offices during a lunch presentation that also touched on the utility’s capital improvement

plans, its ongoing efforts to contend with supply chain issues for equipment, and general information. The event was at the Marriott Jacksonville Downtown.

In 2023, JEA moved out of its previous headquarters into a new seven-story building at 225 N. Pearl St.

The previous 2.47-acre campus includes a 19-story tower topped by what was once a rotating restaurant. The campus, including the 1962-built tower originally called the Universal Marion building, also housed offices and a department store before JEA bought it in 1988.

The campus includes an adjacent customer service center and a 590-space parking structure with groundlevel retail. The site is at 21 W. Church St., 421 N. Laura St. and 21 E. Church St.

Pope said that by the time JEA moved out, the buildings had reached the end of their use as offices without significant renovation.

“If you ever worked in those

buildings or visited them, it was time to go somewhere else or do something with them,” Pope said.

“However, I’m certain that we’re going to find someone who wants to do something great with these buildings.”

A resturant was once on the roof of the former JEA headquarters in Downtown Jacksonville.

In August 2024, the JEA board approved a resolution declaring the former headquarters as surplus property and authorizing Managing Director and CEO Vickie Cavey to execute a purchase-and-sale agreement for all or parts of it.

In October 2023, JEA and the Downtown Investment Authority sponsored a symposium on office-to-residential conversion, with JEA’s involvement signaling the property could be a candidate for residential adaptive reuse.

Pope said residential conversion could be an option, but likely wasn’t the only one JEA would entertain through its RFP.

“My goal is really to leave it to the market to say what is best here,” he said, adding that a “less prescriptive” approach would best suit the utility.

Office-to-residential conversions have increased in recent years, driven by high office vacancy rates stemming from remote-work policies instituted during the COVID-19 pandemic. However, not all office buildings are viable for conversion to living units for reasons that include zoning barriers, high renovation costs and building designs that prevent exposure to open air and provide little or no natural lighting in structure cores.

RANDERS0N@ JAXDAILYRECORD.COM The

Pope

St. Johns County unanimously denies plans for ‘Agrihood’ community

The board of county commissioners found the plans for the proposed 3,300-home development incomplete.

The St. Johns County Board of County Commissioners unanimously voted Nov. 5 to deny plans for a proposed “Agrihood” community that would have added more than 3,300 homes along County Road 214.

Outgoing Commissioner Henry Dean, who had previously supported the development, expressed disappointment, saying he would have backed it if the timing had been right and plans for the project had been more complete.

“I’m very disappointed I can’t support this project,” he said.

The Planning and Zoning Agency unanimously recommended denial of the project Oct. 17.

Developer Freehold Communities proposed the project.

The development sought to rezone 2,673 acres from Open Rural to Planned Unit Development. The site is between County Roads 208 and 214, west of Interstate 95, south of the St. Augustine Premium Outlets, and about 20 miles south of Shearwater.

According to Freehold, “Agrihoods are defined as an organized community that integrates agriculture into a residential setting.”

A proposed 4-mile segment of County Road 2209 would run through the development, connecting County Roads 214 and 208. Freehold, based in Boston and also the developer of Shearwater, represents Robinson Improvement Co. of Brunswick, Georgia, which has owned the land since 1906.

Among other concerns, Planning and Zoning Agency members cited insufficient time to review Freehold’s 224-page proposal, which they deemed incomplete. As of Oct. 15, the developer planned 3,332 residential units and 250,000 square feet of retail

and commercial space, though by Oct. 17, the nonresidential components had been removed.

Lindsay Haga of EnglandThims & Miller, the project’s civil engineer, said the commercial components were removed after feedback from the Oct. 15 meeting with the commission. At that meeting, the county also presented a development agreement to construct the 4-mile segment of County Road 2209.

Planning and Zoning Agency member Richard Hilsenbeck described the project as “rushed, rushed, rushed” and “helterskelter,” citing “a lot of missing data and inconsistencies.”

“There are too many open comments, the materials provided are incomplete, and we had inad

LINK CAPITAL:

equate time to review it,” he said.

“This is an important item both for me as a PZA member and for the citizens interested in this proposal. It’s way premature, and its time has not come.”

Agency member Jack Peter noted that, although the project “sounds nice, it’s so far out in the future,” calling it “one of the most incomplete applications” he had reviewed.

“To move this forward seems illadvised at this time,” Peter said.

Agency member Henry Green echoed those concerns, saying, “The application just isn’t finished.”

Agency member Elvis Pierre said, “I’m listening to my colleagues, and I just don’t think its time has come.”

Residents speaking at the meeting urged members to deny the project, with one saying, “This is the biggest mistake the county could make.”

Before the vote, agency Chair Meagan Perkins called the project’s site plan a “bubble plan.”

“With a project of this magnitude, we should have specifics about where certain-sized lots will go,” she said.

“We don’t have that. This should not have come before us at this stage. It’s too early. It’s too incomplete.”

BTERRY@JAXDAILYRECORD.COM

904-356-2466

LENDERS

ST. JOHNS

Margaritaville Hotel cottages plans approved

The St. Johns County Board of County Commissioners approved changes Nov. 5 to plans for the Beachwalk Compass by Margaritaville hotel.

The modified proposal raises the limit of hotel rooms from 150 to 200, including 68 short-term stay cottages with up to five bedrooms.

Each cottage, not the number of bedrooms, is defined as a hotel room. An earlier draft of the revised proposal called for cottages with up to six bedrooms.

In addition to the cottages, a five-story boutique hotel is planned to have 132 rooms on the southwest end of Beachwalk’s Crystal Lagoon. The cottages can either be owned by the hotel or sold individually.

Project representative

Ellen Avery-Smith of law firm Rogers Towers said they will have a similar look and feel to the cottages at the Margaritaville Orlando Resort Hotel.

File photo
Freehold Communities “Agrihood” Arden master-planned development in South Florida features a 5-acre farm and event barn.

THE

IN DEVELOPMENT

AMUSEMENT, RECREATIONAL

Victoria Preserve, 11674 Alexandria Drive, contractor is C Buss Enterprises Inc., swimming pool repair, $65,051. City of Jacksonville, 3780 Eunice Road, contractor is Playmore Recreational Products and Services, Isle of Palms Park outdoor fitness equipment installation, $25,128.

APARTMENTS

Azalea Ridge Apartments, 8151 Alderman Road, contractor is Honest Construction Inc., install exterior stairs, $18,000.

CHURCH, OTHER RELIGIOUS

Chets Creek Church, 6625 Terry Road, contractor is Auld & White Constructors LLC, 7,512 square feet, new Hope Center building, $1.67 million.

Lagoinha Jacksonville Church Inc., 10503 San Jose Blvd., No. 18, contractor is C.M.B. Builders LLC, 16,725 square feet, converting use, $165,000.

CONDOMINIUMS

Montreaux at Deerwood Lake LLC, 8550 Touchton Road, contractor is All Weather Contractors Inc., exterior repair, $88,800.

HOSPITAL, INSTITUTIONAL

Baptist MD Anderson Cancer Center, 1301 Palm Ave., contractor is The Haskell Co., 1,730 square feet, interior build-out, $646,920.

Nutex Health Specialty Hospital, 12625 Beach Blvd., contractor is Paverscape Inc., install four retaining walls, $205,000.

Baptist Medical Center South, 14550 Old St. Augustine Road, contractor is Commercial Construction Services Inc., 315 square feet, renovations for nuclear machine camera replacement, $76,815.

INDUSTRIAL

Edgewood Self Storage, 1550 W. Edgewood Ave., contractor is Summit Construction Management Group LLC, four new buildings, $4.4 million. Devon Cole, 6907 Business Park Blvd. N., contractor is James Frazier Construction Inc., two new buildings, $500,000. Lamb’s Yacht Center Inc., 4456 Lakeside Drive, contractor is Crabtree Construction Co., 2,950 square feet, new storage building, $359,357. Sunoco LLC, 5811 Buffalo Ave., contractor is Newberry Contracting Inc., butane equipment foundation, $140,000. Coca-Cola Beverages Florida LLC, 1707 Huron St., contractor is J.C. Stanford & Sons Inc., new building slab, $75,000. Walthall Oil Co., 7107 Stuart Ave., contractor is Ferguson Builders Inc., 600 square feet, create office in warehouse, $70,000.

City of Jacksonville

A self-storage facility is planned for 1550

W. Edgewood Ave. in Northwest Jacksonville west of Tallahassee Street.

OFFICE, BANK, PROFESSIONAL

Zyscovich, 100 N. Laura St., contractor is Emerald C’s Development Inc., 4,400 square feet, tenant build-out, $488,477. GAI Consultants Inc., 12574 Flagler Center Blvd., contractor is DC Construction Associates of Central Florida LLC, 1,950 square feet, expansion, $210,000.

Schulte Family Dentistry, 11560 Old St. Augustine Road, No. 2, contractor is Remodeling Pros Inc., wall repair, $20,000.

RESTAURANTS

Starbucks, 7680 103rd St., contractor is Elfrink Custom Construction Inc., 1,370 square feet, new shell building, $565,200.

Dunkin’, 10379 Atlantic Blvd., contractor is Foley Construction LLC, 2,033 square feet, interior and exterior renovation, $170,000.

Chick-fil-A, 13375 Atlantic Blvd., contractor is W.H. Bass Inc., install canopy, $85,000.

SCHOOLS, LIBRARY, OTHER EDUCATIONAL

Jacksonville Classical Academy, 2043 Forest St., contractor is Carlton Construction Inc., 36,994 square feet, new gymnasium, $9.3 million.

SERVICE STATION, REPAIR GARAGE

Pro-Tech Automotive NAPA AutoCare Center, 5027 Sunbeam Road, No. 1, contractor is American Safety LLC, repair, $67,821.

STORES, MERCANTILE

Potter’s Investments LLC, 2400

N. Main St., contractor is Marvel Construction Group LLC, dumpster enclosure, $20,000.

UTILITIES

JEA, 11305 Harts Road, contractor is Sawcross Inc., 450 square feet, new wastewater lift station, $200,000.

industry insights

BUSINESS INSIGHTS FROM A TECH PERSPECTIVE

A-1 Jacksonville, FL 32217 www.JaxMediationCenter.com

There’s a wonderful line delivered by Jeff Goldblum in 1993’s box office smash movie “Jurassic Park” that perfectly crystalizes many of the biggest questions that companies struggle with today.

“They were so preoccupied with whether or not they could that they didn’t stop to think if they should,” says Dr. Ian Malcolm, a chaos theory scientist, as he confronts the man who has resurrected dinosaurs from extinct DNA, shortly before they escape and wreak havoc.

While most modern-day businesses don’t need to worry about rampaging velociraptors, they do confront a familiar dilemma: embracing the latest technology to gain a competitive edge while ensuring these advancements align with their values and commitment to customers, especially around privacy and security.

INNOVATION AND GOVERNANCE: A COMPLEMENTARY PARTNERSHIP

Innovation and governance are often seen as competing forces, but companies that view them as complementary are far more successful. According to recent research, companies embracing a culture of innovation are over three times more likely to generate higher revenue and enjoy greater customer satisfaction than their competitors. A strong governance framework doesn’t need to stifle innovation—it should support it. Done right, governance provides a flexible foundation where teams can experiment safely, backed by clear guidelines that protect both customers and the organization.

A balanced governance framework achieves this in a few ways:

• It gives all employees a clear under standing of how innovative technology should be used.

• It fosters flexible policies, allowing adjustments to keep pace with new technology while evolving in line with the company’s goals.

• It emphasizes transparency so stake holders know how the tech works, its purpose, and how sensitive tasks like data collection and retention are handled.

By keeping these core tenets front and center, companies can innovate swiftly without sacrificing security.

DEFINING SUCCESS IN INNOVATION AND GOVERNANCE

We all recognize the hallmarks of innovative success: increasing lead conversion, higher ROI, and streamlined workflows that save time and money. Governance success, while perhaps less glamorous, is just as crucial: it involves regulatory compliance, fortified data security, and reduced risk to all stakeholders. A well-balanced approach actively connects these areas, ensuring that innovation drives value safely and responsibly.

For companies struggling to find this balance between “what’s next” and “what’s safe,” we’re here to help. Email us at hello@valyr.com to explore how a tailored governance strategy can support your innovation goals and lead to a synergy that sets your business apart.

THE BASCH REPORT

Cadre: Elections don’t affect its business

The company makes safety products for law enforcement and first responders.

Cadre Holdings Inc. depends on government spending in its business of making safety products for law enforcement and first responders.

But when the Jacksonvillebased company held its quarterly conference call Nov. 6, the day after the elections, CEO Warren Kanders said the results likely won’t affect its business.

“Historically, our financial results have not been significantly affected by economic, political, geopolitical and other cycles, and we expect this will continue to be the case,” Kanders said.

“As you all know, our largest market segment is law enforcement and over multiple decades, major domestic law enforcement budgets and police protection expenditures have grown despite financial and industrial recessions and a political climate that has oscillated,” he said.

“In recent years, defund the police has become refund the police and there is an expectation that regardless of which party is in office, there will be a commitment to public safety spending and ensuring those who protect and serve us are equipped with the safest and most reliable products.”

Cadre’s third-quarter earnings dropped 67% to $3.7 million, or 9 cents a share, with sales falling 13% to $109.4 million.

The company attributed the drop to a previously reported cybersecurity incident in July, which caused a temporary interruption of some operations.

Redwire: Backlog means stronger revenue growth

Redwire Corp. continues to grow at a slower pace than it predicted when it went public in 2021, but the Jacksonville-based space technology company says its backlog of projects and bids will spur stronger revenue growth.

Redwire said third-quarter

revenue rose 10% to $68.6 million and it is projecting full-year revenue of $310 million. That’s less than half the $766 million in revenue it projected for this year when it went public.

However, CEO Peter Cannito said in a Nov. 7 conference call that Redwire’s contracted backlog has increased 30% since last year to $330.1 million.

“The growth in contracted backlog is one of many factors that give us confidence in our growth as we look towards 2025 and beyond,” he said.

“We continue to expand our pipeline with an estimated $6.9 billion of identified opportunities, including approximately $2.9 billion in proposals submitted year-to-date as of September 30.”

Redwire’s stock had performed poorly since going public but it has rebounded strongly this year as investors become more optimistic about its growth, rising from $2.85 at the end of 2023 to a 52-week high of $10.50 on Nov. 11.

Proficient Auto revenue drops with auto market dip

Proficient Auto Logistics Inc.’s revenue fell in its first full quarter of operations as a decline in new vehicle sales by U.S. automakers affected its business. Jacksonville-based Proficient transports vehicles from manufacturers to dealers. It was

formed by merging five companies shortly after its initial public offering in May.

Third-quarter revenue of $91.5 million was 12% lower than the five companies combined produced the previous year.

“The third-quarter backdrop was very weak and unanticipated,” CEO Rick O’Dell said in a Nov. 8 conference call.

“Proficient continued to advance foundational initiatives in spite of the environment to position our company to gain market share, provide enhanced value proposition and improve our efficiencies going forward,” he said.

Treace continues expanding surgical products

Treace Medical Concepts Inc. said Nov. 5 its third-quarter revenue rose 11% to $45.1 million as the Ponte Vedra-based company continues to expand its line of surgical products to treat bunions and other foot issues.

“We’re pleased to report continued progress on our commercial strategy aimed at broadening our presence in the bunion market by further strengthening our product portfolio to address the evolving needs of both patients and surgeons,” CEO John Treace said in the company’s conference call.

“We are now excited to introduce unique technologies into the metatarsal osteotomy segment, currently estimated to represent 70% of the 450,000

annual bunion cases performed in the U.S.,” he said.

Treace Medical’s stock dropped sharply in May after the company lowered its revenue forecast for the full year.

The company slightly increased the lower end of its forecast range in its third-quarter report, saying it expects fullyear revenue of $204 million to $211 million, which would be 9% to 13% higher than last year.

Fidelity earnings rise in difficult environment

Fidelity National Financial Inc. reported increased revenue and earnings in the third quarter, despite still-high mortgage rates affecting its title insurance business.

Adjusted earnings rose 7% to $356 million, or $1.30 a share, with revenue rising 30% to $3.6 billion.

In Jacksonville-based Fidelity’s Nov. 7 conference call, CEO Mike Nolan said its title insurance business experienced normal seasonality for the first two months of the quarter but orders rose from August to September.

“This is atypical and due to a decline in rates, and we believe is indicative of the pent-up demand for housing,” he said.

RYAM reports third-quarter loss

Rayonier Advanced Materials Inc., or RYAM, reported a third-quarter loss of $33 million, which included two charges to earnings totaling $32 million.

Sales for the Jacksonvillebased maker of cellulose specialties products rose 9% to $401 million.

“RYAM delivered another solid quarter of financial results as we continued to improve our product mix and manage operating costs. Demand for cellulose specialties has remained solid supporting the improved product mix and margins,” CEO De Lyle Bloomquist said in a Nov. 5 news release.

After the end of the quarter, an Oct. 11 fire at RYAM’s largest plant in Jesup, Georgia, disrupt-

ed operations.

RYAM said it expects the fire to impact earnings by about $10 million and require $3 million of maintenance capital.

Rayonier earnings fall in third quarter

Rayonier Inc. reported thirdquarter adjusted earnings fell 6% to $18.1 million, or 12 cents a share, with revenue for the timber and real estate company falling 3% to $195 million.

“We delivered solid operational results in the third quarter, despite macroeconomic challenges that continue to adversely impact our timber businesses,” CEO Mark McHugh said in a Nov. 6 news release.

Rayonier also announced it completed or has pending four transactions to sell about 200,000 acres of timberland in Oklahoma and Washington state for $495 million.

Rayonier, headquartered in Wildlight in Nassau County, owned or leased 2.7 million acres of timber as of Sept. 30. Rayonier and RYAM split into separate companies in 2014.

FRP Holdings: Rate cuts could mean multifamily developments

Jacksonville-based commercial real estate developer FRP Holdings Inc. reported thirdquarter earnings rose 8% to $1.36 million, or 7 cents a share, with revenue rising slightly from $10.59 million the previous year to $10.63 million in the 2024 third quarter.

FRP has been focusing on industrial projects but that could change, CEO John Baker III said in a Nov. 6 conference call.

“Further interest rate cuts and stable construction costs make the prospect of multifamily development more palatable than it has been in some time,” he said.

“We will continue to monitor the fundamentals of that asset class but at least for now, the lion’s share of our development strategy remains focused on industrial.”

• Former president of the Jacksonville Bar Association and its Lawyer of the Year in 2004.

Assisting in

Special to the Daily Record
Cadre Holdings Inc. makes gear for law enforcement.

$26,262,000 10301 Busch Drive N., Jacksonville Type: Warehouse Parcel size: 13.78 acres

size: 221,498

Buyer: SP Jacksonville 10301 Busch Drive Owner LLC

Seller: BREIT SE Industrial

$39,985,000 in 2017

LAW & THE COURTS

‘I

am overwhelmed’: Judge Corrigan passes gavel at U.S. District Court

Chief U.S. District Judge

Marcia Morales Howard succeeds Chief Judge Timothy Corrigan.

Officially, it was called “Passing of the Gavel,” but it wasn’t the mallet that judges use to begin and end proceedings that passed from one judge to another. It was a set of keys.

Former Chief Judge of the U.S. District Court for the Middle District of Florida Timothy Corrigan handed the door keys to the five federal courthouses in the district to Chief Judge Marcia Morales Howard at a ceremony Nov. 7 at the Bryan Simpson U.S. Courthouse in Jacksonville.

“I am overwhelmed,” Corrigan said as he addressed about 100 fellow judges, attorneys, court staff and guests gathered in the 13th floor library space.

As the most senior active judge in the Middle District, Corrigan, 68, took the chief judge position in November 2020, succeeding Steven Merryday of Tampa.

Corrigan decided then he would serve for four years in the role, as had Merryday, and then elect to take senior status after that period (eligibilty rules include that a judge must be at least 65), thereby stepping down as chief judge, he said Nov. 13. Howard, 59, became Corrigan’s successor based on seniority.

After graduating from Duke University School of Law in 1981, Corrigan was law clerk for U.S. Court of Appeals Judge Gerald Tjoflat, who attended the ceremony. A year later, Corrigan entered private practice until 1996 when he became a U.S. Magistrate Judge in Jacksonville.

In May 2002, Corrigan was nominated by President George W. Bush to the U.S. District Court to fill a new seat authorized by Congress and confirmed by the U.S. Senate in September. Corrigan was installed as chief judge of the district that spans from Jacksonville to Fort Myers in 2020.

“It has been my honor to serve,” Corrigan said. He and Howard first became acquainted in the 1990s, Corrigan said, when both were in private practice and were asked to take over the active cases of an attorney who died suddenly.

“In 2003, I was a brand new district judge who helped select judge Howard to be a magistrate judge,” Corrigan said.

In 2007, Howard was nominated by President George W. Bush and confirmed for the seat vacated by U.S. District Judge Harvey Schlesinger.

“I have consulted with her on innumerable occasions and always received wise counsel,” Corrigan said.

Corrigan said he was a speaker at Howard’s investiture.

“I said then that she was the future of our court. Now, she is the leader of the court and our future remains bright,” he said.

in every endeavor I have pursued,” Howard said.

As he assumes senior judge status, Corrigan may continue to hear cases and will continue to advocate for the court.

The Florida Bar President SanchezMedina to visit JBA

Sanchez-Medina, Gonzalez, Quesada, Lage, Gomez and Machado LLP in Miami, where he practices corporate and securities law.

When he was sworn in to office in June, Sanchez-Medina said he was only the third president of the Florida Bar born outside the U.S.

In his acceptance speech, Sanchez-Medina said he believes in fostering a culture of fairness within the Bar while upholding the integrity of the profession by holding attorneys in Florida to the highest standard of ethical conduct.

“My commitment to our members is to cultivate an environment that prioritizes support, collaboration and well-being,” he said. “A healthy lawyer that feels valued and supported is a better lawyer, a better family member and a better friend.”

A member of the board of governors for more than 10 years, Sanchez-Medina served on committees, including as chair of the Program Evaluation Committee.

In addition to his affiliation with Cuban American Bar Association and local community organizations including the Hispanic Chamber of Commerce, the Miami-Dade County School Board and the Orange Bowl Committee, Sanchez-Medina is a member of the Real Property, Probate and Trust Law, Business Law, and International Law sections.

Visit jaxbar.org to register.

Funding Florida Legal Aid board vacancy

Howard, a graduate of the University of Florida Levin College of Law, said that while taking over the administrative duties of the Middle District is a daunting task, she will be supported by her courtroom deputy of 30 years, Jodi Wiles, and her career law clerk, Peggy Miller.

“It is my greatest privilege to be a member of this court. I get to work alongside a remarkable

group of people who are committed to seeing that justice is served every day,” Howard said.

“It is the court family that makes the American justice system the best model of justice humanity has seen.”

Howard said she will continue Corrigan’s legacy of professionalism, preparation, transparency and communication.

“He has been a mentor to me

The Florida Bar President Roland Sanchez-Medina Jr. will be the guest speaker at the Jacksonville Bar Association member luncheon Nov. 21. The meeting begins at noon at the DoubleTree by Hilton Hotel Jacksonville Riverfront on the Downtown Southbank.

The Florida Bar Board of Governors is seeking applicants for the vacancies on the Funding Florida Legal Aid board of directors.  The vacancies will be filled during the board’s Jan. 17, 2025, meeting. Lawyer applicants must be members of The Florida Bar and in good standing.

Born in Cuba, Sanchez-Medina’s family lived in the Belgian Congo and South Africa before immigrating to the U.S., where his father established an orthopedic surgery practice in Miami.

After graduating from the University of Miami in 1988, Sanchez-Medina received a JD from Boston College Law School in 1991, then an LLM In taxation from New York University School of Law in 1992, the year he was admitted to The Florida Bar.

He is a founding partner at

Two attorneys are needed to serve three-year terms, commencing July 1, 2025. The Florida Bar president receives recommendations from FFLA, formerly The Florida Bar Foundation, for consideration. This 33-member board of administers Florida’s Interest on Trust Accounts program. Directors shall be members of the FFLA during their term(s) as directors. Applications will be accepted until close of business Dec. 9.  Resumes will not be accepted in lieu of the required application.

The board will review all applications and may request telephone or personal interviews.

Attorneys interested in applying may download the Application for Special Appointment at floridabar.org or call Bar headquarters at 850-561-3127 to obtain the application form and other information.

Photo by Max Marbut
Chief U.S. District Judge for the Middle District of Florida Marcia Morales Howard accepts the keys to the district’s five courthouses from Senior U.S. District Judge Timothy Corrigan, who turned over the chief judge role to Howard on Nov. 7.
Photo by Max Marbut
Chief U.S. District Judge for the Middle District of Florida Marcia Morales Howard presented a symbolic gold medal recognizing his service to the court and the legal profession to her predecessor, Senior U.S. District Judge Timothy Corrigan, at the passing of the gavel ceremony Nov. 7 at the Bryan Simpson U.S. Courthouse in Jacksonville.
Sanchez-Medina

Top 10 home sales of week

2733 S. Ponte Vedra Blvd., Ponte Vedra Beach Type: Single-family

3,645 square feet

Buyer: Haig and Hien

Dunes

Buyer: Todd D. and Monique Lake Seller: Robert P. and Cynthia S. Lyons Previous sale: $840,000 in 2010 ST. JOHNS $2,349,500 57 Solana Road, Ponte Vedra Beach Type: Single-family Lot size: 0.19 acre House size: 3,903 square feet

Buyer: Elizabeth W. McMahan Living Trust Seller: 57 Solana LLC ST. JOHNS $2,275,000 10 Lake Terrace, Ponte Vedra Beach

Type: Single-family lot Lot size: 0.42 acre

Buyer: Mark A. Frisch

Seller: John

Duval County Property Appraiser

CONSTRUCTION2024COOL AJACKSONVILLEDAILYRECORD SPECIALEDITION

THEPROJECTSNORTHEASTFLORIDACOMPANIES WANTEVERYONETOKNOWABOUT

Pinnacle apartments
The Florida Theatre
Boeing MRO facility
Borland Groover

COOL CONSTRUCTION 2024

WELCOME TO COOL CONSTRUCTION 2024

We asked Jacksonville Daily Record readers to share their Cool Construction projects in Northeast Florida.

The projects must have been in the Jacksonville metro area of Baker, Clay, Duval, Nassau and St. Johns counties and completed between Sept. 15, 2023, and

Sept. 15, 2024.

What is a Cool Construction project?

It could have a unique design or interesting architectural details.

It may be built with sustainable or other materials that set it apart.

It could feature inexpensive – or

expensive – products that make it stand out from its peers.

It may have overcome a design or other challenge along the way.

Dozens were submitted and we selected 25 to share in this special edition.

Butler 95 Logistics Center

8200 Cypress Plaza Drive, Jacksonville

THE PROJECT

A 183,000-square-foot warehouse/ manufacturing facility

Size: 183,000 square feet

Cost: $16 million

Completed: Sept. 30, 2024

Episcopal School of Jacksonville

4455 Atlantic Blvd., Jacksonville

THE PROJECT Construction of the new STEM and student life building.

Size: 42,102 square feet

Cost: $26 million

Completed: Aug. 15, 2024

Architect: C4 Architecture

Contractor: Dana B. Kenyon

Additional vendors: W Gardner LLC, C4 Architecture

TENANT Foundry Commercial

Architect: Dasher Hurst Architects

Contractor: Haskell

Additional vendors: Lee & Cates Glass

THE COOL FACTOR

The building creates a modern space offering a state-of-theart learning environment while preserving a view of Downtown Jacksonville.

THE COOL FACTOR

Dana B. Kenyon overcame a challenging site and built a project quickly and efficiently. The neighbor across the street (who watched it go up) hired Dana B. Kenyon to build his new building.

COOL CONSTRUCTION 2024

The Aston at Town Center

10655 Brightman Blvd., Jacksonville

THE PROJECT

The Aston at Town Center is a luxury apartment community.

Size: 502,681 square feet

Cost: $59.85 million

Completed: March 15, 2024

Architect: Forum Architecture & Interior Design, Altamonte Springs Contractor: FaverGray

Additional vendors: IMC Electrical, Jacksonville (electrical); MC Exteriors, Montgomery, Alabama (brick); Marietta Sand Corporation, Jacksonville (site work)

THE COOL FACTOR

The Aston at Town Center offers luxury living next to St. Johns Town Center, featuring 278 apartments, a resortstyle pool, fitness areas, dog park and clubhouse, all within a retail and dining hub in Jacksonville.

Home2 Suites by Hilton Jacksonville Downtown

600 Park St., Jacksonville

THE PROJECT

100-key, urban feel, all-suite extended-stay hotel.

Size: 62,483 square feet

Cost: $23.98 million

Completed: April 4, 2024

Architect: kasper architects + associates

Contractor: Pinkerton and Laws, Marietta, Georgia

Additional vendors: Keister Webb Structural Engineers, Jacksonville (structural); Powell & Hinkle Engineering, Orange Park (mechanical, plumbing and electrical); Envision Design + Engineering, Jacksonville (civil)

THE COOL FACTOR

Downtown hotel featuring local restaurant, Players Grille, with walkability to more restaurants and shops in Brooklyn, Five Points and Riverside.

Yamaha Marine Center & BMW Renovation

1521 Wells Road, Orange Park

Size: 21,000 square feet

Cost: $6.4 million

Completed: Sept. 28, 2024

Architect: ENB Architects (now LS3P)

Contractor: Dana B. Kenyon

Additional vendors: Goodson Bergen & Associates

COOL CONSTRUCTION 2024

University of North Florida Boathouse

1 UNF Drive, Jacksonville

THE PROJECT

A renovation of UNF’s Boathouse on the second floor of the Student Union included a rustic design, new seating and enhanced tech and entertainment features.

Size: 5,861 square feet

Cost: $1.4 million

Completed: Oct. 13, 2023

Contractor: Auld & White Constructors

Additional vendors: Benchmark Commercial Services; Dave Motta Painting

THE COOL FACTOR

The Boathouse renovation revitalizes a UNF tradition, blending its historic roots with modern design, new tech and expanded dining, making it the ultimate campus hangout and social hub for students in the heart of the Student Union.

The Frank R. Sanchez & Hope and Dana E. Fender Center for Innovation

7400 San Jose Blvd., Jacksonville

THE PROJECT

The Frank R. Sanchez & Hope and Dana E. Fender Center for Innovation

(Sanchez Fender CFI) is a facility designed to promote creativity, collaboration and innovative learning.

Size: 47,000 square feet

Cost: $25 million

Completed: July 25, 2024

Architect: Zyscovich

Architects, a Florida and New York-based firm

Contractor: Stellar

TENANT

The Bolles School

THE COOL FACTOR

The Bolles Center for Innovation is a modern facility recently added to Bolles’ campus. It features virtual dissection labs and flexible classrooms, promoting creativity and collaboration while enriching education for pre-K to 12thgrade students.

COOL CONSTRUCTION 2024

Woodside at Seven Pines

11830 Buckfield Circle, Jacksonville

THE PROJECT Luxury apartments and town homes

Size: 300 residential units

Cost: $65 million

Completed: Sept. 9, 2024

Architect: BB+M Architecture, Charlotte, North Carolina

Contractor: Elkins Construction LLC

Additional vendors: Vallencourt Construction; Adkins Electric; Sunshine State Plumbing

THE COOL FACTOR

Large, high-end town homes with upscale amenities with the focus of “working from home.”

Borland Groover Durbin Crossing Endoscopy Center

150 Longleaf Pine Parkway, St. Johns County

THE PROJECT

A two-story endoscopy center and medical facility featuring advanced procedure rooms and medical offices to enhance patient care and gastroenterology services.

Size: 38,878 square feet

Cost: $22.10 million

Completed: June 5, 2024

Architect: Bhide & Hall Architects, Orange Park Contractor: Auld & White Constructors, Jacksonville

Additional vendors: Powell & Hinkle

Engineering (Orange Park), Matthews Design Group (St. Augustine), Structures International LLC (Jacksonville)

THE COOL FACTOR

Recognized by the Accreditation Association for Ambulatory Health Care, the project integrates technology with a patient-centered design, featuring advanced endoscopy rooms that provide top-tier, minimally invasive care.

COOL CONSTRUCTION 2024

Chets Creek Church Student Center - Hodges Campus

4420 Hodges Blvd., Jacksonville

THE PROJECT

An inspiring space dedicated to the growth and success of Chets Creek Church students, supporting their journey now and into the future.

Size: 20,754 square feet

Cost: $5.86 million

Completed: Oct. 20, 2023

Architect: kasper architects + associates

Contractor: Auld & White Constructors

Additional vendors: Powell & Hinkle

Engineering (Orange Park), Keister Webb Structural Engineers (Jacksonville)

THE COOL FACTOR

A dynamic addition to Chets Creek Church, the Student Center features sleek lighting, bold colors, and inviting seating designed to inspire and empower students while nurturing their growth and success for generations.

Florida Theatre

128 E. Forsyth St., Jacksonville

THE PROJECT Comprehensive upgrades to Florida Theatre’s mechanical systems, electrical enhancements and interiors.

Size: 80,000 square feet

Cost: $9.38 million

Completed: Oct. 18, 2023

Contractor: Auld & White Constructors

Additional vendors: Sauer

Mechanical

THE COOL FACTOR

The project combined updating the interiors and the seamless integration of advanced mechanical systems in the historic theater, ensuring functionality and efficiency while preserving the integrity of its nearly century-old architecture.

www.pinestreetrps.com (904) 398-1044 2650-2 Rosselle Street Jacksonville, FL 32204

BLDG 900:

2690 Port Ind Dr, +/- 62,000 sf bldg office build-out, 28’ clear height, tilt wall construction, 13 - dock doors, 1 ramp. Can be subdivided.

ZONING: Industrial Heavy (IH)

UTILITIES: City Water, Sewer & JEA elec.

BLDG 1000:

2678 Port Ind Dr, +/- 12,000 sf bldg w/7% office build-out, wet sprinkler system, 16’ clear ceiling height, 5 - grade level doors. Includes fenced in yard approx. 7,000 SF.

COOL CONSTRUCTION 2024

Helping Build Communities

TENANT
Goodwill
Florida, VyStar Credit Union

COOL CONSTRUCTION 2024

Pinnacle

8760 Pinnacle Park Blvd., Jacksonville

THE PROJECT

Pinnacle is a four-story multifamily residential project featuring sharp geometric designs, a dynamic pink color palette and modern one-, twoand three-bedroom units with sleek interiors, fostering community through its common areas.

Size: Overall, 612,761 square feet; Clubhouse, 22,128 square feet

Cost: Overall, $80 million. Clubhouse, $2.2 million

Completed: Sept. 1, 2024

Architect: Architect - Karie Kovacocy, Group 4 Design, Inc.; Interior DesignerLeigh Gunn, Group 4 Design Inc.

Contractor: Summit Contracting Group

Additional vendors: Creekside Electric

THE COOL FACTOR

Pinnacle blends geometric designs to create an urban oasis, featuring amenity spaces like a hotel-inspired entry and grand club room with interior Juliet-style balconies on the second floor.

The Horizon Club at Del Webb Wildlight

150 Del Webb Parkway, Yulee

THE PROJECT

A 20,000-square-foot clubhouse that includes a resort-style pool with separate lap lanes, outdoor spa, pickleball, tennis and bocce sports courts, private wine lockers, event ballroom, fitness center, yoga lawn, event lawn and a gardening center.

Cost: $15.60 million

Completed: Jan. 16, 2024

Architect: Basham & Lucas Design Group Inc.; Micamy Design Studio Contractor: Carlton Construction Inc., Fleming Island

TENANT

PulteGroup

THE COOL FACTOR

The Horizon Club was crafted to blend Florida Lowcountry-inspired architecture with modern amenities, offering ample social space that caters to group activities, hobbies and entertainment.

COOL CONSTRUCTION 2024

Boeing Maintenance, Repair & Overhaul (MRO) Facility

Jacksonville Aviation Authority / Cecil Airport

5868 Approach Road, Jacksonville

THE PROJECT Design of a new eight-bay, 270,000-square-foot maintenance hangar with 100,000 square feet of integral corporate offices, training facilities, and central utility plant in a multi-level secure facility.

Size: Site area: 50 acres; Building area: 370,000 square feet

Cost: $172 million

Completed: Feb. 22, 2024

Architect: Pond & Company

Contractor: Haskell

Additional vendors: VoltAir Consulting Engineers, Tampa; G.M. Hill Engineering, Jacksonville; and CSI-Geo, Jacksonville

THE COOL FACTOR

The building spans over a quarter mile, housing 20 million cubic feet of climate-controlled space. Each bay accommodates six F-18 fighters or one P-8, with executive spaces overlooking the hangars through glass walls.

Boeing Component Operations Jacksonville

5869 Approach Road, Jacksonville

THE PROJECT New building with large open operations area and such features as administrative spaces, training rooms, paint and sanding booths, shops, inspection areas and loading zone dedicated to inspecting and repairing aviation components for Boeing at Cecil Airport.

Size: 155,000 square feet

Cost: $45 million

Completed: July 26, 2024

Architect: Pond & Company

Contractor: Clayco, Overland

Additional vendors: Scannell Properties (developer), Indianapolis

THE COOL FACTOR

The new building construction is caston-site tilt panels to create a highly secure facility for sensitive operations that occur inside. A curtain wall glazing system at the entrance provides natural light as a counterpoint.

COOL CONSTRUCTION 2024

Architect:

Contractor:

COOL CONSTRUCTION 2024

FlexCold

11180 Blasius Road, Jacksonville

THE PROJECT Multiphase construction of a cold storage distribution center near the Jacksonville Port Authority.

Size: 345,972 square feet

Cost: $83 million

Completed: Sept. 4, 2024

Architect: OneFourTwo Design Group, Atlanta

Contractor: ARCO Design/Build, Atlanta

Additional vendors: FlexSpace

THE COOL FACTOR

Multiphase construction of a cold storage distribution center that includes 55,000 mobile rack pallet positions, blast freezing capabilities and a 25,000-square-foot freezer mezzanine that spans the cold dock of the phase 2 expansion.

Vilano Beach Park Performance Pavilion and Changing Stations

2752 Anahma Drive, St. Augustine

THE PROJECT

As part of the overall improvements to the park, Pond & Company designed the flexible performance pavilion and changing stations that captured the Vilano “vibe” with curved structure and lightweight, flow-through design to harmonize with the existing park structures

Size: Site area: 2.25 acres; building area: 1,700 square feet

Cost: $1.26 million

Completed: July 17, 2024

Architect: Pond & Company

Contractor: E.B. Morris General

Contractors Inc., Ponte Vedra Beach

Additional vendors: Matthews | DCCM and Haddad Engineering

TENANT

St. Johns County Parks and Recreation; Matthews | DCCM

THE COOL FACTOR

The performance pavilion uses pivoting wall panels to allow view and breeze through most of the time, but can swing to create a sound reflecting backwall during performances, protecting the quiet of the adjacent neighborhood.

FIS Global Headquarters

323 Riverside Ave., Jacksonville

THE PROJECT

The FIS Global Headquarters redefines office spaces with a focus on community, sustainability and adaptability. Designed for collaboration, it features cultural amenities and integrates seamlessly into Jacksonville’s urban landscape.

Size: 387,000 square feet

Cost: Confidential

Completed: Oct. 1, 2023

Architect: Gensler, Tampa and Houston

Contractor: Gilbane

Additional vendors: Stanley D. Lindsey and Associates, Ltd., Nashville, Tennessee (structural engineer); England-Thims & Miller Inc. (civil engineer); I.A. Naman + Associates, Houston (mechanical, electrical and plumbing engineer)

THE COOL FACTOR

Designed to be a climateready headquarters, FIS incorporated strategies like coastal resilience to reach LEED Platinum certification. Technology and peoplefocused amenities create an outstanding experience for visitors and employees.

DUVAL COUNTY LEGAL NOTICES

FIRST INSERTION

NOTICE OF AGENCY ACTION

TAKEN BY THE ST. JOHNS RIVER WATER

MANAGEMENT DISTRICT

Notice is given that the following permit was issued on October 15, 2024. Hart Resources, LLC., 8051 Tara Lane, Jacksonville, FL 322163019. Permit # 70452-150. The project is located in Duval County, Section(s) 17, Township 3S, Range 24E. The permit authorizes a surface water management system for 17.65 acres for a project known as Normandy Townhomes The receiving water body is Yellow Water Creek. A person whose substantial interests are or may be affected has the right to request an administrative hearing by filing a written petition with the St. Johns River Water Management District (District). Pursuant to Chapter 28-106 and Rule 40C-1.1007, Florida Administrative Code (F.A.C.), the petition must be filed either by delivery at the office of the District Clerk at District Headquarters, P.O. Box 1429, Palatka, FL 32178-1429 (4049 Reid St, Palatka, FL 32177) or by e-mail with the District Clerk at Clerk@sjrwmd.com , within twenty-one (21) days of newspaper publication of the notice of District decision (for those parties to whom the District does not mail or email actual notice). A petition must comply with Sections 120.54(5)(b)4 and 120.569(2)(c), Florida Statues (F.S.), and Chapter 28-106, F.A.C. The District will not accept a petition sent by facsimile (fax). Mediation pursuant to Section 120.573, F.S., may be available and choosing mediation does not affect your right in an administrative hearing. A petition for an administrative hearing is deemed filed upon receipt of the complete petition by the District Clerk at the District Headquarters in Palatka, Florida during the District’s regular business hours. The District’s regular business hours are 8 a.m. – 5 p.m., excluding weekends and District

holidays. Petitions received by the District Clerk after the District’s regular business hours shall be deemed filed as of 8 a.m. on the District’s next regular business day. The District’s acceptance of petitions filed by e-mail is subject to certain conditions set forth in the District’s Statement of Agency Organization and Operation (issued pursuant to Rule 28-101.001, Florida Administrative Code), which is available for viewing at floridaswater.com. These conditions include, but are not limited to, the petition being in the form of a PDF or TIFF file and being capable of being stored and printed by the District. Further, pursuant to the District’s Statement of Agency Organization and Operation, attempting to file a petition by facsimile (fax) is prohibited and shall not constitute filing.

The right to an administrative hearing and the relevant procedures to be followed are governed by Chapter 120, Florida Statutes, Chapter 28-106, Florida Administrative Code, and Rule 40C-1.1007, Florida Administrative Code. Because the administrative hearing process is designed to formulate final agency action, the filing of a petition means the District’s final action may be different from the position taken by it in this notice. Failure to file a petition for an administrative hearing within the requisite time frame shall constitute a waiver of the right to an administrative hearing. (Rule 28-106.111, F.A.C.).

If you wish to do so, please visit http://floridaswater.com/nor_ dec/ to read the complete Notice of Rights to determine any legal rights you may have concerning the District’s decision(s) on the permit application(s) described above. You can also request the Notice of Rights by contacting the Director of Regulatory Support, 4049 Reid St., Palatka, FL 321772529, tele. no. (386)329-4570. Nov. 14 00 (24-07148D)

FIRST INSERTION

NOTICE OF AGENCY ACTION

TAKEN BY THE ST. JOHNS

RIVER WATER MANAGEMENT DISTRICT

Notice is given that the following permit was issued on October 22, 2024: City of Jacksonville, 214 N Hogan Street, Jacksonville, FL 32202-4240 permit# 167868-4. The project is located in Duval County, Sections 16, 15, 56, and 41, Township 2 South, Range 26E East. The permit authorizes a surface water management system on 12.5 acres for a project known as McCoy’s Creek Restoration –Phase 0 (Branches). The receiving water body is St. Johns River. A person whose substantial interests are or may be affected has the right to request an administrative hearing by filing a written petition with the St. Johns River Water Management District (District). Pursuant to Chapter 28-106 and Rule 40C-1.1007, Florida Administrative Code (F.A.C.), the petition must be filed (received) either by delivery at the office of the District Clerk at District Headquarters, P.O. Box 1429, Palatka FL 32178-1429 (4049 Reid St, Palatka, FL 32177) or by e-mail with the District Clerk at Clerk@sjrwmd.com, within twenty-one (21) days of newspaper publication of the notice of District decision (for those persons to whom the District does not mail or email actual notice). A petition must comply with Sections 120.54(5)(b)4. and120.569(2)(c), Florida Statutes (F.S.), and Chapter 28-106, F.A.C. The District will not accept a petition sent by facsimile (fax). Mediation pursuant to Section 120.573, F.S., may be available and choosing mediation does not affect your right to an administrative hearing. A petition for an administrative hearing is deemed filed upon receipt of the complete petition by the District Clerk at the District Headquarters in Palatka, Florida during the District’s regular business hours. The District’s regular business hours are 8 a.m. – 5 p.m., excluding

weekends and District holidays. Petitions received by the District Clerk after the District’s regular business hours shall be deemed filed as of 8 a.m. on the District’s next regular business day. The District’s acceptance of petitions filed by e-mail is subject to certain conditions set forth in the District’s Statement of Agency Organization and Operation (issued pursuant to Rule 28-101.001, Florida Administrative Code), which is available for viewing at www.sjrwmd.com. These conditions include, but are not limited to, the petition being in the form of a PDF or TIFF file and being capable of being stored and printed by the District. Further, pursuant to the District’s Statement of Agency Organization and Operation, attempting to file a petition by facsimile (fax) is prohibited and shall not constitute filing.

The right to an administrative hearing and the relevant procedures to be followed are governed by Chapter 120, Florida Statutes, Chapter 28-106, Florida Administrative Code, and Rule 40C-1.1007, Florida Administrative Code. Because the administrative hearing process is designed to formulate final agency action, the filing of a petition means the District’s final action may be different from the position taken by it in this notice. Failure to file a petition for an administrative hearing within the requisite time frame shall constitute a waiver of the right to an administrative hearing. (Rule 28-106.111, F.A.C.). If you wish to do so, please visit http://www.sjrwmd.com/nor_ dec/ to read the complete Notice of Rights to determine any legal rights you may have concerning the District’s decision(s) on the permit application(s) described above. You can also request the Notice of Rights by contacting the Director of Office of Records and Regulatory Support, 4049 Reid St., Palatka, FL 32177- 2529, tele. no. (386)329-4570. Nov. 14 00 (24-07144D)

FIRST INSERTION

NOTICE UNDER FICTITIOUS NAME LAW

According to Florida Statute Number 865.09

NOTICE IS HEREBY GIVEN that the undersigned, desiring to engage in business under the Fictitious Name of Gortnalake located at 14143 Taylorstown Road, in the City of Leesburg, Loudoun County, VA 20176 intends to register the said name with the Division of Corporations of the Department of State, Tallahassee, Florida. Dated at Jacksonville, Florida, this 11th day of November, 2024. Caleb McCarry Nov. 14 00 (24-07178D)

BARTRAM SPRINGS

COMMUNITY

DEVELOPMENT DISTRICT REQUEST FOR PROPOSALS FOR ANNUAL AUDIT SERVICES

The Bartram Springs Community Development District hereby requests proposals for annual financial auditing services. The proposal must provide for the auditing of the District’s financial records for the fiscal year ending September 30, 2024, with an option for four additional annual renewals. The District is a local unit of special-purpose government created under Chapter 190, Florida Statutes, for the purpose of financing, constructing, and maintaining public infrastructure. The District is located in Duval County, Florida, and has a general fund, debt service fund and capital

FIRST INSERTION

NOTICE UNDER FICTITIOUS NAME LAW PURSUANT TO SECTION 865.09, FLORIDA STATUTES

NOTICE IS HEREBY GIVEN that the undersigned, desiring to engage in business under the Fictitious Name of Crescent Meadow Insurance Agency, LLC, with a mailing address of 200 E. Randolph St., Chicago, IL 60601, and a principal office located in Duval County, intends to register the said name with the FL Dept. of State, Div. of Corps., Tallahassee, FL. Owner: Crescent Meadow, LLC Nov. 14 00 (24-07157D)

FIRST INSERTION

reserve fund.

Each auditing entity submitting a proposal must be authorized to do business in Florida, hold all applicable state and federal professional licenses in good standing, duly licensed under Chapter 473, Florida Statutes, and be qualified to conduct audits in accordance with “Government Auditing Standards,” as adopted by the Florida Board of Accountancy. Audits shall be conducted in accordance with Florida Law and particularly Section 218.39, Florida Statutes, and the rules of the Florida Auditor General.

Proposal packages, which include evaluation criteria and instructions to proposers, are available from the District Recording Secretary at 475 West Town Place, Suite 114, St. Augustine, Florida 32092, via e-mail

FIRST INSERTION

NOTICE UNDER FICTITIOUS NAME LAW PURSUANT TO SECTION 865.09, FLORIDA STATUTES NOTICE IS HEREBY GIVEN that Bret Lathrope will engage in business under the fictitious name NEIGHBORHOOD GOLF CLUB, with a physical address 1615 RICHARDSON LN ATLANTIC BEACH, FL 32233, with a mailing address 1615 RICHARDSON LN ATLANTIC BEACH, FL 32233, and already registered the name mentioned above with the Florida Department of State, Division of Corporations. Nov. 14 00 (24-07165D)

at ssweeting@gmsnf.com, and by telephone at (904) 940-5850. Proposers must provide an electronic copy of their proposal to the District Recording Secretary Sarah Sweeting at ssweeting@ gmsnf.com. Proposals must be received by 5:00 p.m. on Friday, November 29, 2024. Proposals received after this time will not be eligible for consideration. The District reserves the right to reject any and all proposals, make modifications to the scope of the work, and waive any minor informalities or irregularities in proposals as it deems appropriate. Please direct all questions regarding this Notice to the District Manager.

Bartram Springs Community Development District James Oliver, District Manager Nov. 14 00 (24-07136D)

Portal The Jacksonville Transportation Authority is an Equal Opportunity Employer and encourages expressions of interest for the described services from Disadvantaged Business Enterprises. Proposals must be uploaded to the JTA Procurement Portal no later than 2:00 p.m., December 3, 2024. Nov. 14 00 (24-07138D) FIRST INSERTION JACKSONVILLE SS AUTOMOTIVE MNGT LLC DBA SOUTHSIDE KIA MV 98424 9401 ATLANTIC BLVD JACKSONVILLE, FL 32225 (DUVAL County) 904-400-6650 NOTICE OF MECHANIC’S LIEN Notice of claim of lien and intent to sell vehicle pursuant to subsection 713.585 of the Florida Statutes.

Date of Sale: 12/05/2024 @ 10:30 AM TO TAKE PLACE AT: LOCATION OF SALE: 9401 ATLANTIC BLVD, JACKSONVILLE, FL 32225 CURRENT LOCATION OF VEHICLE: 9401 ATLANTIC BLVD, JACKSONVILLE, FL 32225 2016 KIA SPORTAGE #KNDPB3AC7G7855556 AMOUNT TO REDEEM $1600.00 The lien claimed by the lienor is subject to enforcement pursuant to Section 713.585, F.S., and the vehicle may be sold to satisfy the lien. The lien is claimed for labor, services performed, and storage charges, if any, and the amount due in cash on the day of the sale, if paid to the lienor, would redeem the motor vehicle. At any time before the date of the sale or proposed sale the owner or any person claiming an interest or a lien on the vehicle may file a demand for hearing with the Clerk of the Circuit Court in the county where the vehicle is held to determine whether the vehicle has been wrongfully taken or withheld from him or her. At any time before the date of the sale or proposed sale a customer or a person of record claiming a lien on the vehicle may post a cash or surety bond in the amount stated on the invoice with the Clerk of the Circuit Court where the disputed transaction occurred.

Notice that the owner of the motor vehicle has a right to recover possession of the motor vehicle without instituting judicial proceedings by posting a bond in accordance with the provisions of Florida Statute 559.917. Notice that any proceeds from the sale of the motor vehicle remaining after payment of the amount claimed to be due and owing to the lienor will be deposited with the Clerk of

PUBLIC NOTICES

IN THE CIRCUIT COURT OF THE FOURTH JUDICIAL CIRCUIT OF FLORIDA IN AND FOR DUVAL COUNTY GENERAL JURISDICTION

DIVISION CASE NO. 16-2022-CA-005618

DIVISION: FC-H SPECIALIZED LOAN SERVICING LLC, Plaintiff, vs. JEFFERY LEON SUTTON, et al., Defendant.

NOTICE OF FORECLOSURE SALE NOTICE IS HEREBY GIVEN pursuant to a Summary Final Judgment of Foreclosure entered February 16, 2024 in Civil Case No. 16-2022-CA-005618 of the Circuit Court of the FOURTH JUDICIAL CIRCUIT in and for Duval County, Jacksonville, Florida, wherein SPECIALIZED LOAN SERVICING LLC is Plaintiff and Jeffery Leon Sutton, et al., are Defendants, the Clerk of Court, Jody Phillips, will sell to the highest and best bidder for cash electronically at: www.duval.realforeclose.com in accordance with Chapter 45, Florida Statutes on the 5th day of Decemeber, 2024 at 11:00 AM on the following described property as set forth in said Summary Final Judgment, to-wit: Lot 814, Avondale, according to the map or plat thereof as recorded in Plat Book 7, Page 31, of the Public Records of Duval County, Florida.

Address: 1374 TALBOT AVE, JACKSONVILLE, FL 32205

Any person claiming an interest in the surplus from the sale, if any, other than the property owner as of the date of the lis pendens, must file a claim before the clerk reports the surplus as unclaimed. Americans With Disabilities Act (ADA) Notice In accordance with the Americans with Disabilities Act of 1990 (ADA), If you are a person with a disability who needs any accommodation in order to participate in this proceeding, you are entitled at no cost to you, to the provision of certain assistance. Please contact the ADA Coordinator at crtintrp@coj.net or (904) 2551695 at least 7 days before your scheduled court appearance, or immediately upon receiving this notification if the time before the scheduled appearance is less than 7 days; if you are hearing or voice impaired, call 711. Dated this 7th day of November, 2024.

JODY PHILLIPS CLERK OF THE CIRCUIT COURT As Clerk of the Court

By: Alice V. Griffin Deputy Clerk (Court Seal) McCalla Raymer Leibert Pierce, LLC 110 SE 6th Street, Suite 2400 Fort Lauderdale, FL 33301

MRService@mccalla.com

Counsel of Plaintiff Nov. 14/21 00 (24-07162D)

IN THE CIRCUIT COURT OF THE FOURTH JUDICIAL CIRCUIT IN AND FOR DUVAL COUNTY, FLORIDA GENERAL JURISDICTION DIVISION CASE NO. 16-2023-CA-008816 Division: FC-H U.S. BANK NATIONAL ASSOCIATION, Plaintiff, vs. CHRISTOPHER W. JONES, et al. Defendant(s).

NOTICE OF FORECLOSURE SALE NOTICE IS HEREBY GIVEN pursuant to a Final Judgment of Foreclosure dated June 17, 2024, and entered in 16-2023CA-008816 of the Circuit Court of the FOURTH Judicial Circuit in and for Duval County, Florida, wherein U.S. BANK NATIONAL ASSOCIATION is the Plaintiff and CHRISTOPHER W. JONES; UNKNOWN SPOUSE OF CHRISTOPHER W. JONES; FLORIDA HOUSING FINANCE CORPORATION are the Defendant(s). Jody Phillips as the Clerk of the Circuit Court will sell to the highest and best bidder for cash at: www.duval.realforeclose.com at 11:00 AM, on December 05, 2024, the following described property as set forth in said Final Judgment, to wit: LOT 42, BLOCK 11, ARGYLE FOREST EAST VILLAGE UNIT 2, A SUBDIVISION ACCORDING TO THE PLAT THEREOF RECORDED IN PLAT BOOK 35, PAGES 89, 89A, IN THE

INSERTION

PUBLIC RECORDS OF DUVAL COUNTY, FLORIDA. Property Address: 8650 BLACKHAW CT, JACKSONVILLE, FL 32244

Any person claiming an interest in the surplus from the sale, if any, other than the property owner as of the date of the lis pendens must file a claim in accordance with Florida Statutes, Section 45.031. Americans With Disabilities Act (ADA) Notice In accordance with the Americans with Disabilities Act of 1990 (ADA), If you are a person with a disability who needs any accommodation in order to participate in this proceeding, you are entitled at no cost to you, to the provision of certain assistance. Please contact the ADA Coordinator at crtintrp@coj.net or (904) 2551695 at least 7 days before your scheduled court appearance, or immediately upon receiving this notification if the time before the scheduled appearance is less than 7 days; if you are hearing or voice impaired, call 711.

Dated this 7th day of November, 2024.

JODY PHILLIPS As Clerk of the Court By: Alice V. Griffin As Deputy Clerk (Court Seal) Robertson, Anschutz, Schneid, Crane & Partners, PLLC Attorneys for Plaintiff 6409 Congress Avenue, Suite 100, Boca Raton, FL 33487

Telephone: 561-241-6901

Fax: 561-997-6909

23-108460 - MaM Nov. 14/21 00 (24-07159D)

NOTICE

Extra Space Storage, on behalf of itself or its affiliates, Life Storage or Storage Express, will hold a public auction to sell personal property described below belonging to those individuals listed below at the location indicated: 1515 Manotak Ave Jacksonville FL 32210 December 3, 2024 @ 12 pm

Mianna Mitchell- McCormickHousehold Goods/Furniture

Michael RobinetteHouse furniture

Julie Ferrell-Household Goods/ Furniture, Tools/Appliances

The auction will be listed and advertised on www.storagetreasures.com. Purchases must be made with cash only and paid at the above referenced facility in order to complete the transaction.

Extra Space Storage may refuse any bid and may rescind any purchase up until the winning bidder takes possession of the personal property.

Nov. 14/21 00 (24-07128D)

DUVAL COUNTY

NOTICE Extra

FIRST INSERTION IN THE COUNTY COURT, FOURTH JUDICIAL CIRCUIT IN AND FOR DUVAL COUNTY, FLORIDA CASE NO.: 16-2023-CC-001634

DIVISION: CC-Q

FIRST INSERTION

IN THE CIRCUIT COURT FOR DUVAL COUNTY, FLORIDA PROBATE DIVISION File No. 16-2024-CP-000728 Division PR-A IN RE: ESTATE OF EILEEN SHEERIN,

Deceased.

NOTICE TO CREDITORS

The administration of the estate of EILEEN SHEERIN, deceased, whose date of death was July 13, 2023, is pending in the Circuit Court for Duval County, Florida, Probate Division, the address of which is 501 West Adams Street, Jacksonville, Florida 32202. The names and addresses of the personal representative and the personal representative’s attorney are set forth below.

All creditors of the decedent and other persons having claims or demands against decedent’s estate, on whom a copy of this notice is required to be served, must file their claims with this court ON OR BEFORE THE LATER OF 3 MONTHS AFTER THE TIME OF THE FIRST PUBLICATION OF THIS NOTICE OR 30 DAYS AFTER THE DATE OF SERVICE OF A COPY OF THIS NOTICE ON THEM. All other creditors of the decedent and other persons having claims or demands against decedent’s estate must file their claims with this court WITHIN 3 MONTHS AFTER THE DATE OF THE FIRST PUBLICATION OF THIS NOTICE. ALL CLAIMS NOT FILED WITHIN THE TIME PERIODS SET FORTH IN FLORIDA STATUTES SECTION 733.702 WILL BE FOREVER BARRED. NOTWITHSTANDING THE TIME PERIOD SET FORTH ABOVE, ANY CLAIM FILED TWO (2) YEARS OR MORE AFTER THE DECEDENT’S DATE OF DEATH IS BARRED.

A personal representative or curator has no duty to discover whether any property held at the time of the decedent’s death by the decedent or the decedent’s surviving spouse is property to which the Florida Uniform Disposition of Community Property Rights at Death Act as described in sections 732.216-732.228, applies, or may apply, unless a written demand is made by a creditor as specified under section 732.2211.

The date of first publication of this notice is: November 14, 2024. Signed on this 7th day of November, 2024.

BRIAN SHEERIN

Personal Representative

9620 Cedar Ridge Drive East Jacksonville, Florida 32221

/s/ Lyudmyla Kolyesnik

Lyudmyla Kolyesnik

Attorney for Personal Representative

Florida Bar No. 1022343 Purcell, Flanagan, Hay & Greene, P.A.

1548 Lancaster Terrace

Jacksonville, Florida 32204

Telephone: (904) 355-0355

Email: litigation@pfhglaw.com

Secondary Email: service@pfhglaw.com Nov. 14/21 00 (24-07139D) FIRST INSERTION

IN THE CIRCUIT COURT OF THE FOURTH JUDICIAL CIRCUIT, IN AND FOR DUVAL COUNTY, FLORIDA PROBATE DIVISION File No.: 16-2024-CP-003095 Division: PR-B IN RE: THE ESTATE OF MERCEDES VEGA CUMMINGS Deceased.

NOTICE TO CREDITORS

The administration of the estate of MERCEDES VEGA CUMMINGS, deceased, whose date of death was August 29, 2024, is pending in the Circuit Court for Duval County, Florida, Probate Division, the address of which is 501 W. Adams Street, Jacksonville, Florida 32202. The names and addresses of the personal representative and the personal representative’s attorney are set forth below. All creditors of the decedent and other persons having claims or demands against decedent’s estate on whom a copy of this notice is required to be served must file their claims with this court ON OR BEFORE THE LATER OF 3 MONTHS AFTER THE TIME OF THE FIRST PUBLICATION OF THIS NOTICE OR 30 DAYS AFTER THE DATE OF SERVICE OF A COPY OF THIS NOTICE ON THEM.

All other creditors of the decedent and other persons having claims or demands against decedent’s estate must file their claims with this court WITHIN 3 MONTHS AFTER THE DATE OF THE FIRST PUBLICATION OF THIS NOTICE. ALL CLAIMS NOT FILED WITHIN THE TIME PERIODS SET FORTH IN FLORIDA STATUTES SECTION 733.702 WILL BE FOREVER BARRED. NOTWITHSTANDING THE TIME PERIODS SET FORTH ABOVE, ANY CLAIM FILED TWO (2) YEARS OR MORE AFTER THE DECEDENT’S DATE OF DEATH IS BARRED. A personal representative or curator has no duty to discover whether any property held at the time of the decedent’s death by the decedent or the decedent’s surviving spouse is property to which the Florida Uniform Disposition of Community Property Rights at Death Act as described in sections 732.216-732.228, applies, or may apply, unless a written demand is made by a creditor as specified under section 732.2211. The date of first publication of this notice is November 14, 2024. Petitioner: Mari Del Carmen Cummings 7330 Pago Street Orlando, FL 32822

Attorney for Petitioner: Richard K. Britton, Esq.

Attorney for Petitioner

Florida Bar Number: 0480339 2124 Park Street Jacksonville, FL 32204

Telephone: (904) 389-1994

Fax: (904) 389-7990

E-Mail: Rick@BrittonLawLLC.com Secondary E-Mail: Service@Brittonlawllc.com Nov. 14/21 00 (24-07140D)

FIRST INSERTION

IN THE CIRCUIT COURT, FOURTH JUDICIAL CIRCUIT, IN AND FOR DUVAL COUNTY, FLORIDA

PROBATE DIVISION CASE NO.: 16-2024-CP-003121

DIVISION: PR-B

IN RE: ESTATE OF MARK EDWARD VOORHEES, Deceased. NOTICE TO CREDITORS

The administration of the estate of MARK EDWARD VOORHEES, deceased, whose date of death was September 13, 2024, is pending in the Circuit Court, for Circuit Court for Duval County, Florida, Probate Division, the address of which is 501 West. Adams Street, Jacksonville, Florida 32202. The name and address of the personal representative and the personal representative’s attorney are set forth below.

If you have been served with a copy of this notice and you have any claim or demand against the Decedent’s estate, even if that claim is unmatured, contingent or unliquidated, you must file your claim with the court ON OR BEFORE THE LATER OF A DATE THAT IS 3 MONTHS AFTER THE FIRST PUBLICATION OF THIS NOTICE OR 30 DAYS AFTER YOU RECEIVE A COPY OF THIS NOTICE.

All other creditors of the Decedent and other persons who have claims or demands against Decedent’s estate, including unmatured, contingent or unliquidated claims, must file their claims with the court ON OR BEFORE THE DATE THAT IS 3 MONTHS AFTER THE FIRST PUBLICATION OF THIS NOTICE. ALL CLAIMS, DEMANDS AND OBJECTIONS NOT SO FILED WILL BE FOREVER BARRED. NOTWITHSTANDING THE TIME PERIOD SET FORTH ABOVE, ANY CLAIM FILED TWO (2) YEARS OR MORE AFTER THE DECEDENT’S DATE OF DEATH IS BARRED.

The personal representative or curator has no duty to discover whether any property held at the time of the Decedent’s death by the Decedent or the Decedent’s surviving spouse is property to which the Florida Uniform Disposition of Community Property Rights at Death Act as described in §732.216-732.228, applies, or may apply, unless a written demand is made by a creditor as specified under §732.2211.

The date of first publication of this Notice is November 14, 2024.

Personal Representative: HEIDI SUMMERS 1453 Winnebago Avenue Jacksonville, FL 32210

Attorney for Personal Representative: ROBERT N. MILLER, ESQ.

Florida Bar No: 042102

Fisher, Tousey, Leas & Ball

501 Riverside Avenue, Suite 700 Jacksonville, FL 32202

(904) 356 2600

E-Mail: RMiller@fishertousey.com Nov. 14/21 00 (24-07141D)

INSERTION

IN THE CIRCUIT COURT, FOURTH JUDICIAL CIRCUIT, IN AND FOR DUVAL COUNTY, FLORIDA

Case No.: 16-2024-CP-002710

Division: PR-A IN RE: THE ESTATE OF ARTHUR EDWARD ALSTON, II, Deceased.

NOTICE TO CREDITORS

The administration of the estate of ARTHUR EDWARD ALSTON, II, deceased, whose date of death was June 23, 2024, is pending in the Circuit Court for Duval County, Florida, Probate Division, the address of which is 501 West Adams Street, Jacksonville, Florida 32202. The names and addresses of the personal representative and the personal representative’s attorney are set forth below.

All creditors of the decedent and other persons having claims or demands against decedent’s estate on whom a copy of this notice is required to be served must file their claims with this court ON OR BEFORE THE LATER OF 3 MONTHS AFTER THE TIME OF THE FIRST PUBLICATION OF THIS NOTICE OR 30 DAYS AFTER THE DATE OF SERVICE OF A COPY OF THIS NOTICE ON THEM.

All other creditors of the decedent and other persons having claims or demands against decedent’s estate must file their claims with this court WITHIN 3 MONTHS AFTER THE DATE OF THE FIRST PUBLICATION OF THIS NOTICE.

ALL CLAIMS NOT SO FILED WITHIN THE TIME PERIODS SET FORTH IN FLORIDA STATUTES SECTION 733.702 WILL BE FOREVER BARRED. NOTWITHSTANDING THE TIME PERIODS SET FORTH ABOVE, ANY CLAIM FILED TWO (2) YEARS OR MORE AFTER THE DECEDENT’S DATE OF DEATH IS BARRED.

A personal representative or curator has no duty to discover whether any property held at the time of the decedent’s death by the decedent or the decedent’s surviving spouse is property to which the Florida Uniform Disposition of Community Property Rights at Death Act as described in sections 732.216-732.228, applies, or may apply, unless a written demand is made by a creditor as specified under section 732.2211. The date of the first publication of this notice is November 14, 2024.

Personal Representative: GINA N. POSEY

Attorney for Personal Representatives: Amber R. Donley, Esquire

Florida Bar No.: 0086278

1700 Wells Road, Suite 27 Orange Park, Florida 32073

Telephone: (904) 265-5422 Email: ardonley@donleylawfirm.com Nov. 14/21 00 (24-07142D)

LONGLEAF MASTER HOMEOWNERS’ ASSOCIATION, INC., a Florida not-for-profit corporation, Plaintiff, v. STACI NICOLE HAYNES, WILLIE JAMES HAYNES, II, et al., Defendant. NOTICE OF FORECLOSURE SALE NOTICE IS HEREBY given pursuant to a Final Summary Judgment of Foreclosure dated November 5, 2024 and entered in Case No. 16-2023-CC-001634, of the County Court in and for Duval County, Florida wherein LONGLEAF MASTER HOMEOWNERS’ ASSOCIATION, INC., is the Plaintiff and STACI NICOLE HAYNES and WILLIE JAMES HAYNES, II are the Defendants, I will sell to the highest bidder online at: www.duval.realforeclose.com at 11:00 A.M. on the 9th day of January, 2025, the following described property as set forth in said Final Judgment, to wit: Lot 745, of LONGLEAF PHASE 6, according to the Plat thereof, as recorded in Plat Book 73, Page 48, of the

Public Records of Duval County, Florida. Parcel Identification Number: 016410-1875. Any person claiming an interest in the surplus from the sale, if any, other than the property owner as of the date of the Lis Pendens must file a claim before the clerk reports the surplus as unclaimed. Americans With Disabilities Act (ADA) Notice In accordance with the Americans with Disabilities Act of 1990 (ADA), If you are a person with a disability who needs any accommodation in order to participate in this proceeding, you are entitled at no cost to you, to the provision of certain assistance. Please contact the ADA Coordinator at crtintrp@coj.net or (904) 2551695 at least 7 days before your scheduled court appearance, or immediately upon receiving this notification if the time before the scheduled appearance is less than 7 days; if you are hearing or voice impaired, call 711 Dated this 6th day of November, 2024.

JODY PHILLIPS As Clerk of the Court

By: Pamela R. Harrell As Deputy Clerk (Court Seal) Michael J. McCabe, Esquire 110 Solana Road, Suite 102 Ponte Vedra Beach, Florida 32082 service@flcalegal.com Nov. 14/21 00 (24-07147D)

FIRST INSERTION IN THE CIRCUIT COURT OF THE FOURTH JUDICIAL CIRCUIT IN AND FOR DUVAL COUNTY, FLORIDA CASE No. 16-2024-CA-001416 Division: FC-C BANK OF AMERICA, N.A., Plaintiff, VS. BENJAMIN SCOTT MCGEE A/K/A BENJAMIN S. MCGEE; UNKNOWN SPOUSE OF BENJAMIN SCOTT MCGEE A/K/A BENJAMIN S. MCGEE; MIDFLORIDA CREDIT UNION; ANY AND ALL UNKNOWN PARTIES CLAIMING BY, THROUGH, UNDER AND AGAINST THE HEREIN NAMED INDIVIDUAL DEFENDANT(S) WHO ARE NOT KNOWN TO BE DEAD OR ALIVE, WHETHER SAID UNKNOWN PARTIES MAY CLAIM AN INTEREST AS SPOUSES, HEIRS, DEVISEES, GRANTEES, OR OTHER CLAIMANTS Defendant(s). NOTICE OF FORECLOSURE SALE PURSUANT TO CHAPTER 45 NOTICE IS HEREBY GIVEN that sale will be made pursuant to an Order or Final Judgment. Final Judgment was awarded on September 16, 2024 in Civil Case No. 16-2024-CA-001416, of the Circuit Court of the FOURTH Judicial Circuit in and for Duval County, Florida, wherein, BANK OF AMERICA, N.A. is the Plaintiff, and BENJAMIN SCOTT MCGEE A/K/A BENJAMIN S. MCGEE; UNKNOWN SPOUSE OF BENJAMIN SCOTT MCGEE A/K/A BENJAMIN S. MCGEE; MIDFLORIDA CREDIT UNION; ANY AND ALL UNKNOWN PARTIES CLAIMING BY, THROUGH, UNDER AND AGAINST THE HEREIN NAMED INDIVIDUAL DEFENDANT(S) WHO ARE NOT KNOWN TO BE DEAD OR ALIVE, WHETHER SAID UNKNOWN PARTIES MAY CLAIM AN INTEREST AS SPOUSES, HEIRS, DEVI -

SEES, GRANTEES, OR OTHER CLAIMANTS are Defendants. The Clerk of the Court, Jody Phillips will sell to the highest bidder for cash at: www.duval.realforeclose.com on January 14, 2025 at 11:00:00 AM EST the following described real property as set forth in said Final Judgment, to wit: LOT 201, EDMONDSONS MAIN STREET ESTATES, ACCORDING TO PLAT THEREOF RECORDED IN PLAT BOOK 15, PAGE 75, OF THE CURRENT PUBLIC RECORDS OF DUVAL COUNTY, FLORIDA. Any person claiming an interest in the surplus from the sale, if any, other than the property owner as of the date of the lis pendens must file a claim before the clerk reports the surplus as unclaimed. Americans With Disabilities Act (ADA) Notice In accordance with the Americans with Disabilities Act of 1990 (ADA), If you are a person with a disability who needs any accommodation in order to participate in this proceeding, you are entitled at no cost to you, to the provision of certain assistance. Please contact the ADA Coordinator at crtintrp@coj.net

WITNESS

PUBLIC NOTICES

FIRST INSERTION

IN THE CIRCUIT COURT OF THE 4TH JUDICIAL CIRCUIT

IN AND FOR DUVAL COUNTY, FLORIDA

PROBATE DIVISION

File No. 16-2024-CP-002908

Division PR-A

IN RE: ESTATE OF PEGGY DIANE BURNS, Deceased.

NOTICE TO CREDITORS

The administration of the estate of PEGGY DIANE BURNS, Deceased, whose date of death was February 20, 2023, is pending in the Circuit Court for Duval County, Florida, Probate Division, the address of which is 311 W Monroe, St., Jacksonville, FL 32202. The names and addresses of the personal representative and the personal representative’s attorney are set forth below. All creditors of the decedent and other persons having claims or demands against decedent’s estate on whom a copy of this notice is required to be served must file their claims with this court WITHIN THE LATER OF 3 MONTHS AFTER THE TIME OF THE FIRST PUBLICATION OF THIS NOTICE OR 30 DAYS AFTER THE DATE OF SERVICE OF A COPY OF THIS NOTICE ON THEM.

All other creditors of the decedent and other persons having claims or demands against decedent’s estate must file their claims with this court WITHIN 3 MONTHS AFTER THE DATE OF THE FIRST PUBLICATION OF THIS NOTICE. ALL CLAIMS NOT FILED WITHIN THE TIME PERIODS SET FORTH IN SECTION

733.702 OF THE FLORIDA PROBATE CODE WILL BE FOREVER BARRED. NOTWITHSTANDING THE TIME PERIODS SET FORTH ABOVE, ANY CLAIM FILED TWO (2) YEARS OR MORE AFTER THE DECEDENT’S DATE OF DEATH IS BARRED.

A personal representative or curator has no duty to discover whether any property held at the time of the decedent’s death by the decedent or the decedent’s surviving spouse is property to which the Florida Uniform Disposition of Community Property Rights at Death Act as described in sections 732.216-732.228, applies, or may apply, unless a written demand is made by a creditor as specified under section 732.2211.

The date of first publication of this notice is November 14, 2024.

AMY PEREZ, Personal Representative

Attorney for Personal Representative: Scott R. Bugay, Esquire Florida Bar No. 5207 Citicentre, Suite P600 290 NW 165 Street Miami FL 33169

Telephone: (305) 956-9040

Fax: (305) 945-2905

Primary Email: Scott@srblawyers.com

Secondary Email: angelica@srblawyers.com

Nov. 14/21 00 (24-07169D)

IN THE CIRCUIT COURT OF THE FOURTH JUDICIAL CIRCUIT IN AND FOR DUVAL COUNTY, FLORIDA GENERAL JURISDICTION DIVISION CASE NO. 16-2023-CA-010088 Division: FC-H U.S. BANK NATIONAL ASSOCIATION, Plaintiff, vs. THE UNKNOWN HEIRS, BENEFICIARIES, DEVISEES, GRANTEES, ASSIGNEES, LIENORS, CREDITORS, TRUSTEES AND ALL OTHERS WHO MAY CLAIM AN INTEREST IN THE ESTATE OF EDDIE RANDOLPH, DECEASED, et al. Defendant(s). NOTICE OF FORECLOSURE SALE NOTICE IS HEREBY GIVEN pursuant to a Final Judgment of Foreclosure dated July 17, 2024, and entered in 16-2023-CA010088 of the Circuit Court of the FOURTH Judicial Circuit in and for Duval County, Florida, wherein U.S. BANK NATIONAL ASSOCIATION is the Plaintiff and THE UNKNOWN HEIRS, BENEFICIARIES, DEVISEES, GRANTEES, ASSIGNEES, LIENORS, CREDITORS, TRUSTEES AND ALL OTHERS WHO MAY CLAIM AN INTEREST IN THE ESTATE OF EDDIE RANDOLPH, DECEASED; JACQUELINE WILLIAMS; EDDIE LEE BRADDY; STATE OF FLORIDA, DEPARTMENT OF REVENUE; CLERK OF COURT OF DUVAL COUNTY, FLORIDA; SANDLER LAKES HOMEOWNERS ASSOCIATION, INC. are the Defendant(s). Jody Phillips as the Clerk of the Circuit Court will sell to the highest and best bidder for cash at: www.duval.realforeclose.com at 11:00 AM, on December 05,

FIRST INSERTION IN THE CIRCUIT COURT FOR THE 4TH JUDICIAL CIRCUIT, IN AND FOR DUVAL COUNTY, FLORIDA PROBATE DIVISION File No. 16-2024-CP-002937 Division PR-B IN RE: ESTATE OF ED PHILLIP NELSON, Deceased. NOTICE TO CREDITORS

The administration of the estate of ED PHILLIP NELSON, Deceased, whose date of death was May 5, 2024, is pending in the Circuit Court for Duval County, Florida, Probate Division, the address of which is 501 West Adams Street, Room 1173, Jacksonville, FL 32202. The names and addresses of the personal representative and the personal representative’s attorney are set forth below.

All creditors of the decedent and other persons having claims or demands against decedent’s estate on whom a copy of this notice is required to be served must file their claims with this court WITHIN THE LATER OF 3 MONTHS AFTER THE TIME OF THE FIRST PUBLICATION OF THIS NOTICE OR 30 DAYS AFTER THE DATE OF SERVICE OF A COPY OF THIS NOTICE ON THEM.

All other creditors of the decedent and other persons having claims or demands against decedent’s estate must file their claims with this court WITHIN 3 MONTHS AFTER THE DATE OF THE FIRST PUBLICATION OF THIS NOTICE.

ALL CLAIMS NOT FILED WITHIN THE TIME PERIODS SET FORTH IN SECTION 733.702 OF THE FLORIDA PROBATE CODE WILL BE FOREVER BARRED. NOTWITHSTANDING THE TIME PERIODS SET FORTH ABOVE, ANY CLAIM FILED TWO (2) YEARS OR MORE AFTER THE DECEDENT’S DATE OF DEATH IS BARRED.

A personal representative or curator has no duty to discover whether any property held at the time of the decedent’s death by the decedent or the decedent’s surviving spouse is property to which the Florida Uniform Disposition of Community Property Rights at Death Act as described in sections 732.216-732.228, applies, or may apply, unless a written demand is made by a creditor as specified under section 732.2211.

The date of first publication of this notice is November 14, 2024. VANESSA WILSON, Personal Representative Attorney for Personal Representative: Scott R. Bugay, Esquire Florida Bar No. 5207 Citicentre, Suite P600 290 NW 165 Street Miami FL 33169

Telephone: (305) 956-9040 Fax: (305) 945-2905 Primary Email: Scott@srblawyers.com Secondary Email: angelica@srblawyers.com Nov. 14/21 00 (24-07168D)

2024, the following described property as set forth in said Final Judgment, to wit: LOT 97 OF SANDLER LAKES, ACCORDING TO THE PLAT THEREOF AS RECORDED IN PLAT BOOK 75, PAGE(S) 9-14, OF THE PUBLIC RECORDS OF DUVAL COUNTY, FLORIDA. Property Address: 6517 SANDLER LAKES DRIVE, JACKSONVILLE, FL 32222

Any person claiming an interest in the surplus from the sale, if any, other than the property owner as of the date of the lis pendens must file a claim in accordance with Florida Statutes, Section 45.031. Americans With Disabilities Act (ADA) Notice In accordance with the Americans with Disabilities Act of 1990 (ADA), If you are a person with a disability who needs any accommodation in order to participate in this proceeding, you are entitled at no cost to you, to the provision of certain assistance. Please contact the ADA Coordinator at crtintrp@coj.net or (904) 2551695 at least 7 days before your scheduled court appearance, or immediately upon receiving this notification if the time before the scheduled appearance is less than 7 days; if you are hearing or voice impaired, call 711. Dated this 7th day of November, 2024.

JODY PHILLIPS As Clerk of the Court

By: Alice V. Griffin As Deputy Clerk (Court Seal) Robertson, Anschutz, Schneid, Crane & Partners, PLLC Attorneys for Plaintiff 6409 Congress Ave., Suite 100, Boca Raton, FL 33487

Telephone: 561-241-6901

Fax: 561-997-6909 23-134084 - MaM Nov. 14/21 00 (24-07163D)

FIRST INSERTION

IN THE CIRCUIT COURT OF THE FOURTH JUDICIAL CIRCUIT IN AND FOR DUVAL COUNTY, FLORIDA PROBATE DIVISION Case No. 16-2024-CP-002913 DIVISION: PR-B IN RE: ESTATE OF KEVIN ALBERT DEMAREST Deceased.

NOTICE TO CREDITORS

The administration of the Estate of Kevin Albert Demarest, deceased, whose date of death was June 23, 2024, is pending in the Circuit Court for Duval County, Florida, Probate Division, the address of which is 501 West Adams Street, Jacksonville, Florida 32202. The names and addresses of the personal representative and the personal representative’s attorney are set forth below.

All creditors of the decedent and other persons having claims or demands against decedent’s estate on whom a copy of this notice is required to be served must file their claims with this court ON OR BEFORE THE LATER OF 3 MONTHS AFTER THE TIME OF THE FIRST PUBLICATION OF THIS NOTICE OR 30 DAYS AFTER THE DATE OF SERVICE OF A COPY OF THIS NOTICE ON THEM.

All other creditors of the decedent and other persons having claims or demands against decedent’s estate must file their claims with this court WITHIN 3 MONTHS AFTER THE DATE OF THE FIRST PUBLICATION OF THIS NOTICE.

ALL CLAIMS NOT FILED WITHIN THE TIME PERIODS SET FORTH IN FLORIDA STATUTES SECTION 733.702 WILL BE FOREVER BARRED. NOTWITHSTANDING THE TIME PERIODS SET FORTH ABOVE, ANY CLAIM FILED TWO (2) YEARS OR MORE AFTER THE DECEDENT’S DATE OF DEATH IS BARRED.

A personal representative or curator has no duty to discover whether any property held at the time of the decedent’s death by the decedent or the decedent’s surviving spouse is property to which the Florida Uniform Disposition of Community Property Rights at Death Act as described in sections 732.216-732.228, applies, or may apply, unless a written demand is made by a creditor as specified under section 732.2211.

The date of first publication of this notice is November 14, 2024.

Personal Representative: Jacob Demarest 630 Castle Road Mount Juliet, TN 37122 /s/ Dale G. Westling Dale G. Westling, Esquire Florida Bar No.: 262300 437 E. Monroe St. Jacksonville, Florida 32202 Telephone: (904) 356-2347

Email: dalewestling@aol.com

Attorney for Petitioner Nov. 14/21 00 (24-07183D)

IN THE CIRCUIT COURT OF THE FOURTH JUDICIAL CIRCUIT IN AND FOR DUVAL COUNTY, FLORIDA GENERAL JURISDICTION DIVISION CASE NO. 16-2023-CA-011748

DIVISION: FC-E

U.S. BANK NATIONAL ASSOCIATION, Plaintiff, vs. AUSTIN JACQUES SADLER, SAMUEL BERNARD JILES IV AND JORDAN LA’ KINDRED JILES, et al. Defendant(s).

NOTICE OF FORECLOSURE SALE

NOTICE IS HEREBY GIVEN pursuant to a Final Judgment of Foreclosure dated May 20, 2024, and entered in 16-2023CA-011748 of the Circuit Court of the FOURTH Judicial Circuit in and for Duval County, Florida, wherein U.S. BANK NATIONAL ASSOCIATION is the Plaintiff and AUSTIN JACQUES SADLER; UNKNOWN SPOUSE OF AUSTIN JACQUES SADLER; SAMUEL BERNARD JILES IV; JORDAN LA’ KINDRED JILES; COURTNEY ALYSE FOSTER; FLORIDA HOUSING FINANCE CORPORATION; UNITED STATES OF AMERICA, ACTING ON BEHALF OF THE SECRETARY OF HOUSING AND URBAN DEVELOPMENT; CITY OF JACKSONVILLE, A FLORIDA MUNICIPAL CORPORATION; JM ASSOCIATES FEDERAL CREDIT UNION; STATE OF FLORIDA DEPARTMENT OF REVENUE; CLERK OF COURT OF DUVAL COUNTY, FLORIDA are the Defendant(s). Jody Phillips as the Clerk of the Circuit Court will sell to the highest and best bidder for cash at: www.duval.realforeclose.com at 11:00 AM, on December 04, 2024, the following described

FIRST INSERTION IN THE CIRCUIT COURT, IN THE FOURTH JUDICIAL CIRCUIT, IN AND FOR DUVAL COUNTY, FLORIDA CASE NO.: 16-2024-CP-002379

DIVISION: PR-B In re the Estate of MILDRED ANN HARROD, Deceased. NOTICE TO CREDITORS (Formal Administration) TO ALL PERSONS HAVING CLAIMS OR DEMANDS AGAINST THE ABOVE ESTATE: You are hereby notified that an Order of Formal Administration will be entered in the estate of Mildred Ann Harrod, deceased, Duval County Court Case Number 16-2024-CP-002379, Division PR-B, by the Circuit Court for Duval County, Florida, Probate Division, the address of which is 501 West Adams Street, Jacksonville, Florida 32202; that the decedent’s date of death was July 9, 2024; that the total value of the estate is greater than $1,000.00 and that the names and addresses of those to whom it will be assigned by such order are: (1) Matthew L. Wolfe, 2114 Oak Street, Jacksonville, FL 32204

ALL INTERESTED PERSONS ARE NOTIFIED THAT: All creditors of the estate of the decedent and persons having claims or demands against the estate of the decedent other than those for whom provision for full payment will be made in the Order of Formal Administration must file their claims with this court WITHIN THE TIME PERIODS SET FORTH IN FLORIDA STATUTES SECTION 733.702. ALL CLAIMS AND DEMANDS NOT SO FILED WILL BE FOREVER BARRED. NOTWITHSTANDING ANY OTHER APPLICABLE TIME PERIOD, ANY CLAIM FILED TWO (2) YEARS OR MORE AFTER THE DECEDENT’S DATE OF DEATH IS BARRED.

The Petitioner has no duty to discover whether any property held at the time of the decedent’s death by the decedent or the decedent’s surviving spouse is property to which the Florida Uniform Disposition of Community Property Rights at Death Act as described in sections 732.216-732.228, Florida Statutes, applies, or may apply, unless a written demand is made by a creditor as specified under section 732.2211, Florida Statutes. The date of first publication of this Notice is November 14, 2024.

Person Giving Notice: Allison Kendle Akins, PETITIONER

Attorney for Person Giving Notice: MATTHEW L. WOLFE, Attorney for Petitioner Florida Bar Number: 31455 2114 Oak Street

Jacksonville, FL 32204

Telephone: (904) 374-0111

Fax: (904) 374-0113

E-Mail: mwolfelaw@gmail.com Nov. 14/21 00 (24-07170D)

INSERTION

property as set forth in said Final Judgment, to wit: LOT 1E, BLOCK 7, LEXINGTON SQUARE UNIT ONE C, ACCORDING TO PLAT THEREOF AS RECORDED IN PLAT BOOK 42, PAGE 86, 86A AND 86B OF THE CURRENT PUBLIC RECORDS OF DUVAL COUNTY, FLORIDA Property Address: 5528 N CABOT DR, JACKSONVILLE, FL 32244

Any person claiming an interest in the surplus from the sale, if any, other than the property owner as of the date of the lis pendens must file a claim in accordance with Florida Statutes, Section 45.031. Americans With Disabilities Act (ADA) Notice In accordance with the Americans with Disabilities Act of 1990 (ADA), If you are a person with a disability who needs any accommodation in order to participate in this proceeding, you are entitled at no cost to you, to the provision of certain assistance. Please contact the ADA Coordinator at crtintrp@coj.net or (904) 2551695 at least 7 days before your scheduled court appearance, or immediately upon receiving this notification if the time before the scheduled appearance is less than 7 days; if you are hearing or voice impaired, call 711. Dated this 7th day of November, 2024.

FIRST INSERTION

NOTICE

Extra Space Storage, on behalf of itself or its affiliates, Life Storage or Storage Express, will hold a public auction to sell personal property described below belonging to those individuals listed below at the location indicated: 100 Girvin Rd, Jacksonville FL, 32225

December 3, 2024 at 12:00pm. Marcus Eichelberger: Furniture, beds, dressers, desk, tables, chairs and lamps.

Marcus Eichelberger: House goods.

Jeremy Grisso: Household Goods

The auction will be listed and advertised on www.storagetreasures.com Purchases must be made with cash only and paid at the above referenced facility in order to complete the transaction.

Extra Space Storage may refuse any bid and may rescind any purchase up until the winning bidder takes possession of the personal property.

Nov. 14/21 00 (24-07173D)

IN THE CIRCUIT COURT, FOURTH JUDICIAL CIRCUIT, IN AND FOR DUVAL COUNTY, FLORIDA, PROBATE DIVISION FILE NO.: 16-2024-CP-002940

DIVISION: PR-A IN RE: ESTATE OF JOSEPH H. DeROMA, a/k/a JOSEPH HENRY DeROMA, JR., a/k/a JOE DeROMA, Deceased.

NOTICE TO CREDITORS

The administration of the estate of JOSEPH H. DeROMA, a/k/a JOSEPH HENRY DeROMA, JR., a/k/a JOE DeROMA, deceased, whose date of death was November 4, 2023, is pending in the Circuit Court for Duval County, Florida, Probate Division, the address of which is Duval County Courthouse, 501 West Adams Street, Jacksonville, Florida 32202. The names and addresses of the personal representative and the personal representative’s attorney are set forth below.

All creditors of the decedent and other persons having claims or demands against decedent’s estate on whom a copy of this notice is required to be served must file their claims with this Court ON OR BEFORE THE LATER OF 3 MONTHS AFTER THE TIME OF THE FIRST PUBLICATION OF THIS NOTICE OR 30 DAYS AFTER THE DATE OF SERVICE OF A COPY OF THIS NOTICE ON THEM.

All other creditors of the decedent and other persons having claims or demands against decedent’s estate must file their

IN THE CIRCUIT COURT OF THE FOURTH JUDICIAL CIRCUIT IN AND FOR DUVAL COUNTY, FLORIDA GENERAL JURISDICTION

DIVISION

CASE NO. 16-2023-CA-008726

DIVISION: FC-D

U.S. BANK NATIONAL ASSOCIATION, Plaintiff, vs. THE UNKNOWN HEIRS, BENEFICIARIES, DEVISEES, GRANTEES, ASSIGNEES, LIENORS, CREDITORS, TRUSTEES AND ALL OTHERS

FIRST INSERTION

NOTICE

Extra Space Storage, on behalf of itself or its affiliates, Life Storage or Storage Express, will hold a public auction to sell personal property described below belonging to those individuals listed below at the location indicated:

Extra Space Storage, 2004 Edison Ave, Jacksonville, Florida 32204. Auction date: December 03, 2024 at 1:30pm Bertho Augustin, Furnitures, Boxes, and others Auriel Gregory, Household goods. Tomus Hill, bins of clothes and toys Alex Tramaine Nelson, Household goods The auction will be listed and advertised on www.storagetreasures.com. Purchases must be made with cash only and paid at the above referenced facility in order to complete the transaction. Extra Space Storage may refuse any bid and may rescind any purchase up until the winning bidder takes possession of the personal property.

Nov. 14/21 00 (24-07174D)

claims with this Court WITHIN 3 MONTHS AFTER THE DATE OF THE FIRST PUBLICATION OF THIS NOTICE. The personal representative has no duty to discover whether any property held at the time of the decedent’s death by the decedent or the decedent’s surviving spouse is property to which the Florida Uniform Disposition of Community Property Rights at Death Act as described in Sections 732.216732.228, applies, or may apply, unless a written demand is made by a creditor as specified under Section 732.2211, Florida Statutes. ALL CLAIMS NOT FILED WITHIN THE TIME PERIODS SET FORTH IN FLORIDA STATUTES SECTION 733.702 WILL BE FOREVER BARRED. NOTWITHSTANDING THE TIME PERIODS SET FORTH ABOVE, ANY CLAIM FILED TWO (2) YEARS OR MORE AFTER THE DECEDENT’S DATE OF DEATH IS BARRED. The date of first publication of this notice is November 14, 2024. Personal Representative: JOSEPH H. DeROMA, III 3214 Adams Court Fairfax, Virginia 22030 Attorney for Personal Representative: TARA F. EVANS, ESQUIRE tevans@rtlaw.com Florida Bar No.: 1019353 ROGERS TOWERS, P.A. 1301 Riverplace Boulevard, Suite 1500 Jacksonville, FL 32207 (904) 398-3911 Nov. 14/21 00 (24-07158D)

2024, the following described property as set forth in said Final Judgment, to wit: LOT 26, ARLINGTON MANOR UNIT NO. 6, A SUBDIVISION, ACCORDING TO THE PLAT THEREOF, AS RECORDED IN PLAT BOOK 24, PAGES 21 AND 21A, IN THE PUBLIC RECORDS OF DUVAL COUNTY, FLORIDA. Property Address: 7143 OAKNEY RD, JACKSONVILLE, FL 32211 Any person claiming an interest in the surplus from the sale, if any, other than the property owner as of the date of the lis pendens must file a claim in accordance with Florida Statutes, Section 45.031. Americans With Disabilities Act (ADA) Notice In accordance with the Americans with Disabilities Act of 1990 (ADA), If you are a person with a disability who needs any accommodation in order to participate in this proceeding, you are entitled at no cost to you, to the provision of certain assistance. Please contact the ADA Coordinator at crtintrp@coj.net or (904) 2551695 at least 7 days before

JODY PHILLIPS As Clerk of the Court By: Alice

As Deputy Clerk (Court Seal) Robertson, Anschutz, Schneid, Crane & Partners, PLLC Attorneys for Plaintiff 6409 Congress Avenue, Suite 100, Boca Raton, FL 33487

Telephone: 561-241-6901 Fax: 561-997-6909 23-140714 - MaM Nov. 14/21 00 (24-07161D)

WHO MAY CLAIM AN INTEREST IN THE ESTATE OF VICTOR R. THROOP, DECEASED, et al. Defendant(s). NOTICE OF FORECLOSURE SALE NOTICE IS HEREBY GIVEN pursuant to a Final Judgment of Foreclosure dated July 26, 2024, and entered in 16-2023CA-008726 of the Circuit Court of the FOURTH Judicial Circuit in and for Duval County, Florida, wherein U.S. BANK NATIONAL ASSOCIATION is the Plaintiff and THE UNKNOWN HEIRS, BENEFICIARIES, DEVISEES, GRANTEES, ASSIGNEES, LIENORS, CREDITORS, TRUSTEES AND ALL OTHERS WHO MAY CLAIM AN INTEREST IN THE ESTATE OF VICTOR R. THROOP, DECEASED; META JOANN CREECH; JASON THROOP; FLORIDA HOUSING FINANCE CORPORATION; UNITED STATES OF AMERICA, ACTING ON BEHALF OF THE SECRETARY OF HOUSING AND URBAN DEVELOPMENT are the Defendant(s). Jody Phillips as the Clerk of the Circuit Court will sell to the highest and best bidder for cash at: www.duval.realforeclose.com at 11:00 AM, on December 04,

PUBLIC NOTICES

NOTICE OF COMPILATION AND ENTRY OF NUISANCE ABATEMENT AND DEMOLITION LIENS

NOTICE OF COMPILATION AND ENTRY OF NUISANCE ABATEMENT AND DEMOLITION LIENS. NOTICE IS HEREBY GIVEN THAT THE CITY OF JACKSONVILLE HAS CUT WEEDS, GRASS AND UNDERBRUSH OR DEMOLISHED UNSAFE STRUCTURES AT VARIOUS LOCATIONS THROUGHOUT THE CITY, PURSUANT TO MUNICIPAL ORDINANCE CODE 518 THESE LIENS HAVE BEEN ENTERED INTO THE LIEN RECORDS AND ARE AS FOLLOWS:

NBNL25000117, NEWSOME IKEISHA, 2-20 16-2S-26E TRASHERS S/D PT SW1/4 LOT 19 BLK 2, $673.51

NBNL25000118, ELLEDGE WALTER ET AL, 39-1S-26E SIBBALD GRANT PT PARCEL B RECD O/R 5572-70, $1006.13

NBNL25000119, DMB INVESTMENTS PROPERTIES LLC, 39-1S-26E .61 SIBBALD GRANT PT RECD O/R 210222289, $1592.04

NBNL25000120, GRANT REBECCA F ESTATE, 18-17

39-1S-26E ROYAL TERRACE, ADDN NO 1 LOT 7 BLK 1, $497.87

NBNL25000121, JESONECK

JERRY W TRUST, 6-9 37-1N-27E DUVAL CITY LOTS 4,5,19,20 BLK 26, $999.23

NBNL25000122, DIXON MARY M, 4-38 40-1S26E ARMSTRONGS S/D

RIVERVIEW LOT 5,N1/2 LOT 6 BLK 74, $411.64

NBNL25000123, DIXON CHARLES J, 40-1S-26E ARMSTRONGS S/D RIVERVIEW S1/2 LOT 6,LOT 7 BLK 74, $656.30

NBNL25000124, FORE JAMIE

J JR, 32-88 39-1S-26E LAKE PARK ESTATES UNIT 6 LOT 17 BLK 13, $6252.33

NBNL25000125, JS PIEK INVESTMENTS LLC, 2-35 15-2S-26E .08 GANDYS S/D LOT 18 BLK 2, $474.75

NBNL25000126, DIVERSE ASSET REALTY TEAM LLC, 20-10 40-1S-25E .39 HOME GARDEN ESTATES LOT 14 BLK 3, $5032.33

NBNL25000127, JOHNS LARRY J, 5-71 19-2S-25E WHITE CITY S/D LOTS 1 TO 5 BLK 1, $1090.05

NBNL25000128, BROWN

INSERTION

JEFFR EY NEIL, 26-47 39-2S25E NORMANDY UNIT 2 LOT 10 BLK 4, $756.02

NBNL25000129, GRANT EVELYN ESTATE, 3-4 17-2S-26E .22 HARVEYS ADDN TO JAX N 125FT OF E 77FT LOT 1 BLK 1, $8140.33

NBNL25000130, MGB SQUARED MEMBER LLC, 18-16

39-1S-26E LAKE FOREST SEC 4 LOT 17 BLK 1, $692.22

NBNL25000131, KPRM II LLC, 2-59 55-2S-26E GRAND PARK LOT 18 BLK 39, $660.32

NBNL25000132, SIMMONS VERNARD LAMAR JR ET AL, 1-24 55-2S-26E JONES S/D LOT 5 BLK M LONG BRANCH LOT 16, $3102.33

NBNL25000133, 284 E 46TH ST LLC, 15-39 39-1S-26E EDMONDSONS MAIN STREET ESTATES LOT 156, $3327.33

NBNL25000134, KINYON BETTY CATHERINE, 01-2S-25E .85 PT N1/2 GOVT LOT 5 RECD O/R 12196-1128, $5927.33

NBNL25000135, HAYNES ASUNCION A, 12-9 08-2S-26E

BILTMORE E 19.05FT LOT 13,LOT 14,W 4.76FT LOT 15 BLK 30, $5527.33

NBNL25000136, VILLARS LUIS, 31-78 11-2S-27E

ARLINGWOOD UNIT 9 LOT 21(EX N 5FT) BLK 44, $3527.33

NBNL25000137, SMALL TIFFANY, 30-93 39-1S-26E SUNNY ACRES UNIT 2 LOT 1(EX PT IN ST), $4711.33

NBNL25000138, BAKER MICHAEL, 52-2S-27E .18

DIVENS S/D PT F RICHARD GRANT PT LOT 2 RECD O/R 8405-511, $4327.33

NBNL25000139, PEREIRA JOSE LUIZ, 6-28 39-1S-26E .11 N BROOKSIDE LOT 3 BLK 9, $579.77

NBNL25000140, BRANTON ROSCOE, 8-23 41-2S-26E .04

EASTBROOK ANNEX N1/2 LOT 4 BLK A, $533.91

NBNL25000141, HELP

AVAILABLE INC, 18-17 39-1S26E ROYAL TERRACE ADDN 1 LOT 1 BLK 4, $900.51

NBNL25000142, 409 BROWARD STREET LAND TRUST, 2-30 15-2S-26E

FEHRENBACHS S/D PT LOT 2 LOTS 19,20 BLK 9, $992.68

NBNL25000143, COSTELLO

ADRIANNA, 12-51 16-2S-26E WEST HOLLYBROOK LOT 9 BLK 3, $610.70

NBNL25000144, KAPACH OMER, 4-38 40-1S-26E ARMSTRONGS S/D

RIVERVIEW LOTS 23,24 BLK 83, $937.22

NBNL25000145, BARRANES GAI, 7-45 41-2S-26E

HOLLYBROOK LOT 5 BLK 10, $667.67

NBNL25000146, TO A TEA ENTERPRISE LLC, 15-36 39-1S-26E .213 EDMONDSONS NORTH SHORE GARDENS LOT 252, $749.76

NBNL25000147, BIGGINS KAY H LIFE ESTATE, 28-94

42-1S-26E SHERWOOD FOREST UNIT 6 LOT 36

BLOCK 18, $420.92

NBNL25000148, M A R A

GROUP HOLDING INC, 16-66

40-1S-26E BRADDOCKS ADDN TO RIVERVIEW LOTS 10 TO 15 BLK 136, $6036.33

NBNL25000149, LOCKETT MARK ESTATE ET AL, 10-30

39-1S-26E .163 PEARL COURT PT LOT 8 RECD O/R 115531508, LOT 9 BLK 3, $669.76

NBNL25000150, SANCHEZ

FAMILY TRUST, 35-68 14-4S26E MANDARIN POINT LOT 6 BLK 6, $2902.33

NBNL25000151, GONZALEZ ARTIGAS E ET AL, 15-8

43-1S-26E 1.203 IRVING H POMEROYS S/D LOTS 53,54

SIMMONS S/D LOT 3, $2763.86

NBNL25000152, THOMAS KATRICE, 32-19 43-1S-26E RICHARDSON HEIGHTS

ADDN NO 1 LOT 15 BLK 1, $2852.33

NBNL25000153, WHOLESALE PROPERTY

DEPOT LLC, 3-39 16-2S-26E .103 WOODSTOCK LOT 9 BLK 7, $297.09

NBNL25000154, CREDIT UNION LAND TRUST, 06-053

REVISED RITCHIEVILLE LOTS 27,28 BLK 3 LIFE ESTATE D BK 1220-448, O/R BKS 4853591,592,593,5286-780, 5484309,6241-1969 PROB 35481-D, $3127.33

NBNL25000155, TIMMONS SHEDRICKA, 28-52 41-1S-26E SHERWOOD FOREST UNIT 3 LOT 12 BLK 65, $647.05

NBNL25000156, HYDE GROVE OAKS LLC, 56-55 35-2S25E 1.09 HYDE GROVE OAKS LOT 46(EX PT RECD O/R 11949-1032), $5701.33

NBNL25000157, SFR XII

JACKSONVILLE OWNER 1 L P, 24-22 11-1S-26E HIGHLANDS UNIT NO 4-A LOT 158, $3252.33 MAYOR DONNA DEEGAN Nov. 14 00 (24-07193D)

FIRST INSERTION FIRST INSERTION

JACKSONVILLE SS AUTOMOTIVE MNGT LLC DBA SOUTHSIDE KIA MV 98424 9401 ATLANTIC BLVD

JACKSONVILLE, FL 32225 (DUVAL County) 904-400-6650 NOTICE OF MECHANIC’S LIEN

Notice of claim of lien and intent to sell vehicle pursuant to subsection 713.585 of the Florida Statutes.

Date of Sale: 12/05/2024 @ 10:30 AM LOCATION OF SALE: 9401 ATLANTIC BLVD, JACKSONVILLE, FL 32225 CURRENT LOCATION OF VEHICLE: 9401 ATLANTIC BLVD, JACKSONVILLE, FL 32225 2020 KIA SOUL #KNDJ23AU2L7066398 AMOUNT TO REDEEM

$4295.46

The lien claimed by the lienor is subject to enforcement pursuant to Section 713.585, F.S., and the vehicle may be sold to satisfy the lien. The lien is claimed for labor, services performed, and storage charges, if any, and the amount due in cash on the day of the sale, if paid to the lienor, would redeem the motor vehicle. At any time before the date of the sale or proposed sale the owner or any person claiming an interest or a lien on the vehicle may file a demand for hearing with the Clerk of the Circuit Court in the county where the vehicle is held to determine whether the vehicle has been wrongfully taken or withheld from him or her. At any time before the date of the sale or proposed sale a customer or a person of record claiming a lien on the vehicle may post a cash or surety bond in the amount stated on the invoice with the Clerk of the Circuit Court where the disputed transaction occurred.

Notice that the owner of the motor vehicle has a right to recover possession of the motor vehicle without instituting judicial proceedings by posting a bond in accordance with the provisions of Florida Statute 559.917.

Notice that any proceeds from the sale of the motor vehicle remaining after payment of the amount claimed to be due and owing to the lienor will be deposited with the Clerk of the Circuit Court for disposition upon court order pursuant to subsection (6) of Florida Statute 713.585.

Notice that the lienor will make the vehicle available for inspection during regular business hours within 3 business days after receiving a written request to inspect the vehicle from a notice recipient, whom may present either a copy of an electronic title or a paper title as evidence of his or her interest in and right to inspect the vehicle. Nov. 14 00 (24-07152D)

JACKSONVILLE SS

AUTOMOTIVE MNGT LLC

DBA SOUTHSIDE KIA MV 98424

9401 ATLANTIC BLVD

JACKSONVILLE, FL 32225 (DUVAL County) 904-400-6650

NOTICE OF MECHANIC’S LIEN

Notice of claim of lien and intent to sell vehicle pursuant to subsection 713.585 of the Florida Statutes.

Date of Sale: 12/05/2024 @ 10:30 AM TO TAKE PLACE AT: LOCATION OF SALE: 9401 ATLANTIC BLVD, JACKSONVILLE, FL 32225

CURRENT LOCATION OF VEHICLE: 9401 ATLANTIC BLVD, JACKSONVILLE, FL 32225 2015 KIA SOUL #KNDJN2A27F7179557

AMOUNT TO REDEEM

$3640.45

The lien claimed by the lienor is subject to enforcement pursuant to Section 713.585, F.S., and the vehicle may be sold to satisfy the lien. The lien is claimed for labor, services performed, and storage charges, if any, and the amount due in cash on the day of the sale, if paid to the lienor, would redeem the motor vehicle. At any time before the date of the sale or proposed sale the owner or any person claiming an interest or a lien on the vehicle may file a demand for hearing with the Clerk of the Circuit Court in the county where the vehicle is held to determine whether the vehicle has been wrongfully taken or withheld from him or her. At any time before the date of the sale or proposed sale a customer or a person of record claiming a lien on the vehicle may post a cash or surety bond in the amount stated on the invoice with the Clerk of the Circuit Court where the disputed transaction occurred.

Notice that the owner of the motor vehicle has a right to recover possession of the motor vehicle without instituting judicial proceedings by posting a bond in accordance with the provisions of Florida Statute 559.917.

Notice that any proceeds from the sale of the motor vehicle remaining after payment of the amount claimed to be due and owing to the lienor will be deposited with the Clerk of the Circuit Court for disposition upon court order pursuant to subsection (6) of Florida Statute 713.585.

Notice that the lienor will make the vehicle available for inspection during regular business hours within 3 business days after receiving a written request to inspect the vehicle from a notice recipient, whom may present either a copy of an electronic title or a paper title as evidence of his or her interest in and right to inspect the vehicle. Nov. 14 00 (24-07154D) FIRST INSERTION

JACKSONVILLE SS AUTOMOTIVE MNGT LLC DBA SOUTHSIDE KIA MV 98424 9401 ATLANTIC BLVD JACKSONVILLE, FL 32225 (DUVAL County) 904-400-6650 NOTICE OF MECHANIC’S LIEN Notice of claim of lien and intent to sell vehicle pursuant to subsection 713.585 of the Florida Statutes.

Date of Sale: 12/05/2024 @ 10:30 AM TO TAKE PLACE AT: LOCATION OF SALE: 9401 ATLANTIC BLVD, JACKSONVILLE, FL 32225 CURRENT LOCATION OF VEHICLE: 9401 ATLANTIC BLVD, JACKSONVILLE, FL 32225 2014 KIA SPORTAGE #KNDPB3AC5E7560503 AMOUNT TO REDEEM $2236.01

The lien claimed by the lienor is subject to enforcement pursuant to Section 713.585, F.S., and the vehicle may be sold to satisfy the lien. The lien is claimed for labor, services performed, and storage charges, if any, and the amount due in cash on the day of the sale, if paid to the lienor, would redeem the motor vehicle. At any time before the date of the sale or proposed sale the owner or any person claiming an interest or a lien on the vehicle may file a demand for hearing with the Clerk of the Circuit Court in the county where the vehicle is held to determine whether the vehicle has been wrongfully taken or withheld from him or her. At any time before the date of the sale or proposed sale a customer or a person of record claiming a lien on the vehicle may post a cash or surety bond in the amount stated on the invoice with the Clerk of the Circuit Court where the disputed transaction occurred. Notice that the owner of the motor vehicle has a right to recover possession of the motor vehicle without instituting judicial proceedings by posting a bond in accordance with the provisions of Florida Statute 559.917.

Notice that any proceeds from the sale of the motor vehicle remaining after payment of the amount claimed to be due and owing to the lienor will be deposited with the Clerk of the Circuit Court for disposition upon court order pursuant to subsection (6) of Florida Statute 713.585. Notice that the lienor will make the vehicle available for inspection during regular business hours within 3 business days after receiving a written request to inspect the vehicle from a notice recipient, whom may present either a copy of an electronic title or a paper title as evidence of his or her interest in and right to inspect the vehicle. Nov. 14 00 (24-07155D)

PUBLIC NOTICES

FIRST INSERTION

NOTICE OF PUBLIC HEARINGS

Notice is hereby given that the following public hearings will be held in the Council Chambers, 1st floor, City Hall, 117 West Duval Street, St. James Building, Jacksonville, Florida, concerning: ORDINANCE 2024-0881 AN ORDINANCE CLOSING AND ABANDONING AND/ OR DISCLAIMING THREE UNOPENED, UNIMPROVED AND UNNAMED RIGHTSOF-WAY, INCLUDING TWO RIGHTS-OF-WAY ESTABLISHED IN THE PLAT OF JACKSONVILLE FARMS, AS RECORDED IN PLAT BOOK

4, PAGE 2 OF THE CURRENT PUBLIC RECORDS OF DUVAL COUNTY, FLORIDA, AND ONE RIGHT-OF-WAY ESTABLISHED IN THE MAP SHOWING LANDS OF JACKSONVILLE HEIGHTS IMPROVEMENT CO., AS RECORDED IN PLAT BOOK

5, PAGE 93 OF THE CURRENT PUBLIC RECORDS OF DUVAL COUNTY, FLORIDA, ALL LOCATED IN COUNCIL DISTRICT 12, AT THE REQUEST OF BOYD TIMBER, INC.; PROVIDING FOR APPROVAL SUBJECT TO CONDITIONS; PROVIDING AN EFFECTIVE DATE.

City Council Public Hearing will be held on Tuesday, November 26, 2024, at 5:00 P.M. The Transportation, Energy, and Utilities (TEU) Committee Public Hearing will be held on Wednesday, December 3, 2024, at 2:00 P.M.

A copy of the Ordinance (s) is available for public inspection in the Council Legislative Services Division, Suite 430, City Hall. Additional information concerning this right-of-way closure and abandonment ordinance may be obtained by contacting the Real Estate Division at 255-8700. All interested persons may appear at the meetings and be heard with respect to the proposed ordinance. Nov. 14 00 (24-07175D)

FIRST INSERTION

NOTICE OF AGENCY ACTION TAKEN BY THE ST. JOHNS RIVER WATER

MANAGEMENT DISTRICT

Notice is given that the following permit was issued on November 8, 2024 (Zion Jacksonville, LLC, 225 E 57th Street, Apt 14e, New York, NY 10022-2827, permit#194691-5. The project is located in Duval County, Section 46, Township 1 South, Range 27 East. The permit authorizes a surface water management system on 7.57 acre project known as Zion Parcel 3 Spine Road as per plans received by the District on October 7, 2024. The receiving water body is Dunn Creek. A person whose substantial interests are or may be affected has the right to request an administrative hearing by filing a written petition with the St. Johns River Water Management District (District). Pursuant to Chapter 28-106 and Rule 40C-1.1007, Florida Administrative Code (F.A.C.), the petition must be filed (received) either by delivery at the office of the District Clerk at District Headquarters, P.O. Box 1429, Palatka FL 32178-1429 (4049 Reid St, Palatka, FL 32177) or by e-mail with the District Clerk at Clerk@sjrwmd.com, within twenty-one (21) days of newspaper publication of the notice of District decision (for those persons to whom the District does not mail or email actual notice). A petition must comply with Sections 120.54(5)(b)4. and 120.569(2)(c), Florida Statutes (F.S.), and Chapter 28-106, F.A.C. The District will not accept a petition sent by facsimile (fax). Mediation pursuant to Section 120.573, F.S., may be available and choosing mediation does not affect your right to an administrative hearing. A petition for an administrative hearing is deemed filed upon receipt of the complete petition by the District Clerk at the District Headquarters in Palatka, Florida during the District’s regular business hours. The District’s regular business hours are 8 a.m. – 5 p.m., excluding weekends and District

holidays. Petitions received by the District Clerk after the District’s regular business hours shall be deemed filed as of 8 a.m. on the District’s next regular business day. The District’s acceptance of petitions filed by e-mail is subject to certain conditions set forth in the District’s Statement of Agency Organization and Operation (issued pursuant to Rule 28-101.001, Florida Administrative Code), which is available for viewing at www.sjrwmd.com. These conditions include, but are not limited to, the petition being in the form of a PDF or TIFF file and being capable of being stored and printed by the District. Further, pursuant to the District’s Statement of Agency Organization and Operation, attempting to file a petition by facsimile (fax) is prohibited and shall not constitute filing.

The right to an administrative hearing and the relevant procedures to be followed are governed by Chapter 120, Florida Statutes, Chapter 28-106, Florida Administrative Code, and Rule 40C1.1007, Florida Administrative Code. Because the administrative hearing process is designed to formulate final agency action, the filing of a petition means the District’s final action may be different from the position taken by it in this notice. Failure to file a petition for an administrative hearing within the requisite time frame shall constitute a waiver of the right to an administrative hearing. (Rule 28-106.111, F.A.C.).

If you wish to do so, please visit http://www.sjrwmd.com/nor_ dec/ to read the complete Notice of Rights to determine any legal rights you may have concerning the District’s decision(s) on the permit application(s) described above. You can also request the Notice of Rights by contacting the Director of Office of Records and Regulatory Support, 4049 Reid St., Palatka, FL 32177- 2529, tele. no. (386)329-4570. Nov. 14 00 (24-07197D)

FIRST INSERTION

NOTICE UNDER FICTITIOUS NAME LAW

According to Florida Statute Number 865.09 NOTICE IS HEREBY GIVEN that the undersigned, desiring to engage in business under the Fictitious Name of Legacy Ascent Village located at 6645 Argyle Forest Boulevard, Suite 4, in the City of Jacksonville , Duval County, Florida

32244 intends to register the said name with the Division of Corporations of the Department of State, Tallahassee, Florida. Dated at Jacksonville, Florida, this 9th day of November, 2024. Sabrina Raibon Nov. 14 00 (24-07177D)

JACKSONVILLE SS AUTOMOTIVE MNGT LLC DBA SOUTHSIDE KIA MV 98424 9401 ATLANTIC BLVD JACKSONVILLE, FL 32225 (DUVAL County) 904-400-6650 NOTICE OF MECHANIC’S LIEN

Notice of claim of lien and intent to sell vehicle pursuant to subsection 713.585 of the Florida Statutes.

Date of Sale: 12/05/2024 @ 10:30 AM TO TAKE PLACE AT: LOCATION OF SALE: 9401 ATLANTIC BLVD, JACKSONVILLE, FL 32225 CURRENT LOCATION OF VEHICLE: 9401 ATLANTIC BLVD, JACKSONVILLE, FL 32225 2016 KIA SOUL #KNDJP3A57G7333681 AMOUNT TO REDEEM $4820.45

FIRST INSERTION

NOTICE UNDER FICTITIOUS NAME LAW

According to Florida Statute Number 865.09 NOTICE IS HEREBY GIVEN that the undersigned, desiring to engage in business under the Fictitious Name of Calm Conversation Lounge located at 52 Tuscan Way Ste 202-9, in the City of St Augustine, St Johns County, Florida 32092 intends to register the said name with the Division of Corporations of the Department of State, Tallahassee, Florida.

Dated at Jacksonville, Florida, this 8th day of November, 2024. Jaime Hoyman Nov. 14 00 (24-07176D)

FIRST INSERTION

The lien claimed by the lienor is subject to enforcement pursuant to Section 713.585, F.S., and the vehicle may be sold to satisfy the lien. The lien is claimed for labor, services performed, and storage charges, if any, and the amount due in cash on the day of the sale, if paid to the lienor, would redeem the motor vehicle. At any time before the date of the sale or proposed sale the owner or any person claiming an interest or a lien on the vehicle may file a demand for hearing with the Clerk of the Circuit Court in the county where the vehicle is held to determine whether the vehicle has been wrongfully taken or withheld from him or her. At any time before the date of the sale or proposed sale a customer or a person of record claiming a lien on the vehicle may post a cash or surety bond in the amount stated on the invoice with the Clerk of the Circuit Court where the disputed transaction occurred.

FIRST INSERTION

NOTICE UNDER FICTITIOUS NAME LAW

According to Florida Statute Number 865.09

NOTICE IS HEREBY GIVEN that the undersigned, desiring to engage in business under the Fictitious Name of The Curated Vault located at 4016 South Third St #1030, in the City of Jacksonville Beach, Duval County, Florida 32250 intends to register the said name with the Division of Corporations of the Department of State, Tallahassee, Florida. Dated at Jacksonville, Florida, this 7th day of November, 2024. Alec Esposito Nov. 14 00 (24-07143D)

Notice that the owner of the motor vehicle has a right to recover possession of the motor vehicle without instituting judicial proceedings by posting a bond in accordance with the provisions of Florida Statute 559.917. Notice that any proceeds from the sale of the motor vehicle remaining after payment of the amount claimed to be due and owing to the lienor will be deposited with the Clerk of the Circuit Court for disposition upon court order pursuant to subsection (6) of Florida Statute 713.585. Notice that the lienor will make the vehicle available for inspection during regular business hours within 3 business days after receiving a written request to inspect the vehicle from a notice recipient, whom may present either a copy of an electronic title or a paper title as evidence of his or her interest in and right to inspect the vehicle. Nov. 14 00 (24-07151D)

PUBLIC NOTICES

FIRST INSERTION

IN THE CIRCUIT COURT FOR DUVAL COUNTY FLORIDA PROBATE DIVISION

File No.: 16-2024-CP-002759

Division: PR-B IN RE: ESTATE OF Stephon Douglas Yewitt, Jr Deceased.

NOTICE TO CREDITORS

The administration of the Estate of Stephon Douglas Yewitt, Jr, deceased, File Number 16-2024CP-002759, is pending in the Circuit Court for Duval County, Florida, Probate Division, the address of which is 501 W. Adams St., Jacksonville, FL 32210. The names and addresses of the petitioner and the petitioner’s attorney are set forth below.

All creditors of the Decedent and other persons having claims or demands against Decedent’s estate, on whom a copy of this notice is required to be served, must tile their claims with this court WITHIN THE LATER OF 3 MONTHS AFTER THE TIME OF THE FIRST PUBLICATION OF THIS NOTICE OR 30 DAYS AFTER THE DATE OF SERVICE OF A COPY OF THIS NOTICE ON THEM. All other creditors of the Decedent and other persons having claims or demands against Decedent’s estate must file their claims with this court WITHIN 3 MONTHS AFTER THE DATE OF THE FIRST PUBLICATION OF THIS NOTICE. ALL CLAIMS NOT FILED WITHIN THE TIME PERIODS SET FORTH IN SECTION 33.702 OF THE FLORIDA PROBATE CODE WILL BE FOREVER BARRED.

NOTWITHSTANDING THE TIME PERIOD SET FORTH ABOVE, ANY CLAIM FILED TWO (2) YEARS OR MORE AFTER THE DECEDENT’S DATE OF DEATH IS BARRED.

A Personal Representative or Curator has no duty to discover whether any property held at the time of the Decedent’s death by the Decedent or the Decedent’s surviving spouse is property to which the Florida Uniform Disposition of Community Property Rights at death Act as described in ss. 732.216-732.228 applies, or may apply, unless a written demand is made by a Creditor, as specified under s. 732.2211. The date of first publication of this Notice is November 14, 2024.

Personal Representative

Kiesha L. Williams 1051 National Avenue #240 San Bruno, CA 94066

Attorney for Personal Representative: Nathan Dougherty, Esquire Florida Bar No. 118632 P.O. Box 380984 Murdock, FL 33938 Tel: (941) 270-4489

Email: contact@ nathandoughertylaw.com

Nov. 14/21 00 (24-07182D)

FIRST INSERTION

NOTICE

Extra Space Storage, on behalf of itself or its affiliates, Life Storage or Storage Express, will hold a public auction to sell personal property described below belonging to those individuals listed below at the location indicated: 45 Jefferson Rd, Jacksonville Fl 32225 12/3/2024 @1:00pm. William Hunter - House Goods The auction will be listed and advertised on www.storagetreasures.com. Purchases must be made with cash only and paid at the above referenced facility in order to complete the transaction. Extra Space Storage may refuse any bid and may rescind any purchase up until the winning bidder takes possession of the personal property Nov. 14/21 00 (24-07172D)

FIRST INSERTION

Auction of General Household & Commercial Goods

Town Center Storage 12 Noon(904)404-5000 on Monday December 09, 2024: Jeremy Shumate #10, Trevouris Owens #1005, Audreka Everett #1006, Kylene Clickner #1044, Gloria Frank #1050, Rosie Willich #1051, Rebecca Ryan #106, Pedro Perez #1066, Brandy Harvey #1078, David Banegas #1099, Jose Parada #1130, Tiffany Dent #1131, Monique Barnes #117, Juanita Adeeyo #12, Brianna Glover #132, Gail Scruggins #133, Dineen Wolfersheim #138, Cortney Hall #139, Living Truth Ministry Churches Intl Inc #144, Kisya Johnson #145, Jamaree Thomas #153, Crystal Francis #16, Kenneth Law #175, Natia Novak #183, Scott Sanders #198, Ranslah Hurst #199, Living Truth Ministry Churches Intl Inc #2013, Living Truth Ministry Churches Intl Inc #2014, Edison Torres #2039, Andrew Hahn #2046, David Lofton #205, Shanice Kavanagh #2050, Xyreah Pearson #2062, Jennifer Parkinson #2067, Keneth Santos #2077, Tanzy Bell #2106, Lonnie Yancey #2130, Tsianina Smith #2134, Erick Bwenge #2180, Benjamin Palmerlozito #219, David Lofton #221, Michael Hallmark #227, Teddy Bruster #238, Eric Corsey #243, Paul Leboeuf #245, Michael Johnson #255, Erica Pinkney #3003, Qiauna McCraney #3072, Gretchenell Hendrix #3116, Keith Walker #3173, Maria Ruiz #3187, Carol Damron #3189, Tionna Autery #3209, Rashiks Mcfadden #3258, Ty’onna Hollis #63, Devin Lennox #74, Brianna Glover #79, Mary Peters #91. Florida Statute #83.806, JMA Auctioneers, Inc. AB2314, AU1139 Terms of Sale: Cash, 15% Buyer Premium Nov. 14/21, Dec. 5 00 (24-07126D)

FIRST INSERTION

IN THE CIRCUIT COURT OF THE FOURTH JUDICIAL CIRCUIT IN AND FOR DUVAL COUNTY FLORIDA

CIRCUIT CIVIL DIVISION CASE NO.: 16-2023-CA-010046

DIVISION: FC-C

WILMINGTON SAVINGS

FUND SOCIETY, FSB, NOT IN ITS INDIVIDUAL CAPACITY BUT SOLELY AS TRUSTEE OF LODO TRUST I, Plaintiff,

v. MARCUS LAWTON AKA MARCUS DEWAYNE LAWTON, et al., Defendants.

NOTICE OF FORECLOSURE SALE

PURSUANT TO CHAPTER 45

NOTICE OF SALE PURSUANT TO CHAPTER 45 IS HEREBY

GIVEN that, pursuant to the Final Judgment of Mortgage Foreclosure dated July 17, 2024, and an Order Granting Plaintiff’s Motion to Reset Foreclosure Sale dated October 29, 2024, issued in and for Duval County, Florida, in Case No. 16-2023-CA-010046, wherein WILMINGTON SAVINGS FUND SOCIETY, FSB, NOT IN ITS INDIVIDUAL CAPACITY BUT SOLELY AS TRUSTEE OF LODO TRUST I is the Plaintiff, and MARCUS LAWTON AKA

MARCUS DEWAYNE LAWTON, UNKNOWN SPOUSE OF MARCUS D. LAWTON, YOLANDA D. LAWTON, PRITCHARD POINT PROPERTY OWNER`S ASSOCIATION, INC., THE SECRETARY OF HOUSING AND URBAN DEVELOPMENT, UNKNOWN

TENANT #1 and UNKNOWN

TENANT #2 are the Defendants. The Clerk of the Court, JODY PHILLIPS, will sell to the highest and best bidder for cash, in accordance with Section 45.031, Florida Statutes, on January 07, 2025, at electronic sale beginning at 11:00 AM, at: www.duval.realforeclose.com the following-described real prop-

FIRST INSERTION

IN THE CIRCUIT COURT FOR DUVAL COUNTY, FLORIDA

PROBATE DIVISION

File No. 16-2024-CP-003186

Division PR-A IN RE: ESTATE OF RANDALL WAYNE GROGG Deceased.

NOTICE TO CREDITORS

The administration of the estate of Randall Wayne Grogg, deceased, whose date of death was October 18, 2024, is pending in the Circuit Court for Duval County, Florida, Probate Division, the address of which is Duval County Courthouse, 501 West Adams Street, Jacksonville, Florida 32202. The names and addresses of the personal representative and the personal representative’s attorney are set forth below. All creditors of the decedent and other persons having claims or demands against decedent’s estate on whom a copy of this notice is required to be served must file their claims with this court ON OR BEFORE THE LATER OF 3 MONTHS AFTER THE TIME OF THE FIRST PUBLICATION OF THIS NOTICE OR 30 DAYS AFTER THE DATE OF SERVICE OF A COPY OF THIS NOTICE ON THEM.

The personal representative has no duty to discover whether any property held at the time of the decedent’s death by the decedent or the decedent’s surviving spouse is property to which the Florida Uniform Disposition of Community Property Rights at Death Act as described in ss. 732.216732.228, Florida Statutes, applies, or may apply, unless a written demand is made by a creditor as specified under s. 732.2211, Florida Statutes.

All other creditors of the decedent and other persons having claims or demands against decedent’s estate must file their claims with this court WITHIN 3 MONTHS AFTER THE DATE OF THE FIRST PUBLICATION OF THIS NOTICE. ALL CLAIMS NOT FILED WITHIN THE TIME PERIODS SET FORTH IN FLORIDA STATUTES SECTION 733.702 WILL BE FOREVER BARRED. NOTWITHSTANDING THE TIME PERIODS SET FORTH ABOVE, ANY CLAIM FILED TWO (2) YEARS OR MORE AFTER THE DECEDENT’S DATE OF DEATH IS BARRED.

The date of first publication of this notice is November 14, 2024.

Personal Representative: Harley Chase 129 Ocean Gate Drive Atlantic Beach, Florida 32233

Attorney for Personal Representative: Amanda Meyer, Esquire

Attorney Florida Bar Number: 76997 Owenby Law, PA 6136 Atlantic Blvd. Jacksonville, FL 32211

Telephone: (904) 359-5115

Fax: (904) 359-5116

E-Mail: Legal@OwenbyLawFirm.com

erty as set forth in said Final Judgment of Mortgage Foreclosure, to wit: LOT 73, PRITCHARD PLANTATION PHASE 2, ACCORDING TO THE PLAT THEREOF AS RECORDED IN PLAT BOOK 71, PAGE 24, PUBLIC RECORDS OF DUVAL COUNTY, FLORIDA. Property Address: 2357 Sotterley Lane, Jacksonville, FL 32220 ANY PERSON CLAIMING AN INTEREST IN THE SURPLUS FROM THE SALE, IF ANY, OTHER THAN THE PROPERTY OWNER AS OF THE DATE OF THE LIS PENDENS MUST FILE A CLAIM BEFORE THE CLERK REPORTS THE SURPLUS AS UNCLAIMED. Americans With Disabilities Act (ADA) Notice In accordance with the Americans with Disabilities Act of 1990 (ADA), If you are a person with a disability who needs any accommodation in order to participate in this proceeding, you are entitled at no cost to you, to the provision of certain assistance. Please contact the ADA Coordinator at crtintrp@coj.net or (904) 255-1695 at least 7 days before your scheduled court appearance, or immediately upon receiving this notification if the time before the scheduled appearance is less than 7 days; if you are hearing or voice impaired, call 711.

Dated: November 8th, 2024

JODY PHILLIPS CLERK OF THE COURT

By: Alice V. Griffin As Deputy Clerk (Court Seal) HOWARD LAW

4755 Technology Way, Suite 104

Boca Raton, FL 33431

Phone: (954) 893-7874

Fax: (888) 235-0017

E-Mail: Pleadings@HowardLaw.com Harris@HowardLaw.com Counsel for Plaintiff Nov. 14/21 00 (24-07192D)

FIRST INSERTION

IN THE CIRCUIT COURT OF THE FOURTH JUDICIAL CIRCUIT, IN AND FOR DUVAL COUNTY, FLORIDA PROBATE DIVISION

File No.: 16-2024-CP-003115 Division: PR-B IN RE: THE ESTATE OF NADJUA NICOLE TANNER, Deceased.

NOTICE TO CREDITORS

The administration of the estate of Nadjua Nicole Tanner, deceased, whose date of death was June 9, 2024, is pending in the Circuit Court for Duval County, Florida, Probate Division, the address of which is 501 W. Adams St., Jacksonville, FL 32202. The names and addresses of the personal representative and the personal representative’s attorney are set forth below.

All creditors of the Decedent and other persons having claims or demands against Decedent’s estate on whom a copy of this notice is required to be served must file their claims with this Court WITHIN THE LATER OF 3 MONTHS AFTER THE TIME OF THE FIRST PUBLICATION OF THIS NOTICE OR 30 DAYS AFTER THE DATE OF SERVICE OF A COPY OF THIS NOTICE ON THEM.

All other creditors of the Decedent and other persons having claims or demands against Decedent’s estate must file their claims with this Court WITHIN 3 MONTHS AFTER THE DATE OF THE FIRST PUBLICATION OF THIS NOTICE.

The personal representative has no duty to discover whether any property held at the time of the decedent’s death by the decedent or the decedent’s surviving spouse is property to which the Florida Uniform Disposition of Community Property Rights at Death Act as described in ss. 732.216732.228, applies, or may apply, unless a written demand is made by a creditor as specified under s. 732.2211, Florida Statutes.

ALL CLAIMS NOT FILED WITHIN THE TIME PERIODS SET FORTH IN SECTION 733.702 OF THE FLORIDA PROBATE CODE WILL BE FOREVER BARRED. NOTWITHSTANDING THE TIME PERIODS SET FORTH ABOVE, ANY CLAIM FILED TWO (2) YEARS OR MORE AFTER THE DECEDENT’S DATE OF DEATH IS BARRED.

The date of first publication of this notice is November 14, 2024. Personal Representative Larry J. Smith, Jr. 11011 Harts Rd., Apt. 113 Jacksonville, FL 32218

THE HINSON LAW FIRM, P.A.

Matthew H. Hinson, Esq. Florida Bar No. 94017

Kathryn E. Stanfill, Esq.

Florida Bar No. 1002636

300 West Adams St., Suite 500 Jacksonville, FL 32202

Phone: 904-527-1700

Secondary E-Mail: Service@OwenbyLawFirm.com Nov. 14/21 00 (24-07188D)

IN THE COUNTY COURT OF THE 4TH JUDICIAL CIRCUIT IN AND FOR DUVAL COUNTY, FLORIDA CASE NO.: 16-2024-CC-016311

DIVISION: CC-J

TOWNHOMES OF KENDALL POINTE HOMEOWNERS ASSOCIATION, INC., Plaintiff, v. UNKNOWN HEIRS, BENEFICIARIES OR DEVISEES OF THE ESTATE OF VICKI J. WATSON, DAVID WATSON, DONNA SANDY WATSON, Defendants.

NOTICE OF ACTION TO: UNKNOWN HEIRS, BENEFICIARIES OR DEVISEES OF THE ESTATE OF VICKI J. WATSON, (Last Known Address Unknown) DONNA SANDY WATSON 248 Duffield Street, APT 7D Brooklyn, NY 11201-4760 (Last Known Address)

YOU ARE NOTIFIED that an action to foreclose a lien upon the following described property in Duval County, Florida which has been filed against Defendants, UNKNOWN HEIRS, BENEFICIARIES OR DEVISEES OF THE ESTATE OF VICKI J. WATSON, and DONNA SANDY WATSON: Lot 118, KENDALL POINTE TOWNHOMES, according to the plat thereof recorded in Plat Book 58, Pages 195, 196, 197, 198, and 199, Public Records of Duval County, Florida. Street Address: 1488 Fieldview Drive, Jacksonville, Florida 32225.

FIRST INSERTION

IN THE CIRCUIT COURT FOR DUVAL COUNTY, FLORIDA PROBATE DIVISION File No. 16-2024-CP-003190 Division PR-A IN RE: ESTATE OF NORMAN RIPTON ATWOOD Deceased.

NOTICE TO CREDITORS

The administration of the estate of Norman Ripton Atwood, deceased, whose date of death was September 17, 2024, is pending in the Circuit Court for Duval County, Florida, Probate Division, the address of which is Duval County Courthouse, 501 West Adams Street, Jacksonville, Florida 32202. The names and addresses of the personal representative and the personal representative’s attorney are set forth below.

All creditors of the decedent and other persons having claims or demands against decedent’s estate on whom a copy of this notice is required to be served must file their claims with this court ON OR BEFORE THE LATER OF 3 MONTHS AFTER THE TIME OF THE FIRST PUBLICATION OF THIS NOTICE OR 30 DAYS AFTER THE DATE OF SERVICE OF A COPY OF THIS NOTICE ON THEM.

The personal representative has no duty to discover whether any property held at the time of the decedent’s death by the decedent or the decedent’s surviving spouse is property to which the Florida Uniform Disposition of Community Property Rights at Death Act as described in ss. 732.216732.228, Florida Statutes, applies, or may apply, unless a written demand is made by a creditor as specified under s. 732.2211, Florida Statutes. All other creditors of the decedent and other persons having claims or demands against decedent’s estate must file their claims with this court WITHIN 3 MONTHS AFTER THE DATE OF THE FIRST PUBLICATION OF THIS NOTICE. ALL CLAIMS NOT FILED WITHIN THE TIME PERIODS SET FORTH IN FLORIDA STATUTES SECTION 733.702 WILL BE FOREVER BARRED.

NOTWITHSTANDING THE TIME PERIODS SET FORTH ABOVE, ANY CLAIM FILED TWO (2) YEARS OR MORE AFTER THE DECEDENT’S DATE OF DEATH IS BARRED.

The date of first publication of this notice is November 14, 2024.

Personal Representative: June L. Long 10946 Kuralei Drive Jacksonville, Florida 32246

Fax: 904-355-8088 Matt@HinsonLawPA.com Kathryn@HinsonLawPA.com Attorney for Personal Representative Nov. 14/21 00 (24-07186D)

and you are required to serve a copy of your written defenses, if any, to it, on Daniel Wasserstein, Esq., Plaintiff’s Attorney, WASSERSTEIN, P.A. 301 Yamato Road, Suite 2199, Boca Raton, Florida 33431, Tel.: (561) 288-3999, Fax: (561) 288-4999, E-Mail: danw@ wassersteinpa.com, within thirty (30) days after the first publication of this Notice in the Jacksonville Daily Record and file the original with the Clerk of Court at Duval County Courthouse, 501 West Adams Street, Jacksonville, FL 32202 either before service on Plaintiff’s attorney or immediately thereafter; otherwise a Default will be entered against you for the relief demanded in the Complaint. Americans With Disabilities Act (ADA) Notice In accordance with the Americans with Disabilities Act of 1990 (ADA), If you are a person with a disability who needs any accommodation in order to participate in this proceeding, you are entitled at no cost to you, to the provision of certain assistance. Please contact the ADA Coordinator at crtintrp@coj.net or (904) 2551695 at least 7 days before your scheduled court appearance, or immediately upon receiving this notification if the time before the scheduled appearance is less than 7 days; if you are hearing or voice impaired, call 711. WITNESS my hand and the seal of this Court this 8th day of November, 2024.

JODY PHILLIPS As

(Court Seal) Nov. 14/21 00 (24-07190D)

DUVAL COUNTY

FIRST INSERTION IN THE CIRCUIT COURT OF THE 4th JUDICIAL CIRCUIT IN AND FOR DUVAL COUNTY, FLORIDA PROBATE DIVISION CASE NO.: 16-2024-CP-003054

DIVISION: PR-A IN RE: ESTATE OF JAMES JONES, III, Deceased.

NOTICE TO CREDITORS

The administration of the estate of James Jones, III, deceased, whose date of death was March 17, 2024, is pending in the Circuit Court for Duval County, Florida, Probate Division, the address of which is 501 W. Adams Street, Jacksonville, FL 32202. The names and addresses of the personal representative and the personal representative’s attorney are set forth below.

All creditors of the decedent and other persons having claims or demands against decedent’s estate on whom a copy of this notice is required to be served must file their claims with this court ON OR BEFORE THE LATER OF 3 MONTHS AFTER THE TIME OF THE FIRST PUBLICATION OF THIS NOTICE OR 30 DAYS AFTER THE DATE OF SERVICE OF A COPY OF THIS NOTICE ON THEM.

Attorney for Personal Representative: Amanda Meyer, Esquire Attorney Florida Bar Number: 76997 Owenby Law, PA 6136 Atlantic Blvd. Jacksonville, FL 32211 Telephone: (904) 359-5115

Fax: (904) 359-5116

E-Mail: Legal@OwenbyLawFirm.com

Secondary E-Mail: Service@OwenbyLawFirm.com Nov. 14/21 00 (24-07187D)

The personal representative has no duty to discover whether any property held at the time of the decedent’s death by the decedent or the decedent’s surviving spouse is property to which the Florida Uniform Disposition of Community Property Rights at Death Act as described in ss. 732.216732.228, Florida Statutes, applies, or may apply, unless a written demand is made by a creditor as specified under s. 732.2211, Florida Statutes. All other creditors of the decedent and other persons having claims or demands against decedent’s estate must file their claims with this court WITHIN 3 MONTHS AFTER THE DATE OF THE FIRST PUBLICATION OF THIS NOTICE. ALL CLAIMS NOT FILED WITHIN THE TIME PERIODS SET FORTH IN FLORIDA STATUTES SECTION 733.702 WILL BE FOREVER BARRED. NOTWITHSTANDING THE TIME PERIODS SET FORTH ABOVE, ANY CLAIM FILED TWO (2) YEARS OR MORE AFTER THE DECEDENT’S DATE OF DEATH IS BARRED. The date of first publication of this notice is November 14, 2024. KATRINA WILLIAMS Personal Representative 3328 Thomas Street Jacksonville, FL 32254 HUNG V. NGUYEN, ESQ. Florida Bar Number 597260 THE NGUYEN LAW FIRM Attorneys for the Personal Representative 2020 Ponce de Leon Blvd., Suite 1105B Coral Gables, FL 33134 Phone: (786) 600-2530 Fax: (844) 838-5197 E-mail: hung@nguyenlawfirm.net Nov. 14/21 00 (24-07184D)

FIRST INSERTION

IN THE COUNTY COURT, FOURTH JUDICIAL DISTRICT, IN AND FOR, DUVAL .COUNTY, FLORIDA CASE NO.: 16-2023-CC-008769

DIVISION: CC-I

HIDDEN HILLS COUNTRY CLUB ESTATES HOMEOWNERS ASSOCIATION, INC. Plaintiff, vs. DAWN DANA Defendants.

NOTICE OF SALE

Notice is given that pursuant to a Final Judgment of Foreclosure entered on November 8, 2024, in the above styled civil action of the County Court, in and for Duval County, Florida, in which DAWN DANA is the Defendant, and HIDDEN HILLS COUNTRY CLUB ESTATES HOMEOWNERS ASSOCIATION, INC., is the Plaintiff. The property will sell to the highest bidder for cash at 11:00 a.m. on February 4, 2025 on Duval County’s Public Auction website: www.duval.realforeclose.com in accordance with Chapter 45, Florida Statutes. Any person claiming an interest in the surplus from the sale, if any, other than the property owner as of the date of the lis pendens must file a claim before the clerk reports the surplus as unclaimed. The property to be sold as set forth in the Summary Final Judgment of Foreclosure is more particularly described as: Lot# 6, HIDDEN HILLS COUNTRY CLUB, accord-

ing to. the plat thereof as recorded in Plat Book 43, Pages 24, 24A and 24B, of the current public records of Duval County, Florida. 12506 Mission Hills Drive South , Jacksonville, FL 32225 Any person claiming an interest in the surplus from the sale, if any, other than the property owner as of the date of the lis pendens, must file a claim before the clerk reports the surplus as unclaimed. Americans With Disabilities Act (ADA) Notice In accordance with the Americans with Disabilities Act of 1990 (ADA), If you are a person with a disability who needs any accommodation in order to participate in this proceeding, you are entitled at no cost to you, to the provision of certain assistance. Please contact the ADA Coordinator at crtintrp@coj.net or (904) 2551695 at least 7 days before your scheduled court appearance, or immediately upon receiving this notification if the time before the scheduled appearance is less than 7 days; if you are hearing or voice impaired, call 711. Dated this 8th day of November, 2024.

JODY PHILLIPS CLERK OF COUNTY COURT By: Alice V. Griffin Deputy Clerk (Court Seal) Plaintiff’s Attorney: Crabtree Law Group, P.A., 8777 San Jose Boulevard, Bldg. A, Ste 200, Jacksonville, FL 32217 Nov. 14/21 00 (24-07191D)

PUBLIC NOTICES

FIRST INSERTION

NOTICE

Extra Space Storage, on behalf of itself or its affiliates, Life Storage or Storage Express, will hold a public auction to sell personal property described below belonging to those individuals listed below at the location indicated: 14130 Beach Blvd Jacksonville Fl, 32250. 12/03/2024 at 12:30pm Jessica Hayneshousehold goods, furniture

The auction will be listed and advertised on www.storagetreasures.com. Purchases must be made with cash only and paid at the above referenced facility in order to complete the transaction.

Extra Space Storage may refuse any bid and may rescind any purchase up until the winning bidder takes possession of the personal property. Nov. 14/21 00 (24-07171D)

FIRST INSERTION

NOTICE OF ONLINE PUBLIC SALE

Pursuant to Florida Statutes 83.801 - 83.809, notice is given that the units listed below will be advertised and sold by competitive bidding on www.storagetreasures.com to satisfy the owner’s Lien. The units will be advertised from November 14, 2024 through November 21, 2024.

A008 -Darleen Hickson

A046 - Yolanda Varnes

B002 - Dale Bates-Kirzy

B046 - Carl Matthews

B081 - John Dillon

The bidding will CONCLUDE and sale will be deemed FINAL upon the owner’s acceptance of a bid on MONDAY, DECEMBER 16TH at 11:00AM. The owner reserves the right to dispose of the unit’s contents as deemed necessary and/or to reject all bids if the Lien Reserve is not met. Nov. 14/21 00 (24-07181D)

FIRST INSERTION IN THE CIRCUIT COURT, IN THE FOURTH JUDICIAL CIRCUIT, IN AND FOR DUVAL COUNTY, FLORIDA CASE NO.: 16-2024-CP-000390 DIVISION: PR-A

In re the Estate of JOYCE M ANDERSON SAMUEL Deceased. NOTICE TO CREDITORS (Formal Administration) TO ALL PERSONS HAVING CLAIMS OR DEMANDS AGAINST THE ABOVE ESTATE:

You are hereby notified that an Order of Formal Administration will be entered in the estate of d Joyce M. Anderson Samuel, deceased, Duval County Court Case Number 16-2024-CP000390, Division PR-A, by the Circuit Court for Duval County, Florida, Probate Division, the address of which is 501 West Adams Street, Jacksonville, Florida 32202; that the decedent’s date of death was October 10 2023; that the total value of the estate is greater than $1,000.00 and that the names and addresses of those to whom it will be assigned by such order are: (1) Matthew L. Wolfe, 2114 Oak Street, Jacksonville, FL 32204 ALL INTERESTED PERSONS ARE NOTIFIED THAT: All creditors of the estate of the decedent and persons having claims or demands against the estate of the decedent other than those for whom provision for full payment will be made in the Order

of Formal Administration must file their claims with this court WITHIN THE TIME PERIODS SET FORTH IN FLORIDA STATUTES SECTION 733.702. ALL CLAIMS AND DEMANDS NOT SO FILED WILL BE FOREVER BARRED. NOTWITHSTANDING ANY OTHER APPLICABLE TIME PERIOD, ANY CLAIM FILED TWO (2) YEARS OR MORE AFTER THE DECEDENT’S DATE OF DEATH IS BARRED.

The Petitioner has no duty to discover whether any property held at the time of the decedent’s death by the decedent or the decedent’s surviving spouse is property to which the Florida Uniform Disposition of Community Property Rights at Death Act as described in sections 732.216-732.228, Florida Statutes, applies, or may apply, unless a written demand is made by a creditor as specified under section 732.2211, Florida Statutes.

The date of first publication of this Notice is November 14, 2024.

Person Giving Notice: Chamen Samuel, PETITIONER

Attorney for Person Giving Notice: MATTHEW L. WOLFE, Attorney for Petitioner Florida Bar Number: 31455 2114 Oak Street Jacksonville, FL 32204

Telephone: (904) 374-0111

Fax: (904) 374-0113

E-Mail: mwolfelaw@gmail.com Nov. 14/21 00 (24-07202D)

FIRST INSERTION

IN THE CIRCUIT COURT OF THE FOURTH JUDICIAL

CIRCUIT IN AND FOR DUVAL COUNTY FLORIDA

CIRCUIT CIVIL DIVISION CASE NO.: 16-2024-CA-003899

DIVISION: FC-C AFL HECM LLC , Plaintiff, v. BRENDA L. SINGLETON, et al., Defendants. NOTICE OF ACTION

TO: WILLIE MATTHEWS

Last Known Address: 8805 Brierwood Road, Jacksonville, FL 32257

VENIE COLLETON

Last Known Address: 8324 Delaware Avenue, Jacksonville, FL 32208

EDWARD MATTHEWS, JR.

Last Known Address: 12239 Governors Drive E, Jacksonville, FL 32223

CLEOPHUS T.

MATTHEWS

Last Known Address: 12239 Governors Drive E, Jacksonville, FL 32223

CLARENCE J. MATTHEWS Last Known Address: 12239 Governors Drive E, Jacksonville, FL 32223

DEVELYN MATTHEWS SMITH

Last Known Address: 211 Putnam Loop Road, Melrose, FL 32666

DAREN D. SINGLETON

Last Known Address: 4915 Baymeadows Road, Unit 12D, Jacksonville, FL 32217

LINDSEY L. UNDERWOOD

Last Known Address: 4240 Migration Dr Unit 2 Jacksonville FL 32257 8153

JOYCE E. HAMPTON

Last Known Address: 12239 Governors Drive E, Jacksonville, FL 32223

YOU ARE HEREBY NOTIFIED that an action to foreclosure a mortgage on the following property located in Duval County, Florida: A portion of Government Lot 8, Section 13, Township 4 South, Range 26 East, Duval County, Florida and being more particularly described as follows:

FIRST INSERTION

IN THE CIRCUIT COURT, FOURTH JUDICIAL CIRCUIT, IN AND FOR DUVAL COUNTY, FLORIDA PROBATE DIVISION CASE No.: 16-2024-CP-001833 DIVISION: PR-B

IN RE: ESTATE OF ARLENE MARIE GOOSSEN, a/k/a ARLENE GOOSSEN, Deceased.

NOTICE TO CREDITORS

The administration of the estate of ARLENE MARIE GOOSSEN, a/k/a ARLENE GOOSSEN, deceased, whose date of death was May 8, 2024, is pending in the Circuit Court, for Duval County, Florida, Probate Division, the address of which is 501 West Adams St., Jacksonville, Florida 32202. The names and addresses of the personal representative and the personal representative’s attorney are set forth below.

All creditors of the decedent and other persons having claims or demands against decedent’s estate on whom a copy of this notice is required to be served must file their claims with this court ON OR BEFORE THE LATER OF 3 MONTHS AFTER THE TIME OF THE FIRST PUBLICATION OF THIS NOTICE OR 30 DAYS AFTER THE DATE OF SERVICE OF A COPY OF THIS NOTICE ON THEM.

The personal representative has no duty to discover whether any property held at the time of the decedent’s death by the decedent or the decedent’s surviving spouse is property to which the Florida Uniform Disposition of Commu-

FIRST INSERTION IN THE CIRCUIT COURT, FOURTH JUDICIAL CIRCUIT, IN AND FOR DUVAL COUNTY, FLORIDA

PROBATE DIVISION CASE NO.: 16-2024-CP-001101

DIVISION: PR-B

IN RE: THE ESTATE OF RAMONA ANNETTE HEWIETT, aka RAMONA A. HEWIETT Deceased.

NOTICE TO CREDITORS (Testate)

The administration of the Estate of RAMONA ANNETTE HEWIETT aka RAMONA A. HEWIETT, deceased, file number 16-2024CP-001101, has been filed in the Circuit Court for Duval County, Florida, Probate Division, located at 501 W. Adams Street, Jacksonville, FL 32202. The names and addresses of the petitioner and petitioner’s attorney are set forth below.

Commence at the Northeast corner of said Government Lo t 8, Section 13; thence South 00 degrees 10 minutes 02 seconds East, 33.00 feet to the South right of way line of Orange Picker Road; thence South 88 degrees 37 minutes 00 seconds West and on said South right of way line, 524.04 feet to the intersection of said South right of way line with the East right of way line of Governors Drive East (proposed) thence South 00 degrees 07 minutes 30 seconds East and on said East right of way line, 364.37 feet to the Point of Beginning; thence continue South 00 degrees 07 minutes 30 seconds East and on said East right of way line, 90.95 feet; thence South 89 degrees 36 minutes 20 seconds West, 159.72 feet to the Point of Beginning including the buildings, appurtenances, and fixture located thereon.

Property Address: 12239 Governors Drive E, Jacksonville, FL 32223 (the “Property”). filed against you and you are required to serve a copy of your written defenses, if any, to it on HARRIS S. HOWARD, ESQ., of HOWARD LAW, Plaintiff’s attorney, whose address is 4755 Technology Way, Suite 104 Boca Raton, FL 33431 no later than 30 days from the date of the first publication of this Notice of Action and file the original with the Clerk of this Court either before service on Plaintiff’s attorney or immediately thereafter; otherwise a default will be entered against you for the relief demanded in the Complaint or petition filed herein.

WITNESS my hand and seal of this Court at Duval, Florida on this 13th day of November, 2024. JODY PHILLIPS DUVAL CLERK OF COURT DUVAL COUNTY CLERK OF COURT By: Alice V. Griffin Deputy Clerk (Court Seal) Nov. 14/21 00 (24-07209D)

nity Property Rights at Death Act as described in sections 732.216732.228, applies, Florida Statutes, applies, or may apply, unless a written demand is made by a creditor as specified under section 732.2211, Florida Statutes.

All other creditors of the decedent and other persons having claims or demands against decedent’s estate must file their claims with this court WITHIN 3 MONTHS AFTER THE DATE OF THE FIRST PUBLICATION OF THIS NOTICE.

ALL CLAIMS NOT FILED WITHIN THE TIME PERIODS SET FORTH IN FLORIDA STATUTES SECTION 733.702 WILL BE FOREVER BARRED. NOTWITHSTANDING THE TIME PERIODS SET FORTH ABOVE, ANY CLAIM FILED TWO (2) YEARS OR MORE AFTER THE DECEDENT’S DATE OF DEATH IS BARRED. The date of first publication of this Notice is November 14, 2024. Personal Representative: BETHANY M. TITO 5235 SW 153rd Avenue, Miami, Florida 33185

Attorney for Personal Representative: ROBERT N. MILLER, ESQUIRE

Florida Bar No. 042102 Fisher, Tousey, Leas & Ball 501 Riverside Avenue, Suite 700 Jacksonville, Florida 32202

Telephone: (904) 356-2600

E-Mail:

RMiller@fishertousey.com

Attorney for Personal Representative Nov. 14/21 00 (24-07185D)

FIRST INSERTION IN THE CIRCUIT COURT FOR DUVAL COUNTY, FLORIDA PROBATE DIVISION

File No. 16-2024-CP-000318 Division: PR-B IN RE: ESTATE OF MARGARET W. KELLY (AKA MARGARET KELLY & MARGARET WOODRUFF KELLY Deceased.

NOTICE TO CREDITORS

The administration of the estate of Margaret W. Kelly (AKA Margaret Kelly & Margaret Woodruff Kelly deceased, whose date of death was August 8, 2024 , is pending in the Circuit Court 501 West Adams Street, Room 1173, Jacksonville, FL 32202. The names and addresses of the personal representative and the personal representative’s attorney are set forth below.

All persons having claims or demands against the estate are notified that an order of summary administration has been entered by the court. The estate consisted of the exempt homestead real property and the person(s) to whom it was assigned are:

James Keith Hewiett, 334 Brunswick Road, Jacksonville, FL 32216

Dennis Craig Hewiett, 1148 Sawyer Wood Drive, Jacksonville, FL 32221

Lisa Anne Hewiett, 8562 Lake Marietta Drive S., Jacksonville, FL 32220

All claims against the estate must be filed within the time periods set forth in §733.702, Florida Statutes, to wit: within the later of 3 months after the date of the first publication of the notice of administration, or as to any creditor required to be served with a copy of this notice, 30 days after the date of service of such copy of the notice on the creditor or be forever barred.

A personal representative or curator has no duty to discover whether any property held at the time of the decedent’s death by the decedent or the decedent’s surviving spouse is property to which the Florida Uniform Disposition of Community Property Rights at Death Act as described in sections 732.216-732.228, applies, or may apply, unless a written demand is made by a creditor as specified under section 732.2211.

THE DATE OF FIRST PUBLICATION OF THIS NOTICE IS: NOVEMBER 14, 2024.

/s/ James Keith Hewiett

JAMES KEITH HEWIETT, Petitioner 334 Brunswick Road Jacksonville, FL 32216 /s/ Donald W. Matthews

DONALD W. MATTHEWS, ESQUIRE

Florida Bar No.: 131997

7952-1A Normandy Blvd. Jacksonville, FL 32221

Phone: (904) 695-3002

Email: donaldmatthewslaw@ bellsouth.net

Attorney for Petitioner Nov. 14/21 00 (24-07130D)

All creditors of the decedent and other persons having claims or demands against decedent’s estate on whom a copy of this notice is required to be served must file their claims with this court ON OR BEFORE THE LATER OF 3 MONTHS AFTER THE TIME OF THE FIRST PUBLICATION OF THIS NOTICE OR 30 DAYS AFTER THE DATE OF SERVICE OF A COPY OF THIS NOTICE ON THEM.

All other creditors of the decedent and other persons having claims or demands against decedent’s estate must file their claims with this court WITHIN 3 MONTHS AFTER THE DATE OF THE FIRST PUBLICATION OF THIS NOTICE.

ALL CLAIMS NOT FILED WITHIN THE TIME PERIODS SET FORTH IN FLORIDA STATUTES SECTION 733.702 WILL BE FOREVER BARRED. NOTWITHSTANDING THE TIME PERIODS SET FORTH ABOVE, ANY CLAIM FILED TWO (2) YEARS OR MORE AFTER THE DECEDENT’S DATE OF DEATH IS BARRED.

A Personal Representative or Curator has no duty to discover whether any property held at the time of the Decedent’s death by the Decedent or the Decedent’s surviving spouse is property to which the Florida Uniform Disposition of Community Property Rights at death Act as described in ss. 732.216-732.228 applies, or may apply, unless a written demand is made by a Creditor, as specified under s. 732.2211.

The date of first publication of this notice is November 14, 2024.

Personal Representative: Mary Bruce Kelly 105 Edgevale Road Baltimore, MD 21210

Attorney for Personal Representative: Brian D. Sims, Esquire

Email Addresses: jrobinson@simscampbell.law kosiecki@simscampbell.law Florida Bar No. FL 1028615 Sims & Campbell, LLC

500 York Rd., Towson, MD 21204

Telephone: (410) 828-7775 Nov. 14/21 00 (24-07198D)

DUVAL COUNTY

FIRST INSERTION

IN THE CIRCUIT COURT FOR DUVAL COUNTY, FLORIDA PROBATE DIVISION

File No. 16-2024-CP-003185 Division PR-B IN RE: ESTATE OF ANGELA M. LOMBARDO Deceased.

NOTICE TO CREDITORS

The administration of the estate of Angela M. Lombardo, deceased, whose date of death was July 29, 2024, is pending in the Circuit Court for Duval County, Florida, Probate Division, the address of which is 501 West Adams Street, Jacksonville, FL 32202. The names and addresses of the personal representative and the personal representative’s attorney are set forth below. All creditors of the decedent and other persons having claims or demands against decedent’s estate on whom a copy of this notice is required to be served must file their claims with this court ON OR BEFORE THE LATER OF 3 MONTHS AFTER THE TIME OF THE FIRST PUBLICATION OF THIS NOTICE OR 30 DAYS AFTER THE DATE OF SERVICE OF A COPY OF THIS NOTICE ON THEM.

The personal representative has no duty to discover whether any property held at the time of the decedent’s death by the decedent or the decedent’s surviving spouse is property to which the Florida Uniform Disposition of Community Property Rights at Death Act as described in ss. 732.216732.228, Florida Statutes, applies,

FIRST INSERTION

IN THE CIRCUIT COURT OF THE FOURTH JUDICIAL CIRCUIT, IN AND FOR DUVAL COUNTY, FLORIDA File No: 16-2024-CP-002242

DIVISION: PR-A

IN RE: ESTATE OF Darlene Campbell, Deceased. NOTICE TO CREDITORS

The administration of the estate of Darlene Campbell, deceased, whose date of death was July 3rd, 2024, is pending in the Circuit Court for Duval County, Florida, Probate Division, the address of which is Clerk of the Circuit Court, Duval County Courthouse, 501 W. Adams Street Jacksonville, Florida 32202. The names and addresses of the personal representative and the personal representative’s attorney are set forth below.

All creditors of the decedent and other persons having claims or demands against decedent’s estate on whom a copy of this notice is required to be served must file their claims with this court WITHIN THE LATER OF 3 MONTHS AFTER THE TIME OF THE FIRST PUBLICATION OF THIS NOTICE OR 30 DAYS AFTER THE DATE OF SERVICE OF A COPY OF THIS NOTICE ON THEM.

All other creditors of the decedent and other persons having claims or demands against decedent’s estate must file their claims with this court WITHIN 3 MONTHS AFTER THE DATE OF THE FIRST PUBLICATION OF THIS NOTICE. ALL CLAIMS NOT FILED WITHIN THE TIME PERIODS SET FORTH IN SECTION 733.702 OF THE FLORIDA PROBATE CODE WILL BE FOREVER BARRED. NOTWITHSTANDING THE TIME PERIODS SET FORTH ABOVE, ANY CLAIM FILED TWO (2) YEARS OR MORE AFTER THE DECEDENT’S DATE OF DEATH IS BARRED.

A personal representative or curator has no duty to discover whether any property held at the time of the decedent’s death by the decedent or the decedent’s surviving spouse is property to which the Florida Uniform Disposition of Community Property Rights at Death Act as described in sections 732.216-732.228, applies, or may apply, unless a written demand is made by a creditor as specified under section 732.2211. The date of first publication of this notice is November 14, 2024.

Personal Representative: s/Jason P. Campbell Jason P. Campbell 12724 Gran Bay Parkway W. Ste, 410, Jacksonville, Florida 32258

Attorney for Personal Representative: s/ Christopher J. Kinnaman Christopher J. Kinnaman, Esquire Florida Bar No.: 0114609 12724 Gran Bay Parkway West, Suite 410 Jacksonville, Florida 32258 Telephone: (904) 615-6621 Chris@Postillionlaw.com Nov. 14/21 00 (24-07201D)

or may apply, unless a written demand is made by a creditor as specified under s. 732.2211, Florida Statutes.

All other creditors of the decedent and other persons having claims or demands against decedent’s estate must file their claims with this court WITHIN 3 MONTHS AFTER THE DATE OF THE FIRST PUBLICATION OF THIS NOTICE. ALL CLAIMS NOT FILED WITHIN THE TIME PERIODS SET FORTH IN FLORIDA STATUTES SECTION 733.702 WILL BE FOREVER BARRED. NOTWITHSTANDING THE TIME PERIODS SET FORTH ABOVE, ANY CLAIM FILED TWO (2) YEARS OR MORE AFTER THE DECEDENT’S DATE OF DEATH IS BARRED. The date of first publication of this notice is November 14, 2024. Personal Representative: Karen M. Gallagher 33 Central Court Tarpon Springs, Florida 34689 Attorney for Personal Representative: G. Michael Mackenzie

Attorney Florida Bar Number: 151881 2032 Bayshore Blvd. Dunedin, FL 34698

Telephone: (727) 733-1722

Fax: (727) 733-1717

E-Mail: mike@mike-mackenzie.com

Secondary E-Mail: gmike997@gmail.com Nov. 14/21 00 (24-07200D)

FIRST INSERTION IN THE CIRCUIT COURT, FOURTH JUDICIAL CIRCUIT, IN AND FOR DUVAL COUNTY, FLORIDA PROBATE DIVISION FILE NO.: 16-2024-CP-003041

DIVISION: PR-B IN RE: ESTATE OF BARBARA B. JOCHER, Deceased. NOTICE TO CREDITORS The administration of the estate of Barbara B. Jocher, deceased, whose date of death was September 28, 2024, is pending in the Circuit Court for Duval County, Florida, Probate Division, the address of which is 501 West Adams Street, Jacksonville, Florida 32202. The names and addresses of the personal representative and the personal representative’s attorney are set forth below.

All creditors of the decedent and other persons having claims or demands against decedent’s estate on whom a copy of this notice is required to be served must file their claims with this court ON OR BEFORE THE LATER OF 3 MONTHS AFTER THE TIME OF THE FIRST PUBLICATION OF THIS NOTICE OR 30 DAYS AFTER THE DATE OF SERVICE OF A COPY OF THIS NOTICE ON THEM. All other creditors of the decedent and other persons having claims or demands against decedent’s estate must file their claims with this court WITHIN 3 MONTHS AFTER THE DATE OF THE FIRST PUBLICATION OF THIS NOTICE. The personal representative has no duty to discover whether any property held at the time of the decedent’s death by the decedent or the decedent’s surviving spouse is property to which the Florida Uniform Disposition of Community Property Rights at Death Act as described in ss. 732.216732.228, applies, or may apply, unless a written demand is made by a creditor as specified under s. 732.2211, Florida Statutes. ALL CLAIMS NOT FILED WITHIN THE TIME PERIODS SET FORTH IN FLORIDA STATUTES SECTION 733.702 WILL BE FOREVER BARRED. NOTWITHSTANDING THE TIME PERIODS SET FORTH ABOVE, ANY CLAIM FILED TWO (2) YEARS OR MORE AFTER THE DECEDENT’S DATE OF DEATH IS BARRED. The

PUBLIC NOTICES

STATE OF NORTH CAROLINA COUNTY OF CABARRUS IN THE GENERAL COURT OF JUSTICE DISTRICT COURT DIVISION

IN RE:

A.R.M. DOB: October 22, 2019

24JA000178-120

A.R.P. DOB: October 17, 2017

24JA000179-120

minor children

Mother: Eva Nichole Melton

NOTICE OF PROCESS AND SERVICE OF PROCESS BY PUBLICATION

To: the father, DUSTIN JEFFERY PRINCE, of the minor children: A.R.P.

NOTICE OF PUBLIC HEARING NOTICE IS HEREBY GIVEN THAT ON TUESDAY, THE 26TH DAY OF NOVEMBER, A.D., 2024, AT 5:00 O’CLOCK P.M., THE COUNCIL OF THE CITY OF JACKSONVILLE WILL HOLD A PUBLIC HEARING IN COUNCIL CHAMBER, TO CONSIDER THE FOLLOWING PROPOSED ORDINANCES

2024-871 AN ORDINANCE RELATING TO THE COUNCIL RULES; AMENDING COUNCIL RULE 4.505 (DISRUPTION OF MEETING), PART 5 (RULES OF DECORUM), CHAPTER 4 (PROCEDURES), COUNCIL RULES, TO CLARIFY THE RULE REGARDING DISPLAY OR WAVING OF SIGNS DURING COUNCIL MEETINGS; PROVIDING AN EFFECTIVE DATE. 2024-872 AN ORDINANCE RELATING TO THE COUNCIL RULES; AMENDING COUNCIL RULE 2.211 (PRESIDENT AS EX OFFICIO MEMBER), PART 2 (COMMITTEE PROCEDURE), CHAPTER 2 (COMMITTEES), COUNCIL RULES, TO AUTHORIZE THE COUNCIL VICE PRESIDENT TO SERVE AS AN EX-OFFICIO MEMBER OF A STANDING, SPECIAL OR SELECT COMMITTEE IN THE SAME MANNER AS THE COUNCIL PRESIDENT SUBJECT TO CERTAIN LIMITATIONS; PROVIDING AN EFFECTIVE DATE. 2024-873 AN ORDINANCE APPROPRIATING $75,000 FROM A GENERAL FUND OPERATING CONTINGENCY ACCOUNT TO THE GENERAL FUND OPERATING, SUBSIDIES AND CONTRIBUTIONS TO PRIVATE ORG ACCOUNT, TO PROVIDE CITY GRANT FUNDING TO FAMILY NURTURING CENTER OF FLORIDA, INC. (“FNC”) FOR THE VISITATION SLIDING SCALE PROGRAM (THE “PROGRAM”) AS DESCRIBED HEREIN; INVOKING THE EXEMPTION IN SECTION 126.108(G) (EXEMPTIONS FROM COMPETITIVE SOLICITATION), PART 1 (GENERAL REGULATIONS; ETHICS AND TRANSPARENCY IN PUBLIC CONTRACTING), CHAPTER 126 (PROCUREMENT CODE), ORDINANCE CODE, TO ALLOW FOR A DIRECT CONTRACT WITH FNC FOR THE PROGRAM; WAIVING SECTION 118.107 (NONPROFITS TO RECEIVE FUNDING THROUGH A COMPETITIVE EVALUATED AWARD PROCESS), PART 1 (GENERAL PROVISIONS), CHAPTER 118 (CITY GRANTS), ORDINANCE CODE, TO ALLOW FOR A DIRECT CONTRACT WITH FAMILY NURTURING CENTER OF FLORIDA, INC.; WAIVING CERTAIN PROVISIONS OF SECTION 118.301 (EXPENDITURE OF APPROPRIATED FUNDS), PART 3 (ADMINISTRATION OF CITY GRANTS), CHAPTER 118 (CITY GRANTS), ORDINANCE CODE, TO ALLOW A PORTION OF THE GRANT FUNDS TO BE EXPENDED FOR COSTS OF AMUSEMENTS, SOCIAL ACTIVITIES, AND INCIDENTAL COSTS RELATING THERETO; APPROVING, AND AUTHORIZING THE MAYOR, OR HER DESIGNEE, AND THE CORPORATION SECRETARY TO EXECUTE AND DELIVER ON BEHALF OF THE CITY A GRANT AGREEMENT BETWEEN THE CITY OF JACKSONVILLE AND FNC FOR THE PROGRAM; PROVIDING FOR OVERSIGHT BY THE GRANTS AND CONTRACT COMPLIANCE DIVISION OF THE FINANCE DEPARTMENT; PROVIDING AN EFFECTIVE DATE.

2024-874 AN ORDINANCE AMENDING SECTION 121.113 (CALCULATION OF PENSION CONTRIBUTIONS FOR POLICE AND FIRE PENSION FUND), PART 1 (POLICE AND FIRE PENSION FUND ADMINISTRATION) AND SECTION 121.201 (RETIREMENT BENEFITS), PART 2 (PENSION BENEFITS), CHAPTER 121 (POLICE AND

FIRST INSERTION

(DOB: 10/17/2017) and A.E.M. (DOB: 10/11/2019). TAKE NOTICE that a pleading seeking relief against you has been filed in the above-entitled action. The nature of the relief being sought is as follows: Petition alleging Abuse, Neglect or Dependency You are required to make defense to such pleading not later than 40 days after the first date of publication, and upon your failure to do so the party seeking relief against you will apply to the Court for the relief sought. You are entitled to attend any hearing affecting your rights.

FIREFIGHTERS PENSION PLAN), ORDINANCE CODE, TO CLARIFY THE TERM “SALARY” AND THE CONTRIBUTIONS PAYABLE WHILE MEMBERS ARE ON MILITARY LEAVE OF ABSENCE; PROVIDING FOR SEVERABILITY; PROVIDING FOR CODIFICATION INSTRUCTIONS; PROVIDING AN EFFECTIVE DATE.

2024-875

AN ORDINANCE APPROPRIATING $100,000 FROM A DESIGNATED SPECIAL COUNCIL CONTINGENCY TO THE GENERAL FUND OPERATING, SUBSIDIES AND CONTRIBUTIONS TO PRIVATE ORG ACCOUNT, TO PROVIDE CITY GRANT FUNDING TO WEGOTCHU ENTERPRISES NPO, INC. (“WEGOTCHU”) FOR THE WEGOTCHU SALUD WELLNESS PROGRAM (THE “PROGRAM”) AS DESCRIBED HEREIN; WAIVING SECTION 118.107 (NONPROFITS TO RECEIVE FUNDING THROUGH A COMPETITIVE EVALUATED AWARD PROCESS), PART 1 (GENERAL PROVISIONS), CHAPTER 118 (CITY GRANTS), ORDINANCE CODE, TO ALLOW FOR A DIRECT CONTRACT WITH WEGOTCHU ENTERPRISES NPO, INC.; APPROVING, AND AUTHORIZING THE MAYOR, OR HER DESIGNEE, AND THE CORPORATION SECRETARY TO EXECUTE AND DELIVER ON BEHALF OF THE CITY A GRANT AGREEMENT BETWEEN THE CITY OF JACKSONVILLE AND WEGOTCHU FOR THE PROGRAM; PROVIDING FOR OVERSIGHT BY THE GRANTS AND CONTRACT COMPLIANCE DIVISION OF THE FINANCE DEPARTMENT; PROVIDING AN EFFECTIVE DATE. 2024-876 AN ORDINANCE APPROPRIATING $152,362 FROM A SPECIAL COUNCIL CONTINGENCY TO THE COUNCIL DISTRICT 5 – MISCELLANEOUS ACTIVITY – OTHER CONSTRUCTION COSTS ACCOUNT TO PROVIDE FUNDS FOR CAPITAL PROJECTS AND IMPROVEMENTS FOR PARKS IN COUNCIL DISTRICT 5; REQUIRING COMPLIANCE WITH SECTION 106.315 (DISTRICT COUNCIL EXPENDITURES), ORDINANCE CODE; PROVIDING FOR OVERSIGHT BY THE PARKS, RECREATION AND COMMUNITY SERVICES DEPARTMENT; PROVIDING AN EFFECTIVE DATE. 2024-877 AN ORDINANCE APPROPRIATING $76,180 FROM A GENERAL FUND OPERATING CONTINGENCY ACCOUNT TO THE GENERAL FUND OPERATING, SUBSIDIES AND CONTRIBUTIONS TO PRIVATE ORG ACCOUNT, TO PROVIDE CITY GRANT FUNDING TO SAFE FUTURE FOUNDATION INC (“SAFE FUTURE”) FOR THE NOURISHING COMMUNITIES – FOOD PANTRY, DIAPER, AND FEMININE PRODUCT SUPPORT INITIATIVE (THE “PROGRAM”) AS DESCRIBED HEREIN; INVOKING THE EXEMPTION IN SECTION 126.108(G) (EXEMPTIONS FROM COMPETITIVE SOLICITATION), PART 1 (GENERAL REGULATIONS; ETHICS AND TRANSPARENCY IN PUBLIC CONTRACTING), CHAPTER 126 (PROCUREMENT CODE), ORDINANCE CODE, TO ALLOW FOR A DIRECT CONTRACT WITH SAFE FUTURE FOR THE PROGRAM; WAIVING SECTION 118.107 (NONPROFITS TO RECEIVE FUNDING THROUGH A COMPETITIVE EVALUATED AWARD PROCESS), PART 1 (GENERAL PROVISIONS), CHAPTER 118 (CITY GRANTS), ORDINANCE CODE, TO ALLOW FOR A DIRECT CONTRACT WITH SAFE FUTURE FOUNDATION INC; APPROVING, AND AUTHORIZING THE MAYOR, OR HER DESIGNEE, AND THE CORPORATION SECRETARY TO EXECUTE AND DELIVER ON BEHALF OF THE CITY A GRANT AGREEMENT BETWEEN THE CITY OF JACKSONVILLE AND SAFE FUTURE

You are entitled to have counsel appointed by the Court if you are indigent. If you desire counsel, you must appear in court to request an attorney and submit information for consideration of your request for counsel. This the ___________ day of November, 2024. H. Jay White, Sr. Attorney for CABARRUS COUNTY DEPARTMENT OF HUMAN SERVICES/CPS NC State Bar No.: 18043 1303 S. Canon Boulevard Kannapolis, NC 28081 704 920 1400/704 786 5161 Nov. 14/21/29 00 (24-7222D)

FIRST INSERTION

FOR THE PROGRAM; PROVIDING FOR OVERSIGHT BY THE GRANTS AND CONTRACT COMPLIANCE DIVISION OF THE FINANCE DEPARTMENT; PROVIDING AN EFFECTIVE DATE.

2024-878 AN ORDINANCE APPROPRIATING $100,000 FROM A GENERAL FUND OPERATING CONTINGENCY ACCOUNT TO THE GENERAL FUND OPERATING, SUBSIDIES AND CONTRIBUTIONS TO PRIVATE ORG ACCOUNT, TO PROVIDE CITY GRANT FUNDING TO RONALD MCDONALD HOUSE CHARITIES OF JACKSONVILLE, INC. (“RMHCJ”) FOR THE WARM MEALS, WARM HEARTS MEAL PROGRAM (THE “PROGRAM”) AS DESCRIBED HEREIN; INVOKING THE EXEMPTION IN SECTION 126.108(G) (EXEMPTIONS FROM COMPETITIVE SOLICITATION), PART 1 (GENERAL REGULATIONS; ETHICS AND TRANSPARENCY IN PUBLIC CONTRACTING), CHAPTER 126 (PROCUREMENT CODE), ORDINANCE CODE, TO ALLOW FOR A DIRECT CONTRACT WITH RMHCJ FOR THE PROGRAM; WAIVING SECTION 118.107 (NONPROFITS TO RECEIVE FUNDING THROUGH A COMPETITIVE EVALUATED AWARD PROCESS), PART 1 (GENERAL PROVISIONS), CHAPTER 118 (CITY GRANTS), ORDINANCE CODE, TO ALLOW FOR A DIRECT CONTRACT WITH RONALD MCDONALD HOUSE CHARITIES OF JACKSONVILLE, INC.; APPROVING, AND AUTHORIZING THE MAYOR, OR HER DESIGNEE, AND THE CORPORATION SECRETARY TO EXECUTE AND DELIVER ON BEHALF OF THE CITY A GRANT AGREEMENT BETWEEN THE CITY OF JACKSONVILLE AND RMHCJ FOR THE PROGRAM; PROVIDING FOR OVERSIGHT BY THE GRANTS AND CONTRACT COMPLIANCE DIVISION OF THE FINANCE DEPARTMENT; PROVIDING AN EFFECTIVE DATE. 2024-879 AN ORDINANCE APPROPRIATING $100,000 FROM A SPECIAL COUNCIL CONTINGENCY TO THE COUNTY-WIDE TREE TRIMMING AND MEDIAN BEAUTIFICATION ACTIVITY – CONTRACTUAL SERVICES ACCOUNT TO PROVIDE FUNDS FOR TREE TRIMMING AND MEDIAN BEAUTIFICATION IN DUVAL COUNTY; PROVIDING FOR OVERSIGHT BY THE DEPARTMENT OF PUBLIC WORKS; PROVIDING AN EFFECTIVE DATE.

2024-882 AN ORDINANCE APPROVING AND AUTHORIZING THE MAYOR, OR HER DESIGNEE, AND THE CORPORATION SECRETARY TO EXECUTE AND DELIVER, FOR AND ON BEHALF OF THE CITY OF JACKSONVILLE (“CITY”), AN AMENDMENT ONE TO ECONOMIC DEVELOPMENT AGREEMENT (“AGREEMENT”) BETWEEN THE CITY AND ALLEGIS GROUP, INC. (“COMPANY”), TO AMEND THE DEFINITION OF THE PROJECT PARCEL THEREIN TO RECOGNIZE NEW OFFICE SPACE BEING UTILIZED BY THE COMPANY; AUTHORIZING APPROVAL OF TECHNICAL AMENDMENTS BY THE EXECUTIVE DIRECTOR OF THE OFFICE OF ECONOMIC DEVELOPMENT (“OED”); PROVIDING FOR OVERSIGHT BY THE OED; PROVIDING AN EFFECTIVE DATE. 2024-883 AN ORDINANCE APPROPRIATING $250,000 FROM A CONTINGENCY ACCOUNT WITHIN THE KIDS HOPE ALLIANCE (“KHA”) FUND TO THE SUBSIDIES AND CONTRIBUTIONS TO PRIVATE ORGANIZATIONS ACCOUNT TO PROVIDE FUNDING TO WALK-OFF CHARITIES OF JAX, INC. (“WALK-OFF CHARITIES”) FOR THE EMPOWERING OUR FAMILIES’ YOUTH PROGRAM (THE “PROGRAM”) AS

DESCRIBED HEREIN; INVOKING THE EXEMPTION IN SECTION 126.108(G) (EXEMPTIONS FROM COMPETITIVE SOLICITATION), PART 1 (GENERAL REGULATIONS; ETHICS AND TRANSPARENCY IN PUBLIC CONTRACTING), CHAPTER 126 (PROCUREMENT CODE), ORDINANCE CODE, TO ALLOW FOR A DIRECT CONTRACT WITH WALK-OFF CHARITIES FOR THE PROGRAM; WAIVING THE REQUIREMENTS OF SECTION 77.111(A) (PROVIDER CONTRACTS), CHAPTER 77 (KIDS HOPE ALLIANCE), ORDINANCE CODE, TO EXEMPT THE SERVICES TO BE PROVIDED BY WALK-OFF CHARITIES FROM COMPETITIVE PROCUREMENT; APPROVING, AND AUTHORIZING THE MAYOR, OR HER DESIGNEE, AND THE CORPORATION SECRETARY, AND/OR THE CHIEF EXECUTIVE OFFICER OF KHA TO EXECUTE AND DELIVER AN AGREEMENT BETWEEN THE CITY OF JACKSONVILLE OR KHA AND WALK-OFF CHARITIES OF JAX, INC. FOR THE PROGRAM; PROVIDING FOR OVERSIGHT BY KHA; REQUESTING ONE CYCLE EMERGENCY PASSAGE; PROVIDING AN EFFECTIVE DATE. 2024-884 AN ORDINANCE REGARDING A PARTIAL AD VALOREM PROPERTY TAX EXEMPTION FOR REHABILITATION OF A LOCAL LANDMARK LOCATED AT 700 EAST UNION STREET, OWNED BY EAST UNION PROPERTY OWNER, LLC; PROVIDING FOR EXEMPTION FROM THAT PORTION OF AD VALOREM TAXATION LEVIED BY THE CITY OF JACKSONVILLE ON ONE HUNDRED PERCENT (100%) OF THE INCREASE IN ASSESSED VALUE RESULTING FROM THE QUALIFYING IMPROVEMENT PROJECT, PURSUANT TO SECTION 780.303, ORDINANCE CODE; PROVIDING FOR AN EXEMPTION PERIOD OF TEN (10) YEARS BEGINNING ON JANUARY 1 OF THE YEAR FOLLOWING THE YEAR IN WHICH THE COUNCIL ENACTS THIS ORDINANCE, PURSUANT TO SECTION 780.304, ORDINANCE CODE; WAIVING THE CONFLICTING PROVISIONS OF SECTIONS 780.303 (HISTORIC REHABILITATION TAX EXEMPTION) AND 780.305 (APPLICATION), PART 3 (TAX EXEMPTION FOR REHABILITATION OF HISTORIC LANDMARKS AND PROPERTIES IN HISTORIC DISTRICTS), CHAPTER 780 (PROPERTY TAX), ORDINANCE CODE, TO GRANT THE EXEMPTION FOR A SUBSTANTIALLY COMPLETE PROJECT; WAIVING SECTION 780.335 (COMPLETION OF WORK), PART 3 (TAX EXEMPTION FOR REHABILITATION OF HISTORIC LANDMARKS AND PROPERTIES IN HISTORIC DISTRICTS), CHAPTER 780 (PROPERTY TAX), ORDINANCE CODE, TO GRANT THE EXEMPTION FOR A PROJECT THAT WAS NOT COMPLETED WITHIN TWO YEARS FOLLOWING THE DATE OF APPROVAL OF THE PRECONSTRUCTION APPLICATION; PROVIDING AN EFFECTIVE DATE.

2024-886

AN ORDINANCE APPROPRIATING $85,654.11, INCLUDING $68,679.91 IN AVAILABLE REVENUE FROM THE 1001 KINGS AVENUE – ALE KINGS HOLDINGS LLC – FORGIVABLE LOANS ACCOUNT AND $16,974.20 FROM THE 1001 KINGS AVENUE – ALE KINGS HOLDINGS LLC – LOANS ACCOUNT TO THE DOWNTOWN PRESERVATION AND REVITALIZATION PROGRAM DEDF - LOANS ACCOUNT, ALL WITHIN THE DOWNTOWN ECONOMIC DEVELOPMENT FUND, FOR FUTURE PROJECTS, AS INITIATED BY B.T. 25-021; PROVIDING AN EFFECTIVE DATE. 2024-887

AN ORDINANCE APPROVING AND AUTHORIZING THE MAYOR, OR HER DESIGNEE,

FIRST INSERTION

LEGAL NOTICE OF TORT CLAIM SETTLEMENT The University of South Florida, for and on behalf of the USF Board of Trustees, acting for and on behalf of the Florida Board of Governors, has settled a tort claim #21001411 filed in the Circuit Court for Duval County, for an amount in excess of $5,000.00. Nov. 14 00 (24-07180D)

AND THE CORPORATION SECRETARY TO EXECUTE AND DELIVER, FOR AND ON BEHALF OF THE CITY OF JACKSONVILLE (“CITY”), A FOURTH AMENDMENT TO REDEVELOPMENT AGREEMENT BETWEEN COSENTINO INDUSTRIAL USA, LLC (“COMPANY”) AND THE CITY, TO EXTEND CERTAIN TIMES FRAMES WITHIN THE PERFORMANCE SCHEDULE AND EXTEND THE CLOSING DATE FOR THE COMPANY TO PURCHASE THE PROPERTY TO JANUARY 24, 2025; AUTHORIZING APPROVAL OF TECHNICAL AMENDMENTS BY THE EXECUTIVE DIRECTOR OF THE OFFICE OF ECONOMIC DEVELOPMENT (“OED”); PROVIDING FOR CITY OF JACKSONVILLE OVERSIGHT BY THE OED; PROVIDING AN EFFECTIVE DATE. 2024-888 AN ORDINANCE APPROPRIATING $1,333,728.00 FROM HOMELESSNESS INITIATIVES SPECIAL REVENUE FUND DESIGNATED CONTINGENCY ACCOUNTS TO THE JACKSONVILLE FIRE AND RESCUE DEPARTMENT TO PROVIDE $634,421.60 TO TRINITY RESCUE MISSION, INC. (“TRINITY RESCUE”), $288,970.40 TO THE CITY RESCUE MISSION, INC. (“CITY RESCUE”), AND $410,336.00 TO THE SALVATION ARMY (“SALVATION ARMY”) TO BE USED TO INCREASE HOMELESS SHELTER CAPACITY IN DUVAL COUNTY AS MORE SPECIFICALLY DESCRIBED HEREIN; INVOKING THE EXEMPTION IN SECTION 126.108(G) (EXEMPTIONS FROM COMPETITIVE SOLICITATION), PART 1 (GENERAL REGULATIONS; ETHICS AND TRANSPARENCY IN PUBLIC CONTRACTING), CHAPTER 126 (PROCUREMENT CODE), ORDINANCE CODE, TO ALLOW FOR DIRECT CONTRACTS WITH TRINITY RESCUE, CITY RESCUE AND SALVATION ARMY; WAIVING SECTION 118.107 (NONPROFITS TO RECEIVE FUNDING THROUGH A COMPETITIVE EVALUATED AWARD PROCESS), PART 1 (GENERAL PROVISIONS), CHAPTER 118 (CITY GRANTS), ORDINANCE CODE, TO ALLOW FOR DIRECT CONTRACTS WITH TRINITY RESCUE, CITY RESCUE, AND SALVATION ARMY; APPROVING, AND AUTHORIZING THE MAYOR, OR HER DESIGNEE, AND THE CORPORATION SECRETARY TO EXECUTE AND DELIVER ON BEHALF OF THE CITY, AN AGREEMENT BETWEEN THE CITY OF JACKSONVILLE AND TRINITY RESCUE, AN AGREEMENT BETWEEN THE CITY OF JACKSONVILLE AND CITY RESCUE, AND AN AGREEMENT BETWEEN THE CITY OF JACKSONVILLE AND SALVATION ARMY; PROVIDING FOR OVERSIGHT BY THE JACKSONVILLE FIRE AND RESCUE DEPARTMENT; REQUESTING ONE CYCLE EMERGENCY PASSAGE; PROVIDING AN EFFECTIVE DATE.

A COPY OF THE PROPOSED ORDINANCES MAY BE EXAMINED IN THE OFFICE OF LEGISLATIVE SERVICES DIVISION OF THE CITY COUNCIL, SUITE 430, CITY HALL, ON WEEKDAYS BETWEEN THE HOURS OF 8:00 A.M. AND 5:00 P.M. ALL PERSONS INTERESTED ARE NOTIFIED TO BE PRESENT AT SAID TIME AND PLACE, AND THEY MAY BE HEARD WITH RESPECT TO THE PROPOSED ORDINANCES. DATED THIS 14TH DAY OF NOVEMBER, A.D. 2024. COUNCIL OF THE CITY OF JACKSONVILLE

ATTEST: MARGARET M. SIDMAN COUNCIL SECRETARY Nov. 14 00 (24-07208D)

NOTICE OF PUBLIC HEARINGS Notice is hereby given that the following public hearings will be held in the Council Chambers, 1st floor, City Hall, 117 West Duval Street, St. James Building, Jacksonville, Florida, concerning: ORDINANCE 2024-850 AN ORDINANCE CLOSING AND ABANDONING AND/OR DISCLAIMING AN OPENED AND IMPROVED PORTION OF THE NUSSBAUM DRIVE RIGHT-OF-WAY, ESTABLISHED IN THE PLAT OF JACKSONVILLE HEIGHTS NORTH HALF OF TOWNSITE, AS RECORDED IN PLAT BOOK 3, PAGE 51 OF THE CURRENT PUBLIC RECORDS OF DUVAL COUNTY, FLORIDA, IN COUNCIL DISTRICT 9, AT THE REQUEST OF JOSEPH LATCHMAN AND EMILY (LIVINGSTON) LATCHMAN; PROVIDING FOR APPROVAL SUBJECT TO CONDITIONS; PROVIDING AN EFFECTIVE DATE. City Council Public Hearing will be held on Tuesday, November 26, 2024, at 5:00 P.M. The Transportation, Energy, and Utilities (TEU) Committee Public Hearing will be held on Tuesday, November 19, 2024, at 2:00 P.M. A copy of the Ordinance (s) is available for public inspection in the Council Legislative Services Division, Suite 430, City Hall. Additional information concerning this right-of-way closure and abandonment ordinance may be obtained by contacting the Real Estate Division at 255-8700. All interested persons may appear at the meetings and be heard with respect to the proposed ordinance. Nov. 14 00 (24-07150D)

FIRST INSERTION

Notice of Public Hearing and Regular Board Meeting of the Principal One Community Development District

The Board of Supervisors of the Principal One Community Development District (the “District”) will hold a Public Hearing and Regular Board Meeting on December 4, 2024, at 6:00 p.m., or as soon thereafter as the meeting can be heard, at the Clubhouse of IL Villagio located at 9745 Touchton Road, Jacksonville, Florida 32246.

The purpose of the Public Hearing is to receive public comment on the Fiscal Year 2024/2025 Proposed Final Budget of the District. A copy of the Budget and/or the Agenda may be obtained from the District’s website or at the offices of the District Manager, 2501A Burns Road, Palm Beach Gardens, Florida, 33410 during normal business hours. The purpose of the Regular Board Meeting is for the Board to consider any other business which may properly come before it. The meetings are open to the public and will be conducted in accordance with the provisions of Florida law for community development districts. Meetings may be continued as found necessary to a time and place specified on the record.

There may be occasions when one or more Supervisors will participate by telephone; therefore, a speaker telephone will be present at the meeting location so that Supervisors may be fully informed of the discussions taking place. In accordance with the provisions of the Americans with Disabilities Act, any person requiring special accommodations or an interpreter to participate at these meetings should contact the District Manager at (561) 630-4922, and/or toll free at 1-877-737-4922, at least seven (7) days prior to the date of the meetings.

If any person decides to appeal any decision made with respect to any matter considered at this Public Hearing and Regular Board Meeting, such person will need a record of the proceedings and such person may need to ensure that a verbatim record of the proceedings is made at their own expense and which record includes the testimony and evidence on which the appeal is based. Meetings may be cancelled from time to time without advertised notice. Principal

www.principalonecdd.org Nov. 14 00 (24-07149D) FIRST INSERTION

PUBLIC NOTICES

FIRST INSERTION

RE-NOTICE OF PUBLIC MEETINGS AND HEARINGS

NOTICE is hereby given that there will be a public meeting held by the Jacksonville Land Use and Zoning Committee on Tuesday, December 3, 2024, at 5:00 p.m. in the Council Chambers, 1st floor, City Hall, 117 West Duval Street, St. James Building, Jacksonville, FL, concerning: Ordinance No. 2024-536 AN ORDINANCE REZONING APPROXIMATELY 10.00+ ACRES LOCATED IN COUNCIL DISTRICT 12 AT 0 AND 9423 CRYSTAL SPRINGS ROAD, BETWEEN CRYSTAL CIRCLE AND CHANDLER OAKS DRIVE (R.E. NO(S). 008833-0050, 008834-0000 AND 0088350000), AS DESCRIBED HEREIN, OWNED BY DAO NGUYEN, FROM RESIDENTIAL RURALACRE (RR-ACRE) DISTRICT TO PLANNED UNIT DEVELOPMENT PUD ) DISTRICT, AS DEFINED AND CLASSIFIED UNDER THE ZONING CODE, TO PERMIT SINGLE FAMILY DWELLINGS, AS DESCRIBED IN THE CRYSTAL SPRINGS PUD; PROVIDING A DISCLAIMER THAT THE REZONING GRANTED HEREIN SHALL NOT BE CONSTRUED AS AN EXEMPTION FROM ANY OTHER APPLICABLE

LAWS; PROVIDING AN EFFECTIVE DATE. A copy of the ordinance containing the legal description is available for public inspection in the Council Legislative Services Division, Suite 430, City Hall. Additional information concerning this rezoning may be obtained by contacting the Planning and Development Department at 255-7865. All interested parties may appear at the meeting and be heard with respect to the proposed ordinance. Application for rezoning 20240536 seeks to rezone approximately 10.00 acres of land from Rural Residential-Acre (RR-Acre) to Planned Unit Development (PUD). The property is located at 0 and 9423 Crystal Springs Road between Crystal Circle and Chandler Oaks Drive. The agent is Paul Harden, Esq., 1431 Riverplace Boulevard, Suite 901, Jacksonville, Florida 32207; (904) 396-5731. The rezoning to PUD is being sought to allow for 45 single-family dwellings. Please visit www.coj.net for meeting information and COVID19 procedures/precautions for accessing public buildings. Margaret M. Sidman City Council Secretary Dated this 12th day of November 2024. Nov. 14 00 (24-07196D)

FIRST INSERTION

PRINCIPAL ONE COMMUNITY

DEVELOPMENT DISTRICT REQUEST FOR PROPOSALS FOR ANNUAL AUDIT SERVICES

The Principal One Community Development District hereby requests proposals for annual financial auditing services. The proposal must provide for the auditing of the District’s financial records for the fiscal years ending September 30, 2024, September 30, 2025, and September 30, 2026, with an option for an additional two (2) year renewal. The District is a local unit of special-purpose government created under Chapter 190, Florida Statutes, for the purpose of financing, constructing, and maintaining public infrastructure. The District was formed in 2004 and encompasses approximately 71.86 acres in Duval County. In 2005 there were special assessment bonds (the “bonds”) issued in the amount of $3,655,000 which financed all or a portion of certain public infrastructure improvements within the District. The bonds were refinanced in 2016. Additional information about the District is available upon request. All applicants must be duly licensed under Chapter 473 and qualified to conduct audits in accordance with government

auditing standards as adopted by the Florida Board of Accountancy (Yellow Book). Audits shall be conducted in accordance with Florida law and particularly Section 218.39, Florida Statutes, and the rules of the Florida Auditor General. Proposal packages, which include evaluation criteria and instructions to proposers, are available from the District Manager. Interested firms should submit one (1) copy and one (1) digital copy of their qualifications, and any other supporting documentation to Principal One Community Development District, c/o Special District Services, Inc., 2501A Burns Road, Palm Beach Gardens, Florida 33410 on or before 4:00 p.m. on December 11, 2024, in an envelope marked on the outside “Auditing Services-Principal One Community Development District”. Proposed Audit Fees must be good for a period of not less than ninety (90) days. Questions should be directed to the District Manager at 561-630-4922 and/or toll free at 1-877-737-4922. The District reserves the right to reject all or portions of the submittals. All costs to prepare the proposals shall be at the proposer’s expense.

PRINCIPAL ONE COMMUNITY DEVELOPMENT DISTRICT www.principalonecdd.org Nov. 14 00 (24-07199D)

NOTICE OF PUBLIC HEARINGS REGARDING HISTORIC LANDMARK DESIGNATION

NOTICE is hereby given that the following public hearings will be held in the Council Chamber, 1st floor, City Hall, 117 West Duval Street, St. James Building, Jacksonville, Florida, concerning: ORDINANCE 2024-880 AN ORDINANCE REGARDING CHAPTER 307 (HISTORIC PRESERVATION AND PROTECTION), ORDINANCE CODE; DESIGNATING THE INSTITUTIONAL BUILDING LOCATED IN COUNCIL DISTRICT 7 AT 1221 EAST 16TH STREET, BETWEEN FRANKLIN STREET AND MARTIN LUTHER KING JUNIOR PARKWAY (R.E. NO. 113567-0010), OWNED BY JACK SUN VILLAS, LLC, AS A LOCAL LANDMARK; STATEMENT OF LANDMARK CRITERIA SATISFIED; IDENTIFYING THOSE ACTIVITIES WHICH REQUIRE THE ISSUANCE OF A CERTIFICATE OF APPROPRIATENESS; DIRECTING THE CHIEF OF LEGISLATIVE SERVICES TO NOTIFY THE APPLICANT, THE PROPERTY OWNER, AND THE PROPERTY APPRAISER OF THE LOCAL LANDMARK DESIGNATION, AND TO RECORD THE LOCAL LANDMARK DESIGNATION IN THE OFFICIAL RECORDS OF DUVAL COUNTY; DIRECTING THE ZONING ADMINISTRATOR TO ENTER THE LOCAL LANDMARK DESIGNATION ON THE ZONING ATLAS; PROVIDING AN EFFECTIVE DATE. City Council Public Hearing: Tuesday, December 10, 2024, at 5:00 p.m. Land Use & Zoning Committee Public Hearing: Tuesday, January 7, 2025, at 5:00 p.m.

All interested persons are invited to review the proposed ordinance and to appear at the public hearings and be heard regarding the adoption of the proposed ordinance. A copy of the proposed ordinance is available for public inspection in the Legislative Services Division, located on the fourth floor of City Hall, between the hours of 8:00 a.m. and 5:00 p.m., Monday through Friday, and at www.jacksonville.gov through Legislative Bill Search.

Persons needing special accommodations to attend any hearing noticed herein shall contact the Legislative Services Division at (904) 255-5122 not less than 48 hours before a hearing or meeting in order to make arrangements. Please check www.jacksonville.gov for meeting notices, agendas, and further details.

Randy White City Council President

Margaret M. Sidman Council Director/Secretary Nov. 14 00 (24-07207D)

FIRST INSERTION

PUBLIC NOTICE

The Jacksonville Transportation Authority will require a supplier to provide services for ITB No. 25-006 Heavy Duty Underlift Tow Truck. All interested may contact the Jacksonville Transportation Authority, Procurement Department, 100 LaVilla Center Drive, Jacksonville, Florida 32204 or email procurement@jtafla. com. To obtain a copy of the Solicitation visit https://procurement. opengov.com/portal/jtafla Deadline for questions regarding the plans and/or specifications is 12:00 P.M., November 13, 2024. Questions must be submitted to the JTA Procurement Portal

The Jacksonville Transportation Authority is an Equal Opportunity Employer and encourages expressions of interest for the described services from Disadvantaged Business Enterprises. Proposals must be uploaded to the JTA Procurement Portal no later than 2:00 p.m., December 9, 2024. Nov. 14 00 (24-07137D)

FIRST INSERTION

NOTICE OF PUBLIC MEETING

PUBLICATION DATE: 14 November 2024 TO WHOM IT MAY CONCERN:

The Florida State College at Jacksonville Foundation Board of Directors’ Finance, Audit & Compliance Committee will hold a Meeting on Thursday, November 14, 2024, at 2:00 p.m., FSCJ Downtown Campus, Administrative Office building, 501 W. State St. Jacksonville, FL 32202, Foundation WebEx Room 104. For Public Access please contact Melissa Bradley at (904) 6323356. Copies of the agenda will be available for inspection on and after November 13, 2024. Copies are available upon written request and submission of payment of charges for duplication.

All objections to this notice or the propriety of the scheduled Regular Meeting should be filed in writing with the Executive Director, Florida State College Foundation on or before November 14, 2024. Florida State College at Jacksonville does not discriminate against any person on the basis of race, disability, color, ethnicity, national origin, religion, gender, age, sex, sexual orientation/expression, marital status, veteran status, pregnancy or genetic information in its programs or activities. If special accommodations are required, please advise Foundation within 24 hours of the meeting.

FLORIDA STATE COLLEGE AT JACKSONVILLE FOUNDATION, INC. Melissa Bradley FSCJ Foundation, Administrative Support Manager 904-632-3356 Nov. 14 00 (24-07156D)

FIRST INSERTION

Notice of Bid/ Request for Proposal OTHER AGENCIES AND ORGANIZATIONS

AULD & WHITE CONSTRUCTORS, LLC UNF Esports Venue

Auld & White Constructors, LLC, in conjunction with the University of North Florida, will be accepting SEALED proposals, which will be received until 3:00 p.m., December 5, 2024, at Auld & White Constructors, LLC, 4168 Southpoint Parkway, Suite 301, Jacksonville, Florida 32216.

Project includes demo, flooring, painting, ACT, wall partitions, mechanical, fire protection, and electrical, including low voltage.

Interested Bidders are required to notify Auld & White Constructors, LLC, of their Intent to Bid, in writing, no later than 2:00 p.m., November 27, 2024. Interested Bidders who fail to notify Auld & White Constructors, LLC, of their intent to bid by the date referenced above MAY NOT be permitted to bid. Bid drawings and specifications will be available on Auld & White Constructors, LLC’s website (www.auld-white. com), on November 12, 2024. All interested bidders shall submit their Notice of Intent to awcestimating@auld-white.com

University of North Florida and Auld & White Constructors, LLC are committed to provide equal opportunity and strongly encourage all interested M/WBE and small business firms and suppliers to submit bids.

Auld & White Constructors, LLC reserves the right to reject any and all bids, waive formalities and irregularities in bidding and to accept bids which are considered by Auld & White Constructors, LLC to be in the best interest of the project. Nov. 14 00 (24-07194D)

FIRST INSERTION

NOTICE UNDER FICTITIOUS NAME LAW

According to Florida Statute Number 865.09

NOTICE IS HEREBY GIVEN that the undersigned, desiring to engage in business under the Fictitious Name of Affordable Tax Office located at 3517 PEELER RD APT 18, in the City of JACKSONVILLE, Duval County, Florida 32277 intends to register the said name with the Division of Corporations of the Department of State, Tallahassee, Florida. Dated at Jacksonville, Florida, this 12th day of November, 2024. Gloria Butler Nov. 14 00 (24-07205D)

PUBLIC NOTICE OF INTENT TO ISSUE AIR PERMIT Florida Department of Environmental Protection Northeast District Office Draft Permit No. 0310333-012-AV

ConGlobal Industries, Inc. Duval County, Florida

Applicant: The applicant for this project is ConGlobal Industries, Inc.. The applicant’s responsible official and mailing address are: Mr. Rene Etcharren, Senior VP, ConGlobal Industries, Inc., 2777 Allen Parkway, Suite 850, Houston, Texas 77382.

Facility Location: The applicant operates the existing ConGlobal Industries, Inc., which is located in Duval County at 8831 Moncrief-Dinsmore Road in Jacksonville, Florida.

Project: The applicant applied on August 29, 2024 to the Department for a Title V air operation permit renewal and to permanently remove Emission Unit 001 Shot Blasting Operation from service. This is a renewal of Title V Air Operation Permit No. 0310333-011-AV. The existing facility consists of spray painting operations, shot blasting and silica blasting operation for refinishing shipping containers, roll-off containers, vehicles and miscellaneous metal parts. The main pollutants emitted by the facility are volatile organic compounds, hazardous air pollutants and particulate matter emissions.

Permitting Authority: Applications for Title V air operation permits are subject to review in accordance with the provisions of Chapter 403, Florida Statutes (F.S.) and Chapters 62-4, 62-210 and 62-213, of the Florida Administrative Code (F.A.C.). The proposed project is not exempt from air permitting requirements and a Title V air operation permit is required to operate the facility. The Northeast District Office is the Permitting Authority responsible for making a permit determination for this project. The Permitting Authority’s physical address is: 8800 Baymeadows Way West, Suite 100, Jacksonville, Florida 32256. The Permitting Authority’s mailing address is: 8800 Baymeadows Way West, Suite 100, Jacksonville, Florida 32256. The Permitting Authority’s telephone number is (904) 256-1700.

Project File: A complete project file is available for public inspection during the normal business hours of 8:00 a.m. to 5:00 p.m., Monday through Friday (except legal holidays), at the address indicated above for the Permitting Authority. The complete project file includes the draft permit, the Statement of Basis, the application, and the information submitted by the applicant, exclusive of confidential records under Section 403.111, F.S. Interested persons may view the draft permit by visiting the following website: https://fldep.dep.state. fl.us/air/emission/apds/default. asp and entering the permit number shown above. Interested persons may contact the Permitting Authority’s project review engineer for additional information at the address or phone number listed above.

Notice of Intent to Issue Permit: The Permitting Authority gives notice of its intent to issue a renewed Title V air operation permit to the applicant for the project described above. The applicant has provided reasonable assurance that continued operation of the existing equipment will not adversely impact air quality and that the project will comply with all appropriate provisions of Chapters 62-4, 62-204, 62-210, 62-212, 62-213, 62-296 and 62-297, F.A.C. The Permitting Authority will issue a proposed permit and subsequent final permit in accordance with the conditions of the draft permit unless a response received in accordance with the following procedures results in a different decision or

FIRST INSERTION

NOTICE UNDER FICTITIOUS NAME LAW

According to Florida Statute Number 865.09

NOTICE IS HEREBY GIVEN that the undersigned, desiring to engage in business under the Fictitious Name of Jax juices located at 3000 Spring Park Rd #48018, in the City of Jacksonville, Duval County, Florida 32247 intends to register the said name with the Division of Corporations of the Department of State, Tallahassee, Florida.

Dated at Jacksonville, Florida, this 12th day of November, 2024. A&H Technologies Inc By: Basim Tannous Nov. 14 00 (24-07204D)

FIRST INSERTION

a significant change of terms or conditions.

Comments: The Permitting Authority will accept written comments concerning the draft Title V air operation permit for a period of 30 days from the date of publication of the Public Notice. Written comments must be received by the close of business (5:00 p.m.), on or before the end of this 30-day period by the Permitting Authority at the above address. As part of his or her comments, any person may also request that the Permitting Authority hold a public meeting on this permitting action. If the Permitting Authority determines there is sufficient interest for a public meeting, it will publish notice of the time, date, and location in the Florida Administrative Register (FAR). If a public meeting is requested within the 30-day comment period and conducted by the Permitting Authority, any oral and written comments received during the public meeting will also be considered by the Permitting Authority. If timely received written comments or comments received at a public meeting result in a significant change to the draft permit, the Permitting Authority shall issue a revised draft permit and require, if applicable, another Public Notice. All comments filed will be made available for public inspection. For additional information, contact the Permitting Authority at the above address or phone number.

Petitions: A person whose substantial interests are affected by the proposed permitting decision may petition for an administrative hearing in accordance with Sections 120.569 and 120.57, F.S. Petitions filed by any persons other than those entitled to written notice under Section 120.60(3), F.S., must be filed within 14 days of publication of the Public Notice or receipt of a written notice, whichever occurs first. Under Section 120.60(3), F.S., however, any person who asked the Permitting Authority for notice of agency action may file a petition within 14 days of receipt of that notice, regardless of the date of publication. A petitioner shall mail a copy of the petition to the applicant at the address indicated above, at the time of filing. A petition for administrative hearing must contain the information set forth below and must be filed (received) with the Agency Clerk in the Office of General Counsel, 3900 Commonwealth Boulevard, MS 35, Tallahassee, Florida 32399-3000, Agency_Clerk@dep.state.fl.us , before the deadline. The failure of any person to file a petition within the appropriate time period shall constitute a waiver of that person’s right to request an administrative determination (hearing) under Sections 120.569 and 120.57, F.S., or to intervene in this proceeding and participate as a party to it. Any subsequent intervention (in a proceeding initiated by another party) will be only at the approval of the presiding officer upon the filing of a motion in compliance with Rule 28-106.205, F.A.C. A petition that disputes the material facts on which the Permitting Authority’s action is based must contain the following information: (a) The name and address of each agency affected and each agency’s file or identification number, if known; (b) The name, address, any email address, telephone number and any facsimile number of the petitioner; the name, address, any email address, telephone number, and any facsimile number of the petitioner’s representative, if any, which shall be the address for service purposes during the course of the proceeding; and an explanation of how the petitioner’s substantial interests will be affected by the agency determination; (c) A statement of when and how each petitioner received notice of the agency action or proposed decision; (d) A statement

FIRST INSERTION

NOTICE UNDER FICTITIOUS NAME LAW

According to Florida Statute Number 865.09 NOTICE IS HEREBY GIVEN that the undersigned, desiring to engage in business under the Fictitious Name of Nottmeier Rental Property located at 2055 Beach Ave., in the City of Atlantic Beach, Duval County, Florida 32233 intends to register the said name with the Division of Corporations of the Department of State, Tallahassee, Florida. Dated at Jacksonville, Florida, this 11th day of November, 2024. 222 Jardin, LLC By: Tracy Synan Nov. 14 00 (24-07179D)

of all disputed issues of material fact. If there are none, the petition must so indicate; (e) A concise statement of the ultimate facts alleged, including the specific facts the petitioner contends warrant reversal or modification of the agency’s proposed action; (f) A statement of the specific rules or statutes the petitioner contends require reversal or modification of the agency’s proposed action including an explanation of how the alleged facts relate to the specific rules or statutes; and, (g) A statement of the relief sought by the petitioner, stating precisely the action the petitioner wishes the agency to take with respect to the agency’s proposed action. A petition that does not dispute the material facts upon which the Permitting Authority’s action is based shall state that no such facts are in dispute and otherwise shall contain the same information as set forth above, as required by Rule 28-106.301, F.A.C. Because the administrative hearing process is designed to formulate final agency action, the filing of a petition means that the Permitting Authority’s final action may be different from the position taken by it in this written notice of Intent to Issue Air Permit. Persons whose substantial interests will be affected by any such final decision of the Permitting Authority on the application have the right to petition to become a party to the proceeding, in accordance with the requirements set forth above.

Extension of Time: Under Rule 62-110.106(4), F.A.C., a person whose substantial interests are affected by the Department’s action may also request an extension of time to file a petition for an administrative hearing. The Department may, for good cause shown, grant the request for an extension of time. Requests for extension of time must be filed with the Office of General Counsel of the Department at 3900 Commonwealth Boulevard, Mail Station 35, Tallahassee, Florida 32399-3000, or via electronic correspondence at Agency_Clerk@ dep.state.fl.us, before the deadline for filing a petition for an administrative hearing. A timely request for extension of time shall toll the running of the time period for filing a petition until the request is acted upon.

Mediation: Mediation is not available in this proceeding.

Objections: Finally, pursuant to 42 United States Code (U.S.C.) Section 7661d(b)(2), any person may petition the Administrator of the EPA within 60 days of the expiration of the Administrator’s 45-day review period as established at 42 U.S.C. Section 7661d(b)(1), to object to the issuance of any Title V air operation permit. Any petition shall be based only on objections to the permit that were raised with reasonable specificity during the 30-day public comment period provided in the Public Notice, unless the petitioner demonstrates to the Administrator of the EPA that it was impracticable to raise such objections within the comment period or unless the grounds for such objection arose after the comment period. Filing of a petition with the Administrator of the EPA does not stay the effective date of any permit properly issued pursuant to the provisions of Chapter 62-213, F.A.C. Petitions filed with the Administrator of EPA must meet the requirements of 42 U.S.C. Section 7661d(b)(2) and must be filed with the Administrator of the EPA at: U.S. Environmental Protection Agency, Office of the Administrator, 1200 Pennsylvania Avenue, N.W., Mail Code: 1101A, Washington, DC 20460. For more information regarding EPA review and objections, visit EPA’s Region 4 web site at https:// www.epa.gov/caa-permitting/florida-proposed-title-v-permits Nov. 14 00 (24-07211D)

PUBLIC NOTICES

FIRST INSERTION

NOTICE OF PUBLIC / LIEN SALE

Notice is hereby given that Day or Night Moves @ 1860 Mayport Rd., Atlantic Beach FL will hold a public sale on November 23, 2024 ending at 10:00 a.m. All goods & personal property heretofore stored with the undersigned will be sold to the highest bidder or otherwise be disposed of to satisfy the owners lien. Management reserves the right to withdraw from sale or refuse any offer. UNIT CONSISTS OF HOUSEHOLD GOODS UNLESS OTHERWISE NOTED

UNIT #11 John and Wynne McCormick Nov. 14/21 00 (24-07195D)

FIRST INSERTION

NOTICE OF ADMINISTRATIVE COMPLAINT

To: Christopher T. Cobb Case: CD202404154/D 3300626 An Administrative Complaint to revoke your license and eligibility for licensure has been filed against you. You have the right to request a hearing pursuant to Sections 120.569 and 120.57, Florida Statutes, by mailing a request for same to the Florida Department of Agriculture and Consumer Services, Division of Licensing, Post Office Box 5708 Tallahassee, Florida 32314-5708. If a request for hearing is not received by 21 days from the date of the last publication, the right to hearing in this matter will be waived and the Department will dispose of this cause in accordance with law. Nov. 14/21/29, Dec. 5 00 (24-07167D)

FIRST INSERTION

IN THE CIRCUIT COURT FOR DUVAL COUNTY, FLORIDA PROBATE DIVISION

File No. 16-2024-CP-002984

Division PR-A IN RE: ESTATE OF THOMAS JOHN SCHISSLER, Deceased.

NOTICE TO CREDITORS

The administration of the Estate of Thomas John Schissler, deceased, whose date of death was June 2, 2024, is pending in the Circuit Court for Duval County, Florida, Probate Division, the address of which is 501 West Adams, Jacksonville, FL 32202.

The names and addresses of the Personal Representative and the Personal Representative’s attorney are set forth below.

FIRST INSERTION

IN THE CIRCUIT COURT FOR DUVAL COUNTY, FLORIDA PROBATE DIVISION

File No. 16-2024-CP-003226

Division PR-A

IN RE: ESTATE OF JAMES C. HUFFMAN

Deceased.

NOTICE TO CREDITORS

The administration of the estate of James C. Huffman, deceased, whose date of death was July 19, 2024, is pending in the Circuit Court for Duval County, Florida, Probate Division, the address of which is 501 West Adams St., Room 1173, Jacksonville, FL 32202. The names and addresses of the personal representative and the personal representative’s attorney are set forth below.

IN THE CIRCUIT COURT, FOURTH JUDICIAL CIRCUIT, IN AND FOR DUVAL COUNTY, FLORIDA CASE NO. 16-2023-CA-011537

DIVISION: CV-D

CHRIS SMEEHUYZEN; Plaintiffs, vs. SCOTT CORWIN, etc. et al; Defendants, NOTICE OF ACTION

TO: JAMES H. CORWIN II, if living and if deceased, his unknown spouses, heirs, devisees, grantees, creditors and all other parties claiming by, through, under or against him;

Residence(s): Unknown

Last Known mailing address: 8031 Hawthorne Ave Jacksonville, FL 32208

JEFFREY CORWIN, if living and if deceased, him unknown spouses, heirs, devisees, grantees, creditors and all other parties claiming by, through, under or against him;

Residence(s): Unknown

Last Known Mailing

Address: 8031 Hawthorne Ave Jacksonville, Fl 32208 YOU ARE NOTIFIED that an action to quiet title on the following property in Duval County, Florida:

Lot 11 and Northeasterly 10 feet of Lot 12, Block 7, PANAMA INVESTMENT COMPANYS SUBDIVISION OF PANAMA PARK, according to the plat thereof as recorded in Plat Book 6, Page 81, of the current public records of Duval County, Florida a/k/a 8031 Hawthorne Avenue, Jacksonville, Florida 32208. has been filed against you and you are required to serve a copy of your written defenses, if any, to it on BERNARD & SCHEMER, ESQUIRE, Plaintiff’s attorney, whose address is 480 Busch Drive, Jacksonville, Florida 32218, within 35 days of the first date of publication of this notice, and file the original with the Clerk of this Court either before service on Plaintiff’s attorney or immediately thereafter; otherwise, a default will be entered against you for the relief demanded in the complaint or petition.

WITNESS my hand and the seal of this Court on the 6th day of November, 2024.

JODY PHILLIPS Clerk of the Court

By: Pamela R. Harrell As Deputy Clerk Nov. 14/21/29, Dec. 5 00 (24-07145D)

FIRST INSERTION

FLORIDA RESILIENCY AND ENERGY DISTRICT NOTICE OF INTENT TO USE UNIFORM METHOD OF COLLECTING NON-AD VALOREM ASSESSMENTS

The Florida Resiliency and Energy District (the “District” or “FRED”) hereby provides notice, pursuant to Section 197.3632(3) (a), Florida Statutes, of its intent to use the uniform method of collecting non-ad valorem special assessments to be levied by the District over a number of years to fund the cost of qualifying renewable energy improvements, energy efficiency and conservation improvements, wind resistance improvements and such other qualifying improvements as are defined in Section 163.08(4) (b), Florida Statutes (collectively, “Qualifying Improvements”) for those property owners who wish to undertake such improvements within the boundaries of the General Services District (as defined in Section 2.01 of the Charter of the City of Jacksonville, Florida (“City Charter”), which is Duval County, Florida, including the Second Urban Services District (City of Jacksonville Beach), Third Urban Services District (City of Atlantic Beach), Fourth Urban Services District (City of Neptune Beach) and Fifth Urban Services District (Town of Baldwin) (as defined in Section 2.01 of the City Charter), as well as the unincorporated boundaries of Franklin County, Florida, Nassau County, Florida, and St. Lucie County, Florida and any participating incorporated municipality, town or village within the above designated counties; as authorized by Sections 163.08–163.087 and Section 197.3632, Florida Statutes, which will allow such assessments to be collected annually, commencing in November 2025, in the same manner as provided for ad valorem taxes. The non-ad valorem special assessments to be levied by the District are voluntary and only imposed with the written consent of a property owner wishing to finance Qualifying Improvements. The governing board of the District will consider the adoption of a resolution electing to use the uniform method of collecting such assessments authorized by Sections 163.08-163.087 and

Section197.3632, Florida Statutes, at a public hearing to be held on December 12, 2024 at 10:00 a.m., or as soon thereafter as the matter may be heard, at Florida Development Finance Corporation, 156 Tuskawilla Road, Suite 2340, Winter Springs FL 32708. INTERESTED PERSONS MAY ALSO ATTEND BY TELEPHONE CONFERENCE USING THE INSTRUCTIONS BELOW. TELEPHONE CONFERENCE

INSTRUCTIONS: Dial-In Number: 1-833-548-0276, then use Meeting ID: 876 2862 5910 and Passcode: 289631

Such resolution will state the need for the levy by the District and will contain a legal description of the jurisdictional boundaries of the District. Copies of the proposed form of resolution may be obtained in advance via email to the FRED Administrator at info@fdfcbonds.com or by contacting the Manager of Programs at 407-712-6352. All interested persons are invited to attend. In the event any person decides to appeal any decision by the governing board of the District with respect to any matter relating to the consideration of the resolution at the above-referenced public hearing, a record of the proceeding may be needed and in such an event, such person may need to ensure that a verbatim record of the public hearing is made, which record includes the testimony and evidence on which the appeal is to be based. In accordance with the Americans with Disabilities Act, persons needing a special accommodation or an interpreter to participate in this proceeding should contact the Florida Resiliency and Energy District at 407712-6352 at least two (2) days prior to the date of the hearing. Persons who are hearing or speech impaired can contact the Florida Dual Party Relay System at 1-800955-8770 (Voice) and 1-800-9558771 (TDD). Publication Dates (may vary based on publication frequency): November 14, 2024 November 21, 2024 November 29, 2024 December 5, 2024 Nov. 14/21/29, Dec. 5 00 (24-07166D)

All creditors of the Decedent and other persons having claims or demands against Decedent’s Estate on whom a copy of this Notice is required to be served must file their claims with this Court ON OR BEFORE THE LATER OF THREE (3) MONTHS AFTER THE TIME OF THE FIRST PUBLICATION OF THIS NOTICE OR 30 DAYS AFTER THE DATE OF SERVICE OF A COPY OF THIS NOTICE ON THEM.

All other creditors of the Decedent and other persons having claims or demands against Decedent’s Estate must file their claims with this Court WITHIN THREE (3) MONTHS AFTER THE DATE OF THE FIRST PUBLICATION OF THIS NOTICE.

ALL CLAIMS NOT FILED WITHIN THE TIME PERIODS SET FORTH IN FLORIDA STATUTES SECTION 733.702 WILL BE FOREVER BARRED. NOTWITHSTANDING THE TIME PERIODS SET FORTH ABOVE, ANY CLAIM FILED TWO (2) YEARS OR MORE AFTER THE DECEDENT’S DATE OF DEATH IS BARRED.

A personal representative or curator has no duty to discover whether any property held at the time of the decedent’s death by the decedent or the decedent’s surviving spouse is property to which the Florida Uniform Disposition of Community Property Rights at Death Act as described in sections 732.216-732.228, applies, or may apply, unless a written demand is made by a creditor as specified under section 732.2211.

The date of first publication of this notice is November 14, 2024. Michael Eric Schissler

Personal Representative 1326 Belvedere Ave. Jacksonville, FL 32205

Diane L. Paull, Esq. Florida Bar Number: 645605

Attorney for Personal Representative Simpson and Paull, P. L. 1326 3rd St S., Ste 2 Jacksonville Beach, FL 32250

Tel: (904) 249-7288; Fax: (904) 249-1779

Service E-Mail: service@simpsonpaull.com Nov. 14/21 00 (24-07215D)

IN THE CIRCUIT COURT, FOURTH JUDICIAL CIRCUIT, IN AND FOR DUVAL COUNTY, FLORIDA CASE NO.: 16-1995-DR-003288

DIVISION: 58 IN RE: THE MATTER OF: DONNA L. HEDRICK, Petitioner, and DAVID SYLVESTER

HARRIS, JR. Respondent

RESPONDENT’S MOTION TO TERMINATE CHILD SUPPORT OBLIGATION

COMES NOW, Respondent, David Sylvester Harris, Jr. by and through her undersigned attorney, and files this Motion to Terminate Child Support Obligation and states as follows:

1. The parties entered into an Order for Visitation with incorporated Fourth Circuit Visitation Gudileins on September 9, 1996.

2. At the time, the parties had one minor child, David Sylvester Harris, III, date of birth August 26, 1993, now 31 years old.

3. On September 20, 2011, the Court entered an Order Abating Petition to Decrease Child Support Order Suspending Enforcement and Order Reinstating Driver License Report of the Child Support Hearing Officer.

4. The Order Abating Petition to Decrease Child Support Order Suspending Enforcement and Order Reinstating Driver License Report of the Child Support Hearing Officer found that the Respondent was temporarily disabled and found that no enforcement would take place for 12 months. Further the Court abated the Respon-

All creditors of the decedent and other persons having claims or demands against decedent’s estate on whom a copy of this notice is required to be served must file their claims with this court ON OR BEFORE THE LATER OF 3 MONTHS AFTER THE TIME OF THE FIRST PUBLICATION OF THIS NOTICE OR 30 DAYS AFTER THE DATE OF SERVICE OF A COPY OF THIS NOTICE ON THEM.

The personal representative has no duty to discover whether any property held at the time of the decedent’s death by the decedent or the decedent’s surviving spouse is property to which the Florida Uniform Disposition of Community Property Rights at Death Act as described in ss. 732.216732.228, Florida Statutes, applies, or may apply, unless a written demand is made by a creditor as specified under s. 732.2211, Florida Statutes.

All other creditors of the decedent and other persons having claims or demands against decedent’s estate must file their claims with this court WITHIN 3 MONTHS AFTER THE DATE OF THE FIRST PUBLICATION OF THIS NOTICE.

ALL CLAIMS NOT FILED WITHIN THE TIME PERIODS SET FORTH IN FLORIDA STATUTES SECTION 733.702 WILL BE FOREVER BARRED. NOTWITHSTANDING THE TIME PERIODS SET FORTH ABOVE, ANY CLAIM FILED TWO (2) YEARS OR MORE AFTER THE DECEDENT’S DATE OF DEATH IS BARRED.

The date of first publication of this notice is November 14, 2024.

Personal Representative: John Huffman 2160 Oak Street Jacksonville, Florida 32204

Attorney for Personal Representative: Candyce M. King

Attorney Florida Bar Number: 307210 King & Mannion, P.A. 2219 Park Street Jacksonville, FL 32204

Telephone: (904) 387-9886

Fax: (904) 387-9862

E-Mail: kingcandyce@bellsouth.net

Secondary E-Mail: mannion.sarah@gmail.com Nov. 14/21 00 (24-07213D)

INSERTION

dent Supplemental Petition to Decrease child support until the Respondent was able to work.

5. Since the entry of the Order, many events have occurred that warrant the Respondent asking for the child support payments to be terminated. Specifically,

a. The parties child is now an adult and has not resided with the Petitioner for many years.

b. The parties minor child, was convicted of assault and battery on the Respondent in 2019, under indictment number 1902446 from Memphis, Tennessee.

c. Respondent has not had any contact with the son, for many years.

d. The parties now adult son is believed to be a gang member involved in serious, violent gang related activities. WHEREFORE, Respondent respectfully requests that this honorable court order terminating his child support, due to the reason stated above.

CERTIFICATE OF SERVICE I HEREBY CERTIFY that a copy of the foregoing has been furnished to Donna L. Hedrick at her last known addressed on this 14TH day of October 2024.

BLASON AGUILAR LAW, LLC

MERCEDES BLASON-AGUILAR,ESQ Florida Bar No. 733091 10151 Deerwood Park Blvd. Building 200, Ste. 250 Jacksonville, Florida 32256 Phone: (904) 518-7632 pleadings@blasonaguilarlaw.com Attorney for Respondent Nov. 14/21/29, Dec. 5 00 (24-07135D)

16-2024-CA-003863

DIVISION: CV-F ANDY LETTSOME, Plaintiff, vs. ELVIS LETTSOME, MELVILLE LETTSOME, MARSHA LETTSOME, and EKA LETTSOME, Defendants.

NOTICE OF ACTION NOTICE is hereby given that a civil action commenced on July 11, 2024, and is now pending as case number 16-2024-CA003863 in the Circuit Court in the State of Florida, County of Duval.

The name of the unserved party to the action is: Melville Lettsome 9181 Ribault Avenue, Jacksonville, FL 32208 and the nature of the proceeding is a partition on Real Property –Non-Homestead $1 - $50,000 or less. This notice shall be published once each week for two consecutive weeks in the Jacksonville Daily Record. Each defendant is required

NOTICE

to serve written defenses to the Complaint on plaintiff’s attorney, Stephen K. Hachey, Esq., whose address is 10521 Bloomingdale Ridge Drive, Riverview, FL 33578, on or before the 30th day after the first publication of this Notice, and to file the original of the defenses with the clerk of this court either before service on plaintiff’s attorney or immediately thereafter. If a defendant fails to do so, a default will be entered against that defendant for the relief demanded in the complaint or petition.

WITNESS my hand and the seal of said court at Duval County, Florida on the 8th day of November, 2024.

JODY PHILLIPS AS CLERK OF THE COURT BY Alice V. Griffin As Deputy Clerk (Court Seal) /s/ Stephen K. Hachey Stephen K. Hachey, Esq. Florida Bar No.: 15322 Law Offices of Stephen K. Hachey, P.A. 10521 Bloomingdale Ridge Drive Riverview FL 33578 Phone: 813-549-0096

E-Service: eservice@hacheylawpa.com Nov. 14/21/29, Dec. 5 00 (24-07189D)

FIRST INSERTION

Atlantic Self Storage PUBLIC SALE will be on December 5, 2024 at 10:00 AM starting location: 310 Mayport Rd Atlantic Beach FL 32233 – Unit 134 – Isaiah Miller; Unit 813M2 – Madeline Anne Banks

IMMEDIATELY FOLLOWING: 1089 Atlantic Blvd Atlantic Beach FL 32233 – Unit 2060 – Michael Brown; Unit 2075 –Tabraysha Shalaya Pugh; Unit 2228 – Blake Forrest Breault; Unit 573M2 – Joshua Tharp; Unit A023 – Sokun Taing; Unit C004 – Joseph Charles; Unit D089 –Austin Blake Evans; Unit D098 –Daniel Taylor; Unit E024 – Lorenza Toller; Unit F082 – Robert Jonathan Wright Jr; Unit F085 – Ashly Gaudette; Unit F091 –Stephen Kirk Watts

IMMEDIATELY FOLLOWING: 13660 Atlantic Blvd Jacksonville FL 32225 – Unit 214 – Joyclyn Renee James; Unit 423 – Casey Farmer; Unit 433 – Molly Houlihan; Unit 717 – Richard Dorough; Unit 717 – Richard Dorough JR; Unit 737 – Ryan Hatten; Unit 1000 – Richard Buck; Unit 1034 – Jeffrey Scott Toma; Unit 1144 – Lesli Mercedez Salcido Rubio; Unit 1144 – Lesli Mercedes Salcido Rubio

IMMEDIATELY FOLLOWING: 13951 Beach Blvd Jacksonville FL 32224 – Unit 121

FIRST INSERTION

IN THE CIRCUIT COURT, FOURTH JUDICIAL CIRCUIT, IN AND FOR DUVAL COUNTY, FLORIDA PROBATE DIVISION CASE NO: 16-2024-CP-003097

DIVISION: PR-B

IN RE: ESTATE OF MYRA KAY A/K/A MYRA BAILEY KAY, Deceased.

NOTICE TO CREDITORS

The administration of the estate of MYRA KAY A/K/A MYRA BAILEY KAY, deceased, Case Number 16-2024-CP-003097, Division PR-B, is pending in the Circuit Court of Duval County, Florida, Probate Division, the address of which is Duval County Courthouse, 501 West Adams Street, Jacksonville, Florida 32202. The names and addresses of the personal representative and the personal representative’s attorney are set forth below.

All creditors of the decedent and other persons having claims or demands against decedent’s estate, including unmatured, contingent or unliquidated claims, on whom a copy of this notice is served must file their claims with this court WITHIN THE LATER OF THREE (3) MONTHS AFTER THE DATE OF THE FIRST PUBLICATION OF THIS NOTICE OR THIRTY (30) DAYS AFTER THE DATE OF SERVICE OF A COPY OF THIS NOTICE ON THEM. All other creditors of the decedent and other persons having claims or demands against the decedent’s estate, including unma-

tured, contingent or unliquidated claims, must file their claims with this court WITHIN THREE (3) MONTHS AFTER THE DATE OF THE FIRST PUBLICATION OF THIS NOTICE. IN NO EVENT SHALL ANY CLAIM BE FILED LATER THAN TWO YEARS AFTER THE DECEDENT’S DATE OF DEATH. ALL CLAIMS AND DEMANDS NOT SO FILED WILL BE FOREVER BARRED. A personal representative or curator has no duty to discover whether any property held at the time of the decedent’s death by the decedent or the decedent’s surviving spouse is property to which the Florida Uniform Disposition of Community Property Rights at Death Act as described in sections 732.216-732.228, applies, or may apply, unless a written demand is made by a creditor as specified under section 732.2211. The date of the decedent’s death is January 27, 2024. The date of first publication of this notice is November 14, 2024. CYNTHIA KAY EBERLY, Personal Rep 6520 Oak Valley Drive Cumming, GA 30040

WILLIAM S. FRAZIER, ESQUIRE Attorney for

FIRST INSERTION

NOTICE UNDER FICTITIOUS NAME LAW

According to Florida Statute Number 865.09

NOTICE IS HEREBY GIVEN that the undersigned, desiring to engage in business under the Fictitious Name of Neon Fantasy located at 3196 Citation Cir W, in the City of Jacksonville, Duval County, Florida 32250 intends to register the said name with the Division of Corporations of the Department of State, Tallahassee, Florida. Dated at Jacksonville, Florida, this 12th day of November, 2024. Rachel K.L. Brown Nov. 14 00 (24-07206D)

NOTICE

FIRST INSERTION

NOTICE UNDER FICTITIOUS NAME LAW PURSUANT TO SECTION 865.09, FLORIDA STATUTES NOTICE IS HEREBY GIVEN that the undersigned, desiring to engage in business under the Fictitious Name of BLUE ZONES PROJECT, with a mailing address of 232 East 8th St., Jacksonville, FL 32206, and a principal office located in Duval County, intends to register the said name with the FL Dept. of State, Div. of Corps., Tallahassee, FL. Owner: BLUE ZONES, LLC Nov. 14 00 (24-07203D)

FIRST INSERTION

The following vehicles will be auctioned off, as is, for wrecker, labor, services performed and charges held against them. The auction will be held at Universal Body Company, 1136 E. 9th Street, Jacksonville, Florida on December 10, 2024 at 9:00 am.

1. 2008 KIA

KNDJD736X85770075

2. 2004 ACUR

2HNYD18994H523013

3. 2006 KWE

KWEDD190D505

4. 2014 BMW

WBA3B1G50ENT01373

5. 1998 BUIC

2G4WS52M2W1613635

6. 2014 CHEV

1G11C5SL3EF176358

7. 2017 CHEV

2G1105S30H9171298

8. 2000 FORD

1FTNE24L1YHB41003

9. 1999 FORD

2FTRX17W0XCA10226

10. 2019 HOND

2HGFC2F62KH531905

11. 2009 HOND JHMCP26369C015845

12. 2004 HYUN KMHWF35H14A941977 13. 2020 JAGU SADCK2GX0LA643067 14. 2006 JEEP 1J8HG58N96C352120 15. 2015 KIA

KNDJN2A26F7762654 16. 2016 KIA

KNDJN2A21G7353589 17. 2023 JIAJ L37MMGFT4PZ060019 18. 2008 MERC 2MEHM75V38X636122 19. 1997 NISS 1N4AB41D6VC766849 20. 2013 NISS 1N4AL3AP0DN523641 21. 2008 NISS 1N4AL21E78N429867 22. 2007 PONT 5Y2SL65837Z406443 23. 2007 STRN 5GZCZ53477S864250 24. 2006 IMPE 1Z9BU16266J213383 25. 2014 TOYT 2T1BURHE3EC047134 26. 2009 VOLK 3VWJM71K89M167490 Nov. 14 00 (24-07212D)

CITY OF JACKSONVILLE Bidding Opportunities

FIRST INSERTION BID NOTICE

CITY OF JACKSONVILLE INVITATION TO BID BIDS MUST BE RECEIVED BY THE CITY OF JACKSONVILLE PROCUREMENT DIVISION IN 1CLOUD BY NO LATER THAN THE DATE AND TIME BELOW.

THURSDAY December 19, 2024 @ 10:00 A.M.

1Cloud E-Bidding System 16208-25 THOMAS CREEK FISH CAMP ADA ACCESSIBLE KAYAK LAUNCH BEN KEMP ANALYST 904-255-8820

SCOPE OF WORK: THE PUBLIC WORK DIVISION OF THE CITY OF JACKSONVILLE, FLORIDA IS CURRENTLY ACCEPTING BIDS TO OBTAIN SOURCE(S) OF SUPPLY FOR THE ITEM(S) OR SERVICE(S) AS OUTLINED IN THE BID DOCUMENTS PROVIDED. SEE THE ATTACHMENT(S) FOR ADDITIONAL

FIRST INSERTION

BID NOTICE

CITY OF JACKSONVILLE INVITATION TO BID BIDS MUST BE RECEIVED BY THE CITY OF JACKSONVILLE PROCUREMENT DIVISION IN 1CLOUD BY NO LATER THAN THE DATE AND TIME BELOW. THURSDAY December 19, 2024 @ 10:00 A.M. 1Cloud E-Bidding System 16195-25 TIMUQUAN TRAILSEGMENT C BEN KEMP ANALYST 904-255-8820

SCOPE OF WORK: SCOPE OF SERVICES: THE PROCUREMENT OF THE CITY OF JACKSONVILLE, FLORIDA IS CURRENTLY ACCEPTING BIDS TO OBTAIN SOURCE(S) OF SUPPLY FOR THE ITEM(S) OR SERVICE(S) AS OUTLINED IN THE BID DOCUMENTS PROVIDED. SEE THE ATTACHMENT(S) FOR ADDITIONAL INFORMATION. THE TIMUQUAN TRAIL – SEG -

MENT C PROJECT CONSIST OF THE CONTRACTOR PROVIDING ALL LABOR, MATERIALS, AND EQUIPMENT NECESSARY FOR THE NEW CONSTRUCTION OF A SHARED USE PATH ALONG FORT CAROLINE ROAD WITHIN THE CITY OF JACKSONVILLE. DONNA DEGAN, MAYOR CITY OF JACKSONVILLE, FLORIDA DUSTIN FREEMAN, CHIEF PROCUREMENT DIVISION Nov. 14 00 (24-07217D)

FIRST INSERTION

NOTICE UNDER FICTITIOUS NAME LAW

According to Florida Statute Number 865.09

NOTICE IS HEREBY GIVEN that the undersigned, desiring to engage in business under the Fictitious Name of Elite Fitness located at 11570 San Jose Blvd, Ste. 19, in the City of Jacksonville, Duval County, Florida 32223 intends to register the said name with the Division of Corporations of the Department of State, Tallahassee, Florida.

Dated at Jacksonville, Florida, this 13th day of November, 2024. Ehab Mohamed Nov. 14 00 (24-07219D)

FIRST INSERTION

IN THE CIRCUIT COURT OF THE FOURTH JUDICIAL CIRCUIT, IN AND FOR DUVAL COUNTY, FLORIDA CASE NO: 16-2024-CA-003703 DIVISION: CV-G WEST CLARK, an individual, PLAINTIFF, v. TYRONA CLARK-MURRAY, an individual; DIANESHIA WILSON-JOHNSON, an individual; KEYMETRI FISHBURNE, an individual; XAVIER R. FISHBURNE, an individual; KELVIN WILSON, an individual; JACUEL WILSON, an individual; and KAWANE M. WILSON, an individual. DEFENDANTS.

NOTICE OF ACTION TO PARTITION TO: TYRONA CLARK-MURRAY

SECOND INSERTION

NOTICE OF PUBLIC SALE

Notice is hereby given that on 11/22/2024 at 10:30 am, the following mobile home will be sold at public auction pursuant to F.S. 715.109. 1997 LIBE HS 10L25728X & 10L25728U. Last Tenants: JUNE P COSSELMON and all unknown parties beneficiaries heirs. Sale to be at ADMIRALS WALK MHC, LLC, 2268 MAYPORT RD OFFICE, JACKSONVILLE, FL 32233. 904-2426404. Nov. 7/14 5 (24-07123D)

SECOND INSERTION

INVITATION FOR BIDS

CN-008-25, Roof Replacements – Riviera Apartments Pre-Bid Meeting: November 18, 2024, at 3:00 p.m. EST Via Microsoft Teams –Please contact Tracy Brady At tbrady@jaxha.org for the meeting information. Bid Due: December 19, 2024, at 3:00 p.m. EST Jacksonville Housing Authority 1300 Broad Street N. Jacksonville, FL 32202

More information including the solicitation and scope will be located on the JHA’s website at: http://www.jaxha.org/ e-procurement

Nov. 7/14 5 (24-07061D)

SECOND INSERTION

NOTICE OF PUBLIC LIEN SALE

INFORMATION. WORK CONSISTS OF FURNISHING ALL LABOR, MATERIALS, AND EQUIPMENT AND PERFORMING ALL OPERATIONS NECESSARY FOR CONSTRUCTING THE THOMAS CREEK FISH CAMP ADA ACCESSIBLE KAYAK LAUNCH. THE WORK INCLUDES BUT IS NOT LIMITED TO: INSTALLATION OF A PRE-FABRICATED ADAPTIVE KAYAK LAUNCH AND GANGWAY, CONCRETE BULKHEAD CONSTRUCTION, CONCRETE SIDEWALK REPLACEMENT, DECK LIGHT INSTALLATIONS, SIGNAGE, EROSION CONTROL & POLLUTION ABATEMENT, AND ALL OTHER RELATED WORK IN ACCORDANCE WITH THE CONTRACT DRAWINGS AND SPECIFICATIONS. DONNA DEGAN, MAYOR CITY OF JACKSONVILLE, FLORIDA DUSTIN FREEMAN, CHIEF PROCUREMENT DIVISION Nov. 14 00 (24-07216D)

FIRST INSERTION BID NOTICE CITY OF JACKSONVILLE INVITATION TO BID BIDS MUST BE RECEIVED BY THE CITY OF JACKSONVILLE PROCUREMENT DIVISION IN 1CLOUD BY NO LATER THAN THE DATE AND TIME BELOW. THURSDAY DECEMBER 12, 2024 @ 10:00 A.M. 1CLOUD E-BIDDING SYSTEM 16181-25 CEI SERVICES FOR THE CEDAR POINT RD. & SAWPIT RD WIDENING PROJECT & FOREST TRAIL RD ALEX BAKER ANALYST 904-255-8830

SCOPE OF WORK: THIS IS A REQUEST FOR PROPOSALS (RFP) FOR CONSULTANTS TO PROVIDE PROFESSIONAL CONSTRUCTION ENGINEERING AND INSPECTION (CEI) SERVICES WHICH ARE REQUIRED FOR CONSTRUCTABILITY REVIEWS, CONTRACT ADMINISTRATION, INSPECTION, AND MATERIALS SAMPLING AND TESTING FOR THE PROPOSED ROADWAY IMPROVEMENTS TO CEDAR POINT ROAD & SAWPIT ROAD WIDENING (NEW BERLIN ROAD TO SHARK ROAD) AND FOREST TRAIL ROAD DRAINAGE PROJECTS. DONNA DEGAN, MAYOR CITY OF JACKSONVILLE, FLORIDA DUSTIN FREEMAN, CHIEF PROCUREMENT DIVISION Nov. 14 00 (24-07218D)

YOU ARE NOTIFIED that an action to partition the following property in Duval County, Florida: Lot 9, Block 2, Biscayne Villas, according to plat thereof as recorded in Plat Book 36, Pages 93 and 93A of the current public records of Duval County, Florida. has been filed against you and you are required to serve a copy of your written defenses, if any, to it on Gregory J. Lesak, Jr., the plaintiff’s attorney, whose address is 8280 Princeton Square Blvd. West, Suite 1, Jacksonville FL 32256, within thirty (30) days from the first date of publication, and file the original with the clerk of this court either before service on the plaintiff’s attorney or immediately thereafter; otherwise a default will be entered against you for the relief demanded in the complaint or petition.

DATED on November 13, 2024. JODY PHILLIPS As Clerk of the Court By: Alice V. Griffin As Deputy Clerk (Court Seal) Nov. 14/21/29, Dec. 5 00 (24-07220D)

FIRST INSERTION

IN THE COUNTY COURT, FOURTH JUDICIAL CIRCUIT, IN AND FOR DUVAL COUNTY, FLORIDA CASE NO.: 16-2024-CC-008545 DIVISION: CC-O SWEETWATER CREEK HOMEOWNERS ASSOCIATION, INC., Plaintiff, vs. NICOLE TARLTON; ET AL., Defendants. NOTICE OF ACTION –FORECLOSURE OF REAL PROPERTY TO: NICOLE TARLTON. YOU ARE HEREBY NOTIFIED that an action to foreclose a lien on the following real property located in Duval County, Florida: LOT 177, SWEETWATER CREEK, UNIT TWO, ACCORDING TO THE PLAT THEREOF RECORDED IN PLAT BOOK 48, PAGES 1, 1A-1E, OF THE CURRENT PUBLIC RECORDS OF DUVAL COUNTY, FLORIDA. More commonly known as 5351 Oxford Crest Drive, Jacksonville, Florida 32258. has been filed against you, and you are required to serve a copy of your written defenses, if any, on Plaintiff through their attorney, whose name and address is: Sean Murrell, Esq., Murrell Law, LLC, 35 Durbin Station Court, Unit 106, St. Johns, Florida 32259 on or before thirty (30) days after the first publication, and file the original with the Clerk of this Court either before service on Plaintiff or immediately thereafter; otherwise, a default judgment will be entered against you for the relief demanded in the complaint.

DATED on November 6, 2024, Jacksonville, DUVAL COUNTY, Florida

JODY PHILLIPS As Clerk of the Court

By: Pamela R. Harrell As Deputy Clerk (Court Seal)

Sweetwater Creek Homeowners Association, Inc.

c/o Murrell Law, LLC

Attorney for Plaintiff

35 Durbin Station Ct, Unit 106 Saint Johns, FL 32259 (904) 624-1474 Nov. 14/21 00 (24-07146D)

NOTICE IS HERBY GIVEN that the undersigned intends to sell the personal property described below to enforce a lien imposed on said property under the Florida Self Storage Facility Act Statutes (Section 83.801-83.809). The property contained in the storage unit at Discount Mini Storage of Jacksonville, 5134 Firestone Rd, Jacksonville, FL 32210 will be sold or otherwise disposed of at STORAGETREASURES. COM. The online auction date is November 26, 2024 at 11:00AM or thereafter: Unit #515 Richard Hill Boxes, HHG, Toolbox, W/D Unit #617 Richard Hill Furn, HHG, Gym Equip Unit #824 Chequetta Mclean Plastic bags, Minifridge, Speaker Nov. 7/14 5 (24-07122D)

SECOND INSERTION NOTICE

Extra Space Storage, on behalf of itself or its affiliates, Life Storage or Storage Express, will hold a public auction to sell personal property described below belonging to those individuals listed below at the location indicated: 3445 Plymouth Street Jacksonville FL 32205, on November 26th, 2024 at 2pm. Tanzania Jones Household goods Tara Lavertue Clothes Tatiana Hutchison transfer from 2001. Furniture and boxes Elizabeth Williams household items, furniture Kristin Nemanic Household goods

The auction will be listed and advertised on www.storagetreasures.com. Purchases must be made with cash only and paid at the above referenced facility in order to complete the transaction. Extra Space Storage may refuse any bid and may rescind any purchase up until the winning bidder takes possession of the personal property. Nov. 7/14 5 (24-07109D)

SECOND INSERTION

INVITATION TO BID NUMBER 25-02-17111 ACCESS CONTROL SUPPLIES for the JACKSONVILLE AVIATION AUTHORITY

The Jacksonville Aviation Authority (JAA) has instituted an electronic submission process for the above referenced solicitation. Questions regarding this bid must be received by 5:00 PM (local time) on Friday, November 15, 2024 for consideration. JAA will receive bids electronically via DemandStar.com until 2:00 PM (local time) on Monday, December 2, 2024. HAND DELIVERED, MAILED, FAXED OR EMAILED BIDS WILL NOT BE ACCEPTED. To register with Demand Star. com, visit: https://www.demandstar.com/registration

All bids must be submitted in accordance with Bid Number 25-02-17111, which may be obtained on Tuesday, November 5, 2024 from www.flyjacksonville. com (click on “Bid Opportunities”) or DemandStar.com

This solicitation will be awarded fairly, in accordance with Title VI of the Civil Rights Act of 1964 (78 Stat. 252, 42 U.S.C. §§ 2000d to 2000d-4). Title 49 CFR (Part 26 or 23) and/or similar regulations. Nov. 7/14 5 (24-07114D)

FOURTH INSERTION

IN THE CIRCUIT COURT OF THE FOURTH JUDICIAL CIRCUIT, IN AND FOR DUVAL COUNTY, FLORIDA CASE NO.: 16-2024-DR-011987 Division: FM-F Meagan Wolfla, Petitioner, and Steven Suber, Respondent, NOTICE OF ACTION FOR DISSOLUTION OF MARRIAGE

TO: Steven Suber 13993 Bradham Rd. Jacksonville, FL 32226 YOU ARE NOTIFIED that an action for Divorce has been filed against you and that you are required to serve a copy of your written defenses, if any, to it on Meagan Wolfla whose address is 13250 Companion Cir. S., Jacksonville, FL 32224, on or before December 6, 2024, and file the original with the clerk of this Court at 501 W Adams St., Jacksonville, Florida 32202, before service on Petitioner or immediately thereafter. If you fail to do so, a default may be entered against

you for the relief demanded in the petition. Copies of all court documents in this case, including orders, are available at the Clerk of the Circuit Court’s office. You may review these documents upon request. You must keep the Clerk of the Circuit Court’s office notified of your current address. (You may file Notice of Current Mailing and E-mail Address, Florida Supreme Court Approved Family Law Form 12.915). Future papers in this lawsuit will be mailed to the address on record at the clerk’s office. WARNING: Rule 12.285, Florida Family Law Rules of Procedure, requires certain automatic disclosure of documents and information. Failure to comply can result in sanctions, including dismissal or striking of pleadings.

Dated: October 23, 2024 JODY PHILLIPS, CLERK OF THE CIRCUIT COURT By: Sherri Gesell Deputy Clerk (Court Seal) Oct. 24/31, Nov. 7/14 23 (24-06873D)

FOURTH INSERTION

IN THE CIRCUIT COURT, FOURTH JUDICIAL CIRCUIT, IN AND FOR DUVAL COUNTY, FLORIDA CASE NO.: 16-2024-CA-005451

DIVISION: CV-G Duval County School Board, a body politic and corporate, Plaintiff, v. SS Investment Group, LLC, a Florida limited liability company; and the Unknown Heirs and Devisees of Edward C. Pickett, and all others claiming by, through, and under the Unknown Heirs and Devisees of Edward C. Pickett, Defendants.

NOTICE OF ACTION

TO: The Unknown Heirs and Devisees of Edward C. Pickett, and all others claiming by, through, and under the Unknown Heirs and Devisees of Edward C. Pickett: Last Known Address: Jacksonville, FL

YOU ARE NOTIFIED that an action to quiet title on the following property located in Duval County, Florida has been filed in the above-styled case in the Fourth Judicial Circuit Court in and for Duval County, Florida: A portion of Section 42, the Levi Sparkman Grant, lying in Township 1 South, Range 25 East, Duval County, Florida and being more particularly described as follows: All of Farm Lot 48, (labeled as School), as shown on the plat of North Dinsmore Farms, as recorded in Plat Book 4, Page 59 of the Current

FOURTH INSERTION IN THE CIRCUIT COURT OF THE FOURTH JUDICIAL CIRCUIT, IN AND FOR DUVAL COUNTY, FLORIDA CASE NO.: 16-2024-DR-013401 Division: FM-B Orlando Robles, Petitioner, and Beatriz Ramirez, Respondent, NOTICE OF ACTION FOR DISSOLUTION OF MARRIAGE TO: Beatriz Ramirez 5800 Barnes Rd. Jacksonville, FL 32219 YOU ARE NOTIFIED that an action for Divorce has been filed against you and that you are required to serve a copy of your written defenses, if any, to it on Orlando Robles whose address is 4105 Lane Ave., South, Jacksonville, FL 32210, on or before December 4, 2024, and file the original with the clerk of this Court at 501 W. Adams St., Jacksonville, Florida 32202, before service on Petitioner or immediately thereafter. If you fail to do so, a default may be entered against you for the relief demanded in the petition. Copies of all court documents in this case, including orders, are available at the Clerk of the Circuit Court’s office. You may review these documents upon request. You must keep the Clerk of the Circuit Court’s office notified of your current address. (You may file Notice of Current Mailing and E-mail Address, Florida Supreme Court Approved Family Law Form 12.915). Future papers in this lawsuit will be mailed to the address on record at the clerk’s office.

WARNING: Rule 12.285, Florida Family Law Rules of Procedure, requires certain automatic disclosure of documents and information. Failure to comply can result in sanctions, including dismissal or striking of pleadings.

Dated: October 21, 2024 JODY PHILLIPS, CLERK OF THE CIRCUIT COURT By: Sherri Gesell Deputy Clerk (Court Seal) Oct. 24/31, Nov. 7/14 23 (24-06787D)

Public Records, Duval County, Florida.

TOGETHER WITH: The Easterly 15 feet of that unnamed 30-foot road, lying westerly of and adjacent to said Farm Lot 48 as shown on said North Dinsmore Farms, Vacated by: Resolution 2007407-A and recorded in Official Records Book 13598, Page 2359 of said current Public Records. The street address for the property is 0 Plummer Rd, Jacksonville, FL 32219 (RE #002566-0000). You are required to serve a copy of your written defenses, if any, on Laura Boeckman, the Plaintiff’s attorney, whose address is Office of General Counsel, City of Jacksonville, 117 West Duval Street, Suite 480, Jacksonville, Florida 32202, (904) 255-5100, on or before thirty-five (35) days of the first date of publication of this notice, and file the original with the Clerk of this Court either before service on Plaintiff’s attorney or immediately thereafter; otherwise, a default will be entered against you for the relief demanded in the complaint or petition.

WITNESS my hand and the seal of this Court on the 22nd day of October, 2024.

JODY PHILLIPS Clerk of the Court By: Rebecca D. Collins As Deputy Clerk (Court Seal) Oct. 24/31, Nov. 7/14 23 (24-06856D)

FOURTH INSERTION IN THE CIRCUIT COURT OF THE 4TH JUDICIAL CIRCUIT IN AND FOR DUVAL COUNTY, FLORIDA CASE NO.: 16-2024-CC-009692 DIVISION: CC-Q BRIDGECREST CREDIT COMPANY, LLC, AS AGENT AND SERVICER FOR CARVANA LLC, Plaintiff, v. GEORGE WALTER FORD; ET AL, Defendant(s). NOTICE OF ACTION To the following Defendant(s): GEORGE WALTER FORD (Last Known Address: 10100 Fromage Cir S, Jacksonville , FL 32225) YOU ARE NOTIFIED that an action for Replevin based on boundaries established by acquiescence, on the following described property: 2013 PORSCHE PANAMERA WITH VIN WP0AF2A74DL076416 has been filed against you and you are required to serve a copy of your written defenses, if any, to it, on Ghidotti | Berger LLP, Attorney for Plaintiff, whose address is 10800 Biscayne Blvd., Suite 201, Miami, FL 33161 within thirty (30) days after the first publication of this Notice in the Jacksonville Daily Record and file the original with the Clerk of this Court either before service on Plaintiff’s attorney or immediately thereafter; otherwise a default will be entered against you for the relief demanded in the complaint. This notice is provided pursuant to Administrative Order No. 2010-08 WITNESS my hand and the seal of this Court this 16th day of October, 2024. JODY PHILLIPS As Clerk of Court By: N’colas Burton As Deputy Clerk (Court Seal) Oct. 24/31, Nov. 7/14 23 (24-06750D)

SECOND INSERTION

IN THE JUDICIAL CIRCUIT

COURT IN AND FOR DUVAL COUNTY, FLORIDA

PROBATE DIVISION

Case No.: 16-2024-CP-002428

Division PR-A

IN RE: ESTATE OF SALVATORE MARIO VELTRI

Deceased. Notice to Creditors

The administration of the estate of SALVATORE MARIO VELTRI, deceased, who’s date of death was 03/03/2024, is pending in the Circuit Court for Duval County, Florida, Probate Division, the address of which is 501 West Adams Street, Jacksonville, FL 32202 The names and addresses of the personal representative and the personal representative’s attorney are set forth below.

All other creditors of the decedent and other persons having claims or demands against decedent’s estate on whom a copy of this notice is required to be served must file their claims with this court ON OR BEFORE THE LATER OF 3 MONTHS AFTER THE TIME OF THE FIRST PUBLICATION OF THIS NOTICE OR 30 DAYS AFTER THE DATE OF SERVICE OF A COPY OF THIS NOTICE ON THEM.

All other creditors of the decedent and other persons having claims or demands against decedent’s estate must file their claims with the court WITHIN 3 MONTHS AFTER THE DATE OF THE FIRST PUBLICATION OF THIS NOTICE.

The personal representative has no duty to discover whether any property held at the time of the decedent’s death by the decedent

SECOND INSERTION IN THE CIRCUIT COURT, FOURTH JUDICIAL CIRCUIT, IN AND FOR DUVAL COUNTY, FLORIDA CASE NO. 16-2024-CP-003091

DIVISION: PR-B IN RE: ESTATE OF JIMMIE LEE CLARK, JR.

Deceased. NOTICE TO CREDITORS TO: ALL PERSONS HAVING CLAIMS OR DEMANDS AGAINST THE ABOVE ESTATE:

The administration of the Estate of Jimmie Lee Clark, Jr., deceased, whose date of death was August 30, 2024, is pending in the Circuit Court for Duval County, Florida, Probate division, the address of which is 501 West Adams Street, Room 1173, Jacksonville, FL 32202. The names and addresses of the personal representative and the personal representative’s attorney are set forth below. All creditors of the decedent and other persons having claims or demands against decedent’s estate on whom a copy of this notice is required to be served must file their claims with this court ON OR BEFORE THE LATER OF 3 MONTHS AFTER THE TIME OF THE FIRST PUBLICATION OF THIS NOTICE OR 30 DAYS AFTER THE DATE OF SERVICE OF A COPY OF THIS NOTICE ON THEM.

All other creditors of the decedent and other persons having claims or demands against decedent’s estate must file their claims with this court WITHIN 3 MONTHS AFTER THE DATE OF THE FIRST PUBLICATION OF THIS NOTICE. ALL CLAIMS NOT FILED WITHIN THE TIME PERIODS SET FORTH IN FLORIDA STATUTES SECTION 733.702 WILL BE FOREVER BARRED.

NOTWITHSTANDING THE TIME PERIODS SET FORTH ABOVE, ANY CLAIM FILED TWO (2) YEARS OR MORE AFTER THE DECEDENT’S DATE OF DEATH IS BARRED.

A personal representative or curator has no duty to discover whether any property held at the time of the decedent’s death by the decedent or the decedent’s surviving spouse is property to which the Florida Uniform Disposition of Community Property Rights at Death Act as described in sections 732.216-732.228, applies, or may apply, unless a written demand is made by a creditor as specified under section 732.2211.

The date of first publication of this notice is November 7, 2024.

Personal Representative: Laverne Clark 11392 Secretariat Lane W. Jacksonville, FL 32218

BERNARD & SCHEMER, P.A.

Lawrence J. Bernard, Esquire

480 Busch Drive Jacksonville, Florida 32218

(904) 751-6980

or the decedent’s surviving spouse is property to which the Florida Uniform Disposition of Community Property Rights at Death Act as described in ss. 732.216732.228, applies, or may apply, unless a written demand is made by a creditor as specified under s. 732.2211, Florida Statutes. ALL CLAIMS NOT FILED WITHIN THE TIME PERIODS SET FORTH IN FLORIDA STATUTES SECTION 733.702 WILL BE FOREVER BARRED. NOTWITHSTANDING THE TIME PERIODS SET FORTH ABOVE, ANY CLAIM FILED TWO (2) YEARS OR MORE AFTER THE DECEDENT’S DATE OF DEATH IS BARRED. The date of first publication of this notice is November 7, 2024.

Personal Representative: Valerie Lynne Veltri

Personal Representative c/o McKillop Law Firm, P.L. 7563 Philips Highway, Building 500 Jacksonville, FL 32256

Attorney for Personal Representative: /s/ Julia Chansen McKillop Julia Chansen McKillop

Attorney for Personal Representative Florida Bar Number: 43531 MCKILLOP LAW FIRM, P.L. 7563 Philips Highway, Building 500 Jacksonville, FL 32256 Telephone: (904) 503-3893 E-Mail: pleadings@mckilloplawfirm.com Secondary E-Mail: julia@mckilloplawfirm.com Nov. 7/14 10 (24-07110D)

SECOND INSERTION

NOTICE

Notice is hereby given that on November 21st,2024, U-Haul Company of Northern Florida will be offering for sale under the judicial Lien process; by Online Auction; at storagetreasures.com.

The following storage units, Household goods are stored at the U-Haul center located at 7052 103rd Street, Jacksonville FL 32210.

C206 Bianca Brown $1,400.50

D228-29 Ania Jefferson $1,139.65

C104 Stephanie Agnew $895.75

D314 Abraham Abiara $1,108.05

D160 Demarionna Jackson

$859.05

C013 Derreck Freeman $1,046.10

D199-01 NYKIA JOHNSON

$856.00

The following storage units, Household goods are stored at the U-Haul center located at 1501 Normandy Village Pkwy Jacksonville, FL 32221

1291 DA’SHA ARNOLD $640.85

1384 Giovanni Hall $895.15 1627 ONISHA STUBBS $791.85

1396 Tonita Douglas $1,173.90

1301-02 Stephanie Sanders

$1,491.80 1742 Dustin Lee $744.71

The following storage units, Household goods are stored at the U-Haul center located at 8115 Blanding Blvd, Jacksonville FL 32244

C411 Jashya Phillips $1,379.70

C405 Gavin Smart $734.35

The following storage units, Household goods are stored at the U-Haul center located at 9422 103rd Street, Jacksonville FL 32210

3028 Oscar Hernandez $1,901.65

141 Janice Soliz Quevedo Perez

$1,354.07

134 NEIIBRA JACKSON $1,032.90

1011 Linda Johnson $1,531.55

150 Darlene Sinclair $972.15

1158 BRIAN MIELKE $1,181.05

The following storage units, Household goods are stored at the U-Haul center located at 6100 Blanding Blvd, Jacksonville 32210. 068 kathy harrell $1,115.20

065 John Shuler II $813.25

036 Shannom Gordon $1,917.35

The following storage units, Household goods are stored at the U-Haul center located at 1439 Blanding Blvd, Middleburg FL, 32065

2175 Brandon Campbell $1,122.75

2244 Brandon Campbell $1,122.75

2089 Ervin Stuart $835.30

The following storage units, Household goods are stored at the U-Haul center located at 6805 103rd St Jacksonville, FL 32210

0606 Daveen Pirtle $984.74

0364 huntley buchanan $1,090.15

0610 Travis Carter $914.95

4105 TAMMY VINSON $603.10

SECOND INSERTION

IN THE CIRCUIT COURT OF THE FOURTH JUDICIAL CIRCUIT IN AND FOR DUVAL COUNTY, FLORIDA Case No.: 16-2024-CA-001304

DIVISION: FC-C

U.S. BANK NATIONAL ASSOCIATION, AS TRUSTEE FOR VELOCITY COMMERCIAL CAPITAL LOAN TRUST 2021-3, Plaintiff, v. SOVEREIGN INVESTMENT

GROUP FLA LLC, a Florida limited liability company; JOY ROBINSON, an individual; UNKNOWN TENANT IN POSSESSION #1; and UNKNOWN TENANT IN POSSESSION #2, Defendants.

NOTICE OF FORECLOSURE SALE

NOTICE IS HEREBY GIVEN that on Tuesday, December, 3, 2024, at 11:00 a.m. at: www.duval.realforeclose.com the Clerk of this Court will offer for sale to the highest bidder for cash in accordance with Section 45.031, Fla. Stat., the following described real property: Lot C, Delcher’s First Addition to Murray Hill Terrace, according to the Plat thereof as recorded in Plat Book 16, at Page(s) 49, of the Public Records of Duval County, Florida.

Commonly known as 4833 College Street, Jacksonville, FL 32205-4915

The aforesaid sale will be made pursuant to the Final Judgment entered in Case No.: 16-2024-CA001304 in the Circuit Court of the Fourth Judicial Circuit in and for Duval County, Florida.

Any person claiming an interested in the surplus from the sale, if any other than the property owner as of the date of Lis Pendens, must file a claim before the clerk reports the surplus as unclaimed.

DATED on 4th day of November, 2024.

JODY PHILLIPS

CLERK OF THE CIRCUIT COURT By: Pamela R. Harrell As Deputy Clerk (Court Seal)

Gennifer L. Bridges, Esquire Burr & Forman LLP

200 South Orange Avenue, Suite 80 Orlando, FL 3201

Email: gbridges@burr.com

Secondary Email: nwmosley@burr.com; acape@burr.com

Attorneys for Plaintiff Nov. 7/14 10 (24-07102D)

SECOND INSERTION IN THE CIRCUIT COURT, FOURTH JUDICIAL CIRCUIT IN AND FOR DUVAL COUNTY, FLORIDA CASE NO.: 16-2024-CP-003159

DIVISION: PR-B IN RE: THE ESTATE OF: ELIZABETH STEPHENS WILLIAMS Decedent. NOTICE TO CREDITORS (summary administration) TO ALL PERSONS HAVING CLAIMS OR DEMANDS AGAINST THE ABOVE ESTATE: You are hereby notified that an Order of Summary Administration has been entered in the estate of ELIZABETH STEPHENS WILLIAMS, deceased, File Number 16-2024-CP-003159, by the Circuit Court for Duval County, Florida, Probate Division, that the address of which is 501 W. Adams Street, Jacksonville, Florida; that the total value of the estate is $0 and that the names and addresses of those to whom it has been assigned by such order are: Kimberly Williams Zagraiek, 129 Penn Place, Galivants Ferry, SC 29544, Daughter ALL INTERESTED PERSONS ARE NOTIFIED THAT: All creditors of the estate of the decedent and persons having claims or demands against the estate of the decedent other than those whom provision for full payment was made in Order of the Summary Administration must file their claims with this court FILED WITHIN THE TIME PERIODS SET FORTH IN FLORIDA STATUTES SECTION 733.702. ALL CLAIMS AND DEMANDS NOT SO FILED WILL BE FOREVER BARRED. NOTWITHSTANDING ANY OTHER APPLICABLE TIME PERIOD, ANY CLAIM FILED TWO (2) YEARS OR MORE AFTER THE DECEDENT’S DATE OF DEATH IS BARRED. A personal representative or curator has no duty to discover whether any property held at the time of the decedent’s death by the decedent or the decedent’s surviving spouse is property to which the Florida Uniform Disposition of Community Property Rights at Death Act as described in sections 732.216-732.228, applies, or may apply, unless a written demand is made by a creditor as specified under section 732.2211. The date of first publication of this notice is November 7, 2024. Kimberly Williams Zagraiek Kimberly Williams Zagraiek Personal Representative 129 Penn Place Galivants Ferry, SC 29544 /s/ Jennifer Akin

Jennifer Akin, Esq. Florida Bar No. 113117 6045 A1A S. St. Augustine, FL 32080

Phone: (904) 320-0011

jennifer@jakinlaw.com

Attorney for Petitioner Nov. 7/14 10 (24-07116D)

SECOND INSERTION

IN THE CIRCUIT COURT OF THE FOURTH JUDICIAL CIRCUIT IN AND FOR DUVAL COUNTY, FLORIDA Case No.: 16-2023-CA-010750 DIVISION: CV-E GROUNDFLOOR PROPERTIES GA LLC, Plaintiff, VS. B.I.C HOME SOLUTIONS LLC; IRA EVANS, JR.; SAUNDRIA EVANS; ANY AND ALL UNKNOWN PARTIES CLAIMING BY, THROUGH, UNDER AND AGAINST THE HEREIN NAMED INDIVIDUAL DEFENDANT(S) WHO ARE NOT KNOWN TO BE DEAD OR ALIVE, WHETHER SAID UNKNOWN PARTIES MAY CLAIM AN INTEREST AS SPOUSES, HEIRS, DEVISEES, GRANTEES, OR OTHER CLAIMANTS Defendant(s). NOTICE OF FORECLOSURE SALE PURSUANT TO CHAPTER 45 NOTICE IS HEREBY GIVEN that sale will be made pursuant to an Order or Final Judgment. Final Judgment was awarded on October 25, 2024 in Civil Case No. 16-2023-CA-010750, of the Circuit Court of the Judicial Circuit in and for Duval County, Florida, wherein, GROUNDFLOOR PROPERTIES GA LLC is the Plaintiff, and B.I.C HOME SOLUTIONS LLC; IRA EVANS, JR.; SAUNDRIA EVANS; ANY AND ALL UNKNOWN PARTIES

CLAIMING BY, THROUGH, UNDER AND AGAINST THE HEREIN NAMED INDIVIDUAL DEFENDANT(S) WHO ARE NOT KNOWN TO BE DEAD OR ALIVE, WHETHER SAID UNKNOWN PARTIES MAY CLAIM AN INTEREST AS SPOUSES, HEIRS, DEVISEES, GRANTEES, OR OTHER CLAIMANTS are Defendants.

SECOND INSERTION

IN THE COUNTY COURT, FOURTH JUDICIAL CIRCUIT IN AND FOR DUVAL COUNTY, FLORIDA CASE NO.: 16-2023-CC-002661

DIVISION: CC-K

LONGLEAF MASTER HOMEOWNERS’ ASSOCIATION, INC., a Florida not-for-profit corporation, Plaintiff, v. ERIC CHRISTOPHER HERRING, et al., Defendant. AMENDED NOTICE OF FORECLOSURE SALE NOTICE IS HEREBY given pursuant to a Final Summary Judgment of Foreclosure dated October 24, 2024 and entered in Case No. 16-2023-CC-002661: DIV.: CC-K, of the County Court of the Fourth Judicial District in and for Duval County, Florida wherein LONGLEAF MASTER HOMEOWNERS’ ASSOCIATION, INC., is the Plaintiff and ERIC CHRISTOPHER HERRING is the Defendant, I will sell to the highest bidder for cash at: www.duval.realforeclose.com in Duval County, Florida, at 11:00 A.M. on the 17th day of December, 2024, the following described property as set forth in said Final Judgment, to wit: Lot 670, of LONGLEAF PHASE 6, according to the Plat thereof, as recorded in Plat Book 73, Page 48, of the

Public Records of Duval County, Florida. Parcel Identification Number: 016410-1500. Any person claiming an interest in the surplus from the sale, if any, other than the property owner as of the date of the lis pendens must file a claim before the clerk reports the surplus as unclaimed. Americans With Disabilities Act (ADA) Notice In accordance with the Americans with Disabilities Act of 1990 (ADA), If you are a person with a disability who needs any accommodation in order to participate in this proceeding, you are entitled at no cost to you, to the provision of certain assistance. Please contact the ADA Coordinator at crtintrp@coj.net or (904) 2551695 at least 7 days before your scheduled court appearance, or immediately upon receiving this notification if the time before the scheduled appearance is less than 7 days; if you are hearing or voice impaired, call 711 Dated this 5th day of November, 2024.

JODY PHILLIPS As Clerk of the Court By: Pamela R. Harrell As Deputy Clerk (Court Seal)

Michael J. McCabe, Esquire 110 Solana Road, Suite 102 Ponte Vedra Beach, Florida 32082 service@flcalegal.com Nov. 7/14 10 (24-07111D)

SECOND INSERTION

IN THE CIRCUIT COURT OF THE FOURTH JUDICIAL CIRCUIT IN AND FOR DUVAL COUNTY, FLORIDA CASE NO. 16-2024-CA-001912

(24-07106D)

0701 Andrew McChargue $755.75

0259 Susan Owens $1,589.95

0525 Travis Carter $914.95 Nov. 7/14 10 (24-07108D)

The Clerk of the Court, Jody Phillips will sell to the highest bidder for cash at: www.duval.realforeclose.com

on January 8, 2025 at 11:00:00 AM EST the following described real property as set forth in said Final Judgment, to wit: LOT 2, BLOCK 7, EXCEPT THE WESTERLY 4 FEET THEREOF, UNION INVESTMENT COMPANY’S SUBDIVISION, ACCORDING TO THE PLAT THEREOF RECORDED IN PLAT BOOK 6, PAGE 38, OF THE CURRENT PUBLIC RECORDS OF DUVAL COUNTY, FLORIDA.

Any person claiming an interest in the surplus from the sale, if any, other than the property owner as of the date of the lis pendens must file a claim before the clerk reports the surplus as unclaimed.

Americans With Disabilities Act (ADA) Notice

In accordance with the Americans with Disabilities Act of 1990 (ADA), If you are a person with a disability who needs any accommodation in order to participate in this proceeding, you are entitled at no cost to you, to the provision of certain assistance. Please contact the ADA Coordinator at crtintrp@coj.net or (904) 2551695 at least 7 days before your scheduled court appearance, or immediately upon receiving this notification if the time before the scheduled appearance is less than 7 days; if you are hearing or voice impaired, call 711. WITNESS my hand and the seal of the court on November 5, 2024.

CLERK OF THE COURT

By: Alice V. Griffin Deputy Clerk (Court Seal)

ALDRIDGE PITE, LLP

Attorney for Plaintiff 5300 West Atlantic Avenue Suite 303 Delray Beach, FL 33484

Telephone: 561-392-6391

Facsimile: 561-392-6965 Primary E-Mail: ServiceMail@aldridgepite.com 1696-004B Nov. 7/14 10 (24-07118D)

DIVISION: FC-H GREENSPRING CAPITAL MANAGEMENT LLC, NOT IN ITS INDIVIDUAL CAPACITY, BUT SOLELY AS ADMINISTRATOR OF THE RMH 2023-2 TRUST Plaintiff, v. THE UNKNOWN HEIRS, GRANTEES, DEVISEES, LIENORS, TRUSTEES, AND CREDITORS OF EBENEZER DARDEN A/K/A EBENEZER M. DARDEN, DECEASED; LASONJA DENISE WILLIAMS A/K/A LASONJA D. WILLIAMS A/K/A LASONIA D. WILLIAMS; QUINTIN O WILLIAMS A/K/A QUINTIN O. WILLIAMS; UNKNOWN TENANT 1; UNKNOWN TENANT 2; Defendants. NOTICE OF SALE Notice is hereby given that, pursuant to the Final Judgment of Foreclosure entered on October 18, 2024, in this cause, in the Circuit Court of Duval County, Florida, the clerk shall sell the property situated in Duval County, Florida, described as: LOT 4, BLOCK 59, EAST GRAND PARK, ACCORDING TO PLAT RECORDED IN PLAT BOOK 2, PAGE 51, OF THE CURRENT PUBLIC RECORDS OF DUVAL COUNTY, FLORIDA. a/k/a 2270 W 11TH ST,

IN THE CIRCUIT COURT, FOURTH JUDICIAL CIRCUIT, IN AND FOR DUVAL COUNTY, FLORIDA PROBATE DIVISION CASE No.: 16-2024-CP-003077

DIVISION: PR-B

IN RE: ESTATE OF JOHN HERBERT PARKS, a/k/a JOHN H. PARKS, Deceased.

NOTICE TO CREDITORS

The administration of the estate of JOHN HERBERT PARKS, a/k/a JOHN H. PARKS, deceased, whose date of death was September 11, 2024, is pending in the Circuit Court, for Duval County, Florida, Probate Division, the address of which is 501 West Adams St., Jacksonville, Florida 32202. The names and addresses of the personal representative and the personal representative’s attorney are set forth below.

All creditors of the decedent and other persons having claims or demands against decedent’s estate on whom a copy of this notice is required to be served must file their claims with this court ON OR BEFORE THE LATER OF 3 MONTHS AFTER THE TIME OF THE FIRST PUBLICATION OF THIS NOTICE OR 30 DAYS AFTER THE DATE OF SERVICE OF A COPY OF THIS NOTICE ON THEM. The personal representative has no duty to discover whether any property held at the time of the decedent’s death by the decedent or the decedent’s surviving spouse is property to which the Florida Uniform Disposition of Commu-

JACKSONVILLE , FL 322095859 at public sale, to the highest and best bidder, for cash, online at: www.duval.realforeclose.com on December 05, 2024 beginning at 11:00 AM. Any person claiming an interest in the surplus from the sale, if any, other than the property owner as of the date of the lis pendens must file a claim before the clerk reports the surplus as unclaimed. Americans With Disabilities Act (ADA) Notice In accordance with the Americans with Disabilities Act of 1990 (ADA), If you are a person with a disability who needs any accommodation in order to participate in this proceeding, you are entitled at no cost to you, to the provision of certain assistance. Please contact the ADA Coordinator at crtintrp@coj.net or (904) 2551695 at least 7 days before your scheduled court appearance, or immediately upon receiving this notification if the time before the scheduled appearance is less than 7 days; if you are hearing or voice impaired, call 711. Dated this 4th day of November, 2024.

JODY PHILLIPS Clerk of the Circuit Court By: Pamela R. Harrell Deputy Clerk (Court Seal) eXL Legal, PLLC 12425 28TH ST NORTH, STE. 200 ST. PETERSBURG, FL 33716-1826 EFILING@EXLLEGAL.COM 1000009774 Nov. 7/14 10 (24-07103D)

nity Property Rights at Death Act as described in sections 732.216732.228, applies, Florida Statutes, applies, or may apply, unless a written demand is made by a creditor as specified under section 732.2211, Florida Statutes. All other creditors of the decedent and other persons having claims or demands against decedent’s estate must file their claims with this court WITHIN 3 MONTHS AFTER THE DATE OF THE FIRST PUBLICATION OF THIS NOTICE. ALL CLAIMS NOT FILED WITHIN THE TIME PERIODS SET FORTH IN FLORIDA STATUTES SECTION 733.702 WILL BE FOREVER BARRED. NOTWITHSTANDING THE TIME PERIODS SET FORTH ABOVE, ANY CLAIM FILED TWO (2) YEARS OR MORE AFTER THE DECEDENT’S DATE OF DEATH IS BARRED. The date of first publication of this Notice is November 7, 2024. Personal Representative: KAREN MARIE AUSUM 1818 River Oaks Road, Jacksonville, Florida 32207

Attorney for Personal Representative: ROBERT N. MILLER, ESQUIRE Florida

PUBLIC NOTICES DUVAL COUNTY

THIRD INSERTION

THIRD INSERTION

SECOND INSERTION

NOTICE OF RECEIPT FOR UNCLAIMED FUNDS HELD BY FIDUCIARY

I, JODY PHILLIPS, Clerk of the Circuit Court of Duval County, Florida, do hereby acknowledge that I have this day received from the fiduciary named below, and deposited in the registry of said court, the sum specified below, upon representation of said fiduciary that said sum cannot be distributed or paid to the lawful owner by reason of inability to find the owner or claimant, or becuase no lawful owner or claimant is known to exist, or claimant refuses to accept such funds, the name of the lawful owner or claimant as represented by said fiduciary; being set forth below. Name and fiduciary capacity of fiduciary:

VENITA C. BOSS, Petitioner

In Re: Estate of IRMA JOSEPHINE CARTER CROSBY, Deceased File #16-2024-CP-000238 Division: PR-A Attorney for Petitioner: WILLIAM A. TRECO, Esquire Sum received: $52,407.17* Lawful owner or claimant:

VENITA C. BOSS KELLY JOHNSON DAVID JOHNSON * Amount available for distribution after payment of Clerk’s and publication fees: $51,548.56 Dated at Jacksonville, Duval County, Florida, this October 16, 2024

JODY PHILLIPS CLERK CIRCUIT COURT BY: Fred W. Hill Deputy Clerk Oct. 17, Nov. 14 co (24-06701D)

THIRD INSERTION

IN THE CIRCUIT COURT OF THE FOURTH JUDICIAL

CIRCUIT IN AND FOR DUVAL COUNTY, FLORIDA CASE NO.: 16-2024-CA-005303

DIVISION: CV-B H&D ELITE VENTURES LLC, Plaintiff, v. ERIC ALVIN MOORE; DEPARTMENT OF THE TREASURY INTERNAL REVENUE SERVICE, Defendants. NOTICE OF ACTION

NOTICE OF ADMINISTRATIVE COMPLAINT

To: Kaela K. Perry Case: CD202401666/D 3309491

An Administrative Complaint to revoke your license and eligibility for licensure has been filed against you. You have the right to request a hearing pursuant to Sections 120.569 and 120.57, Florida Statutes, by mailing a request for same to the Florida Department of Agriculture and Consumer Services, Division of Licensing, Post Office Box 5708 Tallahassee, Florida 32314-5708. If a request for hearing is not received by 21 days from the date of the last publication, the right to hearing in this matter will be waived and the Department will dispose of this cause in accordance with law.

Oct. 31, Nov. 7/14/21 15 (24-06904D)

NOTICE OF ADMINISTRATIVE COMPLAINT

To: Kameta M. Jones

Case: CD202408083/D 3309331

An Administrative Complaint to revoke your license and eligibility for licensure has been filed against you. You have the right to request a hearing pursuant to Sections 120.569 and 120.57, Florida Statutes, by mailing a request for same to the Florida Department of Agriculture and Consumer Services, Division of Licensing, Post Office Box 5708 Tallahassee, Florida 32314-5708. If a request for hearing is not received by 21 days from the date of the last publication, the right to hearing in this matter will be waived and the Department will dispose of this cause in accordance with law.

Oct. 31, Nov. 7/14/21 15 (24-06951D)

THIRD INSERTION

IN THE CIRCUIT COURT OF THE FOURTH JUDICIAL CIRCUIT IN AND FOR DUVAL COUNTY, FLORIDA CASE NO.: 16-2024-DR-013367 DIVISION: FM-B IN RE: THE MATTER OF: THOMAS MCCRACKEN, JR., Petitioner/Father and NEENA GREEN, Respondent/Mother. NOTICE OF ACTION TO: NEENA GREEN 8869 WASHINGTON AVE., JACKSONVILLE, FL 32208

THIRD INSERTION

IN THE CIRCUIT COURT OF THE 4TH JUDICIAL CIRCUIT IN AND FOR DUVAL COUNTY CASE NO. 16-2023-DP-374-AB

DIVISION: JV-D IN THE INTEREST OF:

To: ERIC ALVIN MOORE YOU ARE HEREBY NOTIFIED that an action to Quiet Title to real property described as: 10-30 36-1S-26E PEARL COURT LOT 18 BLK 6; More commonly known as: 210 West 54th Street, Jacksonville, FL 32208 has been filed by Plaintiff, H&D ELITE VENTURES LLC, and you are required to serve a copy of your written defenses, if any, on Alisa Wilkes, Esq., 13400 Sutton Park Dr. S., Suite 1204, Jacksonville, FL 32224, (904)620-9545 on or before December 5, 2024 and file the original with the Clerk of Court and Plaintiff’s attorney, otherwise a default and judgment will be entered against you for the relief demanded. Witness my hand and the seal of this court on this 25th day of October, 2024.

THIRD INSERTION

IN THE CIRCUIT COURT, FOURTH JUDICIAL CIRCUIT, IN AND FOR DUVAL COUNTY, FLORIDA

CASE NO.: 16-2024-CA-005879

JODY PHILLIPS Clerk of the Circuit Court By: Alice V. Griffin Deputy Clerk (Court Seal) Oct. 31, Nov. 7/14/21 15 (24-06932D)

THIRD INSERTION

IN THE CIRCUIT COURT OF THE 4TH JUDICIAL CIRCUIT IN AND FOR DUVAL COUNTY CASE NO. 16-2024-DP-138-A

DIVISION: JV-D IN THE INTEREST OF: N.B. DOB: 7/28/2009, MINOR CHILD NOTICE OF ACTION TERMINATION OF PARENTAL RIGHTS

TO: Stephanie Babb, Mother Address unknown YOU ARE HEREBY NOTIFIED that the State of Florida, Department of Children and Families, has filed a Petition to terminate your parental rights and permanently commit the following child for adoption: N.B. born on 7/28/2009. You are hereby commanded to appear on December 9, 2024 , at 1:00 PM before the Honorable W. Collins Cooper Donna J. Vincent at the Duval Courthouse, 501 W Adams Street, Courtroom 202, Jacksonville, FL 32202, for an ADVISORY HEARING.

FAILURE TO PERSONALLY APPEAR AT THIS ADVISORY HEARING CONSTITUTES

CONSENT TO THE TERMINATION OF PARENTAL RIGHTS OF THIS CHILD. IF YOU FAIL TO APPEAR ON THE DATE AND TIME SPECIFIED, YOU MAY LOSE ALL LEGAL RIGHTS AS A PARENT TO THE CHILD NAMED IN THIS NOTICE. If you are a person with a disability who needs any accommodation in order to participate in this proceeding, you are entitled at no cost to you, to the provision of certain assistance. Please contact the ADA Coordinator for the circuit court system at crtintrp@coj.net or (904) 630-2564 immediately upon receiving this notification or if hearing impaired, 1-800-9558771-(TDD); or 1-800-955-8770 (V) Florida Relay Service. WITNESS, my hand as Clerk of said Court and the Seal thereof, this 29th day of October 2024.

JODY PHILLIPS, CLERK OF COURT By: Le My Le As Deputy Clerk (Court Seal) Oct. 31, Nov. 7/14/24 15 (24-06970D)

THIRD INSERTION

IN THE CIRCUIT COURT, FOURTH JUDICIAL CIRCUIT, IN AND FOR DUVAL COUNTY, FLORIDA CASE NO.: 16-2023-DR-004806-FM

DIVISION: FM-B IN THE MATTER OF THE ADOPTION OF: JORDAN DE’ ANTE BENKER, (name to be given to the minor child) Adoptee, and ARIANA MARIE BENKER, (name to be given to the minor child) Adoptee. NOTICE OF ACTION FOR TERMINATION OF PARENTAL RIGHTS AND STEPPARENT ADOPTION TO: AL’CORUS DE’VONTE LEONARD

10842 Cooper Hill Drive Jacksonville, Florida 32218

YOU ARE NOTIFIED that a Joint Petition for Adoption by Stepparent has been filed against you and that you are required to serve a copy of your written defenses, if any, to it on A. Sam Jubran, Esquire, Petitioner’s attorney, whose address is 871 Cassat Avenue, Jacksonville, Florida 32205, on or before December 16, 2024 and file the original with the Clerk of this Court at Duval County Courthouse, 501 West Adams Street, Jacksonville, Florida 32202, either before service on Petitioner’s attorney or immediately thereafter. If you fail to do so, a default may be entered against you for the relief demanded in the

petition. The minor children are identified as follows: Jordan De’ Ante Benker, Date of Birth, May 19, 2011. Birthplace Jacksonville, Florida Ariana Marie Benker Date of Birth, September 28, 2013 Birthplace, Jacksonville, Florida Physical description of Respondent: Age: 32 years old Race: African American Hair Color: Black Eye Color: Brown

Approximate Height: 6’2”

Approximate Weight: 250 lbs.

Copies of all court documents in this case, including orders, are available at the Clerk of the Circuit Court’s office. You may review these documents upon request. You must keep the Clerk of the Circuit Court’s office notified of your current address. (You may file Designation of Current Mailing and E-Mail Address, Florida Supreme Court Approved Family Law Form 12.915.) Future papers in this lawsuit will be mailed or e-mailed to the addresses on record at the clerk’s office. DATED this 30th day of October, 2024.

JODY PHILLIPS CLERK OF THE CIRCUIT COURT

By: DEONNA SHEL TON Deputy Clerk

(Court Seal) Oct. 31, Nov. 7/14/21 15 (24-06990D)

DIVISION: CV-G ARTEK HOMES, LLC, a Florida limited liability company, Plaintiff, vs. ESTATE OF GARY WAYNE HOLDEN; UNKNOWN PERSONAL REPRESENTATIVE OF GARY WAYNE HOLDEN; TERESA A. ADAMS-HOLDEN, an individual; UNKNOWN HEIRS of GARY WAYNE HOLDEN; SHAWN A. HOLDEN, an individual; KYLE HOLDEN, an individual; the CITY OF JACKSONVILLE; and the STATE OF FLORIDA, Defendants.

NOTICE OF ACTION TO: ESTATE OF GARY WAYNE HOLDEN; UNKNOWN PERSONAL REPRESENTATIVE OF GARY WAYNE HOLDEN; UNKNOWN HEIRS of GARY WAYNE HOLDEN (Collectively “Defendant”), and all unknown parties claiming by, through, under or against the above-named Defendants, who are not known to be dead or alive, whether said unknown parties claim as heirs, devisees, grantees, assignees, lienors, creditors, trustees, spouses, or other claimants, Current Residences are Unknown.

YOU ARE NOTIFIED that an action to foreclose on the following property in Duval County, Florida, LOT 2, BLOCK 16, Section 18, Township 2 South, Range 25 East, WHITE CITY, according to plat thereof

recorded in Plat Book 5, pages 70 and 70A of the current public records of Duval County Florida. (the “Property”) has been filed against you and you are required to serve a copy of your written defenses, if any, to it on Woolsey Morcom, PLLC, Plaintiff’s attorney, whose address is 203 Fort Wade Road, Suite 260, Ponte Vedra, Florida 32081, within thirty (30) days after the first publication of this Notice of Action, and file the original with the Clerk of this Court at the Duval County Courthouse, 501 W Adams St, Jacksonville, Florida 32202, either before service on Plaintiff’s attorney or immediately thereafter; otherwise, a default will be entered against you for the relief demanded in the complaint petition.

Americans With Disabilities Act (ADA) Notice In accordance with the Americans with Disabilities Act of 1990 (ADA), If you are a person with a disability who needs any accommodation in order to participate in this proceeding, you are entitled at no cost to you, to the provision of certain assistance. Please contact the ADA Coordinator at crtintrp@coj.net or (904) 2551695 at least 7 days before your scheduled court appearance, or immediately upon receiving this notification if the time before the scheduled appearance is less than 7 days; if you are hearing or voice impaired, call 711. WITNESS my hand and seal of the Court on this 28th day of October, 2024.

JODY PHILLIPS

Clerk of the Circuit Court

By: Alice V. Griffin Deputy Clerk (Court Seal) Oct. 31, Nov. 7/14/21 15 (24-06953D)

THIRD INSERTION

IN THE CIRCUIT COURT, FOURTH JUDICIAL CIRCUIT, IN AND FOR DUVAL COUNTY, FLORIDA

CASE NO.: 16-2024-CA-004499

DIVISION: CV-H

PARKWEST HOLDINGS, LLC, a Florida limited liability company, Plaintiff, vs. ADH HOLDINGS FL LLC, a Florida limited liability company; ROBERT BRADIS, an individual; ALPHONSO HEMMEAIN, an individual; RAL HOLDINGS, LLC, a Florida limited liability company; GENVEN PROPERTIES, LLC, a New Mexico limited liability company; and THE PALMS AT MARSH LANDING CONDOMINIUM ASSOCIATION, INC., a Florida corporation, Defendants.

AMENDED NOTICE OF ACTION TO: ALPHONSO HEMMEAIN, an individual (“Defendant”), and all unknown parties claiming by, through, under or against the above-named Defendant, who are not known to be dead or alive, whether said unknown parties claim as heirs, devisees, grantees, assignees, lienors, creditors, trustees, spouses, or other claimants, Current Residence Unknown.

YOU ARE NOTIFIED that an action to foreclose on the following property in Duval County, Florida, Unit 2413 of the Palms at Marsh Landing Condominium, a Condominium according to the Declaration of Condominium thereof, recorded in Official Records Book 11490, Page(s) 1231, of the Public Records of Duval County, Florida, and any

amendments thereto, together with its undivided share in the common elements.

Parcel ID Number: 1817800782

(the “Property”) has been filed against you and you are required to serve a copy of your written defenses, if any, to it on Woolsey Morcom, PLLC, Plaintiff’s attorney, whose address is 203 Fort Wade Road, Suite 260, Ponte Vedra, Florida 32081, within thirty (30) days after the first publication of this Notice of Action, and file the original with the Clerk of this Court in Duval County at, 501 W Adams St, Jacksonville, Florida 32202, either before service on Plaintiff’s attorney or immediately thereafter; otherwise, a default will be entered against you for the relief demanded in the complaint petition.

Americans With Disabilities Act (ADA) Notice

In accordance with the Americans with Disabilities Act of 1990 (ADA), If you are a person with a disability who needs any accommodation in order to participate in this proceeding, you are entitled at no cost to you, to the provision of certain assistance. Please contact the ADA Coordinator at crtintrp@coj.net or (904) 2551695 at least 7 days before your scheduled court appearance, or immediately upon receiving this notification if the time before the scheduled appearance is less than 7 days; if you are hearing or voice impaired, call 711. WITNESS my hand and seal of the Court on this 29th day of October, 2024. JODY PHILLIPS Clerk of the Circuit Court By: Pamela

Deputy Clerk (Court Seal) Oct. 31, Nov. 7/14/21 15 (24-06957D)

YOU ARE NOTIFIED that an action for Petition for Superseding Child Support Order has been filed against you and that you are required to serve a copy of your written defenses, if any, to it on Lee J. Pickett, Esquire, Petitioner/ Father’s attorney, whose address is 10700 Beach Blvd., #19144, Jacksonville, FL 32245, on or before December 12, 2024 and file the original with the clerk of this Court at Duval County Courthouse, 501 West Adams Street, Jacksonville, Florida 32202, before service on Petitioner or immediately thereafter. If you fail to do so, a default may be entered against you for the relief demanded in the petition. The action is not asking the court to decide how real or personal property should be divided. Copies of all court documents in this case, including orders, are available at the Clerk of the Circuit Court’s office. You may review these documents upon request.

You must keep the Clerk of the Circuit Court’s office notified of your current address. (You may file Designation of Current Mailing and E-Mail Address, Florida Supreme Court Approved Family Law Form 12.915.) Future papers in this lawsuit will be mailed or emailed to the addresses on record at the clerk’s office. WARNING: Rule 12.285, Florida Family Law Rules of Procedure, requires certain automatic disclosure of documents and information. Failure to comply can result in sanctions, including dismissal or striking of pleadings.

Dated: October 28, 2024 JODY PHILLIPS, CLERK OF THE CIRCUIT COURT By: Monet Wheatley-Phillip Deputy Clerk (Court Seal) Oct. 31, Nov. 7/14/21 15 (24-06947D)

T.M. DOB: 8/15/2015 S.T. DOB: 9/30/2023 MINOR CHILDREN NOTICE OF ACTION TERMINATION OF PARENTAL RIGHTS TO: LeQuinta Hall, address unknown YOU ARE HEREBY NOTIFIED that the State of Florida, Department of Children and Families, has filed a Petition to terminate your parental rights and permanently commit the following children for adoption: T.M. born on 8/15/2015 and S.T. born 09/30/2023. You are hereby commanded to appear on December 9, 2024, at 1:00 PM before the Honorable W. Collins Cooper at the Duval Courthouse, 501 W Adams Street, Courtroom 202, Jacksonville, FL 32202, for an ADVISORY HEARING. FAILURE TO PERSONALLY APPEAR AT THIS ADVISORY HEARING CONSTITUTES CONSENT TO THE TERMINATION OF PARENTAL RIGHTS OF THIS CHILD (OR CHILDREN). IF YOU FAIL TO APPEAR ON THE DATE AND TIME SPECIFIED, YOU MAY LOSE ALL LEGAL RIGHTS AS A PARENT TO THE CHILD OR CHILDREN NAMED IN THIS NOTICE.

1. If you are a person with a disability who needs any accommodation in order to participate in this proceeding, you are entitled, at no cost to you, to the provision of certain assistance. Please contact the ADA Coordinator for the circuit court system at crtintrp@ coj.net or (904) 630-2564 immediately upon receiving this notification or if hearing impaired, 1-800-955-8771-(TDD); or 1-800955-8770 (V) Florida Relay Service at least 7 days before your scheduled court appearance, or immediately upon receiving this notification if the time before the scheduled appearance is less than 7 days; if you are hearing or voice impaired, call 711. WITNESS, my hand as Clerk of said Court and the Seal thereof, this 29th day of October 2024. JODY PHILLIPS, CLERK OF COURT By: Le My Le As Deputy Clerk (Court Seal) Oct. 31, Nov. 7/14/24 15 (24-06963D)

THIRD INSERTION

IN THE CIRCUIT COURT, FOURTH JUDICIAL CIRCUIT, IN AND FOR DUVAL COUNTY, FLORIDA CASE NO.: 16-2024-CA-004083

DIVISION: CV-G

DONALD W. DAVIS and JEANNIE K. DAVIS, husband and wife, Plaintiffs, vs. MAMIE SUE PATRICK,, et al.; Defendants.

NOTICE OF ACTION

TO: MAMIE SUE PATRICK, if living, and if deceased, her unknown spouses, heirs, devisees, grantees, creditors and all other parties claiming by, through, under or against her; EARLY M. DAVIS, if living, and if deceased, his unknown spouses, heirs, devisees, grantees, creditors and all other parties claiming by, through, under or against him; DOROTHY G. DAVIS, if living, and if deceased, her unknown spouses, heirs, devisees, grantees, creditors and all other parties claiming by, through, under or against her; BRUCE DAVIS, if living, and if deceased, his unknown spouses, heirs, devisees, grantees, creditors and all other parties claiming by, through, under or against him; A.H. KIERCE, if living, and if deceased, his unknown spouses, heirs, devisees, grantees, creditors and all other parties claiming by, through, under or against him; and HELEN KIERCE WISE, if living, and if deceased, her unknown spouses, heirs, devisees, grantees, creditors and all other parties claiming by, through, under or against her.

Last Known Residence (A.H. Kierce): 4516 Attleboro Avenue, Jacksonville, FL 32205

Last Known Residence (Early and Dorothy Davis): 1934 N. Edgewood, Jacksonville, FL 32205

Last Known Residence (Bruce Davis): 3856 Bess Road,

Jacksonville, FL 32277

YOU ARE NOTIFIED that a Reformation, Quiet Title or Declaratory action as to the real property located at 1934 Edgewood Avenue N., Jacksonville, Florida 32254, more particularly described as: Commencing on the West side of Edgewood Avenue at the Northeast corner of the South One-Half (S 1/2) of the Southeast One-quarter (SE 1/4) of the Northeast One-Quarter (NE 1/4) of the Northeast One-Quarter (NE 1/4) of Section Seven (7), Township Two (2) South, Range Twenty-six (26) East and running thence West Three Hundred Forty-eight and One-half (348 1/2) feet, thence South parallel with Edgewood Avenue One Hundred Twenty-five (125) feet thence East Three Hundred Forty-eight and One-half (348 1/2) feet to the West boundary line of Edgewood Avenue, thence North along the West boundary line of Edgewood Avenue, One Hundred Twenty-five (125) feet to the point of beginning, all in the City of Jacksonville, Florida. has been filed against you and you are required to serve a copy of your written defenses, if any, to it on BLAIR D. SCHEMER, ESQUIRE, Plaintiffs’ attorney, whose address is 480 Busch Drive, Jacksonville, Florida 32218, on or before 30 days from the first date of publication of this notice, and file the original with the Clerk of this Court either before service on Plaintiffs’ attorney or immediately thereafter; otherwise, a default will be entered against you for the relief demanded in the complaint or petition. WITNESS my hand and the seal of this Court on the 24th day of October, 2024.

JODY PHILLIPS Clerk of the

SECOND INSERTION

SECOND INSERTION

IN THE CIRCUIT COURT OF THE FOURTH JUDICIAL CIRCUIT IN AND FOR DUVAL COUNTY, FLORIDA CASE NO. 16-2024-CA-001933

DIVISION: FC-F

GREENSPRING CAPITAL MANAGEMENT LLC, NOT IN ITS INDIVIDUAL CAPACITY, BUT SOLELY AS ADMINISTRATOR OF THE RMH 2023-2 TRUST Plaintiff,

v. THE UNKNOWN HEIRS, GRANTEES, DEVISEES, LIENORS, TRUSTEES, AND CREDITORS OF BERTHA HIATT A/K/A BERTHA MARIE HIATT, DECEASED; UNKNOWN TENANT 1; UNKNOWN TENANT 2; RAMONA JEAN HEBERT; ROBIN LYNN HIATT; ANGELA MARIE SWING A/K/A ANGELA MARIE HARMEL; AQUA FINANCE, INC.

Defendants. NOTICE OF SALE Notice is hereby given that, pursuant to the Final Judgment of Foreclosure entered on October 18, 2024, in this cause, in the Circuit Court of Duval County, Florida, the clerk shall sell the property situated in Duval County, Florida, described as: A PART OF LOTS 10 AND 11, PLEASANT PARK, AS RECORDED IN PLAT BOOK 9, PAGE 31 OF CURRENT PUBLIC RECORDS OF DUVAL COUNTY, FLORIDA AND BEING MORE PARTICULARLY DESCRIBED AS FOLLOWS: COMMENCE AT THE SOUTHWEST CORNER OF SAID LOT 10; THENCE SOUTH 88 DEGREES

56 MINUTES 20 SECONDS EAST ALONG THE NORTHERLY RIGHTOF-WAY LINE OF PARK AVENUE (A 50 FOOT RIGHT-OF-WAY AS NOW ESTABLISHED), 209.12 FEET; THENCE NORTH

00 DEGREES 50 MINUTES

26 SECONDS EAST, 502.30 FEET TO THE POINT OF BEGINNING; THENCE

CONTINUE NORTH 00 DEGREES 50 MINUTES

26 SECONDS EAST, 105.41 FEET; THENCE NORTH

89 DEGREES 16 MINUTES

58 SECONDS EAST, 49.22 FEET; THENCE NORTH

60 DEGREES 23 MINUTES

54 SECONDS EAST 177.50

FEET TO THE WEST LINE OF THE EAST 20.00 FEET OF SAID LOT 11; THENCE SOUTH 00 DEGREES 16 MINUTES 51 SECONDS WEST ALONG LAST SAID LINE, 191.14 FEET; THENCE SOUTH 89 DEGREES 16 MINUTES 58 SECONDS WEST, 204.18 FEET TO THE POINT OF BEGINNING. CONTAINING 0.64 ACRES, MORE OR LESS, AND BEING SUBJECT TO AND TOGETHER WITH THE FOLLOWING DESCRIBED EASEMENT FOR INGRESS, EGRESS, DRAINAGE AND UTILITIES; A PART OF LOTS 10 AND 11, PLEASANT PARK AS RECORDED IN PLAT BOOK 9, PAGE 31 OF THE CURRENT PUBLIC RECORDS OF DUVAL COUNTY, FLORIDA AND BEING MORE PARTICULARLY DESCRIBED AS FOLLOWS: COMMENCE AT THE SOUTHWEST CORNER OF SAID LOT 10; THENCE NORTH 88 DEGREES 56 MINUTES 20 SECONDS EAST ALONG THE NORTHERLY RIGHT-OF-WAY LINE OF PARK AVENUE (A 50 FOOT RIGHT-OF-WAY AS NOW ESTABLISHED), 154.92 FEET TO THE POINT OF BEGINNING AND THE POINT OF CURVATURE OF A CURVE TO THE LEFT; THENCE ALONG AND AROUND THE ARC OF SAID CURVE, BEING CONCAVE NORTHWESTERLY AND HAVING A RADIUS OF 25.00 FEET, AN ARC DISTANCE OF 38.44 FEET, SAID ARC BEING SUBTENDED BY A CHORD BEARING AND DISTANCE OF NORTH 44 DEGREES 53 MINUTES 23 SECONDS EAST, 34.76

FEET TO THE POINT OF TANGENCY OF SAID CURVE; THENCE NORTH 00 DEGREES 50 MINUTES 27 SECONDS EAST, 513.74

FEET TO THE POINT OF CURVATURE OF A CURVE TO THE LEFT; THENCE ALONG AND AROUND THE ARC OF SAID CURVE,

BEING CONCAVE SOUTHWESTERLY AND HAVING A RADIUS OF 25 FEET, AN ARC DISTANCE OF 36.32 FEET, SAID ARC BEING SUBTENDED BY A CHORD BEARING AND DISTANCE OF NORTH 40 DEGREES 46 MINUTES 43 SECONDS WEST, 33.21 FEET TO THE POINT OF REVERSE CURVATURE; THENCE ALONG AND AROUND THE ARC OF SAID CURVE, BEING CONCAVE EASTERLY AND HAVING A RADIUS OF 45 FEET, AN ARC DISTANCE OF 134.84 FEET, SAID ARC BEING SUBTENDED BY A CHORD BEARING AND DISTANCE OF NORTH 03 DEGREES 26 MINUTES 32 SECONDS EAST, 89.76 FEET TO THE POINT OF TANGENCY OF SAID CURVE; THENCE NORTH 89 DEGREES 16 MINUTES 58 SECONDS EAST, 96.00 FEET TO THE POINT OF CURVATURE OF A CURVE TO THE RIGHT; THENCE ALONG AND AROUND THE ARC OF SAID CURVE, BEING CONCAVE WESTERLY AND HAVING A RADIUS OF 45.00 FEET, AN ARC DISTANCE OF 138.87 FEET, SAID ARC BEING SUBTENDED BY A CHORD BEARING AND DISTANCE OF SOUTH 02 DEGREES 18 MINUTES 44 SECONDS EAST, 89.97 FEET TO A POINT OF REVERSE CURVATURE; THENCE ALONG AND AROUND THE ARC OF SAID CURVE, BEING CONCAVE SOUTHEASTERLY AND HAVING A RADIUS OF 25 FEET, AN ARC DISTANCE OF 37.20 FEET, SAID ARC BEING SUBTENDED BY A CHORD BEARING AND DISTANCE OF SOUTH 43 DEGREES 28 MINUTES 00 SECONDS WEST, 33.86 FEET TO THE POINT OF TANGENCY OF SAID CURVE; THENCE SOUTH 00 DEGREES 50 MINUTES 27 SECONDS WEST, 512.45 FEET TO THE POINT OF CURVATURE OF A CURVE TO THE LEFT; THENCE ALONG AND AROUND THE ARC OF SAID CURVE, BEING CONCAVE NORTHEASTERLY AND HAVING A RADIUS OF 25.00 FEET, AN ARC DISTANCE OF 40.01 FEET, SAID ARC BEING SUBTENDED BY A CHORD BEARING AND DISTANCE OF SOUTH 45 DEGREES 06 MINUTES 37 SECONDS EAST, 35.94 FEET TO THE POINT OF TANGENCY OF SAID CURVE AND SAID NORTHERLY RIGHT-OFWAY LINE OF PARK AVENUE; THENCE SOUTH 88 DEGREES 56 MINUTES 20 SECONDS WEST ALONG SAID NORTHERLY RIGHTOF-WAY LINE, 110.06 FEET TO THE POINT OF BEGINNING. a/k/a 15441 NORMAN AVE N, JACKSONVILLE, FL 32218-6895 at public sale, to the highest and best bidder, for cash, online at: www.duval.realforeclose.com on December 04, 2024 beginning at 11:00 AM. Any person claiming an interest in the surplus from the sale, if any, other than the property owner as of the date of the lis pendens must file a claim before the clerk reports the surplus as unclaimed.

Americans With Disabilities Act (ADA) Notice In accordance with the Americans with Disabilities Act of 1990 (ADA), If you are a person with a disability who needs any accommodation in order to participate in this proceeding, you are entitled at no cost to you, to the provision of certain assistance. Please contact the ADA Coordinator at crtintrp@coj.net or (904) 2551695 at least 7 days before your scheduled court appearance, or immediately upon receiving this notification if the time before the scheduled appearance is less than 7 days; if you are hearing or voice impaired, call 711.

Dated this 1st day of November, 2024.

JODY PHILLIPS Clerk of the Circuit Court

By: Pamela R. Harrell Deputy Clerk (Court Seal) eXL Legal, PLLC 12425 28TH ST NORTH, STE. 200 ST. PETERSBURG, FL 33716-1826

EFILING@EXLLEGAL.COM 1000009765 Nov. 7/14 8 (24-07071D)

SECOND

IN THE CIRCUIT COURT OF THE FOURTH JUDICIAL CIRCUIT IN AND FOR DUVAL COUNTY, FLORIDA GENERAL JURISDICTION DIVISION CASE NO. 16-2023-CA-000607

DIVISION: FC-A

U.S. BANK NATIONAL ASSOCIATION, NOT IN ITS INDIVIDUAL CAPACITY BUT SOLELY IN ITS CAPACITY AS INDENTURE TRUSTEE OF CIM TRUST 2021NR3, Plaintiff, vs. THE UNKNOWN HEIRS, BENEFICIARIES, DEVISEES, GRANTEES, ASSIGNEES, LIENORS, CREDITORS, TRUSTEES AND ALL OTHERS WHO MAY CLAIM AN INTEREST IN THE ESTATE OF WILLIAM ROOS, DECEASED, et al. Defendant(s).

NOTICE OF FORECLOSURE SALE

NOTICE IS HEREBY GIVEN pursuant to a Final Judgment of Foreclosure dated July 22, 2024, and Amended Final Judgment Nunc Pro Tunc dated Sept 12, 2024 and entered in 16-2023CA-000607 of the Circuit Court of the FOURTH Judicial Circuit in and for Duval County, Florida, wherein U.S. BANK TRUST COMPANY, NATIONAL ASSOCIATION, AS TRUSTEE, AS SUCCESSOR-IN-INTEREST TO U.S. BANK NATIONAL ASSOCIATION, NOT IN ITS INDIVIDUAL CAPACITY BUT SOLELY IN ITS CAPACITY AS INDENTURE TRUSTEE OF CIM TRUST 2021-NR3 is the Plaintiff and THE UNKNOWN HEIRS, BENEFICIARIES, DEVISEES, GRANTEES, ASSIGNEES, LIENORS, CREDITORS, TRUSTEES AND ALL OTHERS WHO MAY CLAIM AN INTEREST IN THE ESTATE OF WILLIAM ROOS, DECEASED; ANNA ROOS; WILLIAM J. ROOS, JR.; DARCY B. ROOS are the Defendant(s). Jody Phillips as the Clerk of the Circuit Court will sell to the highest and best bidder for cash at: www.duval.realforeclose.com at 11:00 AM, on November 25,

INSERTION

2024, the following described property as set forth in said Final Judgment, to wit: ALL THAT CERTAIN REAL ESTATE SITUATE IN THE COUNTY OF DUVAL, STATE OF FLORIDA, TO WIT: LOT 17, BLOCK 40, SOUTHSIDE ESTATES UNIT NO. 11, ACCORDING TO PLAT THEREOF AS RECORDED IN PLAT BOOK 20, PAGES 25 AND 25A, OF THE CURRENT PUBLIC RECORDS OF DUVAL COUNTY, FLORIDA. TAX MAP OR PARCEL ID NO.: 123983 0000 Property Address: 2524 PEACH DR, JACKSONVILLE, FL 32246

Any person claiming an interest in the surplus from the sale, if any, other than the property owner as of the date of the lis pendens must file a claim in accordance with Florida Statutes, Section 45.031. Americans With Disabilities Act (ADA) Notice In accordance with the Americans with Disabilities Act of 1990 (ADA), If you are a person with a disability who needs any accommodation in order to participate in this proceeding, you are entitled at no cost to you, to the provision of certain assistance. Please contact the ADA Coordinator at crtintrp@coj.net or (904) 2551695 at least 7 days before your scheduled court appearance, or immediately upon receiving this notification if the time before the scheduled appearance is less than 7 days; if you are hearing or voice impaired, call 711. Dated this 1st day of November, 2024.

JODY PHILLIPS As Clerk of the Court By: Pamela R. Harrell As Deputy Clerk (Court Seal) Robertson, Anschutz, Schneid, Crane & Partners, PLLC Attorneys for Plaintiff 6409 Congress Ave., Suite 100, Boca Raton, FL 33487

Telephone: 561-241-6901

Fax: 561-997-6909

21-057843 - MaM Nov. 7/14

SECOND INSERTION

IN THE CIRCUIT COURT OF THE FOURTH JUDICIAL CIRCUIT IN AND FOR DUVAL COUNTY, FLORIDA

CIVIL DIVISION

Case No.: 16-2023-CA-011358

DIVISION: FC-F

DKC LENDING, LLC, a Florida limited liability company, As Trustee for DKC LENDING FL, LLC, a Florida limited liability company, under that LOAN SERVICING AGREEMENT DATED JUNE 15, 2022, Plaintiff, v. 1435 FLANDERS JAX LLC, a Wyoming limited liability company; D&L FAMILY TRUST DATED JULY 7, 2022; IRA FINANCIAL TRUST COMPANY FBO RYAN SMITH; SNYDER AIR CONDITIONING, PLUMBING & ELECTRIC; and UNKNOWN TENANT IN POSSESSION, Defendants.

NOTICE OF SALE

NOTICE IS HEREBY GIVEN pursuant to a Final Summary Judgment of Foreclosure dated October 31, 2024, entered in Case No.: 16-2023-CA-011358 of the Circuit Court in and for Duval County, Florida, wherein 1435 FLANDERS JAX LLC, a Wyoming limited liability company, D&L FAMILY TRUST DATED JULY 7, 2022, IRA FINANCIAL TRUST COMPANY FBO RYAN SMITH, and SNYDER AIR CONDITIONING, PLUMBING & ELECTRIC, are the Defendants, that Jody Phillips will sell to the highest and best bidder for cash, on December 11, 2024 at 11:00 AM, at the Clerk of the Circuit Court, online at: www.duval.realforeclose.com the following described real property as set forth in the Final Summary Judgment of Foreclosure: Legal: THAT CERTAIN PIECE, PARCEL OR TRACT OF LAND, SITUATE, LYING AND BEING A PART OF LOT 21, BATES AND MARTIN’S SUBDIVISION, AS RECORDED IN PLAT BOOK 8, PAGE 35, OF THE CURRENT PUBLIC RECORDS OF DUVAL COUNTY, FLORIDA, AND MORE PARTICULARLY DESCRIBED AS FOLLOWS: COMMENCING AT THE INTERSECTION OF THE WESTERLY RIGHT OF WAY LINE OF SAN JOSE BOULEVARD (A 100-FOOT RIGHT OF WAY AS NOW ESTABLISHED), WITH THE WESTERLY RIGHT OF WAY LINE OF FLANDERS AVENUE, (A 30-FOOT RIGHT OF WAY AS NOW ESTABLISHED),

IN THE CIRCUIT COURT OF THE FOURTH JUDICIAL CIRCUIT IN AND FOR DUVAL COUNTY, FLORIDA GENERAL JURISDICTION

DIVISION CASE NO. 16-2023-CA-010183

DIVISION: FC-C

U.S. BANK NATIONAL ASSOCIATION, Plaintiff, vs. ERIC M. LUCAS AND OLIVIA C. CONE, et al. Defendant(s). NOTICE OF FORECLOSURE SALE NOTICE IS HEREBY GIVEN pursuant to a Final Judgment of Foreclosure dated January 08, 2024, and entered in 16-2023-CA010183 of the Circuit Court of the FOURTH Judicial Circuit in and for Duval County, Florida, wherein U.S. BANK NATIONAL ASSOCIATION is the Plaintiff and ERIC M. LUCAS; OLIVIA C. CONE are the Defendant(s). Jody Phillips as the Clerk of the Circuit Court will sell to the highest and best bidder for cash at: www.duval.realforeclose.com at 11:00 AM, on November 26, 2024, the following described property as set forth in said Final Judgment, to wit: LOT 29 OF CAPE CORAL, ACCORDING TO THE PLAT THEREOF AS RECORDED IN PLAT BOOK 54, PAGE(S) 63, 63A, THROUGH 63D, OF THE PUBLIC RECORDS OF DUVAL COUNTY, FLORIDA.

IN THE CIRCUIT COURT FOR DUVAL COUNTY, FLORIDA PROBATE DIVISION

CaseNo.: 16 -2024-CP-002688

DIVISION: PR-A IN RE: ESTATE OF Robert Eugene Sewell

Deceased, NOTICE TO CREDITORS

8 (24-07072D)

SAID POINT ALSO BEING THE SOUTHEASTERLY CORNER OF SAID LOT 21; THENCE SOUTHWESTERLY AND ALONG THE SAID NOTHWESTERLY RIGHT OF WAY LINE OF FLANDERS AVENUE, 370 FEET FOR A POINT OF BEGINNING; THENCE CONTINUING SOUTHWESTERLY AND ALONG THE SAID NORTHWESTERLY RIGHT OF WAY LINE OF FLANDERS AVENUE, 185 FEET; THENCE NORTHWESTERLY AND AT RIGHT ANGLES TO THE SAID FLANDERS AVENUE, 86.85 FEET TO THE NORTHWESTERLY LINE OF LOT 21; THENCE NORTHEASTERLY ALONG SAID NORTHWESTERLY LINE OF LOT 21, 185 FEET; THENCE SOUTHEASTERLY, 83.7 FEET TO THE NORTHWESTERLY RIGHT OF WAY LINE OF FLANDERS AVENUE AND THE POINT OF BEGINNING. NOTICE IF YOU ARE A PERSON CLAIMING A RIGHT TO FUNDS REMAINING AFTER THE SALE, YOU MUST FILE A CLAIM WITH THE CLERK NO LATER THAN THE DATE THAT THE CLERK REPORTS THE FUNDS AS UNCLAIMED. IF YOU FAIL TO FILE A CLAIM, YOU WILL NOT BE ENTITLED TO ANY REMAINING FUNDS. AFTER THE FUNDS ARE REPORTED AS UNCLAIMED, ONLY THE OWNER OF RECORD AS OF THE DATE OF THE LIS PENDENS MAY CLAIM THE SURPLUS.

Americans With Disabilities Act (ADA) Notice In accordance with the Americans with Disabilities Act of 1990 (ADA), If you are a person with a disability who needs any accommodation in order to participate in this proceeding, you are entitled at no cost to you, to the provision of certain assistance. Please contact the ADA Coordinator at crtintrp@coj.net or (904) 2551695 at least 7 days before your scheduled court appearance, or immediately upon receiving this notification if the time before the scheduled appearance is less than 7 days; if you are hearing or voice impaired, call 711 Dated this 1st day of November, 2024. JODY PHILLIPS Clerk of the Circuit Court By: Pamela R. Harrell As Deputy Clerk (Court Seal) Torrey C. Taylor, Esq., for Plaintiff Phillips, Hayden & Labbee, LLP torrey@phlfirm.com; tanya@phlfirm.com Nov. 7/14 8 (24-07069D)

Property Address: 14895 REEF DRIVE W, JACKSONVILLE, FL 32226

Any person claiming an interest in the surplus from the sale, if any, other than the property owner as of the date of the lis pendens must file a claim in accordance with Florida Statutes, Section 45.031. Americans With Disabilities Act (ADA) Notice In accordance with the Americans with Disabilities Act of 1990 (ADA), If you are a person with a disability who needs any accommodation in order to participate in this proceeding, you are entitled at no cost to you, to the provision of certain assistance. Please contact the ADA Coordinator at crtintrp@coj.net or (904) 2551695 at least 7 days before your scheduled court appearance, or immediately upon receiving this notification if the time before the scheduled appearance is less than 7 days; if you are hearing or voice impaired, call 711. Dated this 1st day of November, 2024.

JODY PHILLIPS As Clerk of the Court By: Pamela R. Harrell As Deputy Clerk (Court Seal) Robertson, Anschutz, Schneid, Crane & Partners, PLLC Attorneys for Plaintiff 6409 Congress Avenue, Suite 100, Boca Raton, FL 33487 Telephone: 561-241-6901 Fax: 561-997-6909 23-134127 - MaM Nov. 7/14 8 (24-07070D)

The administration of the Estate of Robert Eugene Sewell, Case No.: 16-2024-CP-002688 is pending in Circuit Court for Duval County, Florida, Probate Division, the address of which is Duval County Courthouse, 501 West Adams St. Jacksonville, FL 32202. The name and address of the Personal Representative and the Personal Representative’s attorney is set forth below. All creditors of the decedent and other persons having claims or demands against decedent’s estate on whom a copy of this notice is served within three months after the date of the first publication of this notice must file their claims with this Court WITHIN THE LATER OF THREE MONTHS AFTER THE DATE OF THE FIRST PUBLICATION OF THIS NOTICE OR THIRTY DAYS AFTER THE DATE OF SERVICE OF A COPY OF THIS NOTICE OR THIRTY DAYS AFTER THE DATE OF SERVICE OF A COPY OF THIS NOTICE ON THEM. All other creditors of the decedent and persons having claims or demands against the decedent’s estate must file their claims with this Court WITHIN THREE MONTHS AFTER THE DATE

IN THE CIRCUIT CIVIL COURT OF THE FOURTH JUDICIAL CIRCUIT OF FLORIDA, IN AND FOR DUVAL COUNTY CIVIL DIVISION Case No. 16-2023-CA-010308 Division FC-A

U.S. BANK TRUST NATIONAL ASSOCIATION, NOT IN ITS INDIVIDUAL CAPACITY BUT SOLELY AS OWNER TRUSTEE FOR LEGACY MORTGAGE ASSET TRUST 2022-GS1 Plaintiff, vs. JO-ANN CLEVELAND A/K/A JO ANN CLEVELAND, FLORIDA HOUSING FINANCE CORPORATION; CITY OF JACKSONVILLE, FLORIDA; UNKNOWN SPOUSE OF JO-ANN CLEVELAND A/K/A JO ANN CLEVELAND, AND UNKNOWN TENANTS/OWNERS, Defendants. NOTICE OF SALE Notice is hereby given, pursuant to Final Judgment of Foreclosure for Plaintiff entered in this cause on October 29, 2024, in the Circuit Court of Duval County, Florida, Jody Phillips, Clerk of the Circuit Court, will sell the property situated in Duval County, Florida described as: LOT 9, BLOCK 13, SPEEDWAY PARK, AS PER PLAT THEREOF, RECORDED IN PLAT BOOK 3, PAGE 32, OF THE PUBLIC RECORDS OF DUVAL COUNTY, FLORIDA. and commonly known as: 1216 29TH STREET W,

OF THE FIRST PUBLICATION OF THIS NOTICE. ALL CLAIMS, DEMANDS AND OBJECTION NOT SO FILED WILL BE FOREVER BARRED. NOTWITHSTANDING THE TIME PERIODS SET FORTH ABOVE, ANY CLAIM FILED TWO (2) YEARS OR MORE AFTER THE DECEDENT’S DATE OF DEAIH IS~BARRED. A personal representative or curator has no duty to discover whether any property held at the time of the decedent’s death by the decedent or the decedent’s surviving spouse is property to which the Florida Uniform Disposition of Community Property Rights at Death Act as described in sections 732.216-732.228, applies, or may apply, unless a written demand is made by a creditor as specified under section 732.2211. The date of the first publication of this Notice is 7th day of November 2024. Heather R. Charest as Personal Representative of the Estate of Robert Eugene Sewell /s/ Gerald B. Stewart, Esq GERALD B. STEWART, ESQUIRE Florida Bar No.: 285412 24 North Market Street, Suite 402 Jacksonville, Florida 32202 904.353.8876 904.356.2776 (Facsimile) Stewartlaw7272@gmail.com Attorney for

JACKSONVILLE, FL 32209; including the building, appurtenances, and fixtures located therein, at public sale, to the highest and best bidder, for cash, online at: www.duval.realforeclose.com on JANUARY 13, 2025 at 11:00 A.M.. Any persons claiming an interest in the surplus from the sale, if any, other than the property owner as of the date of the lis pendens must file a claim before the clerk reports the surplus as unclaimed. Americans With Disabilities Act (ADA) Notice In accordance with the Americans with Disabilities Act of 1990 (ADA), If you are a person with a disability who needs any accommodation in order to participate in this proceeding, you are entitled at no cost to you, to the provision of certain assistance. Please contact the ADA Coordinator at crtintrp@coj.net or (904) 2551695 at least 7 days before your scheduled court appearance, or immediately upon receiving this notification if the time before the scheduled appearance is less than 7 days; if you are hearing or voice impaired, call 711. Dated this 1st day of November, 2024.

SECOND INSERTION

IN THE CIRCUIT COURT FOR DUVAL COUNTY, FLORIDA

PROBATE DIVISION

File No. 16-2024-CP-003104

Division PR-A IN RE: ESTATE OF MARK BENET WATTS

Deceased.

NOTICE TO CREDITORS

The administration of the estate of Mark Benet Watts, deceased, whose date of death was June 26, 2024, is pending in the Circuit Court for Duval County, Florida, Probate Division. The names and addresses of the petitioner and the petitioner’s attorney are set forth below.

A petitioner or curator has no duty to discover whether any property held at the time of the decedent’s death by the decedent or the decedent’s surviving spouse is property to which the Florida Uniform Disposition of Community Property Rights at Death Act as described in sections 732.216732.228, applies, or may apply, unless a written demand is made by a creditor as specified under section 732.2211. All creditors of the decedent and other persons having claims or demands against decedent’s estate on whom a copy of this notice is required to be served must file their claims with this court ON OR BEFORE THE LATER OF 3 MONTHS AFTER THE TIME OF THE FIRST PUBLICATION OF THIS NOTICE OR 30 DAYS AFTER THE DATE OF SERVICE OF A COPY OF THIS NOTICE ON THEM.

All other creditors of the decedent and other persons having claims or demands against decedent’s estate must file their claims with this court WITHIN 3 MONTHS AFTER THE DATE OF THE FIRST PUBLICATION OF THIS NOTICE. ALL CLAIMS NOT FILED WITHIN THE TIME PERIODS SET FORTH IN FLORIDA STATUTES SECTION 733.702 WILL BE FOREVER BARRED. NOTWITHSTANDING THE TIME PERIODS SET FORTH ABOVE, ANY CLAIM FILED TWO (2) YEARS OR MORE AFTER THE DECEDENT’S DATE OF DEATH IS BARRED.

The date of first publication of this notice is November 7, 2024.

Personal Representative: /s/ Meghan Edwards Meghan Edwards

Attorney for Petitioner: /s/ Meghan Edwards

Meghan Edwards

Attorney Florida Bar Number: 103885

Attorneys for Petitioner 6620 Southpoint Drive S., Ste 200 Jacksonville, Florida 32216

Telephone: (904) 222-0829 Nov. 7/14 9 (24-07060D)

SECOND INSERTION

NOTICE

Extra Space Storage, on behalf of itself or its affiliates, Life Storage or Storage Express, will hold a public auction to sell personal property described below belonging to those individuals listed below at the location indicated: 3780 Kori Rd, Jacksonville, FL 32257, on November 26th 2024 at 09:30am. alesandro miranda - Tools Tina Gelinas - Kitchen wares, queen bed and mattress, small dresser, set of stackable shelf’s and an antique china

The auction will be listed and advertised on www.storagetreasures.com. Purchases must be made with cash only and paid at the above referenced facility in order to complete the transaction. Extra Space Storage may refuse any bid and may rescind any purchase up until the winning bidder takes possession of the personal property. Nov. 7/14 9 (24-07006D)

SECOND INSERTION

NOTICE OF PUBLIC SALE

Notice is given that U-STOR auctions will be held November 26,2024 at listed locations. Pursuant to Florida Statutes 83.801 – 83.809, to satisfy liens due to unpaid rents and charges. The undersigned will sell at public sale by competitive bidding the personal property heretofore stored with the undersigned to satisfy the owner’s lien.

“CONSISTING OF HOUSEHOLD ITEMS UNLESS OTHERWISE NOTED Beginning at 10:00 AM U-Stor Blanding 1065 Blanding Blvd. 904-276-4553 A 203 Clifton Blackley H5 Hall Stephen Buff Immediately Following at U-Stor Mandarin 11201 San Jose Blvd. 904-262-8100 O 10 Charity Burk D 9 Stephen Olive IMMEDIATELY FOLLOWING AT U-STOR ST. JOHNS’ BLUFF 2915 ST. JOHN’S BLUFF ROAD 904-641-3107 E 40 Mark Anderson B 45 Federico Brito D 16 Satantha Ellis D 57 Michael Patton A 41 Deborah Roque

Following at U-Stor SR 210 130 Cumberland Park Dr. St. Augustine, FL 32095 904-829-1000 C 62 Alison Blair

Immediately Following at Rabbit Hill Self Storage 478 State Road 16 Saint Augustine, FL 32088 904-829-2333

Immediately Following at Sawgrass Self Storage 10042 Sawgrass Dr. W. Ponte Vedra Beach, FL 32082 Nov. 7/14 9 (24-07067D)

SECOND INSERTION

IN THE CIRCUIT COURT OF THE 4TH JUDICIAL CIRCUIT, IN AND FOR DUVAL COUNTY, FLORIDA

CIVIL DIVISION: CASE NO.: 16-2023-CA-010248

DIVISION: FC-A PENNYMAC LOAN SERVICES, LLC, Plaintiff, vs. UNKNOWN HEIRS, BENEFICIARIES, DEVISEES, ASSIGNEES, LIENORS, CREDITORS, TRUSTEES AND ALL OTHERS WHO MAY CLAIM AN INTEREST IN THE ESTATE OF CYNTHIA D. BROOKS; CREEKSIDE AT TIMUQUANA HOMEOWNERS ASSOCIATION, INC.; UNKNOWN TENANT IN POSSESSION OF THE SUBJECT PROPERTY, Defendants. NOTICE OF FORECLOSURE SALE NOTICE IS HEREBY GIVEN

pursuant to an Order or Final Judgment entered in the above styled cause now pending in said court and as required by Florida Statute 45.031(2), JODY PHILLIPS as the Clerk of the Circuit Court shall sell to the highest and best bidder for cash electronically at: www.duval.realforeclose.com at, 11:00 AM on the 13 day of January 2025, the following described property as set forth in said Final Judgment, to wit: LOT 53, CREEKSIDE TOWNHOMES, ACCORDING TO THE PLAT THEREOF, AS RECORDED IN PLAT BOOK 76, PAGES 37 THRU 40, OF THE PUBLIC RECORDS OF DUVAL COUNTY, FLORIDA.

PROPERTY ADDRESS: 5941 CREEKSIDE CROSSING DR, JACKSONVILLE, FL 32210

SECOND INSERTION

NOTICE Extra Space Storage, on behalf of itself or its affiliates, Life Storage or Storage Express, will hold a public auction to sell personal property described below belonging to those individuals listed below at the location indicated: Address: 790 Monument Rd Jacksonville, FL 32225

Auction Date: 11-26-2024

Auction Time: 11:30AM Khalilah ReddenHousehold Items

Christ The Living Cornerstone/ Tanisha Key-Household Items Josefine MartinezHousehold Items

IN THE COUNTY COURT,

FOURTH JUDICIAL CIRCUIT, IN AND FOR DUVAL COUNTY, FLORIDA

CASE NO.: 16-2023-CC-018756

DIVISION: CC-B

FOX WOOD OWNERS ASSOCIATION, INC., a Florida corporation, Plaintiff, vs. SANDRA M. LAGOS; UNKNOWN SPOUSE OF SANDRA M. LAGOS; PORTFOLIO RECOVERY ASSOCIATES, LLC; UNKNOWN TENANT #1; UNKNOWN TENANT #2; and ALL OTHER UNKNOWN PARTIES, claiming, by, through, under or against that Defendant, and all claimants, persons or parties, natural or corporate, or whose exact legal status is unknown, claiming under any of the above named or described Defendants, Defendants.

NOTICE OF SALE NOTICE IS HEREBY GIVEN pursuant to the Final Judgment of Foreclosure entered on October 22, 2024, in Case No. 16-2023CC-018756 of the Circuit Court of the Fourth Judicial Circuit in and for Duval County, Florida, in which FOX WOOD OWNERS ASSOCIATION, INC., is Plaintiff, and SANDRA M. LAGOS, is Defendant, in the Duval County Clerk of the Court, will sell to the highest bidder for cash on: Duval County’s Public Auction website at: www.duval.realforeclose.com at the hour of 11:00 a.m. on the 5th day of December, 2024 the following described real property: Lot 31, Foxwood, according

IN THE CIRCUIT COURT OF THE FOURTH JUDICIAL CIRCUIT IN AND FOR DUVAL COUNTY, FLORIDA CASE NO. 16-2024-CA-001895

IF YOU ARE A PERSON CLAIMING A RIGHT TO FUNDS REMAINING AFTER THE SALE, YOU MUST FILE A CLAIM WITH THE CLERK NO LATER THAN THE DATE THAT THE CLERK REPORTS THE FUNDS AS UNCLAIMED. IF YOU FAIL TO FILE A CLAIM, YOU WILL NOT BE ENTITLED TO ANY REMAINING FUNDS. AFTER THE FUNDS ARE REPORTED AS UNCLAIMED, ONLY THE OWNER OF RECORD AS OF THE DATE OF THE LIS PENDENS MAY CLAIM THE SURPLUS. Americans With Disabilities Act (ADA) Notice In accordance with the Americans with Disabilities Act of 1990 (ADA), If you are a person with a disability who needs any accommodation in order to participate in this proceeding, you are entitled at no cost to you, to the provision of certain assistance. Please contact the ADA Coordinator at crtintrp@coj.net or (904) 255-1695 at least 7 days before your scheduled court appearance, or immediately upon receiving this notification if the time before the scheduled appearance is less than 7 days; if you are hearing or voice impaired, call 711. Dated this 1st day of November, 2024.

JODY PHILLIPS Clerk Of The Circuit Court By: Pamela R. Harrell Deputy Clerk (Court Seal)

Submitted by: De Cubas & Lewis, P.A. PO Box 5026 Fort Lauderdale, FL 33310

Telephone: (954) 453-0365

Facsimile: (954) 771-6052 Toll Free: 1-800-441-2438

DESIGNATED PRIMARY

E-MAIL FOR SERVICE

PURSUANT TO FLA. R. JUD. ADMIN 2.516 eservice@decubaslewis.com Nov. 7/14 9 (24-07074D)

Mackenzie FieldsHousehold Items

Tori Gaiter-Household Items

Kai Dumont-Household Items

Takera Fincher-Household Items

The auction will be listed and advertised on www.storagetreasures.com

Purchases must be made with cash only and paid at the above referenced facility in order to complete the transaction. Extra Space Storage may refuse any bid and may rescind any purchase up until the winning bidder takes possession of the personal property. Nov. 7/14 9 (24-07092D)

to the Plat thereof a Recorded in Plat Book 6, 6A through 6E, inclusive, of the current Public Records of Duval County, Florida. Property address: 8207 Foxdale Dr., Jacksonville, FL 32210

Any person claiming an interest in the surplus from the sale, if any, other than the property owner as of the date of the Lis Pendens must file a claim before the clerk reports the surplus as unclaimed. Americans With Disabilities Act (ADA) Notice In accordance with the Americans with Disabilities Act of 1990 (ADA), If you are a person with a disability who needs any accommodation in order to participate in this proceeding, you are entitled at no cost to you, to the provision of certain assistance. Please contact the ADA Coordinator at crtintrp@coj.net or (904) 2551695 at least 7 days before your scheduled court appearance, or immediately upon receiving this notification if the time before the scheduled appearance is less than 7 days; if you are hearing or voice impaired, call 711.

Dated this 4th day of November, 2024. JODY PHILLIPS CLERK OF THE CIRCUIT COURT By: Pamela R. Harrell Deputy Clerk (Court Seal) Melissa G. Murrin, Esq. Jimerson Birr, P.A. One Independent Drive, Suite 1400 mmurrin@jimersonfirm.com emmaa@jimersonfirm.com Jacksonville, FL 32202 Counsel for Plaintiff Nov. 7/14 9 (24-07101D)

DIVISION: FC-F GREENSPRING CAPITAL MANAGEMENT LLC, NOT IN ITS INDIVIDUAL CAPACITY, BUT SOLELY AS ADMINISTRATOR OF THE RMH 2023-2 TRUST Plaintiff, v. THE UNKNOWN HEIRS, GRANTEES, DEVISEES, LIENORS, TRUSTEES, AND CREDITORS OF MIKE DEVITO

A/K/A MICHAEL DEVITO

A/K/A MICHAEL F. DEVITO

A/K/A MICHAEL FRANCIS DEVITO, DECEASED; UNKNOWN TENANT 1; UNKNOWN TENANT 2; MICHAEL JOSEPH DEVITO; Defendants.

NOTICE OF SALE

Notice is hereby given that, pursuant to the Final Judgment of Foreclosure entered on October 18, 2024, in this cause, in the Circuit Court of Duval County, Florida, the clerk shall sell the property situated in Duval County, Florida, described as: A PORTION OF THE JAMES PLUMMER GRANT, SECTION 43, TOWNSHIP 4 SOUTH, RANGE 27 EAST, DUVAL COUNTY, FLORIDA, AND MORE PARTICULARY DESCRIBED AS FOLLOWS: COMMENCE AT THE INTERSECTION OF THE NORTHERLY RIGHT OF WAY LINE OF JULINGTON CREEK ROAD (A 60 FOOT RIGHT OF WAY AS SHOWN ON THE PLAT OF HOODS SUBDIVISION AS RECORDED IN PLAT BOOK 25, PAGE 84 OF THE CURRENT PUBLIC RECORDS OF SAID COUNTY), WITH THE EASTERLY RIGHT OF WAY LINE OF HOOD LANDING ROAD (A 66 FOOT RIGHT OF WAY AS NOW ESTABLISHED); THENCE SOUTH 83 DEGREES 32` 00” EAST ALONG THE NORTHERLY RIGHT OF WAY OF

SECOND INSERTION

IN THE CIRCUIT COURT OF THE FOURTH JUDICIAL CIRCUIT, IN AND FOR DUVAL COUNTY, FLORIDA CLERK NO.: 16-2024-CA-005783

DIVISION: CV-E IN RE: FORFEITURE OF THE FOLLOWING DESCRIBED PROPERTY: 2007 NISSAN, 3N1BC11E87L427698

T.K. WATERS, SHERIFF OF DUVAL COUNTY, PLAINTIFF vs. KAMREN JOSEPH WAGNER, CLAIMANT(S) NOTICE OF FORFEITURE COMPLAINT TO: ALL PERSONS CLAIMING A SECURITY OR OTHER INTEREST IN THE ABOVE-DESCRIBED PROPERTY

The above-described property was seized pursuant to the provisions of the Florida Contraband

IN THE COUNTY COURT OF THE FOURTH JUDICIAL CIRCUIT IN AND FOR DUVAL COUNTY, FLORIDA CASE NO.: 16-2023-CC-005862 DIVISION: CC-D PINE LAKES II HOMEOWNERS ASSOCIATION OF JACKSONVILLE, INC., a Florida not-for-profit corporation, Plaintiff, vs. KENISHA S BLOUNT, individually; UNKNOWN SPOUSE OF KENISHA S BLOUNT; SECRETARY OF HOUSING AND URBAN DEVELOPMENT; UNKNOWN TENANT # 1 AND UNKNOWN TENANT # 2. Defendants.

NOTICE OF ACTION TO: Kenisha S Blount 352 Ponderosa Drive Jacksonville, FL 32218 Unknown Spouse of Kenisha S Blount 352 Ponderosa Drive Jacksonville, FL 32218

YOU ARE NOTIFIED that an action to enforce and foreclose a claim of lien for unpaid homeowners’ association assessments against the real property in Duval County Florida, commonly known as 352 Ponderosa Drive Jacksonville, FL 32218, and more particu-

SAID JULINGTON CREEK ROAD, 103.61 FEET, TO THE POINT OF BEGINNING; THENCE SOUTH 83 DEGREES 32` 00” EAST ALONG SAID NORTHERLY RIGHT OF WAY LINE, 90.00 FEET; THENCE NORTH 06 DEGREES 28` 00” EAST, 120.00 FEET; THENCE NORTH 83 DEGREES 32` 00” WEST, 90.00 FEET; THENCE SOUTH 06 DEGREES 28` 00” WEST, 120.00 FEET TO THE POINT OF BEGINNING. a/k/a 4325 JULINGTON CREEK RD, JACKSONVILLE , FL 32258-2138 at public sale, to the highest and best bidder, for cash, online at: www.duval.realforeclose.com on December 04, 2024 beginning at 11:00 AM. Any person claiming an interest in the surplus from the sale, if any, other than the property owner as of the date of the lis pendens must file a claim before the clerk reports the surplus as unclaimed. Americans With Disabilities Act (ADA) Notice In accordance with the Americans with Disabilities Act of 1990 (ADA), If you are a person with a disability who needs any accommodation in order to participate in this proceeding, you are entitled at no cost to you, to the provision of certain assistance. Please contact the ADA Coordinator at crtintrp@coj.net or (904) 2551695 at least 7 days before your scheduled court appearance, or immediately upon receiving this notification if the time before the scheduled appearance is less than 7 days; if you are hearing or voice impaired, call 711. Dated this 1st day of November, 2024.

the Circuit Court By:

(Court Seal) eXL Legal, PLLC 12425 28TH ST NORTH, STE. 200 ST. PETERSBURG, FL 33716-1826 EFILING@EXLLEGAL.COM

Forfeiture Act, Florida Statutes, sections 932.701-.707, by the Jacksonville Sheriff’s Office on September 9, 2024, at or in the vicinity of Duval County, Florida. The Jacksonville Sheriff’s Office is currently in possession of said property and has filed a Complaint for the purpose of forfeiture of said property in the Circuit Court of the Fourth Judicial Circuit of Florida. In order to protect your rights you must file an Answer to the Complaint with the Clerk of the Circuit Court, Duval County Courthouse, Jacksonville, Florida, within twenty (20) days of this publication. You must also serve a copy of your Answer on Plaintiff’s counsel, Andrew K. Kantor, Assistant State Attorney, 311 West Monroe Street, Jacksonville, Florida 32202. Failure to do so may result in the entry of a default against you and a Final Order of Forfeiture of the above-described property. Nov. 7/14 9 (24-07084D)

larly described as:

Lot 200, PINE LAKES UNIT FOUR PHASE TWO, according to the plat as recorded in Plat Book 71, Pages 38 through 43, of the Public Records of Duval County, Florida. Which has been filed against you and you are required to serve a copy of your written defenses, if any, to it on DI MASI || BURTON, P.A., the Plaintiff’s attorney, whose address is 801 N. Orange Avenue, Suite 500, Orlando, Florida 32801 within thirty (30) days after the first publication of this notice and file the original with the clerk of this court either before service on the Plaintiff’s attorney or immediately thereafter; otherwise, a default will be entered against you for the relief demanded in the Complaint. This notice shall be published once a week for two consecutive weeks in Jacksonville Daily Record.

DATED: November 4, 2024 JODY PHILLIPS Clerk of the Court for Duval County, Florida By: Pamela R. Harrell Deputy Clerk (Court Seal) Nov. 7/14 9 (24-07098D)

IN THE CIRCUIT COURT OF THE FOURTH JUDICIAL CIRCUIT IN AND FOR DUVAL COUNTY, FLORIDA GENERAL JURISDICTION DIVISION

CASE NO. 16-2023-CA-010196

DIVISION: FC-D

U.S. BANK NATIONAL ASSOCIATION, Plaintiff, vs. VERONICA VIARS AKA VERONICA DREW, et al. Defendant(s).

NOTICE OF FORECLOSURE SALE

NOTICE IS HEREBY GIVEN pursuant to a Final Judgment of Foreclosure dated March 04, 2024, and entered in 16-2023CA-010196 of the Circuit Court of the FOURTH Judicial Circuit in and for Duval County, Florida, wherein U.S. BANK NATIONAL ASSOCIATION is the Plaintiff and VERONICA VIARS AKA VERONICA DREW; THE COUNTY HOUSING FINANCING AUTHORITY; UNLOCK PARTNERSHIP SOLUTIONS, INC.; HOMEOPTIONS REAL ESTATE LLC are the Defendant(s). Jody Phillips as the Clerk of the Circuit Court will sell to the highest and best bidder for cash at: www.duval.realforeclose.com at 11:00 AM, on November 27, 2024, the following described property as set forth in said Final Judgment, to wit: A PART OF GOVERNMENT LOT 8, SECTION 3, TOWNSHIP 2 SOUTH, RANGE 28 EAST, DUVAL COUNTY, FLORIDA MORE PARTICULARLY DESCRIBED AS FOLLOWS: FOR THE POINT OF BEGINNING COMMENCE AT THE NORTHWEST CORNER OF PARCEL NO. 2 AS RECORDED IN VOLUME 1857, PAGE 64 OF THE OFFICIAL RECORDS OF DUVAL COUNTY FLORIDA; THENCE RUN SOUTH 89 DEGREES 19 MINUTES 00 SECONDS WEST, A DISTANCE OF 101 FEET; THENCE SOUTH 0 DEGREES 14 MINUTES 30 SECONDS WEST, A DISTANCE OF 125 FEET

TO THE NORTHERLY RIGHT OF WAY LINE OF LALAUNA CIRCLE NORTH (COUNTY ROAD NO. 3927) THENCE RUN NORTH 89 DEGREES 19 MINUTES 00 SECONDS EAST, ALONG SAID NORTHERLY RIGHT OF WAY LINE OF LALAUNA CIRCLE NORTH, A DISTANCE OF 101 FEET TO THE SOUTHWEST CORNER OF AFORESAID PARCEL NO. 2; THENCE RUN NORTH 0 DEGREES 14 MINUTES 30 SECONDS EAST ALONG THE WEST LINE OF SAID PARCEL NO. 2, A DISTANCE OF 125 FEET TO THE POINT OF BEGINNING. Property Address: 14055 N LA LAUNA CIR, JACKSONVILLE, FL 32225 Any person claiming an interest in the surplus from the sale, if any, other than the property owner as of the date of the lis pendens must file a claim in accordance with Florida Statutes, Section 45.031. Americans With Disabilities Act (ADA) Notice In accordance with the Americans with Disabilities Act of 1990 (ADA), If you are a person with a disability who needs any accommodation in order to participate in this proceeding, you are entitled at no cost to you, to the provision of certain assistance. Please contact the ADA Coordinator at crtintrp@coj.net

SECOND INSERTION

IN THE CIRCUIT COURT, FOURTH JUDICIAL CIRCUIT

IN AND FOR DUVAL COUNTY, FLORIDA

PROBATE DIVISION CASE NO.: 16-2024-CP-002285

DIVISION: PR-B IN RE: ESTATE OF LOWELL E. ERIKSEN

Deceased.

NOTICE TO CREDITORS

The administration of the estate of LOWELL E. ERIKSEN, deceased, File Number: 16-2024CP-002285, Division PR-B is pending in the Circuit Court for Duval County, Florida, Probate Division, the address of which is 501 West Adams Street, Jacksonville, Florida 32202. The names and addresses of the Personal Representative and the Personal Representative’s attorney are set forth below. All creditors of the decedent and other persons having claims or demands against decedent’s estate on whom a copy of this notice is required to be served must file their claims with this court WITHIN THE LATER OF 3 MONTHS AFTER THE TIME OF THE FIRST PUBLICATION OF THIS NOTICE OR 30 DAYS AFTER THE DATE OF SERVICE OF A COPY OF THIS NOTICE ON THEM. All other creditors of the decedent and other persons having claims or demands against decedent’s estate must file their claims with this court WITHIN

3 MONTHS AFTER THE DATE OF THE FIRST PUBLICATION OF THIS NOTICE. ALL CLAIMS NOT FILED

WITHIN THE TIME PERIODS SET FORTH IN SECTION 733.702 OF THE FLORIDA PROBATE CODE WILL BE FOREVER BARRED. NOTWITHSTANDING THE TIME PERIODS SET FORTH ABOVE, ANY CLAIM FILED TWO (2) YEARS OR MORE AFTER THE DECEDENT’S DATE OF DEATH IS BARRED.

A personal representative or curator has no duty to discover whether any property held at the time of the decedent’s death by the decedent or the decedent’s surviving spouse is property to which the Florida Uniform Disposition of Community Property Rights at Death Act as described in sections 732.216-732.228, applies, or may apply, unless a written demand is made by a creditor as specified under section 732.2211. The date of first publication of this notice is November 7, 2024.

Personal Representative: J. F. Smith 2308 Mindanao Drive Jacksonville, Florida 32246

Attorney for Personal Representative

John David Horne, Esquire Florida Bar No. 1024078 Fuller, Dusinberre, Horne, PLLC 1845 East West Parkway, Suite 18 Fleming Island, Florida 32003

Telephone: (904) 264-0585

Primary email: jhorne@fdhattorneys.com

Secondary Email: twegmann@lawfuller.com

Tertiary Email: jwaugh@fdhattorneys.com Nov. 7/14 4 (24-07078D)

SECOND INSERTION

IN THE CIRCUIT COURT OF THE FOURTH JUDICIAL CIRCUIT IN AND FOR DUVAL COUNTY, FLORIDA

CASE NO.: 16-2024-CA-001719

DIVISION: CV-G

OCONEE REAL ESTATE

HOLDINGS X – OASIS LLC, Plaintiff, v. CYCLONE OASIS 256 LLC, Defendant. NOTICE OF JUDICIAL SALE

NOTICE OF SALE IS HEREBY

GIVEN, pursuant to the order of the Final Judgment of Foreclosure, dated August 30, 2024, and entered in 16-2024-CA-001719 of the Circuit Court of the Fourth Judicial Circuit in and for Duval County, wherein CYCLONE OASIS 256 LLC is the Defendant. The office of Jody Phillips, the Duval County Clerk of the Court, will sell to the highest bidder for cash via electronic sale at the following website: www.duval.realforeclose.com at 11:00 AM on the 26th day of November 2024, the following described property as set forth in said Final Judgment of Foreclosure to wit: A part of the Southwest 1/4 of the Southwest 1/4 of Section 5, Township 4 South, Range 27 East, Duval County, Florida, being more particularly described as follows: For a Point of Reference commence at the Southwesterly corner of said Section 5, said corner lying in the centerline of Claire Lane, a 60.0 foot rightof-way as now established, from the Point of Reference thus described run North 1° 47’ 48” East, along the Westerly line of said Section 5, a distance of 30.03 feet to the Point of Beginning, said Point of Beginning lying in the Northerly right-of-way line of Claire Lane; from the Point of Beginning thus described run North 1° 47’ 48” East, along the said Westerly line of Section 5, a distance of 1212.11 feet to its intersection with the Southwesterly right-ofway line of Interstate 1-295; thence South 50° 55’ 26” East, along the said Southwesterly right-of-way line of 1-295, a distance of 195.23 feet; thence continue along said Southwesterly right-of-way line of 1-295 South 48° 09’ 43” East, 1062.21 feet to the point of a curve to the left,. said curve being, concave to the Northeast and having a radius of 11,609.16 feet; thence Southeasterly along and around said curve an arc distance of 588.75 feet; said curve being subtended by a chord bearing and distance of South 49° 36’ 52” East, 588.69 feet, said point being the point of a non-tangent curve said curve being concave to the Southwest and having a radius of 210.0 feet; thence Northwesterly along and around said curve an arc distance of 145.15 feet to the

SECOND INSERTION

NOTICE OF SALE - AUCTION

NOTICE OF SALE these vehicles will be sold at public auction at Allied Auto and Truck Repair, Inc. @ 9854 Lem Turner Rd., Jacksonville, FL 32208 commencing at 10am on 12-02-2024. (2006 Infinity

Vin # JNKAY01F26M259735), (2006 Sion

Vin # JTLKT324564126359), (2011 Nissan

Vin # 1N4AA5AP2BC865571), (2004 VW VIN # 3VWCK31C94M417425), (2007 VW

Vin # 3VWRF31Y07M423824), (2004 Nissan

Vin # 5N1BV28U54N345431), (2000 GMC

Vin # 1GTCS19W6Y8245337), (2008 Chevy

Vin # 1G1ZG57B28F172278), (2000 GMC

Vin # 1GTCS1948Y8174351). Nov. 7/14 4 (24-07000D)

SECOND INSERTION

NOTICE

Extra Space Storage, on behalf of itself or its affiliates, Life Storage or Storage Express, will hold a public auction to sell personal property described below belonging to those individuals listed below at the location indicated: 6611 Southpoint Parkway, Jacksonville, FL 32216 on Tuesday, November 26th, 2024 at 12:30

SECOND INSERTION

NOTICE

Extra Space Storage, on behalf of itself or its affiliates, Life Storage or Storage Express, will hold a public auction to sell personal property described below belonging to those individuals listed below at the location indicated: 5550 Timuquana Rd Jacksonville, Fl 32210 on November 26th, 2024 at 9:30 AM EST Alonzo Dryeclothes, personal items Mark Pierce-car Ladreeka AtwaterHousehold goods Trazell TarpleyWasher & dryer, clothes, dressers The auction will be listed and advertised on www.storagetreasures.com. Purchases must be made with cash only and paid at the above referenced facility in order to complete the transaction. Extra Space Storage may refuse any bid and may rescind any purchase up until the winning bidder takes possession of the personal property.

Nov. 7/14 4 (24-07007D)

SECOND INSERTION

NOTICE

point of tangency of said curve, said curve being subtended by a chord bearing and distance of North 70° 52’ 07” West, 142.28 feet, said curve also being the Northerly right of way line of Lake Mandarin Circle East; thence South 89° 19’ 50” West, along said Northerly right of way line of Lake Mandarin Circle East, a distance of 97.02 feet to the point of a curve to the left, said curve being concave to the Southeast and having a radius of 294.45 feet; thence Southwesterly along and around said curve an arc distance of 93.29 feet to the point of reverse curve, said curve being subtended by a chord bearing and distance of South 80° 15’ 14” West, 92.9 feet, said reverse curve being concave to the Northwest and having a radius of 308.27 feet; thence Southwesterly along and around said curve an arc distance of 97.67 feet to the point of tangency of said curve, said curve being subtended by a chord bearing and distance of South 80° 15’ 14” West, 97.26 feet, said curve being the Northerly right of way line of the aforesaid Claire Lane; thence continue along the Northerly right of way line of Claire Lane South 89° 19’ 50” West. 1010.57 feet of the Point of Beginning, PARCEL NO. 155744-0500, commonly known as 3355 Claire Lane, Jacksonville, Florida 32223 Property Address: 3355 Claire Lane, Jacksonville, Florida 32223.

Any person claiming an interest in the surplus from the sale, if any, other than the property owner as of the date of the Lis Pendens, must file a claim before the clerk reports the surplus as unclaimed. Americans With Disabilities Act (ADA) Notice In accordance with the Americans with Disabilities Act of 1990 (ADA), If you are a person with a disability who needs any accommodation in order to participate in this proceeding, you are entitled at no cost to you, to the provision of certain assistance. Please contact the ADA Coordinator at crtintrp@coj.net or (904) 255-1695 at least 7 days before your scheduled court appearance, or immediately upon receiving this notification if the time before the scheduled appearance is less than 7 days; if you are hearing or voice impaired, call 711. WITNESS MY HAND and the seal of this Court on October 31, 2024.

JODY PHILLIPS Clerk of the Circuit Court

By: Pamela R. Harrell Deputy Clerk (Court Seal) PLAINTIFF ATTORNEY NARDO DORSIN 315 S BISCAYNE BLVD SUITE 400 MIAMI , FL 33131 305-921-1848 Nov. 7/14 4 (24-07036D)

PM Nature Bettingerfurniture, clothes Sheronda Coopersectional, 2 chairs, 2 queen Terrance Omyrick- 2 beds, entertainment center, kids items Greg Cheney- boxes clothes shoes Vivian Crawfordauction contents NELSON SKYLER KEENHousehold Goods

The auction will be listed and advertised on www.storagetreasures.com. Purchases must be made with CASH ONLY and paid at the above referenced facility in order to complete the transaction. Extra Space Storage may refuse any bid and may rescind any purchase up until the winning bidder takes possession of the personal property Nov. 7/14 4 (24-07016D)

SECOND INSERTION

IN THE COUNTY COURT OF THE FOURTH JUDICIAL CIRCUIT, IN AND FOR DUVAL COUNTY, FLORIDA CASE NO.: 16-2023-CC-019548

DIVISION: CC-N

PECAN PARK HOMEOWNERS ASSOCIATION, INC., a Florida non-profit corporation, Plaintiff, v. DONALD M ASHLEY, et al., Defendant(s).

NOTICE OF FORECLOSURE SALE

NOTICE IS GIVEN that the undersigned Clerk of the Court will offer the following described property in Duval County, Florida: Street Address: 1515 Paso Fino Drive Jacksonville, FL

32218

Legal Description: Lot 382, Lexington Park Phase Two, according to the plat thereof, recorded in Plat Book 64, Page(s) 38 through 47, inclusive, of the Public Records of Duval County, Florida. for sale to the highest bidder for cash on January 30, 2025, at 11:00 a.m. at www.duval.realforeclose.com pursuant to the Final Judgment of Foreclosure in this action dated October 30, 2024. Any person claiming an interest in the surplus from the sale, if any, other than the property owner as of the date of the Lis Pendens, must file a claim before the clerk reports the surplus as unclaimed. Americans With Disabilities Act (ADA) Notice In accordance with the Americans with Disabilities Act of 1990 (ADA), If you are a person with a disability who needs any accommodation in order to participate in this proceeding, you are entitled at no cost to you, to the provision of certain assistance. Please contact the ADA Coordinator at crtintrp@coj.net or (904) 255-1695 at least 7 days before your scheduled court appearance, or immediately upon receiving this notification if the time before the scheduled appearance is less than 7 days; if you are hearing or voice impaired, call 711. DATED this 31st day of October, 2024.

JODY PHILLIPS CLERK OF COURT By: Joy E. Rodriguez Deputy Clerk

(Court Seal)

David D. Rottmann, Esq.

Coker Law 136 East Bay Street Jacksonville, FL 32202 Nov. 7/14 4 (24-07035D)

SECOND INSERTION

NOTICE

Extra Space Storage, on behalf of itself or its affiliates, Life Storage or Storage Express, will hold a public auction to sell personal property described below belonging to those individuals listed below at the location indicated: 3858 Old Sunbeam Rd. Jacksonville, FL 32257 on Tuesday, November 26, 2024 at 11:00 AM Mario RochaOutside entertainment

The auction will be listed and advertised on www.storagetreasures.com. Purchases must be made with CASH ONLY and paid at the above referenced facility in order to complete the transaction.

Extra Space Storage may refuse any bid and may rescind any purchase up until the winning bidder takes possession of the personal property Nov. 7/14 4 (24-07012D)

SECOND INSERTION

NOTICE

Extra Space Storage, on behalf of itself or its affiliates, Life Storage or Storage Express, will hold a public auction to sell personal property described below belonging to those individuals listed below at the location indicated: Extra Space Storage, 2004 Edison Ave, Jacksonville, Florida 32204. Auction date: November 26, 2024 at 1:30pm Lasalle Weeks, Household goods Brandon richardson, household items Stanley lowe, fishing poles and fishing gear KEISHA MULDROW, 3 bedrooms, clothing and boxes

Sonja Mack, Household goods Ora Young, I have a queen size bed/mattress.. twin size house bed Barbie doll house, twin boy car bed Blake Hensley, Shirt press flash dryer small tool boxes dufflebag bass Amp and guitar

The auction will be listed and advertised on www.storagetreasures.com. Purchases must be made with cash only and paid at the above referenced facility in order to complete the transaction. Extra Space Storage may refuse any bid and may rescind any purchase up until the winning bidder takes possession of the personal property.

4 (24-07031D)

Nov. 7/14

SECOND INSERTION IN THE CIRCUIT COURT OF THE FOURTH JUDICIAL CIRCUIT IN AND FOR DUVAL COUNTY, FLORIDA

Case No.: 16-2023-CA-008592

DIVISION: FC-G Groundfloor Jacksonville, LLC, Plaintiff, vs. H.Y.P.A Real-Estate, LLC, Thomas A. Webster, Jr., and Ulisa Webster, Defendants.

NOTICE OF ACTION

TO: The defendants Thomas A. Webster, Jr., and Ulisa Webster and all others whom it may concern: YOU ARE NOTIFIED that an action to foreclose a mortgage has been filed against you regarding the following real property in DUVAL COUNTY, FLORIDA: Parcel 1.: Lot 8, Block 8, GRAND PARK, according to the Map or Plat thereof, as recorded in Plat Book 2, Pages 59 and 60, of the Public Records of Duval County, Florida, a/k/a 3819 Penton Street, Jacksonville, FL 32209; Parcel 2: Lots 19 and 20, Block 3 of Edgewood Park, according to the Plat thereof as recorded in Plat Book 12, Page(s) 2, of the Public Records of Duval County, Florida, a/k/a 5432 Tyler Avenue, Jacksonville, FL 32254. You are required to serve a copy of your written defenses, if any to it on McKillop Law Firm, the Plaintiffs attorney, whose address is 7563 Philips Highway, Building 500, Jacksonville, FL 32256 on or before thirty (30) days after the first publication of this Notice, and file the original with the Clerk of this Court either before service on the Plaintiff’s attorney or immediately thereafter; otherwise a default will be entered against you for the relief demanded in the Complaint. DATED on October 30, 2024. JODY PHILLIPS CLERK OF THE CIRCUIT COURT By: Pamela R. Harrell As Deputy Clerk (Court Seal) Nov. 7/14 4 (24-07028D)

SECOND INSERTION

NOTICE

Extra Space Storage, on behalf of itself or its affiliates, Life Storage or Storage Express, will hold a public auction to sell personal property described below belonging to those individuals listed below at the location indicated: Extra Space Storage, 9914 San Jose Blvd, Jacksonville, FL 32257, on November 26th, 2024 at 11:30am.

Timothy BowersHousehold goods

Mark Mackoul - Household goods The auction will be listed and advertised on www.storagetreasures.com. Purchases must be made with cash only and paid at the above referenced facility in order to complete the transaction. Extra Space Storage may refuse any bid and may rescind any purchase up until the winning bidder takes possession of the personal property Nov. 7/14 4 (24-07011D)

SECOND INSERTION

Extra Space Storage, on behalf of itself or its affiliates, Life Storage or Storage Express, will hold a public auction to sell personal property described below belonging to those individuals listed below at the location indicated: 100 Girvin Rd, Jacksonville FL, 32225 November 26, 2024 at 12:00pm. Zachary FooteHousehold goods & furniture. The auction will be listed and advertised on www.storagetreasures.com Purchases must be made with cash only and paid at the above referenced facility in order to complete the transaction.

Extra Space Storage may refuse any bid and may rescind any purchase up until the winning bidder takes possession of the personal property. Nov. 7/14 4 (24-07022D)

SECOND INSERTION

NOTICE Extra Space Storage, on behalf of itself or its affiliates, Life Storage or Storage Express, will hold a public auction to sell personal property described below belonging to those individuals listed below at the location indicated: 5017 Bowden Rd Jacksonville Fl 32216 11/26/2024 @ 11a.m.

Solomon Thomas - House Goods

Tameka Collier - House Goods

Brandon Moore - House Goods

Melanie Duros - House Goods Laquanda Thomas - House Goods James Green - House Goods Adam Martin - House Goods

The auction will be listed and advertised on www.storagetreasures.com. Purchases must be made with cash only and paid at the above referenced facility in order to complete the transaction.

Extra Space Storage may refuse any bid and may rescind any purchase up until the winning bidder takes possession of the personal property.

Nov. 7/14 4 (24-07023D)

SECOND INSERTION

NOTICE Extra Space Storage, on behalf of itself or its affiliates, Life Storage or Storage Express, will hold a public auction to sell personal property described below belonging to those individuals listed below at the location indicated: 7657 103rd St Jacksonville, FL 32210, November 26th at 11:00AM Mary PolkeHousehold Goods/Furniture Raynal Dallas - tools Angelita MaloneHousehold Goods/ Furniture, Boxes Artarshia EdwardsHousehold Goods/Furniture lashay johnson - bins Ashley Odol - Bed, Tv’s Jeffie Clark III - Mattress, boxes Ashley Mcfaddenmattresses dressers, beds, totes, boxes Justin AveryHousehold Goods/Furniture Timothy StraughterHousehold Goods/Furniture, Tools/Appliances Jaezza FordHousehold Goods/Furniture

The auction will be listed and advertised on www.storagetreasures.com. Purchases must be made with cash only and paid at the above referenced facility in order to complete the transaction. Extra Space Storage may refuse any bid and may rescind any purchase up until the winning bidder takes possession of the personal property. Nov. 7/14 4 (24-07021D)

NOTICE Extra Space Storage, on behalf of itself or its affiliates, Life Storage or Storage Express, will hold a public auction to sell personal property described below belonging to those individuals listed below at the location indicated: 45 Jefferson Rd, Jacksonville Fl 32225 11/26/2024 @1:00pm. Gertrude Turner - House Goods Shawn Hill - House Goods Keyerra Bivens - House Goods Amy Townsend - House Goods The auction will be listed and advertised on www.storagetreasures.com. Purchases must be made with cash only and paid at the above referenced facility in order to complete the transaction. Extra Space Storage may refuse any bid and may rescind any purchase up until the winning bidder takes possession of the personal property Nov. 7/14 4 (24-07009D)

SECOND INSERTION ADVERTISEMENT OF SALE NOTICE IS HEREBY GIVEN that the undersigned intends to sell the personal property described below to enforce a lien imposed on said property under The Florida Self Storage Facility Act. Bidding takes place on lockerfox.com and concludes Tuesday the 26th day of November, 2024 at 9:00 AM with payment at the facility. Store Space Durbin Park, 1195 Saint Johns Parkway, Jacksonville, FL, 32259. Kia Sumpter ; Mercedes Ross ; Stephiney Smith ; Paul Askew ; Sherell Johnson ; Matthew Kilgore ; Mariah Bedford ; Store Space San Marco, 1820 Kings Ave., Jacksonville, FL, 32207. Carlexia Richardson ; Olivia Smith ; Lara Carson ; Cheyanna Rudd ; Leroy Mosley ; Karina Ramos ; Sherri Howard ; Reginald Graham ; Alfred Chambliss ; Armelia King ; Armelia King ; Jasmine Latimer ; Anthony Terry ; Shandwuan Rackard ; Anthony Smith ; Kinda Smith ; Lashae Carter ; Charliese Jones ; Holly Bourgeois ; James Ladson ; Anthony Jones ; Dasani Griffin ; Elisha A Fripp ; Ebony Norman ; Jaqaris Walton ; Diedre Robinson ; Perri V Lewis ; Mya Gaston ; William L Wall Nov. 7/14 4 (24-07008D)

SECOND INSERTION

PUBLIC NOTICE OF SALE NOTICE IS HEREBY GIVEN that the undersigned intends to sell the personal property described below to enforce a lien imposed on said property under The Florida Self Storage Facility Act Statutes (Section 83.80183.809). The undersigned will sell by competitive bidding at locker-

SECOND INSERTION

IN THE CIRCUIT COURT OF THE FOURTH JUDICIAL

CIRCUIT JUDICIAL

CIRCUIT, IN AND FOR DUVAL COUNTY, FLORIDA

CIVIL DIVISION

CASE NO.: 16-2024-CA-002955

DIVISION: FC-D

TOORAK CAPITAL PARTNERS, LLC PLAINTIFF, vs. IZP PROPERTIES LLC, ET AL., DEFENDANT(S).

NOTICE OF ACTION

TO: Izhak Azulay Last Known Address: 639 East 27th Street, Jacksonville, FL 32206

Current Residence: UNKNOWN TO: Izhak Azulay

Last Known Address: 12113 Cap Ferrat Street, Jacksonville, FL 32206

Current Residence: UNKNOWN

YOU ARE NOTIFIED that an action for Foreclosure of Mortgage on the following described property: The East 30 Feet of Lot 25, and all of Lot 26, Block 4, North Springfield Terrace, according to the plat thereof as recorded in plat Book 3, Page 88, of the current Public Records of Duval County, Florida. has been filed against you and you are required to serve a copy of your written defenses, if any, to

it, on MILLER, GEORGE & SUGGS, PLLC, Attorney for Plaintiff, whose address is 210 N. University Drive, Suite 900, Coral Springs, FL 33071, on or before a date at least thirty (30) days after the first publication of this Notice in The Jacksonville Daily Record, and file the original with the Clerk of this Court either before service on Plaintiff’s attorney or immediately thereafter; otherwise a default will be entered against you for the relief demanded in the complaint Americans With Disabilities Act (ADA) Notice In accordance with the Americans with Disabilities Act of 1990 (ADA), If you are a person with a disability who needs any accommodation in order to participate in this proceeding, you are entitled at no cost to you, to the provision of certain assistance. Please contact the ADA Coordinator at crtintrp@coj.net or (904) 255-1695 at least 7 days before your scheduled court appearance, or immediately upon receiving this notification if the time before the scheduled appearance is less than 7 days; if you are hearing or voice impaired, call 711. WITNESS my hand and the seal of this Court this 4th day of November, 2024.

JODY PHILLIPS As Clerk of Court By: Alice V. Griffin As Deputy Clerk (Court Seal) Nov. 7/14 11 (24-07100D)

SECOND INSERTION

IN THE CIRCUIT COURT, FOURTH JUDICIAL CIRCUIT, IN AND FOR DUVAL COUNTY, FLORIDA

PROBATE DIVISION CASE NO.: 16-2024-CP-001159

DIVISION: PR-B IN RE: THE ESTATE OF VALENTINE A. KOWALEWSKI

Deceased.

NOTICE TO CREDITORS

The administration of the estate of Valentine Anthony Kowalewski, deceased, whose date of death was July 18, 2023, is pending in the Circuit Court for Duval County, Florida, Probate Division, the address of which is 501 West Adams Street, Jacksonville, FL 32202. The names and addresses of the personal representative and the personal representative’s attorney are set forth below. All creditors of the decedent and other persons having claims or demands against decedent’s estate on whom a copy of this notice is required to be served must file their claims with this court ON OR BEFORE THE LATER OF 3 MONTHS AFTER THE TIME OF THE FIRST PUBLICATION OF THIS NOTICE OR 30 DAYS AFTER THE DATE OF SERVICE OF A COPY OF THIS NOTICE ON THEM.

The personal representative has no duty to discover whether any property held at the time of the decedent’s death by the decedent or the decedent’s surviving spouse is property to which the Florida Uniform Disposition of Com-

munity Property Rights at Death Act as described in ss. 732.216732.228, Florida Statutes, applies, or may apply, unless a written demand is made by a creditor as specified under s. 732.2211, Florida Statutes.

All other creditors of the decedent and other persons having claims or demands against decedent’s estate must file their claims with this court WITHIN 3 MONTHS AFTER THE DATE OF THE FIRST PUBLICATION OF THIS NOTICE.

ALL CLAIMS NOT FILED WITHIN THE TIME PERIODS SET FORTH IN FLORIDA STATUTES SECTION 733.702 WILL BE FOREVER BARRED. NOTWITHSTANDING THE TIME PERIODS SET FORTH ABOVE, ANY CLAIM FILED TWO (2) YEARS OR MORE AFTER THE DECEDENT’S DATE OF DEATH IS BARRED.

The date of first publication of this notice is November 7th, 2024 Personal Representative Christina Antonia Kowalewski 7937 Los Robles Court Jacksonville, Florida 32258 Three Rivers Legal Services, Inc. Steven McDaniels Florida Bar Number: 1021175 3225 University Blvd, South #220 Jacksonville, Florida 32216 Telephone: (904) 423-8959 Fax: (904) 755-4117 E-Mail: steven.mcdaniels@trls.org Nov. 7/14 11 (24-07093D)

SECOND INSERTION

STATE OF SOUTH CAROLINA COUNTY OF BARNWELL IN THE FAMILY COURT SECOND JUDICIAL CIRCUIT Case No. 24-DR-06-151 South Carolina Department of Social Services, Plaintiff, vs Carol Leigh Savage Stacey Beard Margie J Bellinger Defendants. IN THE INTEREST OF: Minor child born in 2013 SUMMONS, NOTICE OF HEARING [REMOVAL]

TO: Stacey Beard YOU ARE HEREBY SUMMONED and required to answer the Summons, Notice of Hearing, Complaint [Removal] in and to the minor children in this action, the original of which has been filed in the Barnwell County Office of the Clerk of Court at 109 Park Ave., Aiken, SC 29801, on September 18, 2024, a copy of which will be delivered to you upon request; and to serve a copy of your answer to the complaint upon the attorney, Susanna Ringler, for the Plaintiff at 1410 Park Ave S.E P.O Drawer 1268 Aiken, SC 29802, within thirty (30) days following the date of service upon you, exclusive of the day of such service; and if you fail to answer the complaint within the time stated, the Plaintiff will apply for judgment by default against the Defendant for the relief demanded in the complaint.

PLEASE TAKE NOTICE that you have the right to be present and represented by an attorney. If you cannot afford an attorney, the court will appoint an attor-

SECOND INSERTION

IN THE CIRCUIT COURT FOR DUVAL COUNTY, FLORIDA PROBATE DIVISION

File No. 16-2024-CP-000887 Division PR-B IN RE: ESTATE OF ANNETTE E. MCLELLAND Deceased. NOTICE TO CREDITORS

The administration of the estate of Annette E. McLelland, deceased, whose date of death was November 21, 2023, is pending in the Circuit Court for Duval County, Florida, Probate Division, the address of which is 501 W. Adams Street, Jacksonville. FL 32202. The names and addresses of the personal representative and the personal representative’s attorney are set forth below.

All creditors of the decedent and other persons having claims or demands against decedent’s estate on whom a copy of this notice is required to be served must file their claims with this court ON OR BEFORE THE LATER OF 3 MONTHS AFTER THE TIME OF THE FIRST PUBLICATION OF THIS NOTICE OR 30 DAYS AFTER THE DATE OF SERVICE OF A COPY OF THIS NOTICE ON THEM.

The personal representative has no duty to discover whether any property held at the time of the decedent’s death by the decedent or the decedent’s surviving spouse is property to which the Florida Uniform Disposition of Community Property Rights at Death Act as described in ss. 732.216732.228, Florida Statutes, applies, or may apply, unless a written demand is made by a creditor as specified under s. 732.2211, Florida Statutes.

All other creditors of the decedent and other persons having claims or demands against decedent’s estate must file their claims with this court WITHIN 3 MONTHS AFTER THE DATE OF THE FIRST PUBLICATION OF THIS NOTICE.

ALL CLAIMS NOT FILED WITHIN THE TIME PERIODS SET FORTH IN FLORIDA STATUTES SECTION 733.702 WILL BE FOREVER BARRED.

NOTWITHSTANDING THE TIME PERIODS SET FORTH ABOVE, ANY CLAIM FILED TWO (2) YEARS OR MORE AFTER THE DECEDENT’S DATE OF DEATH IS BARRED. The date of first publication of this notice is November 7, 2024.

Personal Representative: Archie E. McLelland 8070 Delaroche Drive Jacksonville, Florida 32210

Attorney for Personal Representative: April R Scott, Attorney Florida Bar Number: 106677

Tolson & Associates, PA 462 Kingsley Ave., Ste. 101 Orange Park, FL 32073

Telephone: (904) 269-0050

Fax: (904) 269-6119

E-Mail: office@tolsonandassociates.com

Secondary E-Mail: susie@tolsonandassociates.com Nov. 7/14 11 (24-07059D)

SECOND INSERTION

IN THE CIRCUIT COURT FOR DUVAL COUNTY, FLORIDA

PROBATE DIVISION

File No.: 16-2024-CP-002666 Division: PR-A IN RE: ESTATE OF REGINA RITA MARCHANT, Deceased.

NOTICE TO CREDITORS

The administration of the estate of Regina Rita Marchant, who died on July 14, 2024, is pending in the Circuit Court for Duval County, Florida, Probate Division, the address of which is 501 West Adams Street, Room 1173, Jacksonville, FL, 32202. The names and addresses of the personal representative and the personal representative’s attorney are set forth below.

A personal representative or curator has no duty to discover whether any property held at the time of the decedent’s death by the decedent or the decedent’s surviving spouse is property to which the Florida Uniform Disposition of Community Property Rights at Death Act as described in sections 732.216-732.228, applies, or may apply, unless a written demand is made by a creditor as specified under section 732.2211.

All creditors of the decedent and other persons having claims or demands against decedent’s estate on whom a copy of this notice is required to be served must file their claims with this court WITHIN THE LATER OF 3 MONTHS AFTER THE TIME OF THE FIRST PUBLICATION OF THIS NOTICE OR 30 DAYS AFTER THE DATE OF SERVICE OF A COPY OF THIS NOTICE ON THEM.

All other creditors of the decedent and other persons having claims or demands against decedent’s estate must file their claims with this court WITHIN 3 MONTHS AFTER THE DATE OF THE FIRST PUBLICATION OF THIS NOTICE. ALL CLAIMS NOT FILED WITHIN THE TIME PERIODS SET FORTH IN SECTION 733.702 OF THE FLORIDA PROBATE CODE WILL BE FOREVER BARRED. NOTWITHSTANDING THE TIME PERIODS SET FORTH ABOVE, ANY CLAIM FILED TWO (2) YEARS OR MORE AFTER THE DECEDENT’S DATE OF DEATH IS BARRED.

The date of first publication of this notice is November 7, 2024. Personal Representative: Ronald S. Marchant Attorney for Personal Representative: /s/ Dan W. Armstrong Dan W. Armstrong Attorney for Personal Representative Florida Bar No. 506613 Law Offices of Dan W. Armstrong, P.A. P.O. Box 1535 Ponte Vedra Beach, FL 32004-1535

Telephone: (904) 280-0058

Fax: (904) 280-0109

Nov. 7/14 11 (24-07079D)

SECOND INSERTION

IN THE CIRCUIT COURT FOR DUVAL COUNTY, FLORIDA FILE NO. 16-2024-CP-002537

DIVISION: PR-B

ney to represent you. It is your responsibility to contact the Barnwell County Clerk of Court’s Office, 57 Wall St., Barnwell, SC 29812, to apply for appointment of an attorney to represent you if you cannot afford an attorney (take all of these papers with you if you apply). YOU MUST APPLY FOR THE APPOINTMENT OF AN ATTORNEY IMMEDIATELY. IF YOU DO NOT APPLY FOR AN ATTORNEY WITHIN THIRTY DAYS OF RECEIPT OF THE COMPLAINT, AN ATTORNEY WILL NOT BE APPOINTED FOR YOU.

YOU ARE FURTHER NOTIFIED that a Merits Hearing will be held in this matter on December 4, 2024 at 2:00 P.M. Please get in contact with Barnwell County Department of Social Services legal department for further instructions If you do not attend, the relief sought may be granted in your absence and that: (1) the Guardian ad Litem (GAL) who is appointed by the Court in this action to represent the best interest of the children will provide the Family Court with a written report that includes an evaluation and assessment of the issues brought before the Court along with recommendations. (2) the Guardian ad Litem’s written report will be available for review twenty-four (24) hours in advance of the hearing. (3) you may review the report at the Guardian ad Litem Program county office. S.C. DEPARTMENT OF SOCIAL SERVICES Legal Department

SC Department of Social Services

P.O. Drawer 1268 Aiken, South Carolina 29802 Nov. 7/14/21 11 (24-07091D)

IN RE: ESTATE OF SUSAN MARIE CARLEY

WOJTOWICZ, A/K/A SUSAN MARIE

WOJTOWICZ, A/K/A SUSAN WOJTOWICZ, Deceased.

NOTICE TO CREDITORS

The administration of the estate of SUSAN MARIE CARLEY

WOJTOWICZ, A/K/A SUSAN MARIE WOJTOWICZ, A/K/A

SUSAN WOJTOWICZ, deceased, whose date of death was August 7, 2024, is pending in the Circuit Court for Duval County, Florida, Probate Division, the address of which is 501 W. Adams Street, Jacksonville, FL 32202. The names and addresses of the personal representative and the personal representative’s attorney are set forth below.

All creditors of the decedent and other persons having claims or demands against decedent’s estate, on whom a copy of this notice is required to be served, must file their claims with this court ON OR BEFORE THE LATER OF 3 MONTHS AFTER THE TIME OF THE FIRST PUBLICATION OF THIS NOTICE OR 30 DAYS AFTER THE DATE OF SERVICE OF A COPY OF THIS NOTICE ON THEM. All other creditors of the decedent and other persons having claims or demands against decedent’s estate must file their claims with this court WITHIN 3 MONTHS AFTER THE DATE OF THE FIRST PUBLICATION OF THIS NOTICE. ALL CLAIMS NOT FILED WITHIN THE TIME PERIODS

SECOND

INSERTION

PUBLIC NOTICE OF SALE NOTICE IS HEREBY GIVEN that the undersigned intends to sell the personal property described below to enforce a lien imposed on said property under The Florida Self Storage Facility Act Statutes (Section 83.801 - 83.809). The undersigned will sell by competitive bidding at lockerfox.com on Thursday the 21st day of November, 2024 at 9:00 AM. Said property is iStorage, 5509 Shad Road, Jacksonville, FL, 32257 Duval County Dorothy Purifoy B01 appliances,misc items. Ronald Willis E44 misc items, mattress, shoes. David oshea G30 Misc Items, Furniture. All purchased items are sold as is, where is, and must be removed within 48 hours of the sale. Purchases must be paid for at the time of purchase by cash or credit/ debit card per facility policy. Sale subject to cancellation in the event of settlement between owner and obligated party.

Nov. 7/14 11 (24-06999D)

SECOND INSERTION

NOTICE Extra Space Storage, on behalf of itself or its affiliates, Life Storage or Storage Express, will hold a public auction to sell personal property described below belonging to those individuals listed below at the location indicated: 9239 103rd Street Jacksonville, Fl 32210 11/26/ 2024 @ 12:00 PM david benton household items and collectables Brittanie Killian

Goods Breanna Harris cloths

and

Mcleod

Household goods Shante Ayers Household goods Shantracyica Stripling

goods Joseph N Richards III Household Goods The auction will be listed and advertised on www.storagetreasures.com. Purchases must be made with cash only and paid at the above referenced facility in order to complete the transaction. Extra Space Storage may refuse any bid and may rescind any purchase up until the winning bidder takes possession of the personal property.

Nov. 7/14 11 (24-07003D)

SECOND INSERTION

IN THE CIRCUIT COURT OF THE FOURTH JUDICIAL CIRCUIT, IN AND FOR DUVAL COUNTY, FLORIDA CLERK NO.: 16-2024-CA-005781

DIVISION: CV-F

SET FORTH IN FLORIDA STATUTES SECTION 733.702 WILL BE FOREVER BARRED.

A personal representative or curator has no duty to discover whether any property held at the time of the decedent’s death by the decedent or the decedent’s surviving spouse is property to which the Florida Uniform Disposition of Community Property Rights at Death Act as described in Sections 732.216-732.228, applies, or may apply, unless a written demand is made by a creditor as specified under Section 732.2211. NOTWITHSTANDING THE TIME PERIOD SET FORTH ABOVE, ANY CLAIM FILED TWO (2) YEARS OR MORE AFTER THE DECEDENT’S DATE OF DEATH IS BARRED.

The date of first publication of this notice is November 7, 2024. Signed on this 4th day of November, 2024.

/s/ Heather Joyce HEATHER JOYCE

Personal Representative 3882 Tar Kiln Road Jacksonville, FL 32223

/s/ Matthew R. O’Kane

MATTHEW R. O’KANE

Florida Bar Number: 0894516

Attorneys for Petitioner Lowndes, Drosdick, Doster, Kantor & Reed, P.A. 215 North Eola Drive

P.O. Box 2809 Orlando, Florida 32802-2809

Telephone: (407) 843-4600

Fax: (407) 843-4444

E-Mail: matthew.okane@lowndes-law. com Secondary E-Mail: suzanne.dawson @lowndes-law.com Nov. 7/14 11 (24-07090D)

SECOND INSERTION

NOTICE

Extra Space Storage, on behalf of itself or its affiliates, Life Storage or Storage Express, will hold a public auction to sell personal property described below belonging to those individuals listed below at the location indicated: Life Storage, 10523 Deerwood Park Blvd, Jacksonville, FL 32256, 904-561-4843, on November 26th, 2024 at 1:00pm. Joyce King- Clothes legal documents legal supplies Anthony WrightHousehold Goods/Furniture Jocellen Huddlestonhousehold items The auction will be listed and advertised on www.storagetreasures.com. Purchases must be made with cash only and paid at the above referenced facility in order to complete the transaction. Extra Space Storage may refuse any bid and may rescind any purchase up until the winning bidder takes possession of the personal property.

Nov. 7/14 11 (24-07020D)

SECOND INSERTION

NOTICE Extra Space Storage, on behalf of itself or its affiliates, Life Storage or Storage Express, will hold a public auction to sell personal property described below belonging to those individuals listed below at the location indicated: 340 S Myrtle ave Jacksonville, Fl. 32204, 11/26/2024 at 10:00 am D’Archa Bennett

IN RE: FORFEITURE OF THE FOLLOWING DESCRIBED PROPERTY: CURRENCY IN THE AMOUNT OF $38,254.00 SUBMITTED UNDER CCR 2024-558637, SUBMISSION #1206677

T.K. WATERS, SHERIFF OF DUVAL COUNTY, PLAINTIFF vs. LEE BRADLEY JOHNSTON, CLAIMANT(S) NOTICE OF FORFEITURE COMPLAINT TO: ALL PERSONS CLAIMING A SECURITY OR OTHER INTEREST IN THE ABOVE-DESCRIBED PROPERTY

The above-described property was seized pursuant to the provisions of the Florida Contraband Forfeiture Act, Florida Statutes, sections 932.701-.707, by the Jacksonville Sheriff’s Office on September 11, 2024, at or in the vicinity of Duval County, Florida. The Jacksonville Sheriff’s Office is currently in possession of said property and has filed a Complaint for the purpose of forfeiture of said property in the Circuit Court of the Fourth Judicial Circuit of Florida. In order to protect your rights you must file an Answer to the Complaint with the Clerk of the Circuit Court, Duval County Courthouse, Jacksonville, Florida, within twenty (20) days of this publication. You must also serve a copy of your Answer on Plaintiff’s counsel, Andrew K. Kantor, Assistant State Attorney, 311 West Monroe Street, Jacksonville, Florida 32202. Failure to do so may result in the entry of a default against you and a Final Order of Forfeiture of the above-described property. Nov. 7/14 11 (24-07083D)

NOTICE OF PUBLIC SALE Notice is given that U-STOR auctions will be held on November 20 2024 at www.storagetreasures. com. Pursuant to Florida Statutes 83.801 – 83.809, to satisfy liens due to unpaid rents and charges. The undersigned will sell at public sale by competitive bidding the personal property heretofore stored with the undersigned to satisfy the owner’s lien. “CONSISTING OF HOUSEHOLD ITEMS UNLESS OTHERWISE NOTED”

PUBLIC NOTICES DUVAL COUNTY

SECOND INSERTION

SECOND INSERTION

IN THE CIRCUIT COURT OF THE FOURTH JUDICIAL CIRCUIT IN AND FOR DUVAL COUNTY, FLORIDA CASE NO. 16-2024-CA-002649

DIVISION: FC-B

WELLS FARGO USA HOLDINGS, LLC

Plaintiff, v. JOYCE R. PITTMAN A/K/A

JOYCE REDMOND PITTMAN; DONALD TRBOVICH; UNKNOWN TENANT 2; UNKNOWN TENANT 1; CHIMNEY LAKES OWNERS ASSOCIATION, INC. Defendants. NOTICE OF SALE Notice is hereby given that, pursuant to the Final Judgment of Foreclosure entered on October 18, 2024, in this cause, in the Circuit Court of Duval County, Florida, the clerk shall sell the property situated in Duval County, Florida, described as: LOT 40, ARGYLE FOREST CHIMNEY LAKES, UNIT FOUR, ACCORDING TO PLAT RECORDED IN PLAT BOOK 41, PAGES 47, 47A THROUGH 47D, OF THE CURRENT PUBLIC RECORDS OF DUVAL COUNTY, FLORIDA.

a/k/a 8132 SPENCERS TRACE DR, JACKSONVILLE, FL 32244-5944 at public sale, to the highest and best bidder, for cash, online at: www.duval.realforeclose.com

on D ecember 02, 2024 beginning at 11:00 AM. Any person claiming an interest in the surplus from the sale, if any, other than the property owner as of the date of the lis pendens must file a claim before the clerk reports the surplus as unclaimed. Americans With Disabilities Act (ADA) Notice In accordance with the Americans with Disabilities Act of 1990 (ADA), If you are a person with a disability who needs any accommodation in order to participate in this proceeding, you are entitled at no cost to you, to the provision of certain assistance. Please contact the ADA Coordinator at crtintrp@coj.net or (904) 2551695 at least 7 days before your scheduled court appearance, or immediately upon receiving this notification if the time before the scheduled appearance is less than 7 days; if you are hearing or voice impaired, call 711. Dated this 30th day of October, 2024. JODY PHILLIPS Clerk of the Circuit Court By: Pamela R. Harrell Deputy Clerk (Court Seal) eXL Legal, PLLC 12425 28TH ST NORTH, STE. 200 ST. PETERSBURG, FL 33716-1826 EFILING@EXLLEGAL.COM 1000009917 Nov. 7/14 2 (24-07029D)

SECOND INSERTION

IN THE COUNTY COURT, FOURTH JUDICIAL CIRCUIT, IN AND FOR, DUVAL COUNTY, FLORIDA CASE NO.: 16-2024-CC-009103

DIVISION: CC-G

VILLAS AT CROSS CREEK OWNERS ASSOCIATION, INC. Plaintiff, vs. CHRISTOPHER A. CERUTI, ET. AL. Defendants.

NOTICE OF ACTION

TO: Christopher A. Ceruti, Unknown Spouse of Christopher A. Ceruti, and Unknown Tenant No 2 YOU ARE NOTIFIED that the above-styled action to foreclose the lien on the following described property in Duval County, Florida: Lot 79, of VILLAS AT CROSS CREEK - UNIT FIVE, according to the Plat thereof, as recorded in Plat Book 48, Page 33 and 33A, of the Public Records of Duval County, Florida.

Property Address: 12350 Carriann Cove Trail South , Jacksonville, FL 32225 has been filed against you and you are required to serve a copy of your written defenses, if any, to it on Crabtree Law Group, P.A., 8777 San Jose Boulevard, Building A, Suite 200, Jacksonville, Florida 32217, (Phone Number: (904)7329701; Email: cwb@crabtreefirm. com), Plaintiff’s attorney within thirty (30) days after the first pub-

lication of this notice and file the original with the Clerk of this court either before service on Plaintiff’s attorney or immediately thereafter; otherwise a default will be entered against you for the relief demanded in the complaint. This notice shall be published once a week for two consecutive weeks in the Jacksonville Daily Record.

Americans With Disabilities Act (ADA) Notice In accordance with the Americans with Disabilities Act of 1990 (ADA), If you are a person with a disability who needs any accommodation in order to participate in this proceeding, you are entitled at no cost to you, to the provision of certain assistance. Please contact the ADA Coordinator at crtintrp@coj.net or (904) 2551695 at least 7 days before your scheduled court appearance, or immediately upon receiving this notification if the time before the scheduled appearance is less than 7 days; if you are hearing or voice impaired, call 711. DATED on 31st day of October, 2024.

JODY PHILLIPS CLERK OF COUNTY COURT

By: Pamela R. Harrell Deputy Clerk (Court Seal) Crabtree Law Group, P.A. 8777 San Jose Boulevard Building A, Suite 200 Jacksonville, Florida 32217 ems@crabtreefirm.com Attorney for Plaintiff Nov. 7/14 2 (24-07032D)

SECOND INSERTION

IN THE CIRCUIT COURT OF THE FOURTH JUDICIAL CIRCUIT IN AND FOR DUVAL COUNTY, FLORIDA CASE NO. 16-2024-CA-001889 DIVISION: FC-B GREENSPRING CAPITAL MANAGEMENT LLC, NOT IN ITS INDIVIDUAL CAPACITY, BUT SOLELY AS ADMINISTRATOR OF THE RMH 2023-2 TRUST Plaintiff, v. THE UNKNOWN HEIRS, GRANTEES, DEVISEES, LIENORS, TRUSTEES, AND CREDITORS OF THOMAS CARL HUSS A/K/A THOMAS CARL HUSS, SR. A/K/A THOMAS C. HUSS, SR. A/K/A THOMAS C. HUSS, DECEASED; UNKNOWN TENANT 1; UNKNOWN TENANT 2; LORI HUSS PARKER A/K/A LORI B.

BRYAN-PARKER, AS THE PETITIONER FOR THE ESTATE OF THOMAS CARL HUSS A/K/A THOMAS CARL HUSS, SR. A/K/A THOMAS C. HUSS, SR. A/K/A THOMAS C. HUSS, DECEASED; THOMAS C. HUSS, JR.; LORI HUSS PARKER A/K/A LORI B. BRYAN-PARKER; CITY OF JACKSONVILLE, FLORIDA Defendants.

NOTICE OF SALE

Notice is hereby given that, pursuant to the Final Judgment of Foreclosure entered on October 18, 2024, in this cause, in the Circuit Court of Duval County, Florida, the clerk shall sell the property situated in Duval County, Florida, described as: BEING THE WEST 23 FEET OF LOT 57, ALL OF LOT 58 AND THE EAST 15 FEET OF LOT 59, BLOCK 16A, OAKWOOD VILLA ESTATES, AS SHOWN ON PLAT OF RECORD IN PLAT BOOK 8, PAGES 23, 24 AND 25, OF THE PUB -

IN THE CIRCUIT COURT, FOURTH JUDICIAL CIRCUIT, IN AND FOR DUVAL COUNTY, FLORIDA

CASE NO.: 16-2024-CP-002874

DIVISION: PR-A

IN RE: THE ESTATE OF DONALD KEITH FOSTER, Deceased. NOTICE TO CREDITORS

The administration of the estate of Donald Keith Foster, deceased, whose date of death was March 12, 2024, is pending in the Circuit Court for Duval County, Florida, Probate Division, the address of which is 501 West Adams Street, Jacksonville, Florida 32202. The names and addresses of the personal representative and the personal representative’s attorney are set forth below.

All creditors of the decedent and other persons having claims or demands against decedent’s estate on whom a copy of this notice is required to be served must file their claims with this court ON OR BEFORE THE LATER OF 3 MONTHS AFTER THE TIME OF THE FIRST PUBLICATION OF THIS NOTICE OR 30 DAYS AFTER THE DATE OF SERVICE OF A COPY OF THIS NOTICE ON THEM.

All other creditors of the decedent and other persons having claims or demands against decedent’s estate must file their claims with this court WITHIN 3 MONTHS AFTER THE DATE OF THE FIRST PUBLICATION OF THIS NOTICE.

The personal representative has no duty to discover whether any property held at the time of the decedent’s death by the decedent or the decedent’s surviving spouse is property to which the Florida Uniform Disposition of Community Property Rights at Death Act as described in ss. 732.216.732.228, applies, or may apply unless a written demand is made by a creditor as specified under s. 732.2211, Florida Statutes.

ALL CLAIMS NOT FILED WITHIN THE TIME PERIODS SET FORTH IN FLORIDA STATUTES SECTION 733.702 WILL BE FOREVER BARRED. NOTWITHSTANDING THE TIME PERIODS SET FORTH ABOVE, ANY CLAIM FILED TWO (2) YEARS OR MORE AFTER THE DECEDENT’S DATE OF DEATH IS BARRED.

The date of first publication of this notice is November 7, 2024.

Personal Representative: Albulena Martinaj

Attorney for Personal Representative: Victoria L. Duke

Attorney for PR Florida Bar Number: 1040153 13500 Sutton Park Drive S., Suite 601 Jacksonville, FL 32224

Telephone: (904) 397-4444

E-Mail: victoria@threeoakslaw.com Nov. 7/14 2 (24-07018D)

LIC RECORDS OF DUVAL C OUNTY, FLORIDA, TO WHICH PLAT REFERENCE IS HEREBY MADE FOR A MORE COMPLETE DESCRIPTION OF SAID PROPERTY. a/k/a 7928 FREE AVE, JACKSONVILLE, FL 322117888 at public sale, to the highest and best bidder, for cash, online at: www.duval.realforeclose.com on December 02, 2024 beginning at 11:00 AM. Any person claiming an interest in the surplus from the sale, if any, other than the property owner as of the date of the lis pendens must file a claim before the clerk reports the surplus as unclaimed. Americans With Disabilities Act (ADA) Notice In accordance with the Americans with Disabilities Act of 1990 (ADA), If you are a person with a disability who needs any accommodation in order to participate in this proceeding, you are entitled at no cost to you, to the provision of certain assistance. Please contact the ADA Coordinator at crtintrp@coj.net or (904) 2551695 at least 7 days before your scheduled court appearance, or immediately upon receiving this notification if the time before the scheduled appearance is less than 7 days; if you are hearing or voice impaired, call 711. Dated this 30th day of October, 2024.

JODY PHILLIPS Clerk of the Circuit Court By: Pamela R. Harrell Deputy Clerk (Court Seal) eXL Legal, PLLC 12425 28TH ST NORTH, STE. 200 ST. PETERSBURG, FL 33716-1826 EFILING@EXLLEGAL.COM 1000009770 Nov. 7/14 2 (24-07030D)

SECOND INSERTION

NOTICE

Extra Space Storage, on behalf of itself or its affiliates, Life Storage or Storage Express, will hold a public auction to sell personal property described below belonging to those individuals listed below at the location indicated: 14130 Beach Blvd Jacksonville Fl, 32250. 11/26/2024 at 12:30pm

Elva William WigginsPersonal effects, Furniture, Car Rims/Tires, Totes

The auction will be listed and advertised on www.storagetreasures.com. Purchases must be made with cash only and paid at the above referenced facility in order to complete the transaction.

Extra Space Storage may refuse any bid and may rescind any purchase up until the winning bidder takes possession of the personal property.

Nov. 7/14 2 (24-07001D)

SECOND INSERTION

NOTICE

Extra Space Storage, on behalf of itself or its affiliates, Life Storage or Storage Express, will hold a public auction to sell personal property described below belonging to those individuals listed below at the location indicated: 1515 Manotak Ave Jacksonville FL 32210 November 26, 2024 @ 12:00pm

Darian Jackson-Bed, sofa, dresser, small kitchen table Joanne PankeyHousehold Goods/Furniture

Tiffany BlockerBags, Tv, boxes, bins

Audrey Oakes- washer, dryer, desk 7 medium boxes

Kenneth RobinsonHousehold Goods/Furniture

Loletha FortsonHousehold goods

Anita Baileyhousehold goods, boxes

Josephine JonesHousehold Goods/Furniture

Michael Rieves- Boxes

James Grant- Household Goods/ Furniture, Tools/Appliances

Kristine Roundtree- Household Goods/Furniture, TV/Stereo Equipment, Personal items

Jasmine Smith- Personal, Vehicle

Martha Smith- Household goods

Reginald StoneHousehold Goods/Furniture

Argelina TaylorHousehold Goods/Furniture

Sidney Higginshousehold goods, electronics, bins Mojisola Baruwahousehold furniture/items

The auction will be listed and advertised on www.storagetreasures.com. Purchases must be made with cash only and paid at the above referenced facility in order to complete the transaction.

Extra Space Storage may refuse any bid and may rescind any purchase up until the winning bidder takes possession of the personal property.

Nov. 7/14

2 (24-07010D)

IN THE CIRCUIT COURT, FOURTH JUDICIAL CIRCUIT, IN AND FOR DUVAL COUNTY, FLORIDA

PROBATE DIVISION CASE NO.: 16-2024-CP-002956 DIVISION: PR-B IN RE: ESTATE OF PAIGE ELIZABETH PRINGLE, Deceased.

NOTICE TO CREDITORS

The administration of the estate of PAIGE ELIZABETH PRINGLE, deceased, whose date of death was August 9, 2023, is pending in the Circuit Court for Duval County, Florida, Probate Division, File No. 16-2024-CP-002956, the address of which is 501 West Adams Street, Duval County Courthouse, Jacksonville, FL 32202. The names and addresses of the personal representative and that personal representative’s attorney are set forth below. All creditors of the decedent and other persons having claims or demands against decedent’s estate on whom a copy of this notice is required to be served must file their claims with this court ON OR BEFORE THE LATER OF 3 MONTHS AFTER THE TIME OF THE FIRST PUBLICATION OF THIS NOTICE OR 30 DAYS AFTER THE DATE OF SERVICE OF A COPY OF THIS NOTICE ON THEM.

All other creditors of the decedent and other persons having claims or demands against decedent’s estate must file their claims with this Court WITHIN 3 MONTHS AFTER THE DATE OF THE FIRST PUBLICATION OF THIS NOTICE. ALL CLAIMS NOT FILED

SECOND INSERTION

IN THE CIRCUIT COURT FOR DUVAL COUNTY, FLORIDA PROBATE DIVISION

File No. 16-2024-CP-002502 Division PR-A IN RE: ESTATE OF WILLIAM FRANKLIN WRIGHT, Deceased.

NOTICE TO CREDITORS

The administration of the estate of William Franklin Wright, deceased, whose date of death was August 16, 2024, is pending in the Circuit Court for Duval County, Florida, Probate Division, the address of which is 501 West Adams St., Room 1173, Jacksonville, FL 32202. The names and addresses of the personal representative and the personal representative’s attorney are set forth below.

All creditors of the decedent and other persons having claims or demands against decedent’s estate on whom a copy of this notice is required to be served must file their claims with this court ON OR BEFORE THE LATER OF 3 MONTHS AFTER THE TIME OF THE FIRST PUBLICATION OF THIS NOTICE OR 30 DAYS AFTER THE DATE OF SERVICE OF A COPY OF THIS NOTICE ON THEM.

The personal representative has no duty to discover whether any property held at the time of the decedent’s death by the decedent or the decedent’s surviving spouse is property to which the Florida Uniform Disposition of Community Property Rights at Death Act as described in ss. 732.216732.228, Florida Statutes, applies, or may apply, unless a written demand is made by a creditor as specified under s. 732.2211, Florida Statutes. All other creditors of the decedent and other persons having claims or demands against decedent’s estate must file their claims with this court WITHIN 3 MONTHS AFTER THE DATE OF THE FIRST PUBLICATION OF THIS NOTICE. ALL CLAIMS NOT FILED WITHIN THE TIME PERIODS SET FORTH IN FLORIDA STATUTES SECTION 733.702 WILL BE FOREVER BARRED.

NOTWITHSTANDING THE TIME PERIODS SET FORTH ABOVE, ANY CLAIM FILED TWO (2) YEARS OR MORE AFTER THE DECEDENT’S DATE OF DEATH IS BARRED. The date of first publication of this notice is November 7, 2024.

Personal Representative: Ruth Katherine Geiger 4148 Stratford Way Jacksonville, Florida 32225

Attorney for Personal Representative: Candyce M. King, Esquire Florida Bar Number: 307210 King & Mannion, P.A. 2219 Park Street Jacksonville, FL 32204

Telephone: (904) 387-9886

Fax: (904) 387-9862

E-Mail: kingcandyce@bellsouth.net Nov. 7/14 2 (24-07019D)

WITHIN THE TIME PERIODS SET FORTH IN SECTION 733.702 OF THE FLORIDA PROBATE CODE WILL BE FOREVER BARRED.

NOTWITHSTANDING THE TIME PERIODS SET FORTH ABOVE, ANY CLAIM FILED TWO (2) YEARS OR MORE AFTER THE DECEDENT’S DATE OF DEATH IS BARRED.

A personal representative or curator has no duty to discover whether any property held at the time of the decedent’s death by the decedent or the decedent’s surviving spouse is property to which the Florida Uniform Disposition of Community Property Rights at Death Act as described in sections 732.216-732.228, applies, or may apply, unless a written demand is made by a creditor as specified under section 732.2211.

The date of thefirst publication of this Notice is November 7, 2024.

Personal Representative

WILLIAM LEON PRINGLE 6538 140 Avenue Holland, MI 49423

LISA JOAN PRINGLE 6538 140 Avenue Holland, MI 49423

Attorney for

Personal Representative

TIMOTHY P. KELLY, ESQUIRE Florida Bar No. 0724475

TIMOTHY P. KELLY, P.A. 1016 LaSalle Street Jacksonville, Florida 32207

Telephone: (904) 399-3705

Facsimile: (904) 399-3706

Email Service: Eservice@tkellypa.com Nov. 7/14 2 (24-07013D)

SECOND INSERTION IN THE CIRCUIT COURT FOR DUVAL COUNTY, FLORIDA PROBATE DIVISION File No.: 16-2024-CP-002877

Division: PR-B IN RE: ESTATE OF ADA L. STEWARD WELLS, Deceased.

NOTICE TO CREDITORS The administration of the estate of Ada L. Steward Wells, deceased, whose date of death was December 23, 2023, is pending in the Circuit Court for Duval County, Florida, Probate Division, the address of which is 501 West Adams Street, Jacksonville, Florida 32202. The names and addresses of the personal representative and the personal representative’s attorney are set forth below. All creditors of the decedent and other persons having claims or demands against decedent’s estate on whom a copy of this notice is required to be served must file their claims with this court ON OR BEFORE THE LATER OF 3 MONTHS AFTER THE TIME OF THE FIRST PUBLICATION OF THIS NOTICE OR 30 DAYS AFTER THE DATE OF SERVICE OF A COPY OF THIS NOTICE ON THEM. The personal representative has no duty to discover whether any property held at the time of the decedent’s death by the decedent or the decedent’s surviving spouse is property to which the Florida Uniform Disposition of Community Property Rights at Death Act as described in ss. 732.216732.228, Florida Statutes, applies, or may apply, unless a written demand is made by a creditor as specified under s. 732.2211, Florida Statutes. All other creditors of the decedent and other persons having claims or demands against decedent’s estate must file their claims with this court WITHIN 3 MONTHS AFTER THE DATE OF THE FIRST PUBLICATION OF THIS NOTICE. ALL CLAIMS NOT FILED WITHIN THE TIME PERIODS SET FORTH IN FLORIDA STATUTES SECTION 733.702 WILL BE FOREVER BARRED. NOTWITHSTANDING THE TIME PERIODS SET FORTH ABOVE, ANY CLAIM FILED TWO (2) YEARS OR MORE AFTER THE DECEDENT’S DATE OF DEATH IS BARRED. The date of first publication of this notice is November 7, 2024. Personal Representative: Voncile D. Allen 6455 Kinlock Drive West Jacksonville, Florida 32219 Counsel for Personal Representative: Charlie J. Gillette, Jr., Esquire Gillette Law, P.A. Florida Bar Number: 0798010 603 N Market Street Jacksonville, FL 32202 Telephone: (904) 358-1304 Fax: (904) 355-1483

E-Mail: cgillette@gillettelaw.com Secondary E-Mail: n/a Counsel for Personal Representative Nov. 7/14 2 (24-07014D)

IN THE CIRCUIT COURT IN AND FOR DUVAL COUNTY, FLORIDA PROBATE DIVISION FILE NO.: 16-2024-CP-002987

DIVISION: PR-B IN RE: ESTATE OF JAMES LUGO GUEVARA, DECEASED. NOTICE TO CREDITORS

The administration of the estate of James Lugo Guevara, deceased, whose date of death was September 17, 2024, is pending in the Circuit Court for Duval County, Florida, Probate Division, the address of which is 501 W. Adams Street, Jacksonville, Florida 32202. The names and addresses of the personal representative and the personal representative’s attorney are set forth below.

All creditors of the decedent and other persons having claims or demands against decedent’s estate on whom a copy of this notice is required to be served must file their claims with this Court ON OR BEFORE THE LATER OF 3 MONTHS AFTER THE TIME OF THE FIRST PUBLICATION OF THIS NOTICE OR 30 DAYS AFTER THE DATE OF SERVICE OF A COPY OF THIS NOTICE ON THEM. All other creditors of the decedent and other persons having claims or demand against decedent’s estate must file their claims with this Court WITHIN 3 MONTHS AFTER THE DATE OF THE FIRST PUBLICATION OF THIS NOTICE.

A personal representative or curator has no duty to discover whether any property held at the time of the decedent’s death by the decedent or the decedent’s surviving spouse is property to which the Florida Uniform Disposition of Community Property Rights at Death Act, as described in Sections 732.216-732.228, applies, or may apply unless a written demand is made by a creditor as specified under section 732.2211. ALL CLAIMS NOT FILED WITHIN THE TIME PERIODS SET FORTH IN FLORIDA STATUTES SECTION 733.702 WILL BE FOREVER BARRED. NOTWITHSTANDING THE TIME PERIODS SET FORTH ABOVE, ANY CLAIM FILED TWO (2) YEARS OR MORE AFTER THE DECEDENT’S DEATH IS BARRED.

PUBLIC NOTICES

THIRD INSERTION

IN THE CIRCUIT COURT OF THE FOURTH JUDICIAL CIRCUIT, IN AND FOR DUVAL COUNTY, FLORIDA CASE NO.: 16-2023-DR-005654-FM Division: FM-B

Joanna D. Cardenas, Petitioner, and Wilfredo Rivera, Respondent, NOTICE OF ACTION FOR DISSOLUTION OF MARRIAGE (NO CHILD OR FINANCIAL SUPPORT)

TO: Wilfredo Rivera 8232 White Plain Rd. Jacksonville, FL 32208

YOU ARE NOTIFIED that an action for dissolution of marriage has been filed against you and that you are required to serve a copy of your written defenses, if any, to it on Joanna D. Cardenas whose address is 2310 Red Moon Dr., Jacksonville, FL 32216, on or before December 6, 2024, and file the original with the clerk of this Court at 501 W Adams St., Jacksonville, Florida 32202, before service on Petitioner or immediately thereafter. If you fail to do so, a default may be entered against you for the relief demanded in the petition.

Copies of all court documents in this case, including orders, are available at the Clerk of the Circuit Court’s office. You may review these documents upon request. You must keep the Clerk of the Circuit Court’s office notified of your current address. (You may file Notice of Current Mailing and E-mail Address, Florida Supreme Court Approved Family Law Form 12.915). Future papers in this lawsuit will be mailed to the address on record at the clerk’s office.

WARNING: Rule 12.285, Florida Family Law Rules of Procedure, requires certain automatic disclosure of documents and information. Failure to comply can result in sanctions, including dismissal or striking of pleadings.

Dated: October 22, 2024

JODY PHILLIPS, CLERK OF THE CIRCUIT COURT

By: Maxine Jefferson Deputy Clerk (Court Seal) Oct. 31, Nov. 7/14/21 14 (24-06996D)

FOURTH INSERTION

IN THE CIRCUIT COURT OF THE FOURTH JUDICIAL CIRCUIT IN AND FOR DUVAL COUNTY, FLORIDA

CIVIL DIVISION

CASE NO. 16-2024-CA-004187

DIVISION: CV-H BRANDON BLAKE, Plaintiff, v. ESTATE OF WILLANNIE

M. PARKER, PATRICIA A. PARKER, and any unknown heirs, devisees, grantees, creditors, and other unknown persons or unknown spouses claiming by, through and under the abovenamed Defendants, Defendants.

NOTICE OF ACTION

TO: ESTATE OF WILLANNIE

M. PARKER; and PATRICIA A. PARKER.

YOU ARE NOTIFIED that an action for Adverse Possession for the following property in Duval County, Florida: Legal Description: Lot 89, EDMONSON’S MAIN STREET ESTATES, according to the plat thereof as recorded in Plat Book 15, page 39 of the current public records of Duval County, Florida. Parcel ID: 15-39-39-1S-26E

C/K/A: 50 E. 45th Street, Jacksonville, FL 32208 has been filed against you and you are required to serve a copy of your written defenses, if any, to Joshua P. Perez, Esquire, the Plaintiff’s attorney, whose address is Brown & Associates Law & Title, P.A. 4200 4th Street, N., Suite F, St. Petersburg, FL 33703, on or before, 30 days from first publication, and file the original with the Clerk of this Court either before service on the Plaintiff’s attorney or immediately thereafter; otherwise a default will be entered against you for the relief demanded in the complaint or petition.

Dated: October 22, 2024

JODY PHILLIPS As Clerk of the Court

BY: Alice V. Griffin

As Deputy Clerk (Court Seal) BROWN & ASSOCIATES

LAW & TITLE, P.A.

/s/ Joshua P. Perez, Esq

Attorney for Plaintiff 4200 4th Street, N., Suite F St. Petersburg, FL 33703 (727) 325-2001

CourtDocuments@ BrownALT.com

Oct. 24/31, Nov. 7/14 14 (24-06854D)

SECOND INSERTION

IN THE CIRCUIT COURT OF THE 4TH JUDICIAL CIRCUIT IN AND FOR DUVAL COUNTY CASE NO. 16-2010-DP-101-A

DIVISION: JV-B IN THE INTEREST OF: A.D. DOB: 9/13/2008, MINOR CHILD NOTICE OF ACTION TERMINATION OF PARENTAL RIGHTS TO: Terale Drake, address unknown YOU ARE HEREBY NOTIFIED that the State of Florida, Department of Children and Families, has filed a Petition to terminate your parental rights and permanently commit the following child for adoption: A.D. born on 9/13/2008. You are hereby commanded to appear on December 16, 2024, at 1:00 PM before the Honorable Michael Kalil Donna J. Vincent at the Duval Courthouse, 501 W Adams Street Courtroom 204 Jacksonville, FL 32202, for an ADVISORY HEARING.

FAILURE TO PERSONALLY APPEAR AT THIS ADVISORY HEARING CONSTITUTES CONSENT TO THE TERMINATION OF PARENTAL RIGHTS OF THIS CHILD (OR CHILDREN). IF YOU FAIL TO APPEAR ON THE DATE AND TIME SPECIFIED, YOU MAY LOSE ALL LEGAL RIGHTS AS A PARENT TO THE CHILD OR CHILDREN NAMED IN THIS NOTICE.

1. If you are a person with a disability who needs any accommodation in order to participate in this proceeding, you are entitled, at no cost to you, to the provision of certain assistance. Please contact the ADA Coordinator at (904) 255-1695 or crtintrp@coj.net at least 7 days before your scheduled court appearance, or immediately upon receiving this notification if the time before the scheduled appearance is less than 7 days; if you are hearing or voice impaired, call 711. WITNESS, my hand as Clerk of said Court and the Seal thereof, this 6th day of November 2024. JODY PHILLIPS, CLERK OF COURT By: Le My Le As Deputy Clerk (Court Seal) Nov. 7/14/24/29 12 (24-07121D)

FOURTH INSERTION IN THE CIRCUIT COURT OF THE FOURTH JUDICIAL CIRCUIT, IN AND FOR DUVAL COUNTY, FLORIDA. Case No.: 16-2024-CA-004054

Division: CV-H JAMES VICARS, FELICIA SHERMAN, CLAUDEST SHERMAN, SHEREE FAULK, JAMIE LOWRY, JAMES HOUSTON, TAMMY SASSNETT, MICHELLE SASSNETT, GRADY SASSNETT, KAREN DALLAS, ALTON ROBINSON, heir of CHERYL ROBINSON, TIFFANY SASSNETT, heir of KIM HUDSON, & LARRY HUDSON, JR. heir of KIM HUDSON, Plaintiffs, v. CHRISTINE SHERMAN, TERRELL SHERMAN, & THOMAS LEROY, Defendants. NOTICE OF ACTION TO DEFENDANT: THOMAS LEROY YOU ARE NOTIFIED that an action for partition & unlawful detainer has been filed against you, and you are required to serve a copy of your written defenses, if any, to Sarah A. Mannion, Esq. Florida Bar No. 103087, attorney for Plaintiff, whose address is 2219 Park St, Jacksonville, FL 32204, and to file the original with the Clerk of this Court and serve on Plaintiff’s attorney either before thirty (30) days after the first publication of this Notice, or immediately thereafter, otherwise a default will be entered against you for the relief demanded in the complaint.

This action was instituted in the Fourth Judicial Circuit for Duval County in the State of Florida and is styled as follows: JAMES VICARS, FELICIA SHERMAN, CLAUDEST SHERMAN, SHEREE FAULK, JAMIE LOWRY, JAMES HOUSTON, TAMMY SASSNETT, MICHELLE SASSNETT, GRADY SASSNETT, KAREN DALLAS, ALTON ROBINSON, heir of CHERYL ROBINSON, TIFFANY SASSNETT, heir of KIM HUDSON,& LARRY HUDSON, JR. heir of KIM HUDSON, Plaintiffs v. CHRISTINE SHERMAN, TERRELL SHERMAN, & THOMAS LEROY Defendants. DATED: October 22, 2024

JODY PHILLIPS CLERK OF THE COURT

By: Pamela R. Harrell As Deputy Clerk (Court Seal) Oct. 24/31, Nov. 7/14 24 (24-06855D)

SECOND INSERTION

IN THE CIRCUIT COURT FOR THE 4TH JUDICIAL CIRCUIT, IN AND FOR DUVAL COUNTY, FLORIDA PROBATE DIVISION File No. 16-2024-CP-002938 DIVISION: PR-A IN RE: ESTATE OF KIM KATHRYNE FLEMING, Deceased.

NOTICE TO CREDITORS

The administration of the estate of KIM KATHRYNE FLEMING, Deceased, whose date of death was October 20, 2022, is pending in the Circuit Court for Duval County, Florida, Probate Division, the address of which is 501 W Adams Street, Jacksonville, FL 32202 The names and addresses of the personal representative and the personal representative’s attorney are set forth below.

All creditors of the decedent and other persons having claims or demands against decedent’s estate on whom a copy of this notice is required to be served must file their claims with this court WITHIN THE LATER OF 3 MONTHS AFTER THE TIME OF THE FIRST PUBLICATION OF THIS NOTICE OR 30 DAYS AFTER THE DATE OF SERVICE OF A COPY OF THIS NOTICE ON THEM.

All other creditors of the decedent and other persons having claims or demands against decedent’s estate must file their claims with this court WITHIN 3 MONTHS AFTER THE DATE OF THE FIRST PUBLICATION OF THIS NOTICE.

ALL CLAIMS NOT FILED WITHIN THE TIME PERIODS SET FORTH IN SECTION 733.702 OF THE FLORIDA PROBATE CODE WILL BE FOREVER BARRED. NOTWITHSTANDING THE TIME PERIODS SET FORTH ABOVE, ANY CLAIM FILED TWO (2) YEARS OR MORE AFTER THE DECEDENT’S DATE OF DEATH IS BARRED.

A personal representative or curator has no duty to discover whether any property held at the time of the decedent’s death by the decedent or the decedent’s surviving spouse is property to which the Florida Uniform Disposition of Community Property Rights at Death Act as described in sections 732.216-732.228, applies, or may apply, unless a written demand is made by a creditor as specified under section 732.2211.

The date of first publication of this notice is November 7, 2024.

NEIL D. FLEMING, Personal Representative Attorney for Personal Representative: Scott R. Bugay, Esquire Florida Bar No. 5207 Citicentre, Suite P600 290 NW 165 Street Miami FL 33169

Telephone: (305) 956-9040

Fax: (305) 945-2905

Primary Email: Scott@srblawyers.com

Secondary Email: angelica@srblawyers.com Nov. 7/14 12 (24-07112D)

SECOND INSERTION

IN THE CIRCUIT COURT, FOURTH JUDICIAL CIRCUIT, IN AND FOR DUVAL COUNTY, FLORIDA CASE NO: 16-2024-CP-002915

DIVISION: PR-B IN RE: ESTATE OF: ROBERT SPINDLER, Deceased.

NOTICE TO CREDITORS

The administration of the estate of Robert Spindler, deceased, whose date of death was July 5, 2024, is pending in the Duval Circuit Court for DUVAL County, Florida, Probate Division, the address of which is 501 West Adams, Jacksonville, Florida 32202. The names and addresses of the personal representative and the personal representative’s attorney are set forth below.

All creditors of the decedent and other persons having claims or demands against decedent’s estate on whom a copy of this notice is required to be served must file their claims with this court ON OR BEFORE THE LATER OF 3 MONTHS AFTER THE TIME OF THE FIRST PUBLICATION OF THIS NOTICE OR 30 DAYS AFTER THE DATE OF SERVICE OF A COPY OF THIS NOTICE ON THEM.

The personal representative has no duty to discover whether any property held at the time of the decedent’s death by the decedent or the decedent’s surviving spouse is property to which the Florida Uniform Disposition of Community Property Rights at Death Act as described in ss. 732.216732.228, Florida Statutes, applies, or may apply, unless a written demand is made by a creditor as specified under s. 732.2211, Florida Statutes.

All other creditors of the decedent and other persons having claims or demands against decedent’s estate must file their claims with this court WITHIN 3 MONTHS AFTER THE DATE OF THE FIRST PUBLICATION OF THIS NOTICE. ALL CLAIMS NOT FILED WITHIN THE TIME PERIODS SET FORTH IN FLORIDA STATUTES SECTION 733.702 WILL BE FOREVER BARRED. NOTWITHSTANDING THE TIME PERIODS SET FORTH ABOVE, ANY CLAIM FILED TWO (2) YEARS OR MORE AFTER THE DECEDENT’S DATE OF DEATH IS BARRED. The date of first publication of this notice is November 7, 2024. Stephanie Spindler, Personal Representative 3107 Meadowlark Ave. Fort Collins, CO 80526

T. RYAN WILLIAMS LAW GROUP /s/Ryan Williams Ryan Williams, Esq. Florida Bar No. 87453 90 Fort Wade Road, Suite 100 Ponte Vedra, FL 32081

Primary: service@trw.law Ph: 904-930-4100 Counsel for Personal Representative Nov. 7/14 12 (24-07115D)

SECOND INSERTION

IN THE CIRCUIT COURT OF THE FOURTH JUDICIAL CIRCUIT IN AND FOR DUVAL COUNTY, FLORIDA CIVIL DIVISION CASE NO. 16-2023-CA-008877

DIVISION: FC-D UMB BANK, NATIONAL ASSOCIATION, NOT IN ITS INDIVIDUAL CAPACITY, BUT SOLELY AS LEGAL TITLE TRUSTEE OF PRL TITLE TRUST II, Plaintiff, vs. CURTIS WARE; DOLORES W. BLAKE a/k/a DOLORES BLAKE SMILEY a/k/a DOLORES SMILEY; UNKNOWN SPOUSE OF DOLORES W. BLAKE a/k/a DOLORES BLAKE SMILEY a/k/a DOLORES SMILEY; CHIMNEY LAKES OWNERS ASSOCIATION, INC; UNKNOWN TENANT #1; UNKNOWN TENANT #2; ALL OTHER UNKNOWN PARTIES CLAIMING INTERESTS BY, THROUGH, UNDER, AND AGAINST THE HEREIN NAMED DEFENDANT(S) WHO ARE NOT KNOWN TO BE DEAD OR ALIVE, WHETHER SAME UNKNOWN PARTIES MAY CLAIM AN INTEREST AS SPOUSES, HEIRS, DEVISEES, GRANTEES, OR OTHER CLAIMANTS Defendant(s).

NOTICE OF FORECLOSURE SALE

NOTICE IS HEREBY GIVEN that pursuant to a Final Judgment entered on July 25, 2024 in the Circuit Court of the Fourth Judicial Circuit in and for Duval County, Florida, JODY PHILLIPS, the Clerk of Court, will on NOVEMBER 26, 2024, at 11:00 a.m. EST, offer for sale and sell at public outcry to the highest and

SECOND INSERTION

INVITATION TO BID

The Jaguars Stadium of the Future (SOTF) – Jacksonville, FL. Notice is hereby given that AECOM Hunt Construction/Barton Malow will receive bids for Bid Package IFC #2a. This Package will include the following:

A. Demolition, site preparation, concrete foundations, cast-inplace concrete (up to MC), joint sealants, expansion joints Bid Documents will be published via Building Connected on November 14th, 2024. A Pre-proposal meeting for interested bidders on Wednesday, 11/20 at 4 pm at the West Club, EverBank Stadium. Bids will be received on December 12th, 2024, at 2 PM EST. Request pre-qualification and bidding documents by emailing MJ Fratianni at mj.fratianni@aecom. com Nov. 7/14/21/29, Dec. 5 12 (24-07038D)

SECOND INSERTION IN THE CIRCUIT COURT OF THE FOURTH JUDICIAL CIRCUIT IN AND FOR DUVAL COUNTY, FLORIDA CIVIL DIVISION Case No.: 16-2024-SC-012581

DIVISION: CC-E ADVANCED PLUMBING TECHNOLOGY, LLC, Plaintiff, v. ROBERT KELLER and MARTA KELLER, Defendant.

NOTICE OF ACTION TO: Defendants, ROBERT KELLER and MARTA KELLER YOU ARE HEREBY NOTIFIED that a Complaint to Enforce Construction Lien relating to certain real property located in Duval County, Florida, to-wit: SEE EXHIBIT A ATTACHED HERETO AND MADE A PART HEREOF: EXHIBIT A Legal Description Lot 10, Block 1 of RIBAULT HILLS UNIT NO. 1, according to the Plat thereof as recorded in Plat Book 20, Page(s) 53 and 53A, of the Current Public Records of

Duval County, Florida. has been filed against you and you are required to serve a copy of your written defenses, if any, to Plaintiff’s attorney, STEVEN C. PRATICO, ESQUIRE, of the law firm of JOHNSON POPE BOKOR RUPPEL & BURNS LLP, whose address is 400 North Ashley Drive, Suite 3100, Tampa, Florida 33602, spratico@jpfirm. com, telephone number (813) 225-2500, attorneys for the Plaintiff, ADVANCED PLUMBING TECHNOLOGY, LLC, on or before December 17th, 2024, and file the original with the Clerk of this Court either before service on the Plaintiff’s attorney or immediately thereafter; otherwise a default will be entered against you for the relief demanded in the Complaint to Enforce Construction Lien.

DATED THIS 1st day of November, 2024. JODY PHILLIPS Clerk of the Circuit Court of Duval County By: Ciara Bradshaw As: Deputy Clerk (Court Seal) Nov. 7/14/21/29 12 (24-07068D)

SECOND INSERTION

IN THE CIRCUIT COURT OF THE FOURTH JUDICIAL CIRCUIT, IN AND FOR DUVAL COUNTY, FLORIDA CASE NO.: 16-2024-CA-002521

DIVISION: CV-F

STF CAPITAL GROUP LLC, a Florida limited liability company, Plaintiff, vs. MAHALIA HUIE, if alive, and if dead, the unknown spouses, heirs, devisees, grantees, assignees, lienors, creditors, trustees other persons claiming by, through, under or against them, or any of them and all unknown persons, and BLUE WORLD POOLS, INC., Defendants. NOTICE OF ACTION TO: MAHALIA HUIE, if alive, and if dead, the unknown spouses, heirs, devisees, grantees, assignees, lienors, creditors, trustees other persons claiming by, through, under or against them, or any of them and all unknown persons, or other claimants, or interest in the property herein

best bidder for cash at: www.duval.realforeclose.com the following described property situated in Duval County, Florida: LOT 6, BLOCK 34, LAKE LUCINA, UNIT NO. 11, ACCORDING TO THE PLAT THEREOF AS RECORDED IN PLAT BOOK 28, PAGE 37, OF THE CURRENT PUBLIC RECORDS OF DUVAL COUNTY, FLORIDA. Property Address: 3145 Holly Berry Lane, Jacksonville, FL 32277

Any person claiming an interest in the surplus from the sale, if any, other than the property owner as of the date of the Lis Pendens must file a claim before the clerk reports the surplus as unclaimed. Americans With Disabilities Act (ADA) Notice

In accordance with the Americans with Disabilities Act of 1990 (ADA), If you are a person with a disability who needs any accommodation in order to participate in this proceeding, you are entitled at no cost to you, to the provision of certain assistance. Please contact the ADA Coordinator at crtintrp@coj.net or (904) 2551695 at least 7 days before your scheduled court appearance, or immediately upon receiving this notification if the time before the scheduled appearance is less than 7 days; if you are hearing or voice impaired, call 711.

Dated: November 5, 2024

JODY PHILLIPS Clerk of the Circuit Court

By:

(Court Seal)

McMichael Taylor Gray, LLC 3550 Engineering Drive, Suite 260 Peachtree Corners, GA 30092

Phone: (954) 640-0294

Attorney for Plaintiff Nov. 7/14 12 (24-07119D)

YOU ARE HEREBY NOTIFIED that an action to Quiet Title to real property in the Circuit Court in Jacksonville, Duval County, Florida styled as Case No.: 16-2024-CA-002521, STF CAPITAL GROUP LLC, a Florida limited liability company, v. MAHALIA HUIE, et. al., to the

property described as: LOT 9, BLOCK 28; REPLAT NUMBER 2 OF ROYAL TERRACE, ACCORDING TO PLAT THEREOF AS RECORDED IN PLAT BOOK 7, PAGE(S) 19, OF THE CURRENT PUBLIC RECORDS OF DUVAL COUNTY, FLORIDA A/K/A 1856 WEST 30TH STREET, JACKSONVILLE, FL 32209 RE#:085298-0000 has been filed by STF CAPITAL GROUP LLC, a Florida limited liability company, Plaintiff, and you are required to serve a copy of your written defenses if any, to it on William S. Frazier, 1919-8 Blanding Boulevard, Jacksonville, Florida 32210, 904-384-1441 on or before 30 days from the date of this Notice, and file the original with the Clerk of this Court either before service on said Plaintiff or immediately thereafter; otherwise a default and judgment will be entered against you for the relief demanded in the Petition. WITNESS my hand and the seal of this Court on this 4th day of November, 2024.

JODY PHILLIPS Clerk of the Court By: Pamela R. Harrell Deputy Clerk (Court Seal) Nov. 7/14/21/29 12 (24-07099D)

SECOND INSERTION

IN THE COUNTY COURT OF DUVAL COUNTY, FLORIDA Case No: 16-2024-CC-009349 DIVISION: CC-C Ally Bank Plaintiff, v. Sandra Anne Mearkle and Brett Allen Mearkle Defendant(s). NOTICE OF ACTION

CONSTRUCTIVE SERVICE PERSONAL PROPERTY TO: Brett Allen Mearkle: LAST KNOWN ADDRESS: 385 East Coast Drive, Atlantic Beach, FL 32233 Residence unknown, if living, including any unknown spouse of the said Defendants, if either has remarried and if either or both of said Defendants are dead, their respective unknown heirs, devisees, grantees, assignees, creditors, lienors, and trustees, and all other persons claiming by, through, under or against the named Defendant(s); and the aforementioned named Defendant(s) and such of the aforementioned unknown Defendants and such of the aforementioned unknown Defendants as may be infants, incompetents or otherwise not sui juris. YOU ARE HEREBY NOTIFIED that a complaint for monetary damages and writ of replevin on personal property arising from contract has been commenced to recover possession of the following personal property, last known to be located in Duval County, Florida, more particularly

described as follows: 201 9 Jeep Cherokee (VIN No: 1C4PJMDX8KD379223) This action has been filed against you and you are required to serve a copy of your written defense, if any, upon LOGS LEGAL GROUP LLP, Attorneys for Plaintiff, whose address is 750 Park of Commerce Blvd., Suite 130, Boca Raton, FL 33487, before twenty (28) days after the first publication of this notice and file the original with the clerk of this court either before service on Plaintiff’s attorney or immediately thereafter; otherwise a default will be entered against you for the relief demanded in the Complaint. Americans With Disabilities Act (ADA) Notice In accordance with the Americans with Disabilities Act of 1990 (ADA), If you are a person with a disability who needs any accommodation in order to participate in this proceeding, you are entitled at no cost to you, to the provision of certain assistance. Please contact the ADA Coordinator at crtintrp@coj.net or (904) 255-1695 at least 7 days before your scheduled court appearance, or immediately upon receiving this notification if the time before the scheduled appearance is less than 7 days; if you are hearing or voice impaired, call 711. WITNESS my hand and seal of this Court on the 5th day of November, 2024. JODY PHILLIPS Circuit and County Courts By: Mary Ninos Deputy Clerk (Court Seal) Nov. 7/14/21/29 12 (24-07117D)

DUVAL

COUNTY SUBSEQUENT INSERTIONS

CITY OF JACKSONVILLE Bidding Opportunities

SECOND INSERTION

BID NOTICE

CITY OF JACKSONVILLE INVITATION TO BID BIDS MUST BE RECEIVED BY THE CITY OF JACKSONVILLE PROCUREMENT DIVISION IN 1CLOUD BY NO LATER THAN THE DATE AND TIME BELOW. THURSDAY

AUGUST 29, 2024 @ 10:00 A.M. 1Cloud E-Bidding System ITB-16202-25 DISPOSITION OF VEGETATIVE AND ARBORICULTURAL DEBRIS

MELISSA PIERCE ANALYST 904-255-8835 SCOPE OF WORK: THE CITY OF JACKSONVILLE’S PROCUREMENT DIVISION IS CURRENTLY ACCEPTING BIDS TO OBTAIN A SOURCE OF SUPPLY FOR THE ITEM(S)/SERVICE(S) AS OUTLINED IN THE BID DOCUMENTS PROVIDED. THE PURPOSE OF THIS BID INVITATION IS TO OBTAIN INFORMATION ABOUT YOUR FIRM AND ITS ABILITY TO PROVIDE THESE ITEM(S)/SERVICE(S) AND TO OBTAIN PRICING COMMITMENTS FOR THE DISPOSITION OF VEGETATIVE AND ARBORICULTURAL DEBRIS AS LISTED IN THE BID DOCUMENTS.

DONNA DEGAN, MAYOR CITY OF JACKSONVILLE, FLORIDA DUSTIN FREEMAN, CHIEF PROCUREMENT DIVISION Nov. 7/14/21 5 (24-07124D)

SECOND INSERTION

IN THE CIRCUIT COURT, FOURTH JUDICIAL CIRCUIT IN AND FOR DUVAL COUNTY, FLORIDA

File No.: 16-2024-CP-001678

Division: PR-A IN RE: ESTATE OF KATHERINE ROBERSON, Deceased. NOTICE TO CREDITORS

The administration of the estate of KATHERINE ROBERSON, deceased, whose date of death July 2, 2022, is pending in the Circuit Court of DUVAL County, Florida, Probate Division, the address of which is 501 West Adams Street, Jacksonville, Florida 32202. The name of the estate’s administrator and the name and address of the administrator’s attorney are set forth below. All creditors of the deceased and other persons having claims or demands against the estate of the deceased on whom a copy of this notice is required to be served must file their claims WITHIN THE LATER OF 3 MONTHS AFTER THE TIME OF THE FIRST PUBLICATION OF THIS NOTICE OR 30 DAYS AFTER THE DATE OF SERVICE OF A COPY OF THIS NOTICE ON THEM. All other creditors of the deceased and other persons having claims against the estate of the deceased on whom a copy of this notice is required to be served must file their claims with this court WITHIN 3 MONTHS AFTER THE DATE OF THE FIRST PUBLICATION OF THIS NOTICE. ALL CLAIMS NOT FILED WITHIN THE TIME PERIODS SET FORTH IN SECTION

733.702 OF THE FLORIDA PROBATE CODE WILL BE FOREVER BARRED. NOTWITHSTANDING THE TIME PERIODS SET FORTH ABOVE, ANY CLAIM FILED TWO (2) YEARS OR MORE AFTER THE DECEDENT’S DATE OF DEATH IS BARRED.

A personal representative or curator has no duty to discover whether any property held at the time of the decedent’s death by the decedent or the decedent’s surviving spouse is property to which the Florida Uniform Disposition of Community Property Rights at Death Act as described in sections 732.216-732.228, applies, or may apply, unless a written demand is made by a creditor as specified under section 732.2211. The date of first publication of this notice is November 7, 2024.

Estate Administrator: Latoya Roberson 2400 Royalty Court Jacksonville, FL 32254

Attorney for Estate Administrator: J. Mechelle Herrington Florida Bar No.: 35919 jmherringtonlaw@gmail.com Law Office of J. Mechelle Herrington, P.A. 3450 Dunn Ave Suite 105 Jacksonville, FL 32218 (904) 748-9497 phone Attorney for Petitioner Nov. 7/14 5 (24-07113D)

CLAY COUNTY LEGAL NOTICES

IN THE CIRCUIT COURT FOR CLAY COUNTY, FLORIDA PROBATE DIVISION File No. 2024-CP-000544

Division Probate IN RE: ESTATE OF HARRY MILTON BAILEY Deceased.

NOTICE TO CREDITORS

The administration of the estate of Harry Milton Bailey, deceased. File No. 2024-CP-000544, whose date of death was July 6, 2024, is pending in the Circuit Court for Clay County, Florida, Probate Division, the address of which is 825 N Orange Ave, Green Cove Springs, FL 32043. The names and addresses of the personal representative and the personal representative’s attorney are set forth below.

All creditors of the decedent and other persons having claims or demands against decedent’s estate on whom a copy of this notice is required to be served must file their claims with this court ON OR BEFORE THE LATER OF 3 MONTHS AFTER THE TIME

IN THE CIRCUIT COURT, FOURTH JUDICIAL CIRCUIT IN AND FOR CLAY COUNTY, FLORIDA PROBATE DIVISION File No. 2024CP00577 Division B IN RE: ESTATE OF HELEN MAXINE AVINGER Deceased.

NOTICE TO CREDITORS

The administration of the estate of HELEN MAXINE AVINGER, deceased, whose date of death was July 16, 2024, is pending in the Circuit Court for CLAY County, Florida, Probate Division, the address of which is 825 North Orange Avenue, Green Cove Springs, FL 32043. The names and addresses of the personal representative and the personal representative’s attorney are set forth below.

All creditors of the decedent and other persons having claims or demands against decedent’s estate on whom a copy of this notice is required to be served must file their claims with this court ON OR BEFORE THE LATER OF

IN THE CIRCUIT COURT OF THE FOURTH JUDICIAL CIRCUIT IN AND FOR CLAY COUNTY, FLORIDA Case No.: CA: 2024CA000972

JOHNNIE PURCELL HALL

Plaintiff, vs. TONI LAWSON, if alive, and if deceased, her known and unknown spouses, heirs, devisees, grantees, assignees, lienors, creditors, trustees or other persons claiming by, through, under or against her; ALVINEESE LAWSON, if alive, and if deceased, her known and unknown spouses, heirs, devisees, grantees, assignees, lienors, creditors, trustees or other persons claiming by, through, under or against her; WILBER B. LAWSON, JR. if alive, and if deceased, his known and unknown spouses, heirs, devisees, grantees, assignees, lienors, creditors, trustees or other persons claiming by, through, under or against him; MICHAEL LAWSON, if alive, and if deceased, his known and unknown spouses, heirs, devisees, grantees, assignees, lienors, creditors, trustees or other persons claiming by, through, under or against him

FIRST INSERTION

OF THE FIRST PUBLICATION OF THIS NOTICE OR 30 DAYS AFTER THE DATE OF SERVICE OF A COPY OF THIS NOTICE ON THEM.

The personal representative has no duty to discover whether any property held at the time of the decedent’s death by the decedent or the decedent’s surviving spouse is property to which the Florida Uniform Disposition of Community Property Rights at Death Act as described in ss. 732.216732.228, Florida Statutes, applies, or may apply, unless a written demand is made by a creditor as specified under s. 732.2211, Florida Statutes.

All other creditors of the decedent and other persons having claims or demands against decedent’s estate must file their claims with this court WITHIN 3 MONTHS AFTER THE DATE OF THE FIRST PUBLICATION OF THIS NOTICE.

ALL CLAIMS NOT FILED WITHIN THE TIME PERIODS SET FORTH IN FLORIDA STAT-

3 MONTHS AFTER THE TIME OF THE FIRST PUBLICATION OF THIS NOTICE OR 30 DAYS AFTER THE DATE OF SERVICE OF A COPY OF THIS NOTICE ON THEM.

The personal representative has no duty to discover whether any property held at the time of the decedent’s death by the decedent or the decedent’s surviving spouse is property to which the Florida Uniform Disposition of Community Property Rights at Death Act as described in ss. 732.216732.228, Florida Statutes, applies, or may apply, unless a written demand is made by a creditor as specified under s. 732.2211, Florida Statutes.

All other creditors of the decedent and other persons having claims or demands against decedent’s estate must file their claims with this court WITHIN

3 MONTHS AFTER THE DATE OF THE FIRST PUBLICATION OF THIS NOTICE.

ALL CLAIMS NOT FILED WITHIN THE TIME PERIODS

FIRST INSERTION

Defendant. Defendants

NOTICE OF ACTION

To: TONI LAWSON, if alive, and if deceased, her known and unknown spouses, heirs, devisees, grantees, assignees, lienors, creditors, trustees or other persons claiming by, through, under or against her; ALVINEESE LAWSON, if alive, and if deceased, her known and unknown spouses, heirs, devisees, grantees, assignees, lienors, creditors, trustees or other persons claiming by, through, under or against her; WILBER B. LAWSON, JR. if alive, and if deceased, his known and unknown spouses, heirs, devisees, grantees, assignees, lienors, creditors, trustees or other persons claiming by, through, under or against him; MICHAEL LAWSON, if alive, and if deceased, his known and unknown spouses, heirs, devisees, grantees, assignees, lienors, creditors, trustees or other persons claiming by, through, under or against

UTES SECTION 733.702 WILL BE FOREVER BARRED. NOTWITHSTANDING THE TIME PERIODS SET FORTH ABOVE, ANY CLAIM FILED TWO (2) YEARS OR MORE AFTER THE DECEDENT’S DATE OF DEATH IS BARRED.

The date of first publication of this notice is November 14, 2024. Personal Representative: Anita Arlene Wynn 693 Arthur More Dr. Green Cove Springs, Florida 32043

Attorney for Personal Representative: Scott M. Patrou, Esq.

Attorney Florida Bar Number: 106138 Ginn & Patrou, PLLC 460 A1A Beach Blvd. St. Augustine, FL 32080

Telephone: (904) 461-3000

Fax: (844) 730-9828

E-Mail: service@ginnpatrou.com

Secondary E-Mail: spatrou@ginnpatrou.com Nov. 14/21 00 (24-00392C)

SET FORTH IN FLORIDA STATUTES SECTION 733.702 WILL BE FOREVER BARRED.

NOTWITHSTANDING THE TIME PERIODS SET FORTH ABOVE, ANY CLAIM FILED TWO (2) YEARS OR MORE AFTER THE DECEDENT’S DATE OF DEATH IS BARRED.

The date of first publication of this notice is November 14, 2024.

Personal Representative:

HELEN KIMBERLY AVINGER 532 Bar Drive Kissimmee, Florida 34759

Attorney for Personal Representative: DOUGLAS A. OBERDORFER, Esquire

Attorney Florida Bar Number: 0139092 432 East Monroe Street Jacksonville, Florida 32202 Telephone: (904) 354-5454

Fax: (904) 350-9803

E-Mail:

doug@oberdorferlaw.com

Secondary E-Mail: service@oberdorferlaw.com Nov. 14/21 00 (24-00393C)

YOU ARE NOTIFIED that an action for QUIET TITLE the following property in CLAY County, Florida:

Lot 12, Block W, according to Shands’ Plat of Green Cove Springs as recorded in Plat Book 2, page 1 of the public records of Clay County, Florida. has been filed against you and you are required to serve a copy of your written defenses, if any, to it on John Galletta, Jr., the plaintiff’s attorney, whose address is 1095 Anastasia Boulevard, St. Augustine, FL 32080, on or before 30 days from first day of publication and file the original with the clerk of this court either before service on the plaintiff’s attorney or immediately thereafter; otherwise a default will be entered against you for the relief demanded in the complaint or petition.

DATED on November 12, 2024 TARA S. GREEN Clerk for Fourth Judicial Circuit Court of CLAY County, Florida By: Rebecca Crews Deputy Clerk (Court Seal) Nov. 14/21/29, (24-00395C)

FIRST INSERTION

IN THE CIRCUIT COURT OF THE FOURTH JUDICIAL CIRCUIT IN AND FOR CLAY COUNTY, FLORIDA CIVIL DIVISION Case #: 2017-CA-001141

DIVISION: A

U.S. Bank National Association, as Trustee for Harborview Mortgage Loan Trust 2005-3, Mortgage Loan Pass-Through Certificates, Series 2005-3 Plaintiff, -vs.Stephen D. Nye a/k/a Stephen Nye; Deja Dianna Nye a/k/a Deja D. Nye a/k/a Deja Nye; MSNI Fund VI, LLC; American Express Bank, FSB; American Express Centurion Bank; River Hills Reserve Owners Sub-Association, Inc.; Financial Portfolios II, Inc., as successor in interest to Wells Fargo Bank, N.A., f/k/a Wachovia.; Unknown Parties in Possession #1, if living, and all Unknown Parties claiming by, through, under and against the above named Defendant(s) who are not known to be dead or alive, whether said Unknown Parties may claim an interest as Spouse, Heirs, Devisees, Grantees, or Other Claimants; Unknown Parties in Possession #2, if living, and all Unknown Parties claiming by, through, under and against the above named Defendant(s) who are not known to be dead or alive, whether said Unknown Parties may claim an interest as Spouse, Heirs, Devisees, Grantees, or Other Claimants Defendant(s).

NOTICE OF SALE NOTICE IS HEREBY GIVEN pursuant to order rescheduling foreclosure sale or Final Judgment, entered in Civil Case No. 2017CA-001141 of the Circuit Court of the 4th Judicial Circuit in and for Clay County, Florida, wherein U.S. Bank National Association, as Trustee for Harborview Mortgage Loan Trust 2005-3, Mortgage Loan Pass-Through Certificates, Series 2005-3, Plaintiff and Stephen D. Nye a/k/a Stephen Nye are defendant(s), I, Clerk of Court,

IN THE CIRCUIT COURT, FOURTH JUDICIAL CIRCUIT, IN AND FOR CLAY COUNTY, FLORIDA PROBATE DIVISION File No. 2024CP00577 Division B IN RE: ESTATE OF HELEN MAXINE AVINGER Deceased. NOTICE OF ADMINISTRATION (testate)

The administration of the estate of HELEN MAXINE AVINGER, deceased, is pending in the Circuit Court for CLAY County, Florida, Probate Division, the address of which is 825 North Orange Avenue, Green Cove Springs, FL 32043. The file number for the estate is 2024CP00577. The estate is testate and the dates of the decedent’s will and any codicils are August 18, 2017.

The names and addresses of the personal representative and the personal representative’s attorney are set forth below. The fiduciary lawyer-client privilege in Section 90.5021, Florida Statutes, applies with respect to the personal representative and any attorney employed by the personal representative.

Any interested person on whom a copy of the notice of administration is served must file with the court, on or before the date that is 3 months after the date of service of a copy of the Notice of Administration on that person, any objection that challenges the validity of the will or any codicils, venue, or jurisdiction of the court. The 3 month time period may only be extended for estoppel based upon a misstatement by the personal representative regarding the time period within which an objection must be filed. The time period may not be extended for any other reason, including affirmative representation, failure to disclose information, or misconduct by the personal representative or any other person. Unless sooner barred by section 733.212(3), Florida Statutes, all objections to the validity of a will or any codicils, venue or the jurisdiction of the court must be filed no later than the earlier of the entry of an order of final discharge of the personal representative or 1 year after service of the notice of administration.

Persons who may be entitled to exempt property under section

Tara S. Green, will sell to the highest and best bidder for cash using the following method: www.clay.realforeclose.com beginning AT 10:00 A.M. on December 11, 2024, the following described property as set forth in said Final Judgment, to-wit: LOT 55, RIVER HILLS RESERVE UNIT TWO, ACCORDING TO THE PLAT THEREOF AS RECORDED IN PLAT BOOK 38, PAGE 77 THROUGH 81, INCLUSIVE, OF THE PUBLIC RECORDS OF CLAY COUNTY, FLORIDA. ANY PERSON CLAIMING AN INTEREST IN THE SURPLUS FROM THE SALE, IF ANY, OTHER THAN THE PROPERTY OWNER AS OF THE DATE OF THE LIS PENDENS MUST FILE A CLAIM NO LATER THAN THE DATE THAT THE CLERK REPORTS THE FUNDS AS UNCLAIMED.

If you are a person with a disability who needs any accommodation in order to participate in this proceeding, you are entitled, at no cost to you, to the provision of certain assistance. Please contact the ADA Coordinator; 330 East Bay Street, Suite 507-C, Jacksonville, Florida 32202; (904) 630-1897 at least 7 days before your scheduled court appearance, or immediately upon receiving this notification of the time before the scheduled appearance is less than 7 days. If you are hearing or voice impaired, call 711. Date November 5, 2024. TARA S. GREEN CLERK OF THE CIRCUIT COURT Clay County, Florida By: Jennifer Brosky DEPUTY

732.402, Florida Statutes, will be deemed to have waived their rights to claim that property as exempt property unless a petition for determination of exempt property is filed by such persons or on their behalf on or before the later of the date that is 4 months after the date of service of a copy of the notice of administration on such persons or the date that is 40 days after the date of termination of any proceedings involving the construction, admission to probate, or validity of the will or involving any other matter affecting any part of the exempt property. The personal representative has no duty to discover whether any property held at the time of the decedent’s death by the decedent or the decedent’s surviving spouse is property to which the Florida Uniform Disposition of Community Property Rights at Death Act as described in ss. 732.216-732.228, Florida Statutes, applies, or may apply, unless a written demand is made by the surviving spouse or a beneficiary as specified under s. 732.2211, Florida Statutes. Unless an extension is granted pursuant to section 732.2135(2), Florida Statutes, an election to take an elective share must be filed on or before the earlier of the date that is 6 months after the date of service of a copy of the notice of administration on the surviving spouse, an agent under chapter 709, Florida Statutes, or a guardian of the property of the surviving spouse; or the date that is 2 years after the date of the decedent’s death. Under certain circumstances and by failing to contest the will, the recipient of the notice of administration may be waiving his or her right to contest the validity of a trust or other writing incorporated by reference into a will.

Personal Representative: HELEN KIMBERLY AVINGER 532 Bar Drive Kissimmee, Florida 34759

Attorney for Personal Representative:

PUBLIC NOTICES

CLAY COUNTY SUBSEQUENT INSERTIONS

SECOND INSERTION

IN THE CIRCUIT COURT, FOURTH JUDICIAL CIRCUIT, IN AND FOR CLAY COUNTY, FLORIDA CASE NO.: 10-2023-DR-1762-A Crystal Walls, Petitioner, and William Naismith, Respondent, NOTICE OF ACTION FOR DISSOLUTION OF MARRIAGE (NO CHILD OR FINANCIAL SUPPORT)

To: William Naismith 701 S. 6th Street Fernandina, FL 32034

YOU ARE NOTIFIED that an action for dissolution of marriage has been filed against you and that you are required to serve a copy of your written defenses, if any, to it on Crystal Walls, whose address is 399 Cleveland Ave, Orange Park, FL 32065 on or before December 20, 2024, and file the original with the clerk of this court at: 825 N Orange Avenue, P.O. Box 698, Green Cove Springs, Florida 32043 before service on Petitioner or immediately thereafter. If you fail to do so, a default may be entered against you for the relief demanded in the petition.

Copies of all court documents in this case, including orders, are available at the Clerk of the Circuit Court’s office. You may review these documents upon request. You must keep the Clerk of the Circuit Court’s office notified of your current address. (You may file Designation of Current Mailing and E-Mail Address, Florida Supreme Court Approved Family Law Form 12.915.) Future papers in this lawsuit will be mailed or e-mailed to the address(es) on record at the clerk’s office.

WARNING: Rule 12.285, Florida Family Law Rules of Procedure, requires certain automatic disclosure of documents and information. Failure to comply can result in sanctions, including dismissal or striking of pleadings.

Dated: November 5, 2024 TARA S. GREEN CLERK OF THE CIRCUIT COURT By: Jennifer Brosky Deputy Clerk (Court

SECOND INSERTION

IN THE CIRCUIT COURT FOR CLAY COUNTY, FLORIDA PROBATE DIVISION File No. 24-CP-0553

Division Probate IN RE: ESTATE OF CHRISTINE LOUISE CLAY, Deceased.

NOTICE TO CREDITORS

The administration of the estate of CHRISTINE LOUISE CLAY, deceased, whose date of death was April 3, 2024, is pending in the Circuit Court for Clay County, Florida, Probate Division, the address of which is 825 N. Orange Ave., Green Cove Springs, FL 32043. The names and addresses of the personal representative and the personal representative’s attorney are set forth below. All creditors of the decedent and other persons having claims or demands against decedent’s estate, on whom a copy of this notice is required to be served, must file their claims with this court ON OR BEFORE THE LATER OF 3 MONTHS AFTER THE TIME OF THE FIRST PUBLICATION OF THIS NOTICE OR 30 DAYS AFTER THE DATE OF SERVICE OF A COPY OF THIS NOTICE ON THEM.

All other creditors of the decedent and other persons having claims or demands against decedent’s estate must file their claims with this court WITHIN 3 MONTHS AFTER THE DATE OF THE FIRST PUBLICATION OF THIS NOTICE.

SECOND INSERTION IN THE CIRCUIT COURT FOR CLAY COUNTY, FLORIDA PROBATE DIVISION File No. 2024CP000584 IN RE: ESTATE OF JOHN KENNETH MACKIE Deceased.

NOTICE TO CREDITORS

The administration of the estate of John Kenneth Mackie, deceased, whose date of death was September 6, 2024, is pending in the Circuit Court for Clay County, Florida, Probate Division, the address of which is 825 North Orange Avenue, Green Cove Springs, Florida 32043. The names and addresses of the personal representative and the personal representative’s attorney are set forth below.

All creditors of the decedent and other persons having claims or demands against decedent’s estate on whom a copy of this notice is required to be served must file their claims with this court ON OR BEFORE THE LATER OF 3 MONTHS AFTER THE TIME OF THE FIRST PUBLICATION OF THIS NOTICE OR 30 DAYS AFTER THE DATE OF SERVICE OF A COPY OF THIS NOTICE ON THEM.

The personal representative has no duty to discover whether any property held at the time of the decedent’s death by the decedent or the decedent’s surviving spouse is property to which the Florida Uniform Disposition of Community Property Rights at Death Act as described in ss. 732.216732.228, Florida Statutes, applies, or may apply, unless a written demand is made by a creditor as specified under s. 732.2211, Florida Statutes.

All other creditors of the decedent and other persons having claims or demands against decedent’s estate must file their claims with this court WITHIN 3 MONTHS AFTER THE DATE OF THE FIRST PUBLICATION OF THIS NOTICE. ALL CLAIMS NOT FILED WITHIN THE TIME PERIODS SET FORTH IN FLORIDA STATUTES SECTION 733.702 WILL BE FOREVER BARRED. NOTWITHSTANDING THE TIME PERIODS SET FORTH ABOVE, ANY CLAIM FILED TWO (2) YEARS OR MORE AFTER THE DECEDENT’S DATE OF DEATH IS BARRED. The date of first publication of this notice is November 7, 2024.

Personal Representative: Karen M. Barletta 2835 Harvest Moon Dr Orange Park, Florida 32073

Attorney for Personal Representative: Eliot J. Safer, Esq.

Attorney Florida Bar Number: 0194511

DUSS KENNEY SAFER

HAMPTON & JOOS PA 4348 Southpoint Boulevard, Suite 101 Jacksonville, FL 32216

Telephone: (904) 543-4300

Fax: (904) 543-4301

E-Mail: esafer@jaxfirm.com

Secondary E-Mail: pleadings@ jaxfirm.com Nov. 7/14 24 (24-00384C)

The personal representative has no duty to discover whether any property held at the time of the decedent’s death by the decedent or the decedent’s surviving spouse is property to which the Florida Uniform Disposition of Community Property Rights at Death Act as described in ss. 732.216732.228, applies, or may apply, unless a written demand is made by a creditor as specified under s. 732.2211, Florida Statutes.

ALL CLAIMS NOT FILED WITHIN THE TIME PERIODS SET FORTH IN FLORIDA STATUTES SECTION 733.702 WILL BE FOREVER BARRED. NOTWITHSTANDING THE TIME PERIOD SET FORTH ABOVE, ANY CLAIM FILED TWO (2) YEARS OR MORE AFTER THE DECEDENT’S DATE OF DEATH IS BARRED.

The date of first publication of this notice is: November 7, 2024. JUSTIN CLAY

Personal Representative

12442 Running River Road South Jacksonville, Fl. 32225

Matthew T. Harrod, Esq.

Attorney for Personal Representative Florida Bar No. 41134

Harrod Law, PLLC 145 Hilden Rd., Suite 105 Ponte Vedra, FL 32081

Telephone: (904) 373-6665

Email: mharrod@mattharrod.com

Nov. 7/14 24 (24-00389C)

SECOND INSERTION

IN THE CIRCUIT COURT FOR CLAY COUNTY, FLORIDA PROBATE DIVISION File No. 2024-CP-592 IN RE: ESTATE OF ADAM BLAKLEY REVELS

Deceased.

NOTICE TO CREDITORS

The administration of the estate of Adam Blakley Revels, deceased, whose date of death was August 25, 2024, is pending in the Circuit Court for Clay County, Florida, Probate Division, the address of which is 825 North Orange Avenue, P.O. Box 698, Green Cove Springs, FL 32043. The names and addresses of the personal representative and the personal representative’s attorney are set forth below.

All creditors of the decedent and other persons having claims or demands against decedent’s estate on whom a copy of this notice is required to be served must file their claims with this court ON OR BEFORE THE LATER OF 3 MONTHS AFTER THE TIME OF THE FIRST PUBLICATION OF THIS NOTICE OR 30 DAYS AFTER THE DATE OF SERVICE OF A COPY OF THIS NOTICE ON THEM.

The personal representative has no duty to discover whether any property held at the time of the decedent’s death by the decedent or the decedent’s surviving spouse is property to which the Florida Uniform Disposition of Community Property Rights at Death Act as described in ss. 732.216732.228, Florida Statutes, applies, or may apply, unless a written demand is made by a creditor as specified under s. 732.2211, Florida Statutes.

All other creditors of the decedent and other persons having claims or demands against decedent’s estate must file their claims with this court WITHIN 3 MONTHS AFTER THE DATE OF THE FIRST PUBLICATION OF THIS NOTICE.

ALL CLAIMS NOT FILED WITHIN THE TIME PERIODS SET FORTH IN FLORIDA STATUTES SECTION 733.702 WILL BE FOREVER BARRED. NOTWITHSTANDING THE TIME PERIODS SET FORTH ABOVE, ANY CLAIM FILED TWO (2) YEARS OR MORE AFTER THE DECEDENT’S DATE OF DEATH IS BARRED.

The date of first publication of this notice is November 7, 2024.

Personal Representative: Ashley Roberts 1476 Russel Road Green Cove Springs, Florida 32043

Attorney for Personal Representative: Sarah A. Mannion

Attorney Florida Bar Number: 103087

King & Mannion, P.A. 2219 Park Street Jacksonville, FL 32204

Telephone: (904) 387-9886

Fax: (904) 387-9862

E-Mail: mannion.sarah@gmail.com

Secondary E-Mail: kingcandyce@bellsouth.net Nov. 7/14 24 (24-00385C)

SECOND INSERTION

NOTICE OF PUBLIC SALE

To satisfy the owner’s storage lien, PS Retail Sales, LLC will sell at public lien sale on November 22, 2024, the personal property in the below-listed units, which may include but are not limited to: household and personal items, office and other equipment. The public sale of these items will begin at 11:00 AM and continue until all units are sold. The lien sale is to be held at the online auction website, www.storagetreasures.com, where indicated. For online lien sales, bids will be accepted until 2 hours after the time of the sale specified.

PUBLIC STORAGE # 28070, 210 Park Ave, Orange Park, FL 32073, (904) 429-4425

Time: 11:00 AM

Sale to be held at www.storagetreasures.com.

130 - jeffries, Pam; 144 - Taylor, Antiqua; 239 - McDonald, Rimicia; 283 - Jones, Jaishawna; 301 - Hanzy, Diamond; 371 - King, Curlena; 373 - Sampson, Aretha; 393 - Rice, Blake; 400 - Adams, Kyeria

PUBLIC STORAGE # 20713, 271 Blanding Blvd, Orange Park, FL 32073, (904) 429-4119 Time: 11:00 AM

Sale to be held at www.storagetreasures.com. A028 - Devilbiss, Amber; A034 - brown, Shellome; A076 - Tai, Sterling J; C043 - Searcy, Darnicia; D030 - Dahl, Natasha; D068 - Shead, Azeem; E006 - Campbell, Tykera; E026 - Robinson, Antonio; E037 - Jefferson, Crystal; E044 - forehand, Faith; F067 - Rosario, Isabelle

Public sale terms, rules, and regulations will be made available prior to the sale. All sales are subject to cancellation. We reserve the right to refuse any bid. Payment must be in cash or credit cardno checks. Buyers must secure the units with their own personal locks. To claim tax-exempt status, original RESALE certificates for each space purchased is required. By PS Retail Sales, LLC, 701 Western Avenue, Glendale, CA 91201. (818) 244-8080. Nov. 7/14 24 (24-00386C)

SECOND INSERTION

IN THE CIRCUIT COURT OF THE FOURTH JUDICIAL CIRCUIT, IN AND FOR CLAY COUNTY, FLORIDA CASE NO.: 2019-CA-000650 THE BANK OF NEW YORK MELLON FKA THE BANK OF NEW YORK, AS TRUSTEE FOR THE CERTIFICATEHOLDERS CWALT, INC., ALTERNATIVE LOAN TRUST 2006-25CB, MORTGAGE PASS-THROUGH CERTIFICATES, SERIES 200625CB, Plaintiff, v. SHORELINE HOAS, LLC, SUCCESSOR TRUSTEE OF THE CLAY COUNTY LAND TRUST, #05-04-25-007868-010-52, DATED DECEMBER 26, 2012; et al., Defendants. CLERK’S NOTICE OF SALE NOTICE IS GIVEN that, in accordance with the Final Judgment of Foreclosure entered on October 24, 2024 in the abovestyled cause, I will sell to the highest and best bidder for cash on December 4, 2024 at 10:00 A.M. at: www.clay.realforeclose.com the following described property: LOT 219, PEBBLE CREEK AT OAKLEAF PLANTATION, PHASE 1, ACCORDING TO THE PLAT THEREOF AS RECORDED IN PLAT BOOK 43, PAGES 4 THROUGH 10, OF THE PUBLIC RECORDS OF CLAY COUNTY, FLORIDA. Property Address: 3886 Pebble Brooke Circle, Orange

Park, FL 32065 ANY PERSON CLAIMING AN INTEREST IN THE SURPLUS FROM THE SALE, IF ANY, OTHER THAN THE PROPERTY OWNER AS OF THE DATE OF THE LIS PENDENS MUST FILE A CLAIM BEFORE THE CLERK REPORTS THE SURPLUS AS UNCLAIMED AMERICANS WITH DISABILITIES ACT If you are a person with a disability who needs an accommodation in order to access court facilities or participate in a court proceeding, you are entitled, at no cost to you, to the provision of certain assistance. To request such an accommodation, please contact Court Administration at least three business days prior to the required service by using one of the following methods: Phone(904) 630-2564; Fax - (904) 6301146; TTD/TTY - (800) 955-8770 (Florida Relay Service). E-Mail –crtintrp@coj.net.

Dated: October 31, 2024. TARA S. GREEN, CLERK CLAY COUNTY CIRCUIT COURT By: Gracie Moore Deputy Clerk (Court Seal)

KELLEY L. CHURCH, ESQ. QUINTAIROS, PRIETO, WOOD & BOYER, P.A. 255 SOUTH ORANGE AVENUE, SUITE 900 ORLANDO, FL 32801

EMAIL: SERVICECOPIES@ QPWBLAW.COM ATTORNEY FOR PLAINTIFF Nov. 7/14 24 (24-00387C)

SECOND INSERTION

IN THE CIRCUIT COURT FOR CLAY COUNTY, FLORIDA PROBATE DIVISION File No. 2024-CP-0407 Division B IN RE: ESTATE OF MARY DIANE CROWE Deceased. NOTICE TO CREDITORS (summary administration) TO ALL PERSONS HAVING CLAIMS OR DEMANDS AGAINST THE ABOVE ESTATE: You are hereby notified that an Order of Summary Administration has been entered in the estate of Mary Diane Crowe, deceased, File Number 2024-CP-0407, by the Circuit Court for Clay County, Florida, Probate Division, the address of which is 825 North Orange Avenue, Green Cove Springs, Florida 32043; that the decedent’s date of death was June 18, 2024; that the total value of the estate is $30,184.60 and that the names and addresses of those to whom it has been assigned by such order are:

James Robert Crowe, Jr., 2325 Post St., Jacksonville, FL 32204

Stephanie Lynn Prentice, 485 Oldfield Drive, Orange Park, FL 32003

ALL INTERESTED PERSONS ARE NOTIFIED THAT: All creditors of the estate of the decedent and persons having claims or demands against the estate of the decedent other than those for whom provision for full payment was made in the Order of Summary Administration must file their claims with this court WITHIN THE TIME PERIODS SET FORTH IN FLORIDA STAT-

NASSAU COUNTY LEGAL NOTICES

FIRST INSERTION IN THE CIRCUIT COURT FOR NASSAU COUNTY, FLORIDA PROBATE DIVISION File No. 2024-CP-000510

Division A IN RE: ESTATE OF WAYNE RICHARD WILLIAMS, A/K/A WAYNE R. WILLIAMS Deceased.

NOTICE TO CREDITORS

UTES SECTION 733.702. ALL CLAIMS AND DEMANDS NOT SO FILED WILL BE FOREVER BARRED. NOTWITHSTANDING ANY OTHER APPLICABLE TIME PERIOD, ANY CLAIM FILED TWO (2) YEARS OR MORE AFTER THE DECEDENT’S DATE OF DEATH IS BARRED.

A personal representative or curator has no duty to discover whether any property held at the time of the decedent’s death by the decedent or the decedent’s surviving spouse is property to which the Florida Uniform Disposition of Community Property Rights at Death Act as described in sections 732.216-732.228, applies, or may apply, unless a written demand is made by a creditor as specified under section 732.2211.

The date of first publication of this Notice is November 7, 2024.

Person Giving Notice: James Robert Crowe, Jr. 2325 Post St. Jacksonville, Florida 32204

Attorney for Person Giving Notice: /s/Janice B. Richardson

John R. Crawford

Florida Bar No. 210358

Janice B. Richardson Florida Bar No. 036403

Attorneys for Petitioner Marks Gray, P.A. 1200 Riverplace Blvd., Suite 800 Jacksonville, Florida 32207

Telephone: (904) 398-0900

E-mail Addresses: jcrawford@marksgray.com, jrichardson@marksgray.com, probate@marksgray.com Nov. 7/14 24 (24-00388C)

The administration of the estate of WAYNE RICHARD WILLIAMS A/K/A WAYNE R. WILLIAMS, deceased, whose date of death was September 23, 2024, is pending in the Circuit Court for Nassau County, Florida, Probate Division, the address of which is 76347 Veterans Way, Yulee, FL 32097. The names and addresses of the personal representative and the personal representative’s attorney are set forth below. All creditors of the decedent and other persons having claims or demands against decedent’s estate on whom a copy of this notice is required to be served must file their claims with this court ON OR BEFORE THE LATER OF 3 MONTHS AFTER THE TIME OF THE FIRST PUBLICATION OF THIS NOTICE OR 30 DAYS AFTER THE DATE OF SERVICE OF A COPY OF THIS NOTICE ON THEM. All other creditors of the decedent and other persons having claims or demands against decedent’s estate must file their claims with this court WITHIN 3 MONTHS AFTER THE DATE OF THE FIRST PUBLICATION OF THIS NOTICE. The personal representative has no duty to discover whether any property held at the time of the decedent’s death by the decedent or the decedent’s surviving spouse is property to which the Florida Uniform Disposition of Community Property Rights at Death Act as described in ss. 732.216732.228, applies, or may apply, unless a written demand is made by a creditor as specified under s. 732.2211, Florida Statutes. ALL CLAIMS NOT FILED WITHIN THE TIME PERIODS SET FORTH IN FLORIDA STATUTES SECTION 733.702 WILL BE FOREVER BARRED. NOTWITHSTANDING THE TIME PERIOD SET FORTH ABOVE, ANY CLAIM FILED TWO (2) YEARS OR MORE AFTER THE DECEDENT’S DATE OF DEATH IS BARRED. The date of first publication of this notice is November 14, 2024. Personal Representative: LILLY THOMLEY 616 Elizabeth Road Fernandina Beach, FL 32034 Attorney for Personal Representative: STEPHEN P. HOLMGREN Florida Bar No. 117761 Purcell, Flanagan, Hay, & Greene, P.A. 1548 Lancaster Terrace Jacksonville, FL 32204 Telephone: (904) 355-0355

PUBLIC NOTICES

IN THE CIRCUIT COURT OF THE FOURTH JUDICIAL CIRCUIT, IN AND FOR NASSAU COUNTY, FLORIDA CASE: 45-2024-CP-517

DIVISION: A

IN RE: THE ESTATE OF ROBERT EARL FISHER, JR., Deceased.

NOTICE TO CREDITORS

The administration of the estate of ROBERT EARL FISHER, JR., whose date of death was September 24, 2024, SSN XXX-XX-7410, Case No. 45-2024-CP-517, is pending in the Circuit Court for Nassau County, Florida, Probate Division A, the address of which is 76347 Veterans Way, Yulee, Florida 32097. The names and addresses of the personal representative and the personal representative’s attorney are set forth below. All creditors of the decedent and other persons having claims or demands against decedent’s estate,

IN THE CIRCUIT COURT FOR NASSAU COUNTY, FLORIDA PROBATE DIVISION

FILE NO. 45-2024-CP-524 IN RE THE ESTATE OF SALLY BATTEN, Deceased.

NOTICE TO CREDITORS (Formal Administration) TO ALL PERSONS HAVING CLAIMS OR DEMANDS AGAINST THE ABOVE ESTATE:

You are hereby notified that a Petition for Formal Administration has been filed in the estate of SALLY BATTEN, deceased, file # 45-2024-CP-524 by the Circuit Court for Nassau County, Florida, Probate Division, 76347 Veterans Way Yulee, Florida 32097; that the decedent’s date of death was August 14, 2024. The names and addresses of the proposed personal representative and proposed personal representative’s attorney are listed below. ALL INTERESTED PERSONS ARE NOTIFIED THAT: All creditors

IN THE CIRCUIT COURT OF THE FOURTH JUDICIAL CIRCUIT IN AND FOR NASSAU COUNTY, FLORIDA GENERAL JURISDICTION DIVISION CASE NO. 24CA000051AXYX SPECIALIZED LOAN SERVICING LLC, Plaintiff, vs. CHARLOTTE E. BEASLEY, et al. Defendant(s). NOTICE OF FORECLOSURE SALE NOTICE IS HEREBY GIVEN pursuant to a Final Judgment of Foreclosure dated September 24, 2024, and entered in 24CA000051AXYX of the Circuit Court of the FOURTH Judicial Circuit in and for Nassau County, Florida, wherein U.S. BANK TRUST NATIONAL ASSOCIATION, NOT IN ITS INDIVIDUAL CAPACITY BUT SOLELY AS OWNER TRUSTEE FOR RCAF ACQUISITION TRUST is the Plaintiff and CHARLOTTE E. BEASLEY are the Defendant(s). John Crawford as the Clerk of the Circuit Court will sell to the highest and best bidder for cash at: www.nassauclerk.realforeclose.com at 11:30 AM, on December 05, 2024, the following described property as set forth in said Final Judgment, to wit: BEING A PORTION OF SECTION 46, TOWNSHIP 2 NORTH, RANGE 25 EAST, LOT 4, NASSAU COUNTY, FLORIDA, SAID PORTION BEING MORE PARTICULARLY DESCRIBED AS

FIRST INSERTION

on whom a copy of this notice is served, must file their claims with this court WITHIN THE LATER OF 3 MONTHS AFTER THE DATE OF THE FIRST PUBLICATION OF THIS NOTICE OR 30 DAYS AFTER THE DATE OF SERVICE OF A COPY OF THIS NOTICE ON THEM. All creditors of the decedent and persons having claims or demands against the decedent’s estate must file their claims with this court WITHIN 3 MONTHS AFTER THE DATE OF THE FIRST PUBLICATION OF THIS NOTICE. ALL CLAIMS NOT FILED WITHIN THE TIME PERIODS SET FORTH IN SECTION 733.702 OF THE FLORIDA PROBATE CODE WILL BE FOREVER BARRED. NOTWITHSTANDING THE TIME PERIOD SET FORTH ABOVE, ANY CLAIM FILED TWO YEARS OR MORE AFTER THE DECEDENT’S DATE OF DEATH IS BARRED.

FIRST INSERTION

of the decedent and other persons having claims or demands against Decedent’s estate on whom a copy of this notice is required to be served, must file their claims with this court ON OR BEFORE THE LATER OF 3 MONTHS AFTER THE TIME OF THE FIRST PUBLICATION OF THIS NOTICE OR 30 DAYS AFTER THE DATE OF SERVICE OF A COPY OF THIS NOTICE ON THEM. All other creditors of the decedent and other persons having claims or demands against decedent’s estate must file their claims with this court WITHIN LATER OF 3 MONTHS AFTER THE DATE OF THE FIRST PUBLICATION OF THIS NOTICE. ALL CLAIMS NOT FILED WITHIN THE TIME PERIODS SET FOR IN FLORIDA STATUTES SECTION 733.702 WILL BE FOREVER BARRED. NOTHWITHSTANDING THE TIME PERIODS SET FORTH ABOVE, ANY CLAIM FILED TWO (2) YEARS

FIRST INSERTION

FOLLOWS: FROM A POINT OF REFERENCE, COMMENCE AT NORTHWEST CORNER OF TRACT 122, NASSAU VILLAGE WEST, ACCORDING TO THE PLAT RECORDED IN THE PUBLIC RECORDS OF SAID COUNTY IN PLAT BOOK 5, PAGE 23; AND RUN SOUTH 13 DEGREES 25 MINUTES 20 SECONDS EAST ALONG THE WESTERLY LINE OF NASSAU VILLAGE WEST AFORESAID, A DISTANCE OF 60.0 FEET TO A POINT ON THE SOUTHERLY RIGHT OF WAY LINE OF COUNTY ROAD (A 50.0 FOOT RIGHT OF WAY); RUN THENCE SOUTH 76 DEGREES 34 MINUTES 40 SECONDS WEST ALONG SAID RIGHT OF WAY, A DISTANCE OF 600.0 FEET TO THE POINT OF BEGINNING. FROM THE POINT OF BEGINNING THUS DESCRIBED CONTINUE SOUTH 76 DEGREES 34 MINUTES 40 SECONDS WEST ALONG SAID RIGHT OF WAY A DISTANCE OF 200.0 FEET; RUN THENCE SOUTH 13 DEGREES 25 MINUTES 20 SECONDS EAST A DISTANCE OF 400.0 FEET; RUN THENCE NORTH 76 DEGREES 34 MINUTES 40 SECONDS EAST A DISTANCE OF 200.0 FEET; RUN THENCE NORTH 23 DEGREES 25 MINUTES 20

A personal representative or curator has no duty to discover whether any property held at the time of the decedent’s death by the decedent or the decedent’s surviving spouse is property to which the Florida Uniform Disposition of Community Property Rights at Death Act as described in sections 732.216-732.228, applies, or may apply, unless a written demand is made by a creditor as specified under section 732.2211.

The date of first publication of this Notice is November 14, 2024. Petitioner: PAMELA FISHER, 54813 Marlee Rd, Callahan, FL 32011

Attorney for Petitioner: Pamela J. Soulé, Esq., 4812 San Juan Ave, Jacksonville, FL 32210; Phone (904) 910-3729; Florida Bar No. 77143. Nov. 14/21 00 (24-00200N)

OR MORE AFTER THE DECEDENT’S DATE OF DEATH IS BARRED.

A Personal Representative or Curator has no duty to discover whether any property held at the time of the Decedent’s death by the Decedent or the Decedent’s surviving spouse is property to which the Florida Uniform Disposition of Community Property Rights at death Act as described in ss. 732.216-732.228 applies, or may apply, unless a written demand is made by a Creditor, as specified under s. 732.2211.

The date of first publication of this notice is: November 14, 2024. Person giving Notice: Earl Batten Attorney for Person Giving Notice: Micolle D. Rosenberry, Esq. 45023 Mickler Street Callahan, Florida 32011 (904) 805-8881

Micollerose@bellsouth.net Nov. 14/21 00 (24-00202N)

SECONDS WEST, A DISTANCE OF 400.00 FEET TO THE POINT OF BEGINNING.

Property Address: 54818 CHURCH RD, CALLAHAN, FL 32011

Any person claiming an interest in the surplus from the sale, if any, other than the property owner as of the date of the lis pendens must file a claim in accordance with Florida Statutes, Section 45.031. Americans With Disabilities Act (ADA) Notice

If you are a person with a disability who needs any accommodation in order to participate in this proceeding, you are entitled at no cost to you, to the provision of certain assistance. Please contact the ADA Coordinator at (904) 548-4600 (then press 0) at least 7 days before your scheduled court appearance, or immediately upon receiving this notification if the time before the scheduled appearance is less than 7 days; if you are hearing or voice impaired, call 711. Dated this 11 day of November, 2024.

JOHN CRAWFORD As Clerk of the Court By: Reymie Gordon As Deputy Clerk (Court Seal) Robertson, Anschutz, Schneid, Crane & Partners, PLLC

Attorneys for Plaintiff 6409 Congress Avenue, Suite 100 Boca Raton, FL 33487

Telephone: 561-241-6901

Fax: 561-997-6909 23-151405 - MaM Nov. 14/21 00 (24-00203N)

NASSAU COUNTY SUBSEQUENT INSERTIONS

IN THE CIRCUIT COURT FOR NASSAU COUNTY, FLORIDA

PROBATE DIVISION

File No. 45-2024-CP-511

Division Probate IN RE: ESTATE OF KEITH GERARD SWALLS

Deceased. NOTICE TO CREDITORS

The administration of the estate of Keith Gerard Swalls, deceased, whose date of death was August 18, 2024, is pending in the Circuit Court for Nassau County, Florida, Probate Division, the address of which is Nassau County Courthouse, 76347 Veteran’s Way, Yulee, Florida 32097. The names and addresses of the personal representative and the personal representative’s attorney are set forth below. All creditors of the decedent and other persons having claims or demands against decedent’s estate on whom a copy of this notice is required to be served must file their claims with this court ON OR BEFORE THE LATER OF 3 MONTHS AFTER THE TIME

SECOND INSERTION

OF THE FIRST PUBLICATION OF THIS NOTICE OR 30 DAYS AFTER THE DATE OF SERVICE OF A COPY OF THIS NOTICE ON THEM. The personal representative has no duty to discover whether any property held at the time of the decedent’s death by the decedent or the decedent’s surviving spouse is property to which the Florida Uniform Disposition of Community Property Rights at Death Act as described in ss. 732.216732.228, Florida Statutes, applies, or may apply, unless a written demand is made by a creditor as specified under s. 732.2211, Florida Statutes. All other creditors of the decedent and other persons having claims or demands against decedent’s estate must file their claims with this court WITHIN 3 MONTHS AFTER THE DATE OF THE FIRST PUBLICATION OF THIS NOTICE. ALL CLAIMS NOT FILED WITHIN THE TIME PERIODS SET FORTH IN FLORIDA STAT-

ST. JOHNS COUNTY LEGAL NOTICES

FIRST INSERTION

FAMILY COURT OF THE STATE OF NEW YORK COUNTY OF SUFFOLK File #: 182527

Docket #: G-13928-24

In the Matter of an Article 6 Guardianship Proceeding

Christine Mullis (Petitioner) Matthew Fox (Respondent) Lisa M. Bergstrom (Deceased) (Respondent) Matthew Fox (DOB: 05/30/2017) SUMMONS - GENERAL (IN PERSON)

To: Matthew Fox Address is Unknown

A petition under Article 6 of the Family Court Act has been filed with this Court. YOU ARE HEREBY SUMMONED to appear IN PERSON before this Court on:

Date/Time/Part: December 10, 2024 at 09:30 AM in Part 1 Central Islip

Purpose: Return of Process Presiding: Hon. Mary E. Porter

FIRST INSERTION IN THE CIRCUIT COURT OF THE SEVENTH JUDICIAL CIRCUIT IN AND FOR ST JOHNS COUNTY, FLORIDA Case No.: CP24-0796

PROBATE DIVISION IN RE: THE ESTATE OF HARVEY BARNES, Deceased.

NOTICE TO CREDITORS

The administration of the Estate of Harvey Barnes, deceased, is pending in the Circuit Court for St. Johns County, Florida, Probate Division, the address of which is 4010 Lewis Speedway, St. Augustine, Florida 32084; the file number is CP24-0796. The name and addresses of the personal representative and the personal representative’s Attorney are set forth below.

All creditors of the decedent and other persons having claims or demands against decedent’s estate, including unmatured, contingent or un-liquidated claims, on whom a copy of this notice is served must file their claims with this court ON OR BEFORE THE LATER OF 3 MONTHS AFTER THE TIME OF THE FIRST PUBLICATION OF THIS NOTICE OR 30 DAYS AFTER THE DATE OF SERVICE OF A COPY OF THIS NOTICE ON THEM.

All other creditors of the decedent and other persons having claims or demands against the decedent’s estate must file their claims with this court WITHIN 3 MONTHS AFTER THE DATE OF THE FIRST PUBLICATION OF THIS NOTICE.

ALL CLAIMS NOT FILED WITHIN THE TIME PERIODS SET FORTH IN SECTION 733.702 OF THE FLORIDA PROBATE CODE WILL BE FOREVER BARRED.

NOTWITHSTANDING THE TIME PERIODS SET FORTH ABOVE, ANY CLAIM FILED TWO (2) YEARS OR MORE AFTER THE DECEDENT’S DATE OF DEATH IS BARRED.

A personal representative or curator has no duty to discover whether any property held at the time of the decedent’s death by the decedent or the decedent’s surviving spouse is property to which the Florida Uniform Disposition of Community Property Rights at Death Act as described in sections 732.216-732.228, applies, or may apply, unless a written demand is made by a creditor as specified under section 732.2211.

Location: Suffolk County Family Court, 400 Carleton Avenue, Central Islip, NY 11722-9076

Floor: 2 Room: F25 to answer the attached petition and to be dealt with in accordance with the Family Court Act. Please bring this notice with you and check in with the Court Officer in the Part. If you fail to appear as directed, a warrant may be issued for your arrest.

Dated: October 28, 20244

Michael J. Williams, Chief Clerk NOTICE: FAMILY COURT ACT §154(C) PROVIDES THAT PETITIONS BROUGHT PURSUANT TO ARTICLES 4, 5, 6, 8 AND 10 OF THE FAMILY COURT ACT, IN WHICH AN ORDER OF PROTECTION IS SOUGHT OR IN WHICH A VIOLATION OF AN ORDER OF PROTECTION IS ALLEGED, MAY BE SERVED OUTSIDE THE STATE OF NEW YORK

INSERTION IN THE CIRCUIT COURT FOR ST. JOHNS COUNTY, FLORIDA PROBATE DIVISION File No. 2024-CP-802 Division 59 IN RE: ESTATE OF WILLIAM RANDOLPH BYRD, II

Deceased.

NOTICE TO CREDITORS

The administration of the estate of William Randolph Byrd, II, deceased, whose date of death was October 27, 2024, is pending in the Circuit Court for St. Johns County, Florida, Probate Division, the address of which is 4010 Lewis Speedway, St. Augustine, FL 32084. The names and addresses of the personal representative and the personal representative’s attorney are set forth below.

All creditors of the decedent and other persons having claims or demands against decedent’s estate on whom a copy of this notice is required to be served must file their claims with this court ON OR BEFORE THE LATER OF 3 MONTHS AFTER THE TIME OF THE FIRST PUBLICATION OF THIS NOTICE OR 30 DAYS AFTER THE DATE OF SERVICE OF A COPY OF THIS NOTICE ON THEM.

The personal representative has no duty to discover whether any property held at the time of the decedent’s death by the decedent or the decedent’s surviving spouse is property to which the Florida Uniform Disposition of Community Property Rights at Death Act as described in ss. 732.216732.228, Florida Statutes, applies, or may apply, unless a written demand is made by a creditor as specified under s. 732.2211, Florida Statutes.

All other creditors of the decedent and other persons having claims or demands against decedent’s estate must file their claims with this court WITHIN 3 MONTHS AFTER THE DATE OF THE FIRST PUBLICATION OF THIS NOTICE. ALL CLAIMS NOT FILED WITHIN THE TIME PERIODS SET FORTH IN FLORIDA STATUTES SECTION 733.702 WILL BE FOREVER BARRED. NOTWITHSTANDING THE TIME PERIODS SET FORTH ABOVE, ANY CLAIM FILED TWO (2) YEARS OR MORE AFTER THE DECEDENT’S DATE OF DEATH IS BARRED.

UPON A RESPONDENT WHO IS NOT A RESIDENT OR DOMICILIARY OF THE STATE OF NEW YORK. IF NO OTHER GROUNDS FOR OBTAINING PERSONAL JURISDICTION OVER THE RESPONDENT EXIST ASIDE FROM THE APPLICATION OF THIS PROVISION, THE EXERCISE OF PERSONAL JURISDICTION OVER THE RESPONDENT IS LIMITED TO THE ISSUE OF THE REQUEST FOR, OR ALLEGED VIOLATION OF, THE ORDER OF PROTECTION. WHERE THE RESPONDENT HAS BEEN SERVED WITH THIS SUMMONS AND PETITION AND DOES NOT APPEAR, THE FAMILY COURT MAY PROCEED TO A HEARING WITH RESPECT TO ISSUANCE OR ENFORCEMENT OF THE ORDER OF PROTECTION. Nov. 14 00 (24-00571J)

UTES SECTION 733.702 WILL BE FOREVER BARRED. NOTWITHSTANDING THE TIME PERIODS SET FORTH ABOVE, ANY CLAIM FILED TWO (2) YEARS OR MORE AFTER THE DECEDENT’S DATE OF DEATH IS BARRED. The date of first publication of this notice is November 7, 2024.

Personal Representative: Renee Anita Lopez Swalls 44292 Woodridge Drive Callahan, Florida 32011

Attorney for Personal Representative: Amanda Meyer, Esquire

Attorney Florida Bar Number: 76997 Owenby Law, PA 6136 Atlantic Blvd. Jacksonville, FL 32211 Telephone: (904) 359-5115

Fax: (904) 359-5116

E-Mail: Legal@OwenbyLawfirm.com

Secondary E-Mail: Service@OwenbyLawFirm.com Nov. 7/14 25 (24-00199N)

The date of first publication of this notice is November 14, 2024. /s/ Lisa Dudeck Lisa Dudeck

Personal Representative: /s/ Undine C. George

Attorney for

Personal Representative: Undine C. George

Florida Bar No. 16872 107 A 11th Street

St. Augustine, FL 32080

Tele: 904-236-6243

Email: undine@anastasialaw.net Nov. 14/21 00 (24-00565J)

The date of first publication of this notice is November 14, 2024.

Personal Representative: Stewart A. Witt 6035 Winifred Masters Road Elkton, Florida 32033

Attorney for Personal Representative: /s/ R. Kevin Sharbaugh R. Kevin Sharbaugh, Attorney Florida Bar Number: 86240

DOUGLAS LAW FIRM 117 N. 2nd Street Palatka, FL 32177 Telephone: (386) 530-2955 Nov. 14/21 00 (24-00563J)

IN THE CIRCUIT COURT FOR ST. JOHNS COUNTY, FLORIDA PROBATE DIVISION File No. CP24-0551 Division 59 IN RE: ESTATE OF FREDERICK JOSEPH FIORE Deceased. NOTICE TO CREDITORS The administration of the estate of Frederick Joseph Fiore, deceased, whose date of death was January 14, 2024, is pending in the Circuit Court for St. Johns County, Florida, Probate Division, the address of which is 4010 Lewis Speedway, St Augustine, Florida 32084. The names and addresses of the personal representative and the personal representative’s attorney are set forth below. All creditors of the decedent and other persons having claims or demands against decedent’s estate on whom a copy of this notice is required to be served must file their claims with this court ON OR BEFORE THE LATER OF 3 MONTHS AFTER THE TIME OF THE FIRST PUBLICATION OF THIS NOTICE OR 30 DAYS AFTER THE DATE OF SERVICE OF A COPY OF THIS NOTICE ON THEM. All other creditors of the decedent and other persons having claims or demands against decedent’s estate must file their claims with this court WITHIN 3 MONTHS AFTER THE DATE OF THE FIRST PUBLICATION OF THIS NOTICE. ALL CLAIMS NOT FILED WITHIN THE TIME PERIODS SET FORTH IN FLORIDA STATUTES SECTION 733.702 WILL BE FOREVER BARRED. NOTWITHSTANDING THE TIME PERIODS SET FORTH ABOVE, ANY CLAIM FILED TWO (2) YEARS OR MORE AFTER THE DECEDENT’S DATE OF DEATH IS BARRED. A Personal Representative or Curator has no duty to discover whether any property held at the time of the Decedent’s death by the Decedent or the Decedent’s surviving spouse is property to which the Florida Uniform Disposition of Community Property Rights at death Act as described in ss. 732.216-732.228 applies, or may apply, unless a written demand is made by a Creditor, as specified under s. 732.2211. The date of first publication of this notice is November 14, 2024. Personal Representative: Joan Fiore 473 Tree Side Lane Ponte Vedra, Florida 32081 Attorney for Personal Representative: D. Kent Sausaman E-mail Address: ksausaman@fraziertaxlaw.com Florida Bar

PUBLIC NOTICES

FIRST INSERTION

NOTICE UNDER FICTITIOUS NAME LAW PURSUANT TO SECTION 865.09, FLORIDA STATUTES

NOTICE IS HEREBY GIVEN that Pravina Thakkar / JAI

JALARAM ENTERPRISES INC, will engage in business under the fictitious name NORTH STAR, with a physical address 2580 SR 16 SAINT AUGUSTINE, FL 32092, with a mailing address 2580 SR 16 SAINT AUGUSTINE, FL 32092, and already registered the name mentioned above with the Florida Department of State, Division of Corporations. Nov. 14 00 (24-00568J)

FIRST INSERTION

NOTICE UNDER FICTITIOUS NAME LAW

According to Florida Statute Number 865.09

NOTICE IS HEREBY GIVEN that the undersigned, desiring to engage in business under the Fictitious Name of Boardwurks Biocomposites located at 280 Moccasin Creek Ln, in the City of Elkton, St Johns County, Florida 32033 intends to register the said name with the Division of Corporations of the Department of State, Tallahassee, Florida. Dated at Jacksonville, Florida, this 12th day of November, 2024. Pan American Bio Composites Group LLC

Nov. 14 00 (24-00572J)

FIRST INSERTION

IN THE CIRCUIT COURT, SEVENTH JUDICIAL CIRCUIT, IN AND FOR ST. JOHNS COUNTY, FLORIDA CASE NO.: CP24-0804 PROBATE DIVISION IN RE: ESTATE OF LAWRENCE RANDALL MOUSLEY

Deceased.

NOTICE TO CREDITORS

The administration of the estate of LAWRENCE RANDALL MOUSLEY, deceased, whose date of death was October 10, 2024, is pending in the Circuit Court for St. Johns County, Florida, Probate Division, the address of which is 4010 Lewis Speedway, St. Augustine, FL 32084. The names and addresses of the personal representative and the personal representative’s attorney are set forth below. All creditors of the decedent and other persons having claims or demands against decedent’s estate on whom a copy of this notice is required to be served must file their claims with this court ON OR BEFORE THE LATER OF 3 MONTHS AFTER THE TIME OF THE FIRST PUBLICATION OF THIS NOTICE OR 30 DAYS AFTER THE DATE OF SERVICE OF A COPY OF THIS NOTICE ON THEM. All other creditors of the decedent and other persons having claims or demands against decedent’s estate must file their claims with this court WITHIN 3 MONTHS AFTER THE DATE OF THE FIRST PUBLICATION OF THIS NOTICE. ALL CLAIMS NOT FILED WITHIN THE TIME PERIODS SET FORTH IN FLORIDA STATUTES SECTION 733.702 WILL BE FOREVER BARRED. NOTWITHSTANDING THE TIME PERIODS SET FORTH ABOVE, ANY CLAIM FILED TWO (2) YEARS OR MORE AFTER THE DECEDENT’S DATE OF DEATH IS BARRED. A personal representative or curator has no duty to discover whether any property held at the time of the decedent’s death by the decedent or the decedent’s surviving spouse is property to which the Florida Uniform Disposition of Community Property Rights at Death Act as described in sections 732.216-732.228, applies, or may apply, unless a written demand is made by a creditor as specified under section 732.2211. The date of first publication of this notice is November 14, 2024. LARRY T. GRIGGS, ATTORNEY AT LAW, P.A Larry T. Griggs, Attorney for Maureen Ann Mousley, Personal Representative

Florida Bar No. 0454760 1301 Plantation Island Dr S., Ste 303A St. Augustine, FL 32080

Phone: 904-471-5204

Email: larry@larrygriggs.com

Secondary Email: kelly@larrygriggs.com

Secondary Email: receptionist@larrygriggs.com

Nov. 14/21 00 (24-00567J)

FIRST INSERTION

NOTICE UNDER FICTITIOUS NAME LAW PURSUANT TO SECTION 865.09, FLORIDA STATUTES

NOTICE IS HEREBY GIVEN that Jillianne Tamillo / ST. JOHNS COUNTY CENTER FOR THE ARTS, INC. will engage in business under the fictitious name SJCCA MUSICAL THEATRE BOOSTERS, with a physical address 3205 Varella Ave St Augustine, FL, 32084, with a mailing address 3205 Varella Ave St Augustine, FL, 32084, and already registered the name mentioned above with the Florida Department of State, Division of Corporations. Nov. 14 00 (24-00564J)

FIRST INSERTION

NOTICE UNDER FICTITIOUS NAME LAW

According to Florida Statute Number 865.09

NOTICE IS HEREBY GIVEN that the undersigned, desiring to engage in business under the Fictitious Name of

Fortress Wealth Planning located at 814 A1A North Suite 202, in the City of Ponte Vedra Beach, St Johns County, Florida 32082 intends to register the said name with the Division of Corporations of the Department of State, Tallahassee, Florida. Dated at Jacksonville, Florida, this 11th day of November, 2024.

Fortress Wealth Planning LLC

By: Michael Skowfoe, Manager Nov. 14 00 (24-00569J)

FIRST INSERTION IN THE CIRCUIT COURT FOR ST. JOHNS COUNTY, FLORIDA PROBATE DIVISION File No. CP24-0816 Division 59 IN RE: ESTATE OF CLEMENT JOHN DURKIN Deceased.

NOTICE TO CREDITORS

The administration of the estate of CLEMENT JOHN DURKIN, deceased, whose date of death was September 23, 2024, is pending in the Circuit Court for St. Johns County, Florida, Probate Division, the address of which is 4010 Lewis Speedway, St. Augustine, Florida 32084. The names and addresses of the personal representatives and the personal representatives’ attorney are set forth below.

All creditors of the decedent and other persons having claims or demands against decedent’s estate on whom a copy of this notice is required to be served must file their claims with this court ON OR BEFORE THE LATER OF 3 MONTHS AFTER THE TIME OF THE FIRST PUBLICATION OF THIS NOTICE OR 30 DAYS AFTER THE DATE OF SERVICE OF A COPY OF THIS NOTICE ON THEM.

The personal representatives have no duty to discover whether any property held at the time of the decedent’s death by the decedent is property to which the Florida Uniform Disposition of Community Property Rights at Death Act as described in ss. 732.216732.228, Florida Statutes, applies, or may apply, unless a written demand is made by a creditor as specified under s. 732.2211, Florida Statutes.

All other creditors of the decedent and other persons having claims or demands against decedent’s estate must file their claims with this court WITHIN 3 MONTHS AFTER THE DATE OF THE FIRST PUBLICATION OF THIS NOTICE. ALL CLAIMS NOT FILED WITHIN THE TIME PERIODS SET FORTH IN FLORIDA STATUTES SECTION 733.702 WILL BE FOREVER BARRED. NOTWITHSTANDING THE TIME PERIODS SET FORTH ABOVE, ANY CLAIM FILED TWO (2) YEARS OR MORE AFTER THE DECEDENT’S DATE OF DEATH IS BARRED. The date of first publication of this notice is November 14, 2024.

Personal Representative: GERARD DURKIN 316 Point Pleasant Drive St. Augustine, Florida 32086

GERALYNN HORAN 30 Aledo Court

St. Augustine, Florida 32086

UPCHURCH, BAILEY AND UPCHURCH, P.A. Michael A. Siragusa Florida Bar No. 0883905

780 N. Ponce de Leon Blvd.

St. Augustine, Florida 32084 Telephone No. (904) 829-9066

Fax: (904) 825-4862

Email: masiragusa@ubulaw.com

Attorney for the Personal Representatives Nov. 14/21 00 (24-00566J)

ST. JOHNS COUNTY

ST. JOHNS COUNTY SUBSEQUENT INSERTIONS

SECOND INSERTION

IN THE CIRCUIT COURT FOR ST. JOHNS COUNTY, FLORIDA FILE NO.: CP24-0731

DIVISION: 59

IN RE: ESTATE OF DANIEL HENRY SKAWINSKI Deceased.

NOTICE TO CREDITORS

The administration of the Florida estate of Daniel Henry Skawinski, deceased, whose date of death was September 3,2024, is pending in the Circuit Court for St. Johns County, Florida, Division 59; File No. CP24-0731; the address of which is 4010 Lewis Speedway, St. Johns, Florida 32080. The names and addresses of the personal representative and the personal representative’s attorney are set forth below. All creditors of the decedent and other persons, who have claims or demands against the decedent’s estate, including unmatured, contingent or unliquidated claims, and who have been served a copy of this Notice, must file their claims with this Court WITHIN THE LATER OF THREE (3) MONTHS AFTER THE DATE OF THE FIRST PUBLICATION OF THIS NOTICE OR THIRTY (30) DAYS AFTER THE DATE OF SERVICE OF A COPY OF THIS NOTICE ON THEM.

All other creditors of the decedent and other persons who have claims or demands against decedent’s estate, including unmatured, contingent or unliquidated

claims, must file their claims with this Court WITHIN THREE (3) MONTHS AFTER THE DATE OF THE FIRST PUBLICATION OF THIS NOTICE. ALL CLAIMS NOT SO FILED WILL BE FOREVER BARRED. NOTWITHSTANDING THE TIME PERIODS SET FORTH ABOVE, ANY CLAIM FILED TWO (2) YEARS OR MORE AFTER THE DECEDENT’S DATE OF DEATH IS BARRED.

A personal representative or curator has no duty to discover whether any property held at the time of the decedent’s death by the decedent or the decedent’s surviving spouse is property to which the Florida Uniform Disposition of Community Property Rights at Death Act as described in sections 732.216-732.228, applies, or may apply, unless a written demand is made by a creditor as specified under section 732.2211. THE DATE OF FIRST PUBLICATION OF THIS NOTICE IS: November 7, 2024.

Personal Representative: Glenn Michael Skawinski Attorney for Personal Representative: James Hatfield, Esquire Florida Bar No.: 87935 St. Johns Law Group 104 Sea Grove Main Street St. Augustine, FL 32080 (904) 495-0400 Nov. 7/14 26 (24-00559J)

SECOND INSERTION

IN THE CIRCUIT COURT FOR ST. JOHNS COUNTY, FLORIDA PROBATE DIVISION File No. 24-CP-0585 Division Probate IN RE: Estate of Bryan S. Beske Deceased.

NOTICE TO CREDITORS

The administration of the estate of Bryan S. Beske, deceased, whose date of death was June 16, 2024, is pending in the Circuit Court for St. Johns County, Florida, Probate Division, the address of which is, St. Johns County Courthouse, Richard O. Watson Judicial Center, 4010 Lewis Speedway, St. Augustine, FL 32084. The names and addresses of the Personal Representative and the Personal Representative’s attorney are set forth below.

All creditors of the decedent and other persons having claims or demands against decedent’s estate, on whom a copy of this notice has been served, must file their claims with this Court WITHIN THE LATER OF 3 MONTHS AFTER THE TIME OF THE FIRST PUBLICATION OF THIS NOTICE OR 30 DAYS AFTER THE TIME OF SERVICE OF A COPY OF THIS NOTICE ON THEM.

All other creditors of the decedent and other persons having claims or demands against decedent’s estate must file their claims with this Court WITHIN 3 MONTHS AFTER THE DATE OF THE FIRST PUBLICATION

OF THIS NOTICE. ALL CLAIMS NOT SO FILED WITHIN THE TIME PERIODS SET FORTH IN FLORIDA STATUTES SECTION 733.702 WILL BE FOREVER BARRED. NOTWITHSTANDING THE TIME PERIOD SET FORTH ABOVE, ANY CLAIM FILED TWO (2) YEARS OR MORE AFTER THE DECEDENT’S DATE OF DEATH IS BARRED. A personal representative or curator has no duty to discover whether any property held at the time of the decedent’s death by the decedent or the decedent’s surviving spouse is property to which the Florida Uniform Disposition of Community Property Rights at Death Act as described in sections 732.216-732.228, applies, or may apply, unless a written demand is made by a creditor as specified under section 732.2211.

The date of first publication of this notice is: November 7, 2024. Colin M. Beske Personal Representative David A. Swift Attorney for Personal Representative Email address: daswift@cpmlaw.com

Florida Bar #: 117172

Address: Carlile Patchen & Murphey, LLP 950 Goodale Blvd., Suite 200 Columbus, Ohio 43212

Phone: (614) 628-0826

Nov. 7/14 26 (24-00560J)

SECOND INSERTION

IN THE CIRCUIT COURT FOR ST. JOHNS COUNTY, FLORIDA FILE NO.: CP24-0668

DIVISION: 59 IN RE: ESTATE OF ROBERT WAYNE CHRISTENSEN Deceased.

NOTICE TO CREDITORS

The administration of the Florida estate of Robert Wayne Christensen, deceased, whose date of death was September 3,2024, is pending in the Circuit Court for St. Johns County, Florida, Division 59; File No. CP24-0668; the address of which is 4010 Lewis Speedway, St. Johns, Florida 32080. The names and addresses of the personal representatives and the personal representatives’ attorney are set forth below. All creditors of the decedent and other persons, who have claims or demands against the decedent’s estate, including unmatured, contingent or unliquidated claims, and who have been served a copy of this Notice, must file their claims with this Court WITHIN THE LATER OF THREE (3) MONTHS AFTER THE DATE OF THE FIRST PUBLICATION OF THIS NOTICE OR THIRTY (30) DAYS AFTER THE DATE OF SERVICE OF A COPY OF THIS NOTICE ON THEM. All other creditors of the decedent and other persons who have claims or demands against decedent’s estate, including unmatured, contingent or unliquidated claims, must file their claims with

SECOND INSERTION

IN THE CIRCUIT COURT FOR ST, JOHNS COUNTY, FLORIDA PROBATE DIVISION File No. 24-CP-0762 Division 59 IN RE: ESTATE OF TAMARA MAE DEGOYLER, Deceased.

NOTICE TO CREDITORS

The administration of the estate of TAMARA MAE DEGOYLER, deceased, whose date of death was July 28, 2024, is pending in the Circuit Court for St, Johns County, Florida, Probate Division, the address of which is 4010 Lewis Speedway, St. Augustine, FL 32084. The names and addresses of the personal representative and the personal representative’s attorney are set forth below.

All creditors of the decedent and other persons having claims or demands against decedent’s estate, on whom a copy of this notice is required to be served, must file their claims with this court ON OR BEFORE THE LATER OF 3 MONTHS AFTER THE TIME OF THE FIRST PUBLICATION OF THIS NOTICE OR 30 DAYS AFTER THE DATE OF SERVICE OF A COPY OF THIS NOTICE ON THEM.

All other creditors of the decedent and other persons having claims or demands against decedent’s estate must file their claims with this court WITHIN

3 MONTHS AFTER THE DATE OF THE FIRST PUBLICATION OF THIS NOTICE.

The personal representative has no duty to discover whether any property held at the time of the decedent’s death by the decedent or the decedent’s surviving spouse is property to which the Florida Uniform Disposition of Community Property Rights at Death Act as described in ss. 732.216732.228, applies, or may apply, unless a written demand is made by a creditor as specified under s. 732.2211, Florida Statutes.

ALL CLAIMS NOT FILED WITHIN THE TIME PERIODS SET FORTH IN FLORIDA STATUTES SECTION 733.702 WILL BE FOREVER BARRED. NOTWITHSTANDING THE TIME PERIOD SET FORTH ABOVE, ANY CLAIM FILED TWO (2) YEARS OR MORE AFTER THE DECEDENT’S DATE OF DEATH IS BARRED.

The date of first publication of this notice is: November 7, 2024. LORI GONZALEZ Personal Representative 153 Pine Forest Ct. St. Augustine, FL 32092 Matthew T. Harrod, Esq. Attorney for Personal Representative Florida Bar No. 41134 Harrod Law, PLLC 145 Hilden Rd., Suite 105 Ponte Vedra, FL 32081 Telephone: (904) 373-6665 Email: mharrod@mattharrod.com Nov. 7/14 27 (24-00556J)

SECOND INSERTION IN THE SEVENTH JUDICIAL CIRCUIT COURT, IN AND FOR ST. JOHNS COUNTY, FLORIDA PROBATE DIVISION File No. CP24-784 Division 59

IN RE: ESTATE OF FREDERICK EDWARD CAVE, Deceased. NOTICE TO CREDITORS The administration of the estate of FREDERICK EDWARD CAVE, deceased, whose date of death was March 6, 2024, is pending in the Circuit Court for St. Johns County, Florida, Probate Division, the address of which is 4010 Lewis Speedway, St. Augustine, FL 32084. The names and addresses of the personal representative and the personal representative’s attorney are set forth below. All creditors of the decedent and other persons having claims or demands against decedent’s estate on whom a copy of this notice is required to be served must file their claims with this court ON OR BEFORE THE LATER OF 3 MONTHS AFTER THE TIME OF THE FIRST PUBLICATION OF THIS NOTICE OR 30 DAYS AFTER THE DATE OF SERVICE OF A COPY OF THIS NOTICE ON THEM. All other creditors of the decedent and other persons having claims or demands against decedent’s estate must file their claims with this court WITHIN 3 MONTHS AFTER THE DATE OF THE FIRST PUBLICATION OF THIS NOTICE.

The personal representative has no duty to discover whether any property held at the time of the decedent’s death by the decedent or the decedent’s surviving spouse is property to which the Florida Uniform Disposition of Community Property Rights at Death Act as described in ss. 732.216732.228, applies, or may apply, unless a written demand is made by a creditor as specified under s. 732.2211, Florida Statutes. ALL CLAIMS NOT FILED WITHIN THE TIME PERIODS SET FORTH IN FLORIDA STATUTES SECTION 733.702 WILL BE FOREVER BARRED. NOTWITHSTANDING THE TIME PERIOD SET FORTH ABOVE, ANY CLAIM FILED TWO (2) YEARS OR MORE AFTER THE DECEDENT’S DATE OF DEATH IS BARRED. The date of first publication of this notice is November 7, 2024. Personal Representative: THOMAS CAVE III PO Box 542 Hastings, FL 32145 Attorney for Personal Representative: Heather S. Maltby HEATHER@EPPGLAW.COM Florida Bar No. 116571

E.P.P.G. Law of St. Johns, PLLC 200 Malaga Street, Suite 2 St. Augustine, FL 32084 Telephone: 904-875-3774 Nov. 7/14 27 (24-00555J)

SECOND INSERTION

this Court WITHIN THREE (3) MONTHS AFTER THE DATE OF THE FIRST PUBLICATION OF THIS NOTICE. ALL CLAIMS NOT SO FILED WILL BE FOREVER BARRED. NOTWITHSTANDING THE TIME PERIODS SET FORTH ABOVE, ANY CLAIM FILED TWO (2) YEARS OR MORE AFTER THE DECEDENT’S DATE OF DEATH IS BARRED.

A personal representative or curator has no duty to discover whether any property held at the time of the decedent’s death by the decedent or the decedent’s surviving spouse is property to which the Florida Uniform Disposition of Community Property Rights at Death Act as described in sections 732.216-732.228, applies, or may apply, unless a written demand is made by a creditor as specified under section 732.2211. THE DATE OF FIRST PUBLICATION OF THIS NOTICE IS: NOVEMBER 7, 2024.

Personal Representatives: Tiffany Lynne Meaker Stephanie Amber Meaker c/o St. Johns Law Group 104 Sea Grove Main Street St. Augustine, FL 32080 Attorney for Personal Representatives: James Hatfield, Esquire Florida Bar No.: 87935 St. Johns Law Group 104 Sea Grove Main Street St. Augustine, FL 32080 (904) 495-0400 Nov. 7/14 26 (24-00561J)

IN THE CIRCUIT COURT OF THE SEVENTH JUDICIAL CIRCUIT IN AND FOR ST. JOHNS COUNTY, FLORIDA PROBATE DIVISION Case No. CP24-0785 Division 59 IN RE: ESTATE OF DIANA LYNN DEER, Deceased. NOTICE TO CREDITORS (Summary Administration) TO ALL PERSONS HAVING CLAIMS OR DEMANDS AGAINST THE ABOVE ESTATE: You are hereby notified that an Order of Summary Administration has been entered in the estate of Diana Lynn Deer, deceased, File Number CP24-0785, by the Circuit Court for St. Johns County, Florida, Probate Division, the address of which is 4010 Lewis Speedway, St. Augustine, Florida 32084; that the decedent’s date of death was September 18, 2024; that the total value of the estate is $000 and that the names and addresses of those to whom it has been assigned by such order are:

Lisa DeCamp, 8832 N. 100 W, West Lafayette, IN 47906

Brian Haines, 7050 Peninsula Court, Lake Worth, Florida 33467

Lauren DeCamp, 8832 N. 100 W, West Lafayette, IN 47906

Alexis DeCamp, 8832 N. 100 W, West Lafayette, IN 47906 ALL INTERESTED PERSONS ARE NOTIFIED THAT: All creditors of the estate of the decedent and persons having claims or demands against the estate of the decedent other than those for whom provision for full payment was made in the Order of Summary Administration must

file their claims with this court WITHIN THE TIME PERIODS SET FORTH IN FLORIDA STATUTES SECTION 733.702. ALL CLAIMS AND DEMANDS NOT SO FILED WILL BE FOREVER BARRED. NOTWITHSTANDING ANY OTHER APPLICABLE TIME PERIOD, ANY CLAIM FILED TWO (2) YEARS OR MORE AFTER THE DECEDENT’S DATE OF DEATH IS BARRED.

The personal representative has no duty to discover whether any property held at the time of the decedent’s death by the decedent or the decedent’s surviving spouse is property to which the Florida Uniform Disposition of Community Property Rights at Death Act as described in ss. 732.216732.228, Florida Statutes, applies, or may apply, unless a written demand is made by a creditor as specified under s. 732.2211, Florida Statutes. The date of first publication of this Notice is November 7, 2024. Person Giving Notice: /s/ Lisa DeCamp Lisa DeCamp 8832 N. 100 W West Lafayette, Indiana 47906

Attorney for Person Giving Notice /s/ David D. Naples, Jr. David D. Naples, Jr. Attorney for Lisa DeCamp Florida Bar Number: 99064 2807 North Tenth Street St. Augustine, Florida 32084 Telephone: (904) 657-7117 Fax: (904) 429-1351 E-Mail: Dave@DNaplesLaw.com Jennifer@DNaplesLaw.com Nov. 7/14 27 (24-00554J)

Turn static files into dynamic content formats.

Create a flipbook
Issuu converts static files into: digital portfolios, online yearbooks, online catalogs, digital photo albums and more. Sign up and create your flipbook.