

![]()




10

THE MATHIS REPORT Yamaha invests in testing facility Yamaha Motor COrp. investing at least $11 million into a marina facility along Heckscher Drive. PAGE 4
NOTE TO READERS
BY RIC ANDERSON STAFF WRITER
f and when the decades-long effort to revitalize the core of Jacksonville reaches fruition, a pair of events 25 hours apart in October 2024 will represent mileposts on the road to rebirth.
At 10 a.m. Oct. 29, government and community leaders gathered for the groundbreaking for Gateway Jax, the proposed $2 billion-plus
mixed-use development in Downtown’s NorthCore district near City Hall.
The next day, many of those same individuals turned out for an 11 a.m. ribbon-cutting for the proposed $37.9 million Phoenix Arts & Innovation District in North Springfield.
Jacksonville Mayor Donna Deegan said the two developments were among numerous public and private projects that were changing the face of
Progress on Gateway Jax and the Phoenix district is lauded as a key moment for urban core revitalization. SEE PROJECTS, PAGE 6
REAL ESTATE
The top sales of the third quarter
The top 10 home sales and commercial real estate sales of the third quarter of 2024 in Northeast Florida. PAGES 16 & 17

The special supplement indicated below is being published in Observer newspapers and websites throughout Florida, including the Daily Record, at the personal expense and mission of Matt Walsh, founder & CEO of Observer Media Group.
The editor and news team of the Daily Record did not play a role in the decision to publish the special supplement.
Pfizer Papers Observer Media Group owner Matt Walsh publishes in this week’s Daily Record the introduction to a new book that exposes how Pfizer knew its vaccine was harmful and deadly.

Four years after announcing the project, Restaurant & Hospitality Investment Group is starting construction of a mixed-use restaurant concept at 400 Riverside Ave. in the Brooklyn area of Downtown Jacksonville.
Southern Grounds, the Sky Bar and Alder & Oak will anchor The HUB, which is at Riverside Avenue and Forest Street.
Space will also be dedicated to an event venue.
Southern Grounds is a coffee shop. The Sky Bar will serve craft cocktails
and small plates. Alder & Oak will feature wood-fired entrees.
“This project embodies our commitment to quality and authenticity, uniting our community-first approach with sustainable practices and genuine hospitality,” said Mark Janasik, owner of RHIG, in a news release.
An RHIG spokesperson said by text that The HUB’s unique design was the main reason that the project has taken so long to start construction and that Janasik is looking at opening in the fourth quarter of 2025.
121 W. Forsyth St., Suite 150, Jacksonville, FL, 32202 Phone: 904-356-2466, Fax: 904-353-2628 jaxdailyrecord.com
The Jacksonville Daily Record and JaxDailyRecord.com are a division of Observer Media Group Inc. The Daily Record is published 52 times a year in print on Thursdays and at JaxDailyRecord.com seven days a week.
Established in 1912, the Jacksonville Daily Record is Northeast Florida’s newspaper for business leaders. Editorial content focuses on news and trends, with a concentration on development, real estate, construction, law, companies, economic and industry trends and how local and state government affects business. The Jacksonville Daily Record is the leading publisher of public notices in three Northeast Florida counties: Duval, Clay and St. Johns.
Publisher Angie Campbell acampbell@jaxdailyrecord.com
Multimedia Advertising Executive | Kristen Knudsen kknudsen@jaxdailyrecord.com
Advertising Coordinator | Codi Gildberg adassist@jaxdailyrecord.com
Legal Advertising Manager | Rhonda Fisher legal@jaxdailyrecord.com
Legal Advertising Associate | Nichol Stringer legal@jaxdailyrecord.com
Network Administrator | Erik Wagner webadmin@jaxdailyrecord.com
Circulation Customer Service Team subscriptions@jaxdailyrecord.com
Editor Monty Zickuhr mzickuhr@jaxdailyrecord.com
Editor at Large | Karen Brune Mathis kmathis@jaxdailyrecord.com
Assistant Editor | David Crumpler dcrumpler@jaxdailyrecord.com
Associate Editor Legal Affairs | Max Marbut mmarbut@jaxdailyrecord.com
Associate Editor Government Affairs | Ric Anderson randerson@jaxdailyrecord.com
Staff Writer | Dan Macdonald dmacdonald@jaxdailyrecord.com
Staff Writer | J. Brooks Terry bterry@jaxdailyrecord.com
Contributing Writer | Mark Basch mbasch@jaxdailyrecord.com
CEO | Matt Walsh | mwalsh@jaxdailyrecord.com
Publisher Emeritus | James F. Bailey Jr. | jbailey@jaxdailyrecord.com
HOW TO REACH US
EDITORIAL: To submit a news release or editorial inquiry visit JaxDailyRecord.com/ submit-news-release or email editorial@JaxDailyRecord.com. Article reprints are available at JaxDailyRecord.com
LEGAL ADVERTISING: Submit public notices via email to legal@JaxDailyRecord.com. List the county name in the subject line and attach notice. Deadline 2 p.m. Wednesday.
DISPLAY & ONLINE ADVERTISING: Call 904-356-2466 or email advertise@ JaxDailyRecord.com. Deadline for display advertising is 3 p.m. Thursday.
The annual Florida-Georgia football game will return to Jacksonville for four years beginning in 2028 after the scheduled completion of renovations to EverBank Stadium, the city announced Nov. 1.
The city said in a news release it agreed to terms with the universities of Florida and Georgia to keep the game in Jacksonville, where it is being played this year and in 2025 as the stadium project gets underway. The game will be played in Atlanta in 2026 and Tampa in 2027.
Under terms in a memorandum of understanding, the city would pay the teams $1.5 million each per year during the 2026 and 2027 seasons, for a total of $3 million per team.
In 2028 and 2029, the city will guarantee each school a minimum of $10 million, with that figure rising to $10.5 million for the 2030 and 2031 games.
The city will provide Georgia with a $350,000 travel stipend and Florida with a $60,000 stipend.
Each school will purchase 25,000 to 30,000 tickets per game. Ticket prices must average a minimum of $250, or the average ticket price of the 2026 and

2027 games, whichever is greater. The city will manage ticket inventory, pricing and distribution.
The city will pay for stadium staffing and security, but in a change from previous years, all revenue from sponsorships, concessions and parking will go to the city. The schools will pay for team and conference expenses, such as compensation for game officials and sideline personnel.
The city and schools will now negotiate details of the official agreement, which will then be sent to the Jacksonville City Council for approval.
Gregorys Coffee, a New York Citybased chain of almost 50 shops that sell coffee, drinks and food, intends to open Nov. 11 in St. Johns Town Center where Starbucks closed in the circle across from Maggiano’s Little Italy.
The company says the cafe will offer a discount for veterans and active duty
HOW TO FIND US
military for the Veterans Day opening. The shop will be open daily. It opens at 8 a.m. Monday-Saturday, closing at 8 p.m. Monday-Thursday and at 9 p.m. Friday-Saturday. Sunday hours are 9 a.m. to 6 p.m.
The Gregorys Coffee website shows 48 locations and seven coming soon.
The Jacksonville Daily Record is available by mailed subscription and at newsstands. Subscribe online at jaxdailyrecord.com/subscribe or contact our subscription department by phone at 877-231-8834 or via email at subscriptions@jaxdailyrecord.com
The Jacksonville Daily Record is distributed in key business nodes throughout Northeast Florida. Individual copies are free. To find a location near you, visit JaxDailyRecord.com/rack-locations.
POSTAL INFORMATION
The Jacksonville Daily Record is published weekly by Daily Record & Observer LLC, 121 W. Forsyth St., Suite 150, Jacksonville, FL, 32202. Periodicals postage paid at Jacksonville, Florida, and at additional mailing offices. The Jacksonville Daily Record is circulated in Duval, Clay, Nassau and St. Johns counties. Under no circumstances will any news or records of Duval County be suppressed for anyone. Information in this publication is for our subscribers only and must not be used by anyone for publication purposes.
POSTMASTER: Send changes of address to the Jacksonville Daily Record, Observer Media Group, 1970 Main Street, Floor 3, Sarasota, FL 34236
PUBLIC NOTICES
The Jacksonville Daily Record meets the legal requirements to publish legal notices in Duval, Clay, Nassau and St. Johns counties, per F.S. 50.0111(1)(e). USPS Periodicals Permit (190-620)
STATEMENT OF OWNERSHIP
The Jacksonville Daily Record 2023 Statement of Ownership can be accessed at this link.


AUDITOR INFORMATION
Circulation Verification Council 12166 Old Big Bend Road, Suite 210 Kirkwood, Missouri, 63122 314-966-7711 cvcaudit.com


The California-based company with more than 380 locations intends to renovate at northwest Beach and Hodges boulevards.
BY KAREN BRUNE MATHIS EDITOR AT LARGE
Habit Burger & Grill, an Irvine, California-based chain, intends to open at 13559 Beach Blvd. where Bojangles closed in June 2023.
Habit Burger intends to renovate the 3,875-square-foot free-standing restaurant and drive-thru on a 0.83-acre site at an estimated project cost of $750,000.
The site is at northwest Beach and Hodges boulevards.
The property owner is shown on the permit site as JLR Hodges Station LLC. The architect is Lingle Design Group of Lena, Illinois.
The HabitBurger.com says the company began in Santa Barbara, California, in 1969 and “has been chargrilling California’s freshest flavors for over half a century.”
It says its menu features freshly chargrilled burgers, chicken and tuna “all cooked-to-order over an open flame.”
It also has salads and shakes.
The menu shows its signature charburgers, including singles and doubles with or without

cheese, a barbecue bacon and cheese burger, a teriyaki burger, Impossible and portabella choices; sandwiches including chicken, ahi tuna, a veggie burger and grilled cheese; meals that include fries and a drink; salads; bundles; kids’ meals; sides that include fries, sweet potato fries, crispy chicken bites, onion rings, tem-
pura green beans; combinations, and side salads.
There also are drinks, shakes and sundaes.
Habit Burger is part of Yum! Brands Inc., which also owns KFC, Taco Bell and Pizza Hut.
As of Aug. 28, 2024, Habit Burger operated more than 380 locations in 14 states and inter-
Mr. Potato Spread closes last brick-and-mortar store
Mr. Potato Spread, a specialty baked potato restaurant, closed its last brick-and-mortar location at River City Marketplace on Oct. 28, owners announced on the business’s Facebook page.
“With the rising costs of rent, insurance, and goods, alongside the decline in consumer spending, it has become increasingly difficult to operate comfortably in this space,” the Facebook post read.
It will continue its food truck operation.
It closed its location in the Orange Park Mall in July. Its lease was set to expire at the end of the year.
Its first franchise at 7150 Philips Highway closed in January.
Mr. Potato Spread is owned by Lakita and Aaron Spann. They opened the business in 2014.
Lakita Spann was named the JAX Chamber 2024 overall Small Business Leader of the Year in February.
Whiskey Cake Kitchen & Bar to open Nov. 7
Whiskey Cake Kitchen & Bar at 10209 River Coast Drive at Town Center will open Nov. 7, the company said Oct. 29. It is at the former Ida Claire restaurant.
Ida Claire and Whiskey Cake Kitchen & Bar are owned by Dallas-based FB Society. Ida Claire closed March 10. A Whiskey Cake is the restaurant’s signature dessert.
DAN MACDONALD
nationally. The largest number is in California.
As of June 30, the company owned 84% of the U.S. locations.
It also franchises.
There are 12 locations in Florida, mainly in South Florida and one in Largo near St. Petersburg.
On Aug. 28, Habit Burger announced it would open its newest Florida restaurant and drivethru Sept. 4 in Westlake, near Palm Beach.
KMATHIS@JAXDAILYRECORD.COM
904-356-2466

BY KAREN BRUNE MATHIS | EDITOR AT LARGE

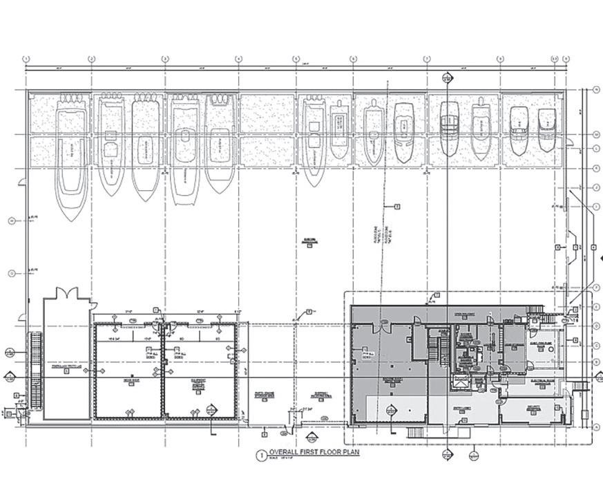
The company’s Fort George Island facility is being renovated into a testing center for outboards, sport boats and WaveRunners.
Yamaha’s Heckscher Drive marina investment is reaching at least $11 million.
The company’s Fort George Island facility is being renovated into a testing center for outboards, sport boats and WaveRunners.
Yamaha Motor Corp. continues increasing its investment, now up to an estimated at least $11 million, at the Fort George Island Marina it bought along the St. Johns River in August 2023.
Yamaha Motor Corp. U.S.A.’s U.S. Marine Business Unit paid $6.1 million on Aug. 14, 2023, for the marina property at 9954 Heckscher Drive to convert it into the Yamaha Offshore Endurance Center.
Yamaha Motor Corp. U.S.A. is based in Cypress, California, and the marine unit is in Kennesaw, Georgia.
The site is on the north bank of the St. Johns River near the Atlantic Ocean. The land is across the river from the Naval Station Mayport.
Yamaha Motor Corp. said in a news release after the purchase that the facility will serve as the testing center.
The release said the project will include a 36,500-squarefoot warehouse and marina building as well as a 7,200-square-foot office and event space.
On Oct. 30, Yamaha requested that the city review a buildingpermit application and plans at an estimated project cost of $4.9 million.
The project comprises interior improvements to the existing facility to include architectural, plumbing, HVAC and electrical upgrades.
The project is for almost 47,000 square feet of existing space.
Duval County Property Appraiser records show that the 2.73-acre property includes an almost 37,000-square-foot warehouse that was built in 2009 and a two-story clubhouse/pro shop of about 7,000 square feet that was added in 2010. Plans show boats on the first level of the Yamaha Offshore Endurance Center along Heckscher Drive.
The plans filed with the city show the first level of the dry stack warehouse will include a fiberglass photo lab; wood shop; equipment, parts and forklift storage; parts/engine storage; a shipping and receiving area; a machine shop and metal shop; and a lobby, reception, security, gear storage, lockers, showers and changing rooms, and more.


The second level will have open space, office space, a conference room and more.
Cleveland, Ohio-based Austin Building and Design Inc., which does business as The Austin Company, is listed as the contractor.
In August 2023, Yamaha Motor Corp. announced that it bought the saltwater test facility.
“The YOEC compliments our test centers in Alabama and Kennesaw while adding greater capacity and capability. It also supports Yamaha Marine global testing plans by expanding opportunities to develop products,” said Ben Speciale,
president of Yamaha U.S. Marine Business Unit, in the release.
“The environment provided by this location will allow us to focus on durability and reliability testing for larger engines, systems and boat hull designs in an offshore environment. It will also include an immersive team center designed to inspire future engineering talent.”
Earlier in 2023, Yamaha said it completed the expansion of its freshwater test facility in Bridgeport, Alabama, adding 5,900 square feet of office space and 8,000 square feet of labs and storage.
Yamaha also finalized the
construction of a new Marine Innovation Center in Kennesaw.
That was a 75,280-squarefoot facility to house the Yamaha Marine Connected Division as well as Yamaha U.S. Marine Development, Yamaha Marine Product Management and Yamaha Marine Technical Marketing.
The release said the Yamaha U.S. Marine Business Unit markets and sells marine outboard motors ranging from 2.5 to 450 horsepower.
It also markets and sells fiberglass, jet-drive sport boats ranging from 19 to 27 feet, and personal watercraft.
Yamaha’s WaterCraft Group, based in Kennesaw, is responsible for the sales, marketing, and distribution of Yamaha boats and WaveRunner watercraft in the U.S.
Yamaha said it supports more than 800 marine and powersports dealers nationwide.
The marina was sold by FGIRK LLC, led by Lone Star Lodge & Marina in Pilot Point, Texas.
Zion Jacksonville LLC has applied for four permits for speculative warehouses at its Eastport Road property in North Jacksonville where InLight Real Estate Partners intends to develop the first phase of the proposed Eastport Logistics Park.
New York-based Zion Jacksonville applied for permits Oct. 18 through Nov. 4 for the structures at 10145 Eastport Road at a total estimated project cost of $37.9 million.
The first four speculative warehouses will comprise 889,086 square feet.
Buildings One and Two are 312,278 square feet each and Buildings Three and Four are 132,265 square feet.
Ponte Vedra Beach-based InLight Real Estate Partners intends to develop the buildings as it buys 137 acres from Zion Jacksonville for development of an industrial park.
The site is east of Eastport Road south of its intersection with Faye Road.
The Conlan Co. of Jacksonville is the contractor. Randall Paulson Architects of Roswell, Georgia, is the architect.
The structures appear to be potential multitenant warehouses on 20.52 acres.
ESC Florida LLC is shown as the private provider firm for plan review for all four as it submits the permits to the city.
InLight Real Estate Partners confirmed June 26 that it intends to buy the property to start construction on four to seven industrial buildings on Parcels 3A and 3B, shown among two phases, totaling 1.84 million square feet of warehouse space.
Zion Jacksonville LLC applied to the city Oct. 24 for permit review to clear 138 acres at an estimated project cost of $20 million where it is laying the groundwork for the project.
Infrastructure contractor Phillips and Jordan Inc., based in Knoxville, Tennessee, is shown as the agent for the project for Parcels 3A and 3B, called the first phase.
The project is for clearing, installation of site utilities, roadways and building pads to construct future buildings.
Zion Jacksonville LLC and civil engineer Prosser Prime AE have asked city utility JEA to deter-

The site plan for Eastport Logistics Park in North Jacksonville indicates seven buildings to be built in two phases. The first phase comprises buildings 1-4. The site is east of Eastport Road south of its intersection with Faye Road.
mine the water flow connections along the proposed “Zion Parcel 3 Spine Road” for future parcel connections.
The road will connect to the property that InLight Real Estate Partners intends to develop.
A site plan shows the road will connect from Eastport Road and will run east to open access to Parcels 3A and 3B to the north and Parcels 4 and 5 to the south.
The city approved civil engineering plans June 13 for a first phase of four buildings.
InLight Real Estate Partners submitted those plans to the city May 3 for four warehouse distribution buildings comprising 884,000 square feet in one phase.
The other phase would comprise three buildings or possibly a large build-to-suit.
In another step toward devel-
opment, the St. Johns River Water Management District issued a permit Oct. 29 to Mark Zion in Yorktown Heights, New York, to authorize a surface water management on 136.81 acres for an industrial warehouse storage facility and infrastructure.
The permit is for mass grading of Zion Parcel 3A/3B.
The Colliers commercial real estate firm is marketing the site as Eastport Logistics Park.
A Colliers brochure says the park will start delivering buildings in the second quarter of 2025, meaning that’s when space will be available for tenant build-out.
Colliers executives Guy Preston, Seda Preston and Jack Heed are the landlord representatives for InLight.
The brochure says building
sizes are available from 131,040 to 310,960 square feet. Flexible suite sizes start at 25,000 square feet.
There also is an option for a build-to-suit up to 687,700 square feet of space on the land along a CSX rail line.
The plans in city review differ slightly from the brochure as the project moves through approvals. Sizes are adjusted based on market demand and tenant needs.
The proposed Zion Parcel 3 Spine Road is designed for future parcel connections.
The spine road also appears to connect at Eastport Road where DHL Supply Chain is developing a logistics center on the west side.
Yorktown Heights, New Yorkbased Zion Jacksonville LLC owns more than 700 acres in



North Jacksonville. It is positioning its land as a master development of potentially more than 8 million square feet of warehouse use.
It has owned at least 900 acres and has been selling and deeding parcels, especially in the past year.
The city issued a site-clearing permit Oct. 31 for developer Hazel Street Capital LLC to clear land for the final building of five at the 175-acre Park 295 Industrial Park in Northwest Jacksonville.
ARCO Design/Build is the contractor for the almost $3.64 million project to clear 7.58 acres at 2555 Ignition Drive for a 101,307-square-foot building.
The city received civil engineering plans July 15 for Miami Beach-based Hazel Street Capital to develop the proposed Building A at the park at southwest Interstate 295 and Duval Road.
JEA issued a service availability determination letter May 7 for the project.
The city issued a concurrency reservation certificate May 31, identifying Hazel Street Capital LLC as the developer and prospective buyer of the land from NP Jacksonville Industrial LLC.
BGE Inc. of Jacksonville is the civil engineer and landscape architect.
ECS Florida LLC of Jacksonville is the environmental consultant and geotechnical engineer.
NorthPoint Development of Kansas City, Missouri, is the developer of Park 295.
Florida Division of Corporation records show Robert Fitzgerald and James Ryan registered Hazel Street Capital LLC with the state April 8, 2024. Fitzgerald said by email July 11 he would discuss the project after buying the land.
The website for Iconic Equities Group – IconicEquitiesGroup.com – says its list of 11 target markets includes Jacksonville.
Newmark Phoenix Realty Group Senior Vice President Richard Antczak said May 31 the 7.5-acre Building A site was under contract for sale to a developer who anticipates a five-bay warehouse for smaller tenants. He did not identify the developer.
Antczak said NorthPoint decided it would sell the site. “We found a buyer pretty quickly,” he said.
Pending due diligence, he expected a 2025 construction time line.
Antczak is representing NorthPoint in the property sale and could represent the buyer in tenant leasing.
Park 295 owners planned five buildings totaling about 1.7 million square feet of industrial space on its 139 developable acres.
Through NP Jacksonville Industrial LLC, NorthPoint paid almost $4.77 million in August 2018 for the park property.
Antczak and Newmark Phoenix Realty Group President and principal John Richardson and Senior Vice President and principal Ladson Montgomery are the agents and the landlord representatives for NorthPoint. The first four buildings, totaling 1.6 million square feet of space, are developed and leased.











CONTINUED FROM PAGE 1
Downtown and its immediate surroundings, including Springfield and the Eastside neighborhood near EverBank Stadium.
“When I was a little girl, Downtown was all that,” she told reporters after the Gateway Jax event.
“We used to come down here and shop and eat and do all the things. So that’s always been my hope and my vision for Downtown is that we see it once again become a place where people want to gather.”
She said the back-to-back celebrations marked progress toward re-establishing the urban core “as the place to live, work and play in Northeast Florida and beyond.”
DEVELOPERS INSPIRE
CONFIDENCE
In many ways, Gateway Jax and the Phoenix district are markedly different.
Gateway, at least in its initial phase, is mostly new construction, while the Phoenix revolves around adaptive reuse of warehouse and industrial buildings.
Gateway, if fully built-out, comprises 28 acres across 24 city blocks. The Phoenix footprint is a fraction of that size, at 8.3 acres.
One shared element is that each is led by an outside developer who had successes elsewhere and has created public-private partnerships in Jacksonville.
Gateway Jax principal Bryan Moll led the Water Street Tampa downtown redevelopment and the Amazon HQ2 National Landing site in the Washington, D.C., area.
Phoenix developer Tony Cho, the CEO of Miami-based Future of Cities, is the visionary behind such revitalization projects as the Wynwood arts, entertainment and dining district in Miami.
In a city where numerous projects in and near Downtown have failed to emerge from the drawing board or have been abandoned during construction, Moll and Cho have instilled confidence in local officials that their projects will be delivered as promised.
City Council member Jimmy Peluso, whose District 7 includes both projects, spoke to that at both events.
“This is how you do it,” he said at the Phoenix event.
“I said it yesterday and I’ll say it today as well. When you have developers who have a plan and a vision and they work with the city, the public sector, this is how you make sure you get projects done,” he said.
“For any developer who wants

to know how you turn renderings into reality, they’re showing you how to do it.”
The Gateway Jax groundbreaking was for the $45 million Block N11 building at 515 N. Pearl St.
The seven-story building will include 205 apartment units and 24,086 square feet of retail, commercial and storage space.
Moll and his team are working to obtain permits for three other buildings on the property, including a minimum 21-story tower that will include at least 508 residential units and about 30,000 square feet of ground floor leasable retail space.
It will be part of Pearl Square, the first phase of the Gateway Jax project.
Fully built-out, the first phase would include 1,250 residential units, about 200,000 square feet of retail space, a curbless festival street with outdoor dining, and new public spaces.
Among the new spaces are Porter House Garden at southeast Julia and Church streets, the site of the groundbreaking.
Moll, who is working to land a fitness center and a grocery store with a pharmacy, said he expected to announce the tenant names in the next four months.
The event attracted U.S. Rep. Aaron Bean, R-Florida, along with Deegan, several Council members and more than 100 people.
As for the Phoenix, Oct. 30 marked the ceremonial opening of Emerald Station, a repurposed 17,000-square-foot warehouse that features offices, a 10,000-square-foot event space, a kitchen, conference rooms and more. Plans for the full district include 10 properties, including conversions of four warehouses and green spaces into office space, artist studios, galleries, retail establishments and restaurants. Affordable housing also will be included.
The site is bordered mostly by Main, 15th and Liberty streets and an east-west rail line.
Attendees at the ribbon-cutting included Deegan; Council members; Ed Randolph, executive director of the Office of Economic Development; and members of community organizations such as Springfield Preservation and Revitalization.
At the Gateway Jax event, at Church and Julia streets, Peluso and other attendees didn’t have to look far to see signs that Downtown revitalization is by no means
close to completion.
Directly south and southeast are a pair of derelict projects, the Ambassador Hotel and Independent Life Building. Both were abandoned by their developer, Augustine Development Group, after being permitted and approved for city incentives.
Today the buildings stand with missing windows, graffitied walls, debris-strewn grounds and boarded-up doorways.
Asked if he was concerned that Gateway Jax could end up in the same state, Peluso dismissed the idea.
Where the Ambassador and Independent Life were led by a developer he described as a “mom-and-pop” operation and faced fiscal headwinds brought on by the pandemic, he said Gateway Jax was a different story thanks to a development team led by Moll and partners JWB Real Estate Capital and DLP Capital LLC.
“They have the money, they have the political capital and they have the direction with Bryan Moll in charge,” he said.
Peluso said the progress in revitalization efforts was a product of mindset change among Jacksonville’s political leadership to invest in Downtown.
“We kept building out (of Downtown),” he said.
“Meanwhile, our peer competitor cities – the Nashvilles, the Orlandos, the Tampas of the world – were investing in their cities. And admittedly, being a consolidated city and county only made things harder. So to be standing here today at a site where we’re about to build a 22-story tower in our city of Jacksonville is an incredible feat.”
The developers of both projects said they would not have been possible without city incentives.
Council approved $98.58 million for Pearl Square, comprising $59.63 million in Recapture Enhanced Value Grants and $38.95 million in completion grants that were recommended for approval by the DIA board in mid-November 2023.
The incentives break down as:
Block N11, the site of the groundbreaking: A $9.06 million REV grant and $4.63 million completion grant.
Block N4: A $14.1 million REV grant and a $6.84 million completion grant for a minimum six-story building to include at least 266 residential units and 19,155 square feet of leasable retail space. The block is bounded by Union, Pearl, Beaver and Clay streets.
Block N5: A $2.57 million




REV grant and a $1.9 million completion grant for redesign and redevelopment of the 800-space former First Baptist Church lighthouse garage bounded by Union, Julia, Beaver and Pearl streets. The garage would include 15,000 square feet of leasable space.
Block N8: A $33.88 million REV grant and a $25.55 million completion grant for the tallest tower in Pearl Square. The block is bounded by Beaver, Pearl, Ashley and Clay streets.
A REV grant is a refund on ad valorem tax revenue generated by a new development.
The Phoenix received approval for $5.5 million in incentives, with a $1.5 million REV grant plus $2 million completion grants for each of two phases of construction.
In addition, Phoenix drew support from the Local Initiatives Support Corp., which provided a $7 million loan for the project.
The developers and city leaders said that collaborations involving Deegan’s office, Council, the Downtown Investment Authority and the city Office of Economic Development were pivotal.
“Those incentives, even though some say we don’t need to provide them, are absolutely critical to make the numbers work in Downtown today,” DIA CEO Lori Boyer said during the Gateway Jax event.
“But let me tell you, it’s about a 10-to-1 return. We do an ROI (return on investment) number where we’re only looking at what the real estate taxes are that are generated to the city, but when you look at the investment that is made in relation to the amount of the incentive, it is a far greater return than that.”
Boyer’s comments reflected questions raised by some members of the Council Special Committee on the Future of Downtown, which former Council President Ron Salem formed in mid-2024 to address progress he described as “at best, debatable.”
Committee members have asked whether incentive programs should be discontinued in certain areas where progress has been made, primarily Brooklyn and the Southbank, and whether the DIA should be given a set sum of incentives and authority to distribute them.
Under the current approach, there is no cap on incentives, which are approved by Council.
Some Council members say that

after years of Council approving incentive requests, they’re planning to examine packages much more closely to ensure the city can afford them.
With Council auditors having projected budget deficits of up to $109 million over the next four years, some members say they are particularly concerned about how completion grants could affect the city’s coffers.
A GROWING LIST OF PROJECTS
Construction is happening in each of Downtown’s seven main districts and in Springfield, where developers and the city are investing hundreds of millions of dollars.
Major projects include the upcoming $1.45 billion renovation of EverBank Stadium; the $254.3 million Four Seasons Hotel Downtown and office building by Jacksonville Jaguars owner Shad
Khan’s Iguana Investments Florida LLC ; the nearly completed, $26 million Lofts at Cathedral apartments in Cathedral Hill; the $38 million first phase of Riverfront Plaza in City Center; the Jacksonville Transportation Authority’s $40.5 million U2C Autonomous Innovation Center in LaVilla; and the $250 million One Riverside mixed-use development in Brooklyn.
Jake Gordon, CEO of Downtown Vision Inc., recently told the JAX Chamber Downtown Council that $465 million of developments had been completed Downtown since 2023, with $2.23 billion under construction.
Deegan made Downtown redevelopment a high priority in her campaign, and she’s pushed it forward during her 16 months in office.
As part of her strategy, she
developed a series of “chopchop” meetings that bring together city department leaders to work through issues hindering progress of key projects.
“I’m not very patient,” she told reporters at the Pearl Square groundbreaking.
“I feel like the city has been very patient as far as waiting for things to happen Downtown.”
She said she and her team also maintained close communication with developers to identify and resolve problems during approvals and permitting.
“In terms of this particular project, we made sure to stay in touch with Bryan and his team,” she said.
“Any little hitch in the giddyup, we tried to move through it quickly. Things can bog down in a number of different places, so our goal has been to move through the bureaucracy as quickly as possible
to try to get these projects done, and I think so far it’s been successful.”
Moll said that contrary to some local opinions, Jacksonville has “a pretty good system in place” for moving Downtown developments forward compared with other cities where he has worked.
“Are there things you can change around the edges? Absolutely,” he said after the groundbreaking.
“I know the special committee is looking at ways we might be able to tweak the way we do things Downtown. I have been in support of looking at ways we can do that. But I wouldn’t support any kind of blowing up of the DIA or anything like that. I think they and the DDRB work really well.”
RANDERSON@ JAXDAILYRECORD.COM (904)356-2466

AMUSEMENT, RECREATIONAL
City of Jacksonville, 301 A
Philip Randolph Blvd., contractor is Birken Construction Inc., 121 Financial Ballpark new foundation, $100,000.
APARTMENTS
La Esperanza Apartments, 3830
University Blvd. S., contractor is Lloyd’s Construction & Consulting LLC, interior renovations, $1.9 million. Artea Apartments, 944
Broadcast Place, contractor is Construction Specialties of North Florida LLC, install two pergolas, two gazebos and outdoor kitchen, $367,305.
Pointe Grand New Berlin, 871 New Berlin Road, contractor is Hillpointe Construction LLC, 7,600 square feet, four new garage buildings, $300,000.
CONDOMINIUMS
Colonial Point Condominiums, 5201 Atlantic Blvd., contractor is LRE Foundation Repair LLC, foundation stabilizations, $88,753.
HOSPITAL, INSTITUTIONAL
HCA Healthcare, 8100 Merrill Road, contractor is Auld & White Constructors LLC, install foundation and underground utilities for emergency department, $200,000.
INDUSTRIAL
One Imeson, 1 Imeson Park Blvd., No. 100, contractor is

Sunbelt Restoration of Florida LLC, 100,000 square feet, repair, $3.9 million.
Edgewood Self Storage, 1550
Edgewood Ave. W., contractor is Summit Construction Management Group LLC, 5,025 square feet, new building, $1.1 million.
Lane Industrial Park LLC, 825 Lane Ave. N., contractor is Trebor Contracting LLC, 5,082 square feet, office area demolition, $75,000.
Southeast Toyota Distributors, 8975 Dave Rawls Blvd., contractor is J.E. Dunn Construction Co., concrete slab for restroom building, $40,000. M.C. Bass Electrical Contractor Inc., 1050 Talleyrand Ave., contractor is Ace Door &
Window Co., storefront window replacements, $35,870.
Bellingham Marine, 1813
Dennis St., contractor is Baker Consulting & Engineering LLC, 3,180 square feet, office demolition, $35,455.
Storage Space Self Storage, 10777 103rd St., contractor is CCS Construction LLC, 121 square feet, new dumpster enclosure, $25,000.
OFFICE, BANK, PROFESSIONAL
AnuVision Technologies Inc., 11417 Saints Road, contractor is Avant Construction Group Inc., 13,879 square feet, renovation, $150,000.
Deutsche Bank, 5201 Gate Parkway, contractor is Gilbane Building Co., 151,000 square feet,
interior renovation, $88,024.
SurvTech Solutions Inc., 6919
Merrill Road, contractor is Lloyd’s Construction & Consulting LLC, 2,264 square feet, interior renovation, $51,455.
RESTAURANTS
Buffalo Wild Wings GO, 660 Commerce Center Drive, No. 140, contractor is Foley Construction LLC, 1,653 square feet, tenant build-out, $375,182.
Pizza Hut, 7939 Normandy Blvd., contractor is Advanced Building Specialties of Mississippi Inc., 3,840 square feet, $175,000.




Starbucks, 13315 Atlantic Blvd., contractor is Lockwood Quality Demolition Inc., 4,954 square feet, building demolition, $20,000.
STORES, MERCANTILE
Down South Industries, 2400 N. Main St., contractor is Marvel Construction Group LLC, 7,452 square feet, new auto showroom and service buildings, $875,000. Walmart, 10991 San Jose Blvd., contractor is GM Northrup Corp., 2,228 square feet, future tenant renovation, $59,620.
Discount Tire, 560 Skymarks Drive, contractor is Plump Engineering Inc., 54 square feet, add employee restroom, $20,000.
UTILITIES
JEA Buckman Water Reclamation Facility, 2221 Buckman St., contractor is Wharton-Smith Inc., 770 square feet, new ferric chloride storage building, $1 million.








FROM STAFF

$5,150,000 156
Buyer:
square feet
Buyer: Steven M. and Kathryn W. Wander
Seller: Jason P. and Paula R. Meninger
$2,150,000
1031 First St. S., No. 305, Jacksonville Beach
Type: Costa Verano Condominium Condo size: 2,435 square feet
Buyer: Margaret and Paul J. Rucinski
Seller: Marilene F. Roulean
Previous sale: $899,500 in 2014
NASSAU
$1,972,000
5109 Sea Chase Drive, No. 4, Fernandina Beach
Type: Sea Chase at Ocean Village Condominium Condo size: 2,617 square feet
Buyer: Dennis K. and Carol C. Sandin
Seller: Mark F. and Gayle C. Wright and the Wright 2002 Revocable Trust
Previous sale: $925,000 in 2016
DUVAL
$1,943,000 5140 Commissioners Drive, Jacksonville
Type: Single-family Lot size: 0.32 acre
House size: 3,459 square feet
Buyer: Ananth S. and Purnima U. Bhogaraju
Seller: Amanda J. and John M. Lowe
NASSAU
$1,700,000
95178 Spring Tide Lane, Fernandina Beach Type: Single-family
Buyer: The Richard M. and Karin J. Kinzalow Trust
Seller: Margaret R. and Norman Wentworth and the Margaret R. Wentworth Living Trust
sale:
Buyer: Sakshika Dhingra and Vivesh Sharma







The credit union’s customers were denied certain access to their accounts in May 2022 and to some features for more than six months.
BY MARK BASCH
CONTRIBUTING WRITER
The U.S. Consumer Financial Protection Bureau said Oct. 31 it found Jacksonville-based VyStar Credit Union violated the Consumer Financial Protection Act in what it described as a “botched rollout of a new online banking system” in May 2022.
The CFPB said in a news release VyStar’s transition “to a new, dysfunctional online banking platform” made it difficult for members to perform banking functions for weeks, with some features unavailable for more than six months.
“VyStar and its senior management bungled the credit union’s rollout of a new banking system and left customers stranded without online access to their accounts,” CFPB Director Rohit Chopra said in the release.
“VyStar’s careless errors inflicted financial harm on their credit union members,” it said.
VyStar said in a news release it “has worked transparently with the CFPB and the National Credit Union Administration” and reached a mutual agreement with the consumer agency to resolve the matter.

The credit union said it took actions including reimbursing or waiving fees and pausing credit reporting.
“To be clear, VyStar proactively and voluntarily undertook this response, without regulatory prompt,” it said.
The penalties imposed by the CFPB included refund of fees for affected customers and a $1.5 million fine, which will be paid to the CFPB’s victims relief fund.
The CFPB said VyStar’s new online platform “crashed upon launch because VyStar brought it online prematurely and failed to establish or follow critical processes to ensure its success.”
VyStar said it has continued to make changes to its platform since the outages in 2022.
“We hope the continuous improvements to our online and mobile banking platforms reassures members that we are

dedicated to being a responsive organization and emerging from this experience better and stronger,” CEO Brian Wolfburg said in VyStar’s release.
“Credit unions must prioritize their members, yet Vystar’s due diligence fell far short of what was required for

completing a successful conversion of the credit union’s mobile and online banking platforms,” National Credit Union Administration Chairman Todd M. Harper said in the CFPB’s news release.
“These management failures resulted in consumer harm over the course of not just weeks but months, as well as safety and soundness problems like strategic, reputational, legal, and compliance risks,” he said.




VyStar, founded in 1952 as the Jax Navy Federal Credit Union, is the 13th largest credit union in the U.S., according to a recent story by U.S. News & World Report. It has about $14.75 billion in assets and 980,000 members, with 70 branches in Florida and 10 in Georgia, the CFPB said.
MBASCH@ JAXDAILYRECORD.COM 904- 356-2466




Green Cove Storage II LLC
Seller: Precision Tek Partners Ltd.
MasterCraft Builder
LLC
Land Planners Development II Inc. ST. JOHNS
$3,034,000 2510 County Road 208, St. Augustine Type: Starbucks
size: 0.98 acre Building size: 2,500 square feet
Buyer: RSE Realty Augustine LLC
Seller: SDP FL St. Augustine 1 LLC


Like their dads, American Rolloffs co-owners Ben Heekin and Syrus Bakkar have been pals since grade school.
BY RIC ANDERSON STAFF WRITER
In following their fathers into business careers, Ben Heekin and Syrus Bakkar are not only carrying on a family tradition but advancing a multigenerational friendship as well.
Heekin and Bakkar, co-owners and co-managers of the newly founded American Rolloffs dumpster service, are the sons of local businessmen David Heekin and Ramzy Bakkar.
The elder Heekin and Bakkar, both 49, formed a lifelong friendship after meeting as classmates at Assumption Catholic School, and their sons developed a brotherly bond while growing up in their closely connected families.
For the fathers, seeing their sons launch a business partnership is a source of joy. Ben Heekin is 23, a year older than Syrus Bakkar.
“It’s fun to watch,” said David Heekin, the founder and owner of Heekin Law and Landmark Title.
“Ramzy and I have been friends since kindergarten, and we share the same value system. When Ben and Syrus were growing up, that same value system was instilled in them – the qualities of hard work and doing the right thing and doing what you say you’re going to do when you say you’re going to do it.”
Like their fathers, Ben Heekin and Syrus Bakkar grew up as Assumption Catholic School classmates who became close friends. Both sons and fathers graduated from Bishop Kenny High School, with the Heekins then attending the University of Florida and Bakkars heading to Florida State University.
“We became really close in middle school and then high school, and even more all the way through college,” Ben Heekin said of his friendship with Syrus Bakkar. “I always knew I wanted to do something in business with Syrus.”
The idea behind American Rolloffs came from Ben Heekin, who was doing work that involved junk


removal in 2023 when he developed an interest in the companies that were providing dumpster drop-offs and removals at worksites. A roll-off provider delivers empty waste containers to job sites and then removes and disposes of their contents.
Ben sought advice about the business from Ramzy Bakkar, the president of the Jacksonvillebased Bakkar Group commercial real estate company. Ramzy offered insights to Ben and introduced him to some of his contacts in local real estate development.
Ramzy also encouraged Syrus to think about entering the rolloff business, and the two initially explored plans to start an operation in Orlando so as to avoid competing with the Heekins in the Jacksonville market.
But shortly after learning that the Bakkars were eyeing Orlando, David Heekin reached out to Ramzy Bakkar with a proposal to partner up in Jacksonville.
“I was honored that he thought
to include us in his business,” the elder Bakkar said.
The fathers also co-own the business, serve as advisers and, along with their wives, capitalized the startup.
The sons treat the business as a down-the-middle partnership, with each learning the other’s roles.
“We’re both trying to learn the entire business, so we’re doing everything together,” Syrus said.
“I think our goals will define themselves more as we grow, but right now we want to make sure that if I’m sick, Ben can do my job, and if Ben is sick I can do his job.”
Starting with one truck and one driver, the two are hoping to expand the business by focusing on providing prompt service and customer-friendly touches like mats that protect concrete surfaces from being damaged by the weighty dumpsters.
“The biggest thing is to pick up and drop off the dumpster when you say you’re going to do it,” Ben Heekin said.
“If you say you’re going to pick it up at 12 Wednesday, be there Wednesday at 12. It goes without saying that pricing is huge, and we’re very competitive pricewise, but our focus is to make sure our service puts us above the competition.”
Promotions are part of the work. Ben Heekin said he and Syrus were networking among local real estate agents, contractors, roofers and others who may need roll-off service.
“We do a lot of going into offices in person, dropping off doughnuts and introducing ourselves, getting our name out there and shaking hands,” he said.
“That means a lot more than just giving someone a cold call and introducing ourselves over the phone.”
Knowing that business partnerships can sometimes wreck friendships, both fathers and sons have discussed the importance of keeping their personal relationships separate from work.
“We’re going to naturally have some disagreements, and we’re going to have to work through things,” David Heeken said.
“But I think we all bring our strengths to the table, both he and I and the boys. When the time comes and a decision has to be made, we’ll lean on whoever has the most experience dealing with that particular issue, and we’ll be able to move forward and not look back. ”
For the fathers, American Rolloffs represents far more than an investment. It’s a chance to stay close to their adult sons and continue helping them develop attributes that have helped the older men succeed in business.
“These are my boys,” Ramzy Bakkar said. “I mean, Ben is my son too. He comes to my house all the time and stays whenever he’d like. So I care a lot about both of them.”
RANDERSON@ JAXDAILYRECORD.COM (904)356-2466




Feed the Backpacks Feed the Need to Read Land Acquisition & New Warehouse 3-year Campaign



Hunger Fightisa 501(c)(3) nonprofitorganizationheadquartered in Jacksonville,Florida thatwas establishedin2012.
By David Cates, Chief Financial Officer Capitol Glass & Shower Doors
At Capitol Glass & Shower Doors we believe in the fundamental right to food and the importance of addressing hunger in our community, especially for our children. As a company that has been in business since 1959, we continue to look for ways to give back to the area that has enabled us to contribute to the growth of the community for the past 65 years. Our partnership with Hunger Fight reflects our commitment to making a positive impact in the lives of children facing food insecurity in north Florida and surrounding areas.
We met with Dean Porter, VP of Operations at Hunger Fight and John Compton, Owner at Compton Fundraising Counsel several months ago and were given the opportunity to be involved with Hunger Fight. Dean’s passion for this cause was apparent from the beginning. We could sense the strong emotional connection to their vision and mission, and knew this was something we wanted to be involved in. As a result of this meeting,
we are excited to announce our new involvement with Hunger Fight, as we share a deep commitment to combating childhood hunger and supporting the well-being of our community’s youth.
At Capitol Glass & Shower Doors we believe that every child deserves access to nutritious meals, particularly during the school day when they need energy and focus to learn and grow. Unfortunately, many children face food insecurity, which can negatively impact their education and overall health. Partnering with Hunger Fight allows us to contribute to a cause that aligns perfectly with our values.
We are particularly drawn to their mission of providing healthy lunches to schoolchildren, as we recognize the profound impact that proper nutrition has on a child’s ability to thrive academically and socially. By participating in this initiative, we hope to help ensure that no child has to worry about where their next meal will come from.
We look forward to exploring various
1 in 4 children don’t know where their next meal will come from.
YOU CAN HELP CHANGE THAT. Make a difference in your community.
Since we opened our doors nearly a decade ago, we’ve served more than over 25 million meals and delivered over 362,000 books to local children.
ways we can support the work of Hunger Fight, including volunteering, donations, and other ways where we can help make a difference. Together, we can have a positive impact in the lives of children in our community.
Through these initiatives, Capitol Glass & Shower Doors aims not only to alleviate hunger but also to foster a culture of giving and community support. We are proud to stand alongside Hunger Fight in the fight against hunger and remain dedicated to exploring new ways to support this vital cause.

Join us - Together, we can make a difference, one meal at a time.
For more information about Hunger Fight and how you can help, visit hungerfight.org.

BY MARK BASCH | CONTRIBUTING WRITER

Intercontinental Exchange doesn’t mention the potential mortgage technology unit HQ in Jacksonville.
Intercontinental Exchange Inc. commemorated the anniversary of its acquisition of Jacksonvillebased mortgage technology company Black Knight Inc. as it reported third-quarter earnings.
However, ICE did not say anything about plans for a headquarters office for its mortgage technology business.
“September marked our oneyear anniversary since we closed on the acquisition of Black Knight,” ICE Chief Executive Jeffrey Sprecher said in an Oct. 31 conference call, according to a company transcript.

“By adding Black Knight’s servicing technology, with its over 100 servicing clients and robust data and analytics to our network, ICE assembled a true lifeof-loan offering that spans from the point of consumer acquisition all the way through to the secondary capital markets. We organized once disparate assets into a unified network that communicates seamlessly from end to end,” he said.
ICE, best known as operator of the New York Stock Exchange, has headquarters offices in New York and Atlanta.
A month ago, Jacksonville’s Office of Economic Development released a document saying a code-named company is seeking $21 million in incentives to establish a national headquarters for its mortgage technology business.
While the company was not named, ICE fits the description, but company officials have not commented on it.
ICE said in a February quarterly conference call that it was planning to upgrade the former Black Knight headquarters building at 601 Riverside Ave. but it did not give details.
The $11.9 billion acquisition of Black Knight doubled the size of ICE’s mortgage technology business.
Black Knight dominated the market for processing home loans in the U.S. before the merger and ICE was a leader in software for originating mortgage loans.
“Essentially, we’ve moved ICE from selling software to offering a growing network for the management of the home mortgage life cycle,” Sprecher said.
ICE reported revenue in its mortgage technology business rose 54% in the third quarter to $509 million, with Black Knight included for less than a month in last year’s third quarter.
Adjusted operating income from mortgage technology rose

38% to $181 million.
ICE’s total revenue in the quarter rose 17% to $2.35 billion, with adjusted earnings rising by 8.5% to $894 million, or $1.55 per share.
Fidelity National Information Services Inc., or FIS, reported higher third-quarter earnings and raised its earnings forecast for the full year.
The Jacksonville-based banking technology company reported adjusted earnings rose 37% to $765 million, or $1.40 a share, with revenue rising 4% to $2.57 billion.
“FIS delivered another quarter of strong results with broadbased outperformance against our financial targets, sales momentum across the enterprise and success securing a number of strategic partnerships,” CEO Stephanie Ferris said in FIS’ Nov. 4 conference call with analysts.
FIS provides services to major banks around the world but Ferris highlighted an expanded relationship with Jacksonville-based EverBank as part of its success in securing additional business with its customers.
She said FIS added its digital banking platform to the services it provides for Everbank.
That relationship with EverBank “is a leading example of our cross-sell flywheel at work as the bank is both a banking solutions and capital markets customer, opting for new solutions across both segments this past quarter,” she said.
With the growth in earnings, FIS raised its earnings forecast for the full year from an adjusted $5.03 to $5.11 per share to $5.15 to $5.20.
Black Knight was once a part of FIS but was spun out of FIS as a separate company in 2008.
In August, Dun & Bradstreet Holdings Inc. confirmed reports that it had received inquiries from
potential acquirers of the Jacksonville-based business data firm.
As it reported earnings Oct. 31, CEO Anthony Jabbour said talks continue but he gave no further details.

“While I will not comment on the status of any particular engagement, the team is spending a significant amount of time conducting in-person meetings, holding additional functional due diligence sessions, providing detailed responses to the interested parties and will continue to be responsive and thoughtful in all of our interactions on behalf of our shareholders,” Jabbour said in the company’s conference call.
Dun & Bradstreet, which traces its history to 1841, was acquired in 2019 by an investment group led by Fidelity National Financial Chairman Bill Foley.
FIS was part of Jacksonvillebased Fidelity National Financial Inc. but was spun off by the title insurance company in 2006. Jabbour was previously an executive at FIS and was CEO of Black Knight.
After taking steps to turn around operations, the investors took Dun & Bradstreet public again with an initial public offering in 2020.
Dun & Bradstreet then moved its headquarters to Jacksonville in 2021.
The company said third-quarter revenue rose 3.2% (adjusted for foreign exchange rates) to $609.1 million and earnings were basically unchanged from last year at $116 million, or 27 cents a share.
Landstar System Inc. reported Oct. 29 that third-quarter revenue fell 6% to $1.214 billion, with earnings for the Jacksonvillebased trucking company dropping by 30 cents a share to $1.41.
“The freight environment in the 2024 third quarter con-
tinued to be characterized by soft demand and readily available truck capacity,” CEO Frank Lonegro said in a conference call.
He said inflation and soft industrial output affected the amount of freight traffic, leaving capacity available and creating market conditions favoring shippers.
“With that backdrop, Landstar performed admirably in the 2024 third quarter, delivering top and bottom line results within our guidance range,” Lonegro said.
“As we move towards the end of the 2024 fiscal year, we continue to be laser focused on accelerating our business model and executing on our strategic initiatives. We want to be in the best position possible to leverage the freight environment when it turns our way,” he said.
Regency
Regency Centers Corp. reported a slight increase in thirdquarter earnings and raised its forecasts for the full year, with the Jacksonville-based shopping center developer saying its properties are performing well.
“This is evident in our strong rent growth, our sizable leasing pipeline, our same-property leased occupancy rate, which we’ve now pushed above 96%, another record high for shop occupancy and accelerating same-property NOI (net operating income) growth,” CEO Lisa Palmer said in an Oct. 29 conference call.
“As a result, we’re raising current year guidance and now expect same property NOI growth of 3.5% and core operating earnings per share growth of nearly 5%,” she said.
Regency had been projecting NOI growth of 2.25% to 2.75%.
The company reported core operating earnings of $1.03 a share in the third quarter, 6 cents higher than last year.
Regency operates 483 properties across the country, mainly grocery-anchored shopping centers.
“As our grocery partners and other tenants look to further expand their footprints, highquality space in top trade areas is hard to come by, creating an opportunity for us to leverage our platform,” Palmer said.
“As we further grow our ground-up development pipeline, it will increasingly be a significant and unequaled differentiator for Regency across the peer group, amplifying total NOI growth beyond the impacts of our same property portfolio,” she said.
Dream Finders Homes Inc. reported third-quarter revenue rose 12% to $1.007 billion.
However, the Jacksonville-
based homebuilder said earnings fell 7% to $70.7 million, or 70 cents a share.
Dream Finders said home closings rose 5% in the quarter to 1,889 and the average sales price of homes closed rose 3% to $518,553, but its homebuilding gross margin fell from 20.6% in last year’s third quarter to 19.2%.
“While we experienced some margin erosion in Q3, we are more focused on maintaining our growth expectations,”
CEO Patrick Zalupski said in an Oct. 31 news release.

“We are focused on closing out another successful year in 2024 while also hard at work building long-term value for 2025 and beyond. We reiterate our guidance of 8,250 closings for the full year 2024,” he said.
Dream Finders closed on 5,575 homes in the first nine months of 2024, up from 5,161 last year.
Fortegra Group’s third-quarter revenue rose 18% to $481 million, with adjusted earnings jumping 33% to $40 million, parent company Tiptree Inc. reported Oct. 30. Jacksonville-based Fortegra is a specialty insurance company and the largest business of Connecticut-based investment company Tiptree.
Tiptree said as of Sept. 30, it owned about 79.3% of Fortegra, with investment firm Warburg Pincus owning 17.7% and management and directors of Fortegra owning the remaining 3%.
B. Riley Securities analyst Mike Crawford downgraded his rating on Jacksonville-based space technology company Redwire following a big run-up in the stock this year.
“We are increasing our PT (price target) from $8.00 to $9.50 but downgrading Redwire Corporation from Buy to Neutral given limited near-term upside to our raised PT, as shares have surged +78% since we upgraded the stock from Neutral to Buy on 8/8, bringing YTD performance for Redwire shares to +210%,” Crawford said in an Oct. 29 research note.
“While we are taking a step back on the stock heading into 3Q earnings, we note that we are prepared to revisit our PT and rating depending on how well Redwire continues to execute and to what extent the company successfully converts bids and pipeline into new orders and backlog,” he said.
Redwire was trading at $9.19 at the time of Crawford’s report.
OF
COMPREHENSIVE
OR THE CITY FOR CERTAIN REAL PROPERTY LOCATED WITHIN THE CITY OF JACKSONVILLE ARE IDENTIFIED BY THE ORDINANCES BELOW.
Pursuant to the provisions of Sections 163.3184 and 163.3187, Florida Statutes and Section 650.406, City of Jacksonville Ordinance Code , public hearings on the proposed amendments have been scheduled as follows:
By Jacksonville Planning Commission Acting as Local Planning Agency (LPA)
Thursday, November 21, 2024 1 p.m.
Ed Ball Building 214 N Hogan St., 1st Floor Room 1002
By City Council * Tuesday, November 26, 2024 5 p.m.
By Land Use and Zoning (LUZ) Committee *
Tuesday, December 3, 2024 5 p.m.
By City Council *
Tuesday, December 10, 2024 5 p.m.
* City Council and LUZ Committee Public Hearings: Council Chambers, 1st floor 117 West Duval Street
If a person decides to appeal any decision made by City Council with respect to the adoption of the proposed amendments, he/ she will need a record of the proceedings and should ensure that a verbatim record of the proceedings is made, which record includes the testimony and evidence upon which the appeal is to be based in order to qualify to participate in administrative proceedings regarding the DEO ’s determination of compliance or non-compliance of this amendment to the 2045 Comprehensive Plan , as adopted, under Chapter 163, Part II, Florida Statutes, that person shall have submitted oral or written objections during local government review and adoption proceedings.
Persons needing special accommodations to attend any hearing noticed shall contact the Legislative Services Division, (904) 630-1404 not less than 48 hours before a hearing or meeting in order to make arrangements.

Attest: Merriane G. Lahmeur Chief of Legislative Services
The Honorable Randy White Jacksonville City Council President
AN ORDINANCE ADOPTING A SMALL -SCALE AMENDMENT TO THE FUTURE LAND USE MAP SERIES OF THE 2045 COMPREHENSIVE PLAN BY CHANGING THE FUTURE LAND USE DESIGNATION FROM COMMUNITY/GENERAL COMMERCIAL (CGC) TO LIGHT INDUSTRIAL (LI) ON APPROXIMATELY 1.0± ACRE LOCATED IN COUNCIL DISTRICT 9 AT 1077 ODESSA DRIVE N., BETWEEN 1ST STREET W. AND COMMONWEALTH AVENUE (R.E. NO. 048982-0000), OW NED BY PC REALTY-JAX, LLC, AS MORE PARTICULARLY DESCRIBED HEREIN, PURSUANT TO APPLICATION NUMBER L-5968-24C; PROVIDING A DISCLAIMER THAT THE AMENDMENT GRANTED HEREIN SHALL NOT BE CONSTRUED AS AN EXEMPTION FROM ANY OTHER APPLICABLE LAWS; PROVIDING AN EFFECTIVE DATE.

AN ORDINANCE ADOPTING A SMALL
AN ORDINANCE ADOPTING A SMALL-SCALE AMENDMENT TO THE FUTURE LAND USE MAP SERIES OF THE 2045 COMPREHENSIVE PLAN BY CHANGING THE FUTURE LAND USE DESIGNATION FROM LIGHT INDUSTRIAL (LI) TO MEDIUM DENSITY RESIDENTIAL (MDR) ON APPROXIMATELY 4.62± ACRES LOCATED IN COUNCIL DISTRICT 8 AT 0 OWENS ROAD, BETWEEN FAIR PINE LANE AND RANCH ROAD (R.E. NO (S). 019336-0100), OWNED BY USA EXPRESS, INC., AS MORE PARTICULARLY DESCRIBED HEREIN, PURSUANT TO APPLICATION NUMBER L -5975-24C; PROVIDING A DISCLAIMER THAT THE AMENDMENT GRANTED HEREIN SHALL NOT BE CONSTRUED AS AN EXEMPTION FROM ANY OTHER APPLICABLE LAWS; PROVIDING AN EFFECTIVE DATE.
AN ORDINANCE ADOPTING A SMALL-SCALE AMENDMENT TO THE FUTURE LAND USE MAP SERIES OF THE 2045 COMPREHENSIVE PLAN BY CHANGING THE FUTURE LAND USE DESIGNATION FROM LOW DENSITY RESIDENTIAL (LDR) AND RESIDENTIALPROFESSIONAL-INSTITUTIONAL (RPI) TO MEDIUM DENSITY RESIDENTIAL (MDR) ON APPROXIMATELY 7.38± ACRES LOCATED IN COUNCIL DISTRICT 12 AT 5446 OLD MIDDLEBURG ROAD SOUTH, 5438 OLD MIDDLEBURG ROAD SOUTH, 5440 OLD MIDDLEBURG ROAD SOUTH, AND 8944 103RD STREET, SOUTH OF 103RD STREET AND WEST OF OLD MIDDLEBURG ROAD SOUTH (R.E. NO(S). 0152210010, 015224-0010, 015225-0010, AND 015225-0200), OWNED BY KELLY M. JAMES AND GLORIA JAMES AND DAWN MOTES AND KELLY M. JAMES AS COPERSONAL REPRESENTATIVES OF THE ESTATE OF REGINA JOAN DARLING JAMES, AS MORE PARTICULARLY DESCRIBED HEREIN, PURSUANT TO APPLICATION NUMBER L-5979-24C; PROVIDING A DISCLAIMER THAT THE AMENDMENT GRANTED HEREIN SHALL NOT BE CONSTRUED AS AN EXEMPTION FROM ANY OTHER APPLICABLE LAWS; PROVIDING AN EFFECTIVE DATE.
-SCALE AMENDMENT TO THE FUTURE LAND USE MAP SERIES OF THE 2045 COMPREHENSIVE PLAN BY CHANGING THE FUTURE LAND USE DESIGNATION FROM LOW DENSIT Y RESIDENTIAL (LDR) TO LIGHT INDUTRIAL (LI) ON APPROXIMATELY 10.6± ACRES LOCATED IN COUNCIL DISTRICT 11 AT 0, 6810, 6820 GREENLAND RIDGE LANE NORTH AND 0 GREENLAND ROAD, EAST OF THE INTERSTATE-295 AND PHILIPS HIGHW AY INTERCHANGE (A PORTION OF R.E. NO(S). 167859-0500 AND 167828-1010 AND R.E. NO(S). 167829 -0030, 167829-0000, 167829-0046, 167829-0040), OWNED BY SHARON BURNETTE, LINDA GILYARD, CAROLYN GILYARD, SOLOMAN ODOM, BOBBIE ANN ODOM AND TORR GILYARD, AS MORE PARTICULARLY DESCRIBED HEREIN, PURSUANT TO APPLICATION NUMBER L5966-24C; PROVIDING A DISCLAIMER THAT THE AMENDMENT GRANTED HEREIN SHALL NOT BE CONSTRUED AS AN EXEMPTION FROM ANY OTHER APPLICABLE LAWS; PROVIDING AN EFFECTIVE DATE.
Persons interested in commenting on these proposed amendments to the 2045 Comprehensive Plan may appear and shall be given an opportunity to speak at the public hearings. The proposed land use amendments, if adopted, will change the permitted uses of these properties and may result in a rezoning of the affected properties. All interested persons are invited and encouraged to review the referenced legislation in this advertisement that indicates the proposed amendments and to appear at the public hearings and be heard regarding the adoption of the proposed amendments. Written comments may be mailed or delivered to the City Council Legislative Services Division, 4 th Floor, City Hall at St. James Building, 117 West Duval Street, Jacksonville, Florida 32202 until the day of the public hearing. Copies of the amendments are available for public inspection at the Council Legislative Services Division and at the Jacksonville Planning and Development Department, 214 North Hogan Street, Edward Ball Building, Suite 300, Jacksonville, Florida 32202. For additional information call (904) 255 -7888. Please visit www.coj.net for meeting information and more information regarding COVID -19 procedures/ precautions for accessing public buildings.
FROM STAFF
$17,875,000
Buyer: Martha F. and Thompson S. Baker II
J. Thomas and Jean M. Dodson

ST. JOHNS
$7,500,000
701 Ponte Vedra Blvd., Ponte Vedra Beach
Type: Single-family Lot size: 0.47 acre
House size: 5,319 square feet
Buyer: Wayne A. and Jane E. Novak
Seller: Stetson University Inc.
Previous sale: $1,475,000 in 1997
ST. JOHNS
$7,100,000
301 S. Roscoe Blvd. Ponte Vedra Beach
Type: Single-family Lot size: 2 acres
House size: 5,734 square feet
Buyer: Matthew S. and Kandice E. Nawrocki
Seller: Hart Capital Group LLC
Previous sale: $1,150,000 in 2011 DUVAL
$6,500,000 2359 Seminole Road, Atlantic Beach
Type: Single-family Lot size: 0.96 acre House size: 2,556 square feet

Lalli
Seller: Steven and Katherine Gold
Previous sale: $2,150,000 in 2012
Buyer: Puka Grandy Family Trust and the Kristin Revocable Trust
Seller: Samuel S. and Judith A. Jacobson, Karen J. Arlington, the Judith A. Jacobson Living Trust and the Samuel S.





FROM STAFF
Here are the top 10 commercial real estate sales in Northeast Florida, comprising Baker, Clay, Duval, Nassau and St. Johns counties. The sales were recorded July 1-Sept. 30, 2024.
DUVAL
$62,850,000 1511 Zoo Parkway, Jacksonville
Type: Primark Distribution Center
Parcel size: 33.1
of units: 263
Buyer: Stonegate IV MF LLC Seller: Broadstone River House LLC

$33,800,000 7635 Timberlin Park Blvd., Jacksonville
Type: Avenue at Timberlin Park Apartments
Parcel size: 26.01 acres No. of units: 200
Buyer: BR

malpractice
When things go wrong, we’ve got your back.

State Supreme Court justices and 5th District appellate judges were retained in office.
Shayla Lee defeated Matthew Lufrano on Nov. 5 in the race for Duval County Judge in Group 9. Out of 390,327 votes, Lee received 57.18% and Lufrano received 42.82%, according to unofficial results from the Duval County Supervisor of Elections website with all 160 precincts reporting at 10:30 a.m.
Nov. 6.

Born in Jacksonville, Lee graduated from Stanton College Preparatory School and Clark Atlanta University. She received a J.D. from Florida Coastal School of Law in 2015. Lee began her career in child dependency law, working for the Guardian ad Litem legal team and later Children’s Legal Services. She then joined the Office of the Public Defender in the 4th Judicial Circuit, where she defended juveniles in delinquency court.
Lee later worked in private practice but returned to the public defender’s office to defend felony cases in circuit court.
OTHER JUDICIAL RESULTS
In the 4th Judicial Circuit Court, Ashley Wells Cox defeated Nancy Cleaveland in the Aug. 20 primary election.
Fourteen 4th Circuit judges were elected unopposed in the primary election: Judges Steven Whittington, Jonathan Sacks, Thomas Beverly, London Kite, Katie Dearing, Maureen Horkan, Kevin Blazs, Robert Dees, Gary Wilkinson, Eric Roberson, Mark Borello, John Guy, W. Collins Cooper and James Kallaher.
State Supreme Court justices and judges in Florida’s appellate courts appeared on the Nov. 5 ballot for a vote whether to retain them on the bench.
Both State Supreme Court jurists on the ballot, Justice Renatha Francis and Justice Meredith Sasso, are retained for new six-year terms in office.
All of the 5th District Court of Appeal Judges on the ballot: Joe Boatwright, Eric Eisnaugle, Harvey Jay, Paige Kilbane, John MacIver, Jordan Pratt and Adrian Soud also are retained for new six-year terms.
The Florida Bar announced Nov. 1 that the state Supreme Court approved an amendment to Bar rules that will grant lawyers continuing legal education credit for providing pro bono services.
The change is effective Dec. 30.
The court amended Rule 6-10.3 to allow lawyers to earn one hour of general CLE credit for every hour of pro bono service up to five credit hours for each three-year reporting cycle.
The court issued its opinion in response to a petition submitted by The Florida Bar.
The court modified the Bar’s request for four hours of pro bono service in exchange for one CLE credit to allow one credit for each hour of pro bono service.
Florida lawyers provided more than 1.7 million hours of pro bono service to people in need and contributed more than $11 million to legal aid organizations, according to the latest figures from The Florida Bar.

Sam Beltrami joined Gunster’s Jacksonville office as an associate business litigation attorney.









A graduate of the University of Georgia, he received a JD from Florida State University College of Law. While in law school, Beltrami was a staff editor for the Florida State University Law Review as well as the Florida State University Business Review and was a teaching assistant for legal writing and research.






Lawyers and legal educators should and must push themselves to consider improvements.
In America’s constitutional democracy, lawyers are both preservationists and disruptors. To be, or not to be?
That is not the question for law schools.
They too should preserve and disrupt. The academic custodians of the past who transmit what is known and properly done also can be innovators. They are not and should not be “enemies of the future.”
That phrase was used by Senior Tutor Professor Nicholas Cole during a dinner celebrating the 400th anniversary of Pembroke College amid the spires of Oxford University, an iconic center of scholarship and teaching now in its ninth century as a hotbed of collaborative cross disciplinary creativity.
Cole spoke after a brilliant lecture by my American Rhodes Scholar classmate Walter Isaacson about the curiosity, imagination and drive of history’s greatest innovators.
As Thomas Jefferson wrote in 1816:
“I am not an advocate for frequent changes in laws and constitutions, but laws and insti-
SEE ALLARD, PAGE 23

Trying to be someone or something different than yourself is not healthy.
As president of the Jacksonville Bar Association and in other equally nerdy positions, I get asked to present or speak at numerous events.
I am humbled by those seeking advice and have participated in panels including professionalism, trial preparation, generating
business, leadership, work-life balance and mental health and wellness.
On the latter, during my year as president of the Young Lawyers Division of The Florida Bar, we emphasized reducing the stigma on lawyers’ focusing on their mental health.
Also, my wife, Whitney, is an accomplished expert in the field of mental health and wellness, so I have learned a thing or two through osmosis.
As people ask questions on
all the topics upon which I have been asked to opine, I find myself giving the same answer –be yourself, be authentic.
Authenticity refers to the quality of being genuine, real and true to oneself. As attorneys continuing to navigate a complex landscape of client and other expectations, embracing authenticity can lead to deeper connections with clients and peers, enhanced trust within the legal community, and overall fulfillment.

FROM THE BENCH 2025 brings end of ‘at issue rule’
By the time the last verse of “Auld Lang Syne “ has been sung, the newly revised Rules of Civil Procedure will have taken effect. Among all the changes, the elimination of the “at issue rule” will have profound implications for our bench and Bar. PAGE 22
PRO BONO
A look at what has been given
Using an average attorney rate of $300 per hour, the value of in-kind legal services provided by private attorneys through Jacksonville Area Legal Aid in 2023 was $1,407,555. PAGE 20

COMMENTARY
Expert tips for expert testimony
As an arbitrator, I have found that certain strategies can significantly enhance the effectiveness of expert testimony. PAGE 21
In an age dominated by constant connectivity, social media and practicing law by text, the concept of authenticity has never been more critical, in my opinion.
Trying to be someone or something different than yourself is not healthy. Authentic people tend to be happier. On a personal level, authenticity involves self-awareness and the courage to express one’s true

Attorneys performed 4,340 hours in pro bono services at JALA so far in 2024.
With each passing month, let alone year, the need for pro bono legal services continues to grow. Many of you have responded to this need by volunteering for clinics and various community outreach events, as well as accepting individual cases for representation.
To put this into perspective, let’s look at pro bono by the numbers. Using an average
attorney rate of $300 per hour, the value of in-kind legal services provided by private attorneys through Jacksonville Area Legal Aid in 2023 was $1,407,555.
However, in the first three quarters of this year alone, the value of in-kind legal services provided by private attorneys through JALA is $1,301,970.00.
With two months left in 2024, we will certainly exceed the 2023 figures thanks to your continued commitment to pro bono.
When broken down to the number of hours expended on pro bono efforts through JALA, attorneys performed 4,340 hours in pro bono services in the first nine months of 2024. These values include pro bono attorney time on individual cases and non-case related activities such as AskA-Lawyer, group informational clinics, teaching webinars and serving as expert resources for other pro bono attorneys.
Already in 2024, 400 individual cases have been opened and placed with pro bono attorneys, a phenomenal 100% increase compared with the previous year.
Based on the number of people in client households, the 400 placed cases impacted more than
800 people. Your commitment to pro bono has a life-changing impact not only on the clients but also on members of their families.
We would not be able to accomplish this great work this year without the support of about 240 actively engaged pro bono attorneys and about 50 non-attorney volunteers (students, paralegals and interns).
Although these numbers are impressive, they don’t adequately capture the impact of the work. The real impact is captured in each client’s story, whether it is the person facing an eviction or the tenant with habitability issues, or the grandmother seeking custody of her grandchildren so she can enroll them in school and insurance, or the veteran seeking assistance with their divorce, or even the elderly client who needed a last will and testament and advanced directives.
If not for pro bono advocates, these clients would likely not be able to afford legal counsel, which could have a devastating impact on their lives and those of their families for generations.
There are many opportunities for you to be involved with pro
bono and yes, you do have the time.
The time commitment for many of our current cases awaiting placement is minimal.
For example, we have several requests for simple wills and advance directives. These cases would likely take you less than five hours.
More importantly, your pro bono time would positively impact generations.
There are many non-case related opportunities such as Ask-A-Lawyer and group informational clinics. Even if you are only available to assist once a year at one of these clinics, your 2-hour commitment provides an invaluable service to those in need.
I hope this article inspires you to continue your pro bono efforts or inspires you to get involved. JALA makes it easy for you to get involved.
We have a pro bono website where you can view cases and sign up for clinics and other outreach events. Visit jaxlegalaid.org/pro-bono to learn more.

Professional growth and community service align with the aspirations of many in our field.
The Wm. Reece Smith Jr. Leadership Academy stands as a beacon for attorneys who aspire to ascend to the pinnacle of leadership within the legal community. Its mission resonates with the core values of the profession,
emphasizing the enhancement of lawyering skills and the nurturing of future leaders.
The academy’s focus on professional growth and community service align with the aspirations of many in the field, offering an opportunity to refine leadership abilities and forge enduring connections.
The curriculum is meticulously designed to address the multifaceted nature of leadership within the legal context.
It offers a comprehensive approach to understanding and navigating the intricate challenges that leaders face, while remaining anchored to one’s fundamental principles.
The endorsement of the program by seasoned legal professionals adds to its credibility, providing prospective fellows with a glimpse into the transformative potential of the academy’s offerings.
The incorporation of tools like DiSC into the academy’s program underscores its commitment to personal and
Executive Director Craig Shoup
professional development. By providing insight into one’s personality and the dynamics of those around them, the academy empowers attorneys to enhance their interpersonal skills and optimize their professional interactions.
Such tools are invaluable in the practice of law, where understanding diverse perspectives and fostering connections can significantly influence outcomes.
The academy’s philosophy that leadership transcends the mere exertion of control is a testament to its progressive approach.
It instills the principle that true leadership lies in the empowerment of others, fostering an inclusive and collaborative environment.
This ethos is critical in the legal sphere, where the ability to inspire and unite can lead to more effective advocacy and a more profound societal impact.
Equipping fellows with a robust skill set, the academy
Alex Hill
Driver, McAfee, Hawthorne & Diebenow
Tim Miller
Harris Guidi Rosner
James Poindexter
Delegal & Poindexter
For all meetings, register at jaxbar.org
NOV. 12
Elder Law
Noon, Jacksonville Bar Association, 1 Independent Drive, Suite 120, with live stream on Zoom
NOV. 13
Appellate Law Noon, Zoom
For events, register at jaxbar.org
NOV. 20
A Full House for History: YLS Charity Poker Night Doors open at 6 p.m., bestbet Jacksonville, 201 Monument Road.

NOV. 21
JBA Member Luncheon Noon, DoubleTree by Hilton Hotel Jacksonville Riverfront, 1201 Riverplace Blvd. Guest speaker, The Florida Bar President Roland SanchezMedina Jr.
UPCOMING CLE
NOV. 7
ensures that its graduates are prepared to tackle leadership roles with confidence.
The knowledge and support system provided by the academy serve as a foundation upon which fellows can build a career marked by influence and distinction.
The Wm. Reece Smith Jr. Leadership Academy is not just an educational institution; it is a transformative journey that molds attorneys into leaders who are not only adept at their craft but also committed to the betterment of the legal profession and society at large.
It is a call to those who seek not just to excel in their careers but to leave an indelible mark on the world through the power of enlightened leadership.
Tamla Lloyd is founder and managing attorney at Lloyd Law Firm and a Class XII fellow of The Wm. Reece Smith Jr. Leadership Academy, a professional development program of The Florida Bar.
Shannon Schott Plata Schott
Kathryn Stanfill The Hinson Law Firm
David C. Thompson Farah & Farah
John Weedon
Hinshaw & Culbertson, LLP
Ethical Recovery of Digital Evidence: Solo & Small Firm Committee CLE Noon, live stream on Zoom
Need CLE hours?
Check out the JBA website
The Jacksonville Bar Association has a CLE video library where you can purchase online CLE presentations and get those CLE credits you need in the convenience of your home or office.
You may choose from as few as 0.5 CLER hours to as many as 8.0 CLER hours, including various certification hours.
Just select the videos that correspond with the CLE credits you need, purchase them, watch online and submit for credit.
Topics include family law, technology law, transactional law and professionalism for new practitioners. Visit jaxbar.org/store
Editor-in-chief
Iana Benjamin U.S. Department of Navy
Associate Editor
Juliana Favale
Marks Gray
Editor Ashlea Edwards Akerman

Leveraging subjectspecialized testimony can be crucial in arbitration.
Experts play an essential role in arbitration, helping arbitrators make well-informed decisions, especially on complex or technical issues.
When utilized effectively, expert testimony can be a gamechanger in clarifying issues and bolstering the case. However, there are risks, and if not managed carefully, using an expert can detract from, rather than strengthen, the case.
As an arbitrator, I have found that certain strategies can significantly enhance the effectiveness of expert testimony. Here are three best practices and three common mistakes to consider when using expert testimony in arbitration.
It is common practice to present fact witnesses first, saving expert testimony for the latter stages. However, when experts are explaining technical issues, introducing them earlier in the process can help frame the issues more clearly.
In a complex case involving intricate processes, an expert witness may provide visual aids

that are invaluable in explaining the technical aspects of the dispute. Presenting expert analysis early can provide the arbitrator with a clearer context, enabling a better understanding of the case as it unfolds.
on demonstrative aids
Visual aids can be powerful tools in arbitration, especially when dealing with technical or complex matters. Work closely with your expert to create compelling demonstrative aids that will help clarify your points.
These visuals can significantly improve how the arbitrator comprehends and retains information, giving you a better chance
to make a lasting impression. When done correctly, this can set your expert testimony apart and give the arbitrator a solid framework on which to base their decision.
One of the most damaging situations in arbitration is when an expert changes their opinion under cross-examination. This can severely undermine your case.
To avoid this, make sure your expert is well-prepared, not only with their primary testimony but also for the possibility of tough questioning. Conducting practice sessions where you simulate difficult cross-examination
scenarios can help ensure your expert is confident and consistent in their opinions.
A well-prepared expert can withstand challenging questions without faltering, which will enhance their credibility and strengthen your case.
Lawyers often underestimate the time required for opening statements and the testimony of fact witnesses, leaving little time for expert testimony.
This approach often leads to rushed expert presentations, which can undermine their value to the process. Avoid the trap of
needs not always limited to

We each have an opportunity to inspire one another and the next generation of attorneys.
Our primary role as an attorney is to be a zealous legal advocate and adviser. This is an age-old expectation.
However, our profession demands more of us as members of a community (not just the legal community). A part of taking care of our clients’ legal needs is to understand their other needs; to be a part of something greater than self. I have had the privilege to see these qualities in so many of my colleagues. It is inspiring. For each one of us that steps up beyond requirement, it inspires 10 more to do so.
Whether through work with Jacksonville Area Legal Aid, volunteering for community service projects or taking on the specific pro bono needs of a client, we each have an opportunity to inspire one another and the next generation of attorneys. Whatever your cause, which there are many, we are all called to serve.
Of course, most endeavors require fundraising. The uncomfortable feeling of asking others for their time or financial resources is a necessity.
We have a special platform as attorneys and legal professionals. When we speak, people often listen merely because of the letters after our names or how much we charge for our time.
My challenge to you is simple. Make a difference with the gifts you have been given. It is easy for us to get strapped down into our daily lives and focus on business. It is easy for us to say, “someone else will do it.”
In reality, if we do not, we are ignoring our larger purpose as a profession.
I have been fortunate to serve through the Tristyn Bailey Foundation, among others. The foundation seeks to encourage youth through four pillars of need: Vic-
having to rush through expert testimony due to time constraints.
You want your expert to be thorough and deliberate, not hurried and incomplete.
Trying to hide unfavorable facts or damaging records from your expert can backfire, particularly when your expert is cross-examined and caught off-guard.
This can severely damage their credibility and weaken your case. Ensure your expert has all the information necessary to present an honest opinion. Full transparency avoids surprises and allows your expert to be well-prepared to address difficult questions head-on.
Do not ignore the opposing expert
It is natural to focus on your own expert, but ignoring the opposing expert is a big mistake. Discounting their analysis and findings may give the impression that you have no rebuttal, which could hurt your case.
Instead, prepare thoroughly to counter the opposing expert’s testimony. It will help the arbitrator make an informed decision and enhance your chances of a favorable outcome.
Leveraging expert testimony can be crucial in arbitration, but it requires more than just choosing the right person. With these strategies in place, you can significantly enhance your case and improve your chances of a favorable outcome in arbitration.
Jennifer Grippa is an arbitrator and mediator with Miles Mediation & Arbitration and an arbitrator with the American Arbitration Association.
tim advocacy; education on the dangers of social media to youth and their parents; self-defense for young women; and character development of children. Through my service with the foundation and the family of Tristyn Bailey, I’ve seen lives and laws changed. Communities that were once separated by drastic economic and geographic differences have come together with a common goal of protecting and improving the lives of children, in a way not seen before in Northeast Florida.
By the time this article is published, the Tristyn Bailey Foundation will have completed its second annual golf tournament and family fun day. In partnership with many of you reading this, and many other businesses in the community, it is designed to bring families together to engage with one another to see
what the idea of community really means.
On Feb. 1, 2025, the foundation will host its second annual gala to bring more awareness and funds to these causes. If you are not already involved in advocacy outside of your regular practice, I encourage you to check out the foundation. You can find more information about Tristyn and the foundation at www. TBStrong.org.
As television journalist Tom Brokaw once said, “It’s easy to make a buck. It’s a lot tougher to make a difference.” How will you make a difference?
Kathryn Stanfill is an attorney at The Hinson Law Firm where she practices estate planning, guardianship and probate, including probate matters involving personal injury and wrongful death.

MICHAEL SHARRIT
4TH CIRCUIT JUDGE
The new mandate may predictably lead to more crowded calendars.
On this New Year’s Eve, that familiar refrain – “Should old acquaintance be forgot, and never brought to mind?” - might evoke nostalgic thoughts of a departing old friend known as Rule 1.440(a) – the “at issue rule.”
At the stroke of midnight and by the time the last verse of “Auld Lang Syne” has been sung, the newly revised Rules of Civil Procedure will have gone into effect. Among all the changes, the elimination of the “at issue rule” will have profound implications for our bench and Bar.
The gatekeeping function of the “at issue rule” has been
PRO YOUNGBONOLAWYERS
to prevent cases from being scheduled for trial prematurely, before the pleadings have closed and the issues have been crystalized. By eliminating the “at issue rule” and overhauling Rule 1.200 (Case Management), the state Supreme Court is mandating most cases be set for trial early, at the outset of litigation.
In fact, new Rule 1.200 requires a trial date and other pre-trial deadlines be ordered within 120 days of the complaint being filed or within 30 days of service on the last defendant, whichever occurs first.
For the typical case, that means a 30-day trial-set clock will likely begin to tick when service of process occurs, long before a defense lawyer is assigned, and well before the court knows anything about the particular needs of the litigation.
In order to be rule compliant, judges will have to actively monitor new case filings, and quickly issue sua sponte orders that unilaterally establish critical dates and deadlines.
This early case management order will have to be entered without lawyer input, and without the judge being informed on questions like, “When can you be available for trial? How many days do you need for trial? How much time do you need before disclosing expert witness
opinions? When will this case be ready for mediation?”
The new rules represent a transition away from a system where informed lawyers (who being intimately familiar with their clients, their cases and their budgets) drive the litigation to one where judges impose a “one size fits all” schedule.
There is a judicial consensus and desire to preserve lawyer participation in the management of their cases. Our new approach will generally involve early generation of a sua sponte case management order that designates a projected trial date and other projected pretrial deadlines.
This preliminary order will further require counsel to confer and attempt to agree on a final trial setting and case management schedule (in many cases, counsel may agree to adopt the court’s projected dates).
A later case management conference will likely be scheduled for most cases. In-person attendance at the CMC will be mandatory, except for a provision whereby lawyers will be excused from appearance simply by providing a joint trial-set memorandum to the judicial assistant (as is currently done).
This combination of an early projected trial order followed by the later submission of jointly proposed final dates and dead-
lines is the optimistic remedy that achieves new rule compliance and preserves the familiar lawyer driven trial-set practice.
With admitted provincial tendencies, much of the consternation among judges has been about achieving new rule compliance while simultaneously wanting to preserve “our way” of doing things in the 4th Circuit. Nobody within the courthouse wants to depart from what has been proven effective and worked locally for generations of lawyers and judges.
Whereas in other parts of the state, trial uncertainty and “rolling dockets” are the norm, our local methodology, with rare exception, has afforded lawyers assurance that their trial will proceed when scheduled.
As former practitioners, every one of our local civil judges intuitively knows that lawyers value certainty and that reliability of trial dates is what sets the priorities of daily practice and most often drives cases toward resolution.
Conversely, when trial dates become a moving target, scheduling witnesses, allocating costs and advising clients turns into an expensive game of “blind man’s bluff.” The key to making this “no trial left behind” philosophy work is a long-standing willingness and commitment by the
civil judges to preside over each other’s cases when needed.
At any given time, a civil judge overloaded with trials can almost always rely on help from his or her colleagues. This internal compact has allowed us to navigate bottlenecks and assure each lawyer that a courtroom and judge will be available to try their case.
The new rule mandate requiring more cases be set for trial will predictably lead to increasingly crowded trial calendars and negatively impact the judges’ availability to cover each other’s trials.
Should that occur, the effect would be increased numbers of “bumped trials” and for the first time in our collective memory, “rolling dockets” in the 4th Circuit. We’ll continue to make every effort to avoid this. It has long been said, “Nothing is permanent, except change.” Now more than ever, that adage seems particularly applicable to the practice of law.
One thing though remains refreshingly unchanged … the unique privilege and culture we share practicing (and judging) in the 4th Circuit.
Michael Sharrit was elected in 2020 for a term that ends in January 2027.

The YLS Charity Poker Tournament will benefit the Jacksonville History Center.
Get ready to shuffle and deal for a great cause.
The Jacksonville Bar Association Young Lawyers Section is hosting its annual charity poker event, “Full House for History,”
Nov. 20 at bestbet Jacksonville. Proceeds will benefit the Jacksonville History Center, a nonprofit dedicated to preserving and archiving the rich history of our city.
The Jacksonville History Center tells the story of Jacksonville’s heritage while providing educational resources that engage and inform the community. Through workshops, holiday events, archival preservation and its speaker series, the center fosters a deeper understanding of Jacksonville’s history, encouraging collaboration and critical thinking about our city’s past and future.
Your participation in this event will directly contribute to their mission. Learn more about the incredible work they do at jaxhistory.org.
Event details:
Date: Nov. 20, doors open at 6 p.m., lessons start at 6:30 p.m., tournament begins at 6:45 p.m.
The driving force behind this organization is the active participation of its members. Please give the association the benefit of your ideas and talents by volunteering to serve on one or more of the committees shown on the JBA website. With your active involvement, this association will flourish. To join or change your committee preferences, open your web profile at jaxbar.org and click on “Join a Committee.”
Location: bestbet Jacksonville, 201 Monument Road
Registration: Online at jaxbar. org/charitypoker
We are seeking sponsorships and silent auction donation items from businesses and organizations to make this event a success.
Several sponsorship levels are available, offering the opportunity to showcase your support for both the legal community and the preservation of Jacksonville’s history.
For more information about sponsorship opportunities or to address any questions about the event, contact Julianna Favale at 904-807-2129.
Mark your calendars, gather your friends and join us for a night of cards, camaraderie and community spirit.
Together, we can ensure that Jacksonville’s history continues to be celebrated, shared and preserved for generations to come.


tutions must go hand in hand with the progress of the human mind. As that becomes more developed, more enlightened, as new discoveries are made, new truths discovered and manners and opinions change, with the change of circumstances, institutions must advance also to keep pace with the times.”
And then comes my favorite part: “We might as well require a man to wear still the coat which fitted him when a boy as civilized society to remain ever under the regimen of their barbarous ancestors.”
Even so, lawyers and legal educators are notoriously “late adaptors,” perhaps more so than any other learned profession.
There are many good reasons why this is so. Among other things, those schooled in law give credence to evidence. Lawyers value the probative value of give-and-take arguments. Such fact-finding can take time to build a convincing case for change.
Lawyers are comfortable with precedents and cautious about departing from generally established principles and practices which can be upsetting, costly and have unintended consequences.
That can be especially so for those who may have relied on the principle of stare decisis (stand by the decision), as well as those who lack the ability or the means to adjust to new circumstances.
The status quo also is anchored by other less compelling factors. Conventional wisdom about what was once and still tried-and-true is a stubborn thing, no matter how outdated or unsubstantiated.
Not too long ago at an international legal conference on the future of law in the digital age, a prominent British barrister who teaches trial prac-

tice proudly flaunted his Luddism saying, “I do not use new technology, I do not understand it, but I know it is no good for either teaching or doing what I do.”
That sentiment, though not rare, increasingly is an outlier in the profession which steadily is acquiring a more inventive and entrepreneurial ethos.
Legal educators open to prudent data driven innovation in pursuit of excellence are wise to be skeptical about the pedagogical “fad du jour.”
In academic institutions, transitions to new programs can be challenging to fund within existing budgets and given common internal concerns that funds spent on new projects would be better spent on the existing curriculum.
The mission critical obligation to students, which we wholeheartedly embrace at Jacksonville University College of Law, to color within the lines and teach the fundamentals of law is paradoxically innovative
if you strive to do so in the best possible ways.
We also are eager, even restless, to demonstrate what I call our “Jacksonville Pollock” style of creativity, discovering and using better ways to equip students with the knowledge, skills, professional values and lifelong learning tools they need to succeed. They must be ready to address unmet needs, attack and mitigate entrenched inequities, adapt to future developments and tackle challenges that are not yet imagined much less known.
This path clearing work must be done while adhering to strict regulatory requirements.
Even the traditional academic calendar can complicate experimentation and transitions to new programs.
Because of the endless episodic loop of the academic calendar, with its continuous cycle of new school years, restarting the clock immediately after each year-end, academic institutions cannot be put in dry dock to
scrape off barnacles and retrofit.
Instead, they must try to improve while operationally underway and navigate the competitive and uncertain markets in which they operate.
However, in an age of accelerating disruptive change, innovative legal education is imperative, not an oxymoron.
Lawyers and legal educators should and must push themselves to consider improvements that need to be made.
Business as usual and rigid resistance to adapting to new technological, economic, political, climactic and other societal circumstances is not a viable option. Neither is an indecisive “ready, aim, study” approach. These are formulas for failure.
As Cole observed, “A core purpose of universities is to not only transmit the sum of human knowledge but to expand it.”
Further, he notes that unlike the short-lived companies of the private sector which last in most cases less than 20 years, a well-constructed self-governing
academic community can, with the right support from outside its walls, last much longer and make profound contributions to the public.
Thank you, Jacksonville, for the promising future your extraordinary support and encouragement enables.
Law schools across the U.S. are innovating in many ways including distancing management decisions from the increasingly less influential U.S. News & World Report rankings.
They are responding to demands for better practical training while satisfying students’ interests in not waiting for graduation to make an impact on significant public issues.
Law schools are rapidly beginning to make good use of virtual reality and AI. More attention is paid about how to prepare students for advising and representing clients in a world of incomplete, imperfect information.
For more than a decade, law schools have been working to understand and promote more effective leadership by lawyers.
For example, the most popular course in the history of Georgetown University Law Center with more than 300 students enrolled is “Lawyers as Leaders.” This course, taught by Dean Bill Treanor, is offered online and engages students in discussions about how lawyers can lead progress on the issues of our day.
The years ahead should be exciting for legal education. That is likely because of the ascendant recognition of the fundamental role of law and lawyers in our lives, and because of the already ongoing revitalization and reinvention of how law is practiced, taught and learned.
Innovations which are well underway in most law schools will generate productive and meaningful beginnings for aspiring attorneys, and even greater long-term benefits to the people who they will serve.
self. This begins with introspection to truly understand and cultivate your values, beliefs and passions.
When individuals align their actions with their true selves, they tend to experience greater emotional well-being.
Authenticity fosters a sense of belonging and acceptance, allowing people to form genuine relationships. When individuals feel pressured to “fake it” that pressure leads to stress and anxiety.
Authenticity also enhances interpersonal relationships. In a world filled with clickbait, people are often craving real connections.
When individuals present themselves authentically, they attract others who appreciate their true selves. Additionally, authentic relationships provide a strong foundation for personal growth and, in our profession, the clients that pay our bills.
Within the office, authenticity is equally important.
Authentic leaders are honest about their strengths and weaknesses, fostering a culture of openness within their firm or organization.
Employees are more likely to feel valued and engaged when they work under leaders who are genuine.
Authentic leadership inspires loyalty and trust, leading to
higher levels of employee satisfaction and productivity.
Moreover, firms that prioritize authenticity in their culture can create a more inclusive environment.
Colleagues from diverse backgrounds feel empowered to share their unique perspectives when they see their leaders being true to themselves.
This diversity of thought can drive innovation and financial success, as different viewpoints are considered and valued.
Despite its importance, authenticity can be challenging to maintain.
The pressure to conform to outside expectations, professional norms or the images portrayed on social media can
lead many of us astray and compromise our authenticity.
Fear of judgment, rejection or failure may also hinder selfexpression. Overcoming these barriers requires courage and a commitment to self-discovery.
Promoting a culture of authenticity within your firm or organization requires ongoing effort. Individuals must practice self-reflection and be open to feedback, which is not always comfortable as attorneys tend to fear vulnerability.
Firms and organizations can encourage authenticity by creating safe spaces for dialogue, celebrating diversity and recognizing the value of genuine contributions.
In conclusion, authenticity is
a powerful force that influences personal fulfillment, effective leadership and meaningful connections with all people, including clients.
As the world becomes increasingly interconnected, the need for authenticity will only grow.
Embracing one’s true self not only enhances personal wellbeing, but also cultivates trust within our firms and in the legal community generally.
In a world filled with superficiality, authenticity remains of the utmost importance to more meaningful relationships and happier practitioners.
Christian George is managing partner in Akerman’s Jacksonville office.







MEDIA DIAMOND SILVER



At The Bolles School, the future is an early focus so students can develop the life skills of compassion, courage and integrity as a foundation of their character. Combined with a world-class education, students build relationships, experience different cultures and make friends for life. Here, we honor traditions while looking forward to all the future holds.
Explore what Bolles has to offer by visiting www.Bolles.org or calling us at (904) 256-5030.
Pre-K through Grade 12 Day & Boarding School ALL THINGS POSSIBLE
FIRST INSERTION
NOTICE OF PUBLIC MEETINGS AND HEARINGS
NOTICE is hereby given that there will be a public meeting held by the Jacksonville Planning Commission on Thursday, November 21,2024 at 1:00 p.m. in the Edward Ball Building, 1st Floor Hearing Room 1002, 214 North Hogan Street, Jacksonville, Florida 32202 and the following public hearings will be held by the City Council on Tuesday, November 26, 2024 at 5:00 p.m., by the Land Use and Zoning Committee on Tuesday December 3, 2024 at 5:00 p.m. in the Council Chambers, 1st floor, City Hall, 117 West Duval Street, St. James Building, Jacksonville, FL, concerning: Ordinance No. 2024-831 AN ORDINANCE REZONING APPROXIMATELY 2.68+ ACRES LOCATED IN COUNCIL DISTRICT 3 AT 1709, 1719 AND 1739 GIRVIN ROAD, BETWEEN MT. PLEASANT ROAD AND PREMIUM ROAD (R.E. NO(S). 160915-0000, 160916-0000 AND 160918-0000), AS DESCRIBED HEREIN, OWNED BY CHRIS HIONEDES, FROM RESIDENTIAL RURAL-ACRE (RR-ACRE)
DISTRICT TO RESIDENTIAL LOW DE NSITY-70(RLD-70) DISTRICT, AS DEFINED AND CLASSIFIED UNDER THE ZONING CODE; PROVIDING A DISCLAIMER THAT THE REZONING GRANTED HEREIN SHALL NOT BE CONSTRUED AS AN EXEMPTION FROM ANY OTHER APPLICABLE LAWS; PROVIDING AN EFFECTIVE DATE. A copy of the ordinance containing the legal description is available for public inspection in the Council Legislative Services Division, Suite 430, City Hall. Additional information concerning this rezoning may be obtained by contacting the Planning and Development Department at 255-7865. All interested parties may appear at the meeting and be heard with respect to the proposed ordinance. Please visit www.coj.net for meeting information and COVID19 procedures/precautions for accessing public buildings.
Margaret M. Sidman City Council Secretary Dated this 1st day of November 2024. Nov. 7 00 (24-07048D)
NOTICE OF PUBLIC MEETINGS AND HEARINGS
NOTICE is hereby given that there will be a public meeting held by the Jacksonville Planning Commission on Thursday, November 21, 2024 at 1:00 p.m. in the Edward Ball Building, 1st Floor Hearing Room 1002, 214 North Hogan Street, Jacksonville, Florida 32202 and the following public hearings will be held by the City Council on Tuesday, November 26, 2024 at 5:00 p.m., by the Land Use and Zoning Committee on Tuesday, December 3, 2024 at 5:00 p.m. and by the 2nd City Council on Tuesday, December 10, 2024 at 5:00 p.m. in the Council Chambers, 1st floor, City Hall, 117 West Duval Street, St. James Building, Jacksonville, FL, concerning: Ordinance No. 2024-820 Companion: 2024-821 (AD-24-71) AN ORDINANCE REZONING APPROXIMATELY 1.0+ ACRE LOCATED IN COUNCIL DISTRICT 9 AT 1077 ODESSA DRIVE N., BETWEEN 1ST STREET W. AND COMMONWEALTH AVENUE (R.E. NO. 048982-0000), OWNED BYPC REALTY-JAX, LLC, AS DESCRIBED HEREIN, FROM RESIDENTIAL LOW DENSITY-60 (RLD-60) DIS-
TRICT TO INDUSTRIAL LIGHT (IL) DISTRICT, AS DEFINED AND CLASSIFIED UNDER THE ZONING CODE, PURSUANT TO FUTURE LAND USE MAP SERIES SMALL-SCALE AMENDMENT APPLICATION NUMBER L-5968-24C; PROVIDING A DISCLAIMER THAT THE REZONING GRANTED HEREIN SHALL NOT BE CONSTRUED AS AN EXEMPTION FROM ANY OTHER APPLICABLE LAWS, PROVIDING AN EFFECTIVE DATE. A copy of the ordinance containing the legal description is available for public inspection in the Council Legislative Services Division, Suite 430, City Hall. Additional information concerning this rezoning may be obtained by contacting the Planning and Development Department at 255-7865. All interested parties may appear at the meeting and be heard with respect to the proposed ordinance. Please visit www.coj.net for meeting information and COVID19 procedures/precautions for accessing public buildings. Margaret M. Sidman City Council Secretary Dated this 1st day of November 2024. Nov. 7 00 (24-07040D)
FIRST INSERTION
NOTICE OF PUBLIC MEETINGS AND HEARINGS NOTICE is hereby given that there will be a public meeting held by the Jacksonville Planning Commission on Thursday, November 21, 2024 at 1:00 p.m. in the Edward Ball Building, 1st Floor Hearing Room 1002, 214 North Hogan Street, Jacksonville, Florida 32202 and the following public hearings will be held by the City Council on Tuesday, November 26, 2024 at 5:00 p.m., by the Land Use and Zoning Committee on Tuesday, December 3, 2024 at 5:00 p.m. in the Council Chambers, 1st floor, City Hall, 117 West Duval Street, St. James Building, Jacksonville, FL, concerning: Ordinance No. 2024-829 AN ORDINANCE REZONING APPROXIMATELY 31.20+ ACRES LOCATED IN COUNCIL DISTRICT 11 AT 0 PHILIPS HIGHWAY, BETWEEN WELLS CREEK PARKWAY AND SR9B EXPRESSWAY N. (R.E. NO(S).
168090-0040), AS DESCRIBED HEREIN, OWNED BY TRI LAKE INVESTMENTS, LLC, FROM PLANNED UNIT DEVELOPMENT (PUD) DISTRICT (2022-854-E) TO PLANNED UNIT DEVELOPMENT (PUD) DISTRICT, AS DEFINED AND CLASSIFIED UNDER THE ZONING CODE, TO PERMIT RESIDENTIAL AND COMMERCIAL USES, AS DESCRIBED IN THE ELLIS COVE PUD; PROVIDING A DISCLAIMER THAT THE REZONING GRANTED
HEREIN SHALL NOT BE CONSTRUED AS AN EXEMPTION FROM ANY OTHER APPLICABLE LAWS; PROVIDING AN EFFECTIVE DATE. A copy of the ordinance containing the legal description is available for public inspection in the Council Legislative Services Division, Suite 430, City Hall. Additional information concerning this rezoning may be obtained by contacting the Planning and Development Department at 255-7865. All interested parties may appear at the meeting and be heard with respect to the proposed ordinance. Application for rezoning 2024829 seeks to rezone approximately 31.2 acres of land from Planned Unit Development (PUD) to Planned Unit Development (PUD). The property is located at 0 Philips Highway between Wells Creek Parkway and SR 9B. The agent is Hayden Phillips, Esq., 1301 Riverplace Blvd., Suite 1500 Jacksonville, Florida 32202; (904) 346-5535. The rezoning to PUD is being sought to allow for a maximum of 624 multi-family units with additional commercial retail and service establishments. Please visit www.coj.net for meeting information and COVID19 procedures/precautions for accessing public buildings.
Margaret M. Sidman
City Council Secretary Dated this 1st day of November 2024. Nov. 7 00 (24-07046D)
NOTICE UNDER FICTITIOUS NAME LAW
According to
Florida Statute Number 865.09
NOTICE IS HEREBY GIVEN that the undersigned, desiring to engage in business under the Fictitious Name of GiGi’s Designer Deals located at 3639 St Johns Ave, in the City of Jacksonville, Duval County, Florida 32210 intends to register the said name with the Division of Corporations of the Department of State, Tallahassee, Florida.
Dated at Jacksonville, Florida, this 3rd day of November, 2024. Christian Miller By: Christian Miller Nov. 7 00 (24-07052D)
NOTICE OF PUBLIC MEETINGS AND HEARINGS
NOTICE is hereby given that there will be a public meeting held by the Jacksonville Planning Commission on Thursday, November 21, 2024 at 1:00 p.m. in the Edward Ball Building, 1st Floor Hearing Room 1002, 214 North Hogan Street, Jacksonville, Florida 32202 and the following public hearings will be held by the City Council on Tuesday, November 26, 2024 at 5:00 p.m., by the Land Use and Zoning Committee on Tuesday, December 3, 2024 at 5:00 p.m. and by the 2nd City Council on Tuesday, December 10, 2024 at 5:00 p.m. in the Council Chambers, 1st floor, City Hall, 117 West Duval Street, St. James Building, Jacksonville, FL, concerning: Ordinance No. 2024-825 AN ORDINANCE REZONING APPROXIMATELY 7.38+ ACRES LOCATED IN COUNCIL DISTRICT 12 AT 5446 OLD MIDDLEBURG ROAD SOUTH, 5438 OLD MIDDLEBURG ROAD SOUTH, 5440 OLD MIDDLEBURG ROAD SOUTH, AND 8944 103RD STREET, SOUTH OF 103RD STREET AND WEST OF OLD MIDDLEBURG ROAD SOUTH (R.E. NO(S). 015221- 0010, 015224-0010, 015225-0010, AND 0152250200), OWNED BY KELLY M. JAMES ANDGLORIA JAMES AND DAWN MOTES AND KELLY M. JAMES AS CO-PERSONAL REPRESENTATIVES
NOTICE UNDER FICTITIOUS NAME LAW
According to Florida Statute Number 865.09
NOTICE IS HEREBY GIVEN that the undersigned, desiring to engage in business under the Fictitious Name of The Riverhouse located at 9636 Heckscher Drive, in the City of Jacksonville, Duval County, Florida 32259 intends to register the said name with the Division of Corporations of the Department of State, Tallahassee, Florida.
Dated at Jacksonville, Florida, this 1st day of November, 2024.
Kantis Holdings LLC By: Dean Kantis Nov. 7 00 (24-07039D)
NOTICE UNDER FICTITIOUS NAME LAW
According to
Florida Statute Number 865.09
NOTICE IS HEREBY GIVEN that the undersigned, desiring to engage in business under the Fictitious Name of You Time Massage and Wellness located at 12997 Sunset Lake Dr., in the City of Jacksonville, Duval County, Florida 32258 intends to register the said name with the Division of Corporations of the Department of State, Tallahassee, Florida.
Dated at Jacksonville, Florida, this 31st day of October, 2024. Stephanie Miller Nov. 7 00 (24-07026D)
According
NOTICE
that
Dated at Jacksonville, Florida, this 31st day of October, 2024. Marilyn Edie Koyenum Nov. 7 00 (24-07025D)
OF THE ESTATE OF REGINA JOAN DARLING JAMES, AS DESCRIBED HEREIN, FROM RESIDENTIAL RURAL-ACRE (RR-ACRE) DISTRICT AND COMMERCIAL OFFICE (CO) DISTRICT TO RESIDENTIAL MEDIUM DENSITY-D (RMDD) DISTRICT, AS DEFINED AND CLASSIFIED UNDER THE ZONING CODE, PURSUANT TO FUTURE LAND USE MAP SERIES SMALL-SCALE AMENDMENT APPLICATION NUMBER L-5979-24C; PROVIDING A DISCLAIMER THAT THE REZONING GRANTED HEREIN SHALL NOT BE CONSTRUED AS AN EXEMPTION FROM ANY OTHER APPLICABLE LAWS; PROVIDING AN EFFECTIVE DATE.
A copy of the ordinance containing the legal description is available for public inspection in the Council Legislative Services Division, Suite 430, City Hall. Additional information concerning this rezoning may be obtained by contacting the Planning and Development Department at 255-7865. All interested parties may appear at the meeting and be heard with respect to the proposed ordinance. Please visit www.coj.net for meeting information and COVID19 procedures/precautions for accessing public buildings. Margaret M. Sidman City Council Secretary Dated this 1st day of November 2024. Nov. 7 00 (24-07043D) FIRST INSERTION
NOTICE OF PUBLIC MEETINGS AND HEARINGS
NOTICE is hereby given that there will be a public meeting held by the Jacksonville Planning Commission on Thursday, November 21, 2024 at 1:00 p.m. in the Edward Ball Building, 1st Floor Hearing Room 1002, 214 North Hogan Street, Jacksonville, Florida 32202 and the following public hearings will be held by the City Council on Tuesday, November 26, 2024 at 5:00 p.m., by the Land Use and Zoning Committee on Tuesday, December 3, 2024 at 5:00 p.m. in the Council Chambers, 1st floor, City Hall, 117 West Duval Street, St. James Building, Jacksonville, FL, concerning:
Ordinance No. 2024-828
AN ORDINANCE REZONING APPROXIMATELY 29.77+
ACRES LOCATED IN COUNCIL DISTRICT 3 AT 0 AND 4920 SAN PABLO ROAD SOUTH, AT THE SOUTHWEST CORNER OF THE INTERSECTIONS BETWEEN J. TURNER BUTLER BOULEVARD AND SAN PABLO ROAD SOUTH (R.E. NO(S). 167766-0500 AND 1677660400), OWNED BY SP 1776, LLC, FROM COMMERCIAL OFFICE (CO) DISTRICT TO PLANNED UNIT DEVELOPMENT (PUD) DISTRICT, AS DEFINED AND CLASSIFIED UNDER THE ZONING CODE, TO PERMIT MULTI-FAMILY DWELLINGS, RESTAURANTS, OFFICES AND COMMERCIAL USES; AS DESCRIBED IN THE SAN PABLO MIXED-USE PUD; PROVIDING A DISCLAIMER THAT THE REZONING GRANTED
HEREIN SHALL NOT BE CONSTRUED AS AN EXEMPTION FROM ANY OTHER APPLICABLE LAWS; PROVIDING AN EFFECTIVE DATE.
A copy of the ordinance containing the legal description is available for public inspection in the Council Legislative Services Division, Suite 430, City Hall. Additional information concerning this rezoning may be obtained by contacting the Planning and Development Department at 255-7865. All interested parties may appear at the meeting and be heard with respect to the proposed ordinance. Application for rezoning 2024828 seeks to rezone approximately 29.77 acres of land from Commercial Office (CO) to Planned Unit Development (PUD). The property is located in the southwest quadrant of JTB Boulevard and San Pablo Road South. The agent is Steve Diebenow, Esq., One Independent Drive, Suite 1200 Jacksonville, Florida 32202; (904) 301-1269. The rezoning to PUD is being sought to allow for a maximum of 250 multi-family units, commercial retail and service establishment uses, professional offices, adult congregate living facilities, day care centers, personal property storage, veterinarians, and similar uses. Please visit www.coj.net for meeting information and COVID19 procedures/precautions for accessing public buildings. Margaret M. Sidman City Council Secretary Dated this 1st day of November 2024. Nov. 7 00 (24-07045D)
NOTICE OF PUBLIC MEETINGS AND HEARINGS NOTICE is hereby given that there will be a public meeting held by the Jacksonville Planning Commission on Thursday, November 21, 2024 at 1:00 p.m. in the Edward Ball Building, 1st Floor Hearing Room 1002, 214 North Hogan Street, Jacksonville, Florida 32202 and the following public hearings will be held by the City Council on Tuesday, November 26, 2024 at 5:00 p.m., by the Land Use and Zoning Committee on Tuesday, December 3, 2024 at 5:00 p.m. in the Council Chambers, 1st floor, City Hall, 117 West Duval Street, St. James Building, Jacksonville, FL, concerning: Ordinance No. 2024-830 AN ORDINANCE REZONING APPROXIMATELY 22.91+ ACRES LOCATED IN COUNCIL DISTRICT 14 AT 5570 118TH STREET AND 0, 6601, 6621, AND 6627 SEABOARD AVENUE, BETWEEN 118TH STREET, SEABOARD AVENUE, VISTA VERDE STREET AND DOR MIL COURT (R.E. NO(S).1035111000; 103511-0100; 1035120000; 103504-0000; 1035121000),AS DESCRIBED HEREIN, OWNED BY RONALD HART-
NOTICE OF PUBLIC MEETINGS AND HEARINGS NOTICE is hereby given that there will be a public meeting held by the Jacksonville Planning Commission on Thursday, November 21, 2024 at 1:00 p.m. in the Edward Ball Building, 1st Floor Hearing Room 1002, 214 North Hogan Street, Jacksonville, Florida 32202 and the following public hearings will be held by the City Council on Tuesday, November 26, 2024 at 5:00 p.m., by the Land Use and Zoning Committee on Tuesday, December 3, 2024 at 5:00 p.m. and by the 2nd City Council on Tuesday, December 10, 2024 at 5:00 p.m. in the Council Chambers, 1st floor, City Hall, 117 West Duval Street, St. James Building, Jacksonville, FL, concerning: Ordinance No. 2024-827 AN ORDINANCE REZONING APPROXIMATELY 10.6+ ACRES LOCATED IN COUNCIL DISTRICT 11 AT 0, 6810, 6820 GREENLAND RIDGE LANE NORTH AND 0 GREENLAND ROAD, EAST OF THE INTERSTATE-295 AND PHILIPS HIGHWAY INTERCHANGE (A PORTION OF R.E. NO(S). 167859-0500 AND 167828-1010 AND R.E. NO(S). 167829-0030, 167829-0000, 167829-0046, 167829-0040), AS DESCRIBED HEREIN, OWNED BY SHARON BURNETTE, LINDA GILYARD, CAROLYN GILYARD, SOLOMAN ODOM, BOBBIE ANN ODOM AND TORR GILYARD, FROM RESIDENTIAL LOW DENSITY-90 (RLD-90) DISTRICT AND RESIDENTIAL RURAL-ACRE (RR-ACRE) DISTRICT TO PLANNED UNIT DEVELOPMENT (PUD) DISTRICT, AS DEFINED AND CLASSIFIED UNDER THE ZONING CODE, TO PERMIT INDUSTRIAL USES, AS DESCRIBED IN THE GREENLAND RIDGE PUD, PURSUANT TO FUTURE LAND USE MAP SERIES (FLUMS) SMALLSCALE AMENDMENT APPLICATION NUMBER L-5966-24C;
LEY AND JOHN M. HAMILTON, JR., FROM RESIDENTIAL RURAL-ACRE (RR-ACRE) DISTRICT TO RESIDENTIAL LOW DENSITY-40 (RLD-40) DISTRICT, AS DEFINED AND CLASSIFIED UNDER THE ZONING CODE; PROVIDING A DISCLAIMER THAT THE REZONING GRANTED HEREIN SHALL NOT BE CONSTRUED AS AN EXEMPTION FROM ANY OTHER APPLICABLE LAWS; PROVIDING AN EFFECTIVE DATE. A copy of the ordinance containing the legal description is available for public inspection in the Council Legislative Services Division, Suite 430, City Hall. Additional information concerning this rezoning may be obtained by contacting the Planning and Development Department at 255-7865. All interested parties may appear at the meeting and be heard with respect to the proposed ordinance. Please visit www.coj.net for meeting information and COVID19 procedures/precautions for accessing public buildings. Margaret M. Sidman City Council Secretary Dated this 1st day of November 2024. Nov. 7 00 (24-07047D)
PROVIDING A DISCLAIMER THAT THE REZONING GRANTED HEREIN SHALL NOT BE CONSTRUED AS AN EXEMPTION FROM ANY OTHER APPLICABLE LAWS; PROVIDING AN EFFECTIVE DATE.
A copy of the ordinance containing the legal description is available for public inspection in the Council Legislative Services Division, Suite 430, City Hall. Additional information concerning this rezoning may be obtained by contacting the Planning and Development Department at 255-7865. All interested parties may appear at the meeting and be heard with respect to the proposed ordinance. Application for rezoning 2024827 seeks to rezone approximately 10.6 acres of land from Residential Rural-Acre (RR-Acre) and Residential Low Density-90 (RLD90) to Planned Unit Development (PUD). The property is located at 6810 Greenland Ridge Lane North at the terminus of Phillips Parkway Drive East. The agent is Cyndy Trimmer, Esq., One Independent Drive, Suite 1200 Jacksonville, Florida 32202; (904) 807-0185. The rezoning to PUD is being sought to allow for outdoor storage of trucks, trailers, automobiles, recycling facilities, wholesaling, warehousing or distribution, indoor scrap processing, building trades contractors and similar uses. This PUD application is a companion to a pending application for Small scale land use amendment (L-5966-24C) for that portion of the property located in the Low Density Residential (LDR) land use designation. Please visit www.coj.net for meeting information and COVID19 procedures/precautions for accessing public buildings. Margaret M. Sidman City Council Secretary Dated this 1st day of November 2024. Nov. 7 00 (24-07044D)
FIRST INSERTION
IN THE CIRCUIT COURT OF THE FOURTH JUDICIAL
CIRCUIT IN AND FOR DUVAL COUNTY, FLORIDA
CASE NO. 16-2024-CA-002649
DIVISION: FC-B
WELLS FARGO USA HOLDINGS, LLC
Plaintiff,
v. JOYCE R. PITTMAN A/K/A
JOYCE REDMOND PITTMAN; DONALD TRBOVICH; UNKNOWN TENANT 2; UNKNOWN TENANT 1; CHIMNEY LAKES OWNERS ASSOCIATION, INC. Defendants. NOTICE OF SALE Notice is hereby given that, pursuant to the Final Judgment of Foreclosure entered on October 18, 2024, in this cause, in the Circuit Court of Duval County, Florida, the clerk shall sell the property situated in Duval County, Florida, described as: LOT 40, ARGYLE FOREST CHIMNEY LAKES, UNIT FOUR, ACCORDING TO PLAT RECORDED IN PLAT BOOK 41, PAGES 47, 47A THROUGH 47D, OF THE CURRENT PUBLIC RECORDS OF DUVAL COUNTY, FLORIDA. a/k/a 8132 SPENCERS TRACE DR, JACKSONVILLE, FL 32244-5944 at public sale, to the highest and best bidder, for cash, online at: www.duval.realforeclose.com
IN THE COUNTY COURT, FOURTH JUDICIAL CIRCUIT, IN AND FOR, DUVAL COUNTY, FLORIDA CASE NO.: 16-2024-CC-009103
DIVISION: CC-G VILLAS AT CROSS CREEK OWNERS ASSOCIATION, INC.
Plaintiff, vs. CHRISTOPHER A. CERUTI, ET. AL. Defendants.
NOTICE OF ACTION
TO: Christopher A. Ceruti, Unknown Spouse of Christopher A. Ceruti, and Unknown Tenant No 2 YOU ARE NOTIFIED that the above-styled action to foreclose the lien on the following described property in Duval County, Florida: Lot 79, of VILLAS AT CROSS CREEK - UNIT FIVE, according to the Plat thereof, as recorded in Plat Book 48, Page 33 and 33A, of the Public Records of Duval County, Florida.
Property Address: 12350 Carriann Cove Trail South , Jacksonville, FL 32225 has been filed against you and you are required to serve a copy of your written defenses, if any, to it on Crabtree Law Group, P.A., 8777 San Jose Boulevard, Building A, Suite 200, Jacksonville, Florida 32217, (Phone Number: (904)7329701; Email: cwb@crabtreefirm. com), Plaintiff’s attorney within thirty (30) days after the first pub-
on D ecember 02, 2024 beginning at 11:00 AM. Any person claiming an interest in the surplus from the sale, if any, other than the property owner as of the date of the lis pendens must file a claim before the clerk reports the surplus as unclaimed. Americans With Disabilities Act (ADA) Notice In accordance with the Americans with Disabilities Act of 1990 (ADA), If you are a person with a disability who needs any accommodation in order to participate in this proceeding, you are entitled at no cost to you, to the provision of certain assistance. Please contact the ADA Coordinator at crtintrp@coj.net or (904) 2551695 at least 7 days before your scheduled court appearance, or immediately upon receiving this notification if the time before the scheduled appearance is less than 7 days; if you are hearing or voice impaired, call 711. Dated this 30th day of October, 2024. JODY PHILLIPS Clerk of the Circuit Court By: Pamela R. Harrell Deputy Clerk (Court Seal) eXL Legal, PLLC 12425 28TH ST NORTH, STE. 200 ST. PETERSBURG, FL 33716-1826 EFILING@EXLLEGAL.COM 1000009917 Nov. 7/14 00 (24-07029D)
lication of this notice and file the original with the Clerk of this court either before service on Plaintiff’s attorney or immediately thereafter; otherwise a default will be entered against you for the relief demanded in the complaint. This notice shall be published once a week for two consecutive weeks in the Jacksonville Daily Record.
Americans With Disabilities Act (ADA) Notice In accordance with the Americans with Disabilities Act of 1990 (ADA), If you are a person with a disability who needs any accommodation in order to participate in this proceeding, you are entitled at no cost to you, to the provision of certain assistance. Please contact the ADA Coordinator at crtintrp@coj.net or (904) 2551695 at least 7 days before your scheduled court appearance, or immediately upon receiving this notification if the time before the scheduled appearance is less than 7 days; if you are hearing or voice impaired, call 711. DATED on 31st day of October, 2024.
JODY PHILLIPS CLERK OF COUNTY COURT
By: Pamela R. Harrell Deputy Clerk (Court Seal) Crabtree Law Group, P.A. 8777 San Jose Boulevard Building A, Suite 200 Jacksonville, Florida 32217 ems@crabtreefirm.com Attorney for Plaintiff Nov. 7/14 00 (24-07032D)
FIRST INSERTION
IN THE CIRCUIT COURT OF THE FOURTH JUDICIAL CIRCUIT IN AND FOR DUVAL COUNTY, FLORIDA CASE NO. 16-2024-CA-001889
DIVISION: FC-B GREENSPRING CAPITAL MANAGEMENT LLC, NOT IN ITS INDIVIDUAL CAPACITY, BUT SOLELY AS ADMINISTRATOR OF THE RMH 2023-2 TRUST Plaintiff, v. THE UNKNOWN HEIRS, GRANTEES, DEVISEES, LIENORS, TRUSTEES, AND CREDITORS OF THOMAS
CARL HUSS A/K/A THOMAS CARL HUSS, SR. A/K/A
THOMAS C. HUSS, SR. A/K/A THOMAS C. HUSS, DECEASED; UNKNOWN TENANT 1; UNKNOWN TENANT 2; LORI HUSS PARKER A/K/A LORI B. BRYAN-PARKER, AS THE PETITIONER FOR THE ESTATE OF THOMAS CARL HUSS A/K/A THOMAS CARL HUSS, SR. A/K/A THOMAS C. HUSS, SR. A/K/A THOMAS C. HUSS, DECEASED; THOMAS C. HUSS, JR.; LORI HUSS PARKER A/K/A LORI B. BRYAN-PARKER; CITY OF JACKSONVILLE, FLORIDA Defendants.
NOTICE OF SALE
Notice is hereby given that, pursuant to the Final Judgment of Foreclosure entered on October 18, 2024, in this cause, in the Circuit Court of Duval County, Florida, the clerk shall sell the property situated in Duval County, Florida, described as: BEING THE WEST 23 FEET OF LOT 57, ALL OF LOT 58 AND THE EAST 15 FEET OF LOT 59, BLOCK 16A, OAKWOOD VILLA ESTATES, AS SHOWN ON PLAT OF RECORD IN PLAT BOOK 8, PAGES 23, 24 AND 25, OF THE PUB -
FIRST INSERTION
IN THE CIRCUIT COURT, FOURTH JUDICIAL CIRCUIT, IN AND FOR DUVAL COUNTY, FLORIDA
CASE NO.: 16-2024-CP-002874
DIVISION: PR-A
IN RE: THE ESTATE OF DONALD KEITH FOSTER, Deceased. NOTICE TO CREDITORS
The administration of the estate of Donald Keith Foster, deceased, whose date of death was March 12, 2024, is pending in the Circuit Court for Duval County, Florida, Probate Division, the address of which is 501 West Adams Street, Jacksonville, Florida 32202. The names and addresses of the personal representative and the personal representative’s attorney are set forth below.
All creditors of the decedent and other persons having claims or demands against decedent’s estate on whom a copy of this notice is required to be served must file their claims with this court ON OR BEFORE THE LATER OF 3 MONTHS AFTER THE TIME OF THE FIRST PUBLICATION OF THIS NOTICE OR 30 DAYS AFTER THE DATE OF SERVICE OF A COPY OF THIS NOTICE ON THEM.
All other creditors of the decedent and other persons having claims or demands against decedent’s estate must file their claims with this court WITHIN 3 MONTHS AFTER THE DATE OF THE FIRST PUBLICATION OF THIS NOTICE.
The personal representative has no duty to discover whether any property held at the time of the decedent’s death by the decedent or the decedent’s surviving spouse is property to which the Florida Uniform Disposition of Community Property Rights at Death Act as described in ss. 732.216.732.228, applies, or may apply unless a written demand is made by a creditor as specified under s. 732.2211, Florida Statutes.
ALL CLAIMS NOT FILED WITHIN THE TIME PERIODS SET FORTH IN FLORIDA STATUTES SECTION 733.702 WILL BE FOREVER BARRED. NOTWITHSTANDING THE TIME PERIODS SET FORTH ABOVE, ANY CLAIM FILED TWO (2) YEARS OR MORE AFTER THE DECEDENT’S DATE OF DEATH IS BARRED.
The date of first publication of this notice is November 7, 2024.
Personal Representative: Albulena Martinaj
Attorney for Personal Representative: Victoria L. Duke
Attorney for PR Florida Bar Number: 1040153
13500 Sutton Park Drive S., Suite 601 Jacksonville, FL 32224
Telephone: (904) 397-4444
E-Mail: victoria@threeoakslaw.com Nov. 7/14 00 (24-07018D)
LIC RECORDS OF DUVAL C OUNTY, FLORIDA, TO WHICH PLAT REFERENCE IS HEREBY MADE FOR A MORE COMPLETE DESCRIPTION OF SAID PROPERTY. a/k/a 7928 FREE AVE, JACKSONVILLE, FL 322117888 at public sale, to the highest and best bidder, for cash, online at: www.duval.realforeclose.com on December 02, 2024 beginning at 11:00 AM. Any person claiming an interest in the surplus from the sale, if any, other than the property owner as of the date of the lis pendens must file a claim before the clerk reports the surplus as unclaimed. Americans With Disabilities Act (ADA) Notice In accordance with the Americans with Disabilities Act of 1990 (ADA), If you are a person with a disability who needs any accommodation in order to participate in this proceeding, you are entitled at no cost to you, to the provision of certain assistance. Please contact the ADA Coordinator at crtintrp@coj.net or (904) 2551695 at least 7 days before your scheduled court appearance, or immediately upon receiving this notification if the time before the scheduled appearance is less than 7 days; if you are hearing or voice impaired, call 711. Dated this 30th day of October, 2024.
JODY PHILLIPS Clerk of the Circuit Court By: Pamela R.
Harrell
Deputy Clerk (Court Seal) eXL Legal, PLLC 12425 28TH ST NORTH, STE. 200 ST. PETERSBURG, FL 33716-1826 EFILING@EXLLEGAL.COM 1000009770 Nov. 7/14 00 (24-07030D)
FIRST INSERTION
NOTICE
Extra Space Storage, on behalf of itself or its affiliates, Life Storage or Storage Express, will hold a public auction to sell personal property described below belonging to those individuals listed below at the location indicated: 14130 Beach Blvd Jacksonville Fl, 32250. 11/26/2024 at 12:30pm
Elva William WigginsPersonal effects, Furniture, Car Rims/Tires, Totes
The auction will be listed and advertised on www.storagetreasures.com. Purchases must be made with cash only and paid at the above referenced facility in order to complete the transaction.
Extra Space Storage may refuse any bid and may rescind any purchase up until the winning bidder takes possession of the personal property.
Nov. 7/14
00 (24-07001D)
FIRST INSERTION
NOTICE
Extra Space Storage, on behalf of itself or its affiliates, Life Storage or Storage Express, will hold a public auction to sell personal property described below belonging to those individuals listed below at the location indicated: 1515 Manotak Ave Jacksonville FL 32210 November 26, 2024 @ 12:00pm
Darian Jackson-Bed, sofa, dresser, small kitchen table Joanne PankeyHousehold Goods/Furniture
Tiffany BlockerBags, Tv, boxes, bins
Audrey Oakes- washer, dryer, desk 7 medium boxes
Kenneth RobinsonHousehold Goods/Furniture
Loletha FortsonHousehold goods
Anita Baileyhousehold goods, boxes Josephine JonesHousehold Goods/Furniture
Michael Rieves- Boxes
James Grant- Household Goods/ Furniture, Tools/Appliances
Kristine Roundtree- Household Goods/Furniture, TV/Stereo Equipment, Personal items
Jasmine Smith- Personal, Vehicle
Martha Smith- Household goods
Reginald StoneHousehold Goods/Furniture
Argelina TaylorHousehold Goods/Furniture
Sidney Higginshousehold goods, electronics, bins Mojisola Baruwahousehold furniture/items
The auction will be listed and advertised on www.storagetreasures.com. Purchases must be made with cash only and paid at the above referenced facility in order to complete the transaction.
Extra Space Storage may refuse any bid and may rescind any purchase up until the winning bidder takes possession of the personal property. Nov. 7/14 00 (24-07010D)
INSERTION
IN THE CIRCUIT COURT, FOURTH JUDICIAL CIRCUIT, IN AND FOR DUVAL COUNTY, FLORIDA
PROBATE DIVISION CASE NO.: 16-2024-CP-002956
DIVISION: PR-B IN RE: ESTATE OF PAIGE ELIZABETH PRINGLE, Deceased.
NOTICE TO CREDITORS
The administration of the estate of PAIGE ELIZABETH PRINGLE, deceased, whose date of death was August 9, 2023, is pending in the Circuit Court for Duval County, Florida, Probate Division, File No. 16-2024-CP-002956, the address of which is 501 West Adams Street, Duval County Courthouse, Jacksonville, FL 32202. The names and addresses of the personal representative and that personal representative’s attorney are set forth below. All creditors of the decedent and other persons having claims or demands against decedent’s estate on whom a copy of this notice is required to be served must file their claims with this court ON OR BEFORE THE LATER OF 3 MONTHS AFTER THE TIME OF THE FIRST PUBLICATION OF THIS NOTICE OR 30 DAYS AFTER THE DATE OF SERVICE OF A COPY OF THIS NOTICE ON THEM.
All other creditors of the decedent and other persons having claims or demands against decedent’s estate must file their claims with this Court WITHIN 3 MONTHS AFTER THE DATE OF THE FIRST PUBLICATION OF THIS NOTICE. ALL CLAIMS NOT FILED
FIRST INSERTION
IN THE CIRCUIT COURT FOR DUVAL COUNTY, FLORIDA PROBATE DIVISION File No. 16-2024-CP-002502
Division PR-A IN RE: ESTATE OF WILLIAM FRANKLIN WRIGHT, Deceased.
NOTICE TO CREDITORS
The administration of the estate of William Franklin Wright, deceased, whose date of death was August 16, 2024, is pending in the Circuit Court for Duval County, Florida, Probate Division, the address of which is 501 West Adams St., Room 1173, Jacksonville, FL 32202. The names and addresses of the personal representative and the personal representative’s attorney are set forth below.
All creditors of the decedent and other persons having claims or demands against decedent’s estate on whom a copy of this notice is required to be served must file their claims with this court ON OR BEFORE THE LATER OF 3 MONTHS AFTER THE TIME OF THE FIRST PUBLICATION OF THIS NOTICE OR 30 DAYS AFTER THE DATE OF SERVICE OF A COPY OF THIS NOTICE ON THEM.
The personal representative has no duty to discover whether any property held at the time of the decedent’s death by the decedent or the decedent’s surviving spouse is property to which the Florida Uniform Disposition of Community Property Rights at Death Act as described in ss. 732.216732.228, Florida Statutes, applies, or may apply, unless a written demand is made by a creditor as specified under s. 732.2211, Florida Statutes. All other creditors of the decedent and other persons having claims or demands against decedent’s estate must file their claims with this court WITHIN 3 MONTHS AFTER THE DATE OF THE FIRST PUBLICATION OF THIS NOTICE.
ALL CLAIMS NOT FILED WITHIN THE TIME PERIODS SET FORTH IN FLORIDA STATUTES SECTION 733.702 WILL BE FOREVER BARRED.
NOTWITHSTANDING THE TIME PERIODS SET FORTH ABOVE, ANY CLAIM FILED TWO (2) YEARS OR MORE AFTER THE DECEDENT’S DATE OF DEATH IS BARRED. The date of first publication of this notice is November 7, 2024.
Personal Representative: Ruth Katherine Geiger 4148 Stratford Way Jacksonville, Florida 32225
Attorney for Personal Representative: Candyce M. King, Esquire Florida Bar Number: 307210 King & Mannion, P.A. 2219 Park Street Jacksonville, FL 32204 Telephone: (904) 387-9886
Fax: (904) 387-9862
E-Mail: kingcandyce@bellsouth.net Nov. 7/14 00 (24-07019D)
FIRST INSERTION IN THE CIRCUIT COURT FOR DUVAL COUNTY, FLORIDA PROBATE DIVISION File No.: 16-2024-CP-002877
Division: PR-B IN RE: ESTATE OF ADA L. STEWARD WELLS, Deceased. NOTICE TO CREDITORS The administration of the estate of Ada L. Steward Wells, deceased, whose date of death was December 23, 2023, is pending in the Circuit Court for Duval County, Florida, Probate Division, the address of which is 501 West Adams Street, Jacksonville, Florida 32202. The names and addresses of the personal representative and the personal representative’s attorney are set forth below. All creditors of the decedent and other persons having claims or demands against decedent’s estate on whom a copy of this notice is required to be served must file their claims with this court ON OR BEFORE THE LATER OF 3 MONTHS AFTER THE TIME OF THE FIRST PUBLICATION OF THIS NOTICE OR 30 DAYS AFTER THE DATE OF SERVICE OF A COPY OF THIS NOTICE ON THEM.
The personal representative has no duty to discover whether any property held at the time of the decedent’s death by the decedent or the decedent’s surviving spouse is property to which the Florida Uniform Disposition of Community Property Rights at Death Act as described in ss. 732.216732.228, Florida Statutes, applies, or may apply, unless a written demand is made by a creditor as specified under s. 732.2211, Florida Statutes. All other creditors of the decedent and other persons having claims or demands against decedent’s estate must file their claims with this court WITHIN 3 MONTHS AFTER THE DATE OF THE FIRST PUBLICATION OF THIS NOTICE. ALL CLAIMS NOT FILED WITHIN THE TIME PERIODS SET FORTH IN FLORIDA STATUTES SECTION 733.702 WILL BE FOREVER BARRED. NOTWITHSTANDING THE TIME PERIODS SET FORTH ABOVE, ANY CLAIM FILED TWO (2) YEARS OR MORE AFTER THE DECEDENT’S DATE OF DEATH IS BARRED. The date of first publication of this notice is November 7, 2024. Personal Representative: Voncile D. Allen 6455 Kinlock Drive West Jacksonville, Florida 32219 Counsel for Personal Representative: Charlie J. Gillette, Jr., Esquire Gillette Law, P.A. Florida Bar Number: 0798010 603 N Market Street Jacksonville, FL 32202 Telephone: (904) 358-1304 Fax: (904) 355-1483 E-Mail: cgillette@gillettelaw.com Secondary E-Mail: n/a Counsel for Personal Representative Nov. 7/14 00 (24-07014D)
WITHIN THE TIME PERIODS SET FORTH IN SECTION 733.702 OF THE FLORIDA PROBATE CODE WILL BE FOREVER BARRED. NOTWITHSTANDING THE TIME PERIODS SET FORTH ABOVE, ANY CLAIM FILED TWO (2) YEARS OR MORE AFTER THE DECEDENT’S DATE OF DEATH IS BARRED.
A personal representative or curator has no duty to discover whether any property held at the time of the decedent’s death by the decedent or the decedent’s surviving spouse is property to which the Florida Uniform Disposition of Community Property Rights at Death Act as described in sections 732.216-732.228, applies, or may apply, unless a written demand is made by a creditor as specified under section 732.2211.
The date of thefirst publication of this Notice is November 7, 2024.
Personal Representative
WILLIAM LEON PRINGLE 6538 140 Avenue Holland, MI 49423
LISA JOAN PRINGLE 6538 140 Avenue Holland, MI 49423
Attorney for
Personal Representative
TIMOTHY P. KELLY, ESQUIRE Florida Bar No. 0724475
TIMOTHY P. KELLY, P.A. 1016 LaSalle Street Jacksonville, Florida 32207
Telephone: (904) 399-3705
Facsimile: (904) 399-3706
Email Service: Eservice@tkellypa.com Nov. 7/14 00 (24-07013D)
IN THE CIRCUIT COURT IN AND FOR DUVAL COUNTY, FLORIDA PROBATE DIVISION FILE NO.: 16-2024-CP-002987
DIVISION: PR-B IN RE: ESTATE OF JAMES LUGO GUEVARA, DECEASED. NOTICE TO CREDITORS
The administration of the estate of James Lugo Guevara, deceased, whose date of death was September 17, 2024, is pending in the Circuit Court for Duval County, Florida, Probate Division, the address of which is 501 W. Adams Street, Jacksonville, Florida 32202. The names and addresses of the personal representative and the personal representative’s attorney are set forth below.
All creditors of the decedent and other persons having claims or demands against decedent’s estate on whom a copy of this notice is required to be served must file their claims with this Court ON OR BEFORE THE LATER OF 3 MONTHS AFTER THE TIME OF THE FIRST PUBLICATION OF THIS NOTICE OR 30 DAYS AFTER THE DATE OF SERVICE OF A COPY OF THIS NOTICE ON THEM.
All other creditors of the decedent and other persons having claims or demand against decedent’s estate must file their claims with this Court WITHIN
3 MONTHS AFTER THE DATE OF THE FIRST PUBLICATION OF THIS NOTICE.
A personal representative or curator has no duty to discover whether any property held at the
time of the decedent’s death by the decedent or the decedent’s surviving spouse is property to which the Florida Uniform Disposition of Community Property Rights at Death Act, as described in Sections 732.216-732.228, applies, or may apply unless a written demand is made by a creditor as specified under section 732.2211. ALL CLAIMS NOT FILED WITHIN THE TIME PERIODS SET FORTH IN FLORIDA STATUTES SECTION 733.702 WILL BE FOREVER BARRED. NOTWITHSTANDING THE TIME PERIODS SET FORTH ABOVE, ANY CLAIM FILED TWO (2) YEARS OR MORE AFTER THE DECEDENT’S DEATH IS BARRED. The date of first publication of this notice is November 7, 2024. Personal
FIRST INSERTION IN THE CIRCUIT COURT, FOURTH JUDICIAL CIRCUIT IN AND FOR DUVAL COUNTY, FLORIDA
PROBATE DIVISION
CASE NO.: 16-2024-CP-002285
DIVISION: PR-B IN RE: ESTATE OF LOWELL E. ERIKSEN
Deceased.
NOTICE TO CREDITORS
The administration of the estate of LOWELL E. ERIKSEN, deceased, File Number: 16-2024CP-002285, Division PR-B is pending in the Circuit Court for Duval County, Florida, Probate Division, the address of which is 501 West Adams Street, Jacksonville, Florida 32202. The names and addresses of the Personal Representative and the Personal Representative’s attorney are set forth below. All creditors of the decedent and other persons having claims or demands against decedent’s estate on whom a copy of this notice is required to be served must file their claims with this court WITHIN THE LATER OF 3 MONTHS AFTER THE TIME OF THE FIRST PUBLICATION OF THIS NOTICE OR 30 DAYS AFTER THE DATE OF SERVICE OF A COPY OF THIS NOTICE ON THEM. All other creditors of the decedent and other persons having claims or demands against decedent’s estate must file their claims with this court WITHIN 3 MONTHS AFTER THE DATE OF THE FIRST PUBLICATION OF THIS NOTICE. ALL CLAIMS NOT FILED
WITHIN THE TIME PERIODS SET FORTH IN SECTION 733.702 OF THE FLORIDA PROBATE CODE WILL BE FOREVER BARRED. NOTWITHSTANDING THE TIME PERIODS SET FORTH ABOVE, ANY CLAIM FILED TWO (2) YEARS OR MORE AFTER THE DECEDENT’S DATE OF DEATH IS BARRED. A personal representative or curator has no duty to discover whether any property held at the time of the decedent’s death by the decedent or the decedent’s surviving spouse is property to which the Florida Uniform Disposition of Community Property Rights at Death Act as described in sections 732.216-732.228, applies, or may apply, unless a written demand is made by a creditor as specified under section 732.2211.
The date of first publication of this notice is November 7, 2024.
Personal Representative: J. F. Smith 2308 Mindanao Drive Jacksonville, Florida 32246
Attorney for Personal Representative
John David Horne, Esquire Florida Bar No. 1024078 Fuller, Dusinberre, Horne, PLLC 1845 East West Parkway, Suite 18 Fleming Island, Florida 32003
Telephone: (904) 264-0585
Primary email: jhorne@fdhattorneys.com
Secondary Email: twegmann@lawfuller.com
Tertiary Email: jwaugh@fdhattorneys.com Nov. 7/14 00 (24-07078D)
IN THE CIRCUIT COURT OF THE FOURTH JUDICIAL
CIRCUIT IN AND FOR DUVAL COUNTY, FLORIDA
CASE NO.: 16-2024-CA-001719
DIVISION: CV-G
OCONEE REAL ESTATE
HOLDINGS X – OASIS LLC, Plaintiff, v. CYCLONE OASIS 256 LLC, Defendant. NOTICE OF JUDICIAL SALE NOTICE OF SALE IS HEREBY GIVEN, pursuant to the order of the Final Judgment of Foreclosure, dated August 30, 2024, and entered in 16-2024-CA-001719 of the Circuit Court of the Fourth Judicial Circuit in and for Duval County, wherein CYCLONE OASIS 256 LLC is the Defendant. The office of Jody Phillips, the Duval County Clerk of the Court, will sell to the highest bidder for cash via electronic sale at the following website: www.duval.realforeclose.com at 11:00 AM on the 26th day of November 2024, the following described property as set forth in said Final Judgment of Foreclosure to wit: A part of the Southwest 1/4 of the Southwest 1/4 of Section 5, Township 4 South, Range 27 East, Duval County, Florida, being more particularly described as follows: For a Point of Reference commence at the Southwesterly corner of said Section 5, said corner lying in the centerline of Claire Lane, a 60.0 foot rightof-way as now established, from the Point of Reference thus described run North 1° 47’ 48” East, along the Westerly line of said Section 5, a distance of 30.03 feet to the Point of Beginning, said Point of Beginning lying in the Northerly right-of-way line of Claire Lane; from the Point of Beginning thus described run North 1° 47’ 48” East, along the said Westerly line of Section 5, a distance of 1212.11 feet to its intersection with the Southwesterly right-ofway line of Interstate 1-295; thence South 50° 55’ 26” East, along the said Southwesterly right-of-way line of 1-295, a distance of 195.23 feet; thence continue along said Southwesterly right-of-way line of 1-295 South 48° 09’ 43” East, 1062.21 feet to the point of a curve to the left,. said curve being, concave to the Northeast and having a radius of 11,609.16 feet; thence Southeasterly along and around said curve an arc distance of 588.75 feet; said curve being subtended by a chord bearing and distance of South 49° 36’ 52” East, 588.69 feet, said point being the point of a non-tangent curve said curve being concave to the Southwest and having a radius of 210.0 feet; thence Northwesterly along and around said curve an arc distance of 145.15 feet to the
FIRST INSERTION
NOTICE OF SALE - AUCTION
NOTICE OF SALE these vehicles will be sold at public auction at Allied Auto and Truck Repair, Inc. @ 9854 Lem Turner Rd., Jacksonville, FL 32208 commencing at 10am on 12-02-2024. (2006 Infinity
Vin # JNKAY01F26M259735), (2006 Sion
Vin # JTLKT324564126359), (2011 Nissan
Vin # 1N4AA5AP2BC865571), (2004 VW
VIN # 3VWCK31C94M417425), (2007 VW
Vin # 3VWRF31Y07M423824), (2004 Nissan
Vin # 5N1BV28U54N345431), (2000 GMC
Vin # 1GTCS19W6Y8245337), (2008 Chevy
Vin # 1G1ZG57B28F172278), (2000 GMC
Vin # 1GTCS1948Y8174351). Nov. 7/14 00 (24-07000D)
NOTICE
Extra Space Storage, on behalf of itself or its affiliates, Life Storage or Storage Express, will hold a public auction to sell personal property described below belonging to those individuals listed below at the location indicated: 6611 Southpoint Parkway, Jacksonville, FL 32216 on Tuesday, November 26th, 2024 at 12:30 PM
FIRST INSERTION
NOTICE
Extra Space Storage, on behalf of itself or its affiliates, Life Storage or Storage Express, will hold a public auction to sell personal property described below belonging to those individuals listed below at the location indicated: 5550 Timuquana Rd Jacksonville, Fl 32210 on November 26th, 2024 at 9:30 AM EST Alonzo Dryeclothes, personal items Mark Pierce-car Ladreeka AtwaterHousehold goods Trazell TarpleyWasher & dryer, clothes, dressers The auction will be listed and advertised on www.storagetreasures.com. Purchases must be made with cash only and paid at the above referenced facility in order to complete the transaction. Extra Space Storage may refuse any bid and may rescind any purchase up until the winning bidder takes possession of the personal property.
Nov. 7/14 00 (24-07007D)
FIRST INSERTION
NOTICE
Extra Space Storage, on behalf of itself or its affiliates, Life Storage or Storage Express, will hold a public auction to sell personal property described below belonging to those individuals listed below at the location indicated:
FIRST INSERTION
NOTICE
Extra Space Storage, on behalf of itself or its affiliates, Life Storage or Storage Express, will hold a public auction to sell personal property described below belonging to those individuals listed below at the location indicated: 3858 Old Sunbeam Rd. Jacksonville, FL 32257 on Tuesday, November 26, 2024 at 11:00 AM Mario RochaOutside entertainment
The auction will be listed and advertised on www.storagetreasures.com. Purchases must be made with CASH ONLY and paid at the above referenced facility in order to complete the transaction.
Extra Space Storage may refuse any bid and may rescind any purchase up until the winning bidder takes possession of the personal property Nov. 7/14 00 (24-07012D)
NOTICE
point of tangency of said curve, said curve being subtended by a chord bearing and distance of North 70° 52’ 07” West, 142.28 feet, said curve also being the Northerly right of way line of Lake Mandarin Circle East; thence South 89° 19’ 50” West, along said Northerly right of way line of Lake Mandarin Circle East, a distance of 97.02 feet to the point of a curve to the left, said curve being concave to the Southeast and having a radius of 294.45 feet; thence Southwesterly along and around said curve an arc distance of 93.29 feet to the point of reverse curve, said curve being subtended by a chord bearing and distance of South 80° 15’ 14” West, 92.9 feet, said reverse curve being concave to the Northwest and having a radius of 308.27 feet; thence Southwesterly along and around said curve an arc distance of 97.67 feet to the point of tangency of said curve, said curve being subtended by a chord bearing and distance of South 80° 15’ 14” West, 97.26 feet, said curve being the Northerly right of way line of the aforesaid Claire Lane; thence continue along the Northerly right of way line of Claire Lane South 89° 19’ 50” West. 1010.57 feet of the Point of Beginning, PARCEL NO. 155744-0500, commonly known as 3355 Claire Lane, Jacksonville, Florida 32223 Property Address: 3355 Claire Lane, Jacksonville, Florida 32223.
Any person claiming an interest in the surplus from the sale, if any, other than the property owner as of the date of the Lis Pendens, must file a claim before the clerk reports the surplus as unclaimed. Americans With Disabilities Act (ADA) Notice In accordance with the Americans with Disabilities Act of 1990 (ADA), If you are a person with a disability who needs any accommodation in order to participate in this proceeding, you are entitled at no cost to you, to the provision of certain assistance. Please contact the ADA Coordinator at crtintrp@coj.net or (904) 255-1695 at least 7 days before your scheduled court appearance, or immediately upon receiving this notification if the time before the scheduled appearance is less than 7 days; if you are hearing or voice impaired, call 711. WITNESS MY HAND and the seal of this Court on October 31, 2024.
JODY PHILLIPS Clerk of the Circuit Court By: Pamela R. Harrell Deputy Clerk (Court Seal) PLAINTIFF ATTORNEY NARDO DORSIN 315 S BISCAYNE BLVD SUITE 400 MIAMI , FL 33131 305-921-1848 Nov. 7/14 00 (24-07036D)
Nature Bettingerfurniture, clothes Sheronda Coopersectional, 2 chairs, 2 queen Terrance Omyrick- 2 beds, entertainment center, kids items Greg Cheney- boxes clothes shoes Vivian Crawfordauction contents NELSON SKYLER KEENHousehold Goods
The auction will be listed and advertised on www.storagetreasures.com. Purchases must be made with CASH ONLY and paid at the above referenced facility in order to complete the transaction. Extra Space Storage may refuse any bid and may rescind any purchase up until the winning bidder takes possession of the personal property Nov. 7/14 00 (24-07016D)
FIRST INSERTION IN THE COUNTY COURT OF THE FOURTH JUDICIAL CIRCUIT, IN AND FOR DUVAL COUNTY, FLORIDA CASE NO.: 16-2023-CC-019548
DIVISION: CC-N
PECAN PARK HOMEOWNERS ASSOCIATION, INC., a Florida non-profit corporation, Plaintiff, v. DONALD M ASHLEY, et al., Defendant(s).
NOTICE OF FORECLOSURE SALE
NOTICE IS GIVEN that the undersigned Clerk of the Court will offer the following described property in Duval County, Florida: Street Address: 1515 Paso Fino Drive Jacksonville, FL
32218
Legal Description: Lot 382, Lexington Park Phase Two, according to the plat thereof, recorded in Plat Book 64, Page(s) 38 through 47, inclusive, of the Public Records of Duval County, Florida. for sale to the highest bidder for cash on January 30, 2025, at 11:00 a.m. at www.duval.realforeclose.com pursuant to the Final Judgment of Foreclosure in this action dated October 30, 2024.
Any person claiming an interest in the surplus from the sale, if any, other than the property owner as of the date of the Lis Pendens, must file a claim before the clerk reports the surplus as unclaimed. Americans With Disabilities Act (ADA) Notice In accordance with the Americans with Disabilities Act of 1990 (ADA), If you are a person with a disability who needs any accommodation in order to participate in this proceeding, you are entitled at no cost to you, to the provision of certain assistance. Please contact the ADA Coordinator at crtintrp@coj.net or (904) 255-1695 at least 7 days before your scheduled court appearance, or immediately upon receiving this notification if the time before the scheduled appearance is less than 7 days; if you are hearing or voice impaired, call 711. DATED this 31st day of October, 2024.
JODY PHILLIPS
CLERK OF COURT
By: Joy E. Rodriguez Deputy Clerk (Court Seal)
David D. Rottmann, Esq.
Coker Law
Extra Space Storage, 2004 Edison Ave, Jacksonville, Florida 32204. Auction date: November 26, 2024 at 1:30pm Lasalle Weeks, Household goods Brandon richardson, household items Stanley lowe, fishing poles and fishing gear KEISHA MULDROW, 3 bedrooms, clothing and boxes Sonja Mack, Household goods Ora Young, I have a queen size bed/mattress.. twin size house bed Barbie doll house, twin boy car bed Blake Hensley, Shirt press flash dryer small tool boxes dufflebag bass Amp and guitar
The auction will be listed and advertised on www.storagetreasures.com. Purchases must be made with cash only and paid at the above referenced facility in order to complete the transaction. Extra Space Storage may refuse any bid and may rescind any purchase up until the winning bidder takes possession of the personal property. Nov. 7/14 00 (24-07031D)
FIRST INSERTION
IN THE CIRCUIT COURT OF THE FOURTH JUDICIAL CIRCUIT IN AND FOR DUVAL COUNTY, FLORIDA Case No.: 16-2023-CA-008592
DIVISION: FC-G Groundfloor Jacksonville, LLC, Plaintiff, vs. H.Y.P.A Real-Estate, LLC, Thomas A. Webster, Jr., and Ulisa Webster, Defendants.
NOTICE OF ACTION
TO: The defendants Thomas A. Webster, Jr., and Ulisa Webster and all others whom it may concern: YOU ARE NOTIFIED that an action to foreclose a mortgage has been filed against you regarding the following real property in DUVAL COUNTY, FLORIDA: Parcel 1.: Lot 8, Block 8, GRAND PARK, according to the Map or Plat thereof, as recorded in Plat Book 2, Pages 59 and 60, of the Public Records of Duval County, Florida, a/k/a 3819 Penton Street, Jacksonville, FL 32209; Parcel 2: Lots 19 and 20, Block 3 of Edgewood Park, according to the Plat thereof as recorded in Plat Book 12, Page(s) 2, of the Public Records of Duval County, Florida, a/k/a 5432 Tyler Avenue, Jacksonville, FL 32254. You are required to serve a copy of your written defenses, if any to it on McKillop Law Firm, the Plaintiffs attorney, whose address is 7563 Philips Highway, Building 500, Jacksonville, FL 32256 on or before thirty (30) days after the first publication of this Notice, and file the original with the Clerk of this Court either before service on the Plaintiff’s attorney or immediately thereafter; otherwise a default will be entered against you for the relief demanded in the Complaint. DATED on October 30, 2024.
JODY PHILLIPS CLERK OF THE CIRCUIT COURT
FIRST INSERTION
NOTICE
Extra Space Storage, on behalf of itself or its affiliates, Life Storage or Storage Express, will hold a public auction to sell personal property described below belonging to those individuals listed below at the location indicated: Extra Space Storage, 9914 San Jose Blvd, Jacksonville, FL 32257, on November 26th, 2024 at 11:30am.
Timothy BowersHousehold goods
Mark Mackoul - Household goods The auction will be listed and advertised on www.storagetreasures.com. Purchases must be made with cash only and paid at the above referenced facility in order to complete the transaction.
Extra Space Storage may refuse any bid and may rescind any purchase up until the winning bidder takes possession of the personal property Nov. 7/14 00 (24-07011D)
Extra Space Storage, on behalf of itself or its affiliates, Life Storage or Storage Express, will hold a public auction to sell personal property described below belonging to those individuals listed below at the location indicated: 100 Girvin Rd, Jacksonville FL, 32225 November 26, 2024 at 12:00pm. Zachary FooteHousehold goods & furniture. The auction will be listed and advertised on www.storagetreasures.com Purchases must be made with cash only and paid at the above referenced facility in order to complete the transaction. Extra Space Storage may refuse any bid and may rescind any purchase up until the winning bidder takes possession of the personal property.
Nov. 7/14 00 (24-07022D)
FIRST INSERTION
NOTICE Extra Space Storage, on behalf of itself or its affiliates, Life Storage or Storage Express, will hold a public auction to sell personal property described below belonging to those individuals listed below at the location indicated: 5017 Bowden Rd Jacksonville Fl 32216 11/26/2024 @ 11a.m.
Solomon Thomas - House Goods
Tameka Collier - House Goods Brandon Moore - House Goods
Melanie Duros - House Goods
Laquanda Thomas - House Goods
James Green - House Goods
Adam Martin - House Goods
The auction will be listed and advertised on www.storagetreasures.com. Purchases must be made with cash only and paid at the above referenced facility in order to complete the transaction.
Extra Space Storage may refuse any bid and may rescind any purchase up until the winning bidder takes possession of the personal property.
Nov. 7/14 00 (24-07023D)
FIRST INSERTION
NOTICE
Extra Space Storage, on behalf of itself or its affiliates, Life Storage or Storage Express, will hold a public auction to sell personal property described below belonging to those individuals listed below at the location indicated: 7657 103rd St Jacksonville, FL 32210, November 26th at 11:00AM Mary PolkeHousehold Goods/Furniture Raynal Dallas - tools Angelita MaloneHousehold Goods/ Furniture, Boxes Artarshia EdwardsHousehold Goods/Furniture lashay johnson - bins Ashley Odol - Bed, Tv’s Jeffie Clark III - Mattress, boxes Ashley Mcfaddenmattresses dressers, beds, totes, boxes Justin AveryHousehold Goods/Furniture
Timothy StraughterHousehold Goods/Furniture, Tools/Appliances Jaezza FordHousehold Goods/Furniture
The auction will be listed and advertised on www.storagetreasures.com. Purchases must be made with cash only and paid at the above referenced facility in order to complete the transaction.
Extra Space Storage may refuse any bid and may rescind any purchase up until the winning bidder takes possession of the personal property.
NOTICE Extra Space Storage, on behalf of itself or its affiliates, Life Storage or Storage Express, will hold a public auction to sell personal property described below belonging to those individuals listed below at the location indicated: 45 Jefferson Rd, Jacksonville Fl 32225 11/26/2024 @1:00pm. Gertrude Turner - House Goods Shawn Hill - House Goods Keyerra Bivens - House Goods Amy Townsend - House Goods The auction will be listed and advertised on www.storagetreasures.com. Purchases must be made with cash only and paid at the above referenced facility in order to complete the transaction. Extra Space
FIRST INSERTION ADVERTISEMENT OF SALE NOTICE IS HEREBY GIVEN that the undersigned intends to sell the personal property described below to enforce a lien imposed on said property under The Florida Self Storage Facility Act. Bidding takes place on lockerfox.com and concludes Tuesday the 26th day of November, 2024 at 9:00 AM with payment at the facility. Store Space Durbin Park, 1195 Saint Johns Parkway, Jacksonville, FL, 32259. Kia Sumpter ; Mercedes Ross ; Stephiney Smith ; Paul Askew ; Sherell Johnson ; Matthew Kilgore ; Mariah Bedford ; Store Space San Marco, 1820 Kings Ave., Jacksonville, FL, 32207. Carlexia Richardson ; Olivia Smith ; Lara Carson ; Cheyanna Rudd ; Leroy Mosley ; Karina Ramos ; Sherri Howard ; Reginald Graham ; Alfred Chambliss ; Armelia King ; Armelia King ; Jasmine Latimer ; Anthony Terry ; Shandwuan Rackard ; Anthony Smith ; Kinda Smith ; Lashae Carter ; Charliese Jones ; Holly Bourgeois ; James Ladson ; Anthony Jones ; Dasani Griffin ; Elisha A Fripp ; Ebony Norman ; Jaqaris Walton ; Diedre Robinson ; Perri V Lewis ; Mya Gaston ; William L Wall Nov. 7/14 00 (24-07008D) FIRST INSERTION
136 East Bay Street Jacksonville, FL 32202 Nov. 7/14 00 (24-07035D) FIRST INSERTION PUBLIC NOTICE OF SALE NOTICE IS HEREBY GIVEN that the undersigned intends
By: Pamela R. Harrell As Deputy Clerk (Court Seal) Nov. 7/14 00 (24-07028D)
Nov. 7/14 00 (24-07021D)
FIRST INSERTION
NOTICE OF PUBLIC SALE
Notice is hereby given that on 11/22/2024 at 10:30 am, the following mobile home will be sold at public auction pursuant to F.S. 715.109. 1997 LIBE HS 10L25728X & 10L25728U. Last Tenants: JUNE P COSSELMON and all unknown parties beneficiaries heirs. Sale to be at ADMIRALS WALK MHC, LLC, 2268 MAYPORT RD OFFICE, JACKSONVILLE, FL 32233. 904-2426404. Nov. 7/14 00 (24-07123D)
FIRST INSERTION
INVITATION FOR BIDS
CN-008-25, Roof Replacements
– Riviera Apartments
Pre-Bid Meeting: November 18, 2024, at 3:00 p.m. EST Via Microsoft Teams –Please contact Tracy Brady At tbrady@jaxha.org for the meeting information.
Bid Due: December 19, 2024, at 3:00 p.m. EST Jacksonville Housing Authority 1300 Broad Street N. Jacksonville, FL 32202 More information including the solicitation and scope will be located on the JHA’s website at: http://www.jaxha.org/ e-procurement Nov. 7/14 00 (24-07061D)
INSERTION
NOTICE OF PUBLIC LIEN SALE NOTICE IS HERBY GIVEN that the undersigned intends to sell the personal property described below to enforce a lien imposed on said property under the Florida Self Storage Facility Act Statutes (Section 83.801-83.809). The property contained in the storage unit at Discount Mini Storage of Jacksonville, 5134 Firestone Rd, Jacksonville, FL 32210 will be sold or otherwise disposed of at STORAGETREASURES. COM. The online auction date is November 26, 2024 at 11:00AM or thereafter: Unit #515 Richard Hill Boxes, HHG, Toolbox, W/D Unit #617 Richard Hill Furn, HHG, Gym Equip Unit #824 Chequetta Mclean Plastic bags, Minifridge, Speaker Nov. 7/14 00 (24-07122D)
FIRST INSERTION
NOTICE
Extra Space Storage, on behalf of itself or its affiliates, Life Storage or Storage Express, will hold a public auction to sell personal property described below belonging to those individuals listed below at the location indicated: 3445 Plymouth Street Jacksonville FL 32205, on November 26th, 2024 at 2pm.
Tanzania Jones Household goods Tara Lavertue Clothes Tatiana Hutchison transfer from 2001. Furniture and boxes Elizabeth Williams household items, furniture Kristin Nemanic Household goods
The auction will be listed and advertised on www.storagetreasures.com. Purchases must be made with cash only and paid at the above referenced facility in order to complete the transaction. Extra Space Storage may refuse any bid and may rescind any purchase up until the winning bidder takes possession of the personal property. Nov. 7/14 00 (24-07109D)
INVITATION TO BID NUMBER 25-02-17111
ACCESS CONTROL SUPPLIES for the JACKSONVILLE AVIATION AUTHORITY The Jacksonville Aviation Authority (JAA) has instituted an electronic submission process for the above referenced solicitation. Questions regarding this bid must be received by 5:00 PM (local time) on Friday, November 15, 2024 for consideration. JAA will receive bids electronically via DemandStar.com until 2:00 PM (local time) on Monday, December 2, 2024. HAND DELIVERED, MAILED, FAXED OR EMAILED BIDS WILL NOT BE ACCEPTED. To register with Demand Star. com, visit: https://www.demandstar.com/registration All bids must be submitted in accordance with Bid Number 25-02-17111, which may be obtained on Tuesday, November 5, 2024 from www.flyjacksonville. com (click on “Bid Opportunities”) or DemandStar.com This solicitation
CITY OF JACKSONVILLE
Opportunities
FIRST INSERTION BID NOTICE
CITY OF JACKSONVILLE INVITATION TO BID BIDS MUST BE RECEIVED BY THE CITY OF JACKSONVILLE PROCUREMENT DIVISION IN 1CLOUD BY NO LATER THAN THE DATE AND TIME BELOW. THURSDAY AUGUST 29, 2024 @ 10:00 A.M. 1Cloud E-Bidding System ITB-16202-25 DISPOSITION OF VEGETATIVE AND ARBORICULTURAL DEBRIS MELISSA PIERCE ANALYST 904-255-8835
SCOPE OF WORK: THE CITY OF JACKSONVILLE’S PROCUREMENT DIVISION IS CURRENTLY ACCEPTING BIDS TO OBTAIN A SOURCE OF SUPPLY FOR THE ITEM(S)/SERVICE(S) AS OUTLINED IN THE BID DOCUMENTS PROVIDED. THE PURPOSE OF THIS BID INVITATION IS TO OBTAIN INFORMATION ABOUT YOUR FIRM AND ITS ABILITY TO PROVIDE THESE ITEM(S)/SERVICE(S) AND TO OBTAIN PRICING COMMITMENTS FOR THE DISPOSITION OF VEGETATIVE AND ARBORICULTURAL DEBRIS AS LISTED IN THE BID DOCUMENTS. DONNA DEGAN, MAYOR CITY OF JACKSONVILLE, FLORIDA DUSTIN FREEMAN, CHIEF PROCUREMENT DIVISION Nov. 7/14/21 00 (24-07124D)
FIRST INSERTION IN THE CIRCUIT COURT, FOURTH JUDICIAL CIRCUIT IN AND FOR DUVAL COUNTY, FLORIDA File No.: 16-2024-CP-001678 Division: PR-A IN RE: ESTATE OF KATHERINE ROBERSON, Deceased. NOTICE TO CREDITORS The administration of the estate of KATHERINE ROBERSON, deceased, whose date of death July 2, 2022, is pending in the Circuit Court of DUVAL County, Florida, Probate Division, the address of which is 501 West Adams Street, Jacksonville, Florida 32202. The name of the estate’s administrator and the name and address of the administrator’s attorney are set forth below.
All creditors of the deceased and other persons having claims or demands against the estate of the deceased on whom a copy of this notice is required to be served must file their claims WITHIN THE LATER OF 3 MONTHS AFTER THE TIME OF THE FIRST PUBLICATION OF THIS NOTICE OR 30 DAYS AFTER THE DATE OF SERVICE OF A COPY OF THIS NOTICE ON THEM.
All other creditors of the deceased and other persons having claims against the estate of the deceased on whom a copy of this notice is required to be served must file their claims with this court WITHIN 3 MONTHS AFTER THE DATE OF THE FIRST PUBLICATION OF THIS NOTICE.

There’s nothing more invigorating for your bottom line than staying on top of Northeast Florida’s latest developments. Our veteran reporters provide the in-depth insights and key takeaways that positively impact your business.
Subscribe to the Jacksonville Daily Record today for the must-have information to help your company grow and prosper.
to
regulations. Nov.
00 (24-07114D)
ALL CLAIMS NOT FILED WITHIN THE TIME PERIODS SET FORTH IN SECTION 733.702 OF THE FLORIDA PROBATE CODE WILL BE FOREVER BARRED. NOTWITHSTANDING THE TIME PERIODS SET FORTH ABOVE, ANY CLAIM FILED TWO (2) YEARS OR MORE AFTER THE DECEDENT’S DATE OF DEATH IS BARRED. A personal representative or curator has no duty to discover whether any property held at the time of the decedent’s death by the decedent or the decedent’s surviving spouse is property to which the Florida Uniform Disposition of Community Property Rights at Death Act as described in sections 732.216-732.228, applies, or may apply, unless a written demand is made by a creditor as specified under section 732.2211. The date of first publication of this notice is November 7, 2024. Estate Administrator: Latoya Roberson 2400 Royalty Court Jacksonville, FL 32254 Attorney for Estate Administrator: J. Mechelle Herrington Florida Bar No.: 35919 jmherringtonlaw@gmail.com Law Office of J. Mechelle Herrington, P.A. 3450 Dunn Ave Suite 105 Jacksonville, FL 32218 (904) 748-9497 phone Attorney for Petitioner Nov. 7/14 00 (24-07113D)
FIRST INSERTION
NOTICE UNDER FICTITIOUS NAME LAW
According to Florida Statute Number 865.09
NOTICE IS HEREBY GIVEN that the undersigned, desiring to engage in business under the Fictitious Name of Marilyn Daily Pay located at 4500 Baymeadows RD APT 243, in the City of Jacksonville, Duval County, Florida 32217 intends to register the said name with the Division of Corporations of the Department of State, Tallahassee, Florida. Dated at Jacksonville, Florida, this 1st day of November, 2024. Marilyn Edie Koyenum Nov. 7 00 (24-07058D)
FIRST INSERTION
NOTICE UNDER FICTITIOUS NAME LAW
According to Florida Statute Number 865.09
NOTICE IS HEREBY GIVEN that the undersigned, desiring to engage in business under the Fictitious Name of Oh Sweet Honey Bee located at 3725 172nd Street, in the City of Welborn, FL County, Florida 32094 intends to register the said name with the Division of Corporations of the Department of State, Tallahassee, Florida. Dated at Jacksonville, Florida, this 4th day of November, 2024. Rol By: Robert P. O’Linn Jr Nov. 7 00 (24-07066D)
FIRST INSERTION
NOTICE UNDER FICTITIOUS NAME LAW
According to Florida Statute Number 865.09
NOTICE IS HEREBY GIVEN that the undersigned, desiring to engage in business under the Fictitious Name of Holiday Music and Film Awards®️ located at Po box 550944, in the City of Jacksonville , Duval County, Florida 32255 intends to register the said name with the Division of Corporations of the Department of State, Tallahassee, Florida. Dated at Jacksonville, Florida, this 2nd day of November, 2024. 34th Street Media, LLC Nov. 7 00 (24-07065D)

PUBLIC
The Jacksonville Transportation Authority will require a contractor to provide services for ITB No. 25-002-F MAOC Electrical Panel Upgrades Bldg 6. All interested may contact the Jacksonville Transportation Authority, Procurement Department, 100 LaVilla Center Drive, Jacksonville, Florida 32204 or email procurement@jtafla.com. To obtain a copy of the Solicitation visit https://procurement.opengov. com/portal/jtafla Deadline for questions regarding the plans and/or specifications is 12:00 PM, Friday, November 15, 2024. Questions must be submitted in writing on the JTA Procurement Portal. The Jacksonville Transportation Authority is an Equal Opportunity Employer and encourages expressions of interest for the described services from Disadvantaged Business Enterprises. Bids must be uploaded to the JTA Procurement Portal no later than 2:00 PM., Monday, December 2, 2024 Nov. 7 00 (24-07024D)
FIRST INSERTION NOTICE OF PUBLIC HEARING NOTICE IS HEREBY GIVEN that on Thursday, November 21, 2024, at 1:00 P.M., the Planning Commission of the City of Jacksonville will hold a Public Hearing in the Edward Ball Building, 214 North Hogan Street, 1st Floor –Room 1002, Jacksonville, Florida 32202.
The purpose of this meeting is to consider application for: Variance: V-24-22
The street address and/or location for the property 620 Chaffee Road South (RE: 001848-0000) between West of Chaffee Road South and Crystal Springs Road in the City of Jacksonville. This application was filed by Mike Sittner, Esquire, Driver, McAfee, Hawthorne & Diebenow, PLLC, 1 Independent Drive, Suite 1200, Jacksonville, FL. This property is currently zoned CCG-1
NOTICE UNDER FICTITIOUS NAME LAW
According to Florida Statute Number 865.09
NOTICE IS HEREBY GIVEN that the undersigned, desiring to engage in business under the Fictitious Name of Luis M Perez Trucking located at 11974 Alexandra Dr, in the City of Jacksonville , Duval County, Florida 32218 intends to register the said name with the Division of Corporations of the Department of State, Tallahassee, Florida.
Dated at Jacksonville, Florida, this 2nd day of November, 2024. Luis M Perez Nov. 7 00 (24-07064D)
FIRST INSERTION
NOTICE UNDER FICTITIOUS NAME LAW
According to Florida Statute Number 865.09
NOTICE IS HEREBY GIVEN that the undersigned, desiring to engage in business under the Fictitious Name of IT Buddii located at 10990 FORT CAROLINE RD, in the City of Jacksonville, Duval County, Florida 32225 intends to register the said name with the Division of Corporations of the Department of State, Tallahassee, Florida. Dated at Jacksonville, Florida, this 4th day of November, 2024.
LORENXIS LLC Nov. 7 00 (24-07082D)
FIRST INSERTION NOTICE OF PUBLIC HEARING NOTICE IS HEREBY GIVEN that on Thursday, November 21, 2024, at 1:00 P.M., the Planning Commission of the City of Jacksonville will hold a Public Hearing in the Edward Ball Building, 1st Floor, Hearing Room - 1002, 214 North Hogan Street, Jacksonville, Florida 32202.
The purpose of this meeting is to consider application for: Exception: E-24-55
FIRST INSERTION
NOTICE UNDER FICTITIOUS NAME LAW
According to Florida Statute Number 865.09 NOTICE IS HEREBY GIVEN that the undersigned, desiring to engage in business under the Fictitious Name of PUN & DONE located at 10175 Fortune Parkway, in the City of Jacksonville, Florida County, Florida 32256 intends to register the said name with the Division of Corporations of the Department of State, Tallahassee, Florida. Dated at Jacksonville, Florida, this 2nd day of November, 2024. THE REGAL BAMBOO, LLC Nov. 7 00 (24-07063D)
FIRST INSERTION
NOTICE OF PUBLIC SALE
WILSONS gives notice that on 11/22/2024 at 09:00 AM the following vehicles(s) may be sold by public sale at 1882 DUNN AVE, JACKSONVILLE, FL 32218 to satisfy the lien for the amount owed on each vehicle for any recovery, towing, or storage services charges and administrative fees allowed pursuant to Florida statute 713.78.
1G6AB5RX6F0104127 2015 CADI
2FABP7BV8AX102368 2010 FORD This notification is published in JACKSONVILLE DAILY RECORD on 11/7/2024. Nov. 7 00 (24-07089D) Nov. 7
FIRST INSERTION
NOTICE OF MEETING OF THE BOARD OF SUPERVISORS CYPRESS BLUFF COMMUNITY
DEVELOPMENT DISTRICT
Notice is hereby given that the Cypress Bluff Community Development District (“District”) will hold a regular meeting (“Meeting”) of the Board of Supervisors (“Board”) on Tuesday, November 19, 2024 at 1:30 p.m. at the Southeast Regional Library, 10599 Deerwood Park Boulevard, Jacksonville, Florida 32256, where the Board may consider any business that may properly come before it. The Meeting is open to the public and will be conducted in accordance with the provisions of Florida law for community development districts. The Meeting may be continued to a date, time, and place to be specified on the record at such Meeting.
An electronic copy of the agenda may be obtained by contacting the office of the District Manager, c/o Governmental Management Services, LLC, 475 West Town Place, Suite 114, St. Augustine, Florida 32092, (904) 940-5850 (“District Manager’s Office”) during normal business hours, and will be available on the District’s website, www.CypressBluffCDD.com.
Any person requiring special accommodations at the meeting because of a disability or physical impairment should contact the District Manager’s Office at least forty-eight (48) hours prior to the meeting. If you are hearing or speech impaired, please contact the Florida Relay Service by dialing 7-1-1, or 1-800-955-8771 (TTY) / 1-800-955-8770 (Voice), for aid in contacting the District Manager’s Office.
Each person who decides to appeal any decision made by the Board with respect to any matter considered at the Meetings is advised that person will need a record of proceedings and that accordingly, the person may need to ensure that a verbatim record of the proceedings is made, including the testimony and evidence upon which such appeal is to be based.
Jim Oliver District Manager Nov. 7 00 (24-07005D)
FIRST INSERTION
NOTICE OF BOARD OF SUPERVISORS MEETING OF THE TISON’S LANDING COMMUNITY DEVELOPMENT DISTRICT
Notice is hereby given that the Tison’s Landing Community Development District (“District”) is scheduled to hold a Board of Supervisors meeting on Thursday, November 14, 2024 at 6:00 p.m. at the Yellow Bluff Amenity Center located at 16529 Tisons Bluff Road, Jacksonville, Florida. During the meeting, the Board is expected to consider and discuss various proposals, staff reports, and any other business which may lawfully and properly come before the Board. This Notice is given in accordance with the requirements of Sections 189.417 and 120.54(5) (b)2, Florida Statutes.
The meeting is open to the public and will be conducted in accordance with the provisions of Florida Law for Community Development Districts. The meeting may be continued to a date, time, and place to be specified on the record at the meeting. An electronic copy of the agenda for the meeting may be obtained by visiting the District’s website at www. TisonsLandingCDD.com. Any person requiring special accommodations to attend the meeting because of a disability or physical impairment or who may need assistance to attend the meeting telephonically should contact the District Office at 475 West Town Place, Suite 114, St. Augustine, Florida 32092 or (904) 940-5850 at least five calendar days prior to the meeting. If you are hearing or speech impaired, please contact the Florida Relay Service by dialing 7-1-1, or 1-800-955-8771 (TTY) / 1-800-955-8770 (Voice), for aid in contacting the District Manager’s Office. Each person who decides to appeal any action taken at the meeting is advised that person will need a record of the proceedings and that accordingly, the person may need to ensure that a verbatim record of the proceedings is made, including the testimony and evidence upon which such appeal is to be based.
Daniel Laughlin District Manager Nov. 7 00 (24-07004D)
FIRST INSERTION
BEACH COMMUNITY
DEVELOPMENT DISTRICT
NOTICE OF BOARD OF SUPERVISORS REGULAR MEETING
Notice is hereby given that a regular meeting of the Board of Supervisors of the Beach Community Development District (the District”) will be held on Monday, November 18, 2024, at 6:00 p.m. at 12788 Meritage Blvd. Jacksonville, FL 32246. The purpose of the meeting is to discuss any topics presented to the board for consideration.
Copies of the agenda may be obtained from the District Manager, Vesta District Services, 250 International Parkway, Suite 208, Lake Mary, Florida 32746, Telephone (321) 263-0132, Ext. 193.
The meeting is open to the public and will be conducted in accordance with the provisions of Florida law for community development districts. The meeting may be continued in progress without additional notice to a date, time, and place to be specified on the record at the meeting. There may be occasions when Staff and/or Supervisors may participate by speaker telephone.
Pursuant to provisions of the Americans with Disabilities Act, any person requiring special accommodations to participate in the meeting is asked to advise the District Manager’s office at least forty-eight (48) hours before the meeting by contacting the District Manager at (321) 263-0132, Ext. 193. If you are hearing or speech impaired, please contact the Florida Relay Service at 711, for assistance in contacting the District Manager’s office.
A person who decides to appeal any decision made at the meeting, with respect to any matter considered at the meeting, is advised that a record of the proceedings is needed and that accordingly, the person may need to ensure that a verbatim record of the proceedings is made, including the testimony and evidence upon which the appeal is to be based.
Beach Community Development District David McInnes, District Manager (321) 263-0132, Ext. 193 Nov. 7 00 (24-07080D)
Variance Sought: 1) Increase parking from 74 to 90, eliminate impervious spaces and reduce uncomplimentary buffer from 15 feet to 10 feet
A copy of the application containing the legal description can be faxed, mailed or e-mailed to you at your request by contacting the Planning and Development Department at (904) 255-7865
All interested parties are notified to be present and will be heard at the public hearing.
Michael McGowan, Chair Jacksonville Planning Commission City of Jacksonville
Dated this 1st day of November. Nov. 7 00 (24-07055D)
Notice of Public Auction.
Auction Date, Wednesday ,November 30th, 2024 at 10am EST, Located at Jax carz, 7227 Atlantic blvd suite 2, Jacksonville, Fl, 32211, (904) 994-4215.
Leinor intends to sell vehicles at auction to satisfy their lien. 2011 BUICK LACROSSE RED VIN: 1G4GE5ED7BF241445. Lienor claims a lien on the vehicle for labor and services performed and storage charges, if any, and the cash sum at the date of sale which, if paid to the lienor, would be sufficient to redeem the vehicle from the lien claimed by the lienor. The lien claimed by the lienor is subject to enforcement pursuant to section 713.585, Florida Statutes and that the vehicle may be sold to satisfy the lien. The owner of the vehicle or any person claiming an interest in or lien thereon has a right to a hearing at any time prior to the scheduled date of sale by filing a demand for hearing with the clerk of the circuit court in the county in which the vehicle is held and mailing copies of the demand for hearing to all other owners and lienors as reflected on the notice. The owner of the vehicle has a right to recover possession of the vehicle without instituting judicial proceedings by posting bond in accordance with the provisions of section 559.917, Florida Statutes (Motor Vehicle Repair Act). Any proceeds from the sale of the vehicle remaining after payment of the amount claimed to be due and owing to the lienor will be deposited with the clerk of the circuit court for disposition upon court order. Nov. 7 00 (24-07015D)
The street address and/or location for the property 11374 E-Town Parkway (RE: 1680600155) between SR9B and Philips Highway in the City of Jacksonville. This application was filed by Paul M. Harden, Esquire, Law Office of Paul M. Harden, 1431 Riverplace Boulevard, Suite 901, Jacksonville, FL. This property is currently zoned CCG-1. Exception Sought: Multi-Family Residential Integrated with a Permitted Use
A copy of the application containing the legal description can be faxed, mailed or e-mailed to you at your request by contacting the Planning and Development Department at (904) 255-7865. All interested parties are notified to be present and will be heard at the public hearing.
Michael McGowan, Chairman Jacksonville Planning Commission City of Jacksonville
Dated this 1st day of November. Nov. 7 00 (24-07053D)
FIRST INSERTION NOTICE OF PUBLIC HEARING NOTICE IS HEREBY GIVEN that on Thursday, November 21, 2024, at 1:00 P.M., the Planning Commission of the City of Jacksonville will hold a Public Hearing in the Edward Ball Building, 214 North Hogan Street, 1st Floor –Room 1002, Jacksonville, Florida 32202. The purpose of this meeting is to consider application for: Variance: V-24-21
The street address and/or location for the property 15516 Bream Road (RE: 159700-0310) between Sawpit Road and Flounder Road in the City of Jacksonville. This application was filed by Brandon Dumas, 15516 Bream Road, Jacksonville, FL This property is currently zoned RR-ACRE. Variance Sought: 1) Increase the size of an accessory structure from 50% to 150.4% (698 square feet to 2,100 square feet) A copy of the application containing the legal description can be faxed, mailed or e-mailed to you at your request by contacting the Planning and Development Department at (904) 255-7865. All interested parties are notified to be present and will be heard at the public hearing.
Michael McGowan, Chair Jacksonville Planning Commission City of Jacksonville Dated this 1st day of November. Nov. 7 00 (24-07054D)
FIRST INSERTION
NOTICE OF PUBLIC MEETINGS AND HEARINGS
NOTICE is hereby given that there will be a public meeting held by the Jacksonville Planning Commission on Thursday, November 21, 2024 at 1:00 p.m. in the Edward Ball Building, 1st Floor Hearing Room 1002, 214 North Hogan Street, Jacksonville, Florida 32202 and the following public hearings will be held by the City Council on Tuesday, November 26, 2024 at 5:00 p.m., by the Land Use and Zoning Committee on Tuesday, December 3, 2024 at 5:00 p.m. and by the 2nd City Council on Tuesday, December 10, 2024 at 5:00 p.m. in the Council Chambers, 1st floor, City Hall, 117 West Duval Street, St. James Building, Jacksonville, FL, concerning: Ordinance No. 2024-823 AN ORDINANCE REZONING APPROXIMATELY 4.62+ ACRES LOCATED IN COUNCIL DISTRICT 8 AT0 OWENS ROAD, BETWEEN FAIR PINE LANE AND RANCH ROAD (R.E. NO(S). 019336-0100), AS DESCRIBED HEREIN, OWNED BY USA EXPRESS, INC., FROM INDUSTRIAL LIGHT (IL) DISTRICT TO PLANNED UNIT DEVELOPMENT (PUD) DISTRICT, AS DEFINED AND CLASSIFIED UNDER THE ZONING CODE, TO PERMIT RESIDENTIAL USES, AS DESCRIBED IN THE OWENS POINT PUD, PURSUANT TO FUTURE LAND USE MAP SERIES (FLUMS) SMALLSCALE AMENDMENT APPLICATION NUMBER L-5975-24C;
PROVIDING A DISCLAIMER THAT THE REZONING GRANTED HEREIN SHALL NOT BE CONSTRUED AS AN EXEMPTION FROM ANY OTHER APPLICABLE LAWS; PROVIDING AN EFFECTIVE DATE.
A copy of the ordinance containing the legal description is available for public inspection in the Council Legislative Services Division, Suite 430, City Hall. Additional information concerning this rezoning may be obtained by contacting the Planning and Development Department at 255-7865. All interested parties may appear at the meeting and be heard with respect to the proposed ordinance. Application for rezoning 20240823 seeks to rezone approximately 4.62 acres of land from Industrial Light (IL) to Planned Unit Development (PUD). The property is located at 0 Owens Road (RE: 019336-0100) between Urn Road and Ranch Road. The agent is Josh Cockrell with The Stellarae Group, PO Box 28327, Jacksonville, Florida 32226; (803) 917-2420. The rezoning to PUD is being sought to allow for a multi-family residential development up to 121 units. Please visit www.coj.net for meeting information and COVID19 procedures/precautions for accessing public buildings. Margaret M. Sidman City Council Secretary Dated this 1st day of November 2024. Nov. 7 00 (24-07042D)
FIRST INSERTION
NOTICE UNDER FICTITIOUS NAME LAW
According to Florida Statute Number 865.09
NOTICE IS HEREBY GIVEN that the undersigned, desiring to engage in business under the Fictitious Name of Mike’s Lawn Maintenance located at 12412 Jovana Rd, in the City of Jacksonville, Duval County, Florida 32226 intends to register the said name with the Division of Corporations of the Department of State, Tallahassee, Florida.
Dated at Jacksonville, Florida, this 4th day of November, 2024. Michael L. Roberts Nov. 7 00 (24-07081D)
NOTICE UNDER FICTITIOUS NAME LAW
According to Florida Statute Number 865.09
NOTICE IS HEREBY GIVEN that the undersigned, desiring to engage in business under the Fictitious Name of Roberto Gonzalez P.A located at 9957 Moorings Drive Ste 502, in the City of JACKSONVILLE, FL County, Florida 32257 intends to register the said name with the Division of Corporations of the Department of State, Tallahassee, Florida. Dated at Jacksonville, Florida, this 4th day of November, 2024. Roberto Gonzalez By: Roberto Gonzalez Nov. 7 00 (24-07095D) FIRST INSERTION
FIRST INSERTION
Huguenot Memorial Park management plan –public meeting notice The City of Jacksonville announces a Public Hearing for the Huguenot Memorial Park Draft Management Plan. The meeting is scheduled for 6pm on Tuesday, November 19, 2024, at Oceanway Community Center located at 12215 Sago Avenue, Jacksonville, FL 32218. The purpose of the meeting is to receive public comment regarding the City’s proposed ten-year Management Plan for Huguenot Memorial Park. A copy of the meeting agenda and Draft Management Plan can be found on the park webpage at JaxParks.com. For any questions, contact Brian Burket at BBurket@coj.net or 904-255-7935. Nov. 7 00 (24-07062D)
FIRST INSERTION
NOTICE OF PUBLIC SALE: ASAP TOWING & STORAGE CO gives notice that on 12/03/2024 at 10:30 AM the following vehicles(s) may be sold by public sale at 722 S 10TH ST , JACKSONVILLE BEACH, FL 32250 to satisfy the lien for the amount owed on each vehicle for any recovery, towing, or storage services charges and administrative fees allowed pursuant to Florida statute 713.78.
1G4AG55M2S6450043 1995 BUICK
1GCEC19V16Z248697 2006 CHEV
1G1PC5SB3F7191276 2015 CHEVROLET
WD2PD743645616776 2004 DODG
1FTFW1ET8DKF21107 2013 FORD 1FTNF20586EA46506 2006 FORD 1FAFP56U46A194134 2006 FORD 5FNRL186X2B007037 2002 HONDA 3HGCM56456G705858 2006 HONDA KMHDH4AE1GU530097 2016 HYUNDAI ELANTRA 1C4NJRFB0DD129113 2013 JEEP 1J4FF68S2XL621230
FIRST INSERTION
NOTICE OF PUBLIC SALE:
Notice is hereby given that on 11/29/2024 at 08:00 AM the following vehicles(s) may be sold at public sale at 5240 RICKER RD, JACKSONVILLE FL 32210 for the amount owed on each vehicle to satisfy the lien for repairs, services and storage charges and any administrative fees allowed pursuant to Florida Statute 713.585. JTMDJREV4HD085159 2017 TOYT 10003.12
The name, address and telephone number and public sale location of the repair shop claiming the lien for unpaid charges is: Lienor Name: K & H INC OF JACKSONVILLE 3
Lienor Address: 5248 RICKER ROAD, JACKSOVILLE, FL 32210
Lienor Telephone #: 904-779-5400 MV License #: MV82993
Location of Vehicles: 5240 RICKER RD, JACKSONVILLE , FL 32210
The customer or person claiming an interest, or a lien may redeem the vehicle by satisfying the amount due in cash on or before the sale date and time. The customer or person claiming an interest in or lien on a vehicle may file a demand for a hearing with the Clerk of Court in the DUVAL County where the vehicle is held to determine whether the vehicle has been wrongfully taken or withheld from him or her. At any time before the date of sale a customer or person of record claiming a lien on the vehicle may post a cash or surety bond in the amount stated on the invoice with the Clerk of Circuit Court where the disputed transaction occurred. Nov. 7 00 (24-07087D)
“NOTICE OF BOARD MEETINGS FOR COMMUNITY REDEVELOPMENT AGENCIES”
The Community Redevelopment Agency Boards of the KingSoutel Crossing, and the Renew Arlington Community Redevelopment Agencies of the City of Jacksonville will hold its meetings on Tuesday, November 26, 2024, at 4:00 p.m. in the City Council Chambers, City Hall, 117 W. Duval Street, Jacksonville, Florida.
The KingSoutel Crossing CRA Board will consider approval of the July 23, 2024, Meeting Minutes. The Renew Arlington CRA Board will consider approval of the July 23, 2024, Meeting Minutes and consideration of a MCGP Project for Turner Ace Hardware located at 5827 Arlington Road. The Agency Boards may consider other matters that come before them.
The meeting location is subject to change, please check online at www. coj.net for further details.
Copies of the agendas will be available on the City of Jacksonville website (www.coj.net) under Government/Community Redevelopment Agencies.
Persons wanting to appeal an official decision made on any subject at the meeting must have a verbatim record of the meeting that includes the testimony and evidence on which the appeal is based.
Persons needing special accommodations to attend any hearing noticed hereinabove shall contact the Legislative Services Division at 904-2555122 not less than 48 hours before a hearing or meeting in order to make arrangements.

The Honorable Randy White, Chair Community Redevelopment Agency Boards
The Honorable Donna Deegan Mayor, City of Jacksonville Nov. 7 00 (24-07027D)
NOTICE OF PUBLIC MEETINGS AND HEARINGS
NOTICE is hereby given that there will be a public meeting held by the Jacksonville Planning Commission on Thursday, November 21,2024 at 1:00 p.m. in the Edward Ball Building, 1st Floor Hearing Room 1002, 214 North Hogan Street, Jacksonville, Florida 32202 and the following public hearings will be held by the City Council on Tuesday, November 26, 2024 at 5:00 p.m., by the Land Use and Zoning Committee on Tuesday December 3, 2024 at 5:00 p.m. in the Council Chambers, 1st floor, City Hall, 117 West Duval Street, St. James Building, Jacksonville, FL, concerning: Ordinance No. 2024-832 AN ORDINANCE REZONING APPROXIMATELY 1.39+ ACRES LOCATED IN COUNCIL DISTRICT 1 AT 3625 TOWNSEND BOULEVARD, AT THE SOUTHEAST CORNER OF THE INTERSECTION OF TOWNSEND BOULEVARD AND FT. CAROLINE ROAD (R.E. NO. 1114931000), AS DESCRIBED HEREIN, OWNED BY ABDO YAZIGI, FROM RESIDENTIAL MEDI-
NOTICE Public Hearing and Regular Meeting
The Board of Directors for the Florida Resiliency and Energy District (FRED) NOTICE IS HEREBY GIVEN that the Public Hearing and Regular Board Meeting of the Board of Directors (the “Board”) of the Florida Resiliency and Energy District (“FRED”) will be held at 156 Tuskawilla Road, Suite 2340, Winter Springs FL 32708 on November 14, 2024, beginning at 10:00 A.M. (EST), or as soon thereafter as practicable. INTERESTED PERSONS MAY ALSO ATTEND BY TELEPHONE CONFERENCE USING THE FOLLOWING INSTRUCTIONS: Dial the phone number 833 928 4610, then use Meeting ID: 899 2076 3852 and Passcode: 314908. The purpose of the Public Hearing is for the Board to consider the following Resolution: 1. Resolution No. F24-17 –Assessment Resolution, Relating to Special Assessment Revenue Note (21291 Biscayne Boulevard, Commercial PACE Project), Series 2024 (Vote Required) The title of Resolution No. F2417 is as follows: A RESOLUTION OF THE FLORIDA RESILIENCY AND ENERGY DISTRICT RELATING TO THE FINANCING OF QUALIFYING IMPROVEMENTS UNDER THE FLORIDA PROP-
FIRST INSERTION
ERTY ASSESSED CLEAN ENER-
GY (PACE) ACT; ESTABLISHING THE TERMS AND CONDITIONS FOR IMPOSING SPECIAL ASSESSMENTS RELATED TO SUCH QUALIFYING IMPROVEMENTS; APPROVING THE ASSESSMENT ROLL; DIRECTING THAT THE ASSESSMENT ROLL BE CERTIFIED TO THE APPROPRIATE TAX COLLECTORS; PROVIDING FOR COLLECTION OF THE ASSESSMENTS; PROVIDING FOR AN EFFECTIVE DATE; AND REPEALING RESOLUTION NO. F24-02.
The Board may consider any business which may properly come before it. Persons desiring to provide public comment will be given the opportunity to be heard and to express their views. Written comments may also be submitted in advance to the FRED Administrator, Florida Development Finance Corporation, 156 Tuskawilla Road, Suite 2340, Winter Springs, FL 32708. In addition, public comment may be submitted in advance via email to the FRED Administrator at info@ fdfcbonds.com. Written comments and emails received in advance of the meeting will be read aloud to the Board and the public and will be incorporated into the meeting minutes.
A copy of the agenda may be obtained online at www.fdfcbonds. com/notices or at the offices of
the FRED Administrator, Florida Development Finance Corporation, 156 Tuskawilla Road, Suite 2340, Winter Springs, FL 32708, during normal business hours. The meetings are open to the public and conducted in accordance with the provisions of Florida law. Meetings may be continued as found necessary to a time and place specified on record. If any person decides to appeal any decision made with respect to any matter considered at this meeting, such person will need a record of the proceedings and such person may need to ensure that a verbatim record of the proceedings is made at his or her own expense and which record includes the testimony and evidence on which the appeal is based. In accordance with the provisions of the Americans with Disabilities Act, any person requiring special accommodations or an interpreter to participate at this meeting should contact FRED at (407) 712-6352 at least two (2) days prior to the meeting. Persons who are hearing or speech impaired can contact the Florida Dual Party Relay System at 1-800955-8770 (Voice) and 1-800-9558771 (TDD).
Florida Resiliency and Energy District Publication Date: November 7, 2024 Nov. 7 00 (24-07120D)
Transit-Oriented Development (TOD) Master Plan
UM DENSITY-D (RMD-D) DISTRICT TO COMMERCIAL NEIGHBORHOOD (CN) DISTRICT, AS DEFINED AND CLASSIFIED UNDER THE ZONING CODE; PROVIDING A DISCLAIMER THAT THE REZONING GRANTED HEREIN SHALL NOT BE CONSTRUED AS AN EXEMPTION FROM ANY OTHER APPLICABLE LAWS; PROVIDING AN EFFECTIVE DATE.
A copy of the ordinance containing the legal description is available for public inspection in the Council Legislative Services Division, Suite 430, City Hall. Additional information concerning this rezoning may be obtained by contacting the Planning and Development Department at 255-7865. All interested parties may appear at the meeting and be heard with respect to the proposed ordinance. Please visit www.coj.net for meeting information and COVID19 procedures/precautions for accessing public buildings. Margaret M. Sidman City Council Secretary Dated this 1st day of November 2024. Nov. 7 00 (24-07049D) FIRST INSERTION
FIRST INSERTION
OF PUBLIC HEARINGS NOTICE is hereby given that there will be a public meeting held by the Jacksonville Planning Commission on Thursday, November 21, 2024 at 1:00 p.m. in the Edward Ball Building, 1st Floor Hearing Room 1002, 214 North Hogan Street, Jacksonville, Florida 32202 and the following public hearings will be held by the City Council on Tuesday, November 26, 2024 at 5:00 p.m., by the Land Use and Zoning Committee on Tuesday, December 3, 2024 at 5:00 p.m. and by the 2nd City Council on Tuesday, December 10, 2024 at 5:00 p.m. in the Council Chambers, 1st floor, City Hall, 117 West Duval Street, St. James Building, Jacksonville, FL, concerning: Ordinance No. 2024-821 (AD-24-71) Companion: 2024-820 AN ORDINANCE GRANTING ADMINISTRATIVE DEVIATION APPLICATION AD-24-71, FOR PROPERTY LOCATED IN COUNCIL DISTRICT 9 AT 1077 ODESSA DRIVE N., BETWEEN 1ST STREET W. AND COMMONWEALTH AVENUE (R.E. NO. 048982-0000), AS DESCRIBED HEREIN, OWNED BY PC REALTY-JAX, LLC, REQUESTING TO REDUCE THE AREA
OF SITUATIONAL COMPATIBILITY OVERLAY ZONE BUFFER BETWEEN A PROPOSED INDUSTRIAL LIGHT (IL) ZONING DISTRICT FROM A RESIDENTIAL LOW DENSITY (RLD) ZONING DISTRICT FROM 150 FEET TO 15 FEET, AS DEFINED AND CLASSIFIED UNDER THE ZONING CODE; ADOPTING RECOMMENDED FINDINGS AND CONCLUSIONS OF THE LAND USE AND ZONING COMMITTEE; PROVIDING FOR DISTRIBUTION; PROVIDING AN EFFECTIVE DATE.
A copy of the ordinance containing the legal description is available for public inspection in the Council Legislative Services Division, Suite 430, City Hall. Additional information concerning this rezoning may be obtained by contacting the Planning and Development Department at 255-7865. All interested parties may appear at the meeting and be heard with respect to the proposed ordinance. Please visit www.coj.net for meeting information and COVID19 procedures/precautions for accessing public buildings. Margaret M. Sidman City Council Secretary Dated this 1st day of November 2024. Nov. 7 00 (24-07041D)
The Jacksonville Transportation Authority (JTA) would like to cordially invite the public to attend an important public meeting to discuss the proposed Transit-Oriented Development (TOD) Master Plan and Zoning Overlay for PHOENIX Arts & Innovation District.
The meeting will provide an opportunity for the community to learn about the TOD Overlay and share valuable feedback on the proposed development standards, goals, and objectives. Representatives will give a presentation, and exhibits will be available for the public to view. Following the presentation, staff will be available to discuss the plan, and the public will have the opportunity to provide comments. The meeting will be held at the following location:
Tuesday, November 19, 2024
5:30 p.m.
2404 Hubbard Street Jacksonville, FL 32206
All interested persons or groups are encouraged to attend and participate. Public participation is solicited without regard to race, color, religion, gender, age, national origin, disability or familial status. Anyone requiring special accommodations should contact Tsopie Trottie at 904-630-3107 no later than 7 days prior to the meeting. These meetings are ADA accessible.
IN THE CIRCUIT COURT OF THE FOURTH JUDICIAL CIRCUIT IN AND FOR DUVAL COUNTY, FLORIDA CASE NO. 16-2024-CA-001933
DIVISION: FC-F
GREENSPRING CAPITAL
MANAGEMENT LLC, NOT IN ITS INDIVIDUAL CAPACITY, BUT SOLELY AS ADMINISTRATOR OF THE RMH 2023-2 TRUST Plaintiff,
v. THE UNKNOWN HEIRS, GRANTEES, DEVISEES, LIENORS, TRUSTEES, AND CREDITORS OF BERTHA
HIATT A/K/A BERTHA
MARIE HIATT, DECEASED; UNKNOWN TENANT 1; UNKNOWN TENANT 2; RAMONA JEAN HEBERT; ROBIN LYNN HIATT; ANGELA MARIE SWING A/K/A ANGELA
MARIE HARMEL; AQUA FINANCE, INC.
Defendants. NOTICE OF SALE Notice is hereby given that, pursuant to the Final Judgment of Foreclosure entered on October 18, 2024, in this cause, in the Circuit Court of Duval County, Florida, the clerk shall sell the property situated in Duval County, Florida, described as: A PART OF LOTS 10 AND 11, PLEASANT PARK, AS RECORDED IN PLAT BOOK 9, PAGE 31 OF CURRENT PUBLIC RECORDS OF DUVAL COUNTY, FLORIDA AND BEING MORE PAR -
TICULARLY DESCRIBED AS FOLLOWS: COMMENCE AT THE SOUTHWEST CORNER OF SAID LOT 10; THENCE SOUTH 88 DEGREES
56 MINUTES 20 SECONDS EAST ALONG THE NORTHERLY RIGHTOF-WAY LINE OF PARK AVENUE (A 50 FOOT RIGHT-OF-WAY AS NOW ESTABLISHED), 209.12 FEET; THENCE NORTH
00 DEGREES 50 MINUTES
26 SECONDS EAST, 502.30 FEET TO THE POINT OF BEGINNING; THENCE
CONTINUE NORTH 00 DEGREES 50 MINUTES
26 SECONDS EAST, 105.41 FEET; THENCE NORTH
89 DEGREES 16 MINUTES
58 SECONDS EAST, 49.22 FEET; THENCE NORTH
60 DEGREES 23 MINUTES
54 SECONDS EAST 177.50
FEET TO THE WEST LINE OF THE EAST 20.00 FEET OF SAID LOT 11; THENCE SOUTH 00 DEGREES 16 MINUTES 51 SECONDS WEST ALONG LAST SAID LINE, 191.14 FEET; THENCE SOUTH 89 DEGREES 16 MINUTES 58 SECONDS WEST, 204.18 FEET TO THE POINT OF BEGINNING. CONTAINING 0.64 ACRES, MORE OR LESS, AND BEING SUBJECT TO AND TOGETHER WITH THE FOLLOWING DESCRIBED EASEMENT FOR INGRESS, EGRESS, DRAINAGE AND UTILITIES;
A PART OF LOTS 10 AND 11, PLEASANT PARK AS RECORDED IN PLAT BOOK 9, PAGE 31 OF THE CURRENT PUBLIC RECORDS OF DUVAL COUNTY, FLORIDA AND BEING MORE PARTICULARLY DESCRIBED AS FOLLOWS: COMMENCE AT THE SOUTHWEST CORNER OF SAID LOT 10; THENCE NORTH 88 DEGREES 56 MINUTES 20 SECONDS EAST ALONG THE NORTHERLY RIGHT-OF-WAY LINE OF PARK AVENUE (A 50 FOOT RIGHT-OF-WAY AS NOW ESTABLISHED), 154.92 FEET TO THE POINT OF BEGINNING AND THE POINT OF CURVATURE OF A CURVE TO THE LEFT; THENCE ALONG AND AROUND THE ARC OF SAID CURVE, BEING CONCAVE NORTHWESTERLY AND HAVING A RADIUS OF 25.00 FEET, AN ARC DISTANCE OF 38.44 FEET, SAID ARC BEING SUBTENDED BY A CHORD BEARING AND DISTANCE OF NORTH 44 DEGREES 53 MINUTES 23 SECONDS EAST, 34.76 FEET TO THE POINT OF TANGENCY OF SAID CURVE; THENCE NORTH 00 DEGREES 50 MINUTES 27 SECONDS EAST, 513.74
FEET TO THE POINT OF CURVATURE OF A CURVE TO THE LEFT; THENCE ALONG AND AROUND THE ARC OF SAID CURVE,
BEING CONCAVE SOUTHWESTERLY AND HAVING A RADIUS OF 25 FEET, AN ARC DISTANCE OF 36.32 FEET, SAID ARC BEING SUBTENDED BY A CHORD BEARING AND DISTANCE OF NORTH 40 DEGREES 46 MINUTES 43 SECONDS WEST, 33.21 FEET TO THE POINT OF REVERSE CURVATURE; THENCE ALONG AND AROUND THE ARC OF SAID CURVE, BEING CONCAVE EASTERLY AND HAVING A RADIUS OF 45 FEET, AN ARC DISTANCE OF 134.84 FEET, SAID ARC BEING SUBTENDED BY A CHORD BEARING AND DISTANCE OF NORTH 03 DEGREES 26 MINUTES 32 SECONDS EAST, 89.76 FEET TO THE POINT OF TANGENCY OF SAID CURVE; THENCE NORTH 89 DEGREES 16 MINUTES 58 SECONDS EAST, 96.00 FEET TO THE POINT OF CURVATURE OF A CURVE TO THE RIGHT; THENCE ALONG AND AROUND THE ARC OF SAID CURVE, BEING CONCAVE WESTERLY AND HAVING A RADIUS OF 45.00 FEET, AN ARC DISTANCE OF 138.87 FEET, SAID ARC BEING SUBTENDED BY A CHORD BEARING AND DISTANCE OF SOUTH 02 DEGREES 18 MINUTES 44 SECONDS EAST, 89.97 FEET TO A POINT OF REVERSE CURVATURE; THENCE ALONG AND AROUND THE ARC OF SAID CURVE, BEING CONCAVE SOUTHEASTERLY AND HAVING A RADIUS OF 25 FEET, AN ARC DISTANCE OF 37.20 FEET, SAID ARC BEING SUBTENDED BY A CHORD BEARING AND DISTANCE OF SOUTH 43 DEGREES 28 MINUTES 00 SECONDS WEST, 33.86 FEET TO THE POINT OF TANGENCY OF SAID CURVE; THENCE SOUTH 00 DEGREES 50 MINUTES 27 SECONDS WEST, 512.45 FEET TO THE POINT OF CURVATURE OF A CURVE TO THE LEFT; THENCE ALONG AND AROUND THE ARC OF SAID CURVE, BEING CONCAVE NORTHEASTERLY AND HAVING A RADIUS OF 25.00 FEET, AN ARC DISTANCE OF 40.01 FEET, SAID ARC BEING SUBTENDED BY A CHORD BEARING AND DISTANCE OF SOUTH 45 DEGREES 06 MINUTES 37 SECONDS EAST, 35.94 FEET TO THE POINT OF TANGENCY OF SAID CURVE AND SAID NORTHERLY RIGHT-OFWAY LINE OF PARK AVENUE; THENCE SOUTH 88 DEGREES 56 MINUTES 20 SECONDS WEST ALONG SAID NORTHERLY RIGHTOF-WAY LINE, 110.06 FEET TO THE POINT OF BEGINNING.
a/k/a 15441 NORMAN AVE N, JACKSONVILLE, FL 32218-6895 at public sale, to the highest and best bidder, for cash, online at: www.duval.realforeclose.com on December 04, 2024 beginning at 11:00 AM.
Any person claiming an interest in the surplus from the sale, if any, other than the property owner as of the date of the lis pendens must file a claim before the clerk reports the surplus as unclaimed.
Americans With Disabilities Act (ADA) Notice In accordance with the Americans with Disabilities Act of 1990 (ADA), If you are a person with a disability who needs any accommodation in order to participate in this proceeding, you are entitled at no cost to you, to the provision of certain assistance. Please contact the ADA Coordinator at crtintrp@coj.net or (904) 2551695 at least 7 days before your scheduled court appearance, or immediately upon receiving this notification if the time before the scheduled appearance is less than 7 days; if you are hearing or voice impaired, call 711. Dated this 1st day of November, 2024.
JODY PHILLIPS Clerk of the Circuit Court By: Pamela R. Harrell Deputy Clerk (Court Seal) eXL Legal, PLLC 12425 28TH ST NORTH, STE. 200 ST. PETERSBURG, FL 33716-1826
EFILING@EXLLEGAL.COM
1000009765 Nov. 7/14 00 (24-07071D)
IN THE CIRCUIT COURT OF THE FOURTH JUDICIAL CIRCUIT IN AND FOR DUVAL COUNTY, FLORIDA GENERAL JURISDICTION DIVISION CASE NO. 16-2023-CA-000607
DIVISION: FC-A
U.S. BANK NATIONAL ASSOCIATION, NOT IN ITS INDIVIDUAL CAPACITY BUT SOLELY IN ITS CAPACITY AS INDENTURE TRUSTEE OF CIM TRUST 2021NR3, Plaintiff, vs. THE UNKNOWN HEIRS, BENEFICIARIES, DEVISEES, GRANTEES, ASSIGNEES, LIENORS, CREDITORS, TRUSTEES AND ALL OTHERS WHO MAY CLAIM AN INTEREST IN THE ESTATE OF WILLIAM ROOS, DECEASED, et al. Defendant(s).
NOTICE OF FORECLOSURE SALE
NOTICE IS HEREBY GIVEN pursuant to a Final Judgment of Foreclosure dated July 22, 2024, and Amended Final Judgment Nunc Pro Tunc dated Sept 12, 2024 and entered in 16-2023CA-000607 of the Circuit Court of the FOURTH Judicial Circuit in and for Duval County, Florida, wherein U.S. BANK TRUST COMPANY, NATIONAL ASSOCIATION, AS TRUSTEE, AS SUCCESSOR-IN-INTEREST TO U.S. BANK NATIONAL ASSOCIATION, NOT IN ITS INDIVIDUAL CAPACITY BUT SOLELY IN ITS CAPACITY AS INDENTURE TRUSTEE OF CIM TRUST 2021-NR3 is the Plaintiff and THE UNKNOWN HEIRS, BENEFICIARIES, DEVISEES, GRANTEES, ASSIGNEES, LIENORS, CREDITORS, TRUSTEES AND ALL OTHERS WHO MAY CLAIM AN INTEREST IN THE ESTATE OF WILLIAM ROOS, DECEASED; ANNA ROOS; WILLIAM J. ROOS, JR.; DARCY B. ROOS are the Defendant(s). Jody Phillips as the Clerk of the Circuit Court will sell to the highest and best bidder for cash at: www.duval.realforeclose.com at 11:00 AM, on November 25,
INSERTION
2024, the following described property as set forth in said Final Judgment, to wit: ALL THAT CERTAIN REAL ESTATE SITUATE IN THE COUNTY OF DUVAL, STATE OF FLORIDA, TO WIT: LOT 17, BLOCK 40, SOUTHSIDE ESTATES UNIT NO. 11, ACCORDING TO PLAT THEREOF AS RECORDED IN PLAT BOOK 20, PAGES 25 AND 25A, OF THE CURRENT PUBLIC RECORDS OF DUVAL COUNTY, FLORIDA. TAX MAP OR PARCEL ID NO.: 123983 0000 Property Address: 2524 PEACH DR, JACKSONVILLE, FL 32246
Any person claiming an interest in the surplus from the sale, if any, other than the property owner as of the date of the lis pendens must file a claim in accordance with Florida Statutes, Section 45.031. Americans With Disabilities Act (ADA) Notice In accordance with the Americans with Disabilities Act of 1990 (ADA), If you are a person with a disability who needs any accommodation in order to participate in this proceeding, you are entitled at no cost to you, to the provision of certain assistance. Please contact the ADA Coordinator at crtintrp@coj.net or (904) 2551695 at least 7 days before your scheduled court appearance, or immediately upon receiving this notification if the time before the scheduled appearance is less than 7 days; if you are hearing or voice impaired, call 711. Dated this 1st day of November, 2024.
JODY PHILLIPS As Clerk of the Court By: Pamela
R.
Harrell As Deputy Clerk (Court Seal) Robertson, Anschutz, Schneid, Crane & Partners, PLLC Attorneys for Plaintiff 6409 Congress Ave., Suite 100, Boca Raton, FL 33487 Telephone: 561-241-6901
Fax: 561-997-6909
21-057843 - MaM Nov. 7/14 00 (24-07072D)
IN THE CIRCUIT COURT OF THE FOURTH JUDICIAL CIRCUIT IN AND FOR DUVAL COUNTY, FLORIDA
CIVIL DIVISION
Case No.: 16-2023-CA-011358
DIVISION: FC-F
DKC LENDING, LLC, a Florida limited liability company, As Trustee for DKC LENDING FL, LLC, a Florida limited liability company, under that LOAN SERVICING AGREEMENT DATED JUNE 15, 2022, Plaintiff, v. 1435 FLANDERS JAX LLC, a Wyoming limited liability company; D&L FAMILY TRUST DATED JULY 7, 2022; IRA FINANCIAL TRUST COMPANY FBO RYAN SMITH; SNYDER AIR CONDITIONING, PLUMBING & ELECTRIC; and UNKNOWN TENANT IN POSSESSION, Defendants.
NOTICE OF SALE
NOTICE IS HEREBY GIVEN pursuant to a Final Summary Judgment of Foreclosure dated October 31, 2024, entered in Case No.: 16-2023-CA-011358 of the Circuit Court in and for Duval County, Florida, wherein 1435 FLANDERS JAX LLC, a Wyoming limited liability company, D&L FAMILY TRUST DATED JULY 7, 2022, IRA FINANCIAL TRUST COMPANY FBO RYAN SMITH, and SNYDER AIR CONDITIONING, PLUMBING & ELECTRIC, are the Defendants, that Jody Phillips will sell to the highest and best bidder for cash, on December 11, 2024 at 11:00 AM, at the Clerk of the Circuit Court, online at: www.duval.realforeclose.com the following described real property as set forth in the Final Summary Judgment of Foreclosure: Legal: THAT CERTAIN PIECE, PARCEL OR TRACT OF LAND, SITUATE, LYING AND BEING A PART OF LOT 21, BATES AND MARTIN’S SUBDIVISION, AS RECORDED IN PLAT BOOK 8, PAGE 35, OF THE CURRENT PUBLIC RECORDS OF DUVAL COUNTY, FLORIDA, AND MORE PARTICULARLY DESCRIBED AS FOLLOWS: COMMENCING AT THE INTERSECTION OF THE WESTERLY RIGHT OF WAY LINE OF SAN JOSE BOULEVARD (A 100-FOOT RIGHT OF WAY AS NOW ESTABLISHED), WITH THE WESTERLY RIGHT OF WAY LINE OF FLANDERS AVENUE, (A 30-FOOT RIGHT OF WAY AS NOW ESTABLISHED),
IN THE CIRCUIT COURT OF THE FOURTH JUDICIAL CIRCUIT IN AND FOR DUVAL COUNTY, FLORIDA GENERAL JURISDICTION
DIVISION CASE NO. 16-2023-CA-010183
DIVISION: FC-C
U.S. BANK NATIONAL ASSOCIATION, Plaintiff, vs. ERIC M. LUCAS AND OLIVIA C. CONE, et al. Defendant(s). NOTICE OF FORECLOSURE SALE NOTICE IS HEREBY GIVEN pursuant to a Final Judgment of Foreclosure dated January 08, 2024, and entered in 16-2023-CA010183 of the Circuit Court of the FOURTH Judicial Circuit in and for Duval County, Florida, wherein U.S. BANK NATIONAL ASSOCIATION is the Plaintiff and ERIC M. LUCAS; OLIVIA C. CONE are the Defendant(s). Jody Phillips as the Clerk of the Circuit Court will sell to the highest and best bidder for cash at: www.duval.realforeclose.com at 11:00 AM, on November 26, 2024, the following described property as set forth in said Final Judgment, to wit: LOT 29 OF CAPE CORAL, ACCORDING TO THE PLAT THEREOF AS RECORDED IN PLAT BOOK 54, PAGE(S) 63, 63A, THROUGH 63D, OF THE PUBLIC RECORDS OF DUVAL COUNTY, FLORIDA.
IN THE CIRCUIT COURT FOR DUVAL COUNTY, FLORIDA PROBATE DIVISION CaseNo.: 16 -2024-CP-002688
DIVISION: PR-A IN RE: ESTATE OF Robert Eugene Sewell
Deceased, NOTICE TO CREDITORS
Property Address: 14895 REEF DRIVE W, JACKSONVILLE, FL 32226
Any person claiming an interest in the surplus from the sale, if any, other than the property owner as of the date of the lis pendens must file a claim in accordance with Florida Statutes, Section 45.031. Americans With Disabilities Act (ADA) Notice In accordance with the Americans with Disabilities Act of 1990 (ADA), If you are a person with a disability who needs any accommodation in order to participate in this proceeding, you are entitled at no cost to you, to the provision of certain assistance. Please contact the ADA Coordinator at crtintrp@coj.net or (904) 2551695 at least 7 days before your scheduled court appearance, or immediately upon receiving this notification if the time before the scheduled appearance is less than 7 days; if you are hearing or voice impaired, call 711. Dated this 1st day of November, 2024.
JODY PHILLIPS As Clerk of the Court By: Pamela R. Harrell As Deputy Clerk (Court Seal) Robertson, Anschutz, Schneid, Crane & Partners, PLLC Attorneys for Plaintiff 6409 Congress Avenue, Suite 100, Boca Raton, FL 33487 Telephone: 561-241-6901 Fax: 561-997-6909 23-134127 - MaM Nov. 7/14 00 (24-07070D)
SAID POINT ALSO BEING THE SOUTHEASTERLY CORNER OF SAID LOT 21; THENCE SOUTHWESTERLY AND ALONG THE SAID NOTHWESTERLY RIGHT OF WAY LINE OF FLANDERS AVENUE, 370 FEET FOR A POINT OF BEGINNING; THENCE CONTINUING SOUTHWESTERLY AND ALONG THE SAID NORTHWESTERLY RIGHT OF WAY LINE OF FLANDERS AVENUE, 185 FEET; THENCE NORTHWESTERLY AND AT RIGHT ANGLES TO THE SAID FLANDERS AVENUE, 86.85 FEET TO THE NORTHWESTERLY LINE OF LOT 21; THENCE NORTHEASTERLY ALONG SAID NORTHWESTERLY LINE OF LOT 21, 185 FEET; THENCE SOUTHEASTERLY, 83.7 FEET TO THE NORTHWESTERLY RIGHT OF WAY LINE OF FLANDERS AVENUE AND THE POINT OF BEGINNING. NOTICE IF YOU ARE A PERSON CLAIMING A RIGHT TO FUNDS REMAINING AFTER THE SALE, YOU MUST FILE A CLAIM WITH THE CLERK NO LATER THAN THE DATE THAT THE CLERK REPORTS THE FUNDS AS UNCLAIMED. IF YOU FAIL TO FILE A CLAIM, YOU WILL NOT BE ENTITLED TO ANY REMAINING FUNDS. AFTER THE FUNDS ARE REPORTED AS UNCLAIMED, ONLY THE OWNER OF RECORD AS OF THE DATE OF THE LIS PENDENS MAY CLAIM THE SURPLUS. Americans With Disabilities Act (ADA) Notice In accordance with the Americans with Disabilities Act of 1990 (ADA), If you are a person with a disability who needs any accommodation in order to participate in this proceeding, you are entitled at no cost to you, to the provision of certain assistance. Please contact the ADA Coordinator at crtintrp@coj.net or (904) 2551695 at least 7 days before your scheduled court appearance, or immediately upon receiving this notification if the time before the scheduled appearance is less than 7 days; if you are hearing or voice impaired, call 711 Dated this 1st day of November, 2024. JODY PHILLIPS Clerk of the Circuit Court By: Pamela R. Harrell As Deputy Clerk (Court Seal) Torrey C. Taylor, Esq., for Plaintiff Phillips, Hayden & Labbee, LLP torrey@phlfirm.com; tanya@phlfirm.com Nov. 7/14 00 (24-07069D)
The administration of the Estate of Robert Eugene Sewell, Case No.: 16-2024-CP-002688 is pending in Circuit Court for Duval County, Florida, Probate Division, the address of which is Duval County Courthouse, 501 West Adams St. Jacksonville, FL 32202. The name and address of the Personal Representative and the Personal Representative’s attorney is set forth below. All creditors of the decedent and other persons having claims or demands against decedent’s estate on whom a copy of this notice is served within three months after the date of the first publication of this notice must file their claims with this Court WITHIN THE LATER OF THREE MONTHS AFTER THE DATE OF THE FIRST PUBLICATION OF THIS NOTICE OR THIRTY DAYS AFTER THE DATE OF SERVICE OF A COPY OF THIS NOTICE OR THIRTY DAYS AFTER THE DATE OF SERVICE OF A COPY OF THIS NOTICE ON THEM. All other creditors of the decedent and persons having claims or demands against the decedent’s estate must file their claims with this Court WITHIN THREE MONTHS AFTER THE DATE
IN THE CIRCUIT CIVIL COURT OF THE FOURTH JUDICIAL CIRCUIT OF FLORIDA, IN AND FOR DUVAL COUNTY CIVIL DIVISION Case No. 16-2023-CA-010308 Division FC-A U.S. BANK TRUST NATIONAL ASSOCIATION, NOT IN ITS INDIVIDUAL CAPACITY BUT SOLELY AS OWNER TRUSTEE FOR LEGACY MORTGAGE ASSET TRUST 2022-GS1 Plaintiff,
vs. JO-ANN CLEVELAND A/K/A JO ANN CLEVELAND, FLORIDA HOUSING FINANCE CORPORATION; CITY OF JACKSONVILLE, FLORIDA; UNKNOWN SPOUSE OF JO-ANN CLEVELAND A/K/A JO ANN CLEVELAND, AND UNKNOWN TENANTS/OWNERS, Defendants.
NOTICE OF SALE
Notice is hereby given, pursuant to Final Judgment of Foreclosure for Plaintiff entered in this cause on October 29, 2024, in the Circuit Court of Duval County, Florida, Jody Phillips, Clerk of the Circuit Court, will sell the property situated in Duval County, Florida described as: LOT 9, BLOCK 13, SPEEDWAY PARK, AS PER PLAT THEREOF, RECORDED IN PLAT BOOK 3, PAGE 32, OF THE PUBLIC RECORDS OF DUVAL COUNTY, FLORIDA. and commonly known as: 1216 29TH STREET W,
OF THE FIRST PUBLICATION OF THIS NOTICE. ALL CLAIMS, DEMANDS AND OBJECTION NOT SO FILED WILL BE FOREVER BARRED. NOTWITHSTANDING THE TIME PERIODS SET FORTH ABOVE, ANY CLAIM FILED TWO (2) YEARS OR MORE AFTER THE DECEDENT’S DATE OF DEAIH IS~BARRED. A personal representative or curator has no duty to discover whether any property held at the time of the decedent’s death by the decedent or the decedent’s surviving spouse is property to which the Florida Uniform Disposition of Community Property Rights at Death Act as described in sections 732.216-732.228, applies, or may apply, unless a written demand is made by a creditor as specified under section 732.2211. The date of the first publication of this Notice is 7th day of November 2024. Heather R. Charest as Personal Representative of the Estate of Robert Eugene Sewell /s/ Gerald B. Stewart, Esq GERALD B. STEWART, ESQUIRE Florida Bar No.: 285412 24 North Market Street, Suite 402 Jacksonville, Florida 32202 904.353.8876 904.356.2776 (Facsimile) Stewartlaw7272@gmail.com Attorney for Personal Representative Nov. 7/14 00 (24-07077D)
JACKSONVILLE, FL 32209; including the building, appurtenances, and fixtures located therein, at public sale, to the highest and best bidder, for cash, online at: www.duval.realforeclose.com on JANUARY 13, 2025 at 11:00 A.M.. Any persons claiming an interest in the surplus from the sale, if any, other than the property owner as of the date of the lis pendens must file a claim before the clerk reports the surplus as unclaimed. Americans With Disabilities Act (ADA) Notice In accordance with the Americans with Disabilities Act of 1990 (ADA), If you are a person with a disability who needs any accommodation in order to participate in this proceeding, you are entitled at no cost to you, to the provision of certain assistance. Please contact the ADA Coordinator at crtintrp@coj.net or (904) 2551695 at least 7 days before your scheduled court appearance, or immediately upon receiving this notification if the time before the scheduled appearance is less than 7 days; if you are hearing or voice impaired, call 711. Dated this 1st day of November, 2024. JODY PHILLIPS Clerk of the Circuit Court By: Pamela R.
FIRST INSERTION
IN THE CIRCUIT COURT FOR DUVAL COUNTY, FLORIDA
PROBATE DIVISION
File No. 16-2024-CP-003104
Division PR-A
IN RE: ESTATE OF MARK BENET WATTS
Deceased.
NOTICE TO CREDITORS
The administration of the estate of Mark Benet Watts, deceased, whose date of death was June 26, 2024, is pending in the Circuit Court for Duval County, Florida, Probate Division. The names and addresses of the petitioner and the petitioner’s attorney are set forth below.
A petitioner or curator has no duty to discover whether any property held at the time of the decedent’s death by the decedent or the decedent’s surviving spouse is property to which the Florida Uniform Disposition of Community Property Rights at Death Act as described in sections 732.216732.228, applies, or may apply, unless a written demand is made by a creditor as specified under section 732.2211. All creditors of the decedent and other persons having claims or demands against decedent’s estate on whom a copy of this notice is required to be served must file their claims with this court ON OR BEFORE THE LATER OF 3 MONTHS AFTER THE TIME OF THE FIRST PUBLICATION OF THIS NOTICE OR 30 DAYS AFTER THE DATE OF SERVICE OF A COPY OF THIS NOTICE ON THEM. All other creditors of the decedent and other persons having claims or demands against decedent’s estate must file their claims with this court WITHIN 3 MONTHS AFTER THE DATE OF THE FIRST PUBLICATION OF THIS NOTICE.
ALL CLAIMS NOT FILED WITHIN THE TIME PERIODS SET FORTH IN FLORIDA STATUTES SECTION 733.702 WILL BE FOREVER BARRED. NOTWITHSTANDING THE TIME PERIODS SET FORTH ABOVE, ANY CLAIM FILED TWO (2) YEARS OR MORE AFTER THE DECEDENT’S DATE OF DEATH IS BARRED.
The date of first publication of this notice is November 7, 2024.
Personal Representative: /s/ Meghan Edwards Meghan Edwards
Attorney for Petitioner: /s/ Meghan Edwards
Meghan Edwards
Attorney Florida Bar Number: 103885
Attorneys for Petitioner 6620 Southpoint Drive S., Ste 200 Jacksonville, Florida 32216 Telephone: (904) 222-0829 Nov. 7/14 00 (24-07060D)
FIRST INSERTION
NOTICE
Extra Space Storage, on behalf of itself or its affiliates, Life Storage or Storage Express, will hold a public auction to sell personal property described below belonging to those individuals listed below at the location indicated: 3780 Kori Rd, Jacksonville, FL 32257, on November 26th 2024 at 09:30am.
alesandro miranda - Tools Tina Gelinas - Kitchen wares, queen bed and mattress, small dresser, set of stackable shelf’s and an antique china
The auction will be listed and advertised on www.storagetreasures.com. Purchases must be made with cash only and paid at the above referenced facility in order to complete the transaction. Extra Space Storage may refuse any bid and may rescind any purchase up until the winning bidder takes possession of the personal property. Nov. 7/14 00 (24-07006D)
NOTICE OF PUBLIC SALE
Notice is given that U-STOR auctions will be held November 26,2024 at listed locations. Pursuant to Florida Statutes 83.801 – 83.809, to satisfy liens due to unpaid rents and charges. The undersigned will sell at public sale by competitive bidding the personal property heretofore stored with the undersigned to satisfy the owner’s lien.
“CONSISTING OF HOUSEHOLD ITEMS UNLESS OTHERWISE NOTED
Beginning at 10:00 AM U-Stor Blanding 1065 Blanding Blvd. 904-276-4553 A 203 Clifton Blackley H5 Hall Stephen Buff Immediately Following at U-Stor Mandarin 11201 San Jose Blvd. 904-262-8100 O 10 Charity Burk D 9 Stephen Olive IMMEDIATELY FOLLOWING AT U-STOR ST. JOHNS’ BLUFF 2915 ST. JOHN’S BLUFF ROAD 904-641-3107 E 40 Mark Anderson B 45 Federico Brito D 16 Satantha Ellis D 57 Michael Patton A 41 Deborah Roque
Following at U-Stor SR 210 130 Cumberland Park Dr. St. Augustine, FL 32095 904-829-1000 C 62 Alison Blair
Immediately Following at Rabbit Hill Self Storage 478 State Road 16 Saint Augustine, FL 32088 904-829-2333 Immediately Following at Sawgrass Self Storage 10042 Sawgrass Dr. W. Ponte Vedra Beach, FL 32082 Nov. 7/14 00 (24-07067D)
FIRST INSERTION
IN THE CIRCUIT COURT OF THE 4TH JUDICIAL CIRCUIT, IN AND FOR DUVAL COUNTY, FLORIDA
CIVIL DIVISION: CASE NO.: 16-2023-CA-010248 DIVISION: FC-A PENNYMAC LOAN SERVICES, LLC, Plaintiff, vs. UNKNOWN HEIRS, BENEFICIARIES, DEVISEES, ASSIGNEES, LIENORS, CREDITORS, TRUSTEES AND ALL OTHERS WHO MAY CLAIM AN INTEREST IN THE ESTATE OF CYNTHIA D. BROOKS; CREEKSIDE AT TIMUQUANA HOMEOWNERS ASSOCIATION, INC.; UNKNOWN TENANT IN POSSESSION OF THE SUBJECT PROPERTY, Defendants.
NOTICE OF FORECLOSURE SALE NOTICE IS HEREBY GIVEN pursuant to an Order or Final Judgment entered in the above styled cause now pending in said court and as required by Florida Statute 45.031(2), JODY PHILLIPS as the Clerk of the Circuit Court shall sell to the highest and best bidder for cash electronically at: www.duval.realforeclose.com at, 11:00 AM on the 13 day of January 2025, the following described property as set forth in said Final Judgment, to wit: LOT 53, CREEKSIDE TOWNHOMES, ACCORDING TO THE PLAT THEREOF, AS RECORDED IN PLAT BOOK 76, PAGES 37 THRU 40, OF THE PUBLIC RECORDS OF DUVAL COUNTY, FLORIDA.
PROPERTY ADDRESS: 5941 CREEKSIDE CROSSING DR, JACKSONVILLE, FL 32210
NOTICE
Extra Space Storage, on behalf of itself or its affiliates, Life Storage or Storage Express, will hold a public auction to sell personal property described below belonging to those individuals listed below at the location indicated:
Address: 790 Monument Rd Jacksonville, FL 32225
Auction Date: 11-26-2024
Auction Time: 11:30AM Khalilah ReddenHousehold Items
Christ The Living Cornerstone/ Tanisha Key-Household Items Josefine MartinezHousehold Items
IN THE COUNTY COURT, FOURTH JUDICIAL CIRCUIT, IN AND FOR DUVAL COUNTY, FLORIDA CASE NO.: 16-2023-CC-018756 DIVISION: CC-B FOX WOOD OWNERS ASSOCIATION, INC., a Florida corporation, Plaintiff, vs. SANDRA M. LAGOS; UNKNOWN SPOUSE OF SANDRA M. LAGOS; PORTFOLIO RECOVERY ASSOCIATES, LLC; UNKNOWN TENANT #1; UNKNOWN TENANT #2; and ALL OTHER UNKNOWN PARTIES, claiming, by, through, under or against that Defendant, and all claimants, persons or parties, natural or corporate, or whose exact legal status is unknown, claiming under any of the above named or described Defendants, Defendants.
NOTICE OF SALE NOTICE IS HEREBY GIVEN pursuant to the Final Judgment of Foreclosure entered on October 22, 2024, in Case No. 16-2023CC-018756 of the Circuit Court of the Fourth Judicial Circuit in and for Duval County, Florida, in which FOX WOOD OWNERS ASSOCIATION, INC., is Plaintiff, and SANDRA M. LAGOS, is Defendant, in the Duval County Clerk of the Court, will sell to the highest bidder for cash on: Duval County’s Public Auction website at: www.duval.realforeclose.com at the hour of 11:00 a.m. on the 5th day of December, 2024 the following described real property: Lot 31, Foxwood, according
Mackenzie FieldsHousehold Items
Tori Gaiter-Household Items
Kai Dumont-Household Items
Takera Fincher-Household Items
The auction will be listed and advertised on www.storagetreasures.com
Purchases must be made with cash only and paid at the above referenced facility in order to complete the transaction. Extra Space Storage may refuse any bid and may rescind any purchase up until the winning bidder takes possession of the personal property. Nov. 7/14 00 (24-07092D)
Any person claiming an interest in the surplus from the sale, if any, other than the property owner as of the date of the Lis Pendens must file a claim before the clerk reports the surplus as unclaimed. Americans With Disabilities Act (ADA) Notice In accordance with the Americans with Disabilities Act of 1990 (ADA), If you are a person with a disability who needs any accommodation in order to participate in this proceeding, you are entitled at no cost to you, to the provision of certain assistance. Please contact the ADA Coordinator at crtintrp@coj.net or (904) 2551695 at least 7 days before your scheduled court appearance, or immediately upon receiving this notification if the time before the scheduled appearance is less than 7 days; if you are hearing or voice impaired, call 711. Dated this 4th day of November, 2024. JODY PHILLIPS CLERK OF THE CIRCUIT COURT By: Pamela R. Harrell Deputy Clerk (Court Seal) Melissa G. Murrin, Esq. Jimerson Birr, P.A. One Independent Drive, Suite 1400 mmurrin@jimersonfirm.com emmaa@jimersonfirm.com Jacksonville, FL 32202 Counsel for Plaintiff Nov. 7/14 00 (24-07101D) FIRST INSERTION
IN THE CIRCUIT COURT OF THE FOURTH JUDICIAL CIRCUIT IN AND FOR DUVAL COUNTY, FLORIDA CASE NO. 16-2024-CA-001895
IF YOU ARE A PERSON CLAIMING A RIGHT TO FUNDS REMAINING AFTER THE SALE, YOU MUST FILE A CLAIM WITH THE CLERK NO LATER THAN THE DATE THAT THE CLERK REPORTS THE FUNDS AS UNCLAIMED. IF YOU FAIL TO FILE A CLAIM, YOU WILL NOT BE ENTITLED TO ANY REMAINING FUNDS. AFTER THE FUNDS ARE REPORTED AS UNCLAIMED, ONLY THE OWNER OF RECORD AS OF THE DATE OF THE LIS PENDENS MAY CLAIM THE SURPLUS. Americans With Disabilities Act (ADA) Notice In accordance with the Americans with Disabilities Act of 1990 (ADA), If you are a person with a disability who needs any accommodation in order to participate in this proceeding, you are entitled at no cost to you, to the provision of certain assistance. Please contact the ADA Coordinator at crtintrp@coj.net or (904) 255-1695 at least 7 days before your scheduled court appearance, or immediately upon receiving this notification if the time before the scheduled appearance is less than 7 days; if you are hearing or voice impaired, call 711. Dated this 1st day of November, 2024.
JODY PHILLIPS Clerk Of The Circuit Court By: Pamela R. Harrell Deputy Clerk (Court Seal)
Submitted by: De Cubas & Lewis, P.A. PO Box 5026 Fort Lauderdale, FL 33310
Telephone: (954) 453-0365
Facsimile: (954) 771-6052
Toll Free: 1-800-441-2438
DESIGNATED PRIMARY
E-MAIL FOR SERVICE
PURSUANT TO FLA. R. JUD. ADMIN 2.516 eservice@decubaslewis.com Nov. 7/14 00 (24-07074D)
DIVISION: FC-F GREENSPRING CAPITAL MANAGEMENT LLC, NOT IN ITS INDIVIDUAL CAPACITY, BUT SOLELY AS ADMINISTRATOR OF THE RMH 2023-2 TRUST
Plaintiff,
v. THE UNKNOWN HEIRS, GRANTEES, DEVISEES, LIENORS, TRUSTEES, AND CREDITORS OF MIKE DEVITO
A/K/A MICHAEL DEVITO
A/K/A MICHAEL F. DEVITO
A/K/A MICHAEL FRANCIS DEVITO, DECEASED; UNKNOWN TENANT 1; UNKNOWN TENANT 2; MICHAEL JOSEPH DEVITO; Defendants.
NOTICE OF SALE
Notice is hereby given that, pursuant to the Final Judgment of Foreclosure entered on October 18, 2024, in this cause, in the Circuit Court of Duval County, Florida, the clerk shall sell the property situated in Duval County, Florida, described as: A PORTION OF THE JAMES PLUMMER GRANT, SECTION 43, TOWNSHIP 4 SOUTH, RANGE 27 EAST, DUVAL COUNTY, FLORIDA, AND MORE PARTICULARY DESCRIBED AS FOLLOWS: COMMENCE AT THE INTERSECTION OF THE NORTHERLY RIGHT OF WAY LINE OF JULINGTON CREEK ROAD (A 60 FOOT RIGHT OF WAY AS SHOWN ON THE PLAT OF HOODS SUBDIVISION AS RECORDED IN PLAT BOOK 25, PAGE 84 OF THE CURRENT PUBLIC RECORDS OF SAID COUNTY), WITH THE EASTERLY RIGHT OF WAY LINE OF HOOD LANDING ROAD (A 66 FOOT RIGHT OF WAY AS NOW ESTABLISHED); THENCE SOUTH 83 DEGREES 32` 00” EAST ALONG THE NORTHERLY RIGHT OF WAY OF
to the Plat thereof a Recorded in Plat Book 6, 6A through 6E, inclusive, of the current Public Records of Duval County, Florida. Property address: 8207 Foxdale Dr., Jacksonville, FL 32210
SAID JULINGTON CREEK ROAD, 103.61 FEET, TO THE POINT OF BEGINNING; THENCE SOUTH 83 DEGREES 32` 00” EAST ALONG SAID NORTHERLY RIGHT OF WAY LINE, 90.00 FEET; THENCE NORTH 06 DEGREES 28` 00” EAST, 120.00 FEET; THENCE NORTH 83 DEGREES 32` 00” WEST, 90.00 FEET; THENCE SOUTH 06 DEGREES 28` 00” WEST, 120.00 FEET TO THE POINT OF BEGINNING. a/k/a 4325 JULINGTON CREEK RD, JACKSONVILLE , FL 32258-2138 at public sale, to the highest and best bidder, for cash, online at: www.duval.realforeclose.com on December 04, 2024 beginning at 11:00 AM. Any person claiming an interest in the surplus from the sale, if any, other than the property owner as of the date of the lis pendens must file a claim before the clerk reports the surplus as unclaimed. Americans With Disabilities Act (ADA) Notice In accordance with the Americans with Disabilities Act of 1990 (ADA), If you are a person with a disability who needs any accommodation in order to participate in this proceeding, you are entitled at no cost to you, to the provision of certain assistance. Please contact the ADA Coordinator at crtintrp@coj.net or (904) 2551695 at least 7 days before your scheduled court appearance, or immediately upon receiving this notification if the time before the scheduled appearance is less than 7 days; if you are hearing or voice impaired, call 711. Dated this 1st day of November, 2024.
JODY PHILLIPS Clerk of the Circuit Court
By:
Pamela R. Harrell Deputy Clerk
(Court Seal) eXL Legal, PLLC 12425 28TH ST NORTH, STE. 200 ST. PETERSBURG, FL 33716-1826 EFILING@EXLLEGAL.COM 1000009775
FIRST INSERTION
IN THE CIRCUIT COURT OF THE FOURTH JUDICIAL CIRCUIT, IN AND FOR DUVAL COUNTY, FLORIDA CLERK NO.: 16-2024-CA-005783 DIVISION: CV-E IN RE: FORFEITURE OF THE FOLLOWING DESCRIBED PROPERTY: 2007 NISSAN, 3N1BC11E87L427698 T.K. WATERS, SHERIFF OF DUVAL COUNTY, PLAINTIFF vs. KAMREN JOSEPH WAGNER, CLAIMANT(S) NOTICE OF FORFEITURE COMPLAINT TO: ALL PERSONS CLAIMING A SECURITY OR OTHER INTEREST IN THE ABOVE-DESCRIBED PROPERTY
The above-described property was seized pursuant to the provisions of the Florida Contraband
IN THE COUNTY COURT OF THE FOURTH JUDICIAL CIRCUIT IN AND FOR DUVAL COUNTY, FLORIDA CASE NO.: 16-2023-CC-005862
DIVISION: CC-D PINE LAKES II HOMEOWNERS ASSOCIATION OF JACKSONVILLE, INC., a Florida not-for-profit corporation, Plaintiff, vs. KENISHA S BLOUNT, individually; UNKNOWN SPOUSE OF KENISHA S BLOUNT; SECRETARY OF HOUSING AND URBAN DEVELOPMENT; UNKNOWN TENANT # 1 AND UNKNOWN TENANT # 2. Defendants.
NOTICE OF ACTION
TO: Kenisha S Blount 352 Ponderosa Drive Jacksonville, FL 32218 Unknown Spouse of Kenisha S Blount 352 Ponderosa Drive Jacksonville, FL 32218 YOU ARE NOTIFIED that an action to enforce and foreclose a claim of lien for unpaid homeowners’ association assessments against the real property in Duval County Florida, commonly known as 352 Ponderosa Drive Jacksonville, FL 32218, and more particu-
IN THE CIRCUIT COURT OF THE FOURTH JUDICIAL CIRCUIT IN AND FOR DUVAL COUNTY, FLORIDA GENERAL JURISDICTION DIVISION CASE NO. 16-2023-CA-010196
DIVISION: FC-D
U.S. BANK NATIONAL ASSOCIATION, Plaintiff, vs. VERONICA VIARS AKA VERONICA DREW, et al. Defendant(s). NOTICE OF FORECLOSURE SALE NOTICE IS HEREBY GIVEN pursuant to a Final Judgment of Foreclosure dated March 04, 2024, and entered in 16-2023CA-010196 of the Circuit Court of the FOURTH Judicial Circuit in and for Duval County, Florida, wherein U.S. BANK NATIONAL ASSOCIATION is the Plaintiff and VERONICA VIARS AKA VERONICA DREW; THE COUNTY HOUSING FINANCING AUTHORITY; UNLOCK PARTNERSHIP SOLUTIONS, INC.; HOMEOPTIONS REAL ESTATE LLC are the Defendant(s). Jody Phillips as the Clerk of the Circuit Court will sell to the highest and best bidder for cash at: www.duval.realforeclose.com at 11:00 AM, on November 27, 2024, the following described property as set forth in said Final Judgment, to wit: A PART OF GOVERNMENT LOT 8, SECTION 3, TOWNSHIP 2 SOUTH, RANGE 28 EAST, DUVAL COUNTY, FLORIDA MORE PARTICULARLY DESCRIBED AS FOLLOWS: FOR THE POINT OF BEGINNING COMMENCE AT THE NORTHWEST CORNER OF PARCEL NO. 2 AS RECORDED IN VOLUME 1857, PAGE 64 OF THE OFFICIAL RECORDS OF DUVAL COUNTY FLORIDA; THENCE RUN SOUTH 89 DEGREES 19 MINUTES 00 SECONDS WEST, A DISTANCE OF 101 FEET; THENCE SOUTH 0 DEGREES 14 MINUTES 30 SECONDS WEST, A DISTANCE OF 125 FEET
Forfeiture Act, Florida Statutes, sections 932.701-.707, by the Jacksonville Sheriff’s Office on September 9, 2024, at or in the vicinity of Duval County, Florida. The Jacksonville Sheriff’s Office is currently in possession of said property and has filed a Complaint for the purpose of forfeiture of said property in the Circuit Court of the Fourth Judicial Circuit of Florida. In order to protect your rights you must file an Answer to the Complaint with the Clerk of the Circuit Court, Duval County Courthouse, Jacksonville, Florida, within twenty (20) days of this publication. You must also serve a copy of your Answer on Plaintiff’s counsel, Andrew K. Kantor, Assistant State Attorney, 311 West Monroe Street, Jacksonville, Florida 32202. Failure to do so may result in the entry of a default against you and a Final Order of Forfeiture of the above-described property. Nov. 7/14 00 (24-07084D)
larly described as: Lot 200, PINE LAKES UNIT FOUR PHASE TWO, according to the plat as recorded in Plat Book 71, Pages 38 through 43, of the Public Records of Duval County, Florida. Which has been filed against you and you are required to serve a copy of your written defenses, if any, to it on DI MASI || BURTON, P.A., the Plaintiff’s attorney, whose address is 801 N. Orange Avenue, Suite 500, Orlando, Florida 32801 within thirty (30) days after the first publication of this notice and file the original with the clerk of this court either before service on the Plaintiff’s attorney or immediately thereafter; otherwise, a default will be entered against you for the relief demanded in the Complaint. This notice shall be published once a week for two consecutive weeks in Jacksonville Daily Record.
DATED: November 4, 2024 JODY PHILLIPS Clerk of the Court for Duval County, Florida By: Pamela R. Harrell Deputy Clerk (Court Seal) Nov. 7/14 00 (24-07098D)
TO THE NORTHERLY RIGHT OF WAY LINE OF LALAUNA CIRCLE NORTH (COUNTY ROAD NO. 3927) THENCE RUN NORTH 89 DEGREES 19 MINUTES 00 SECONDS EAST, ALONG SAID NORTHERLY RIGHT OF WAY LINE OF LALAUNA CIRCLE NORTH, A DISTANCE OF 101 FEET TO THE SOUTHWEST CORNER OF AFORESAID PARCEL NO. 2; THENCE RUN NORTH 0 DEGREES 14 MINUTES 30 SECONDS EAST ALONG THE WEST LINE OF SAID PARCEL NO. 2, A DISTANCE OF 125 FEET TO THE POINT OF BEGINNING. Property Address: 14055 N LA LAUNA CIR, JACKSONVILLE, FL 32225 Any person claiming an interest in the surplus from the sale, if any, other than the property owner as of the date of the lis pendens must file a claim in accordance with Florida Statutes, Section 45.031. Americans With Disabilities Act (ADA) Notice In accordance with the Americans with Disabilities Act of 1990 (ADA), If you are a person with a disability who needs any accommodation in order to participate in this proceeding, you are entitled at no cost to you, to the provision of certain assistance. Please contact the ADA Coordinator at crtintrp@coj.net or (904)
IN THE JUDICIAL CIRCUIT
COURT IN AND FOR DUVAL COUNTY, FLORIDA
PROBATE DIVISION
Case No.: 16-2024-CP-002428
Division PR-A
IN RE: ESTATE OF SALVATORE MARIO VELTRI
Deceased.
Notice to Creditors
The administration of the estate of SALVATORE MARIO VELTRI, deceased, who’s date of death was 03/03/2024, is pending in the Circuit Court for Duval County, Florida, Probate Division, the address of which is 501 West Adams Street, Jacksonville, FL 32202 The names and addresses of the personal representative and the personal representative’s attorney are set forth below.
All other creditors of the decedent and other persons having claims or demands against decedent’s estate on whom a copy of this notice is required to be served must file their claims with this court ON OR BEFORE THE LATER OF 3 MONTHS AFTER THE TIME OF THE FIRST PUBLICATION OF THIS NOTICE OR 30 DAYS AFTER THE DATE OF SERVICE OF A COPY OF THIS NOTICE ON THEM.
All other creditors of the decedent and other persons having claims or demands against decedent’s estate must file their claims with the court WITHIN 3 MONTHS AFTER THE DATE OF THE FIRST PUBLICATION OF THIS NOTICE.
The personal representative has no duty to discover whether any property held at the time of the decedent’s death by the decedent
FIRST INSERTION IN THE CIRCUIT COURT, FOURTH JUDICIAL CIRCUIT, IN AND FOR DUVAL COUNTY, FLORIDA CASE NO. 16-2024-CP-003091
DIVISION: PR-B IN RE: ESTATE OF JIMMIE LEE CLARK, JR.
Deceased. NOTICE TO CREDITORS
TO: ALL PERSONS HAVING CLAIMS OR DEMANDS AGAINST THE ABOVE ESTATE:
The administration of the Estate of Jimmie Lee Clark, Jr., deceased, whose date of death was August 30, 2024, is pending in the Circuit Court for Duval County, Florida, Probate division, the address of which is 501 West Adams Street, Room 1173, Jacksonville, FL 32202. The names and addresses of the personal representative and the personal representative’s attorney are set forth below. All creditors of the decedent and other persons having claims or demands against decedent’s estate on whom a copy of this notice is required to be served must file their claims with this court ON OR BEFORE THE LATER OF 3 MONTHS AFTER THE TIME OF THE FIRST PUBLICATION OF THIS NOTICE OR 30 DAYS AFTER THE DATE OF SERVICE OF A COPY OF THIS NOTICE ON THEM. All other creditors of the decedent and other persons having claims or demands against decedent’s estate must file their claims with this court WITHIN 3 MONTHS AFTER THE DATE OF THE FIRST PUBLICATION OF THIS NOTICE. ALL CLAIMS NOT FILED WITHIN THE TIME PERIODS SET FORTH IN FLORIDA STATUTES SECTION 733.702 WILL BE FOREVER BARRED. NOTWITHSTANDING THE TIME PERIODS SET FORTH ABOVE, ANY CLAIM FILED TWO (2) YEARS OR MORE AFTER THE DECEDENT’S DATE OF DEATH IS BARRED.
A personal representative or curator has no duty to discover whether any property held at the time of the decedent’s death by the decedent or the decedent’s surviving spouse is property to which the Florida Uniform Disposition of Community Property Rights at Death Act as described in sections 732.216-732.228, applies, or may apply, unless a written demand is made by a creditor as specified under section 732.2211.
The date of first publication of this notice is November 7, 2024.
Personal Representative: Laverne Clark 11392 Secretariat Lane W. Jacksonville, FL 32218
BERNARD & SCHEMER, P.A.
Lawrence J. Bernard, Esquire
480 Busch Drive Jacksonville,
(904)
or the decedent’s surviving spouse is property to which the Florida Uniform Disposition of Community Property Rights at Death Act as described in ss. 732.216732.228, applies, or may apply, unless a written demand is made by a creditor as specified under s. 732.2211, Florida Statutes.
ALL CLAIMS NOT FILED WITHIN THE TIME PERIODS SET FORTH IN FLORIDA STATUTES SECTION 733.702 WILL BE FOREVER BARRED. NOTWITHSTANDING THE TIME PERIODS SET FORTH ABOVE, ANY CLAIM FILED TWO (2) YEARS OR MORE AFTER THE DECEDENT’S DATE OF DEATH IS BARRED.
The date of first publication of this notice is November 7, 2024.
Personal Representative: Valerie Lynne Veltri
Personal Representative c/o McKillop Law Firm, P.L. 7563 Philips Highway, Building 500 Jacksonville, FL 32256
Attorney for Personal Representative: /s/ Julia Chansen McKillop Julia Chansen McKillop
Attorney for Personal Representative Florida Bar Number: 43531 MCKILLOP LAW FIRM, P.L. 7563 Philips Highway, Building 500 Jacksonville, FL 32256 Telephone: (904) 503-3893
E-Mail: pleadings@mckilloplawfirm.com
Secondary E-Mail: julia@mckilloplawfirm.com Nov. 7/14 00 (24-07110D)
NOTICE
Notice is hereby given that on November 21st,2024, U-Haul Company of Northern Florida will be offering for sale under the judicial Lien process; by Online Auction; at storagetreasures.com.
The following storage units, Household goods are stored at the U-Haul center located at 7052 103rd Street, Jacksonville FL 32210.
C206 Bianca Brown $1,400.50
D228-29 Ania Jefferson $1,139.65
C104 Stephanie Agnew $895.75
D314 Abraham Abiara $1,108.05
D160 Demarionna Jackson
$859.05
C013 Derreck Freeman $1,046.10
D199-01 NYKIA JOHNSON
$856.00
The following storage units, Household goods are stored at the U-Haul center located at 1501 Normandy Village Pkwy Jacksonville, FL 32221
1291 DA’SHA ARNOLD $640.85
1384 Giovanni Hall $895.15
1627 ONISHA STUBBS $791.85
1396 Tonita Douglas $1,173.90
1301-02 Stephanie Sanders
$1,491.80
1742 Dustin Lee $744.71
The following storage units, Household goods are stored at the U-Haul center located at 8115 Blanding Blvd, Jacksonville FL 32244
C411 Jashya Phillips $1,379.70
C405 Gavin Smart $734.35
The following storage units, Household goods are stored at the U-Haul center located at 9422 103rd Street, Jacksonville FL 32210
3028 Oscar Hernandez $1,901.65
141 Janice Soliz Quevedo Perez $1,354.07 134 NEIIBRA JACKSON $1,032.90 1011 Linda Johnson $1,531.55
150 Darlene Sinclair $972.15 1158 BRIAN MIELKE $1,181.05
The following storage units, Household goods are stored at the U-Haul center located at 6100 Blanding Blvd, Jacksonville 32210.
068 kathy harrell $1,115.20
065 John Shuler II $813.25 036 Shannom Gordon $1,917.35
The following storage units, Household goods are stored at the U-Haul center located at 1439 Blanding Blvd, Middleburg FL, 32065
2175 Brandon Campbell $1,122.75
2244 Brandon Campbell $1,122.75
2089 Ervin Stuart $835.30
The following storage units, Household goods are stored at the U-Haul center located at 6805 103rd St Jacksonville, FL 32210
FIRST INSERTION IN THE CIRCUIT COURT OF THE FOURTH JUDICIAL CIRCUIT IN AND FOR DUVAL COUNTY, FLORIDA Case No.: 16-2024-CA-001304
DIVISION: FC-C
U.S. BANK NATIONAL ASSOCIATION, AS TRUSTEE FOR VELOCITY COMMERCIAL CAPITAL LOAN TRUST 2021-3, Plaintiff, v. SOVEREIGN INVESTMENT
GROUP FLA LLC, a Florida limited liability company; JOY ROBINSON, an individual; UNKNOWN TENANT IN POSSESSION #1; and UNKNOWN TENANT IN POSSESSION #2, Defendants.
NOTICE OF FORECLOSURE SALE
NOTICE IS HEREBY GIVEN that on Tuesday, December, 3, 2024, at 11:00 a.m. at: www.duval.realforeclose.com the Clerk of this Court will offer for sale to the highest bidder for cash in accordance with Section 45.031, Fla. Stat., the following described real property:
Lot C, Delcher’s First Addition to Murray Hill Terrace, according to the Plat thereof as recorded in Plat Book 16, at Page(s) 49, of the Public Records of Duval County, Florida.
Commonly known as 4833 College Street, Jacksonville, FL 32205-4915
The aforesaid sale will be made pursuant to the Final Judgment entered in Case No.: 16-2024-CA001304 in the Circuit Court of the Fourth Judicial Circuit in and for Duval County, Florida. Any person claiming an interested in the surplus from the sale, if any other than the property owner as of the date of Lis Pendens, must file a claim before the clerk reports the surplus as unclaimed.
DATED on 4th day of November, 2024.
JODY PHILLIPS
CLERK OF THE CIRCUIT COURT
By: Pamela R. Harrell
As Deputy Clerk (Court Seal)
Gennifer L. Bridges, Esquire Burr & Forman LLP
200 South Orange Avenue, Suite 80 Orlando, FL 3201
Email: gbridges@burr.com
Secondary Email: nwmosley@burr.com; acape@burr.com
Attorneys for Plaintiff Nov. 7/14 00 (24-07102D)
FIRST INSERTION IN THE CIRCUIT COURT, FOURTH JUDICIAL CIRCUIT IN AND FOR DUVAL COUNTY, FLORIDA CASE NO.: 16-2024-CP-003159
DIVISION: PR-B IN RE: THE ESTATE OF: ELIZABETH STEPHENS WILLIAMS Decedent.
NOTICE TO CREDITORS (summary administration) TO ALL PERSONS HAVING CLAIMS OR DEMANDS AGAINST THE ABOVE ESTATE: You are hereby notified that an Order of Summary Administration has been entered in the estate of ELIZABETH STEPHENS WILLIAMS, deceased, File Number 16-2024-CP-003159, by the Circuit Court for Duval County, Florida, Probate Division, that the address of which is 501 W. Adams Street, Jacksonville, Florida; that the total value of the estate is $0 and that the names and addresses of those to whom it has been assigned by such order are: Kimberly Williams Zagraiek, 129 Penn Place, Galivants Ferry, SC 29544, Daughter ALL INTERESTED PERSONS ARE NOTIFIED THAT: All creditors of the estate of the decedent and persons having claims or demands against the estate of the decedent other than those whom provision for full payment was made in Order of the Summary Administration must file their claims with this court FILED WITHIN THE TIME PERIODS SET FORTH IN FLORIDA STATUTES SECTION 733.702. ALL CLAIMS AND DEMANDS NOT SO FILED WILL BE FOREVER BARRED. NOTWITHSTANDING ANY OTHER APPLICABLE TIME PERIOD, ANY CLAIM FILED TWO (2) YEARS OR MORE AFTER THE DECEDENT’S DATE OF DEATH IS BARRED. A personal representative or curator has no duty to discover whether any property held at the time of the decedent’s death by the decedent or the decedent’s surviving spouse is property to which the Florida Uniform Disposition of Community Property Rights at Death Act as described in sections 732.216-732.228, applies, or may apply, unless a written demand is made by a creditor as specified under section 732.2211. The date of first publication of this notice is November 7, 2024. Kimberly Williams Zagraiek Kimberly Williams Zagraiek Personal Representative 129 Penn Place Galivants Ferry, SC 29544 /s/ Jennifer Akin
Jennifer Akin, Esq. Florida Bar No. 113117 6045 A1A S. St. Augustine, FL 32080
Phone: (904) 320-0011
jennifer@jakinlaw.com
Attorney for Petitioner Nov. 7/14 00 (24-07116D)
FIRST INSERTION
Owens $1,589.95
0525 Travis Carter $914.95 Nov. 7/14 00 (24-07108D)
IN THE CIRCUIT COURT OF THE FOURTH JUDICIAL CIRCUIT IN AND FOR DUVAL COUNTY, FLORIDA Case No.: 16-2023-CA-010750 DIVISION: CV-E GROUNDFLOOR PROPERTIES GA LLC, Plaintiff, VS. B.I.C HOME SOLUTIONS LLC; IRA EVANS, JR.; SAUNDRIA EVANS; ANY AND ALL UNKNOWN PARTIES CLAIMING BY, THROUGH, UNDER AND AGAINST THE HEREIN NAMED INDIVIDUAL DEFENDANT(S) WHO ARE NOT KNOWN TO BE DEAD OR ALIVE, WHETHER SAID UNKNOWN PARTIES MAY CLAIM AN INTEREST AS SPOUSES, HEIRS, DEVISEES, GRANTEES, OR OTHER CLAIMANTS Defendant(s). NOTICE OF FORECLOSURE SALE PURSUANT TO CHAPTER 45 NOTICE IS HEREBY GIVEN that sale will be made pursuant to an Order or Final Judgment. Final Judgment was awarded on October 25, 2024 in Civil Case No. 16-2023-CA-010750, of the Circuit Court of the Judicial Circuit in and for Duval County, Florida, wherein, GROUNDFLOOR PROPERTIES GA LLC is the Plaintiff, and B.I.C HOME SOLUTIONS LLC; IRA EVANS, JR.; SAUNDRIA EVANS; ANY AND ALL UNKNOWN PARTIES CLAIMING BY, THROUGH, UNDER AND AGAINST THE HEREIN NAMED INDIVIDUAL DEFENDANT(S) WHO ARE NOT KNOWN TO BE DEAD OR ALIVE, WHETHER SAID UNKNOWN PARTIES MAY CLAIM AN INTEREST AS SPOUSES, HEIRS, DEVISEES, GRANTEES, OR OTHER CLAIMANTS are Defendants. The Clerk of the Court, Jody Phillips will sell to the highest bidder for cash at: www.duval.realforeclose.com
IN THE COUNTY COURT, FOURTH JUDICIAL CIRCUIT IN AND FOR DUVAL COUNTY, FLORIDA CASE NO.: 16-2023-CC-002661
DIVISION: CC-K LONGLEAF MASTER HOMEOWNERS’ ASSOCIATION, INC., a Florida not-for-profit corporation, Plaintiff, v. ERIC CHRISTOPHER HERRING, et al., Defendant. AMENDED NOTICE OF FORECLOSURE SALE NOTICE IS HEREBY given pursuant to a Final Summary Judgment of Foreclosure dated October 24, 2024 and entered in Case No. 16-2023-CC-002661: DIV.: CC-K, of the County Court of the Fourth Judicial District in and for Duval County, Florida wherein LONGLEAF MASTER HOMEOWNERS’ ASSOCIATION, INC., is the Plaintiff and ERIC CHRISTOPHER HERRING is the Defendant, I will sell to the highest bidder for cash at: www.duval.realforeclose.com in Duval County, Florida, at 11:00
A.M. on the 17th day of December, 2024, the following described property as set forth in said Final Judgment, to wit: Lot 670, of LONGLEAF PHASE 6, according to the Plat thereof, as recorded in Plat Book 73, Page 48, of the
Public Records of Duval County, Florida. Parcel Identification Number: 016410-1500. Any person claiming an interest in the surplus from the sale, if any, other than the property owner as of the date of the lis pendens must file a claim before the clerk reports the surplus as unclaimed. Americans With Disabilities Act (ADA) Notice In accordance with the Americans with Disabilities Act of 1990 (ADA), If you are a person with a disability who needs any accommodation in order to participate in this proceeding, you are entitled at no cost to you, to the provision of certain assistance. Please contact the ADA Coordinator at crtintrp@coj.net or (904) 2551695 at least 7 days before your scheduled court appearance, or immediately upon receiving this notification if the time before the scheduled appearance is less than 7 days; if you are hearing or voice impaired, call 711 Dated this 5th day of November, 2024.
JODY PHILLIPS As Clerk of the Court By: Pamela R. Harrell As Deputy Clerk (Court Seal) Michael J. McCabe, Esquire 110 Solana Road, Suite 102 Ponte Vedra Beach, Florida 32082 service@flcalegal.com Nov. 7/14 00 (24-07111D)
IN THE CIRCUIT COURT OF THE FOURTH JUDICIAL CIRCUIT IN AND FOR DUVAL COUNTY, FLORIDA CASE NO. 16-2024-CA-001912
on January 8, 2025 at 11:00:00 AM EST the following described real property as set forth in said Final Judgment, to wit: LOT 2, BLOCK 7, EXCEPT THE WESTERLY 4 FEET THEREOF, UNION INVESTMENT COMPANY’S SUBDIVISION, ACCORDING TO THE PLAT THEREOF RECORDED IN PLAT BOOK 6, PAGE 38, OF THE CURRENT PUBLIC RECORDS OF DUVAL COUNTY, FLORIDA.
Any person claiming an interest in the surplus from the sale, if any, other than the property owner as of the date of the lis pendens must file a claim before the clerk reports the surplus as unclaimed. Americans With Disabilities Act (ADA) Notice In accordance with the Americans with Disabilities Act of 1990 (ADA), If you are a person with a disability who needs any accommodation in order to participate in this proceeding, you are entitled at no cost to you, to the provision of certain assistance. Please contact the ADA Coordinator at crtintrp@coj.net or (904) 2551695 at least 7 days before your scheduled court appearance, or immediately upon receiving this notification if the time before the scheduled appearance is less than 7 days; if you are hearing or voice impaired, call 711. WITNESS my hand and the seal of the court on November 5, 2024.
JODY PHILLIPS CLERK OF THE COURT By: Alice V. Griffin Deputy Clerk (Court Seal)
ALDRIDGE PITE, LLP
Attorney for Plaintiff 5300 West Atlantic Avenue Suite 303 Delray Beach, FL 33484
Telephone: 561-392-6391
Facsimile: 561-392-6965
Primary E-Mail: ServiceMail@aldridgepite.com 1696-004B Nov. 7/14 00 (24-07118D)
DIVISION: FC-H GREENSPRING CAPITAL MANAGEMENT LLC, NOT IN ITS INDIVIDUAL CAPACITY, BUT SOLELY AS ADMINISTRATOR OF THE RMH 2023-2 TRUST Plaintiff, v. THE UNKNOWN HEIRS, GRANTEES, DEVISEES, LIENORS, TRUSTEES, AND CREDITORS OF EBENEZER DARDEN A/K/A EBENEZER M. DARDEN, DECEASED; LASONJA DENISE WILLIAMS A/K/A LASONJA D. WILLIAMS A/K/A LASONIA D. WILLIAMS; QUINTIN O WILLIAMS A/K/A QUINTIN O. WILLIAMS; UNKNOWN TENANT 1; UNKNOWN TENANT 2; Defendants. NOTICE OF SALE Notice is hereby given that, pursuant to the Final Judgment of Foreclosure entered on October 18, 2024, in this cause, in the Circuit Court of Duval County, Florida, the clerk shall sell the property situated in Duval County, Florida, described as: LOT 4, BLOCK 59, EAST GRAND PARK, ACCORDING TO PLAT RECORDED IN PLAT BOOK 2, PAGE 51, OF THE CURRENT PUBLIC RECORDS OF DUVAL COUNTY, FLORIDA. a/k/a 2270 W 11TH ST,
IN THE CIRCUIT COURT, FOURTH JUDICIAL CIRCUIT, IN AND FOR DUVAL COUNTY, FLORIDA PROBATE DIVISION CASE No.: 16-2024-CP-003077
DIVISION: PR-B
IN RE: ESTATE OF JOHN HERBERT PARKS, a/k/a JOHN H. PARKS, Deceased.
NOTICE TO CREDITORS
The administration of the estate of JOHN HERBERT PARKS, a/k/a JOHN H. PARKS, deceased, whose date of death was September 11, 2024, is pending in the Circuit Court, for Duval County, Florida, Probate Division, the address of which is 501 West Adams St., Jacksonville, Florida 32202. The names and addresses of the personal representative and the personal representative’s attorney are set forth below. All creditors of the decedent and other persons having claims or demands against decedent’s estate on whom a copy of this notice is required to be served must file their claims with this court ON OR BEFORE THE LATER OF 3 MONTHS AFTER THE TIME OF THE FIRST PUBLICATION OF THIS NOTICE OR 30 DAYS AFTER THE DATE OF SERVICE OF A COPY OF THIS NOTICE ON THEM.
The personal representative has no duty to discover whether any property held at the time of the decedent’s death by the decedent or the decedent’s surviving spouse is property to which the Florida Uniform Disposition of Commu-
JACKSONVILLE , FL 322095859 at public sale, to the highest and best bidder, for cash, online at: www.duval.realforeclose.com on December 05, 2024 beginning at 11:00 AM. Any person claiming an interest in the surplus from the sale, if any, other than the property owner as of the date of the lis pendens must file a claim before the clerk reports the surplus as unclaimed. Americans With Disabilities Act (ADA) Notice In accordance with the Americans with Disabilities Act of 1990 (ADA), If you are a person with a disability who needs any accommodation in order to participate in this proceeding, you are entitled at no cost to you, to the provision of certain assistance. Please contact the ADA Coordinator at crtintrp@coj.net or (904) 2551695 at least 7 days before your scheduled court appearance, or immediately upon receiving this notification if the time before the scheduled appearance is less than 7 days; if you are hearing or voice impaired, call 711. Dated this 4th day of November, 2024.
JODY PHILLIPS Clerk of the Circuit Court By: Pamela R. Harrell Deputy Clerk (Court Seal) eXL Legal, PLLC 12425 28TH ST NORTH, STE. 200 ST. PETERSBURG, FL 33716-1826 EFILING@EXLLEGAL.COM 1000009774 Nov. 7/14 00 (24-07103D)
nity Property Rights at Death Act as described in sections 732.216732.228, applies, Florida Statutes, applies, or may apply, unless a written demand is made by a creditor as specified under section 732.2211, Florida Statutes. All other creditors of the decedent and other persons having claims or demands against decedent’s estate must file their claims with this court WITHIN 3 MONTHS AFTER THE DATE OF THE FIRST PUBLICATION OF THIS NOTICE. ALL CLAIMS NOT FILED WITHIN THE TIME PERIODS SET FORTH IN FLORIDA STATUTES SECTION 733.702 WILL BE FOREVER BARRED. NOTWITHSTANDING THE TIME PERIODS SET FORTH ABOVE, ANY CLAIM FILED TWO (2) YEARS OR MORE AFTER THE DECEDENT’S DATE OF DEATH IS BARRED. The date of first publication of this Notice is November 7, 2024. Personal Representative: KAREN MARIE AUSUM 1818
IN THE CIRCUIT COURT OF THE FOURTH JUDICIAL
CIRCUIT JUDICIAL
CIRCUIT, IN AND FOR DUVAL COUNTY, FLORIDA
CIVIL DIVISION
CASE NO.: 16-2024-CA-002955
DIVISION: FC-D
TOORAK CAPITAL PARTNERS, LLC
PLAINTIFF, vs. IZP PROPERTIES LLC, ET AL.,
DEFENDANT(S).
NOTICE OF ACTION
TO: Izhak Azulay
Last Known Address: 639 East 27th Street, Jacksonville, FL 32206
Current Residence: UNKNOWN
TO: Izhak Azulay
Last Known Address: 12113 Cap Ferrat Street, Jacksonville, FL 32206
Current Residence: UNKNOWN
YOU ARE NOTIFIED that an action for Foreclosure of Mortgage on the following described property:
The East 30 Feet of Lot 25, and all of Lot 26, Block 4, North Springfield Terrace, according to the plat thereof as recorded in plat Book 3, Page 88, of the current Public Records of Duval County, Florida. has been filed against you and you are required to serve a copy of your written defenses, if any, to
it, on MILLER, GEORGE & SUGGS, PLLC, Attorney for Plaintiff, whose address is 210 N. University Drive, Suite 900, Coral Springs, FL 33071, on or before a date at least thirty (30) days after the first publication of this Notice in The Jacksonville Daily Record, and file the original with the Clerk of this Court either before service on Plaintiff’s attorney or immediately thereafter; otherwise a default will be entered against you for the relief demanded in the complaint Americans With Disabilities Act (ADA) Notice In accordance with the Americans with Disabilities Act of 1990 (ADA), If you are a person with a disability who needs any accommodation in order to participate in this proceeding, you are entitled at no cost to you, to the provision of certain assistance. Please contact the ADA Coordinator at crtintrp@coj.net or (904) 255-1695 at least 7 days before your scheduled court appearance, or immediately upon receiving this notification if the time before the scheduled appearance is less than 7 days; if you are hearing or voice impaired, call 711. WITNESS my hand and the seal of this Court this 4th day of November, 2024. JODY PHILLIPS As Clerk of Court By: Alice V. Griffin As Deputy Clerk (Court Seal) Nov. 7/14 00 (24-07100D)
IN THE CIRCUIT COURT, FOURTH JUDICIAL CIRCUIT, IN AND FOR DUVAL COUNTY, FLORIDA
PROBATE DIVISION CASE NO.: 16-2024-CP-001159
DIVISION: PR-B IN RE: THE ESTATE OF VALENTINE A. KOWALEWSKI
Deceased.
NOTICE TO CREDITORS
The administration of the estate of Valentine Anthony Kowalewski, deceased, whose date of death was July 18, 2023, is pending in the Circuit Court for Duval County, Florida, Probate Division, the address of which is 501 West Adams Street, Jacksonville, FL 32202. The names and addresses of the personal representative and the personal representative’s attorney are set forth below. All creditors of the decedent and other persons having claims or demands against decedent’s estate on whom a copy of this notice is required to be served must file their claims with this court ON OR BEFORE THE LATER OF 3 MONTHS AFTER THE TIME OF THE FIRST PUBLICATION OF THIS NOTICE OR 30 DAYS AFTER THE DATE OF SERVICE OF A COPY OF THIS NOTICE ON THEM.
The personal representative has no duty to discover whether any property held at the time of the decedent’s death by the decedent or the decedent’s surviving spouse is property to which the Florida Uniform Disposition of Com-
STATE OF SOUTH CAROLINA COUNTY OF BARNWELL IN THE FAMILY COURT SECOND JUDICIAL CIRCUIT Case No. 24-DR-06-151 South Carolina Department of Social Services, Plaintiff, vs Carol Leigh Savage Stacey Beard Margie J Bellinger Defendants. IN THE INTEREST OF: Minor child born in 2013 SUMMONS, NOTICE OF HEARING [REMOVAL] TO: Stacey Beard YOU ARE HEREBY SUMMONED and required to answer the Summons, Notice of Hearing, Complaint [Removal] in and to the minor children in this action, the original of which has been filed in the Barnwell County Office of the Clerk of Court at 109 Park Ave., Aiken, SC 29801, on September 18, 2024, a copy of which will be delivered to you upon request; and to serve a copy of your answer to the complaint upon the attorney, Susanna Ringler, for the Plaintiff at 1410 Park Ave S.E P.O Drawer 1268 Aiken, SC 29802, within thirty (30) days following the date of service upon you, exclusive of the day of such service; and if you fail to answer the complaint within the time stated, the Plaintiff will apply for judgment by default against the Defendant for the relief demanded in the complaint.
PLEASE TAKE NOTICE that you have the right to be present and represented by an attorney. If you cannot afford an attorney, the court will appoint an attor-
FIRST INSERTION
IN THE CIRCUIT COURT FOR DUVAL COUNTY, FLORIDA PROBATE DIVISION
File No. 16-2024-CP-000887
Division PR-B IN RE: ESTATE OF ANNETTE E. MCLELLAND Deceased. NOTICE TO CREDITORS
The administration of the estate of Annette E. McLelland, deceased, whose date of death was November 21, 2023, is pending in the Circuit Court for Duval County, Florida, Probate Division, the address of which is 501 W. Adams Street, Jacksonville. FL 32202. The names and addresses of the personal representative and the personal representative’s attorney are set forth below.
All creditors of the decedent and other persons having claims or demands against decedent’s estate on whom a copy of this notice is required to be served must file their claims with this court ON OR BEFORE THE LATER OF 3 MONTHS AFTER THE TIME OF THE FIRST PUBLICATION OF THIS NOTICE OR 30 DAYS AFTER THE DATE OF SERVICE OF A COPY OF THIS NOTICE ON THEM.
The personal representative has no duty to discover whether any property held at the time of the decedent’s death by the decedent or the decedent’s surviving spouse is property to which the Florida Uniform Disposition of Community Property Rights at Death Act as described in ss. 732.216732.228, Florida Statutes, applies, or may apply, unless a written demand is made by a creditor as specified under s. 732.2211, Florida Statutes.
munity Property Rights at Death Act as described in ss. 732.216732.228, Florida Statutes, applies, or may apply, unless a written demand is made by a creditor as specified under s. 732.2211, Florida Statutes. All other creditors of the decedent and other persons having claims or demands against decedent’s estate must file their claims with this court WITHIN 3 MONTHS AFTER THE DATE OF THE FIRST PUBLICATION OF THIS NOTICE. ALL CLAIMS NOT FILED WITHIN THE TIME PERIODS SET FORTH IN FLORIDA STATUTES SECTION 733.702 WILL BE FOREVER BARRED. NOTWITHSTANDING THE TIME PERIODS SET FORTH ABOVE, ANY CLAIM FILED TWO (2) YEARS OR MORE AFTER THE DECEDENT’S DATE OF DEATH IS BARRED. The date of first publication of this notice is November 7th, 2024
Personal Representative Christina Antonia Kowalewski 7937 Los Robles Court Jacksonville, Florida 32258 Three Rivers Legal Services, Inc.
Steven McDaniels Florida Bar Number: 1021175 3225 University Blvd, South #220 Jacksonville, Florida 32216 Telephone: (904) 423-8959 Fax: (904) 755-4117 E-Mail: steven.mcdaniels@trls.org Nov. 7/14 00 (24-07093D)
ney to represent you. It is your responsibility to contact the Barnwell County Clerk of Court’s Office, 57 Wall St., Barnwell, SC 29812, to apply for appointment of an attorney to represent you if you cannot afford an attorney (take all of these papers with you if you apply). YOU MUST APPLY FOR THE APPOINTMENT OF AN ATTORNEY IMMEDIATELY. IF YOU DO NOT APPLY FOR AN ATTORNEY WITHIN THIRTY DAYS OF RECEIPT OF THE COMPLAINT, AN ATTORNEY WILL NOT BE APPOINTED FOR YOU. YOU ARE FURTHER NOTIFIED that a Merits Hearing will be held in this matter on December 4, 2024 at 2:00 P.M. Please get in contact with Barnwell County Department of Social Services legal department for further instructions If you do not attend, the relief sought may be granted in your absence and that: (1) the Guardian ad Litem (GAL) who is appointed by the Court in this action to represent the best interest of the children will provide the Family Court with a written report that includes an evaluation and assessment of the issues brought before the Court along with recommendations. (2) the Guardian ad Litem’s written report will be available for review twenty-four (24) hours in advance of the hearing. (3) you may review the report at the Guardian ad Litem Program county office. S.C. DEPARTMENT OF SOCIAL SERVICES Legal Department
SC Department of Social Services P.O. Drawer 1268 Aiken, South Carolina 29802 Nov. 7/14/21 00 (24-07091D)
FIRST INSERTION
IN THE CIRCUIT COURT FOR DUVAL COUNTY, FLORIDA
PROBATE DIVISION
File No.: 16-2024-CP-002666
Division: PR-A
IN RE: ESTATE OF REGINA RITA MARCHANT, Deceased.
NOTICE TO CREDITORS
The administration of the estate of Regina Rita Marchant, who died on July 14, 2024, is pending in the Circuit Court for Duval County, Florida, Probate Division, the address of which is 501 West Adams Street, Room 1173, Jacksonville, FL, 32202. The names and addresses of the personal representative and the personal representative’s attorney are set forth below.
A personal representative or curator has no duty to discover whether any property held at the time of the decedent’s death by the decedent or the decedent’s surviving spouse is property to which the Florida Uniform Disposition of Community Property Rights at Death Act as described in sections 732.216-732.228, applies, or may apply, unless a written demand is made by a creditor as specified under section 732.2211. All creditors of the decedent and other persons having claims or demands against decedent’s estate on whom a copy of this notice is required to be served must file their claims with this court WITHIN THE LATER OF 3 MONTHS AFTER THE TIME OF THE FIRST PUBLICATION OF THIS NOTICE OR 30 DAYS AFTER THE DATE OF SERVICE OF A COPY OF THIS NOTICE ON THEM.
All other creditors of the decedent and other persons having claims or demands against decedent’s estate must file their claims with this court WITHIN 3 MONTHS AFTER THE DATE OF THE FIRST PUBLICATION OF THIS NOTICE. ALL CLAIMS NOT FILED WITHIN THE TIME PERIODS SET FORTH IN FLORIDA STATUTES SECTION 733.702 WILL BE FOREVER BARRED. NOTWITHSTANDING THE TIME PERIODS SET FORTH ABOVE, ANY CLAIM FILED TWO (2) YEARS OR MORE AFTER THE DECEDENT’S DATE OF DEATH IS BARRED.
The date of first publication of this notice is November 7, 2024.
Personal Representative: Archie E. McLelland 8070 Delaroche Drive Jacksonville, Florida 32210
Attorney for Personal Representative: April R Scott, Attorney Florida Bar Number: 106677
Tolson & Associates, PA 462 Kingsley Ave., Ste. 101 Orange Park, FL 32073
Telephone: (904) 269-0050
Fax: (904) 269-6119
E-Mail:
office@tolsonandassociates.com Secondary E-Mail: susie@tolsonandassociates.com Nov. 7/14 00 (24-07059D)
All other creditors of the decedent and other persons having claims or demands against decedent’s estate must file their claims with this court WITHIN 3 MONTHS AFTER THE DATE OF THE FIRST PUBLICATION OF THIS NOTICE.
ALL CLAIMS NOT FILED WITHIN THE TIME PERIODS SET FORTH IN SECTION 733.702 OF THE FLORIDA PROBATE CODE WILL BE FOREVER BARRED. NOTWITHSTANDING THE TIME PERIODS SET FORTH ABOVE, ANY CLAIM FILED TWO (2) YEARS OR MORE AFTER THE DECEDENT’S DATE OF DEATH IS BARRED. The date of first publication of this notice is November 7, 2024. Personal Representative: Ronald S. Marchant Attorney for Personal Representative: /s/ Dan W. Armstrong Dan W. Armstrong Attorney for Personal Representative Florida Bar No. 506613 Law Offices of Dan W. Armstrong, P.A. P.O. Box 1535 Ponte Vedra Beach, FL 32004-1535 Telephone: (904) 280-0058 Fax: (904) 280-0109 Nov. 7/14 00 (24-07079D)
IN THE CIRCUIT COURT FOR DUVAL COUNTY, FLORIDA FILE NO. 16-2024-CP-002537
DIVISION: PR-B IN RE: ESTATE OF SUSAN MARIE CARLEY
WOJTOWICZ, A/K/A SUSAN MARIE
WOJTOWICZ, A/K/A SUSAN WOJTOWICZ, Deceased.
NOTICE TO CREDITORS
The administration of the estate of SUSAN MARIE CARLEY
WOJTOWICZ, A/K/A SUSAN MARIE WOJTOWICZ, A/K/A
SUSAN WOJTOWICZ, deceased, whose date of death was August 7, 2024, is pending in the Circuit Court for Duval County, Florida, Probate Division, the address of which is 501 W. Adams Street, Jacksonville, FL 32202. The names and addresses of the personal representative and the personal representative’s attorney are set forth below.
All creditors of the decedent and other persons having claims or demands against decedent’s estate, on whom a copy of this notice is required to be served, must file their claims with this court ON OR BEFORE THE LATER OF 3 MONTHS AFTER THE TIME OF THE FIRST PUBLICATION OF THIS NOTICE OR 30 DAYS AFTER THE DATE OF SERVICE OF A COPY OF THIS NOTICE ON THEM.
All other creditors of the decedent and other persons having claims or demands against decedent’s estate must file their claims with this court WITHIN
3 MONTHS AFTER THE DATE OF THE FIRST PUBLICATION OF THIS NOTICE. ALL CLAIMS NOT FILED WITHIN THE TIME PERIODS
FIRST INSERTION
PUBLIC NOTICE OF SALE NOTICE IS HEREBY GIVEN that the undersigned intends to sell the personal property described below to enforce a lien imposed on said property under The Florida Self Storage Facility Act Statutes (Section 83.801 - 83.809). The undersigned will sell by competitive bidding at lockerfox.com on Thursday the 21st day of November, 2024 at 9:00 AM. Said property is iStorage, 5509 Shad Road, Jacksonville, FL, 32257 Duval County Dorothy Purifoy B01 appliances,misc items. Ronald Willis E44 misc items, mattress, shoes. David oshea G30 Misc Items, Furniture. All purchased items are sold as is, where is, and must be removed within 48 hours of the sale. Purchases must be paid for at the time of purchase by cash or credit/ debit card per facility policy. Sale subject to cancellation in the event of settlement between owner and obligated party.
Nov. 7/14 00 (24-06999D)
FIRST INSERTION
NOTICE
Extra Space Storage, on behalf of itself or its affiliates, Life Storage or Storage Express, will hold a public auction to sell personal property described below belonging to those individuals listed below at the location indicated: 9239 103rd Street Jacksonville, Fl 32210 11/26/ 2024 @ 12:00 PM david benton household items and collectables Brittanie Killian Household Goods Breanna Harris cloths Alicia Flowers Boxes and furniture Shekinah Mcleod School Supplies
Maria Bean Household goods Shante Ayers Household goods Shantracyica Stripling Household goods Joseph N Richards III Household Goods
The auction will be listed and advertised on www.storagetreasures.com. Purchases must be made with cash only and paid at the above referenced facility in order to complete the transaction.
Extra Space Storage may refuse any bid and may rescind any purchase up until the winning bidder takes possession of the personal property.
Nov. 7/14 00 (24-07003D)
FIRST INSERTION IN THE CIRCUIT COURT OF THE FOURTH JUDICIAL CIRCUIT, IN AND FOR DUVAL COUNTY, FLORIDA CLERK NO.: 16-2024-CA-005781
SET FORTH IN FLORIDA STATUTES SECTION 733.702 WILL BE FOREVER BARRED.
A personal representative or curator has no duty to discover whether any property held at the time of the decedent’s death by the decedent or the decedent’s surviving spouse is property to which the Florida Uniform Disposition of Community Property Rights at Death Act as described in Sections 732.216-732.228, applies, or may apply, unless a written demand is made by a creditor as specified under Section 732.2211. NOTWITHSTANDING THE TIME PERIOD SET FORTH ABOVE, ANY CLAIM FILED TWO (2) YEARS OR MORE AFTER THE DECEDENT’S DATE OF DEATH IS BARRED. The date of first publication of this notice is November 7, 2024. Signed on this 4th day of November, 2024. /s/ Heather Joyce HEATHER JOYCE Personal Representative 3882 Tar Kiln Road Jacksonville, FL 32223
/s/ Matthew R. O’Kane
MATTHEW R. O’KANE
Florida Bar Number: 0894516
Attorneys for Petitioner Lowndes, Drosdick, Doster, Kantor & Reed, P.A. 215 North Eola Drive P.O. Box 2809 Orlando, Florida 32802-2809
Telephone: (407) 843-4600
Fax: (407) 843-4444
E-Mail: matthew.okane@lowndes-law. com
Secondary E-Mail: suzanne.dawson @lowndes-law.com Nov. 7/14 00 (24-07090D)
FIRST INSERTION
NOTICE
Extra Space Storage, on behalf of itself or its affiliates, Life Storage or Storage Express, will hold a public auction to sell personal property described below belonging to those individuals listed below at the location indicated: Life Storage, 10523 Deerwood Park Blvd, Jacksonville, FL 32256, 904-561-4843, on November 26th, 2024 at 1:00pm. Joyce King- Clothes legal documents legal supplies Anthony WrightHousehold Goods/Furniture Jocellen Huddlestonhousehold items The auction will be listed and advertised on www.storagetreasures.com. Purchases must be made with cash only and paid at the above referenced facility in order to complete the transaction. Extra Space Storage may refuse any bid and may rescind any purchase up until the winning bidder takes possession of the personal property.
Nov. 7/14 00 (24-07020D)
FIRST INSERTION
NOTICE Extra Space Storage, on behalf of itself or its affiliates, Life Storage or Storage Express, will hold a public auction to sell personal property described below belonging to those individuals listed below at the location indicated: 340 S Myrtle ave Jacksonville, Fl. 32204, 11/26/2024 at 10:00 am D’Archa Bennett Household Goods Keshaun Hartsfield Household Goods Hudson Content Household Goods Tatiana Chapman
Goods Tarrell Brown Luggage Yolanda Stiggons
Goods Yahya Ali Household Goods Pamela Frierson Household Goods The auction will be listed and advertised on www.storagetreasures.com. Purchases must be made with cash only and paid at the above referenced facility in order to complete the transaction. Extra Space Storage may refuse any bid and may rescind any purchase up until the winning bidder takes possession of the personal property.
Nov. 7/14 00 (24-07002D)
DIVISION: CV-F IN RE: FORFEITURE OF THE FOLLOWING DESCRIBED PROPERTY: CURRENCY IN THE AMOUNT OF $38,254.00 SUBMITTED UNDER CCR 2024-558637, SUBMISSION #1206677
T.K. WATERS, SHERIFF OF DUVAL COUNTY, PLAINTIFF vs. LEE BRADLEY JOHNSTON, CLAIMANT(S) NOTICE OF FORFEITURE COMPLAINT TO: ALL PERSONS CLAIMING A SECURITY OR OTHER INTEREST IN THE ABOVE-DESCRIBED PROPERTY
The above-described property was seized pursuant to the provisions of the Florida Contraband Forfeiture Act, Florida Statutes, sections 932.701-.707, by the Jacksonville Sheriff’s Office on September 11, 2024, at or in the vicinity of Duval County, Florida. The Jacksonville Sheriff’s Office is currently in possession of said property and has filed a Complaint for the purpose of forfeiture of said property in the Circuit Court of the Fourth Judicial Circuit of Florida. In order to protect your rights you must file an Answer to the Complaint with the Clerk of the Circuit Court, Duval County Courthouse, Jacksonville, Florida, within twenty (20) days of this publication. You must also serve a copy of your Answer on Plaintiff’s counsel, Andrew K. Kantor, Assistant State Attorney, 311 West Monroe Street, Jacksonville, Florida 32202. Failure to do so may result in the entry of a default against you and a Final Order of Forfeiture of the above-described property. Nov. 7/14 00 (24-07083D)
NOTICE OF PUBLIC SALE Notice is given that U-STOR auctions will be held on November 20 2024 at www.storagetreasures. com. Pursuant to Florida Statutes 83.801 – 83.809, to satisfy liens due to unpaid rents and charges. The undersigned will sell at public sale by competitive bidding the personal property heretofore stored with the undersigned to satisfy the owner’s lien. “CONSISTING OF HOUSEHOLD ITEMS UNLESS OTHERWISE NOTED” Beginning at 10:00 AM U-STOR WESCONNETT 4714
NOTICE UNDER
FICTITIOUS NAME LAW
According to Florida Statute Number 865.09
NOTICE IS HEREBY GIVEN that the undersigned, desiring to engage in business under the Fictitious Name of PORTUVINHOS located at 1401 Riverplace Blvd, Suite 1812, in the City of Jacksonville, Duval County, Florida 32207 intends to register the said name with the Division of Corporations of the Department of State, Tallahassee, Florida. Dated at Jacksonville, Florida, this 31st day of October, 2024.
Eugenio Maslowski Concierge Services VIP By: Eugenio Maslowski de Nov. 7 00 (24-07057D)
FIRST INSERTION
INVITATION TO BID
The Jaguars Stadium of the Future (SOTF) – Jacksonville, FL. Notice is hereby given that AECOM Hunt Construction/Barton Malow will receive bids for Bid Package IFC #2a. This Package will include the following:
A. Demolition, site preparation, concrete foundations, cast-inplace concrete (up to MC), joint sealants, expansion joints Bid Documents will be published via Building Connected on November 14th, 2024.
A Pre-proposal meeting for interested bidders on Wednesday, 11/20 at 4 pm at the West Club, EverBank Stadium. Bids will be received on December 12th, 2024, at 2 PM EST. Request pre-qualification and bidding documents by emailing MJ Fratianni at mj.fratianni@aecom.
com Nov. 7/14/21/29, Dec. 6 00 (24-07038D)
FIRST INSERTION
JEA Request for Proposal
The Bidder can navigate to JEA. com / Formal Bid by the following link: https://www.jea.com/About/ Procurement/Formal_Procurement_Opportunities/ Bids/Responses are to only be submitted electronically via the Zycus platform. Solicitation documents may be downloaded from the Zycus link: https://zsn.zycus.com/guest/ genericRegister/JEA074/ iSource/890512/
A physical Bid opening will NOT be available to the public in person, instead JEA will provide virtual participation via WebEx. Instructions for the WebEx meeting may be found at: https://www. jea.com/Events/Public_Meetings/ Bid_Opening
RFP Number: 1411846048
Title: Market Test for LongTerm Firm, Dispatchable Capacity and Energy Resources
Scope: JEA seeks Responses (the “Solicitation) to provide firm, dispatchable capacity and associated energy to help meet projected customer peak demands (plus reserve margin requirements) and energy requirements beginning in 2030. The Solicitation is supported by JEA’s long-term resource planning process, which indicates that JEA’s system will benefit from efficient, flexible, intermediate generation through the addition of an advanced-class combined-cycle facility. This addition would allow for the efficient utilization of natural gas while providing the JEA system with operational flexibility and dispatchability to reliably integrate increasing amounts of intermittent solar energy.
MANDATORY Pre-Response Meeting: December 2, 2024, at 1:30 p.m. EST Location: Via WebEx ONLY WebEx Info: https://jeameeting.webex.com/ Meeting Number (Access Code): 2317 234 6279; Meeting Password ZiA7n7mJ3kK; Dial In: +1-415-6550001,,23172346279##
Response Due Date: March 4, 2025, at 12:00 p.m. EST
To download a copy of the Solicitation and any applicable PDF quality drawings, visit the Zycus link: https://zsn.zycus.com/ guest/genericRegister/JEA074/ iSource/890512/
Pursuant to the American with Disabilities Act, accommodations for persons with disabilities are available upon request. Please allow 1-2 business days notification to process; last minute requests will be accepted, but may not be possible to fulfill. Please email your request to Camie Evers, everca@jea.com Nov. 7 00 (24-07097D)
FIRST INSERTION
IN THE CIRCUIT COURT OF THE 4TH JUDICIAL CIRCUIT IN AND FOR DUVAL COUNTY CASE NO. 16-2010-DP-101-A
DIVISION: JV-B IN THE INTEREST OF: A.D. DOB: 9/13/2008, MINOR CHILD NOTICE OF ACTION TERMINATION OF PARENTAL RIGHTS TO: Terale Drake, address unknown YOU ARE HEREBY NOTIFIED that the State of Florida, Department of Children and Families, has filed a Petition to terminate your parental rights and permanently commit the following child for adoption: A.D. born on 9/13/2008. You are hereby commanded to appear on December 16, 2024, at 1:00 PM before the Honorable Michael Kalil Donna J. Vincent at the Duval Courthouse, 501 W Adams Street Courtroom 204 Jacksonville, FL 32202, for an ADVISORY HEARING. FAILURE TO PERSONALLY APPEAR AT THIS ADVISORY HEARING CONSTITUTES CONSENT TO THE TERMINATION OF PARENTAL RIGHTS OF THIS CHILD (OR CHILDREN). IF YOU FAIL TO APPEAR ON THE DATE AND TIME SPECIFIED, YOU MAY LOSE ALL LEGAL RIGHTS AS A PARENT TO THE CHILD OR CHILDREN NAMED IN THIS NOTICE.
1. If you are a person with a disability who needs any accommodation in order to participate in this proceeding, you are entitled, at no cost to you, to the provision of certain assistance. Please contact the ADA Coordinator at (904) 255-1695 or crtintrp@coj.net at least 7 days before your scheduled court appearance, or immediately upon receiving this notification if the time before the scheduled appearance is less than 7 days; if you are hearing or voice impaired, call 711.
WITNESS, my hand as Clerk of said Court and the Seal thereof, this 6th day of November 2024.
JODY PHILLIPS, CLERK OF COURT By: Le My Le As Deputy Clerk (Court Seal) Nov. 7/14/24/29 00 (24-07121D)
FIRST INSERTION
BOARD OF SUPERVISORS
MEETING DATES KINGS CREEK I COMMUNITY DEVELOPMENT DISTRICT FISCAL YEAR 2024-2025
The Board of Supervisors of the Kings Creek I Community Development District will hold their regular meetings for Fiscal Year 2024-2025 at 12574 Flagler Center Boulevard, Suite 101 Jacksonville, FL 32258, at 1:00. unless otherwise indicated as follows.
October 22, 2024 1:00 p.m.
November 19, 2024 1:00 p.m.
December 17, 2024 1:00 p.m.
January 28, 2025 1:00 p.m.
February 25, 2025 1:00 p.m.
March 25, 2025 1:00 p.m.
April 22, 2025 1:00 p.m.
May 27, 2025 1:00 p.m.
June 24, 2025 1:00 p.m.
July 22, 2025 1:00 p.m.
August 26, 2025 1:00 p.m.
September 23, 2025 1:00 p.m.
The meetings are open to the public and will be conducted in accordance with the provision of Florida Law for Community Development Districts. The meetings may be continued to a date, time, and place to be specified on the record at the meeting. A copy of the agenda for these meetings may be obtained from Inframark, 2005 Pan Am Circle, Suite 300, Tampa, Florida 33607 or by calling (813) 873-7300. There may be occasions when one or more Supervisors or staff will participate by telephone. Pursuant to provisions of the Americans with Disabilities Act, any person requiring special accommodations at this meeting because of a disability or physical impairment should contact the District Office at (813) 873-7300 at least 48 hours prior to the meeting. If you are hearing or speech impaired, please contact the Florida Relay Service by dialing 7-1-1, or 1-800955-8771 (TTY) / 1-800-955-8770 (Voice), for aid in contacting the District Office.
A person who decides to appeal any decision made at the meeting with respect to any matter considered at the meeting is advised that person will need a record of the proceedings and that accordingly, the person may need to ensure that a verbatim record of the proceedings is made, including the testimony and evidence upon which such appeal is to be based. Brian Lamb District Manager Nov. 7 00 (24-07086D)
FIRST INSERTION
IN THE CIRCUIT COURT OF THE FOURTH JUDICIAL CIRCUIT IN AND FOR DUVAL COUNTY, FLORIDA
CIVIL DIVISION
Case No.: 16-2024-SC-012581
DIVISION: CC-E
ADVANCED PLUMBING TECHNOLOGY, LLC, Plaintiff, v. ROBERT KELLER and MARTA KELLER, Defendant.
NOTICE OF ACTION TO: Defendants, ROBERT KELLER and MARTA KELLER
YOU ARE HEREBY NOTIFIED that a Complaint to Enforce Construction Lien relating to certain real property located in Duval County, Florida, to-wit: SEE EXHIBIT A ATTACHED HERETO AND MADE A PART HEREOF: EXHIBIT A Legal Description Lot 10, Block 1 of RIBAULT HILLS UNIT NO. 1, according to the Plat thereof as recorded in Plat Book 20, Page(s) 53 and 53A, of the Current Public Records of
Duval County, Florida. has be en filed against you and you are required to serve a copy of your written defenses, if any, to Plaintiff’s attorney, STEVEN C. PRATICO, ESQUIRE, of the law firm of JOHNSON POPE BOKOR RUPPEL & BURNS LLP, whose address is 400 North Ashley Drive, Suite 3100, Tampa, Florida 33602, spratico@jpfirm. com, telephone number (813) 225-2500, attorneys for the Plaintiff, ADVANCED PLUMBING TECHNOLOGY, LLC, on or before December 17th, 2024, and file the original with the Clerk of this Court either before service on the Plaintiff’s attorney or immediately thereafter; otherwise a default will be entered against you for the relief demanded in the Complaint to Enforce Construction Lien.
DATED THIS 1st day of November, 2024. JODY PHILLIPS Clerk of the Circuit Court of Duval County By: Ciara Bradshaw As: Deputy Clerk (Court Seal) Nov. 7/14/21/29 00 (24-07068D)
IN THE CIRCUIT COURT OF THE FOURTH JUDICIAL CIRCUIT, IN AND FOR DUVAL COUNTY, FLORIDA CASE NO.: 16-2024-CA-002521
DIVISION: CV-F
STF CAPITAL GROUP LLC, a Florida limited liability company, Plaintiff, vs. MAHALIA HUIE, if alive, and if dead, the unknown spouses, heirs, devisees, grantees, assignees, lienors, creditors, trustees other persons claiming by, through, under or against them, or any of them and all unknown persons, and BLUE WORLD POOLS, INC., Defendants.
NOTICE OF ACTION TO: MAHALIA HUIE, if alive, and if dead, the unknown spouses, heirs, devisees, grantees, assignees, lienors, creditors, trustees other persons claiming by, through, under or against them, or any of them and all unknown persons, or other claimants, or interest in the property herein
YOU ARE HEREBY NOTIFIED that an action to Quiet Title to real property in the Circuit Court in Jacksonville, Duval County, Florida styled as Case No.: 16-2024-CA-002521, STF CAPITAL GROUP LLC, a Florida limited liability company, v. MAHALIA HUIE, et. al., to the
property described as: L OT 9, BLOCK 28; REPLAT NUMBER 2 OF ROYAL TERRACE, ACCORDING TO PLAT THEREOF AS RECORDED IN PLAT BOOK 7, PAGE(S) 19, OF THE CURRENT PUBLIC RECORDS OF DUVAL COUNTY, FLORIDA A/K/A 1856 WEST 30TH STREET, JACKSONVILLE, FL 32209
RE#:085298-0000 has been filed by STF CAPITAL GROUP LLC, a Florida limited liability company, Plaintiff, and you are required to serve a copy of your written defenses if any, to it on William S. Frazier, 1919-8 Blanding Boulevard, Jacksonville, Florida 32210, 904-384-1441 on or before 30 days from the date of this Notice, and file the original with the Clerk of this Court either before service on said Plaintiff or immediately thereafter; otherwise a default and judgment will be entered against you for the relief demanded in the Petition.
WITNESS my hand and the seal of this Court on this 4th day of November, 2024.
JODY PHILLIPS Clerk of the Court By: Pamela R. Harrell Deputy Clerk (Court Seal) Nov. 7/14/21/29 00 (24-07099D)
FIRST INSERTION
IN THE COUNTY COURT OF DUVAL COUNTY, FLORIDA
Case No: 16-2024-CC-009349
DIVISION: CC-C Ally Bank Plaintiff v. Sandra Anne Mearkle and Brett Allen Mearkle Defendant(s). NOTICE OF ACTION CONSTRUCTIVE SERVICE PERSONAL PROPERTY TO: Brett Allen Mearkle: LAST KNOWN ADDRESS: 385 East Coast Drive, Atlantic Beach, FL 32233
Residence unknown, if living, including any unknown spouse of the said Defendants, if either has remarried and if either or both of said Defendants are dead, their respective unknown heirs, devisees, grantees, assignees, creditors, lienors, and trustees, and all other persons claiming by, through, under or against the named Defendant(s); and the aforementioned named Defendant(s) and such of the aforementioned unknown Defendants and such of the aforementioned unknown Defendants as may be infants, incompetents or otherwise not sui juris.
YOU ARE HEREBY NOTIFIED that a complaint for monetary damages and writ of replevin on personal property arising from contract has been commenced to recover possession of the following personal property, last known to be located in Duval
FIRST
IN THE CIRCUIT COURT FOR THE 4TH JUDICIAL CIRCUIT, IN AND FOR DUVAL COUNTY, FLORIDA PROBATE DIVISION
File No. 16-2024-CP-002938
DIVISION: PR-A IN RE: ESTATE OF KIM KATHRYNE FLEMING, Deceased. NOTICE TO CREDITORS
The administration of the estate of KIM KATHRYNE FLEMING, Deceased, whose date of death was October 20, 2022, is pending in the Circuit Court for Duval County, Florida, Probate Division, the address of which is 501 W Adams Street, Jacksonville, FL 32202
The names and addresses of the personal representative and the personal representative’s attorney are set forth below. All creditors of the decedent and other persons having claims or demands against decedent’s estate on whom a copy of this notice is required to be served must file their claims with this court WITHIN THE LATER OF 3 MONTHS AFTER THE TIME OF THE FIRST PUBLICATION OF THIS NOTICE OR 30 DAYS AFTER THE DATE OF SERVICE OF A COPY OF THIS NOTICE ON THEM.
All other creditors of the decedent and other persons having claims or demands against decedent’s estate must file their claims with this court WITHIN 3 MONTHS AFTER THE DATE OF THE FIRST PUBLICATION OF THIS NOTICE. ALL CLAIMS NOT FILED WITHIN THE TIME PERIODS SET FORTH IN SECTION 733.702 OF THE FLORIDA PROBATE CODE WILL BE FOREVER BARRED. NOTWITHSTANDING THE TIME PERIODS SET FORTH ABOVE, ANY CLAIM FILED TWO (2) YEARS OR MORE AFTER THE DECEDENT’S DATE OF DEATH IS BARRED.
A personal representative or curator has no duty to discover whether any property held at the time of the decedent’s death by the decedent or the decedent’s surviving spouse is property to which the Florida Uniform Disposition of Community Property Rights at Death Act as described in sections 732.216-732.228, applies, or may apply, unless a written demand is made by a creditor as specified under section 732.2211.
The date of first publication of this notice is November 7, 2024. NEIL D. FLEMING, Personal Representative Attorney for Personal Representative: Scott R. Bugay, Esquire Florida Bar No. 5207 Citicentre, Suite P600 290 NW 165 Street Miami FL 33169 Telephone: (305) 956-9040 Fax: (305) 945-2905 Primary Email: Scott@srblawyers.com Secondary Email: angelica@srblawyers.com Nov. 7/14 00 (24-07112D)
County, Florida, more particularly described as follows: 2019 Jeep Cherokee (VIN No: 1C4PJMDX8KD379223)
This action has been filed against you and you are required to serve a copy of your written defense, if any, upon LOGS LEGAL GROUP LLP, Attorneys for Plaintiff, whose address is 750 Park of Commerce Blvd., Suite 130, Boca Raton, FL 33487, before twenty (28) days after the first publication of this notice and file the original with the clerk of this court either before service on Plaintiff’s attorney or immediately thereafter; otherwise a default will be entered against you for the relief demanded in the Complaint. Americans With Disabilities Act (ADA) Notice In accordance with the Americans with Disabilities Act of 1990 (ADA), If you are a person with a disability who needs any accommodation in order to participate in this proceeding, you are entitled at no cost to you, to the provision of certain assistance. Please contact the ADA Coordinator at crtintrp@coj.net or (904) 255-1695 at least 7 days before your scheduled court appearance, or immediately upon receiving this notification if the time before the scheduled appearance is less than 7 days; if you are hearing or voice impaired, call 711.
WITNESS my hand and seal of this Court on the 5th day of November, 2024.
JODY PHILLIPS Circuit and County Courts By:
Mary Ninos Deputy Clerk
(Court Seal) Nov. 7/14/21/29 00 (24-07117D)
IN THE CIRCUIT COURT, FOURTH JUDICIAL CIRCUIT, IN AND FOR DUVAL COUNTY, FLORIDA CASE NO: 16-2024-CP-002915
DIVISION: PR-B IN RE: ESTATE OF: ROBERT SPINDLER, Deceased. NOTICE TO CREDITORS
The administration of the estate of Robert Spindler, deceased, whose date of death was July 5, 2024, is pending in the Duval Circuit Court for DUVAL County, Florida, Probate Division, the address of which is 501 West Adams, Jacksonville, Florida 32202. The names and addresses of the personal representative and the personal representative’s attorney are set forth below. All creditors of the decedent and other persons having claims or demands against decedent’s estate on whom a copy of this notice is required to be served must file their claims with this court ON OR BEFORE THE LATER OF 3 MONTHS AFTER THE TIME OF THE FIRST PUBLICATION OF THIS NOTICE OR 30 DAYS AFTER THE DATE OF SERVICE OF A COPY OF THIS NOTICE ON THEM.
The personal representative has no duty to discover whether any property held at the time of the decedent’s death by the decedent or the decedent’s surviving spouse is property to which the Florida Uniform Disposition of Community Property Rights at Death Act as described in ss. 732.216732.228, Florida Statutes, applies, or may apply, unless a written demand is made by a creditor as specified under s. 732.2211, Florida Statutes. All other creditors of the decedent and other persons having claims or demands against decedent’s estate must file their claims with this court WITHIN 3 MONTHS AFTER THE DATE OF THE FIRST PUBLICATION OF THIS NOTICE. ALL CLAIMS NOT FILED WITHIN THE TIME PERIODS SET FORTH IN FLORIDA STATUTES SECTION 733.702 WILL BE FOREVER BARRED. NOTWITHSTANDING THE TIME PERIODS SET FORTH ABOVE, ANY CLAIM FILED TWO (2) YEARS OR MORE AFTER THE DECEDENT’S DATE OF DEATH IS BARRED. The date of first publication of this notice is November 7, 2024. Stephanie Spindler, Personal Representative 3107 Meadowlark Ave. Fort Collins, CO 80526 T. RYAN WILLIAMS LAW GROUP /s/Ryan Williams Ryan Williams, Esq. Florida Bar No. 87453 90 Fort Wade Road, Suite 100 Ponte Vedra, FL 32081 Primary: service@trw.law Ph: 904-930-4100 Counsel for Personal Representative Nov. 7/14 00 (24-07115D)
FIRST INSERTION IN THE CIRCUIT COURT OF THE FOURTH JUDICIAL CIRCUIT IN AND FOR DUVAL COUNTY, FLORIDA CIVIL DIVISION CASE NO. 16-2023-CA-008877
DIVISION: FC-D UMB BANK, NATIONAL ASSOCIATION, NOT IN ITS INDIVIDUAL CAPACITY, BUT SOLELY AS LEGAL TITLE TRUSTEE OF PRL TITLE TRUST II, Plaintiff, vs. CURTIS WARE; DOLORES W. BLAKE a/k/a DOLORES BLAKE SMILEY a/k/a DOLORES SMILEY; UNKNOWN SPOUSE OF DOLORES W. BLAKE a/k/a DOLORES BLAKE SMILEY a/k/a DOLORES SMILEY; CHIMNEY LAKES OWNERS ASSOCIATION, INC; UNKNOWN TENANT #1; UNKNOWN TENANT #2; ALL OTHER UNKNOWN PARTIES CLAIMING INTERESTS BY, THROUGH, UNDER, AND AGAINST THE HEREIN NAMED DEFENDANT(S) WHO ARE NOT KNOWN TO BE DEAD OR ALIVE, WHETHER SAME UNKNOWN PARTIES MAY CLAIM AN INTEREST AS SPOUSES, HEIRS, DEVISEES, GRANTEES, OR OTHER CLAIMANTS Defendant(s).
NOTICE OF FORECLOSURE SALE NOTICE IS HEREBY GIVEN that pursuant to a Final Judgment entered on July 25, 2024 in the Circuit Court of the Fourth Judicial Circuit in and for Duval County, Florida, JODY PHILLIPS, the Clerk of Court, will on NOVEMBER 26, 2024, at 11:00 a.m. EST, offer for sale and sell at public outcry to the highest and
best bidder for cash at: www.duval.realforeclose.com the following described property situated in Duval County, Florida: LOT 6, BLOCK 34, LAKE LUCINA, UNIT NO. 11, ACCORDING TO THE PLAT THEREOF AS RECORDED IN PLAT BOOK 28, PAGE 37, OF THE CURRENT PUBLIC RECORDS OF DUVAL COUNTY, FLORIDA. Property Address: 3145 Holly Berry Lane, Jacksonville, FL 32277 Any person claiming an interest in the surplus from the sale, if any, other than the property owner as of the date of the Lis Pendens must file a claim before the clerk reports the surplus as unclaimed. Americans With Disabilities Act (ADA) Notice In accordance with the Americans with Disabilities Act of 1990 (ADA), If you are a person with a disability who needs any accommodation in order to participate in this proceeding, you are entitled at no cost to you, to the provision of certain assistance. Please contact the ADA Coordinator at crtintrp@coj.net or (904) 2551695 at least 7 days before your scheduled court appearance, or immediately upon receiving this notification if the time before the scheduled appearance is less than 7 days; if you are hearing or voice impaired, call 711.
Dated:
Along with open meeting and freedom of information laws, public notice is an essential element of the three-legged stool of government transparency
This is not about “newspapers vs the internet”. It’s newspapers and newspaper websites vs government websites and newspaper websites have a much larger audience. Moving notice from newspapers to government websites would reduce the presence of public notices on the internet
Since the first U.S. Congress, public officials have understood that newspapers are the best medium to notify the public about official matters because they contain the essential elements of public notice:
Accessibility
Independence
Verifiability
Archivability vs
Requiring independent, third-party newspapers to ensure that public notices run in accordance with the law helps prevent government officials from hiding information they would prefer the public not to see
Citizen Participation Notices
Government Meetings and Hearings
Meeting Minutes or Summaries
Agency Proposals
Proposed Budgets and Tax Rates
Land and Water Use
Creation of Special Tax Districts
School District Reports
Zoning, Annexation and Land Use Changes
Publishing notices on the internet is neither cheap nor free
Newspapers remain the primary vehicle for public notice in all 50 states
Commercial Notices Court Notices
Unclaimed Property, Banks or Governments Delinquent Tax Lists, Tax Deed Sales Government Property Sales
Permit and License Applications
Mortgage Foreclosures
Name Changes
Probate Rulings
Divorces and Adoptions
Orders to Appear in Court
NOTICE OF PUBLIC SALE:
Notice is hereby given that on 12/03/2024 at 10:00 AM the following vehicles(s) may be sold at public sale at 5040 UNIVERSITY
BOULEVARD WEST, JACKSONVILLE, FL 32216 for the amount owed on each vehicle to satisfy the lien for repairs, services and storage charges and any administrative fees allowed pursuant to Florida Statute 713.585.
1FV6HLAA2XHF13247
1999 FRHT 5223.45
The name, address and telephone number and public sale location of the repair shop claiming the lien for unpaid charges is: Lienor Name: TOM NEHL JACKSONVILLE SOUTH, INC.
Lienor Address: 5040 UNIVERSITY
BOULEVARD WEST, JACKSONVILLE, FL 32216
Lienor Telephone #: 904-861-0779
MV License #: MV105756
Location of Vehicles: 5040 UNIVERSITY BLVD WEST, JACKSONVILLE, FL 32216
The customer or person claiming an interest, or a lien may redeem the vehicle by satisfying the amount due in cash on or before the sale date and time. The customer or person claiming an interest in or lien on a vehicle may file a demand for a hearing with the Clerk of Court in the DUVAL County where the vehicle is held to determine whether the vehicle has been wrongfully taken or withheld from him or her. At any time before the date of sale a customer or person of record claiming a lien on the vehicle may post a cash or surety bond in the amount stated on the invoice with the Clerk of Circuit Court where the disputed transaction occurred. Nov. 7 00 (24-07094D)
FIRST INSERTION NOTICE OF PUBLIC HEARINGS
Notice is hereby given that the following public hearings will be held in the Council Chambers, 1st floor, City Hall, 117 West Duval Street, St. James Building, Jacksonville, Florida, concerning: ORDINANCE 2024-850 AN ORDINANCE CLOSING AND ABANDONING AND/OR DISCLAIMING AN OPENED AND IMPROVED PORTION OF THE NUSSBAUM DRIVE RIGHT-OF-WAY, ESTABLISHED IN THE PLAT OF JACKSONVILLE HEIGHTS NORTH HALF OF TOWNSITE, AS RECORDED IN PLAT BOOK 3, PAGE 51 OF THE CURRENT PUBLIC RECORDS OF DUVAL COUNTY, FLORIDA, IN COUNCIL DISTRICT 9, AT THE REQUEST OF JOSEPH LATCHMAN AND EMILY (LIVINGSTON) LATCHMAN; PROVIDING FOR APPROVAL SUBJECT TO CONDITIONS; PROVIDING AN EFFECTIVE DATE.
City Council Public Hearing will be held on Tuesday, November 26, 2024, at 5:00 P.M. The Transportation, Energy, and Utilities (TEU) Committee Public Hearing will be held on Tuesday, December 2, 2024, at 2:00 P.M. A copy of the Ordinance (s) is available for public inspection in the Council Legislative Services Division, Suite 430, City Hall. Additional information concerning this right-of-way closure and abandonment ordinance may be obtained by contacting the Real Estate Division at 255-8700. All interested persons may appear at the meetings and be heard with respect to the proposed ordinance. Nov. 7 00 (24-07104D)
NOTICE OF COMPILATION AND ENTRY OF NUISANCE ABATEMENT AND DEMOLITION LIENS NOTICE OF COMPILATION AND ENTRY OF NUISANCE ABATEMENT AND DEMOLITION LIENS. NOTICE IS HEREBY GIVEN THAT THE CITY OF JACKSONVILLE HAS CUT WEEDS, GRASS AND UNDERBRUSH OR DEMOLISHED UNSAFE STRUCTURES AT VARIOUS LOCATIONS THROUGHOUT THE CITY, PURSUANT TO MUNICIPAL ORDINANCE CODE 518 THESE LIENS HAVE BEEN ENTERED INTO THE LIEN RECORDS AND ARE AS FOLLOWS:
NBNL25000085, 4646
MONCRIEF LLC, 7-19 39-1S-26E
2.52 ROYAL TERRACE TRACT
H(EX PT CITY ST), $14852.33
NBNL25000086, KLAGES JEFF, 41-75 08-4S-27E .10
WINDRIDGE LOT 14-A, $316.88
NBNL25000087, MORGAN
PARIS E JR, 21-023 30-2S-27E
SPRING PARK TERRACE UNIT NO 3 LOT 36(EX PT IN ST RD), $582.63
NBNL25000088, EPPS CHRISTOPHER, 21-72 30-2S27E .27 SPRING PARK
TERRACE UNIT 5 LOT 10,PT
GOV 5 RECD O/R 5778-478(EX PT RECD O/R 19988-1636), $678.08
NBNL25000089, HANCOCK NANCI K, 41-27 23-2S-28E INDIAN SPRINGS UNIT 2C LOT 2 BLK 14, $792.23
NBNL25000090, LAFER
DENNIS J LIVING TRUST ET AL, 52-2S-27E .663 BLK A HAGANS PT LOT 6 RECD O/R 20862-377, $1377.78
NBNL25000091, BOYER MIKE, 11-51 30-2S-27E .044
FULLERS R/P BLKS 7,8
MERIDALE PT LOTS 1,2(EX PT R/W RECD O/R 15992-1390, PT I-95) BLK 8, $361.71
NBNL25000092, JONES SHIRLEY W, 6-12 46-2S-26E .13
SIMMONS ADDN TO SOUTH JAX LOT 12 BLK 3, $478.03
NBNL25000093, MONA SEHAM, 28-59 19-2S-28E
ARLINGTON GREEN UNIT 2 LOT 52, $799.21
NBNL25000094, HILL JOHN GORDON ESTATE, 22-55 52-2S27E NICHOLAS COURT LOT 30, $769.38
NBNL25000095, AURION
BEVERLY KIM ET AL, 19-18 .18
ATLANTIC BLVD ESTATES SEC 13 PT LOT 1 RECD O/R 16000660, $733.87
NBNL25000096, GRIMES
KENNETH M, 7-8 30-2S-27E .229 ST NICHOLAS SPRINGS LOT 6 BLK 5, $811.75
NBNL25000097, MEADERS ESTHER E, 23-79 31-2S-26E .22
LAKE SHORE TERRACE UNIT
NO 6 LOT 19 BLK 6, $791.13
NBNL25000098, SMART PROPERTY HOLDINGS LLC, 3-79 18-3S-26E 1.83 ORTEGA FARMS PT FARM 3 RECD O/R 20422-2184 BLK 28, $1682.13
IN THE CIRCUIT COURT OF THE FOURTH JUDICIAL CIRCUIT, IN AND FOR DUVAL COUNTY, FLORIDA CASE NO.: 16-2023-DR-005654-FM
Division: FM-B
Joanna D. Cardenas, Petitioner, and Wilfredo Rivera, Respondent, NOTICE OF ACTION FOR DISSOLUTION OF MARRIAGE (NO CHILD OR FINANCIAL SUPPORT) TO: Wilfredo Rivera 8232 White Plain Rd. Jacksonville, FL 32208
SECOND INSERTION
Notice of Lien Sale
Pursuant to the lien granted by the Florida Self-storage Facility Act Atlantic Beach Storage Zone Self Storage and Business Centers will sell at public auction on November 19, 2024 personal property belonging to the following tenants to the highest bidder. The sale shall be held on website: www.storageauctions.com Ending at approximately 10:00AM PM. Units are located at 97 Levy Rd Atlantic Beach, Fl. 32233 Sale rules and regulations are available at the time of the Auction.
Jimmie Branton 117P Jamie Holway 139F
YOU ARE NOTIFIED that an action for dissolution of marriage has been filed against you and that you are required to serve a copy of your written defenses, if any, to it on Joanna D. Cardenas whose address is 2310 Red Moon Dr., Jacksonville, FL 32216, on or before December 6, 2024, and file the original with the clerk of this Court at 501 W Adams St., Jacksonville, Florida 32202, before service on Petitioner or immediately thereafter. If you fail to do so, a default may be entered against you for the relief demanded in the petition.
Copies of all court documents in this case, including orders, are available at the Clerk of the Circuit Court’s office. You may review these documents upon request. You must keep the Clerk of the Circuit Court’s office notified of your current address. (You may file Notice of Current Mailing and E-mail Address, Florida Supreme Court Approved Family Law Form 12.915). Future papers in this lawsuit will be mailed to the address on record at the clerk’s office.
NBNL25000099, REAL ANGEL LUIS, 4-79 40-2S-25E LACKAWANNA TOWNSITE LOTS 26,27 BLK O, $731.96
NBNL25000100, MORTON ALBERT EUGENE JR, 26-24 07-3S-25E OAK HILL LOT 11 BLK 6, $588.43
NBNL25000101, PREMLATA LLC, 22-86 31-2S-26E .17 LAKE SHORE TERRACE UNIT NO 4 LOT 32 BLK 2, $461.95
NBNL25000102, HUNDA FIRAHIWOT, 38-9 52-2S27E HIDDEN VILLAGE UNIT THREE LOT 4-B BLK 6, $418.76
NBNL25000103, EDDINGS DAVID, 29-46 37-2S-25E CEDAR HILLS ESTATES UNIT 8 LOT 2 BLK 71, $538.38
NBNL25000104, MOFFETT FAY L ET AL, 31-2S-27E PINE FOREST S/D PT NE1/4 OF SW1/4 LOT 22 D BK 1449-60 HEIRS, $754.01 NBNL25000105, LANGSTON MICHAEL CHRISTOPHER THOMAS, 3-11 59-2S-26E LAKESIDE PARK LOT 26 BLK 102, $702.34 NBNL25000106, GUPTA ANAND S, 8-42 36-3S-26E 2.30 BEAUCLERC POINT PT LOT 31,LOT 32,W1/2 LOT 33 RECD O/R 11174-1411, $3696.54 NBNL25000107, MIMS WILLIAM JEFFREY, 23-9 06-3S-26E CEDAR FOREST LOT 5 BLK 2, $933.71 NBNL25000108, DITECH ET AL, 51-47 10-2S-28E .300 EAGLES CREEK UNIT 3 LOT 30, $829.51
NBNL25000109, HEBERT JEFFREY LAWRENCE , 34-1 51-1S-27E 37-2S-27E FT CAROLINE FOREST UNIT 2-A LOT 156, $2114.22
NBNL25000110, SHEEPCO HOLDINGS LLC, AQ-260 50-3S-27E .23 TIGER HOLE S/D PT F RICHARD GRANT PT LOTS 53,54 RECD O/R 19448413, $712.75
NBNL25000111, SOUTHERN BELL TELEPHONE & TEL CO, 08-2S-29E PT GOVT LOT 3 RECD O/R BK 5637-2350, $375.52
NBNL25000112, CPI
AMHERST SFR PROGRAM OWNER LLC, 71-195 52-2S27E CENTURY LAKES TOWNHOMES LOT 7D, $286.32
NBNL25000113, CPI
AMHERST SFR PROGRAM OWNER LLC, 71-195 52-2S27E CENTURY LAKES TOWNHOMES LOT 8A, $315.28
NBNL25000114, ERWIN
WILLIAM WOFFORD TRUST, 42-3S-26E .445 MCINTOSH GRANT PT RECD O/R 9763379, $329.03
NBNL25000115, POPLIN MARK ALLEN, 11-13 59-2S-26E SEC 9 LAKESHORE LOT 12 BLK 96, $673.47
NBNL25000116, MASON JOE E, 21-64 17-2S-26E TERRACE PARK R/P LOT 30 BLK 3, $763.16
MAYOR
DONNA DEEGAN Nov. 7 00 (24-07105D)
WARNING: Rule 12.285, Florida Family Law Rules of Procedure, requires certain automatic disclosure of documents and information. Failure to comply can result in sanctions, including dismissal or striking of pleadings.
Dated: October 22, 2024 JODY PHILLIPS, CLERK OF THE CIRCUIT COURT By: Maxine Jefferson Deputy Clerk (Court Seal) Oct. 31, Nov. 7/14/21 9 (24-06996D)
THIRD INSERTION
IN THE CIRCUIT COURT OF THE FOURTH JUDICIAL
CIRCUIT IN AND FOR DUVAL COUNTY, FLORIDA
CIVIL DIVISION
CASE NO. 16-2024-CA-004187 DIVISION: CV-H BRANDON BLAKE, Plaintiff, v. ESTATE OF WILLANNIE M. PARKER, PATRICIA A. PARKER, and any unknown heirs, devisees, grantees, creditors, and other unknown persons or unknown spouses claiming by, through and under the abovenamed Defendants, Defendants. NOTICE OF ACTION TO: ESTATE OF WILLANNIE M. PARKER; and PATRICIA A. PARKER. YOU ARE NOTIFIED that an action for Adverse Possession for the following property in Duval County, Florida: Legal Description: Lot 89, EDMONSON’S MAIN STREET ESTATES, according to the plat thereof as recorded in Plat Book 15, page 39 of the current public records of Duval County, Florida.
Parcel ID: 15-39-39-1S-26E C/K/A: 50 E. 45th Street, Jacksonville, FL 32208 has been filed against you and you are required to serve a copy of your written defenses, if any, to Joshua P. Perez, Esquire, the Plaintiff’s attorney, whose address is Brown & Associates Law & Title, P.A. 4200 4th Street, N., Suite F, St. Petersburg, FL 33703, on or before, 30 days from first publication, and file the original with the Clerk of this Court either before service on the Plaintiff’s attorney or immediately thereafter; otherwise a default will be entered against you for the relief demanded in the complaint or petition.
Dated: October 22, 2024 JODY PHILLIPS As Clerk of the Court BY: Alice V. Griffin As Deputy Clerk (Court Seal)
BROWN & ASSOCIATES LAW & TITLE, P.A. /s/ Joshua P. Perez, Esq Attorney for Plaintiff 4200 4th Street, N., Suite F St. Petersburg, FL 33703 (727) 325-2001 CourtDocuments@ BrownALT.com Oct. 24/31, Nov. 7/14 12 (24-06854D)
Jimmie Branton 168 Carnell Lee 180 Oct. 31, Nov. 7 9 (24-06967D)
SECOND INSERTION
Notice of Lien Sale
Pursuant to the lien granted by the Florida Self-storage Facility Act Mill Creek Storage Zone Self Storage and Business Centers will sell at public auction on November 20, 2024 personal property belonging to the following tenants to the highest bidder. The sale shall be held on website: www.storageauctions.com Ending at approximately 10:00 am. Units are located at 735 Mill Creek Rd Jacksonville, Fl. 32211 904-724-6371 Sale rules and regulations are available at the time of the Auction.
Jimmie Cheng 1020
Sharonda Williams 1121 Oct. 31, Nov. 7 9 (24-06966D)
SECOND INSERTION
NOTICE OF PUBLIC SALE
Jax Boat Rv Storage , 607 St John’s Bluff Rd N, Jacksonville, FL 32225 will hold an online auction to sell the following personal property delinquent in rents and fees. #115 Harold Odham 17’ Trailer 2020, silver .Broken axle, no tag The auction will be advertised and sold on www.storagetreasures.com. The bidding will CONCLUDE on Nov 18, 2024 @ 9:00am. Purchases must be made with cash only and paid at the facility to complete the transaction. Jax Boat RV reserves the right to refuse any bid and may rescind any purchase up until the winning bidder takes possession of the personal property. Oct. 31, Nov. 7 9 (24-06901D)
SECOND INSERTION
INVITATION TO BID TMT STORM DRAIN UPGRADES AT BERTH 6 MANIFOLD TALLEYRAND MARINE TERMINAL JAXPORT PROJECT NO.: T2025-06
JAXPORT CONTRACT NO.: MC-2004A
Sealed bids will be received by JAXPORT up to 2:00 PM (ET) local time, MONDAY, NOVEMBER 25, 2024, at which time they shall be opened via “ZOOM” at: https://us02web.zoom.us/ j/86145572105?pwd=15vLiXTL7CXviu5S2XqfaRWdLjY8q2.1 , Meeting ID: 861 4557 2105, Passcode: 835540 for TMT STORM DRAIN UPGRADES AT BERTH 6 MANIFOLD SCOPE OF WORK: Furnish all labor, materials, equipment, and supervision to excavate, remove 110 LF of defective 24’’ CMP and replace with 110 LF of new 24’’ RCP located at Talleyrand Marine Terminal (TMT). All bids must be submitted in accordance with specifications and drawings for Contract No. MC-2004A THE INVITATION TO BID DOCUMENTS CAN BE REVIEWED FROM JAXPORT’s WEBSITE AT: HTTPS:// WWW.JAXPORT.COM/PROCUREMENT/ACTIVE-SOLICITATIONS/. A PRE-BID CONFERENCE WILL BE HELD ON FRIDAY, NOVEMBER 8, 2024, AT 10:00 AM (ET), “ZOOM” at: https://us02web.zoom. us/j/82575792919?pwd=8uwuKU5Ot7nclCTH8BmHxQ1jHuiDOq.1, Meeting ID: 825 7579 2919, Passcode: 893029. A SITE VISIT IS SCHEDULED ON FRIDAY, NOVEMBER 8, 2024 AT 2:00 PM (ET). ATTENDANCE BY A REPRESENTATIVE OF EACH PROSPECTIVE BIDDER IS ENCOURAGED. Bid and contract bonds are required. The mandatory SEB Goal established for this project is 100% SEB Set-Aside (JSEB/MBE/ WEB/DBE/SBA) Oct. 31, Nov. 7 9 (24-06991D)
IN THE CIRCUIT COURT, IN THE FOURTH JUDICIAL CIRCUIT, IN AND FOR DUVAL COUNTY, FLORIDA CASE NO.: 16-2024-CP-002217
DIVISION: PR-B
In re the estate of DEBORAH LEE LANE, Deceased. NOTICE TO CREDITORS
The administration of the estate of Deborah Lee Lane, Deceased, Case No. 16-2024-CP-002217, Division PR-B, is pending in the Circuit Court for Duval County, Florida, Probate Division, the address of which is Duval County Courthouse, 501 West Adams Street, Jacksonville, FL 32202. The names and addresses of the personal representative and the personal representative’s attorney are set forth below.
All creditors of the decedent and other persons having claims or demands against decedent’s estate, including unmatured, contingent or unliquidated claims, on whom a copy of this notice is served must file their claims with this court WITHIN THE LATER OF 3 MONTHS AFTER THE DATE OF THE FIRST PUBLICATION OF THIS NOTICE OR 30 DAYS AFTER THE DATE OF SERVICE OF A COPY OF THIS NOTICE ON THEM. All other creditors of the decedent and other persons having
claims or demands against decedent’s estate, including unmatured, contingent or unliquidated claims, must file their claims with this court WITHIN 3 MONTHS AFTER THE DATE OF THE FIRST PUBLICATION OF THIS NOTICE. ALL CLAIMS NOT SO FILED WILL BE FOREVER BARRED. The Personal Representative has no duty to discover whether any property held at the time of the decedent’s death by the decedent or the decedent’s surviving spouse is property to which the Florida Uniform Disposition of Community Property Rights at Death Act as described in sections 732.216732.228, Florida Statutes, applies, or may apply, unless a written demand is made by a creditor as specified under section 732.2211, Florida Statutes. The date of first publication of this Notice is October 31, 2024. Shana Still, Personal Representative Ray Elizabeth Dezern, FBN 95564 Attorney for Personal Representative Heekin Law, P.A. 7220 Financial Way Jacksonville, FL 32256 Tel.: (904) 355-7000 Email: ray@heekinlaw.com Oct. 31, Nov. 7 9 (24-06989D)
IN THE CIRCUIT COURT OF THE 4TH JUDICIAL CIRCUIT IN AND FOR DUVAL COUNTY, FLORIDA DIVISION: PR-B CASE NO.: 16-2024-CP-002257 IN RE: ESTATE OF GINNA SPALLATO, Deceased.
NOTICE TO CREDITORS
The administration of the estate of GINNA SPALLATO, deceased, whose date of death was March 12, 2024, is pending in the Circuit Court for Duval County, Florida, Probate Division, the address of which is 501 West Adams Street, Room 1173, Jacksonville, FL 32202. The names and addresses of the personal representative and the personal representative’s attorney are set forth below.
All creditors of the decedent and other persons having claims or demands against decedent’s estate on whom a copy of this notice is required to be served must file their claims with this court ON OR BEFORE THE LATER OF 3 MONTHS AFTER THE TIME OF THE FIRST PUBLICATION OF THIS NOTICE OR 30 DAYS AFTER THE DATE OF SERVICE OF A COPY OF THIS NOTICE ON THEM.
All other creditors of the decedent and other persons having claims or demands against decedent’s estate must file their claims with this court WITHIN 3 MONTHS AFTER THE DATE OF THE FIRST PUBLICATION OF THIS NOTICE. ALL CLAIMS NOT FILED WITHIN THE TIME PERIODS SET FORTH IN FLORIDA STAT-
UTES SECTION 733.702 WILL BE FOREVER BARRED. NOTWITHSTANDING THE TIME PERIODS SET FORTH ABOVE, ANY CLAIM FILED TWO (2) YEARS OR MORE AFTER THE DECEDENT’S DATE OF DEATH IS BARRED. A personal representative or curator has no duty to discover whether any property held at the time of the decedent’s death by the decedent or the decedent’s surviving spouse is property to which the Florida Uniform Disposition of Community Property Rights at Death Act as described in sections 732.216-732.228, applies, or may apply, unless a written demand is made by a creditor as specified under section 732.2211. The date of first publication of this notice is October 31, 2024. Personal Representative: Sandra Sue Lothes 7886 Turnstone Circle W, Jacksonville, FL 32256 Attorney for Personal Representative: /s/ Carina M. de la Torre Carina M. de la Torre, Esq. Florida Bar No. 1000418, Indiana Bar No. 24849-49 Tower Law Group 3505 Lake Lynda Drive, Suite 200 Orlando, Florida 32817 Telephone: (407) 380-0578 Facsimile: (877) 860-2750 Email: carina@towerlawgroup.com
Secondary E-Mail: micaela.lusso@ towerlawgroup.com Oct. 31, Nov. 7 9 (24-06995D)
SECOND INSERTION
NOTICE Atlantic Self Storage PUBLIC SALE will be on November 21, 2024 at 10:00 AM 9330 Philips Hwy Jacksonville FL 32256 – Unit 355 – Calvin Johnson; Unit 517 – Judith Huby(2023 COTC Body VIN: 4YMBU0811PG028012); Unit 517 – Gregco Lawncare LLC(2023 COTC Body VIN: 4YMBU0811PG028012); Unit 732 – Michelle Carter; Unit 930M2 – George Lee
IMMEDIATELY FOLLOWING: 5535 Shad Rd Jacksonville, FL 32257 – Unit 414 –Michael Powledge(4 John Boats)
IMMEDIATELY FOLLOWING: 5285 Shad Rd Jacksonville, FL 32257 – Unit 100 – Jennifer Lynn Schlacther; Unit 302 – Colleen Andrews Libasci; Unit 425 – Christopher Paul Fosbenner; Unit 515 – Alisa Barrs; Unit 704 – Tommy Abston; Unit 950 – Rebecca Godbold; Unit 1431 –Richard Craig Hechler; Unit 1518 – Sommer Nicole York; Unit 1910 – Calvin Lee Durrence; Unit 1946
– Robert Channing Napier; Unit 2018 – Jose Padilla Nazario; Unit 2018 – Jose Padilla; Unit 1032M2 – Ines Tejada Ventura; Unit 1032M2 – Ines Ventura Terada
IMMEDIATELY FOLLOWING: 4937 Sunbeam Rd Jacksonville FL 32257 – Unit 222 – Daniela Mena Retana; Unit 306 – Michael Bean; Unit 320 – Maureen Kelly; Unit 320 – EG Controls; Unit 321 – Maureen Kelly; Unit 321 – EG Controls; Unit 347 – Maureen Kelly; Unit 347 – EG Controls; Unit 419 – Gina Cedeno Saltos; Unit 515 – Steven Jannetides; Unit 2013 – Wendy Chaishowarat; Unit 2095 – Juliet Bazigaga; Unit 3044 – Kiyanna Haynes; Unit 3048 – Christian Harley Hertl; Unit 4010 – Kenneth Burden; Unit 5112 – Scott Messmore; Unit 5162 – Anointing Chidera Obi
IMMEDIATELY FOLLOWING: 2822 University Blvd W Jacksonville, FL 32217 – Unit 117 – Henry Francis Sonday III;
SECOND INSERTION
NOTICE OF ADMINISTRATIVE COMPLAINT
To: Kaela K. Perry
Case: CD202401666/D 3309491
An Administrative Complaint to revoke your license and eligibility for licensure has been filed against you. You have the right to request a hearing pursuant to Sections 120.569 and 120.57, Florida Statutes, by mailing a request for same to the Florida Department of Agriculture and Consumer Services, Division of Licensing, Post Office Box 5708 Tallahassee, Florida 32314-5708. If a request for hearing is not received by 21 days from the date of the last publication, the right to hearing in this matter will be waived and the Department will dispose of this cause in accordance with law. Oct. 31, Nov. 7/14/21 11 (24-06904D)
IN THE CIRCUIT COURT, FOURTH JUDICIAL CIRCUIT, IN AND FOR DUVAL COUNTY, FLORIDA
CASE NO.: 16-2024-CA-005879
DIVISION: CV-G ARTEK HOMES, LLC, a Florida limited liability company, Plaintiff, vs. ESTATE OF GARY WAYNE HOLDEN; UNKNOWN PERSONAL REPRESENTATIVE OF GARY WAYNE HOLDEN; TERESA A. ADAMS-HOLDEN, an individual; UNKNOWN HEIRS of GARY WAYNE HOLDEN; SHAWN A. HOLDEN, an individual; KYLE HOLDEN, an individual; the CITY OF JACKSONVILLE; and the STATE OF FLORIDA, Defendants.
NOTICE OF ACTION
TO: ESTATE OF GARY WAYNE HOLDEN; UNKNOWN PERSONAL REPRESENTATIVE OF GARY WAYNE HOLDEN; UNKNOWN HEIRS of GARY WAYNE HOLDEN (Collectively “Defendant”), and all unknown parties claiming by, through, under or against the above-named Defendants, who are not known to be dead or alive, whether said unknown parties claim as heirs, devisees, grantees, assignees, lienors, creditors, trustees, spouses, or other claimants, Current Residences are Unknown.
YOU ARE NOTIFIED that an action to foreclose on the following property in Duval County, Florida, LOT 2, BLOCK 16, Section 18, Township 2 South, Range 25 East, WHITE CITY, according to plat thereof
SECOND INSERTION
NOTICE OF ADMINISTRATIVE COMPLAINT
To: Kameta M. Jones Case: CD202408083/D 3309331 An Administrative Complaint to revoke your license and eligibility for licensure has been filed against you. You have the right to request a hearing pursuant to Sections 120.569 and 120.57, Florida Statutes, by mailing a request for same to the Florida Department of Agriculture and Consumer Services, Division of Licensing, Post Office Box 5708 Tallahassee, Florida 32314-5708. If a request for hearing is not received by 21 days from the date of the last publication, the right to hearing in this matter will be waived and the Department will dispose of this cause in accordance with law. Oct. 31, Nov. 7/14/21 11 (24-06951D)
recorded in Plat Book 5, pages 70 and 70A of the current public records of Duval County Florida. (the “Property”) has been filed against you and you are required to serve a copy of your written defenses, if any, to it on Woolsey Morcom, PLLC, Plaintiff’s attorney, whose address is 203 Fort Wade Road, Suite 260, Ponte Vedra, Florida 32081, within thirty (30) days after the first publication of this Notice of Action, and file the original with the Clerk of this Court at the Duval County Courthouse, 501 W Adams St, Jacksonville, Florida 32202, either before service on Plaintiff’s attorney or immediately thereafter; otherwise, a default will be entered against you for the relief demanded in the complaint petition.
Americans With Disabilities Act (ADA) Notice In accordance with the Americans with Disabilities Act of 1990 (ADA), If you are a person with a disability who needs any accommodation in order to participate in this proceeding, you are entitled at no cost to you, to the provision of certain assistance. Please contact the ADA Coordinator at crtintrp@coj.net or (904) 2551695 at least 7 days before your scheduled court appearance, or immediately upon receiving this notification if the time before the scheduled appearance is less than 7 days; if you are hearing or voice impaired, call 711. WITNESS my hand and seal of the Court on this 28th day of October, 2024.
JODY PHILLIPS
Clerk of the Circuit Court
By: Alice V. Griffin Deputy Clerk (Court Seal) Oct. 31, Nov. 7/14/21 11 (24-06953D)
SECOND INSERTION
IN THE CIRCUIT COURT, FOURTH JUDICIAL CIRCUIT, IN AND FOR DUVAL COUNTY, FLORIDA CASE NO.: 16-2024-CA-004499
DIVISION: CV-H PARKWEST HOLDINGS, LLC, a Florida limited liability company, Plaintiff, vs. ADH HOLDINGS FL LLC, a Florida limited liability company; ROBERT BRADIS, an individual; ALPHONSO HEMMEAIN, an individual; RAL HOLDINGS, LLC, a Florida limited liability company; GENVEN PROPERTIES, LLC, a New Mexico limited liability company; and THE PALMS AT MARSH LANDING CONDOMINIUM ASSOCIATION, INC., a Florida corporation, Defendants.
AMENDED NOTICE OF ACTION
TO: ALPHONSO HEMMEAIN, an individual (“Defendant”), and all unknown parties claiming by, through, under or against the above-named Defendant, who are not known to be dead or alive, whether said unknown parties claim as heirs, devisees, grantees, assignees, lienors, creditors, trustees, spouses, or other claimants, Current Residence Unknown.
YOU ARE NOTIFIED that an action to foreclose on the following property in Duval County, Florida, Unit 2413 of the Palms at Marsh Landing Condominium, a Condominium according to the Declaration of Condominium thereof, recorded in Official Records Book 11490, Page(s) 1231, of the Public Records of Duval County, Florida, and any
SECOND INSERTION
IN THE CIRCUIT COURT OF THE FOURTH JUDICIAL CIRCUIT IN AND FOR DUVAL COUNTY, FLORIDA CASE NO.: 16-2024-DR-013367
DIVISION: FM-B
IN RE: THE MATTER OF: THOMAS MCCRACKEN, JR., Petitioner/Father and NEENA GREEN, Respondent/Mother.
NOTICE OF ACTION
TO: NEENA GREEN 8869 WASHINGTON AVE., JACKSONVILLE, FL 32208
YOU ARE NOTIFIED that an action for Petition for Superseding Child Support Order has been filed against you and that you are required to serve a copy of your written defenses, if any, to it on Lee J. Pickett, Esquire, Petitioner/ Father’s attorney, whose address is 10700 Beach Blvd., #19144, Jacksonville, FL 32245, on or before December 12, 2024 and file the original with the clerk of this Court at Duval County Courthouse, 501 West Adams Street, Jacksonville, Florida 32202, before service on Petitioner or immediately thereafter. If you fail to do so, a default may be entered against you for the relief demanded in the petition. The action is not asking the court to decide how real or personal property should be divided. Copies of all court documents in this case, including orders, are available at the Clerk of the Circuit Court’s office. You may review these documents upon request. You must keep the Clerk of the Circuit Court’s office notified of your current address. (You may file Designation of Current Mailing and E-Mail Address, Florida Supreme Court Approved Family Law Form 12.915.) Future papers in this lawsuit will be mailed or emailed to the addresses on record at the clerk’s office.
WARNING: Rule 12.285, Florida Family Law Rules of Procedure, requires certain automatic disclosure of documents and information. Failure to comply can result in sanctions, including dismissal or striking of pleadings.
Dated: October 28, 2024 JODY PHILLIPS, CLERK OF THE CIRCUIT COURT
By: Monet Wheatley-Phillip Deputy Clerk (Court Seal) Oct. 31, Nov. 7/14/21 11 (24-06947D)
IN THE CIRCUIT COURT, FOURTH JUDICIAL CIRCUIT, IN AND FOR DUVAL COUNTY, FLORIDA CASE NO.: 16-2024-CA-004083
DIVISION: CV-G
amendments thereto, together with its undivided share in the common elements.
Parcel ID Number: 1817800782 (the “Property”) has been filed against you and you are required to serve a copy of your written defenses, if any, to it on Woolsey Morcom, PLLC, Plaintiff’s attorney, whose address is 203 Fort Wade Road, Suite 260, Ponte Vedra, Florida 32081, within thirty (30) days after the first publication of this Notice of Action, and file the original with the Clerk of this Court in Duval County at, 501 W Adams St, Jacksonville, Florida 32202, either before service on Plaintiff’s attorney or immediately thereafter; otherwise, a default will be entered against you for the relief demanded in the complaint petition.
Americans With Disabilities Act (ADA) Notice In accordance with the Americans with Disabilities Act of 1990 (ADA), If you are a person with a disability who needs any accommodation in order to participate in this proceeding, you are entitled at no cost to you, to the provision of certain assistance. Please contact the ADA Coordinator at crtintrp@coj.net or (904) 2551695 at least 7 days before your scheduled court appearance, or immediately upon receiving this notification if the time before the scheduled appearance is less than 7 days; if you are hearing or voice impaired, call 711. WITNESS my hand and seal of the Court on this 29th day of October, 2024.
JODY PHILLIPS Clerk of the Circuit Court
By: Pamela R. Harrell Deputy Clerk (Court Seal) Oct. 31, Nov. 7/14/21 11 (24-06957D)
SECOND INSERTION
IN THE CIRCUIT COURT OF THE 4TH JUDICIAL CIRCUIT IN AND FOR DUVAL COUNTY CASE NO. 16-2023-DP-374-AB
DIVISION: JV-D IN THE INTEREST OF: T.M. DOB: 8/15/2015 S.T. DOB: 9/30/2023 MINOR CHILDREN NOTICE OF ACTION TERMINATION OF PARENTAL RIGHTS TO: LeQuinta Hall, address unknown YOU ARE HEREBY NOTIFIED that the State of Florida, Department of Children and Families, has filed a Petition to terminate your parental rights and permanently commit the following children for adoption: T.M. born on 8/15/2015 and S.T. born 09/30/2023. You are hereby commanded to appear on December 9, 2024, at 1:00 PM before the Honorable W. Collins Cooper at the Duval Courthouse, 501 W Adams Street, Courtroom 202, Jacksonville, FL 32202, for an ADVISORY HEARING. FAILURE TO PERSONALLY APPEAR AT THIS ADVISORY HEARING CONSTITUTES CONSENT TO THE TERMINATION OF PARENTAL RIGHTS OF THIS CHILD (OR CHILDREN).
IF YOU FAIL TO APPEAR ON THE DATE AND TIME SPECIFIED, YOU MAY LOSE ALL LEGAL RIGHTS AS A PARENT TO THE CHILD OR CHILDREN NAMED IN THIS NOTICE.
1. If you are a person with a disability who needs any accommodation in order to participate in this proceeding, you are entitled, at no cost to you, to the provision of certain assistance. Please contact the ADA Coordinator for the circuit court system at crtintrp@ coj.net or (904) 630-2564 immediately upon receiving this notification or if hearing impaired, 1-800-955-8771-(TDD); or 1-800955-8770 (V) Florida Relay Service at least 7 days before your scheduled court appearance, or immediately upon receiving this notification if the time before the scheduled appearance is less than 7 days; if you are hearing or voice impaired, call 711.
WITNESS, my hand as Clerk of said Court and the Seal thereof, this 29th day of October 2024.
JODY PHILLIPS, CLERK OF COURT By: Le My Le As Deputy Clerk (Court Seal) Oct. 31, Nov. 7/14/24 11 (24-06963D)
Jacksonville, FL 32277
DONALD W. DAVIS and JEANNIE K. DAVIS, husband and wife, Plaintiffs, vs. MAMIE SUE PATRICK,, et al.; Defendants.
NOTICE OF ACTION TO: MAMIE SUE PATRICK, if living, and if deceased, her unknown spouses, heirs, devisees, grantees, creditors and all other parties claiming by, through, under or against her; EARLY M. DAVIS, if living, and if deceased, his unknown spouses, heirs, devisees, grantees, creditors and all other parties claiming by, through, under or against him; DOROTHY G. DAVIS, if living, and if deceased, her unknown spouses, heirs, devisees, grantees, creditors and all other parties claiming by, through, under or against her; BRUCE DAVIS, if living, and if deceased, his unknown spouses, heirs, devisees, grantees, creditors and all other parties claiming by, through, under or against him; A.H. KIERCE, if living, and if deceased, his unknown spouses, heirs, devisees, grantees, creditors and all other parties claiming by, through, under or against him; and HELEN KIERCE WISE, if living, and if deceased, her unknown spouses, heirs, devisees, grantees, creditors and all other parties claiming by, through, under or against her.
Last Known Residence (A.H. Kierce): 4516 Attleboro Avenue, Jacksonville, FL 32205
Last Known Residence (Early and Dorothy Davis): 1934 N. Edgewood, Jacksonville, FL 32205
Last Known Residence (Bruce Davis): 3856 Bess Road,
SECOND INSERTION IN THE CIRCUIT COURT OF THE FOURTH JUDICIAL CIRCUIT IN AND FOR DUVAL COUNTY, FLORIDA CASE NO.: 16-2024-CA-005303
DIVISION: CV-B H&D ELITE VENTURES LLC, Plaintiff, v. ERIC ALVIN MOORE; DEPARTMENT OF THE TREASURY INTERNAL REVENUE SERVICE, Defendants. NOTICE OF ACTION To: ERIC ALVIN MOORE YOU ARE HEREBY NOTIFIED that an action to Quiet Title to real property described as: 10-30 36-1S-26E PEARL COURT LOT 18 BLK 6; More commonly known as: 210 West 54th Street, Jacksonville, FL 32208
has been filed by Plaintiff, H&D ELITE VENTURES LLC, and you are required to serve a copy of your written defenses, if any, on Alisa Wilkes, Esq., 13400 Sutton Park Dr. S., Suite 1204, Jacksonville, FL 32224, (904)620-9545 on or before December 5, 2024 and file the original with the Clerk of Court and Plaintiff’s attorney, otherwise a default and judgment will be entered against you for the relief demanded. Witness my hand and the seal of this court on this 25th day of October, 2024. JODY PHILLIPS Clerk of the Circuit Court By: Alice V. Griffin Deputy Clerk (Court Seal) Oct. 31, Nov. 7/14/21 11 (24-06932D)
SECOND INSERTION
IN THE CIRCUIT COURT OF THE 4TH JUDICIAL CIRCUIT IN AND FOR DUVAL COUNTY CASE NO. 16-2024-DP-138-A
DIVISION: JV-D
IN THE INTEREST OF: N.B. DOB: 7/28/2009, MINOR CHILD NOTICE OF ACTION
TERMINATION OF PARENTAL RIGHTS TO: Stephanie Babb, Mother Address unknown YOU ARE HEREBY NOTIFIED that the State of Florida, Department of Children and Families, has filed a Petition to terminate your parental rights and permanently commit the following child for adoption: N.B. born on 7/28/2009. You are hereby commanded to appear on December 9, 2024 , at 1:00 PM before the Honorable W. Collins Cooper Donna J. Vincent at the Duval Courthouse, 501 W Adams Street, Courtroom 202, Jacksonville, FL 32202, for an ADVISORY HEARING. FAILURE TO PERSONALLY APPEAR AT THIS ADVISORY HEARING CONSTITUTES
CONSENT TO THE TERMINATION OF PARENTAL RIGHTS OF THIS CHILD. IF YOU FAIL TO APPEAR ON THE DATE AND TIME SPECIFIED, YOU MAY LOSE ALL LEGAL RIGHTS AS A PARENT TO THE CHILD NAMED IN THIS NOTICE. If you are a person with a disability who needs any accommodation in order to participate in this proceeding, you are entitled at no cost to you, to the provision of certain assistance. Please contact the ADA Coordinator for the circuit court system at crtintrp@coj.net or (904) 630-2564 immediately upon receiving this notification or if hearing impaired, 1-800-9558771-(TDD); or 1-800-955-8770 (V) Florida Relay Service. WITNESS, my hand as Clerk of said Court and the Seal thereof, this 29th day of October 2024. JODY PHILLIPS, CLERK OF COURT By: Le My Le As Deputy Clerk (Court Seal) Oct. 31, Nov. 7/14/24 11 (24-06970D)
SECOND INSERTION
IN THE CIRCUIT COURT, FOURTH JUDICIAL CIRCUIT, IN AND FOR DUVAL COUNTY, FLORIDA CASE NO.: 16-2023-DR-004806-FM
DIVISION: FM-B
YOU ARE NOTIFIED that a Reformation, Quiet Title or Declaratory action as to the real property located at 1934 Edgewood Avenue N., Jacksonville, Florida 32254, more particularly described as: Commencing on the West side of Edgewood Avenue at the Northeast corner of the South One-Half (S 1/2) of the Southeast One-quarter (SE 1/4) of the Northeast One-Quarter (NE 1/4) of the Northeast One-Quarter (NE 1/4) of Section Seven (7), Township Two (2) South, Range Twenty-six (26) East and running thence West Three Hundred Forty-eight and One-half (348 1/2) feet, thence South parallel with Edgewood Avenue One Hundred Twenty-five (125) feet thence East Three Hundred Forty-eight and One-half (348 1/2) feet to the West boundary line of Edgewood Avenue, thence North along the West boundary line of Edgewood Avenue, One Hundred Twenty-five (125) feet to the point of beginning, all in the City of Jacksonville, Florida. has been filed against you and you are required to serve a copy of your written defenses, if any, to it on BLAIR D. SCHEMER, ESQUIRE, Plaintiffs’ attorney, whose address is 480 Busch Drive, Jacksonville, Florida 32218, on or before 30 days from the first date of publication of this notice, and file the original with the Clerk of this Court either before service on Plaintiffs’ attorney or immediately thereafter; otherwise, a default will be entered against you for the relief demanded in the complaint or petition.
WITNESS my hand and the seal of this Court on the 24th day of October, 2024.
JODY PHILLIPS Clerk of the Court
By: Pamela R. Harrell
IN THE MATTER OF THE ADOPTION OF: JORDAN DE’ ANTE BENKER, (name to be given to the minor child) Adoptee, and ARIANA MARIE BENKER, (name to be given to the minor child) Adoptee. NOTICE OF ACTION FOR TERMINATION OF PARENTAL RIGHTS AND STEPPARENT ADOPTION TO: AL’CORUS DE’VONTE LEONARD 10842 Cooper Hill Drive Jacksonville, Florida 32218
YOU ARE NOTIFIED that a Joint Petition for Adoption by Stepparent has been filed against you and that you are required to serve a copy of your written defenses, if any, to it on A. Sam Jubran, Esquire, Petitioner’s attorney, whose address is 871 Cassat Avenue, Jacksonville, Florida 32205, on or before December 16, 2024 and file the original with the Clerk of this Court at Duval County Courthouse, 501 West Adams Street, Jacksonville, Florida 32202, either before service on Petitioner’s attorney or immediately thereafter. If you fail to do so, a default may be entered against you for the relief demanded in the
petition. The minor children are identified as follows: Jordan De’ Ante Benker, Date of Birth, May 19, 2011. Birthplace Jacksonville, Florida Ariana Marie Benker Date of Birth, September 28, 2013 Birthplace, Jacksonville, Florida Physical description of Respondent: Age: 32 years old Race: African American Hair Color: Black Eye Color: Brown Approximate Height: 6’2” Approximate Weight: 250 lbs. Copies of all court documents in this case, including orders, are available at the Clerk of the Circuit Court’s office. You may review these documents upon request. You must keep the Clerk of the Circuit Court’s office notified of your current address. (You may file Designation of Current Mailing and E-Mail Address, Florida Supreme Court Approved Family Law Form 12.915.) Future papers in this lawsuit will be mailed or e-mailed to the addresses on record at the clerk’s office. DATED this 30th day of October, 2024.
JODY PHILLIPS CLERK OF THE CIRCUIT COURT By: DEONNA SHEL TON Deputy Clerk (Court Seal) Oct. 31, Nov. 7/14/21 11 (24-06990D)

IN THE CIRCUIT COURT OF THE 4TH JUDICIAL CIRCUIT, IN AND FOR DUVAL COUNTY, FLORIDA
CIVIL DIVISION CASE NO.: 16-2024-CA-004937
Division: CV-E
U.S. BANK TRUST NATIONAL ASSOCIATION, NOT IN ITS INDIVIDUAL CAPACITY BUT SOLELY AS TRUSTEE OF FIDELITY & GUARANTY LIFE MORTGAGE TRUST 2018-1, Plaintiff, vs. INNATE HOMES LLC, et al., Defendants. NOTICE OF ACTION TO: NATANAEL HODUT YOU ARE NOTIFIED that an action for Foreclosure of Mortgage on the following described property: LOT 18, BLOCK 76, SECTION 1, LAKESHORE, ACCORDING TO THE PLAT THEREOF, AS RECORDED IN PLAT BOOK 9, PAGE 24, OF THE CURRENT PUBLIC RECORDS OF DUVAL COUNTY, FLORIDA. has been filed against you and you are required to serve a copy of your written defenses, if any, to it, on De Cubas & Lewis, P.A., Attorney for Plaintiff, whose address is PO BOX 5026, CORAL SPRINGS, FL 33310 on or before
a d ate at least thirty (30) days after the first publication of this Notice in the JACKSONVILLE DAILY RECORD and file the original with the Clerk of this Court either before service on Plaintiff’s attorney or immediately thereafter; otherwise a default will be entered against you for the relief demanded in the complaint. Americans With Disabilities Act (ADA) Notice In accordance with the Americans with Disabilities Act of 1990 (ADA), If you are a person with a disability who needs any accommodation in order to participate in this proceeding, you are entitled at no cost to you, to the provision of certain assistance. Please contact the ADA Coordinator at crtintrp@coj.net or (904) 255-1695 at least 7 days before your scheduled court appearance, or immediately upon receiving this notification if the time before the scheduled appearance is less than 7 days; if you are hearing or voice impaired, call 711. WITNESS my hand and the seal of this Court this 29th day of October, 2024.
JODY PHILLIPS As Clerk of the Court
By: Michael Wheeler As Deputy Clerk (Court Seal) Oct. 31, Nov. 7 8 (24-06979D)
SECOND INSERTION
IN THE CIRCUIT COURT, IN THE FOURTH JUDICIAL CIRCUIT, IN AND FOR DUVAL COUNTY, FLORIDA CASE NO.: 16-2024-CP-002561
DIVISION: PR-B
In re the Estate of KEITH RUSSELL ROMIG, Deceased.
NOTICE TO CREDITORS
The administration of the estate of Keith Russell Romig, Deceased, Case No. 16-2024-CP-002561, Division PR-B, is pending in the Circuit Court for Duval County, Florida, Probate Division, the address of which is Duval County Courthouse, 501 West Adams Street, Jacksonville, FL 32202. The names and addresses of the personal representative and the personal representative’s attorney are set forth below. All creditors of the decedent and other persons having claims or demands against decedent’s estate, including unmatured, contingent or unliquidated claims, on whom a copy of this notice is served must file their claims with this court WITHIN THE LATER OF 3 MONTHS AFTER THE DATE OF THE FIRST PUBLICATION OF THIS NOTICE OR 30 DAYS AFTER THE DATE OF SERVICE OF A COPY OF THIS NOTICE ON THEM.
The Personal Representative has no duty to discover whether any
IN THE CIRCUIT COURT OF THE FOURTH JUDICIAL CIRCUIT IN AND FOR DUVAL COUNTY, FLORIDA CASE NO.: 16-2024-CA-000890
DIVISION: FC-F
U.S. BANK NATIONAL ASSOCIATION, AS TRUSTEE FOR THE HOLDERS OF THE FIRST FRANKLIN MORTGAGE LOAN TRUST 2006-FF12 MORTGAGE PASS-THROUGH CERTIFICATES, SERIES 2006-FF12, Plaintiff, vs. JUAN D. PERTUZ; UNKNOWN SPOUSE OF JUAN D. PERTUZ; MATTHEW LEE SALTZER A/K/A MATTHEW SALTZER; KENSINGTON ASSOCIATION, INC.; QUALITY DISCOUNT ROOFING LLC; LITTLE SPRING CIRCLE, LLC; UNKNOWN TENANT(S) IN POSSESSION #1 and #2, and ALL OTHER UNKNOWN PARTIES, et.al., Defendant(s). NOTICE OF FORECLOSURE SALE NOTICE IS HEREBY GIVEN pursuant to a Consent Final Judgment of Foreclosure dated October 18, 2024, entered in Civil Case No.: 16-2024-CA-000890 of the Circuit Court of the Fourth Judicial Circuit in and for Duval County, Florida, wherein U.S. BANK NATIONAL ASSOCIATION, AS TRUSTEE FOR THE HOLDERS OF THE FIRST FRANKLIN MORTGAGE LOAN TRUST 2006-FF12 MORTGAGE PASSTHROUGH CERTIFICATES, SERIES 2006-FF12, Plaintiff, and JUAN D. PERTUZ; MATTHEW LEE SALTZER A/K/A MATTHEW SALTZER; KENSINGTON ASSOCIATION, INC.; QUALITY DISCOUNT ROOFING LLC; LITTLE SPRING CIRCLE, LLC, are Defendants.
I will sell to the highest bidder for cash, at: www.duval.realforeclose.com at 11:00 AM, on the 19th day of February, 2025, the following
IN THE CIRCUIT COURT FOR DUVAL COUNTY, FLORIDA
PROBATE DIVISION
File No. 16-2024-CP-003023
Division PR-B
IN RE: ESTATE OF WILLIAM LESTER VARN, JR. Deceased. NOTICE TO CREDITORS
The administration of the estate of William Lester Varn, Jr., deceased, whose date of death was July 20, 2024, is pending in the Circuit Court for Duval County, Florida, Probate Division, the address of which is 501 W Adams Street, Jacksonville, Florida 32202. The names and addresses of the personal representative and the personal representative’s attorney are set forth below. All creditors of the decedent and other persons having claims or demands against decedent’s estate on whom a copy of this notice is required to be served must file their claims with this court ON OR BEFORE THE LATER OF 3 MONTHS AFTER THE TIME OF THE FIRST PUBLICATION OF THIS NOTICE OR 30 DAYS AFTER THE DATE OF SERVICE OF A COPY OF THIS NOTICE ON THEM.
All other creditors of the decedent and other persons having claims or demands against decedent’s estate must file their claims with this court WITHIN 3 MONTHS AFTER THE DATE OF THE FIRST PUBLICATION OF THIS NOTICE.
property held at the time of the decedent’s death by the decedent or the decedent’s surviving spouse is property to which the Florida Uniform Disposition of Community Property Rights at Death Act as described in sections 732.216732.228, Florida Statutes, applies, or may apply, unless a written demand is made by a creditor as specified under section 732.2211, Florida Statutes.
All other creditors of the decedent and other persons having claims or demands against decedent’s estate, including unmatured, contingent or unliquidated claims, must file their claims with this court WITHIN 3 MONTHS AFTER THE DATE OF THE FIRST PUBLICATION OF THIS NOTICE.
ALL CLAIMS NOT SO FILED WILL BE FOREVER BARRED. The date of first publication of this Notice is October 31, 2024.
James A. Scheideman, a/k/a Jim Scheideman, Personal Representative Ray Elizabeth Dezern, FBN 95564
Attorney for Personal Representative Heekin Law, P.A. 7220 Financial Way Jacksonville, FL 32256
Tel.: (904) 355-7000
Email: ray@heekinlaw.com Oct. 31, Nov. 7 8 (24-06985D)
described real property as set forth in said Judgment, to wit: LOT 112, SOMERSET, UNIT TWO, ACCORDING TO THE PLAT THEREOF, AS RECORDED IN PLAT BOOK 48, PAGES 88, 88A, 88B, 88C AND 88D, OF THE CURRENT PUBLIC RECORDS OF DUVAL COUNTY, FLORIDA. If you are a person claiming a right to funds remaining after the sale, you must file a claim with the clerk before the clerk reports the surplus as unclaimed. If you fail to file a timely claim you will not be entitled to any remaining funds. After the funds are reported as unclaimed, only the owner of record as of the date of the Lis Pendens may claim the surplus. Americans With Disabilities Act (ADA) Notice In accordance with the Americans with Disabilities Act of 1990 (ADA), If you are a person with a disability who needs any accommodation in order to participate in this proceeding, you are entitled at no cost to you, to the provision of certain assistance. Please contact the ADA Coordinator at crtintrp@coj.net or (904) 2551695 at least 7 days before your scheduled court appearance, or immediately upon receiving this notification if the time before the scheduled appearance is less than 7 days; if you are hearing or voice impaired, call 711. WITNESS my hand and the seal of the court on October 29, 2024.
JODY PHILLIPS CLERK OF THE COURT By: Alice V. Griffin Deputy Clerk (Court Seal) Attorney for Plaintiff: Brian L. Rosaler, Esquire Popkin & Rosaler, P.A. 1701 West Hillsboro Boulevard Suite 400 Deerfield Beach, FL 33442
Telephone: (954) 360-9030 Facsimile: (954) 420-5187 Oct. 31, Nov. 7 8 (24-06978D)
ALL CLAIMS NOT FILED WITHIN THE TIME PERIODS SET FORTH IN FLORIDA STATUTES SECTION 733.702 WILL BE FOREVER BARRED. NOTWITHSTANDING THE TIME PERIODS SET FORTH ABOVE, ANY CLAIM FILED TWO (2) YEARS OR MORE AFTER THE DECEDENT’S DATE OF DEATH IS BARRED.
A personal representative or curator has no duty to discover whether any property held at the time of the decedent’s death by the decedent or the decedent’s surviving spouse is property to which the Florida Uniform Disposition of Community Property Rights at Death Act as described in sections 732.216-732.228, applies, or may apply, unless a written demand is made by a creditor as specified under section 732.2211.
The date of first publication of this notice is October 31, 2024. William L. Varn, III Personal Representative PO Box 40965 Jacksonville, Florida 32203
Christine M. King Attorney for Personal Representative E-mail Addresses: cking@fraziertaxlaw.com
Florida Bar No. 0084370 Frazier & Frazier, Attorneys at Law, P.A. 1515 Riverside Avenue, Suite A Jacksonville, Florida 32204 Telephone: (904) 353-5616 Oct. 31, Nov. 7 8 (24-06964D)
IN THE CIRCUIT COURT OF THE 4TH JUDICIAL CIRCUIT, IN AND FOR DUVAL COUNTY, FLORIDA CIVIL DIVISION CASE NO.: 16-2024-CA-005231 Division: FC-F PENNYMAC LOAN SERVICES, LLC, Plaintiff, vs. ERIC MONDELL MYRICK
A/K/A ERIC M. MYRICK, et al., Defendants.
NOTICE OF ACTION TO: ERIC MONDELL MYRICK
A/K/A ERIC M. MYRICK UNKNOWN SPOUSE OF ERIC MONDELL MYRICK A/K/A ERIC M. MYRICK N/K/A ERIC M. MYRICK UNKNOWN SPOUSE OF RONNIE DONEGAL A/K/A RONNIE E. DONEGAL N/K/A RONNIE E. DONEGAL UNKNOWN SPOUSE OF LEONETTE DONEGAL UNKNOWN SPOUSE OF JOHNNY MCNEIL
JOHNNY MCNEIL
YOU ARE NOTIFIED that an action for Foreclosure of Mortgage on the following described property: LOT 2, HIGHLANDS UNIT NO. 17, ACCORDING TO PLAT THEREOF, AS RECORDED IN PLAT BOOK 31, PAGES 49 AND 49A, OF THE CURRENT PUBLIC RECORDS OF DUVAL COUNTY, FLORIDA. has been filed against you and
FIRST INSERTION
NOTICE OF RECEIPT FOR UNCLAIMED FUNDS
HELD BY FIDUCIARY
I, Jody Phillips, Clerk of the Circuit Court or Duval County, Florida, do hereby acknowledge that I have this day received from the fiduciary named below, and deposited in the registry of said court, the sum specified below, pursuant to Section 733.816 Florida Statutes, upon representation of said fiduciary that said sum cannot be distributed or paid to the lawful owner by reason of inability to find the owner or claimant, or because no lawful owner or claimant is known to exist, or claimant refuses to accept such funds, the name of the lawful owner or claimant as represented by said fiduciary; being set forth below. Name and fiduciary capacity of fiduciary: NICHOLAS SYMMONDS, PERSONAL REPRESENTATIVE IN RE: ESTATE OF LESLEY ANN SYMMONDS FILE NO: 16-2023-CP-001410
DIVISION: PR-A
ATTORNEY FOR PERSONAL REPRESENTATIVE: SHAWN A. DEVRIES
Sum received: $220,510.91
Lawful owner or claimant: IAN H. ZORDAN $220.510.91 * Less Clerk’s fees and publication cost Dated at Jacksonville, Duval County Florida this 1st day of October. A.D. 2024
JODY PHILLIPS
Clerk of Circuit Court BY: Lorie J Torre Deputy Clerk Oct. 3, Nov. 7 co (24-06447D)
SECOND INSERTION IN THE CIRCUIT COURT, FOURTH JUDICIAL CIRCUIT, IN AND FOR DUVAL COUNTY, FLORIDA PROBATE DIVISION File No. 16-2024-CP-002629 Division PR-B IN RE: ESTATE OF DEBORAH LYNN DUNIGAN
Deceased.
NOTICE TO CREDITORS
The administration of the estate of DEBORAH LYNN DUNIGAN, deceased, whose date of death was July 7, 2024, is pending in the Circuit Court for DUVAL County, Florida, Probate Division, the address of which is 501 West Adams Street, Jacksonville, FL 32202. The names and addresses of the personal representative and the personal representative’s attorney are set forth below. All creditors of the decedent and other persons having claims or demands against decedent’s estate on whom a copy of this notice is required to be served must file their claims with this court ON OR BEFORE THE LATER OF 3 MONTHS AFTER THE TIME OF THE FIRST PUBLICATION OF THIS NOTICE OR 30 DAYS AFTER THE DATE OF SERVICE OF A COPY OF THIS NOTICE ON THEM.
IN THE CIRCUIT COURT, IN THE FOURTH JUDICIAL CIRCUIT, IN AND FOR DUVAL COUNTY, FLORIDA CASE NO.: 16-2024-CP-002831
you are required to serve a copy of your written defenses, if any, to it, on De Cubas & Lewis, P.A., Attorney for Plaintiff, whose address is PO BOX 5026, CORAL SPRINGS, FL 33310 on or before a date at least thirty (30) days after the first publication of this Notice in the JACKSONVILLE DAILY RECORD and file the original with the Clerk of this Court either before service on Plaintiff’s attorney or immediately thereafter; otherwise a default will be entered against you for the relief demanded in the complaint. Americans With Disabilities Act (ADA) Notice In accordance with the Americans with Disabilities Act of 1990 (ADA), If you are a person with a disability who needs any accommodation in order to participate in this proceeding, you are entitled at no cost to you, to the provision of certain assistance. Please contact the ADA Coordinator at crtintrp@coj.net or (904) 255-1695 at least 7 days before your scheduled court appearance, or immediately upon receiving this notification if the time before the scheduled appearance is less than 7 days; if you are hearing or voice impaired, call 711.
WITNESS my hand and the seal of this Court this 29th day of October, 2024. JODY PHILLIPS As Clerk of the Court By: Michael Wheeler As Deputy Clerk (Court Seal) Oct. 31, Nov. 7 8 (24-06980D)
FIRST INSERTION
NOTICE OF RECEIPT FOR UNCLAIMED FUNDS HELD BY FIDUCIARY
I, Jody Phillips, Clerk of the Circuit Court of Duval County, Florida, do hereby acknowledge that I have this day received from the fiduciary named below, and deposited in the registry of said court, the sum specified below, pursuant to Section 733.816 Florida Statutes, upon representation of said fiduciary that said sum cannot be distributed or paid to the lawful owner by reason of inability to find the owner or claimant, or because no lawful owner or claimant is known to exist, or claimant refuses to accept such funds, the name of the lawful owner or claimant as represented by said fiduciary; being set forth below.
Name and fiduciary capacity of fiduciary: KENNETH D. GAGNON, PERSONAL REPRESENTATIVE
IN RE: ESTATE OF ROLAND
ROGER GAGNON
FILE NO: 16-2023-CP-002457
DIVISION: PR-B
ATTORNEY FOR PERSONAL REPRESENTATIVE: JAHLYSA
S. JENKINS, ESQ
Sum received: $9,234.08
Lawful owner or claimant: CHARLENE GAGNON*
*Less publication cost
Dated at Jacksonville, Duval County, Florida, this 25th day of September, A.D. 2024 JODY PHILLIPS Clerk of Circuit Court BY: Lorie J Torre Deputy Clerk Oct. 3, Nov. 7 co (24-06379D)
The personal representative has no duty to discover whether any property held at the time of the decedent’s death by the decedent or the decedent’s surviving spouse is property to which the Florida Uniform Disposition of Community Property Rights at Death Act as described in ss. 732.216732.228, Florida Statutes, applies, or may apply, unless a written demand is made by a creditor as specified under s. 732.2211, Florida Statutes. All other creditors of the decedent and other persons having claims or demands against decedent’s estate must file their claims with this court WITHIN 3 MONTHS AFTER THE DATE OF THE FIRST PUBLICATION OF THIS NOTICE. ALL CLAIMS NOT FILED WITHIN THE TIME PERIODS SET FORTH IN FLORIDA STATUTES SECTION 733.702 WILL BE FOREVER BARRED.
NOTWITHSTANDING THE TIME PERIODS SET FORTH ABOVE, ANY CLAIM FILED TWO (2) YEARS OR MORE AFTER THE DECEDENT’S DATE OF DEATH IS BARRED.
The date of first publication of this notice is October 31, 2024.
Personal Representative: KIMBERLY SUE MURRAY 4564 Sudley Road Gainesville, Virginia 20155
Attorney for Personal Representative: DOUGLAS A. OBERDORFER, Esquire
Attorney
Florida Bar Number: 0139092 432 East Monroe Street Jacksonville, Florida 32202
Telephone: (904) 354-5454
Fax: (904) 350-9803
E-Mail: doug@oberdorferlaw.com
Secondary E-Mail: service@oberdorferlaw.com
Oct. 31, Nov. 7 8 (24-06988D)
IN THE CIRCUIT COURT OF THE 4TH JUDICIAL CIRCUIT, IN AND FOR DUVAL COUNTY, FLORIDA CIVIL DIVISION CASE NO.: 16-2024-CA-004740
DIVISION: CV-B U.S. BANK TRUST NATIONAL ASSOCIATION, NOT IN ITS INDIVIDUAL CAPACITY BUT SOLELY AS TRUSTEE FOR HOMES MORTGAGE TRUST, Plaintiff, vs. BATTALION ONE REAL ESTATE LLC A/K/A BATTALION ONE REAL ESTATE. LLC, et al., Defendants. NOTICE OF ACTION TO: KYLE N. BAKER YOU ARE NOTIFIED that an action for Foreclosure of Mortgage on the following described property: LOTS 1 AND 2, EXCEPT THE SOUTH 100 FEET, THE WEST 15 FEET OF THE NORTH 25 FEET OF LOT 3, AND THE EAST 5 FEET OF LOT 12 AND ALL OF LOTS 13 AND 14, BLOCK 9C, OAKWOOD VILLA ESTATES, ACCORDING TO THE PLAT THEREOF, AS RECORDED IN PLAT BOOK 8, PAGE 23, OF THE CURRENT PUBLIC RECORDS OF DUVAL COUNTY FLORIDA. has been filed against you and you are required to serve a copy of your written defenses, if any,
DIVISION: PR-B In re the Estate of YVONNE MARLENE SCHRAEDER, Deceased. NOTICE TO CREDITORS (Summary Administration) TO ALL PERSONS HAVING CLAIMS OR DEMANDS AGAINST THE ABOVE ESTATE: You are hereby notified that an Order of Summary Administration will be entered in the estate of Yvonne Marlene Schraeder, deceased, Duval County Court Case Number 16-2024-CP002831, Division PR-B, by the Circuit Court for Duval County, Florida, Probate Division, the address of which is 501 West Adams Street, Jacksonville, Florida 32202; that the decedent’s date of death was July 9, 2024; that the total value of the estate is greater than $1,000.00 and that the names and addresses of those to whom it will be assigned by such order are: (1) Dakota Copeland, 4646 Ridgewalk Lane, Jacksonville, FL 32257 ALL INTERESTED PERSONS ARE NOTIFIED THAT: All creditors of the estate of the decedent and persons having claims or demands against the estate of the decedent other than those for whom provision for full payment will be made in the Order of Summary Administration must file their claims with this court WITHIN THE TIME PERIODS SET FORTH IN FLORIDA STATUTES SECTION 733.702. ALL CLAIMS AND DEMANDS NOT SO FILED WILL BE FOREVER BARRED. NOTWITHSTANDING ANY OTHER APPLICABLE TIME PERIOD, ANY CLAIM FILED TWO (2) YEARS OR MORE AFTER THE DECEDENT’S DATE OF DEATH IS BARRED. The Petitioner has no duty to discover whether any property held at the time of the decedent’s death by the decedent or the decedent’s surviving spouse is property to which the Florida Uniform Disposition of Community Property Rights at Death Act as described in sections 732.216-732.228, Florida Statutes, applies, or may apply, unless a written demand is made by a creditor as specified under section 732.2211, Florida Statutes. The date of first publication of this Notice is October 31, 2024. Person Giving Notice: DAKOTA COPELAND, PETITIONER Attorney for Person Giving Notice: Ray Elizabeth Dezern, Attorney for Petitioner Florida Bar Number: 95564 7220 Financial Way Jacksonville, FL 32256 Telephone: (904) 355-7000 Fax: (904) 255-5500 E-Mail: ray@heekinlaw.com Oct. 31, Nov. 7 8 (24-06987D)
to it, on De Cubas & Lewis, P.A., Attorney for Plaintiff, whose address is PO BOX 5026, CORAL SPRINGS, FL 33310 on or before a date at least thirty (30) days after the first publication of this Notice in the JACKSONVILLE DAILY RECORD and file the original with the Clerk of this Court either before service on Plaintiff’s attorney or immediately thereafter; otherwise a default will be entered against you for the relief demanded in the complaint. Americans With Disabilities Act (ADA) Notice In accordance with the Americans with Disabilities Act of 1990 (ADA), If you are a person with a disability who needs any accommodation in order to participate in this proceeding, you are entitled at no cost to you, to the provision of certain assistance. Please contact the ADA Coordinator at crtintrp@coj.net or (904) 255-1695 at least 7 days before your scheduled court appearance, or immediately upon receiving this notification if the time before the scheduled appearance is less than 7 days; if you are hearing or voice impaired, call 711. WITNESS my hand and the seal of this Court this 30th day of October, 2024. JODY PHILLIPS As Clerk of the Court By: Pamela R. Harrell As Deputy Clerk (Court Seal) Oct. 31, Nov. 7 8 (24-06986D)
SECOND INSERTION
IN THE CIRCUIT COURT FOR DUVAL COUNTY, FLORIDA
PROBATE DIVISION
File No. 16-2024-CP-002916
Division PR-A IN RE: ESTATE OF WESLEY ALLEN DOTY
A/K/A WESLEY A. DOTY
Deceased.
NOTICE TO CREDITORS
The administration of the estate of Wesley Allen Doty a/k/a Wesley A. Doty, deceased, whose date of death was September 21, 2024, is pending in the Circuit Court for Duval County, Florida, Probate Division, the address of which is 501 West Adams Street, Jacksonville, Florida 32202. The names and addresses of the personal representative and the personal representative’s attorney are set forth below.
All creditors of the decedent and other persons having claims or demands against decedent’s estate on whom a copy of this notice is required to be served must file their claims with this court ON OR BEFORE THE LATER OF 3 MONTHS AFTER THE TIME OF THE FIRST PUBLICATION OF THIS NOTICE OR 30 DAYS AFTER THE DATE OF SERVICE OF A COPY OF THIS NOTICE ON THEM.
The personal representative has no duty to discover whether any property held at the time of the decedent’s death by the decedent or the decedent’s surviving spouse is property to which the Florida Uniform Disposition of Community Property Rights at Death Act as described in ss. 732.216732.228, Florida Statutes, applies, or may apply, unless a written demand is made by a creditor as specified under s. 732.2211, Florida Statutes. All other creditors of the decedent and other persons having claims or demands against decedent’s estate must file their claims with this court WITHIN 3 MONTHS AFTER THE DATE OF THE FIRST PUBLICATION OF THIS NOTICE.
ALL CLAIMS NOT FILED WITHIN THE TIME PERIODS SET FORTH IN FLORIDA STATUTES SECTION 733.702 WILL BE FOREVER BARRED. NOTWITHSTANDING THE TIME PERIODS SET FORTH ABOVE, ANY CLAIM FILED TWO (2) YEARS OR MORE AFTER THE DECEDENT’S DATE OF DEATH IS BARRED.
The date of first publication of this notice is October 31, 2024. Personal Representative: Stephanie R. Doty 2640 Lourdes Drive West Jacksonville, Florida 32210
Attorney for Personal Representative: Markus A. Sermons, Esq.
Attorney Florida Bar Number: 74420
SERMONS LAW, PLLC 1543 Kingsley Avenue, Suite 18-B Orange Park, Florida 32073
Telephone: (904) 541-6492
Fax: (904) 637-7144
E-Mail: mark@sermonsfirm.com
Secondary E-Mail: service@sermonsfirm.com
Oct. 31, Nov. 7 7 (24-06961D)
IN THE CIRCUIT COURT OF THE 4TH JUDICIAL CIRCUIT IN AND FOR DUVAL COUNTY, FLORIDA PROBATE DIVISION File No. 16-2024-CP-002685
DIVISION: PR-B
IN RE: ESTATE OF ALICE ELIZABETH DICKERSON WILLIAMS Deceased. NOTICE TO CREDITORS
The administration of the estate of DICKERSON WILLIAMS, ALICE ELIZABETH, Deceased, whose date of death was April 27, 2024, is pending in the Circuit Court for DUVAL County, Florida, Probate Division, the address of which is 501 W Adams, St., Jacksonville, FL 32202. The names and addresses of the personal representative and the personal representative’s attorney are set forth below.
All creditors of the decedent and other persons having claims or demands against decedent’s estate on whom a copy of this notice is required to be served must file their claims with this court WITHIN THE LATER OF 3 MONTHS AFTER THE TIME OF THE FIRST PUBLICATION OF THIS NOTICE OR 30 DAYS AFTER THE DATE OF SERVICE OF A COPY OF THIS NOTICE ON THEM.
All other creditors of the decedent and other persons having claims or demands against decedent’s estate must file their claims with this court WITHIN 3 MONTHS AFTER THE DATE OF THE FIRST PUBLICATION OF THIS NOTICE.
ALL CLAIMS NOT FILED WITHIN THE TIME PERIODS SET FORTH IN SECTION 733.702 OF THE FLORIDA PROBATE CODE WILL BE FOREVER BARRED. NOTWITHSTANDING THE TIME PERIODS SET FORTH ABOVE, ANY CLAIM FILED TWO (2) YEARS OR MORE AFTER THE DECEDENT’S DATE OF DEATH IS BARRED.
A personal representative or curator has no duty to discover whether any property held at the time of the decedent’s death by the decedent or the decedent’s surviving spouse is property to which the Florida Uniform Disposition of Community Property Rights at Death Act as described in sections 732.216-732.228, applies, or may apply, unless a written demand is made by a creditor as specified under section 732.2211. The date of first publication of this notice is October 31, 2024. KATHRYN DENNIS, Personal Representative Attorney for Personal Representative: Scott R. Bugay, Esquire Florida Bar No. 5207 Citicentre, Suite P600 290 NW 165th Street Miami FL 33169
Telephone: (305) 956-9040 Fax: (305) 945-2905 Primary Email: Scott@srblawyers.com Secondary Email: angelica@srblawyers.com Oct. 31, Nov. 7 7 (24-06962D)
IN THE CIRCUIT COURT OF THE FOURTH JUDICIAL CIRCUIT, IN AND FOR DUVAL COUNTY, FLORIDA
PROBATE DIVISION
File No.: 16-2024-CP-002905
Division: PR-B IN RE: THE ESTATE OF CARLOS MANUEL MALDONADO PEREZ, Deceased.
NOTICE TO CREDITORS
The administration of the estate of Carlos Manuel Maldonado Perez, deceased, whose date of death was March 7, 2024, is pending in the Circuit Court for Duval County, Florida, Probate Division, the address of which is 501 W. Adams St., Jacksonville, FL 32202. The names and addresses of the personal representative and the personal representative’s attorney are set forth below. All creditors of the Decedent and other persons having claims or demands against Decedent’s estate on whom a copy of this notice is required to be served must file their claims with this Court WITHIN THE LATER OF 3 MONTHS AFTER THE TIME OF THE FIRST PUBLICATION OF THIS NOTICE OR 30 DAYS AFTER THE DATE OF SERVICE OF A COPY OF THIS NOTICE ON THEM. All other creditors of the Decedent and other persons having claims or demands against Decedent’s estate must file their claims with this Court WITHIN
3 MONTHS AFTER THE DATE OF THE FIRST PUBLICATION OF THIS NOTICE. The personal representative has
SECOND INSERTION
IN THE CIRCUIT COURT FOR DUVAL COUNTY, FLORIDA PROBATE DIVISION
File No. 16-2024-CP-001850
Division PR-A IN RE: ESTATE OF LOUVENIA TURNER BANKS
Deceased.
NOTICE TO CREDITORS
The administration of the estate of Louvenia Turner Banks, deceased, whose date of death was August 20, 2023, is pending in the Circuit Court for Duval County, Florida, Probate Division, the address of which is 501 W. Adams Street, Jacksonville, FL 32202. The names and addresses of the personal representative and the personal representative’s attorney are set forth below. All creditors of the decedent and other persons having claims or demands against decedent’s estate on whom a copy of this notice is required to be served must file their claims with this court ON OR BEFORE THE LATER OF 3 MONTHS AFTER THE TIME OF THE FIRST PUBLICATION OF THIS NOTICE OR 30 DAYS AFTER THE DATE OF SERVICE OF A COPY OF THIS NOTICE ON THEM.
All other creditors of the decedent and other persons having claims or demands against decedent’s estate must file their claims with this court WITHIN 3 MONTHS AFTER THE DATE OF THE FIRST PUBLICATION OF THIS NOTICE.
ALL CLAIMS NOT FILED WITHIN THE TIME PERIODS SET FORTH IN FLORIDA STATUTES SECTION 733.702 WILL BE FOREVER BARRED. NOTWITHSTANDING THE TIME PERIODS SET FORTH ABOVE, ANY CLAIM FILED TWO (2) YEARS OR MORE AFTER THE DECEDENT’S DATE OF DEATH IS BARRED.
A personal representative or curator has no duty to discover whether any property held at the time of the decedent’s death by the decedent or the decedent’s surviving spouse is property to which the Florida Uniform Disposition of Community Property Rights at Death Act as described in sections 732.216-732.228, applies, or may apply, unless a written demand is made by a creditor as specified under section 732.2211.
The date of first publication of this notice is October 31, 2024.
Personal Representative: Pharisha Adrianna Banks 15852 Lexington Park Blvd Jacksonville, Florida 32218
Attorney for Personal Representative: Sarah A. Mannion
Attorney Florida Bar Number: 103087 King & Mannion, P.A. 2219 Park Street Jacksonville, FL 32204
Telephone: (904) 387-9886
Fax: (904) 387-9862
E-Mail: mannion.sarah@gmail.com
Secondary E-Mail: kingcandyce@bellsouth.net Oct. 31, Nov. 7 7 (24-06956D)
IN THE CIRCUIT COURT FOR DUVAL COUNTY, FLORIDA
PROBATE DIVISION
no duty to discover whether any property held at the time of the decedent’s death by the decedent or the decedent’s surviving spouse is property to which the Florida Uniform Disposition of Community Property Rights at Death Act as described in ss. 732.216732.228, applies, or may apply, unless a written demand is made by a creditor as specified under s. 732.2211, Florida Statutes. ALL CLAIMS NOT FILED WITHIN THE TIME PERIODS SET FORTH IN SECTION 733.702 OF THE FLORIDA PROBATE CODE WILL BE FOREVER BARRED. NOTWITHSTANDING THE TIME PERIODS SET FORTH ABOVE, ANY CLAIM FILED TWO (2) YEARS OR MORE AFTER THE DECEDENT’S DATE OF DEATH IS BARRED. The date of first publication of this notice is October 31, 2024.
Personal Representative Norma Martinez 12620 Beach Blvd #171 Jacksonville, FL 32246
THE HINSON LAW FIRM, P.A. Matthew H. Hinson, Esq. Florida Bar No. 94017 Kathryn E. Stanfill, Esq. Florida Bar No. 1002636 300 West Adams St., Suite 500 Jacksonville, FL 32202
Phone: 904-527-1700 Fax: 904-355-8088 Matt@HinsonLawPA.com Kathryn@HinsonLawPA.com
Attorney for Personal Representative Oct. 31, Nov. 7 7 (24-06943D)
SECOND INSERTION
IN THE CIRCUIT COURT FOR DUVAL COUNTY, FLORIDA PROBATE DIVISION
File No. 16-2024-CP-002662
Division: PR-A IN RE: ESTATE OF JOHAN STEVEN ARAUJO TORRES
Deceased.
NOTICE TO CREDITORS
The administration of the estate of Johan Steven Araujo Torres, deceased, whose date of death was August 26, 2023, is pending in the Circuit Court for Duval County, Florida, Probate Division, the address of which is 501 West Adams Street, Jacksonville, Florida 32202. The names and addresses of the personal representative and the personal representative’s attorney are set forth below.
All creditors of the decedent and other persons having claims or demands against decedent’s estate on whom a copy of this notice is required to be served must file their claims with this court ON OR BEFORE THE LATER OF 3 MONTHS AFTER THE TIME OF THE FIRST PUBLICATION OF THIS NOTICE OR 30 DAYS AFTER THE DATE OF SERVICE OF A COPY OF THIS NOTICE ON THEM.
All other creditors of the decedent and other persons having claims or demands against decedent’s estate must file their claims with this court WITHIN 3 MONTHS AFTER THE DATE OF THE FIRST PUBLICATION OF THIS NOTICE. ALL CLAIMS NOT FILED WITHIN THE TIME PERIODS SET FORTH IN FLORIDA STATUTES SECTION 733.702 WILL BE FOREVER BARRED. NOTWITHSTANDING THE TIME PERIODS SET FORTH ABOVE, ANY CLAIM FILED TWO (2) YEARS OR MORE AFTER THE DECEDENT’S DATE OF DEATH IS BARRED.
A personal representative or curator has no duty to discover whether any property held at the time of the decedent’s death by the decedent or the decedent’s surviving spouse is property to which the Florida Uniform Disposition of Community Property Rights at Death Act as described in sections 732.216-732.228, applies, or may apply, unless a written demand is made by a creditor as specified under section 732.2211.
The date of first publication of this notice is October 31, 2024. Personal Representative: Maria Isabel Torres Alarcon Attorney for Personal Representative: Gerald W. Weedon E-mail Addresses: gweedon@marksgray.com, breeves@marksgray.com Florida Bar No. 231819 Marks Gray, P.A. 1200 Riverplace Blvd., Ste. 800 Jacksonville, Florida 32207 Telephone: (904) 398-0900 Oct. 31, Nov. 7 7 (24-06959D)
demand is made by a creditor as specified under s. 732.2211, Florida Statutes.
Notice of Self Storage Sale
Please take notice StoreEaseJacksonville located at 8483 New Kings Rd. Jacksonville, FL 32219 intends to hold a sale to sell the property stored at the Facility by the below list of Occupants whom are in default at an Auction. The sale will occur as an online auction via www.lockerfox.com on 11/21/2024 at 10:00AM. Unless stated otherwise the description of the contents are household goods, furnishings and garage essentials. Jeffrey Taylor unit #1078; Veyounce Aaron unit #1081; Kenneshia Joiner unit #1130; Traevonte Williams unit #1208. This sale may be withdrawn at any time without notice. Certain terms and conditions apply. See manager for details. Oct. 31, Nov. 7 7 (24-06907D)
SECOND INSERTION
Notice of Self Storage Sale
Please take notice SecureSpace
Self Storage Atlantic Beach located at 1770 Mayport Road, Atlantic Beach, FL 32233 intends to hold a sale to sell the property stored at the Facility by the below list of Occupant who is in default at an Auction. The sale will occur as an online auction via www.storagetreasures.com on 11/21/2024 at 2:30PM. Unless stated otherwise the description of the contents are household goods, furnishings and garage essentials. Tara Clavertue unit #A038; Allen Foy Jr unit #A048; Michael Alvarado unit #G009; Jalaine Howell unit #H026; Richard Spaulding unit #K029; Kimberly Lundy unit #N117. This sale may be withdrawn at any time without notice. Certain terms and conditions apply. See manager for details. Oct. 31, Nov. 7 7 (24-06909D)
SECOND INSERTION
Notice of Self Storage Sale
Please take notice ClearHome
Self Storage - Firestone located at 6664 Firestone Rd Jacksonville, FL 32244 intends to hold a sale to sell the property stored at the Facility by the below list of Occupants whom are in default at an Auction. The sale will occur as an online auction via www.storagetreasures.com on 11/20/2024 at 12:00PM. Unless stated otherwise the description of the contents are household goods, furnishings and garage essentials. Anson Holmes unit #1003; Thayne Jenkins unit #1011; Kameron Bess unit #2073; Rhonda Lockwood unit #2099; Kiana Anderson unit #2141; May Goodman unit #2143; Kenneth Hardy unit #2162; Tumeca Pearson unit #2173; Dajah Manning unit #3089; Lavelle Loveless unit #3161; Deidre Hawkins unit #3171. This sale may be withdrawn at any time without notice. Certain terms and conditions apply. See manager for details. Oct. 31, Nov. 7 7 (24-06910D)
SECOND INSERTION
IN THE CIRCUIT COURT FOR DUVAL COUNTY, FLORIDA PROBATE DIVISION File No. 16-2024-CP-002770
Division PR-A IN RE: ESTATE OF RANDY MEREDITH GILMORE, Deceased.
NOTICE TO CREDITORS
The administration of the estate of Randy Meredith Gilmore, deceased, whose date of death was August 18, 2024, is pending in the Circuit Court for Duval County, Florida, Probate Division, the address of which is 501 W. Adams St., Jacksonville, FL 32202. The names and addresses of the personal representative and the personal representative’s attorney are set forth below.
All creditors of the decedent and other persons having claims or demands against decedent’s estate on whom a copy of this notice is required to be served must file their claims with this court ON OR BEFORE THE LATER OF 3 MONTHS AFTER THE TIME OF THE FIRST PUBLICATION OF THIS NOTICE OR 30 DAYS AFTER THE DATE OF SERVICE OF A COPY OF THIS NOTICE ON THEM.
The personal representative has no duty to discover whether any property held at the time of the decedent’s death by the decedent or the decedent’s surviving spouse is property to which the Florida Uniform Disposition of Community Property Rights at Death Act as described in ss. 732.216732.228, Florida Statutes, applies, or may apply, unless a written demand is made by a creditor as specified under s. 732.2211, Florida Statutes. All other creditors of the decedent and other persons having claims or demands against decedent’s estate must file their claims with this court WITHIN 3 MONTHS AFTER THE DATE OF THE FIRST PUBLICATION OF THIS NOTICE. ALL CLAIMS NOT FILED WITHIN THE TIME PERIODS SET FORTH IN FLORIDA STATUTES SECTION 733.702 WILL BE FOREVER BARRED. NOTWITHSTANDING THE TIME PERIODS SET FORTH ABOVE, ANY CLAIM FILED TWO (2) YEARS OR MORE AFTER THE DECEDENT’S DATE OF DEATH IS BARRED. The date of first publication of this notice is October 31, 2024. Personal Representative: Gayle Leigh Gilmore 65 Florida Ave., Apt. A St. Augustine, Florida 32084 Attorney for Personal Representative: Philip B. Hughes
Attorney Florida Bar Number: 69101 6928 Phillips Parkway Dr. N. Jacksonville, FL 32256-1583 Telephone: (904) 219-7703
E-Mail: philiphughes@comcast.net Oct. 31, Nov. 7 7 (24-06965D)
SECOND INSERTION
IN THE CIRCUIT COURT FOR DUVAL COUNTY, FLORIDA PROBATE DIVISION File No. 16-2024-CP-002777
File No. 16-2024-CP-003059 Division PR-B IN RE: ESTATE OF JOSEPH FRANKLIN
ROULHAC
Deceased.
NOTICE TO CREDITORS
The administration of the estate of Joseph Franklin Roulhac, deceased, whose date of death was May 24, 2024, is pending in the Circuit Court for Duval County, Florida, Probate Division, the address of which is 501 West Adams Street, Jacksonville, Florida 32202. The names and addresses of the personal representative and the personal representative’s attorney are set forth below.
All creditors of the decedent and other persons having claims or demands against decedent’s estate on whom a copy of this notice is required to be served must file their claims with this court ON OR BEFORE THE LATER OF 3 MONTHS AFTER THE TIME OF THE FIRST PUBLICATION OF THIS NOTICE OR 30 DAYS AFTER THE DATE OF SERVICE OF A COPY OF THIS NOTICE ON THEM.
The personal representative has no duty to discover whether any property held at the time of the decedent’s death by the decedent or the decedent’s surviving spouse is property to which the Florida Uniform Disposition of Community Property Rights at Death Act as described in ss. 732.216732.228, Florida Statutes, applies, or may apply, unless a written
All other creditors of the decedent and other persons having claims or demands against decedent’s estate must file their claims with this court WITHIN 3 MONTHS AFTER THE DATE OF THE FIRST PUBLICATION OF THIS NOTICE.
ALL CLAIMS NOT FILED WITHIN THE TIME PERIODS SET FORTH IN FLORIDA STATUTES SECTION 733.702 WILL BE FOREVER BARRED.
NOTWITHSTANDING THE TIME PERIODS SET FORTH ABOVE, ANY CLAIM FILED TWO (2) YEARS OR MORE AFTER THE DECEDENT’S DATE OF DEATH IS BARRED.
The date of first publication of this notice is October 31, 2024.
Personal Representative: Clarence M. Roulhac 2941 Battleground Avenue #38392 Greensboro, North Carolina 27408
Attorney for Personal Representative: David Goldman
Attorney Florida Bar Number: 39008 LAW OFFICE OF DAVID M. GOLDMAN PLLC 4115 Hendricks Avenue Jacksonville, Florida 32207
Telephone: (904) 990-8000
Fax: (904) 875-4081
E-Mail: dgoldman@ jacksonvillelawyer.pro Secondary E-Mail: jwheat@jacksonvillelawyer.pro Oct. 31, Nov. 7 7 (24-06960D)
Division: PR-B IN RE: ESTATE OF JIMMY LYNN LANE Deceased.
NOTICE TO CREDITORS TO ALL PERSONS HAVING CLAIMS OR DEMANDS AGAINST THE ABOVE ESTATE: You are hereby notified that a Petition for Summary Administration and a Petition to Determine Homestead Status of Real Property has been entered in the estate of Jimmy Lynn Lane, deceased, File Number 16-2024-CP-002777, by the Circuit Court for Duval County, Florida, Probate Division, the address of which is 501 West Adams Street, Room 1173, Jacksonville, Florida, 32202; that the decedent’s date of death was July 10, 2024; the only asset in the estate is the decedent’s homestead real property and that the names and addresses of those to whom the property descended and the constitutional exemption from the claims of creditors inured as set forth in the Order Determining Homestead Real Property and the Order of Summary Administration are: Janice Gasaway Lane, 8512 Star Leaf Court, Jacksonville, Florida 32210 ALL INTERESTED PERSONS ARE NOTIFIED THAT: All creditors of the estate of the decedent and persons having claims or demands against the estate of the decedent other than those for whom provision for full payment was made in the Order of Summary Administration must
file their claims with this court WITHIN THE TIME PERIODS SET FORTH IN FLORIDA STATUTES SECTION 733.702. ALL CLAIMS AND DEMANDS NOT SO FILED WILL BE FOREVER BARRED. NOTWITHSTANDING ANY OTHER APPLICABLE TIME PERIOD, ANY CLAIM FILED TWO (2) YEARS OR MORE AFTER THE DECEDENT’S DATE OF DEATH IS BARRED. The personal representative has no duty to discover whether any property held at the time of the decedent’s death by the decedent or the decedent’s surviving spouse is property to which the Florida Uniform Disposition of Community Property Rights at Death Act as described in ss. 732.216732.228, Florida Statutes, applies, or may apply, unless a written demand is made by a creditor as specified under s. 732.2211, Florida Statutes. The date of first publication of this Notice is October 31, 2024. Person Giving Notice: Janice Gasaway Lane 8512 Star Leaf Court Jacksonville, FL 32210
Attorney for Person Giving Notice TODD WATSON, ATTORNEY AND COUNSELOR AT LAW, LLC Todd Watson, Esquire Florida Bar Number: 0938327 12058 San Jose Boulevard Suite 401 Jacksonville, FL 32223 Telephone: (904) 739-9747 Fax: (904) 739-9748 E-Mail: mail@toddwatsonlaw.com Oct. 31, Nov. 7 7 (24-06969D)
Notice of Self Storage Sale
Please take notice Midgard Self Storage - Jacksonville FL located at 9119 Merrill Rd., Jacksonville, FL 32225 intends to hold a sale to sell the property stored at the Facility by the below list of Occupants whom are in default at an Auction. The sale will occur as an online auction via www.storageauctions.com on 11/15/2024 at 1:00PM. Unless stated otherwise the description of the contents are household goods, furnishings and garage essentials. Robert Williams III unit #1013; Adrian Griffin units #1021, #1023 & #4006; Quiana Glover unit #1036; Thomas B Burns unit #2001; Carol Wilcher unit #2010; Sekhinda Tith unit #2068C; Michael Scott unit #2098; Paul Brewer unit #2114; Kyesha Davis unit #2146; David Hawkins/904 Catering LLC unit #3036; Darren Johnson unit #3054; Jenni Ennis unit #4044; James Bartley unit #4099; Ishmael Blue unit #4234; Emma J Brown unit #4246. This sale may be withdrawn at any time without notice. Certain terms and conditions apply. See manager for details. Oct. 31, Nov. 7 6 (24-06908D)
SECOND INSERTION
Notice of Lien Sale
Pursuant to the lien granted by the Florida Self-storage Facility Act, Dunn Avenue Storage Zone Self Storage and Business Centers 1435 Dunn Ave Jacksonville FL 32218 will sell at public auction on 19th November 2024 personal property belonging to the following tenants to the highest bidder. The sale shall be held at WWW. STORAGEAUCTIONS.COM with sales complete at approximately 12 PM. All sales are subject to prior cancellation. Sale rules and regulations are available at the time of Auction. All units containing household goods. Collins, Janet – A18, A20, W18 Wall, Robert – A26 Cole, Chavella – A38 Felton, Brittany – A81 Wallace, Alexandria – B03 Nealy, Tyquan – B46 McCormick, Cherita – C21 Richardson, Nathaniel, Jr – K25 White, Paul – L49 Downing, Robert – M25 Brown, Latonya – M26 Stewart, James – T10 Brown, Jacqueline – T14 Byrd-Rose, Linda – U19 Heflin, Tommie – V27 Oct. 31, Nov. 7 6 (24-06940D)
IN THE CIRCUIT COURT OF THE 4TH JUDICIAL CIRCUIT, IN AND FOR DUVAL COUNTY, FLORIDA CIVIL DIVISION CASE NO.: 16-2024-CA-004787 DIVISION FC-E 121 FINANCIAL CREDIT UNION, A DIVISION OF VYSTAR CREDIT UNION, Plaintiff, vs. ESTATE OF MARSHA R. SCAFF; ET AL, Defendant(s). NOTICE OF ACTION TO: ESTATE OF MARSHA R. SCAFF and UNKNOWN HEIRS, DEVISEES, GRANTEES, ASSIGNEES, LIENORS, CREDITORS, TRUSTEES AND ALL OTHER PARTIES CLAIMING AN INTEREST BY, THROUGH, UNDER FOR MARSHA R. SCAFF Last known address: Unknown Current address: Unknown YOU ARE HEREBY NOTIFIED that an action to foreclose the Mortgage covering the following property described as follows, to-wit: LOT THREE HUNDRED SEVEN (307), ALDERMAN PARK UNIT NO. 7, ACCORDING TO PLAT THEREOF RECORDED IN PLAT BOOK 30, PAGE 13, OF THE CURRENT PUBLIC RECORDS OF DUVAL COUNTY, FLORIDA. PROPERTY ADDRESS: 1331 Grandview Drive, Jack-
sonville, Fl 32211 has been filed against you and you are required to serve a copy of your written defenses, if any, to it, on Michelle L. Glass, Attorney for Plaintiff, whose address is 7545 Centurion Parkway, Ste. 103, Jacksonville, FL 32256 within 30 days after the first publication of this notice, and file the original with the Clerk of this Court either before service on Plaintiff’s attorney, or immediately thereafter; otherwise a default will be entered against you for the relief demanded in the Complaint. Americans With Disabilities Act (ADA) Notice In accordance with the Americans with Disabilities Act of 1990 (ADA), If you are a person with a disability who needs any accommodation in order to participate in this proceeding, you are entitled at no cost to you, to the provision of certain assistance. Please contact the ADA Coordinator at crtintrp@coj.net or (904) 2551695 at least 7 days before your scheduled court appearance, or immediately upon receiving this notification if the time before the scheduled appearance is less than 7 days; if you are hearing or voice impaired, call 711. WITNESS my hand and the seal of this Court this 28th day of October, 2024.
JODY PHILLIPS CLERK OF THE CIRCUIT COURT By: Pamela R. Harrell As Deputy Clerk (Court Seal) Oct. 31, Nov. 7 6 (24-06952D)
SECOND INSERTION
IN THE CIRCUIT COURT OF THE FOURTH JUDICIAL CIRCUIT IN AND FOR DUVAL COUNTY, FLORIDA
CIVIL DIVISION Case #: 16-2023-CA-008630
DIVISION: FC-H Nationstar Mortgage LLC Plaintiff, -vs.Unknown Heirs, Devisees, Grantees, Assignees, Creditors, Lienors, and Trustees of Saundra V. Rice a/k/a Saundra Vance Rice a/k/a Saundra Rice f/k/a Saundra Vance Stigall f/k/a Saundra V. Stigall, Deceased, and All Other Persons Claiming by and Through, Under, Against The Named Defendant(s); William Howell Rice a/k/a William H. Rice a/k/a William Rice; Stephen Patrick Rice a/k/a Stephen P. Rice a/k/a Steve Rice; Unknown Spouse of William Howell Rice a/k/a William H. Rice a/k/a William Rice; Unknown Spouse of Stephen Patrick Rice a/k/a Stephen P. Rice a/k/a Steve Rice; The Bank of New York Mellon F/K/A The Bank of New York as Indenture Trustee for CWHEQ Revolving Home Equity Loan Trust, Series 2007-A; Unknown Party in Possession #1; Unknown Party in Possession #2; FPL Energy Services Defendant(s). NOTICE OF SALE NOTICE IS HEREBY GIVEN pursuant to order rescheduling foreclosure sale or Final Judgment, entered in Civil Case No. 16-2023-CA-008630 of the Circuit Court of the 4th Judicial Circuit in and for Duval County, Florida, wherein Nationstar Mortgage LLC, Plaintiff and Unknown Heirs, Devisees, Grantees, Assignees, Creditors, Lienors, and Trustees of Saundra V. Rice a/k/a Saundra Vance Rice a/k/a Saundra Rice f/k/a Saundra Vance Stigall f/k/a Saundra V. Stigall, Deceased, and All Other Persons Claiming by and Through, Under, Against The Named Defendant(s) are defendant(s), I, Clerk of Court, Jody Phillips, will sell to the highest and
SECOND INSERTION
IN THE CIRCUIT COURT, FOURTH JUDICIAL CIRCUIT, IN AND FOR DUVAL COUNTY, FLORIDA Case No. 16-2024-CP-003043 Division: PR-B IN RE: ESTATE OF STEPHANIE CAROL IVERSEN Deceased.
NOTICE TO CREDITORS
The administration of the estate of Stephanie Carol Iversen, deceased, whose date of death was July 19, 2024, is pending in the Circuit Court for Duval County, Florida, Probate Division, the address of which is 501 W. Adams St., Jacksonville, FL 32202. The names and addresses of the personal representative and the personal representative’s attorney are set forth below.
All creditors of the decedent and other persons having claims or demands against decedent’s estate on whom a copy of this notice is required to be served must file their claims with this court ON OR BEFORE THE LATER OF 3 MONTHS AFTER THE TIME OF THE FIRST PUBLICATION OF THIS NOTICE OR 30 DAYS AFTER THE DATE OF SERVICE OF A COPY OF THIS NOTICE ON THEM.
All other creditors of the decedent and other persons having claims or demands against decedent’s estate must file their claims with this court WITHIN 3 MONTHS AFTER THE DATE OF THE FIRST PUBLICATION OF THIS NOTICE.
ALL CLAIMS NOT FILED WITHIN THE TIME PERIODS SET FORTH IN FLORIDA STATUTES SECTION 733.702 WILL BE FOREVER BARRED. NOTWITHSTANDING THE TIME PERIODS SET FORTH ABOVE, ANY CLAIM FILED TWO (2) YEARS OR MORE AFTER THE DECEDENT’S DATE OF DEATH IS BARRED.
A personal representative or curator has no duty to discover whether any property held at the time of the decedent’s death by the decedent or the decedent’s surviving spouse is property to which the Florida Uniform Disposition of Community Property Rights at Death Act as described in sections 732.216-732.228, applies, or may apply, unless a written demand is made by a creditor as specified under section 732.2211.
The date of first publication of this notice is October 31, 2024. Melissa J. Miller 10259 Crystal Springs Rd. Jacksonville, FL 32221
Attorney for Personal Representatives: Jennifer F. W. Sticha, Esq. Florida Bar No. 1010878
best bidder for cash AT: www.duval.realforeclose.com AT 11:00AM on November 21, 2024, the following described property as set forth in said Final Judgment, to-wit: LOT 9, BLOCK 3, LAKE SHORE TERRACE UNIT 1, ACCORDING TO THE PLAT THEREOF AS RECORDED IN PLAT BOOK 21, PAGE 66, OF THE CURRENT PUBLIC RECORDS OF DUVAL COUNTY, FLORIDA. ANY PERSON CLAIMING AN INTEREST IN THE SURPLUS FROM THE SALE, IF ANY, OTHER THAN THE PROPERTY OWNER AS OF THE DATE OF THE LIS PENDENS MUST FILE A CLAIM NO LATER THAN THE DATE THAT THE CLERK REPORTS THE FUNDS AS UNCLAIMED. Americans With Disabilities Act (ADA) Notice In accordance with the Americans with Disabilities Act of 1990 (ADA), If you are a person with a disability who needs any accommodation in order to participate in this proceeding, you are entitled at no cost to you, to the provision of certain assistance. Please contact the ADA Coordinator at crtintrp@coj.net or (904) 2551695 at least 7 days before your scheduled court appearance, or immediately upon receiving this notification if the time before the scheduled appearance is less than 7 days; if you are hearing or voice impaired, call 711. Dated October 25, 2024. JODY PHILLIPS CLERK OF THE CIRCUIT COURT Duval County, Florida By: Michael Wheeler DEPUTY CLERK OF COURT (Court Seal) ATTORNEY FOR PLAINTIFF: LOGS LEGAL GROUP LLP 750 Park of Commerce Blvd., Suite 130 Boca Raton, Florida 33487 (561) 998-6700 (561) 998-6707 Oct. 31, Nov. 7 6 (24-06936D)
SECOND INSERTION IN THE CIRCUIT COURT, FOURTH JUDICIAL CIRCUIT, IN AND FOR DUVAL COUNTY, FLORIDA CASE NO: 16-2024-CP-000331 Division: PR-B IN RE: THE ESTATE OF LUCA BENJAMIN LAWRENCE Deceased. NOTICE TO CREDITORS
The administration of the estate of LUCA BENJAMIN LAWRENCE, deceased, whose date of death was December 1, 2023, is pending in the Circuit Court for Duval County, Florida, Probate Division, the address of which is 501 West Adams Street, Room 1173, Jacksonville, FL 32202. The names and addresses of the personal representative and the personal representative’s attorney are set forth below.
All creditors of the decedent and other persons having claims or demands against decedent’s estate on whom a copy of this notice is required to be served must file their claims with this court ON OR BEFORE THE LATER OF 3 MONTHS AFTER THE TIME OF THE FIRST PUBLICATION OF THIS NOTICE OR 30 DAYS AFTER THE DATE OF SERVICE OF A COPY OF THIS NOTICE ON THEM.
All other creditors of the decedent and other persons having claims or demands against decedent’s estate must file their claims with this court WITHIN 3 MONTHS AFTER THE DATE OF THE FIRST PUBLICATION OF THIS NOTICE. ALL CLAIMS NOT FILED WITHIN THE TIME PERIODS SET FORTH IN FLORIDA STATUTES. SECTION 733.702 WILL BE FOREVER BARRED. NOTWITHSTANDING THE TIME PERIODS SET FORTH ABOVE, ANY CLAIM FILED TWO (2) YEARS OR MORE AFTER THE DECEDENT’S DATE OF DEATH IS BARRED.
A personal representative or curator has no duty to discover whether any property held at the time of the decedent’s death by the decedent or the decedent’s surviving spouse is property to which the Florida Uniform Disposition of Community Property Rights at Death Act as described in sections 732.216-732.228, applies, or may apply, unless a written demand is made by a creditor as specified under section 732.2211.
The date of first publication of this notice is October 31, 2024. Personal Representative: Korey Angus c/o David B. Ferebee, P.A. P.O. Box 1796 Jacksonville, FL 32201
Lisa A. DiFranza, Esq. Florida Bar No. 0087566 DiFranza Law, P.A. 3840 Belfort Road, Suite 301 Jacksonville, Florida 32216 Oct. 31, Nov. 7 6 (24-06921D)
IN THE CIRCUIT COURT FOURTH JUDICIAL CIRCUIT IN AND FOR DUVAL COUNTY, FLORIDA
PROBATE DIVISION File No.: 16-2024-CP-002969
Division: PR-B IN RE: ESTATE OF ROSSIE MAE WELLS, DECEASED. NOTICE TO CREDITORS
The administration of the estate of Rossie Mae Wells, deceased, whose date of death was September 15, 2024, is pending in the Circuit Court for Duval County, Florida, Probate Division, the address of which is 501 W. Adams Street, Jacksonville, Florida 32202. The names and addresses of the personal representative and the personal representative’s attorney are set forth below.
All creditors of the decedent and other persons having claims or demands against decedent’s estate on whom a copy of this notice is required to be served must file their claims with this court ON OR BEFORE THE LATER OF 3 MONTHS AFTER THE TIME OF THE FIRST PUBLICATION OF THIS NOTICE OR 30 DAYS AFTER THE DATE OF SERVICE OF A COPY OF THIS NOTICE ON THEM.
All other creditors of the decedent and other persons having claims or demands against decedent’s estate must file their claims with this court WITHIN 3 MONTHS AFTER THE DATE OF THE FIRST PUBLICATION OF THIS NOTICE.
The personal representative or curator has no duty to discover
SECOND INSERTION
IN THE CIRCUIT COURT FOR DUVAL COUNTY, FLORIDA
PROBATE DIVISION
File No.: 16-2024-CP-002878
Division: PR-A
IN RE: ESTATE OF TERRY RAY ROBERTSON, Deceased.
NOTICE TO CREDITORS
The administration of the estate of Terry Ray Robertson, deceased, whose date of death was August 9, 2024, and whose case number is 16-2024-CP-002878, is pending in the Circuit Court for Duval County, Florida, Probate Division, the address of which is 501 West Adams Street, Jacksonville, Florida 32202. The names and addresses of the personal representative and the attorney are set forth below.
All creditors of the decedent and other persons having claims or demands against decedent’s estate on whom a copy of this notice is required to be served must file their claims with this court WITHIN THE LATER OF 3 MONTHS AFTER THE TIME OF THE FIRST PUBLICATION OF THIS NOTICE OR 30 DAYS AFTER THE DATE OF SERVICE OF A COPY OF THIS NOTICE ON THEM.
All other creditors of the decedent and other persons having claims or demands against decedent’s estate must file their claims with this court WITHIN 3 MONTHS AFTER THE DATE OF THE FIRST PUBLICATION OF THIS NOTICE. ALL CLAIMS NOT FILED WITHIN THE TIME PERIODS SET FORTH IN SECTION 733.702 OF THE FLORIDA PROBATE CODE WILL BE FOREVER BARRED. NOTWITHSTANDING THE TIME PERIODS SET FORTH ABOVE, ANY CLAIM FILED TWO (2) YEARS OR MORE AFTER THE DECEDENT’S DATE OF DEATH IS BARRED.
A personal representative or curator has no duty to discover whether any property held at the time of the decedent’s death by the decedent or the decedent’s surviving spouse is property to which the Florida Uniform Disposition of Community Property Rights at Death Act as described in sections 732.216-732.228, applies, or may apply, unless a written demand is made by a creditor as specified under section 732.2211.
The date of first publication of this notice is October 31, 2024.
Personal Representative: Raelene R. Robertson 13621 O. C. Horne Rd. Sanderson, FL 32087
Attorney for Personal Representative: David B. Ferebee DAVID B. FEREBEE, P.A. Florida Bar No. 347620 P.O. Box 1796 Jacksonville, FL 32201
Telephone: 904-358-7001
Facsimile: 904-746-1481
Address: dbf1law@hotmail.com Oct. 31, Nov. 7 6 (24-06942D)
whether any property held at the time of the decedent’s death by the decedent or the decedent’s surviving spouse is property to which the Florida Uniform Disposition of Community Property Rights at Death Act as described in sections 732.216 – 732.228, Florida Statutes, applies, or may apply, unless a written demand is made by a creditor as specified under section 732.2211, Florida Statutes.
ALL CLAIMS NOT FILED WITHIN THE TIME PERIODS SET FORTH IN FLORIDA STATUTES SECTION 733.702 WILL BE FOREVER BARRED.
NOTWITHSTANDING THE TIME PERIODS SET FORTH ABOVE, ANY CLAIM FILED TWO (2) YEARS OR MORE AFTER THE DECEDENT’S DATE OF DEATH IS BARRED. The date of first publication of this notice is October 31, 20234.
Personal Representative: /s/ George M. Wells George M. Wells 6160 Arlington Expy. Jacksonville, FL 32211
Attorney for
Personal Representative: /s/ Imani A. Boykin, Esq. Imani A. Boykin, Esq., Florida Bar No.: 0017508 6160 Arlington Expressway Jacksonville, FL 32211
Telephone: (904) 632-4836
Fax: (904) 399-8348
E-Mail: Pleadings@BoykinElderLaw.com
E-Mail2: Paralegal@BoykinElderLaw.com Attorney for Petitioner Oct. 31, Nov. 7 6 (24-06949D)
SECOND INSERTION
IN THE CIRCUIT COURT FOR DUVAL COUNTY, FLORIDA PROBATE DIVISION File No. 16-2024-CP-002736
Division: PR-A IN RE: ESTATE OF KENIDES FAUNER ANZOLA MORENO Deceased. NOTICE TO CREDITORS
The administration of the estate of Kenides Fauner Anzola Moreno, deceased, whose date of death was September 2, 2023, is pending in the Circuit Court for Duval County, Florida, Probate Division, the address of which is 501 West Adams Street, Jacksonville, Florida 32202. The names and addresses of the personal representative and the personal representative’s attorney are set forth below.
Attorney for Personal Representative: /s/ D. Grant Leggett, Esq. Florida Bar No.: 37611 Leggett Law Offices 301 W. Bay Street, Suite 1405 Jacksonville, FL 32202 Phone: (904) 281-9102 Fax: (904) 281-9119
Email: grant@leggettlawoffices.com Oct. 31, Nov. 7 6 (24-06927D)
IN THE CIRCUIT COURT FOR DUVAL COUNTY, FLORIDA PROBATE DIVISION File No. 16-2024-CP-002875 Division PR-B IN RE: ESTATE OF LATANYA DENISE HAMILTON A.K.A. LA’TANYA DENISE HAMILTON Deceased. NOTICE TO CREDITORS The administration of the estate of LaTanya Denise Hamilton a.k.a. La’Tanya Denise Hamilton, deceased, whose date of death was July 16, 2024, is pending in the Circuit Court for Duval County, Florida, Probate Division, the address of which is 501 W Adams St, Jacksonville, FL 32202. The names and addresses of the personal representative and the personal representative’s attorney are set forth below. All creditors of the decedent and other persons having claims or demands against decedent’s estate on whom a copy of this notice is required to be served must file their claims with this court ON OR BEFORE THE LATER OF 3 MONTHS AFTER THE TIME OF THE FIRST PUBLICATION OF THIS NOTICE OR 30 DAYS AFTER THE DATE OF SERVICE OF A COPY OF THIS NOTICE ON THEM. The personal representative has no duty to discover whether any property held at the time of the decedent’s death by the decedent or the decedent’s surviving spouse is property to which the Florida Uniform Disposition of Community Property Rights at Death Act as described in ss. 732.216-
All creditors of the decedent and other persons having claims or demands against decedent’s estate on whom a copy of this notice is required to be served must file their claims with this court ON OR BEFORE THE LATER OF 3 MONTHS AFTER THE TIME OF THE FIRST PUBLICATION OF THIS NOTICE OR 30 DAYS AFTER THE DATE OF SERVICE OF A COPY OF THIS NOTICE ON THEM. All other creditors of the decedent and other persons having claims or demands against decedent’s estate must file their claims with this court WITHIN 3 MONTHS AFTER THE DATE OF THE FIRST PUBLICATION OF THIS NOTICE. ALL CLAIMS NOT FILED WITHIN THE TIME PERIODS SET FORTH IN FLORIDA STATUTES SECTION 733.702 WILL BE FOREVER BARRED. NOTWITHSTANDING THE TIME PERIODS SET FORTH ABOVE, ANY CLAIM FILED TWO (2) YEARS OR MORE AFTER THE DECEDENT’S DATE OF DEATH IS BARRED. The personal representative has no duty to discover whether any property held at the time of the decedent’s death by the decedent or the decedent’s surviving spouse is property to which the Florida Uniform Disposition of Community Property Rights at Death Act as described in ss. 732.216732.228, Florida Statutes, applies, or may apply, unless a written demand is made by a creditor as specified under s. 732.2211, Florida Statutes. The date of first publication of this notice is October 31, 2024. Personal Representative: Sara Ines Anzola Moreno Attorney for Personal Representative: Gerald W. Weedon E-mail Addresses: gweedon@marksgray.com, breeves@marksgray.com Florida Bar No. 231819 Marks Gray, P.A. 1200 Riverplace Blvd., Ste. 800 Jacksonville, Florida 32207 Telephone: (904) 398-0900 Oct. 31, Nov. 7 6 (24-06906D)
732.228, Florida Statutes, applies, or may apply, unless a written demand is made by a creditor as specified under s. 732.2211, Florida Statutes. All other creditors of the decedent and other persons having claims or demands against decedent’s estate must file their claims with this court WITHIN 3 MONTHS AFTER THE DATE OF THE FIRST PUBLICATION OF THIS NOTICE. ALL CLAIMS NOT FILED WITHIN THE TIME PERIODS SET FORTH IN FLORIDA STATUTES SECTION 733.702 WILL BE FOREVER BARRED. NOTWITHSTANDING THE TIME PERIODS SET FORTH ABOVE, ANY CLAIM FILED TWO (2) YEARS OR MORE AFTER THE DECEDENT’S DATE OF DEATH IS BARRED. The date of first publication of this notice is October 31, 2024. Personal Representative: Cynthia Hamilton 1034 Oakland Hills Ave Middleburg, Florida 32068
Attorney for Personal Representative: Jahlysa S. Jenkins, Esq. Attorney Florida Bar Number: 119406
SERMONS LAW, PLLC 1543 Kingsley Avenue, Suite 18-B Orange Park, FL 32073 Telephone: (904) 541-6492
IN THE COUNTY COURT, FOURTH JUDICIAL CIRCUIT, IN AND FOR, DUVAL COUNTY, FLORIDA
CASE NO.: 16-2023-CC-018851
DIVISION: CC-H
PARKER PLACE HOMEOWNERS ASSOCIATION OF DUVAL COUNTY, INC. Plaintiff, vs. JAYMIEON COX AND ASHLEE C. COX Defendants.
NOTICE OF ACTION
TO: Jaymieon Cox
YOU ARE NOTIFIED that the above-styled action to foreclose the lien on the following described property in Duval County, Florida: PARKER PLACE, according to the plat thereof as recorded in Plat Book 57, Pages 67, 67A through 67J, inclusive, of the Public Records of Duval County, Florida. Property Address: 2214 Mission Creek Court , Jacksonville, FL 32218 has been filed against you and you are required to serve a copy of your written defenses, if any, to it on Crabtree Law Group, P.A., 8777 San Jose Boulevard, Building A, Suite 200, Jacksonville, Florida 32217, (Phone Number: (904)7329701; Email: cwb@crabtreefirm. com), Plaintiff’s attorney within thirty (30) days after the first publication of this notice and file the original with the Clerk of this
court either before service on Plaintiff’s attorney or immediately thereafter; otherwise a default will be entered against you for the relief demanded in the complaint. This notice shall be published once a week for two consecutive weeks in the Jacksonville Daily Record.
Americans With Disabilities Act (ADA) Notice In accordance with the Americans with Disabilities Act of 1990 (ADA), If you are a person with a disability who needs any accommodation in order to participate in this proceeding, you are entitled at no cost to you, to the provision of certain assistance. Please contact the ADA Coordinator at crtintrp@coj.net or (904) 2551695 at least 7 days before your scheduled court appearance, or immediately upon receiving this notification if the time before the scheduled appearance is less than 7 days; if you are hearing or voice impaired, call 711. DATED on 25th day of October, 2024.
JODY PHILLIPS CLERK OF COUNTY COURT
By: Michael Wheeler Deputy Clerk (Court Seal) Crabtree Law Group, P.A. 8777 San Jose Boulevard Building A, Suite 200 Jacksonville, Florida 32217 ems@crabtreefirm.com
Attorney for Plaintiff Oct. 31, Nov. 7 5 (24-06931D)
IN THE CIRCUIT COURT FOR DUVAL COUNTY, FLORIDA PROBATE DIVISION
File No. 16-2024-CP-002519
Division PR-B IN RE: ESTATE OF CAROL ANN WATERS a/k/a CAROL ANN KAHLER WATERS
Deceased. NOTICE TO CREDITORS
The administration of the estate of CAROL ANN WATERS a/k/a CAROL ANN KAHLER WATERS, deceased, whose date of death was August 17, 2024, is pending in the Circuit Court for DUVAL County, Florida, Probate Division, the address of which is 501 W. Adams Street, Jacksonville, FL 32202. The names and addresses of the personal representative and the personal representative’s attorney are set forth below.
A personal representative or curator has no duty to discover whether any property held at the time of the decedent’s death by the decedent or the decedent’s surviving spouse is property to which the Florida Uniform Disposition of Community Property Rights at Death Act as described in sections 732.216-732.228, applies, or may apply, unless a written demand is made by a creditor as specified under section 732.2211. All creditors of the decedent and other persons having claims or demands against decedent’s estate on whom a copy of this notice is required to be served must file their claims with this court ON OR BEFORE THE LATER OF
3 MONTHS AFTER THE TIME OF THE FIRST PUBLICATION OF THIS NOTICE OR 30 DAYS AFTER THE DATE OF SERVICE OF A COPY OF THIS NOTICE ON THEM. All other creditors of the decedent and other persons having claims or demands against decedent’s estate must file their claims with this court WITHIN 3 MONTHS AFTER THE DATE OF THE FIRST PUBLICATION OF THIS NOTICE. ALL CLAIMS NOT FILED WITHIN THE TIME PERIODS SET FORTH IN FLORIDA STATUTES SECTION 733.702 WILL BE FOREVER BARRED. NOTWITHSTANDING THE TIME PERIODS SET FORTH ABOVE, ANY CLAIM FILED TWO (2) YEARS OR MORE AFTER THE DECEDENT’S DATE OF DEATH IS BARRED. The date of first publication of this notice is October 31, 2024.
Personal Representative: George C. Kahler, Petitioner 2782 Oak St. Jacksonville, FL 32205
Attorney for Personal Representative: Electronically signed by: /s/ D. Craig Calley D. Craig Calley, Esq. Attorney Florida Bar Number: 0990991 David Craig Calley, P.A. 2518 Park Street Jacksonville, Florida 32204 Telephone: (904) 388-4567 Fax: (904) 388-3887 E-Mail: ccalley@calleylaw.com Oct. 31, Nov. 7 5 (24-06930D)
SECOND INSERTION
IN THE CIRCUIT COURT OF THE FOURTH JUDICIAL CIRCUIT IN AND FOR DUVAL COUNTY, FLORIDA GENERAL JURISDICTION DIVISION CASE NO. 16-2024-CA-005473 DIVISION FC-E FINANCE OF AMERICA REVERSE LLC, Plaintiff, vs. THE UNKNOWN HEIRS, BENEFICIARIES, DEVISEES, GRANTEES, ASSIGNEES, LIENORS, CREDITORS, TRUSTEES AND ALL OTHERS WHO MAY CLAIM AN INTEREST IN THE ESTATE OF KIA HALL, DECEASED, et. al. Defendant(s), NOTICE OF ACTIONCONSTRUCTIVE SERVICE TO: THE UNKNOWN HEIRS, BENEFICIARIES, DEVISEES, GRANTEES, ASSIGNEES, LIENORS, CREDITORS, TRUSTEES AND ALL OTHERS WHO MAY CLAIM AN INTEREST IN THE ESTATE OF KIA HALL, DECEASED, whose residence is unknown if he/she/they be living; and if he/she/they be dead, the unknown defendants who may be spouses, heirs, devisees, grantees, assignees, lienors, creditors, trustees, and all parties claiming an interest by, through, under or against the Defendants, who are not known to be dead or alive, and all parties having or claiming to have any right, title or interest in the property described in the mortgage being foreclosed
IN THE CIRCUIT COURT OF DUVAL COUNTY, FLORIDA
PROBATE DIVISION
FILE NO. 16-2024-CP-002567
DIVISION PR-B IN RE: ESTATE OF SHARON PHILIPPE, DECEASED. NOTICE TO CREDITORS
The administration of the Estate of Sharon Philippe, deceased, whose date of death was April 2, 2024, is pending in the Circuit Court for Duval County, Florida, Probate Division, the address of which is 501 West Adams Street, Jacksonville, Florida 32202. The names and addresses of the Personal Representative and the Personal Representative’s attorney are set forth below.
All creditors of the Decedent and other persons having claims or demands against Decedent’s estate on whom a copy of this Notice is required to be served must file their claims with this court ON OR BEFORE THE LATER OF 3 MONTHS AFTER THE TIME OF THE FIRST PUBLICATION OF THIS NOTICE OR 30 DAYS AFTER THE DATE OF SERVICE OF A COPY OF THIS NOTICE ON THEM.
All other creditors of the Decedent and other persons having claims or demands against Decedent’s estate must file their claims with this court WITHIN 3 MONTHS AFTER THE DATE OF THE FIRST PUBLICATION OF THIS NOTICE. ALL CLAIMS NOT FILED WITHIN THE TIME PERIODS SET FORTH IN FLORIDA STATUTES SECTION 733.702 WILL BE FOREVER BARRED. NOTWITHSTANDING THE TIME PERIODS SET FORTH ABOVE, ANY CLAIM FILED TWO (2) YEARS OR MORE AFTER THE DECEDENT’S DATE OF DEATH IS BARRED.
A personal representative or curator has no duty to discover whether any property held at the time of the decedent’s death by the decedent or the decedent’s surviving spouse is property to which the Florida Uniform Disposition of Community Property Rights at Death Act as described in sections 732.216-732.228, applies, or may apply, unless a written demand is made by a creditor as specified under section 732.2211.
The date of first publication of this notice is October 31, 2024.
Personal Representative: Heather Carbone
Attorney for Personal Representative: Jaime Council Florida Bar Number: 0015951 Fisher, Tousey, Leas & Ball, P.A. 701 Market Street, Unit 109 St. Augustine, Florida 32095 Telephone: (904) 819-6959
E-Mail: jaimecouncil@fishertousey.com Secondary E-Mail: dab@fishertousey.com Oct. 31, Nov. 7 5 (24-06923D)
herein. YOU ARE HEREBY NOTIFIED that an action to foreclose a mortgage on the following property: LOT 16, BLOCK 1, HOLMESDALE - UNIT NO. 2 S/D PT LOT 3 PICKETT S/D, ACCORDING TO THE MAP OR PLAT THEREOF, AS RECORDED IN PLAT BOOK 21, PAGE(S) 46, OF THE PUBLIC RECORDS OF DUVAL COUNTY, FLORIDA. has been filed against you and you are required to serve a copy of your written defenses, if any, to it on counsel for Plaintiff, whose address is 6409 Congress Ave., Suite 100, Boca Raton, Florida 33487 on or before 30 days from Date of First Publication of this Notice and file the original with the clerk of this court either before service on Plaintiff’s attorney or immediately thereafter; otherwise a default will be entered against you for the relief demanded in the complaint or petition filed herein. WITNESS my hand and the seal of this Court at County, Florida, this 25th day of October, 2024. JODY PHILLIPS CLERK OF THE CIRCUIT COURT
By: Alice V. Griffin DEPUTY CLERK (Court Seal) Robertson, Anschutz, Schneid, Crane & Partners, PLLC 6409 Congress Ave., Suite 100 Boca Raton, FL 33487
PRIMARY EMAIL: flmail@raslg.com 24-238913 Oct. 31, Nov. 7 5 (24-06933D)
SECOND INSERTION IN THE CIRCUIT COURT OF THE FOURTH CIRCUIT IN AND FOR DUVAL COUNTY, FLORIDA PROBATE DIVISION File No. 16-2024-CP-002220 Division: PR-A IN RE: ESTATE OF EDWARD B. SPRINKLE Deceased. NOTICE TO CREDITORS
If you have been served with a copy of this notice and you have any claim or demand against the decedents’ estate, even if that claim is unmatured, contingent, or unliquidated, you must file your claim with the court ON OR BEFORE THE LATER OF A DATE THAT IS 3 MONTHS AFTER THE FIRST PUBLICATION OF THIS NOTICE OR 30 DAYS AFTER YOU RECEIVE A COPY OF THIS NOTICE.
All other creditors of the decedent and other persons who have claims or demands against the decedent’s estate, including unmatured, contingent, or unliquidated claims, must file their claims with the court, ON OR BEFORE THE DATE THAT IS 3 MONTHS AFTER THE FIRST PUBLICATION OF THIS NOTICE.
ALL CLAIMS NOT FILED WITHIN THE PERIOD SET FORTH IN SECTION 733.702, FLORIDA STATUTES, WILL BE FOREVER BARRED.
EVEN IF A CLAIM IS NOT BARRED BY THE LIMITATIONS DESCRIBED ABOVE, ALL CLAIMS THAT HAVE NOT BEEN FILED WILL BE BARRED TWO YEARS AFTER DECEDENT’S DEATH.
The case number and decedent’s name are: EDWARD B. SPRINKLE, File Number 16-2024-CP002220.
The address of the court where this probate is pending is: Circuit Court for Duval County, Florida, 501 W. Adams St. Rm: 7062, Jacksonville, FL, 32202.
A Personal Representative or curator has no duty to discover whether any property held at the time of the decedent’s death by the decedent or the decedent’s surviving spouse is property to which the Florida Uniform Disposition of Community Property Rights at Death Act as described in ss. 732.216-732.228, applies, or may apply, unless a written demand is made by a creditor as specified under s. 732.2211.
Date of death of the decedent is: July 7th, 2024.
The date of first publication of this notice is: October 31, 2024
The second week of publication is November 7, 2024 Personal Representative(s): Suzanne Fenton. Attorney for the representative(s): By: /s/Matthew T. Morrison Matthew T. Morrison, Esquire Florida Bar No. 1005203 5121 S. Lakeland Dr, Suite 2 Lakeland, Florida 33813 Oct. 31, Nov. 7 5 (24-06897D)
IN THE CIRCUIT COURT IN AND FOR DUVAL COUNTY, FLORIDA
PROBATE DIVISION FILE NO.: 16-2024-CP-002850
DIVISION: PR-A IN RE: ESTATE OF TERRY LEE WATKINS, DECEASED.
NOTICE TO CREDITORS
The administration of the estate of Terry Lee Watkins, deceased, whose date of death was August 20, 2024, is pending in the Circuit Court for Duval County, Florida, Probate Division, the address of which is 501 W. Adams Street, Jacksonville, FL 32202. The names and addresses of the personal representative and the personal representative’s attorney are set forth below.
All creditors of the decedent and other persons having claims or demands against decedent’s estate on whom a copy of this notice is required to be served must file their claims with this Court ON OR BEFORE THE LATER OF 3 MONTHS AFTER THE TIME OF THE FIRST PUBLICATION OF THIS NOTICE OR 30 DAYS AFTER THE DATE OF SERVICE OF A COPY OF THIS NOTICE ON THEM.
All other creditors of the decedent and other persons having claims or demand against decedent’s estate must file their claims with this Court WITHIN 3 MONTHS AFTER THE DATE OF THE FIRST PUBLICATION OF THIS NOTICE.
A personal representative or curator has no duty to discover whether any property held at the
IN THE COUNTY COURT OF THE FOURTH JUDICIAL CIRCUIT IN & FOR DUVAL COUNTY, FLORIDA CASE NO.: 16-2024-CC-002415
DIVISION: CC-M RENOVO SERVICES, INC., d/b/a SERVPRO OF ARLINGTON/JACKSONVILLE EAST and SERVPRO OF JACKSONVILLE WESTSIDE/ORANGE PARK, a Florida Corporation. Plaintiff, vs. RIVER REGION HUMAN SERVICES, INC., a Florida Not-ForProfit Corporation, Defendant.
NOTICE OF FORECLOSURE SALE NOTICE IS HEREBY GIVEN that, in accordance with the Amended Final Judgment dated October 22, 2024, and entered in Case No. 16-2024-CC-002415, in the County Court of the Fourth Judicial Circuit in and for Duval County, Florida, wherein RENOVO SERVICES, INC. is the Plaintiff, and RIVER REGION HUMAN SERVICES, INC. is the Defendant, the Clerk of the Circuit Court will sell the following described property to the highest and best bidder for cash via electronic sale at: www.duval.realforeclose.com in accordance with Chapter 45, Florida Statutes, beginning at 11:00 A.M. on December 18, 2024: A part of the Francis Richard Grant, Section 56, Township 3 South, Range 27 East, Duval County, Florida, being more precisely described as follows: For a point of reference, commence at the Northwest corner of Lot 1, Yvonne Park, as shown on plat recorded in Plat Book 21, Page 57, of the current Public Records of said County; thence North 08°30’00” East, along the East right of way line of Parental Home Road (a 66 foot right of way), a distance of 410.68 feet, to the Northerly property line of property leased to the Youth Crisis Center, unrecorded and the Point of Beginning; thence continue North 08°30’00”
IN THE CIRCUIT COURT OF THE FOURTH JUDICIAL CIRCUIT IN AND FOR DUVAL COUNTY, FLORIDA GENERAL JURISDICTION DIVISION CASE NO. 16-2024-CA-004185
DIVISION FC-E
East, along said right of way line, a distance of 365.29 feet; thence South 85°25’42” East, a distance of 435.72 feet; thence South 04°14’18” West, a distance of 43.83 feet; thence South 06°49’54” West, a distance of 348.11 feet to the Northerly property line of property leased to said Youth Crisis Center; thence North 80°26’35” West, along said Northerly property line, a distance of 403.41 feet; thence South 84°47’34” West, a distance of 46.07 feet to the Point of Beginning.
A/k/a: 2981 Parental Home Road, Jacksonville, Florida 32216. ANY PERSON CLAIMING AN INTEREST IN THE SURPLUS FROM THE SALE, IF ANY, OTHER THAT THE PROPERTY OWNER AS OF THE DATE OF THE LIS PENDENS, MUST FILE A CLAIM IN ACCORDANCE WITH FLORIDA STATUTES, SECTION 45.031. Americans with Disabilities (ADA) Notice In accordance with the Americans with Disabilities Act of 1990 (ADA), if you are a person with a disability who needs any accommodation in order to participate in this proceeding, you are entitled, at no cost to you, to the provision of certain assistance. Please contact the ADA Coordinator at (904) 255-1695 or crtintrp@coj.net at least 7 days before your scheduled court appearance, or immediately upon receiving this notification if the time before the scheduled appearance is less than 7 days; if you are hearing or voice impaired, call 711. Dated this 25th day of October, 2024.
JODY PHILLIPS As Clerk of the Court By: Michael Wheeler Deputy Clerk (Court Seal) Tritt
time of the decedent’s death by the decedent or the decedent’s surviving spouse is property to which the Florida Uniform Disposition of Community Property Rights at Death Act, as described in Sections 732.216-732.228, applies, or may apply unless a written demand is made by a creditor as specified under Section 732.2211.
ALL CLAIMS NOT FILED WITHIN THE TIME PERIODS SET FORTH IN FLORIDA STATUTES SECTION 733.702 WILL BE FOREVER BARRED.
NOTWITHSTANDING THE TIME PERIODS SET FORTH ABOVE, ANY CLAIM FILED TWO (2) YEARS OR MORE AFTER THE DECEDENT’S DEATH IS BARRED.
The date of first publication of this notice is October 31, 204.
Personal Representative: Michael R. Watkins c/o Berg Bryant Elder Law Group, PLLC 7545 Centurion Parkway, Suite 108 Jacksonville, FL 32256
Attorney for Personal Representative: Carla Trinca-Conley, Esq. Florida Bar No.: 119618 ctrincaconley@bbelderlaw.com Madeline A. Franson, Esq. Florida Bar No.: 1049246 mfranson@bbelderlaw.com BERG BRYANT ELDER LAW GROUP 7545 Centurion Parkway, Suite 108 Jacksonville, FL 32256 (904) 398-6100 Oct. 31, Nov. 7 5 (24-06924D)
PHH MORTGAGE CORPORATION, Plaintiff, vs. THE UNKNOWN HEIRS, BENEFICIARIES, DEVISEES, GRANTEES, ASSIGNEES, LIENORS, CREDITORS, TRUSTEES AND ALL OTHERS WHO MAY CLAIM AN INTEREST IN THE ESTATE OF BETTY H. JONES A/K/A BETTY JONES, DECEASED, et. al. Defendant(s), NOTICE OF ACTIONCONSTRUCTIVE SERVICE TO: THE UNKNOWN HEIRS, BENEFICIARIES, DEVISEES, GRANTEES, ASSIGNEES, LIENORS, CREDITORS, TRUSTEES AND ALL OTHERS WHO MAY CLAIM AN INTEREST IN THE ESTATE OF BETTY H. JONES A/K/A BETTY JONES, DECEASED, THE UNKNOWN HEIRS, BENEFICIARIES, DEVISEES, GRANTEES, ASSIGNEES, LIENORS, CREDITORS, TRUSTEES AND ALL OTHERS WHO MAY CLAIM AN INTEREST IN THE ESTATE OF CHAUNCEY RICARDO HIGGINBOTHAM, DECEASED, THE UNKNOWN HEIRS, BENEFICIARIES, DEVISEES, GRANTEES, ASSIGNEES, LIENORS, CREDITORS, TRUSTEES AND ALL OTHERS WHO MAY CLAIM AN INTEREST IN THE ESTATE OF BURNELL ANDREW HOLMES, DECEASED, THE UNKNOWN HEIRS, BENEFICIARIES, DEVISEES, GRANTEES, ASSIGNEES, LIENORS, CREDITORS, TRUSTEES AND ALL OTHERS WHO MAY CLAIM AN INTEREST IN THE ESTATE OF DENISE MARDELL HOLMES, DECEASED, whose residence is unknown if he/she/they be living; and if he/she/they be dead,
the unknown defendants who may be spouses, heirs, devisees, grantees, assignees, lienors, creditors, trustees, and all parties claiming an interest by, through, under or against the Defendants, who are not known to be dead or alive, and all parties having or claiming to have any right, title or interest in the property described in the mortgage being foreclosed herein.
TO: LACY L. HOLMES, NAKKIA HOLMES, whose residence is unknown and all parties having or claiming to have any right, title or interest in the property described in the mortgage being foreclosed herein. YOU ARE HEREBY NOTIFIED that an action to foreclose a mortgage on the following property: THE NORTH 66 FEET OF THE SOUTH 131 FEET OF THE EAST 100 FEET OF LOT 8, BLOCK 4, SPRINGROVE GARDENS, ACCORDING TO THE PLAT THEREOF RECORDED IN PLAT BOOK 18, PAGE 27, OF THE PUBLIC RECORDS OF DUVAL COUNTY, FLORIDA. has been filed against you and you are required to serve a copy of your written defenses, if any, to it on counsel for Plaintiff, whose address is 6409 Congress Ave., Suite 100, Boca Raton, Florida 33487 on or before 30 days from Date of First Publication of this Notice and file the original with the clerk of this court either before service on Plaintiff’s attorney or immediately thereafter; otherwise a default will be entered against you for the relief demanded in the complaint or petition filed herein. WITNESS my hand and the seal of this Court at County, Florida, this 25th day of October, 2024. JODY PHILLIPS CLERK OF THE CIRCUIT
IN THE CIRCUIT COURT, FOURTH JUDICIAL CIRCUIT, IN AND FOR DUVAL COUNTY, FLORIDA
PROBATE DIVISION
CASE NO.: 16-2024-CP-003056
DIVISION: PR-A
IN RE THE ESTATE OF AUGUST HUBBARD, Deceased.
NOTICE TO CREDITORS
The Estate of AUGUST HUBBARD, deceased, Case Number 16-2024-CP-003056, has been summarily administered in the Circuit Court for Duval County, Florida, Probate Division, the address of which is 501 West Adams Street, Jacksonville, Florida 32202. The names and addresses of the petitioners and petitioners’ attorney are set forth below. ALL INTERESTED PERSONS ARE NOTIFIED THAT:
The total value of this estate is $180,231.00 of which $180,231.00 is exempt as homestead real property and exempt personal property valued less than $10,000.00. The names and addresses of the heirs of the estate are:
Chris Chaillet, 812 West Mount Harmony Road, Owings, MD 20736 Jeremiah Hubbard, 28822 Hoffman Road, Marston, NC 28363
All creditors of the decedent and other persons having claims or demands against decedent’s estate, including unmatured, contingent or unliquidated claims, on whom a copy of this notice is served must file their claims with this court WITHIN THE LATER OF THREE (3) MONTHS AFTER THE DATE OF THE FIRST PUBLICATION OF THIS NOTICE OR THIRTY (30) DAYS AFTER THE DATE OF SERVICE OF A COPY OF THIS NOTICE
ON THEM. All other creditors of the decedent and persons having claims or demands against the decedent’s estate, including unmatured, contingent or unliquidated claims, must file their claims with this court WITHIN THREE MONTHS AFTER THE DATE OF THE FIRST PUBLICATION OF THIS NOTICE. IN NO EVENT SHALL ANY CLAIM BE FILED LATER THAN TWO YEARS AFTER THE DECEDANT’S DATE OF DEATH. ALL CLAIMS AND DEMANDS NOT SO FILED WILL BE FOREVER BARRED.
A personal representative or curator has no duty to discover whether any property held at the time of the decedent’s death by the decedent or the decedent’s surviving spouse is property to which the Florida Uniform Disposition of Community Property Rights at Death Act as described in sections 732.216-732.228, applies, or may apply, unless a written demand is made by a creditor as specified under section 732.2211. The date of the decedent’s death is December 11, 2023.
The date of first publication of this notice is October 31, 2024. Chris Chaillet, Petitioner 812 West Mount Harmony Road Owings, MD 20736
Jeremiah Hubbard, Petitioner 28822 Hoffman Road Marston, NC 28363
William S. Frazier, Esquire 1919 Blanding Blvd., Ste. 8 Jacksonville, Fla. 32210
Telephone: 904/384-1441
Facsimile: 904/384-4868
Fla. Bar 0080373
Attorneys for Petitioners Oct. 31, Nov. 7 4 (24-06890D)
IN THE CIRCUIT COURT OF THE 4TH JUDICIAL CIRCUIT IN AND FOR DUVAL COUNTY, FLORIDA CASE NO.: 16-2024-CA-001222
DIVISION: FC-B
THE BANK OF NEW YORK
MELLON TRUST COMPANY, NATIONAL ASSOCIATION FKA THE BANK OF NEW YORK TRUST COMPANY, N.A. AS SUCCESSOR TO JPMORGAN CHASE BANK, AS TRUSTEE FOR RESIDENTIAL ASSET SECURITIES CORPORATION, HOME EQUITY MORTGAGE ASSET-BACKED PASS THROUGH CERTI, Plaintiff, vs. ORA L. MIDDLETON A/K/A ORA MIDDLETON; AMERICAN GENERAL HOME EQUITY, INC.; THOMAS BATES, JR.; UNKNOWN SPOUSE OF THOMAS BATES, JR.; CARLOS BATES; UNKNOWN SPOUSE OF CARLOS BATES; CORDARYL BATES; UNKNOWN SPOUSE OF CORDARYL BATES; DEMETRIOUS BATES; UNKNOWN SPOUSE OF DEMETRIOUS BATES, Defendant(s).
NOTICE OF ACTION TO: Thomas Bates, Jr. Residence Unknown Unknown Spouse of Thomas Bates, Jr. Residence Unknown YOU ARE NOTIFIED that an action to foreclose a mortgage on the following described property in Duval County, Florida: A PORTION OF LOT 11, BLOCK “J” LONG BRANCH AS RECORDED IN DEED BOOK “AH” AT PAGE 526 AND 527, MORE PARTICULARLY DESCRIBED AS FOLLOWS: FOR A POINT OF REFERENCE COMMENCE AT A PERMANENT REFERENCE MONUMENT LOCATED AT THE INTERSECTION OF THE WEST SIDE OF LIBERTY STREET AND THE NORTH SIDE OF EAST TWENTY-FIRST STREET, JACKSONVILLE, FLORIDA, AND RUN THENCE WEST ALONG THE NORTH SIDE OF THE SAID TWENTY-FIRST STREET, A DISTANCE OF 88.3 FEET FOR A POINT OF BEGINNING THIS DESCRIBED: THENCE RUN NORTH AT RIGHT ANGLES TO THE NORTH SIDE OF EAST
TWENTY-FIRST STREET, A DISTANCE OF 105 FEET TO THE SOUTH LINE OF LOT 2, BLOCK 3, OF SPRINGFIELD MANOR, ACCORDING TO PLAT
SECOND INSERTION
IN THE CIRCUIT COURT FOR DUVAL COUNTY, FLORIDA PROBATE DIVISION
File No. 16-2024-CP-002955
Division PR-B IN RE: ESTATE OF GLORIA V. SANTARE
Deceased.
NOTICE TO CREDITORS
The administration of the estate of Gloria V. Santare, deceased, whose date of death was September 13, 2024, is pending in the Circuit Court for Duval County, Florida, Probate Division, the address of which is 501 West Adams Street, Jacksonville, Florida 32202. The names and addresses of the personal representative and the personal representative’s attorney are set forth below.
All creditors of the decedent and other persons having claims or demands against decedent’s estate on whom a copy of this notice is required to be served must file their claims with this court ON OR BEFORE THE LATER OF 3 MONTHS AFTER THE TIME OF THE FIRST PUBLICATION OF THIS NOTICE OR 30 DAYS AFTER THE DATE OF SERVICE OF A COPY OF THIS NOTICE ON THEM.
The personal representative has no duty to discover whether any property held at the time of the decedent’s death by the decedent or the decedent’s surviving spouse is property to which the Florida Uniform Disposition of Community Property Rights at Death Act as described in ss. 732.216732.228, Florida Statutes, applies, or may apply, unless a written demand is made by a creditor as specified under s. 732.2211, Florida Statutes.
SECOND INSERTION
IN THE CIRCUIT COURT FOR DUVAL COUNTY, FLORIDA PROBATE DIVISION
File No.: 16-2024-CP-002823
Division: PR-B IN RE: ESTATE OF NORA LEE FARACE, Deceased.
NOTICE TO CREDITORS
The administration of the estate of Nora Lee Farace, deceased, whose date of death was July 10, 2024, is pending in the Circuit Court for Duval County, Florida, Probate Division, the address of which is 501 West Adams Street, Jacksonville, FL 32202. The names and addresses of the personal representative and the personal representative’s attorney are set forth below.
All creditors of the decedent and other persons having claims or demands against decedent’s estate on whom a copy of this notice is required to be served must file their claims with this court ON OR BEFORE THE LATER OF 3 MONTHS AFTER THE TIME OF THE FIRST PUBLICATION OF THIS NOTICE OR 30 DAYS AFTER THE DATE OF SERVICE OF A COPY OF THIS NOTICE ON THEM.
The personal representative has no duty to discover whether any property held at the time of the decedent’s death by the decedent or the decedent’s surviving spouse is property to which the Florida Uniform Disposition of Community Property Rights at Death Act as described in ss. 732.216732.228, Florida Statutes, applies, or may apply, unless a written demand is made by a creditor as specified under s. 732.2211, Florida Statutes.
THEREOF RECORDED IN PLAT BOOK 17, AT PAGE 45, OF THE CURRENT PUBLIC RECORDS OF DUVAL COUNTY, FLORIDA, AND RUN THENCE WEST ALONG THE SOUTH LINE OF LOT 2, AND ALONG THE SOUTH LINE OF LOT 3 IN BLOCK 3, A DISTANCE OF 55 FEET TO A POINT; THENCE RUN SOUTH AT RIGHT ANGLES TO EAST TWENTY-FIRST STREET, A DISTANCE OF 105 FEET TO A POINT IN THE NORTH SIDE OF EAST TWENTY-FIRST STREET; AND RUN THENCE EAST ALONG THE NORTH SIDE OF EAST TWENTY-FIRST STREET, A DISTANCE OF 55 FEET TO A POINT OF BEGINNING. FOR THE PURPOSE OF THE ABOVE DESCRIPTION, THE BEARING OF EAST TWENTY-FIRST STREET WAS ASSUMED TO BE DUE EAST.
Street Address: 245 East 21st Street, Jacksonville, Florida 32206 has been filed against you and you are required to serve a copy of your written defenses, if any, to it on McCabe, Weisberg & Conway, LLC, Plaintiff’s attorney, whose address is 3222 Commerce Place, Suite A, West Palm Beach, FL 33407, within 30 days after the date of the first publication of this notice and file the original with the Clerk of this Court, otherwise, a default will be entered against you for the relief demanded in the complaint or petition. Americans With Disabilities Act (ADA) Notice In accordance with the Americans with Disabilities Act of 1990 (ADA), If you are a person with a disability who needs any accommodation in order to participate in this proceeding, you are entitled at no cost to you, to the provision of certain assistance. Please contact the ADA Coordinator at crtintrp@coj.net or (904) 2551695 at least 7 days before your scheduled court appearance, or immediately upon receiving this notification if the time before the scheduled appearance is less than 7 days; if you are hearing or voice impaired, call 711. Dated on October 24, 2024. JODY PHILLIPS Clerk of said Court By: Pamela R. Harrell As Deputy Clerk (Court Seal) McCabe, Weisberg & Conway, LLC
3222 Commerce Place, Suite A West Palm Beach, FL 33407
Telephone: (561) 713-1400 FLpleadings@MWC-law.com Oct. 31, Nov. 7 4 (24-06914D)
All other creditors of the decedent and other persons having claims or demands against decedent’s estate must file their claims with this court WITHIN 3 MONTHS AFTER THE DATE OF THE FIRST PUBLICATION OF THIS NOTICE. ALL CLAIMS NOT FILED WITHIN THE TIME PERIODS SET FORTH IN FLORIDA STATUTES SECTION 733.702 WILL BE FOREVER BARRED. NOTWITHSTANDING THE TIME PERIODS SET FORTH ABOVE, ANY CLAIM FILED TWO (2) YEARS OR MORE AFTER THE DECEDENT’S DATE OF DEATH IS BARRED.
The date of first publication of this notice is October 31, 2024.
Personal Representative: Leo C. Santare 14 Blue Jay Hill Road Westampton, New Jersey 08060
Attorney for Personal Representative:
David Goldman
Attorney
Florida Bar Number: 39008
LAW OFFICE OF DAVID M. GOLDMAN PLLC 4115 Hendricks Avenue Jacksonville, Florida 32207 Telephone: (904) 990-8000 Fax: (904) 875-4081
E-Mail: dgoldman@ jacksonvillelawyer.pro
Secondary E-Mail: jwheat@jacksonvillelawyer.pro Oct. 31, Nov. 7 4 (24-06922D)
IN THE CIRCUIT COURT OF THE FOURTH JUDICIAL CIRCUIT, IN AND FOR DUVAL COUNTY, FLORIDA. CASE No. 16-2023-CA-008608
DIVISION: FC-B
DEUTSCHE BANK NATIONAL TRUST COMPANY, AS TRUSTEE OF VENDEE MORTGAGE TRUST 1993-2 , PLAINTIFF, VS. THE UNKNOWN HEIRS, BENEFICIARIES, DEVISEES, GRANTEES, ASSIGNORS, CREDITORS AND TRUSTEES OF THE ESTATE OF JAMES STEWART, JR. A/K/A JAMES STEWART (DECEASED), ET AL. DEFENDANT(S). NOTICE OF FORECLOSURE SALE #20286
NOTICE IS HEREBY GIVEN pursuant to the Final Judgment of Foreclosure dated July 16, 2024, in the above action, I will sell to the highest bidder for cash at Duval County, Florida, on December 23, 2024, at 11:00 AM, at: www.duval.realforeclose.com for the following described property: LOT “A”, BLOCK 13, NORTH SHORE, ACCORDING TO PLAT THEREOF AS RECORDED IN PLAT BOOK 8, PAGE 29 OF THE CURRENT PUBLIC RECORDS OF DUVAL COUNTY, FLORIDA, AND LOT 1, BLOCK 13, FIRST ADDITION TO PANAMA TERRACE, ACCORDING TO PLAT THEREOF AS
SECOND INSERTION
IN THE CIRCUIT COURT FOR DUVAL COUNTY, FLORIDA PROBATE DIVISION
File No. 16-2024-CP-002888
Division. PR-A IN RE: ESTATE OF FELESHA M. CRAWFORD Deceased.
NOTICE TO CREDITORS
The administration of the estate of Felesha M. Crawford, deceased, whose date of death was September 2, 2024, is pending in the Circuit Court for Duval County, Florida, Probate Division, the address of which is 501 W. Adams Street, Jacksonville, FL 32202. The names and addresses of the personal representative and the personal representative’s attorney are set forth below. All creditors of the decedent and other persons having claims or demands against decedent’s estate on whom a copy of this notice is required to be served must file their claims with this court ON OR BEFORE THE LATER OF 3 MONTHS AFTER THE TIME OF THE FIRST PUBLICATION OF THIS NOTICE OR 30 DAYS AFTER THE DATE OF SERVICE OF A COPY OF THIS NOTICE ON THEM.
The personal representative has no duty to discover whether any property held at the time of the decedent’s death by the decedent or the decedent’s surviving spouse is property to which the Florida Uniform Disposition of Community Property Rights at Death Act as described in ss. 732.216732.228, Florida Statutes, applies,
All other creditors of the decedent and other persons having claims or demands against decedent’s estate must file their claims with this court WITHIN 3 MONTHS AFTER THE DATE OF THE FIRST PUBLICATION OF THIS NOTICE.
ALL CLAIMS NOT FILED WITHIN THE TIME PERIODS SET FORTH IN FLORIDA STATUTES SECTION 733.702 WILL BE FOREVER BARRED.
NOTWITHSTANDING THE TIME PERIODS SET FORTH ABOVE, ANY CLAIM FILED TWO (2) YEARS OR MORE AFTER THE DECEDENT’S DATE OF DEATH IS BARRED.
The date of first publication of this notice is October 31, 2024.
Personal Representative: Nolan Wayne Beaty 2334 Paramount Dr. Jacksonville, Florida 32224
Attorney for Personal Representative: Lawrence E. Hayden, Jr., Esq. Attorney for the Personal Representative Florida Bar Number: 0939595 HAYDEN Law 1301 Penman Road, Suite F Jacksonville Beach, FL 32250 Telephone: (904) 247-9033 Fax: (904) 247-9073
E-Mail: LEH@haydenlawfl.com
Secondary E-Mail: lehaydenjr@bellsouth.net Oct. 31, Nov. 7 4 (24-06937D)
RECORDED IN PLAT BOOK 5, PAGE 20 OF THE CURRENT PUBLIC RECORDS OF DUVAL COUNTY, FLORIDA.
Any person claiming an interest in the surplus from the sale, if any, other than the property owner as of the date of the lis pendens must file a claim before the clerk reports the surplus as unclaimed. The Court, in its discretion, may enlarge the time of the sale. Notice of the changed time of sale shall be published as provided herein. Americans With Disabilities Act (ADA) Notice
In accordance with the Americans with Disabilities Act of 1990 (ADA), If you are a person with a disability who needs any accommodation in order to participate in this proceeding, you are entitled at no cost to you, to the provision of certain assistance. Please contact the ADA Coordinator at crtintrp@coj.net or (904) 2551695 at least 7 days before your scheduled court appearance, or immediately upon receiving this notification if the time before the scheduled appearance is less than 7 days; if you are hearing or voice impaired, call 711.
Date: October 24, 2024.
JODY
PHILLIPS Clerk of the Circuit Court By: Alice V. Griffin Deputy Clerk of the Court (Court Seal)
Prepared by: Tromberg, Morris & Partners, PLLC
600 West Hillsboro Boulevard
Suite 600 Deerfield Beach, FL 33441 Oct. 31, Nov. 7 4 (24-06917D)
or may apply, unless a written demand is made by a creditor as specified under s. 732.2211, Florida Statutes. All other creditors of the decedent and other persons having claims or demands against decedent’s estate must file their claims with this court WITHIN 3 MONTHS AFTER THE DATE OF THE FIRST PUBLICATION OF THIS NOTICE. ALL CLAIMS NOT FILED WITHIN THE TIME PERIODS SET FORTH IN FLORIDA STATUTES SECTION 733.702 WILL BE FOREVER BARRED. NOTWITHSTANDING THE TIME PERIODS SET FORTH ABOVE, ANY CLAIM FILED TWO (2) YEARS OR MORE AFTER THE DECEDENT’S DATE OF DEATH IS BARRED. The date of first publication of this notice is October 31, 2024. Personal Representative: La’Darius Purdy 7440 Kylan Drive W. Jacksonville, Florida 32209
Attorney for Personal Representative: Brian G. Sherman, Esq.
Attorney Florida Bar Number: 1009362 Sermons Law, PLLC 1844 Atlantic Blvd. Jacksonville, Florida 32207 Telephone: (904) 738-7207 Fax: (904) 637-7144 E-Mail: brian@sermonsfirm.com
Secondary E-Mail: info@sermonsfirm.com Oct. 31, Nov. 7 4 (24-06891D)
SECOND INSERTION
IN THE CIRCUIT COURT FOR THE 4TH JUDICIAL CIRCUIT, IN AND FOR DUVAL COUNTY, FLORIDA PROBATE DIVISION File No. 16-2024-CP-002506 DIVISION: PR-A IN RE: ESTATE OF JAMES MATTHEWS JR, Deceased.
NOTICE TO CREDITORS
The administration of the estate of JAMES MATTHEWS JR, Deceased, whose date of death was June 2, 2024, is pending in the Circuit Court for DUVAL County, Florida, Probate Division, the address of which is 501 W Adams St., Jacksonville, FL 32202. The names and addresses of the personal representative and the personal representative’s attorney are set forth below. All creditors of the decedent and other persons having claims or demands against decedent’s estate on whom a copy of this notice is required to be served must file their claims with this court WITHIN THE LATER OF 3 MONTHS AFTER THE TIME OF THE FIRST PUBLICATION OF THIS NOTICE OR 30 DAYS AFTER THE DATE OF SERVICE OF A COPY OF THIS NOTICE ON THEM.
All other creditors of the decedent and other persons having claims or demands against decedent’s estate must file their claims with this court WITHIN 3 MONTHS AFTER THE DATE OF THE FIRST PUBLICATION OF THIS NOTICE.
IN THE CIRCUIT COURT OF THE FOURTH JUDICIAL CIRCUIT, IN AND FOR DUVAL COUNTY, FLORIDA. CASE No. 16-2024-CA-000759
DIVISION: FC-G PENNYMAC LOAN SERVICES, LLC, PLAINTIFF, VS. THE UNKNOWN HEIRS, BENEFICIARIES, DEVISEES, GRANTEES, ASSIGNORS, CREDITORS AND TRUSTEES OF THE ESTATE OF WILLIE A. WILLIAMS A/K/A WILLIE ANDREW WILLIAMS (DECEASED), ET AL. DEFENDANT(S).
NOTICE OF FORECLOSURE SALE #20286
NOTICE IS HEREBY GIVEN pursuant to the Final Judgment of Foreclosure dated August 16, 2024, in the above action, I will sell to the highest bidder for cash at Duval County, Florida, on December 30, 2024, at 11:00 AM, at: www.duval.realforeclose.com for the following described property: LOT 5, BLOCK 14, PERMENTER MATTOX REALTY CO`S REPLAT OF BLOCKS 11,12 AND 14, SPRINGFIELD NORTHWEST PORTION, ACCORDING TO THE MAP OR PLAT THEREOF, AS RECORDED IN PLAT BOOK
ALL CLAIMS NOT FILED WITHIN THE TIME PERIODS SET FORTH IN SECTION 733.702 OF THE FLORIDA PROBATE CODE WILL BE FOREVER BARRED. NOTWITHSTANDING THE TIME PERIODS SET FORTH ABOVE, ANY CLAIM FILED TWO (2) YEARS OR MORE AFTER THE DECEDENT’S DATE OF DEATH IS BARRED. A personal representative or curator has no duty to discover whether any property held at the time of the decedent’s death by the decedent or the decedent’s surviving spouse is property to which the Florida Uniform Disposition of Community Property Rights at Death Act as described in sections 732.216-732.228, applies, or may apply, unless a written demand is made by a creditor as specified under section 732.2211. The date of first publication of this notice is October 31, 2024. KAREN MANN, Personal Representative Attorney for Personal Representative: Scott R. Bugay, Esquire Florida Bar No. 5207 Citicentre, Suite P600 290 NW 165th Street Miami FL 33169
Telephone: (305) 956-9040 Fax: (305) 945-2905 Primary Email: Scott@srblawyers.com Secondary Email: angelica@srblawyers.com Oct. 31, Nov. 7 4 (24-06941D)
5, PAGE(S) 53, OF THE PUBLIC RECORDS OF DUVAL COUNTY, FLORIDA Any person claiming an interest in the surplus from the sale, if any, other than the property owner as of the date of the lis pendens must file a claim before the clerk reports the surplus as unclaimed. The Court, in its discretion, may enlarge the time of the sale. Notice of the changed time of sale shall be published as provided herein. Americans With Disabilities Act (ADA) Notice In accordance with the Americans with Disabilities Act of 1990 (ADA), If you are a person with a disability who needs any accommodation in order to participate in this proceeding, you are entitled at no cost to you, to the provision of certain assistance. Please contact the ADA Coordinator at crtintrp@coj.net or (904) 2551695 at least 7 days before your scheduled court appearance, or immediately upon receiving this notification if the time before
SECOND INSERTION
IN THE CIRCUIT COURT, FOURTH JUDICIAL CIRCUIT, IN AND FOR DUVAL COUNTY, FLORIDA
PROBATE DIVISION
CASE NO: 16-2024-CP-000532
DIVISION: PR-A
IN RE: ESTATE OF DOUGLAS W. DART
Deceased.
NOTICE TO CREDITORS TO ALL PERSONS HAVING CLAIMS OR DEMANDS AGAINST THE ABOVE ESTATE:
The administration of the estate of DOUGLAS W. DART, whose date of death was September 19, 2023, is pending in the Probate Division of the Fourth Judicial Circuit Court, Duval County Courthouse, 501 W Adams Street, Jacksonville FL 32202. The names and addresses of the petitioner and petitioner’s attorney are set forth below.
All creditors of the decedent and other persons having claims or demands against decedent’s estate must file their claims with this court ON OR BEFORE THE LATER OF 3 MONTHS AFTER THE TIME OF THE FIRST PUBLICATION OF THIS NOTICE OR 30 DAYS AFTER THE DATE OF SERVICE OF A COPY OF THIS NOTICE ON THEM. ALL CLAIMS NOT FILED WITHIN THE TIME PERIODS
SET FORTH IN FLORIDA STATUTES SECTION 733.702 WILL BE FOREVER BARRED. NOTWITHSTANDING THE TIME PERIODS SET FORTH ABOVE, ANY CLAIM FILED TWO YEARS OR MORE AFTER THE DECEDENT’S DATE OF DEATH IS BARRED.
The personal representative has no duty to discover whether any property held at the time of the decedent’s death by the decedent or the decedent’s surviving spouse is property to which the Florida Uniform Disposition of Community Property Rights at Death Act as described in ss. 732.216732.228, Florida Statutes, applies, or may apply, unless a written demand is made by a creditor as specified under s. 732.2211, Florida Statutes.
The date of first publication of this notice is October 31, 2024.
Person Giving Notice: Bonnie Meehan-Dart 9324 Joos Road Jacksonville, FL 32220
Attorney for Person Giving Notice: Carol S. Miller Fla Bar No: 304050 Jacksonville Area Legal Aid, Inc. 126 W. Adams Street Jacksonville, FL 32202 carol.miller@jaxlegalaid.org Oct. 31, Nov. 7 3 (24-06895D)
IN THE CIRCUIT COURT OF THE 4TH JUDICIAL CIRCUIT, IN AND FOR DUVAL COUNTY, FLORIDA CIVIL DIVISION CASE NO.: 16-2024-CA-002952
DIVISION FC-G RADIFI FEDERAL CREDIT UNION D/B/A RADIFI CREDIT UNION F/K/A JAX FEDERAL CREDIT UNION, Plaintiff, vs. ESTATE OF PHILLIP C. FREECE; ET AL, Defendant(s). NOTICE OF ACTION TO: ESTATE OF PHILLIP C. FREECE and UNKNOWN HEIRS, DEVISEES, GRANTEES, ASSIGNEES, LIENORS, CREDITORS, TRUSTEES AND ALL OTHER PARTIES CLAIMING AN INTEREST BY, THROUGH, UNDER FOR PHILLIP C. FREECE and UNKNOWN SPOUSE OF PHILLIP C. FREECE
Last known address: Unknown Current address: Unknown YOU ARE HEREBY NOTIFIED that an action to foreclose the Mortgage covering the following property described as follows, to-wit: LOT 14, BLOCK 7, ARLINGTON MANOR UNIT 3, ACCORDING TO THE PLAT THEREOF AS RECORDED IN PLAT BOOK 23, PAGE 81, OF THE CURRENT PUBLIC RECORDS OF DUVAL COUNTY, FLOR-
IDA. PROPERTY ADDRESS: 6713 Ector Rd., Jacksonville, FL 32211 has been filed against you and you are required to serve a copy of your written defenses, if any, to it, on Michelle L. Glass, Attorney for Plaintiff, whose address is 7545 Centurion Parkway, Ste. 103, Jacksonville, FL 32256 within 30 days after the first publication of this notice, and file the original with the Clerk of this Court either before service on Plaintiff’s attorney, or immediately thereafter; otherwise a default will be entered against you for the relief demanded in the Complaint. Americans With Disabilities Act (ADA) Notice In accordance with the Americans with Disabilities Act of 1990 (ADA), If you are a person with a disability who needs any accommodation in order to participate in this proceeding, you are entitled at no cost to you, to the provision of certain assistance. Please contact the ADA Coordinator at crtintrp@coj.net or (904) 2551695 at least 7 days before your scheduled court appearance, or immediately upon receiving this notification if the time before the scheduled appearance is less than 7 days; if you are hearing or voice impaired, call 711. WITNESS my hand and the seal of this Court this 24th day of October, 2024.
JODY PHILLIPS CLERK OF THE CIRCUIT COURT By: Alice V. Griffin As Deputy Clerk (Court Seal) Oct. 31, Nov. 7 3 (24-06913D)
SECOND INSERTION
IN THE CIRCUIT COURT, FOURTH JUDICIAL CIRCUIT, IN AND FOR DUVAL COUNTY FLORIDA CASE NO.: 16-2024-CP-002780 DIVISION: PR-A IN RE: ESTATE OF THOMAS EVERETT MELVIN, Deceased. NOTICE TO CREDITORS TO ALL PERSONS HAVING CLAIMS OR DEMANDS AGAINST THE ABOVE ESTATE: The administration of the ESTATE OF THOMAS EVERETT MELVIN, deceased, File No. 16-2024-CP-002780, is pending in the Circuit Court for Duval County, Florida, Probate Division PR-A, the address of which is 501 W. Adams St., Jacksonville, FL 32202. The names and addresses of the Personal Representative and Personal Representative’s attorney are set forth below. ALL INTERESTED PERSONS ARE NOTIFIED THAT: All creditors of the decedent and any other persons having claims or demands against decedent’s estate on whom a copy of this notice is served within three months after the date of the first publication of this notice must file their claims with this Court WITHIN THE LATER OF THREE MONTHS AFTER THE DATE OF THE FIRST PUBLICATION OF THIS NOTICE OR THIRTY DAYS AFTER THE DATE OF SERVICE OF A COPY OF THIS NOTICE ON THEM.
All other creditors of the decedent and persons having claims or demands against the decedent’s estate must file their claims with
SECOND INSERTION IN THE CIRCUIT COURT, FOURTH JUDICIAL CIRCUIT, IN AND FOR DUVAL COUNTY, FLORIDA PROBATE DIVISION File No. 16-2024-CP-002978 Division PR-A IN RE: ESTATE OF SARA DAY RADOVIC Deceased. NOTICE TO CREDITORS (Summary Administration) TO ALL PERSONS HAVING CLAIMS OR DEMANDS AGAINST THE ABOVE ESTATE: You are hereby notified that a Petition For Summary Administration has been filed in the estate of BETTY JANE SHIELDS, deceased, File Number 16-2024CP-002712, in the Circuit Court for DUVAL County, Florida, Probate Division, the address of which is 51 West Adams Street, Jacksonville, Florida 32202; that the decedent’s date of death was May 23, 2024; ALL INTERESTED PERSONS ARE NOTIFIED THAT: All creditors of the estate of the decedent and persons having claims or demands against the estate of the decedent must file their claims with this court WITHIN THE TIME PERIODS SET FORTH IN FLORIDA STAT-
UTES SECTION 733.702. ALL CLAIMS AND DEMANDS NOT SO FILED WILL BE FOREVER BARRED. NOTWITHSTANDING ANY OTHER APPLICABLE TIME PERIOD, ANY CLAIM FILED TWO (2) YEARS OR MORE AFTER THE DECEDENT’S DATE OF DEATH IS BARRED.
A personal representative or curator has no duty to discover whether any property held at the time of the decedent’s death by the decedent or the decedent’s surviving spouse is property to which the Florida Uniform Disposition of Community Property Rights at Death Act as described in sections 732.216-732.228, applies, or may apply, unless a written demand is made by a creditor as specified under section 732.2211.
The date of first publication of this notice is October 31, 2024.
DOUGLAS A. OBERDORFER, Esquire
Attorney for Petitioners
Florida Bar Number: 0139092 432 East Monroe Street Jacksonville, Florida 32202
Telephone: (904) 354-5454
E-Mail: service@oberdorferlaw.com Oct. 31, Nov. 7 3 (24-06880D)
SECOND INSERTION
IN THE CIRCUIT COURT FOR DUVAL COUNTY, FLORIDA PROBATE DIVISION
File No. 16-2024-CP-002295
Division PR-B IN RE: ESTATE OF KELVIN CLAUDE JACKSON Deceased.
NOTICE TO CREDITORS
The administration of the estate of Kelvin Claude Jackson, deceased, whose date of death was January 29, 2024, is pending in the Circuit Court for Duval County, Florida, Probate Division. The names and addresses of the petitioner and the petitioner’s attorney are set forth below.
A petitioner or curator has no duty to discover whether any property held at the time of the decedent’s death by the decedent or the decedent’s surviving spouse is property to which the Florida Uniform Disposition of Community Property Rights at Death Act as described in sections 732.216732.228, applies, or may apply, unless a written demand is made by a creditor as specified under section 732.2211.
SECOND INSERTION
IN THE CIRCUIT COURT FOR DUVAL COUNTY, FLORIDA PROBATE DIVISION File No. 16-2024-CP-003006
this Court WITHIN THREE MONTHS AFTER THE DATE OF THE FIRST PUBLICATION OF THIS NOTICE. ALL CLAIMS, DEMANDS AND OBJECTIONS NOT SO FILED WILL BE FOREVER BARRED. NOTWITHSTANDING THE TIME PERIODS SET FORTH ABOVE, ANY CLAIM FILED TWO (2) YEARS OR MORE AFTER THE DECEDENT’S DATE OF DEATH IS BARRED. A personal representative or curator has no duty to discover whether any property held at the time of the decedent’s death by the decedent or the decedent’s surviving spouse is property to which the Florida Uniform Disposition of Community Property Rights at Death Act as described in Sections 732.216-732.228, applies, or may apply, unless a written demand is made by a creditor as specified under section 732.2211. The date of the first publication of this Notice is: October 31, 2024.
Personal Representative
MELISSA D. ADAMS 409 Cottonwood Place Boca Raton, Florida 33431
Attorney for Personal Representative CHRISTOPHER D. KEEVER, ESQ. Florida Bar Number: 0094477 Keever Law, PLLC 301 W. Bay Street, Suite 1492 Jacksonville, Florida 32202
Telephone: (904) 329-7255
Facsimile: (904) 831-3787
E-Mail: ckeever@keeverlawfirm.com Oct. 31, Nov. 7 3 (24-06902D)
IN THE CIRCUIT COURT FOR DUVAL COUNTY, FLORIDA PROBATE DIVISION File No. 16-2024-CP-003055 Division PR-B IN RE: ESTATE OF MINNIE WALLACE BURCH
Deceased. NOTICE TO CREDITORS (Summary Administration) TO ALL PERSONS HAVING CLAIMS OR DEMANDS AGAINST THE ABOVE ESTATE: You are hereby notified that an Order of Summary Administration has been entered in the estate of Minnie Wallace Burch, also known as Minnie O. Burch and Minnie O’steen Burch, deceased, File Number 16-2024CP-003055, by the Circuit Court for Duval County, Florida, Probate Division, the address of which is 501 W. Adams Street, Jacksonville, FL 32202; that the decedent’s date of death was April 29, 2024; that the total value of the estate is $150,000.00 (value of proposed exempt homestead) and that the names and addresses of those to whom it has been assigned by such order are: Cheryl Daniels, 935 Main Street, Atlantic Beach, FL 32233 Audrey Burch, 2112 Lavalle Drive, Jacksonville, FL 32210 ALL INTERESTED PERSONS ARE NOTIFIED THAT:
All creditors of the estate of the decedent and persons having claims or demands against the estate of the decedent other than those for whom provision for full payment was made in the Order of Summary Administration must file their claims with this court
WITHIN THE TIME PERIODS SET FORTH IN FLORIDA STATUTES SECTION 733.702. ALL CLAIMS AND DEMANDS NOT SO FILED WILL BE FOREVER BARRED. NOTWITHSTANDING ANY OTHER APPLICABLE TIME PERIOD, ANY CLAIM FILED TWO (2) YEARS OR MORE AFTER THE DECEDENT’S DATE OF DEATH IS BARRED.
The personal representative has no duty to discover whether any property held at the time of the decedent’s death by the decedent or the decedent’s surviving spouse is property to which the Florida Uniform Disposition of Community Property Rights at Death Act as described in ss. 732.216732.228, Florida Statutes, applies, or may apply, unless a written demand is made by a creditor as specified under s. 732.2211, Florida Statutes.
The date of first publication of this Notice is October 31, 2024. Person Giving Notice: Cheryl Daniels 935 Main Street Atlantic Beach, Florida 32233
Attorney for Person Giving Notice
Sarah A. Mannion
Attorney Florida Bar Number: 103087 King & Mannion, P.A. 2219 Park Street Jacksonville, FL 32204 Telephone: (904) 387-9886 Fax: (904) 387-9862
E-Mail: mannion.sarah@gmail.com
Secondary E-Mail: kingcandyce@bellsouth.net Oct. 31, Nov. 7 3 (24-06896D)
SECOND INSERTION
IN THE COUNTY COURT OF THE 4TH JUDICIAL CIRCUIT IN AND FOR DUVAL COUNTY, FLORIDA CASE NO.: 16-2024-CC-008090 DIVISION: CC-O LOS LAGOS CONDOMINIUM, INC., Plaintiff, v. WILLIAM JOSEPH CAPSHAW, Defendant. NOTICE OF SALE PURSUANT TO CHAPTER 45 NOTICE IS HEREBY GIVEN pursuant to a Final Judgment of Foreclosure dated October 23, 2024, and entered in Case No. 16-2024-CC-008090 of the Circuit Court of the Fourth Judicial Circuit in and for Duval County, Florida, wherein LOS LAGOS CONDOMINIUM, INC. is Plaintiff, and WILLIAM JOSEPH CAPSHAW is the Defendant, that I will sell to the highest and best bidder for cash at: www.duval.realforeclose.com Duval County, Florida, at 11:00 A.M. on the 31st day of December, 2025 the following described property as set forth in said Order or Final Judgment, to-wit: CONDOMINIUM UNIT NUMBER 7899 OF LOS LAGOS CONDOMINIUM, A CONDOMINIUM ACCORDING TO THE DECLARATION OF CONDOMINIUM OWNERSHIP OF LOS LAGOS CONDOMINIUM DATED JUNE 4, 1973 AND RECORDED IN OFFICIAL RECORDS VOLUME 3695, PAGE 196 OF THE CURRENT PUBLIC RECORDS OF DUVAL COUNTY, FLORIDA, AS AMENDED BY AMENDMENT BY AMENDMENT RECORDED IN OFFICIAL RECORDS VOLUME
3716, PAGE 91, OFFICIAL RECORDS VOLUME 6948, PAGE 1408 AND OFFICIAL RECORDS VOLUME 6948, PAGE 1409 OF THE CURRENT PUBLIC RECORDS OF DUVAL COUNTY, FLORIDA. Street Address: 7899 Bahia Vista Court, Jacksonville, Florida 32256.
Name of Clerk Making the Sale: Jody Phillips, Clerk of Court ANY PERSON CLAIMING AN INTEREST IN THE SURPLUS FROM THE SALE, IF ANY, OTHER THAN THE PROPERTY OWNER AS OF THE DATE OF THE LIS PENDENS MUST FILE A CLAIM BEFORE THE CLERK REPORTS. THE SURPLUS AS UNCLAIMED.
Americans With Disabilities Act (ADA) Notice
In accordance with the Americans with Disabilities Act of 1990 (ADA), If you are a person with a disability who needs any accommodation in order to participate in this proceeding, you are entitled at no cost to you, to the provision of certain assistance. Please contact the ADA Coordinator at crtintrp@coj.net or (904) 2551695 at least 7 days before your scheduled court appearance, or immediately upon receiving this notification if the time before the scheduled appearance is less than 7 days; if you are hearing or voice impaired, call 711. DATED this 24TH day of October, 2024. JODY PHILLIPS Clerk of Court By: Pamela R. Harrell Deputy Clerk (Court Seal) WASSERSTEIN, P.A. 301
All creditors of the decedent and other persons having claims or demands against decedent’s estate on whom a copy of this notice is required to be served must file their claims with this court ON OR BEFORE THE LATER OF 3 MONTHS AFTER THE TIME OF THE FIRST PUBLICATION OF THIS NOTICE OR 30 DAYS AFTER THE DATE OF SERVICE OF A COPY OF THIS NOTICE ON THEM.
All other creditors of the decedent and other persons having claims or demands against decedent’s estate must file their claims with this court WITHIN 3 MONTHS AFTER THE DATE OF THE FIRST PUBLICATION OF THIS NOTICE.
ALL CLAIMS NOT FILED WITHIN THE TIME PERIODS SET FORTH IN FLORIDA STATUTES SECTION 733.702 WILL BE FOREVER BARRED. NOTWITHSTANDING THE TIME PERIODS SET FORTH ABOVE, ANY CLAIM FILED TWO (2) YEARS OR MORE AFTER THE DECEDENT’S DATE OF DEATH IS BARRED. The date of first publication of this notice is October 31, 2024.
Personal Representative: Markaleh Nicole Jackson Attorney for Personal Representative: /s/ Meghan Edwards Meghan Edwards
Attorney Florida Bar Number: 103885 Attorneys for Petitioner 6620 Southpoint Drive S., Ste 200 Jacksonville, Florida 32216 Telephone: (904) 222-0829 Oct. 31, Nov. 7 3 (24-06879D)
IN THE CIRCUIT COURT FOR DUVAL COUNTY, FLORIDA PROBATE DIVISION
File No.: 16-2024-CP-002775
Division: PR-B IN RE: Estate of SARAH EVELYN WALKER NOEL, Deceased. NOTICE TO CREDITORS
The administration of the estate of Sarah Evelyn Walker Noel, deceased, File Number 16-2024CP-002775, Division Probate PR-B, is pending in the Circuit Court for Duval County, Florida, Probate Division, the address of which is Clerk of Probate, Duval County Courthouse, 501 West Adams Street, Jacksonville, Florida, 32202. The names and addresses of the personal representative and the personal representative’s attorney are set forth below.
ALL INTERESTED PERSONS ARE NOTIFIED THAT:
All persons on whom this notice is served who have objections that challenge the validity of the will, if any, the qualifications of the personal representative, venue, or jurisdiction of this Court are required to file their objections with this Court WITHIN THE LATER OF THREE MONTHS AFTER THE DATE OF THE FIRST PUBLICATION OF THIS MOTICE OR THIRTY DAYS AFTER THE DATE OF SERVICE OF A COPY OF THIS NOTICE ON THEM. All creditors of the decedent and other persons having claims or demands against decedent’s estate on whom a copy of this notice is served within three months after the date of first publication of this notice must file their claims with this Court WITHIN THE LATER OF THREE MONTHS AFTER THE DATE OF THE FIRST PUBLICATION OF THIS NOTICE OR THIRTY DAYS AFTER THE
Division PR-A IN RE: ESTATE OF JUDITH DECARLO SCOTT Deceased. NOTICE TO CREDITORS The administration of the estate of Judith DeCarlo Scott, deceased, whose date of death was April 20, 2024, is pending in the Circuit Court for Duval County, Florida, Probate Division. The names and addresses of the petitioner and the petitioner’s attorney are set forth below. A petitioner or curator has no duty to discover whether any property held at the time of the decedent’s death by the decedent or the decedent’s surviving spouse is property to which the Florida Uniform Disposition of Community Property Rights at Death Act as described in sections 732.216732.228, applies, or may apply, unless a written demand is made by a creditor as specified under section 732.2211. All creditors of the decedent and other persons having claims or demands against decedent’s estate on whom a copy of this notice is required to be served must file their claims with this court ON OR BEFORE THE LATER OF 3 MONTHS AFTER THE TIME OF THE FIRST PUBLICATION OF THIS NOTICE OR 30 DAYS AFTER THE DATE OF SERVICE OF A COPY OF THIS NOTICE ON THEM. All other creditors of the decedent and other persons having claims or demands against decedent’s estate must file their claims with this court WITHIN 3 MONTHS AFTER THE DATE OF THE FIRST PUBLICATION OF THIS NOTICE. ALL CLAIMS NOT FILED WITHIN THE TIME PERIODS SET FORTH IN FLORIDA STATUTES SECTION 733.702 WILL BE FOREVER BARRED. NOTWITHSTANDING THE TIME PERIODS SET FORTH ABOVE, ANY CLAIM FILED TWO (2) YEARS OR MORE AFTER THE DECEDENT’S DATE OF DEATH IS BARRED. The date of first publication of this notice is October 31, 2024. Petitioner: Carr Scott Attorney for Attorney for Petitioner: /s/ Meghan Edwards Meghan Edwards Attorney Florida Bar Number: 103885 Attorneys for Petitioner 6620 Southpoint Drive S., Ste 200 Jacksonville, Florida 32216 Telephone: (904) 222-0829 Oct. 31, Nov. 7 3 (24-06893D)
DATE OF SERVICE OF A COPY OF THIS NOTICE ON THEM. All other creditors of the decedent and persons having claims or demands against the decedent’s estate must file their claims with this court WITHIN THREE MONTHS AFTER THE DATE OF THE FIRST PUBLICATION OF THIS NOTICE. ALL CLAIMS, DEMANDS AND OBJECTIONS NOT SO FILED WILL BE FOREVER BARRED. A personal representative or curator has no duty to discover whether any property held at the time of the decedent’s death by the decedent or the decedent’s surviving spouse is property to which the Florida Uniform Disposition of Community Property Rights at Death Act as described in sections 732.216-732.228, applies, or may apply, unless a written demand is made by a creditor as specified under section 732.2211. The date of first publication of this notice is October 31, 2024. Under penalties of perjury, we declare that we have read the foregoing, and the facts alleged are true, to the best of our knowledge and belief. Signed in Atlantic Beach, Duval County,
IN THE CIRCUIT COURT OF THE FOURTH JUDICIAL CIRCUIT IN AND FOR DUVAL COUNTY, FLORIDA
Case No.: 16-2024-CA-004103
DIVISION: FC-B
Groundfloor Jacksonville, LLC, Plaintiff, vs. Rock Realty Properties LLC; Crystal Rock, Defendants.
NOTICE OF ACTION
TO: The defendants Rock Realty Properties LLC; Crystal Rock and all others whom it may concern: YOU ARE NOTIFIED that an action to foreclose a mortgage has been filed against you regarding the following real property in DUVAL COUNTY, FLORIDA:
The Southerly 34.9 feet of Lot 11, Block 24, West Springfield, according to the map or plat thereof, as recorded in Plat Book 2, Page(s) 5, of
NOTICE
the Public Records of Duval County, Florida; a/k/a 1532 Pearl Street, Jacksonville, FL 32206. You are required to serve a copy of your written defenses, if any to it on McKillop Law Firm, the Plaintiffs attorney, whose address is 7563 Philips Highway, Building 500, Jacksonville, FL 32256 on or before thirty (30) days after the first publication of this Notice, and file the original with the Clerk of this Court either before service on the Plaintiff’s attorney or immediately thereafter; otherwise a default will be entered against you for the relief demanded in the Complaint. DATED on October 23, 2024. JODY PHILLIPS CLERK OF THE CIRCUIT COURT By: Pamela R. Harrell As Deputy Clerk (Court Seal) Oct. 31, Nov. 7 2 (24-06883D)
IN THE CIRCUIT COURT, FOURTH JUDICIAL CIRCUIT, IN AND FOR DUVAL COUNTY, FLORIDA CASE NO. 16-2024-CA-005253
Division: CV-D LAVERNE M. CLARK; Plaintiff, vs. GREATER COMMUNITY DEVELOPMENT CORPORATION, a Florida Not For Profit Corporation, f/k/a GREATER GRANT MEMORIAL COMMUNITY, DEVELOPMENT CORPORATION; Defendant, NOTICE OF ACTION TO: Greater Community Development Corporation, a Florida Not for Profit Corporation f/k/a Greater Grant Memorial Community Development Corporation Principal Place of Business: Unknown Last Mailing Address: 5533 Gilchrist Road, Jacksonville, FL 32219
E-mail: mcsims@seminary.edu YOU ARE NOTIFIED that an action to foreclose a note and mortgage upon property in Duval County, Florida, the legal description of which is attached hereto as Exhibit A, EXHIBIT “A” A PORTION OF THE ISAAC CARTER DONATION, SECTION 42, TOWNSHIP 1 SOUTH, RANGE 26 E, DUVAL COUNTY, FLORIDA, BEING A PORTION OF THAT LAND AS DESCRIBED BY DEED BOOK 1725, PAGE 132 OF THE CURRENT PUBLIC RECORDS OF DUVAL COUNTY AND BEING MORE PARTICULARLY DESCRIBED AS FOLLOWS: FOR A POINT OF REFERENCE, COMMENCE AT THE INTERSECTION OF THE NORTHWESTERLY RIGHT-OF-WAY LINE OF GILCHRIST ROAD, AN 80 FOOT RIGHT OF WAY AS NOW ESTABLISHED, WITH THE NORTHEASTERLY LINE OF THAT LAND AS DESCRIBED BY DEED BOOK 862, PAGE 82, SAID LINE ALSO BEING THE SOUTHWESTERLY LINE OF THAT LAND AS DESCRIBED BY OFFICIAL RECORDS VOLUME 5838, PAGE 1415, SAID PUBLIC RECORDS; THENCE N. 19°59’39” W., ALONG LAST SAID NORTHEASTERLY LINE, 200.31 FEET TO THE NORTHERLY LINE OF SAID LAND AS DESCRIBED BY OFFICIAL RECORDS VOLUME 5838, PAGE 1415 AND THE POINT OF BEGINNING: THENCE CONTINUE ALONG THE NORTHEAST-
ERLY LINE OF SAID LAND AS DESCRIBED BY DEED BOOK 862, PAGE 82, N. 19°59’39” W., 216.80 FEET TO A 1/2” REBAR MARKED REF COR LB 5488 SAID, POINT ALSO BEING REFERENCE POINT “A”, SAID POINT LYING S. 57°12’49” W. 765.41 FEET FROM A 1/2” REBAR MARKED REF COR LB 5488, SAID POINT BEING REFERENCE POINT “B” THENCE CONTINUE 19°59’39” W., TO THE WATERS OF NINE MILE CREEK, A TIDAL CREEK; THENCE NORTHEASTERLY, ALONG THE WATERS OF SAID NINE
MILE CREEK AND THE MEANDERING THEREOF TO AN INTERSECTION WITH THE SOUTHWEST-
ERLY LINE OF THAT LAND AS D ESCRIBED BY OFFICIAL RECORDS VOLUME 6561, PAGE 2372, SAID PUBLIC RECORDS AT A POINT THAT BEARS N. 42°33’38” W., FROM AFORESAID REFERENCE POINT “B” THENCE S. 42°33’38” E., ALONG LAST SAID SOUTHWESTERLY LINE TO AFORESAID REFERENCE POINT “B”; THENCE CONTINUE ALONG LAST SAID LINE. S. 42°33’38” E., 89.05 FEET TO THE NORTHWESTERLY LINE OF THAT LAND AS DESCRIBED BY OFFICIAL RECORDS VOLUME 3391, PAGE 24, SAID PUBLIC RECORDS: THENCE S. 34°41”30” W., ALONG LAST SAID LINE, 235.00 FEET TO THE SOUTHWESTERLY LINE OF LAST SAID LAND; THENCE S. 42°36’56” E., ALONG LAST SAID LINE. 295.50 FEET TO A NON-TANGENT INTERSECTION WITH THE AFOREMENTIONED NORTHWESTERLY RIGHT-OF-WAY LINE OF GILCHRIST ROAD, SAW RIGHT-OF-WAY LINE BEING A CURVE CONCAVE NORTHWESTERLY AND HAVING A RADIUS OF 915.00 FEET; THENCE SOUTHWESTERLY ALONG SAID CURVE AN ARC DISTANCE OF 428.03 FEET ALONG A CHORD BEARING AND DISTANCE OF S. 56°35’25” W., 424.14 FEET TO A POINT OF TANGENCY. THENCE CONTINUE ALONG SAID RIGHT-OF-WAY LINE, S. 69°59’30” W. 110.79 FEET TO THE EASTERLY LINE OF A 12 FOOT MORE OR LESS WIDE TIDAL CREEK: THENCE DEPARTING FROM SAID RIGHT OF WAY LINE, NORTHWESTERLY, ALONG SAID EASTERLY LINE OR SAID TIDAL CREEK 235 FEET MERE OR LESS TO AN EASTERLY PROLONGATION OF THE AFOREMENTIONED NORTHERLY LINE OF THAT LAND AS DESCRIBED BY OFFICIAL RECORDS VOLUME 5838, PAGE 1415 AND A POINT THAT BEARS N. 70°00’21” E. FROM THE POINT OF BEGINNING: THENCE S. 70°00’21” W., 65 FEET MORE OR LESS TO THE POINT OF BEGINNING LESS AND EXCEPT ANY PORTION LYING BELOW THE MEAN HIGH WATERLINE THAT MAY BE CLAIMED BY THE STATE OF FLORIDA. has been filed against you and you are required to serve a copy of your written defenses, if any, to it on BERNARD & SCHEMER, ESQUIRE, Plaintiff’s attorney, whose address is 480 Busch Drive, Jacksonville, Florida 32218, within 35 days of the first date of publication of this notice, and file the original with the Clerk of this Court either before service on Plaintiff’s attorney or immediately thereafter; otherwise, a default will be entered against you for the relief demanded in the complaint or petition. WITNESS my hand and the seal of this Court on the 23rd day of October, 2024.
JODY PHILLIPS Clerk of the Court
By: Michael Wheeler As Deputy Clerk Oct. 31, Nov. 7 2 (24-06882D)
Notice is hereby given that StoreRight Self Storage LLC at 8285 Western Way Cr, Jacksonville, FL 32256 will sell the contents of the storage unit(s) listed below at a public auction to satisfy a lien placed on the contents (pursuant to Chapter 83 of the Florida Statutes). The sale will take place at the website www.StorageTreaures.com on November 18, 2024. The sale will be conducted under the direction of management. Units will be available for viewing prior to the sale on www. StorageTreasures.com. Contents will be sold for cash only to the highest bidder. A 10-15% buyer’s premium will be charged and possibly a cleaning deposit per unit. All sales are final. Seller reserves the right to withdraw the property at any time before the sale or to refuse any bids. The property to be sold is described as “general household items” unless otherwise noted. Craig Collins # 210, Courtney Walton # 403, Craig Collins # 406, Michelle Nixon # 408, Craig Collins # 423, Soyanna Sword # 615, Maliyah Sawyer # 622. Oct. 31, Nov. 7 2 (24-06878D)
ADVERTISEMENT OF SALE
Property described below will be sold per the Florida Self Storage Facility Act. Sale on Thursday the 21st day of November, 2024 at 11:00 AM with bidding to take place on lockerfox.com. Payment and pickup at facility. Storage Rentals of America, 8539 Western Way, Jacksonville, FL, 32256. Ashley, Randolph Boxes, Totes, Furniture, Household Goods; Corder, Jerry Boxes, Furniture, Household Goods, Comic Book Boxes; Woods, Lorenzo Boxes, Totes, Household Goods; Hinchliffe, Rivkah Furniture, Appliances, AC, Tools, Electronics, Boxes, Totes, Household Goods; Ross, Deangelo Household Goods, Furniture; James, Jada Household Goods, Blankets, Bags; Corder, Jerry Household Goods, Boxes, Totes, Books, Graphic Novels, Toys, Furniture, Comic Boxes; Jackson, Elizabeth Furniture, Household Goods, Framed Arts; Leboeuf, Paul Commercial Goods, Tools, Ladders; Pennington, Dave Boxes, Totes, Furniture, Household Goods, Tools Sale is subject to cancellation in the event of settlement between owner and obligated party.
Oct. 31, Nov. 7 2 (24-06876D)
IN THE COUNTY COURT OF THE 4TH JUDICIAL CIRCUIT IN AND FOR DUVAL COUNTY, FLORIDA CASE NO.: 16-2024-CC-008095
DIVISION: CC-Q LOS LAGOS CONDOMINIUM, INC., Plaintiff, v. KORRYN DOTTERY, Defendant. NOTICE OF SALE PURSUANT TO CHAPTER 45 NOTICE IS HEREBY GIVEN pursuant to a Final Judgment of Foreclosure dated October 21, 2024, and entered in Case No. 16-2024-CC-008095 of the Circuit Court of the Fourth Judicial Circuit in and for Duval County, Florida, wherein LOS LAGOS CONDOMINIUM, INC. is Plaintiff, and KORRYN DOTTERY is the Defendant, that I will sell to the highest and best bidder for cash at: www.duval.realforeclose.com Duval County, Florida, at 11:00 A.M. on the 9th day of January, 2025 the following described property as set forth in said Order or Final Judgment, to-wit: Unit 7947 of Los Lagos, a Condominium according to the Declaration of Condominium thereof, recorded in Official Records Book 3695, Page(s) 196, of the Public Records of Duval County, Florida, and any amendments thereto, together with its undivided share in the common elements.
IN THE CIRCUIT COURT OF THE 4TH JUDICIAL CIRCUIT, IN AND FOR DUVAL COUNTY, FLORIDA GENERAL JURISDICTION
DIVISION
CASE NO: 16-2022-CA-002272
Division: FC-D THE BANK OF NEW YORK
MELLON FKA THE BANK OF NEW YORK, AS TRUSTEE FOR THE CERTIFICATEHOLDERS OF THE CWABS INC., ASSET-BACKED CERTIFICATES, SERIES 2006-21, Plaintiff, vs. RAIFYEEL MAHOME; UNKNOWN SPOUSE OF RAIFYEEL MAHOME; HICKORY CREEK ASSOCIATION, INC.; UNITED STATES OF AMERICA, DEPARTMENT OF THE TREASURY, INTERNAL REVENUE SERVICE; UNKNOWN TENANT #1; UNKNOWN TENANT #2, Defendants.
NOTICE OF FORECLOSURE SALE NOTICE IS HEREBY GIVEN pursuant to Order Granting Plaintiff’s Motion to Cancel the November 06, 2024 Foreclosure Sale Date entered in Civil Case No. 16-2022-CA-002272 of the Circuit Court of the 4TH Judicial Circuit in and for Duval County, Florida, wherein THE BANK OF NEW YORK MELLON FKA THE BANK OF NEW YORK, AS TRUSTEE FOR THE CERTIFICATEHOLDERS OF THE CWABS INC., ASSET-BACKED CERTIFICATES, SERIES 200621 is Plaintiff and RAIFYEEL MAHOME, et al, are Defendants. The Clerk, JODY PHILLIPS, shall sell to the highest and best bidder for cash at Duval County’s On-Line Public Auction website: www.duval.realforeclose.com at 11:00 AM on February 25, 2025, in accordance with Chapter 45, Florida Statutes, the following described property located in
IN THE CIRCUIT COURT, FOURTH JUDICIAL CIRCUIT, IN AND FOR DUVAL COUNTY, FLORIDA PROBATE DIVISION CASE NO.: 16-2024-CP-002413
DIVISION: PR-B IN RE: THE ESTATE OF EDWIN R. MERRITT, aka EDWIN RAY MERRITT, Deceased. NOTICE TO CREDITORS (Summary Administration)
The administration of the Estate of EDWIN R. MERRITT, aka EDWIN RAY MERRITT, deceased, file number 16-2021CP-002413, has been filed in the Circuit Court for Duval County, Florida, Probate Division, located at 501 W. Adams Street, Jacksonville, FL 32202. The names and addresses of the petitioner and petitioner’s attorney are set forth below.
All persons having claims or demands against the estate are notified that an order of summary administration has been entered by the court. The total cash value of the estate is $290,000.00, and the person(s) to whom it was assigned are:
JAMES EDWIN MERRITT, 1903 Oak Grove Circle, Jacksonville Beach, FL 32250
Street Address: 7947 Los Robles Court, Jacksonville, Florida 32256. Name of Clerk Making the Sale: Jody Phillips, Clerk of Court ANY PERSON CLAIMING AN INTEREST IN THE SURPLUS FROM THE SALE, IF ANY, OTHER THAN THE PROPERTY OWNER AS OF THE DATE OF THE LIS PENDENS MUST FILE A CLAIM BEFORE THE CLERK REPORTS THE SURPLUS AS UNCLAIMED.
Americans With Disabilities Act (ADA) Notice
In accordance with the Americans with Disabilities Act of 1990 (ADA), If you are a person with a disability who needs any accommodation in order to participate in this proceeding, you are entitled at no cost to you, to the provision of certain assistance. Please contact the ADA Coordinator at crtintrp@coj.net or (904) 2551695 at least 7 days before your scheduled court appearance, or immediately upon receiving this notification if the time before the scheduled appearance is less than 7 days; if you are hearing or voice impaired, call 711.
DATED this 23rd day of October, 2024.
JODY PHILLIPS Clerk of Court By: Pamela R. Harrell Deputy Clerk (Court Seal)
WASSERSTEIN, P.A.
301 Yamato Road Suite 2199 Boca Raton, Florida 33431 Oct. 31, Nov. 7 2 (24-06884D)
DUVAL County, Florida, as set forth in said Final Judgment of Mortgage Foreclosure, to-wit: LOT 141, HICKORY CREEK, UNIT FOUR, ACCORDING TO PLAT THEREOF AS RECORDED IN PLAT BOOK 45, PAGES 61, 61A, 61B AND 61C OF THE CURRENT PUBLIC RECORDS OF DUVAL COUNTY, FLORIDA. Any person claiming an interest in the surplus from the sale, if any, other than the property owner as of the date of the Lis Pendens must file a claim before the clerk reports the surplus as unclaimed. The court, in its discretion, may enlarge the time of the sale. Notice of the changed time of sale shall be published as provided herein. Americans With Disabilities Act (ADA) Notice In accordance with the Americans with Disabilities Act of 1990 (ADA), If you are a person with a disability who needs any accommodation in order to participate in this proceeding, you are entitled at no cost to you, to the provision of certain assistance. Please contact the ADA Coordinator at crtintrp@coj.net or (904) 255-1695 at least 7 days before your scheduled court appearance, or immediately upon receiving this notification if the time before the scheduled appearance is less than 7 days; if you are hearing or voice impaired, call 711. Dated this 23rd day of October, 2024.
JODY PHILLIPS
of the Circuit Court
Clerk
By:
Michael
Wheeler Deputy Clerk (Court Seal)
FRENKEL LAMBERT WEISS WEISMAN & GORDON, LLP
Attorney for Plaintiff
One East Broward Boulevard, Suite 1111
Fort Lauderdale, FL 33301
Telephone: (954) 522-3233
Fax (954) 200-7770
Oct. 31, Nov. 7 2 (24-06885D)
SECOND INSERTION
Notice of Sale Pursuant to Florida Statute 713.585 F.S. United American Lien & Recovery as agent w/ power of attorney will sell the following vehicle(s) to the highest bidder; net proceeds deposited with the clerk of court; owner/ lienholder has right to hearing and post bond; owner may redeem vehicle for cash sum of lien; all auctions held in reserve; Inspect
STEPHANIE GOODRICH, 9110 Monette Road, Jacksonville, FL 32234
GREGORY MERRITT, 1836 Ingleside Avenue, Jacksonville, FL 32205
All claims against the estate must be filed within the time periods set forth in ‘733.702, Florida Statutes, to wit: within the later of 3 months after the date of the first publication of the notice of administration, or as to any creditor required to be served with a copy of this notice, 30 days after the date of service of such copy of the notice on the creditor or be forever barred.
A personal representative or curator has no duty to discover whether any property held at the time of the decedent’s death by the decedent or the decedent’s surviving spouse is property to which the Florida Uniform Disposition of Community Property Rights at Death Act as described in sections 732.216-732.228, applies, or may apply, unless a written demand is made by a creditor as specified under section 732.2211.
The date of first publication of this notice is October 31, 2024. /s/ Jeffrey Ray Merritt
JEFFREY RAY MERRITT, Personal Representative 8506 Canton Drive Jacksonville, FL 32221
/s/ Donald W. Matthews
DONALD W. MATTHEWS, ESQUIRE Florida Bar No.: 131997 7952-1A Normandy Boulevard Jacksonville, FL 32221
Phone: (904) 695-3002
Email: donaldmatthewslaw@ bellsouth.net
Attorney for Personal Representative Oct. 31, Nov. 7 2 (24-06881D)
IN THE COUNTY COURT, FOURTH JUDICIAL DISTRICT, IN AND FOR, DUVAL COUNTY, FLORIDA CASE NO.: 16-2023-CC-017385
DIVISION: CC-H THE BOXWOOD AT BAYMEADOWS CONDOMINIUM ASSOCIATION, INC. Plaintiff, vs. SALATIEL REYES AND NORMA REYES Defendants.
NOTICE OF SALE
Notice is given that pursuant to a Summary Final Judgment of Foreclosure entered on October 21, 2024, in the above styled civil action of the County Court, in and for Duval County, Florida, in which SALATIEL REYES AND NORMA REYES is the Defendant, and THE BOXWOOD AT BAYMEADOWS CONDOMINIUM ASSOCIATION, INC., is the Plaintiff. The property will sell to the highest bidder for cash at 11:00 a.m. on December 19, 2024, on Duval County’s Public Auction website: www.duval.realforeclose.com in accordance with Chapter 45, Florida Statutes. Any person claiming an interest in the surplus from the sale, if any, other than the property owner as of the date of the lis pendens must file a claim before the clerk reports the surplus as unclaimed. The property to be sold as set forth in the Summary Final Judgment of Foreclosure is more particularly described as: Unit No. 13-E, The Boxwood at Baymeadows, a Condominium, according to the Declaration of Condominium as recorded in Official Records
SECOND INSERTION
Notice of Public Sale Notice is given that Jacksonville Self Storage auction be held Pursuant to FL Statue 3.801-83.809713.78 on November 19, 2024, at 9:30am www.storagetreasures. com All good and personal property heretofore stored with the undersigned will be sold to the highest bidder or will otherwise be disposed of to satisfy the owner’s line. Terms of Sale: Cash Only: all sales are final; management reserves the right to withdraw any units from sale or refuse any offer or bid. UNITS CONSISTING OF HOUSEHOLD GOODS UNLESS OTHERWISE NOTED. A30 Joe Lewis Flowers, A114 Anthony T West Sr, A207 Sanquenetta Williams, A208 James Jennings, A229 Jamela Taylor, A255 Nakeya Petty, B27 Jameka Harris, B30 Devritt Thompson, C37 Quashada Beasley, C39 Vanessa Barnes, C41 Vernon Green, C104 Delores Wilson, C113 Donnell Jackson, D30 Samantha Mahoney, D117 Dolmeshia Mitchell, D152 Sharone Hervey, D174 Kelsey Esteen, D188 Keva Hampton, E02 Sanquenetta Williams, E25 Terrie Clegg, E143 Lecelia Harris, F117 Kareem Daniel Jr, F206 Patrinya Jordan, F216 Nicole Miller, F220 Tavares Jones, F316 Derotha Rutland, F510 Genea Watkins, G06 Comfort Andrew Harris, G21 Deonna Taylor, G25 Sheryll James, G113 Kemoura Gibbs, G204 Larry Williams, G318 Danyetta Moore, G321 Kizzy Johnson, G323 Carla Williams, G508 Sheryll James, G510 Irma Latimer, G608 Nyla Washington, G610 Montrell Sweeting, G702 Comfort Andrew Harris, P07 Derotha M Rutland 2014 Jeep Compass Vin#1C4NJCEA4ED674836. A Cleaning deposit of $100.00 per unit will be collected at the time of sale and the unit must be returned empty and broomed cleaned No Dumping. Oct. 31, Nov. 7 2 (24-06875D)
Volume 10964, Page 1346 and the amendment recorded in Official Records Volume 10974, Page 2014 of the current public records of Duval County, Florida, together with an undivided interest in the common elements appurtenant thereto. 4915 Baymeadows Road Unit 13E, Jacksonville, FL, 32217
Any person claiming an interest in the surplus from the sale, if any, other than the property owner as of the date of the lis pendens, must file a claim before the clerk reports the surplus as unclaimed. Americans With Disabilities Act (ADA) Notice In accordance with the Americans with Disabilities Act of 1990 (ADA), If you are a person with a disability who needs any accommodation in order to participate in this proceeding, you are entitled at no cost to you, to the provision of certain assistance. Please contact the ADA Coordinator at crtintrp@coj.net or (904)
IN THE CIRCUIT COURT OF THE FOURTH JUDICIAL CIRCUIT, IN AND FOR DUVAL COUNTY, FLORIDA
CASE NO.: 16-2024-DR-011987
Division: FM-F Meagan Wolfla, Petitioner, and Steven Suber, Respondent, NOTICE OF ACTION FOR DISSOLUTION OF MARRIAGE
TO: Steven Suber
13993 Bradham Rd. Jacksonville, FL 32226
YOU ARE NOTIFIED that an action for Divorce has been filed against you and that you are required to serve a copy of your written defenses, if any, to it on Meagan Wolfla whose address is 13250 Companion Cir. S., Jacksonville, FL 32224, on or before December 6, 2024, and file the original with the clerk of this Court at 501 W Adams St., Jacksonville, Florida 32202, before service on Petitioner or immediately thereafter. If you fail to do so, a default may be entered against
you for the relief demanded in the petition. Copies of all court documents in this case, including orders, are available at the Clerk of the Circuit Court’s office. You may review these documents upon request. You must keep the Clerk of the Circuit Court’s office notified of your current address. (You may file Notice of Current Mailing and E-mail Address, Florida Supreme Court Approved Family Law Form 12.915). Future papers in this lawsuit will be mailed to the address on record at the clerk’s office. WARNING: Rule 12.285, Florida Family Law Rules of Procedure, requires certain automatic disclosure of documents and information. Failure to comply can result in sanctions, including dismissal or striking of pleadings.
Dated: October 23, 2024
JODY PHILLIPS, CLERK OF THE CIRCUIT COURT By: Sherri Gesell Deputy Clerk (Court Seal) Oct. 24/31, Nov. 7/14 12 (24-06873D)
IN THE CIRCUIT COURT, FOURTH JUDICIAL CIRCUIT, IN AND FOR DUVAL COUNTY, FLORIDA CASE NO.: 16-2024-CA-005451
DIVISION: CV-G Duval County School Board, a body politic and corporate, Plaintiff, v. SS Investment Group, LLC, a Florida limited liability company; and the Unknown Heirs and Devisees of Edward C. Pickett, and all others claiming by, through, and under the Unknown Heirs and Devisees of Edward C. Pickett, Defendants.
NOTICE OF ACTION
TO: The Unknown Heirs and Devisees of Edward C. Pickett, and all others claiming by, through, and under the Unknown Heirs and Devisees of Edward C. Pickett: Last Known Address: Jacksonville, FL
YOU ARE NOTIFIED that an action to quiet title on the following property located in Duval County, Florida has been filed in the above-styled case in the Fourth Judicial Circuit Court in and for Duval County, Florida: A portion of Section 42, the Levi Sparkman Grant, lying in Township 1 South, Range 25 East, Duval County, Florida and being more particularly described as follows: All of Farm Lot 48, (labeled as School), as shown on the plat of North Dinsmore Farms, as recorded in Plat Book 4, Page 59 of the Current
THIRD INSERTION
IN THE CIRCUIT COURT OF THE FOURTH JUDICIAL CIRCUIT, IN AND FOR DUVAL COUNTY, FLORIDA CASE NO.: 16-2024-DR-013401
Division: FM-B Orlando Robles, Petitioner, and Beatriz Ramirez, Respondent, NOTICE OF ACTION FOR DISSOLUTION OF MARRIAGE
TO: Beatriz Ramirez 5800 Barnes Rd. Jacksonville, FL 32219
YOU ARE NOTIFIED that an action for Divorce has been filed against you and that you are required to serve a copy of your written defenses, if any, to it on Orlando Robles whose address is 4105 Lane Ave., South, Jacksonville, FL 32210, on or before December 4, 2024, and file the original with the clerk of this Court at 501 W. Adams St., Jacksonville, Florida 32202, before service on Petitioner or immediately thereafter. If you fail to do so, a default may be entered against you for the relief demanded in the petition.
Copies of all court documents in this case, including orders, are available at the Clerk of the Circuit Court’s office. You may review these documents upon request. You must keep the Clerk of the Circuit Court’s office notified of your current address. (You may file Notice of Current Mailing and E-mail Address, Florida Supreme Court Approved Family Law Form 12.915). Future papers in this lawsuit will be mailed to the address on record at the clerk’s office.
WARNING: Rule 12.285, Florida Family Law Rules of Procedure, requires certain automatic disclosure of documents and information. Failure to comply can result in sanctions, including dismissal or striking of pleadings.
Dated: October 21, 2024
JODY PHILLIPS, CLERK OF THE CIRCUIT COURT
By: Sherri Gesell Deputy Clerk (Court Seal) Oct. 24/31, Nov. 7/14 12 (24-06787D)
ARBORS COMMUNITY DEVELOPMENT DISTRICT NOTICE OF THE DISTRICT’S INTENT TO USE THE UNIFORM METHOD OF COLLECTION OF NON-AD VALOREM ASSESSMENTS
Notice is hereby given that the Arbors Community Development District (“District”) intends to use the uniform method of collecting non-ad valorem assessments to be levied by the District pursuant to Section 197.3632, Florida Statutes. The Board of Supervisors (“Board”) of the District will conduct a public hearing on November 12, 2024 at 1:00 p.m. at the Arbors Amenity Center, 12520 Russian Olive Road, Jacksonville, Florida, 32218.
to be assessed and other interested parties may appear at the public hearing and be heard regarding the use of the uniform method of collecting such non-ad valorem assessments.
The public hearing is open to the public and will be conducted in accordance with the provisions of Florida law. The public hearing may be continued to a date, time, and place to be specified on the record. There may be occasions when Board Supervisors or District Staff may participate by speaker telephone.
FOURTH INSERTION
NOTICE OF ADMINISTRATIVE COMPLAINT
To: Shawntay Brown Case No: CD202408484/D 1902641
Public Records, Duval County, Florida.
TOGETHER WITH:
The Easterly 15 feet of that unnamed 30-foot road, lying westerly of and adjacent to said Farm Lot 48 as shown on said North Dinsmore Farms, Vacated by: Resolution 2007407-A and recorded in Official Records Book 13598, Page 2359 of said current Public Records.
The street address for the property is 0 Plummer Rd, Jacksonville, FL 32219 (RE #002566-0000). You are required to serve a copy of your written defenses, if any, on Laura Boeckman, the Plaintiff’s attorney, whose address is Office of General Counsel, City of Jacksonville, 117 West Duval Street, Suite 480, Jacksonville, Florida 32202, (904) 255-5100, on or before thirty-five (35) days of the first date of publication of this notice, and file the original with the Clerk of this Court either before service on Plaintiff’s attorney or immediately thereafter; otherwise, a default will be entered against you for the relief demanded in the complaint or petition.
WITNESS my hand and the seal of this Court on the 22nd day of October, 2024.
JODY PHILLIPS Clerk of the Court By: Rebecca D. Collins As Deputy Clerk (Court Seal) Oct. 24/31, Nov. 7/14 12 (24-06856D)
THIRD INSERTION
IN THE CIRCUIT COURT OF THE 4TH JUDICIAL CIRCUIT IN AND FOR DUVAL COUNTY, FLORIDA CASE NO.: 16-2024-CC-009692
DIVISION: CC-Q BRIDGECREST CREDIT COMPANY, LLC, AS AGENT AND SERVICER FOR CARVANA LLC, Plaintiff, v. GEORGE WALTER FORD; ET AL, Defendant(s).
NOTICE OF ACTION
To the following Defendant(s): GEORGE WALTER FORD (Last Known Address: 10100 Fromage Cir S, Jacksonville , FL 32225) YOU ARE NOTIFIED that an action for Replevin based on boundaries established by acquiescence, on the following described property: 2013 PORSCHE PANAMERA WITH VIN WP0AF2A74DL076416 has been filed against you and you are required to serve a copy of your written defenses, if any, to it, on Ghidotti | Berger LLP, Attorney for Plaintiff, whose address is 10800 Biscayne Blvd., Suite 201, Miami, FL 33161 within thirty (30) days after the first publication of this Notice in the Jacksonville Daily Record and file the original with the Clerk of this Court either before service on Plaintiff’s attorney or immediately thereafter; otherwise a default will be entered against you for the relief demanded in the complaint. This notice is provided pursuant to Administrative Order No. 2010-08 WITNESS my hand and the seal of this Court this 16th day of October, 2024. JODY PHILLIPS As Clerk of Court By: N’colas Burton As Deputy Clerk (Court Seal) Oct. 24/31, Nov. 7/14 12 (24-06750D)
The purpose of the public hearing is to consider the adoption of a resolution authorizing the District to use the uniform method of collecting non-ad valorem assessments to be levied by the District on properties located on land recently added to the District (“Expansion Parcels”). The District has previously authorized the use of uniform method on lands within the original boundaries of the District. At this time, the District is adopting a resolution to include the lands within the Expansion Parcels over which the District is authorized to use the uniform method to keep in conformity with the amended District.
The District may levy nonad valorem assessments for the purpose of financing, acquiring, maintaining and/or operating community development facilities, services and improvements within and without the boundaries of the District. Owners of the properties
Any person requiring special accommodations at this hearing because of a disability or physical impairment should contact the District Manager at Wrathell, Hunt and Associates, LLC, at 2300 Glades Road, Suite 410W, Boca Raton, Florida 33431, or by phone: (561) 571-0010. at least forty-eight (48) hours prior to the hearing. If you are hearing or speech impaired, please contact the Florida Relay Service by dialing 7-1-1, or 1-800-955-8771 (TTY) / 1-800-955-8770 (Voice), for aid in contacting the District Manager.
Each person who decides to appeal any decision made by the Board with respect to any matter considered at the public hearing is advised that person will need a record of proceedings and that accordingly, the person may need to ensure that a verbatim record of the proceedings is made, including the testimony and evidence upon which such appeal is to be based.
District Manager Oct. 17/24/31, Nov. 7 18 (24-06626D)

FOURTH INSERTION
IN THE CIRCUIT COURT, FOUTH JUDIDICAL CIRCUIT, IN AND FOR DUVAL COUNTY, FLORIDA CASE NO: 16-2024-DR-016023
DIVISION: FM-D
IN RE: The Matter of the Termination of Parental Rights for the Proposed Adoption of Minor Child Baby Boy Luster, DOB 8/19/24. NOTICE OF ACTION FOR ADOPTION
TO: Unknown African American or Caucasian Male, Conception in Jacksonville, Florida on or around November, 2023; Baby Boy Luster, DOB: 08/19/24. YOU ARE NOTIFIED that a Petition for Termination of Parental Rights Pending Adoption has been filed by Lauren Kingry, Esquire whose address is 253 18th Ave North, Jacksonville Beach, FL 32250. You may object to this action by filing a written objection with the Clerk of the Circuit Court by November 18, 2024, in Room 1191, Duval County Courthouse, 501 West Adams Street, Jacksonville, FL 32202. If you fail to respond, a hearing in this matter will occur at the Courthouse. The Court will reserve 10 minutes for this hearing.
Copies of all court documents in this case, including orders, are available at the Clerk of the Circuit Court’s office. You may review these documents upon request. You must keep the Clerk of the Circuit Court’s office notified of your current address. (You may file Notice of Current Address, Florida Supreme Court Approved Family Law Form 12.915.) Future papers in this lawsuit will be mailed to the address on record at the clerk’s office. UNDER SECTION 63.089, FLORIDA STATUTES, FAILURE TO APPEAR AT THE HEARING OR TO FILE A WRITTEN RESPONSE TO THIS NOTICE CONSTITUTES GROUNDS UPON WHICH THE COURT SHALL END ANY PARENTAL RIGHTS YOU MAY HAVE REGARDING THE MINOR CHILD.
Dated: October 4, 2024
JODY PHILLIPS Clerk Of The Circuit Court By: Nina Brown Deputy Clerk (Court Seal) Oct. 17/24/31, Nov. 7 18 (24-06650D)
An Administrative Complaint to revoke your license and eligibility for licensure has been filed against you. You have the right to request a hearing pursuant to Sections 120.569 and 120.57, Florida Statutes, by mailing a request for same to the Florida Department of Agriculture and Consumer Services, Division of Licensing, Post Office Box 5708 Tallahassee, Florida 32314-5708. If a request for hearing is not received by 21 days from the date of the last publication, the right to hearing in this matter will be waived and the Department will dispose of this cause in accordance with law.
Oct. 17/24/31, Nov. 7 18 (24-06624D)
FOURTH INSERTION
NOTICE OF SUSPENSION
To: Lavernedamonic K. Bartley Case No:
CD202402948/D 3305094
A Notice of Suspension to suspend your license and eligibility for licensure has been filed against you. You have the right to request a hearing pursuant to Sections 120.569 and 120.57, Florida Statutes, by mailing a request for same to the Florida Department of Agriculture and Consumer Services, Division of Licensing, Post Office Box 5708, Tallahassee, Florida 32314-5708. If a request for hearing is not received by 21 days from the date of the last publication, the right to hearing in this matter will be waived and the Department will dispose of this cause in accordance with law.
Oct. 17/24/31 Nov. 7 18 (24-06625D)
FOURTH INSERTION IN THE CIRCUIT COURT OF THE FOURTH JUDICIAL CIRCUIT, IN AND FOR DUVAL COUNTY, FLORIDA CASE NO.: 16-2024-DR-011259 Division: FM-D Ivette Johnson, Petitioner, and Desean Johnson, Respondent, NOTICE OF ACTION FOR PETITION FOR DISSOLUTION OF MARRIAGE WITH MINOR CHILDREN TO: Desean Johnson 8436 McGirts Village Lane Jacksonville, FL 32210
FOURTH INSERTION IN THE CIRCUIT COURT, FOUTH JUDIDICAL CIRCUIT, IN AND FOR DUVAL COUNTY, FLORIDA CASE NO: 16-2024-DR-016010
DIVISION: FM-D
IN RE: The Matter of the Termination of Parental Rights for the Proposed Adoption of Minor Child Baby Boy McGee, DOB 8/24/24. NOTICE OF ACTION FOR ADOPTION TO: Unknown Caucasian Male, Conception in Jacksonville, Florida on or around December, 2023; Baby Boy McGee, DOB: 08/24/2024. YOU ARE NOTIFIED that a Petition for Termination of Parental Rights Pending Adoption has been filed by Lauren Kingry, Esquire whose address is 253 18th Ave North, Jacksonville Beach, FL 32250. You may object to this action by filing a written objection with the Clerk of the Circuit Court by November 18, 2024, in Room 1191, Duval County Courthouse, 501 West Adams Street, Jacksonville, FL 32202. If you fail to respond, a hearing in this matter will occur at the Courthouse. The Court will reserve 10 minutes for this hearing.
Copies of all court documents in this case, including orders, are available at the Clerk of the Circuit Court’s office. You may review these documents upon request. You must keep the Clerk of the Circuit Court’s office notified of your current address. (You may file Notice of Current Address, Florida Supreme Court Approved Family Law Form 12.915.) Future papers in this lawsuit will be mailed to the address on record at the clerk’s office.
UNDER SECTION 63.089, FLORIDA STATUTES, FAILURE TO APPEAR AT THE HEARING OR TO FILE A WRITTEN RESPONSE TO THIS NOTICE CONSTITUTES GROUNDS UPON WHICH THE COURT SHALL END ANY PARENTAL RIGHTS YOU MAY HAVE REGARDING THE MINOR CHILD.
Dated: October 4, 2024
JODY PHILLIPS
Clerk Of The Circuit Court By: Deonna Shelton Deputy Clerk (Court Seal) Oct. 17/24/31, Nov. 7 18 (24-06680D)
YOU ARE NOTIFIED that an action for Petition for Dissolution of Marriage with Minor Children has been filed against you and that you are required to serve a copy of your written defenses, if any, on Ivette Johnson whose address is 1211 Payne Ct., #1, Jacksonville, FL 32209, on or before December 2, 2024, and file the original with the clerk of this Court at 501 West Adams St., Jacksonville, Florida 32202, before service on Petitioner or immediately thereafter. If you fail to do so, a default may be entered against you for the relief demanded in the petition. Copies of all court documents in this case, including orders, are available at the Clerk of the Circuit Court’s office. You may review these documents upon request. You must keep the Clerk of the Circuit Court’s office notified of your current address. (You may file Notice of Current Mailing and E-mail Address, Florida Supreme Court Approved Family Law Form 12.915). Future papers in this lawsuit will be mailed to the address on record at the clerk’s office. WARNING: Rule 12.285, Florida Family Law Rules of Procedure, requires certain automatic disclosure of documents and information. Failure to comply can result in sanctions, including dismissal or striking of pleadings.
FOURTH INSERTION
IN THE CIRCUIT COURT OF THE FOURTH JUDICIAL CIRCUIT, IN AND FOR DUVAL COUNTY, FLORIDA CASE NO.: 16-2024-DR-011888
DIVISION: FM-C IN RE: THE MARRIAGE OF: JOSHUA PETTWAY, Petitioner/Husband, and AMY WILLIAMS, Respondent/Wife.
NOTICE OF ACTION FOR DISSOLUTION OF MARRIAGE TO: AMY WILLIAMS Address Unknown YOU ARE HEREBY NOTIFIED that an action for Dissolution of Marriage has been filed against you and that you are required to serve a copy and written defenses, if any, to it on SUMMER R. NICHOLS, ESQUIRE, ATTORNEY FOR THE PETITIONER, JOSHUA PETTWAY, whose address is 630 Kingsley Avenue, Orange Park, FL 32073 and/ or 476 Riverside Avenue, Jacksonville, FL 32202 on or before November 18, 2024, and file the original with the clerk of this Court at Duval County Clerk of Court, Attn: Family Law, 501 West Adams Street, Jacksonville, Florida 32202, before service on the Petitioners or immediately thereafter. If you fail to do so, a Default may be entered against you for the relief demanded in the petition.
Copies of all court documents in this case, including orders, are available at the Clerk of the Circuit Court’s office. You may review these documents upon request. You must keep the Clerk of the Circuit Court’s office notified of your current address. (You may file Notice of Current Address, Florida Supreme Court Approved Family Law Form 12.915.) Future papers in this lawsuit will be mailed to the address on record at the Clerk’s office.
WARNING: Rule 12.285, Florida Law Rules of Procedure, requires certain automatic disclosure of documents and information. Failure to comply can result in sanctions, including dismissal of striking pleadings.
DATED: October 3, 2024 JODY PHILLIPS CLERK OF THE CIRCUIT COURT By: Sherri Gesell Deputy Clerk (Court Seal) Oct. 17/24/31 Nov. 7 18 (24-06636D)
Dated October 16, 2024 JODY PHILLIPS, CLERK OF THE CIRCUIT COURT By: Maxine Jefferson Deputy Clerk (Court Seal) Oct. 17/24/31, Nov. 7 18 (24-06698D)
FOURTH INSERTION IN THE CIRCUIT COURT OF THE FOURTH JUDICIAL CIRCUIT, IN AND FOR DUVAL COUNTY, FLORIDA CASE NO.: 16-2024-DR-014205 DIVISION: FM-G IN RE: The Marriage of MUSTAFA MUKHTAR, Petitioner/Husband, And RAND AL ZUBAIDI, Respondent/Wife NOTICE OF ACTION OF DISSOLUTION OF MARRIAGE (NO CHILD OR FINANCIAL SUPPORT) To: RAND AL ZUBAIDI YOU ARE NOTIFIED that an action for DISSOLUTION OF MARRIAGE (NO CHILD OR FINANCIAL SUPPORT) has been filed against you and that you are required to serve a copy of your written defenses, if any, to THE LAW OFFICES OF ANWAR O. SNOBER, P.A., attorney for Petitioner, whose address is 6817 Southpoint Parkway, Suite 204, Jacksonville, Florida 32216 on or before November 15, 2024, and file the original with the clerk of this Court at 501 West Adams Street, Jacksonville, Florida 32202 before service on Petitioner or immediately thereafter. If you fail to do so, a default may be entered against you for the relief demanded in the petition. Copies of all court documents in this case, including orders, are available at the Clerk of the Circuit Court’s office. You may review these documents upon request. You must keep the Clerk of the Circuit Court’s office notified of your current address. (You may file Designation of Current Mailing and E-Mail Address, Florida Supreme Court Approved Family Law Form 12.915) Future papers in this lawsuit will be mailed to the address on record at the clerks office.
WARNING: Rule 12.285, Florida Family Law Rule of Procedure, requires certain automatic disclosure of documents and information. Failure to comply can result in sanctions, including dismissal or striking of pleadings.
DATE: October 2, 2024. JODY
THIRD INSERTION
IN THE CIRCUIT COURT OF THE FOURTH JUDICIAL CIRCUIT, IN AND FOR DUVAL COUNTY, FLORIDA.
Case No.: 16-2024-CA-004054
Division: CV-H
JAMES VICARS, FELICIA SHERMAN, CLAUDEST SHERMAN, SHEREE FAULK, JAMIE LOWRY, JAMES HOUSTON, TAMMY SASSNETT, MICHELLE SASSNETT, GRADY SASSNETT, KAREN DALLAS, ALTON ROBINSON, heir of CHERYL ROBINSON, TIFFANY SASSNETT, heir of KIM HUDSON, & LARRY HUDSON, JR. heir of KIM HUDSON, Plaintiffs, v. CHRISTINE SHERMAN, TERRELL SHERMAN, & THOMAS LEROY, Defendants.
NOTICE OF ACTION TO DEFENDANT:
THOMAS LEROY
YOU ARE NOTIFIED that an action for partition & unlawful detainer has been filed against you, and you are required to serve a copy of your written defenses, if any, to Sarah A. Mannion, Esq. Florida Bar No. 103087, attorney for Plaintiff, whose address is 2219 Park St, Jacksonville, FL 32204, and to file the original with the Clerk of this Court and serve on Plaintiff’s attorney either before thirty (30) days after the first publication of this Notice, or immediately thereafter, otherwise a default will be entered against you for the relief demanded in the complaint. This action was instituted in the Fourth Judicial Circuit for Duval County in the State of Florida and is styled as follows: JAMES VICARS, FELICIA SHERMAN, CLAUDEST SHERMAN, SHEREE FAULK, JAMIE LOWRY, JAMES HOUSTON, TAMMY SASSNETT, MICHELLE SASSNETT, GRADY SASSNETT, KAREN DALLAS, ALTON ROBINSON, heir of CHERYL ROBINSON, TIFFANY SASSNETT, heir of KIM HUDSON,& LARRY HUDSON, JR. heir of KIM HUDSON, Plaintiffs v. CHRISTINE SHERMAN, TERRELL SHERMAN, & THOMAS LEROY Defendants.
DATED: October 22, 2024
JODY PHILLIPS CLERK OF THE COURT By: Pamela R. Harrell As Deputy Clerk (Court Seal) Oct. 24/31, Nov. 7/14 12 (24-06855D)

IN THE CIRCUIT COURT FOR CLAY COUNTY, FLORIDA PROBATE DIVISION File No. 24-CP-0553
Division Probate IN RE: ESTATE OF CHRISTINE LOUISE CLAY, Deceased.
NOTICE TO CREDITORS
The administration of the estate of CHRISTINE LOUISE CLAY, deceased, whose date of death was April 3, 2024, is pending in the Circuit Court for Clay County, Florida, Probate Division, the address of which is 825 N. Orange Ave., Green Cove Springs, FL 32043. The names and addresses of the personal representative and the personal representative’s attorney are set forth below. All creditors of the decedent and other persons having claims or demands against decedent’s estate, on whom a copy of this notice is required to be served, must file their claims with this court ON OR BEFORE THE LATER OF 3 MONTHS AFTER THE TIME OF THE FIRST PUBLICATION OF THIS NOTICE OR 30 DAYS AFTER THE DATE OF SERVICE OF A COPY OF THIS NOTICE ON THEM. All other creditors of the decedent and other persons having claims or demands against decedent’s estate must file their claims with this court WITHIN 3 MONTHS AFTER THE DATE OF THE FIRST PUBLICATION OF THIS NOTICE.
FIRST INSERTION IN THE CIRCUIT COURT FOR CLAY COUNTY, FLORIDA PROBATE DIVISION File No. 2024CP000584 IN RE: ESTATE OF JOHN KENNETH MACKIE Deceased.
NOTICE TO CREDITORS
The administration of the estate of John Kenneth Mackie, deceased, whose date of death was September 6, 2024, is pending in the Circuit Court for Clay County, Florida, Probate Division, the address of which is 825 North Orange Avenue, Green Cove Springs, Florida 32043. The names and addresses of the personal representative and the personal representative’s attorney are set forth below.
All creditors of the decedent and other persons having claims or demands against decedent’s estate on whom a copy of this notice is required to be served must file their claims with this court ON OR BEFORE THE LATER OF 3 MONTHS AFTER THE TIME OF THE FIRST PUBLICATION OF THIS NOTICE OR 30 DAYS AFTER THE DATE OF SERVICE OF A COPY OF THIS NOTICE ON THEM.
The personal representative has no duty to discover whether any property held at the time of the decedent’s death by the decedent or the decedent’s surviving spouse is property to which the Florida Uniform Disposition of Community Property Rights at Death Act as described in ss. 732.216732.228, Florida Statutes, applies, or may apply, unless a written demand is made by a creditor as specified under s. 732.2211, Florida Statutes.
All other creditors of the decedent and other persons having claims or demands against decedent’s estate must file their claims with this court WITHIN 3 MONTHS AFTER THE DATE OF THE FIRST PUBLICATION OF THIS NOTICE. ALL CLAIMS NOT FILED WITHIN THE TIME PERIODS SET FORTH IN FLORIDA STATUTES SECTION 733.702 WILL BE FOREVER BARRED. NOTWITHSTANDING THE TIME PERIODS SET FORTH ABOVE, ANY CLAIM FILED TWO (2) YEARS OR MORE AFTER THE DECEDENT’S DATE OF DEATH IS BARRED. The date of first publication of this notice is November 7, 2024.
Personal Representative: Karen M. Barletta 2835 Harvest Moon Dr Orange Park, Florida 32073
Attorney for
Personal Representative: Eliot J. Safer, Esq.
Attorney Florida Bar Number: 0194511
DUSS KENNEY SAFER
HAMPTON & JOOS PA 4348 Southpoint Boulevard, Suite 101
Jacksonville, FL 32216
Telephone: (904) 543-4300
Fax: (904) 543-4301
E-Mail: esafer@jaxfirm.com
Secondary E-Mail: pleadings@ jaxfirm.com Nov. 7/14 00 (24-00384C)
The personal representative has no duty to discover whether any property held at the time of the decedent’s death by the decedent or the decedent’s surviving spouse is property to which the Florida Uniform Disposition of Community Property Rights at Death Act as described in ss. 732.216732.228, applies, or may apply, unless a written demand is made by a creditor as specified under s. 732.2211, Florida Statutes.
ALL CLAIMS NOT FILED WITHIN THE TIME PERIODS SET FORTH IN FLORIDA STATUTES SECTION 733.702 WILL BE FOREVER BARRED. NOTWITHSTANDING THE TIME PERIOD SET FORTH ABOVE, ANY CLAIM FILED TWO (2) YEARS OR MORE AFTER THE DECEDENT’S DATE OF DEATH IS BARRED.
The date of first publication of this notice is: November 7, 2024. JUSTIN CLAY
Personal Representative 12442 Running River Road South Jacksonville, Fl. 32225
Matthew T. Harrod, Esq.
Attorney for Personal Representative Florida Bar No. 41134 Harrod Law, PLLC 145 Hilden Rd., Suite 105 Ponte Vedra, FL 32081
Telephone: (904) 373-6665
Email: mharrod@mattharrod.com Nov. 7/14 00 (24-00389C)
FIRST INSERTION
IN THE CIRCUIT COURT FOR CLAY COUNTY, FLORIDA PROBATE DIVISION File No. 2024-CP-592 IN RE: ESTATE OF ADAM BLAKLEY REVELS Deceased.
NOTICE TO CREDITORS
The administration of the estate of Adam Blakley Revels, deceased, whose date of death was August 25, 2024, is pending in the Circuit Court for Clay County, Florida, Probate Division, the address of which is 825 North Orange Avenue, P.O. Box 698, Green Cove Springs, FL 32043. The names and addresses of the personal representative and the personal representative’s attorney are set forth below.
All creditors of the decedent and other persons having claims or demands against decedent’s estate on whom a copy of this notice is required to be served must file their claims with this court ON OR BEFORE THE LATER OF 3 MONTHS AFTER THE TIME OF THE FIRST PUBLICATION OF THIS NOTICE OR 30 DAYS AFTER THE DATE OF SERVICE OF A COPY OF THIS NOTICE ON THEM.
The personal representative has no duty to discover whether any property held at the time of the decedent’s death by the decedent or the decedent’s surviving spouse is property to which the Florida Uniform Disposition of Community Property Rights at Death Act as described in ss. 732.216732.228, Florida Statutes, applies, or may apply, unless a written demand is made by a creditor as specified under s. 732.2211, Florida Statutes.
All other creditors of the decedent and other persons having claims or demands against decedent’s estate must file their claims with this court WITHIN 3 MONTHS AFTER THE DATE OF THE FIRST PUBLICATION OF THIS NOTICE. ALL CLAIMS NOT FILED WITHIN THE TIME PERIODS SET FORTH IN FLORIDA STATUTES SECTION 733.702 WILL BE FOREVER BARRED. NOTWITHSTANDING THE TIME PERIODS SET FORTH ABOVE, ANY CLAIM FILED TWO (2) YEARS OR MORE AFTER THE DECEDENT’S DATE OF DEATH IS BARRED. The date of first publication of this notice is November 7, 2024.
Personal Representative: Ashley Roberts 1476 Russel Road Green Cove Springs, Florida 32043
Attorney for Personal Representative: Sarah A. Mannion
Attorney Florida Bar Number: 103087
King & Mannion, P.A. 2219 Park Street Jacksonville, FL 32204
Telephone: (904) 387-9886
Fax: (904) 387-9862
E-Mail: mannion.sarah@gmail.com Secondary E-Mail: kingcandyce@bellsouth.net Nov. 7/14 00 (24-00385C)
FIRST INSERTION
NOTICE OF PUBLIC SALE
To satisfy the owner’s storage lien, PS Retail Sales, LLC will sell at public lien sale on November 22, 2024, the personal property in the below-listed units, which may include but are not limited to: household and personal items, office and other equipment. The public sale of these items will begin at 11:00 AM and continue until all units are sold. The lien sale is to be held at the online auction website, www.storagetreasures.com, where indicated. For online lien sales, bids will be accepted until 2 hours after the time of the sale specified.
PUBLIC STORAGE # 28070, 210 Park Ave, Orange Park, FL 32073, (904) 429-4425
Time: 11:00 AM
Sale to be held at www.storagetreasures.com.
130 - jeffries, Pam; 144 - Taylor, Antiqua; 239 - McDonald, Rimicia; 283 - Jones, Jaishawna; 301 - Hanzy, Diamond; 371 - King, Curlena; 373 - Sampson, Aretha; 393 - Rice, Blake; 400 - Adams, Kyeria
PUBLIC STORAGE # 20713, 271 Blanding Blvd, Orange Park, FL 32073, (904) 429-4119
Time: 11:00 AM
Sale to be held at www.storagetreasures.com.
A028 - Devilbiss, Amber; A034 - brown, Shellome; A076 - Tai, Sterling J; C043 - Searcy, Darnicia; D030 - Dahl, Natasha; D068 - Shead, Azeem; E006 - Campbell, Tykera; E026 - Robinson, Antonio; E037 - Jefferson, Crystal; E044 - forehand, Faith; F067 - Rosario, Isabelle
Public sale terms, rules, and regulations will be made available prior to the sale. All sales are subject to cancellation. We reserve the right to refuse any bid. Payment must be in cash or credit cardno checks. Buyers must secure the units with their own personal locks. To claim tax-exempt status, original RESALE certificates for each space purchased is required. By PS Retail Sales, LLC, 701 Western Avenue, Glendale, CA 91201. (818) 244-8080. Nov. 7/14 00 (24-00386C)
FIRST INSERTION IN THE CIRCUIT COURT, FOURTH JUDICIAL CIRCUIT, IN AND FOR CLAY COUNTY, FLORIDA
CASE NO.: 10-2023-DR-1762-A Crystal Walls, Petitioner, and William Naismith, Respondent, NOTICE OF ACTION FOR DISSOLUTION OF MARRIAGE (NO CHILD OR FINANCIAL SUPPORT)
To: William Naismith 701 S. 6th Street Fernandina, FL 32034
YOU ARE NOTIFIED that an action for dissolution of marriage has been filed against you and that you are required to serve a copy of your written defenses, if any, to it on Crystal Walls, whose address is 399 Cleveland Ave, Orange Park, FL 32065 on or before December 20, 2024, and file the original with the clerk of this court at: 825 N Orange Avenue, P.O. Box 698, Green Cove Springs, Florida 32043 before service on Petitioner or immediately thereafter. If you fail to do so, a default may be entered against you for the relief demanded in the petition.
Copies of all court documents in this case, including orders, are available at the Clerk of the Circuit Court’s office. You may review these documents upon request.
You must keep the Clerk of the Circuit Court’s office notified of your current address. (You may file Designation of Current Mailing and E-Mail Address, Florida Supreme Court Approved Family Law Form 12.915.) Future papers in this lawsuit will be mailed or e-mailed to the address(es) on record at the clerk’s office.
WARNING: Rule 12.285, Florida Family Law Rules of Procedure, requires certain automatic disclosure of documents and information. Failure to comply can result in sanctions, including dismissal or striking of pleadings.
Dated: November 5, 2024
TARA S. GREEN CLERK OF THE CIRCUIT COURT By: Jennifer Brosky Deputy Clerk (Court Seal) Nov. 7/14/21/29
PRESERVE COMMUNITY
DEVELOPMENT DISTRICT NOTICE OF BOARD OF SUPERVISORS MEETING
Notice is hereby given that the Board of Supervisors (“Board”) of the Wilford Preserve Community Development District (“District”) will hold a regular meeting on Tuesday, November 19, 2024 at 1:30 p.m. at the Plantation Oaks Amenity Center, 845 Oakleaf Plantation Parkway, Orange Park, Florida 32065, where the Board may consider any business that may properly come before it (“Meeting”). An electronic copy of the agenda may be obtained by contacting the office of the District Manager, c/o Governmental Management Services, LLC, at (904) 940-5850 or mgiles@ gmsnf.com (“District Manager’s Office”) and is also expected to be available on the District’s website, www.WilfordPreserveCDD.com, at least seven days prior to the meeting.
The meeting will be conducted in accordance with the provisions of Florida law for community development districts and will be
open to the public. The meeting may be continued in progress without additional notice to a date, time, and place to be specified on the record at the meeting. Any person requiring special accommodations at the Meeting because of a disability or physical impairment should contact the District Manager’s Office at least forty-eight (48) hours prior to the Meeting. If you are hearing or speech impaired, please contact the Florida Relay Service by dialing 7-1-1, or 1-800-955-8771 (TTY) / 1-800-955-8770 (Voice), for aid in contacting the District Manager’s Office. Each person who decides to appeal any decision made by the Board with respect to any matter considered at the Meeting is advised that person will need a record of proceedings and that accordingly, the person may need to ensure that a verbatim record of the proceedings is made, including the testimony and evidence upon which such appeal is to be based.
Marilee Giles District Manager Nov. 7 00 (24-00383C)
IN THE CIRCUIT COURT OF THE FOURTH JUDICIAL CIRCUIT, IN AND FOR CLAY COUNTY, FLORIDA CASE NO.: 2019-CA-000650 THE BANK OF NEW YORK MELLON FKA THE BANK OF NEW YORK, AS TRUSTEE FOR THE CERTIFICATEHOLDERS CWALT, INC., ALTERNATIVE LOAN TRUST 2006-25CB, MORTGAGE PASS-THROUGH CERTIFICATES, SERIES 200625CB, Plaintiff, v. SHORELINE HOAS, LLC, SUCCESSOR TRUSTEE OF THE CLAY COUNTY LAND TRUST, #05-04-25-007868-010-52, DATED DECEMBER 26, 2012; et al., Defendants. CLERK’S NOTICE OF SALE NOTICE IS GIVEN that, in accordance with the Final Judgment of Foreclosure entered on October 24, 2024 in the abovestyled cause, I will sell to the highest and best bidder for cash on December 4, 2024 at 10:00 A.M. at: www.clay.realforeclose.com the following described property: LOT 219, PEBBLE CREEK AT OAKLEAF PLANTATION, PHASE 1, ACCORDING TO THE PLAT THEREOF AS RECORDED IN PLAT BOOK 43, PAGES 4 THROUGH 10, OF THE PUBLIC RECORDS OF CLAY COUNTY, FLORIDA. Property Address: 3886
IN THE CIRCUIT COURT FOR CLAY COUNTY, FLORIDA PROBATE DIVISION File No. 2024-CP-0407 Division B IN RE: ESTATE OF MARY DIANE CROWE Deceased. NOTICE TO CREDITORS (summary administration) TO ALL PERSONS HAVING CLAIMS OR DEMANDS AGAINST THE ABOVE ESTATE: You are hereby notified that an Order of Summary Administration has been entered in the estate of Mary Diane Crowe, deceased, File Number 2024-CP-0407, by the Circuit Court for Clay County, Florida, Probate Division, the address of which is 825 North Orange Avenue, Green Cove Springs, Florida 32043; that the decedent’s date of death was June 18, 2024; that the total value of the estate is $30,184.60 and that the names and addresses of those to whom it has been assigned by such order are: James Robert Crowe, Jr., 2325 Post St., Jacksonville, FL 32204 Stephanie Lynn Prentice, 485 Oldfield Drive, Orange Park, FL 32003 ALL INTERESTED PERSONS ARE NOTIFIED THAT: All creditors of the estate of the decedent and persons having claims or demands against the estate of the decedent other than those for whom provision for full payment was made in the Order of Summary Administration must file their claims with this court WITHIN THE TIME PERIODS SET FORTH IN FLORIDA STAT-
Pebble Brooke Circle, Orange Park, FL 32065 ANY PERSON CLAIMING AN INTEREST IN THE SURPLUS FROM THE SALE, IF ANY, OTHER THAN THE PROPERTY OWNER AS OF THE DATE OF THE LIS PENDENS MUST FILE A CLAIM BEFORE THE CLERK REPORTS THE SURPLUS AS UNCLAIMED AMERICANS WITH DISABILITIES ACT If you are a person with a disability who needs an accommodation in order to access court facilities or participate in a court proceeding, you are entitled, at no cost to you, to the provision of certain assistance. To request such an accommodation, please contact Court Administration at least three business days prior to the required service by using one of the following methods: Phone(904) 630-2564; Fax - (904) 6301146; TTD/TTY - (800) 955-8770 (Florida Relay Service). E-Mail –crtintrp@coj.net.
Dated: October 31, 2024. TARA S. GREEN, CLERK CLAY COUNTY CIRCUIT COURT By: Gracie Moore Deputy Clerk (Court Seal)
KELLEY L. CHURCH, ESQ. QUINTAIROS, PRIETO, WOOD & BOYER, P.A. 255 SOUTH ORANGE AVENUE, SUITE 900 ORLANDO, FL 32801
EMAIL: SERVICECOPIES@ QPWBLAW.COM ATTORNEY FOR PLAINTIFF Nov. 7/14 00 (24-00387C)
UTES SECTION 733.702. ALL CLAIMS AND DEMANDS NOT SO FILED WILL BE FOREVER BARRED. NOTWITHSTANDING ANY OTHER APPLICABLE TIME PERIOD, ANY CLAIM FILED TWO (2) YEARS OR MORE AFTER THE DECEDENT’S DATE OF DEATH IS BARRED.
A personal representative or curator has no duty to discover whether any property held at the time of the decedent’s death by the decedent or the decedent’s surviving spouse is property to which the Florida Uniform Disposition of Community Property Rights at Death Act as described in sections 732.216-732.228, applies, or may apply, unless a written demand is made by a creditor as specified under section 732.2211. The date of first publication of this Notice is November 7, 2024. Person Giving Notice: James Robert Crowe, Jr. 2325 Post St. Jacksonville, Florida 32204 Attorney for Person Giving Notice: /s/Janice B. Richardson John R. Crawford
IN THE CIRCUIT COURT, FOURTH JUDICIAL CIRCUIT, IN AND FOR CLAY COUNTY, FLORIDA CASE NO.: 2024-CP-000589
DIVISION: Probate
IN RE: ESTATE OF JOEL EDWARD FARR, Deceased.
NOTICE TO CREDITORS
If you have been served with a copy of this notice and you have any claim or demand against the decedent’s estate, even if that claim is unmatured, contingent, or unliquidated, you must file your claim with the court ON OR BEFORE THE LATER OF A DATE THAT IS 3 MONTHS AFTER THE FIRST PUBLICATION OF THIS NOTICE OR 30 DAYS AFTER YOU RECEIVE A COPY OF THIS NOTICE.
All other creditors of the decedent and other persons who have claims or demands against the decedent’s estate, including unmatured, contingent, or unliquidated claims, must file their claims with the court ON OR BEFORE THE DATE THAT IS 3 MONTHS AFTER THE FIRST PUBLICATION OF THIS NOTICE. A personal representative or curator has no duty to discover whether any property held at the time of the decedent’s death by the decedent or the decedent’s surviving spouse is property to which the Florida Uniform Disposition of Community Property Rights at Death Act as described in sections 732.216732.228, applies, or may apply,
unless a written demand is made by a creditor as specified under section 732.2211. ALL CLAIMS NOT FILED WITHIN THE PERIODS SET FORTH IN SECTION 733.302, FLORIDA STATUTES, WILL BE FOREVER BARRED. EVEN IF A CLAIM IS NOT BARRED BY THE LIMITATIONS DESCRIBED ABOVE, ALL CLAIMS THAT HAVE NOT BEEN FILED WILL BE BARRED TWO YEARS AFTER DECEDENT’S DEATH. The address of the court where this probate is pending is: 825 North Orange Ave., PO Box 698, Green Cove Springs, FL 32043. The date of death of the decedent is: June 12, 2024. The date of first publication of this notice is October 31, 2024. Petitioner: Anthony Farr c/o Law Offices of Mark F. Moss, PLLC 12276 San Jose Blvd., Suite 520 Jacksonville, FL 32223
Attorney for Petitioner MARK F. MOSS, ESQ. Florida Bar Number: 119573 Law Offices of Mark F. Moss, PLLC 12276 San Jose Blvd., Suite 520 Jacksonville, FL 32223
Telephone: (904) 329-7242 E-Mail 1: Service@markmosslaw.com E-Mail 2: mark@markmosslaw.com Oct. 31, Nov. 7 24 (24-00380C)
IN THE CIRCUIT COURT FOR CLAY COUNTY, FLORIDA PROBATE DIVISION File No. 24-CP-000574 Division B IN RE: ESTATE OF CYNTHIA ELOIS ALSTON
Deceased.
NOTICE TO CREDITORS
The administration of the estate of Cynthia Elois Alston, deceased, whose date of death was July 4, 2024, is pending in the Circuit Court for Clay County, Florida, Probate Division, the address of which is 825 North Orange Ave., Green Cove Springs, FL 32043. The names and addresses of the personal representative and the personal representative’s attorney are set forth below. All creditors of the decedent and other persons having claims or demands against decedent’s estate on whom a copy of this notice is required to be served must file their claims with this court ON OR BEFORE THE LATER OF 3 MONTHS AFTER THE TIME OF THE FIRST PUBLICATION OF THIS NOTICE OR 30 DAYS AFTER THE DATE OF SERVICE OF A COPY OF THIS NOTICE ON THEM.
The personal representative has no duty to discover whether any property held at the time of the decedent’s death by the decedent or the decedent’s surviving spouse is property to which the Florida Uniform Disposition of Community Property Rights at Death Act as described in ss. 732.216-
732.228, Florida Statutes, applies, or may apply, unless a written demand is made by a creditor as specified under s. 732.2211, Florida Statutes. All other creditors of the decedent and other persons having claims or demands against decedent’s estate must file their claims with this court WITHIN 3 MONTHS AFTER THE DATE OF THE FIRST PUBLICATION OF THIS NOTICE. ALL CLAIMS NOT FILED WITHIN THE TIME PERIODS SET FORTH IN FLORIDA STATUTES SECTION 733.702 WILL BE FOREVER BARRED. NOTWITHSTANDING THE TIME PERIODS SET FORTH ABOVE, ANY CLAIM FILED TWO (2) YEARS OR MORE AFTER THE DECEDENT’S DATE OF DEATH IS BARRED. The date of first publication of this notice is October 31, 2024. Personal Representative: Samuel J. Alston 1978 Summit Ridge Road Fleming Island, Florida 32003 Attorney for Personal Representative: Brian Sherman, Esq. Attorney Florida Bar Number: 1009362 Sermons Law, PLLC 1844 Atlantic Blvd. Jacksonville, Florida 32207 Telephone: (904) 738-7207 Fax: (904) 637-7144
E-Mail: brian@sermonsfirm.com
Secondary E-Mail: info@sermonsfirm.com Oct. 31, Nov. 7 24 (24-00375C)
SECOND INSERTION
IN THE CIRCUIT COURT IN AND FOR CLAY COUNTY, FLORIDA PROBATE DIVISION FILE NO.: 2024-CP-0582
DIVISION: B IN RE: ESTATE OF INEZ CORLEY LATHAM, DECEASED.
NOTICE TO CREDITORS
The administration of the estate of Inez Corley Latham, deceased, whose date of death was September 12, 2024, is pending in the Circuit Court for Clay County, Florida, Probate Division, the address of which is 825 N. Orange Avenue, Green Cove Springs, FL 32043. The names and addresses of the personal representative and the personal representative’s attorney are set forth below. All creditors of the decedent and other persons having claims or demands against decedent’s estate on whom a copy of this notice is required to be served must file their claims with this Court ON OR BEFORE THE LATER OF 3 MONTHS AFTER THE TIME OF THE FIRST PUBLICATION OF THIS NOTICE OR 30 DAYS AFTER THE DATE OF SERVICE OF A COPY OF THIS NOTICE ON THEM. All other creditors of the decedent and other persons having claims or demand against decedent’s estate must file their claims with this Court WITHIN 3 MONTHS AFTER THE DATE OF THE FIRST PUBLICATION OF THIS NOTICE.
A personal representative or curator has no duty to discover whether any property held at the
Notice of Public Sale
Pursuant F.S. 328.17, United American Lien & Recovery as agent w/ power of attorney will sell the following vessel(s) to the highest bidder. Inspect 1 week prior @ marina; cash or cashier check; all auctions are held w/ reserve; any persons interested ph 954-563-1999
Sale Date November 22, 2024 @ 10:00 am 3411 NW 9th Ave #707 Ft Lauderdale FL 33309
V13121 1971 MRY FL7839RM Hull ID#: 620688 sail antique diesel fiberglass 35ft R/O Michael Carlos Perez Delgado Lienor: Green Cove Springs Marina 851 Bulkhead Rd Green Cove Springs V13122 1982 Hunter Hull ID#: HUN33557M82H DO#: 655699 sail pleasure gas fiberglass 32ft R/O Walter Lewis and Vicki Lou Bennett Lienor: Green Cove Springs Marina 851 Bulkhead Rd Green Cove Springs
V13123 1988 Chantiers Beneteau Hull ID#: BEY0W0301788 DO#: 930024 sail pleasure fiberglass 41ft R/O John M Terpening
Lienor: Green Cove Springs Marina 851 Bulkhead Rd Green Cove Springs
V13124 1978 Island T Hull ID#: ETY410411278 DO#: 605066 sail pleasure diesel fiberglass 35ft R/O Carl Roberts Lienor: Green Cove Springs Marina 851 Bulkhead Rd Green Cove Springs
V13125 2001 BLB Hull ID#: BLBA11EVE001 DO#: 1122230 inboard pleasure diesel fiberglass 37ft R/O Brent L Silbernagel Lienor: Green Cove Springs Marina 851 Bulkhead Rd Green Cove
Springs V13126 1986 HUN FL4417HU Hull ID#: HUN34954K586 inboard diesel fiberglass 34ft R/O Progressive Casualty Lienor: Green Cove Springs Marina 851 Bulkhead Rd Green Cove Springs V13127 1973 C & C 25 FL3582BS Hull ID#: 25003373 sail antique fiberglass 25ft R/O Elijah Cain
Zawacky Lienor: Green Cove Springs Marina 851 Bulkhead Rd Green Cove Springs Oct. 31, Nov. 7 24 (24-00376C)
SECOND INSERTION
IN THE CIRCUIT COURT OF THE 4TH JUDICIAL CIRCUIT IN AND FOR CLAY COUNTY, FLORIDA PROBATE DIVISION File No. 2024CP000489 IN RE: ESTATE OF ROBERT MATTHEW STEPHENS SR, Deceased.
NOTICE TO CREDITORS
The administration of the estate of ROBERT MATTHEW STEPHENS SR, Deceased, whose date of death was January 1, 2021, is pending in the Circuit Court for CLAY County, Florida, Probate Division, the address of which is 825 North Orange Ave., Green Cove Springs, FL 32043. The names and addresses of the personal representative and the personal representative’s attorney are set forth below.
All creditors of the decedent and other persons having claims or demands against decedent’s estate on whom a copy of this notice is required to be served must file their claims with this court WITHIN THE LATER OF 3 MONTHS AFTER THE TIME OF THE FIRST PUBLICATION OF THIS NOTICE OR 30 DAYS AFTER THE DATE OF SERVICE OF A COPY OF THIS NOTICE ON THEM.
All other creditors of the decedent and other persons having claims or demands against decedent’s estate must file their claims with this court WITHIN 3 MONTHS AFTER THE DATE OF THE FIRST PUBLICATION
OF THIS NOTICE. ALL CLAIMS NOT FILED WITHIN THE TIME PERIODS SET FORTH IN SECTION 733.702 OF THE FLORIDA PROBATE CODE WILL BE FOREVER BARRED. NOTWITHSTANDING THE TIME PERIODS SET FORTH ABOVE, ANY CLAIM FILED TWO (2) YEARS OR MORE AFTER THE DECEDENT’S DATE OF DEATH IS BARRED.
A personal representative or curator has no duty to discover whether any property held at the time of the decedent’s death by the decedent or the decedent’s surviving spouse is property to which the Florida Uniform Disposition of Community Property Rights at Death Act as described in sections 732.216-732.228, applies, or may apply, unless a written demand is made by a creditor as specified under section 732.2211.
The date of first publication of this notice is October 31, 2024. ROBERT STEPHENS JR., Personal Representative
Attorney for Personal Representative: Scott R. Bugay, Esquire Florida Bar No. 5207 Citicentre, Suite P600 290 NW 165 Street Miami FL 33169
Telephone: (305) 956-9040
Fax: (305) 945-2905
Primary Email: Scott@srblawyers.com
Secondary Email: angelica@srblawyers.com Oct. 31, Nov. 7 24 (24-00381C)
time of the decedent’s death by the decedent or the decedent’s surviving spouse is property to which the Florida Uniform Disposition of Community Property Rights at Death Act, as described in Sections 732.216-732.228, applies, or may apply, unless a written demand is made by a creditor as specified under Section 732.2211. ALL CLAIMS NOT FILED WITHIN THE TIME PERIODS SET FORTH IN FLORIDA STATUTES SECTION 733.702 WILL BE FOREVER BARRED. NOTWITHSTANDING THE TIME PERIODS SET FORTH ABOVE, ANY CLAIM FILED TWO (2) YEARS OR MORE AFTER THE DECEDENT’S DEATH IS BARRED. The date of first publication of this notice is October 31, 2024.
Personal Representative: Sharon Denise Kramer c/o Berg Bryant Elder Law Group, PLLC 7545 Centurion Parkway, Suite 108 Jacksonville, FL 32256
Attorney for Personal Representative: Carla Trinca-Conley, Esq. Florida Bar No.: 119618 ctrincaconley@bbelderlaw.com
Madeline A. Franson, Esq. Florida Bar No.: 1049246 mfranson@bbelderlaw.com BERG BRYANT ELDER LAW GROUP
7545 Centurion Parkway, Suite 108 Jacksonville, FL 32256 (904) 398-6100 Oct. 31, Nov. 7 24 (24-00379C)
IN THE CIRCUIT COURT, IN THE FOURTH JUDICIAL CIRCUIT, IN AND FOR CLAY COUNTY, FLORIDA CASE NO.: 2024-CP-000587 In re the estate of Fredy Cedeno-Saltos, Deceased.
NOTICE TO CREDITORS (Summary Administration) TO ALL PERSONS HAVING CLAIMS OR DEMANDS AGAINST THE ABOVE ESTATE: You are hereby notified that an Order of Summary Administration will be entered in the estate of Fredy Cedeno-Saltos, deceased. Court Case No. 2024-CP-000587, in the Circuit Court for Clay County, Florida, Probate Division, the address of which is 825 N. Orange Ave, Green Cove Springs, Florida 32043. The decedent’s date of death was February 26, 2024, the total value of the estate is less than $75,000 and the names and addresses of those to whom it will be assigned by such order are: Priscella E. Morales, 1132 Orange Branch Trl., St Johns, FL 32259, Natural child, Adult Maria L. Cedeno, 76 Cassels Ct., Hinesville, GA 31313, Natural child, Adult Mariah H. Cedeno, 3634 Braeden Ct., Middleburg, FL 32068, Natural child, Adult ALL INTERESTED PERSONS ARE NOTIFIED THAT: All creditors of the estate of the decedent and persons having claims or demands against the estate of the decedent other than those for whom provision for full payment was made in the Order of Summary Administration must file their claims with this court WITHIN THE TIME PERIODS
IN THE CIRCUIT COURT FOR NASSAU COUNTY, FLORIDA PROBATE DIVISION File No. 45-2024-CP-511
Division Probate IN RE: ESTATE OF KEITH GERARD SWALLS
Deceased. NOTICE TO CREDITORS
The administration of the estate of Keith Gerard Swalls, deceased, whose date of death was August 18, 2024, is pending in the Circuit Court for Nassau County, Florida, Probate Division, the address of which is Nassau County Courthouse, 76347 Veteran’s Way, Yulee, Florida 32097. The names and addresses of the personal representative and the personal representative’s attorney are set forth below.
All creditors of the decedent and other persons having claims or demands against decedent’s estate on whom a copy of this notice is required to be served must file their claims with this court ON OR BEFORE THE LATER OF 3 MONTHS AFTER THE TIME OF THE FIRST PUBLICATION OF THIS NOTICE OR 30 DAYS AFTER THE DATE OF SERVICE OF A COPY OF THIS NOTICE ON THEM.
The personal representative has no duty to discover whether any property held at the time of the decedent’s death by the decedent or the decedent’s surviving spouse is property to which the Florida Uniform Disposition of Community Property Rights at Death Act as described in ss. 732.216732.228, Florida Statutes, applies,
or may apply, unless a written demand is made by a creditor as specified under s. 732.2211, Florida Statutes. All other creditors of the decedent and other persons having claims or demands against decedent’s estate must file their claims with this court WITHIN 3 MONTHS AFTER THE DATE OF THE FIRST PUBLICATION OF THIS NOTICE. ALL CLAIMS NOT FILED WITHIN THE TIME PERIODS SET FORTH IN FLORIDA STATUTES SECTION 733.702 WILL BE FOREVER BARRED. NOTWITHSTANDING THE TIME PERIODS SET FORTH ABOVE, ANY CLAIM FILED TWO (2) YEARS OR MORE AFTER THE DECEDENT’S DATE OF DEATH IS BARRED. The date of first publication of this notice is November 7, 2024. Personal Representative: Renee Anita Lopez Swalls 44292 Woodridge Drive Callahan, Florida 32011 Attorney for Personal Representative: Amanda Meyer, Esquire Attorney
Florida Bar Number: 76997 Owenby Law, PA 6136 Atlantic Blvd. Jacksonville, FL 32211 Telephone: (904) 359-5115 Fax: (904) 359-5116 E-Mail: Legal@OwenbyLawfirm.com
IN THE COUNTY COURT OF THE FOURTH JUDICIAL CIRCUIT, IN AND FOR NASSAU COUNTY, FLORIDA CASE NO.: 2023-CC-000456
PAGE HILL OWNERS ASSOCIATION, INC., a Florida non-profit corporation, Plaintiff, v. THOMAS JOSEPH REUTER, et al., Defendant(s). NOTICE OF FORECLOSURE SALE NOTICE IS GIVEN that the undersigned Clerk of the Court will offer the following described property in Nassau County, Florida:
Street Address: 86515 Worthington Drive Yulee, FL 32097
SET FORTH IN FLORIDA STATUTES SECTION 733.702, BEING ON OR BEFORE THE LATER OF 3 MONTHS AFTER THE DATE OF THE FIRST PUBLICATION OF THIS NOTICE OR 30 DAYS AFTER THE DATE OF SERVICE OF A COPY OF THIS NOTICE ON THEM. ALL CLAIMS NOT FILED WITHIN THE TIME PERIONDS SET FORTH IN FL STAT. 733.702 WILL BE FOREVER BARRED. NOTWITHSTANDING THE TIME PERIODS SET FORTH ABOVE, ANY CLAIMS FILED TWO (2) YEARS OR MORE AFTER THE DECEDENT’S DATE OF DEATH IS BARRED.
A personal representative or curator has no duty to discover whether any property held at the time of the decedent’s death by the decedent or the decedent’s surviving spouse is property to which the Florida Uniform Disposition of Community Property Rights at Death Act as described in sections 732.216-732.228, applies, or may apply, unless a written demand is made by a creditor as specified under section 732.2211.
The date of first publication of this Notice is October 31, 2024. Priscella Morales Petitioner for Estate A. Reid Mann Bar No. 1022355
Attorney for Personal Representative 539 Captiva Dr. Ponte Vedra, Florida 32081
Ph.: (904) 800-9446
Email for Electronic Service: reid@compassestatelaw.com Oct. 31, Nov. 7 24 (24-00382C)
Legal Description: Lot 9 of PAGE HILL, UNIT TWO, according to the plat thereof as recorded in Plat Book 6, Pages 318-319, of the Public Records of Nassau County, Florida. for sale to the highest bidder for cash on January 16, 2025, at 11:30 a.m. at: www.nassauclerk.realforeclose.com pursuant to the Final Judgment
of Foreclosure in this action dated October 22, 2024. Any person claiming an interest in the surplus from the sale, if any, other than the property owner as of the date of the lis pendens, must file a claim before the clerk reports the surplus as unclaimed. If you are a person with a disability who needs any accommodation in order to participate in this proceeding, you are entitled at no cost to you, to the provision of certain assistance. Please contact the ADA Coordinator at calewis@nassauclerk.com or (904) 548-4600 press 0 at least 7 days before your scheduled court appearance, or immediately upon receiving this notification if the time before the scheduled appearance is less than 7 days; if you are hearing or voice impaired, call 711. DATED this 25th day of October, 2024. JOHN A. CRAWFORD CLERK OF COURT By: Amy B. Ennis Deputy Clerk (Court Seal) David D. Rottmann, Esq. Coker Law 136 East Bay Street Jacksonville, FL 32202 Oct. 31, Nov. 7 25 (24-00193N)
SECOND INSERTION
IN THE FOURTH JUDICIAL CIRCUIT COURT IN AND FOR NASSAU COUNTY, FLORIDA PROBATE DIVISION CASE NO.: 2024-CP-0483
DIVISION: Probate IN RE: ESTATE OF STEPHEN J. GERGEL, Deceased. NOTICE TO CREDITORS
The administration of the estate of STEPHEN J. GERGEL, deceased, whose date of death was July 22, 2024, is pending in the Circuit Court for Nassau County, Florida, Probate Division, the address of which is 76346 Veterans Way, Yulee, Florida 32097. The names and addresses of the Personal Representative and the Personal Representative’s attorneys are set forth below. All creditors of the decedent and other persons having claims or demands against decedent’s estate on whom a copy of this notice is required to be served must file their claims with this court WITHIN THE LATER OF THREE (3) MONTHS AFTER THE TIME OF THE FIRST PUBLICATION OF THIS NOTICE OR THIRTY (30) DAYS AFTER THE DATE OF SERVICE OF A COPY OF THIS NOTICE ON THEM. All other creditors of the decedent and other persons having claims or demands against decedent’s estate must file their claims with this court WITHIN THREE (3) MONTHS AFTER THE DATE OF THE FIRST PUBLICATION OF THIS NOTICE. ALL CLAIMS NOT FILED WITHIN THE TIME PERI-
ODS SET FORTH IN SECTION 733.702 OF THE FLORIDA PROBATE CODE WILL BE FOREVER BARRED. NOTWITHSTANDING THE TIME PERIODS SET FORTH ABOVE, ANY CLAIM FILED TWO (2) YEARS OR MORE AFTER THE DECEDENT’S DATE OF DEATH IS BARRED. A personal representative or curator has no duty to discover whether any property held at the time of the decedent’s death by the decedent or the decedent’s surviving spouse is property to which the Florida Uniform Disposition of Community Property Rights at Death Act as described in sections 732.216-732.228, applies, or may apply, unless a written demand is made by a creditor as specified under section 732.2211. The date of first publication of this notice is October 31, 2024. Personal Representative: KELVIN L. DRUMMOND, SR. 54814 Ogilvie Road Callahan, FL 32011 Attorney for Personal Representative: /s/ Clayton T. Miller Clayton T. Miller Florida Bar No.: 047094
Email: clayton@ivanlawgroup.com
IN THE CIRCUIT COURT FOR NASSAU COUNTY, FLORIDA PROBATE DIVISION
File No. 2024-CP-467 Division - B IN RE: ESTATE OF FRANK A. SCALTRITO, SR
Deceased.
NOTICE TO CREDITORS
The administration of the estate of Frank A. Scaltrito, Sr, deceased, whose date of death was September 6, 2024, is pending in the Circuit Court for Nassau County, Florida, Probate Division, the address of which is 76347 Veterans Way, Yulee, Florida 32097. The names and addresses of the personal representative and the personal representative’s attorney are set forth below.
All creditors of the decedent and other persons having claims or demands against decedent’s estate on whom a copy of this notice is required to be served must file their claims with this court ON OR BEFORE THE LATER OF 3 MONTHS AFTER THE TIME OF THE FIRST PUBLICATION OF THIS NOTICE OR 30 DAYS AFTER THE DATE OF SERVICE OF A COPY OF THIS NOTICE ON THEM. All other creditors of the decedent and other persons having claims or demands against decedent’s estate must file their claims with this court WITHIN 3 MONTHS AFTER THE DATE OF THE FIRST PUBLICATION OF THIS NOTICE.
ALL CLAIMS NOT FILED WITHIN THE TIME PERIODS SET FORTH IN FLORIDA STATUTES SECTION 733.702 WILL BE FOREVER BARRED. NOTWITHSTANDING THE TIME PERIODS SET FORTH ABOVE, ANY CLAIM FILED TWO (2) YEARS OR MORE AFTER THE DECEDENT’S DATE OF DEATH IS BARRED.
A personal representative or curator has no duty to discover whether any property held at the time of the decedent’s death by the decedent or the decedent’s surviving spouse is property to which the Florida Uniform Disposition of Community Property Rights at Death Act as described in sections 732.216-732.228, applies, or may apply, unless a written demand is made by a creditor as specified under section 732.2211.
The date of first publication of this notice is October 31, 2024.
Personal Representative: Theresa M. Lumsden 86218 Meadowwood Dr Fernandina Beach, FL 32034 Attorney for Personal Representative: Kristen D. Drake E-mail Addresses: Kristen@kdrakelaw.com Florida Bar No. 13433 Law Office Kristen Drake, P.A. 1403 Park Ave, Suite B Fernandina Beach, FL 32034 Telephone: (904) 261-2860 Oct. 31, Nov. 7 25 (24-00196N)

IN THE CIRCUIT COURT FOR NASSAU COUNTY, FLORIDA PROBATE DIVISION File No. 45-2024-CP-443 Division Probate IN RE: ESTATE OF SHERRY ROSELLE GOLD
Deceased.
NOTICE TO CREDITORS
The administration of the estate of SHERRY ROSELLE GOLD, deceased, whose date of death was August 22, 2024, is pending in the Circuit Court for Nassau County, Florida, Probate Division, the address of which is 76347 Veterans Way, Yulee, Florida 32097. The names and addresses of the personal representative and the personal representative’s attorneys are set forth below. All creditors of the decedent and other persons having claims or demands against decedent’s estate on whom a copy of this notice is required to be served must file their claims with this court ON OR BEFORE THE LATER OF 3 MONTHS AFTER THE TIME OF THE FIRST PUBLICATION
IN THE CIRCUIT COURT, FOURTH JUDICIAL CIRCUIT, IN AND FOR NASSAU COUNTY, FLORIDA PROBATE DIVISION File No. 45-2024-CP-130 IN RE: ESTATE OF LARRY WAYNE PERRY
Deceased NOTICE TO CREDITORS
The administration of the estate of LARRY WAYNE PERRY, deceased, whose date of death was February 5, 2024, is pending in the Circuit Court for NASSAU County, Florida, Probate Division, the address of which is 76347 Veterans Way, Yulee, Florida 32097. The names and addresses of the personal representative and the personal representative’s attorney are set forth below.
All creditors of the decedent and other persons having claims or demands against decedent’s estate on whom a copy of this notice is required to be served must file their claims with this court ON OR BEFORE THE LATER OF 3 MONTHS AFTER THE TIME OF THE FIRST PUBLICATION
IN THE CIRCUIT COURT OF THE 4TH JUDICIAL CIRCUIT, IN AND FOR NASSAU COUNTY, FLORIDA CIVIL DIVISION: CASE NO.: 24CA000165 NATIONSTAR MORTGAGE LLC, Plaintiff, vs. RAWLS M. PATRICK; JPMORGAN CHASE BANK, NATIONAL ASSOCIATION; DAWN PETTY, DAVID PETTY; UNKNOWN TENANT IN POSSESSION OF THE SUBJECT PROPERTY, Defendants. NOTICE OF FORECLOSURE SALE NOTICE IS HEREBY GIVEN pursuant to an Order or Final Judgment entered in the above styled cause now pending in said court and as required by Florida Statute 45.031 (2), JOHN A. CRAWFORD as the Clerk of the Circuit Court shall sell to the highest and best bidder for cash electronically at: www.nassauclerk.realforeclose.com at, 11:30 AM on the 14 day of November, 2024, the following described property as set forth in said Final Judgment, to wit: PART OF THE SOUTHEAST 1/4 OF SECTION 30, TOWNSHIP 2 NORTH, RANGE 25 EAST, NASSAU COUNTY, FLORIDA, BEING MORE PARTICULARLY DESCRIBED AS FOLLOWS: COMMENCE AT THE NORTHWEST CORNER OF THE WEST 1/2 OF THE SOUTHWEST 1/4 OF SOUTHEAST 1/4 OF SAID SECTION 30; THENCE NORTH 88 DEGREES 02 MINUTES 19 SECONDS EAST, 651.50 FEET; THENCE SOUTH 54 DEGREES 50 MINUTES 03 SECONDS EAST, 249.69 FEET TO THE WESTERLY RIGHT-OF-WAY LINE OF CSX RAILROAD; THENCE SOUTH 35
DEGREES 10 MINUTES 01
SECONDS WEST, 291.44
FEET ALONG SAID WEST-
ERLY RIGHT-OF-WAY LINE TO THE POINT OF BEGINNING; THENCE NORTH 58
DEGREES 27 MINUTES 32
SECONDS WEST, 259.03
FEET; THENCE SOUTH 31
DEGREES 37 MINUTES 04
SECONDS WEST, 176.74
OF THIS NOTICE OR 30 DAYS AFTER THE DATE OF SERVICE OF A COPY OF THIS NOTICE ON THEM.
The personal representative has no duty to discover whether any property held at the time of the decedent’s death by the decedent or the decedent’s surviving spouse is property to which the Florida Uniform Disposition of Community Property Rights at Death Act as described in ss. 732.216732.228, Florida Statutes, applies, or may apply, unless a written demand is made by a creditor as specified under s. 732.2211, Florida Statutes. All other creditors of the decedent and other persons having claims or demands against decedent’s estate must file their claims with this court WITHIN 3 MONTHS AFTER THE DATE OF THE FIRST PUBLICATION OF THIS NOTICE.
ALL CLAIMS NOT FILED WITHIN THE TIME PERIODS SET FORTH IN FLORIDA STATUTES SECTION 733.702 WILL
OF THIS NOTICE OR 30 DAYS AFTER THE DATE OF SERVICE OF A COPY OF THIS NOTICE ON THEM.
The personal representative has no duty to discover whether any property held at the time of the decedent’s death by the decedent or the decedent’s surviving spouse is property to which the Florida Uniform Disposition of Community Property Rights at Death Act as described in ss. 732.216732.228, Florida Statutes, applies, or may apply, unless a written demand is made by a creditor as specified under s. 732.2211, Florida Statutes.
All other creditors of the decedent and other persons having claims or demands against decedent’s estate must file their claims with this court WITHIN 3 MONTHS AFTER THE DATE OF THE FIRST PUBLICATION OF THIS NOTICE.
ALL CLAIMS NOT FILED WITHIN THE TIME PERIODS SET FORTH IN FLORIDA STATUTES SECTION 733.702 WILL
FEET; THENCE SOUTH 58
DEGREES 22 MINUTES 56
SECONDS EAST, 248.05
FEET, TO THE WESTERLY RIGHT-OF-WAY LINE OF SAID CSX RAILROAD; THENCE NORTH 35
DEGREES 10 MINUTES 01
SECONDS EAST, 177.43
FEET ALONG SAID WESTERLY RIGHT-OF-WAY LINE OF CSX RAILROAD TO THE POINT OF BEGINNING. TOGETHER WITH: 30
FOOT EASEMENT FOR INGRESS AND EGRESS: PART OF THE SOUTHEAST 1/4 OF SECTION 30, TOWNSHIP 2 NORTH, RANGE 25 EAST, NASSAU COUNTY, FLORIDA, BEING MORE PARTICULARLY DESCRIBED AS FOLLOWS: COMMENCE AT THE NORTHWEST CORNER OF THE WEST .1/2 OF THE SOUTHWEST 1/4 OF THE SOUTHEAST 1/4 OF SAID SECTION 30; THENCE NORTH 88 DEGREES 02
MINUTES 19 SECONDS EAST, 651.50 FEET; THENCE SOUTH 54 DEGREES 50 MINUTES 03 SECONDS EAST, 249.69 FEET TO THE WESTERLY RIGHT-OF-WAY LINE OF CSX RAILROAD; THENCE SOUTH 35
DEGREES 10 MINUTES 01
SECONDS WEST, 291.44
FEET ALONG SAID WESTERLY RIGHT-OF-WAY LINE OF CSX RAILROAD; THENCE SOUTH 28
DEGREES 59 MINUTES 30
SECONDS EAST, 222.22
FEET TO THE EASTERLY RIGHT-OF-WAY LINE OF SAID CSX RAILROAD AND TO THE POINT OF BEGINNING; THENCE SOUTH 35
DEGREES 10 MINUTES 01
SECONDS WEST, 34.69
FEET ALONG SAID EASTERLY RIGHT-OF-WAY LINE OF SAID CSX RAILROAD; THENCE SOUTH 84
DEGREES 58 MINUTES 14
SECONDS EAST, 131.04
FEET TO THE WESTERLY RIGHT-OF-WAY LINE OF STATE ROAD #200, U.S.
HIGHWAY #301, A VARIABLE WIDTH RIGHT-OFWAY; THENCE NORTH 34
DEGREES 54 MINUTES 22
SECONDS EAST, 34.60 FEET
BE FOREVER BARRED. NOTWITHSTANDING THE TIME PERIODS SET FORTH ABOVE, ANY CLAIM FILED TWO (2) YEARS OR MORE AFTER THE DECEDENT’S DATE OF DEATH IS BARRED. The date of first publication of this notice is October 31, 2024.
Personal Representative: JENNIFER FIFE
86492 Cartesian Pointe Drive Yulee, Florida 32097
Attorney for Personal Representative:
THOMAS M. DONAHOO, JR. Florida Bar No.: 0078530
MICHELLE MEDINA
Florida Bar No.: 772623
DAVIS M. JOHNSON, III.
Florida Bar No.: 1055388
Attorneys for Petitioner
DONAHOO & MCMENAMY, P.A. 245 Riverside Avenue, Suite 150 Jacksonville, FL 32202
Telephone: (904) 354-8080
Fax: (904) 791-9563
E-Mail: eservice@dmjaxlaw.com Oct. 31, Nov. 7 25 (24-00195N)
FIRST INSERTION
IN THE CIRCUIT COURT FOR ST. JOHNS COUNTY, FLORIDA FILE NO.: CP24-0731
DIVISION: 59 IN RE: ESTATE OF DANIEL HENRY SKAWINSKI
Deceased.
NOTICE TO CREDITORS
The administration of the Florida estate of Daniel Henry Skawinski, deceased, whose date of death was September 3,2024, is pending in the Circuit Court for St. Johns County, Florida, Division 59; File No. CP24-0731; the address of which is 4010 Lewis Speedway, St. Johns, Florida 32080. The names and addresses of the personal representative and the personal representative’s attorney are set forth below.
FIRST INSERTION IN THE CIRCUIT COURT FOR ST. JOHNS COUNTY, FLORIDA PROBATE DIVISION File No. 24-CP-0585 Division Probate IN RE: Estate of Bryan S. Beske Deceased.
NOTICE TO CREDITORS
The administration of the estate of Bryan S. Beske, deceased, whose date of death was June 16, 2024, is pending in the Circuit Court for St. Johns County, Florida, Probate Division, the address of which is, St. Johns County Courthouse, Richard O. Watson Judicial Center, 4010 Lewis Speedway, St. Augustine, FL 32084. The names and addresses of the Personal Representative and the Personal Representative’s attorney are set forth below.
BE FOREVER BARRED. NOTWITHSTANDING THE TIME PERIODS SET FORTH ABOVE, ANY CLAIM FILED TWO (2) YEARS OR MORE AFTER THE DECEDENT’S DATE OF DEATH IS BARRED.
The date of first publication of this notice is October 31, 2024.
Personal Representative: /S/Kimberly Perry Kimberly Perry 77219 Hance Parkway, #35 Yulee, Florida 32097
Attorney for
Personal Representative: /S/Douglas A. Oberdorfer
DOUGLAS A. OBERDORFER, Esquire
Attorney
Florida Bar Number: 0139092
432 East Monroe Street Jacksonville, Florida 32202
Telephone: (904) 354-5454
Fax: (904) 350-9803
E-Mail:
doug@oberdorferlaw.com
Secondary E-Mail: service@oberdorferlaw.com Oct. 31, Nov. 7 25 (24-00198N)
ALONG SAID WESTERLY RIGHT-OF-WAY OF SAID U. S. HIGHWAY #301; THENCE NORTH 84 DEGREES 58 MINUTES 14 SECONDS WEST, 130.86 FEET TO THE POINT OF BEGINNING. TOGETHER WITH THE 1992 SKYLARK DOUBLEWIDE MOBILE HOME BEARING VIN 32620300AE TITLE NUMBER 63449023 AND VIN 32620300BE TITLE NUMBER 63449021 PROPERTY ADDRESS: 45100 PONY TRL, CALLAHAN, FL 32011 IF YOU ARE A PERSON CLAIMING A RIGHT TO FUNDS REMAINING AFTER THE SALE, YOU MUST FILE A CLAIM WITH THE CLERK NO LATER THAN THE DATE THAT THE CLERK REPORTS THE FUNDS AS UNCLAIMED IF YOU FAIL TO FILE A CLAIM, YOU WILL NOT BE ENTITLED TO ANY REMAINING FUNDS. AFTER THE FUNDS ARE REPORTED AS UNCLAIMED, ONLY THE OWNER OF RECORD AS OF THE DATE OF THE LIS PENDENS MAY CLAIM THE SURPLUS.
If you are a person with a disability who needs any accommodation in order to participate in this proceeding, you are entitled at no cost to you, to the provision of certain assistance. Please contact the ADA Coordinator at (904) 548-4600 (then press 0) at least 7 days before your scheduled court appearance, or immediately upon receiving this notification if the time before the scheduled appearance is less than 7 days; if you are hearing or voice impaired, call 711. Dated this 25th day of September 2024
JOHN A. CRAWFORD
Clerk Of The Circuit Court
By: Reymie Gordon Deputy Clerk (Court Seal)
De Cubas & Lewis, P.A.
PO Box 5026
Fort Lauderdale, FL 33310
Telephone: (954) 453-0365
Facsimile: (954) 771-6052
Toll Free: 1-800-441-2438
DESIGNATED PRIMARY
E-MAIL FOR SERVICE
PURSUANT TO FLA. R. JUD. ADMIN 2.516 eservice@decubaslewis.com Oct. 31, Nov. 7 26 (24-00194N) SECOND INSERTION SECOND INSERTION
All creditors of the decedent and other persons, who have claims or demands against the decedent’s estate, including unmatured, contingent or unliquidated claims, and who have been served a copy of this Notice, must file their claims with this Court WITHIN THE LATER OF THREE (3) MONTHS AFTER THE DATE OF THE FIRST PUBLICATION OF THIS NOTICE OR THIRTY (30) DAYS AFTER THE DATE OF SERVICE OF A COPY OF THIS NOTICE ON THEM.
All other creditors of the decedent and other persons who have claims or demands against decedent’s estate, including unmatured, contingent or unliquidated claims, must file their claims with this Court WITHIN THREE (3) MONTHS AFTER THE DATE OF THE FIRST PUBLICATION OF THIS NOTICE. ALL CLAIMS NOT SO FILED WILL BE FOREVER BARRED. NOTWITHSTANDING THE TIME PERIODS SET FORTH ABOVE, ANY CLAIM FILED TWO (2) YEARS OR MORE AFTER THE DECEDENT’S DATE OF DEATH IS BARRED.
A personal representative or curator has no duty to discover whether any property held at the time of the decedent’s death by the decedent or the decedent’s surviving spouse is property to which the Florida Uniform Disposition of Community Property Rights at Death Act as described in sections 732.216-732.228, applies, or may apply, unless a written demand is made by a creditor as specified under section 732.2211. THE DATE OF FIRST PUBLICATION OF THIS NOTICE IS: November 7, 2024.
Personal Representative: Glenn Michael Skawinski
Attorney for Personal Representative: James Hatfield, Esquire Florida Bar No.: 87935
St. Johns Law Group 104 Sea Grove Main Street St. Augustine, FL 32080 (904) 495-0400 Nov. 7/14 00 (24-00559J)
All creditors of the decedent and other persons having claims or demands against decedent’s estate, on whom a copy of this notice has been served, must file their claims with this Court WITHIN THE LATER OF 3 MONTHS AFTER THE TIME OF THE FIRST PUBLICATION OF THIS NOTICE OR 30 DAYS AFTER THE TIME OF SERVICE OF A COPY OF THIS NOTICE ON THEM. All other creditors of the decedent and other persons having claims or demands against decedent’s estate must file their claims with this Court WITHIN 3 MONTHS AFTER THE DATE OF THE FIRST PUBLICATION OF THIS NOTICE. ALL CLAIMS NOT SO FILED WITHIN THE TIME PERIODS SET FORTH IN FLORIDA STATUTES SECTION 733.702 WILL BE FOREVER BARRED. NOTWITHSTANDING THE TIME PERIOD SET FORTH ABOVE, ANY CLAIM FILED TWO (2) YEARS OR MORE AFTER THE DECEDENT’S DATE OF DEATH IS BARRED. A personal representative or curator has no duty to discover whether any property held at the time of the decedent’s death by the decedent or the decedent’s surviving spouse is property to which the Florida Uniform Disposition of Community Property Rights at Death Act as described in sections 732.216-732.228, applies, or may apply, unless a written demand is made by a creditor as specified under section 732.2211. The date of first publication of this notice is: November 7, 2024. Colin M. Beske Personal Representative David A. Swift Attorney for Personal Representative Email address: daswift@cpmlaw.com Florida Bar #: 117172 Address: Carlile Patchen & Murphey, LLP 950 Goodale Blvd., Suite 200 Columbus, Ohio 43212 Phone: (614) 628-0826 Nov. 7/14 00 (24-00560J)
FIRST INSERTION
IN THE CIRCUIT COURT FOR ST. JOHNS COUNTY, FLORIDA FILE NO.: CP24-0668
DIVISION: 59 IN RE: ESTATE OF ROBERT WAYNE CHRISTENSEN Deceased. NOTICE TO CREDITORS
The administration of the Florida estate of Robert Wayne Christensen, deceased, whose date of death was September 3,2024, is pending in the Circuit Court for St. Johns County, Florida, Division 59; File No. CP24-0668; the address of which is 4010 Lewis Speedway, St. Johns, Florida 32080. The names and addresses of the personal representatives and the personal representatives’ attorney are set forth below. All creditors of the decedent and other persons, who have claims or demands against the decedent’s estate, including unmatured, contingent or unliquidated claims, and who have been served a copy of this Notice, must file their claims with this Court WITHIN THE LATER OF THREE (3) MONTHS AFTER THE DATE OF THE FIRST PUBLICATION OF THIS NOTICE OR THIRTY (30) DAYS AFTER THE DATE OF SERVICE OF A COPY OF THIS NOTICE ON THEM. All other creditors of the decedent and other persons who have claims or demands against decedent’s estate, including unmatured, contingent or unliquidated claims, must file their claims with
this Court WITHIN THREE (3) MONTHS AFTER THE DATE OF THE FIRST PUBLICATION OF THIS NOTICE. ALL CLAIMS NOT SO FILED WILL BE FOREVER BARRED. NOTWITHSTANDING THE TIME PERIODS SET FORTH ABOVE, ANY CLAIM FILED TWO (2) YEARS OR MORE AFTER THE DECEDENT’S DATE OF DEATH IS BARRED. A personal representative or curator has no duty to discover whether any property held at the time of the decedent’s death by the decedent or the decedent’s surviving spouse is property to which the Florida Uniform Disposition of Community Property Rights at Death Act as described in sections 732.216-732.228, applies, or may apply, unless a written demand is made by a creditor as specified under section 732.2211. THE DATE OF FIRST PUBLICATION OF THIS NOTICE IS: NOVEMBER 7, 2024.
IN THE CIRCUIT COURT FOR ST, JOHNS COUNTY, FLORIDA
PROBATE DIVISION
File No. 24-CP-0762
Division 59
IN RE: ESTATE OF TAMARA MAE DEGOYLER, Deceased.
NOTICE TO CREDITORS
The administration of the estate of TAMARA MAE DEGOYLER, deceased, whose date of death was July 28, 2024, is pending in the Circuit Court for St, Johns County, Florida, Probate Division, the address of which is 4010 Lewis Speedway, St. Augustine, FL 32084. The names and addresses of the personal representative and the personal representative’s attorney are set forth below. All creditors of the decedent and other persons having claims or demands against decedent’s estate, on whom a copy of this notice is required to be served, must file their claims with this court ON OR BEFORE THE LATER OF 3 MONTHS AFTER THE TIME OF THE FIRST PUBLICATION OF THIS NOTICE OR 30 DAYS AFTER THE DATE OF SERVICE OF A COPY OF THIS NOTICE ON THEM. All other creditors of the decedent and other persons having claims or demands against decedent’s estate must file their claims with this court WITHIN 3 MONTHS AFTER THE DATE OF THE FIRST PUBLICATION OF THIS NOTICE.
The personal representative has no duty to discover whether any property held at the time of the decedent’s death by the decedent or the decedent’s surviving spouse is property to which the Florida Uniform Disposition of Community Property Rights at Death Act as described in ss. 732.216732.228, applies, or may apply, unless a written demand is made by a creditor as specified under s. 732.2211, Florida Statutes.
ALL CLAIMS NOT FILED WITHIN THE TIME PERIODS SET FORTH IN FLORIDA STATUTES SECTION 733.702 WILL BE FOREVER BARRED. NOTWITHSTANDING THE TIME PERIOD SET FORTH ABOVE, ANY CLAIM FILED TWO (2) YEARS OR MORE AFTER THE DECEDENT’S DATE OF DEATH IS BARRED.
The date of first publication of this notice is: November 7, 2024. LORI GONZALEZ Personal Representative 153 Pine Forest Ct. St. Augustine, FL 32092 Matthew T. Harrod, Esq. Attorney for Personal Representative Florida Bar No. 41134 Harrod Law, PLLC 145 Hilden Rd., Suite 105 Ponte Vedra, FL 32081 Telephone: (904) 373-6665 Email: mharrod@mattharrod.com Nov. 7/14 00 (24-00556J)
FIRST INSERTION IN THE SEVENTH JUDICIAL CIRCUIT COURT, IN AND FOR ST. JOHNS COUNTY, FLORIDA PROBATE DIVISION File No. CP24-784 Division 59 IN RE: ESTATE OF FREDERICK EDWARD CAVE, Deceased.
NOTICE TO CREDITORS
The administration of the estate of FREDERICK EDWARD CAVE, deceased, whose date of death was March 6, 2024, is pending in the Circuit Court for St. Johns County, Florida, Probate Division, the address of which is 4010 Lewis Speedway, St. Augustine, FL 32084. The names and addresses of the personal representative and the personal representative’s attorney are set forth below. All creditors of the decedent and other persons having claims or demands against decedent’s estate on whom a copy of this notice is required to be served must file their claims with this court ON OR BEFORE THE LATER OF 3 MONTHS AFTER THE TIME OF THE FIRST PUBLICATION OF THIS NOTICE OR 30 DAYS AFTER THE DATE OF SERVICE OF A COPY OF THIS NOTICE ON THEM.
All other creditors of the decedent and other persons having claims or demands against decedent’s estate must file their claims with this court WITHIN 3 MONTHS AFTER THE DATE OF THE FIRST PUBLICATION OF THIS NOTICE.
The personal representative has no duty to discover whether any property held at the time of the decedent’s death by the decedent or the decedent’s surviving spouse is property to which the Florida Uniform Disposition of Community Property Rights at Death Act as described in ss. 732.216732.228, applies, or may apply, unless a written demand is made by a creditor as specified under s. 732.2211, Florida Statutes.
ALL CLAIMS NOT FILED WITHIN THE TIME PERIODS SET FORTH IN FLORIDA STATUTES SECTION 733.702 WILL BE FOREVER BARRED. NOTWITHSTANDING THE TIME PERIOD SET FORTH ABOVE, ANY CLAIM FILED TWO (2) YEARS OR MORE AFTER THE DECEDENT’S DATE OF DEATH IS BARRED.
The date of first publication of this notice is November 7, 2024. Personal Representative: THOMAS CAVE III PO Box 542 Hastings, FL 32145
Attorney for Personal Representative: Heather S. Maltby HEATHER@EPPGLAW.COM Florida Bar No. 116571
E.P.P.G. Law of St. Johns, PLLC 200 Malaga Street, Suite 2 St. Augustine, FL 32084 Telephone: 904-875-3774 Nov. 7/14 00 (24-00555J)
FIRST INSERTION
IN THE CIRCUIT COURT OF THE SEVENTH JUDICIAL CIRCUIT IN AND FOR ST. JOHNS COUNTY, FLORIDA PROBATE DIVISION Case No. CP24-0785 Division 59 IN RE: ESTATE OF DIANA LYNN DEER, Deceased. NOTICE TO CREDITORS (Summary Administration) TO ALL PERSONS HAVING CLAIMS OR DEMANDS AGAINST THE ABOVE ESTATE:
You are hereby notified that an Order of Summary Administration has been entered in the estate of Diana Lynn Deer, deceased, File Number CP24-0785, by the Circuit Court for St. Johns County, Florida, Probate Division, the address of which is 4010 Lewis Speedway, St. Augustine, Florida 32084; that the decedent’s date of death was September 18, 2024; that the total value of the estate is $000 and that the names and addresses of those to whom it has been assigned by such order are:
Lisa DeCamp, 8832 N. 100 W, West Lafayette, IN 47906
Brian Haines, 7050 Peninsula Court, Lake Worth, Florida 33467 Lauren DeCamp, 8832 N. 100 W, West Lafayette, IN 47906 Alexis DeCamp, 8832 N. 100 W, West Lafayette, IN 47906 ALL INTERESTED PERSONS ARE NOTIFIED THAT: All creditors of the estate of the decedent and persons having claims or demands against the estate of the decedent other than those for whom provision for full payment was made in the Order of Summary Administration must
FIRST INSERTION
NOTICE UNDER FICTITIOUS
NAME LAW PURSUANT TO SECTION 865.09, FLORIDA STATUTES
NOTICE IS HEREBY GIVEN that Mitchell Moody will engage in business under the fictitious name 4TEN STEWARDSHIP FOUNDATION INC, with a physical address 5586 Steamboat Rd Saint Augustine, FL 32092, with a mailing address 5586 Steamboat Rd Saint Augustine, FL 32092, and already registered the name mentioned above with the Florida Department of State, Division of Corporations. Nov. 7 00 (24-00562J)
FIRST INSERTION
NOTICE UNDER FICTITIOUS NAME LAW
According to Florida Statute Number 865.09
NOTICE IS HEREBY GIVEN that the undersigned, desiring to engage in business under the Fictitious Name of American Dermatology, Mohs, and Cosmetic Surgery Centers located at 1301 Plantation Island Dr S Suite 106B, in the City of St Augustine, St Johns County, Florida 32080 intends to register the said name with the Division of Corporations of the Department of State, Tallahassee, Florida. Dated at Jacksonville, Florida, this 4th day of November, 2024. Florida Center for Dermatology, PA By: Jonathan Kantor Nov. 7 00 (24-00557J)
FIRST INSERTION IN THE CIRCUIT COURT OF THE SEVENTH JUDICIAL CIRCUIT IN AND FOR ST. JOHNS COUNTY, FLORIDA GENERAL JURISDICTION
SECOND INSERTION
IN THE CIRCUIT COURT FOR ST. JOHNS COUNTY, FLORIDA
PROBATE DIVISION FILE NO: CP24-0751
DIVISION: 59 IN RE: Estate of Joan Diane West, Deceased.
NOTICE TO CREDITORS
The administration of the estate of Joan Diane West, deceased, whose date of death was September 16, 2024, is pending in the Circuit Court for St. Johns County, Florida, probate division, the address of which is 4010 Lewis Speedway, St. Augustine, FL 32084. The names and addresses of the personal representative and the personal representative’s attorney is set forth below. All creditors of the decedent and other persons having claims or demands against decedent’s estate on whom a copy of this notice is required to be served must file their claims with this court ON OR BEFORE THE LATER OF 3 MONTHS AFTER THE TIME OF THE FIRST PUBLICATION OF THIS NOTICE OR 30 DAYS AFTER THE DATE OF SERVICE OF A COPY OF THIS NOTICE ON THEM.
All other creditors of the decedent and other persons having claims or demands against decedent’s estate must file their claims with this court WITHIN 3 MONTHS AFTER THE DATE
OF THE FIRST PUBLICATION OF THIS NOTICE. ALL CLAIMS NOT FILED WITHIN THE TIME PERIODS SET FORTH IN SECTION 733.702 WILL BE FOREVER BARRED. NOTWITHSTANDING THE TIME PERIODS SET FORTH ABOVE, ANY CLAIM FILED TWO (2) YEARS OR MORE AFTER THE DECEDENT’S DATE OF DEATH IS BARRED. A personal representative or curator has no duty to discover whether any property held at the time of the decedent’s death by the decedent or the decedent’s surviving spouse is property to which the Florida Uniform Disposition of Community Property Rights at Death Act as described in sections 732.216-732.228, applies, or may apply, unless a written demand is made by a creditor as specified under section 732.2211.
The date of first publication of this Notice is October 31, 2024. Person Giving Notice Jennifer Gotte P.O. Box 1188 Salem, AR 72576
Attorney for Person Giving Notice AILISH O’CONNOR Florida Bar No. 0885071 aoconnor@aoelderlaw.com 11555 Central Parkway, Suite 1001 Jacksonville, FL 32224 Telephone: (904) 998-9050 Oct. 31, Nov. 7 27 (24-00547J)
SECOND INSERTION IN THE CIRCUIT COURT FOR ST. JOHNS COUNTY, FLORIDA PROBATE DIVISION File No. CP24-0756
DIVISION: PR-A IN RE: ESTATE OF MICHAEL D. DONOHUE Deceased.
NOTICE TO CREDITORS
file their claims with this court WITHIN THE TIME PERIODS SET FORTH IN FLORIDA STATUTES SECTION 733.702. ALL CLAIMS AND DEMANDS NOT SO FILED WILL BE FOREVER BARRED. NOTWITHSTANDING ANY OTHER APPLICABLE TIME PERIOD, ANY CLAIM FILED TWO (2) YEARS OR MORE AFTER THE DECEDENT’S DATE OF DEATH IS BARRED.
The personal representative has no duty to discover whether any property held at the time of the decedent’s death by the decedent or the decedent’s surviving spouse is property to which the Florida Uniform Disposition of Community Property Rights at Death Act as described in ss. 732.216732.228, Florida Statutes, applies, or may apply, unless a written demand is made by a creditor as specified under s. 732.2211, Florida Statutes. The date of first publication of this Notice is November 7, 2024.
Person Giving Notice: /s/ Lisa DeCamp Lisa DeCamp
8832 N. 100 W West Lafayette, Indiana 47906
Attorney for Person Giving Notice /s/ David D. Naples, Jr. David D. Naples, Jr.
Attorney for Lisa DeCamp
Florida Bar Number: 99064 2807 North Tenth Street St. Augustine, Florida 32084
Telephone: (904) 657-7117
Fax: (904) 429-1351
E-Mail: Dave@DNaplesLaw.com Jennifer@DNaplesLaw.com Nov. 7/14 00 (24-00554J)
DIVISION CASE NO. CA23-1331 U.S. BANK TRUST NATIONAL ASSOCIATION, NOT IN ITS INDIVIDUAL CAPACITY BUT SOLELY AS OWNER TRUSTEE FOR RCF 2 ACQUISITION TRUST, Plaintiff, vs. BRETT A. SEMBACH AND MISTYE C. SEMBACH, et al. Defendant(s). NOTICE OF FORECLOSURE SALE NOTICE IS HEREBY GIVEN pursuant to a Final Judgment of Foreclosure dated January 05, 2024, and entered in CA23-1331 of the Circuit Court of the SEVENTH Judicial Circuit in and for St. Johns County, Florida, wherein U.S. BANK TRUST NATIONAL ASSOCIATION, NOT IN ITS INDIVIDUAL CAPACITY BUT SOLELY AS OWNER TRUSTEE FOR RCF 2 ACQUISITION TRUST is the Plaintiff and BRETT A. SEMBACH; JULINGTON CREEK PLANTATION PROPERTY OWNERS’ ASSOCIATION, INC.; AQUA FINANCE, INC.; MISTYE C. SEMBACH are the Defendant(s). Brandon Patty as the Clerk of the Circuit Court will sell to the highest and best bidder for cash at: www.saintjohns.realforeclose.com at 12:00 PM, on November 21, 2024, the following described property as set forth in said Final Judgment, to wit: ALL THAT CERTAIN LAND SITUATE, LYING AND BEING IN SAINT JOHNS COUNTY, FLORIDA, VIZ: LOT 288, JULINGTON CREEK PLANTATION PARCELS 63 AND 65, PHASE 2, ACCORDING TO THE PLAT THEREOF AS RECORDED IN MAP BOOK 47, PAGES 56 THROUGH 63, OF THE PUBLIC RECORDS OF ST. JOHNS COUNTY, FLORIDA. Property Address: 1918 WINDY WAY E, JACKSONVILLE, FL 32259
Any person claiming an interest in the surplus from the sale, if any, other than the property owner as of the date of the lis pendens must file a claim in accordance with Florida Statutes, Section 45.031. IMPORTANT AMERICANS WITH DISABILITIES ACT. If you are a person with a disability who needs an accommodation in order to access court facilities or participate in a court proceeding, you are entitled, at no cost to you, to the provision of certain assistance. To request such an accommodation, please contact Court Administration in advance of the date the service is needed: Court Administration, 101 N. Alabama Ave., Ste D-305, Deland, FL 32724, (386) 257-6096. Hearing or voice impaired, please call 711. Dated this 4th day of November, 2024.
ROBERTSON, ANSCHUTZ, SCHNEID, CRANE & PARTNERS, PLLC
Attorney for Plaintiff 6409 Congress Ave., Suite 100 Boca Raton, FL 33487 Telephone: 561-241-6901
Facsimile: 561-997-6909
Service Email: flmail@raslg.com
By: \S\Danielle Salem
Danielle Salem, Esquire Florida Bar No. 0058248
Communication Email: dsalem@raslg.com 20-075845 - RaO Nov. 7/14 00 (24-00558J)
The administration of the estate of Michael D. Donohue, deceased, whose date of death was August 28, 2024, is pending in the Circuit Court for St. Johns County, Florida, Probate Division, the address of which is 4010 Lewis Speedway, St. Augustine, FL 32084. The names and addresses of the personal representative and the personal representative’s attorney are set forth below.
All creditors of the decedent and other persons having claims or demands against decedent’s estate on whom a copy of this notice is required to be served must file their claims with this court ON OR BEFORE THE LATER OF 3 MONTHS AFTER THE TIME OF THE FIRST PUBLICATION OF THIS NOTICE OR 30 DAYS AFTER THE DATE OF SERVICE OF A COPY OF THIS NOTICE ON THEM.
All other creditors of the decedent and other persons having claims or demands against decedent’s estate must file their claims with this court WITHIN 3 MONTHS AFTER THE DATE OF THE FIRST PUBLICATION OF THIS NOTICE.
The personal representative has no duty to discover whether any
property held at the time of the decedent’s death by the decedent or the decedent’s surviving spouse is property to which the Florida Uniform Disposition of Community Property Rights at Death Act as described in ss. 732.216732.228, applies, or may apply, unless a written demand is made by a creditor as specified under s. 732.2211, Florida Statutes. ALL CLAIMS NOT FILED WITHIN THE TIME PERIODS SET FORTH IN FLORIDA STATUTES SECTION 733.702 WILL BE FOREVER BARRED. NOTWITHSTANDING THE TIME PERIOD SET FORTH ABOVE, ANY CLAIM FILED TWO (2) YEARS OR MORE AFTER THE DECEDENT’S DATE OF DEATH IS BARRED. The date of first publication of this notice is October 31, 2024.
Personal Representative: Mari Elizabeth Donohue 74 Ravensdale Road Hastings on Hudson, NY 10706
Attorney for Personal Representative: JACKSON LAW GROUP /s/ Andrew Jackson Andrew Jackson, Esq. Florida Bar Number: 27968 1301 Plantation Island Drive, Suite 304
St. Augustine, Florida 32080 Telephone: (904) 823-3333
Email: ajackson@jacksonlawgroup.com
Secondary: jeannie@jacksonlawgroup.com Oct. 31, Nov. 7 27 (24-00544J)
SECOND INSERTION
IN THE CIRCUIT COURT OF THE SEVENTH JUDICIAL CIRCUIT IN AND FOR ST. JOHNS COUNTY, FLORIDA Case No: CA23-1603
CITIBANK, N.A., NOT IN ITS INDIVIDUAL CAPACITY BUT SOLELY AS OWNER TRUSTEE OF NEW RESIDENTIAL MORTGAGE LOAN TRUST 2019-RPL3, Plaintiff, vs. JOHN D. BRAGG, ET AL., Defendants. NOTICE OF FORECLOSURE SALE
NOTICE IS HEREBY GIVEN that pursuant the Final Judgment of Foreclosure dated March 7, 2024, and Order on Plaintiff’s Motion to Amend Amounts Due & Owing dated September 23, 2024, and entered in Case No. CA231603 of the Circuit Court of the Seventh Judicial Circuit in and for St. Johns County, Florida wherein CITIBANK, N.A., NOT IN ITS INDIVIDUAL CAPACITY BUT SOLELY AS OWNER TRUSTEE OF NEW RESIDENTIAL MORTGAGE LOAN TRUST 2019RPL3, is the Plaintiff and JOHN D. BRAGG; SHANNA L. BRAGG, is/are Defendant(s), Brandon J. Patty, St. Johns County Clerk of Courts, will sell to the highest and best bidder for cash at: www.saintjohns.realforeclose.com at 12:00 p.m. on November 14, 2024 the following described property set forth in said Final Judgment, to wit: LOT 6, BLOCK 11, MANDARIN MEADOWS SOUTH, ACCORDING TO PLAT THEREOF AS RECORDED IN MAP BOOK 10, PAGES 44-47, OF THE PUBLIC RECORDS OF ST. JOHNS COUNTY, FLORIDA Commonly known as: 1116 LEMONWOOD RD, JACKSONVILLE, FL 32259
Any person or entity claiming an interest in the surplus, if any, resulting from the Foreclosure Sale, other than the property
owner as of the date of the Lis Pendens, must file a claim with the Clerk no later than the date that the Clerk reports the funds as unclaimed. If you fail to file a claim, you will not be entitled to any remaining funds.
If the sale is set aside, the Purchaser may be entitled to only a return of the sale deposit less any applicable fees and costs and shall have no other recourse against the Mortgagor, the Mortgagee or the Mortgagee’s attorney.
If you are a person with a disability who needs any accommodation in order to participate in this proceeding, you are entitled, at no cost to you, to the provision of certain assistance. Please contact Court Administration at 386-257-6096 , 101 N Alabama Ave., Ste D-305, DeLand, FL 32724 at least 7 days before your scheduled court appearance, or immediately upon receiving this notification if the time before the scheduled appearance is less than 7 days; if you are hearing or voice impaired, call 711.
DATED September 26, 2024 /s/ Bradford Petrino Bradford Petrino, Esq. Florida Bar No. 41883 Lender Legal PLLC 1800 Pembrook Drive, Suite 250 Orlando, FL 32810 Tel: (407) 730-4644
Attorney for Plaintiff Service Emails: bpetrino@lenderlegal.com EService@LenderLegal.com
CERTIFICATE OF SERVICE I HEREBY CERTIFY that a true and exact copy of the foregoing was furnished by U.S. Mail and email, as required, this 25th day of October 2024 to: JOHN D. BRAGG 1116 LEMONWOOD RD. JACKSONVILLE, FL 32259
SHANNA L. BRAGG 1116 LEMONWOOD RD. JACKSONVILLE, FL 32259 dsbragg@comcast.net /s/ Bradford Petrino Bradford Petrino, Esq. Oct. 31, Nov. 7 27 (24-00543J)
Nov. 7 27 (24-00548J)
SECOND INSERTION IN THE CIRCUIT COURT, SEVENTH JUDICIAL CIRCUIT, IN AND FOR ST. JOHNS COUNTY, FLORIDA CASE NO.: CP24-0778 DIVISION: 59 IN RE: ESTATE OF ROBERT JOHN MCCALLUM, JR., Deceased. NOTICE TO CREDITORS If you have been served with a copy of this notice and you have any claim or demand against the decedent’s estate, even if that claim is unmatured, contingent, or unliquidated, you must file your claim with the court ON OR BEFORE THE LATER OF A DATE THAT IS 3 MONTHS AFTER THE FIRST PUBLICATION OF THIS NOTICE OR 30 DAYS AFTER YOU RECEIVE A COPY OF THIS NOTICE. All other creditors of the decedent and other persons who have claims or demands against the decedent’s estate, including unmatured, contingent, or unliquidated claims, must file their claims with the court ON OR BEFORE THE DATE THAT IS 3 MONTHS AFTER THE FIRST PUBLICATION OF THIS NOTICE. A personal representative or curator has no duty to discover whether any property held at the time of the decedent’s death by the decedent or the decedent’s surviving spouse is property to which the Florida Uniform Disposition of Community Property Rights at Death Act as described in sections 732.216732.228, applies, or may apply, unless a written demand is made by a creditor as specified under section 732.2211. ALL CLAIMS NOT FILED WITHIN THE PERIODS SET FORTH IN SECTION 733.302, FLORIDA STATUTES, WILL BE FOREVER BARRED. EVEN IF A CLAIM IS NOT BARRED BY THE LIMITATIONS DESCRIBED ABOVE, ALL CLAIMS THAT HAVE NOT BEEN FILED WILL BE BARRED TWO YEARS AFTER DECEDENT’S DEATH. The address of the court where this probate is pending is: 4010 Lewis Speedway, St. Augustine, FL 32084. The date of death of the decedent is: September 10, 2024. The
Attorney
Since 1912, The Daily Record is the source for business and legal information that helps many of Jacksonville’s most successful businesses thrive and grow. Use the listings published on jaxdailyrecord.com under the Court Records tab and turn information into results.


Target hundreds of new businesses. Manage the level of risk for your business. Generate more business through The Daily Record’s published wealth of data.
Official permission from the city’s Planning & Development department to make alterations, build new or demolish buildings or parts of buildings which are regulated by the technical codes.
For a current list of approved Building Permits visit JaxDailyRecord.com under the Court Records tab.
Anyone who operates a business in Duval County must obtain an occupational license from the tax collector. Once a week, all new business licenses are published online at JaxDailyRecord.com under the Court Records tab. Useful to anyone providing goods or services to business customers.
Duval County Tax Collector | 231 E. Forsyth St., Room 130 | Jacksonville, FL 32202 | 904-255-5700 opt. 3
Daily information on County and Circuit Court Actions, plus the listing of Documents Filed for Record with the Duval County Clerk of the Courts now available online.





https://legals.jaxdailyrecord.com/ legals_home.php

New court cases filed involving marriage, adoption, paternity or divorce.
New court cases involving the instructions of a deceased person, deciding who will be the executor (personal representative) of an estate, or adjudicating the interests of heirs and other parties who may have claims against an estate.
New court cases involving suits filed by a plaintiff for damages alleged to have been caused by the actions or negligence of a defendant, which can be an individual or a business, corporation or government entity.
New court cases not involving money such as eviction, transfer of rights, requiring cessation of an activity, etc.
Judgments of court cases not involving money such as eviction, transfer of rights, requiring cessation of an activity, etc.
Reports of court finding and decisions such as granting of dissolution, final judgments, etc.

Pfizer Inc. documents show the company knew its vaccine was not ‘safe and effective.’ Vaccine deaths now far outnumber COVID deaths — and the perils continue.
BY DR. NAOMI WOLF
Three governments tried to suppress evidence revealing that Pfizer and federal officials knew the company’s vaccine would not stop COVID and was deadly.

MATT WALSH
You may be sick of COVID and vaccine stories. But this one is too important. Everyone deserves to know the truth.
This is probably true: One of the last things you want to read is one more word about COVID and the vaccines.
You’re sick of the subject.
And for good reason. The pandemic was one of the worst times of our lives; one of the worst times in the U.S.; one of the worst times in the world. That period tore families apart; destroyed lives and businesses; and became a raging national wildfire of social tension and economic distress.
Please, wipe it from our minds.
Yes, but …
And here’s the but: We should know the truth.
That’s what this special report and supplement is all about. It’s documented truth that exposes how our federal public health officials and Big Pharma — in particular the Pfizer Inc. — lied, deceived and covered up that its vaccine was NOT “safe and effective” as they said; that it was, in fact, horribly harmful and deadly and continues to kill and maim people to this day.
Scouring through 450,000 pages of Pfizer documentation, 3,250 volunteers from all over the world, led by distinguished doctors and scientists, examined what really occurred to bring the Pfizer and Moderna vaccines to market.
For two years, under the leadership of the best-selling author Naomi Wolf and Six-Sigma project manager Amy Kelly, the researchers uncovered shocking information.
Their results are detailed in the 386-page book, “The Pfizer Papers:
See OUR DUTY opposite page
This insert was paid for personally by Matt Walsh,
BY DR. NAOMI WOLF
Our book, “The Pfizer Papers: Pfizer’s Crimes Against Humanity,” was pub lished Oct. 17.
It is already a bestseller.
This is a book that three govern ments — the U.S., the U.K. and Australia — all sought to suppress. The story of how it came to be is extraordinary — 3,250 highly credentialed doctors and scientists under the leadership of one extraordinary woman, Amy Kelly, worked for two years on the internal Pfizer documents released under court order by a successful lawsuit by attorney Aaron Siri.
In the process, these volunteers confirmed the greatest crime against humanity of all time. What follows is the introduction to the book.
■ ■ ■
You are about to embark as a reader on a journey through an extraordinary story — one whose elements almost defy belief.
The Pfizer Papers is the result of a group of strangers — ordinary people with extraordinary skills, located in different places around the world, with different backgrounds and interests — who all came together, for no money or professional recompense at all; out of the goodness of their hearts, and motivated by love for true medicine and true science — to undertake a rigorous, painfully detailed and complex research project, which spanned the years 2022 to the present, and which continues to this day.

The book is available online. Go to: Amazon.com or BarnesandNoble.com and search: The Pfizer Papers. To read the introduction online, go to OrangeObserver.com/Opinion-Pfizer.
The material they read through and analyzed involved 450,000 pages of documents, all written in extremely dense, technical language.
This far-flung, relentlessly pursued research project — under the leadership of DailyClout’s COO, the remarkably gifted project director Amy Kelly — brought one of the largest and most corrupt institutions in the world, Pfizer Inc., to its knees.
This project, pursued by 3,250 strangers who worked virtually and became friends and colleagues, drove a global pharmaceutical behemoth to lose billions of dollars in revenue. It balked the plans of the most powerful politicians on earth. It bypassed the censorship of the most powerful tech companies on earth.
This is the ultimate David and Goliath story.
The story began when lawyer Aaron Siri successfully sued the Food and Drug Administration to compel it to release “The Pfizer Documents.” These are Pfizer’s internal documents — as noted above, 450,000 pages — that detail the clinical trials Pfizer conducted in relation to its COVID mRNA injection.
These trials were undertaken to secure the ultimate prize for a pharmaceutical company, the “EUA,” or Emergency Use Authorization from the FDA.
The FDA awarded EUA for ages 16+ to Pfizer in December 2020. The “pandemic,” of course (a crisis in public health that a book of mine, “The Bodies of Others,” confirmed, involved hyped and manipulated “infections” data and skewed mortality documentation) became the pretext for the “urgency” that led the FDA to bestow EUA on Pfizer’s (and Moderna’s) novel drug. The EUA is the hall pass, essentially, allowing Pfizer to race right to market with a not-fully-tested product
The Pfizer Papers also contains documentation of what happened in “post-marketing,” meaning
in the three months, December 2020 to February 2021, as the vaccine was rolled out upon the public. All leading spokespeople and bought-off media called the injection “safe and effective,” reading from what was a centralized script.
Many people who took this injection, as it was launched in 2020–2021–2022 and to the present, did not realize that normal testing for safety of a new vaccine — testing that typically takes 10 to 12 years — had simply been bypassed via the mechanisms of a “state of emergency” and the FDA’s “Emergency Use Authorization.”
They did not understand that the real “testing” was in fact Pfizer and the FDA observing whatever was happening to them and their loved ones, after these citizens rolled up their sleeves and submitted to the shot.
As we can never forget, many millions of these people who submitted to the injection were “mandated” to take it, facing the threat of job loss, suspension of their education or loss of their military positions if they refused; in some US states and overseas countries, people also faced the suspension of their rights to take transportation, cross borders, go to school or college, receive certain medical procedures or enter buildings such as churches and synagogues, restaurants and gyms — if they refused.
The FDA asked the judge in the Aaron Siri lawsuit to withhold the release of the Pfizer documents for 75 years. Why would a government agency wish to conceal certain material until the present generation, those affected by what is in these documents, is dead and gone? There can be no good answer to that question.
Fortunately for history, and fortunately for millions of people whose lives were saved by this decision, the judge refused the FDA’s request and compelled the release of the documents; a tranche of 55,000 pages per month.
When I heard about this, though, I was concerned as a journalist. I knew that no reporter had the bandwidth to go through material of this volume. I also understood that virtually no reporter had the training or skill sets required to
understand the multidimensional, technically highly specialized language of the reports.
To understand the reports, one would need a background in immunology; statistics; biostatistics; pathology; oncology; sports medicine; obstetrics; neurology; cardiology; pharmacology; cellular biology; chemistry; and many other specialties. In addition to doctors and scientists, to understand what was really happening in the Pfizer documents, you would also need people deeply knowledgeable about government and pharmaceutical industry regulatory processes; you would need people who understood the FDA approval process; you would need medical fraud specialists; and eventually, to understand what crimes were committed in the Papers, you would need lawyers. I was worried that without people with all of those skill sets reading through the documents, their volume and complexity would lead them to vanish down “the memory hole.”
Enter Steve Bannon, the former naval officer, former Goldman Sachs investment banker, former adviser to President Trump and current host of the most popular political podcast in America and one of the most listened-to worldwide, WarRoom.
Bannon and I come from opposite ends of the political spectrum. I had been a lifelong Democrat, an adviser to President Bill Clinton’s re-election campaign, and to Al Gore’s presidential campaign. Bannon, of course, is a staunch Republican-turned-MAGA.
I had been depla tformed in June 2021, before the Pfizer documents came out, for the crime of warning that women were reporting menstrual dysregulation upon having received the mRNA injections. As a career-long writer on women’s sexual and reproductive health issues, I knew that this was a serious danger signal and that this side effect would affect fertility. (Any eighth grader should be able to foresee that as well.)
Upon my having posted this warning, I was banned from Twitter, Facebook, YouTube and other platforms. I was attacked globally, all at once, as an “anti-vaxxer” and “conspiracy theorist”; and my life as a well-known, best-selling feminist author within the legacy media ended. No one in that world would talk to me anymore, publish my work or return my calls.
I was un-personed.
(It turned out, upon two successful lawsuits in 2023 by Missouri and Louisiana attorneys general, that it was actually the White House, the CDC and senior leaders of other government agencies, including the Department of Homeland Security, that unlawfully pressured Twitter and Facebook to remove that cautionary tweet of mine, to shut me down and to “BOLO” or Be On the Lookout for similar posts. This suppression is now the subject of a pending Supreme Court decision on whether it violated the First Amendment.)
In this dark time in my life, to my surprise, I received a text from Steve Bannon’s producer, who invited me onto WarRoom.
I brought forward my concerns about women’s reproductive health in the wake of mRNA injection, and to my surprise he was respectful, thoughtful about the implications and took the issue very seriously.
I returned again and again, to bring that and other concerns that were emerging in relation to the mRNA injections to his audience. I was relieved to have a platform on which I could share these urgent warnings.
At the same time, I was sad that the Left, which was supposed to champion feminism,
seemed not to care at all about serious risks to women and unborn babies.
I recognized the irony that a person whom I had been taught to believe was the Devil Incarnate, actually cared more about women and babies than did all of my right-on former colleagues, including the feminist health establishment, which had always spoken so loudly about women’s well-being and women’s rights.
Given my appearances on WarRoom leading up to 2022, it was natural that the subject of the Pfizer documents came up on that show when the documents were released.
I shared my concern that they would be lost to history because of their volume and technical language. Bannon said something like, “Well, you will crowdsource a project to read through them.”
I was taken aback, as I had zero skills related to, or knowledge about how possibly to do such a thing. I answered something like, “Of course.”
So, my news and opinion platform DailyClout was deluged with offers from around the world, from WarRoom listeners with the skill sets needed, to decipher the Pfizer documents. I was terrified. It was chaos.
I had excellent people on my team. But none of us knew how to manage or even organize the deluge of emails; we did not know how to evaluate the thousands of CVs; and even once we had “onboarded” these thousands of people, in different time zones to “the project,” our inboxes became even more terrifying. It was literally impossible to organize 3,250 experts into an organization chart that could systematically work through these documents.
Emails were getting tangled or went unanswered. People asked questions we could not answer. We had no idea what structure could allow such a huge number of disparate experts to work through the vast trove of material.
A few weeks in, as I was in despair, Bannon had me on again. He asked about the progress of the project, and I replied, more upbeat than I felt, that many people had joined us, and they were starting to read.
“Of course, you will begin delivering reports,” he prompted. “Of course,” I answered, horrified at being in so far over my head.
I have never had a corporate job, so it had not even occurred to me that a series of reports was the format that the analyses of the documents should take.
Then something happened that I can only describe as providential. We put out a call to the volunteers for a project manager, and Amy Kelly reached out.
Ms. Kelly is a Six Sigma-certified project manager, with extensive experience in telecommunications and tech project management. She is also a simply inexplicably effective leader.
The day that she put her hand to the chaos in the inboxes, the waters were stilled. Peace and productivity prevailed. Ms. Kelly somehow effortlessly organized the volunteers into six working groups, with a supra-committee at the head of each, and the proper work began.
I can only explain the scope and smoothness and effectiveness of the work that followed, as occurring in a state of grace.
PFIZER KNEW VAX DIDN’T WORK
In the two years since Ms. Kelly and the volunteers have been working together, they have gone through 2,369 documents and data files totaling 450,000 pages and have issued almost 100 reports.
I taught the volunteers to write these in a language that everyone could understand, which I thought was important to maximize their impact.
OUR DUTY from opposite page
Pfizer’s Crimes Against Humanity.”
This special supplement is Dr. Naomi Wolf’s introduction to the book. She presents a synopsis of the documentation, but the fact her synopsis is 5,000 words gives you a sense of just how much the researchers uncovered. Just reading Wolf’s introduction alone is likely to leave you aghast, outraged and in disbelief that something so diabolical was allowed to occur and was foisted on the world.
To date, according to a year-long study by Canadian scientists, about 17 million people worldwide have died from the mRNA COVID-19 vaccines. From the vaccines! Worldwide,
And Amy Kelly meticulously revised almost all, and edited all, of them.
The first 46 reports appeared in a self-published format that we put out. It was very important that they appear in a published form that was physical, and not just digital. We wanted something that people could hand to their doctors, their loved ones, their congressional representatives.
These 46 reports broke huge stories.
We learned that Pfizer knew within three months after rollout in December 2020 that the vaccines did not work to stop COVID. Pfizer’s language was “vaccine failure” and “failure of efficacy.” One of the most common “adverse events” in the Pfizer documents is “COVID.”
Pfizer knew that the vaccine materials — lipid nanoparticles, an industrial fat, coated in polyethylene glycol, a petroleum byproduct; mRNA; and spike protein — did not remain in the deltoid muscle, as claimed by all spokespeople. Rather, it dispersed throughout the body in 48 hours “like a shotgun blast,” as one of the authors, Dr. Robert Chandler, put it; it crossed every membrane in the human body — including the blood-brain barrier — and accumulated in the liver, adrenals, spleen, brain and, if one is a woman, in the ovaries.
Dr. Chandler saw no mechanism whereby those materials leave the body, so every injection appears to pack more such materials into organs.
Pfizer hired 2,400 full-time staffers to help process “the large increase of adverse event reports” being submitted to the company’s Worldwide Safety database.
Pfizer knew by April 2021 that the injections damaged the hearts of young people.
Pfizer knew by Feb. 28, 2021 — just 90 days after the public rollout of their COVID vaccine — that its injection was linked to a myriad of adverse events.
Far from being “chills,” “fever,” “fatigue,” as the CDC and other authorities claimed were the most worrying side effects, the actual side effects were catastrophically serious.
THE SIDE EFFECTS
These side effects included:
■ Death (which Pfizer does list as a “serious adverse event”). Indeed, more than 1,233 deaths in first three months of the drug being publicly available.
■ Severe COVID-19;
■ Liver injury;
■ Neurological adverse events;
■ Facial paralysis;
■ Kidney injury;
■ Autoimmune diseases;
■ Chilblains (a localized form of vasculitis that affects the fingers and toes);
■ Multiple organ dysfunction syndrome (when more than one organ system is failing at once);
■ The activation of dormant herpes zoster infections;
■ Skin and mucus membrane lesions;
■ Respiratory issues;
■ Damaged lung structure;
■ Respiratory failure;
■ Acute respiratory distress syndrome (a lung injury in which fluid leaks from the blood vessels into the lung tissue, causing stiffness which makes it harder to breathe and causes a reduction of oxygen and carbon dioxide exchange);
■ SARS (or SARS-CoV-1, which had not been seen in the world since 2004, but appears in the Pfizer documents as a side effect of the injections).
■ Thousands of people with arthritis-type joint pain, one of the most common side effects, were recorded.
■ Other thousands with muscle pain, the second most common.
■ Then, industrial-scale blood diseases: blood
seven million died from COVID-19; 1.2 million of those in the U.S. Wolf and the “Pfizer Papers” document how the negative effects of the vaccines are continuing to be felt today. Altogether, 270 million Americans received the vaccines, but the adverse reactions are far, far beyond normally accepted levels. The Pfizer vaccine has injured and maimed tens of millions of Americans. Cancer in women in their 40s and male athletes in their 20s and 30s are at alarmingly high and puzzling levels. Scores of women are suffering reproductive maladies and miscarriages. Children not yet teens are experiencing inexplicable and debilitating illnesses.
When you read Wolf’s introduction and the book, you’ll understand

clots, lung clots, leg clots; thrombotic thrombocytopenia, a clotting disease of the blood vessels; vasculitis (the destruction of blood vessels via inflammation);
■ Astronomical rates of neurological disorders — dementia, tremors, Parkinson’s, Alzheimer’s, epilepsies.
■ Horrific skin conditions.
■ A florid plethora of cardiac issues — myocarditis, pericarditis, tachycardia, arrhythmia, and so on.
Half of the serious adverse events related to the liver, including death, took place within 72 hours of the shot. Half of the strokes took place within 48 hours of injection
But what really emerged from the first 46 reports was the fact that though COVID is ostensibly a respiratory disease, the papers did not focus on lungs or mucus membranes, but rather they centered, creepily and consistently, on disrupting human reproduction.
By the time Pfizer’s vaccine rolled out to the public, the pharmaceutical giant knew that it would be killing babies and significantly harming women and men’s reproduction. The material in the documents makes it clear that damaging human’s ability to reproduce and causing spontaneous abortions of babies is “not a bug, it is a feature.”
Pfizer told vaccinated men to use two reliable forms of contraception or else to abstain from sex with childbearing-age women. In its protocol, the company defined “exposure” to the vaccine as including skin-to-skin contact, inhalation and sexual contact.
Pfizer mated vaccinated female rats and “untreated” male rats, and then examined those males, females and their offspring for vaccinerelated “toxicity.” Based on just 44 rats (and no humans), Pfizer declared no negative outcomes
Pfizer knew by Feb. 28, 2021 — just 90 days after the public rollout of its COVID vaccine — that its injection was linked to a myriad of adverse events. … The actual side effects were catastrophically serious … Indeed, more than 1,233 deaths in the first three months of the drug being publicly available.
why it was entitled: “Pfizer’s Crimes Against Humanity.”
Bringing this supplement to you is a personal journalistic mission. Senior staff members in our company initially objected to our publishing this, arguing it’s not in our mission of local news. And yes, you might argue, what does this have to do with our residents and readers?
The information here and in Wolf’s book have everything to do with them and this region — and everywhere else. All of those 270 million Americans who received COVID-19 vaccines — indeed, all Americans — deserve to know the truth.
Everyone deserves to know the verified documentation that shows what Pfizer and our health officials
for “. . . mating performance, fertility or any ovarian or uterine parameters . . . nor on embryofetal or postnatal survival, growth or development,” the implication being that its COVID vaccine was safe in pregnancy and did not harm babies.
Pfizer knew that lipid nanoparticles have been known for years to degrade sexual systems, and Amy Kelly in fact found nanoparticles, of which lipid nanoparticles are a subtype, pass through the blood-testis barrier and damage males’ Sertoli cells, Leydig cells and germ cells. Those are the factories of masculinity, affecting the hormones that turn boys at adolescence into men, with deep voices, broad shoulders and the ability to father children.
So, we have no idea if baby boys born to vaccinated moms will turn into adults who are recognizably male and fertile. Pfizer enumerated the menstrual damages it knew it was causing to thousands of women, and the damage ranges from women bleeding every day, to having two periods a month, to no periods at all; to women hemorrhaging and passing tissue; to menopausal and post-menopausal women beginning to bleed again. Pfizer’s scientists calmly observed and noted it all but did not tell women.
Babies suffered and died. In one section of the documents, over 80% of the pregnancies followed resulted in miscarriage or spontaneous abortion. In another section of the documents, two newborn babies died, and Pfizer described the cause of death as “maternal exposure” to the vaccine.
Pfizer knew that vaccine materials entered vaccinated moms’ breast milk and poisoned babies. Four women’s breast milk turned “blue-green.”
Pfizer produced a chart of sick babies, made ill from breastfeeding from vaccinated moms, with symptoms ranging from fever to edema (swollen flesh) to hives to vomiting. One poor baby had convulsions and was taken to the ER, where it died of multi-organ system failure.
I will now take you to the 34 reports you will find in this book. Some of the headlines from the reports that follow are:
On Feb 28, 2021, Pfizer produced “Pregnancy and Lactation Cumulative Review” showing that after mothers’ vaccination with its vaccine:
■ Adverse events occurred in more than 54% of cases of “maternal exposure” to vaccine and included 53 reports of spontaneous abortion (51) / abortion (1) / abortion missed (1) following vaccination.
hid during the pandemic. Everyone deserves to see what many in America suspected during the pandemic: That our government and Big Pharma lied to us — horrifically.
But you likely won’t read or hear of this in most corporate media outlets.
One of my colleagues asked: “What is the benefit of publishing this? It’s too late for those who have been vaccinated. Pfizer and Big Pharma can’t be sued. What good does this do?”
The benefit is to know what happened so it doesn’t happen again. The benefit is to be better equipped now and in the future. Wolf’s introduction says the book is already leading to physicians and scientists understand-
ing “the signposts” that will lead to treatments for those who are suffering vaccine injuries now.
For me, this is our job. This is a story that goes to the core of what I believe to be a newspaper’s role and duty. This may sound self-righteous and sanctimonious, but I fervently believe newspapers still are guardians of our republic, and it is our duty and responsibility to report and shine the light of truth on the good, the bad, the ugly — and to shine it on all sides.
To the latter, I’ve reached out to Pfizer seven times for its response. As of press time, I continue to wait. Its lack of response is no reason to withhold this special supplement. I agree with Naomi Wolf: “[T]he truth must be told. … We must share the

Dr. Naomi Wolf is a bestselling author, columnist and professor.
Wolf graduated from Yale University and received a doctorate from Oxford.
She is cofounder and CEO of DailyClout.io, a civic tech company.
Since her landmark international bestseller, “The Beauty Myth,” which The New York Times called “one of the most important books of the 20th century,” Dr. Wolf’s other seven bestsellers have been translated worldwide.
“The End of America” and “Give Me Liberty: A Handbook For American Revolutionaries” predicted the current crisis in authoritarianism and presented effective tools for citizens to promote civic engagement.
Wolf was a Rhodes scholar and adviser to the Clinton re-election campaign and to Vice President Al Gore.
Wolf has written for every major news outlet in the U.S. and many globally, including in The Guardian and the Sunday Times of London. She lives with her husband, private detective Brian O’Shea, in the Hudson Valley.

Amy Kelly is the program director for the War Room/DailyClout Pfizer and Moderna Documents Analysis Project.
Kelly oversees the thousands of volunteers who are reviewing, analyzing and reporting on the court-ordered, FDA-released Pfizer and Moderna documents, as well as overseeing the volunteer attorneys identifying legal actions to be taken based on findings from the Pfizer and Moderna documents.
Ms. Kelly has more than 20 years of experience as a project manager. Additionally, she is a certified Six Sigma Black Belt, certified in change management methodology, and has experience as a business analyst, product manager and strategist.
Before working at DailyClout, she worked primarily in the telecommunications, transportation and medical devices industries.
Ms. Kelly earned a Bachelor of Arts degree, graduating summa cum laude and as a member of Phi Beta Kappa from a liberal arts college in the Southeast.
■ Premature labor and delivery cases occurred, as well as two newborn deaths.
■ Some newborns suffered severe respiratory distress or “illness” after exposure via breast milk.
■ “Substantial” birth rate drops happened across 13 countries: in Europe, as well as in Britain, Australia and Taiwan, within nine months of public vaccine rollout.
■ Approximately 70% of Pfizer vaccine-related adverse events occur in women.
■ Spike protein and inflammation were still present in heart tissue one year after receipt of the mRNA COVID vaccine.
■ In Pfizer’s clinical trial, there were more deaths among the vaccinated than the placebo participants. However, Pfizer submitted inaccurate data, showing more deaths in the placebo group, to the FDA when seeking emergency use authorization.
■ Infants and children under 12 received Pfizer’s vaccine seven months before a pediatric vaccine approval resulting in:
• Stroke.
• Facial paralysis.
• Kidney injury or failure.
■ There was an over 3.7-fold increase in the number of deaths attributed to cardiovascular events in vaccinated clinical trial subjects compared to placebo subjects.
■ The vaccine Pfizer rolled out to the public was different than the formulation used on the majority of clinical trial participants, and the public was not informed of this.
■ Histopathologic analyses (the staining of tissues to show disease states) show clear evidence of vaccine-induced autoimmune-like pathology in multiple organs; spike protein-caused erosion of the blood vessels, heart and lymphatic vessels; amyloids in multiple tissues; unusual, aggressive cancers; and atypical “clot” formations.
■ Following vaccination, younger patients began presenting with cancers; tumors were bigger and grew more aggressively and faster than cancers had prior to mass inoculation of populations; co-temporal onset (the onset of more than one cancer at the same time) of cancers became more common—a situation that was typically unusual before the mRNA vaccines’ rollout. Benign tumors’ growth accelerated.
■ By March 12, 2021, Pfizer researchers vaccinated almost the entire placebo (nonvaccinated) cohort from the trial, though Pfizer had previously committed to following both the vaccinated and placebo cohorts for two years.
Immediately after receiving the Emergency Use Authorization, Pfizer lobbied the FDA to allow IT to vaccinate the unvaccinated cohort for “humanitarian” reasons. Vaccinating the placebo group ended the ability to pursue safety studies over time.
■ Autoimmunity cases reported to the Vaccine Adverse Events Reporting System (VAERS) increased 24-fold from 2020 to 2021, and annual autoimmunity-related fatalities increased 37x in the same period.
■ In Pfizer’s October 2021 emergency use authorization data and documents submission for children ages five to 11, Pfizer investigators speculated in writing that subclinical damages would manifest in patients in the long term, implying that continued doses with subclinical damages would eventually manifest as clinical damages.
■ In trial studies, Moderna mRNA COVID-19 vaccine damaged mammals’ reproduction— resulting in 22% fewer pregnancies; skeletal malformations; and nursing problems.
■ There were hundreds of possible vaccineassociated enhanced disease (VAED) cases in the first three months of Pfizer’s mRNA COVID vaccine rollout. Public health spokespeople minimized their severity by calling them “breakthrough COVID cases.”
■ Pfizer concealed eight vaccinated deaths that occurred during the clinical trial to make its results look favorable for receiving its ages 16+ EUA.
The most powerful forces in the world — including the White House, the staffers of the United States president himself; Dr. Rochelle Walensky of the CDC; the head of the FDA, Dr. Robert M Califf; Dr. Anthony Fauci; Twitter and Facebook;
By the time Pfizer’s vaccine rolled out to the public, the pharmaceutical giant knew that it would be killing babies and significantly harming women and men’s reproduction. The material in the documents makes it clear that damaging human’s ability to reproduce and causing spontaneous abortions of babies is “not a bug, it is a feature.”

legacy media, including the New York Times, the BBC, the Guardian and NPR; OfCom, the British media regulatory agency; professional organizations such as the American College of Obstetricians and Gynecology; and the European Medicines Agency, the European equivalent of the FDA, and the Therapeutics Goods Administration, Australia’s equivalent of the FDA — all sought to suppress the information that Amy Kelly, the research volunteers and I brought to the world starting in 2022, and that you are about to absorb in the book.
Nonetheless, in spite of the most powerful censorship and retribution campaign launched in human history — made more powerful than past such campaigns by the amplifying effects of social media and AI — these volunteers’ findings were not suppressed at last and survived on alternative media, and on our site DailyClout.io; to be shared from mouth to mouth, saving millions of lives.
Fast forward to more recent events. What has the role of this information been in stopping this greatest crime ever committed against humanity?
The worst has happened. Disabilities are up by a million a month in the United States, according to former BlackRock hedge fund manager Edward Dowd.
Excess deaths are way up in the US and Western Europe.
Birth rates have plummeted, according to the mathematician Igor Chudov (and WarRoom/ DailyClout Volunteer Researcher Dr. Robert Chandler) by 13% to 20% since 2021, based on government databases.
Athletes are dropping dead.
Turbo-cancers are on the rise.
Conventional doctors may be “baffled” by all of this, but sadly, thanks to Amy Kelly and the volunteers, we understand exactly what is happening.
Our relentless effort to get this information to the world, in an unimpeachable form, has finally paid off with results.
The uptake for boosters has now dropped to 4%. Very few people “boosted” their children. Most colleges in the United States withdrew their vaccine “mandates.”
Pfizer’s net revenue dropped in Q1 of 2024 to pre-2016 levels.
Commentator Mark Steyn, whom OfCom targeted for “platforming” description of the reproductive and other harms in the Pfizer documents, is suing OfCom.
Meantime, the BBC had to report that vaccine injuries are real, as did the New York Times.
AstraZeneca, a somewhat differently configured COVID vaccine in Europe, was withdrawn from the market in May 2024, following lawsuits involving thrombotic thrombocytopenia (a side effect about which our research volunteer Dr. Carol Taccetta had informed the FDA by letter in 2022), and the European Medicines Agency notably withdrew its EUA for AstraZeneca.
Three days after we published our report showing that the FDA and CDC had received the eight-page “Pregnancy and Lactation Cumulative Review” confirming that Dr. Walensky knew about the lethality of the vaccine when she held her press conference telling pregnant women to get the injection, Dr. Walensky resigned.
THE TRUTH WILL HEAL
It is difficult indeed to face this material in the roles that Amy Kelly and I play. No doubt for the volunteers, unearthing this criminal evidence is painful indeed. It may be hard to read some of what follows. As I have said elsewhere, seeing this material is like being among the Allied soldiers who first opened the gates of Auschwitz. But the truth must be told.
Among other important reasons to tell these truths, people were injured and killed with a novel technology not deployed before in medicine; and these pages hold important clues as to the mechanisms of these injuries, and thus, they provide many signposts for physicians and scientists in the future, for treating the many injuries that these new mRNA technologies, injected into people’s bodies, have brought about.
We must share the truth, as the truth saves and sustains; and eventually, the truth will heal.
We thank Steve Bannon, and his wonderful team at WarRoom for being the instigator of this entire project and for consistently bringing us onto his show so that we can tell the world what the volunteers find.
We thank Skyhorse Publishing, Publisher Tony Lyons and our editor Hector Carosso for taking the critical step of publishing this material in a book that will be available everywhere. Books matter, and this publication will make a difference in bringing about accountability and an accurate history of this catastrophic set of events.
We thank the volunteers, 3,250 strangers around the world who banded together in the love of truth and of their fellow human beings.
We thank our 200 lawyers who helped us to FOIA emails from the CDC and helped us to understand the crimes that we were seeing in the following pages.
Many of our volunteers themselves have suffered ostracism, job loss, marginalization and other penalties, as a consequence of their commitment to real science, real medicine and to bringing forth the truth to save their fellow human beings and generations yet unborn.
The battle is ongoing. No one who committed this massive crime against humanity is in jail or even facing civil or criminal charges.
There are at least three lawsuits against Pfizer — two of ours and one of Brook Jackson’s — but, to date, none of the lawsuits has completely prevailed. The litigation drags on.
Nonetheless — nonetheless. The word is out.
Amy Kelly and I get hundreds of emails from grateful families, telling us about their healthy babies or grandchildren and thanking us for saving those babies or sons and daughters and daughters-in-law, and we know this project has saved many lives; perhaps hundreds of thousands of lives and maybe saved millions from disabling injuries.
Steve Bannon, who started it all, saved hundreds of thousands of lives and saved his listeners and ours from sustaining millions of injuries.
God knows how many babies will be born in the future, safe and well, because of our collective, arduous, much-targeted work.
The story of this project is not over.
Your own actions, upon your having read these reports, are part of the ongoing ripples of this work.
Whom will you tell?
How will you process the information?
What will you do to avenge the crimes of the past?
What will you do to save the future?
Pfizer’s response
As of press time, Pfizer Inc. has not responded to three voicemails and four emails requesting an interview or written response to the “Pfizer Papers” and Dr. Naomi Wolf’s introduction.
You can find Dr. Naomi Wolf’s introduction and other related commentaries on her Substack publication, Outspoken with Dr. Naomi Wolf, at naomiwolf.substack. com.