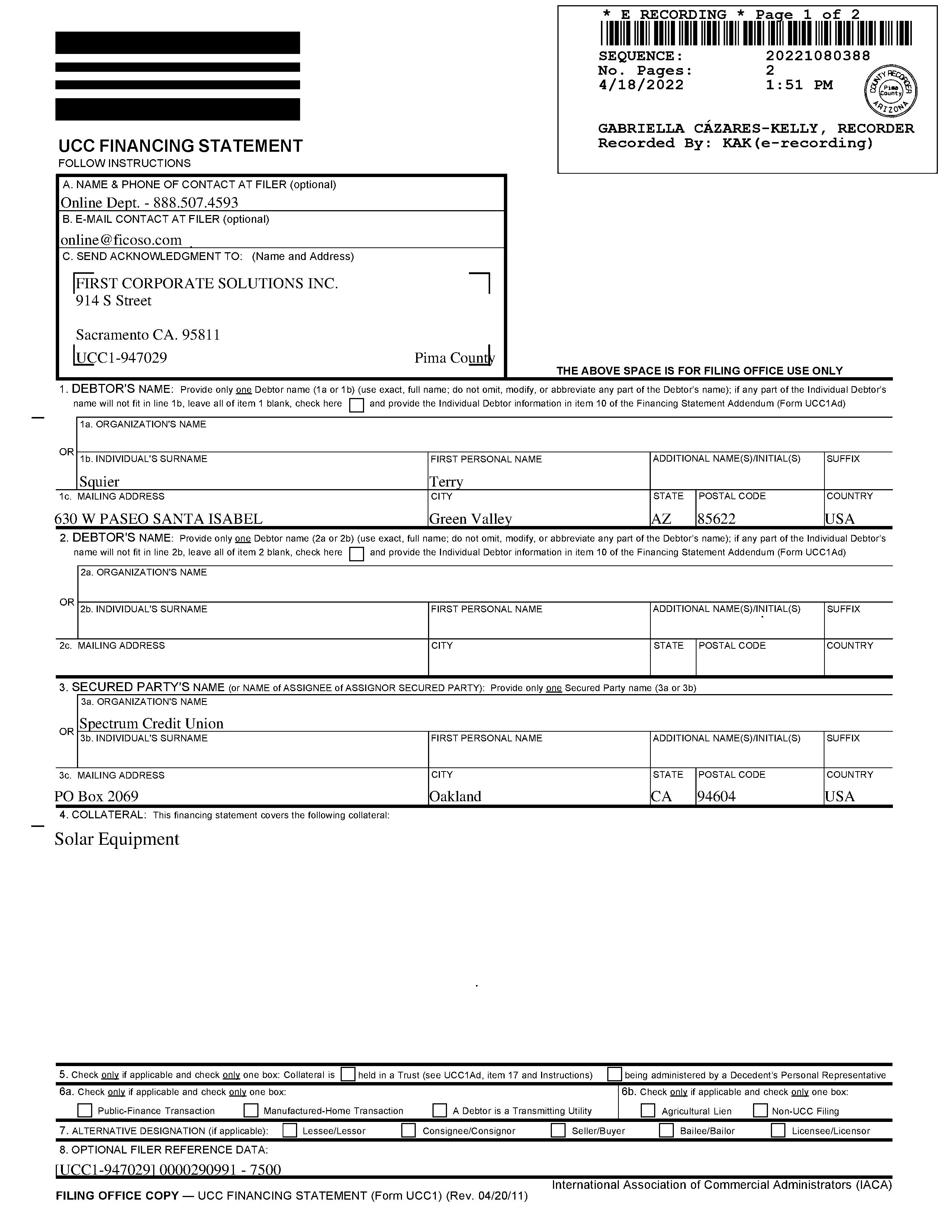
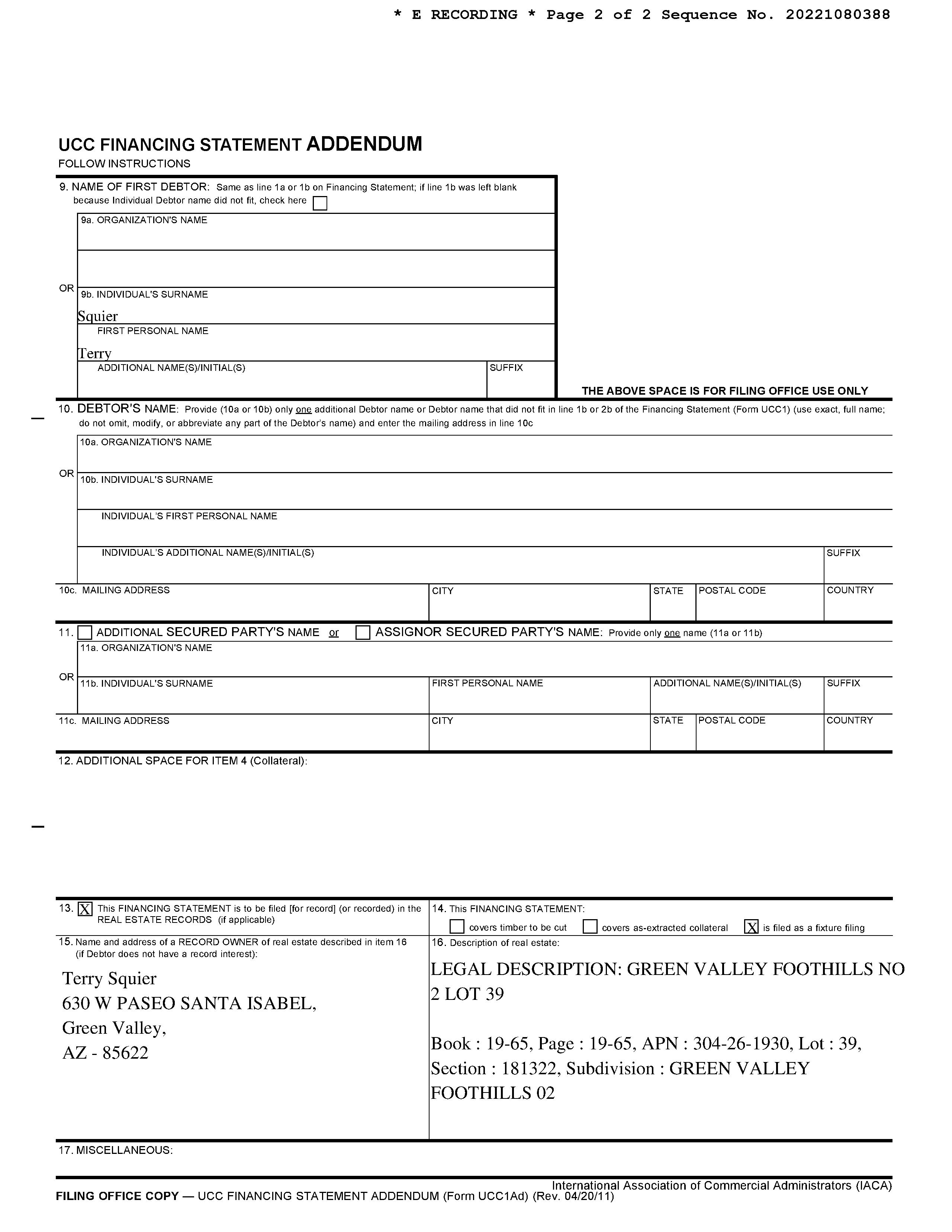
630 W. Paseo Santa Isabel

Page 1

Subject Property

630 W Paseo Santa Isabel Green Valley AZ 85622

APN: 304-26-1930

Data Provided By:

First American Title Ins Co

© 2022 CoreLogic. All rights reserved

LIMITATION OF LIABILITY FOR INFORMATIONAL REPORTS

IMPORTANT -- PLEASE READ CAREFULLY:

This report is not an insured product or service or a representation of the condition of title to real property. It is not an abst ract, legal opinion, opinion of title, title insurance commitment or preliminary report, or any form of Title Insurance or Guaranty. This report is issued exclusively for the benefit of the Applicant therefor and may not be used or relied upon by any other person. This report may not be reproduced in any manner without First American or Title Security's prior written consent. First American or Title Security does not represent or warrant that the information herein is complete or free from error, and the information herein is provided without any warranties of any kind, as-is, and with all faults. As a material part of the consideration given in exchange for the issuance of this report, recipient agrees that First American or Title Security's sole liability for any loss or damage caused by an error or omission due to inaccurate information or negligence in preparing this report shall be limited to the fee charged for the report. Recipient accepts this report with this limitation and agrees that First American or Title Security would not have issued this report but for the limitation of liability described above. First American or Title Security makes no representation or warranty as to the legality or propriety of recipient's use of the information herein.

Disclaimer

This REiSource report is provided "as is" without warranty of any kind, either express or implied, including without limitations any warrantees of merchantability or fitness for a particular purpose. There is no representation of warranty that this information is complete or free from error, and the provider does not assume, and expressly disclaims, any liability to any person or entity for loss or damage caused by errors or omissions in this REiSource report without a title insurance policy.

The information contained in the REiSource report is delivered from your Title Company, who reminds you that you have the right as a consumer to compare fees and serviced levels for Title, Escrow, and all other services associated with property ownership, and to select providers accordingly. Your home is the largest investment you will make in your lifetime and you should demand the very best.

Data Provided By: First American Title Ins Co
© 2022 CoreLogic. All rights reserved

Subject Property :   630 W Paseo Santa Isabel Green Valley AZ 85622

Owner Information

Owner Name : Squier T J & S A Living Trust

Mailing Address : 630 W Paseo Santa Isabel, Green Valley AZ 85622-8313 C067

Vesting Codes : / / Living Trust

Owner Occupied Indicator : O

Location Information

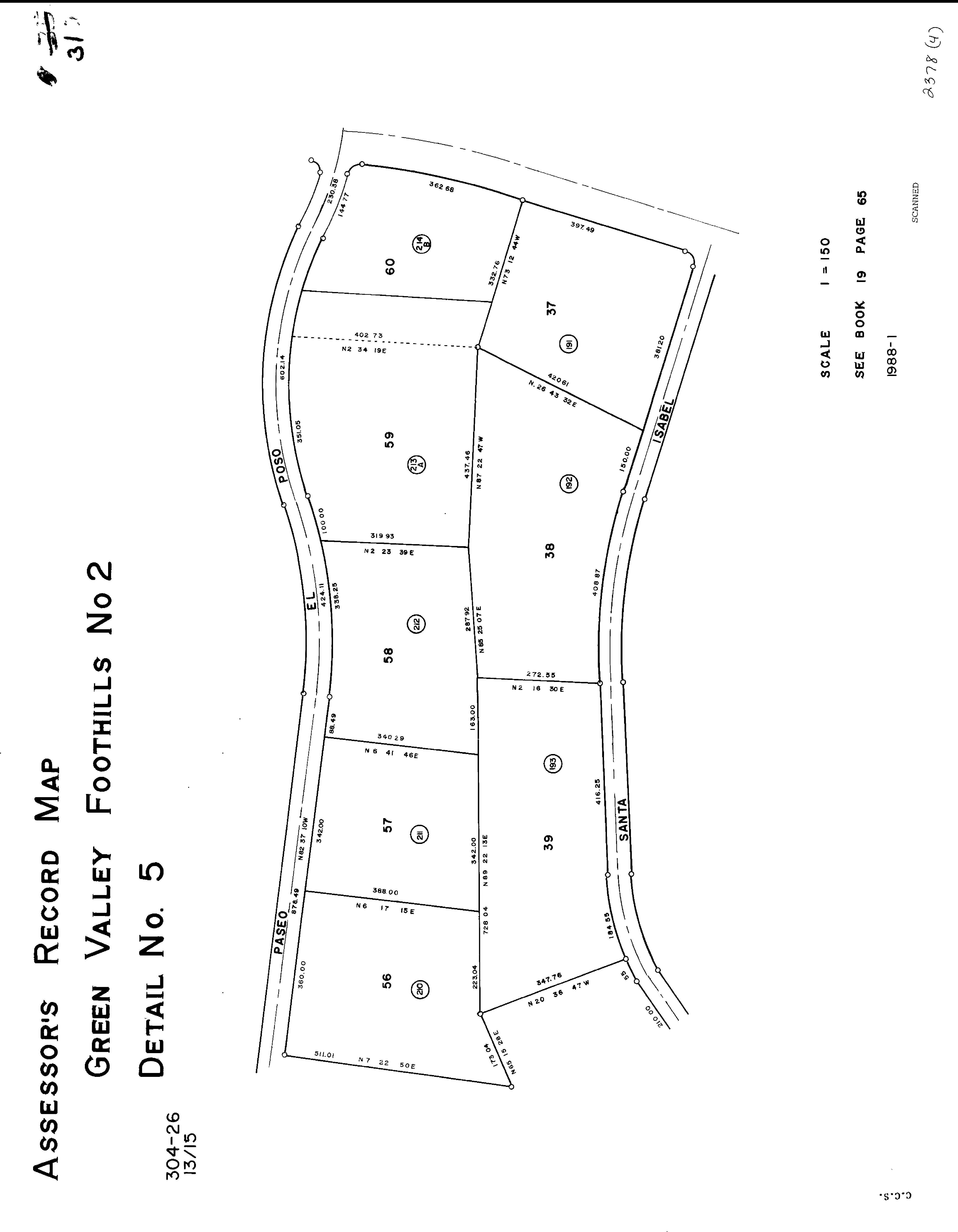
Legal Description : Green Valley Foothills No 2 Lot 39

County : Pima, Az

Market Area : 817

Census Tract / Block : 43.30 / 1 APN : 304-26-1930

Township-Range- Sect : 18-13E-22

Legal Book/Page : 19-65

Legal Lot : 39

Owner Transfer Information

Recording/Sale Date : 10/20/2022 / 09/27/2022

Subdivision : Green Valley Foothills 02

School District : Continental

Munic/Township : Continental

Deed Type : Warranty Deed Document # : 2930215

Last Market Sale Information

Recording/Sale Date : 08/25/2021 / 08/06/2021

Sale Price : $675,000

Document # : 2370806

1st Mtg Amount/Type : $472,500 / Cnv

1st Mtg Document # : 2370807

1st Mtg Term : 15

Deed Type : Warranty Deed Price Per SqFt : $233.56

Title Company : Pioneer Title Agency

Seller Name : Gunton Family Trust

Prior Sale Information

Prior Rec/Sale Date : 12/02/2003 / 11/21/2003

Prior Sale Price : $150,000

Prior Doc Number : 12188-1404

Prior Deed Type : Warranty Deed

Customer Name : Kariann Keomaka

Customer Company Name : First American Title Insurance Company

Prepared On : 12/08/2022

© 2022
All rights reserved
CoreLogic.

Property Characteristics

Gross Area : 2,890 Garage Capacity : 3

Patio Type : Covered Patio

Living Area : 2,890 Roof Material : Built-up Air Cond : Refrigeration

Total Rooms : 8 Heat Type : Forced Air Quality : Fair

Year Built / Eff : 2006 Cooling Type : Forced Air Condition : Excellent

# of Stories : 1 Exterior wall : Frame Wood Bath Fixtures : 10

Parking Type : Garage

Property Information

Land Use : Sfr Zoning : SH

County Use : Single Fam Resurban Subd Lot Acres : 4.48

Tax Information

Total Value : $449,432

Property Tax : $5,058.23

Total Taxable Value : $44,943 Tax Rate Area : 3901

Assessed Year : 2021 Market Value : $449,432

Tax Year : 2021 Current Assessed Year : 2023

Lot Size : 195,168

State Use : Single Fam Resurban Subd

Current Year Total Value : $54,700

Current Year Improvement Value :

$54,650

Current Year Land Value : $50

Customer Name : Kariann Keomaka

Customer Company Name : First American Title Insurance Company

Prepared On : 12/08/2022

© 2022 CoreLogic. All rights reserved
Sales Analysis Criteria Subject Property Low High Average
Distance
Summary of Comparables # Address Sale Price Total Assessed Value Sale Date Bed Bath Living Area Lot Size Year Built Dist (Miles) Zoning
Distressed Sales = Customer Name : Kariann Keomaka Customer Company Name : First American Title Insurance Company Prepared
© 2022 CoreLogic. All rights reserved
Sale Price $675,000 $550,000 $850,000 $686,250 Bldg/Living Area 2890 2504 2863 2669 Price Per Square Foot $233.56 $203 $300 $257.13 Year Built 2006 1989 2009 1999 Lot Size 195,168 39,457 60,624 51,847 Bedrooms Bathrooms 4 3 4 4 Stories 1 1 1 1 Total Assessed Value $449,432 $319,000 $522,957 $417,479
From Subject 0 0.39 0.71 0.6
S 630 W Paseo Santa Isabel 675,000 449,432 08/25/2021 4 2,890 195,168 2006 SH 1 1510 S Camino Del Sol 595,000 319,000 04/29/2022 4 2,595 48,582 1989 0.39 CR-2 2 806 W Placita Quieta 850,000 522,957 04/06/2022 4 2,863 60,624 2009 0.64 CR-1 3 1241 W Placita Quieta 550,000 343,422 04/06/2022 3 2,712 58,723 1992 0.66 CR-2 4 677 W Placita Quieta 750,000 484,538 03/29/2022 3 2,504 39,457 2007 0.71 CR-1
On : 12/08/2022
Map
©
All rights reserved
Customer Name : Kariann Keomaka Customer Company Name : First American Title Insurance Company Prepared On : 12/08/2022
2022 CoreLogic.

Details of Comparables

Subject Property: 630 W Paseo Santa Isabel Green Valley Az 85622

Owner Name: Squier T J & S A Living Trust / APN / Alternate APN: 304-26-1930 / Deed Type: Warranty Deed Land Use: Sfr Subdivision / Tract: Green Valley Foothills 02 / Lot Size: 195,168 Year Built / Eff: 2006 /

Rec. Date / Price: 08/25/2021 / $675,000 Living Area: 2,890

# of units: Document #: 2370806 Bedrooms: Pool: Total Tax Value: $449,432 Bath(F/H): /

#1   1510 S Camino Del Sol Green Valley Az 85622

Owner Name: Hoenig Charles L /Hoenig Linda L APN / Alternate APN: 304-26-1520 / Deed Type: Warranty Deed Land Use: Sfr Subdivision / Tract: Green Valley Acres 02 / Lot Size: 48,582 Year Built / Eff: 1989 /

Rec. Date / Price: 04/29/2022 / $595,000 Living Area: 2,595 # of units: Document #: 1190495 Bedrooms: Pool: Total Tax Value: $319,000 Bath(F/H): /

#2   806 W Placita Quieta Green Valley Az 85622

Owner Name: Richard K F T / APN / Alternate APN: 304-54-0730 / Deed Type: Warranty Deed Land Use: Sfr Subdivision / Tract: Solar Del Viejo / Lot Size: 60,624 Year Built / Eff: 2009 / Rec. Date / Price: 04/06/2022 / $850,000 Living Area: 2,863 # of units: Document #: 960287 Bedrooms: Pool: Total Tax Value: $522,957 Bath(F/H): /

#3   1241

W Placita Quieta Green Valley Az 85622

Owner Name: Katz Barbara /Katz Andrew APN / Alternate APN: 304-18-0660 / Deed Type: Warranty Deed Land Use: Sfr Subdivision / Tract: Green Valley South Acres / Lot Size: 58,723 Year Built / Eff: 1992 /

Rec. Date / Price: 04/06/2022 / $550,000 Living Area: 2,712 # of units: Document #: 960168 Bedrooms: Pool: Total Tax Value: $343,422 Bath(F/H): /

#4   677 W Placita Quieta Green Valley Az 85622

Owner Name: Kieffer Trust / APN / Alternate APN: 304-54-0020 / Deed Type: Warranty Deed Land Use: Sfr Subdivision / Tract: Solar Del Viejo / Lot Size: 39,457 Year Built / Eff: 2007 / Rec. Date / Price: 03/29/2022 / $750,000 Living Area: 2,504

# of units: Document #: 880371 Bedrooms: Pool: Total Tax Value: $484,538 Bath(F/H): /

Customer Name : Kariann Keomaka

Customer Company Name : First American Title Insurance Company Prepared On : 12/08/2022

© 2022 CoreLogic. All rights reserved
Customer
© 2022 CoreLogic. All rights reserved
Subject Property :   630 W Paseo Santa Isabel Green Valley AZ 85622
Customer Name : Kariann Keomaka
Company Name : First American Title Insurance Company Prepared On : 12/08/2022

Customer Name : Kariann Keomaka Customer Company Name : First American Title Insurance Company Prepared On : 12/08/2022 © 2022 CoreLogic.

rights reserved
All

520.625.3502

SUNNYSIDE UNIFIED 2238 E. Ginter Road, Tucson, AZ 85706 520.545.2000

TANQUE VERDE UNIFIED 2300 N. Tanque Verde Loop, Tucson, AZ 85749 520.749.5751 01 TUCSON UNIFIED 1010 E. 10th Street, Tucson, AZ 85717 520.225.6000

VAIL UNIFIED 10701 E. Mary Ann Cleveland Way, Tucson, AZ 85747 520.879.2000

05249570321 TUCSON INT'L AIRPORT Air Force WSilverbellRd SSantaRitaRd N M t L emmon Hwy ESascoRd NF 38 W Avra Valley Rd E Grand Va ey Dr NAguirre R d N L u c k e R d N W e n t z R d N Wa terman Mounta i n R d N Anway Rd W El Tiro Rd N Trico Rd W Tucker Rd W Rudas l Rd W Manvi e Rd SSanJoaquinRd WBopp Rd W Snyder H l Rd S M a r s e a r R d W Park Rd W Hermans Rd W Hermans Rd W Guy St W Bush Rd S G a v e y R d N C a e R i n c o n a d o S W m o R d S Shaw Rd S Sierrita Mountain Rd S K o b R d W TwinButtes Rd W Mcgee Ranch Rd S E s t a n c a D r EDesertDove E Hemlock Dr N Bea r C a n y o n R d W E Camino Del Cerro E Fairmount St S Swan Rd NFrontageRd W Emigh Rd W Fort Lowe Rd N P u m p S t a t ion dR E Nona Rd Ch efButteRd Lo al Ave N Trico Rd S Cattle Tank Rd Evalyn Rd SOwlHead R a n c h Rd GasLineRd S P ec a n R d N T r c o R d W Bayard Rd S S a n d a r o R d W i l l owSpri n gsRd N Dove Mountain Blvd SHelvetiaRd WAnamax Mine Rd W G a c i a R a n hc R d Road424 WRagged Top Rd W Ruby Star Dr WBritten RanchRd W Pima Mine Rd S Mcgee Ranch R d E Edw n Rd SGuildRd 8 0 NKINNEYRD S PICACHO HWY E BAUMGARTNER RD N S A N D A R I O R D N ANWAY RD W VALENCIA RD W MOORE RD W INA RD N 1 S T A V E E SUNRISE DR E SNYDER RD NSILVERBELLRD N S O L D I E R T R L E RIVER RD E PRINCE RD E SPEEDWAY BLVD S FREEMAN RD E 22ND ST E 22ND ST W IRVINGTON RD S N O G A L E S H W Y W VALENCIA RD SMISSIONRD W SPEEDWAY BLVD S O L D S P A N I S H T RL W NARANJA DR W TWIN PEAKS RD W PICTURE ROCKS RD W MANVILLE RD SKINNEYRD W MILE WIDE RD E SAHUARITA RD N TRICO RD S S A N D A R O R D PARK LINK DR S OLD N O G ALES HW Y S H O U G H T O N R D S L A C A N A D A DR W HELMET PEAK RD WAJOHWY N S W A N R D S KOLB RD S HOUGHTON RD W TANGERINE RD E GRANT RD S H O U G H T O N R D 9 5 WAJOHWY E VALENCIA RD NORACLE R D I10 I-19 77 77 77 86 86 286 10 19 10 10 Corona de Tucson Casas Adobes Catalina Green Valley Oracle Picture Rocks Three Points Vail Summit Tanque Verde Tucson Sahuarita Red Rock Saddlebrooke Marana Oro Valley Rillito Summerhaven Willow Canyon Oracle Junction Cortaro Continental Littletown 20 30 13 15 51 39 12 01 01 08 10 16 11 06 PIMA COUNTY School District Information This map is provided for general location only. Please contact school districts for actual street boundaries SCHOOL DISTRICTS 15 AJO UNIFIED 111 N. Well Road, Ajo, AZ 85321 520.387.5618 51 ALTAR VALLEY ELEMENTARY 10105 S. Sasabe Road, Tucson, AZ 85736 520.822.1484 10 AMPHITHEATER UNIFIED 701 W. Wetmore, Tucson, AZ 85705 520.696.5000 16 CATALINA FOOTHILS UNIFIED 2101 E. River Road, Tucson, AZ 85718 520.209.7500 39 CONTINENTAL ELEMENTARY 1991 E. Whitehouse Canyon, Green Valley, AZ 85614
08 FLOWING WELLS UNIFIED 1556 W. Prince Road, Tucson, AZ 85705 520.696.8800 06 MARANA UNIFIED 11279 W. Grier Road, Marana, AZ 85653
11 PIMA COUNTY JTED 2855 W. Master Pieces Dr, Tucson, AZ 85741
30 SAHUARITA UNIFIED 350 W. Sahuarita Road,
First American Title Insurance Company, and the operating divisions thereof, make no express or implied warranty respecting the information presented and assume no responsibility for errors or omissions. First American, the eagle logo, First American Title, and firstam.com are registered trademarks or trademarks of First American Financial Corporation and/or its affiliates. ©2021 First American Financial Corporation and/or its affiliates. All rights reserved. NYSE: FAF
520.625.4581
520.682.3243
520.352.5833
Sahuarita, AZ 85629
12
13
20

Arizona Schools

For detailed information and statistics on Arizona schools please go to https://azreportcards.azed.gov/ First American Title Insurance Company, and the operating divisions thereof, make no express or implied warranty respecting the information presented and assume no responsibility for errors or omissions. First American, the eagle logo, First American Title, and firstam.com are registered trademarks or trademarks of First American Financial Corporation and/or its affiliates. ©2021 First American Financial Corporation and/or its affiliates. All rights reserved. NYSE: FAF 05117910421

Public Schools : Elementary Schools

Continental On-line Learning Technology School Distance 1.78 Miles

1991 E Whitehouse Canyon Rd Green Valley AZ 85614

Telephone : (520) 625-4581

School District : Continental Elementary District (4416)

Lowest Grade : K Highest Grade : 8th

Kindergarten : Yes School Enrollment : Enrollment : Total Expenditure/Student : 98

Customer Name : Kariann Keomaka

Customer Company Name : First American Title Insurance Company

Prepared On : 12/08/2022

© 2022 CoreLogic. All rights reserved

Attractions / Recreation

Name Address

Telephone Distance (Miles)

Happy Doc Summer Camp Llc 190 W Continental Rd Green Valley Az (520) 302-5430 0.65

Money Lady Team 180 W Continental Rd # 15 Green Valley Az (520) 399-0900 0.65

Green Valley Recreation, Inc. 1111 S Via Arcoiris Green Valley Az (520) 625-0288 0.8

Community Performing Arts Center Foundation, Inc. 1250 W Continental Rd Green Valley Az (520) 399-1750 0.84

Banks / Financial

Name Address

Telephone Distance (Miles)

Keefe's World Of Currency 815 W Quail Dr Green Valley Az (520) 625-0595 0.16

Wells Fargo Bank, National Association 375 W Continental Rd Green Valley Az (520) 625-4995 0.5

Jpmorgan Chase Bank, National Association 201 W Continental Rd Green Valley Az (520) 792-5964 0.57

Harris Bmo Bank National Association 270 W Continental Rd # 10 Green Valley Az (520) 648-2511 0.59

Eating / Drinking

Name Address

Telephone Distance (Miles)

Los Agaves Restaraunt 1451 S La Canada Dr # 14 Green Valley Az (520) 648-7770 0.39

Kentucky Fried Chicken 280 W Continental Rd Green Valley Az (520) 648-0891 0.59

Dick Winter 180 W Continental Rd # 15 Green Valley Az (520) 625-8180 0.65

David A Schmidle Inc 170 W Continental Rd Green Valley Az (520) 625-5305 0.65

Health Care Services

Name Address

Telephone Distance (Miles)

Richard John Derr Lmft, M.s. 610 W Paseo Bolsa Green Valley Az (520) 270-0913 0.16

Two P's In A Pod 530 W Quail Dr Green Valley Az (520) 625-8266 0.19

Customer Name : Kariann Keomaka

Customer Company Name : First American Title Insurance Company

Prepared On : 12/08/2022

Local Business
© 2022
All rights reserved
CoreLogic.

Nikhil Thaker, Md

1315 S La Canada Dr Green Valley Az (520) 625-9850 0.43

Us Oncology, Inc. 1315 S Lacanada Dr Green Valley Az (520) 625-6600 0.45

Organizations / Associations

Name Address Telephone Distance (Miles)

Desert Hills Lutheran Church 2150 S Camino Del Sol Green Valley Az (520) 648-1633 0.82

Shopping

Name Address Telephone Distance (Miles)

Safeway Stores, Incorporated 260 W Continental Rd Green Valley Az (520) 625-7283 0.63

Warehouse Vitamins 19 250 W Continental Rd # 50 Green Valley Az (520) 625-1499 0.63

True Value Hardware 220 W Continental Rd Green Valley Az (520) 648-7539 0.64

Jng Holdings, L.l.c. 220 W Continental Rd Green Valley Az (520) 648-7539 0.64

Customer Name : Kariann Keomaka

Customer Company Name : First American Title Insurance Company

Prepared On : 12/08/2022

© 2022 CoreLogic. All rights reserved

655 W QUAIL DR

Owner Name : Johnson Greg Edwards

Sale Date : 04/23/2019

Distance 0.06 Miles

Subdivision : Green Valley Foothills 02

Recording Date : 04/30/2019

Total Value : $394,182 Sale Price  : $455,000

Bed / Bath : / 4 Property Tax : $4,079.37

Land Use : Sfr Lot Acres : 2.72

Stories : 1 Living Area : 3,103

Yr Blt / Eff Yr Blt : 1976 / APN : 304-26-2110

605 W PASEO SANTA ISABEL Distance 0.07 Miles

Owner Name : Howe Francis L

Sale Date : 01/00/2002

Subdivision : Green Vly Foothills 02

Recording Date : 01/11/2002

Total Value : $296,382 Sale Price  : $247,000

Bed / Bath : / 3 Property Tax : $3,100.62

Land Use : Sfr Lot Acres : 2.53 Stories : 1 Living Area : 2,043

Yr Blt / Eff Yr Blt : 1977 / APN : 304-26-1880

645 W PASEO SANTA ISABEL Distance 0.09 Miles

Owner Name : Trout James M

Sale Date : 01/08/2014

700

Subdivision : Green Valley Foothills 02

Recording Date : 01/17/2014

Total Value : $414,373 Sale Price  : $398,400

Bed / Bath : / 2 Property Tax : $4,663.67

Land Use : Sfr Lot Acres : 2.90

Stories : 1 Living Area : 2,982

Yr Blt / Eff Yr Blt : 1986 / APN : 304-26-1870

W PASEO SANTA ISABEL Distance 0.09 Miles

Owner Name : Hirz Ann M

Sale Date : 04/15/2013

Subdivision : Green Valley Foothills 02

Recording Date : 04/18/2013

Total Value : $426,579 Sale Price  : $475,000

Bed / Bath : / 5 Property Tax : $4,801.10

Land Use : Sfr Lot Acres : 2.39

Stories : 1 Living Area : 3,367

Yr Blt / Eff Yr Blt : 1988 / APN : 304-26-1940

Customer Name : Kariann Keomaka

Customer Company Name : First American Title Insurance Company

Prepared On : 12/08/2022

© 2022 CoreLogic. All rights reserved

727

W QUAIL DR

Owner Name : Garmus Lori M

Sale Date : 09/21/2020

Distance 0.09 Miles

Subdivision : Green Valley Foothills 02

Recording Date : 09/24/2020

Total Value : $621,265 Sale Price  : $590,000

Bed / Bath : / 5 Property Tax : $6,992.35

Land Use : Sfr Lot Acres : 3.68

Stories : 1.5 Living Area : 4,813

Yr Blt / Eff Yr Blt : 1976 / APN : 304-26-2100

555 W QUAIL DR Distance 0.1 Miles

Owner Name : Cooper Tr

Sale Date : 06/13/2005

Subdivision : Green Valley Foothills 02

Recording Date : 06/21/2005

Total Value : $538,599 Sale Price  : $185,000

Bed / Bath : / 4 Property Tax : $6,061.87

Land Use : Sfr Lot Acres : 3.27

Stories : 1 Living Area : 3,305

Yr Blt / Eff Yr Blt : 2009 / APN : 304-26-2120

610 W PASEO BOLSA Distance 0.13 Miles

Owner Name : Overturf Donald

Sale Date : 09/05/2014

520

Subdivision : Green Valley Foothills 02

Recording Date : 10/09/2014

Total Value : $408,645 Sale Price  : $427,500

Bed / Bath : / 4 Property Tax : $4,599.33

Land Use : Sfr Lot Acres : 2.32 Stories : 1 Living Area : 2,460

Yr Blt / Eff Yr Blt : 1979 / APN : 304-26-1820

W PASEO SANTA ISABEL Distance 0.13 Miles

Owner Name : Wheatley Dennis E

Sale Date : 10/22/2021

Subdivision : Green Valley Foothills 02

Recording Date : 10/29/2021

Total Value : $548,978 Sale Price  : $890,000

Bed / Bath : / 3 Property Tax : $6,178.69

Land Use : Sfr Lot Acres : 4.58

Stories : 1 Living Area : 4,305

Yr Blt / Eff Yr Blt : 1977 / APN : 304-26-1920

Customer Name : Kariann Keomaka

Customer Company Name : First American Title Insurance Company

Prepared On : 12/08/2022

© 2022 CoreLogic. All rights reserved

525 W PASEO SANTA ISABEL Distance 0.13 Miles

Owner Name : Constant Stephen Price

Sale Date : 05/12/2000

Total Value : $706,909

Subdivision : Green Valley Foothills 02

Recording Date : 05/15/2000

Sale Price  : $161,000

Bed / Bath : / 6 Property Tax : $7,956.23

Land Use : Sfr Lot Acres : 3.21

Stories : 1 Living Area : 4,862

Yr Blt / Eff Yr Blt : 2002 / APN : 304-26-1890

660 W QUAIL DR Distance 0.13 Miles

Owner Name : Mundt Willis P & Dorothy L & N

Total Value : $408,773

Subdivision : Green Valley Acres 02

Recording Date : 08/16/1988

Bed / Bath : / 3 Property Tax : $4,245.60

Land Use : Sfr Lot Acres : 1.04 Stories : 1 Living Area : 3,311

Yr Blt / Eff Yr Blt : 1990 / APN : 304-26-0510

Customer Name : Kariann Keomaka Customer Company Name : First American Title Insurance Company
© 2022 CoreLogic. All rights reserved
Prepared On : 12/08/2022

Census Tract / block: 43.30 / 1     Year: 2018

Household

Population Population by Age

Count: 1,691 0 - 11

Estimate Current Year: 1,623 12 - 17

Estimate in 5 Years: 1,377 18 - 24 0.65%

Growth Last 5 Years: 1.24% 25 - 64 14.37%

Growth Last 10 Years: -48.75% 65 - 74 39.56% 75+

Household Size Household Income

Current Year: 1,118 0 - $25,000 29.16%

Average Current Year: 1.51 $25,000 - $35,000 9.75%

Estimate in 5 Years: 1,046 $35,000 - $50,000 15.83%

Growth Last 5 Years: 7.6% $50,000 - $75,000 17.53%

Growth Last 10 Years: 1.66% $75,000 - $100,000 14.04%

Male Population: 44.06% Above $100,000 13.69%

Female Population: 55.94% Average Household Income: $45,161

Married People: 65.41%

Unmarried People: 34.59%

Housing

Median Mortgage Payments Home Values

Under $300: 27.22% Below $100,000: 23.18%

$300 - $799: 49.48% $100,000 - $150,000: 30.57%

$800 - $1,999: 17.88% $150,000 - $200,000: 22.72%

Over $2,000: 5.42% $200,000 - $300,000: 10.73%

Median Home Value: $144,900 $300,000 - $500,000: 9.11%

Unit Occupied Owner: 77.55% Above $500,000: 3.69%

Median Mortgage: $617

Customer Name : Kariann Keomaka

Customer Company Name : First American Title Insurance Company Prepared On : 12/08/2022

© 2022 CoreLogic. All rights reserved

Rent Payments Year Built

Unit Occupied Renter: 22.45% 1999 - 2000

Median Gross Rent: $683 1995 - 1998

Less Than $499 3.19% 1990 - 1994

$500 - $749 56.18% 1980 - 1989 7.75%

$750 - $999 15.54% 1970 - 1979 44.95% $1000 and Over 25.1% 1900 - 1969 44.01%

Education

Enrollment

Public Pre-Primary School: 0% Not Enrolled in School: 98.94%

Private Pre-Primary School: 0% Not A High School Graduate: 0.54%

Public School: 0.41% Graduate Of High School: 16.49%

Private School: 0.65% Attended Some College: 24.58%

Public College: 0.41% College Graduate: 31.31%

Private College: 0.65% Graduate Degree: 27.08%

Workforce

Occupation:

Manager/Prof: 40.09% Private Worker: 47.41% Technical: Government Worker: 13.79% Sales: 33.19% Self Employed Worker: 3.02%

Administrative: Unpaid Family Worker: 28.45%

Private House Hold: Farming: 3.02%

Service: 7.33% Skilled:

Protective Services: Blue-Collar: 19.4%

Commute Time

Less Than 15 Min: 47.37%

15 min - 28 min: 12.11%

30 min - 57 min: 36.32%

Over 60 min: 4.21%

Customer Name : Kariann Keomaka

Customer Company Name : First American Title Insurance Company Prepared On : 12/08/2022

© 2022 CoreLogic. All rights reserved

Customer Name : Kariann Keomaka Customer Company Name : First American Title Insurance Company Prepared On : 12/08/2022

©
All rights reserved
2022 CoreLogic.

Customer Name : Kariann Keomaka

Customer Company Name : First American Title Insurance Company Prepared On : 12/08/2022

All rights reserved
© 2022 CoreLogic.

Customer Name : Kariann Keomaka

Customer Company Name : First American Title Insurance Company Prepared On : 12/08/2022 © 2022 CoreLogic.

rights reserved
All

SEARCH PARAMETERS

+ FIRST AMERICAN TITLE, FC0, KWAL PIMA, AZ 12/08/2022  09:22AM  TCI1  INVESTIGATIVE SEARCH RESULTS PAGE 1 OF 1
SALES SALE DATE SALE AMOUNT INSTRUMENT TYPE SELLER NAME VALIDITY 08/25/2021 675,000    2021 2370806 WD GUNTON JOSEPH A CYNTHIA C 12/02/2003 150,000    12188 1404 WD BURGESS SECOND FAMILY LTD
125,000
WD
ADDITIONAL PROPERTY INFORMATION STANDARD LAND USE: SFR END SEARCH
PARCEL:  304-26-1930 PARCEL: 304-26-1930 INSTRUMENT REC DATE OWNER: TERRY J AND SANDRA A SQUIER  AFFIDAVIT    2022 215 10/20/2022  SITUS: 630 W PASEO SANTA ISABEL GREEN VALLEY  MAIL: 630 W PASEO SANTA ISABEL   PLAT: LOT 00039 BLOCK 0 LEGAL: GREEN VALLEY FOOTHILLS NO 2 LOT 39  CURRENT TAXES INFORMATION THROUGH 11/25/2022 LAND IMPR EXEMPT RATE AREA SPECIAL DISTRICTS PRIMARY  46,989  0  0  6.9431  3901 SECONDARY  50  46,939  0  4.4434  2022 TOTAL TAX BILLED 4,953.30 2022  TAX AMT TAX DUE INTEREST DATE PAID TOTAL DUE FIRST HALF  2,476.65  0.00  0.00  10/24/2022  0.00  SECOND HALF  2,476.65  2,476.65  0.00  2,476.65  TOTAL CURRENT TAXES DUE 12/22 2,476.65 01/23 2,476.65 (ESTIMATED) IMPROVEMENTS BYPASS  BLDG SQFT  2,890 FULL CASH VALUE  469,890 YEAR BUILT  2006 LAND USE  01 51 NUMBER OF STORIES  1.0 LOT SIZE  1 STDLT STORIES HEIGHT  0 SCHOOL DISTRICT  3901 EXTERIOR WALLS  FRAME WOOD LAND FULL CASH VALUE  502 GRADE MATERIALS IMPR FULL CASH VALUE  469,388
05/17/1993
9543 1282
DOWNER CHARLES P/HELEN H

Turn static files into dynamic content formats.

Create a flipbook
Issuu converts static files into: digital portfolios, online yearbooks, online catalogs, digital photo albums and more. Sign up and create your flipbook.