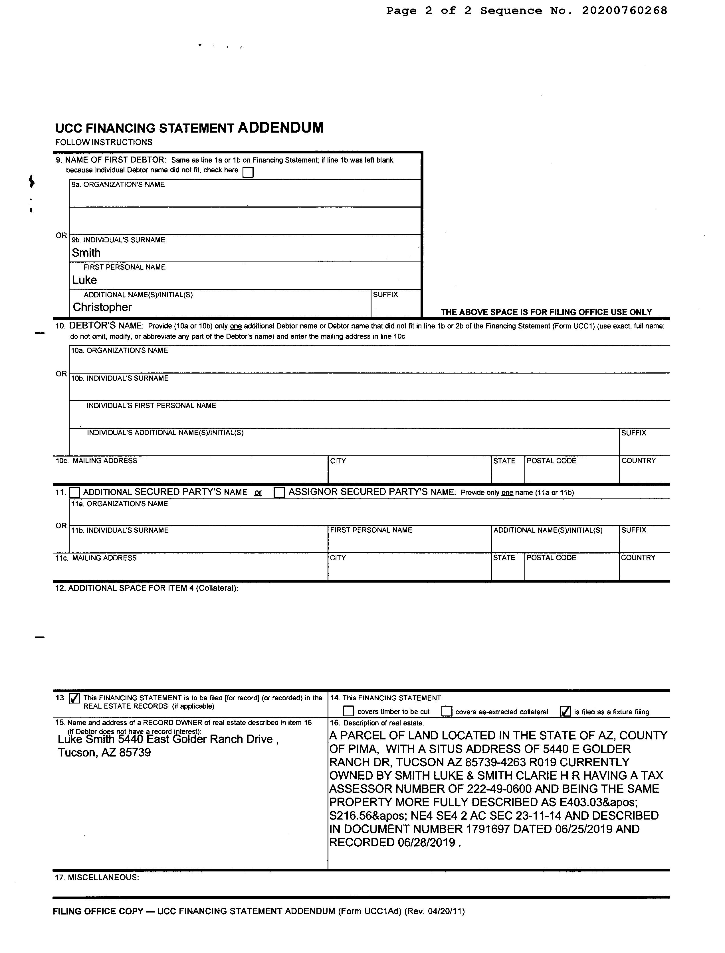
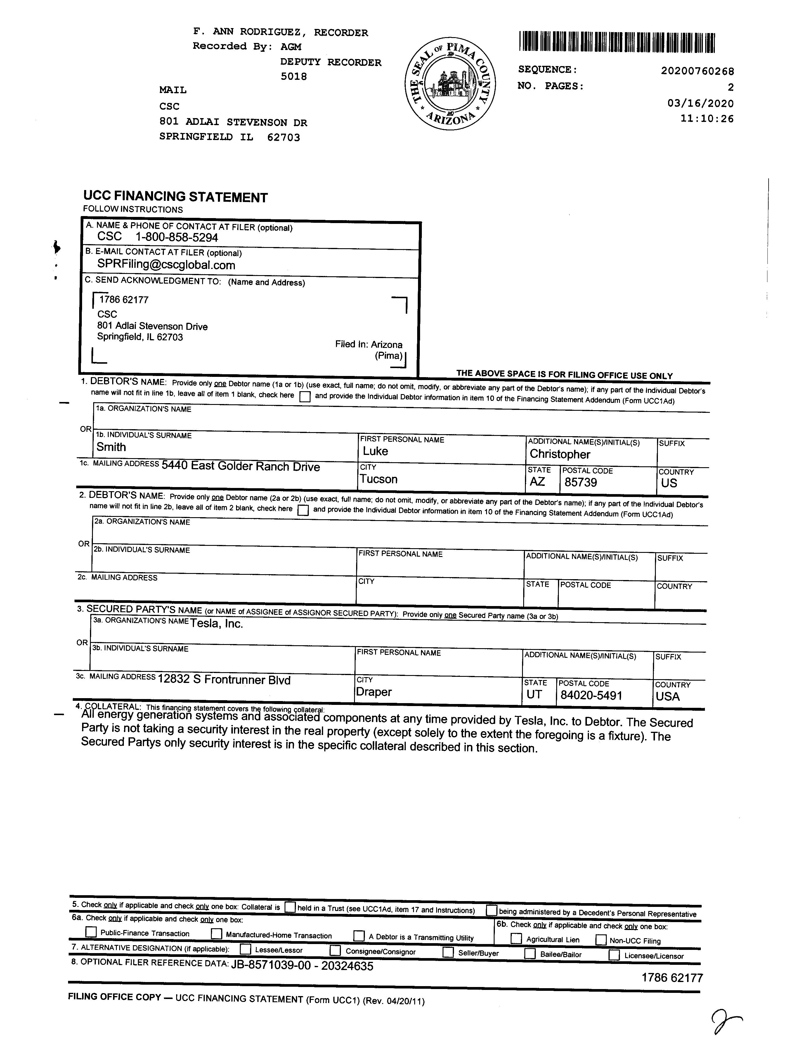
5440 E Golder Ranch Dr, Tucson, AZ 85739

Page 1

LIMITATION OF LIABILITY FOR INFORMATIONAL REPORTS

IMPORTANT -- PLEASE READ CAREFULLY:

This report is not an insured product or service or a representation of the condition of title to real property. It is not an abst ract, legal opinion, opinion of title, title insurance commitment or preliminary report, or any form of Title Insurance or Guaranty. This report is issued exclusively for the benefit of the Applicant therefor and may not be used or relied upon by any other person. This report may not be reproduced in any manner without First American or Title Security's prior written consent. First American or Title Security does not represent or warrant that the information herein is complete or free from error, and the information herein is provided without any warranties of any kind, as-is, and with all faults. As a material part of the consideration given in exchange for the issuance of this report, recipient agrees that First American or Title Security's sole liability for any loss or damage caused by an error or omission due to inaccurate information or negligence in preparing this report shall be limited to the fee charged for the report. Recipient accepts this report with this limitation and agrees that First American or Title Security would not have issued this report but for the limitation of liability described above. First American or Title Security makes no representation or warranty as to the legality or propriety of recipient's use of the information herein.

Subject Property AZ APN: 222-49-048P Data Provided By: First American Title Ins Co © 2022 CoreLogic. All rights reserved

Provided By:

Disclaimer

This REiSource report is provided "as is" without warranty of any kind, either express or implied, including without limitations any warrantees of merchantability or fitness for a particular purpose. There is no representation of warranty that this information is complete or free from error, and the provider does not assume, and expressly disclaims, any liability to any person or entity for loss or damage caused by errors or omissions in this REiSource report without a title insurance policy.

The information contained in the REiSource report is delivered from your Title Company, who reminds you that you have the right as a consumer to compare fees and serviced levels for Title, Escrow, and all other services associated with property ownership, and to select providers accordingly. Your home is the largest investment you will make in your lifetime and you should demand the very best.

Data
First American Title Ins Co
© 2022 CoreLogic. All rights reserved

AZ

Owner Information

Owner Name : Smith Luke / Claire Helene Rietsch

Mailing Address : 5440 E Golder Ranch Dr, Tucson AZ 85739-4263 R019

Vesting Codes : / / Community Property

Location Information

Legal Description : Ptn N396.20' S612.76 E350.55' N2 Se4 2.56 Ac Sec 23-11-14

County : Pima, Az

Census Tract / Block : 47.28 / 3

Township-Range- Sect : 11S-14E-23

Market Area : 420

Last Market Sale Information

APN : 222-49-048P

Map Reference : 23-11S-14E

School District : Amphitheater

Munic/Township : Amphitheater

Recording/Sale Date : 06/28/2019 / 06/25/2019 1st Mtg Amount/Type : $727,500

Sale Price : $827,500

Document # : 1791697

Deed Type : Warranty Deed

Title Company : Title Sec Agcy Llc

Lender : Private Individual

Seller Name : Palmer Joseph S & Vic

Prior Sale Information

Prior Rec/Sale Date : 01/17/2002 / 01/09/2002

Prior Sale Price : $35,000

Property Information

Land Use : Residential Acreage

County Use : Vac-res-rural Non Subd

1st Mtg Document # : 1791698

1st Mtg Term : 1

Prior Doc Number : 11718-1747

Prior Deed Type : Warranty Deed

Zoning : RH Lot Size : 111,514

Lot Acres : 2.56

State Use : Vac-res-rural Non Subd

Customer Name : Jeremiah Stiffler Customer Company Name : First American Prepared On : 10/07/2022

Subject Property :
© 2022 CoreLogic. All rights reserved

Tax Information

Total Value : $38,250

Property Tax : $845.69

Total Taxable Value : $5,738 Tax Rate Area : 1006

Assessed Year : 2021 Market Value : $38,250

Tax Year : 2021

Current Assessed Year : 2023

Current Year Total Value : $6,885

Current Year Land Value : $6,885

Customer Name : Jeremiah

Customer Company Name : First American

: 10/07/2022

Stiffler
Prepared On
© 2022 CoreLogic. All rights reserved
No comparables data for selected property. Customer Name : Jeremiah Stiffler Customer Company Name : First American Prepared On : 10/07/2022 © 2022 CoreLogic. All rights reserved
No street map for selected property. Customer Name : Jeremiah Stiffler Customer Company Name : First American Prepared On : 10/07/2022 © 2022 CoreLogic. All rights reserved
Customer Name : Jeremiah Stiffler Customer Company Name : First American Prepared On : 10/07/2022 © 2022 CoreLogic. All rights reserved

Public

Elementary Schools

Coronado K-8 School

E

Telephone :

Lowest Grade : Pre-K

2.88 Miles

School District : Amphitheater Unified District (4406)

Highest Grade : 8th

Kindergarten : Yes School Enrollment : Enrollment : 785 Total Expenditure/Student : 132

Customer

Schools :
Distance
3401
Wilds Rd Tucson AZ 85739
(520) 696-6626
Name : Jeremiah Stiffler Customer Company Name : First American Prepared On : 10/07/2022 © 2022 CoreLogic. All rights reserved

Attractions / Recreation

Name Address Telephone Distance (Miles)

Pima Pistol Club Inc 13390 N Lago Del Oro Pkwy Tucson Az (520) 825-3603 1.96

Club Drive Baseball, Llc 16078 N Chapulin Way Tucson Az (520) 248-2513 3.12

Jnc Defensive Strategies, Llc 13774 N High Mtn View Pl Tucson Az (520) 909-2706 3.23

Chi Empire Tai 2335 E Gerbera Way Oro Valley Az (914) 803-2632 3.65

Banks / Financial

Name Address Telephone Distance (Miles)

Wells Fargo & Company 15310 N Oracle Rd Tucson Az (520) 818-9891 3.24

Jpmorgan Chase Bank, National Association 15314 N Oracle Rd Tucson Az (520) 825-4145 3.24

Home Mortgage Services 2367 E Big View Dr Oro Valley Az (520) 906-4900 3.6

Jpmorgan Chase Bank, National Association 11625 N Oracle Rd Tucson Az (520) 797-1991 4.51

Eating / Drinking

Name Address Telephone Distance (Miles)

Santina's Italian Deli 4104 E Trotter Pl Tucson Az (520) 603-1728 1.87

Kissed By An Italian Llc 15750 N Rdrunner Ridge Ln Tucson Az (520) 256-8459 2.4

Vitello's 3683 E Mecate Rd Tucson Az (520) 825-0140 2.67

Comida Del Oro, Llc 3635 E Secretariat Rd Tucson Az (520) 395-0751 2.68

Health Care Services

Name Address Telephone Distance (Miles)

Adobe Dental Lab Inc 14350 N Lago Del Oro Pkwy Tucson Az (520) 881-8418 1.72

Family Health Together Llc 3864 E Gwynns Run Pl Tucson Az (520) 818-1335 2.4

Nurse Ones Wellness 15155 N Rugged Lark Dr Tucson Az (520) 232-2102 2.42

Authentic Healing Myofascial Release, Pllc 3991 E Ruffian Rd Tucson Az (520) 400-8671 2.46

Customer Name : Jeremiah Stiffler Customer Company Name : First American Prepared On : 10/07/2022

Local Business
© 2022 CoreLogic. All rights reserved

Hospitality

Name Address Telephone Distance (Miles)

Miraval Resort Arizona, Llc 5000 E Via Estncia Mraval Tucson Az (520) 825-4000 3.5

Miraval Resorts & Spas 5000 E Via Estancia Tucson Az (520) 825-4000 3.5

Miraval Resort Tucson, Llc 5000 E Via Estncia Mraval Tucson Az (800) 232-3969 3.51

Triod Llc 5000 E Via Estncia Mraval Tucson Az (520) 818-5800 3.51

Organizations / Associations

Name Address Telephone Distance (Miles)

Church Of Christ 4160 E Schroeder Rd Tucson Az (520) 248-1744 2.12

Iglesia Bautista Horeb 3845 E Golder Ranch Dr Tucson Az (520) 365-6152 2.66

First Baptist Church Of Catalina 3505 E Wilds Rd Tucson Az (520) 818-2555 2.7

Mountain Shadows Presbyterian Church 3201 E Mountainaire Dr Tucson Az (520) 825-7858 2.85

Personal Services

Name Address Telephone Distance (Miles)

Forever Active Llc 1846 E Innovation Park Dr Oro Valley Az (416) 487-5174 4.23

Shopping

Name Address Telephone Distance (Miles)

Ducks Inc 3840 E Brayer Horse Pl Tucson Az (360) 944-5988 2.37

Moore, M Ichael Dennis 15450 N Twin Lakes Dr Tucson Az (520) 815-8243 2.97

Valero Corner Store 1658 15240 N Oracle Rd Tucson Az (520) 825-3319 3.16

Bashas' Inc. 15310 N Oracle Rd Tucson Az (520) 575-7301 3.24

Customer Name : Jeremiah

: First American

Stiffler Customer Company Name
Prepared On : 10/07/2022 © 2022 CoreLogic. All rights reserved

5440 E GOLDER RANCH DR Distance 0.05 Miles

Owner Name : Smith Luke & Claire Helene Rie

Sale Date : 06/25/2019

Total Value : $606,064

Bed / Bath : / 4

Land Use : Sfr

Stories : 1.5

Yr Blt / Eff Yr Blt  : 1993 /

Recording Date : 06/28/2019

Sale Price  : $827,500

Property Tax : $7,579.55

Lot Acres : 2.00

Living Area : 5,249

APN : 222-49-0600

5422 E GOLDER RANCH DR Distance 0.05 Miles

Owner Name : Booth

Sale Date : 07/00/2001

Total Value : $363,645

Bed / Bath : / 3

Land Use : Sfr

Recording Date : 09/21/2001

Sale Price  : $105,600

Property Tax : $4,610.03

Lot Acres : 4.19

Living Area : 1,928

Stories : 1 APN : 222-49-048Q

Yr Blt / Eff Yr Blt  : 2005 /

5400 E GOLDER RANCH DR Distance 0.06 Miles

Owner Name : Acher James Wheaton

Sale Date : 04/09/2020

Total Value : $377,267

Bed / Bath : / 3

Land Use : Sfr

Stories : 1

Yr Blt / Eff Yr Blt  : 1975 /

Recording Date : 04/16/2020

Sale Price  : $675,000

Property Tax : $4,529.34

Lot Acres : 2.00

Living Area : 2,758

APN : 222-49-059C

5410 E GOLDER RANCH DR Distance 0.08 Miles

Owner Name : Schweers Laura E

Sale Date : 12/00/1997

Total Value : $305,430

Bed / Bath : / 3

Land Use : Sfr

Stories : 1

Yr Blt / Eff Yr Blt  : 1988 /

Recording Date : 12/23/1997

Sale Price  : $174,000

Property Tax : $3,760.06

Lot Acres : 1.15

Living Area : 2,031

APN : 222-49-0580

Customer Name : Jeremiah Stiffler

Company

: First American

: 10/07/2022

Customer
Name
Prepared On
© 2022 CoreLogic. All rights reserved

5404 E GOLDER RANCH DR Distance 0.11 Miles

Owner Name : Halverson Laura

Sale Date : 02/09/2022

Total Value : $421,807

Bed / Bath : / 4

Land Use : Sfr

Stories : 1

Yr Blt / Eff Yr Blt  : 2004 /

Recording Date : 02/11/2022

Sale Price  : $779,359

Property Tax : $5,483.07

Lot Acres : 1.00

Living Area : 2,740

APN : 222-49-055A

5398 E GOLDER RANCH DR Distance 0.11 Miles

Owner Name : Harnack Tr & Namka Tr 1/2

Sale Date : 11/00/1992

Total Value : $283,667

Bed / Bath : / 4

Land Use : Sfr

Recording Date : 11/17/1992

Sale Price  : $39,500

Property Tax : $3,546.53

Lot Acres : 1.00

Living Area : 1,787

Stories : 1 APN : 222-49-055B

Yr Blt / Eff Yr Blt  : 1994 /

5460 E GOLDER RANCH DR Distance 0.12 Miles

Owner Name : Wilson Richard H

Sale Date : 05/00/1994

Total Value : $335,544

Bed / Bath : / 2

Land Use : Sfr

Stories : 1

Yr Blt / Eff Yr Blt  : 1981 /

Recording Date : 05/11/1994

Sale Price  : $315,000

Property Tax : $4,239.38

Lot Acres : 5.52

Living Area : 1,986

APN : 222-49-0610

5390 E GOLDER RANCH DR Distance 0.12 Miles

Owner Name : Lopez Ignacio M

Sale Date : 03/00/1993

Total Value : $258,180

Bed / Bath : / 3

Land Use : Sfr

Stories : 1

Yr Blt / Eff Yr Blt  : 1985 /

Recording Date : 03/12/1993

Sale Price  : $168,250

Property Tax : $3,202.69

Lot Acres : 1.39

Living Area : 1,875

APN : 222-49-0570

Customer Name : Jeremiah Stiffler

Company Name : First American

On : 10/07/2022

Customer
Prepared
© 2022 CoreLogic. All rights reserved

5405 E GOLDER RANCH DR

Owner Name : Fritts John Sr

Sale Date : 04/11/2000

Total Value : $528,165

Bed / Bath : / 5

Land Use : Sfr

Stories : 1

Distance 0.13 Miles

Recording Date : 04/12/2000

Sale Price  : $130,000

Property Tax : $7,000.44

Lot Acres : 2.50

Living Area : 3,840

APN : 222-49-048F

Customer

Yr Blt / Eff Yr Blt  : 2002 /
Name : Jeremiah Stiffler Customer Company Name : First American Prepared On : 10/07/2022 © 2022 CoreLogic. All rights reserved
No demographics data for selected property. Customer Name : Jeremiah Stiffler Customer Company Name : First American Prepared On : 10/07/2022 © 2022 CoreLogic. All rights reserved
Subject Property 5440 E Golder Ranch Dr Tucson AZ 85739 APN: 222-49-0600 Data Provided By: First American Title Ins Co © 2022 CoreLogic. All rights reserved

Provided By:

Disclaimer

This REiSource report is provided "as is" without warranty of any kind, either express or implied, including without limitations any warrantees of merchantability or fitness for a particular purpose. There is no representation of warranty that this information is complete or free from error, and the provider does not assume, and expressly disclaims, any liability to any person or entity for loss or damage caused by errors or omissions in this REiSource report without a title insurance policy.

The information contained in the REiSource report is delivered from your Title Company, who reminds you that you have the right as a consumer to compare fees and serviced levels for Title, Escrow, and all other services associated with property ownership, and to select providers accordingly. Your home is the largest investment you will make in your lifetime and you should demand the very best.

Data
First American Title Ins Co
© 2022 CoreLogic. All rights reserved

Subject Property :   5440 E Golder Ranch Dr Tucson AZ 85739

Owner Information

Owner Name : Smith Luke & Claire Helene Rietsch & Rietsch Manfred A All

Mailing Address : 5440 E Golder Ranch Dr, Tucson AZ 85739-4263 R019

Vesting Codes : / / Joint Tenants

Owner Occupied Indicator : O

Location Information

Legal Description : E403.03' S216.56' Ne4 Se4 2 Ac Sec 23-11-14

County : Pima, Az

Census Tract / Block : 47.28 / 3

Township-Range- Sect : 11S-14E-23

Market Area : 420

Owner Transfer Information

Recording/Sale Date : 02/14/2020 / 02/06/2020

APN : 222-49-0600

Map Reference : 23-11S-14E

School District : Amphitheater

Munic/Township : Amphitheater

Deed Type : Warranty Deed Document # : 450319 1st Mtg Document # : 450321

Last Market Sale Information

Recording/Sale Date : 06/28/2019 / 06/25/2019 1st Mtg Amount/Type : $727,500

Sale Price : $827,500

Document # : 1791697

1st Mtg Document # : 1791698

1st Mtg Term : 1

Deed Type : Warranty Deed Price Per SqFt : $157.65

Title Company : Title Sec Agcy Llc

Lender : Private Individual

Seller Name : Palmer Joseph S & Vic

Prior Sale Information

Prior Rec/Sale Date : / 04/00/1986

Prior Sale Price : $48,000

Prior Doc Number : 7758-562

Prior Deed Type : Joint Tenancy Deed

Customer Name : Jeremiah Stiffler Customer Company Name : First American Prepared On : 10/07/2022

© 2022 CoreLogic. All rights reserved

Property Characteristics

Gross Area : 5,249 Garage Capacity : 2

Patio Type : None

Living Area : 5,249 Roof Material : Metal Air Cond : Refrigeration

Total Rooms : 7

Heat Type : Forced Air Quality : Fair

Year Built / Eff : 1993 Cooling Type : Forced Air Condition : Excellent

# of Stories : 1.5

Parking Type : Garage

Property Information

Land Use : Sfr

Exterior wall : Stucco

Zoning : GR-1

County Use : Single Fam Resrural Non Subd Lot Acres : 2.00

Tax Information

Total Value : $606,064

Total Taxable Value : $55,501

Property Tax : $7,579.55

Tax Rate Area : 1006

Assessed Year : 2021 Market Value : $606,064

Tax Year : 2021 Current Assessed Year : 2023

Bath Fixtures : 12

Lot Size : 87,120

State Use : Single Fam Resrural Non Subd

Current Year Total Value : $79,890

Current Year Improvement Value :

$79,839

Current Year Land Value : $50

Customer Name : Jeremiah Stiffler Customer Company Name : First American Prepared On : 10/07/2022 © 2022 CoreLogic. All rights reserved
No comparables data for selected property. Customer Name : Jeremiah Stiffler Customer Company Name : First American Prepared On : 10/07/2022 © 2022 CoreLogic. All rights reserved
Subject Property :   5440 E Golder Ranch Dr Tucson AZ 85739 Customer Name : Jeremiah Stiffler Customer Company Name : First American Prepared On : 10/07/2022 © 2022 CoreLogic. All rights reserved
Customer Name : Jeremiah Stiffler Customer Company Name : First American Prepared On : 10/07/2022 © 2022 CoreLogic. All rights reserved
Arizona Schools For detailed information and statistics on Arizona schools please go to https://azreportcards.azed.gov/ First American Title Insurance Company, and the operating divisions thereof, make no express or implied warranty respecting the information presented and assume no responsibility for errors or omissions. First American, the eagle logo, First American Title, and firstam.com are registered trademarks or trademarks of First American Financial Corporation and/or its affiliates. ©2021 First American Financial Corporation and/or its affiliates. All rights reserved. NYSE: FAF 05117910421

SHelvetiaRd

05249570321 TUCSON INT'L AIRPORT Air Force WSilverbellRd SSantaRitaRd N M t L emmon Hwy ESascoRd NF 38 W Avra Valley Rd E Grand Va ey DrNAguirre R d N L u c k e R d N W e n t z R d N Wa terman Mounta i n R d N Anway Rd W El Tiro Rd N Trico Rd W Tucker Rd W Rudas l Rd W Manvi e Rd SSanJoaquinRdWBopp Rd W Snyder H l Rd S M a r s e a r R d W Park Rd W Hermans RdW Hermans Rd W Guy St W Bush Rd S G a v e y R d N C a e R i n c o n a d o S W m o R d S Shaw Rd S Sierrita Mountain Rd S K o b R d W TwinButtes Rd W Mcgee Ranch Rd S E s t a n c a D r EDesertDove E Hemlock Dr N Bea r C a n y o n R d W E Camino Del Cerro E Fairmount St S Swan Rd NFrontageRd W Emigh Rd W Fort Lowe Rd N P u m p S t a t ion dR E Nona Rd Ch efButteRd Lo al Ave N Trico Rd S Cattle Tank Rd Evalyn Rd SOwlHead R a n c h Rd GasLineRd S P ec a n R d N T r c o R d W Bayard Rd S S a n d a r o R d W i l l owSpri n gsRd N Dove Mountain Blvd
WAnamax Mine Rd W G a c i a R a n hc R d Road424 WRagged Top Rd W Ruby Star Dr WBritten RanchRd W Pima Mine Rd S Mcgee Ranch R d E Edw n Rd SGuildRd 8 0 NKINNEYRD S PICACHO HWY E BAUMGARTNER RD N S A N D A R I O R D N ANWAY RD W VALENCIA RD W MOORE RD W INA RD N 1 S T A V E E SUNRISE DR E SNYDER RDNSILVERBELLRD N S O L D I E R T R L E RIVER RDE PRINCE RD E SPEEDWAY BLVD S FREEMAN RD E 22ND ST E 22ND ST W IRVINGTON RD S N O G A L E S H W Y W VALENCIA RD SMISSIONRD W SPEEDWAY BLVD S O L D S P A N I S H T RL W NARANJA DR W TWIN PEAKS RD W PICTURE ROCKS RD W MANVILLE RD SKINNEYRD W MILE WIDE RD E SAHUARITA RD N TRICO RD S S A N D A R O R D PARK LINK DR S OLD N O G ALES HW Y S H O U G H T O N R D S L A C A N A D A DRW HELMET PEAK RD WAJOHWY N S W A N R D S KOLB RD S HOUGHTON RD W TANGERINE RD E GRANT RD S H O U G H T O N R D 9 5 WAJOHWY E VALENCIA RD NORACLE R D I10 I-19 77 77 77 86 86 286 10 19 10 10 Corona de Tucson Casas Adobes Catalina Green Valley Oracle Picture Rocks Three Points VailSummit Tanque Verde Tucson Sahuarita Red Rock Saddlebrooke Marana Oro Valley Rillito Summerhaven Willow Canyon Oracle Junction Cortaro Continental Littletown 20 30 13 15 51 39 12 01 01 08 10 16 11 06 PIMA COUNTY School District Information This map is provided for general location only. Please contact school districts for actual street boundaries SCHOOL DISTRICTS 15 AJO UNIFIED 111 N. Well Road, Ajo, AZ 85321 520.387.5618 51 ALTAR VALLEY ELEMENTARY 10105 S. Sasabe Road, Tucson, AZ 85736 520.822.1484 10 AMPHITHEATER UNIFIED 701 W. Wetmore, Tucson, AZ 85705 520.696.5000 16 CATALINA FOOTHILS UNIFIED 2101 E. River Road, Tucson, AZ 85718 520.209.7500 39 CONTINENTAL ELEMENTARY 1991 E. Whitehouse Canyon, Green Valley, AZ 85614 520.625.4581 08 FLOWING WELLS UNIFIED 1556 W. Prince Road, Tucson, AZ 85705 520.696.8800 06 MARANA UNIFIED 11279 W. Grier Road, Marana, AZ 85653 520.682.3243 11 PIMA COUNTY JTED 2855 W. Master Pieces Dr, Tucson, AZ 85741 520.352.5833 30 SAHUARITA UNIFIED 350 W. Sahuarita Road, Sahuarita, AZ 85629 520.625.3502 12 SUNNYSIDE UNIFIED 2238 E. Ginter Road, Tucson, AZ 85706 520.545.2000 13 TANQUE VERDE UNIFIED 2300 N. Tanque Verde Loop, Tucson, AZ 85749 520.749.5751 01 TUCSON UNIFIED 1010 E. 10th Street, Tucson, AZ 85717 520.225.6000 20 VAIL UNIFIED 10701 E. Mary Ann Cleveland Way, Tucson, AZ 85747 520.879.2000 First American Title Insurance Company, and the operating divisions thereof, make no express or implied warranty respecting the information presented and assume no responsibility for errors or omissions. First American, the eagle logo, First American Title, and firstam.com are registered trademarks or trademarks of First American Financial Corporation and/or its affiliates. ©2021 First American Financial Corporation and/or its affiliates. All rights reserved. NYSE: FAF

Public

Elementary Schools

Coronado K-8 School

E

Telephone :

Lowest Grade : Pre-K

2.89 Miles

School District : Amphitheater Unified District (4406)

Highest Grade : 8th

Kindergarten : Yes School Enrollment : Enrollment : 785 Total Expenditure/Student : 132

Customer

Schools :
Distance
3401
Wilds Rd Tucson AZ 85739
(520) 696-6626
Name : Jeremiah Stiffler Customer Company Name : First American Prepared On : 10/07/2022 © 2022 CoreLogic. All rights reserved

Attractions / Recreation

Name Address Telephone Distance (Miles)

Pima Pistol Club Inc 13390 N Lago Del Oro Pkwy Tucson Az (520) 825-3603 1.96

Club Drive Baseball, Llc 16078 N Chapulin Way Tucson Az (520) 248-2513 3.17

Jnc Defensive Strategies, Llc 13774 N High Mtn View Pl Tucson Az (520) 909-2706 3.22

Chi Empire Tai 2335 E Gerbera Way Oro Valley Az (914) 803-2632 3.65

Banks / Financial

Name Address Telephone Distance (Miles)

Wells Fargo & Company 15310 N Oracle Rd Tucson Az (520) 818-9891 3.27

Jpmorgan Chase Bank, National Association 15314 N Oracle Rd Tucson Az (520) 825-4145 3.27

Home Mortgage Services 2367 E Big View Dr Oro Valley Az (520) 906-4900 3.58

Jpmorgan Chase Bank, National Association 11625 N Oracle Rd Tucson Az (520) 797-1991 4.47

Eating / Drinking

Name Address Telephone Distance (Miles)

Santina's Italian Deli 4104 E Trotter Pl Tucson Az (520) 603-1728 1.89

Kissed By An Italian Llc 15750 N Rdrunner Ridge Ln Tucson Az (520) 256-8459 2.45

Vitello's 3683 E Mecate Rd Tucson Az (520) 825-0140 2.69

Comida Del Oro, Llc 3635 E Secretariat Rd Tucson Az (520) 395-0751 2.7

Health Care Services

Name Address Telephone Distance (Miles)

Adobe Dental Lab Inc 14350 N Lago Del Oro Pkwy Tucson Az (520) 881-8418 1.73

Family Health Together Llc 3864 E Gwynns Run Pl Tucson Az (520) 818-1335 2.42

Nurse Ones Wellness 15155 N Rugged Lark Dr Tucson Az (520) 232-2102 2.45

Authentic Healing Myofascial Release, Pllc 3991 E Ruffian Rd Tucson Az (520) 400-8671 2.49

Customer Name : Jeremiah Stiffler Customer Company Name : First American Prepared On : 10/07/2022

Local Business
© 2022 CoreLogic. All rights reserved

Hospitality

Name Address Telephone Distance (Miles)

Miraval Resort Arizona, Llc 5000 E Via Estncia Mraval Tucson Az (520) 825-4000 3.55

Miraval Resorts & Spas 5000 E Via Estancia Tucson Az (520) 825-4000 3.55

Hyatt Corp 5000 E Via Estncia Mraval Tucson Az (520) 825-4000 3.56

Miraval Service Corporation 5000 E Via Estncia Mraval Tucson Az (520) 825-4000 3.56

Organizations / Associations

Name Address Telephone Distance (Miles)

Church Of Christ 4160 E Schroeder Rd Tucson Az (520) 248-1744 2.15

Iglesia Bautista Horeb 3845 E Golder Ranch Dr Tucson Az (520) 365-6152 2.69

First Baptist Church Of Catalina 3505 E Wilds Rd Tucson Az (520) 818-2555 2.72

Mountain Shadows Presbyterian Church 3201 E Mountainaire Dr Tucson Az (520) 825-7858 2.85

Personal Services

Name Address Telephone Distance (Miles)

Forever Active Llc 1846 E Innovation Park Dr Oro Valley Az (416) 487-5174 4.21

Shopping

Name Address Telephone Distance (Miles)

Ducks Inc 3840 E Brayer Horse Pl Tucson Az (360) 944-5988 2.39

Moore, M Ichael Dennis 15450 N Twin Lakes Dr Tucson Az (520) 815-8243 3.0

Valero Corner Store 1658 15240 N Oracle Rd Tucson Az (520) 825-3319 3.19

Bashas' Inc. 15310 N Oracle Rd Tucson Az (520) 575-7301 3.27

Customer Name : Jeremiah

: First American

10/07/2022

Stiffler Customer Company Name
Prepared On :
© 2022 CoreLogic. All rights reserved

5410 E GOLDER RANCH DR Distance 0.06 Miles

Owner Name : Schweers Laura E

Sale Date : 12/00/1997

Total Value : $305,430

Bed / Bath : / 3

Land Use : Sfr

Recording Date : 12/23/1997

Sale Price  : $174,000

Property Tax : $3,760.06

Lot Acres : 1.15

Living Area : 2,031

Stories : 1 APN : 222-49-0580

Yr Blt / Eff Yr Blt  : 1988 /

5460 E GOLDER RANCH DR Distance 0.07 Miles

Owner Name : Wilson Richard H

Sale Date : 05/00/1994

Total Value : $335,544

Bed / Bath : / 2

Land Use : Sfr

Stories : 1

Yr Blt / Eff Yr Blt  : 1981 /

Recording Date : 05/11/1994

Sale Price  : $315,000

Property Tax : $4,239.38

Lot Acres : 5.52

Living Area : 1,986

APN : 222-49-0610

5422 E GOLDER RANCH DR Distance 0.09 Miles

Owner Name : Booth

Sale Date : 07/00/2001

Total Value : $363,645

Bed / Bath : / 3

Land Use : Sfr

Recording Date : 09/21/2001

Sale Price  : $105,600

Property Tax : $4,610.03

Lot Acres : 4.19

Living Area : 1,928

Stories : 1 APN : 222-49-048Q

Yr Blt / Eff Yr Blt  : 2005 /

5400 E GOLDER RANCH DR Distance 0.11 Miles

Owner Name : Acher James Wheaton

Sale Date : 04/09/2020

Total Value : $377,267

Bed / Bath : / 3

Land Use : Sfr

Recording Date : 04/16/2020

Sale Price  : $675,000

Property Tax : $4,529.34

Lot Acres : 2.00

Living Area : 2,758

Stories : 1 APN : 222-49-059C

Yr Blt / Eff Yr Blt  : 1975 /

Customer

:

First American

10/07/2022

Name
Jeremiah Stiffler Customer Company Name :
Prepared On :
© 2022 CoreLogic. All rights reserved

5390 E GOLDER RANCH DR Distance 0.11 Miles

Owner Name : Lopez Ignacio M

Sale Date : 03/00/1993

Total Value : $258,180

Bed / Bath : / 3

Land Use : Sfr

Recording Date : 03/12/1993

Sale Price  : $168,250

Property Tax : $3,202.69

Lot Acres : 1.39

Living Area : 1,875

Stories : 1 APN : 222-49-0570

Yr Blt / Eff Yr Blt  : 1985 /

5404 E GOLDER RANCH DR Distance 0.11 Miles

Owner Name : Halverson Laura

Sale Date : 02/09/2022

Total Value : $421,807

Bed / Bath : / 4

Recording Date : 02/11/2022

Sale Price  : $779,359

Property Tax : $5,483.07

Lot Acres : 1.00

Land Use : Sfr Living Area : 2,740

Stories : 1 APN : 222-49-055A

Yr Blt / Eff Yr Blt  : 2004 /

5398 E GOLDER RANCH DR Distance 0.13 Miles

Owner Name : Harnack Tr & Namka Tr 1/2

Sale Date : 11/00/1992

Total Value : $283,667

Bed / Bath : / 4

Land Use : Sfr

Recording Date : 11/17/1992

Sale Price  : $39,500

Property Tax : $3,546.53

Lot Acres : 1.00

Living Area : 1,787

Stories : 1 APN : 222-49-055B

Yr Blt / Eff Yr Blt  : 1994 /

Customer Name : Jeremiah Stiffler

Company Name : First American Prepared On : 10/07/2022

Customer
© 2022 CoreLogic. All rights reserved
No demographics data for selected property. Customer Name : Jeremiah Stiffler Customer Company Name : First American Prepared On : 10/07/2022 © 2022 CoreLogic. All rights reserved

OWNER: SMITH LUKE & RIETSCH CLAIRE

SEARCH PARAMETERS

REC DATE

2019 1791697 06/28/2019

LEGAL:

CURRENT TAXES

LAND IMPR EXEMPT RATE AREA SPECIAL DISTRICTS

PRIMARY  5,873

5,873

2022  TAX AMT TAX DUE

FIRST HALF

DATE PAID TOTAL DUE

00 14

1006

+ FIRST AMERICAN TITLE, FC0, JSTI PIMA, AZ 10/07/2022  01:11PM  R9C8  INVESTIGATIVE SEARCH RESULTS PAGE 1 OF 1
PARCEL:  222-49-048P PARCEL: 222-49-048P INSTRUMENT
AFFIDAVIT
MAIL: 5440 E GOLDER RANCH DR  TUCSON AZ 85739
PTN N396.20' S612.76 E350.55' N2 SE4 2.56 AC SEC 23-11-14
INFORMATION THROUGH 07/28/2022
0  0  8.9703  1006 SECONDARY
0  0  5.3438  2022 TOTAL TAX BILLED 840.68
INTEREST
420.34  420.34  0.00  420.34  SECOND HALF  420.34  420.34  0.00  420.34  TOTAL CURRENT TAXES DUE 10/22 840.68 11/22 846.28 (ESTIMATED) IMPROVEMENTS BLDG SQFT  0 FULL CASH VALUE  39,150 YEAR BUILT  0 LAND USE
NUMBER OF STORIES LOT SIZE  2.560 ACRES STORIES HEIGHT  0 SCHOOL DISTRICT
EXTERIOR WALLS LAND FULL CASH VALUE  39,150 GRADE MATERIALS IMPR FULL CASH VALUE  0 SALES SALE DATE SALE AMOUNT INSTRUMENT TYPE SELLER NAME VALIDITY 06/28/2019 827,500    2019 1791697 WD PALMER JOSEPH S & VICKY L M ADDITIONAL PROPERTY INFORMATION STANDARD LAND USE: RESIDENTIAL LOT END SEARCH

SEARCH PARAMETERS

PARCEL:  222-49-0600

PARCEL: 222-49-0600

INSTRUMENT REC DATE

AFFIDAVIT    2019 1791697 06/28/2019  SITUS: 5440 E GOLDER RANCH DR PC

OWNER: SMITH LUKE & RIETSCH CLAIRE

MAIL: 5440 E GOLDER RANCH DR

TUCSON AZ 85739

LEGAL: E403.03' S216.56' NE4 SE4 2 AC SEC 23-11-14

CURRENT TAXES INFORMATION THROUGH 07/28/2022

LAND IMPR EXEMPT RATE AREA SPECIAL DISTRICTS

PRIMARY  58,276  0

SECONDARY  50  62,015

8.9703  1006

5.3438

2022 TOTAL TAX BILLED 7,741.67

2022  TAX AMT TAX DUE INTEREST DATE PAID TOTAL DUE

FIRST HALF  3,870.84

3,870.83

IMPROVEMENTS

BYPASS

3,870.84

3,870.83

620,652

01 54

2.000 ACRES

1006

502

620,150

SALES

+ FIRST AMERICAN TITLE, FC0, JSTI PIMA, AZ 10/07/2022  01:09PM  R9C8  INVESTIGATIVE SEARCH RESULTS PAGE 1 OF 1
0
0
3,870.84  0.00
SECOND HALF
3,870.83  0.00
TOTAL CURRENT TAXES DUE 10/22 7,741.67 11/22 7,793.28 (ESTIMATED)
BLDG SQFT  5,249 FULL CASH VALUE
YEAR BUILT  1993 LAND USE
NUMBER OF STORIES  1.5 LOT SIZE
STORIES HEIGHT  0 SCHOOL DISTRICT
EXTERIOR WALLS  STUCCO LAND FULL CASH VALUE
GRADE MATERIALS IMPR FULL CASH VALUE
SALE DATE SALE AMOUNT INSTRUMENT TYPE SELLER NAME VALIDITY 06/28/2019 827,500    2019 1791697 WD PALMER JOSEPH S & VICKY L M ADDITIONAL PROPERTY INFORMATION STANDARD LAND USE: SFR END SEARCH
Page 1 of 7 10/07/2022 1:23 PM
Page 2 of 7 10/07/2022 1:23 PM
Page 3 of 7 10/07/2022 1:23 PM
Page 4 of 7 10/07/2022 1:23 PM
Page 5 of 7 10/07/2022 1:23 PM
Page 6 of 7 10/07/2022 1:23 PM
Page 7 of 7 10/07/2022 1:23 PM
Page 1 of 2 10/07/2022 1:23 PM
Page 2 of 2 10/07/2022 1:23 PM
Page 1 of 6 10/07/2022 1:40 PM
Page 2 of 6 10/07/2022 1:40 PM
Page 3 of 6 10/07/2022 1:40 PM
Page 4 of 6 10/07/2022 1:40 PM
Page 5 of 6 10/07/2022 1:40 PM
Page 6 of 6 10/07/2022 1:40 PM
Page 1 of 6 10/07/2022 1:40 PM
Page 2 of 6 10/07/2022 1:40 PM
Page 3 of 6 10/07/2022 1:40 PM
Page 4 of 6 10/07/2022 1:40 PM
Page 5 of 6 10/07/2022 1:40 PM
Page 6 of 6 10/07/2022 1:40 PM

We are providing the requested information without CC&Rs.

Unfortunately, we are unable to confirm CC&Rs at this time, possibly because:

The property is too complex to obtain CC&Rs without a complete title examination

The property is sectional, whereas there are no “standard” subdivision‐type restrictions

A recorded plat may not exist

The recorded plat may be older, with limited information available, or

Recorded CC&Rs may not exist.

Once escrow is opened, the property will be thoroughly examined. CC&Rs and other matters that may “run with the land” will be disclosed in Schedule B of the Commitment for Title Insurance.

If you have questions, or need additional information at this time, please contact your First American or Title Security Account Manager or Escrow Officer.

to the Title & Escrow Process in Arizona Home Seller’s Guide
Southwest Gas 1.877.860.6020 www.swgas.com Cox 602.277.1000 www.cox.com Direct TV 1.888.777.2454 www.directv.com Dish Network 1.800.823.4929 www.dishnetwork.com CenturyLink 800.366.8201 www.centurylink.com AT&T 1.800.222.0300 www.att.com Verizon 1.877.300.4498 www.connecttoverizon.com Salt River Project 602.236.8888 www.srpnet.com APS 602.371.7171 www.aps.com Your Escrow Number Your New Address City/State/Zip Real Estate Agent Name Email Assistant Email Company Phone Address Fax Insurance Previous Company Phone Previous Agent Policy No. New Company Phone New Agent Policy No. Home Warranty Company Policy No. First American Title Escrow Officer Email Escrow Assistant Email Address Phone City/State/Zip Fax 02 Quick Reference 03 Welcome 04 Benefits of Using a REALTOR ® 05 Key Professionals 06 Preparing Your Home for Sale 07 Staging Your Home for Show 09 Terms You Should Know 10 The Life of an Escrow 11 Closing Costs: Who Pays What 12 The Escrow Process 14 Understanding Title Insurance 16 Consider This 17 Closing Your Escrow 18 Planning Your Move Q uick Reference Table of Contents Utilities and Services

Count on First American Title

Welcome to the home-selling process. Throughout this process, you can count on First American Title to guide you smoothly through your transaction and provide expert answers to your questions. We are happy to serve you.

Count On Us For Service

First American Title’s professionals are proud to provide the title insurance that assures people’s home ownership. Backed by First American Title Insurance Company, your transaction will be expertly completed in accordance with state-specific underwriting standards and state and federal regulatory requirements.

Count On Us For Stability

First American Title is the principal subsidiary of First American Financial Corporation, and one of the largest suppliers of title insurance services in the nation. With roots dating back to 1889, we’ve served families for generations.

Count On Us For Convenience

First American Title has a direct office or agent near you, offering convenient locations throughout Arizona. We also have an extensive network of offices and agents throughout the United States, and internationally.

Count On Us To Meet Your Needs

First American Financial Corporation offers more than title insurance and escrow services through its subsidiaries. Our subsidiaries also provide property data, title plant records and images, home warranties, property and casualty insurance, and banking, trust and advisory services.

AZ Sellers Guide | 3

Benefits of using a Professional REALTOR ®

Before you make the decision to try to sell your home alone, consider the benefits a REALTOR ® can provide that you may not be aware of.

A REALTOR ® :

› Understands market conditions and has access to information not available to the average homeowner.

› Can advertise effectively for the best results.

› Knows how to price your home realistically, to give you the highest price possible within your time frame.

› Is experienced in creating demand for homes and how to show them to advantage.

› Knows how to screen potential buyers and eliminate those who can’t qualify or are looking for bargain-basement prices.

› Knows how to go toe-to-toe in negotiations.

› Is always “on-call,” answering the phone at all hours, and showing homes evenings and weekends.

› Can remain objective when presenting offers and counter-offers on your behalf.

› Maintains errors-and-omissions insurance.

› Will listen to your needs, respect your opinions and allow you to make your own decisions.

› Can help protect your rights, particularly important with the increasingly complicated real estate laws and regulations.

› Is experienced with resolving problems to facilitate a successful closing on your home.

Only you can determine whether you should attempt to sell your home—probably your largest investment—all alone. Talk with a REALTOR® before you decide. You may find working with a professional is a lot less expensive and much more beneficial than you ever imagined!

FOR SALE BY OWNER

Many people believe they can save a considerable amount of money by selling their homes themselves. It may seem like a good idea at the time, but while you may be willing to take on the task, are you qualified? The following are some questions to help you realistically assess what’s involved.

Do you...

- have the knowledge, patience, and sales skills needed to sell your home?

- know how to determine your home’s current market value?

- know how to determine whether or not a buyer can qualify for a loan?

- understand the steps of an escrow and what’s required of you and the buyer?

- need to hire a real estate attorney? If so, do you know what the cost will be and how much liability they will assume in the transaction?

- know how to advertise effectively and what the costs will be?

- understand the various types of loans buyers may choose and the advantages and disadvantages for the seller?

- have arrangements with an escrow and title company, home warranty company, pest-control service and lender to assist you with the transaction?

Are you...

- aware of conditions in the marketplace today that affect value and length of time to sell?

- concerned about having strangers walking through your home?

- familiar enough with real estate regulations to prepare a binding sales contract? Counter-offers?

- aware that every time you leave your home, you are taking it off the market until you return?

- aware that prospective buyers and bargain hunters will expect you to lower your cost because there’s no REALTOR® involved?

- prepared to give up your evenings and weekends to show your home to potential buyers and “just-looking” time wasters?

AZ Sellers Guide | 4

Key Professionals Involved in Your Transaction

REALTOR ®

A REALTOR ® is a licensed real estate agent and a member of the National Association of REALTORS,® a real estate trade association. REALTORS ® also belong to their state and local Association of REALTORS.®

REAL ESTATE AGENT

A real estate agent is licensed by the state to represent parties in the transfer of property. Every REALTOR ® is a real estate agent, but not every real estate agent has the professional designation of a REALTOR.®

LISTING AGENT

A key role of the listing agent or broker is to form a legal relationship with the homeowner to sell the property and place the property in the Multiple Listing Service.

BUYER'S AGENT

A key role of the buyer’s agent or broker is to work with the buyer to locate a suitable property and negotiate a successful home purchase.

MULTIPLE LISTING SERVICE (MLS)

The MLS is a database of properties listed for sale by REALTORS ® who are members of the local Association of REALTORS.® Information on an MLS property is available to thousands of REALTORS ®

TITLE COMPANY

These are the people who carry out the title search and examination, work with you to eliminate the title exceptions you are not willing to take subject to, and provide the policy of title insurance regarding title to the real property.

ESCROW OFFICER

An escrow officer leads the facilitation of your escrow, including escrow instructions preparation, document preparation, funds disbursement, and more.

AZ Sellers Guide | 5

PREPARING FOR SALE YOUR HOME

Mow and edge the lawn regularly, and trim the shrubs.

Make your entry inviting: Paint your front door and buy a new front door mat.

Paint or replace the mailbox, if needed.

If screens or windows are damaged, replace or repair them.

Repair or replace worn shutters and other exterior trim.

Make sure the front steps are clear and hazard-free. Make sure the doorbell works properly and has a pleasant sound.

Ensure that all exterior lights are working.

Check stucco walls for cracks and discoloration.

Remove any oil and rust stains from the driveway and garage.

Clean and organize the garage, and ensure the door is in good working order.

Shampoo carpeting or replace if worn. Clean tile floors, particularly the caulking.

Brighten the appearance inside by painting walls, cleaning windows and window coverings, and removing sunscreens.

Repair leaky faucets and caulking in bathtubs and showers.

Repair or replace loose knobs on doors and cabinets. If doors stick or squeak, fix them.

Make sure toilet seats look new and are firmly attached.

First impressions have a major impact on potential buyers. Try to imagine what potential buyers will see when they approach your house for the first time and walk through each room. Ask your REALTOR ® for advice; they know the marketplace and what helps a home sell. Here are some tips to present your home in a positive manner:

Repair or replace loud ventilating fans.

Replace worn shower curtains.

Rearrange furniture to make rooms appear larger. If possible, remove and/or store excess furniture, and avoid extension cords in plain view.

Remove clutter throughout the house. Organize and clean out closets.

Clean household appliances and make sure they work properly.

Air conditioners/heaters, evaporative coolers, hot water heater should be clean, working and inspected if necessary. Replace filters.

Check the pool and/or spa equipment and pumps. Make sure all are working properly and that the pool and/or spa are kept clean.

Inspect fences, gates and latches. Repair or replace as needed.

AZ Sellers Guide | 6

Staging your home for Show

To make the best impression, keep your home clean, neat, uncluttered and in good repair. Please review this list prior to each showing:

Keep everything clean. A messy or dirty home will cause prospective buyers to notice every flaw.

Clear all clutter from counter tops.

Let the light in. Raise shades, open blinds, pull back the curtains and turn on the lights.

Get rid of odors such as tobacco, pets, cooking, etc., but don’t overdo air fresheners or potpourri. Fresh baked bread and cinnamon can make a positive impact.

Send pets away or secure them away from the house, and be sure to clean up after them.

Close the windows to eliminate street noise.

If possible you, your pets, and your children should be gone while your home is being shown.

Clean trash cans and put them out of sight.

If you must be present while your home is shown, keep noise down. Turn off the TV and radio. Soft, instrumental music is fine, but avoid vocals.

Keep the garage door closed and the driveway clear. Park autos and campers away from your home during showings

Hang clean attractive guest towels in the bathrooms.

Check that sink and tub are scrubbed and unstained.

Make beds with attractive spreads.

Stash or throw out newspapers, magazines, junk mail.

AZ Sellers Guide | 7
AZ Sellers Guide | 8

Terms You Should Know

Appraisal

An estimate of value of property resulting from analysis of facts about the property; an opinion of value.

Annual Percentage Rate (APR)

The borrower’s costs of the loan term expressed as a rate. This is not their interest rate.

Beneficiary

The recipient of benefits, often from a deed of trust; usually the lender.

Closing Disclosure (CD)

Closing Disclosure form designed to provide disclosures that will be helpful to borrowers in understanding all of the costs of the transaction. This form will be given to the consumer three (3) business days before closing.

Close of Escrow

Generally the date the buyer becomes the legal owner and title insurance becomes effective.

Comparable Sales

Sales that have similar characteristics as the subject real property, used for analysis in the appraisal. Commonly called “comps.”

Consummation

Occurs when the borrower becomes contractually obligated to the creditor on the loan, not, for example, when the borrower becomes contractually obligated to a seller on a real estate transaction. The point in time when a borrower becomes contractually obligated to the creditor on the loan depends on applicable State law. Consummation is not the same as close of escrow or settlement.

Deed of Trust

An instrument used in many states in place of a mortgage.

Deed Restrictions

Limitations in the deed to a parcel of real property that dictate certain uses that may or may not be made of the real property.

Disbursement Date

The date the amounts are to be disbursed to a buyer and seller in a purchase transaction or the date funds are to be paid to the borrower or a third party in a transaction that is not a purchase transaction.

Earnest Money Deposit

Down payment made by a purchaser of real property as evidence of good faith; a deposit or partial payment.

Easement

A right, privilege or interest limited to a specific purpose that one party has in the land of another.

Endorsement

As to a title insurance policy, a rider or attachment forming a part of the insurance policy expanding or limiting coverage.

Hazard Insurance

Real estate insurance protecting against fire, some natural causes, vandalism, etc., depending upon the policy. Buyer often adds liability insurance and extended coverage for personal property.

Impounds

A trust type of account established by lenders for the accumulation of borrower’s funds to meet periodic payments of taxes, mortgage insurance premiums and/or future insurance policy premiums, required to protect their security.

Legal Description

A description of land recognized by law, based on government surveys, spelling out the exact boundaries of the entire parcel of land. It should so thoroughly identify a parcel of land that it cannot be confused with any other.

Lien

A form of encumbrance that usually makes a specific parcel of real property the security for the payment of a debt or discharge of an obligation. For example, judgments, taxes, mortgages, deeds of trust.

Loan Estimate (LE)

Form designed to provide disclosures that will be helpful to borrowers in understanding the key features, costs and risks of the mortgage loan for which they are applying. Initial disclosure to be given to the borrower three (3) business days after application.

Mortgage

The instrument by which real property is pledged as security for repayment of a loan.

PITI

A payment that includes Principal, Interest, Taxes, and Insurance.

Power of Attorney

A written instrument whereby a principal gives authority to an agent. The agent acting under such a grant is sometimes called an “Attorney-in-Fact.”

Recording

Filing documents affecting real property with the appropriate government agency as a matter of public record.

Settlement statement

Provides a complete breakdown of costs involved in a real estate transaction.

TRID

TILA-RESPA Integrated Disclosures

AZ Sellers Guide | 9

The Life Of An Escrow

THE BUYER

Chooses a Real Estate Agent

Gets pre-approval letter from Lender and provides to Real Estate Agent.

Makes offer to purchase. Upon acceptance, opens escrow and deposits earnest money.

Finalizes loan application with Lender. Receives a Loan Estimate from Lender.

Completes and returns opening package from First American Title.

Schedules inspections and evaluates findings. Reviews title commitment/ preliminary report.

Provides all requested paperwork to Lender (bank statements, tax returns, etc.) All invoices and final approvals should be to the lender no later than 10 days prior to loan consummation.

Lender (or Escrow Officer) prepares CD and delivers to Buyer at least 3 days prior to loan consummation.

Escrow officer or real estate agent contacts the buyer to schedule signing appointment.

Buyer consummates loan, executes settlement documents, & deposits funds via wire transfer.

Documents are recorded and the keys are delivered!

THE SELLER

Chooses a Real Estate Agent

Accepts Buyer’s offer to purchase.

Completes and returns opening package from First American Title, including information such as forwarding address, payoff lender contact information and loan numbers.

Orders any work for inspections and/or repairs to be done as required by the purchase agreement.

Escrow officer or real estate agent contacts the seller to schedule signing appointment.

Documents are recorded and all proceeds from sale are received.

THE ESCROW OFFICER

Upon receipt of order and earnest money deposit, orders title examination.

Requests necessary information from buyers and sellers via opening packages.

Reviews title commitment / preliminary report.

Upon receipt of opening packages, orders demands for payoffs. Contacts buyer or seller when additional information is required for the title commitment/ preliminary report.

All demands, invoices, and fees must be collected and sent to lender at least 10 days prior to loan consummation.

Coordinates with lender on the preparation of the CD.

Reviews all documents, demands, and instructions and prepares settlement statements and any other required documents.

Schedules signing appointment and informs buyer of funds due at settlement.

Once loan is consummated, sends funding package to lender for review.

Prepares recording instructions and submits docs for recording.

Documents are recorded and funds are disbursed. Issues final settlement statement.

THE LENDER

Accepts Buyer’s application and begins the qualification process. Provides Buyer with Loan Estimate.

Orders and reviews title commitment / preliminary report, property appraisal, credit report, employment and funds verification.

Collects information such as title commitment / preliminary report, appraisal, credit report, employment and funds verification. Reviews and requests additional information for final loan approval.

Underwriting reviews loan package for approval.

Coordinates with Escrow Officer on the preparation of the Closing Disclosure, which is delivered to Buyer at least 3 days prior to loan consummation.

Delivers loan documents to escrow.

Upon review of signed loan documents, authorizes loan funding.

AZ Sellers Guide | 10

Closing Costs: Who Pays What

CASH FHA VA CONV

BUYER

BUYER

BUYER

BUYER BUYER

SELLER SELLER

SELLER SELLER

SELLER SELLER

BUYER BUYER

BUYER BUYER

PRORATE PRORATE

BUYER BUYER BUYER

AZ Sellers Guide | 11
1. Downpayment BUYER BUYER BUYER BUYER 2. Termite (Wood Infestation) Inspection (negotiable except on VA) SELLER 3. Property Inspection (if requested by buyer) BUYER BUYER
BUYER 4. Property Repairs, if any (negotiable) SELLER SELLER SELLER SELLER 5. New Loan Origination Fee (negotiable) BUYER BUYER BUYER 6. Discount Points (negotiable) BUYER
BUYER 7. Credit Report BUYER
BUYER 8. Appraisal or Extension Fee (negotiable) BUYER
9. Existing Loan Payoff SELLER SELLER
10. Existing Loan Payoff Demand SELLER
SELLER 11. Loan Prepayment Penalty (if any) SELLER SELLER
12. Next Month’s PITI Payment BUYER
13. Prepaid Interest (approx. 30 days) BUYER
14. Reserve Account Balance (Credit seller / Charge buyer) PRORATE
15. FHA MIP, VA Funding Fee, PMI Premium
16. Assessments payoff or proration (sewer, paving, etc.) SELLER 17. Taxes PRORATE PRORATE PRORATE PRORATE 18. Tax Impounds BUYER BUYER BUYER 19. Tax Service Contract SELLER SELLER BUYER 20. Fire/Hazard Insurance BUYER BUYER BUYER BUYER 21 Flood Insurance BUYER BUYER BUYER 22. Homeowners Association (HOA) Transfer Fee BUYER or SELLER BUYER or SELLER BUYER or SELLER BUYER or SELLER 23. HOA/Disclosure Fee SELLER SELLER SELLER SELLER 24 Current HOA Payment PRORATE PRORATE PRORATE PRORATE 25. Next Month’s HOA Payment BUYER BUYER BUYER BUYER 26. Home Warranty Premium (negotiable) BUYER or SELLER BUYER or SELLER BUYER or SELLER BUYER or SELLER 27. REALTORS®’ Commissions SELLER SELLER SELLER SELLER 28. EAGLE Homeowners Title Policy SELLER SELLER SELLER SELLER 29. Lenders Title Policy and Endorsements BUYER BUYER BUYER 30. Escrow Fee (NOTE: Charge seller on VA Loan) SPLIT SPLIT SELLER SPLIT 31. Recording Fees (Flat rate) SPLIT SPLIT SPLIT SPLIT 32. Reconveyance/Satisfaction Fee SELLER SELLER SELLER SPLIT 33. Courier/Express Mail Fees SPLIT SPLIT SELLER SPLIT THIS CHART INDICATES WHO CUSTOMARILY PAYS WHAT COSTS Note: Prorated items will appear on Closing Statement as charges for one and credits for the other.

The Escrow Process

WHAT IS AN ESCROW?

The escrow is the process of having a neutral party manage the exchange of money for real property. The escrow holder is known as an escrow or settlement officer or agent. The buyer deposits funds and the seller deposits a deed with the escrow holder along with all of the other documents required to remove all "contingencies" (conditions and approvals) in the purchase agreement prior to closing.

HOW IS AN ESCROW OPENED?

Once a purchase agreement is signed by all necessary parties, the agent representing the party who will pay the fee selects an escrow holder and the buyer's earnest money deposit and contract are submitted to the escrow holder. From this point, the escrow holder will follow the mutual written instructions of the buyer and seller, maintaining a neutral stance to ensure that neither party has an unfair advantage over the other. The escrow holder also follows the instructions of the Buyer's new lender, the seller's existing lender, and both parties' agents. The escrow holder ensures the transparency of the transaction, while carefully maintaining the privacy of the consumers.

AZ Sellers Guide | 12

Your Escrow Professional May:

Open escrow and deposit good faith funds into an escrow account

Conduct a title search to determine the ownership and title status of the real property

Review the title commitment and begin the process of working with you and the title officer to eliminate the title exceptions the buyer and the buyer’s new lender are not willing to take subject to. This includes ordering a payoff demand from your existing lender.

Coordinate with the buyer’s lender on the preparation of the Closing Disclosure (CD)

Prorate fees, such as real property taxes, per the contract and prepare the settlement statement

Set separate appointments allowing the buyer and seller to sign documents and deposit funds

Review documents and ensure all conditions are fulfilled and certain legal requirements are met

Request funds from buyer and buyer’s new lender

When all funds are deposited and conditions met, record documents with the County Recorder to transfer the real property to the buyer

After recording is confirmed, close escrow and disburse funds, including proceeds, loan payoffs, tax payments, and more

Prepare and send final documents to all parties

AZ Sellers Guide | 13

Understanding Title Insurance

The Title Industry & Title Insurance in Brief

Prior to the development of the title industry in the late 1800s, a home-buyer received a grantor’s warranty, attorney’s title opinion, or abstractor’s certificate as assurance of home ownership. The buyer relied on the financial integrity of the grantor, attorney, or abstractor for protection. Today, home-buyers look primarily to title insurance to provide this protection. Title insurance companies are regulated by state statute. They are required to post financial guarantees to ensure that any claims will be paid in a timely fashion. They also must maintain their own “title plants” which house duplicates of recorded deeds, mortgages, plats, and other pertinent county property records.

WHAT IS TITLE INSURANCE?

Title insurance provides coverage for certain losses due to defects in the title that, for the most part, occurred prior to your ownership. Title insurance protects against defects such as prior fraud or forgery that might go undetected until after closing and possibly jeopardize your ownership and investment.

WHY IS TITLE INSURANCE NEEDED?

Title insurance insures buyers against the risk that they did not acquire marketable title from the seller. It is primarily designed to reduce risk or loss caused by defects in title from the past. A loan policy of title insurance protects the interest of the mortgage lender, while an owner’s policy protects the equity of you, the buyer, for as long as you or your heirs (in certain policies) own the real property.

WHEN IS THE PREMIUM DUE?

You pay for your owner’s title insurance policy only once, at the close of escrow. Who pays for the owner’s policy and loan policy varies depending on local customs.

AZ Sellers Guide | 14

Compare First American’s Eagle Policy® for Owners

from:

else owns an interest in your title

A document is not properly signed

fraud, duress in the chain of title

Defective recording of any document

There are restrictive covenants

There is a lien on your title because there is:

a deed of trust

a judgement, tax, or special assessment

a charge by a homeowner’s association

Title is unmarketable

Mechanics lien

Forced removal of a structure because it:

extends on another property and/or easement

violates a restriction in Schedule B

violates an existing zoning law*

use the land for a Single-Family Residence

the use violates a restriction in Schedule B or a zoning ordinance

Unrecorded lien by a homeowners association

Unrecorded easements

Building permit violations*

Restrictive covenant violations

Post-policy forgery

Post-policy encroachment

Post-policy damage from extraction of minerals or water

Lack of vehicular and pedestrian access

Map not consistent with legal description

Post-policy adverse possession

Compare First American’s Eagle Policy® for Owners

Post-policy prescriptive easement

Covenant violation resulting in your title reverting to a previous owner

Violation of building setback regulations

Discriminatory covenants

Other benefits:

Pays rent for substitute land or facilities

Rights under unrecorded leases

language statements of policy coverage and

Compliance with Subdivision Map Act

Coverage for boundary wall or fence encroachment*

Added ownership coverage leads to enhanced

Insurance coverage for a lifetime

inflation coverage with automatic increase in value up to 150% over five years

Post-policy Living Trust coverage

Deductible and maximum limits apply. Not available to investors on 1- to 4-unit residential properties.

may vary based on an individual policy.

with any insurance contract, the insuring provisions express the coverage afforded by the title insurance policy and there are exceptions, exclusions and conditions to coverage that limit or narrow the coverage afforded by the policy. Also, some cov erage may not be available in a particular area or transaction due to legal, regulatory, or underwriting considerations. Please contact a First American representative for further information. The services described above are typical basic services. The services provided to you may be different due to the specifics of your transaction or the location of the real property involved.

AZ Sellers Guide | 15
EAGLE ALTA Standard or CLTA Protection
1 Someone
2
3 Forgery,
4
5
6
a)
b)
c)
7
8
9
a)
b)
c)
10 Cannot
because
11
12
13
14
15
16
17
18
19
20
EAGLE ALTA Standard or CLTA 21
22
23
24
25
26
27 Plain
restrictions 28
29
30
marketability 31
32 Post-policy
33
*
Coverage
As

Consider This

One escrow transaction could involve more than 20 individuals, including real estate agents, buyers, sellers, attorneys, escrow officer, escrow technician, title officer, loan officer, loan processor, loan underwriter, home inspector, termite inspector, insurance agent, home warranty representative, contractor, roofer, plumber, pool service, and so on. And often, one transaction depends on another.

When you consider the number of people involved, you can imagine the opportunities for delays and mishaps. Your experienced escrow team can’t prevent unforeseen problems from arising; however, they can help smooth out the process.

AZ Sellers Guide | 16

Closing Your Escrow

THE CLOSING DISCLOSURE

Once the loan is approved and all invoices and paperwork have been provided, the lender and escrow officer will collaborate on the preparation of the Closing Disclosure (CD). In order to close on time, all paperwork and invoices should be submitted at least 10 days prior to the expected close of escrow date. The borrower must receive the CD at least three days* prior to consummation of the loan (typically the signing date). The escrow officer will also prepare an estimated settlement statement and inform the buyer of the balance of the down payment and closing costs needed to close escrow.

*For purposes of the Closing Disclosure“business day” is defined as every day except Sundays and Federal legal holidays.

THE CLOSING OR SIGNING APPOINTMENT

The escrow holder will contact you or your agent to schedule a closing or signing appointment. In some states, this is the "close of escrow." In some others, the close of escrow is either the day the documents record or that funds are disbursed. Ask your escrow holder if you would like clarification about your state's laws.

You will have a chance to review the settlement statement and supporting documentation. This is your opportunity to ask questions and clarify terms. You should review the settlement statement carefully and report discrepancies to the escrow officer. This includes any payments that may have been missed. You are responsible for all charges incurred even if overlooked by the escrow holder, so it's better to bring these to their attention before closing.

The escrow holder is obligated by law to have the designated amount of money before releasing any funds. If you have questions or foresee a problem, let your escrow holder know immediately.

DON'T FORGET YOUR IDENTIFICATION

You will need valid identification with your photo I.D. on it when you sign documents that need to be notarized (such as a deed). A driver's license is preferred. You will also be asked to provide your social security number for tax reporting purposes, and a forwarding address.

WHAT HAPPENS NEXT?

If the buyer is obtaining a new loan, the buyer’s signed loan documents will be returned to the lender for review. The escrow holder will ensure that all contract conditions have been met and will ask the lender to "fund the loan."

If the loan documents are satisfactory, the lender will send funds directly to the escrow holder. When the loan funds are received, the escrow holder will verify that all necessary funds are in. Escrow funds will be disbursed to the seller and other appropriate payees. Then, the REALTOR® will present the keys to the property to the buyer.

AZ Sellers Guide | 17

Planning your move

SIX WEEKS BEFORE:

Create an inventory sheet of items to move.

Research moving options You’ll need to decide if yours is a do-it-yourself move or if you’ll be using a moving company.

Request moving quotes Solicit moving quotes from as many moving companies and movers as possible. There can be a large difference between rates and services within moving companies.

Discard unnecessary items Moving is a great time for ridding yourself of unnecessary items. Have a yard sale or donate unnecessary items to charity.

Packing materials. Gather moving boxes and packing materials for your move.

Contact insurance companies. (Life, Health, Fire, Auto) You’ll need to contact your insurance agent to cancel/transfer your insurance policy. Do not cancel your insurance policy until you have and closed escrow on the sale.

Seek employer benefits. If your move is work-related, your employer may provide funding for moving expenses. Your human resources rep should have information on this policy.

Changing Schools. If changing schools, contact new school for registration process.

FOUR WEEKS BEFORE:

Contact utility companies Set utility turnoff date, seek refunds and deposits and notify them of your new address.

Obtain your medical records. Contact your doctors, physicians, dentists and other medical specialists who may currently be retaining any of your family’s medical records. obtain these records or make plans for them to be delivered to your new medical facilities.

Note food inventory levels Check your cupboards, refrigerator and freezer to use up as much of your perishable food as possible.

Service small engines for your move by extracting gas and oil from the machines. This will reduce the chance to catch fire during your move.

Protect jewelry and valuables. Transfer jewelry and valuables to safety deposit box so they can not be lost or stolen during your move.

Borrowed and rented items. Return items which you may have borrowed or rented. Collect items borrowed to others.

ONE WEEK BEFORE:

Plan your itinerary. Make plans to spend the entire day at the house or at least until the movers are on their way. Someone will need to be around to make decisions. Make plans for kids and pets to be at the sitters for the day.

Change of address. Visit USPS for change of address form.

Bank accounts Notify bank of address change. Make sure to have a money order for paying the moving company if you are transferring or closing accounts.

Service automobiles If automobiles will be driven long distances, you’ll want to have them serviced for a trouble-free drive.

Cancel services. Notify any remaining service providers (newspapers, lawn services, etc) of your move.

Start packing. Begin packing for your new location.

Travel items. Set aside items you’ll need while traveling and those needed until your new home is established. Make sure these are not packed in the moving truck!

Scan your furniture. Check furniture for scratches and dents before so you can compare notes with your mover on moving day.

Prepare Floor Plan. Prepare floor plan for your new home. This will help avoid confusion for you and your movers.

MOVING DAY:

Review the house. Once the house is empty, check the entire house (closets, the attic, basement, etc) to ensure no items are left or no home issues exist.

Sign the bill of lading. Once your satisfied with the mover’s packing your items into the truck, sign the bill of lading. If possible, accompany your mover while the moving truck is being weighed.

Double check with your mover. Make sure your mover has the new address and your contact information should they have any questions during your move.

Vacate your home. Make sure utilities are off, doors and windows are locked and notify your real estate agent you’ve left the property.

AZ Sellers Guide | 18
AZ Sellers Guide | 19 Your Notes:
AZ Sellers Guide | 20 Your Notes:
AZ Sellers Guide | 21 Your Notes:

1 SUN CITY WES T

623.299.3644

13940 W. Meeker Blvd., #119

Sun City West, AZ 85375

N of Meeker Blvd

W of R.H. Johnson

2 GOODYEAR

623.936.8001

1626 N. Litchfield Rd. Ste. #170 Goodyear, AZ 85395

NW corner of McDowell & Litchfield

3 ARROWHEAD

623.487.0404

16165 N. 83rd Ave , #100

Peoria, AZ 85382

S of Bell/E side of 83rd Ave

4 THE LEGENDS

623.537.1608

20241 N. 67th Ave , #A-2 Glendale, AZ 85308

E side 67th Ave/N of 101

5 ANTHEM

623.551.3265

39508 N. Daisy Mountain Dr., #128 Anthem, AZ 85086

NE corner Daisy Mtn Dr/ Gavilan Peak Pkwy

6 BILTMORE

602.954.3644

3200 E Camelback Rd., #123 Phoenix, AZ 85018

NE Corner of Camelback/32nd Street

7 DESERT RIDGE

480.515 4369

20860 N. Tatum Blvd , #100 Phoenix, AZ 85050

NW corner of Tatum/Loop 101

8 CAREFREE

480.575.6609

7202 E. Carefree Dr , Bldg 1, #1 Carefree, AZ 85377

NE corner of Tom Darlington/ Carefree Dr.

9 KIERLAND COMMONS

480.948.6488

14648 N Scottsdale Rd., Ste. #100 Scottsdale, AZ 85254

W of Scottsdale Road, S side of Greenway

10 SCOTTSDALE FORUM

480.551.0480

6263 N. Scottsdale Rd., #110 Scottsdale, AZ 85250

E Side Scottsdale/S of Lincoln

11 DC CROSSING

480.563.9034

18291 N. Pima Rd , #145 Scottsdale, AZ 85255

SE corner of Pima/Legacy

12 AHWATUKEE

480.753.4424

4435 E. Chandler Blvd , #100 Phoenix, AZ 85048

SW corner Chandler/45th St.

13 CHANDLER PORTICO

480.777.0051

2121 W. Chandler Blvd., #215 Chandler, AZ 85224

SW Corner Chandler Blvd./ Dobson Rd.

14 GILBERT SAN TAN

480.777.0614

1528 E. Williams Field Rd., #101 Gilbert, AZ 85295

NW corner of Williams Field Rd./ Val Vista Rd.

15 MESA

480.401.3738

1630 S. Stapley Dr., #123 Mesa, AZ 85204

N of Baseline / W of Stapley

16 RED MOUNTAIN

480.534.3599

1135 N. Recker Rd , #103 Mesa, AZ 85205

SE corner of Recker & Brown

Central Arizona

17 GOLD CANYON

480.288.0883

6877 South Kings Ranch Rd., #5 Gold Canyon, AZ 85118 E of 60/

South Side Kings Ranch Rd.

1 4 3 2 6 12 10 5 8 7 11 9 CRISMON SIGNAL BUTTE GOLDFIELD OLDWESTHWY SKINGSRANCH 14 17 15 13 16
First American Title Branch Locator
AZ Sellers Guide | 22

1 MAIN OFFICE

520.885.1600 | Fax 520.885.2309

6390 E. Tanque Verde Rd. Tucson, AZ 85715

2 BROADWAY

520.747.1644 | Fax 520.747.1403

3777 E. Broadway Blvd., Ste. 220 Tucson, AZ 85716

3 CAMBRIC

520.577.8707 | Fax 520.529.5034

1840 E. River Rd., Ste. 200 Tucson, AZ 85718

4 CASA GRANDE

520.426.4600 | Fax 520.426.4699

421 E. Cottonwood Ln Casa Grande, AZ 85122

5 CASAS ADOBES

520.575.1900 | Fax 520.432.0168

6760 N. Oracle Rd., Ste. 100B Tucson, AZ 85704

6 CENTRAL

520.319.9207 | Fax 520.319.1468

3777 E. Broadway Blvd., Ste. 102 Tucson, AZ 85716

7 DOWNTOWN

520.740.0424 | Fax 520.740.0436

1 S. Church Ave., Ste. 1610 Tucson, AZ 85701

8 FOOTHILLS

520.299.4606 | Fax 520.577.6993

4051 E Sunrise Dr., Ste. 155 Tucson, AZ 85718

arkervilleRd

SHelvetiaRd

EDesertDove

GoffRanchRd

SSantaRitaRd

9 GREEN VALLEY

520.625.1095 | Fax 520.958.9663

SHelvetiaRd

190 W. Continental Rd., Ste. 226 Green Valley, AZ 85622

10 ORO VALLEY/LA CANADA 520.877.9200 | Fax 520.202.6348 11165 N. La Canada Dr., Ste. 143 Oro Valley, AZ 85737

11 ORO VALLEY/ORACLE

520.229.9194 | 520.297.2576 Fax 520.229.9210 | 520.742.5866 8500 N. Oracle Rd., Ste 100 Oro Valley, AZ 85704

12 RITA ROAD 520.618.7790 | Fax 520.901.1720 10222 East Rita Rd., Ste. 190 Tucson, AZ 85747

13 RIVER 520.529.1944 | Fax 520.615.2945 1650 E. River Rd., Ste. 105 Tucson, AZ 85718

14 SKYLINE 520.529.0506 | Fax 520.529.8998 2890 E. Skyline Dr., Ste. 200 Tucson, AZ 85718

15 TANQUE VERDE 520.202.2626 | Fax 520.495.6151 7479 E. Tanque Verde Tucson, AZ 85715

TUCSON INT'L AIRPORT Air Force WSilverbellRd
N M t L emmon Hwy ESascoRd NF38 W Avra Valley Rd E G and Va ey DrNAguirre R d N L u c k e t t R d N W e n t z R d N Wa terman Mounta i n R d N Anway Rd W El Tiro Rd N Trico Rd W Tucke Rd W Rudasi Rd W Manv l e Rd SSanJoaquinRdWBopp Rd W Snyder H Rd S M a r s t e l l a r R d W Park Rd W Hermans RdW He mans Rd W Guy St W Bush Rd S G a r v e y R d N C a e R i n c o n a d o S W m o t R d S Shaw Rd S Sierrita Mountain Rd S K o l b R d W Tw nButtes Rd W Mcgee Ranch Rd S E s t a n c i a D r E Hemlock Dr N Bea r C a n y o n R d W E Cam no De Cerro E Fairmount St S Swan Rd NFrontageRd W Emigh Rd W Fort Lowe Rd N P u m p S t a t ion dR Cont nental Ave N Trico Rd S Cattle SOwlHead R a n c h Rd GasLineRd N T r c o R d W Bayard Rd S S a n d a r i o R d N Dove Mountain Blvd
WAnamax Mine Rd W G a r c i a R a n hc R d Road424 WRagged Top Rd W Ruby S a Dr WBritten RanchRd W Pima Mine Rd ellRdS S Mcgee Ranch R d E Edw n Rd SGu 8 0 NKINNEYRDN S A N D A R I O R D N ANWAY RD W VALENCIA RD W MOORE RD W INA RD N 1 S T A V E E SUNRISE DR E SNYDER RDNSILVERBELLRD N S O L D I E R T R L E RIVER RDE PRINCE RD E SPEEDWAY BLVD S FREEMAN RD E 22ND ST E 22ND ST W IRVINGTON RD S N O G A L E S H W Y W VALENCIA RD SMISSIONRD W SPEEDWAY BLVD S O L D S P A N I S H T RL W NARANJA DR W TWIN PEAKS RD W PICTURE ROCKS RD W MANVILLE RD SKINNEYRD W MILE WIDE RD E SAHUARITA RD N TRICO RD S S A N D A R I O R D S OLD N O G ALES HW Y S H O U G H T O N R D S L A C A N A D A DRW HELMET PEAK RD WAJOHWY N S W A N R D S KOLB RD S HOUGHTON RD W TANGERINE RD E GRANT RD S H O U G H T O N R D 9 5 WAJOHWY E VALENCIA RD NORACLE R D I10 I-19 77 77 86 86 286 19 10 10 Corona de Tucson Casas Adobes Catalina Green Valley Picture Rocks Three Points VailSummit Tanque Verde Tucson Sahuarita Red Rock Saddlebrooke Marana Oro Valley Rillito Summerhaven Willow Canyon Oracle Junction Cortaro Continental Littletown 2 3 5 6 7 9 10 11 12 13 15 14 8 1 Southern Arizona First American Title Branch Locator TUCSON INT'L AIRPORT Air Force FreemanRd WSilverbellRd N M t L emmon Hwy ESascoRd NF 38 W Avra Val ey Rd S C u r r y R d W Hanna Rd E Grand Va ey D W Houser Rd W Ph ps Rd E Co nman Rd NAguirre R d N L u c k e t R d N W e n z R d N Wa terman Mounta i n R d N Anway Rd W El Tiro Rd N Trico Rd W Tucke Rd W Rudas Rd W Manv e Rd SSanJoaquinRdWBopp Rd W Snyde H Rd S M a r s t e a r R d W Pa k Rd W He mans RdW Hermans Rd W Guy St W Bush Rd a r v e y R d N C a e R i n c o S W m o R d Shaw Rd S Sierrita W Woodru Rd N O v e r f e d R d W Rando ph Rd W Bartlett Rd N L a P a m a R d N Tweedy Rd E Randolph Rd W Kleck Rd E K eck Rd W Se ma Hwy S Trekell Rd S Henness Rd E Selma Hwy W Co nman Rd W Pretzer Rd S L a m b R d S La Palma Rd E M gan Rd E M gan Rd W A es Dr E Curtis Rd S E s t a n c a D r
Hearth Rd E Hemlock Dr N Bea r C a n y o n R d W E Cam no De Cerro E Fairmount St S Swan Rd NFrontageRd W Emigh Rd
NB
W Fort Lowe Rd N P u m p S t a t ion dR E Nona Rd Ch efButteRd Lovetta dR E Hanna Rd Tecolot e RanchRd FlorenceRdRomeroRd Con nenta Ave BIA 30 N Trico Rd S S u n a n d G i n R d S Cattle Tank Rd E E s Rd E Hotts Rd E Nutt Rd Evalyn Rd SOwlHead R a n c h Rd GasLineRd S P ec a n R d I on Va ey RdEDeepWellRanchRd S N g h t S k y St S B r a d y P u mp Rd E Houser Rd E Ar ca Rd W Ea ey Rd N T r c o R d W Baya d Rd S S a n d a r o R d W i l l owSpri n gsRd EHelmwheel Ranch Rd N Dove Mounta n Blvd BIA-35 W G a r c i a R a n hc R d E Dese H s Rd WRagged Top Rd W Pima Mine Rd W S i l v erbellRdS E Edw n Rd BIA34 SGuildRd 8 0 NKINNEYRD S PICACHO HWY E GREENE RESERVOIR RD S SUNLAND GIN RD W BATTAGLIA DR AZ-84 E BAUMGARTNER RD S S U N S H I N E B L V D N S A N D A R O R D N ANWAY RD E HARMON RD W VALENCIA RD E RODEO RD W MOORE RD W INA RD N 1 S T A V E E SUNRISE DR E SNYDER RDNSILVERBELLRD N S O L D I E R T R L E RIVER RDE PRINCE RD E SPEEDWAY BLVD S FREEMAN RD E 22ND ST E 22ND ST W IRV NGTON RD S N O G A L E S H W Y W VALENC A RD SMISSIONRD W SPEEDWAY BLVD S O L D S P A N I S H T RL W NARANJA DR W TW N PEAKS RD W P CTURE ROCKS RD W MANVILLE RD SKINNEYRD W MILE WIDE RD W HARMON RD W MCCARTNEY RD N TRICO RD S S A N D A R I O R D PARK LINK DR S H O U G H T O N R D E MART N RD S THORNTON RD S CHUICHU RD WAJOHWY N S W A N R D S KOLB RD S HOUGHTON RD W TANGER NE RD E GRANT RD S H O U G H T O N R D N P N A L A V E 9 5 WAJOHWY E VALENCIA RD NORACLE R D I10 I-19 I-8 77 77 79 77 77 87 86 86 387 287 86 10 19 8 10 10 10 La Palma Chuichu Arizona City Casas Adobes Catalina Dudleyville Oracle Casa Grande Picture Rocks Three Points VailSummit Tanque Verde Eloy Tucson Cactus Forest Picacho Red Rock Saddlebrooke Marana Oro Valley Haivana Nakya Rillito Summerhaven Willow Canyon Randolph Toltec Oracle Junction Cortaro Schuchk Littletown 2 4 3 5 6 7 10 11 12 13 15 14 8 1 TUCSON INT'L AIRPORT Air Force WSilverbellRd SSantaRitaRd N M t L emmon Hwy ESas W Avra Valley Rd E G and Va ey DNAguirre R d N L u c k e t R d N W e n t z R d N Wa terman Mounta n R d N Anway Rd W El Tiro Rd N Trico Rd W Tucke Rd W Rudas Rd W Manv e Rd SSanJoaquinRdWBopp Rd W Snyder H Rd S M a r s t e a r R d W Park Rd W Hermans RdW He mans Rd W Guy St W Bush Rd S G a v e y R d N C a e R i n c o n a d o S W l m o t R d S Shaw Rd S Sierrita Mountain Rd S K o b R d W TwinButtes Rd W Mcgee Ranch Rd S E s N Bea r C a n y o n R d W E Cam no De Cerro E Fairmount St S Swan Rd NFrontageRd W Emigh Rd W Fort Lowel Rd N P u m p S a t ion dR N Trico Rd SOwGas N T r c o R d W Baya d Rd S S a n d a r o R d N Dove Mountain Blvd
WAnamax M ne Rd W G a r c i a R a n hc R d Road424 ed Top Rd W Ruby S ar D WBritten RanchRd W Pima Mine Rd S Mcgee Ranch R d E Edw n Rd 8 0 NKINNEYRDN S A N D A R O R D N ANWAY RD W VALENC A RD W MOORE RD W INA RD N 1 S T A V E E SUNR SE DR E SNYDER RDNSILVERBELLRD N S O L D E R T R L E RIVER RDE PRINCE RD E SPEEDWAY BLVD S FREEMAN RD E 22ND ST E 22ND ST W IRV NGTON RD S N O G A L E S H W Y W VALENCIA RD SMISSIONRD W SPEEDWAY BLVD S O L D S P A N I S H T RL W NARANJA DR W TW N PEAKS RD W P CTURE ROCKS RD W MANVILLE RD SKINNEYRD W MILE WIDE RD E SAHUARITA RD N TRICO RD S S A N D A R O R D S OLD N O G ALES HW Y S H O U G H T O N R D S L A C A N A D A DRW HELMET PEAK RD WAJOHWY N S W A N R D S KOLB RD S HOUGHTON RD W TANGERINE RD E GRANT RD S H O U G H T O N R D 9 5 WAJOHWY E VALENCIA RD NORACLE R D I10 I-19 77 77 86 86 286 19 10 10 Corona de Tucson Casas Adobes Catalina Green Valley Picture Rocks Three Points VailSummit Tanque Verde Tucson Sahuarita Saddlebrooke Marana Oro Valley Rillito Summerhaven Willow Canyon Cortaro Continental Littletown 2 3 5 6 7 9 10 11 12 13 15 14 8 1 AZ Sellers Guide | 23
05110281121 For more information please contact your First American representative. www.firstam.com First American Title Insurance Company, and the operating divisions thereof, make no express or implied warranty respecting the information presented and assume no responsibility for errors or omissions. First American, the eagle logo, First American Title, and firstam.com are registered trademarks or trademarks of First American Financial Corporation and/or its affiliates. ©2021 First American Financial Corporation and/or its affiliates. All rights reserved. NYSE: FAF

Turn static files into dynamic content formats.

Create a flipbook
Issuu converts static files into: digital portfolios, online yearbooks, online catalogs, digital photo albums and more. Sign up and create your flipbook.