

WIRE FRAUD ADVISORY
Criminals are targeting social media and email to steal information. This is particularly common in real estate transactions because sensitive data, including social security numbers, bank account numbers, and wire instructions are often sent by electronic means. We do not want you to be the next victim of wire fraud. Money wired to a fraudulent account is stolen money that typically cannot be recovered. Additionally, there is generally no insurance for this loss. You may never get the money back.

PROTECT YOURSELF
DO NOT TRUST EMAILS CONTAINING WIRE INSTRUCTIONS
• If you receive an email containing wire transfer instructions, immediately call your escrow officer to ensure the validity of the instructions.
DO NOT TRUST EMAILS SEEKING PERSONAL/FINANCIAL INFORMATION
• If you receive an email requesting personal/financial information or asking you to download, click on a link, send, and/or do anything that may seem unusual to you, call your escrow officer immediately prior to acting on the suspicious email to verify the validity of the email.
TRUST YOUR SOURCE OF INFORMATION
• Never direct, accept or allow anyone in the transaction to consent to receiving transfer instructions without a direct personal telephone call to the individual allegedly providing the instructions.
• It is imperative that this call be made to a number obtained in person from the individual or through other reliable means, not from a number provided in the email or the wiring instructions
ONLINE RESOURCES:
There are many online sources that can provide useful information regarding similar topics including, but not limited to, the following sites:
The Federal Bureau of Investigation @ https://www.fbi.gov/scams and safety
The Internet Crime Complaint Center @ www.ic3.gov
The National White Collar Crime Center @ http://www.nw3c.org/research
On Guard Online @ www.onguardonline.gov
VERIFY AND NOTIFY
Before you wire funds to any party (including your lawyer, title agent, mortgage broker, or real estate agent) personally meet them or call a verified telephone number (not the telephone number in the email) to confirm before you act!
Immediately notify your banking institution and Settlement/Title Company if you are a victim of wire fraud.
The undersigned acknowledges receipt of this Wire Fraud Advisory.
LIMITATION OF LIABILITY FOR INFORMATIONAL REPORTS
IMPORTANT -- PLEASE READ CAREFULLY:
This report is not an insured product or service or a representation of the condition of title to real property. It is not an abst ract, legal opinion, opinion of title, title insurance commitment or preliminary report, or any form of Title Insurance or Guaranty. This report is issued exclusively for the benefit of the Applicant therefor and may not be used or relied upon by any other person. This report may not be reproduced in any manner without First American or Title Security's prior written consent. First American or Title Security does not represent or warrant that the information herein is complete or free from error, and the information herein is provided without any warranties of any kind, as-is, and with all faults. As a material part of the consideration given in exchange for the issuance of this report, recipient agrees that First American or Title Security's sole liability for any loss or damage caused by an error or omission due to inaccurate information or negligence in preparing this report shall be limited to the fee charged for the report. Recipient accepts this report with this limitation and agrees that First American or Title Security would not have issued this report but for the limitation of liability described above. First American or Title Security makes no representation or warranty as to the legality or propriety of recipient's use of the information herein.

Provided By:
Disclaimer
This REiSource report is provided "as is" without warranty of any kind, either express or implied, including without limitations any warrantees of merchantability or fitness for a particular purpose. There is no representation of warranty that this information is complete or free from error, and the provider does not assume, and expressly disclaims, any liability to any person or entity for loss or damage caused by errors or omissions in this REiSource report without a title insurance policy.
The information contained in the REiSource report is delivered from your Title Company, who reminds you that you have the right as a consumer to compare fees and serviced levels for Title, Escrow, and all other services associated with property ownership, and to select providers accordingly. Your home is the largest investment you will make in your lifetime and you should demand the very best.

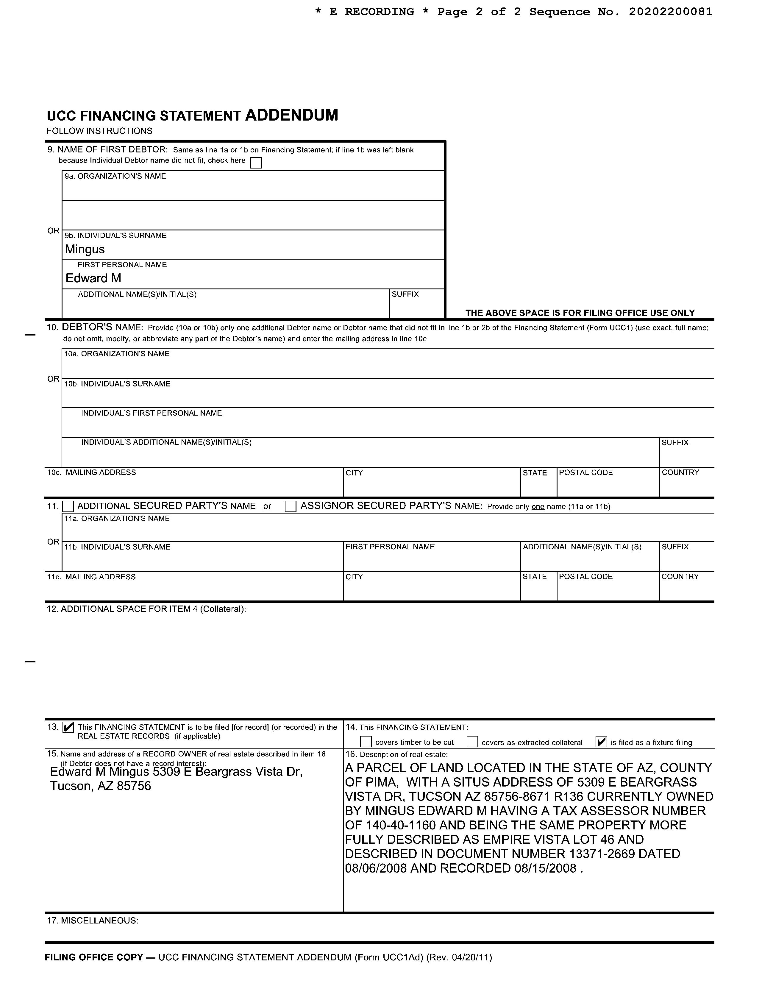
Subject Property : 5309 E Beargrass Vista Dr Tucson AZ 85756
Owner Information
Owner Name : Mingus
Mailing Address : 5309 E Beargrass Vista Dr, Tucson AZ 85756-8671 R136
Vesting Codes : / / Revocable Trust
Owner Occupied Indicator : O
Location Information
Legal Description : Empire Vista Lot 46
County : Pima, Az
Census Tract / Block : 41.18 / 1
Township-Range- Sect : 15S-14E-14
Legal Book/Page : 59-92
Legal Lot : 46
Market Area : 111
Owner Transfer Information
Recording/Sale Date : 04/15/2020 / 03/24/2020
Document # : 1060512
Last Market Sale Information
Recording/Sale Date : 08/15/2008 / 08/06/2008
Sale Price : $224,000
Document # : 13371-2669
Deed Type : Special Warranty Deed
Title Company : Title Security Inc
Lender : Universal American Mtg Co Llc

Seller Name : Trust 907
Prior Sale Information
Prior Rec/Sale Date : 09/27/2005 / 09/22/2005
Prior Sale Price : $9,256,500
APN : 140-40-1160
Subdivision : Empire Vista
Map Reference : 14-15S-14E
School District : Sunnyside
Munic/Township : Sunnyside
Deed Type : Quit Claim Deed
1st Mtg Amount/Type : $124,000 / Cnv
1st Mtg Document # : 13371-2672
1st Mtg Term : 30
Price Per SqFt : $103.04
Prior Doc Number : 1880864
Prior Deed Type : Special Warranty Deed
Customer Name : Lisa Mrazek
Customer Company Name : First American Title Insurance Company
On : 10/12/2022
Property Characteristics
Gross Area : 2,174 Garage Capacity : 2 Patio Type : Covered Patio
Living Area : 2,174
Total Rooms : 8
Year Built / Eff : 2008
# of Stories : 1
Parking Type : Garage
Property Information
Land Use : Sfr
County Use : Single Fam Resurban Subd
Tax Information
Total Value : $195,875
Total Taxable Value : $17,244
Assessed Year : 2021
Roof Material : Tile Air Cond : Refrigeration

Heat Type : Forced Air Quality : Fair
Cooling Type : Forced Air Condition : Excellent
Exterior wall : Frame Wood Bath Fixtures : 9
Zoning : CR-3
Lot Acres : 0.19
Property Tax : $1,970.50
Tax Rate Area : 1250
Market Value : $195,875
Tax Year : 2021 Current Assessed Year : 2023
Lot Size : 8,469
State Use : Single Fam Resurban Subd
Current Year Total Value : $23,696
Current Year Improvement Value :
$23,646
Current Year Land Value : $50
Sale Price $224,000 $307,500 $424,000 $354,341
Bldg/Living Area
2338 2166
Price Per Square Foot $103.04 $138 $195 $164.28
Year Built
2014 2007
3,600 13,425 8,501
Assessed Value $195,875 $165,789 $215,782 $195,191
Subject



Details of Comparables
Subject Property: 5309 E Beargrass Vista Dr Tucson Az 85756
Owner Name: Mingus / APN / Alternate APN: 140-40-1160 / Deed Type: Special Warranty Deed
Land Use: Sfr
Year Built / Eff: 2008 / Rec. Date / Price: 08/15/2008 / $224,000 Living Area: 2,174
Subdivision / Tract: Empire Vista / Lot Size: 8,469
# of units: Document #: 13371-2669 Bedrooms: Pool:
Total Tax Value: $195,875 Bath(F/H): /
#1 6625 S Lantana Vista Dr Tucson Az 85756
Owner Name: Becerra Laura R / APN / Alternate APN: 140-40-1270 / Deed Type: Warranty Deed
Land Use: Sfr
Year Built / Eff: 2008 / Rec. Date / Price: 07/28/2022 / $424,000 Living Area: 2,174
Subdivision / Tract: Empire Vista / Lot Size: 8,398
# of units:
Document #: 2090237 Bedrooms: Pool: Pool

Total Tax Value: $215,782 Bath(F/H): /
#2 5243 E Beargrass Vista Dr Tucson Az 85756
Owner Name: Brueck Daniel V /Brueck Sharon APN / Alternate APN: 140-40-1100 / Deed Type: Warranty Deed
Land Use: Sfr
Subdivision / Tract: Empire Vista / Lot Size: 8,625 Year Built / Eff: 2008 / Rec. Date / Price: 04/15/2022 / $402,500 Living Area: 2,338
# of units: Document #: 1050479 Bedrooms: Pool: Total Tax Value: $213,138 Bath(F/H): /
#3 6640 S Lantana Vista Dr Tucson Az 85756
Owner Name: Hausfeld Family Trust / APN / Alternate APN: 140-40-1390 / Deed Type: Warranty Deed
Land Use: Sfr
Year Built / Eff: 2007 / Rec. Date / Price: 01/13/2022 / $354,999 Living Area: 2,338
Subdivision / Tract: Empire Vista / Lot Size: 8,958
# of units: Document #: 130348 Bedrooms: Pool:
Total Tax Value: $212,144 Bath(F/H): /
#4 6632 S Willow Vista Dr Tucson Az 85756
Owner Name: Urias Irma N /
APN / Alternate APN: 140-40-1650 / Deed Type: Warranty Deed
Land Use: Sfr
Year Built / Eff: 2007 / Rec. Date / Price: 08/12/2022 / $355,000 Living Area: 2,338
Subdivision / Tract: Empire Vista / Lot Size: 8,546
# of units: Document #: 2240252 Bedrooms: Pool:
Total Tax Value: $212,144 Bath(F/H): /
American Title Insurance
#5 6594 S Quail Vista Dr Tucson Az 85756
Owner Name: Martinez Deedrick /Chavira Angelica
APN / Alternate APN: 140-40-1830 / Deed Type: Warranty Deed
Land Use: Sfr
Year Built / Eff: 2007 / Rec. Date / Price: 01/25/2022 / $360,000 Living Area: 2,198
Subdivision / Tract: Empire Vista / Lot Size: 10,421
# of units:
Document #: 250538 Bedrooms: Pool:
Total Tax Value: $205,898 Bath(F/H): /
#6 6636 S Quail Vista Dr Tucson Az 85756
Owner Name: Lizarraga Rosa G /
APN / Alternate APN: 140-40-1800 / Deed Type: Warranty Deed
Land Use: Sfr
Year Built / Eff: 2007 / Rec. Date / Price: 09/21/2022 / $350,000 Living Area: 1,955
Subdivision / Tract: Empire Vista / Lot Size: 8,829
# of units:
Document #: 2640464 Bedrooms: Pool:

Total Tax Value: $182,786 Bath(F/H): /
#7 5284 E Jasmine Vista Ct Tucson Az 85756
Owner Name: Soto-gonzalez Erick /
APN / Alternate APN: 140-40-1540 / Deed Type: Warranty Deed
Land Use: Sfr
Subdivision / Tract: Empire Vista / Lot Size: 8,151 Year Built / Eff: 2007 / Rec. Date / Price: 09/15/2022 / $405,000 Living Area: 2,338
# of units: Document #: 2580080 Bedrooms:
Pool: Total Tax Value: $212,144 Bath(F/H): /
#8 6596 S Empire Vista Dr Tucson Az 85756
Owner Name: Sonke Lorena L / APN / Alternate APN: 140-40-1920 / Deed Type: Warranty Deed
Land Use: Sfr
Subdivision / Tract: Empire Vista / Lot Size: 10,499 Year Built / Eff: 2007 / Rec. Date / Price: 11/24/2021 / $330,000 Living Area: 2,174
Document #: 3280664 Bedrooms:
Total Tax Value: $194,988 Bath(F/H): /
#9 6601 S Cedar Vista Dr Tucson Az 85756
Owner Name: Ercout Edmond / APN / Alternate APN: 140-40-1940 / Deed Type: Warranty Deed
# of units:
Pool:
Land Use: Sfr
Subdivision / Tract: Empire Vista / Lot Size: 8,993 Year Built / Eff: 2006 / Rec. Date / Price: 05/31/2022 / $367,000 Living Area: 1,955
Document #: 1510871 Bedrooms:
Total Tax Value: $182,010 Bath(F/H): /
#10 5164 E Park Vista Dr Tucson Az 85756
Owner Name: Hernandez Erik W /Saucedo Monica F
APN / Alternate APN: 140-40-2110 / Deed Type: Warranty Deed
# of units:
Pool:
Land Use: Sfr
Year Built / Eff: 2007 / Rec. Date / Price: 11/02/2021 / $345,000 Living Area: 2,338
Subdivision / Tract: Empire Vista / Lot Size: 8,040
# of units: Document #: 3060325 Bedrooms:
Pool:
Total Tax Value: $212,144 Bath(F/H): /
Customer
Company
: Lisa Mrazek
: First American Title Insurance Company
: 10/12/2022
#11 5121 E Arguedas Way Tucson Az 85756
Owner Name: Estrada Francisco O /Mojarro Saray
APN / Alternate APN: 140-56-6330 / Deed Type: Warranty Deed
Land Use: Sfr
Year Built / Eff: 2014 / Rec. Date / Price: 06/21/2022 / $340,000 Living Area: 1,849
Subdivision / Tract: Valencia Rho Ii / Lot Size: 4,838
Document #: 1720757
Bedrooms:
Total Tax Value: $197,776 Bath(F/H): /
#12 6877 S Salt Cedar Rd Tucson Az 85756
Owner Name: Eshetu Filcirte E /Haile Andnet S
APN / Alternate APN: 140-56-0300 / Deed Type: Warranty Deed
# of units:
Pool:
Land Use: Sfr
Year Built / Eff: 2006 / Rec. Date / Price: 01/05/2022 / $307,500 Living Area: 2,226
Subdivision / Tract: Valencia Rho / Lot Size: 8,190
# of units:
Document #: 50691 Bedrooms: Pool:

Total Tax Value: $202,288 Bath(F/H): /
#13 4821 E Twinflower Pl Tucson Az 85756
Owner Name: Opendoor Property Trust I /
APN / Alternate APN: 140-39-0960 / Deed Type: Warranty Deed
Land Use: Sfr
Year Built / Eff: 2004 / Rec. Date / Price: 07/13/2022 / $344,900 Living Area: 2,245
Subdivision / Tract: Valstate / Lot Size: 11,616
# of units:
Document #: 1940234 Bedrooms: Pool: Total Tax Value: $169,676 Bath(F/H): /
#14 5038 E Cream Cups Pl Tucson Az 85756
Owner Name: Tse Waiyuen /Wah Yuet
APN / Alternate APN: 140-56-1320 / Deed Type: Warranty Deed
Land Use: Sfr Subdivision / Tract: Valencia Rho / Lot Size: 5,526
Year Built / Eff: 2011 / Rec. Date / Price: 07/29/2022 / $339,000 Living Area: 2,297
# of units:
Pool: Total Tax Value: $191,962 Bath(F/H): /
Document #: 2100605 Bedrooms:
#15 6782 S Thimbleberry Rd Tucson Az 85756
Owner Name: Roman Alberto R /Roman Nohemi M
APN / Alternate APN: 140-39-3750 / Deed Type: Warranty Deed
Land Use: Sfr Subdivision / Tract: Valstate / Lot Size: 11,405
Year Built / Eff: 2005 / Rec. Date / Price: 11/18/2021 / $330,000 Living Area: 1,899
Document #: 3220466 Bedrooms:
Total Tax Value: $174,467 Bath(F/H): /
#16 6916 S Salt Cedar Rd Tucson Az 85756
Owner Name: Donna L Bauman Living Trust /
# of units:
Pool:
APN / Alternate APN: 140-56-0260 / Deed Type: Warranty Deed
Land Use: Sfr Subdivision / Tract: Valencia Rho / Lot Size: 13,100
Year Built / Eff: 2006 / Rec. Date / Price: 01/21/2022 / $328,025 Living Area: 2,226
Document #: 210337 Bedrooms:
Total Tax Value: $208,757 Bath(F/H): /
# of units:
Pool:
Customer
Customer Company
Lisa
: First American Title Insurance
#17 7026 S Brickellbush Ln Tucson Az 85756
Owner Name: Glass John M /
APN / Alternate APN: 140-56-3380 / Deed Type: Warranty Deed
Land Use: Sfr
Year Built / Eff: 2007 / Rec. Date / Price: 03/17/2022 / $330,000 Living Area: 2,015
Subdivision / Tract: Valencia Rho / Lot Size: 3,601
# of units:
Document #: 760266 Bedrooms: Pool:

Total Tax Value: $170,892 Bath(F/H): /
#18 6781 S Pigeonberry Pl Tucson Az 85756
Owner Name: Davila Sergio /Davila Veronica M
APN / Alternate APN: 140-39-3740 / Deed Type: Warranty Deed
Land Use: Sfr
Year Built / Eff: 2005 / Rec. Date / Price: 07/06/2022 / $400,000 Living Area: 2,226
Subdivision / Tract: Valstate / Lot Size: 13,425
# of units:
Document #: 1870449 Bedrooms: Pool:
Total Tax Value: $193,824 Bath(F/H): /
#19 4983 E Chickweed Dr Tucson Az 85756
Owner Name: Anter Shadon A /
APN / Alternate APN: 140-56-1400 / Deed Type: Warranty Deed
Land Use: Sfr
Subdivision / Tract: Valencia Rho / Lot Size: 5,268 Year Built / Eff: 2006 / Rec. Date / Price: 02/14/2022 / $338,900 Living Area: 2,304
# of units:
Document #: 450978 Bedrooms: Pool: Total Tax Value: $185,204 Bath(F/H): /
#20 4783 E Canary Grass Dr Tucson Az 85756
Owner Name: Blue Jayson C / APN / Alternate APN: 140-39-845A / Deed Type: Warranty Deed
Land Use: Sfr
Subdivision / Tract: Valstate 02 / Lot Size: 3,600 Year Built / Eff: 2008 / Rec. Date / Price: 06/08/2022 / $335,000 Living Area: 1,896
# of units:
Document #: 1590452 Bedrooms: Pool:
Total Tax Value: $165,789 Bath(F/H): /
Customer
Lisa Mrazek
: First American Title Insurance Company








SHelvetiaRd
Public
Elementary Schools
Craycroft Elementary School Distance 0.25 Miles
5455 E. Littletown Rd. Tucson AZ 85706
Telephone : (520) 545-2600
Lowest Grade : Pre-K
School District : Sunnyside Unified District (4407)
Highest Grade : 5th Kindergarten : Yes School Enrollment : Enrollment : 523
Total Expenditure/Student : 153
Gallego Primary Fine Arts Magnet Distance 2.11 Miles 6200 S Hemisphere Pl Tucson AZ 85706
Telephone : (520) 545-3000
Lowest Grade : K
School District : Sunnyside Unified District (4407)
Highest Grade : 3rd
Kindergarten : Yes School Enrollment : Enrollment : 551
Total Expenditure/Student : 153
Los Ninos Elementary School Distance 2.2 Miles
5445 S Alvernon Way Tucson AZ 85706
Telephone : (520) 545-3300
Lowest Grade : Pre-K
School District : Sunnyside Unified District (4407)

Highest Grade : 6th
Kindergarten : Yes School Enrollment : Enrollment : 449
Total Expenditure/Student : 153
Middle Schools
Billy Lane Lauffer Middle School
5385 E Littletown Rd Tucson AZ 85756
Telephone : (520) 545-4900
Lowest Grade : 5th
Distance 0.15 Miles
School District : Sunnyside Unified District (4407)
Highest Grade : 8th
Kindergarten : No School Enrollment : Enrollment : 678
Total Expenditure/Student : 153
Gallego Intermediate Fine Arts Magnet School
3700 E Alvord Rd Tucson AZ 85706
Telephone : (520) 545-4700
Lowest Grade : 4th
Distance 2.19 Miles
School District : Sunnyside Unified District (4407)
Highest Grade : 8th
Kindergarten : No School Enrollment : Enrollment : 863
Total Expenditure/Student : 153
High Schools
Desert View High School Distance 1.48 Miles
4101 E Valencia Rd Tucson AZ 85706
Telephone : (520) 545-5100
School District : Sunnyside Unified District (4407)
Highest Grade : 12th School Enrollment : Enrollment : 2083
Lowest Grade : 9th
Total Expenditure/Student : 153 Advanced Placement : No
Pcjted - Desert View High School Distance 1.48 Miles
4101 E Valencia Rd Tucson AZ 85706
Telephone : (520) 545-5100
School District : Pima County Jted (89380)

Highest Grade : 12th School Enrollment : Enrollment : 0
Lowest Grade : 9th
Total Expenditure/Student : Advanced Placement : No
Attractions / Recreation
Name Address Telephone Distance (Miles)
Timothy Jones
Crazy Horse Enterprises
6638 S Empire Vista Dr Tucson Az (520) 440-0191 0.17
6660 S Craycroft Rd Tucson Az (520) 574-0157 0.27
Djraza 5952 E Sanderling Dr Tucson Az (520) 449-0993 0.84
United Sports Arizona 4300 E Los Reales Rd Tucson Az (520) 574-8515 1.57
Banks / Financial
Name Address Telephone Distance (Miles)
Tucson Mobile Loan Signing Agent Llc
6008 E Tercel Dr Tucson Az (520) 245-6864 1.07
Southern Arizona Mortgage Lenders Association 4415 E Drexel Rd Tucson Az (520) 207-0539 1.59
La Tierra Lending L.l.c.
5400 S Palo Verde Rd Tucson Az (520) 807-0579 2.7
Defense Health Agency 4175 S Alamo Ave Bldg 400 Tucson Az (520) 228-5052 3.16
Eating / Drinking
Name Address Telephone Distance (Miles)
City Of Tucson 6465 S Craycroft Rd Tucson Az (520) 574-2263 0.24
I Chief, L.l.c.
The Nail Lounge Of Tucson
5000 E Valencia Rd Tucson Az (520) 889-4422 0.39
4785 E Orchard Grass Dr Tucson Az (520) 622-8234 0.66
Chopstix 4816 E Starflower St Tucson Az (520) 889-7849 0.74
Health Care Services
Name Address Telephone Distance (Miles)
Breanna Bergren
6936 S Blueeyes Dr Tucson Az (207) 249-9991 0.55
Tolliver Brothers, Llc 4815 E Starflower St Tucson Az (520) 870-1711 0.74
Cj Surgical Assisting Llc
Pima County Medical Examiners Office
5963 E Franklin Tale Dr Tucson Az (520) 390-3862 1.12
5950 S Aldorn Dr Tucson Az (520) 808-9024 1.48
Customer Name : Lisa Mrazek
: First American Title Insurance Company
10/12/2022

Hospitality
Name Address Telephone Distance (Miles)
Apache Tears Motel 4603 E Benson Hwy Tucson Az (520) 574-7534 0.95
Rrssp I 10 Wilmot Inc 6161 E Benson Hwy Tucson Az (520) 574-0191 1.49
Scotsman Motel 3526 E Benson Hwy Tucson Az (520) 294-7002 2.55
Apple Nine Hospitality Management, Inc. 6575 S Country Club Rd Ma Tucson Az (520) 741-0505 2.76
Organizations / Associations
Name Address Telephone Distance (Miles)
Praise Chapel Christian Fellowship 5000 E Butterweed Dr Tucson Az (520) 777-6692 0.45
Heather Skay 6810 S Aquiline Dr Tucson Az (520) 270-5737 0.77
Jehovah's Witnesses Palo Verde 4616 E Rex St Tucson Az (520) 574-9711 0.92
Templo Betel Asamblea De Dios 4222 E Coolbrooke Dr Tucson Az (520) 834-7336 1.46
Personal Services
Name Address Telephone Distance (Miles)
Leisure Pool & Spa Svc 7068 S Brickellbush Ln Tucson Az (520) 393-9933 0.7
Alist Personal Training 7039 S Sweetbush Ave Tucson Az (520) 409-2615 0.77
Body And Mind Fitness L.l.c. 4804 E Desert Thorn Dr Tucson Az (520) 603-9211 0.85
Health, Heart, And Fitness L.l.c. 5873 E Cedarbird Dr Tucson Az (520) 256-0924 0.94
Shopping
Name Address Telephone Distance (Miles)
Valero Corner Store 4685 E Valencia Rd Tucson Az (520) 574-2069 0.65
Jack's Gov't Surplus Inc 5181 E Drexel Rd Tucson Az (520) 574-0300 1.1
A & M Fencing Inc 5130 E Canada St Tucson Az (520) 574-7558 1.35

Levin & Sons 6652 S Memorial Pl Tucson Az (520) 574-9610 1.47
Name : Lisa Mrazek
: First American Title Insurance Company
6565 S LANTANA VISTA DR Distance 0.03 Miles
Owner Name : Verduzco Edgar
Sale Date : 11/20/2019
Total Value : $183,593
Bed / Bath : / 3
Land Use : Sfr
Stories : 1
Yr Blt / Eff Yr Blt : 2008 /
Subdivision : Empire Vista
Recording Date : 11/27/2019
Sale Price : $230,000
Property Tax : $1,865.58
Lot Acres : 0.19
Living Area : 1,955
APN : 140-40-1210
6590 S LANTANA VISTA DR Distance 0.03 Miles

Owner Name : Rollins Dennis Kay
Sale Date : 09/16/2015
Total Value : $183,593
Bed / Bath : / 3
Land Use : Sfr
Stories : 1
Yr Blt / Eff Yr Blt : 2008 /
Subdivision : Empire Vista
Recording Date : 10/14/2015
Sale Price : $154,900
Property Tax : $1,865.58
Lot Acres : 0.19
Living Area : 1,955
APN : 140-40-1440
5289 E BEARGRASS VISTA DR Distance 0.03 Miles
Owner Name : Gomez Saul P
Sale Date : 06/20/2008
Total Value : $225,548
Bed / Bath : / 4
Land Use : Sfr
Stories : 2
Yr Blt / Eff Yr Blt : 2008 /
Subdivision : Empire Vista
Recording Date : 06/27/2008
Sale Price : $252,500
Property Tax : $2,230.58
Lot Acres : 0.20
Living Area : 2,909
APN : 140-40-1140
6575 S LANTANA VISTA DR Distance 0.03 Miles
Owner Name : Kawa Djeny
Sale Date : 08/27/2021
Total Value : $225,548
Bed / Bath : / 4
Land Use : Sfr
Stories : 2
Yr Blt / Eff Yr Blt : 2008 /
Subdivision : Empire Vista
Recording Date : 09/03/2021
Sale Price : $350,000
Property Tax : $2,230.58
Lot Acres : 0.19
Living Area : 2,909
APN : 140-40-1220
Company
Customer Name : Lisa Mrazek
: First American Title Insurance Company
On : 10/12/2022
5304 E AGAVE VISTA DR Distance 0.03 Miles
Owner Name : 5304 E Agave Vista Dr Llc
Sale Date : 08/27/2008
Total Value : $207,812
Bed / Bath : / 4
Land Use : Sfr
Stories : 2
Yr Blt / Eff Yr Blt : 2008 /
Subdivision : Empire Vista
Recording Date : 08/29/2008
Sale Price : $245,000
Property Tax : $2,417.59
Lot Acres : 0.19
Living Area : 2,713
APN : 140-40-0960
5294 E AGAVE VISTA DR Distance 0.03 Miles
Owner Name : Nguyen Tommy Khoi
Sale Date : 07/02/2008
Total Value : $245,456
Bed / Bath : / 4
Subdivision : Empire Vista
Recording Date : 07/31/2008
Sale Price : $265,000
Property Tax : $2,556.56
Land Use : Sfr Lot Acres : 0.18
Stories : 2
Yr Blt / Eff Yr Blt : 2008 /
Living Area : 2,909
APN : 140-40-0970
6585 S LANTANA VISTA DR Distance 0.04 Miles
Owner Name : Pujol Lucia S

Sale Date : 06/16/2008
Total Value : $183,593
Bed / Bath : / 3
Land Use : Sfr
Stories : 1
Yr Blt / Eff Yr Blt : 2008 /
Subdivision : Empire Vista
Recording Date : 06/26/2008
Sale Price : $213,000
Property Tax : $1,865.58
Lot Acres : 0.19
Living Area : 1,955
APN : 140-40-1230
6545 S LANTANA VISTA DR Distance 0.04 Miles
Owner Name : 6545 S Lantana Vista Dr Llc
Sale Date : 06/26/2009
Total Value : $226,673
Bed / Bath : / 4
Land Use : Sfr
Stories : 2
Yr Blt / Eff Yr Blt : 2009 /
Subdivision : Empire Vista
Recording Date : 06/29/2009
Sale Price : $237,500
Property Tax : $2,584.72
Lot Acres : 0.20
Living Area : 2,909
APN : 140-40-1200
Company
Customer Name : Lisa Mrazek
: First American Title Insurance Company
On : 10/12/2022
5284 E AGAVE VISTA DR
Owner Name : Huntley Steven
Sale Date : 12/17/2019
Total Value : $214,492
Bed / Bath : / 3
Land Use : Sfr
Stories : 1
Yr Blt / Eff Yr Blt : 2008 /
Distance 0.04 Miles
Subdivision : Empire Vista
Recording Date : 12/26/2019
Sale Price : $270,000
Property Tax : $2,150.25
Lot Acres : 0.18
Living Area : 2,151
APN : 140-40-0980
6600 S LANTANA VISTA DR Distance 0.04 Miles

Owner Name : Lozier Douglas
Sale Date : 04/17/2018
Total Value : $183,593
Subdivision : Empire Vista
Recording Date : 04/25/2018
Sale Price : $215,000
Bed / Bath : / 3 Property Tax : $1,865.58
Land Use : Sfr
Stories : 1
Yr Blt / Eff Yr Blt : 2008 /
Lot Acres : 0.18
Living Area : 1,955
APN : 140-40-1430
/
Household
Population Population by Age
Count: 5,242 0 - 11
Estimate Current Year: 5,461 12 - 17
Estimate in 5 Years: 6,431 18 - 24 10.87%
Growth Last 5 Years: 15.38% 25 - 64 47.44%
Growth Last 10 Years: 65 - 74 5.11% 75+
Household Size Household Income
Current Year: 1,559 0 - $25,000 11.48%
Average Current Year: 3.15 $25,000 - $35,000 12.38%
Estimate in 5 Years: 1,712 $35,000 - $50,000 15.07%
Growth Last 5 Years: 7.76% $50,000 - $75,000 26.94%
Growth Last 10 Years: $75,000 - $100,000 13.98%
Male Population: 49.39% Above $100,000 20.14%
Female Population: 50.61% Average Household Income: $56,537
Married People: 49.41%
Unmarried People: 50.59%
Housing
Median Mortgage Payments
Home Values
Under $300: 7.15% Below $100,000: 23.52%
$300 - $799: 24.44% $100,000 - $150,000: 28.68%
$800 - $1,999: 68.41% $150,000 - $200,000: 32.09%
Over $2,000: 0% $200,000 - $300,000: 13.13%
Median Home Value: $145,900 $300,000 - $500,000: 0.58%
Unit Occupied Owner: 77.16% Above $500,000: 2%
Median Mortgage: $769

Rent Payments Year Built
Unit Occupied Renter: 22.84% 1999 - 2000

Median Gross Rent: $1,336 1995 - 1998
Less Than $499 0% 1990 - 1994
$500 - $749 3.73% 1980 - 1989 0.54%
$750 - $999 21.43% 1970 - 1979 9.89%
$1000 and Over 74.84% 1900 - 1969 8.21%
Education Enrollment
Public Pre-Primary School: 0.84% Not Enrolled in School: 62.7%
Private Pre-Primary School: 0.23% Not A High School Graduate: 13.49%
Public School: 33.94% Graduate Of High School: 24.95%
Private School: 3.35% Attended Some College: 25.12%
Public College: 7.54% College Graduate: 28.87%
Private College: 2.55% Graduate Degree: 7.57% Workforce
Occupation: Manager/Prof: 30.68% Private Worker: 63.1%
Technical: Government Worker: 23.12%
Sales: 26.98% Self Employed Worker: 3.99%
Administrative: Unpaid Family Worker: 3.4%
Private House Hold: Farming: 6.06%
Service: 25.4% Skilled:
Protective Services: Blue-Collar: 16.94%
Commute Time
Less Than 15 Min: 12.9%
15 min - 28 min: 55.42%
30 min - 57 min: 27.17%
Over 60 min: 4.51%











SEARCH PARAMETERS
PARCEL: 140-40-1160
PARCEL: 140-40-1160
INSTRUMENT REC DATE
OWNER: MINGUS EDWARD M 13371 2669 08/15/2008 SITUS: 5309 E BEARGRASS VISTA DR TUC
MAIL: 5309 E BEARGRASS VISTA DR TUCSON AZ 85756-8671
PLAT: LOT 00046 BLOCK
LEGAL: EMPIRE VISTA LOT 46
CURRENT TAXES INFORMATION THROUGH 07/28/2022 LAND IMPR EXEMPT RATE AREA SPECIAL DISTRICTS
PRIMARY 18,106 0
SECONDARY 50 20,194
9.1591 1250
3.1602
2022 TOTAL TAX BILLED 1,920.31
2022 TAX AMT TAX DUE INTEREST DATE PAID TOTAL DUE
FIRST HALF 960.16 960.16 0.00 960.16
SECOND HALF 960.15
IMPROVEMENTS
RESIDENTIAL
BLDG SQFT
960.15
LAND USE 01 31
NUMBER OF STORIES
SCHOOL DISTRICT 1250
1 STDLT STORIES HEIGHT
502
201,943
SALES
END SEARCH


































