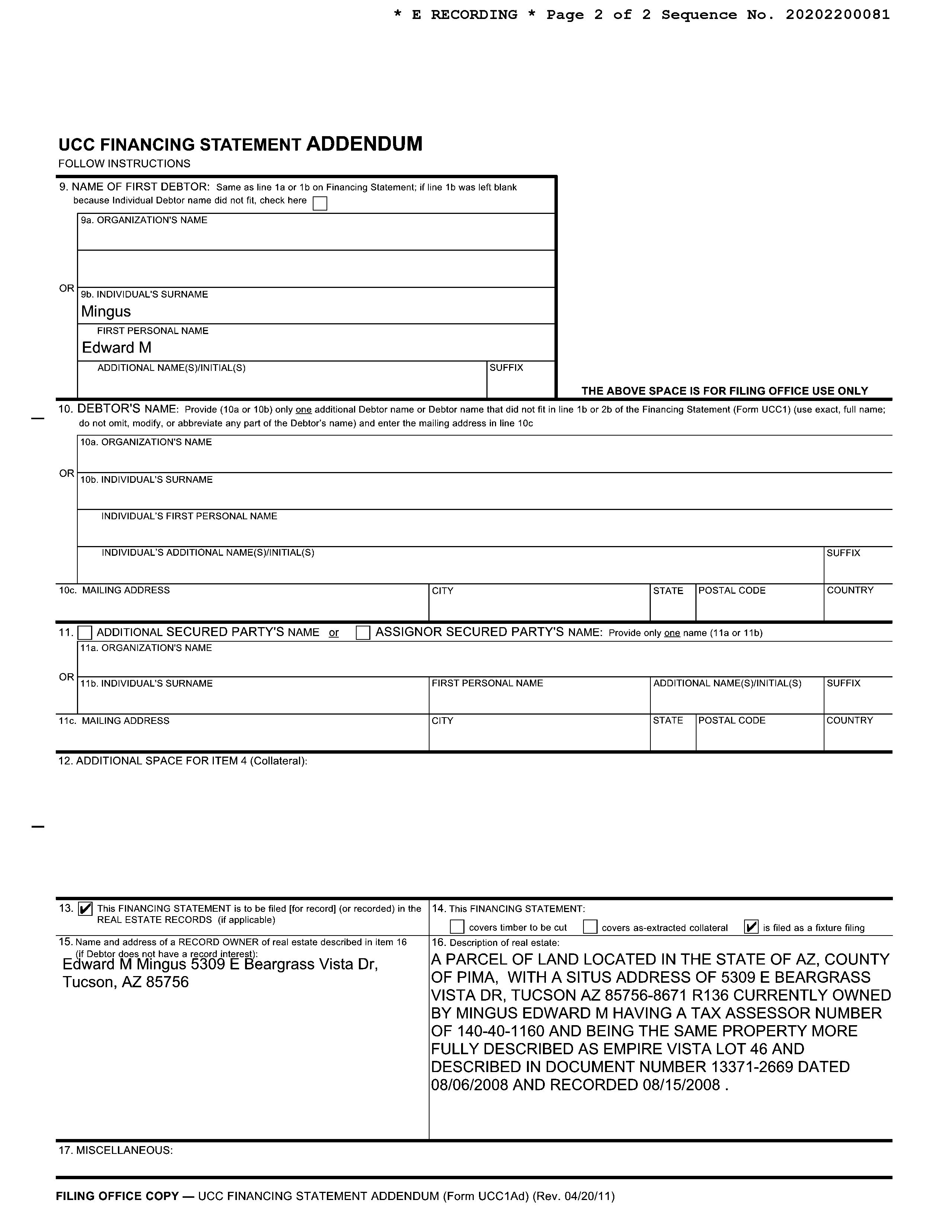
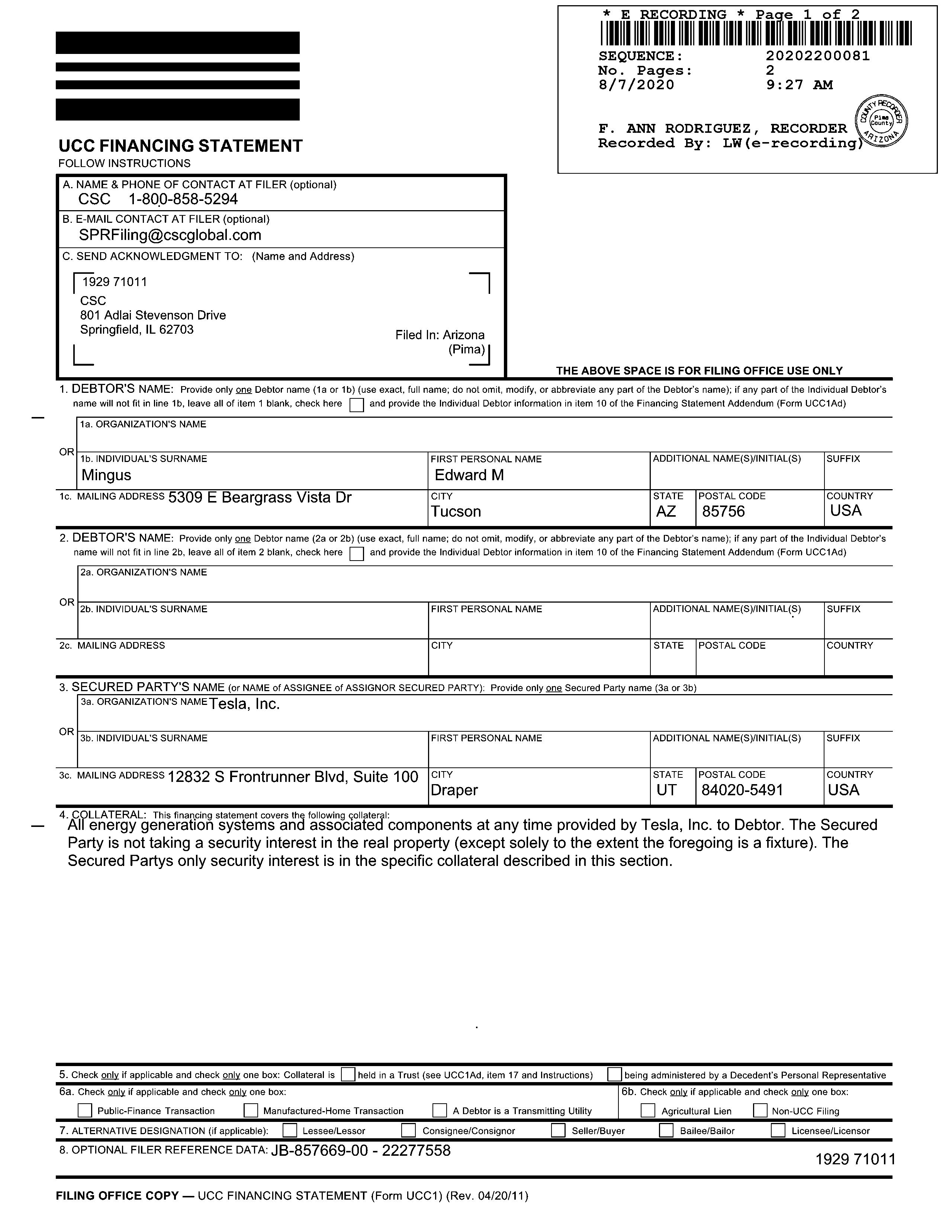
5309 E Beargrass Vista Dr

Page 1

Subject Property 5309 E Beargrass Vista Dr Tucson AZ 85756 APN: 140-40-1160 Data Provided By: First American Title Ins Co © 2022 CoreLogic. All rights reserved

WIRE FRAUD ADVISORY

Criminals are targeting social media and email to steal information. This is particularly common in real estate transactions because sensitive data, including social security numbers, bank account numbers, and wire instructions are often sent by electronic means. We do not want you to be the next victim of wire fraud. Money wired to a fraudulent account is stolen money that typically cannot be recovered. Additionally, there is generally no insurance for this loss. You may never get the money back.

PROTECT YOURSELF

DO NOT TRUST EMAILS CONTAINING WIRE INSTRUCTIONS

• If you receive an email containing wire transfer instructions, immediately call your escrow officer to ensure the validity of the instructions.

DO NOT TRUST EMAILS SEEKING PERSONAL/FINANCIAL INFORMATION

• If you receive an email requesting personal/financial information or asking you to download, click on a link, send, and/or do anything that may seem unusual to you, call your escrow officer immediately prior to acting on the suspicious email to verify the validity of the email.

TRUST YOUR SOURCE OF INFORMATION

• Never direct, accept or allow anyone in the transaction to consent to receiving transfer instructions without a direct personal telephone call to the individual allegedly providing the instructions.

• It is imperative that this call be made to a number obtained in person from the individual or through other reliable means, not from a number provided in the email or the wiring instructions

ONLINE RESOURCES:

There are many online sources that can provide useful information regarding similar topics including, but not limited to, the following sites:

The Federal Bureau of Investigation @ https://www.fbi.gov/scams and safety

The Internet Crime Complaint Center @ www.ic3.gov

The National White Collar Crime Center @ http://www.nw3c.org/research

On Guard Online @ www.onguardonline.gov

VERIFY AND NOTIFY

Before you wire funds to any party (including your lawyer, title agent, mortgage broker, or real estate agent) personally meet them or call a verified telephone number (not the telephone number in the email) to confirm before you act!

Immediately notify your banking institution and Settlement/Title Company if you are a victim of wire fraud.

The undersigned acknowledges receipt of this Wire Fraud Advisory.

Client Date Client Date

LIMITATION OF LIABILITY FOR INFORMATIONAL REPORTS

IMPORTANT -- PLEASE READ CAREFULLY:

This report is not an insured product or service or a representation of the condition of title to real property. It is not an abst ract, legal opinion, opinion of title, title insurance commitment or preliminary report, or any form of Title Insurance or Guaranty. This report is issued exclusively for the benefit of the Applicant therefor and may not be used or relied upon by any other person. This report may not be reproduced in any manner without First American or Title Security's prior written consent. First American or Title Security does not represent or warrant that the information herein is complete or free from error, and the information herein is provided without any warranties of any kind, as-is, and with all faults. As a material part of the consideration given in exchange for the issuance of this report, recipient agrees that First American or Title Security's sole liability for any loss or damage caused by an error or omission due to inaccurate information or negligence in preparing this report shall be limited to the fee charged for the report. Recipient accepts this report with this limitation and agrees that First American or Title Security would not have issued this report but for the limitation of liability described above. First American or Title Security makes no representation or warranty as to the legality or propriety of recipient's use of the information herein.

Provided By:

Disclaimer

This REiSource report is provided "as is" without warranty of any kind, either express or implied, including without limitations any warrantees of merchantability or fitness for a particular purpose. There is no representation of warranty that this information is complete or free from error, and the provider does not assume, and expressly disclaims, any liability to any person or entity for loss or damage caused by errors or omissions in this REiSource report without a title insurance policy.

The information contained in the REiSource report is delivered from your Title Company, who reminds you that you have the right as a consumer to compare fees and serviced levels for Title, Escrow, and all other services associated with property ownership, and to select providers accordingly. Your home is the largest investment you will make in your lifetime and you should demand the very best.

Data
First American Title Ins Co
© 2022 CoreLogic. All rights reserved

Subject Property :   5309 E Beargrass Vista Dr Tucson AZ 85756

Owner Information

Owner Name : Mingus

Mailing Address : 5309 E Beargrass Vista Dr, Tucson AZ 85756-8671 R136

Vesting Codes : / / Revocable Trust

Owner Occupied Indicator : O

Location Information

Legal Description : Empire Vista Lot 46

County : Pima, Az

Census Tract / Block : 41.18 / 1

Township-Range- Sect : 15S-14E-14

Legal Book/Page : 59-92

Legal Lot : 46

Market Area : 111

Owner Transfer Information

Recording/Sale Date : 04/15/2020 / 03/24/2020

Document # : 1060512

Last Market Sale Information

Recording/Sale Date : 08/15/2008 / 08/06/2008

Sale Price : $224,000

Document # : 13371-2669

Deed Type : Special Warranty Deed

Title Company : Title Security Inc

Lender : Universal American Mtg Co Llc

Seller Name : Trust 907

Prior Sale Information

Prior Rec/Sale Date : 09/27/2005 / 09/22/2005

Prior Sale Price : $9,256,500

APN : 140-40-1160

Subdivision : Empire Vista

Map Reference : 14-15S-14E

School District : Sunnyside

Munic/Township : Sunnyside

Deed Type : Quit Claim Deed

1st Mtg Amount/Type : $124,000 / Cnv

1st Mtg Document # : 13371-2672

1st Mtg Term : 30

Price Per SqFt : $103.04

Prior Doc Number : 1880864

Prior Deed Type : Special Warranty Deed

Customer Name : Lisa Mrazek

Customer Company Name : First American Title Insurance Company

On : 10/12/2022

Prepared
© 2022 CoreLogic. All rights reserved

Property Characteristics

Gross Area : 2,174 Garage Capacity : 2 Patio Type : Covered Patio

Living Area : 2,174

Total Rooms : 8

Year Built / Eff : 2008

# of Stories : 1

Parking Type : Garage

Property Information

Land Use : Sfr

County Use : Single Fam Resurban Subd

Tax Information

Total Value : $195,875

Total Taxable Value : $17,244

Assessed Year : 2021

Roof Material : Tile Air Cond : Refrigeration

Heat Type : Forced Air Quality : Fair

Cooling Type : Forced Air Condition : Excellent

Exterior wall : Frame Wood Bath Fixtures : 9

Zoning : CR-3

Lot Acres : 0.19

Property Tax : $1,970.50

Tax Rate Area : 1250

Market Value : $195,875

Tax Year : 2021 Current Assessed Year : 2023

Lot Size : 8,469

State Use : Single Fam Resurban Subd

Current Year Total Value : $23,696

Current Year Improvement Value :

$23,646

Current Year Land Value : $50

Customer Name : Lisa Mrazek Customer Company Name : First American Title Insurance Company Prepared On : 10/12/2022 © 2022 CoreLogic. All rights reserved

Sale Price $224,000 $307,500 $424,000 $354,341

Bldg/Living Area

2338 2166

Price Per Square Foot $103.04 $138 $195 $164.28

Year Built

2014 2007

3,600 13,425 8,501

Assessed Value $195,875 $165,789 $215,782 $195,191

Subject

Sales Analysis Criteria Subject Property Low High Average
2174 1849
2008 2004
Lot Size 8,469
Bedrooms Bathrooms 3 2 4 3 Stories 1 1 2 1 Total
Distance From
0 0.08 0.66 0.37 Customer Name : Lisa Mrazek Customer Company Name : First American Title Insurance Company Prepared On : 10/12/2022 © 2022 CoreLogic. All rights reserved
Map Customer Name : Lisa Mrazek Customer Company Name : First American Title Insurance Company Prepared On : 10/12/2022 © 2022 CoreLogic. All rights reserved

Details of Comparables

Subject Property: 5309 E Beargrass Vista Dr Tucson Az 85756

Owner Name: Mingus / APN / Alternate APN: 140-40-1160 / Deed Type: Special Warranty Deed

Land Use: Sfr

Year Built / Eff: 2008 / Rec. Date / Price: 08/15/2008 / $224,000 Living Area: 2,174

Subdivision / Tract: Empire Vista / Lot Size: 8,469

# of units: Document #: 13371-2669 Bedrooms: Pool:

Total Tax Value: $195,875 Bath(F/H): /

#1   6625 S Lantana Vista Dr Tucson Az 85756

Owner Name: Becerra Laura R / APN / Alternate APN: 140-40-1270 / Deed Type: Warranty Deed

Land Use: Sfr

Year Built / Eff: 2008 / Rec. Date / Price: 07/28/2022 / $424,000 Living Area: 2,174

Subdivision / Tract: Empire Vista / Lot Size: 8,398

# of units:

Document #: 2090237 Bedrooms: Pool: Pool

Total Tax Value: $215,782 Bath(F/H): /

#2   5243 E Beargrass Vista Dr Tucson Az 85756

Owner Name: Brueck Daniel V /Brueck Sharon APN / Alternate APN: 140-40-1100 / Deed Type: Warranty Deed

Land Use: Sfr

Subdivision / Tract: Empire Vista / Lot Size: 8,625 Year Built / Eff: 2008 / Rec. Date / Price: 04/15/2022 / $402,500 Living Area: 2,338

# of units: Document #: 1050479 Bedrooms: Pool: Total Tax Value: $213,138 Bath(F/H): /

#3   6640 S Lantana Vista Dr Tucson Az 85756

Owner Name: Hausfeld Family Trust / APN / Alternate APN: 140-40-1390 / Deed Type: Warranty Deed

Land Use: Sfr

Year Built / Eff: 2007 / Rec. Date / Price: 01/13/2022 / $354,999 Living Area: 2,338

Subdivision / Tract: Empire Vista / Lot Size: 8,958

# of units: Document #: 130348 Bedrooms: Pool:

Total Tax Value: $212,144 Bath(F/H): /

#4   6632 S Willow Vista Dr Tucson Az 85756

Owner Name: Urias Irma N /

APN / Alternate APN: 140-40-1650 / Deed Type: Warranty Deed

Land Use: Sfr

Year Built / Eff: 2007 / Rec. Date / Price: 08/12/2022 / $355,000 Living Area: 2,338

Subdivision / Tract: Empire Vista / Lot Size: 8,546

# of units: Document #: 2240252 Bedrooms: Pool:

Total Tax Value: $212,144 Bath(F/H): /

American Title Insurance

Customer Name : Lisa Mrazek Customer Company Name : First
Company Prepared On : 10/12/2022 © 2022 CoreLogic. All rights reserved

#5   6594 S Quail Vista Dr Tucson Az 85756

Owner Name: Martinez Deedrick /Chavira Angelica

APN / Alternate APN: 140-40-1830 / Deed Type: Warranty Deed

Land Use: Sfr

Year Built / Eff: 2007 / Rec. Date / Price: 01/25/2022 / $360,000 Living Area: 2,198

Subdivision / Tract: Empire Vista / Lot Size: 10,421

# of units:

Document #: 250538 Bedrooms: Pool:

Total Tax Value: $205,898 Bath(F/H): /

#6   6636 S Quail Vista Dr Tucson Az 85756

Owner Name: Lizarraga Rosa G /

APN / Alternate APN: 140-40-1800 / Deed Type: Warranty Deed

Land Use: Sfr

Year Built / Eff: 2007 / Rec. Date / Price: 09/21/2022 / $350,000 Living Area: 1,955

Subdivision / Tract: Empire Vista / Lot Size: 8,829

# of units:

Document #: 2640464 Bedrooms: Pool:

Total Tax Value: $182,786 Bath(F/H): /

#7   5284 E Jasmine Vista Ct Tucson Az 85756

Owner Name: Soto-gonzalez Erick /

APN / Alternate APN: 140-40-1540 / Deed Type: Warranty Deed

Land Use: Sfr

Subdivision / Tract: Empire Vista / Lot Size: 8,151 Year Built / Eff: 2007 / Rec. Date / Price: 09/15/2022 / $405,000 Living Area: 2,338

# of units: Document #: 2580080 Bedrooms:

Pool: Total Tax Value: $212,144 Bath(F/H): /

#8   6596 S Empire Vista Dr Tucson Az 85756

Owner Name: Sonke Lorena L / APN / Alternate APN: 140-40-1920 / Deed Type: Warranty Deed

Land Use: Sfr

Subdivision / Tract: Empire Vista / Lot Size: 10,499 Year Built / Eff: 2007 / Rec. Date / Price: 11/24/2021 / $330,000 Living Area: 2,174

Document #: 3280664 Bedrooms:

Total Tax Value: $194,988 Bath(F/H): /

#9   6601 S Cedar Vista Dr Tucson Az 85756

Owner Name: Ercout Edmond / APN / Alternate APN: 140-40-1940 / Deed Type: Warranty Deed

# of units:

Pool:

Land Use: Sfr

Subdivision / Tract: Empire Vista / Lot Size: 8,993 Year Built / Eff: 2006 / Rec. Date / Price: 05/31/2022 / $367,000 Living Area: 1,955

Document #: 1510871 Bedrooms:

Total Tax Value: $182,010 Bath(F/H): /

#10   5164 E Park Vista Dr Tucson Az 85756

Owner Name: Hernandez Erik W /Saucedo Monica F

APN / Alternate APN: 140-40-2110 / Deed Type: Warranty Deed

# of units:

Pool:

Land Use: Sfr

Year Built / Eff: 2007 / Rec. Date / Price: 11/02/2021 / $345,000 Living Area: 2,338

Subdivision / Tract: Empire Vista / Lot Size: 8,040

# of units: Document #: 3060325 Bedrooms:

Pool:

Total Tax Value: $212,144 Bath(F/H): /

Customer

Company

: Lisa Mrazek

: First American Title Insurance Company

: 10/12/2022

Name
Customer
Name
Prepared On
© 2022 CoreLogic. All rights reserved

#11   5121 E Arguedas Way Tucson Az 85756

Owner Name: Estrada Francisco O /Mojarro Saray

APN / Alternate APN: 140-56-6330 / Deed Type: Warranty Deed

Land Use: Sfr

Year Built / Eff: 2014 / Rec. Date / Price: 06/21/2022 / $340,000 Living Area: 1,849

Subdivision / Tract: Valencia Rho Ii / Lot Size: 4,838

Document #: 1720757

Bedrooms:

Total Tax Value: $197,776 Bath(F/H): /

#12   6877 S Salt Cedar Rd Tucson Az 85756

Owner Name: Eshetu Filcirte E /Haile Andnet S

APN / Alternate APN: 140-56-0300 / Deed Type: Warranty Deed

# of units:

Pool:

Land Use: Sfr

Year Built / Eff: 2006 / Rec. Date / Price: 01/05/2022 / $307,500 Living Area: 2,226

Subdivision / Tract: Valencia Rho / Lot Size: 8,190

# of units:

Document #: 50691 Bedrooms: Pool:

Total Tax Value: $202,288 Bath(F/H): /

#13   4821 E Twinflower Pl Tucson Az 85756

Owner Name: Opendoor Property Trust I /

APN / Alternate APN: 140-39-0960 / Deed Type: Warranty Deed

Land Use: Sfr

Year Built / Eff: 2004 / Rec. Date / Price: 07/13/2022 / $344,900 Living Area: 2,245

Subdivision / Tract: Valstate / Lot Size: 11,616

# of units:

Document #: 1940234 Bedrooms: Pool: Total Tax Value: $169,676 Bath(F/H): /

#14   5038 E Cream Cups Pl Tucson Az 85756

Owner Name: Tse Waiyuen /Wah Yuet

APN / Alternate APN: 140-56-1320 / Deed Type: Warranty Deed

Land Use: Sfr Subdivision / Tract: Valencia Rho / Lot Size: 5,526

Year Built / Eff: 2011 / Rec. Date / Price: 07/29/2022 / $339,000 Living Area: 2,297

# of units:

Pool: Total Tax Value: $191,962 Bath(F/H): /

Document #: 2100605 Bedrooms:

#15   6782 S Thimbleberry Rd Tucson Az 85756

Owner Name: Roman Alberto R /Roman Nohemi M

APN / Alternate APN: 140-39-3750 / Deed Type: Warranty Deed

Land Use: Sfr Subdivision / Tract: Valstate / Lot Size: 11,405

Year Built / Eff: 2005 / Rec. Date / Price: 11/18/2021 / $330,000 Living Area: 1,899

Document #: 3220466 Bedrooms:

Total Tax Value: $174,467 Bath(F/H): /

#16   6916 S Salt Cedar Rd Tucson Az 85756

Owner Name: Donna L Bauman Living Trust /

# of units:

Pool:

APN / Alternate APN: 140-56-0260 / Deed Type: Warranty Deed

Land Use: Sfr Subdivision / Tract: Valencia Rho / Lot Size: 13,100

Year Built / Eff: 2006 / Rec. Date / Price: 01/21/2022 / $328,025 Living Area: 2,226

Document #: 210337 Bedrooms:

Total Tax Value: $208,757 Bath(F/H): /

# of units:

Pool:

Customer

Customer Company

Lisa

: First American Title Insurance

Name :
Mrazek
Name
Company Prepared On : 10/12/2022 © 2022 CoreLogic. All rights reserved

#17   7026 S Brickellbush Ln Tucson Az 85756

Owner Name: Glass John M /

APN / Alternate APN: 140-56-3380 / Deed Type: Warranty Deed

Land Use: Sfr

Year Built / Eff: 2007 / Rec. Date / Price: 03/17/2022 / $330,000 Living Area: 2,015

Subdivision / Tract: Valencia Rho / Lot Size: 3,601

# of units:

Document #: 760266 Bedrooms: Pool:

Total Tax Value: $170,892 Bath(F/H): /

#18   6781 S Pigeonberry Pl Tucson Az 85756

Owner Name: Davila Sergio /Davila Veronica M

APN / Alternate APN: 140-39-3740 / Deed Type: Warranty Deed

Land Use: Sfr

Year Built / Eff: 2005 / Rec. Date / Price: 07/06/2022 / $400,000 Living Area: 2,226

Subdivision / Tract: Valstate / Lot Size: 13,425

# of units:

Document #: 1870449 Bedrooms: Pool:

Total Tax Value: $193,824 Bath(F/H): /

#19   4983 E Chickweed Dr Tucson Az 85756

Owner Name: Anter Shadon A /

APN / Alternate APN: 140-56-1400 / Deed Type: Warranty Deed

Land Use: Sfr

Subdivision / Tract: Valencia Rho / Lot Size: 5,268 Year Built / Eff: 2006 / Rec. Date / Price: 02/14/2022 / $338,900 Living Area: 2,304

# of units:

Document #: 450978 Bedrooms: Pool: Total Tax Value: $185,204 Bath(F/H): /

#20   4783 E Canary Grass Dr Tucson Az 85756

Owner Name: Blue Jayson C / APN / Alternate APN: 140-39-845A / Deed Type: Warranty Deed

Land Use: Sfr

Subdivision / Tract: Valstate 02 / Lot Size: 3,600 Year Built / Eff: 2008 / Rec. Date / Price: 06/08/2022 / $335,000 Living Area: 1,896

# of units:

Document #: 1590452 Bedrooms: Pool:

Total Tax Value: $165,789 Bath(F/H): /

Customer

Lisa Mrazek

: First American Title Insurance Company

Name :
Customer Company Name
Prepared On : 10/12/2022 © 2022 CoreLogic. All rights reserved
Subject Property :   5309 E Beargrass Vista Dr Tucson AZ 85756 Customer Name : Lisa Mrazek Customer Company Name : First American Title Insurance Company Prepared On : 10/12/2022 © 2022 CoreLogic. All rights reserved
Customer Name : Lisa Mrazek Customer Company Name : First American Title Insurance Company Prepared On : 10/12/2022 © 2022 CoreLogic. All rights reserved
Arizona Schools For detailed information and statistics on Arizona schools please go to https://azreportcards.azed.gov/ First American Title Insurance Company, and the operating divisions thereof, make no express or implied warranty respecting the information presented and assume no responsibility for errors or omissions. First American, the eagle logo, First American Title, and firstam.com are registered trademarks or trademarks of First American Financial Corporation and/or its affiliates. ©2021 First American Financial Corporation and/or its affiliates. All rights reserved. NYSE: FAF 05117910421

SHelvetiaRd

05249570321 TUCSON INT'L AIRPORT Air Force WSilverbellRd SSantaRitaRd N M t L emmon Hwy ESascoRd NF 38 W Avra Valley Rd E Grand Va ey DrNAguirre R d N L u c k e R d N W e n t z R d N Wa terman Mounta i n R d N Anway Rd W El Tiro Rd N Trico Rd W Tucker Rd W Rudas l Rd W Manvi e Rd SSanJoaquinRdWBopp Rd W Snyder H l Rd S M a r s e a r R d W Park Rd W Hermans RdW Hermans Rd W Guy St W Bush Rd S G a v e y R d N C a e R i n c o n a d o S W m o R d S Shaw Rd S Sierrita Mountain Rd S K o b R d W TwinButtes Rd W Mcgee Ranch Rd S E s t a n c a D r EDesertDove E Hemlock Dr N Bea r C a n y o n R d W E Camino Del Cerro E Fairmount St S Swan Rd NFrontageRd W Emigh Rd W Fort Lowe Rd N P u m p S t a t ion dR E Nona Rd Ch efButteRd Lo al Ave N Trico Rd S Cattle Tank Rd Evalyn Rd SOwlHead R a n c h Rd GasLineRd S P ec a n R d N T r c o R d W Bayard Rd S S a n d a r o R d W i l l owSpri n gsRd N Dove Mountain Blvd
WAnamax Mine Rd W G a c i a R a n hc R d Road424 WRagged Top Rd W Ruby Star Dr WBritten RanchRd W Pima Mine Rd S Mcgee Ranch R d E Edw n Rd SGuildRd 8 0 NKINNEYRD S PICACHO HWY E BAUMGARTNER RD N S A N D A R I O R D N ANWAY RD W VALENCIA RD W MOORE RD W INA RD N 1 S T A V E E SUNRISE DR E SNYDER RDNSILVERBELLRD N S O L D I E R T R L E RIVER RDE PRINCE RD E SPEEDWAY BLVD S FREEMAN RD E 22ND ST E 22ND ST W IRVINGTON RD S N O G A L E S H W Y W VALENCIA RD SMISSIONRD W SPEEDWAY BLVD S O L D S P A N I S H T RL W NARANJA DR W TWIN PEAKS RD W PICTURE ROCKS RD W MANVILLE RD SKINNEYRD W MILE WIDE RD E SAHUARITA RD N TRICO RD S S A N D A R O R D PARK LINK DR S OLD N O G ALES HW Y S H O U G H T O N R D S L A C A N A D A DRW HELMET PEAK RD WAJOHWY N S W A N R D S KOLB RD S HOUGHTON RD W TANGERINE RD E GRANT RD S H O U G H T O N R D 9 5 WAJOHWY E VALENCIA RD NORACLE R D I10 I-19 77 77 77 86 86 286 10 19 10 10 Corona de Tucson Casas Adobes Catalina Green Valley Oracle Picture Rocks Three Points VailSummit Tanque Verde Tucson Sahuarita Red Rock Saddlebrooke Marana Oro Valley Rillito Summerhaven Willow Canyon Oracle Junction Cortaro Continental Littletown 20 30 13 15 51 39 12 01 01 08 10 16 11 06 PIMA COUNTY School District Information This map is provided for general location only. Please contact school districts for actual street boundaries SCHOOL DISTRICTS 15 AJO UNIFIED 111 N. Well Road, Ajo, AZ 85321 520.387.5618 51 ALTAR VALLEY ELEMENTARY 10105 S. Sasabe Road, Tucson, AZ 85736 520.822.1484 10 AMPHITHEATER UNIFIED 701 W. Wetmore, Tucson, AZ 85705 520.696.5000 16 CATALINA FOOTHILS UNIFIED 2101 E. River Road, Tucson, AZ 85718 520.209.7500 39 CONTINENTAL ELEMENTARY 1991 E. Whitehouse Canyon, Green Valley, AZ 85614 520.625.4581 08 FLOWING WELLS UNIFIED 1556 W. Prince Road, Tucson, AZ 85705 520.696.8800 06 MARANA UNIFIED 11279 W. Grier Road, Marana, AZ 85653 520.682.3243 11 PIMA COUNTY JTED 2855 W. Master Pieces Dr, Tucson, AZ 85741 520.352.5833 30 SAHUARITA UNIFIED 350 W. Sahuarita Road, Sahuarita, AZ 85629 520.625.3502 12 SUNNYSIDE UNIFIED 2238 E. Ginter Road, Tucson, AZ 85706 520.545.2000 13 TANQUE VERDE UNIFIED 2300 N. Tanque Verde Loop, Tucson, AZ 85749 520.749.5751 01 TUCSON UNIFIED 1010 E. 10th Street, Tucson, AZ 85717 520.225.6000 20 VAIL UNIFIED 10701 E. Mary Ann Cleveland Way, Tucson, AZ 85747 520.879.2000 First American Title Insurance Company, and the operating divisions thereof, make no express or implied warranty respecting the information presented and assume no responsibility for errors or omissions. First American, the eagle logo, First American Title, and firstam.com are registered trademarks or trademarks of First American Financial Corporation and/or its affiliates. ©2021 First American Financial Corporation and/or its affiliates. All rights reserved. NYSE: FAF

Public

Elementary Schools

Craycroft Elementary School Distance 0.25 Miles

5455 E. Littletown Rd. Tucson AZ 85706

Telephone : (520) 545-2600

Lowest Grade : Pre-K

School District : Sunnyside Unified District (4407)

Highest Grade : 5th Kindergarten : Yes School Enrollment : Enrollment : 523

Total Expenditure/Student : 153

Gallego Primary Fine Arts Magnet Distance 2.11 Miles 6200 S Hemisphere Pl Tucson AZ 85706

Telephone : (520) 545-3000

Lowest Grade : K

School District : Sunnyside Unified District (4407)

Highest Grade : 3rd

Kindergarten : Yes School Enrollment : Enrollment : 551

Total Expenditure/Student : 153

Los Ninos Elementary School Distance 2.2 Miles

5445 S Alvernon Way Tucson AZ 85706

Telephone : (520) 545-3300

Lowest Grade : Pre-K

School District : Sunnyside Unified District (4407)

Highest Grade : 6th

Kindergarten : Yes School Enrollment : Enrollment : 449

Total Expenditure/Student : 153

Schools :
Customer Name : Lisa Mrazek Customer Company Name : First American Title Insurance Company Prepared On : 10/12/2022 © 2022 CoreLogic. All rights reserved

Middle Schools

Billy Lane Lauffer Middle School

5385 E Littletown Rd Tucson AZ 85756

Telephone : (520) 545-4900

Lowest Grade : 5th

Distance 0.15 Miles

School District : Sunnyside Unified District (4407)

Highest Grade : 8th

Kindergarten : No School Enrollment : Enrollment : 678

Total Expenditure/Student : 153

Gallego Intermediate Fine Arts Magnet School

3700 E Alvord Rd Tucson AZ 85706

Telephone : (520) 545-4700

Lowest Grade : 4th

Distance 2.19 Miles

School District : Sunnyside Unified District (4407)

Highest Grade : 8th

Kindergarten : No School Enrollment : Enrollment : 863

Total Expenditure/Student : 153

High Schools

Desert View High School Distance 1.48 Miles

4101 E Valencia Rd Tucson AZ 85706

Telephone : (520) 545-5100

School District : Sunnyside Unified District (4407)

Highest Grade : 12th School Enrollment : Enrollment : 2083

Lowest Grade : 9th

Total Expenditure/Student : 153 Advanced Placement : No

Pcjted - Desert View High School Distance 1.48 Miles

4101 E Valencia Rd Tucson AZ 85706

Telephone : (520) 545-5100

School District : Pima County Jted (89380)

Highest Grade : 12th School Enrollment : Enrollment : 0

Lowest Grade : 9th

Total Expenditure/Student : Advanced Placement : No

Customer Name : Lisa Mrazek Customer Company Name : First American Title Insurance Company Prepared On : 10/12/2022 © 2022 CoreLogic. All rights reserved

Attractions / Recreation

Name Address Telephone Distance (Miles)

Timothy Jones

Crazy Horse Enterprises

6638 S Empire Vista Dr Tucson Az (520) 440-0191 0.17

6660 S Craycroft Rd Tucson Az (520) 574-0157 0.27

Djraza 5952 E Sanderling Dr Tucson Az (520) 449-0993 0.84

United Sports Arizona 4300 E Los Reales Rd Tucson Az (520) 574-8515 1.57

Banks / Financial

Name Address Telephone Distance (Miles)

Tucson Mobile Loan Signing Agent Llc

6008 E Tercel Dr Tucson Az (520) 245-6864 1.07

Southern Arizona Mortgage Lenders Association 4415 E Drexel Rd Tucson Az (520) 207-0539 1.59

La Tierra Lending L.l.c.

5400 S Palo Verde Rd Tucson Az (520) 807-0579 2.7

Defense Health Agency 4175 S Alamo Ave Bldg 400 Tucson Az (520) 228-5052 3.16

Eating / Drinking

Name Address Telephone Distance (Miles)

City Of Tucson 6465 S Craycroft Rd Tucson Az (520) 574-2263 0.24

I Chief, L.l.c.

The Nail Lounge Of Tucson

5000 E Valencia Rd Tucson Az (520) 889-4422 0.39

4785 E Orchard Grass Dr Tucson Az (520) 622-8234 0.66

Chopstix 4816 E Starflower St Tucson Az (520) 889-7849 0.74

Health Care Services

Name Address Telephone Distance (Miles)

Breanna Bergren

6936 S Blueeyes Dr Tucson Az (207) 249-9991 0.55

Tolliver Brothers, Llc 4815 E Starflower St Tucson Az (520) 870-1711 0.74

Cj Surgical Assisting Llc

Pima County Medical Examiners Office

5963 E Franklin Tale Dr Tucson Az (520) 390-3862 1.12

5950 S Aldorn Dr Tucson Az (520) 808-9024 1.48

Customer Name : Lisa Mrazek

: First American Title Insurance Company

10/12/2022

Local Business
Customer Company Name
Prepared On :
© 2022 CoreLogic. All rights reserved

Hospitality

Name Address Telephone Distance (Miles)

Apache Tears Motel 4603 E Benson Hwy Tucson Az (520) 574-7534 0.95

Rrssp I 10 Wilmot Inc 6161 E Benson Hwy Tucson Az (520) 574-0191 1.49

Scotsman Motel 3526 E Benson Hwy Tucson Az (520) 294-7002 2.55

Apple Nine Hospitality Management, Inc. 6575 S Country Club Rd Ma Tucson Az (520) 741-0505 2.76

Organizations / Associations

Name Address Telephone Distance (Miles)

Praise Chapel Christian Fellowship 5000 E Butterweed Dr Tucson Az (520) 777-6692 0.45

Heather Skay 6810 S Aquiline Dr Tucson Az (520) 270-5737 0.77

Jehovah's Witnesses Palo Verde 4616 E Rex St Tucson Az (520) 574-9711 0.92

Templo Betel Asamblea De Dios 4222 E Coolbrooke Dr Tucson Az (520) 834-7336 1.46

Personal Services

Name Address Telephone Distance (Miles)

Leisure Pool & Spa Svc 7068 S Brickellbush Ln Tucson Az (520) 393-9933 0.7

Alist Personal Training 7039 S Sweetbush Ave Tucson Az (520) 409-2615 0.77

Body And Mind Fitness L.l.c. 4804 E Desert Thorn Dr Tucson Az (520) 603-9211 0.85

Health, Heart, And Fitness L.l.c. 5873 E Cedarbird Dr Tucson Az (520) 256-0924 0.94

Shopping

Name Address Telephone Distance (Miles)

Valero Corner Store 4685 E Valencia Rd Tucson Az (520) 574-2069 0.65

Jack's Gov't Surplus Inc 5181 E Drexel Rd Tucson Az (520) 574-0300 1.1

A & M Fencing Inc 5130 E Canada St Tucson Az (520) 574-7558 1.35

Levin & Sons 6652 S Memorial Pl Tucson Az (520) 574-9610 1.47

Name : Lisa Mrazek

: First American Title Insurance Company

Customer
Customer Company Name
Prepared On : 10/12/2022 © 2022 CoreLogic. All rights reserved

6565 S LANTANA VISTA DR Distance 0.03 Miles

Owner Name : Verduzco Edgar

Sale Date : 11/20/2019

Total Value : $183,593

Bed / Bath : / 3

Land Use : Sfr

Stories : 1

Yr Blt / Eff Yr Blt : 2008 /

Subdivision : Empire Vista

Recording Date : 11/27/2019

Sale Price  : $230,000

Property Tax : $1,865.58

Lot Acres : 0.19

Living Area : 1,955

APN : 140-40-1210

6590 S LANTANA VISTA DR Distance 0.03 Miles

Owner Name : Rollins Dennis Kay

Sale Date : 09/16/2015

Total Value : $183,593

Bed / Bath : / 3

Land Use : Sfr

Stories : 1

Yr Blt / Eff Yr Blt : 2008 /

Subdivision : Empire Vista

Recording Date : 10/14/2015

Sale Price  : $154,900

Property Tax : $1,865.58

Lot Acres : 0.19

Living Area : 1,955

APN : 140-40-1440

5289 E BEARGRASS VISTA DR Distance 0.03 Miles

Owner Name : Gomez Saul P

Sale Date : 06/20/2008

Total Value : $225,548

Bed / Bath : / 4

Land Use : Sfr

Stories : 2

Yr Blt / Eff Yr Blt : 2008 /

Subdivision : Empire Vista

Recording Date : 06/27/2008

Sale Price  : $252,500

Property Tax : $2,230.58

Lot Acres : 0.20

Living Area : 2,909

APN : 140-40-1140

6575 S LANTANA VISTA DR Distance 0.03 Miles

Owner Name : Kawa Djeny

Sale Date : 08/27/2021

Total Value : $225,548

Bed / Bath : / 4

Land Use : Sfr

Stories : 2

Yr Blt / Eff Yr Blt : 2008 /

Subdivision : Empire Vista

Recording Date : 09/03/2021

Sale Price  : $350,000

Property Tax : $2,230.58

Lot Acres : 0.19

Living Area : 2,909

APN : 140-40-1220

Company

Customer Name : Lisa Mrazek

: First American Title Insurance Company

On : 10/12/2022

Customer
Name
Prepared
© 2022 CoreLogic. All rights reserved

5304 E AGAVE VISTA DR Distance 0.03 Miles

Owner Name : 5304 E Agave Vista Dr Llc

Sale Date : 08/27/2008

Total Value : $207,812

Bed / Bath : / 4

Land Use : Sfr

Stories : 2

Yr Blt / Eff Yr Blt : 2008 /

Subdivision : Empire Vista

Recording Date : 08/29/2008

Sale Price  : $245,000

Property Tax : $2,417.59

Lot Acres : 0.19

Living Area : 2,713

APN : 140-40-0960

5294 E AGAVE VISTA DR Distance 0.03 Miles

Owner Name : Nguyen Tommy Khoi

Sale Date : 07/02/2008

Total Value : $245,456

Bed / Bath : / 4

Subdivision : Empire Vista

Recording Date : 07/31/2008

Sale Price  : $265,000

Property Tax : $2,556.56

Land Use : Sfr Lot Acres : 0.18

Stories : 2

Yr Blt / Eff Yr Blt : 2008 /

Living Area : 2,909

APN : 140-40-0970

6585 S LANTANA VISTA DR Distance 0.04 Miles

Owner Name : Pujol Lucia S

Sale Date : 06/16/2008

Total Value : $183,593

Bed / Bath : / 3

Land Use : Sfr

Stories : 1

Yr Blt / Eff Yr Blt : 2008 /

Subdivision : Empire Vista

Recording Date : 06/26/2008

Sale Price  : $213,000

Property Tax : $1,865.58

Lot Acres : 0.19

Living Area : 1,955

APN : 140-40-1230

6545 S LANTANA VISTA DR Distance 0.04 Miles

Owner Name : 6545 S Lantana Vista Dr Llc

Sale Date : 06/26/2009

Total Value : $226,673

Bed / Bath : / 4

Land Use : Sfr

Stories : 2

Yr Blt / Eff Yr Blt : 2009 /

Subdivision : Empire Vista

Recording Date : 06/29/2009

Sale Price  : $237,500

Property Tax : $2,584.72

Lot Acres : 0.20

Living Area : 2,909

APN : 140-40-1200

Company

Customer Name : Lisa Mrazek

: First American Title Insurance Company

On : 10/12/2022

Customer
Name
Prepared
© 2022 CoreLogic. All rights reserved

5284 E AGAVE VISTA DR

Owner Name : Huntley Steven

Sale Date : 12/17/2019

Total Value : $214,492

Bed / Bath : / 3

Land Use : Sfr

Stories : 1

Yr Blt / Eff Yr Blt : 2008 /

Distance 0.04 Miles

Subdivision : Empire Vista

Recording Date : 12/26/2019

Sale Price  : $270,000

Property Tax : $2,150.25

Lot Acres : 0.18

Living Area : 2,151

APN : 140-40-0980

6600 S LANTANA VISTA DR Distance 0.04 Miles

Owner Name : Lozier Douglas

Sale Date : 04/17/2018

Total Value : $183,593

Subdivision : Empire Vista

Recording Date : 04/25/2018

Sale Price  : $215,000

Bed / Bath : / 3 Property Tax : $1,865.58

Land Use : Sfr

Stories : 1

Yr Blt / Eff Yr Blt : 2008 /

Lot Acres : 0.18

Living Area : 1,955

APN : 140-40-1430

Customer Name : Lisa Mrazek Customer Company Name : First American Title Insurance Company Prepared On : 10/12/2022 © 2022 CoreLogic. All rights reserved

/

Household

Population Population by Age

Count: 5,242 0 - 11

Estimate Current Year: 5,461 12 - 17

Estimate in 5 Years: 6,431 18 - 24 10.87%

Growth Last 5 Years: 15.38% 25 - 64 47.44%

Growth Last 10 Years: 65 - 74 5.11% 75+

Household Size Household Income

Current Year: 1,559 0 - $25,000 11.48%

Average Current Year: 3.15 $25,000 - $35,000 12.38%

Estimate in 5 Years: 1,712 $35,000 - $50,000 15.07%

Growth Last 5 Years: 7.76% $50,000 - $75,000 26.94%

Growth Last 10 Years: $75,000 - $100,000 13.98%

Male Population: 49.39% Above $100,000 20.14%

Female Population: 50.61% Average Household Income: $56,537

Married People: 49.41%

Unmarried People: 50.59%

Housing

Median Mortgage Payments

Home Values

Under $300: 7.15% Below $100,000: 23.52%

$300 - $799: 24.44% $100,000 - $150,000: 28.68%

$800 - $1,999: 68.41% $150,000 - $200,000: 32.09%

Over $2,000: 0% $200,000 - $300,000: 13.13%

Median Home Value: $145,900 $300,000 - $500,000: 0.58%

Unit Occupied Owner: 77.16% Above $500,000: 2%

Median Mortgage: $769

Census Tract / block: 41.18
1     Year: 2018
Customer Name : Lisa Mrazek Customer Company Name : First American Title Insurance Company Prepared On : 10/12/2022 © 2022 CoreLogic. All rights reserved

Rent Payments Year Built

Unit Occupied Renter: 22.84% 1999 - 2000

Median Gross Rent: $1,336 1995 - 1998

Less Than $499 0% 1990 - 1994

$500 - $749 3.73% 1980 - 1989 0.54%

$750 - $999 21.43% 1970 - 1979 9.89%

$1000 and Over 74.84% 1900 - 1969 8.21%

Education Enrollment

Public Pre-Primary School: 0.84% Not Enrolled in School: 62.7%

Private Pre-Primary School: 0.23% Not A High School Graduate: 13.49%

Public School: 33.94% Graduate Of High School: 24.95%

Private School: 3.35% Attended Some College: 25.12%

Public College: 7.54% College Graduate: 28.87%

Private College: 2.55% Graduate Degree: 7.57% Workforce

Occupation: Manager/Prof: 30.68% Private Worker: 63.1%

Technical: Government Worker: 23.12%

Sales: 26.98% Self Employed Worker: 3.99%

Administrative: Unpaid Family Worker: 3.4%

Private House Hold: Farming: 6.06%

Service: 25.4% Skilled:

Protective Services: Blue-Collar: 16.94%

Commute Time

Less Than 15 Min: 12.9%

15 min - 28 min: 55.42%

30 min - 57 min: 27.17%

Over 60 min: 4.51%

Customer Name : Lisa Mrazek Customer Company Name : First American Title Insurance Company Prepared On : 10/12/2022 © 2022 CoreLogic. All rights reserved
Customer Name : Lisa Mrazek Customer Company Name : First American Title Insurance Company Prepared On : 10/12/2022 © 2022 CoreLogic. All rights reserved
Customer Name : Lisa Mrazek Customer Company Name : First American Title Insurance Company Prepared On : 10/12/2022 © 2022 CoreLogic. All rights reserved
Customer Name : Lisa Mrazek Customer Company Name : First American Title Insurance Company Prepared On : 10/12/2022 © 2022 CoreLogic. All rights reserved

SEARCH PARAMETERS

PARCEL:  140-40-1160

PARCEL: 140-40-1160

INSTRUMENT REC DATE

OWNER: MINGUS EDWARD M     13371 2669 08/15/2008  SITUS: 5309 E BEARGRASS VISTA DR TUC

MAIL: 5309 E BEARGRASS VISTA DR  TUCSON AZ 85756-8671

PLAT: LOT 00046 BLOCK

LEGAL: EMPIRE VISTA LOT 46

CURRENT TAXES INFORMATION THROUGH 07/28/2022 LAND IMPR EXEMPT RATE AREA SPECIAL DISTRICTS

PRIMARY  18,106  0

SECONDARY  50  20,194

9.1591  1250

3.1602

2022 TOTAL TAX BILLED 1,920.31

2022  TAX AMT TAX DUE INTEREST DATE PAID TOTAL DUE

FIRST HALF  960.16  960.16  0.00  960.16

SECOND HALF  960.15

IMPROVEMENTS

RESIDENTIAL

BLDG SQFT

960.15

LAND USE  01 31

NUMBER OF STORIES

SCHOOL DISTRICT  1250

1 STDLT STORIES HEIGHT

502

201,943

SALES

END SEARCH

+ FIRST AMERICAN TITLE, FC0, LMRA PIMA, AZ 10/12/2022  11:38AM  RL13  INVESTIGATIVE SEARCH RESULTS PAGE 1 OF 1
0
0
960.15  0.00
TOTAL CURRENT TAXES DUE 10/22 1,920.31 11/22 1,933.11 (ESTIMATED)
2,174 FULL CASH VALUE  202,445 YEAR BUILT  2008
1.0 LOT SIZE
0
EXTERIOR WALLS  FRAME WOOD LAND FULL CASH VALUE
GRADE MATERIALS IMPR FULL CASH VALUE
SALE DATE SALE AMOUNT INSTRUMENT TYPE SELLER NAME VALIDITY 08/15/2008 224,000    13371 2669 SW TITLE SECURITY T907 ADDITIONAL PROPERTY INFORMATION STANDARD LAND USE: SFR

Turn static files into dynamic content formats.

Create a flipbook
Issuu converts static files into: digital portfolios, online yearbooks, online catalogs, digital photo albums and more. Sign up and create your flipbook.
5309 E Beargrass Vista Dr by FirstAmAZ - Issuu