4500 W Placita Roca Chica

Page 1

4500W.PlacitaRocaChica Tucson,AZ85745

LIMITATION OF LIABILITY FOR INFORMATIONAL REPORTS

IMPORTANT -- PLEASE READ CAREFULLY:

This report is not an insured product or service or a representation of the condition of title to real property. It is not an abst ract, legal opinion, opinion of title, title insurance commitment or preliminary report, or any form of Title Insurance or Guaranty. This report is issued exclusively for the benefit of the Applicant therefor and may not be used or relied upon by any other person. This report may not be reproduced in any manner without First American or Title Security's prior written consent. First American or Title Security does not represent or warrant that the information herein is complete or free from error, and the information herein is provided without any warranties of any kind, as-is, and with all faults. As a material part of the consideration given in exchange for the issuance of this report, recipient agrees that First American or Title Security's sole liability for any loss or damage caused by an error or omission due to inaccurate information or negligence in preparing this report shall be limited to the fee charged for the report. Recipient accepts this report with this limitation and agrees that First American or Title Security would not have issued this report but for the limitation of liability described above. First American or Title Security makes no representation or warranty as to the legality or propriety of recipient's use of the information herein.

Ins Co © 2022 CoreLogic. All rights reserved
Subject Property 4500 W Placita Roca Chica Tucson AZ 85745 APN: 101-21-1670 Data Provided By: First American Title

Disclaimer

This REiSource report is provided "as is" without warranty of any kind, either express or implied, including without limitations any warrantees of merchantability or fitness for a particular purpose. There is no representation of warranty that this information is complete or free from error, and the provider does not assume, and expressly disclaims, any liability to any person or entity for loss or damage caused by errors or omissions in this REiSource report without a title insurance policy.

The information contained in the REiSource report is delivered from your Title Company, who reminds you that you have the right as a consumer to compare fees and serviced levels for Title, Escrow, and all other services associated with property ownership, and to select providers accordingly. Your home is the largest investment you will make in your lifetime and you should demand the very best.

Data Provided By: First American Title Ins Co
© 2022 CoreLogic. All rights reserved

Subject Property :   4500 W Placita Roca Chica Tucson AZ 85745

Owner Information

Owner Name : Novum Terranvm Llc Mailing Address : Po Box 77836, Tucson AZ 85703-7836 B026

Location Information

Legal Description : Las Rocas Lot 13

County : Pima, Az

Census Tract / Block : 44.18 / 2

Township-Range- Sect : 13S-13E-18

Legal Book/Page : 63-56

APN : 101-21-1670

Subdivision : Las Rocas

Map Reference : 18-13S-13E

School District : Flowing Wells

Munic/Township : Flowing Wells Market Area : 21

Legal Lot : 13

Owner Transfer Information

Recording/Sale Date : 03/29/2021 / 03/25/2021

Deed Type : Warranty Deed Document # : 880637

Property Information

Land Use : Vacant Land (nec) Zoning : SR Lot Size : 47,157

County Use : Incomplete Subd Pcl-urb Subd Lot Acres : 1.08

Tax Information

Total Value : $59,627

Total Taxable Value : $5,930

Assessed Year : 2021

Tax Year : 2021

Property Tax : $987.89

Tax Rate Area : 0806

Market Value : $59,627

State Use : Incomplete Subd Pcl-urb Subd

Current Assessed Year : 2023

Current Year Total Value : $10,435

Current Year Land Value : $10,435

Customer Name : Lisa Mrazek

Customer Company Name : First American Title Insurance Company Prepared On : 12/01/2022

© 2022 CoreLogic. All rights reserved
Sales Analysis Criteria Subject Property Low High Average
Price
Bldg/Living Area
Per Square Foot
Year Built
Size
Bedrooms Bathrooms Stories
Value
Customer
Title Insurance
Prepared
© 2022 CoreLogic. All rights reserved
Sale
$130,000 $472,000 $259,917
Price
$2 $10 $4.32
Lot
47,157 42,503 77,481 52,953
Total Assessed
$59,627 $29,814 $59,627 $43,427 Distance From Subject 0 0.21 0.82 0.59
Name : Lisa Mrazek Customer Company Name : First American
Company
On : 12/01/2022
Map
©
All rights reserved
Customer
Name : Lisa Mrazek
Customer
Company Name : First American Title Insurance Company Prepared On : 12/01/2022
2022 CoreLogic.

Details of Comparables

Subject Property: 4500 W Placita Roca Chica Tucson Az 85745

Owner Name: Novum Terranvm Llc / APN / Alternate APN: 101-21-1670 / Deed Type: Land Use: Vacant Land (nec) Subdivision / Tract: Las Rocas / Lot Size: 47,157 Year Built / Eff: / Rec. Date / Price: / $ Living Area: # of units: Document #: Bedrooms: Pool: Total Tax Value: $59,627 Bath(F/H): /

#1

4357 W Placita Tres Rocas Tucson Az 85745

Owner Name: Brown Victor /Brown Cindy APN / Alternate APN: 101-21-1710 / Deed Type: Warranty Deed Land Use: Vacant Land (nec) Subdivision / Tract: Las Rocas / Lot Size: 55,877 Year Built / Eff: / Rec. Date / Price: 02/11/2022 / $175,000 Living Area: # of units: Document #: 420249 Bedrooms: Pool: Total Tax Value: $59,627 Bath(F/H): /

#2   4350 W Placita Roca Escondida Tucson Az 85745

Owner Name: Bennett Alberto /Bennett Monica APN / Alternate APN: 101-21-1730 / Deed Type: Warranty Deed Land Use: Vacant Land (nec) Subdivision / Tract: Las Rocas / Lot Size: 77,481 Year Built / Eff: / Rec. Date / Price: 01/26/2022 / $167,500 Living Area: # of units: Document #: 260278 Bedrooms: Pool: Total Tax Value: $59,627 Bath(F/H): /

#3   5001 N Wild Life Dr Tucson Az 85745

Owner Name: Davila Bldg & Excavating Llc / APN / Alternate APN: 101-21-1410 / Deed Type: Warranty Deed Land Use: Vacant Land (nec) Subdivision / Tract: Gracious Estates / Lot Size: 51,217 Year Built / Eff: / Rec. Date / Price: 03/25/2022 / $130,000 Living Area: # of units: Document #: 840612 Bedrooms: Pool: Total Tax Value: $31,677 Bath(F/H): /

#4   5073 N Wild Life Dr Tucson Az 85745

Owner Name: Ballesteros Rubi R /Sanchez Michel APN / Alternate APN: 101-21-1470 / Deed Type: Warranty Deed Land Use: Vacant Land (nec) Subdivision / Tract: Gracious Estates / Lot Size: 45,414 Year Built / Eff: / Rec. Date / Price: 03/18/2022 / $460,000 Living Area: # of units: Document #: 770293 Bedrooms: Pool: Total Tax Value: $29,814 Bath(F/H): /

Customer Name : Lisa Mrazek Customer Company Name : First American Title Insurance Company
© 2022 CoreLogic. All rights reserved
Prepared On : 12/01/2022

#5   5086 N Wild Life Dr Tucson Az 85745

Owner Name: Sanchez Issak A /Sanchez Gabriela

APN / Alternate APN: 101-21-1480 / Deed Type: Warranty Deed Land Use: Vacant Land (nec) Subdivision / Tract: Gracious Estates / Lot Size: 45,226 Year Built / Eff: / Rec. Date / Price: 02/10/2022 / $472,000 Living Area: # of units: Document #: 410729 Bedrooms: Pool: Total Tax Value: $29,814 Bath(F/H): /

#6   5030 N Wild Life Dr Tucson Az 85745

Owner Name: Improve & Design Homes Llc / APN / Alternate APN: 101-21-1520 / Deed Type: Warranty Deed Land Use: Vacant Land (nec) Subdivision / Tract: Gracious Estates / Lot Size: 42,503 Year Built / Eff: / Rec. Date / Price: 08/03/2022 / $155,000 Living Area: # of units: Document #: 2150292 Bedrooms: Pool: Total Tax Value: $50,000 Bath(F/H): /

Customer Name : Lisa Mrazek Customer Company Name : First American Title Insurance Company
© 2022 CoreLogic. All rights reserved
Prepared On : 12/01/2022
Customer
© 2022 CoreLogic. All rights reserved
Subject Property :   4500 W Placita Roca Chica Tucson AZ 85745
Name : Lisa Mrazek Customer Company Name : First American Title Insurance Company Prepared On : 12/01/2022

Customer Name : Lisa Mrazek

Customer Company Name : First American Title Insurance Company Prepared On : 12/01/2022

2022 CoreLogic.

©
All rights reserved

Arizona Schools

For detailed information and statistics on Arizona schools please go to https://azreportcards.azed.gov/ First American Title Insurance Company, and the operating divisions thereof, make no express or implied warranty respecting the information presented and assume no responsibility for errors or omissions. First American, the eagle logo, First American Title, and firstam.com are registered trademarks or trademarks of First American Financial Corporation and/or its affiliates. ©2021 First American Financial Corporation and/or its affiliates. All rights reserved. NYSE: FAF 05117910421

520.625.3502

SUNNYSIDE UNIFIED 2238 E. Ginter Road, Tucson, AZ 85706 520.545.2000

TANQUE VERDE UNIFIED 2300 N. Tanque Verde Loop, Tucson, AZ 85749 520.749.5751 01 TUCSON UNIFIED 1010 E. 10th Street, Tucson, AZ 85717 520.225.6000

VAIL UNIFIED 10701 E. Mary Ann Cleveland Way, Tucson, AZ 85747 520.879.2000

05249570321 TUCSON INT'L AIRPORT Air Force WSilverbellRd SSantaRitaRd N M t L emmon Hwy ESascoRd NF 38 W Avra Valley Rd E Grand Va ey Dr NAguirre R d N L u c k e R d N W e n t z R d N Wa terman Mounta i n R d N Anway Rd W El Tiro Rd N Trico Rd W Tucker Rd W Rudas l Rd W Manvi e Rd SSanJoaquinRd WBopp Rd W Snyder H l Rd S M a r s e a r R d W Park Rd W Hermans Rd W Hermans Rd W Guy St W Bush Rd S G a v e y R d N C a e R i n c o n a d o S W m o R d S Shaw Rd S Sierrita Mountain Rd S K o b R d W TwinButtes Rd W Mcgee Ranch Rd S E s t a n c a D r EDesertDove E Hemlock Dr N Bea r C a n y o n R d W E Camino Del Cerro E Fairmount St S Swan Rd NFrontageRd W Emigh Rd W Fort Lowe Rd N P u m p S t a t ion dR E Nona Rd Ch efButteRd Lo al Ave N Trico Rd S Cattle Tank Rd Evalyn Rd SOwlHead R a n c h Rd GasLineRd S P ec a n R d N T r c o R d W Bayard Rd S S a n d a r o R d W i l l owSpri n gsRd N Dove Mountain Blvd SHelvetiaRd WAnamax Mine Rd W G a c i a R a n hc R d Road424 WRagged Top Rd W Ruby Star Dr WBritten RanchRd W Pima Mine Rd S Mcgee Ranch R d E Edw n Rd SGuildRd 8 0 NKINNEYRD S PICACHO HWY E BAUMGARTNER RD N S A N D A R I O R D N ANWAY RD W VALENCIA RD W MOORE RD W INA RD N 1 S T A V E E SUNRISE DR E SNYDER RD NSILVERBELLRD N S O L D I E R T R L E RIVER RD E PRINCE RD E SPEEDWAY BLVD S FREEMAN RD E 22ND ST E 22ND ST W IRVINGTON RD S N O G A L E S H W Y W VALENCIA RD SMISSIONRD W SPEEDWAY BLVD S O L D S P A N I S H T RL W NARANJA DR W TWIN PEAKS RD W PICTURE ROCKS RD W MANVILLE RD SKINNEYRD W MILE WIDE RD E SAHUARITA RD N TRICO RD S S A N D A R O R D PARK LINK DR S OLD N O G ALES HW Y S H O U G H T O N R D S L A C A N A D A DR W HELMET PEAK RD WAJOHWY N S W A N R D S KOLB RD S HOUGHTON RD W TANGERINE RD E GRANT RD S H O U G H T O N R D 9 5 WAJOHWY E VALENCIA RD NORACLE R D I10 I-19 77 77 77 86 86 286 10 19 10 10 Corona de Tucson Casas Adobes Catalina Green Valley Oracle Picture Rocks Three Points Vail Summit Tanque Verde Tucson Sahuarita Red Rock Saddlebrooke Marana Oro Valley Rillito Summerhaven Willow Canyon Oracle Junction Cortaro Continental Littletown 20 30 13 15 51 39 12 01 01 08 10 16 11 06 PIMA COUNTY School District Information This map is provided for general location only. Please contact school districts for actual street boundaries SCHOOL DISTRICTS 15 AJO UNIFIED 111 N. Well Road, Ajo, AZ 85321 520.387.5618 51 ALTAR VALLEY ELEMENTARY 10105 S. Sasabe Road, Tucson, AZ 85736 520.822.1484 10 AMPHITHEATER UNIFIED 701 W. Wetmore, Tucson, AZ 85705 520.696.5000 16 CATALINA FOOTHILS UNIFIED 2101 E. River Road, Tucson, AZ 85718 520.209.7500 39 CONTINENTAL ELEMENTARY 1991 E. Whitehouse Canyon, Green Valley, AZ 85614
08 FLOWING WELLS UNIFIED 1556 W. Prince Road, Tucson, AZ 85705 520.696.8800 06 MARANA UNIFIED 11279 W. Grier Road, Marana, AZ 85653
11 PIMA COUNTY JTED 2855 W. Master Pieces Dr, Tucson, AZ 85741
30 SAHUARITA UNIFIED 350 W. Sahuarita Road,
First American Title Insurance Company, and the operating divisions thereof, make no express or implied warranty respecting the information presented and assume no responsibility for errors or omissions. First American, the eagle logo, First American Title, and firstam.com are registered trademarks or trademarks of First American Financial Corporation and/or its affiliates. ©2021 First American Financial Corporation and/or its affiliates. All rights reserved. NYSE: FAF
520.625.4581
520.682.3243
520.352.5833
Sahuarita, AZ 85629
12
13
20

Public Schools : Elementary Schools

Robins Elementary School Distance 1.74 Miles 3939 N Magnetite Ln Tucson AZ 85745

Telephone : (520) 908-4300

School District : Tucson Unified District (4403)

Lowest Grade : Pre-K Highest Grade : 8th Kindergarten : Yes School Enrollment : Enrollment : 473 Total Expenditure/Student : 200

Laguna Elementary School Distance 1.81 Miles 5001 N Shannon Rd Tucson AZ 85705

Telephone : (520) 696-8450

School District : Flowing Wells Unified District (4405)

Lowest Grade : K Highest Grade : 6th Kindergarten : Yes School Enrollment : Enrollment : 378 Total Expenditure/Student : 48

J Robert Hendricks Elementary School Distance 2 Miles 3400 W Orange Grove Rd Tucson AZ 85741

Telephone : (520) 696-8400

School District : Flowing Wells Unified District (4405)

Lowest Grade : K Highest Grade : 6th Kindergarten : Yes School Enrollment : Enrollment : 542 Total Expenditure/Student : 48

Customer Name : Lisa Mrazek
© 2022 CoreLogic. All rights reserved
Customer Company Name : First American Title Insurance Company Prepared On : 12/01/2022

Carden Of Tucson

5260 N Royal Palm Dr Tucson AZ 85705

Telephone : (520) 293-6661

Distance 2.18 Miles

School District : Carden Of Tucson Inc. (78858)

Lowest Grade : K Highest Grade : 8th Kindergarten : Yes School Enrollment : Enrollment : 68

Total Expenditure/Student :

Middle Schools

Flowing Wells Junior High School

4545 N La Cholla Blvd Tucson AZ 85705

Telephone : (520) 696-8550

Distance 2.92 Miles

School District : Flowing Wells Unified District (4405)

Lowest Grade : 7th Highest Grade : 8th Kindergarten : No School Enrollment : Enrollment : 847 Total Expenditure/Student : 48

High Schools

Mountain Rose Academy Distance 1.83 Miles

3686 W Orange Grove Rd Ste 192 Tucson AZ 85741

Telephone : (520) 797-4884

School District : Mountain Rose Academy Inc. (10879)

Lowest Grade : 9th Highest Grade : 12th School Enrollment : Enrollment : 268

Total Expenditure/Student : Advanced Placement : No

Customer Name : Lisa Mrazek
© 2022 CoreLogic. All rights reserved
Customer Company Name : First American Title Insurance Company Prepared On : 12/01/2022

Pcjted - Central Campus

2855 W Master Pieces Dr Tucson AZ 85741

Telephone : (602) 352-5833

Distance 2.03 Miles

School District : Pima County Jted (89380)

Lowest Grade : 9th Highest Grade : 12th School Enrollment : Enrollment : 40

Total Expenditure/Student : Advanced Placement : No

Pima County Jted Cosmetology Distance 2.08 Miles 5850 N Seanifer Dr Tucson AZ 85741

Telephone : (520) 352-5833

School District : Pima County Jted (89380)

Highest Grade : 12th School Enrollment : Enrollment : 0

Lowest Grade : 11th

Total Expenditure/Student : Advanced Placement : No

Sentinel Peak High School Distance 2.36 Miles 4125 W Aerie Dr Tucson AZ 85741

Telephone : (520) 696-8900

School District : Flowing Wells Unified District (4405)

Lowest Grade : 9th Highest Grade : 12th School Enrollment : Enrollment : 97

Total Expenditure/Student : 48 Advanced Placement : No

Customer Name : Lisa Mrazek
© 2022 CoreLogic. All rights reserved
Customer Company Name : First American Title Insurance Company Prepared On : 12/01/2022

Attractions / Recreation

Name Address

Telephone Distance (Miles)

Entertainment Invtns 5635 N Sunray Dr Tucson Az (520) 743-1339 0.99

Arizona Premier Volleyball Inc. 3990 N Pseo De Las Cnchas Tucson Az (520) 310-8640 1.03

Two Goats Entertainment Llc 5001 W Placita De Los Vw Tucson Az (520) 867-8451 1.1

Karen L Olson 3154 W Jusnic Cir Tucson Az (520) 490-2421 1.55

Banks / Financial

Name Address Telephone Distance (Miles)

Bank Of The West 3775 W Orange Grove Rd Tucson Az (520) 575-7262 1.69

Brookside International 2776 W Sandbrook Ln Tucson Az (520) 907-9007 2.11

Edwards Financial Services 2541 W Lazybrook Dr Tucson Az (520) 977-6498 2.31

Qc Financial Services, Inc. 3930 W Ina Rd Ste 312 Tucson Az (520) 579-8008 2.51

Eating / Drinking

Name Address Telephone Distance (Miles)

Martinez Mexican Food 4520 N Via Sinuosa Tucson Az (520) 743-0053 0.97

Colorado Bagel Company, Llc 5991 N Plcita De La Olada Tucson Az (520) 664-1600 1.1

Red Donut Llc 5961 E Plcita De Las Lces Tucson Az (520) 615-0104 1.1

Sub Com 4745 N Lost Horizon Dr Tucson Az (623) 606-8076 1.13

Health Care Services

Name Address

Telephone Distance (Miles)

Romeo F. Esquivel, M.d., P.l.l.c. 5460 N Desert Saguaro Ct Tucson Az (520) 623-3095 0.42

Apodca 4740 W Via Aguilera Tucson Az (520) 743-1865 0.51

Apodaca Enterprises, L.l.c. 4740 W Via Aguilera Tucson Az (520) 909-3152 0.51

Aguilera House 4740 W Via Aguilera Tucson Az (520) 743-1865 0.51 Customer Name : Lisa Mrazek

Local Business
© 2022 CoreLogic. All rights reserved
Customer Company Name : First American Title Insurance Company Prepared On : 12/01/2022

Hospitality

Name Address Telephone Distance (Miles)

Travelodge Tucson 4910 W Ina Rd Tucson Az (520) 744-3382 2.46

Park Inn 4910 W Ina Rd Tucson Az (520) 744-3382 2.46

Ina Msrp Inc 4930 W Ina Rd Tucson Az (520) 579-7202 2.47

Red Roof Inns, Inc. 4940 W Ina Rd Tucson Az (520) 744-8199 2.48

Organizations / Associations

Name Address Telephone Distance (Miles)

Mike Keyes Ministries Intl 4900 N Desert Tortoise Pl Tucson Az (520) 743-8336 0.69

Linda Newton 4645 N Lost Horizon Dr Tucson Az (520) 743-7164 1.19

Tucson Mountain Congregation 4729 N Silverbell Rd Tucson Az (520) 743-7145 1.22

Church Of Life 5485 W Calle De La Busca Tucson Az (520) 743-7839 1.49

Personal Services

Name Address Telephone Distance (Miles)

The Nerd Gym 3870 W River Rd Ste 108 Tucson Az (520) 351-9074 1.63

Northwest Jazzercise Center Llc 6906 N Camino Martin # 14 Tucson Az (520) 403-8893 2.1

Worden Physique Llc 4261 W Ina Rd Ste 101 Tucson Az (520) 239-6885 2.43

Rcb Spa Group L.l.c. 4140 W Ina Rd Tucson Az (520) 744-1659 2.46

Shopping

Name Address Telephone Distance (Miles)

Natural Energy Plus 4630 N Pseo De Los Crrtos Tucson Az (520) 743-0204 1.03

Patricia A Forgach 4755 N Silverbell Rd Tucson Az (520) 743-0134 1.18

Packer Enterprises Llc 3686 W Hills Of Gold Dr Tucson Az (520) 406-8699 1.37

Bingham Equipment Company 5225 N Casa Grande Hwy Tucson Az (520) 887-7799 1.47

Customer Name : Lisa Mrazek

Customer Company Name : First American Title Insurance Company Prepared On : 12/01/2022

© 2022
All rights reserved
CoreLogic.

5270 N CAMINO DE OESTE

Owner Name : Title Security Agency Llc Tr20

Property Tax : $8.34

Total Value : $500 Lot Acres : 3.82

Distance 0.02 Miles

Land Use : Transport (nec) APN : 101-21-1750

4491 W PLACITA ROCA CHICA Distance 0.05 Miles

Owner Name : Cullen Kyle K Recording Date : 06/11/2021

Sale Date : 06/09/2021 Sale Price  : $625,000

Total Value : $59,627 Property Tax : $987.89

Land Use : Sfr Lot Acres : 1.77

Subdivision : Las Rocas APN : 101-21-1640

4511 W PLACITA ROCA CHICA Distance 0.06 Miles

Owner Name : Lamadrid Luis Property Tax : $987.89

Total Value : $59,627 Lot Acres : 1.70 Land Use : Vacant Land (nec) APN : 101-21-1650

Subdivision  : Las Rocas

4456 W PLACITA ROCA ESCONDIDA Distance 0.07 Miles

Owner Name : Flores John Recording Date : 11/22/2021 Sale Date : 11/18/2021 Sale Price  : $650,000

Total Value : $59,627 Property Tax : $987.89

Land Use : Sfr Lot Acres : 1.30

Subdivision : Las Rocas APN : 101-21-1680

4521 W PLACITA ROCA CHICA Distance 0.08 Miles

Owner Name : Novum Terranvm Llc

Property Tax : $987.89

Total Value : $59,627 Lot Acres : 1.53

Land Use : Vacant Land (nec) APN : 101-21-166A

Subdivision  : Las Rocas

4458 W PLACITA TRES ROCAS Distance 0.08 Miles

Owner Name : Novum Terranvm Llc

Property Tax : $987.89

Total Value : $59,627 Lot Acres : 1.24

Land Use : Vacant Land (nec) APN : 101-21-1560

Subdivision  : Las Rocas

Customer Name : Lisa Mrazek

Customer Company Name : First American Title Insurance Company

Prepared On : 12/01/2022

© 2022 CoreLogic. All rights reserved

4455 W PLACITA ROCA ESCONDIDA Distance 0.08 Miles

Owner Name : Rawlins Rebecca

Sale Date : 05/20/2020

Subdivision : Las Rocas

Recording Date : 06/16/2020

Total Value : $59,627 Sale Price  : $664,000

Bed / Bath : / 4 Property Tax : $6,406.66

Land Use : Sfr Lot Acres : 1.64

Stories : 1 Living Area : 3,073

Yr Blt / Eff Yr Blt : 2020 / APN : 101-21-1630

4572 W PLACITA TRES ROCAS Distance 0.11 Miles

Owner Name : Ibrahim H

Recording Date : 11/21/2018

Sale Date : 11/20/2018 Sale Price  : $117,500

Total Value : $96,000 Property Tax : $987.89

Land Use : Vacant Land (nec) Lot Acres : 1.85

Subdivision : Las Rocas APN : 101-21-1550

5170 N CAMINO DE OESTE Distance 0.11 Miles

Owner Name : Laundy Susanna K

Subdivision : Las Rocas

Sale Date : 07/22/1999 Recording Date : 07/16/1999

Total Value : $604,105 Sale Price  : $450,000

Bed / Bath : / 6 Property Tax : $7,890.85

Land Use : Sfr Lot Acres : 3.31

Stories : 1 Living Area : 3,885

Yr Blt / Eff Yr Blt : 1991 / APN : 101-21-030B

Customer Name : Lisa Mrazek

Customer Company Name : First American Title Insurance Company Prepared On : 12/01/2022

2022 CoreLogic.

©
All rights reserved

Census Tract / block: 44.18 / 2     Year: 2018

Household

Population Population by Age

Count: 3,538 0 - 11

Estimate Current Year: 3,654 12 - 17

Estimate in 5 Years: 4,155 18 - 24 7.91%

Growth Last 5 Years: 8.99% 25 - 64 53.11%

Growth Last 10 Years: -184.45% 65 - 74 15.18% 75+

Household Size Household Income

Current Year: 1,312 0 - $25,000 10.44%

Average Current Year: 2.65 $25,000 - $35,000 4.95%

Estimate in 5 Years: 1,240 $35,000 - $50,000 8.77%

Growth Last 5 Years: -1.3% $50,000 - $75,000 14.71%

Growth Last 10 Years: -5.48% $75,000 - $100,000 12.88%

Male Population: 52.2% Above $100,000 48.25%

Female Population: 47.8% Average Household Income: $94,545

Married People: 62.23%

Unmarried People: 37.77%

Housing

Median Mortgage Payments Home Values

Under $300: 3.92% Below $100,000: 4.82%

$300 - $799: 31.7% $100,000 - $150,000: 2.7%

$800 - $1,999: 41.5% $150,000 - $200,000: 3.35%

Over $2,000: 22.88% $200,000 - $300,000: 32.68%

Median Home Value: $321,900 $300,000 - $500,000: 44.93%

Unit Occupied Owner: 93.29% Above $500,000: 11.52%

Median Mortgage: $1,349 Customer Name : Lisa Mrazek

Customer Company Name : First American Title Insurance Company Prepared On : 12/01/2022

© 2022 CoreLogic. All rights reserved

Rent Payments Year Built

Unit Occupied Renter: 6.71% 1999 - 2000

Median Gross Rent: $1,709 1995 - 1998

Less Than $499 0% 1990 - 1994

$500 - $749 0% 1980 - 1989 31.57%

$750 - $999 30.38% 1970 - 1979 9% $1000 and Over 69.62% 1900 - 1969 13.43%

Education Enrollment

Public Pre-Primary School: 0.66% Not Enrolled in School: 77.67%

Private Pre-Primary School: 0.66% Not A High School Graduate: 4.6%

Public School: 18.38% Graduate Of High School: 15.4%

Private School: 3.95% Attended Some College: 22.42%

Public College: 4.29% College Graduate: 35.62%

Private College: 0.43% Graduate Degree: 21.96%

Workforce

Occupation:

Manager/Prof: 48.62% Private Worker: 57.74% Technical: Government Worker: 21.16%

Sales: 21.62% Self Employed Worker: 8.31%

Administrative: Unpaid Family Worker: 5.33%

Private House Hold: Farming: 5.1%

Service: 15.02% Skilled:

Protective Services: Blue-Collar: 14.74%

Commute Time

Less Than 15 Min: 16.05%

15 min - 28 min: 55.44%

30 min - 57 min: 25.61%

Over 60 min: 2.89%

Customer Name : Lisa Mrazek

Customer Company Name : First American Title Insurance Company Prepared On : 12/01/2022

© 2022 CoreLogic. All rights reserved

Customer Name : Lisa Mrazek

Customer Company Name : First American Title Insurance Company Prepared On : 12/01/2022

©
All rights reserved
2022 CoreLogic.

Customer Name : Lisa Mrazek

Customer Company Name : First American Title Insurance Company Prepared On : 12/01/2022

©
All rights reserved
2022 CoreLogic.

Customer Name : Lisa Mrazek

Customer Company Name : First American Title Insurance Company Prepared On : 12/01/2022

2022 CoreLogic.

©
All rights reserved

SEARCH PARAMETERS

PARCEL:  101-21-1670 PARCEL: 101-21-1670 INSTRUMENT REC DATE OWNER: NOVUM TERRANVM LLC  AFFIDAVIT    2021 880637 03/29/2021  SITUS: 4500 W PLACITA ROCA CHICA PC  MAIL: PO BOX 77836   PLAT: LOT 00013 BLOCK LEGAL: LAS ROCAS LOT 13  CURRENT TAXES INFORMATION THROUGH 11/25/2022 LAND IMPR EXEMPT RATE AREA SPECIAL DISTRICTS PRIMARY  6,227  0  0  8.8636  0806 SECONDARY  9,410  0  0  7.4511  2022 TOTAL TAX BILLED 1,015.91

2022  TAX AMT TAX DUE INTEREST DATE PAID TOTAL DUE

+ FIRST AMERICAN TITLE, FC0, LMRA PIMA, AZ 12/01/2022  12:32PM  RL13  INVESTIGATIVE SEARCH RESULTS PAGE 1 OF 1
SALES SALE DATE SALE AMOUNT INSTRUMENT TYPE SELLER NAME VALIDITY 03/29/2021 720,000    2021 880637 WD LAS ROCAS DE OESTE LLC M END SEARCH
FIRST HALF  507.96  0.00  0.00  10/31/2022  0.00  SECOND HALF  507.95  507.95  0.00  507.95  TOTAL CURRENT TAXES DUE 12/22 507.95 01/23 507.95 (ESTIMATED) IMPROVEMENTS BLDG SQFT  0 FULL CASH VALUE  62,733 YEAR BUILT  0 LAND USE  00 71 NUMBER OF STORIES LOT SIZE  1 STDLT STORIES HEIGHT  0 SCHOOL DISTRICT  0806 EXTERIOR WALLS LAND FULL CASH VALUE  62,733 GRADE MATERIALS IMPR FULL CASH VALUE  0

Covenants, Conditions & Restrictions

Thank you for the opportunity to be of service.

Restrictions indicating a preference, limitation or discrimination based on race, color, religion, sex, handicap, familial status, or national origin are hereby deleted to the extent such restrictions violate 42 USC 3604(c).

This information is furnished without fee and without benefit of a complete title search. No liability is assumed by First American Title or Title Security. If it is desired that liability be assumed, you may apply for a policy of title insurance with First American Title Insurance Company.

Page 1 of 11 11/20/2017 4:44 PM
Page 2 of 11 11/20/2017 4:44 PM
Page 3 of 11 11/20/2017 4:44 PM
Page 4 of 11 11/20/2017 4:44 PM
Page 5 of 11 11/20/2017 4:44 PM
Page 6 of 11 11/20/2017 4:44 PM
Page 7 of 11 11/20/2017 4:44 PM
Page 8 of 11 11/20/2017 4:44 PM
Page 9 of 11 11/20/2017 4:44 PM
Page 10 of 11 11/20/2017 4:44 PM
Page 11 of 11 11/20/2017 4:44 PM
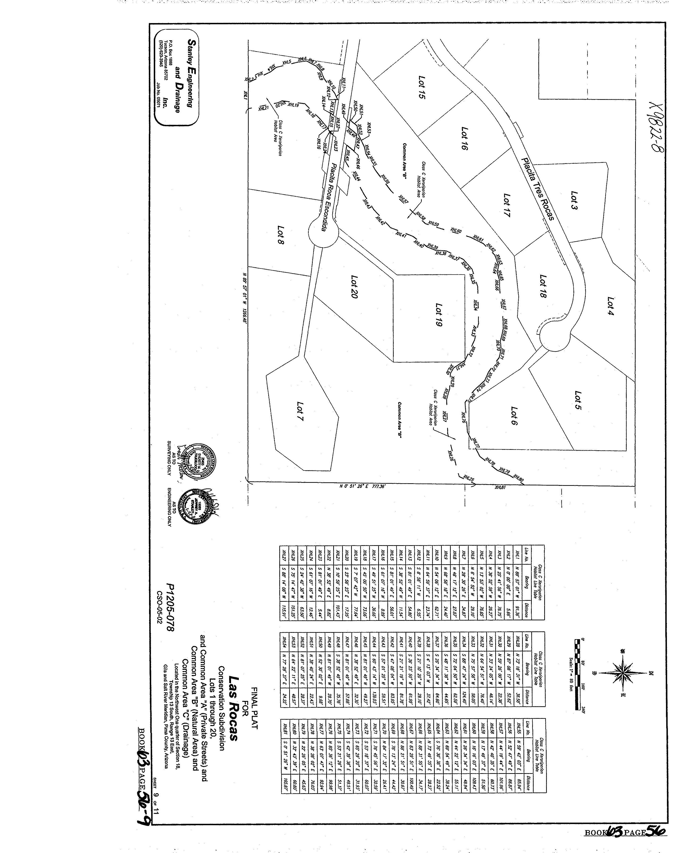
Branch:FC0,User:LMRAComment:StationId:RL13 PIMA,AZPage1of11Printedon12/1/20221:35:53PM Document:SUBDIVISION_MAP63.56
Branch:FC0,User:LMRAComment:StationId:RL13 PIMA,AZPage2of11Printedon12/1/20221:35:57PM Document:SUBDIVISION_MAP63.56
Branch:FC0,User:LMRAComment:StationId:RL13 PIMA,AZPage3of11Printedon12/1/20221:36:05PM Document:SUBDIVISION_MAP63.56
Branch:FC0,User:LMRAComment:StationId:RL13 PIMA,AZPage4of11Printedon12/1/20221:36:10PM Document:SUBDIVISION_MAP63.56
Branch:FC0,User:LMRAComment:StationId:RL13 PIMA,AZPage5of11Printedon12/1/20221:36:16PM Document:SUBDIVISION_MAP63.56
Branch:FC0,User:LMRAComment:StationId:RL13 PIMA,AZPage6of11Printedon12/1/20221:36:21PM Document:SUBDIVISION_MAP63.56
Branch:FC0,User:LMRAComment:StationId:RL13 PIMA,AZPage7of11Printedon12/1/20221:36:28PM Document:SUBDIVISION_MAP63.56
Branch:FC0,User:LMRAComment:StationId:RL13
Document:SUBDIVISION_MAP63.56
PIMA,AZPage8of11Printedon12/1/20221:36:34PM
Branch:FC0,User:LMRAComment:StationId:RL13 PIMA,AZPage9of11Printedon12/1/20221:36:38PM Document:SUBDIVISION_MAP63.56
Branch:FC0,User:LMRAComment:StationId:RL13 PIMA,AZPage10of11Printedon12/1/20221:36:42PM Document:SUBDIVISION_MAP63.56
Branch:FC0,User:LMRAComment:StationId:RL13 PIMA,AZPage11of11Printedon12/1/20221:36:46PM Document:SUBDIVISION_MAP63.56
Branch:FC0,User:LMRAComment:StationId:RL13 PIMA,AZPage1of16Printedon12/1/20221:36:46PM Document:RES13271.1203
Branch:FC0,User:LMRAComment:StationId:RL13 PIMA,AZPage2of16Printedon12/1/20221:36:47PM Document:RES13271.1203
Branch:FC0,User:LMRAComment:StationId:RL13 PIMA,AZPage3of16Printedon12/1/20221:36:47PM Document:RES13271.1203
Branch:FC0,User:LMRAComment:StationId:RL13 PIMA,AZPage4of16Printedon12/1/20221:36:47PM Document:RES13271.1203
Branch:FC0,User:LMRAComment:StationId:RL13 PIMA,AZPage5of16Printedon12/1/20221:36:47PM Document:RES13271.1203
Branch:FC0,User:LMRAComment:StationId:RL13 PIMA,AZPage6of16Printedon12/1/20221:36:47PM Document:RES13271.1203
Branch:FC0,User:LMRAComment:StationId:RL13 PIMA,AZPage7of16Printedon12/1/20221:36:47PM Document:RES13271.1203
Branch:FC0,User:LMRAComment:StationId:RL13 PIMA,AZPage8of16Printedon12/1/20221:36:47PM Document:RES13271.1203
Branch:FC0,User:LMRAComment:StationId:RL13 PIMA,AZPage9of16Printedon12/1/20221:36:48PM Document:RES13271.1203
Branch:FC0,User:LMRAComment:StationId:RL13 PIMA,AZPage10of16Printedon12/1/20221:36:48PM Document:RES13271.1203
Branch:FC0,User:LMRAComment:StationId:RL13 PIMA,AZPage11of16Printedon12/1/20221:36:48PM Document:RES13271.1203
Branch:FC0,User:LMRAComment:StationId:RL13 PIMA,AZPage12of16Printedon12/1/20221:36:48PM Document:RES13271.1203
Branch:FC0,User:LMRAComment:StationId:RL13 PIMA,AZPage13of16Printedon12/1/20221:36:48PM Document:RES13271.1203
Branch:FC0,User:LMRAComment:StationId:RL13 PIMA,AZPage14of16Printedon12/1/20221:36:49PM Document:RES13271.1203
Branch:FC0,User:LMRAComment:StationId:RL13 PIMA,AZPage15of16Printedon12/1/20221:36:49PM Document:RES13271.1203
Branch:FC0,User:LMRAComment:StationId:RL13 PIMA,AZPage16of16Printedon12/1/20221:36:49PM Document:RES13271.1203
Branch:FC0,User:LMRAComment:StationId:RL13 PIMA,AZPage1of3Printedon12/1/20221:36:49PM Document:RES2022.39.0372
Branch:FC0,User:LMRAComment:StationId:RL13
Document:RES2022.39.0372
PIMA,AZPage2of3Printedon12/1/20221:36:50PM
Branch:FC0,User:LMRAComment:StationId:RL13
Document:RES2022.39.0372
PIMA,AZPage3of3Printedon12/1/20221:36:50PM
to the Title & Escrow Process in Arizona Home Seller’s Guide

Southwest Gas 1.877.860.6020 www.swgas.com Cox 602.277.1000 www.cox.com

Direct TV 1.888.777.2454 www.directv.com

Dish Network 1.800.823.4929 www.dishnetwork.com CenturyLink 800.366.8201 www.centurylink.com AT&T 1.800.222.0300 www.att.com

Verizon 1.877.300.4498 www.connecttoverizon.com

Salt River Project 602.236.8888 www.srpnet.com APS 602.371.7171 www.aps.com

Your Escrow Number Your New Address City/State/Zip Real Estate Agent Name Email Assistant Email Company Phone Address Fax Insurance Previous Company Phone Previous Agent Policy No. New Company Phone New Agent Policy No. Home Warranty Company Policy No. First American Title Escrow Officer Email Escrow Assistant Email Address Phone City/State/Zip Fax 02 Quick Reference 03 Welcome 04 Benefits of Using a REALTOR ® 05 Key Professionals 06 Preparing Your Home for Sale 07 Staging Your Home for Show 09 Terms You Should Know 10 The Life of an Escrow 11 Closing Costs: Who Pays What 12 The Escrow Process 14 Understanding Title Insurance 16 Consider This 17 Closing Your Escrow 18 Planning Your Move Q uick Reference Table of Contents Utilities and Services

Count on First American Title

Welcome to the home-selling process. Throughout this process, you can count on First American Title to guide you smoothly through your transaction and provide expert answers to your questions. We are happy to serve you.

Count On Us For Service

First American Title’s professionals are proud to provide the title insurance that assures people’s home ownership. Backed by First American Title Insurance Company, your transaction will be expertly completed in accordance with state-specific underwriting standards and state and federal regulatory requirements.

Count On Us For Stability

First American Title is the principal subsidiary of First American Financial Corporation, and one of the largest suppliers of title insurance services in the nation. With roots dating back to 1889, we’ve served families for generations.

Count On Us For Convenience

First American Title has a direct office or agent near you, offering convenient locations throughout Arizona. We also have an extensive network of offices and agents throughout the United States, and internationally.

Count On Us To Meet Your Needs

First American Financial Corporation offers more than title insurance and escrow services through its subsidiaries. Our subsidiaries also provide property data, title plant records and images, home warranties, property and casualty insurance, and banking, trust and advisory services.

AZ Sellers Guide | 3

Benefits of using a Professional REALTOR ®

Before you make the decision to try to sell your home alone, consider the benefits a REALTOR ® can provide that you may not be aware of.

A REALTOR ® :

› Understands market conditions and has access to information not available to the average homeowner.

› Can advertise effectively for the best results.

› Knows how to price your home realistically, to give you the highest price possible within your time frame.

› Is experienced in creating demand for homes and how to show them to advantage.

› Knows how to screen potential buyers and eliminate those who can’t qualify or are looking for bargain-basement prices.

› Knows how to go toe-to-toe in negotiations.

› Is always “on-call,” answering the phone at all hours, and showing homes evenings and weekends.

› Can remain objective when presenting offers and counter-offers on your behalf.

› Maintains errors-and-omissions insurance.

› Will listen to your needs, respect your opinions and allow you to make your own decisions.

› Can help protect your rights, particularly important with the increasingly complicated real estate laws and regulations.

› Is experienced with resolving problems to facilitate a successful closing on your home.

Only you can determine whether you should attempt to sell your home—probably your largest investment—all alone. Talk with a REALTOR® before you decide. You may find working with a professional is a lot less expensive and much more beneficial than you ever imagined!

FOR SALE BY OWNER

Many people believe they can save a considerable amount of money by selling their homes themselves. It may seem like a good idea at the time, but while you may be willing to take on the task, are you qualified? The following are some questions to help you realistically assess what’s involved.

Do you...

- have the knowledge, patience, and sales skills needed to sell your home?

- know how to determine your home’s current market value?

- know how to determine whether or not a buyer can qualify for a loan?

- understand the steps of an escrow and what’s required of you and the buyer?

- need to hire a real estate attorney? If so, do you know what the cost will be and how much liability they will assume in the transaction?

- know how to advertise effectively and what the costs will be?

- understand the various types of loans buyers may choose and the advantages and disadvantages for the seller?

- have arrangements with an escrow and title company, home warranty company, pest-control service and lender to assist you with the transaction?

Are you...

- aware of conditions in the marketplace today that affect value and length of time to sell?

- concerned about having strangers walking through your home?

- familiar enough with real estate regulations to prepare a binding sales contract? Counter-offers?

- aware that every time you leave your home, you are taking it off the market until you return?

- aware that prospective buyers and bargain hunters will expect you to lower your cost because there’s no REALTOR® involved?

- prepared to give up your evenings and weekends to show your home to potential buyers and “just-looking” time wasters?

AZ Sellers Guide | 4

Key Professionals Involved in Your Transaction

REALTOR ®

A REALTOR ® is a licensed real estate agent and a member of the National Association of REALTORS,® a real estate trade association. REALTORS ® also belong to their state and local Association of REALTORS.®

REAL ESTATE AGENT

A real estate agent is licensed by the state to represent parties in the transfer of property. Every REALTOR ® is a real estate agent, but not every real estate agent has the professional designation of a REALTOR.®

LISTING AGENT

A key role of the listing agent or broker is to form a legal relationship with the homeowner to sell the property and place the property in the Multiple Listing Service.

BUYER'S AGENT

A key role of the buyer’s agent or broker is to work with the buyer to locate a suitable property and negotiate a successful home purchase.

MULTIPLE LISTING SERVICE (MLS)

The MLS is a database of properties listed for sale by REALTORS ® who are members of the local Association of REALTORS.® Information on an MLS property is available to thousands of REALTORS ®

TITLE COMPANY

These are the people who carry out the title search and examination, work with you to eliminate the title exceptions you are not willing to take subject to, and provide the policy of title insurance regarding title to the real property.

ESCROW OFFICER

An escrow officer leads the facilitation of your escrow, including escrow instructions preparation, document preparation, funds disbursement, and more.

AZ Sellers Guide | 5

PREPARING FOR SALE YOUR HOME

Mow and edge the lawn regularly, and trim the shrubs.

Make your entry inviting: Paint your front door and buy a new front door mat.

Paint or replace the mailbox, if needed.

If screens or windows are damaged, replace or repair them.

Repair or replace worn shutters and other exterior trim.

Make sure the front steps are clear and hazard-free. Make sure the doorbell works properly and has a pleasant sound.

Ensure that all exterior lights are working.

Check stucco walls for cracks and discoloration.

Remove any oil and rust stains from the driveway and garage.

Clean and organize the garage, and ensure the door is in good working order.

Shampoo carpeting or replace if worn. Clean tile floors, particularly the caulking.

Brighten the appearance inside by painting walls, cleaning windows and window coverings, and removing sunscreens.

Repair leaky faucets and caulking in bathtubs and showers.

Repair or replace loose knobs on doors and cabinets. If doors stick or squeak, fix them.

Make sure toilet seats look new and are firmly attached.

First impressions have a major impact on potential buyers. Try to imagine what potential buyers will see when they approach your house for the first time and walk through each room. Ask your REALTOR ® for advice; they know the marketplace and what helps a home sell. Here are some tips to present your home in a positive manner:

Repair or replace loud ventilating fans.

Replace worn shower curtains.

Rearrange furniture to make rooms appear larger. If possible, remove and/or store excess furniture, and avoid extension cords in plain view.

Remove clutter throughout the house. Organize and clean out closets.

Clean household appliances and make sure they work properly.

Air conditioners/heaters, evaporative coolers, hot water heater should be clean, working and inspected if necessary. Replace filters.

Check the pool and/or spa equipment and pumps. Make sure all are working properly and that the pool and/or spa are kept clean.

Inspect fences, gates and latches. Repair or replace as needed.

AZ Sellers Guide | 6

Staging your home for Show

To make the best impression, keep your home clean, neat, uncluttered and in good repair. Please review this list prior to each showing:

Keep everything clean. A messy or dirty home will cause prospective buyers to notice every flaw.

Clear all clutter from counter tops.

Let the light in. Raise shades, open blinds, pull back the curtains and turn on the lights.

Get rid of odors such as tobacco, pets, cooking, etc., but don’t overdo air fresheners or potpourri. Fresh baked bread and cinnamon can make a positive impact.

Send pets away or secure them away from the house, and be sure to clean up after them.

Close the windows to eliminate street noise.

If possible you, your pets, and your children should be gone while your home is being shown.

Clean trash cans and put them out of sight.

If you must be present while your home is shown, keep noise down. Turn off the TV and radio. Soft, instrumental music is fine, but avoid vocals.

Keep the garage door closed and the driveway clear. Park autos and campers away from your home during showings

Hang clean attractive guest towels in the bathrooms.

Check that sink and tub are scrubbed and unstained.

Make beds with attractive spreads.

Stash or throw out newspapers, magazines, junk mail.

AZ Sellers Guide | 7
AZ Sellers Guide | 8

Terms You Should Know

Appraisal

An estimate of value of property resulting from analysis of facts about the property; an opinion of value.

Annual Percentage Rate (APR)

The borrower’s costs of the loan term expressed as a rate. This is not their interest rate.

Beneficiary

The recipient of benefits, often from a deed of trust; usually the lender.

Closing Disclosure (CD)

Closing Disclosure form designed to provide disclosures that will be helpful to borrowers in understanding all of the costs of the transaction. This form will be given to the consumer three (3) business days before closing.

Close of Escrow

Generally the date the buyer becomes the legal owner and title insurance becomes effective.

Comparable Sales

Sales that have similar characteristics as the subject real property, used for analysis in the appraisal. Commonly called “comps.”

Consummation

Occurs when the borrower becomes contractually obligated to the creditor on the loan, not, for example, when the borrower becomes contractually obligated to a seller on a real estate transaction. The point in time when a borrower becomes contractually obligated to the creditor on the loan depends on applicable State law. Consummation is not the same as close of escrow or settlement.

Deed of Trust

An instrument used in many states in place of a mortgage.

Deed Restrictions

Limitations in the deed to a parcel of real property that dictate certain uses that may or may not be made of the real property.

Disbursement Date

The date the amounts are to be disbursed to a buyer and seller in a purchase transaction or the date funds are to be paid to the borrower or a third party in a transaction that is not a purchase transaction.

Earnest Money Deposit

Down payment made by a purchaser of real property as evidence of good faith; a deposit or partial payment.

Easement

A right, privilege or interest limited to a specific purpose that one party has in the land of another.

Endorsement

As to a title insurance policy, a rider or attachment forming a part of the insurance policy expanding or limiting coverage.

Hazard Insurance

Real estate insurance protecting against fire, some natural causes, vandalism, etc., depending upon the policy. Buyer often adds liability insurance and extended coverage for personal property.

Impounds

A trust type of account established by lenders for the accumulation of borrower’s funds to meet periodic payments of taxes, mortgage insurance premiums and/or future insurance policy premiums, required to protect their security.

Legal Description

A description of land recognized by law, based on government surveys, spelling out the exact boundaries of the entire parcel of land. It should so thoroughly identify a parcel of land that it cannot be confused with any other.

Lien

A form of encumbrance that usually makes a specific parcel of real property the security for the payment of a debt or discharge of an obligation. For example, judgments, taxes, mortgages, deeds of trust.

Loan Estimate (LE)

Form designed to provide disclosures that will be helpful to borrowers in understanding the key features, costs and risks of the mortgage loan for which they are applying. Initial disclosure to be given to the borrower three (3) business days after application.

Mortgage

The instrument by which real property is pledged as security for repayment of a loan.

PITI

A payment that includes Principal, Interest, Taxes, and Insurance.

Power of Attorney

A written instrument whereby a principal gives authority to an agent. The agent acting under such a grant is sometimes called an “Attorney-in-Fact.”

Recording

Filing documents affecting real property with the appropriate government agency as a matter of public record.

Settlement statement

Provides a complete breakdown of costs involved in a real estate transaction.

TRID

TILA-RESPA Integrated Disclosures

AZ Sellers Guide | 9

The Life Of An Escrow

THE BUYER

Chooses a Real Estate Agent

Gets pre-approval letter from Lender and provides to Real Estate Agent.

Makes offer to purchase. Upon acceptance, opens escrow and deposits earnest money.

Finalizes loan application with Lender. Receives a Loan Estimate from Lender.

Completes and returns opening package from First American Title.

Schedules inspections and evaluates findings. Reviews title commitment/ preliminary report.

Provides all requested paperwork to Lender (bank statements, tax returns, etc.) All invoices and final approvals should be to the lender no later than 10 days prior to loan consummation.

Lender (or Escrow Officer) prepares CD and delivers to Buyer at least 3 days prior to loan consummation.

Escrow officer or real estate agent contacts the buyer to schedule signing appointment.

Buyer consummates loan, executes settlement documents, & deposits funds via wire transfer.

Documents are recorded and the keys are delivered!

THE SELLER

Chooses a Real Estate Agent

Accepts Buyer’s offer to purchase.

Completes and returns opening package from First American Title, including information such as forwarding address, payoff lender contact information and loan numbers.

Orders any work for inspections and/or repairs to be done as required by the purchase agreement.

Escrow officer or real estate agent contacts the seller to schedule signing appointment.

Documents are recorded and all proceeds from sale are received.

THE ESCROW OFFICER

Upon receipt of order and earnest money deposit, orders title examination.

Requests necessary information from buyers and sellers via opening packages.

Reviews title commitment / preliminary report.

Upon receipt of opening packages, orders demands for payoffs. Contacts buyer or seller when additional information is required for the title commitment/ preliminary report.

All demands, invoices, and fees must be collected and sent to lender at least 10 days prior to loan consummation.

Coordinates with lender on the preparation of the CD.

Reviews all documents, demands, and instructions and prepares settlement statements and any other required documents.

Schedules signing appointment and informs buyer of funds due at settlement.

Once loan is consummated, sends funding package to lender for review.

Prepares recording instructions and submits docs for recording.

Documents are recorded and funds are disbursed. Issues final settlement statement.

THE LENDER

Accepts Buyer’s application and begins the qualification process. Provides Buyer with Loan Estimate.

Orders and reviews title commitment / preliminary report, property appraisal, credit report, employment and funds verification.

Collects information such as title commitment / preliminary report, appraisal, credit report, employment and funds verification. Reviews and requests additional information for final loan approval.

Underwriting reviews loan package for approval.

Coordinates with Escrow Officer on the preparation of the Closing Disclosure, which is delivered to Buyer at least 3 days prior to loan consummation.

Delivers loan documents to escrow.

Upon review of signed loan documents, authorizes loan funding.

AZ Sellers Guide | 10

Closing

AZ Sellers Guide | 11 CASH FHA VA CONV 1. Downpayment BUYER BUYER BUYER BUYER 2. Termite (Wood Infestation) Inspection (negotiable except on VA) SELLER 3. Property Inspection (if requested by buyer) BUYER BUYER BUYER BUYER 4. Property Repairs, if any (negotiable) SELLER SELLER SELLER SELLER 5. New Loan Origination Fee (negotiable) BUYER BUYER BUYER 6. Discount Points (negotiable) BUYER BUYER BUYER 7. Credit Report BUYER BUYER BUYER 8. Appraisal or Extension Fee (negotiable) BUYER BUYER BUYER 9. Existing Loan Payoff SELLER SELLER SELLER SELLER 10. Existing Loan Payoff Demand SELLER SELLER SELLER SELLER 11. Loan Prepayment Penalty (if any) SELLER SELLER SELLER SELLER 12. Next Month’s PITI Payment BUYER BUYER BUYER 13. Prepaid Interest (approx. 30 days) BUYER BUYER BUYER 14. Reserve Account Balance (Credit seller / Charge buyer) PRORATE PRORATE PRORATE 15. FHA MIP, VA Funding Fee, PMI Premium BUYER BUYER BUYER 16. Assessments payoff or proration (sewer, paving, etc.) SELLER 17. Taxes PRORATE PRORATE PRORATE PRORATE 18. Tax Impounds BUYER BUYER BUYER 19. Tax Service Contract SELLER SELLER BUYER 20. Fire/Hazard Insurance BUYER BUYER BUYER BUYER 21 Flood Insurance BUYER BUYER BUYER 22. Homeowners Association (HOA) Transfer Fee BUYER or SELLER BUYER or SELLER BUYER or SELLER BUYER or SELLER 23. HOA/Disclosure Fee SELLER SELLER SELLER SELLER 24 Current HOA Payment PRORATE PRORATE PRORATE PRORATE 25. Next Month’s HOA Payment BUYER BUYER BUYER BUYER 26. Home Warranty Premium (negotiable) BUYER or SELLER BUYER or SELLER BUYER or SELLER BUYER or SELLER 27. REALTORS®’ Commissions SELLER SELLER SELLER SELLER 28. EAGLE Homeowners Title Policy SELLER SELLER SELLER SELLER 29. Lenders Title Policy and Endorsements BUYER BUYER BUYER 30. Escrow Fee (NOTE: Charge seller on VA Loan) SPLIT SPLIT SELLER SPLIT 31. Recording Fees (Flat rate) SPLIT SPLIT SPLIT SPLIT 32. Reconveyance/Satisfaction Fee SELLER SELLER SELLER SPLIT 33. Courier/Express Mail Fees SPLIT SPLIT SELLER SPLIT THIS CHART INDICATES WHO CUSTOMARILY PAYS WHAT COSTS Note: Prorated items will appear on Closing Statement as charges for one and credits for the other.
Costs: Who Pays What

The Escrow Process

WHAT IS AN ESCROW?

The escrow is the process of having a neutral party manage the exchange of money for real property. The escrow holder is known as an escrow or settlement officer or agent. The buyer deposits funds and the seller deposits a deed with the escrow holder along with all of the other documents required to remove all "contingencies" (conditions and approvals) in the purchase agreement prior to closing.

HOW IS AN ESCROW OPENED?

Once a purchase agreement is signed by all necessary parties, the agent representing the party who will pay the fee selects an escrow holder and the buyer's earnest money deposit and contract are submitted to the escrow holder. From this point, the escrow holder will follow the mutual written instructions of the buyer and seller, maintaining a neutral stance to ensure that neither party has an unfair advantage over the other. The escrow holder also follows the instructions of the Buyer's new lender, the seller's existing lender, and both parties' agents. The escrow holder ensures the transparency of the transaction, while carefully maintaining the privacy of the consumers.

AZ Sellers Guide | 12

Your Escrow Professional May:

Open escrow and deposit good faith funds into an escrow account

Conduct a title search to determine the ownership and title status of the real property

Review the title commitment and begin the process of working with you and the title officer to eliminate the title exceptions the buyer and the buyer’s new lender are not willing to take subject to. This includes ordering a payoff demand from your existing lender.

Coordinate with the buyer’s lender on the preparation of the Closing Disclosure (CD)

Prorate fees, such as real property taxes, per the contract and prepare the settlement statement

Set separate appointments allowing the buyer and seller to sign documents and deposit funds

Review documents and ensure all conditions are fulfilled and certain legal requirements are met

Request funds from buyer and buyer’s new lender

When all funds are deposited and conditions met, record documents with the County Recorder to transfer the real property to the buyer

After recording is confirmed, close escrow and disburse funds, including proceeds, loan payoffs, tax payments, and more

Prepare and send final documents to all parties

AZ Sellers Guide | 13

Understanding Title Insurance

Prior to the development of the title industry in the late 1800s, a home-buyer received a grantor’s warranty, attorney’s title opinion, or abstractor’s certificate as assurance of home ownership. The buyer relied on the financial integrity of the grantor, attorney, or abstractor for protection. Today, home-buyers look primarily to title insurance to provide this protection. Title insurance companies are regulated by state statute. They are required to post financial guarantees to ensure that any claims will be paid in a timely fashion. They also must maintain their own “title plants” which house duplicates of recorded deeds, mortgages, plats, and other pertinent county property records.

The Title Industry & Title Insurance in Brief

WHAT IS TITLE INSURANCE?

Title insurance provides coverage for certain losses due to defects in the title that, for the most part, occurred prior to your ownership. Title insurance protects against defects such as prior fraud or forgery that might go undetected until after closing and possibly jeopardize your ownership and investment.

WHY IS TITLE INSURANCE NEEDED?

Title insurance insures buyers against the risk that they did not acquire marketable title from the seller. It is primarily designed to reduce risk or loss caused by defects in title from the past. A loan policy of title insurance protects the interest of the mortgage lender, while an owner’s policy protects the equity of you, the buyer, for as long as you or your heirs (in certain policies) own the real property.

WHEN IS THE PREMIUM DUE?

You pay for your owner’s title insurance policy only once, at the close of escrow. Who pays for the owner’s policy and loan policy varies depending on local customs.

AZ Sellers Guide | 14

Compare First American’s Eagle Policy® for Owners

Protection from: 1 Someone else owns an interest in your title 2 A document is not properly signed

Forgery, fraud, duress in the chain of title

Defective recording of any document 5 There are restrictive covenants 6 There is a lien on your title because there is: a) a deed of trust b) a judgement, tax, or special assessment c) a charge by a homeowner’s association 7 Title is unmarketable 8 Mechanics lien 9 Forced removal of a structure because it: a) extends on another property and/or easement b) violates a restriction in Schedule B c) violates an existing zoning law* 10 Cannot use the land for a Single-Family Residence because the use violates a restriction in Schedule B or a zoning ordinance

Unrecorded lien by a homeowners association

Unrecorded easements

Building permit violations*

Restrictive covenant violations

Post-policy forgery

Post-policy encroachment

Post-policy damage from extraction of minerals or water

Lack of vehicular and pedestrian access 19 Map not consistent with legal description

Post-policy adverse possession

EAGLE ALTA Standard or CLTA

Compare First American’s Eagle Policy® for Owners

Post-policy prescriptive easement

Covenant violation resulting in your title reverting to a previous owner

Violation of building setback regulations

Discriminatory covenants

Other benefits:

Pays rent for substitute land or facilities

Rights under unrecorded leases

Plain language statements of policy coverage and restrictions

Compliance with Subdivision Map Act

Coverage for boundary wall or fence encroachment*

Added ownership coverage leads to enhanced marketability

EAGLE ALTA Standard or CLTA

Insurance coverage for a lifetime 32 Post-policy inflation coverage with automatic increase in value up to 150% over five years 33 Post-policy Living Trust coverage * Deductible and maximum limits apply. Not available to investors on 1- to 4-unit residential properties. Coverage may vary based on an individual policy.

As with any insurance contract, the insuring provisions express the coverage afforded by the title insurance policy and there are exceptions, exclusions and conditions to coverage that limit or narrow the coverage afforded by the policy. Also, some cov erage may not be available in a particular area or transaction due to legal, regulatory, or underwriting considerations. Please contact a First American representative for further information. The services described above are typical basic services. The services provided to you may be different due to the specifics of your transaction or the location of the real property involved.

AZ Sellers Guide | 15
3
4
11
12
13
14
15
16
17
18
20
21
22
23
24
25
26
27
28
29
30
31

Consider This

One escrow transaction could involve more than 20 individuals, including real estate agents, buyers, sellers, attorneys, escrow officer, escrow technician, title officer, loan officer, loan processor, loan underwriter, home inspector, termite inspector, insurance agent, home warranty representative, contractor, roofer, plumber, pool service, and so on. And often, one transaction depends on another.

When you consider the number of people involved, you can imagine the opportunities for delays and mishaps. Your experienced escrow team can’t prevent unforeseen problems from arising; however, they can help smooth out the process.

AZ Sellers Guide | 16

Closing Your Escrow

THE CLOSING DISCLOSURE

Once the loan is approved and all invoices and paperwork have been provided, the lender and escrow officer will collaborate on the preparation of the Closing Disclosure (CD). In order to close on time, all paperwork and invoices should be submitted at least 10 days prior to the expected close of escrow date. The borrower must receive the CD at least three days* prior to consummation of the loan (typically the signing date). The escrow officer will also prepare an estimated settlement statement and inform the buyer of the balance of the down payment and closing costs needed to close escrow.

*For purposes of the Closing Disclosure“business day” is defined as every day except Sundays and Federal legal holidays.

THE CLOSING OR SIGNING APPOINTMENT

The escrow holder will contact you or your agent to schedule a closing or signing appointment. In some states, this is the "close of escrow." In some others, the close of escrow is either the day the documents record or that funds are disbursed. Ask your escrow holder if you would like clarification about your state's laws.

You will have a chance to review the settlement statement and supporting documentation. This is your opportunity to ask questions and clarify terms. You should review the settlement statement carefully and report discrepancies to the escrow officer. This includes any payments that may have been missed. You are responsible for all charges incurred even if overlooked by the escrow holder, so it's better to bring these to their attention before closing.

The escrow holder is obligated by law to have the designated amount of money before releasing any funds. If you have questions or foresee a problem, let your escrow holder know immediately.

DON'T FORGET YOUR IDENTIFICATION

You will need valid identification with your photo I.D. on it when you sign documents that need to be notarized (such as a deed). A driver's license is preferred. You will also be asked to provide your social security number for tax reporting purposes, and a forwarding address.

WHAT HAPPENS NEXT?

If the buyer is obtaining a new loan, the buyer’s signed loan documents will be returned to the lender for review. The escrow holder will ensure that all contract conditions have been met and will ask the lender to "fund the loan."

If the loan documents are satisfactory, the lender will send funds directly to the escrow holder. When the loan funds are received, the escrow holder will verify that all necessary funds are in. Escrow funds will be disbursed to the seller and other appropriate payees. Then, the REALTOR® will present the keys to the property to the buyer.

AZ Sellers Guide | 17

Planning your move

SIX WEEKS BEFORE:

Create an inventory sheet of items to move.

Research moving options You’ll need to decide if yours is a do-it-yourself move or if you’ll be using a moving company.

Request moving quotes Solicit moving quotes from as many moving companies and movers as possible. There can be a large difference between rates and services within moving companies.

Discard unnecessary items Moving is a great time for ridding yourself of unnecessary items. Have a yard sale or donate unnecessary items to charity.

Packing materials. Gather moving boxes and packing materials for your move.

Contact insurance companies. (Life, Health, Fire, Auto) You’ll need to contact your insurance agent to cancel/transfer your insurance policy. Do not cancel your insurance policy until you have and closed escrow on the sale.

Seek employer benefits. If your move is work-related, your employer may provide funding for moving expenses. Your human resources rep should have information on this policy.

Changing Schools. If changing schools, contact new school for registration process.

FOUR WEEKS BEFORE:

Contact utility companies Set utility turnoff date, seek refunds and deposits and notify them of your new address.

Obtain your medical records. Contact your doctors, physicians, dentists and other medical specialists who may currently be retaining any of your family’s medical records. obtain these records or make plans for them to be delivered to your new medical facilities.

Note food inventory levels Check your cupboards, refrigerator and freezer to use up as much of your perishable food as possible.

Service small engines for your move by extracting gas and oil from the machines. This will reduce the chance to catch fire during your move.

Protect jewelry and valuables. Transfer jewelry and valuables to safety deposit box so they can not be lost or stolen during your move.

Borrowed and rented items. Return items which you may have borrowed or rented. Collect items borrowed to others.

ONE WEEK BEFORE:

Plan your itinerary. Make plans to spend the entire day at the house or at least until the movers are on their way. Someone will need to be around to make decisions. Make plans for kids and pets to be at the sitters for the day.

Change of address. Visit USPS for change of address form.

Bank accounts Notify bank of address change. Make sure to have a money order for paying the moving company if you are transferring or closing accounts.

Service automobiles If automobiles will be driven long distances, you’ll want to have them serviced for a trouble-free drive.

Cancel services. Notify any remaining service providers (newspapers, lawn services, etc) of your move.

Start packing. Begin packing for your new location.

Travel items. Set aside items you’ll need while traveling and those needed until your new home is established. Make sure these are not packed in the moving truck!

Scan your furniture. Check furniture for scratches and dents before so you can compare notes with your mover on moving day.

Prepare Floor Plan. Prepare floor plan for your new home. This will help avoid confusion for you and your movers.

MOVING DAY:

Review the house. Once the house is empty, check the entire house (closets, the attic, basement, etc) to ensure no items are left or no home issues exist.

Sign the bill of lading. Once your satisfied with the mover’s packing your items into the truck, sign the bill of lading. If possible, accompany your mover while the moving truck is being weighed.

Double check with your mover. Make sure your mover has the new address and your contact information should they have any questions during your move.

Vacate your home. Make sure utilities are off, doors and windows are locked and notify your real estate agent you’ve left the property.

AZ Sellers Guide | 18
AZ Sellers Guide | 19 Your
Notes:
AZ Sellers Guide | 20 Your Notes
:
AZ Sellers Guide | 21 Your Notes
:

Arizona

First American Title Branch Locator

1 SUN CITY WES T 623.299.3644 13940 W. Meeker Blvd., #119 Sun City West, AZ 85375 N of Meeker Blvd W of R.H. Johnson

2 GOODYEAR 623.936.8001 1626 N. Litchfield Rd. Ste. #170 Goodyear, AZ 85395 NW corner of McDowell & Litchfield

3 ARROWHEAD 623.487.0404 16165 N. 83rd Ave , #100 Peoria, AZ 85382 S of Bell/E side of 83rd Ave

4 THE LEGENDS 623.537.1608 20241 N. 67th Ave , #A-2 Glendale, AZ 85308 E side 67th Ave/N of 101

5 ANTHEM 623.551.3265 39508 N. Daisy Mountain Dr., #128 Anthem, AZ 85086 NE corner Daisy Mtn Dr/ Gavilan Peak Pkwy

6 BILTMORE 602.954.3644 3200 E Camelback Rd., #123 Phoenix, AZ 85018 NE Corner of Camelback/32nd Street

7 TATUM RIDGE 480.515 4369 11211 N Tatum Blvd, #A150 Phoenix, AZ 85028 N of Shea, E side of Tatum

8 CAREFREE 480.575.6609 7202 E. Carefree Dr , Bldg 1, #1 Carefree, AZ 85377 NE corner of Tom Darlington/ Carefree Dr.

9 KIERLAND COMMONS 480.948.6488 14648 N Scottsdale Rd., Ste. #100 Scottsdale, AZ 85254 W of Scottsdale Road, S side of Greenway

10 SCOTTSDALE FORUM 480.551.0480 6263 N. Scottsdale Rd., #110 Scottsdale, AZ 85250 E Side Scottsdale/S of Lincoln

11 DC CROSSING 480.563.9034 18291 N. Pima Rd , #145 Scottsdale, AZ 85255 SE corner of Pima/Legacy

12 AHWATUKEE 480.753.4424 4435 E. Chandler Blvd , #100 Phoenix, AZ 85048 SW corner Chandler/45th St.

13 CHANDLER PORTICO 480.777.0051 2121 W. Chandler Blvd., #215 Chandler, AZ 85224 SW Corner Chandler Blvd./ Dobson Rd.

14 GILBERT SAN TAN 480.777.0614 1528 E. Williams Field Rd., #101 Gilbert, AZ 85295 NW corner of Williams Field Rd./ Val Vista Rd.

15 MESA 480.401.3738 1630 S. Stapley Dr., #123 Mesa, AZ 85204 N of Baseline / W of Stapley

16 RED MOUNTAIN

480.534.3599 1135 N. Recker Rd., #103 Mesa, AZ 85205 SE corner of Recker & Brown

17 GOLD CANYON 480.288.0883 6877 South Kings Ranch Rd., #5 Gold Canyon, AZ 85118 E of 60/ South Side Kings Ranch Rd.

CRISMON SIGNAL BUTTE GOLDFIELD OLDWESTHWY
1 4 3 2 6 12 10 5 8 7 11 9
SKINGSRANCH 14 17 15 13 16 Central
AZ Sellers Guide | 22

EDesertDove

SSantaRitaRd

1 MAIN OFFICE

520.885.1600 | Fax 520.885.2309 6390 E. Tanque Verde Rd. Tucson, AZ 85715

2 BROADWAY 520.747.1644 | Fax 520.747.1403 3777 E. Broadway Blvd., Ste. 220 Tucson, AZ 85716

3 CAMBRIC 520.577.8707 | Fax 520.529.5034 1840 E. River Rd., Ste. 200 Tucson, AZ 85718

4 CASA GRANDE 520.426.4600 | Fax 520.426.4699 421 E. Cottonwood Ln. Casa Grande, AZ 85122

5 CASAS ADOBES

520.575.1900 | Fax 520.432.0168 6760 N. Oracle Rd., Ste. 100B Tucson, AZ 85704

6 FOOTHILLS 520.299.4606 | Fax 520.577.6993 6262 N Swan Road, Suite 205 Tucson, AZ 85718

7 GREEN VALLEY 520.625.1095 | Fax 520.958.9663 190 W. Continental Rd., Ste. 226 Green Valley, AZ 85622

8 ORO VALLEY/LA CANADA 520.877.9200 | Fax 520.202.6348 11165 N. La Canada Dr., Ste. 143 Oro Valley, AZ 85737

9 ORO VALLEY/ORACLE

520.229.9194 | 520.297.2576 Fax 520.229.9210 | 520.742.5866 8500 N. Oracle Rd., Ste 100 Oro Valley, AZ 85704

10 RITA ROAD

520.618.7790 | Fax 520.901.1720 10222 East Rita Rd., Ste. 190 Tucson, AZ 85747

11 RIVER

520.529.1944 | Fax 520.615.2945 1650 E. River Rd., Ste. 105 Tucson, AZ 85718

12 SKYLINE

520.529.0506 | Fax 520.529.8998 2890 E. Skyline Dr., Ste. 200 Tucson, AZ 85718 13 TANQUE VERDE 520.202.2626 | Fax 520.495.6151 7479 E. Tanque Verde Tucson, AZ 85715

TUCSON INT'L AIRPORT Air Force WSilverbellRd
N M t L
ESascoRd W Avra Valley Rd E G and Va ey Dr NAguirre R d N L u c k e t R d N W e n t z R d N Wa terman Mounta i n R d N Anway Rd W El Tiro Rd N Trico Rd W Tucke Rd W Rudasi Rd W Manv l e Rd SSanJoaquinRd WBopp Rd W Snyder H Rd S M a r s t e a r R d W Park Rd W Hermans Rd W He mans Rd W Guy St W Bush Rd S G a r v e y R d N C a l e R i n c o n a d o S W i m o t R d S Shaw Rd S Sierrita Mountain Rd S K o b R d W Tw nButtes Rd W Mcgee Ranch Rd S E s t a n c a N Bea r C a n y o n R d W E Cam no De Cerro E Fairmount St S Swan Rd NFrontageRd W Emigh Rd W Fort Lowe Rd N P u m p S t a t ion dR Cont nental Ave N Trico Rd SOwlHeadGasLineRd N T r i c o R d W Bayard Rd S S a n d a r o R d N Dove Mountain Blvd SHelvetiaRd WAnamax Mine Rd W G a r c i a R a n hc R d Road424 WRagged Top Rd W Ruby S a Dr WBritten RanchRd W Pima Mine Rd ellRdS S Mcgee Ranch R d E Edw n Rd 8 0 NKINNEYRD N S A N D A R I O R D N ANWAY RD W VALENCIA RD W MOORE RD W INA RD N 1 S T A V E E SUNRISE DR E SNYDER RD
N S O L D I E R T R L E RIVER RD E PRINCE RD E SPEEDWAY BLVD S FREEMAN RD E 22ND ST E 22ND ST W IRVINGTON RD S N O G A L E S H W Y W VALENCIA RD SMISSIONRD W SPEEDWAY BLVD S O L D S P A N I S H T RL W NARANJA DR W TWIN PEAKS RD W PICTURE ROCKS RD W MANVILLE RD SKINNEYRD W MILE WIDE RD E SAHUARITA RD N TRICO RD S S A N D A R I O R D S OLD N O G ALES HW Y S H O U G H T O N R D S L A C A N A D A DR W HELMET PEAK RD WAJOHWY N S W A N R D S KOLB RD S HOUGHTON RD W TANGERINE RD E GRANT RD S H O U G H T O N R D 9 5 WAJOHWY E VALENCIA RD NORACLE R D I10 I-19 77 77 86 86 286 19 10 10 Corona de Tucson Casas Adobes Catalina Green Valley Picture Rocks Three Points Vail Summit Tanque Verde Tucson Sahuarita Saddlebrooke Marana Oro Valley Rillito Summerhaven Willow Canyon Oracle Junction Cortaro Continental Littletown 2 3 5 7 8 9 10 11 13 12 6 1 Southern Arizona First American Title Branch Locator TUCSON INT'L AIRPORT Air Force FreemanRd WSilverbellRd N M t L emmon Hwy ESascoRd NF 38 W Avra Val ey Rd S C u r y R d W Hanna Rd E Grand Va ey D W Houser Rd W Ph ps Rd E Co nman Rd NAguirre R d N L u c k e t R d N W e n t z R d N Wa terman Mounta i n R d N Anway Rd W El Tiro Rd N Trico Rd W Tucke Rd W Rudas Rd W Manv e Rd SSanJoaquinRd WBopp Rd W Snyde H Rd S M a r s e l a r R d W Pa k Rd W He mans Rd W Hermans Rd W Guy St W Bush Rd S G a v e y R d N C a l l e R i n c o n a d o S W i m o t R d S Shaw Rd S Sierrita Mountain Rd o b R d Rd W Woodru Rd N O v e
d R d W Rando
Rd W
N
R
N
E
W Kleck
E
W Se ma Hwy S Trekell Rd S Henness Rd E Selma
W Co nman Rd W Pretzer Rd S L
b R d S
Rd E
Rd E
W
E
S
emmon Hwy
NSILVERBELLRD
r i e
ph
Bartlett Rd
L a P a m a
d
Tweedy Rd
Randolph Rd
Rd
K eck Rd
Hwy
a m
La Palma
M gan
M gan Rd
A es Dr
Curtis Rd
E s a n c a D r
Hearth
o n R d W E Cam no De Cerro E Fairmount St S Swan Rd NFrontageRd W Emigh Rd GoffRanchRd NBarkervilleRd W Fort Lowe Rd N P u m p S a t ion dR E Nona Rd Ch efButteRd Lovetta dR E Hanna Rd Tecolot e RanchRd FlorenceRdRomeroRd Con nenta Ave BIA 30 N Trico Rd S S u n a n d G n R d S Cattle Tank Rd E E s Rd E Hotts Rd E Nutt Rd Evalyn Rd SOwlHead R a n c h Rd GasLineRd S P ec a n R d I on Va ey Rd EDeepWellRanchRd S N i g h S k y St S B a d y P u mp Rd E Houser Rd E Ar ca Rd W Ea ey Rd N T r c o R d W Baya d Rd S S a n d a r i o R d W i l l owSpri n gsRd EHelmwheel Ranch Rd N Dove Mounta n Blvd BIA-35 W G a r c i a R a n hc R d E Dese H s Rd WRagged Top Rd W Pima Mine Rd W S i l v erbellRdS E Edw n Rd BIA34 SGuildRd 8 0 NKINNEYRD S PICACHO HWY E GREENE RESERVOIR RD S SUNLAND GIN RD W BATTAGLIA DR AZ-84 E BAUMGARTNER RD S S U N S H I N E B L V D N S A N D A R I O R D N ANWAY RD E HARMON RD W VALENCIA RD E RODEO RD W MOORE RD W INA RD N 1 S T A V E E SUNRISE DR E SNYDER RD NSILVERBELLRD N S O L D I E R T R L E RIVER RD E PRINCE RD E SPEEDWAY BLVD S FREEMAN RD E 22ND ST E 22ND ST W IRV NGTON RD S N O G A L E S H W Y W VALENC A RD SMISSIONRD W SPEEDWAY BLVD S O L D S P A N I S H T RL W NARANJA DR W TW N PEAKS RD W P CTURE ROCKS RD W MANVILLE RD SKINNEYRD W MILE WIDE RD E SAHUAR TA RD W HARMON RD W MCCARTNEY RD N TRICO RD S S A N D A R O R D PARK LINK DR S H O U G H T O N R D D A DR E MART N RD S THORNTON RD W HELMET PEAK RD S CHUICHU RD WAJOHWY N S W A N R D S KOLB RD S HOUGHTON RD W TANGER NE RD E GRANT RD S H O U G H T O N R D N P I N A L A V E 9 5 WAJOHWY E VALENCIA RD NORACLE R D I10 I-19 I8 77 77 79 77 77 87 86 86 387 287 86 10 19 8 10 10 10 La Palma Chuichu Arizona City Corona de Tucson Casas Adobes Catalina Dudleyville Oracle Casa Grande Picture Rocks Three Points Vail Summit Tanque Verde Eloy Tucson Sahuarita Cactus Forest Picacho Red Rock Saddlebrooke Marana Oro Valley Haivana Nakya Rillito Summerhaven Willow Canyon Randolph Toltec Oracle Junction Cortaro Schuchk Littletown 2 4 3 5 8 9 10 11 13 12 6 1 TUCSON INT'L AIRPORT Air Force WSilverbellRd SSantaRitaRd N M t L emmon Hwy W Avra Valley Rd guirre R d N L u c k e t R d N W e n z R d N Wa terman Mounta i n R d N Anway Rd W El Tiro Rd N Trico Rd W Tucke Rd W Rudas Rd W Manv e Rd SSanJoaquinRd WBopp Rd W Snyder H Rd S M a r s e l a r R d W Park Rd W Hermans Rd W He mans Rd W Guy St W Bush Rd S G a r v e y R d N C a l e R n c o n a d o S W m o R d S Shaw Rd S Sierrita Mountain Rd S K o b R d W TwinButtes Rd W Mcgee Ranch Rd N Bea r C a n y o n R d W E Cam no De Cerro E Fairmount St S Swan Rd NFrontageRd W Emigh Rd W Fort Lowel Rd N P u m p S t a t ion dR N Trico Rd N T c o R d W Baya d Rd S S a n d a r o R d N Dove Mountain Blvd SHelvetiaRd WAnamax M ne Rd W G a c i a R a n hc R d Road424 ed Top Rd W Ruby S ar D WBritten RanchRd W Pima Mine Rd S Mcgee Ranch R d 8 0 NKINNEYRD N S A N D A R I O R D N ANWAY RD W VALENC A RD W MOORE RD W INA RD N 1 S T A V E E SUNR SE DR E SNYDER RD NSILVERBELLRD N S O L D I E R T R L E RIVER RD E PRINCE RD E SPEEDWAY BLVD S FREEMAN RD E 22ND ST E 22ND ST W IRV NGTON RD S N O G A L E S H W Y W VALENCIA RD SMISSIONRD W SPEEDWAY BLVD S O L D S P A N I S H T RL W NARANJA DR W TW N PEAKS RD W P CTURE ROCKS RD W MANVILLE RD SKINNEYRD W MILE WIDE RD E SAHUARITA RD N TRICO RD S S A N D A R I O R D S OLD N O G ALES HW Y S H O U G H T O N R D S L A C A N A D A DR W HELMET PEAK RD WAJOHWY N S W A N R D S KOLB RD S HOUGHTON RD W TANGERINE RD E GRANT RD S H O U G H T O N R D 9 5 WAJOHWY E VALENCIA RD NORACLE R D I-19 77 77 86 86 286 19 10 10 Corona de Tucson Casas Adobes Catalina Green Valley Picture Rocks Three Points Vail Summit Tanque Verde Tucson Sahuarita Marana Oro Valley Rillito Summerhaven Willow Canyon Cortaro Continental Littletown 2 3 5 7 8 9 10 11 13 12 6 1 AZ Sellers Guide | 23
Rd E Hemlock Dr N Bea r C a n y
05110280522
For more information please contact your First American representative. www.firstam.com First American Title Insurance Company, and the operating divisions thereof, make no express or implied warranty respecting the information presented and assume no responsibility for errors or omissions. First American, the eagle logo, First American Title, and firstam.com are registered trademarks or trademarks of First American Financial Corporation and/or its affiliates. ©2022 First American Financial Corporation and/or its affiliates. All rights reserved. NYSE: FAF

Turn static files into dynamic content formats.

Create a flipbook
Issuu converts static files into: digital portfolios, online yearbooks, online catalogs, digital photo albums and more. Sign up and create your flipbook.