
1 minute read
KEY FEATURES
Outside
The quintessential walled garden to the rear offers exceptional privacy and includes a potting shed located just beyond the study. The terracing continues through the garden which features lawns, raised beds, a summerhouse, and views of St James Church. .

Local Area
Chipping Campden is renowned for its stunning and historically significant high street, making it one of the most beautiful market towns and lies in area of outstanding natural beauty. Showcasing traditional Cotswold architecture and a diverse range of shops that cater to everyday needs. The town offers amenities such as a library, excellent primary and secondary schools, a doctor’s surgery, and a leisure center. excellent restaurants and public houses, countryside walks, cycling and horse riding . For larger shopping and cultural amenities, the nearby towns of Stratford-upon-Avon (approx 12 miles) and Cheltenham (18 miles) are easily accessible. Moreton-in-Marsh, approx 7 miles away of which provides a mainline train station with direct connections to London Paddington. Access to the M40 and M5 motorways are approximately a 30-minute drive.





Information
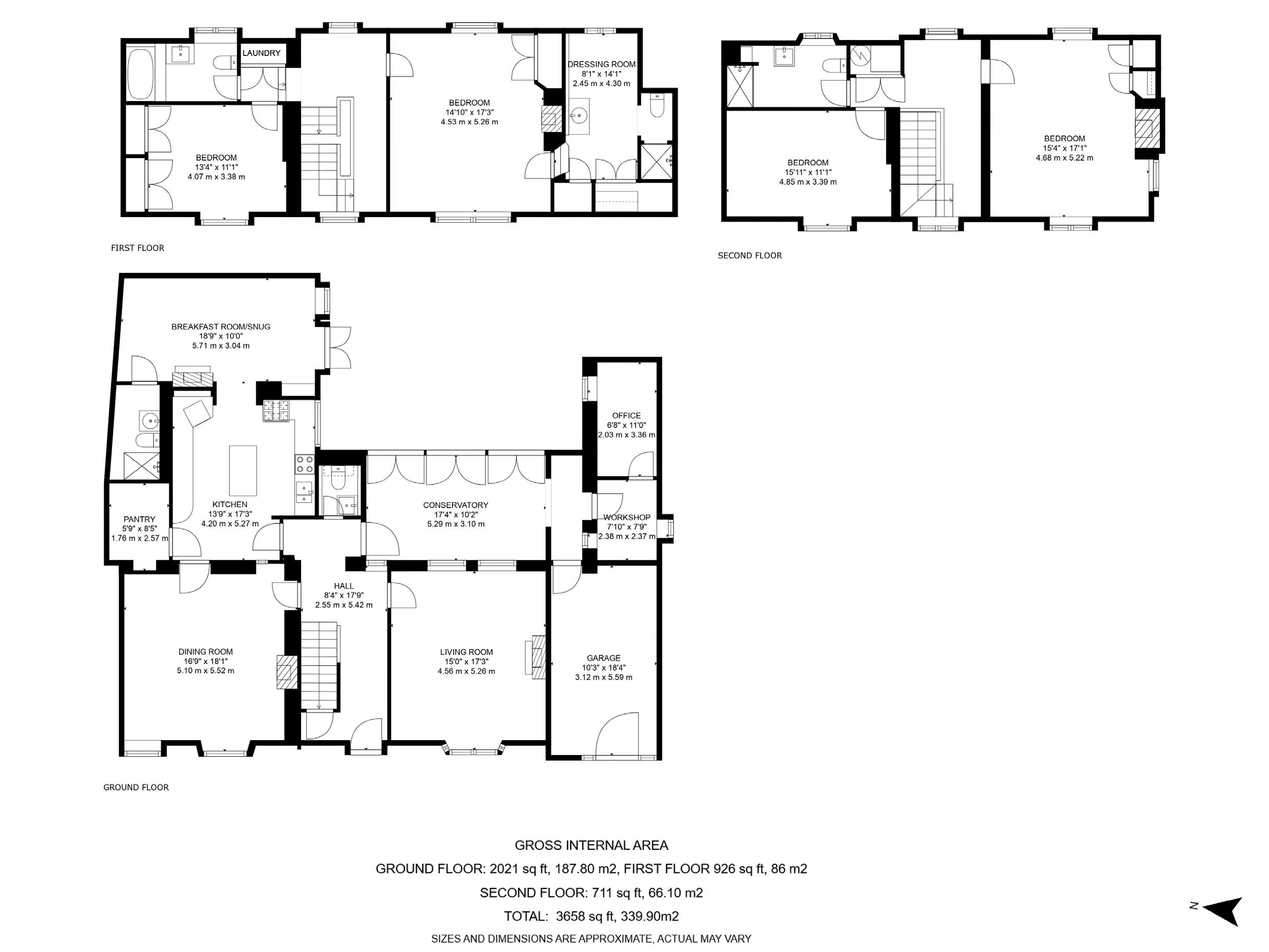
• Grade II listed family home

• Three reception room
• Ground floor shower room and cloakroom
• Conservatory leading onto the garden
• Four double bedrooms
• Master bedroom suite with dressing room and shower room
• First-floor bathroom and top-floor shower room
• Garage with electric, parking, workshop, and study
• Private walled garden
TENURE: Freehold
SERVICES: Mains gas, electricity and water are connected to the property
COUNCIL TAX: Band G Cotswold District Council
Agents notes: All measurements are approximate and for general guidance only and whilst every attempt has been made to ensure accuracy, they must not be relied on. The fixtures, fittings and appliances referred to have not been tested and therefore no guarantee can be given that they are in working order. Internal photographs are reproduced for general information and it must not be inferred that any item shown is included with the property. For a free valuation, contact the numbers listed on the brochure. Printed 10.07.2023


