ECOLODGE - MÁNCORA

Page 1

PORTAFOLIO

ECOLODGE MÁNCORA

FACULTAD DE ARQUITECTURA URBANISMO Y ARTES

Ancajima Samaniego, M. Fernanda Neira Rengifo, Karen L.

CONTENIDO 01

ECOLODGE 02

Ubicación, actividades cercanas, objetivos.

PLANIMETRÍA GENERAL 03

Planos, cortes, elevaciones y estructuras.

RENDER/3D

Render exteriores e interiores

Sobre el proyecto

La propuesta arquitectónica se basa en la necesidad deunamplioespacioderecibimientoparaelturismo que recibe el distrito de Máncora en la ciudad de Piuraalolargodelaño.

Los espacios ofrecen un gran confort al contar con ambientes según las propias necesidades del huésped, además de contar con amplios espacios verdes y grandes vistas hacia el principal atractivo dellugar:elmar.

01

Área: 10 hectáreas.

Límites

Norte: Colindante Este: Colindante Sur: Colindante Oeste: Av. Panam. norte.

6 1 5 4 2 3 1 Criadero natural de Iguanas 14 minutos caminando (1.2km) Ceremonias de Ayahuasca 45 minutos caminando (3.7km) 2 Aeródromo Walter Braedt Segú 14 minutos en carro (6.2km) 3 4 Playa El Amor 32 minutos caminando (2.7 km) Playa de Máncora 14 minutos caminando (1.2km) 5 Playa Las Pocitas 17 minutos en carro (1.5m) 6

“Ecolodge en el distrito de Máncora, Piura - 2022” Título

Objetivo Implementar un complejo turístico ecolodge de carácter sostenible con influencia a nivel distrital, que realce el paisaje de la zona en la que se encuentra.

Identificar las actividades recreacionales más demandadas por los turistas/usuarios para implementar ambientes que cubran sus necesidades.

Identificar los materiales y sistemas constructivos de la zona para implementarloseneldiseñodelcomplejoturístico.

Identificar las características del contexto físico del terreno que puedencondicionarformalmentealcomplejoturístico.

ECOLODGE Objetivos
02
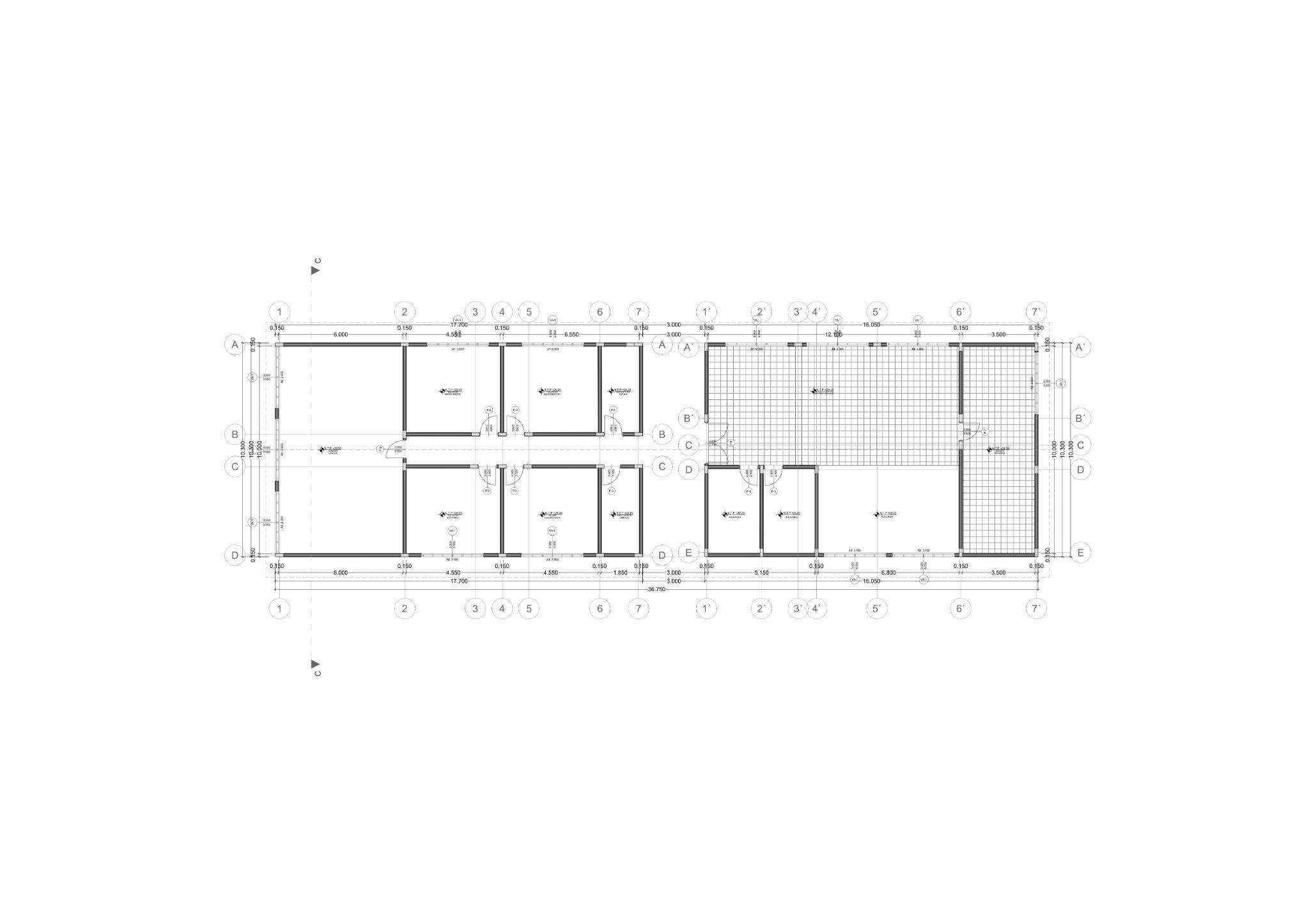
PLANIMETRÍA GENERAL PLANO GENERAL - ECOLODGE

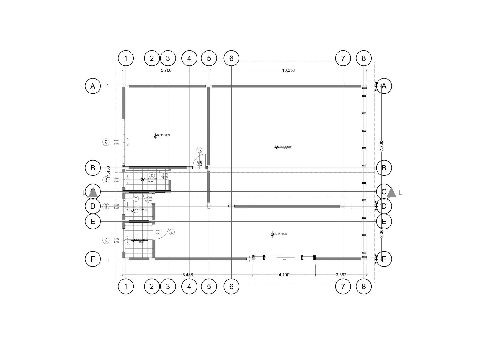
Administración

CORTEA-A ESC 1/100

PLANOADMINISTRACIÓNYRECEPCIÓN

ESC 1/75

PLANIMETRÍA GENERAL ÁREA ADMINISTRATIVA Y RECEPCIÓN

Servicios generales

CORTE B-B ESC 1/100

PLANIMETRÍA GENERAL ÁREA DE SERVICIO PARA EL PERSONAL DE TRABAJO
PLANO SERVICIO PARAELPERSONALDETRABAJO ESC 1/75

Servicios generales

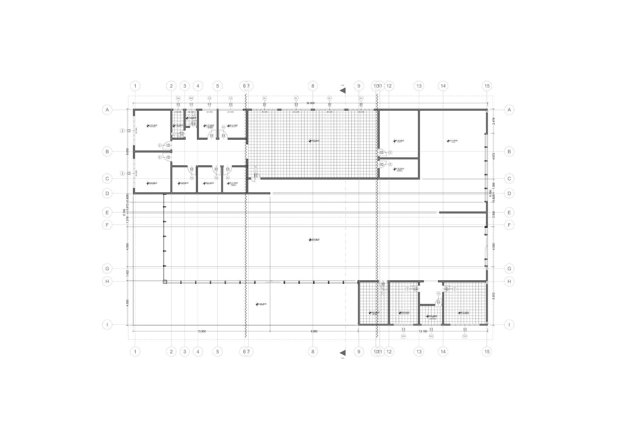
PLANIMETRÍA GENERAL ÁREA DE SERVICIO
SERVICIO ESC 1/75
C-C ESC 1/100
PLANO
CORTE
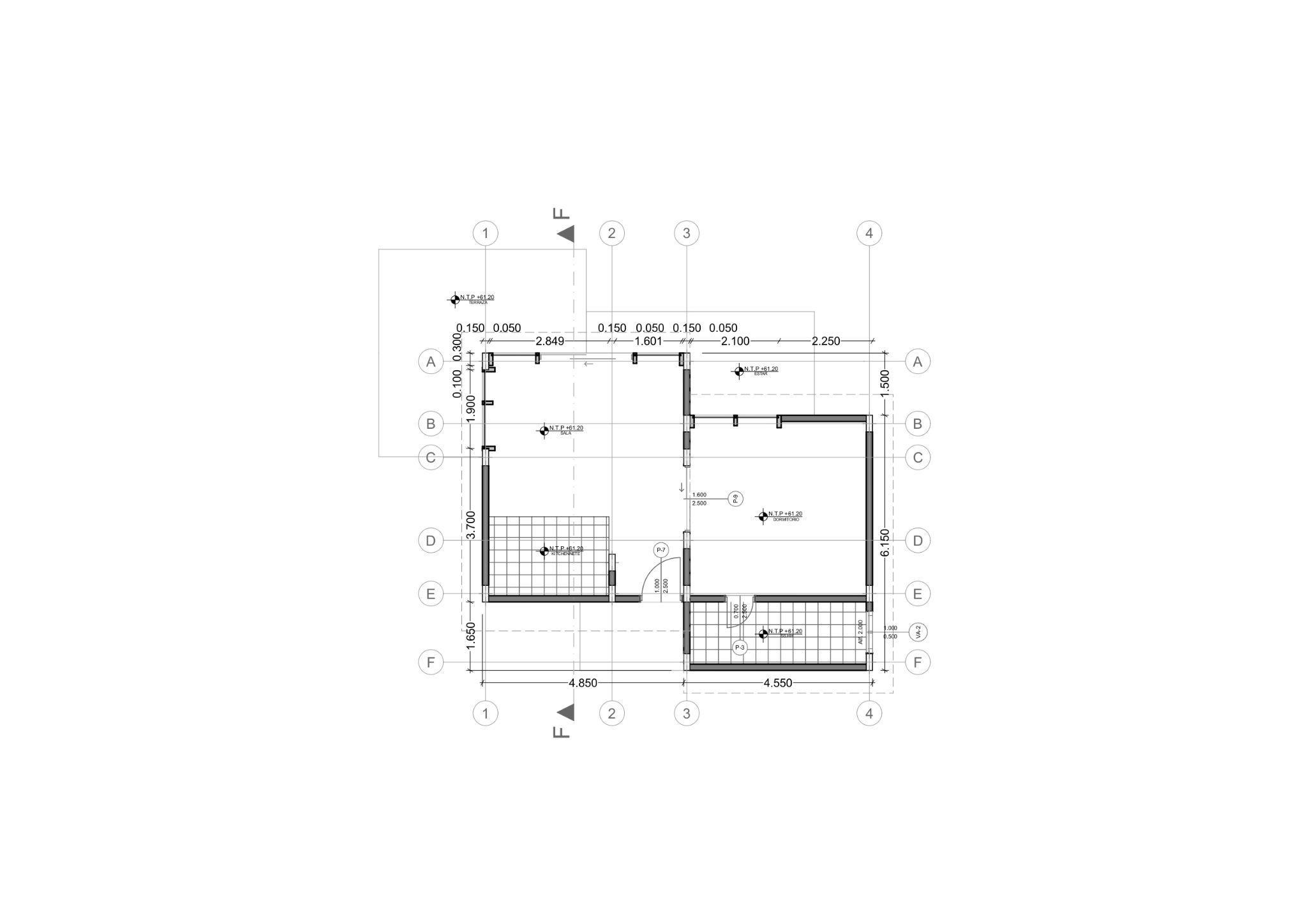
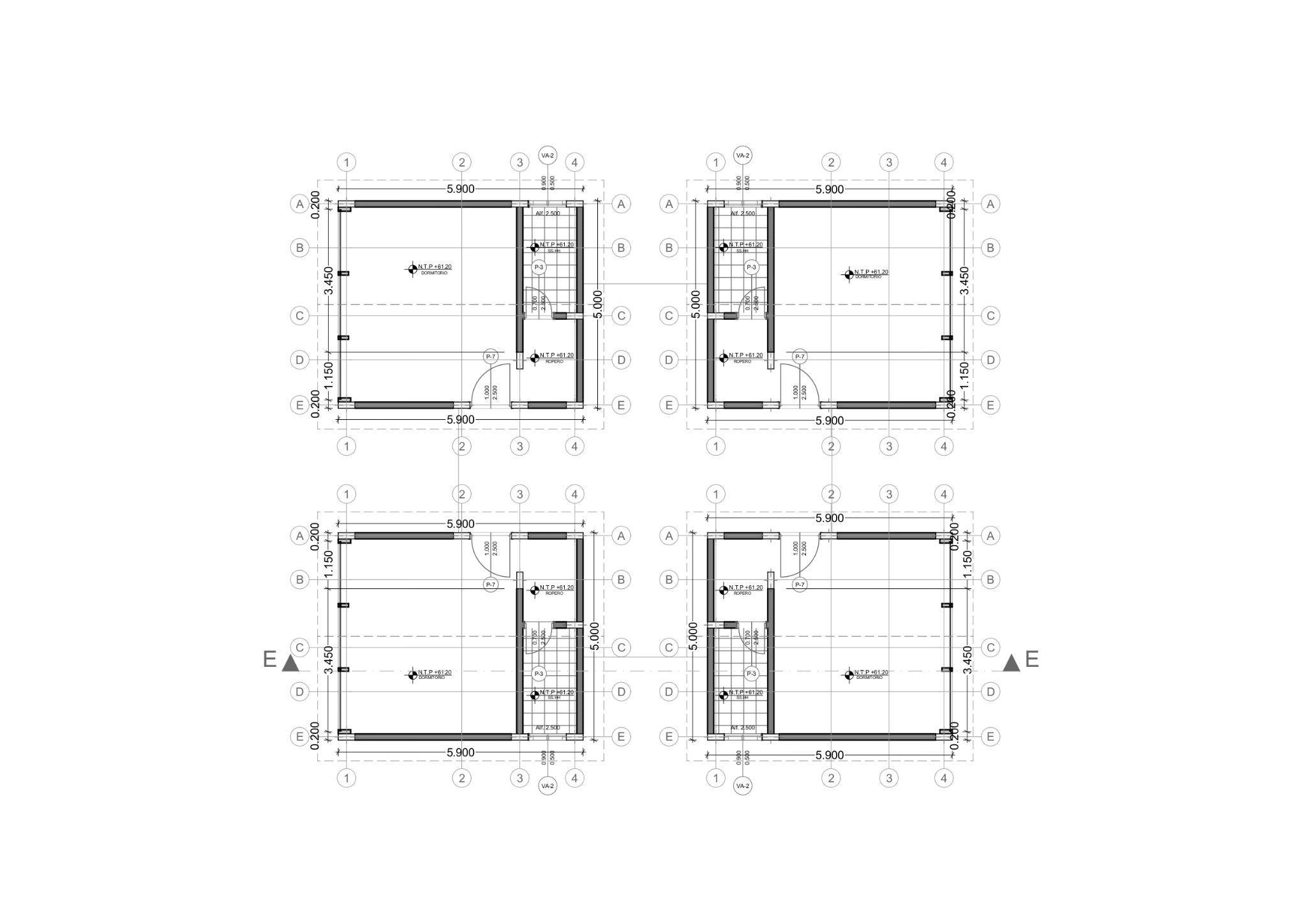
PLANIMETRÍA GENERAL ÁREA ALOJAMIENTO DORMITORIO TIPO 1
DORMITORIOTIPO 1 ESC 1/75
Alojamiento
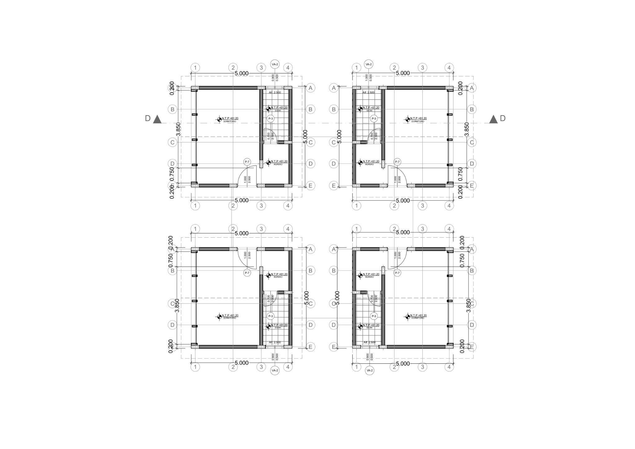
PLANO
ESC
CORTE D-D
1/100
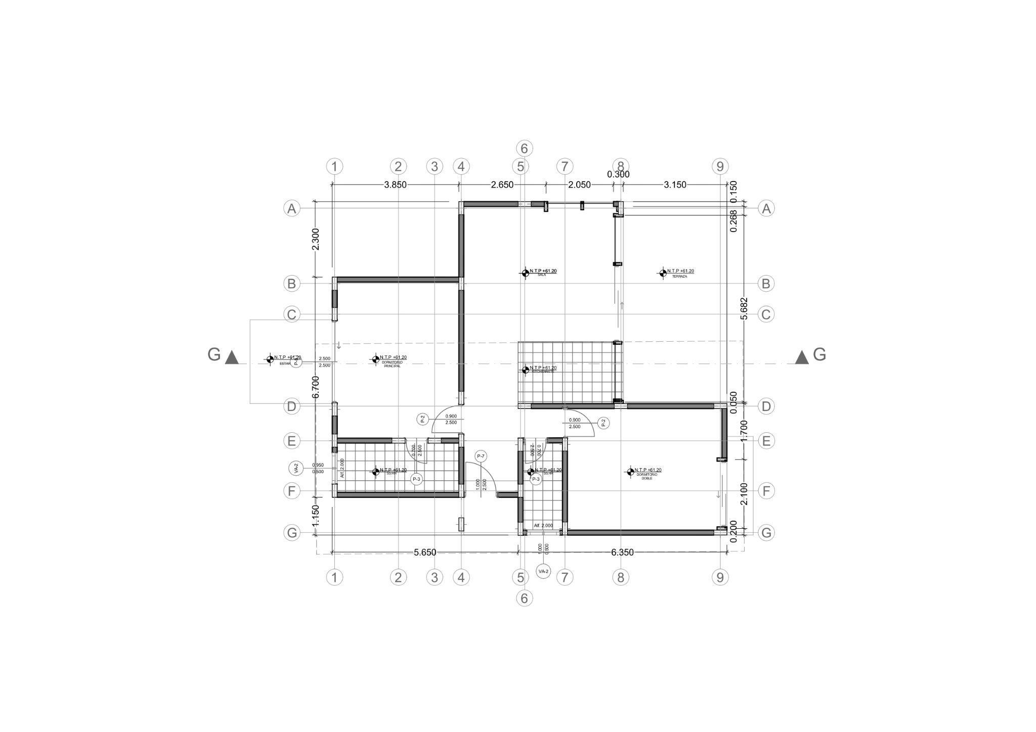
PLANIMETRÍA GENERAL ÁREA ALOJAMIENTO DORMITORIO TIPO 2 PLANO DORMITORIOTIPO 2 ESC 1/75
E-E ESC 1/100
Alojamiento
CORTE
PLANIMETRÍA GENERAL ÁREA ALOJAMIENTO BUNGALOWS TIPO 1 CORTE F-F ESC 1/100
Alojamiento
PLANIMETRÍA GENERAL ÁREA ALOJAMIENTO BUNGALOWS TIPO 2
Alojamiento
PLANIMETRÍA GENERAL ÁREA ALOJAMIENTO BUNGALOWS TIPO 3
Alojamiento

Recreación

CORTE I-I ESC 1/100

PLANO RESTAURANTE ESC 1/75

PLANIMETRÍA GENERAL ÁREA RESTAURANTE

Recreación

CORTE J-J ESC 1/100

PLANO SPA ESC 1/75

PLANIMETRÍA GENERAL ÁREA SPA

Recreación

CORTE L-L ESC 1/100

PLANO SALADE USOS MÚLTIPLES

ESC 1/75

PLANIMETRÍA GENERAL ÁREA
SALA DE USOS MÚLTIPLES

Recreación

PLANIMETRÍA GENERAL ÁREA GIMNASIO
PLANIMETRÍA GENERAL CORTE A - A
PLANIMETRÍA GENERAL CORTE B - B
PLANIMETRÍA GENERAL ELEVACIÓN FRONTAL
03
RENDER/3D Render exteriores e interiores
RENDER/3D Render exteriores e interiores
RENDER/3D Render exteriores e interiores
RENDER/3D Render exteriores e interiores
RENDER/3D Render exteriores e interiores
RENDER/3D Render exteriores e interiores
RENDER/3D Render exteriores e interiores
RENDER/3D Render exteriores e interiores
RENDER/3D Render exteriores e interiores
RENDER/3D Render exteriores e interiores

DOCENTE: Arq. Choquehuanca Alonso, David

UNIVERSIDAD PRIVADA ANTENOR ORREGO

Turn static files into dynamic content formats.

Create a flipbook
Issuu converts static files into: digital portfolios, online yearbooks, online catalogs, digital photo albums and more. Sign up and create your flipbook.