
4 minute read
Panorama Hotel
The Panorama Hotel is known as the abandoned unfinished structure up the hill on the way to the touristic point Parque da Cidade, where thousands of tourists visit every year for catching the amazing sunsets with Rio skyline view and watch the paragliders jumping.

Advertisement

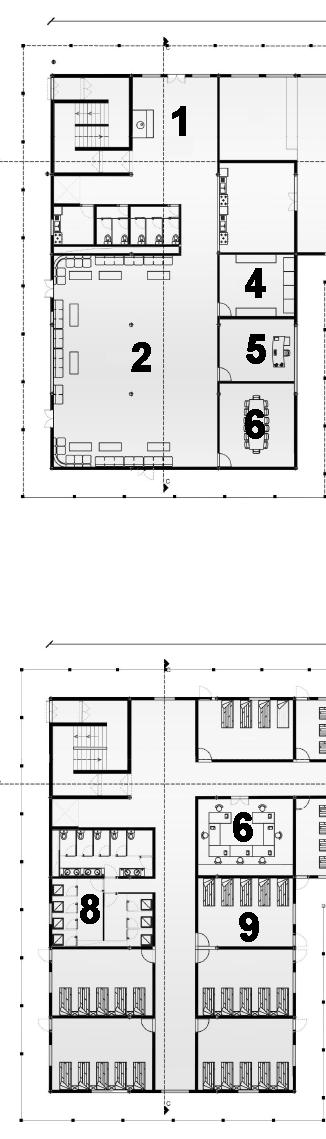
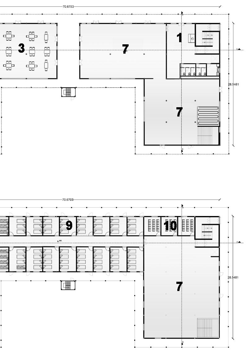
The project aim is the development of an ecological hotel complex for leisure and business tourism, taking advantage of the 1970’s existing structure, surrounded by the natural state park and facing the stunning view. The new complex increase the pre-existing structure vertically and add an annex building for leisure activities and social events.
While the existing structure on pilotis dances following the rugged topography, the annex building floats straight with its simple form, in order to dialogue and be embraced by the pre-existing building bachelor final thesis site: Niterói, RJ - Brasil year: 2019






Paralimpsesto
At a first moment the design exercise was an approximation of the territory of Machu Picchu and its surrounding. The problem presented to be worked on highlights the exorbitant increase of visitors of Machu Picchu whose host in Águas Calientes, a touristic city with an uncontrolled growth that suffers constantly with floods.



Elaborating sections in the territory, our attention turned to the region of Santa Teresa, located due to its lower slope compared to the neighbor cities. While Aguas Calientes could be remodeled to meet new tourism demands, our focus turned to Santa Teresa as a way to decentralize the infrastructure, expanding the tourism zone throughout the valley, connected by the preexisting train station and linking the Sacred Valley sites.

post graduation site: Santa Teresa, Peru year: 2022 partners: André Haidar and Nicole Reginato a very old text or document in which writing has been removed and covered or replaced by new writing. sports court - moving the habitants of águas calientes from risk areas for a new site with infrastructure and recreation. bleachers with a roof awning for water caption. bus station - the most used local transportation and the only way to take tourists at machu picchu, excepting the trekking adventurers santa teresa market hall - shelter for the handicraft and food market, supported by the high flow of tourists that arrives daily in the city. train station - the mainly connection between the city of santa teresa and the whole sacred valley, coming from ollantaytambo and passing through águas calientes. sun-erda






The proposal is based on the group approach of sustainable techniques in order to create a self-sustainable eco village with zero impact buildings. As a group division for environmental interventions, we became responsible to provide energy for the whole masterplan.
Analyzing the surrounding and the neighborhood needs, was taken the decision to create a hostel nearby Dampoort train station, with an addition of an Energy Exposition Centre. The aim of the program is to host and educate the substantial visitors that Gent receives.
The mainly approaches for energy generation are the geothermal energy, the potovoltaic parabolics, the photovoltaic glasses and a huge battery for storage, which is for exposed at the exposition centre.

Exchange Program at KU Leuven MArch site: Gent, Belgium year: 2017 partners: Sheida Tabrizi and Nina Rapp



The main goal of the group was to adopt techniques that would generate energy not only for our building but for the whole village.
On the mainly building’s roof we used structures with movable parabolics covered with reflective material and a central photovoltaic piping, enabling greater absorption of solar energy than a conventional photovoltaic panel.


The rainwater accumulated inside the parabolic is poured into lateral structures which have pipes that lead the water into de interior of the building for reuse.
As Belgium is a country with long, very cold, windy, and mostly cloudy winters, the heating system is essential. The geothermal energy takes on a role of supplying the area demand. This technology utilizes pipes with water heated from the interior of the Earth and is considered a renewable energy source as the heat is constantly.
The photovoltaic glass is plus for energy generation. Composed of semitransparent solar cell sheets, photovoltaic glass is a technology that resembles common glass, but is capable of generating electricity from sunlight through the photovoltaic effect, just as it happens in traditional solar panels.
Samba Pequena Park
Luanda is a city of many layers, not only symbolic and cultural due to the colonization, but also architectural and geographical. The approach at Baía do Samba Pequena for this design exercise was based on an aerophotogrammetry analysis from the past 20 years. The images show an alteration process along the bay, which the sandbanks are moving and transforming the bay shore constantly. Acting between the musseques and the bay, the proposal offers to the city an urban breath, green lunghs in a arid weather with a public space destinated for recreation, sports and culture. Together with the sanitation axis, equipped for water treatment, the project creates a new front for the city.






post graduation project site: Luanda, Angola year: 2022 partners: Felipe Félix and Nicole Reginato



Art Cathedral
Situated a few kilometers from the medieval town of Kilkenny, the nearly millenary structure remains standing marked by the time and the storied lived. The great stone walls and the seven towers that once served for protection now house art, creation and experience. The mixed program gives the public the opportunity to be in touch not only with the architecture and the expositions but also with the guest artists working and creating.
The design approach is characterized by it forms as the retrospective of the monumentality that the cathedral had in the past. The illuminated polycarbonate structure performing the nave aisle and transept it is possible to be seen from the horizontal rural landscape. The light and the clear color for the new architecture is a central object, contrasting and respecting the preexisting, touching gently the stone walls for the shelter.







