Skip to main content

Bethesda Row Partnerships & Activations

Page 1


BRAND PARTNERSHIPS & SPONSORSHIP OPPORTUNITIES

Bethesda, MD

NEIGHBORHOOD ROOTS, GLOBAL SENSIBILITIES

Bethesda Row —just seven miles north of Washington, D.C.—is a thoughtfully curated mixed-use district that combines best-in-class retail, offices, and residential living within a vibrant, walkable environment that draws one of the most affluent, educated, and influential audiences in the nation.

Guests return frequently to experience a compelling mix of national brands, first-to-market concepts, local favorites, and digitally native innovators all in a setting that embodies sophistication, taste, and community. For brand partners, Bethesda Row offers a powerful platform to engage discerning consumers where culture, commerce, and lifestyle converge.

531,000SF, 40+ Retailers, 30+ Restaurants RETAIL 01 02

180,000SF in 7 entrances

180 units of Residential: Upstairs at Bethesda Row 0 3

SPACES

SIGNAGE EXAMPLES & SPECS

Elm Street Garage- Elm

Street Entrance

Retail P2-at grade 221 spaces

Residential- P1- below grade

4 Banners: 4’4”w x 7’3”h

Backlit Signs/ Garage

Retail Level P1

Signs 6x- 36”w x 57”h

Rolltop Door:
Bethesda Lane 1x 6’w x 7’6”h
Windmasters 4x 24”w x 36”h

PROGRAMMING

01

HEALTH & WELLNESS

Monthly wellness series held in partnership with Equinox and other local experts.

BETHESDA ARTS FESTIVAL 0 2

Annual event held in the fall attracts a fashionable wellheeled customer.

03

0 4

KIDS CLUBS SOIREE ON THE LANE

Held monthly in partnership with our tenants.

Shop for a cause/ Fashion led programming on a quarterly/ semi-annual cadence- can be customized.

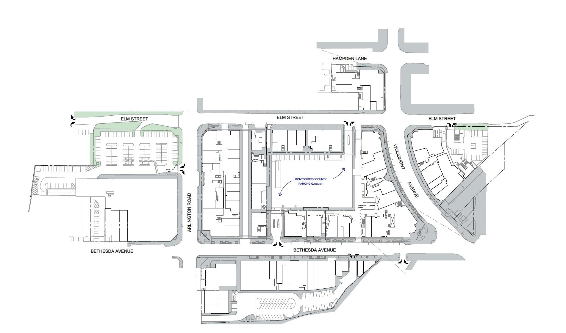
SITE PLAN

Activation Space

Directory

Garage Signage/ Backlit Signs

Windmasters

Backlit Signs/ Garage Retail Level P1 Signs 6x- 36”w x 57”h

Murals/ Billboards/ Large Banners

Elm Street Garage- Elm

Street Entrance

Retail P2-at grade 221 spaces

Residential- P1- below grade

4 Banners: 8’h x 4’w

Vestibule Signage Elm Street Activation Area 12’w x 10’l

ELM St Garage- Bethesda Lane Entrance

Services Retail & Residential

1 existing sign (5’10”w x 4’7”h), space on opposite wall

Rolltop Door 7’6” h x 6’ w

Bethesda Lane D 17’x 32’l Bethesda Lane C 17’x 32’l

Bethesda Lane B 17’x 32’l

Bethesda Lane A 17’x 32’l

Turn static files into dynamic content formats.

Create a flipbook