Architecture Portfolio Frédéric De Keyzer

Page 1

2024
Frédéric De Keyzer

residence languages

date of birth

email

LinkedIn

Frédéric De Keyzer 0.

Bruges (Belgium)

Dutch, English, French 18 March 1999

fredekey@gmail.com

www.linkedin.com/in/frédéric-de-keyzer-91a072272

Education

Stedelijke Academie Brugge DKO

Universiteit Gent

ISCTE Lisbon

Fine Arts

Bachelor of Science in Engineering: Architecture

Master of Science in Engineering: Architecture

Master of Architecture

Experience

Jonckheere ir-architecten

summer internship modelling with Revit

MAKER architecten

2023-2024

- The Dome, Tuighuisstraat, La Era 2005-2017 2017-2020 2020-2023

internship Orde van Architecten

various work, including:

- graphical work, model making, layouting

- adjusting plans (from concept to executive stage)

projects worked on:

- Wakkerzeelsebaan Zuid, Update Campusplan Merelbeke, Peereboom

2022 2022

Knowledge graph

draw
Indesign Photoshop
Illustrator Sketchup Dialux Maple Simapro EPBsoftware Excel Revit 100 0 1. p 4-9 2. p 10-15 4. p 20-21 7. p 26-27 10. p 32-33
Sneak
peak visualise calculate
Twinmotion
Autocad

1.1. a step-by-step process was used to explain the construction principle

Learning from Milan 1.

location institution course year collaboration

Giardino dell’Arcadia | Milan (Italy) Universiteit Gent

Studio C | 1st master 2021

In the centre of the Italian city of Milan, a garden is occupied on all 4 sides by appartement buildings. Our goal was to add another building to this area. A square tower is put near the exit of the garden. It is comprised of slabs stacked on top of each other. By using a structural cross made out of concrete, the floors can be arranged as the occupant wishes.

1.3. view street. the condominio creates a new entrance to the park 1.2. location in site.

1.4. view studio.

“These are not apartments, but villas stacked on top of each other.”

4
1.2. 1.1.
5 1.4. 1.3.
1. Learning from Milan
6
1.5. axometric view of the entrance pavillion 1.5.
7 0 0 1 2 5 0 1 2 5 0 1 2 5 1.6.
1.7.
1.6. 1.7.
plan 2 and 2 bedroom apartements
plan studio and 3 bedroom apartements 1. Learning from Milan
8
1.8. 1.9. 1.10.
1.8., 1.9. & 1.10.
model pictures.
9
Hans Verstuyft Architecten House with office 1. Learning from Milan 1.12. perspective giardino
1.11.
1.11. to contrast the heavy concrete bearing structure, lighter wooden panels were used for the facade 1.12.

The belt line 2.

In the east of Lisbon, in an area called Braço de Prata, an undeveloped strip of land runs from the railway line to the coast. Of the once vibrant industrial area, now only abandoned warehouses remain. The refurbishment of the strip focusses on 3 main aspects.

First, a connection is made from the upper neighbourhood to the coast. The silos then get refurbished along this new corridor, making new activities happen in the process. Lastly, a new grid is introduced on top of the existing area. This provides a rigid framework for the construction of new additions to the site.

10
location institution course year collaboration Braço de Prata | Lisbon (Portugal) ISCTE Lisbon Architecture Project II | 1st master 2022 / 2.1. pictures of the site. the abandoned former industrial site gives an opportunity for a new connection from the elevated residential area in the west to the coast in the east 2.2. location of the site on the Lisbon railway network
2.2.
2.1.

2.3. site plan. a rigid grid is superimposed on the site

11
2.
connection rehabilitation grid
The belt line
2.3. 2.4.
12 1. 1. 2. 2.,3. 3. 4. 2.5.
13 4. 5.
5.
2.5. concept sketch 2.6. view sketch 2. The belt line 2.6.
14 resting grid connection environment D D C C B B A A 2.7. composition of the site 2.7.

waterproof membrane

• insulation

vapour control membrane

filling layer

• concrete slab

flooring

• framing filling layer

• concrete slab

2.8.

2.8. isometric view grid. concrete beams and columns are used to create a flexible structure, easily adaptable to the already established grid on the site

15
2. The belt line

Pluswonen 3.

Universiteit Gent Architectuurontwerp 3 | 3rd bachelor 2020

The first goal of this project was to make a building that connected with its surroundings. By making the atelier accessible on both sides, a “meeting in between the water” is possible. Furthermore, this atelier is moved further back from the main road. This not only creates a new square in front, but also makes a new direction for the middle part of the building. This way, new views get created from the house to its surroundings.

16
location institution course year collaboration
3.1.
3.2. 3.1.
back and front facade, folded flat
17 3. Pluswonen
3.3. collage front facade
3.3. 3.4.
3.4. collage atelier

The second goal was to make a housing complex that was flexible in its use. As time progresses, the makeup of the family changes, people move in and out, a part of the unit gets converted into appartements,…. A building must thus be able to carry this change in environment. By making the atelier accessible from the housing, separating the circulation and creating multiple independent bedrooms, this changes can be made without altering the structure of the building.

18 floor 0
1 2 5 0 3.5. floor plans 3.5.
19 1 2 5 0 floor 1 floor 2 3. Pluswonen

model of surrounding site

The site of the old port of Ghent is currently undergoing a transformation. Old silos, long without a use as the port of Ghent moved further north, are getting revitalised and transformed into apartment buildings and co-working spaces.

Loods Machtelynck however, has not yet went through with this transformation. In this project, the old silo now used for storing boats gets converted into an apartment building with a big coworking space. The old concrete grid gets supplemented with a new one, this time made out of steel. In this way, a distinction between old and new can easily be made.

Loods Machtelynck 4.

location institution course year collaboration

Santospad | Ghent (Belgium) Universiteit Gent Architectuurontwerp 2 | 2nd bachelor 2020 /

4.2. axometric view of the construction. a new steel structure gets added to the already existing concrete structure

perspective central hall

20
4.3.
4.1.
4.1. 4.3. 4.2.
21 4. Loods Machtelynck
facade E 4.4. 4.5.
section E-W

location institution

course year collaboration

Bondgenootschap 5.

Groendreef 91 | Ghent (Belgium)

Universiteit Gent

Architectuurontwerp 3 | 3rd bachelor 2021

5.1. & 5.2.

section new addition. a wooden framework was used to differentiate the new addition from the ceramic bearing structure of the existing buiding

22
A. B. C. +43 -28 0
A. B. C.
5.1.
5.2.
23 5.3.
courtyard 5.4. view new addition 5. Bondgenootschap 5.3. 5.4.
view

location institution course year collaboration

returning to the essence modernising bay structure creating new spaces 6.1.

Materniteit 6.

Bijlokekaai 3 | Ghent (Belgium) Universiteit Gent Renovatie | 2nd master 2022

Amet-Allah Chafai, Hanne De Groote, Robin Gillet, Ruben Leroy & Philippe Soubrier

6.3.

6.2.

view interior. the rythmic bay structure is highlited

view site. later additions to the building were removed, returning it to its “purest form”

24
6.2. 6.3.

perspective terrace. the floor of the demolished addition is kept as a reminder tot the past of the building

6.5.

perspective square Bijlokekaai

25
6.4.
6. Materniteit
6.4. 6.5.

Building Informatics Modelling 7.

IM Snedes

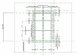
26 0 gelijkvloers 0 1e verdiep 3270 2e verdiep 6340 a 0 gelijkvloers top 2600 -1 fundering -1020 1 A102 e f b g h 3340 4670 3090 5829 1565 8010 3090 7394 1 920 1e verdiep 3270 e opdracht ontwerpen eigen woning datum 15 december 2021 notities 1e verdiep 3270 e 0 gelijkvloers 0 1e verdiep 3270 2e verdiep 6340 gelijkvloers top 2600 -1 fundering -1020 g h 5829 1565 7394 1 2 5
920 1460 1860 student Frédéric De Keyzer groep 27 begeleider Paulus Present opdracht ontwerpen eigen woning datum 15 december 2021 notities
1e verdiep 3270 e 0 gelijkvloers 0 1e verdiep 3270 2e verdiep 6340 gelijkvloers top 2600 -1 fundering -1020 g h 5829 1565 7394 1 2 5 4 920 1460 1860 student Frédéric De Keyzer groep 27 begeleider Paulus Present opdracht ontwerpen eigen woning datum 15 december 2021 notities
4
IM Snedes
location institution course year collaboration / Universiteit Gent Informatiebeheer in architectuur- en bouwprojecten | 1st master 2021 / 7.2. transversal and longitudonal section 7.1. callout 1 | A102 7.2. 7.1.

Structural Framing Schedule

Structural Framing Schedule

1x3: 64

7x18

UB-Universal Beams: I-ligger

Timber: 14x14: 6

1 0.02 m³

UB-Universal Beams: I-ligger

UB-Univers al Beams: I-ligger

UB-Universal Beams: I-ligger: 1

UB-Univers al Beams: I-ligger

UB-Universal Beams: I-ligger: 1

27 student Frédéric De Keyzer groep 27 begeleider Paulus Present opdracht ontwerpen eigen woning datum 15 december 2021 notities IM Dakwerk
Family and Type Length Count Volume Timber: 1x3 Timber: 1x3 4620 46 0.00 m³ Timber: 1x3 4653 9 0.00 m³ Timber: 1x3 6675 9 0.00 m³ Timber: 1x3: 64 Timber: 7x18 Timber: 7x18 3200 3 0.05 m³ Timber: 7x18 4513 9 0.06 m³ Timber: 7x18 6775 9 0.09 m³ Timber: 7x18: 21 Timber: 14x14 Timber: 14x14 3200 2 <varies> Timber: 14x14 4000 1 0.06 m³ Timber: 14x14 4235 1 0.08 m³ Timber: 14x14 4261 1 0.08 m³ Timber: 14x14 6600 1
m³ Timber:
0.12
14x14: 6
4040
student Frédéric De Keyzer groep 27 begeleider Paulus Present opdracht ontwerpen eigen datum 15 december 2021 notities IM Dakwerk
Family and Type Length Count Volume Timber: 1x3 Timber: 1x3 4620 46 0.00 m³ Timber: 1x3 4653 9 0.00 m³ Timber: 1x3 6675 9 0.00 m³ Timber:
Timber:
Timber: 7x18 3200 3 0.05 m³ Timber: 7x18 4513 9 0.06 m³ Timber: 7x18 6775 9 0.09 m³ Timber: 7x18: 21 Timber: 14x14 Timber: 14x14 3200 2 <varies> Timber: 14x14 4000 1 0.06 m³ Timber: 14x14 4235 1 0.08 m³ Timber: 14x14 4261 1 0.08 m³ Timber: 14x14 6600 1 0.12 m³
4040
1 0.02 m³
student Frédéric De Keyzer groep 27 begeleider Paulus Present opdracht ontwerpen eigen woning datum 15 december 2021 notities IM family raam student Frédéric De Keyzer groep 27 begeleider Paulus Present opdracht ontwerpen eigen woning datum 15 december 2021 notities IM family raam 7.3. structural framing schedule of the roof 7.4. window family: customizable based on parameters 7. Building Informatics Modelling 7.3. 7.4.

Life-cycle stages included in the study

material when it would be more logical to replace it. Subsequently, a fraction reuse is applied for each component in each annual jaarverpl to know the percentage of each component that can be reused when the temporary structure is moved. This reuse fraction is created by converting the TV.

A production

A1 raw material extraction

A2 transport

A3 manufacturing construction

B use

C end of life

A4 tran sport to site

A5 construction & installation

B4 replacement

B5 movement

C1 deconstruction & demolition

C2 transport to waste processing

C3 waste processing

C4 disposal

Table 1: Life-cycle stages included in the study, based on [18].

Once all the factors had been identified, the results of the conventional method could be translated into a more accurate result for temporary structures. These are divided into two phases: the B4 "Replacement"

Figure 2: Comparison environmental impact system/year

Demountability of temporary constructions and their environmental impact

/

Universiteit Gent thesis | 2nd master 2022-2023

Now that the main results had been determined, it was possible to delve deeper into certain aspects through several sub-studies. A first sub-study compared the relationship between the disassembly potential and the results of the new method established in this master’s thesis. There appeared to be a linear correlation between the two, as clearly shown in Figure 3. Materials with a higher disassembly potential generally achieved a lower environmental

Climate change is becoming an increasingly important issue. A major contributor to this climate change is the construction industry. Reducing the environmental impact of these buildings requires a shift from a linear to a circular economy. This entails, among other things, reusing existing building materials as much as possible, limiting the extraction of raw materials and applying circular design strategies. In addition to the negative effects on the environment, the linear way of building also has an impact on the social aspects of society. For example, the linear way of building leads to static, unchangeable buildings that do not meet the evolving needs of society. conventional LCA-method new LCA-method for temporary constructions

In this research, a process consisting of six steps was determined in order to investigate whether the implementation of circular design strategies on a hypothetical temporary structure can reduce the environmental impact at the end of its lifespan after multiple cycles of assembly and disassembly. This was done using a life cycle analysis (LCA). The conventional LCA method barely accounts for multiple life cycles, thereby neglecting the potential reuse of materials. Based on the Design for disassembly principle (DfD) “disassembly potential” and the conventional LCA method, a new method was developed to better determine the environmental impact of temporary structures. The aim of this master’s thesis is to demonstrate that circular principles such as “disassembly potential”, applied to temporary structures, can result in a reduction of the environmental impact. This at the end of the lifespan after multiple cycles of assembly and disassembly, compared to traditional building systems. The results of the study show that the application of circular building systems, which take into account the principle of the “disassembly potential”, leads to a reduced environmental impact at the end of the lifespan compared to traditional building systems.

28
8.1.
location institution course year collaboration
8. 8.1. 8.2.

year of movement [year]

015304560

year of movement [year]

The new method for calculating the LCA of temporary constructions is then applied to multiple different elements. Above are two examples presented: the wall of the “wood skellet” and the “wood solid” system. Every 15 years, the temporary construction is dismantled and reconstructed somewhere else. On the left is the increase in environmental impact of this process visible, further divided by material.

“wood skelet” wall element

“wood solid” wall element

On the right is the cumulative mPt-score of the whole process visible, subdivided by Life-cycle stage. While the “wood solid” system had a higher initial impact (year 0), it increases far less every 15 years dus to its high “disassembly potential”. At the end of its life, it thus ends with a lower environmental impact than the “wood skellet” system”.

relatie losmaakbaarheidsindex en milieu-score

losmaakbaarheidsindex [LIe]

Comparison environmental impact system/year

In a subsequent study, all elements were compared with each other, the results are visible in Figure 8.4. What emerged was that while the systems were mainly ranked by material, the disassembly of materials did play a role. For instance, the best scoring ceramic element “ceramic stack” achieved a lower environmental score than the worst scoring wooden element “wood frame”. Within the materials themselves, a big difference was present. The difference between the worst and best scoring steel elements, for example, was 600 Pt.

Correlation between the disassembly potential and the environmental score

The relationship between the disassembly potential and the results of the new method established in the master’s thesis was also studied. There appeared to be a linear correlation between the two, as clearly shown in Figure 8.5. Materials with a higher disassembly potential generally achieved a lower environmental impact. This can be explained by the fact that part of the “disassembly potential” is included in the final environmental impact results of the new method.

8. Demountability of temporary constructions and their environmental impact

29
0 2000 4000 6000 8000 10000 12000 015304560 environmental impact [mPt/m²] time [year] C4 C3 C2 C1 B5 B4 A5 A4 A1-A3 0 500 1000 1500 2000 2500 3000 3500 4000 4500 015304560 environmental impact [mPt/m²] year of movement [year] paint (no stone) Gypsum plasterboard Gypsum plasterboard Softwood OSB Glass wool Softwood cas Fibreboard Softwood Softwood Hardwood 0 2000 4000 6000 8000 10000 12000 015304560 environmental impact [mPt/m²] time [year] C4 C3 C2 C1 B5 B4 A5 A4 A1-A3 0 500 1000 1500 2000 2500 3000 3500 4000 4500 015304560 environmental impact [mPt/m²] year of movement [year] EPDM RVS Systimber Softwood Glass wool Softwood Glass wool PE air membraine Softwood Softwood Hardwood 0 2000 4000 6000 8000 10000 12000 015304560 environmental impact [mPt/m²] time [year] C4 C3 C2 C1 B5 B4 A5 A4 A1-A3 0 500 1000 1500 2000 2500 3000 3500 4000 4500
environmental impact [mPt/m²]
paint (no
Gypsum plasterboard Gypsum plasterboard Softwood OSB Glass wool Softwood cas Fibreboard Softwood Softwood Hardwood 0 2000 4000 6000 8000 10000 12000 015304560 environmental impact [mPt/m²] time [year] C4 C3 C2 C1 B5 B4 A5 A4 A1-A3 0 500 1000 1500 2000 2500 3000 3500 4000 4500
015304560
stone)
environmental impact [mPt/m²]
EPDM RVS Systimber Softwood Glass wool Softwood Glass wool PE air membraine Softwood Softwood Hardwood linear correlation wall floor roof wood frame wood solid wood hollow ceramic mortar ceramic clip ceramic stack steel weld steel bolt and nut steel frame 0 5000 10000 15000 20000 25000 0,00 0,10 0,20 0,30 0,40 0,50 0,60 0,70 0,80 0,90 1,00 environmental impact [mPt/1m²]
0 200 400 600 800 1000 1200 1400 0 15 30 45 60 environmental impact [Pt/pavillion] time [year] wood frame wood solid wood hollow ceramic mortar ceramic clip ceramic stack steel weld steel bolt and nut steel frame
8.4. 8.3. 8.5.

9.1.

architectuurontwerp 1: verdwenen stad

Models 9.

location institution course year collaboration / Universiteit Gent Architectuurontwerp 1-3, Studio C | 1st bachelor - 1st master 2019-2021 /, Philippe Soubrier

9.2. studio C

9.3.

architectuurontwerp 2: The accidental shift

30
9.1. 9.3. 9.2.
31
9.6. architectuurontwerp 1: Walpoort
9.4.
9.6.
9.4. & 9.5. architectuurontwerp 3: Bondgenootschap 9. Models
9.5.

location institution course year collaboration

Creative work 10.

Katelijnestraat 86 | Bruges (Belgium)

Stedelijke Academie Brugge Fine Arts 2015-2017 /

32
10.1. 10.3. 10.2.
33 10. Creative work 10.4.
2024
Frédéric De Keyzer

Turn static files into dynamic content formats.

Create a flipbook
Issuu converts static files into: digital portfolios, online yearbooks, online catalogs, digital photo albums and more. Sign up and create your flipbook.