
Faré Tassouti BASSABI
ARCHITECTE DIPLOME D’ETAT
![]()

Faré Tassouti BASSABI
ARCHITECTE DIPLOME D’ETAT

Enscape Lumion Office
Confirmé Confirmé Intermédiaire Confirmé
Confirmé Intermédiare Confirmé Confirmé
TEL : +33 06 11 93 22 44 E-MAIL : farebassabigmail.com
9, rue Aristide Briand 95580 Andilly
www.linkedin.com/in/farebassabi www.issuu.com/farebassabi
Architecte diplômé d’État avec sept ans d’expérience, j’ai travaillé sur des projets variés, notamment des projets d’équipements de transport, de bâtiments commerciaux et de rénovation d’hôtels. Je maîtrise les outils de conception tel que AutoCAD, Revit et le processus BIM.
Animé par mon gout pour l’innovation et mon sens artistique, je cherche à combiner esthétique, innovation et fonctionnalité. Mon esprit d’équipe, ma capacité d’adaptation, ma persévérance, mon sens de l’organisation et ma rigueur me permettent de gérer les tâches qui me sont confiées.
Passionné par les projets innovants, je m’intéresse particulièrement au bioclimatisme et aux enjeux de développement durable. Mon objectif est de concevoir des espaces qui contribuent à améliorer la qualité de vie des usagers.
Francais : Courant
Lu, écrit et parlé
Anglais : Moyen
Compréhension orale et écrite avancée
TOEIC Listening and Reading = 890 / 990
Equivalent CECRL = Niveau B2
ARCHITECTE | Sept. 2023 - Janvier 2025
En Freelance
• Projet d’aménagement de locaux d’activité en bureaux - Sur Revit et AutoCAD : Phases PRO et DCE - Réalisations de plans et de détails de principe. Modélisation 3D
• Aménagement d’un local d’activité en établissement de restauration - Sur Revit et Lumion - Dossiers Autorisations de Travaux et Déclaration Préalable de Travaux Dossier : Conception et réalisations de plans - Modélisation 3D et rendus - Dossier de présentation
• Projet d’extention et de modification de facades de maison individuelle - Sur Revit : Conception et réalisations de plansModélisation 3D et rendus - Dossier de présentation
ARCHITECTE CONSULTANT | Oct. 2021 - Août 2023
Oxiam Consulting
–DESSINATEUR / TECHNICIEN D’ETUDES | Sept. 2022 - Juin 2023
SNCF Réseau - Division Tunnels et Géotechnique
• Réalisation de plans, coupes et synoptiques - Sur AutoCAD Réalisation de fiche d’analyse et d’interprétaion de DQE (Détail Quantitatif Estimatif) sur les travaux de tunnel - Sur Excel
–ARCHITECTE CHARGE DE PROJET | Oct. 2021 - Juill. 2022
AREP
Construction de locaux techniques en gare SNCF - Sur AutoCAD et Revit En charge des phases ESQ, APS, APD, PRO, VISA
• Construction de nouveaux accès voyageurs - Sur Revit suivant le protocole BIM. En charge de la phase PRO et des dossiers DACAM et DPC
DESSINATEUR D’ETUDES | Mai 2021 - Août 2021
BET Acefaq
Projet de bâtiment industriel : Plans et modélisation 3D des revêtements des façades - Sur AutoCAD et SketchUp
• Projet d’aménagement de bureaux - Phase DCE : Cotations et modifications de plans, nomenclatures des menuseries, tableaux de surfaces - Sur Revit
ARCHITECTE ASSISTANT DE PROJET | Sept. 2019 - Févr. 2021
Unza Architecture
• Construction d’une aire de service et de repos autoroutier - Sur Revit
Phases ESQ, APS, APD, Dossier DPC, PRO : Conception et réalisation des plans - Modélisation 3D - Réalisation des dossiers de présentation
• Rénovation d’un complexe hôtelier de luxe - Sur Revit
Phases APD, PRO : Conception et réalisation des plans - Modélisation et gestion BIM des zones Unza de la maquette numérique - Réalisation des dossiers de présentation.
ARCHITECTE ASSISTANT DE PROJET | Oct. 2017 - Mai 2019
AREP
Aménagement des accès voyageurs dans les gares SNCF d’Ile-de-France - Modernisation des équipements de contrôle de billets - Sur AutoCAD
Phases ESQ, APS, APD et PRO : Relevés de site, comptes-rendus, esquisses, réunions MOE et chantier, plans , dossiers de présentation.
- Aménagement / création des accès voyageurs et des espaces d’accueil
- Amélioration de la signalétique
- Installation des équipements de contrôle d’accès : CAB MT et Bornes MT
J’ai exercé divers emplois temporaires et de soutien (employé de restauration, manutentionnaire, conditionneur, téléconseiller, ...) durant mes études . Ces expériences m’ont aussi permis d’acquérir une solide éthique de travail que je considère essentielle dans le métier d’architecte.

Immeuble R+5 de 27 logements
Projet personnel

Locaux techniques et acces de service
Aménagement de locaux techniques et création d’accès de services
Gare SNCF Saint-Denis Centre
Projet en agence

Aire de repos et de service autoroutier
Construction d’un aire de repos et de service autoroutier
Projet en agence

Maison individuelle R+1
Projet personnel

Aménagement des accès et des espaces d’accueil pour les voyageurs - Implantation des nouveaux équipements.
Gares SNCF de l’Ile-De-France
Projet en agence

Immeuble R+6 de 18 logements et de locaux commerciaux
Projet personnel

Rénovation d’un complexe hôtelier
Projet en agence

Création de nouveaux accès et du nouvelle passerelle pour voyageurs.
Gare ferroviaire SNCF de Massy - Palaiseau
Projet en agence
https://issuu.com/farebassabi/docs/portfolio_fare_bassabi

https://issuu.com/farebassabi/docs/portfolio_fare_bassabi



Type : Logement collectif
Logiciels :Revit Lumion
Le bâtiment se distingue par un revêtement en briques qui habille ses façades et un bardage métallique qui recouvre son attique. Les balcons, disposés en saillie, se démarquent des façades par leur finition en béton lisse et leurs garde-corps en bardage bois ; ils apportent une rupture au volume simple du bâtiment.
Faisant partie d’un ensemble, l’immeuble est relié aux autres bâtiments par le parking souterrain.
L’immeuble est constitué d’un noyau central de circulation qui distribue les appartements à chaque étage. Le rez-dechaussée reçoit des locaux de service, deux appartements T3, un appartement T2 et un appartement T5. A chaque étage, on trouve trois appartements T3, un appartement T2 et un appartement T5. Au dernier niveau, l’attique comprend un appartements T3, un appartement T4 et un appartement T5 , tous prolongés sur l’extérieur par des terrasses.
Les parties communes sont conçues pour garantir une accessibilité aux personnes à mobilité réduite. Les couloirs et des portes sont suffisamment larges pour permettre le passage des fauteuils roulants ; une aire de retournement est prévue au niveau de l’ascenseur pour faciliter les manœuvres.
À l’intérieur des logements, les cuisines et au moins une des chambres sont dimensionnées pour offrir un espace de manœuvre de 1,50 m de diamètre en fauteuil roulant. Les salles de bains et les toilettes, quant à elles, disposent d’un espace d’usage de 1,30 m sur 0,80 m, avec un espace de manœuvre de 1,50 m de diamètre en plus dans les alles de bains.



Plan du cinquième étage
Plan de l’étage courant : R+1 - R+4


Façade principale

Façade arrière

Façade latérale - Est

Revêtement mur intérieur Plaques de plâtre
Appui de fenêtre
Membrane d'étanchéité
Fixation isolant
Sous-enduit armé + Enduit adherent
Isolant
Revêtement façade -Plaquettes de parement brique collées
Revêtement plancher Carrelage Mur béton
Dalle béton







Phases : ESQ, APS, APD, PRO, VISA
Logiciels :AutoCAD
Structure : AREP
Rôle : Chargé de projet
Maîtrise d’Œuvre Générale : SNCF
Maîtrise d’Œuvre Etude : AREP
Le projet consiste à aménager des locaux techniques et des accès de services sur un site en pleine phase de travaux. Ce processus débute par l’étude du cahier des charges et une étude de diagnostic afin relever les contraintes du site et de définir les besoins techniques.
Les aménagements respectent les normes d’accessibilité pour les personnes à mobilité réduite (PMR), ainsi que les réglementations de sécurité incendie applicables aux Établissements Recevant des Travailleurs (ERT). Des réunions régulières avec la référente en charge de la sécurité incendie sont tenues pour garantir la mise en œuvre de solutions conformes aux normes.
Des réunions de coordination sont tenues entre architectes et ingénieurs. La Maîtrise d’Œuvre Générale, l’entreprise en charge des travaux de mise en accessibilité de la gare, l’économiste et le chef de projet se coordonnent aussi afin d’assurer la cohésion des interventions et le respect des délais et des budgets.
Réalisé par Equipe AREP

Local technique


Bâtiment accueil voyageurs et accès au principal passage souterrain desservant les quais




Coupe sur l’accès au passage souterrain désservant les quais

Porte 90 cm de passage
Barre anti-panique
Serrure rubis
Grille pour ventilation basse
Plateforme chantier
Pente = 1 %
Vue de face de l’accès de service à la galerie technique


autoroutier
Phases : ESQ, APS, APD, Dépot PC, PRO
Logiciels :Revit Lumion
Structure : UNZA Architecture
Rôle : Assistant au chef de projet
Maîtrise d’Ouvrage : EG Group
En phase esquisse, définition de l’implantation, l’organisation, la composition et le volume des constructions nouvelles, validées par la Maîtrise d’Ouvrage.
Réalisation avec le chef de projet, des plans en fonction des différents cahiers des charges des enseignes locataires des locaux de commerce.
Durant le projet, des modifications ou de nouvelles demandes peuvent venir de la Maîtrise d’Ouvrage, qu’il faut adapter au projet.
• Prise en compte des normes PMR et Sécurité Incendie.
• Établissements Recevant du Public (ERP)
• Accessibilité aux personnes en situation de handicap
• Choix des matériaux et des couleurs pour les façades du bâtiment
• Plans de détail des facades
• Modélisation du bâtiment et du sîte sur Revit















Type : Maison individuelle
Logiciels :Revit Lumion
La maison présente une volumétrie cubique et épurée qui joue avec un assemblage de formes et de lignes. L’articulation des volumes met en valeur les contrastes entre les pleins et les vides ; ce qui crée des jeux d’ombre et de lumière sur les façades.
La maison est organisée sur trois niveaux. Le sous-sol abrite les espaces de service et de rangement tels que la buanderie, le cellier et le grand débarras. Ce qui permet d’optimiser le rangement et de libérer de l’espace dans les autres niveaux. Le rez-de-chaussée s’articule autour de l’entrée qui distribue les autres pièces : un séjour baigné de lumière grâce à de larges baies vitrées, une cuisine ouverte, un bureau et un garage avec accès direct à l’intérieur de la maison. La terrasse prolonge le séjour, offrant un espace de vie extérieur connecté au jardin. L’escalier, également baigné de lumière naturelle par une large ouverture vitrée, relie le rez-de-chaussée à l’étage supérieur. A l’étage, on trouve trois chambres et une salle de bain.
L’aménagement paysager autour de la maison offre une transition entre l’intérieur et l’extérieur. Devant la maison, des allées cadrées par des parterres de plantes, mènent à l’entrée principale, au jardin et à la terrasse. Dans le jardin, les arbres sont répartis de manière aléatoire, évoquant un paysage non structuré, presque sauvage ; ce qui contraste avec les lignes cubiques de la maison.

















Phases : ESQ, APS, APD, PRO
Logiciels :AutoCAD Revit
Structure : AREP
Rôle : Assistant de projet
Maîtrise d’Œuvre Générale : SNCF
Maîtrise d’Œuvre Etude : AREP
Le projet se déroule dans le cadre du Programme de Modernisation de la Billetique (PMB) : modernisation des équipements de contrôle d’accès.
Ce projet comprend : - le réaménagement des entrées / sorties des voyageurs - l’implantation des équipemnts de contrôle d’accès - l’aménagement des espaces d’accueil
Mise aux normes : accessibilité PMR, accès pompiers, accès nuits équipés d’interphones, videosurveillance, réaménagement pour une meilleure gestion des flux
Espaces d’accueil : aménagement zones d’attente, amélioration accessibilité PMR, implantation de stations d’accueil connectés, amélioration de la signalétique.






Plan du rez-de-chaussée



Borne MT : Compte-rendu de visite de site - Faisabilité des implantations
Borne MT : Plan d’étude de faisabilité d’implantation


Réaménagement
Equipements de contrôle d’accès en fonction







Type : Logement collectif
Logiciels :Revit Lumion
L’immeuble s’élève sur six étages et est implanté à l’angle de deux rues, avec sa façade arrière qui s’ouvre sur une cour intérieure. Il est divisé en deux parties, chacune dotée de son propre hall d’entrée.
Le rez-de-chaussée accueille les deux halls qui offrent les points d’accès distincts aux logements. Il reçoit aussi les locaux service, les locaux d’activité et l’accès au parking souterrain. Ces locaux constituent un espace de transition entre l’espace public et les logements se trouvant dans les étages.
Les deux halls desservent les six étages de l’immeuble. Globalement, l’étage courant de l’immeuble est constitué de huit logements : cinq logements pour la partie désservie par le hall 1 et trois logements pour la partie désservie par le hall 2. Le dernier étage comporte quatre logements : deux logements par partie.
Chaque logement bénéficie d’un espace extérieur, loggias dans les étages et terrasses dans l’attique. Ces espaces extérieurs offrent une continuité entre l’intérieur et l’extérieur, permettant aux résidents de bénéficier de leur propre coin de verdure en ville.
Les parties communes et les logements ont été conçus selon les normes d’accessibilité pour les personnes handicapées. Les accès extérieurs, les halls, les passages, ainsi que les cuisines et salles d’eau respectent les dimensions et aménagements nécessaires pour assurer une circulation en fauteuil roulant. Chaque logement comporte au moins une chambre adaptée PMR.


Façade principale
Plan du sixième étage - Attique
Plan de l’étage courant : R+1 - R+5



Coffret volet roulant Avec isolant
Volet roulant
Sous-face loggia habillage bois
Larmier
Descente EP
Dallettes sur plots
Garde-corps vitrée
Plot
Etanchéité
Dalle béton
Pente 1.5 %
Rupteur thermique




Phases : APD, PRO
Logiciels :Revit
Structure : UNZA Architecture
Rôle : Assistant de projet. Contact avec la maîtrise d’ouvrage et l’agence coordinatrice du pôle architecture par l’intermédiaire de chargé ou du chef de projet.
Maîtrise d’Ouvrage : Euro Disney Land Imagineering EDLI
Maîtrise d’Œuvre Mandataire : Bureau d’Etude Technique Y-Ingénierie
Pôle architecture : 6 agences d’architecture dont l’agence coordinatrice est PUNK Agency.
• Modélisation : Modélisation BIM des éléments et des espaces suivant les dossiers de conception transmis par la MOA
• Gestion BIM : Création et gestion des paramètres, phases de vue, filtres de vue et arborescence projet
CODIFICATION DES FICHIERS

METIER = M
A - Architecture
S - Structure
E - Electricité
NUMERO = 1 2
1 - Numéro du dossier
2 - Numéro de la chemise
ORGANISATION DE L’ARBORESCENCE DU PROJET
Création de parametres partagés de niveau de classement :
Niveau 1
Niveau 2
Niveau 3
Niveau 4
Regroupement et tri des éléments du projet en fonction de ces niveaux de classement : feuilles, vues, nomenclatures
Niveaui 1 TRAVAIL ou LIVRABLES
Niveau 2
Niveau 3
PHASE DU PROJET
TYPE DE PLAN : coupe , plan , Niveau 4 NOM DE L’AGENCE
PHASES DE CONSTRUCTION
Phases : Existant
Démolition
Nouvelle
Temporaire
Filtre des phases :
Composants - Existant + Nouveau
Composants - Existant + Démoli
Composants - Démoli + Nouveau
Remplacement de graphisme : Attribution des couleur aux états de phase

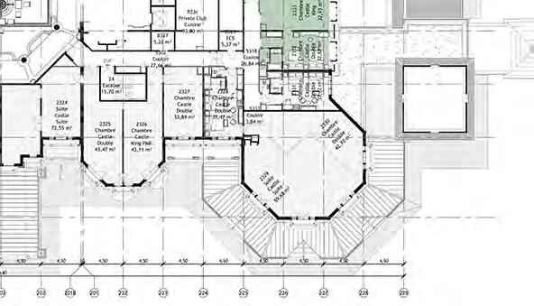
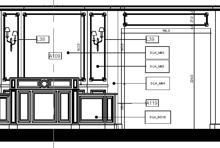
Zoom sur le plan d’un bâtiment du complexe hôtelier




Modélisation des cloisons et des moulures





Guides pour la modélisation fournis par la Maîtrise d’Ouvrage
Affichage des cloisons existants cloisons à démolir










Création d’accès et d’une passerelle pour voyageurs à la gare ferroviaire SNCF de Massy - Palaiseau.
Phases : PRO
Logiciels :AutoCAD
Structure : AREP
Rôle : Chargé de projet
Maîtrise d’Ouvrage : SNCF Gares et Connexions
Maîtrise d’Œuvre : AREP
La nouvelle gare du Grand Paris de la ligne L18 et l’arrivée du tramtrain TTVE sur le site de gare de Massy - Palaiseau entrainent une augmentation du flux de voyageurs. De nouveaux accès et une nouvelle plateforme, pour accéder aux quais , sont créés pour une meilleure gestion du flux.
• Modifications et mise à jour de la maquette, réalisations des plans et des documents de présentation.
• Saisie des informations sur la maquette numérique via les paramètres en se référant au CCTP et aux notices.
• Etude de faisabilité sur l’aménagement d’un local commerce sur la plateforme d’accès aux quais.
• Dossier Demande de Permis de Construire (DPC)
• Dossier Demande d’Autorisation de Créer, d’Aménager ou de Modifier (DACAM) pour les quais
• Assistance à l’Ingénieur Sécurité Ferroviaire pour la réalisation du Dossier de Conception de Sécurité Ferroviaire.


sur la passerelle et la plateforme d’accès aux quais

Réalisé par agence de perspectiviste pour AREP

Vue sur la plateforme d’accès aux quais


sur l’accès voyageurs à la passerelle : Accès Villemorin

Façade de l’accès voyageurs à la passerelle

Réalisé

Plan de l’accès
voyageurs au quai A
Accès Pierre Sémard

Plan de l’accès voyageurs au quai A : Accès Pierre Sémard
Façade de l’accès voyageurs au quai A : Accès Pierre Sémard

farebassabi@gmail.com
www.linkedin.coml/in/farebassabi
www.issuu.com/farebassabi
Diplômé d’Etat
93 22 44
farebassabi@gmail.com
www.linkedin.coml/in/farebassabi
www.issuu.com/farebassabi
Briand - 95580 Andilly