

A B O U T U S
Brookhaven City Centre is your all-in-one destination for unforgettable events in the heart of Brookhaven. Proudly managed by Explore Brookhaven, the venue features a variety of spaces spanning multiple floors, each with its own unique charm, making it a perfect fit for every occasion.
Host an intimate gathering in our stylish indoor spaces, take advantage of a theater-style setting for impactful presentations, or soak in the skyline from our rooftop with sweeping views of Kennesaw and Stone Mountains. From cocktail hours to conferences, private dinners to film screenings, the possibilities are endless.
Whether you're hosting a corporate event, a community celebration, or something entirely your own, Brookhaven City Centre offers a vibrant, flexible backdrop that makes every moment stand out.

A s h f o r d F o r e s t & M h C d

Ashford Forest
The Ashford Forest Conference Room feels like a retreat designed for ideas to unfold. With a quiet, composed atmosphere, the space invites meaningful conversation and focused collaboration. Picture a small group gathered for a strategy session or a workshop where discussion flows easily in a setting that feels intentional and thoughtfully curated

Murphey Candler
The Murphey Candler Conference Room brings energy and momentum to larger gatherings with its open, airy layout, creating an ideal setting for presentations, networking, and small conferences. When paired with the Ashford Forest Conference Room, the experience expands seamlessly, offering a flexible environment that balances larger moments with added versatility.
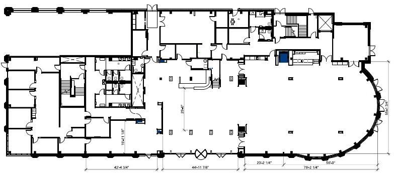
Floorplan - Level 1

This space can be found on the fourth floor of Brookhaven City Centre.

International Room
Located indoors on the rooftop level of Brookhaven City Centre, the International Room offers a
Cherry Blossom Dome

The Cherry Blossom Dome delivers an open air rooftop experience framed by skyline views. This outdoor setting invites guests to gather under the sky, creating a relaxed, memorable atmosphere where celebrations feel effortless. When combined with the International Room, the Dome becomes part of a connected rooftop environment that feels cohesive and elevated. I n t e r n a t i
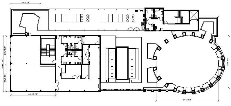
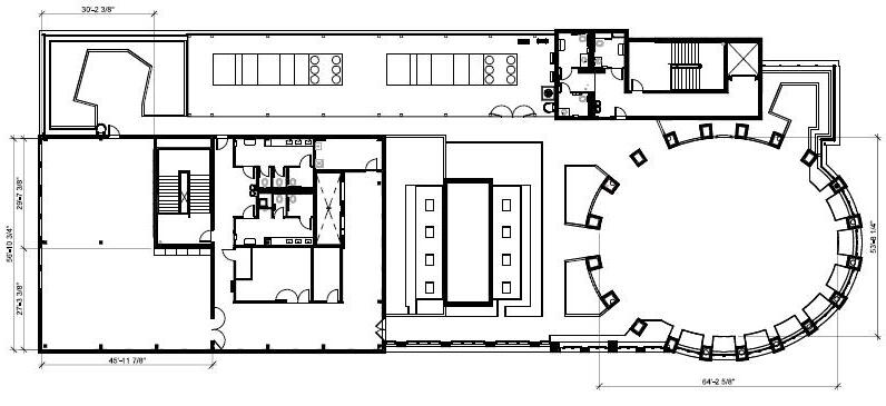
- Level 4

Outdoor plazas are located adjacent to first floor event space.


A d d i t i o n a l R e n t a l O p p o r t u n i t i e s
The Council Chamber is located on the third floor of Brookhaven City Centre

Council Chambers
Have the Brookhaven City Centre to yourself! Use as much or as little of the space as you would like.

Sunday-Friday
Saturdays & Holiday



What’s Included
Your event rental includes access to essential furnishings such as banquet tables, classroom tables, highboys, chairs, and podiums, along with house audio visual and sound equipment and catering kitchen access as needed. On site event coordination is provided, with basic setup, breakdown, and housekeeping before and after your event available at an additional charge, and additional furnishings or services may be arranged through approved vendors. Complimentary parking is available at the Brookhaven MARTA Station facilities on Apple Valley Road
Hours and Fees
The City of Brookhaven operates Monday through Friday from 9:00 AM to 5:00 PM. Events held outside of standard business hours or on weekends are subject to a minimum rental rate of $1,000, along with additional fees for required security and staffing.
Vendors and Equipment
Explore Brookhaven provides a list of approved vendors for catering, audio visual services, décor, security, and other event needs Use of City Centre audio visual equipment and technical support is subject to applicable terms and conditions.
a request for event space online at www.BrookhavenCityCentre.com or give us a call!
David Kemp

