FERNANDA ALVES: portfolio arq&urb

Page 1


FERNANDA ALVES

portfolio de arquitetura & urbanismo

perfil pessoal

Bacharel em Arquitetura e Urbanismo pela UFRJ. Trabalho bem em equipe, sou criativa e gosto de desafios. Aprendo com facilidade e estou sempre em busca de novos conhecimentos.

formação acadêmica

2017 - 2024

Graduação em Arquitetura e Urbanismo. Universidade Federal do Rio de Janeiro, UFRJ. (Previsão de término: 2024.2)

07/2023 - 12/2023

Aluna de intercâmbio no curso de Arquitetura da Universidad Técnica Federido Santa María, Valparaíso, Chile.

2014 - 2016

Ensino Médio com Curso Técnico em Edificações. Escola Técnica Estadual Ferreira Viana, ETEFV.

proficiência

AutoCAD

SketchUP

Illustrator

InDesign

Photoshop

Pacote Office

V-RAY

ArchiCAD

Layout

FERNANDA ALVES

Duque de Caxias, RJ

Contato: (21) 9 6414-7737

Email: alves_fer@outlook.com.br

Avançado

Intermediário

Intermediário

Intermediário

Intermediário

Intermediário

Intermediário

Intermediário

Básico

experiência

02 a 07/2023 | 01 a 12/2024

Estagiária em Geoprocessamento na Prefeitura Municipal de Duque de Caxias, RJ.

projetos de pesquisa

11/2021 - 06/2023

Projeto: Correlação de imagem digital aplicada ao diagnóstico de patologias no patrimônio do edifício Jorge Machado Moreira (Bolsista IC-FAPERJ, Carga horária: 20h). Orientador: Thiago Melo Grabois

atividades acadêmicas

04/2022 - 12/2022

Extensionista no curso Oficina de Narrativa set. de 2022

Luiza Mahin 2021 - 2021 Extensionista da equipe de produção do evento virtual Festival do Conhecimento UFRJ - Do Ancestral ao Digital (2022)

08/2018 - 12/2018 Extensionista no Núcleo de Assessoria Jurídica Universitária Popular (NAJUP)

Monitora de Concepção da Forma Arquitetônica II

eventos

2022 2023

Apresentação do projeto de pesquisa na 12ª Semana de Integração Acadêmica e Científica (SIAC) da UFRJ, em junho de 2023.

Apresentação do projeto de pesquisa no 13º Colóquio do PROARQ da UFRJ, em outubro de 2022.

Apresentação do projeto de pesquisa na 11ª Semana de Integração Acadêmica e Científica (SIAC) da UFRJ, em fevereiro de 2022.

cursos

2025

Curso ArchiCAD 23 - Udemy Coordenador: AGA Arquitetura

2021 2020

Treinamento Revestindo Sem Erros. Coordenadora: Lilian Santos

Design editorial de livros. Coordenação: Arquivo dos Livros (UFF); Laboratório de Publicações Lima Barreto (UERJ)

Avançado Intermediário Fluente idiomas

Inglês Espanhol

Português

CASA MÃE-BEBÊ

informações

Ano: 2019

Autores: Fernanda Alves, Augusto Cesar

Disciplina: Ateliê Integrado I, UFRJ

Softwares utilizados: AutoCAD, SketchUp, Photoshop

Casa Mãe-Bebê. Rua Morais e Vale, Lapa - RJ

O terreno destinado ao projeto Casa Mãe-Bebê está localizado no bairro da Lapa, região boêmia do Rio de Janeiro. Entre as ruas Moraes e Vale e a Rua da Lapa, o terreno corresponde ao espaço que, anteriormente, devia dar lugar a cerca de oito casas do período eclético, sendo metade delas voltadas para cada uma das ruas.

A intenção projetual baseia-se em estabelecer conexões e trocas entre os equipamentos urbanos a partir da criação de espaços ativadores, que além de dar conta da demanda de um abrigo temporário, também suprem algumas das necessidades do entorno.

DE FREITAS

REGADAS

DOS CARMELITAS

Casa Mãe-Bebê e locais de interesse. Lapa, Rio de Janeiro

Casa Mãe-Bebê

Estacionamento

Igreja

Instituição de ensino

Espaço cultural

Restaurante popular

R. JOAQUIM SILVA RUA DA LAPA
R. MARQUES REBELO
BECO
R.TEOTÔNIO
R. TEIXEIRA
R. MORAIS E VALE
Casa Mãe-Bebê

Maquete programática.

Ilustração digital da maquete física utilizada para planejar a disposição e área dos espaços. Posteriormente, foram adicionadas as salas multiuso ao volume construído.

Volume base Definição dos pavimentos

Abertura do pórtico e definição do terraço

Abertura dos pátios

10m

Ambientes administrativos e de uso público, como o refeitório, a biblioteca, os pátios e o vestiário.

PLANTA BAIXA - TÉRREO

Ambientes íntimos e de uso coletivo do público-alvo: dormitórios, salas multiuso, lavanderia e horta.

PLANTA BAIXA - 1º PAVIMENTO

Ambientes íntimos e de uso coletivo do público-alvo: dormitórios, salas multiuso e brinquedoteca.

O projeto proposto estabelece um espaço de possibilidades e de mediação de relações. Os ambientes podem ser alterados de acordo com a necessidade e desejos dos usuários, evitando desempenhar o papel de uma arquitetura impositiva.

Privado Público
10m
PLANTA BAIXA - 2º PAVIMENTO

10m

PLANTA BAIXA - PAVIMENTO TÉCNICO

Equipamentos para funcionamento do elevador, sistema de combate a incêndios e reservatório superior.

Modelo de dormitórios

A divisão dos quartos é feita com painéis deslizantes. Nos croquis, as cores representam os diferentes níveis de privacidade possíveis.

CORTE C

Vista do pátio central para as salas multiuso.

CORTE D

Vista do pátio central para o refeitório e dormitórios.

E

Vista do pátio íntimo para o refeitório, horta e dormitórios.

O projeto respeita os alinhamentos da arquitetura eclética existente na região, de maneira a não retirar o seu destaque e, ao mesmo tempo, não subjugar o projeto diante desse contexto complexo.Há um compromisso com a continuidade das fachadas da Rua da Lapa e a doação de um espaço público mais intimista para a Rua Moraes e Vale. Apesar do edifício ser predominantemente composto pelo concreto aparente, ele também apresenta elementos lúdicos que dialogam com as cores do entorno. Os painéis de policarbonato colorido marcam os dormitórios e as salas de atividades conjuntas. O guarda-corpo de chapa de aço perfurada, pintada de amarelo, destaca a circulação vertical ex-

terna. O Pátio Íntimo conta com as cores da vegetação para a criação de um ambiente de caráter doméstico.

CORTE

1. Pórtico de entrada da Rua da Lapa O pé-direito elevado do térreo e o espaço livre do Pátio Principal tornam o edifício mais convidativo e permite intervenções de grande porte em seu interior.

Modelo 3D da Casa Mãe-Bebê Perspectiva vôo de pássaro do edifício isolado. O rigor na projeção dos espaços permitiu grandes vãos livres para lazer e escoamento de água.

2. Escadaria vista da horta pública O elemento se desenrola em direção à entrada como um convite. Seus patamares compridos têm como objetivo estimular a permanência.

3. Perpectiva interna do jardim de inverno O espaço comum aos quartos tem por objetivo aproximar as mulheres durante os períodos de descanso e lazer.

4. Vista do Pátio Íntimo Voltado para a Rua Moraes e Vale, visto do jardim de inverno de um conjunto de quartos.

REFÚGIO, contrastes

informações

Ano: 2018

Autores: Fernanda Alves, Daniela Hamdan

Disciplina: Concepção da Forma Arquitetônica II, UFRJ

Softwares utilizados: AutoCAD, SketchUp, Photoshop

Asilo dos Voluntários da Pátria Fundado em 1868.

Igreja do Bom Jesus da Coluna Erguida em 1705.
Vista da Igreja Bom Jesus da Coluna Em coral, o terreno destinado ao projeto. À esquerda, os edifícios da Global Research Center (GRC).

A Igreja do Bom Jesus da Coluna, localizada na Ilha do Fundão, Rio de Janeiro, é um patrimônio histórico tombado no ano de 1964 pelo Instituto do Patrimônio Histórico e Artístico Nacional (IPHAN). Foi restaurado a partir do Programa Nacional de Apoio à Cultura (Pronac), desenvolvido pela Fundação Cultural do Exército Brasileiro (Funceb) e patrocinado pelo Banco Nacional do Desenvolvimento Econômico Social (BNDES).

Devido a sua escala, a Igreja destaca-se na paisagem como um marco visual, apesar de ser ocultada pela vegetação para quem chega no local. Entretanto, o suspense gera uma sensação de descoberta e deslumbramento diante de um tesouro arquitetônico. O Asilo dos Voluntários da Pátria, logo abaixo no relevo, permite a visão livre do visitante para a Baía de Guanabara.

Colagem Conceitual do Projeto Resgatando a experiência do primeiro semestre de projetar utilizando o traçado regulador, obteve-se uma forma leve e geometricamente interessante.

Para não disputar com a importância das construções e com a vista que se tem do local, o projeto limitou-se a um único pavimento e à simplicidade de suas linhas. Sua identidade e originalidade encontram-se na geometria gerada a partir de um processo

de experimentação que resgata um exercício de um semestre anterior.

O programa proposto foi uma Biblioteca e uma Midiateca como forma de atrair estudantes e professores para o local. A intenção é que o conjunto

sirva também à Igreja do Bom Jesus da Coluna, servindo de abrigo para as obras e documentações produzidas sobre e para ela, e que possam, principalmente, ser compartilhadas com o público para que saibam da história de mais um pedaço da cidade.

Traçado Regulador

Replicado no projeto para gerar uma malha.

Inserção do Traçado no terreno

As divisões em cinza representam a faixa onde o traçado foi posicionado inteiramente, sem recortes.

Maquete Física Além do trabalho em planta para gerar uma composição dinâmica, também foram trabalhados os níveis do terreno e o caimento das coberturas.

O desejo de gerar contrastes claros entre o projeto e a preexistência foi um partido que teve por objetivo complementar a arquitetura da Igreja com outra que demonstrasse leveza em suas linhas. A intenção visa não competir com a imponência da primeira edificação, mas mostrar-se interessante e disruptiva partir da composição geométrica do todo.

A Biblioteca se apresenta com um pé-direito de quatro metros, que permite maior entrada de luz e convida o visitante a entrar. À medida que se percorre o espaço ele se torna mais intimista, com a redução da altura do teto, o fechamento da fachada voltada para a Igreja e a abertura da face com vista para o pátio entre os edifícios.

A Midiateca possui acesso voltado para a Rua Cento e Dezessete e pelo pátio que a separa da Biblioteca. O edifício possui pé-direito que varia entre três a dois metros e oitenta e abriga a administração do conjunto e um pequeno refeitório aberto.

Vista da entrada da biblioteca Para quem chega pelo acesso que liga o terreno ao Asilo dos Voluntários da Pátria.

Projeto inserido no contexto Trata-se de um ensaio de incidência solar, realizado no Heliodon da FAU-UFRJ. A imagem representa o fim da tarde durante o verão.

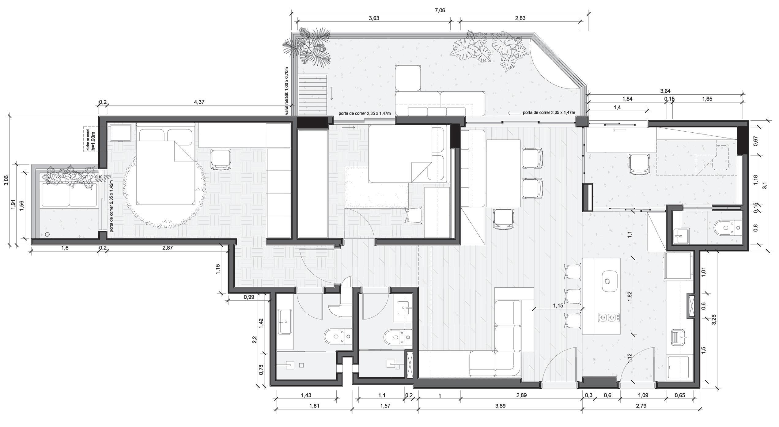
APÊ LARANJEIRAS

informações

Ano: 2023

Autores: Fernanda Alves e Augusto Cesar

Disciplina: Projeto Executivo de Interiores, UFRJ

Softwares utilizados: AutoCAD, SketchUp, Photoshop

MOODBOARD: SUÍTE + QUARTO
MOODBOARD: COZINHA + HOME OFFICE
MOODBOARD: SALA DE ESTAR + SALA DE JANTAR

PLANTA BAIXA:

PROJETO ATUAL

O apartamento, localizado no bairro de Laranjeiras, no Rio de Janeiro, apresenta medidas generosas em todos os seus cômodos, contando com um quarto e uma suíte, ambas com vista para uma paisagem rica em arborização. Apesar das qualidades, o apê hoje conta com uma cozinha com espaço ocioso próximo a

área de serviço e um banheiro utilizado como depósito.

Para esta reforma, o cliente solicitou que fosse acrescentado um home office ao apartamento. Desta forma, foi demolida a parede que dividia a cozinha da sala de estar, unificando os dois ambientes. Nos fundos, pró-

ximo à janela, foi projetado o escritório com um lavabo. Esta escolha foi feita para que o home office tivesse contato com a paisagem e a luz natural. A unificação dos espaços e o uso de divisórias de vidro canelado no escritório permitem que a luz que entra pela varanda alcance o interior do imóvel.

PLANTA BAIXA:

DEMOLIR / CONSTRUIR

PLANTA BAIXA:

PROPOSTA

VISTA 01

SALA DE ESTAR / SALA DE JANTAR / VARANDA SOCIAL

Prateleira de madeira maciça freijó e acabamento em verniz incolor acetinado. Estrutura em metalon 3x3 com acabamento preto fosco, fixadas no teto com parafusos.

Sofá com estrutura de metalon pintado com tinta preta fosca. Assento em chapas de compensado naval envernizado, com almofadas de couro sintético em tons de marrom e caramelo. Estrutura do encosto em tiras de couro reforçado, fixados com fivela metálica.

SALA DE ESTAR

Adega em compensado revestido com fórmica freijó. Base de alvenaria com acabamento em folha de madeira freijó, tratado com verniz.

Revestimento para Piscina Azul Mar Onda 20x20cm Eliane, com rejunte acrílico off white.

Banco com baú em compensado naval revestido com fórmica freijó. Assento de couro sintético em tons de marrom e caramelo, com varão de metalon 3x3 com acabamento preto fosco para suporte do encosto.

SALA DE JANTAR

VISTA 02

COZINHA / SALA DE ESTAR / CORREDOR

VISTA 03 ESCRITÓRIO / COZINHA

Armário em compensado naval revestido com fórmica freijó.

Cama de solteiro embutida na marcenaria, com pistões pneumáticos

Gabinete em compensado naval revestido com fórmica freijó. Bancada em granito nepal com 2 cm de espessura.

Tanque embutido em inox com acabamento fosco, com torneira alta de bancada com misturador, em aço inox com acabamento fosco.

Base em alvenaria com acabamento em Porcelanato Interno Acetinado Borda Reta 90 x 90 cm Studio Gray Biancogres.

VISTA 04

VARANDA PRIVATIVA / SUÍTE / QUARTO / SALA DE JANTAR / HOME OFFICE SUÍTE

Parede em cimento queimado tratado com seladora.

Mesa de jantar de 1.80 x 0.80 m, em madeira maciça Tauari de 3,5 cm de espessura. Base em estrutura metálica 3x3 com acabamento preto fosco.

Estante em compensado revestido com fórmica freijó na parte externa e off white na parte interna, com estrutura em aço 3x3 com acabamento preto fosco.

HOME OFFICE

COZINHA

DETALHAMENTO COZINHA:

ILHA

Pendente Industrial Trio Loft Retro Vintage - Sem Lâmpada.

Bancada Granito Nepal, com 2cm de espessura

Gavetas com Corrediça Telescópica H45 Com Amortecedor 500 mm.

Gabinete em compensado naval revestido com fórmica freijó. Bancada em granito nepal com 2 cm de espessura.

Base em alvenaria com acabamento em cimento queimado, tratado com base seladora e/ou verniz.

CORTE D
CORTE B
CORTE A
CORTE C

DETALHAMENTO SUÍTE:

GUARDA-ROUPA

CORTE A

Guarda-roupa com exterior revestido com fórmica branca.

Puxadores em madeira pintados com tinta acrílica preta fosca e acabamento em verniz incolor acetinado.

CORTE A SEM AS PORTAS

CORTE B

Nicho e gavetas revestidoasem fórmica de cedro e acabamento em verniz acetinado. Prateleiras em MDF revestido em fórmica branca.

Gaveteiro para sapatos, com corrediça telescópica. MDF com acabamento em fórmica branca acetinada.

CORTE C

Interior revestido em fórmica de cedro e acabamento em verniz acetinado. Prateleiras em MDF revestido em fórmica branca.

Mesa em madeira maciça de cedro com acabamento em verniz acetinado e estrutura em metalon com acabamento preto fosco.

CORTE D

Gavetas com Corrediça Telescópica H45 Com Amortecedor 500 mm.

CENTRO CULTURAL linha 4

informações

Ano: 2022

Autores: Ana Beatriz Flores, Caio Parente, Cláudio Henrique Panighel, Fernanda Alves, Juan Paiva

Disciplina: Projeto Urbano, UFRJ

Softwares utilizados: AutoCAD, SketchUp, Photoshop

Croqui conceitual do Centro Cultural À direita, o croqui ilustra o traçado original do projeto do Metrô da Gávea. Fonte: Acervo pessoal.

O terreno onde encontra-se o projeto é um recorte dentro dos contornos da quadra da PUC, permitindo o atravessamento entre a rua Marquês de São Vicente e a Avenida Padre Leonel Franca. Tal conformação possibilita uma série de conexões, sendo elas entre: as vias, os modais (metrô, ônibus e bicicletas) e as zonas residenciais de caráter distintos. Sendo assim, o projeto abarca um Centro

Cultural — com biblioteca, salas de oficinas, espaços de exposição e auditório —, no coração de uma praça aberta para apropriações dos usuários.

Pensando nas pessoas de perfis plurais que circulam na região e na crise de confiança na produção de conhecimento científico — problema que tem assolado não só o Brasil, mas o mundo —, o projeto explora a potencialidade geográfica do terreno para criar um edifício-vitrine dentro dos limites da PUC Rio, capaz de exibir e difundir as produções da universidade e permitir a utilização da estrutura para apropriação e exposição das obras do Galpão das Artes Urbanas Hélio G. Pellegrino.

O edifício que abriga o Centro Cultural foi limitado a dois pavimentos para manter o respiro visual dos edifícios circundantes. Como elemento articulador tem-se uma estrutura leve, que se desenrola como uma fita e abraça o metrô, a rodoviária e o bicicletário, expandindo a zona de intervenção para fora dos limites do terreno. A fita oscila entre um pé-direito de 3 a 4,5 metros, evitando a clausura dos transeuntes e garantindo um percurso sombreado e protegido.

Centro Cultural A cobetura em fita atravessa o edifício.
Saída 1 do metrô da PUC (Linha 4) Voltado para a Rua Marquês de São Vicente.

Edifício Marquês de São Vicente A fita não apenas abraça e conforma o terminal rodoviário da PUC como também cria um pórtico para a Universidade e para o patrimônio arquitetônico.

Saída 2 do metrô da PUC (Linha 4) Voltado para a Avenida Padre Leonel França.

Paginação de piso

O desenho simula os contornos de curvas de nível, embora o projeto não explore desníveis.

Pista de skate

Pensada para permitir também a execução de circuitos por parte dos usuários.

Playground

Aberto para a praça, o parquinho é contornado por arquibancadas que delimitam o ambiente, sem retirar a sensação de liberdade das crianças.

Dividida em dois momentos, a praça pode ser vista como um espaço delimitado em essência pela posição do edifício: o primeiro, a oeste, apresenta-se como um ambiente austero, livre de grandes equipamentos para a ocorrência de eventos intermitentes e a passagem da ciclovia, que interliga a rua Marquês de São Vicente e a Avenida Padre Leonel Franca; o segundo, a leste, caracteriza uma praça tradicional, com um playground arborizado, delimitado por arquibancadas, e a grande pista de skate aberta para a Avenida Padre Leonel Franca.

5

REFORMA 3386

informações

Ano: 2021

Autora: Fernanda Alves

Disciplina: Projeto autoral

Softwares utilizados: AutoCAD, SketchUp, Photoshop

COZINHA
VARANDA DOS FUNDOS

PLANTA BAIXA: ANTERIOR

DEMOLIR / CONSTRUIR

PLANTA BAIXA: REFORMA

O desenho da casa anteriormente já conta com a obra realizada na cozinha, que envolveu toda a troca de revestimento cerâmico, da bancada e da abertura para o corredor, que era de frente para o Quarto 1.

Demolir Construir

A continuação do projeto envolveu a retirada das paredes de drywall, que delimitavam o Quarto 2 e parte do corredor, e a criação de um novo quarto nos fundos, com dimensões mais confortáveis.

O banheiro social também foi transferido para os fundos da casa. O corredor, mais alongado, ganhou um armário de piso a teto no espaço que antes pertencia ao banheiro removido. No final, foi colocada uma porta camarão, permitindo a saída direto para a varanda coberta.

COZINHA

QUARTO 1 10.62 m²

9.42 m² SALA DE ESTAR 17.97 m²

CIRC. 6.12 m² COZINHA 11.15 m²

Neste ambiente, o porcelanato foi utilizado somente onde era extremamente necessário: no piso, no rodapé e no frontão da pia, reduzindo os custos da obra. SUÍTE 10.46 m² W.C CLOSET 5.63 m² A. SERV. 3.82 m²

VISTA 1

PORCELANATO NAUTICA (30X60)

PORCELANATO AZUL (30X90)

MOODBOARD

RODAPÉ DE PORCELANATO BRANCO

Rejunte de 2mm

PORCELANATO NAUTICA (30X60)

PORCELANATO AZUL (30X90)

BANCADA E FRONTÃO EM GRANITO BRANCO ITAUNAS 2mm

ARMÁRIO EM MDF COM ACABAMENTO EXTERNO EM FOLHA DE FREIJÓ

RODAPÉ DE PORCELANATO BRANCO

COMPRIMENTO DO RODAPÉ SEGUE AS MEDIDAS DA PAGINAÇÃO DO PISO

BANHEIRO SOCIAL

As dimensões do box foram definidas pelo Porcelanato Riviera, da Portobello. As paredes receberam acabamento com tinta super lavável.

COMPRIMENTO DO RODAPÉ SEGUE AS MEDIDAS DA PAGINAÇÃO DO PISO

RODAPÉ SEGUE AS

DO RODAPÉ SEGUE AS MEDIDAS DO PISO

REGISTROS DE OBRA

COZINHA

Setembro a novembro de 2020

A reforma da cozinha envolveu a retirada do revestimento das paredes, cujo assentamento estava oco, e a aplicação de um novo reboco. A pia foi fixada sobre mãos francesas reforçadas, e o novo piso foi assentado sobre o antigo. As paredes pintura sobre a camada de massa corrida e seladora.

BANHEIRO SOCIAL

Setembro a dezembro de 2021

O novo banheiro exigiu a construção de suas paredes, que conformaram também o novo quarto e a varanda coberta. A obra exigiu que o projeto de esgoto fosse refeito e desviado para o quintal, o que favorece futuras manutenções.

Este portfolio utiliza a fonte Roboto Light tamanhos 11 e 12 no corpo de texto e Neutra Text Book tamanhos 15 e 35 nos títulos e subtítulos. O documento foi formatado no Adobe InDesign.

Turn static files into dynamic content formats.

Create a flipbook
Issuu converts static files into: digital portfolios, online yearbooks, online catalogs, digital photo albums and more. Sign up and create your flipbook.
FERNANDA ALVES: portfolio arq&urb by eunandalves - Issuu