Summer 2024 Estimating Today

Page 1


AMERICAN SOCIETY OF PROFESSIONAL ESTIMATORS

Observations and Conclusions on Construction Quantity Takeoff Services

Building the Future: The Vital Role of Construction Cost Estimators

How to Estimate the Cost of Drywall Ceiling Clouds

BOARD OF DIRECTORS

President Mike A. Alsgaard, CPE maalsgaard@aspenational.org

First Vice President A. Keith Parker, CPE keithparker@circlebco.com

Second Vice President Matthew Burress, CPE mburress@performanceservices.com

Immediate Past President M. Chris Morton, FCPE cmortonfcpe@outlook.com

Treasurer (Appointed) Paul Croke pcroke@hinrest.com

Northwest Governor Eric Ross, CPE laurenanderic@comcast.net

Southwest Governor Joshuah Crooker-Flint, CPE joshc@auiinc.net

Central Plains Governor Jeremy Adkins, LCPE jadkins@wcci.com

Southeast Governor

Danny Chadwick, CPE estimatordan@gmail.com

Northeast Governor Rose Jesse, CPE rosejesse.aspe@gmail.com

INDUSTRY DIRECTORS

Steve Nellis American Council for Construction Education

Jean Arnold, Esq. Arnold & Arnold, LLP

FROM THE EXECUTIVE DIRECTOR

Executive Director

ASPE members—like members of professional societies and associations everywhere—expect and deserve a return on their membership investment. A survey by loyalty technology company iSeaetz (based on surveys of more than 2,000 managers and customers of membership groups) revealed that members place great value on “exclusive access to content, events, and experiences” and “interacting with people with shared interests.” (Source: Mark Athitakis, "Report: Sense of Belonging Essential to Sustained Membership," Associations Now, April 2, 2024).

Of course, a survey is not necessary to know that engagement is key for any membership organization to thrive. My conversations with ASPE members and chapter and national leaders often center around how to engage members and create a sense of belonging. While we all have to balance multiple demands on our time (family, work, volunteer, personal), becoming engaged in the ASPE community can take as little or as much time as you have to give. Here are a few ideas:

Make Connections – Utilize the ASPE members-only portal to connect with others who do what you do every day. Just log in to your ASPE profile and click “Connections” to get started! You can also join the growing ASPE community on LinkedIn—post, like, and share to engage with peers.

Join a Chapter Meeting – Keep an eye out for announcements from the SBO listing upcoming virtual and hybrid meetings and webinars offered by chapters across the country. These meetings are open to all members. Visit the Upcoming Events page on the ASPE website to see what’s coming up and earn PDUs if you need them.

Attend Summit 2024 – The ultimate way to engage with your fellow estimators is to attend the Summit! Plan to join the community September 12 – 14, in Cincinnati, OH. While virtual engagement options are convenient, nothing replaces a handshake and in-person conversations to build your professional network. (Note: discounted registration pricing ends June 30 so register today!

Increasing opportunities for engagement is a top priority for our Society, and ASPE leadership is working to identify more ways to support member connections. We hope you will take advantage of these opportunities to deepen your involvement and enrich your professional journey with ASPE. Your engagement strengthens our community and ensures that we all continue to thrive together.

Connect at:

jwarren@aspenational.org LEARN . CERTIFY. JOIN.

Welcome our February - April New Members

Welcome our February - April New Members

Member Company Chapter

Dariela Trujillo Geofill Construction

Sam Waldrop Waldrop Construction

Joseph Richards Flooring Takeoffs

Daniel Pekarsky

Jonathan Vermeulen MC Consultants Inc.

Dallas/Ft.Worth - 43

Dallas/Ft.Worth - 43

Dallas/Ft.Worth - 43

Dallas/Ft.Worth - 43

Dallas/Ft.Worth - 43

Mike Lewandowski Renovation Estimate Solutions Dallas/Ft.Worth - 43

Tom Pritzkau MC Consultants Inc.

Dallas/Ft.Worth - 43

Daryl Lamoreau Daryl Lamoreau Three River - 44

Thomas Addis Capital Pump and Equipment Roadrunner - 47

Julie Rodrigo AUI Inc. Roadrunner - 47

Jospeh Becerra Becerra Construction Inc. Tampa Bay - 48

Darius Israel Tampa Bay - 48

Louis Scott Orlando - 50

Arslan Akhmetov The Middlesex Corporation Orlando - 50

Jay Dougherty BRPH Orlando - 50

Omkar Dutt Olety

Giridhar Dana B Kenyon Company Orlando - 50

Mark Hardeman Marina Mechanical Silicon Valley - 55

Josh Scroggins Mechanical Contracting Central Indiana - 59

Wade Williams CMR Brew City - 78

David Anderson Lingo Construction Services Landrun/OK City - 80

Nolan Krampe Ashton Gray Construction Landrun/OK City - 80

Erik Sehnert Sehnert Systems Inc. Northwest MAL - 90

Jason Asher Ward-Henshaw Construction Northwest MAL - 90

Nydia Sears Northwest MAL - 90

Tim Kraft Simpson Strong Tie Central Plains MAL - 92

Scott Lang Simpson Strong Tie Southeast MAL - 93

Jake Elmhorst ConstructConnect Northeast MAL - 94

Register Today !

About Cincinnati

ASPE’s Summit has a long tradition of providing top-tier education for estimating professionals. Originating as a workshop tailored for estimators to refine their skills, Summit has now evolved into a comprehensive conference catering to estimators at all career stages, offering immersive training and seminars led by seasoned estimators, construction experts, software developers, economic consultants, and other industry leaders. Beyond its educational offerings, Summit serves as a networking hub where enduring professional connections are established among like-minded estimators, vendors, and service providers. Building a robust professional network is a fundamental aspect of the Summit’s mission.

Downtown Cincinnati, OH, offers attendees a relaxed and accessible urban experience right from the convenient location of the Summit venue, Hyatt Regency Cincinnati. With a diverse dining scene ranging from trendy eateries to classic comfort food joints, there’s something for everyone. Sports fans can check out the Great American Ball Park or Paycor Stadium, while entertainment options abound with theaters, live music venues, and the iconic Fountain Square. Explore museums like the Cincinnati Art Museum or take a scenic stroll along the Ohio Riverfront to soak in the city’s rich history and picturesque views.

Agenda Overview

Pricing

Estimating for Optimal Outcomes

» Estimating Aspects of Public Bidding

» Data Science for Estimating

» Estimating Economics

» Reconciliation in Estimating

» Understanding Legal Precedents in Pricing and Biding Work

» And More!

Regular - $1,495 - Through June 30

Late - $1,795 - Through September 3

Guest - $275

Discounted Team Pricing Available - please inquire at natasha@aspenational.org

Learn More

Summit Agenda

Thursday, September 12

3:00 p.m. - 6:00 p.m. Event Registration

5:00 p.m. - 6:00 p.m. Regional Meetings

6:00 p.m. - 8:00 p.m. Welcome Reception

Friday, September 13

7:00 a.m. - 8:00 a.m. Breakfast

8:00 a.m. - 8:15 a.m. Opening Remarks

8:15 a.m. - 10:15 a.m. Estimating Construction Projects on the Moon - Paul Martin

10:30 a.m. - 11:30 a.m. Human Error in Estimating: Getting Past the Blame Game - Lisa Nakamura

11:30 a.m. - 12:00 p.m. RIB Software Demo

12:00 p.m. - 1:00 p.m. Lunch

1:00 p.m. - 1:30 p.m. Leveraging Artificial Intelligence to Enhance Human Experience, Output, and Accuracy - Aaron Henderson

1:30 p.m. - 2:30 p.m. Estimating as a Basis for Project Entitlements- Ted Bumgardner

3:00 p.m. - 4:00 p.m. How to Capture Historical Data Panel - Justin McVaney, AEP

4:15 p.m. - 5:15 p.m. Estimating Aspects of Public Bidding - Roy Huemer, CPE

Saturday, September 14

7:00 a.m. - 8:00 a.m. Breakfast

8:00 a.m. - 8:45 a.m. Awards

8:45 a.m. - 10:15 a.m. Project Handoff Panel - Larry Lucero, CPE , Bob Carlson, and Josh Crooker-Flint, CPE

10:30 a.m. - 11:30 a.m. Data Science for Estimating - David Hopkins, CPE and Cameron Wilson

11:30 a.m. - 12:00 p. m. ConstructConnect Demo

12:00 p.m. - 1:00 p.m. Lunch

1:00 p.m. - 1:30 p.m. Strong-Tie Demo

1:30 p.m. - 2:30 p.m.

Estimating Reconciliation – A Gold Standard for Controlling Budgets - Karla Wursthorn, CPE

3:00 p.m. - 4:00 p.m. Driving Blindfolded: How We Make Sense of the Data - Will Roberson

4:15 p.m. - 5:00 p.m. ASPE Annual Meeting and State of Society

Earn up to 12 PDUs at Summit 2024!

Observations and Conclusions on Construction Quantity Takeoff Services

The concept of email marketing seems so prevalent these days. Every day my inbox and spam filters are populated with emails offering website search engine optimization, business funding, and lending, outsourced HR services, telephone answering services and many other administrative types of services, none of which I have any interest in or need for. It’s easy to block email addresses or simply delete the unwanted email solicitations, but because these outsourced estimating and takeoff service emails pertain to my line of work, I started keeping an eye on them, even cataloging them, and sometimes even engaging them.

I had several thoughts in mind when I started keeping an eye on these solicitations. I wanted to know if others within my profession, and in the wider AEC community, were also receiving these emails; I wondered about the perceptions of others who also receive them have about these service provid-

ers; and perhaps most importantly, in the interest of protecting my business by knowing and understanding my competition, I wanted to determine if these service providers are “legitimate”. Could they really have an impact on my own business? Could they have an impact on other firms that belong to the same trade associations I belong to (CERT, ASPE, CSI, AACE)? If they are legitimate, could they be potential members of these trade associations?

Here is some information from my own research.

• For a one-year period, from September 20, 2022, until September 20, 2023, I received over 200 such emailed solicitations from over 50 companies or individuals, whom I came to refer to as “takeoff hustlers”. I readily admit that may be an unfair nickname, but as time went on and nothing about them made me feel better about them, I found myself using this moniker.

• From multiple companies, I have received the same or similar emails from multiple people within that same company. Many of the names on the emails had job titles such as “marketing manager” or “business development executive”, or a similar official-sounding job title.

• Most provided no other way to follow through except by reply email (no website, phone number, mailing address, or social media info).

• NONE had any information about the credentials or qualifications of the company or individuals for being proficient in quantity takeoff or cost estimating work.

Since these emails were ostensibly legitimate offers to transact business, I decided after a while to engage, so to some of these emails I responded with a series of questions, including:

• What is the full legal name of your company?

• What is your business structure— sole proprietorship, S Corp, or LLC?

• How long have you been in business?

• Do you have any former business names?

• Where is your business office?

• Who will be performing the work—you, or a staff person?

• Are your staff in-house employees or outside resourced?

• What are your (or your staff’s) credentials as a construction estimator? Do you have any certifications from nationally recognized professional trade associations for construction estimators or project control? In particular, I would expect to see anybody working on my projects having one or more of the following certifications: CPE (from ASPE), CDT (from CSI), CEP (from AACE). What education or experience do you or your staffers have?

• Can you please provide resumes of you and your staffers? Can I research you or your staffers on LinkedIn?

• Do you have a website I can review?

• What is your fee structure? How do you invoice? What are your payment terms? Can I pay electronically? Can I pay by credit card? Do you require any payment upfront before you start working on my project?

• What software tools do you use in your work?

What kind of answers did I get? Nothing useful - no references to certifications, ASPE, CERT, CSI, or AACE. I was offered samples and even received copies of takeoffs (I requested none and did not click on, save, or open any unsolicited samples I received). A common theme seemed to be “send us your plans and we’ll quote a fee,” but only a few replied with information about payment terms, which were pay half the fee upfront, by cred-

it card, and the rest before the takeoff was delivered. I never received any names of any estimators who would be performing the work.

My receipt of these emails and my limited interaction left me suspicious, primarily because of the lack of information provided. No website was the most glaring omission, and the opaqueness (no transparency) left me wondering how I even research these companies. Many of the solicitations included poor email etiquette, such as bad grammar, lack of subject-verb agreement, and misspelled words. Receiving emails from multiple people at the same company was also a turnoff, as was the pushiness of some of them. Many of these emails were from names so generic they struck me as false, such as “Tony Hawk,” “Peter Scott,” “Jimmy Forrest,” “Bob Miller,” and “Michael Storm”. Lastly, there were no references to any trade associations.

My big question was and still is why are they contacting me—I’m their competitor? How did I get on their list? Even though I suspect that most of my colleagues ignore or delete these emails, I was curious if these emails would have an impact on several aspects, including:

My business?

Most likely won’t—my clients are longterm, repeat customers who have grown accustomed to the level of service I provide.

My trade associations: Are these service providers potential members, sponsors, or advertisers?

My profession?

Do these service providers paint us all with a broad brush? Does their collective lack of transparency, zealous email solicitation methods, or otherwise unseemly tactics make us all look bad? Should we be concerned? Enough to take any action? Most importantly, are they any good

at what they do—are they competent and consistent?

My colleagues?

How widespread is this issue? Have any of my clients spent as much time thinking about this as me? Have any of them engaged to the point of transacting business with these service providers?

My Conclusions

In an unregulated profession like construction estimating, our work has to set us apart. I’ve always relied on doing a good job every time and that has provided the sustainability to keep going, doing the job that I love and enjoy. Consistency and competency are drivers of repeat business, and my reliance on advertising has never been great. If cheap hourly rates are a selling point for these service providers, I can’t afford to compete with them anyway. I would be more concerned if it became obvious that these service providers routinely engaged in unethical estimating or business practices, but there is no evidence out there to suggest that. Yes, their marketing practices may seem odd or even disconcerting to the mainstream estimating community, but there is nothing necessarily unethical about them; I do think this kind of thing should be monitored by the trade associations, particularly CERT and ASPE, but not just for negative impacts to our profession. It’s very likely that some of these service providers are the real deal, legitimate enterprises worthy of our respect, who would benefit from trade association membership, and whose membership we would all benefit from in return. The bottom line for me is this: anybody engaged in an estimating practice should want to join CERT and/or ASPE if they want to be perceived as a top-quality service provider.

Daniel Frondorf, CPE DG Frondorf and Associates LLC dan@dgfrondorf.com

Member Company Chapter

Candace Williams, CPE

Binu Mathew, CPE

Brandon McDermott, AEP

Rogan Cudworth, AEP

Hector Lopez, CPE

Victor Tengowski, CPE

Jabari Reaves, AEP

Riley Johnston, AEP

Jordan Jones, AEP

Matthew Rosendale, AEP

Ellyn Goldkind, AEP

Seth Welsh, AEP

Xiao Qin, AEP

Caiden Permenter, AEP

Core Consulting San Diego - 4

Anser Advisory Garden State - 26

Defacto Consulting Group Inc. Dallas/Ft.Worth - 43

Defacto Consulting Group Inc. Dallas/Ft.Worth - 43

American Fire Protection Group Roadrunner - 47

Fishbeck Inc. Central Plains MAL - 92

Morris Concrete

Timberlake Construction

361 Degrees Inc.

Federal Deposit Insurance Corp.

Worth and Company

SGTR LLC

STO Building Group

Call for Nominations for ASPE National Board of Directors

If you are interested in getting more involved in the ASPE community—here is your chance! Help shape the future of ASPE by nominating yourself or another ASPE member for a position on the National Board of Directors. Our Society needs volunteers who are willing to dedicate their time, energy, and expertise to move our industry forward and meet the needs of the membership.

The position(s) to be filled for a two-year term beginning January 1, 2025, are as follows:

• Northwest Region Governor

Nomination packages must include the following:

- Signed roles and responsibilities form for the position sought.

- Completed and signed application form.

- Headshot and position statement (150 words maximum) for publication on the ballot.

The nomination must be accepted by the person being nominated.

Nomination packages should be submitted via email to tina@aspenational.org no later than 11:59 p.m. PDT on Friday, June 14, 2024.

How to Estimate the Cost of Drywall Ceiling Clouds

Introduction

The illusion of having a “cloud” floating in an enclosed room in a building is one that can have a stunning visual effect. Designers may incorporate them into their ceiling spaces not only for their aesthetics but often for the role they play in the acoustics of a room. Whether it be one cloud, several clouds hung at the same plane, many clouds mounted at varying tilted degrees and heights, or even overlapping with one another; clouds can be a prime focal point of a room. The intent of this paper is to equip the reader with the basic knowledge necessary to complete an estimate by interpreting architectural reflected ceiling drawings, identifying the

materials needed, the quantities of said materials, the labor required for assembly, the equipment necessary to hang the clouds, and the labor to accomplish it all.

MasterFormat Information Division

33 00 00 - Utilities

Subdivision

09 20 00 - Plaster & Gypsum Board

09 21 16 - Gypsum Board Assemblies

09 22 00 - Supports for Plaster & Gypsum Board

09 22 16 - Non-Structural Metal Framing

Brief Description

The drywall ceiling clouds that shall be addressed in this exercise are composed of a cold-formed light gauge steel framed structure, clad with gypsum drywall panels, trimmed out with applicable corner bead and/or L-bead, and suspended from an overhead support structure by using hanger wires. In this local geographic region from which I am writing, the finishing and painting of drywall is part of the painter’s scope of work, so it will not be acknowledged in this estimate example.

Types and Methods of Measurement

When looking for drywall ceiling clouds within an architectural set of drawings, they are most often shown on the Reflected Ceiling Plan (RCP). These scalable plans will allow measurements in square feet (SF) of the surface of the drywall ceiling clouds. Accompanied by additionally provided details and cut sections, the CFS light gauge metal framing and trims will be measured in terms of linear feet (LF). Most commonly the hanger wires are calculated by a piece count (PC). These measurements can be obtained through the use of scale rulers or digitizers while using

printed hard copies of drawings. If estimating software is available to the user, then they can also use electronic files (e.g., PDF, TIFF) of the drawings to digitally measure the drywall ceiling clouds as well. Labor and equipment shall be noted as being calculated by the hour (HR).

Specific Factors

There are several factors that one must take into consideration when estimating the cost of a drywall ceiling cloud system. Let’s approach this from the ground up. First off, has sufficient time been allocated within the schedule to allow this work to be completely performed during the regularly scheduled work week? If not, then additional time must be calculated to account for the overtime labor hours that may be worked on weekends and/ or holidays. The size and shape of the drywall ceiling cloud will affect numerous things as well. If the cloud is small enough to be constructed at floor level and then lifted into place as one unit, then labor can be greatly reduced. However, if it is too large, then it must be fabricated in place, or built piece by piece at its suspended location. This is very labor intensive, but it is often the route that one must take. It is advantageous if cloud construction and installation can occur prior to the finished floors being installed, this will negate the need to figure in costs for floor protection. While examining the floor situation, check to see if it is sloped or level. Working on sloping floors will always impact production rates and equipment more than working on a level surface.

The installed height of the cloud above the finished floor (AFF) is another factor that has a significant impact on pricing. Can it be safely reached by ladders, stilts, or rolling scaffolds? This would be the most economical end of the production

Ryan Engdahl, CPE Arkansas - 33 rengdahl@

For the past two years, I have worked as a Pre-Construction Estimator for Baldwin & Shell Construction Company (Little Rock, AR). Prior to this, I was a project estimator for commercial drywall/ acoustical subcontractors for 18 years. Other trades that I have background experience working in include commercial millwork fabrication, industrial manufacturing and shipping, quality control inspector, and safety coordinator. Projects of mine I am personally very proud of would include Bass Pro Shops stores at locations in Little Rock, AR; Chattanooga, TN; Bristol, TN; and Tampa, FL.

rates. If the mounting height is much higher, then one must figure on the crew using lifts or multiple tiers of scaffolding. Can the size of the required equipment physically fit through the building and gain access to the room where it is needed? If on a sloped floor, will the equipment require outriggers? When equipment can’t fit, then scaffolding must be erected; this also adds labor for the erection and dismantling of a scaffolding system. Very large scaffolding systems (referred to as “dance floors”) can often require engineering. The cost of such a system can be divided among the many trade contractors who can benefit from the use of such a dance floor, so check with the project manager and see if they can confirm or deny this will happen. Another factor to consider is the shape of the cloud: is it composed of straight-line edges and 90-degree corners, or does it have curved edges, obtuse angles, or acute angle corners? The more complex the shape is, the more intensive the labor to create it will be as well. The support structure found directly above the cloud: is it unobstructed and allows for accessible anchor points for the hanger wire? If not, then additional labor and materials will need to be anticipated to create the necessary anchor points for the support of the cloud structure. Finally, the placement of the cloud: shall it be installed level, or will it have a tilt or slope to it for a desired acoustical or visual effect? The same principle with working on a sloped floor applies to installing a cloud at a sloped angle, it requires a bit more labor to accomplish. The many factors discussed above all play a role in the cost estimate of a drywall cloud system, so please consider them carefully.

Overview Costs

In this section, we will address the different types of costs associated with an estimate for drywall ceiling

clouds. These shall include labor (crew size, production rate), materials (utilized, waste factor), equipment (rental rates, delivery fees), and mark-ups (overhead/profit, sales tax).

Labor

Labor costs shall be calculated by using a square foot rate, which is based on historical data gleaned from years of completed projects. Given the parameters of the example estimate in this paper, a labor rate would be estimated at $5.00 per square foot of drywall ceiling cloud. A typical crew size for a drywall cloud build would include two (2) framers/hangers. This crew size is derived from needing a worker to be at each end of long studs, track, or handling of drywall sheets; and typical equipment lift baskets are only rated for two people. A two-person crew should produce approximately 350 square feet per day of a standard, symmetrically straight-edged shaped, level-hung, drywall ceiling cloud at a nominal height between 10’-20’ AFF.

Materials

There are five basic components in the construction of a drywall ceiling cloud base unit. Light gauge coldformed steel framing (studs and track), gypsum drywall, hanger wires, trims (corner bead, l-bead), and fasteners (ceiling anchors, screws). Each of these should be noted within the drawing details: stud and track size and gauge, drywall thickness, hanger wire gauge, corner bead and l-bead requirements, and the types of ceiling anchors required. A 10% waste factor should be anticipated for this build process, but it could be higher if the cloud’s shape is more complex.

Equipment

It is assumed that the framers/hangers will already be supplied with their own hand tools, so our focus will be on the equipment neces-

sary to reach the work being done. Depending on the mounting height of the drywall ceiling cloud above the finished floor, the equipment we must consider could include stilts, ladders, scaffolds, scissor lifts, or even articulating boom lifts. Many companies will own their equipment, and some will rent it, but the value of it must still be calculated to complete the estimate. The delivery and pick-up of said equipment also needs to be added to the cost estimate as well, whether it is rented, or company-owned. Commercially available rental equipment can have hourly rental rates, but it is most often rented by the day, week, or month which is more cost-effective.

Mark-ups

While overhead and profit margins are at the contractor’s discretion to set, sales taxes are mandated by the exact location of the job site (city, county, state, other). Overhead rates are typically set by individual companies as a known percentage to compensate for their costs. These overhead rates can include project management, safety programs, insurance, bonds, transportation, and other company-specific items. Profit margins can vary from job to job, so this value must be confirmed by the estimator when compiling the final estimate.

Risk Consideration

Crew members’ safety should always be a risk factor that is considered first and foremost in any construction situation. A drywall cloud ceiling is a continuously suspended element that gravity is always pulling on. Constructing and fabricating overhead is always dangerous, especially when standing in and on various types of elevated equipment. Proper construction techniques should be utilized to ensure that a cloud will not ever fall from its

its intended ceiling position. The physical structure of drywall ceiling clouds is not typically an item that grants easy access to the space above them. Therefore, it is very important to determine that all necessary work to be performed by other trades above it is complete prior to beginning cloud construction (example: refer to Image 1 –HVAC ductwork must be installed before the drywall ceiling clouds).As the five basic material components mentioned earlier are very common trade goods and are most likely used throughout the project in other areas as well, the risk of said materials being difficult to obtain is very low in most regions.

Ratios and Analysis

The exact ratio of material costs to labor costs is one that will vary on each and every project. Material pricing will fluctuate with the current market value. Estimated labor costs will be dependent on many different factors such as the size and

shape of the drywall ceiling clouds, the height of the mounting location, accessibility, and even job site location. However, a general ratio can be determined by evaluating previous projects of similar scope and size with consideration given to escalation and market trends. A split of 25% material / 75% labor or even 40% material / 60% labor is not uncommon. It may be a low-hanging, basic rectangular-shaped cloud that is easily and quickly built (40/60 range); or it may be a very labor intensive oddly shaped cloud hanging 30’ AFF over a sloped floor (25/75 range). Once the overall costs are calculated, a quick analysis of the material/labor ratio should reveal if there are any mathematical errors. If it is skewed very heavily to one side, then it would be advisable to go through the estimate again to check for any mathematical errors. Enlisting another qualified person to review your work and check it for discrepancies is always a good practice to have and implement in your routine.

Miscellaneous Pertinent Information

As noted earlier, the geographic region from whence this paper is written does not include finishing or painting within the drywall scope of work. Therefore, one must be sure that the painter incorporates the drywall ceiling clouds as part of their estimate. Architects and interior designers may also include lighting (recessed can lights, hidden reveals), sound (speakers), video (projectors), fire suppression (sprinkler heads), or even HVAC (grills) elements within a drywall ceiling cloud. Items such as these should be accounted for within the applicable trades’ estimates. Coordination with such trades would be critical to the drywall fabricators during construction and would need to be accounted for in an estimate.

Image 1
Image 2
Image 3: Elevation Section Detail of Drywall Ceiling Clouds
Image 4: Cut Section Detail of Drywall Ceiling Cloud

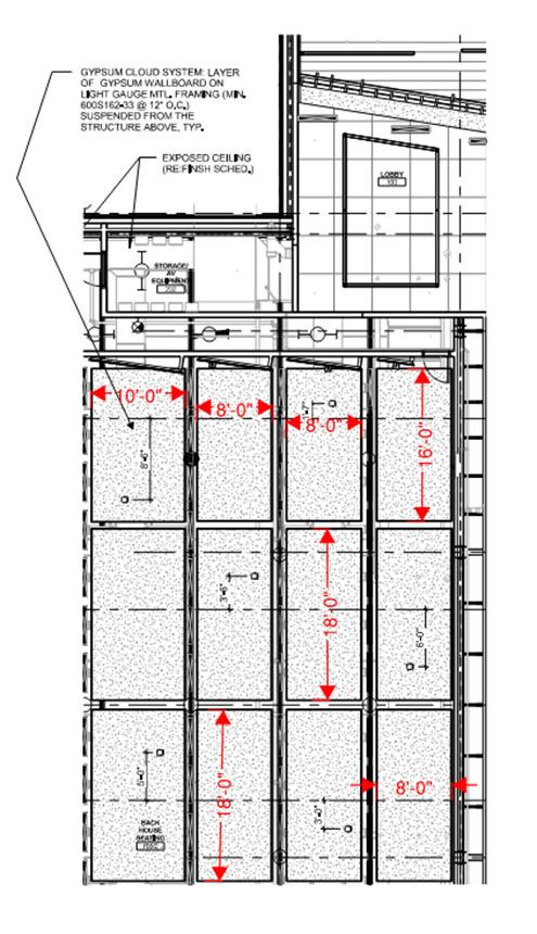
Details and Sample Plans

Using our example drawings, we can see that there are four differently-sized clouds. It may help the estimator to think of these clouds as walls when considering how to estimate the required materials. By multiplying the height x width of each cloud, we can calculate the needed drywall. For example, a cloud with dimensions of 10’ x 16’ yields 160 SF. Per the cut detail we know that the 6” tall, upturned edge of the cloud also receives gypsum. By measuring the perimeter linear footage and dividing it by 2 (due to the 6” height), we can calculate that square footage as well. For example, that same cloud at 10’ x 16’ has a perimeter of 52 LF, divided by 2 yields 26 SF. Adding the initial estimates of 160 SF and 26 SF yields a drywall amount of 186 SF total for that particular cloud. The notes on the RCPs indicate that they are constructed from 6” studs at 12” OC, therefore we can use the longer side length of each cloud to determine the number of needed studs, remember to add 1 stud on the end; and the shorter side length will give us our stud height. For example, a cloud with dimensions of 10’ x 16’ would need 16 + 1 Studs (17 studs) at a 10’ height. It is standard practice to orient the studs to the shorter length layout, when possible, for this allows for stiffer, flatter framed units. The light gauge track is calculated from the 2 long side dimensions. For example, a cloud with dimensions of 10’ x 16’ would need track on both of the two 16’ sides; 2 x 16 LF yields 32 LF of 6” wide light gauge track. Hanger wires can be initially estimated as 1 per 8 SF of cloud. However, one must note that the specific mounting location of the cloud may require more or allow fewer hanger wires depending on the building elements located above the cloud. Items such as HVAC ductwork or units, plumbing lines, or

even electrical equipment can sometimes be in the way, so the installer must find a solution to properly secure and support the cloud that is suspended below. The corner bead is calculated by the perimeter of the cloud, plus the uprights on the four corners. For example, a cloud with dimensions of 10’ x 16’ would need 52 LF at the edge and 6” at each corner (2’ total) yielding 54 LF of corner bead. The drywall L-bead can be figured by the perimeter measurement. For example, a cloud with dimensions of 10’ x 16’ would need 52 LF of L-bead to cover the top edge of the upturned gypsum. With the overall square footage of clouds estimated at 1,768 SF being divided by the aforementioned 350 SF per day of production, this gives us approximately a five (5) day build schedule. Specific equipment needed for overhead installation work can be estimated by anticipating the number of users over this given period of time. In this example, I have used a weekly equipment rental rate of $1,012.00 for a boom lift to be utilized by a crew of 2 men. With 80 hours of work time (2 men at 40 hours per week), I can determine that the “lift per hour rate” will cost $12.65 per each labor hour.

Materials Takeoff:

Combined Materials Cost Estimate

HTETCO Drywall Ceiling Clouds

Labor Cost Estimate

Project: HTETCO Drywall Ceiling Clouds

Equipment Cost Estimate

Project:

Equipment

Calculation Per

Glossary and Acronyms

AFF – Acronym that stands for “Above Finished Floor”; used with a measurement to describe how high an object is located above floor level.

Cold-formed steel (CFS) – Framing members made from light gauge steel sheet or coil stock by roll forming the steel through a series of dies and/or stamping processes. No heat is applied.

Corner bead – Trim applied to an outside corner or reveal on drywall to protect an exposed corner and create a clean edge. These can be composed of metal or plastic.

Gypsum drywall – Sheet products consisting of a noncombustible core primarily of gypsum with paper surfacing.

Hanger Wire – Galvanized carbon steel wire available in 8, 9, and 12 gauge that is attached to the underside of an above structure to provide support for suspended ceiling elements; available in various lengths.

L-Bead – Trim designed to cover the raw edges of drywall and to create a clean edge. These can be composed of metal or plastic.

RCP – Acronym that stands for “Reflected Ceiling Plans”.

In Memory

Bertram A. Peluso, CPE

Bertram A. Peluso, CPE passed away on October 18, 2023 at the age of 85. Bertram joined ASPE Chapter 25 (Boston) in 1979. He was a founding member of the Boston chapter and received his CPE in 1981. ASPE salutes this longtime member.

We redefine AEC industry consulting by combining modern approaches with conventional principles.

As a national capital and project advisory firm, our worldclass experts work tirelessly to deliver mission-driven outcomes for our clients.

Regardless of project size, scope, or location, Anser is your trusted partner.

When it comes to estimating construction projects and capital programs, we simplify the complex.

Building the Future: The Vital Role of Construction Cost Estimators

In the ever-evolving landscape of the construction industry, the role of a construction cost estimator emerges as a cornerstone, pivotal to the successful execution and financial viability of projects. This profession, characterized by its blend of technical acumen and analytical expertise, is more than just about numbers; it's about shaping the skylines of tomorrow.

The Demand in the Modern Construction Arena

As urbanization accelerates and infrastructural complexities increase, the construction sector finds itself in dire need of skilled professionals capable of navigating these challenges. Construction cost estimators stand at the forefront of this demand, using their expertise to forecast financial costs and ensure projects are completed within budget. This crucial function not only safeguards the financial health of construction projects but also contrib-

utes to the industry's overall sustainability and growth.

A Pathway Filled with Opportunities

The career of a construction cost estimator is marked by diversity and potential. From roles in residential and commercial construction firms to positions within governmental bodies and consultancy services, the opportunities are vast. This career promises not only a competitive salary and job security but also the intellectual fulfillment that comes from solving complex problems and contributing to the creation of tangible, lasting structures.

Overcoming Misconceptions

Despite its critical role, the field of construction cost estimation is often overshadowed by misconceptions. It's mistakenly viewed by some as monotonous or lacking in innovation. Contrary to these beliefs, the profession is dynamic, requiring continuous learning

and adaptation to new technologies and methodologies. It's a career that demands creativity and strategic thinking, offering a rewarding challenge to those who venture into it.

Skills and Professional Development

For those looking to excel as construction cost estimators, possessing a strong set of skills is crucial. Proficiency in analytical thinking, attention to detail, and a deep understanding of construction processes and materials are foundational to success in this field. Specialized training and certifications, particularly those provided by esteemed organizations like the American Society of Professional Estimators (ASPE), are invaluable resources. ASPE not only offers a wealth of knowledge and expertise but also serves as a gateway to enhancing professional credibility and opening career opportunities.

The Indispensable Role of ASPE

Professional organizations like ASPE are instrumental in nurturing the next generation of construction cost estimators. By setting industry standards, offering certifications, and facilitating networking and professional development opportunities, these organizations ensure the profession's integrity and evolution. They serve as a beacon for those navigating their career paths in construction cost estimation.

Embracing the Next Generation

To secure its future, the construction cost estimation profession, under the stewardship of organizations like ASPE, must actively engage with younger generations. This engagement can take many forms, from educational outreach in schools and universities to offering internships and leveraging digital platforms that resonate with today's youth. Such initiatives will bridge the gap between the industry and potential future professionals, illuminating the path to a

career in construction cost estimating.

The Integration of Technology

The construction industry is on the cusp of a technological revolution, with advancements in Building Information Modeling (BIM), artificial intelligence, and machine learning transforming traditional practices. For construction cost estimators, this shift represents an exciting frontier, promising enhanced precision and efficiency in their work. Embracing these technologies not only elevates the profession but also appeals to a generation that values innovation.

A Call to Action

The construction industry's future hinges on its ability to adapt and innovate, a process in which construction cost estimators play a pivotal role. As we look forward, it's imperative for professional organizations like ASPE to champion the cause of engaging and empowering the next generation of estimators. Together, we can build

a future where the construction industry continues to thrive, supported by a workforce that's skilled, passionate, and ready to meet the challenges of tomorrow.

In conclusion, the journey of a construction cost estimator is one marked by opportunity, innovation, and the profound satisfaction of contributing to the built environment. As we stand at the intersection of tradition and innovation, the call to action is clear: it's time to invest in the future by nurturing the talents of aspiring estimators, ensuring that the construction industry remains robust and resilient for generations to come.

Andrew Kleimola Anser Advisory andy.kleimola@anseradvisory.com

No matter how you currently estimate, Pipeline LBM software from Simpson Strong‑Tie can help streamline your business. Because Pipeline seamlessly connects with your existing systems, estimators can work with greater speed and accuracy, and generate more takeoffs than ever. Your business — and your customers — will thank you.

To learn more about how Pipeline LBM can help your business run more smoothly, visit go.strongtie.com/lbm or call (800) 999 5099.

Standard Estimating Practice -

11th Edition Three Volume Set

This comprehensive three-volume reference set thoroughly covers the full scope of construction cost estimating -- from basic concepts to advanced topics. Written by a team of experts in the field, under the guidance of the American Society of Professional Estimators, it will help professionals working in every area of construction make sure their estimates are accurate, consistent, and verifiable. While the entire reference serves as a fully integrated guide, each volume stands alone with its own individual focus, and each volume can be purchased separately.

Volume I Principles of Estimating - General Principles of Estimating

$99.99 Including Shipping + Digital

Copy

The first volume of this reference set gives you a firm foundation in the basics of estimating and then builds on these fundamentals to give you a solid grasp of more advanced topics such as Value Engineering and BIM. You'll get clear, step-by-step procedures for a wide range of essential tasks: from scoping out the job to bid-day procedures. This volume also provides sample spreadsheets and forms, as well as two bonus chapters on trade and conceptual estimating.

Volume II Trade Estimating - Detail Estimating for the Trades

$124.99 Including Shipping

+ Digital Copy

The focus of this volume is trade estimating. Using dozens of real-life case studies, it demonstrates how to estimate tasks and processes that are difficult to quantify such as erosion control and power generation. Using the CSI MasterFormatTM as a roadmap, it explores all the factors that affect pricing in excavation, carpentry, masonry, electrical work, plumbing, hvac, roofing, tiling and much more. Along the way it provides you with checklists, plans, specs, and sample spreadsheets to help you fully grasp the nuances of each specific type of trade estimating.

Volume III Conceptual Estimating - Conceptual Estimating for Entire Building Structures

$124.99 Including Shipping +

Digital Copy

The final volume of this reference set is dedicated to the topic of conceptual estimating. It provides you with an exhaustive array of case studies of such diverse projects as auditoriums, fire stations, parking garages and dozens more. For each case study you are taken on a "deep dive" into all the unique challenges it presents to the estimator. You are then shown how to quantify components, special factors to consider, risks/pitfalls to watch out for, and typical ratios that provide handy "rules of thumb." In addition, you'll find sample sketches and spreadsheets that give you a professional’s approach to this important part of the construction process. Written by practicing estimating professionals with years of experience, this volume is a "must have" for anyone who must provide preliminary prices or budgets before the plans are even ready.

Purchase the three-volume set for $234.99 Including Shipping + Digital Copy and you will also receive... the digital download of the 2024 BNi General Construction Costbook (a $142.95 value).

ASPE CHAPTER MEETINGS

ARIZONA

Arizona #6

Where: Aunt Chilada's Website: n/a

Meeting Contact: Madison Williams MaWilliams@climatec.com

ARKANSAS

Arkansas #33

Where: Varies

Website: n/a

Meeting Contact: John Lefler jlefler@baldwinshell.com

CALIFORNIA

Los Angeles #1

Where: Virtual

Website: ASPE-LA1.org

Meeting Contact:

Bruce Danielson la1ofaspe@outlook.com

Golden Gate #2

Where: Virtual Website: aspe2.org

Meeting Contact: Robert Muir, CPE robmuir72@hotmail.com

Orange County #3

Where: Virtual Website: aspe-oc3.org

Meeting Contact: Joshua Crooker-Flint, CPE JoshC@auiinc.com

CALIFORNIA

San Diego #4

Where: Virtual

Website: aspesd4.org

Meeting Contact: Paul Chang, CPE pchang@balfourbeattyus.com

CALIFORNIA(CONTINUED)

Sacramento #11

Where: Varies

Website: n/a

Meeting Contact: Eric Ross, CPE laurenanderic@comcast.net

Silicon Valley #55

Where: Virtual Website: aspe55.org

Meeting Contact: Shawna Alvarado shawna@odonnellplastering.com

COLORADO

Denver #5

Where: Virtual Website: aspedenver.org Meeting Contact: Jennifer Farmer, AEP jenphar@gmail.com

CONNECTICUT

Nutmeg #60

Where: Back Nine Tavern

Website: n/a

Meeting Contact: Nolan Johnson njohnson@a-zcorp.com

DELAWARE

Delware #75

Where: Virtual Website: n/a

Meeting Contact: Brett Mucklow bmucklow@bpgsconstruction.com

DISTRICT OF COLUMBIA

Greater D.C. #23

Where: Varies

Website: n/a

Meeting Contact: Rose Jesse, CPE aspe23president@gmail.com

FLORIDA

Tampa Bay #48

Where: Varies Website: aspetampabay.com

Meeting Contact: Danny Chadwick, CPE estimatordan@gmail.com

Orlando #50

Where: Anser Advisory Website: https://aspeorlando50.com

Meeting Contact: Andrew Kleimola akleimola@anseradvisory.com

GEORGIA

Atlanta #14

Where: Virtual

Website: n/a

Meeting Contact: Curt Giebeig, CPE curt.giebeig@ra-lin.com

INDIANA

Central Indiana #59

Where: Varies

Website: n/a

Meeting Contact: Jeremy Adkins, CPE jadkins@wccci.com

Old Fort #65

Where: Virtual Website: aspechapter65.org

Meeting Contact: Dave Garman, CPE dgarman@weigandconstruction.com

IOWA

Quad Cities #71

Where: Varies Website: aspequadcities.org

Meeting Contact: Kendall Deter kendall@estesconstruction.com

ASPE CHAPTER MEETINGS (CONTINUED)

ILLINOIS

Chicago #7

Where: Virtual

Website: n/a

Meeting Contact: Jeremy Adkins, CPE jadkins@wccci.com

Greater Des Moines #73

Where: Varies

Website: iowaaspe73.org

Meeting Contact: Nicholas Gehl nicholas.gehl@weitz.com

MAINE

Maine #37

Where: Varies

Website: aspemaine.com

Meeting Contact: John Burrell, CPE jburrell@landryfrenchconstruction.com

MARYLAND

Baltimore #21

Where: Varies Website: n/a

Meeting Contact: Steve Dooley, CPE sdooley@phoenix-eng.com

MASSACHUSETTS

Boston #25

Where: Virtual Website: n/a

Meeting Contact: Bill Carpenter bcarpenter@columbiacc.com

MICHIGAN

Detroit #17

Where: Virtual

Website: aspe17.org

Meeting Contact: Glenn Frank, CPE glenn.frank@ymail.com

MISSOURI

St. Louis Metro #19

Where: AGC Training School Website: aspe19stlouis.org

Meeting Contact: John Smith, CPE jpsmith@tarltoncorp.com

Heartland #32

Where: Varies Website: aspe32.org

Meeting Contact: Eric Soriano esoriano @hermeslandscaping.com

NEW JERSEY

Garden State #26

Where: Virtual Website: n/a

Meeting Contact: Todd Ressler, CPE tr1197@hotmail.com

NEW MEXICO

Roadrunner #47

Where: Fiestas Restaurant

Website: n/a

Meeting Contact: Alicia Sierra alicia@condeck.com

NEW YORK

New York #10

Where: Virtual Website: n/a

Meeting Contact: Matthew Martin mmartin@evergreene.com

Empire State #42

Where: Athos Resturant Website: n/a

Meeting Contact: Rose Jesse, CPE aspe23president@gmail.com

OHIO

Southwestern Ohio #38

Where: Varies

Website: aspe-cincinnati.org

Meeting Contact: Dan Frondorf, CPE dan@dgfrondorf.com

OKLAHOMA

Landrun-OK City #80

Where: Varies

Website: aspeok.org

Meeting Contact: Mike Phillips, CPE michaelp@miller-tippens.com

PENNSYLVANIA

Three Rivers #44

Where: Varies

Website: n/a

Meeting Contact: Rose Jesse, CPE rosejesse.aspe@gmail.com

Philadelphia #61

Where: Varies

Website: n/a

Meeting Contact: Stephen Biddle SBiddle@oliverfps.com

Central Pennsylvania #76

Where: Loxley's Resturant Website: n/a

Meeting Contact: Simon Knox sknox@jemgroup.com

ASPE CHAPTER MEETINGS (CONTINUED)

TEXAS

Rio Grande #40 Where: Varies Website: n/a

Meeting Contact: Rodolfo Barba, CPE rbarba@sundt.com

Dallas/ Ft.Worth #43 Where: Virtual Website: sites/google.com/view/aspedfw

Meeting Contact: Steve Patmon ASPE.dfw@gmail.com

VIRGINIA

Richmond #82

Where: Varies Website: aspe-richmond.org

Meeting Contact: Sid Bass, CPE sbass@reynolds.edu

WASHINGTON

Puget Sound #45 Where: Virtual Website: na

Meeting Contact: Eric Ross, CPE laurenanderic@comcast.net

WISCONSIN

Brew City #78 Where: Varies Website: na

Meeting Contact: Matt Washkoviak, CPE matt.washkoviak@gmail.com

Please Note: Information is subject to change. Report changes in your Chapter’s information with an email to Tina@ASPEnational.org

11th Hour Bid simulation

The ASPE 11th Hour Bid Day Simulation is an immersive, experiential learning activity where participants collaborate in teams to construct a general contractor bid for a project, replicating the challenges of a real-world “hard bid” scenario. The simulation entails reviewing subcontractor quotes, assessing risks, and collectively striving to complete and submit their team’s bid within the designated time frame. Tailored for educational purposes, the activity is suitable for integration into ASPE meetings, conferences, estimating academies, or in collaboration with university construction management programs. Lasting 3 to 3½ hours, the simulation can be conducted in a single day or split across two shorter classroom sessions.

EDUCATION:

ASPE educates and mentors professional estimators for the sustainability of the construction industry.

PROFESSIONALISM:

ASPE promotes the lifelong pursuit of excellence and credibility in professional estimating.

ASPE is the construction industry’s leader and recognized authority in professional estimating through excellence in education, certification and standardization.

FELLOWSHIP:

ASPE develops a fellowship of professional estimators that connects and leads the construction industry.

Turn static files into dynamic content formats.

Create a flipbook
Issuu converts static files into: digital portfolios, online yearbooks, online catalogs, digital photo albums and more. Sign up and create your flipbook.