INTERIORES

Page 1


A C A B A D O S

I N T E R I O R D E S I N G

ARQ DORIS LUZ SULLCA PORTA

CONOCIMIENTOS

ERLITA BAUTISTA JAMBO

Soy una estudiante de la Facultad De Arquitectura y Diseño de nteriores soy muy buena diseñando me apasiona la arqu tectura ntrospectiva

IDIOMA

EDAD 20 años

•NACIMIENTO 04/17/2003

•CIUDADA DE ORIGEN: Bambamarca

•NACIONALIDAD Peruana

Numero 940826081

Email

N00282100@upn pe

Instagram:

erlita-bautista

Español - Ingles

HOBBIES

Viajar

Diseñar

Pintar

Leer

PhotoShop

ALa arquitectura es una forma de plasmar los sueños en el mundo real...

ARQUITECTURA DESING.

U S U A R I O

Familia de tipo unifamiliar de 5 integrantes con un ingreso socieconomico alto, que le gusta pasar tiempo en familia y estar en casa

INTEGRANTES

PADRE: Juez - lectura

MADRE: Abogado - cocinar

HIJO 1: Etudiante - deportes

HIJA 2: Estudiante - arte

HIJO 3: Estudiante - redes sociales

ESTILO DE INTERIORES PREFERIDO

JAPANDI

Minimalista

Sencillo y elegante

Colores neutros - semicálidos

Materiales rústicos

Iluminación suave

Conexión con la naturaleza

Espacios prácticos y eficientes

Emociona con la vista

Espacios acogedores

NECESIDADES

Confort en los espacios especialmente en la zona social

Facilidad de mantenimiento en los materiales y acabados

Que los espacios tengan una sensación de calides

Que los espacios sean funcionales y practicos

Que exista buena ilumunación

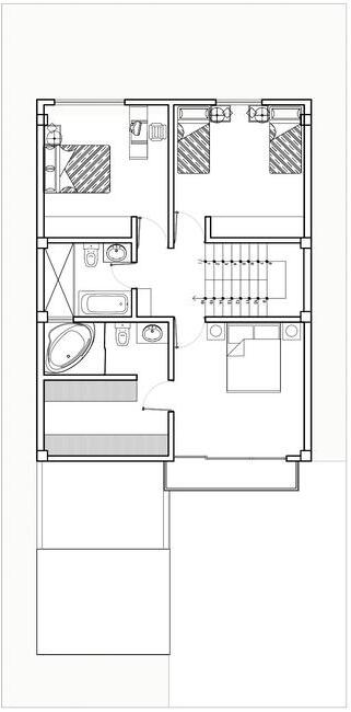
P L A N O S

Garaje 1
Cocina 2.
Comedor 3
Sala 4.
Estudio 5
6 Baño Visitas 7. Lavandería
Cuarto de servicio 9. Baño de servicio
Escalera

Habitación Secundario 1 5

Habitación Principal 1
Baño Principal 2. Closet 3
Baño Secundario 4.
6 Habitación Secundario 2 7. Hall

I S O M E T R I C O S

D E H A M B I E N T E S

Porcelanato Marrón: piso de 60X60
Porcelanato marmolizado
Vidrio templado de 6m
Manzano-Blanco
Porcelanato Color Griss
Wall Panel WPC
Mueble de Melamina Manzano
Vidrio templado de 6m
Tela de Muselina de algodón 100%
Piso Parquet Vidrio
cortina Tela de Muselina de algodón 100%
Revestimiento de estuco blanco
Madera Roble-Puerta principal Kallpa Ced 90cm + marco + 4 bisagras Dimfer
Porcelanato marmolizado: piso e muro de 60X60
Wall Panel WPC
Mueble de madera de roble
Listones de Madera Deck Teka
Vidrio templado de 6m
Acabado de concreto pulido
Wall Panel WPC
Tela Lino color marrón beige
Madera Roble-Puerta principal Kallpa Ced 90cm + marco + 4 bisagras Dimfer
Pintura Blanca - American Colors
Porcelanato en forma de rombo
Wall Panel WPC
Granito de colores
Pintura Blanca - American Colors
Madera Roble-Puerta principal Kallpa Ced 90cm + marco + 4 bisagras Dimfer
sofa Tela Arkansas Color griss
Revestimiento de estuco blanco
Piso laminado madera en gris humo
Vidrio templado de 6m
Cortinas transparentes de gasa
Listones de madera color beige
Wall Panel WPC
tela bombay color marron - con estanpado
Tela Lino color gris
Cortinas transparentes de gasa
DETALLE1

C O R T E S

S E L E C C I Ó N

M A T E R I A L E S F A C H A D

ELEVACIÓN PRINCIPAL

WALL PANEL EXTERIOR

FORMATO: 290 cm x 21 9 cm

ACABADO: Mate

COLOR: TEKA

ESPESOR: 26mm

USO: Muro - Exterior

Proveedor: Pisopak

Precio: S/. 33 Unidad

PIEDRA KKALA IRREGULAR

FORMATO: 10x20cm

MATERIAL: Concreto

COLOR: Gris Beta

ESPESOR: 2cm

USO: Interior- Exterior

Proveedor: Sodimac

Precio: S/. 59.90 caja

PINTURA

MARCA: American Colors

ACABADO: Mate

COLOR: Blanco

PROVEEDOR: Promart

FORMATO: 1gl (30 m2)

PRECIO: s/. 110.00

R E N D E R S R E N D E R S

G R A C I A S

Turn static files into dynamic content formats.

Create a flipbook
Issuu converts static files into: digital portfolios, online yearbooks, online catalogs, digital photo albums and more. Sign up and create your flipbook.