


Emma Sweatt

![]()



Emma Sweatt








Oklahoma State University | Stillwater, OK
Major: Design and Merchandising - Interior Design
Minor: Marketing
Expected May 2025
Oklahoma State University President’s Honor Roll | 2021 - Present
Mary Sue Herndon Endowed Scholarship through CEHS | 2023 - 2025
International Interior Design Association | 2024 - 2025 Treasurer
U.S. Green Building Council | 2024 - 2025 Treasurer
American Society of Interior Designers | 2024 - 2025 Treasurer
International Facilities Management Association | 2024 - 2025 Treasurer
The Almighty She | Student Member
NEWH | Student Member
Teaching Assistant | Oklahoma State University | Stillwater, OK
August 2024 - December 2024 & January 2025 - May 2025
Responsibilities: Assisted with course instruction and delivery of design concepts, provided one-on-one support and feedback during studio hours, k attendance and tracked student progress, guided students through group projects and design development.
Interior Design Intern | GH2 Architects | Oklahoma City, OK
May 2024 - August 2024
Responsibilities: Created interior renderings and assisted in all levels of the design process, participated in client meetings and gathered feedback, sourced furniture, fabrics, and materials for projects, conducted site visits, com
Study Abroad Experience to London & Paris | March 2023
Oklahoma State University Annual Designathon | October 2022

Throughout the hospital occupants and residents will be provided with a sense of peace and strength. Multi-purpose seating will allow visitors to be in the company of their loved ones any time of day with plenty of comfort. The overall space will be colored in minimal yet refreshing tones as well as brightly and naturally interiors to promote encouragement and tranquility. Aspects of nature and organic elements will be evident throughout the space to make patients feel more inspired.






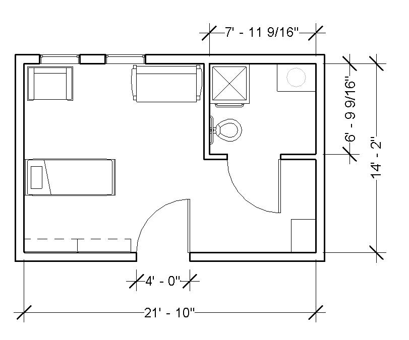
Studio 2: Small Scale Contract | Spring 2023


Project Type: Individual | Time Frame: Three weeks | 300 sq. ft.
Skills Used: AutoCAD, Sketchup, Enscape, Revit

Use an existing floorplan to create a hospital patient room that integrates new technology and makes space for family members in a patient care facility.










A

B
Multi-functional hospital patient bed
Retractable, drop-down ceiling television
C
Remote control shades



SPACE FOR FAMILY
TECHNOLOGY INTEGRATION
ALLOWANCE FOR PRIVACY





Studio 2: Small Scale Contract | Spring 2023


Project Type: Group | Time Frame: Four weeks | 1,760 sq. ft.
Skills Used: AutoCAD, Schematic & Space Planning, Modeling Skills

Working in teams of 3-4, design a 3D model for a co-working space in 1/2 inch scale. This space should be flexible and reflect use for professionals from multiple industries.












B




BOTH COLLABORATIVE AND PRIVATE WORK
USE OF ACOUSTICAL PANELING
UPLIFTING WORK
ENVIRONMENT








Project Type: Group | Time Frame: Four months | Mezzanine = 3,657 sq. ft.
Skills Used: Revit, Enscape, Schematic & Space Planning

The project redevelops a historic building in Stillwater, OK, for the PACE program, focusing on healthcare, personal care, and family support, while ensuring functionality, accessibility, safety, sustainability, and ADA compliance.








‘Nugget’ modular sofa
B
C View of reception desk Small ottoman for modular seating arrangements




BRAND OF THE BUSINESS
AMPLE LIGHTING AND MODULAR SEATING
INCORPORATION OF LOUNGE AND WORK SPACES





Studio 3: Construction Documents | Fall 2023


Project Type: Individual | Time Frame: Four weeks | 2,340 sq. ft.
Skills Used: AutoCAD, SketchUp, Enscape, Schematic & Space Planning

Individually, design a Chipotle Mexican Grill. Create construction documents and 3D renderings.

























A

Circular booth with fluted metal on exterior
B
C 3-Light pendant
Typical chair used throughout Chipotle restaurants
ADDRESS 80 MCELROY ST.
STILLWATER OK 74075
STILLWATER OK 74075








FUNCTIONAL LAYOUT
COMFORTABLE SEATING FOR VARIOUS GROUP SIZES
AMBIANCE AND ATMOSPHERE
Thank You! w w w . l i n k e d i n . c o m / i n / e m m a s w e a t t


