PARQUE ACUATICO

Page 1

ANTEPROYECTO ARQUITECTONICO PARQUE ACUATICO

U N I V E R S I D A D NACIONAL PEDRO RUIZ GALLO E S C U E L A PROFESIONAL DE ARQUITECTURA
U N I V E R S I D A D NACIONAL PEDRO RUIZ GALLO E S C U E L A PROFESIONAL DE ARQUITECTURA
ALUMNO: CASAS NECIOSUP EMERSON
DISEÑO ARQUITECTÓNICO VIII ANTEPROYECTO
CÁTEDRA ARQ. CARLOS GERMÁN PAREDES ARQ. TADEO WILFREDO MARCIAL
ÍNDICE
1. ANALISIS TIPOLOGICO 2. DELIMITACIÓN 3. DIAGNOSTICO 5. PROCESO DE DISEÑO
ESTRATEGIAS 6. PLANOS DE ANTEPROYECTO 7. DESPIECE ISOMETRICO 8. MASTER PLAN 05 4. PROGRAMA ARQUITECTONICO 1. NOMBRE
-
ALUMNO: CASAS NECIOSUP EMERSON DISEÑO ARQUITECTÓNICO VIII DIAGNOSTICO URBANO CÁTEDRA ARQ. CARLOS PAREDES ARQ. TADEO WILFREDO

PARQUE ACUATICO

Aqualand Park

La búsqueda de una regeneración e integración del área de estudio para la sostenibilidad urbana en La Victoria - Chiclayo se llega a términos como sostenibilidad, centro y la misma metrópoli Chiclayo

07
ANALISIS TIPOLOGICO

PARQUES ACUÁTICOS

son centros de recreación masiva, construidos y equipados con atracciones y juegos básicamente con agua. Son en esencia centros para disfrutar con seguridad durante horas en compañía de amigos y familiares.

¿QUE OFRECE UN PARQUE ACUATICO?

• Estacionamiento.

• Regaderas.

• Restaurante

• Snack bar

• Centro de información

• Lockers

• Llantas flotantes

• Baños, regaderas y vestidores.

09

PERÚ DELIMITACIÓN

Ubicado al Noreste del Perú, en el departamento de Lambayeque distrito de Chiclayo

LAMBAYEQUE
10
N
AV. UNION AV. CHINCHAYSUYO AV.
11 DELIMITACION NIVEL MICRO
: AV. CHINCHAYSUYO
: CA. ANTENOR ORREGO
: CA. LUIS ALBERTO SANCHEZ
: LUIS HEYSEN
NIVEL MACRO
: AV. CHINCHAYSUYO
: AV. LA UNION
: AV. COLECTORA
: PROLON. LOS INCAS
AQUALAND PARK
PROL. LOS INCAS
COLECTORA
N
S
E
O
DELIMITACION
N
S
E
O

• Ubicación destacada como nodo central Chiclayo – La Victoria

• Presenta buen acceso vial de doble vía

• Posee fuertes equipamientos comerciales y educativos

• Nueva centralidad urbana

• Se proyecta su uso como comercial y recreacional. Parque Acuático.

• Se presenta como un equipamiento innovador con gran impacto tanto como comercial y cultural.

DIAGNOSTICO

SINTESIS

F FORTALEZA O
OPORTUNIDAD

AAMENAZA

• Vías sin asfaltado en la Av. Colecto

• Carencia de equipamiento recreativo y áreas verdes

• Falta de seguridad debido a la mala iluminación y señalización en el sector Este de el área de estudio

• Contaminación del aire y auditiva.

• Aumento de la Delincuencia e inseguridad vial.

DEBILIDAD
D
13

PROGRAMA ARQUITECTONICO

PROGRAMA ARQUITECTONICO- PARQUE ACUÀTICO

ZONAS AMBIENTE

CONTROL Y BOLETERIA

CAPACIDAD

CAP. TOTAL AREA UNITARIA PRIVADO PUBLICO

1 0 1 8

RECEPCION + SALA DE ESPERA 0 3 3 30 ADMINISTRACION 1 0 1 10

ZONA ADMINISTRATIVA

OFICINA DE PUBLICIDAD 1 0 3 10

OFICINA DE MARKETING 1 0 3 10 CONTABILIDAD 1 0 3 10

OFICINA DE GERENCIA 1 0 3 10

SALA DE REUNIONES

1 0 8 10

SS.HH DAMAS Y VARONES 2 2 4 102

NIÑOS GENERAL 1400 ADULTOS GENERAL 800

SS.HH PUBLICOS VARONES Y MUJERES GENERAL 18

ZONA ACUATICA

AREA DE NIÑOS DE 0-6 AÑOS GENERAL

AREA DE NIÑOS DE 7 A 12 AÑOS GENERAL 180 VESTIDORES GENERAL 60 2458

ZONA RECREATIVA

LOSAS DEPORTIVAS GENERAL MIRADORES GENERAL JUEDOS INFANTILES GENERAL 0

ZONA EXPLANADA

ZONA GASTRONOMICA

ESCENARIO GENERAL PATIO DE COMIDAS GENERAL STANDS GENERAL SERVICIOS HIGIENICOS GENERAL 18 18

ZONA PARA CAMPING CON PARRILLA GENERAL 160

ZONA DE PICNIC GENERAL 160 ALMACEN DE PRODUCTOS GENERAL 9 329

BOLETERIA GENERAL RECEPCION + SALA DE ESPERA GENERAL 30

AREA DE INTERACCION GENERAL 200

AREA DE EXPOSICION GENERAL 200 AREA DE VIDEOS GENERAL 110 CAFETERIA GENERAL 200

ESTANQUE GENERAL 215 BODEGA GENERAL 30 ALMACEN GENERAL 30

CUARTO DE LIMPIEZA 1 1 30

CUARTO BOMBAS DE MAQUINAS GENERAL 80

SS.HH GENERAL 36 1161

ACCESO PEATONAL

GENERAL 2 ACCESO VEHICULAR GENERAL 6

ZONA COMPLEMENTARIA

CUARTO DE VIGILANCIA GENERAL 12 ALMACEN GENERAL GENERAL 40 ESTACIONAMIENTO GENERAL 15

SS.HH DAMAS Y VARONES GENERAL 18 CABINAS DE TELEFONO GENERAL 6 99

TOTAL = 4167

15
ZONA ACUARIO

PROCESO DE DISEÑO ESTRATEGIAS

INTEGRACION

PRIORIDAD AL PEATON

Generar espacios receptivos tanto dentro como fuera del proyecto para integrar la persona ya sea en plazas o espacios en común.

Incluir ciclovías y circulaciones peatonales en la avenida principal como Av. La Pradera dando continuidad fluida al peatón para llegar al proyecto.

AREAS VERDES

Crear espacios con gran área verde ya que generan una sensación de bienestar, además que reducen la contaminación sonora y regulan el clima y generan espacios recreativos con sombra.

LLENOS Y VACIOS

Generar espacios vacíos para mantener visuales fluidas y sean atractivo del proyecto

Plazas receptivas exteriores

Plazas interiores

20

ESPACIOS ECOAMIGABLES

Fomentando el uso de espacios públicos todo el año, reduciendo el impacto del clima extremo, aumentando la cantidad y calidad de las áreas verdes volviendo los espacios públicos en espacios sostenibles.

ESPACIOS INNOVADORES.

Mejorando las infraestructuras tecnológicas, desarrollando la esfera digital aplicada al espacio púbico, fomentando la creación de espacios para el encuentro de cultura, innovación y conocimiento.

ESPACIOS DE EXPOSICION.

Impulsar las manifestaciones artísticas, culturales y sociales en espacios públicos y cerrados

CENTRO HABITADO.

Desarrollar una zona de uso residencial de tipo multifamiliar que promueva y mantenga la actividad humana en la zona.

19

ZONA ADMINISTRATIVA:

Ubicada cerca al ingreso el cual contara con la boletería y espacios para dar información al publico

ZONA ACUARIO:

Emplazado cerca a el ingreso como un espacio atractivo del parque acuático.

ZONA GATRONOMICA:

Esta zona esta ubicada en el centro para poder lograr abastecer a todo el parque acuático incluso con stands en los lugares con mas publico

01
02
03

ZONA EXPLANADA

Esta zona esta emplazada en el centro cerca a la zona recreativa gastronómica y acuática.

ZONA DE SERVICIOS:

Esta zona esta ubicada estratégicamente para abastecer con los servicios de limpieza a los diferentes espacios como la zona gastronómica

04
PROCESO
05
PROYECTUAL

INGRESO

VOLUMEN

POSICIONAMIENTO

El ingreso principal se considera en la Av Chinchaysuyo ya que tiene la mejor vista del terreno cuenta con vías a doble sentido y el flujo peatonal es mayor debido a los equipamientos existentes.

El volumen crea un área exterior integral ya que se genera una plaza que sirve como espacio publico y un amplio espacio interior de área verde que va servir para conectar las diferentes zonas del proyecto.

El proyecto esta posicionado estratégicamente para captar la luz solar indirectamente a cada zona ya sean espacios abiertos o cerrados y que la experiencia sea la mejor en el Parque Acuático.

ZONIFICACION

21
ZONIFICACION AREAS ADMINISTRATIVA ZONA DE SERVICIOS ZONA ACUARIO ZONA RECREATIVA ZONA ACUATICA ZONA EXPLANADA ZONA GASTRONOMICA ESPACIO PUBLICO EXTERIOR
PLANO DE ZONIFICACION

LEYENDA:

ZONA DE ACUARIO

ZONA GASTRONOMICA

ZONA ADMINISTRATIVA

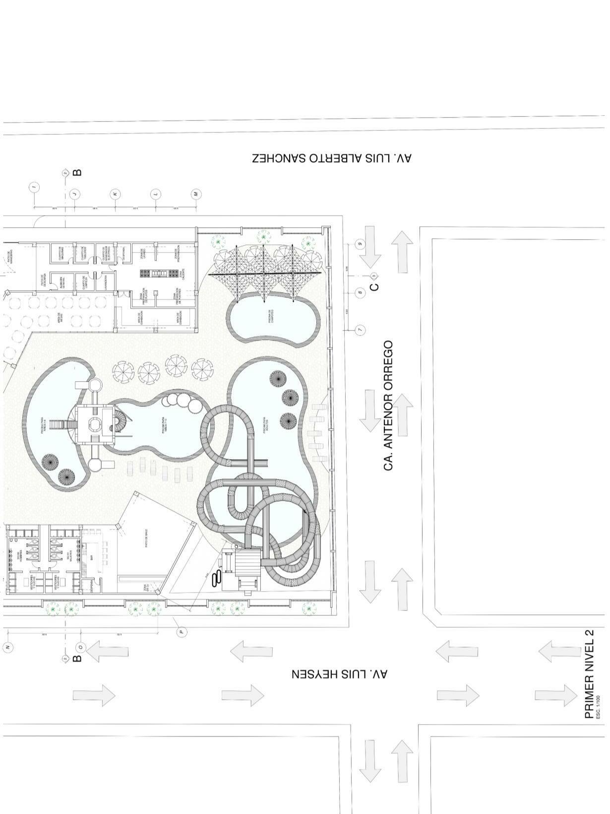
ZONIFICACION PRIMER NIVEL

ZONA ACUATICA

ZONA SERVICIOS

ZONA RECREATIVA EXPLANADA

22

LEYENDA:

ZONA DE ACUARIO

ZONA GASTRONOMICA

ZONA ADMINISTRATIVA

ZONIFICACION PRIMER NIVEL

ZONA ACUATICA

ZONA SERVICIOS

ZONA RECREATIVA EXPLANADA

22
PLANOS DE ANTEPROYECTO
25 PRIMER
NIVEL
26
27
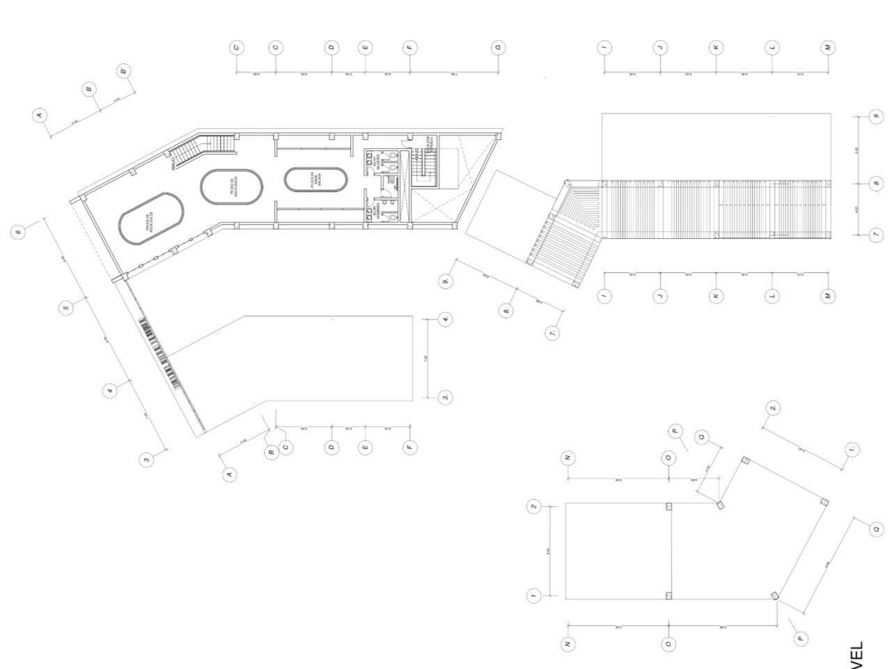
SEGUNDO NIVEL
28
TECHO
PLANTA
PLANO ESTRUCTURAL

PRIMER NIVEL

ISOMETRICO SEGUNDO NIVEL

34
ELEVACIONES

ELEVACION NORTE ELEVACION OESTE

ELEVACION ESTE

30
CORTES

CORTE A – A

CORTE B - B

CORTE C - C

32
PLANO DE SEGURIDAD Y AFORO
34
RENDER
VISTA GENERAL

INGRESO PRINCPAL

El ingreso principal se genera en la avenida principal, Av CHICHAYSUYO Ya que concentra el mayor flujo tanto peatonal como vehicular

43

VISTA DE ZONA RECREATIVA

Esta zona esta totalmente equipada tanto con juegos acuáticos y juegos recreativos al aire libre

44

VISTA DESDE EL PATIO DE COMIDAS

La zona de comidas cuenta con vistas hacia todos los atractivos del parque acuático ya sea piscinas como zonas recreativas

45

VISTA DESDE LA PISCINA DE ADULTOS

46
U N I V E R S I D A D NACIONAL PEDRO RUIZ GALLO E S C U E L A PROFESIONAL DE ARQUITECTURA

Turn static files into dynamic content formats.

Create a flipbook
Issuu converts static files into: digital portfolios, online yearbooks, online catalogs, digital photo albums and more. Sign up and create your flipbook.