ISLANDS END

SITE LOCATION



MERCH HEIRARCHY
1. BALLS HATS GLOVES
2. SHIRTS
3. BAGS
4. EQUIPMENT
NEEDS:
SIGNAGE AND DIRECTION MAP OF PROPERTY
EXTERIOR COLOR DOORS AND WINDOWS
INTERIOR:
FLOORING PAINT
LIGHTING
MAXIMIZE STORAGE
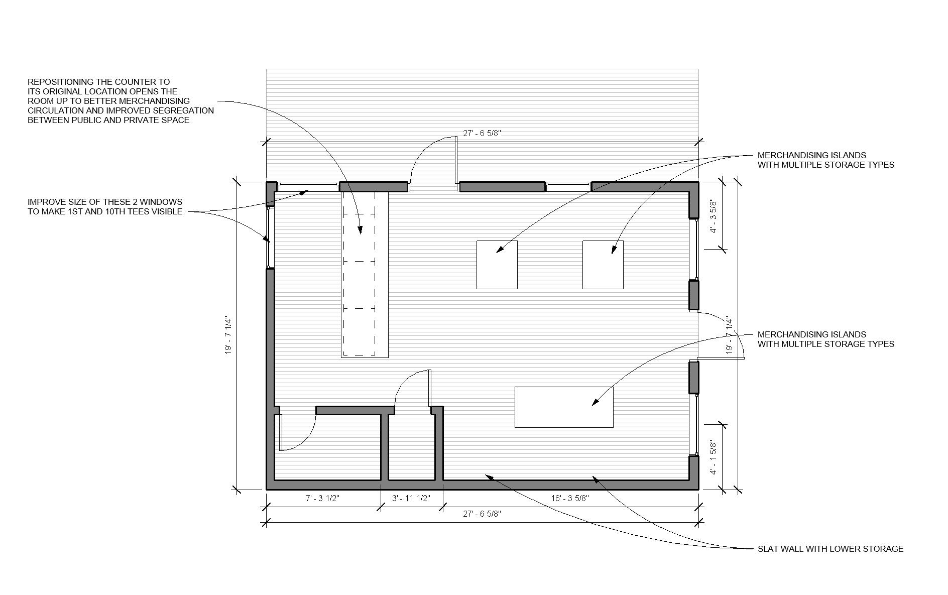
RETHINK COUNTER LOCATION
NEW BASEBOARD COVERS
CEILING DETAIL
WIRING IMPROVEMENT
AIR VENTS TO FRAMELESS
PROSHOP NEEDS IDENTITY







NOTES:
*CHANGE DOORS TO FULL LENGTH GLASS THERMATRU STYLE DOOR
*REMOVE COUNTER AND CHANGE WINDOWS BEHIND EXISTING COUNTER
*RETHINK EXISTING COUNTER WINDOWS TO ADD MORE WALL SPACE FOR MERCHANDISE
*CHANGE WINDOWS ON WEST, SOUTH WEST CORNER OF PROSHOP, MAKING THEM LARGER
*REMOVE EXISTING LIGHTING AND CEILING FANS
*COUNTRY CLUB STYLE CARPETING WITH BORDER IN WOOD-LOOK CERAMIC TILE, AND INFRONT OF ENTRYWAYS

NOTES:
*RECREATE INTERIOR SPACE BY INCREASING WINDOW SIZE BEHIND NEW COUNTER FOR BETTER VIEWS OF 1ST AND 10TH TEE
*IMPROVE MERCHANDISING OPPORTUNITIES WITH COMBINATIONS OF CUBBY, HANGING, AND FOLDED STORAGE
*BUILD A SIMPLE, CUSTOM COUNTER THAT HAS UPPER STORAGE FOR BALLS AND GLOVES. AND POSSIBLY A SMALL GLASS COMPARTMENT FOR RANGE FINDERS ETC.
*BLACK TRACK LIGHTING AND MAXXIMA RECESSED CANS
*CEILING DETAIL, WRAPPED IN WOOD? SIMPLE PINE SHIPLAP
*UTILITARIAN IN ITS ARRAGEMENT, FUNCTIONAL IN ITS USE. A PROSHOP THAT IS TONALLY MORE APPEALING TO BOTH SHOP AND WORK IN. AN INTERIOR SPACE THAT RAISES THE VIBRATION OF THE CLUB AS A WHOLE.














