The Islamic Cultural Center _ San Francisco, California

Page 1

The Islamic Cultural Center

San Francisco, California

Eman Nasrallah

1
3
Interior Designer

Contents

7 Introduction

51 User’s Profile

The Owner & Users

9 Case Studies

Park 51 Islamic Community Center

New Contemporary Jewish Museum

Alhambra Palace

Hagia Sophia Mosque

Sheikh Zayed Grand Mosque

The Architect Carlo Scarpa

23 Muslims in Profile

Muslims Throughout The World San Francisco & The Bay Area Muslims Study

57 Concept

Key Characteristics Of The Islamic Art

The Panic Of The Void

29

39

63 Development Floor Plan Parti Section Basment Level One Level Two

Level Three

75 Design

The Museum Lobby

The Museum, Basment Level

The Museum, Level One

The Arabic Cafe

The Mossque’s Lobby

The Mosqe

99 The Designer

Autobiography

Professional Goals Resume

107 Bibliography

San Francisco San Francisco, The City The Culture Of The City
Why This Is The Best Site For The Project? Transportation
Alcazar Theatre Building Analysis Existing Building Conditions Second Story Conditions Site Plan
5

Introduction

For the thesis project, the designer has chosen Al Cazar Theatre building in San Francisco and plans to convert it into an Islamic Cultural Center. It is currently a theatre, but the exterior façade is very Islamic in its architectural design and lends itself well to such a type of program. The building will serve as an educational complex that is multifunctional for people with an interest in learning about Islam. It will be a place where Muslim and non-Muslim people with different religion backgrounds can come and learn about the beauty and culture of Islam. The Islamic Cultural Center will help Muslims, who live in San Francisco and the Bay Area, create a sense of community and help them foster their Islamic identity. It will also help the new generation of Muslims increase their Islamic culture knowledge. The center will promote interfaith dialogue, and will be a place where discussions between people of different religions can take place. The five focus areas that was designed are a museum, a gift shop, an auditorium, library, classrooms, and a mosque.

“He was the only man in history who was supremely successful on both the religious and secular levels. Of humble origins, he founded and promulgated one of the world’s great religions and became an immensely effective political leader. Today, thirteen centuries after his death, his influence is still powerful and pervasive”. These words can be found on the first pages of a book, The 100: A Ranking of the Most Influential Persons in History, by Michael H. Hart. Hart was explaining in a few words the reason behind his choice of Prophet Muhammad to lead the list of the world’s most influential persons. This may surprise some and may be questioned by others, but as a Muslim woman it was touching to read this beautiful recognition in a book written by a non-Muslim author.

The civilization left by the ancient Muslims that stretched from Spain to China from the 7th century to the 12th century was a great one. During this golden age of discovery many inventions of that time have had a great influence on our modern world today.

Scientists and scholars in various fields contributed many of the

most important scientific discoveries of the time. Discoveries based on ancient knowledge have a connection with our modern world more than anyone can imagine. To list a few examples, the ideas of Ibn al-Haytham, the great scientist, led to the discovery of the camera by explaining how our eyes work. Abu al-Qasim al-Zahrawi, the father of surgery, invented many of the surgical tools still in use today in modern hospitals. Mariam Alasitrlabiah, one of the brilliant women of the time, invented the sophisticated Astrolabe to perform calculations and keep time and today’s satellite navigation is based on her device. These inventions are just a fraction of the ones discovered during the golden age of Muslim civilization. Thousands of other inventions across all disciplines spread to Europe in the Middle Ages and many of them are directly connected to our modern world.

Unfortunately, many non-Muslim people are not knowledge about the beautiful Islamic culture and civilization. Furthermore, because of the tragic events that have recently occurred in U.S. and abroad, some Americans and people across the world have become afraid of Muslims and Islam as a religion. People have began to think that the bad act of a few people represents all Muslims and that these terrible acts are a result of their beliefs and that is simply not true. It is a difficult topic to discuss, but a serious problem that should not be ignored. It is difficult to know that someone dislikes you or has a bad impression of you without knowing you just because you are Muslim. The problems lies in the misunderstanding because many non-Muslim people do not know that much about Islam, and the little information they do have, they receive from the media, which is often distorted and false. The perfect solution to help to solve this problem is to spread correct knowledge about Islam culture and the Prophet Muhammad by educating people to change their misperceptions. The goal of my Islamic Cultural Center is to do this by providing a beautiful and serene space of Islamic education, knowledge, discussion, spirituality, and connection, which is currently absent in San Francisco.

7

Case Studies

9

Park 51 Islamic Community Center

Park 51 (originally named Cordoba House) is a planned 13-story Islamic community center in Lower Manhattan. The majority of the center will be open to the general public, and its supporters have said the center will promote interfaith dialogue. Plans for the center include a Muslim prayer space which, due to its location two blocks from the World Trade Center site, has been surrounded by controversy.

It would replace an existing 1850s building of Italianate style of architecture that was being used as a Burlington Coat Factory before it was damaged in the September 11 attacks. The proposed multi-faith aspects of the design include a 500-seat auditorium, theater, a performing arts center, a fitness center, a swimming pool, a basketball court, a childcare area, a bookstore, a culinary school, an art studio, a food court, and a memorial to the victims of the September 11 attacks. The prayer space for the Muslim community will accommodate 1,000–2,000 people. The concept behind the project is upholding values of freedom and tolerance.

In late September 2011, the project developer opened a 4,000-square-foot Islamic center in the renovated space at the Park 51 location. He hopes to build the larger planned project within the next several years.

The New York Civil Liberties Union and the American Civil Liberties Union today praised the New York City Landmarks Preservation Commission for standing up for religious freedom and tolerance by approving the proposal to build a 13-story Islamic cultural center near the World Trade Center site in New York City. The following statement was released by the NYCLU and the ACLU

Program on Freedom of Religion and Belief:

“The free exercise of religion is one of America’s most fundamental freedoms. For hundreds of years, our pluralism and tolerance have sustained and strengthened our nation. On 9/11, religious extremists opposed to that very pluralism killed 3,000 Americans. Those fanatics would want nothing more than for our nation to turn its back on the very ideals that make this country so great.”

“For those who have thought to ban the construction of the cultural center, we must remember that our precious ideals extend to all Americans, regardless of creed or color. We see the center as a monument to pluralism, symbolic of America’s commitment to religious freedom.”

The special features of Park 51 Islamic Community Center

The project site near the World Trade Center in New York City, and the massive space of the building. The concept behind the project which is upholding values of freedom and tolerance.The exterior and interior design of the project that is inspired by Islamic art. Also, using Islamic art as inspiration and applying it to the project in a very modern way. The programs that they offer can be used by everyone not just Muslims. The center promotes interfaith dialogue which is one of the positive activities offered. Furthermore, I understand the benefits from the programs that are offered, the overall concept, and feel that it is a good example for me to show how much the exterior of the building is important to attract the audience.

11

New Contemporary Jewish Museum

Since its founding in 1984, the Contemporary Jewish Museum has engaged audiences of all ages and backgrounds through dynamic exhibitions and programs that explore contemporary perspectives on Jewish culture, history, art, and ideas. Since its opening, the Museum has distinguished itself as a welcoming place where visitors can connect with one another through dialogue and shared experiences with the arts. Furthermore, the museum presents an array of continuously changing exhibitions which use music, art, dance and other mediums to express the Jewish identity.

The Exteriors and Interiors

The modern structure designed by architect Daniel Libeskind encapsulates a tribute to the survival of Jewish people from biblical to modern times, not by cataloguing the many attempts to wipe them out, but by celebrating the culture’s vibrancy and life.

The building itself, says as much, with a shape that resembles the Hebrew word l’chaim, to life. , and an adjacent structure representing the letter yud, consists of a glimmering 65-foot-high blue steel box, balancing on one corner.

The unusual coupling of cladding materials—consisting of red brick

and steel—are emblematic of the museum‘s mission: using contemporary art and programs to explore the Jewish experience.

The shape of the 5,500-square-foot steel-clad addition, was inspired by the Hebrew letters chet and yud, which together form the word chai , which means ―alive― or ―living.― The elongated ―chet― portion makes up the exhibition space and activity rooms, while the―yud― portion—shaped like a titled cube—contains a gift shop and special events gallery.

On a wall inside the lobby, a permanent lighting installation forms the four letters of the Hebrew word pardes. This word is in reference to the four approaches to interpreting the Holy Scripture.

Special Features of the New Contemporary Jewish Museum

The design is homage to the past and to the survival of the Jewish tradition, and the unique exterior of the building.Using Hebrew letters that means alive or living in the design. Using skylight in the music room by making small windows. The lines in the ceiling of an auditorium are apparently based on paths to the Holy Land on a 15th-century map. It utilizes the benefit of the zoning of the space, and provides the history in a very modern way.

13

Alhambra Palace

It is located in Granada, Andalusia, Spain, it is built in the 9th century. From 19th-century Romantic interpretations until the present day, many buildings and portions of buildings worldwide have been inspired by the Alhambra. This beautiful historic building has also inspired many novels and musical pieces. It was completed towards the end of Muslim rule of Spain (1333–1353). The Alhambra is a reflection of the culture of the last centuries of the Moorish rule of Al Andalusia. It is a place where artists and intellectuals took refuge as the Reconquista by Spanish Christians won victories over Al Andalusia.

Why it is called Alhambra

The literal translation of Alhambra, “the red (female),” reflects the color of the red clay of the surroundings of which the fort is made. The buildings of the Alhambra were originally whitewashed; however, the buildings seen today are more reddish in hue. Another possible origin

of the name is the tribal designation of the Nasrid Dynasty, known as the Banu al-Ahmar Arabic.

Art and architectural details

Alhambra palace is designed to reflect the very beauty of Paradise itself. It is made up of gardens, fountains, streams, a palace, and a mosque, all within an imposing fortress wall that is flanked by thirteen massive towers.

Special Features of the Alhambra Palace

The building is a testament to the great civilization that was for Muslims in the past and the history of the palace.The concept behind the design of this palace is reflected in the very beauty of Paradise itself. The design comes from Islamic art calligraphy and trappings. It also maintains the core of Muslims beliefs, values, and principals. I used the benefit from the concept and told the explanations behind it.

15

Hagia Sophia Mosque

it started as a church, then later on became a mosque, after that it become a museum. Today it becomes a mosque again in Istanbul, Turkey. From the date of its construction in (537 until 1453), it served as an Eastern Orthodox cathedral, the building was a mosque from (1453 until 1931). It was then secularized and opened as a museum in 1935. now after seventy nine years of being a museum, Hagia Sophia become a mosque again.

Hagia Sophia is a great architectural beauty and an important monument for both the Byzantine and Ottoman Empires. Once a church, later a mosque, after that it became a museum at the Turkish Republic, and now it became a mosque again.

Hagia Sophia has always been precious for its time. The mystical city of Istanbul have hosted many civilizations for centuries, of which Byzantium and Ottoman Empires were both the most famous ones. The city today carries the characteristics of these two different cultures and surely Hagia Sophia is a perfect synthesis where one can observe both Ottoman and Byzantium effects under one great dome.

The visitor will notice upon entering the museum the cooler place with no humidity and will instantly feel awe of the sanctity of this place. One can find different races from all around the world come to view the Hagia Sophia with their cohesive religions. one of the first monument to go see once you visit Istanbul is the Sophia Mosque. It is worthy of intense contemplation and observation, as Hagia Sophia means “Holy Wisdom.”

The dome of the Hagia Sophia has spurred particular interest for many art historians, architects and engineers because of the innovative way the original architects envisioned it. The cupola is carried on four

spherical triangular pendentives, an element which was first fully realized in this building. These pendentives implement the transition from the circular base of the dome to the rectangular base below. Changes occurred on the inside as well. Piltz writes that “after the Ottoman conquest, the mosaics were hidden under yellow paint with the exception of the Theotokos [Virgin Mary with child] in the apse.” In addition: “Monograms of the four caliphs were put on the pillars flanking the apse and the entrance of the nave.”

Special Features of the Hagia Sophia

The mix between two big sky religious designs (Islam & Christianity), so you can look at the Islamic art trappings from Ottoman Empires, arches, and the beauty domes from the Byzantine architecture. This museum is located in a multicultural city.

I used the Hagia Sophia as one of my case studies to see how much the cultural venues like this attract people in multicultural and tourist cities. moreover, I used it as example because the museum combines two very different styles of thinking and I believe this is one of the reasons behind its success and ultimate fame as a museum. It has assisted me in finding good ideas in regards to my own Islamic culture center.

17

Sheikh Zayed Grand Mosque

It is located in Abu Dhabi, the capital city of the United Arab Emirates, and is considered to be the key for worship in the country. Sheikh Zayed Grand Mosque was initiated by the late President of the United Arab Emirates (UAE), Sheikh Zayed bin Sultan Al Nahyan, who wanted to establish a structure which unites the cultural diversity of the Islamic world and the historical and modern values of architecture and art. His final resting place is located on the grounds beside the same mosque. It is the largest mosque in the United Arab Emirates and the eighth largest mosque in the world. The mosque site is equivalent to approximately the size of five football fields.

Sheikh Zayed Grand Mosque Center is a place of worship and Friday gathering, and is also a center of learning and discovery through its educational activities and visitor programs.The library, located in the north/east minaret, serves the community with classic books and publications addressing a range of Islamic subjects that include: science, civilization, calligraphy, the arts, coins, as well as some rare publications. dating back more than 200 years. In reflection of the diversity of the Islamic world and the United Arab Emirates, the collection comprises material in a broad range of languages including Arabic, English, French, Italian, Spanish, German, and Korean.

The design of the Sheikh Zayed Mosque has been inspired by both Mughal and Moorish mosque architecture, particularly the Badshahi Mosque in Lahore, Pakistan and the Hassan II Mosque in Casablanca, Morocco being direct influences. The dome layout and floor plan of the mosque was inspired by the Badshahi Mosque and the architecture was inspired by both Mughal and Moorish design. Its archways are quintessentially Moorish and its minarets classically Arab. The design of the mosque can be best described as a fusion of Arab, Mughal and Moorish architecture.It is considered to be the largest example of marble mosaic in the world.

The Sheikh Zayed Grand Mosque has many special and unique elements, The carpet in the main prayer hall is considered to be the world’s largest carpet made and designed by Iran’s Carpet Company. Also, it has seven imported chandeliers from Germany that incorporate millions of Swarovski crystals. The largest chandelier is the second largest known chandelier inside a mosque and the third largest in the world. The pools along the arcades reflect the mosque’s spectacular columns, which becomes even more glorious at night. The unique lighting system was designed by lighting architects Jonathon Speirs and Major to reflect the phases of the moon. Beautiful bluish gray clouds are projected in lights onto the external walls and get brighter and darker according to the phase of the moon. The 96 columns in the main prayer hall are clad with marble and inlaid with mother of pearl, one of the few places where you will see this craftsmanship. Moreover, the 99 names (qualities or attributes) of God (Allah) are featured on the Qibla wall in traditional Kufic calligraphy, designed by the prominent UAE calligrapher , Mohammed Mandi Al Tamimi. The Qibla wall also features subtle fiber-optic lighting, which is integrated as part of the

organic design. integrated as part of the organic design. In total, three calligraphy styles consisting of Naskhi, Thuluth, and Kufic are used throughout the mosque. The Sheikh Zayed Mosque is among the top 25 tourist attractions worldwide.

Special Features of the Sheikh Zayed Grand Mosque

The mosque has been inspired by both Mughal and Moorish mosque architecture, to they try to combine two Islamic styles in Architecture. Both of them are Islamic art, but they have a different style in architecture and they incorporate different elements of design and architecture. People from all around the world want to visit this place not only because it is a mosque, but due to the fabulous design and architecture that can be found there. What I found is sometimes the strong architecture and the design attract the visitors more to the program. I used the Sheikh Zayed Grand Mosque as one of my cases studies to help me with the design of my center. The idea of combining two different styles in design and architecture is very attractive to me and I want to apply this concept in my center.

19

The Architect Carlo Scarpa

At the time of his death in 1978 at the age of 72, Carlo Scarpa was at the height of his fame and influence. His buildings and projects were being studied by architects and students throughout the world, and his decorative style had became a model for architects wishing to revive craft and luscious materials in the contemporary manner. Yet, Carlo Scarpa remains an enigmatic character in the history of modern architecture and design. His work does not submit easily to explanation and analysis, despite attempts by numerous architects and historians, nor is it thought to be very photogenic.

Carlo Scarpa was born in Venice on June 2, 1906. He attended the Royal Academy of Fine Arts. After receiving his diploma in 1926, Scarpa began teaching architectural drawing at the Academy. Carlo Scarpa said in 1972 that he would “rather design museums than skyscrapers,” making him ahead of his time with the ability to anticipate the situation of today. This is also smart due to the fact that galleries have become absolutely prime prestige projects and the design of a museum can sometimes attract more attention than its contents. In other respects, Scarpa was a throwback to an earlier age. This ingenious, quizzical, quixotic figure’s broad knowledge of literature, especially poetry; refined his appreciation of art works of every kind. It also led to his employment of the patterns of the constellations of the stars in his architecture as well as the use of combining numbers and other arcane symbols. This old-fashioned method of working, and robust use of everyday language, set him apart as a kind of rough-edged Renaissance man marooned in the 20th century. This made it very clear that he was never going to fit comfortably into the architectural establishment of his day.

That Scarpa spent so much of his career in the world of museums and exhibitions, for which he did some 60 designs between the end of World War II and 1978, partly because it suited his inclinations and temperament. But it also stemmed from a necessity, given that his style was very unique, his institutional and political contacts limited, and most of his larger-scale commissions came to him only later in life. The surroundings of his upbringing deeply immersed him in the art and architecture of Venice and the Veneto, one of his earliest memories being playing amid Palladian columns in Vicenza, where his family lived for several years when he was a child. This experience left a huge impact on him and created a lifelong love of antiques, art, and artifacts. As an architect he was not in any obvious sense a traditionalist, though upon closer examination of his work, it has been revealed that he did draw on the past in a variety of subtle ways. He admired Frank Lloyd Wright and even Le Corbusier, and had a particular attraction for Japanese art, but the solution to each commission he undertook was always, in the end, very much his own. It was his practice to produce a multitude of alternatives before finally choosing one of them, and he left behind tens of thousands of drawings that were rendered from his own hand. Budgets for public galleries and special shows in Scarpa’s time were a fraction of what they can be now. A telling pair of timely shows devoted to him — “Carlo Scarpa: Exhibitions and Museums: 1944-1976,” at the Museo del Castelvecchio in Verona, and “Houses and Landscapes: 1972-1978,” at Palazzo Barbaran da Porto in Vicenza (both until Dec. 10) — confirm that Scarpa was able to achieve remarkable results with very limited resources. It also tells us that he still has a great deal of education to offer to contemporary designers.

The Castelvecchio museum was Scarpa’s masterpiece of remolding, carried out in phases between the late 1950s and 1974. Although originally dating from the 14th century, the castle had been repeatedly altered and badly damaged over the centuries, fortunately in this case, since it gave Scarpa a much freer hand than he would otherwise been able to use. The challenge was not only to consolidate and restore a crumbling edifice, but to find new means of presenting the city’s considerable collection of medieval, Renaissance, and later contemporary art.

Scarpa’s scheme was daring in its opening up of additional sources of light and arresting new vistas from room to room, as well as creating more intimate spaces to show small scale exhibits. Equally striking was the compendium of devices Scarpa used to display different pieces of art — from plinths and armatures, to easels and rods extending from floor to ceiling — these were specifically designed for the purpose of bringing out each piece special qualities. It is said that the overall result is a tour de force of design which is a pleasure in itself, and yet does not come between object and spectator.

Among a score of projects illustrated in the special show at the Castelvecchio, which include a number of Scarpa’s designs for major exhibitions, is an extraordinary gem. This is his entirely recreated wing for the old museum of Antonio Canova’s original models and casts at the artist’s birthplace in the Veneto, Possagno. Here, like Borromini, Scarpa proved himself a genius at staging unexpected drama in a constrained space. His creation of box-like lantern windows and other apertures to cast broad, shifting shafts of natural light on his meticulously planned choreography of the sculptures within are a true testament to his architectural genius.

The architect’s combination of restraint and theatricality, of austerity illuminated by flashes of color contrast and artfully positioned ornament, is further unfolded at the Vicenza show, of the private houses, public buildings, piazzas and commemorative monuments he was commissioned to build during the last decade of his life. Several of these unfortunately did not come to fruition for various reasons, and others he did not live long enough to execute. Scarpa died in an unfortunate accident while visiting Japan in 1978. A true talent had perished, but his visionary spirit still lives on today.

21

Muslims in Profile

23

Muslims Throughout the World

Muslims will be more than one-quarter of the Earth’s population by 2030, according to a study released today. Worldwide, Muslims will climb from 23.4% to 26.4% of the population, going from 1.6 billion people in 2010 to 2.2 billion in 2030, concentrated in Muslim-majority countries. In several Northern and Eastern European nations, the percentage of Muslims will near or pass 10%, raising their political and cultural clout, particularly in urban areas. Those are among key findings in the Future of the Global Muslim Population, the first comprehensive examination of Muslims, whose numbers have been growing at a faster rate than all other groups combined. Also, The number of U.S. Muslims will more than double, so you are as likely to know a Muslim here in 20 years as you are to know someone Jewish or Episcopalian today.

Islam in the United States The history of the Islam in USA

From the 1880s to 1914, several thousand Muslims immigrated to the United States from the Ottoman Empire, and from parts of South Asia. They did not form clear-cut settlements, and probably mostly assimilated into the wider society.

American Muslims come from many different backgrounds, and are one of the most racially diverse religious groups in the United States

according to a 2009 Gallup poll. Native-born American Muslims are mainly African Americans and these individuals make up about a quarter of the total Muslim population. The Muslim population of the U.S. increased dramatically in the 20th century; this was due to much of the growth driven by rising immigration, and a comparatively high birth rate.

Statistics on the Number of Muslims in USA

Finding a correct number surrounding this topic was very difficult for me. The statistics that I found are varied, and I couldn’t relay on one accurate figure. I have decided to write several statistics surrounding the number of Muslims in the United States to support my idea. What I found in my research is that in Arabic and Islamic websites the percentage of Muslims are higher than the other websites.

This is one of the studies reporting that the number of mosques rose by about 25 percent. The number escalated to more than 1,200 from 1994 to 2000. Based on reports of attendance at some mosques, some researchers estimated the number of American Muslims to be between 6 and 7 million. I found this number in many websites, but the big problem is that it is not well documented. It does not return to any scientific research or official institutions, although I have cited this statistic because it is stated on many websites.

25

San Francisco & the Bay Area Muslims Study

In May 2013 Farid Sensai, Director of Research and Assistant Professor at Santa Clara University, and Hatem Bazian, UC Berkeley professor and co-founder of Zaytuna College, published a paper entitled “Institute for Social Policy and Understanding One Nation Bay Area.” The San Francisco Bay Area (hereinafter “Bay Area” and “area” has one of the largest Muslim populations in the United States. Nearly 250,000 Muslims live in the six counties surrounding the city of San Francisco. It is home to a large number of immigrants who sought economic and educational opportunities, as well as refugees and their American-born children who fled strife, violence, and economic hardship. Many work in Silicon Valley, but survey results show the existence of clear regional socioeconomic disparities. This region is also attractive to immigrants because its atmosphere allows religious and cultural diversity to flourish. There is a significant number in the African American Muslim community with a growing number of converts. Over the past thirty years, the Bay Area and Muslim population has experienced significant growth brought on by the region’s economic transformation and the emergence of an information technology industry. This growth has resulted in the proliferation of mosques as well as community institutions.

Ethnic and Residential Demographics

Sensai and Bazian estimate the Bay Area Muslim population to be approximately 250,000. The community, therefore, constitutes 3.5 percent of the area’s total population and is one of the highest concentrations of Muslims in the country. The community is made up of a diverse mix of racial and ethnic groups

who maintain their own cultures: South Asians (30%), Arabs (23%), Afghans (17%), African Americans (9%), Asian/Pacific Islanders (7%), Whites (6%), and Iranians (2%).

The majority of Muslims live in the following counties Alameda (37%), Santa Clara (27%), and Contra Costa (12%). A much smaller percentage lives in San Mateo (6%), San Francisco (3%), and Marin counties (1%). The heart of San Francisco (the Tenderloin district) has a heavy concentration of Yemeni, Iraqi, Moroccan, Algerian, Indonesian, and Malaysian Muslims, most of whom are working class and small business owners. South Asian and Arab Muslims tend to cluster in the South Bay while Afghans are dominant in the East Bay. African American Muslims mostly reside in Oakland. Overall, the bulk of the community lives along the “880 and 101 corridor;” the primary throughways to Silicon Valley and the East Bay. As a result of this, I think it would be wise to make the Islamic culture center in the Tenderloin area of San Francisco, which is already a heavy Muslim neighborhood.

Religious Practice and Identity

The majority of participants state that religion is important in their daily lives. They pray five times a day, consider themselves religious, and identify as Sunni Muslim. More than half of the respondents identify as Muslims first (54%), have felt that the Muslim experience has affected their life greatly, and have a fair or great amount in common with other Muslims (84%). Most of the respondents (68%) reported attending a mosque at least once a week.

27
29
San Francisco

San Francisco, the City

San Francisco is a city with a density of about 17,179 people per . square mile. It is the densest big city with a population greater than 200,000 in California. It is the second most densely populated big city in the USA after New York City. San Francisco is one of the top tourist destinations in the world. It ranks 35th out of the 100 most visited cities worldwide, and is renowned for it is cool summers, fog, and steep rolling hills. It has an eclectic mix of architecture, and many historic landmarks including the Golden Gate Bridge, Fisherman’s Wharf, Union Square, and Chinatown. San Francisco was rated most walkable city by the website Walk score. In addition, tourism is the cities largest privatesector employer making it the backbone of San Francisco’s economy. It would be wonderful to complement the offerings of the city by having an Islamic culture center in a tourist city such as San Francisco. Personally, the best places to visit when I travel are the temples, churches, and houses of worship in general. I am always curious about how people think and believe in God. The similarity and difference between the varied religions is very intriguing to me. I know that there are a lot of tourists who would be interested in educating themselves about the Islamic culture and religion from the right resources rather than the media who fail to present an accurate portrayal most of the time.

Tourism in San Francisco

San Francisco hosted 16.5 million visitors in 2012 which included hotel guests, those staying with friends and relatives, those staying in accommodations outside the city but whose primary destination was San Francisco, and regional visitors driving in for the day. Visitor spending reached the highest ever in 2012, with more than $8.93 billion spent in local businesses (up 5.5% from 2011). This means during an average day in San Francisco, 131,128 visitors are spending $24.46 million. This massive injection of visitor dollars directly supports local hotels, restaurants, shops, attractions, and cultural institutions. It also indirectly bolsters practically every segment of the city’s economy and has a broad positive influence on government finances - some $562 million in tax and fee revenue flowed into the City and County of San Francisco in 2012, up 6.7% from the previous year.

The Importance of Tourism

According to Destination Analysts, Inc. San Francisco Resident Survey, the number of jobs supported by tourism rose 3.6% in 2012, totaling 74,000 jobs with an annual payroll of $2.18 billion (up 6.2% from 2011). In addition, 53% of residents believe tourism is San Francisco’s most important industry, and 98% believe tourism is very important or important to the vitality of San Francisco’s economy. 82% of residents disagree that “San Francisco has too many tourists” and 78% believe tourism makes San Francisco a better place to live.

31

The Culture Of The City

Museums

One of the biggest things that attract tourists to San Francisco is the museums. There are around thirty museums spread through out San Francisco, five of them being strictly about specific cultures, and none of them housing Islamic art. As a result of that, I decided to make an Islamic art museum in the first floor of the center. It will combine both ancient & contemporary Islamic art, and it will hold the first Islamic pieces in San Francisco. This museum will be the final gem to complete the collection of museums in this marvelous city.

San Francisco the multicultural metropolitan city

San Francisco is ideal for this kind of Center because it is a multicultural metropolitan city that is known for its integration of many different people and socio-cultural ideas. A strong presence of other major religions such as Christianity and Judaism already exists. This last piece of the pseudo-puzzle would complete a refined and balanced hybrid society. It would be exemplary for San Francisco to show the world how open minded they are in regard to a hot button topic and thus this Islamic Culture Center would win the hearts of Muslims globally.

Cultural Centers

There is over 23 culture centers in san francisco, all of the culture centers in San Francisco are considered to be nonprofit organizations with a main focus of preserving the identity of their community members, educating the local community about their culture, and remaining open and tolerant of all people. They offer language classes, and some of them even offer ESL classes. They seek to provide the community with a first-hand point of view by offering cultural events that include participation in areas such as art, music, and dance. Some of these centers also have special services for individuals such as senior citizens and young adults. The Jewish Community Center offers youth camping programs and the Russian center performs opera’s for anyone in the community who would like to attend. An extensive library, rich in historical books, can be found in the Irish, Russian, and Italian centers. There is also a beautiful art and educational museum that can be found in the Russian culture center. Lastly, both the Arab and Italian culture centers offer many various scholarships for their community members.

Mosques and Islamic Centers

Mosques usually are places for prayer and some of the mosques in San Francisco pray together five times a day, while some of them just have Friday prayer and Eid Al-Adha and Enid Al fater prayer. These are special prayers on the first day of Muslims holidays. Usually before Friday prayer, there is a short lecture for Muslim people who come to pray. Most of the Muslims go to the mosques at least once a week to attend Friday prayer. Some of the mosques in San Francisco and the Bay Area have small Quran class for kids and adults, Arabic classes, and Islam religion classes. Most are run by teachers, but there are also volunteers and non-specialists. Some of these mosques also have breakfast for fasting Muslims during Ramadan month.

Main religions statistic in San Francisco

It is for San Francisco only and does not include the Bay Area.

the Muslim Estimate is 7% of the population, which is 22,664. The Catholic Church is 56% of the major population, which is conceder 180,798. The Jewish 15%, which is 49,500. While the other grope combine 22%, which is 71,920.

Weather

March, April and May are some of the most inviting months to visit San Francisco. This time is usually cloudless and mild, and some of the warmest and driest days of the year occur in San Francisco’s spring months, making San Francisco’s springtime noticeably free from the spring rain that dampens other parts of the United States.

San Francisco summers have little commonality with summers elsewhere. Marked by white fog, sea spray, wind and Central Valley heat, San Francisco summers are characteristically overcast and cool, with the marine layer burning off by the afternoon. By late August, however, the fog thins and produces the iconic white finger of white pouring through the Golden Gate Bridge, rolling over Treasure Island and virtually seeping into the Bay Area and outlying areas, missing San Francisco altogether.

Fall in San Francisco is truly the best time of year for weather. Days are warm and nights are mild. Rainfall is rare, the fog has cleared and the long warming process has reached a zenith. This makes September, October and early November the three best months to visit San Francisco.

In February, 1887, four unexpected inches of snow fell on downtown San Francisco. An exception that occurred once in 1976 and hasn’t since. Snow in San Francisco is very rare, even in San Francisco’s coldest months of the year which are December and January. Rain, on the other hand, is usually a mainstay during these months and can produce anything from light showers to torrential downpours. On the whole, San Francisco winters are mild compared to the rest of the country, and days between storms can be very clear and sunny.

33

Why This Is The Best Site For The Project ?

Why was San Francisco Chosen ?

San Francisco is ideal for this kind of center because it is a multicultural metropolitan city that is well known for its integration of many types of people and socio-cultural ideas. A strong presence of religion already exists in the city including both Christianity and Judaism. This last piece of the pseudo-puzzle would complete a multi religious presence in the city. It would also be exemplary for San Francisco to demonstrate how open minded they are with consideration to the Islamic culture. They could serve as a model to other cities in the United States, and on a global stage as well.

The people who live San Francisco and nearby are open and curious to know about other cultures and religions. This is proven by the thirteen culture centers that exist in San Francisco currently. Furthermore, San Francisco is one of the top tourist destinations in the world, ranking 35th out of the 100 most visited cities worldwide. The city hosted 16.5 million visitors in 2012. This massive injection of visitor dollars directly supports local hotels, restaurants, shops, attractions, and cultural institutions. As result my Islamic Culture Center will be one of them.

There are more than thirty museums in San Francisco but none of them are specifically for Islamic art. As result, this will be the first and only museum that specializes in ancient and contemporary Islamic art. The Muslim population in San Francisco and the Bay Area is approximately 250,000, making it one of the highest concentrations of Muslims in the country.This large amount of Muslims is sufficient enough to open small classes for Arabic language, Quran, and Islamic history for adults. These classes will not only be offered to Muslims, but they will also be offered to anyone who’s interested in educating themselves about Islam.

Tenderloin district

The heart of San Francisco (the Tenderloin district) has a heavy con-

centration of Yemeni, Iraqi, Moroccan, Algerian, Indonesian, and Malaysian Muslims. As a result of that, it will be practical to make the Islamic culture center in the Tenderloin neighborhood. There are two mosques and one Islamic Society Center near the site. This would indicate that there are many Muslims who live in the area due to the fact that mosques are usually located in Muslims neighborhoods or where there are Muslims.

Glide Memorial Church is located near the site, and therefore I feel that it will attract people from all over the world who are already visiting this spiritual institution. Moreover, There are fifty four tourist hotels and eight art galleries in the area. There are also more than twelve tourist destinations next to the site in the Tenderloin neighborhood, this indicate that there are tourists nearby, and there are many things that attract tourists to this neighborhood. The building that had been chosen to be an Islamic Culture Center is four blocks away from Union Square, making it easy for the tourists to get to the center. The Tenderloin is also one of the city’s most exciting and diverse locales.

Why was The Alcazar Theatre chosen?

It was originally built in 1917 as a mosque for the Ancient Arabic. An additional story regarding the building claims that the first owner of the building was King Farooq, who was the last of the Egyptian kings. The designer want to revive the site to become an Islamic building again. As we all know, the historical aspect of San Francisco is very important to the city. The designer couldn’t find a better location than this building in the whole city of San Francisco to be the Islamic culture center. It has a beautiful architecture that made the designer instantly fall in love with it. This will be a defining Islamic center in San Francisco, because of its Arabic calligraphy and Islamic trappings on the columns and windows. It is truly the perfect location that the designer sought for this project. The Islamic art in the architecture is reminiscent of the Cordoba city and Al Hamra palace.

35

Transportation

Powell is the nearest bart station to the building. After reaching to Pawell station you can walk to the Union Square. it is about 0.3 mile and this will take around 5 minutes of walking from you. Then, you can walk from the Union Square to the Islamic Cultural Center. this is about 0.4 mile, and this will take around 8 minutes.

You can use the public buss get to the site. This journey will take 9 min from the bus stations on Market st.

Furthermore, you can reach to the site by using cable car from downtown.

Using car to get to the site is available, and visitors can use public parking near to the site or the public parking in downtown San Francisco.

37

Alcazar Theatre

39

Building Analysis

The building that had been chosen for the thesis project is four blocks away from the Union Square and is San Francisco Landmark building # 195. The current name of the building is Alcazar Theater and the address is 650 Geary Street between Jones and Leavenworth, and the name of the recant theater owner is Steve Dobbins. The building is four stories, and the total square feet for is 50,000 square feet, and each floor is 12,500 square feet.

History of the building

The building was constructed in 1917 at a cost of $150,000. A mosque designed by Scottish- born architect Thomas Patterson Ross, it was named Islam Temple for the Ancient Arabic Order Nobles of the Mystic Shrine. I heard another story about the building from some of the people who live here, but it isn’t documented. The story says that the first owner of the building was King Farooq, who was last of the Egyptian kings. He lost the building because he did not pay the taxes. It was nice to hear this story from the people who are local. I also want to draw your attention to the historical dimension of the building which was one of the reasons behind my decision to choose this building to be an Islamic culture center. Another benefit is that it will revive the use of this historic site. As we all know the historical aspects of San Francisco are very important for the city. Ross was one of the Shriner’s, a male only social organization of the Freemasons, who used the building to fraternize until 1970 when it became the Alcazar Theater, which had been a historic theater on O’Farrell Street that was burned in the 1906 earthquake. A new theater had been built on the same site, but was demolished in 1963 to create a parking lot. The Alcazar Theater closed in 1984 but reopened in 1992 after undergoing reconstruction. The garage we see today was part of the original design because the Shriners often included commercial space which would assist in paying for maintenance of the building.

This space is considered to be one of the historical buildings in San Francisco. According to information given by the owner, the portion that is considered historical and cannot be altered is the front of the building only. Moreover, I found this information in the “San Francisco planning development.” With exception to the front, I will be able to change any other part of the building. In 2001, the new owner of the building Steve Dobbins implemented a large renovation which included the theatre, because it isn’t considered to be a historical theater. In 2009 the owner also did another large renovation for the building and he altered everything inside of it.

The style of the building

The building that I chose is one of San Francisco’s principal architectural styles being that of Islam Temple and largely seen during the years 1900- 1940s. It incorporated exotic revival style structures that were designed with an exuberance of ornamentation and motifs. Decoration is most often expressed through “oriental” Turkish, Byzantine, Egyptian, Moorish, Mayan, and even Venetian design. The Moorish Byzantine revival can most often be seen in apartments, commercial buildings, and movie theaters. This information came from the San Francisco planning department’s website.

The old zoning of the building

The building is currently under renovation. The four-story structure was unsuccessful as a Live Theater according to the owner. The number of people who went to the theater decreased as time went by because the plays were shown for a whole year, and this made them stale and boring for the audience. I have spoken directly with the owner, and after further discussions, it turns out that he is planning to make some changes to the building. These adjustments includes constructing the parking garage and building a place to rent on the first floor, and keeping the parking garage in the basement. The second floor will consist of a theater, three rehearsal rooms, a small conference room for rent and the owners office. The theater is planned to be a multiuse hall that is available for everyone and can be used for events such as conferences, birthday parties, and church gatherings. He can also rent it as a theater if the plays being performed are successful. He told me he would like to reconstruct the rehearsal room so he can provide Salsa classes. The third floor, which is smaller than the second floor, contains an empty room for rent as an art gallery .The fourth floor which is the mezzanine level used as a bedroom and living room for the owner.

41

Existing Building Conditions

1. A place to rent on the first floor.

2. The parking garage on the first floor.

3. An empty room for rent as an art gallery on the third floor.

4. A small kitchen on the owner suite of the third floor.

5. A few steps to reach the bedroom and living area that it privet for the owner on the third floor.

6. The entrance of the big dome is behind the TV shelves on the fourth floor.

7. Living room for the owner on the fourth floor which is the mezzanine level.

1
2 4 5 6 7 3 43

Second Story Conditions

1
1. The owner office. 2. The design of the chandler on the lobby area. 3. The big arch windows with the Islamic art style. 4. The lobby area. 5. The life theater. 6. The kitchen that serve the conference room. 7. The small conference room.
2 3 4 5 6 7 45
Site Plan Location Residential Commercial
47
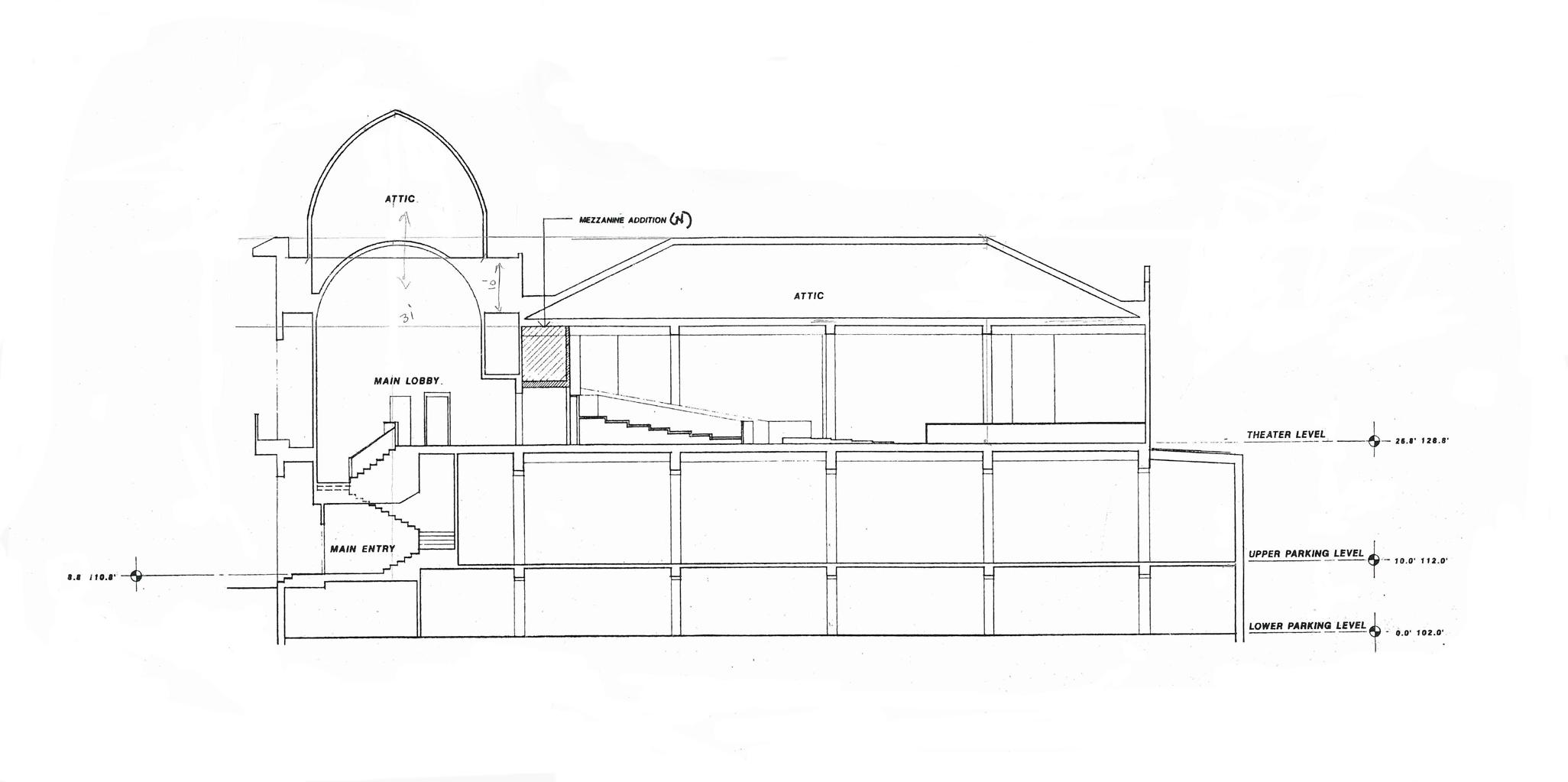
Elevation Section

Basment Level

Level One

Level Two

Level Three, The Mezzanine Level

49

User’s Profile

51

The Owner And Users

The owner

It is of course not about money, this is not a mercantilist project. It is a charity project. It is about doing something good or feeling good. I looked at many centers that it has concepts similar to mine, such as Park51 in Manhattan, New York, and I figured out that the owner of that project is a rich merchant, and his name is Sharif El-Gamal. He just believe in his project, as a result of this study a total of wealthy donors, who believe in this project can be the investors for the project. it could also be wealthy Muslims who live in San Francisco, because most of the culture center were established by people who lived in the same culture centers area. As we all know there is many different races that live in San Francisco. The reasons behind opening their culture centers is the nostalgia to their original countries. after all, the designer decided to use the Saudi prince businessman Alwaled bin Talal to be the owner of the building because of many reasons. He is in the list of the richest people in the world, he has a lot of donations, and he is the owner of the Alwaleed bin Talal foundation charity in Kingdom of Saudi ArabiaAnd he has another charity in Lebanon, Alwaleed Bin Talal Humanitarian Global, the foundation aims specifically to the establishment of centers and supporting studies and forums that encourage dialogue and reconciliation between different religions all over the world. Participation in the preservation of the Islamic heritage of literary and artistic worldwide. Assist in the alleviation of poverty and famine worldwide. Also, payment programs to enable and support women in the fields of education and employment.

Users

The multicultural population in San Francisco will be my first target of users, San Francisco tourists and visitors, Muslims who live in San Francisco and the Bay Area, Artists and anyone who is interested in art in general; especially the Islamic art, and Anyone who is interested in Islamic religion and culture.

53

Concept

55

Key characteristics of isalamic art

1. Wholeness / Completeness.

2. The central.

3. Symmetry and asymmetry.

4. Repetition.

5. floral motifs.

6. geometric motifs.

7. Writing – the use of text.

8. exaggeration and inaccuracies.

57

The characteristics produce a feeling in the artist that is best described as

THE PANIC OF THE VOID

Panic of the Void

The Islamic Artist feels a need to completely cover the canvas with design.

Why?

It is a process of seeking the truth.

There is a natural biological tendency for humans to fear death. There is more truth beyond what we see and think we know. This philosophy pushes you to grow and learn.

It is important to avoid emptiness in our daily lives

It is important to use our time wisely doing important things. Do meaningful things and imagine what is possible.

Using this philosophy in the architecture and design

The geometric and floral motifs in Islamic art always show endless connection to each other.

There are no empty spaces in the designs. full coverage of the canvas. there is always key focal points.

“Panic of the Void” and Interior Architecture of this project

The designer planning to use this theory of “panic of the void”, as a way of creating interior spaces that create a feeling of completeness to the person inside the spaces.

The patterns are connected and leads you to new spaces

There is always something beyond what we can see. Visual connections between spaces – both in plan and in section. Geometric motifs as a way to organize circulation.

The designer aim for the completion idea that the Islamic design carry. To the traditional Islamic pattern, the completion is the busy, is the fullness. But I would like to change that. I want to define the completion as being eye full. That when we look at it, we are full and rich with the pattern that we don’t want to see more but the space is actually minimal and simple.

The designer will revise“Panic of the Void” philosophy by mixing the ancient Islamic art with a contemporary style. The inspiration can be found in old inventions, as well as scientific discoveries that have occurred in the past and continue to remain important in the 21st century.

59

Development

61

The Floor Plan Parti

Explanation

Start from center point, then rotate to a certain angel. after that, the designer chose an interesting angel to make the rotation. It has been chosen the holly city for Muslims witch is Makkah. It located in the north east. As a result of that, all of the walls facing the north east. The designer used the repetition to create her own motive.

1 2 3 4 5 N E
3 E 1 2 4 5 N E 2 3 5 N E 1 2 3 4 5 N E 3 1 2 3 4 5 N E 2 3 5

The chandelier the central of the building and it connects all the levels together with a sense of unity. It goes all the way down to the fountain

Museum level Entry level Educational level The mosque
63
in the basement level.
Section

Basement

Lobby Museum

Offices

Conference room

Restrooms

Parking

Storages

Fire exit

Electrical room

Islamic Art museum

It is divided in two part 3,600 sq ft in level one, and 7,000 sq ft in the basement level. This will be a unique Islamic Art museum in San Francisco that will house specialty artifacts from the Islamic culture; specifically ancient and contemporary Islamic art. The administration and curators of the building will be in charge of acquiring these pieces of art. The designer envision the managing organization of the building to have expertise in Islamic Art and History, giving them adequate knowledge in how to put together a successful museum that will appeal not only to the significant Islamic groups, but also to the general public that is interested in art. This will be the first museum specialist in Islamic art in San Francisco. The tourists and visitors will have fun and they will take away a greater knowledge and deeper understanding of Islamic art. This experience will also make them understand the relationship between the great Islamic civilizations in the past through these art pieces due to the fact that the elements stemming from this are based on Muslims values, morals, and social elements. Moreover, there will be six specialists on staff who work with Islamic art, and two managers they will help the visitors understand the artifacts and also be able to answer all of their questions. The museum in this level will be enough to host two hundred people. The reason behind making the museum start on the entry level is to make it easy for everyone to get in and to also attract more visitors. Furthermore, because this is a non-profit organization, the museum will open every day for free from 9am to 6pm. The main purpose behind opening the museum for free is to encourage a large visitor capacity.

Offices

It located in the basement level, and there are five offices for managers and workers that it is around 100 sq ft each, also there is a lounge for the staff that is 200 sq ft.

Floor plan Patterns

This traditional Islamic patterns in this photo has been used as an inspiration in design.

65

Level One

Lobby Museum

Cafe

Gift shop

Restrooms

Offices

Storages

Fire exit

Parking entrance

Arabic café

It is located in level one, and it is approximately 2700 sq ft. After walking around in the museum, or joining one of the lectures, the visitors may want to get some rest and enjoy the delicious Arabic desserts with a cup of coffee. The café will serve as a venue to network and deepen community member’s relationships over tea and coffee. There will be three staff members serving the café. The café can serve eight people.

Gift shop

It is located in level one, and it is approximately 800 sq ft. it will be nice for the visitors after their tour, and before leaving the museum, to purchase some souvenirs and books. There will be two staff member in the gift shop that it will serve thirty people.

Floor plan Patterns

Those patterns started as a simple traditional Islamic design than it becomes more modern as you walk away from the museum.

67

Level Two

Lobby

Multi purpose room

Seating area

Classrooms

Library Office

Restrooms

Stage Storages

Fire exit

Multipurpose Room

Lecture Hall and a Movie facility that has eighty seats in level two, which is approximately 2300 sq ft. that it will have two lectures per week on the weekend. It will be available for everyone and not just Muslims. It will host diverse lectures with topics on Muslims beliefs, values, Islamic history, and prophets such as Mohammad, Jesus, Moses, Abraham, Noah. It will also discuss the similarities between sky religions. It will be interesting for people to know that Muslims also believe in Jesus and Mary, and this will create many questions in their head. They may also want to hear the stories that Muslims have in the Quran regarding that. The center also will host some famous speakers, which will make it a popular place. The center will promote interfaith dialogue, answering all questions asked by its visitors, making it the perfect place for curious people. It will also provide a good forum in which debates can take place between the sky religions. People can come from everywhere to listen to both sides and ask questions. Furthermore, Muslims can use the space to celebrate during holidays. The hall will show films in order to teach people about Islam history, religion, and culture.

The Class rooms

Three classes located in level two, which is 360 sq ft for each class. It will be for teaching Arabic language, Holy Quran, and Islamic history class. The special feature of these classes will be that they are open for everyone, and not just Muslims. Three expert teachers will run these classes, and the classes are available at nominal prices. Each class will hold a maximum of ten students. Moreover, you can register for two days during the week days, or you can register for one or two days on the weekend, but these classes will be available for adults only.

Library

Book shelves and seating area around 5000 sq ft, that it enough to serve forty people. It will contain a variety of Islamic history books, references, and Quran translation for many languages. It will also have CD’s, DVD’s, journals and newspapers available to check out. Furthermore, a small workstation will be available for research. There will be two employees serving the library’s visitors.

69

Level Three

Lobby

Mosque, men’s section

Mosque, women’s section

Waiting area for kids

Restrooms Storage

Fire exit

A mosque

Muslims must pray five times a day at specific times; they pray in the morning, afternoon, evening and at night. As a result of that, in the Islamic counties there are places of prayer everywhere such as schools, malls, and companies. So, this is the reason behind designing a mosque for prayer in the Islamic culture center to serve the staff and the Muslims visitors. It will be interesting to the visitors to view the Muslims way of prayer. The mosque will divided in to two section 4600 sq ft for men and 2000 sq ft for women, that it will be enough for six handers people.

71

Design

73

The Museum Lobby

Is located in the Basement level, the design began from the patterns on the floor, it started as a simple lines connected to each other, but after that it became busser. Theses motif inspired by the traditional Islamic art patterns. The lines spared to create a connection between itself and everything in the space. The geometric shapes on the walls are repetition to the trappings on the floor. Together they create a nice symmetry. The geometric cubes have been designed by using modern technique to give the place this contemporary looking. Moreover, the shape of the seating area have been designed by using some lines from the floor patterns, this create sense of unity in this area. The visitor will realize that there is one focal point in each space. The Arabic calligraphy patterns on the seats is the focal point in the basement lobby, which is art installation on the wood. They can hire one of the local artist to do it, and this will be one of the art works that it show in the museum. Also, the reason behind making this kind of gray mode in this area is to take the Islamic art from the traditional looking which using a lot of shiny colors.

75

The Museum Lobby

This scene shows the entry to the museum in the basement area. Furthermore, the materials that has been chosen to be used in this area are varieties of concretes, such as dark formed concrete, and light rough concrete for the floor.

77

The Museum

Realize the connection between the floor patterns and the shapes of the walls. It follow the patterns in a lovely way. It gives the floor plan this unique look, and it makes it look like a piece of art itself. In the exhibition area the art works and paintings on the walls are the only focal points in this scene. Moreover, these lines on the ceiling creates a kind of completeness to the space, it gives a sense of entirty to our eyes because nothing’s left empty.

79

The Museum

It is located in the entry level, in using the same thoughts, concepts, and techniques, but in a different way and for a different function. The shape of the cube in this level comes out of the walls creating boxes that has voids in the middle of it. The display windows functions as a stand to hold the artwork. This style was used before but only as a gemotric shape, now it is used to serve a practical function of holding arwork. The voids of the walls and the floor patterns creates beutiful symmetry and connection.

81

The Museum

The focal point of this scene is the contrast between the gray patterns of the backgrounds and the attraction of the bright art pieces.

83

The Bar In The Cafe

The focal point in this scene is art installation, which is modern Arabic calligraphy. Visitors can view the exhibition area by the window that connect the cafe with the exhibition room. The window creates a complete picture following the paintings from the exhibition area through bar in the Cafe. The furniture; such as the stools, bar, tables, and chairs in this scene was customized.

85

The Arabic Cafe

This room completes a cycle. It started as patterns on the floor that became voids on the walls , and after that it became geometric lines on the celling.

87

The Arabic Cafe

The shape of the entrance of the door is cut as one of the geometric shapes on the walls. To connect the entrance with the wall pattern. The material that had been chosen acrylic and the chair cushion is made out of white leather. the turquoise edges on the walls and the tables are architecture laminate material.

89

The Lobby

This lobby is located on level one of the Islamic center. It shows the relationship between how the wall was constructed and the shape of the entrance. The martial that had been chosen for the floor is marble. Throughout the center there was one color that had been chosen and it is the turquoise. It had been chosen because it is the color of protection and it is used a lot in the Islamic art architecture and design.

91

The Ablution Area

It is located in level three of the center and this is the first thing you will see once you enter. Muslims pray five times a day and they usually wash them self before they pray and this is called Ablution. The atrium, which is the central focus of each level, is already a strong point in the Islamic center but to make it even more stronger the ablution area was designed around it. The material that had been chosen for atrium is a white granite. The seats for the ablution area is made from turquoise mosaic.

93

The Mosque

The mosque has been designed in the highest level to the sky to give the worshipers direct connection with God. In this floor it is getting obvious that there is no meaning for the physical things or the small details that we usually create to make ourself happier. so, the design detials that you see in the cafe or museum, just disappear here. In this floor we can realize the huge difference between the physical world and the spiritual world. This design goes with this philosophy and thought. So, the design depends on the light, shade, and shadow. the mosqe is present in the spiritual world, that we cannot touch. The pattern on the walls and floor just created naturally by the light and shadows.

95

The Mihrab

The worship area is where the Imam stands to call for prayers to pray with him. when visitors come they will stand in rows next to each other to pray with the Imam. the Imam will stand by himself and others will follow behind him.

97

The Designer

99

Autobiography

Iam the oldest daughter for my parents & the First granddaughter in my family. I don’t have that much to tell about my childhood. As any child in this life I had a lot of crazy dreams that can’t come true in this world, it can happens only in a dreamland. I spent the rest of my youth reading Arabic novels and foreign novels that was translated; I love the literature & Arabic poetry so much. Victor Hugo was one of my favorite authors ever & “Gone with the wind” was one of my favorite novels ever. At that time I saw some of the famous artists’ works such as Renaissance artists. Their ability of drawing very small details attracts me. Personally, there are the most creative people in this world. When I got older I decided to study in the art school. The part that I mostly loved & became good in it is forming ceramics. My passion for artists increased & I started to know more about their works & way of thinking. Van Gogh with his way of thinking attracts me more than any other artist. I fell in love with all of his drawings. Impressionist’s thinking in general attracts me. One of my big dreams since I was a kid is to be a very famous artist just like Van Gogh. Even if it happens or not I don’t care, at least I have a dream. I wake up every morning hoping that it will happen. I really feel sad for the people who ended their lives without having dreams. Van Gogh once said “If you heard a sound inside you that it aside you are not an artist… just drown with all possible ways that you have until that voice shut up”

101

Professional Goals

After I graduated from a fine art school, I decided to complete my education in an art school as well, but this time I wanted to focus on a different major because I really wanted to use my art knowledge in ways that would make people use it rather than just look at it. I found Interior Architecture somewhat similar to the fine art in the way that you are able to come up with new ideas, play with colors and shapes, and build great concepts to start the work with. At the beginning it was difficult for me until I met one of my favorite teachers at the Academy. He said a word for me that just stuck in my mind, and ever since that day I have been using this technique in all of my work. I remember that day because I was afraid and I looked at him and told him; “I’m sorry but I don’t have a strong background, and because of this I am very confused.” He then asked me about my background and at the moment that I said “Fine Art” he smiled and replied; “it is exactly the same.” He began to explain to me how much art classes were involved in design. It is this support that has given me

the power to complete my career in design.

An artist’s way of thinking is very different from the way most people think; they have a special vision of making things special and unique. My future goal in a design career will be to develop my fine art knowledge and utilize it more in the areas of design to make it a distinctive feature in all my works going forward. Also, I will look at the space that I am planning to design as a piece of art first; I want to give my customers a sensation that makes them feel as if they are inside a panel. Moreover, I prefer to work within a commercial field rather than a residential one. This is due to the fact that I will have more opportunities to create my own ideas and put a signature stamp on the design in a way that will make it known to a larger audience.

Becoming a famous artist and designer is one of my life long dreams. The first step in seeing this dream become a reality is my thesis project, and this is why I decided to make it a mix between my passion for art and love of design.

103

Bibliography

http://usatoday30.usatoday.com.

http://ejabat.com.

http://vedioislam.com

http://www.people-press.org

http://www.adherents.com

http://www.islam101.com

http://www.andnet.org

http://www.city-data.com

http://www.sanfrancisco.travel

http://maps.google.com/maps

http://www.yellowpages.com

http://www.zaha-hadid.com

http://islamicbulletin.org/free_downloads/new_muslim/100_most_influential.pdf

http://www.youtube.com/watch?v=agj3CBFP3HM

http://www.arabculturalcenter.org

http://ccsre.stanford.edu/reports/report_1.pdf

http://aapip.org

http://blog.sfgate.com

http://www.pewforum.org

http://www.pewresearch.org

http://www.ispu.org

http://www.zillow.com

www.c-c-c.org

www.jcccnc.org

www.iicsanfrancisco.esteri.it

www.russiancentersf.com

www.irishcentersf.org

http://www.sanfrancisco.com/weather

http://chowhound.chow.com

105

Turn static files into dynamic content formats.

Create a flipbook
Issuu converts static files into: digital portfolios, online yearbooks, online catalogs, digital photo albums and more. Sign up and create your flipbook.