PRODUKT KATALOG

















![]()

















“Elpress Gruppens forretningside er og gi en høy leveringssikkerhet og produktkunnskap innenfor kvalifiserte forbindelses materialer. Samt relaterte produkter og ytelser til elektriske applikasjoner for den profesjonelle
Elpress Norge
Bruket 31, Pb 79
N-1621 Gressvik, Norge
Tlf. +47 91 68 55 02
salg@elpress.no www.elpress.no
Hovedkontor
Elpress AB
Industrivägen 15
P.O. Box 186
SE-872 24 Kramfors, Sverige
Tel +46 612 71 71 00 sales@elpress.se
Kundeservice
Tlf +46 612 71 71 70 support@elpress.se
Order
Tlf +46 612 71 71 70 order@elpress.se
Siden 1959 har vi utviklet, produsert og markedsført komplette kontaktpressesystemer for elektriske ledningsforbindelser. Elpress Gruppen består av forretningsområdene Elpress og ABIKO og eies av Lagercrantz Group AB. Elpress’ hovedkontor og fabrikk ligger i Kramfors, Sverige. Datterselskapene Elpress GmbH, Elpress A/S, Elpress (Beijing) Ltd. og Elpress Inc. med varelager ligger i Viersen/Tyskland, Silkeborg/Danmark, Beijing/Kina og Chicago/USA. Elpress Gruppen har totalt ca. 160 ansatte.
lnnehallet i denna kat alog ar till for att informeraom val av ratt produkt . Den ar inte avsedd att anvandas i QA i nst ruktioner, produktion, ritningar, bruksanvisningar eller liknande.Om sadan dokument ation kravs, kont akta din narmaste Elp re ss representant eller Elpre ssdirekt. Vi reserveraross for ev t ryckfel, inaktuell informati on samt produktforandringar.
Denna katalog tillhor Elpre ss AB. Al l kopiering, delvis eller av biIder, ar forbjuden utan tillstand fran Elpress AB.


Isolerte forbindelser 0,1 - 6 mm² med tilhørende verktøy

Endehylser 0,14 - 50 mm² med tilhørende verktøy

Uisolerede forbindelser 0,15 - 10 mm² med tilhørende værktøj






Cu- forbindelser 0,75 - 1000 mm²
Al- og Al/Cu-forbindelser 16 - 1200 mm² med tilhørende verktøy
Pressverktøy til Cu- og Al/Cu forbindelser
Luftledningsmatriell
Skruforbindelser til lav- og mellomspenning

Skjøtesett med krympestrømpe




Kabelkutter og avisolringsverktøy
Dypjording
Generell informasjon
System Elpress

Elpress produkter er designet med henblikk på og minimere påvirkningen av miljøet, for at beskytte begrensede ressurser og ta livssyklus-perspektivet i betraktning, dette i forbindelse med:
• Produktutvikling.
• Fremstilling.
• Anvendelse og bortskaffelse av produkter.
Hver og en av Elpress’ ansatte skal prioritere det personlige ansvar for sikkerhet, kvalitet og det miljømessige aspekt i sin daglige arbeidsvirke. Informasjon og undervisning utgjør en normal aktivitet, for å øke de ansattes bevisthet.
Våre leverandører og partnere er utvalgt og påvirket på en slik måte at de kan overholde og tilføre verdi til vår politikk. Våre kunder er informert om vår miljømessige dedikasjon, og våre partnere har all den nødvendige viten til og kunne hjelpe og gi råd til alle parter i distribusjonen samt sikre korrekt anvendelse, oppbevaring og omsider fjerning av våre produkter.
Vi evaluerer kontinuerlig resultatene av våre politikk og distribuerer åpent informasjon om vårt arbeid og påvirkning av miljøet.
Vårt miljøarbeide har resulteret i at Elpress har vært certificeret i.h.t. ISO 14001 siden 2004.
Vårt certifikat, med nummer EMS531083, er udstedt af den internationalt genkendte BSI, British Standards Insitution, i England.

For os betyder kvalitet, at man hele tiden forsøger at være den bedste på markedet. Derfor er vi i konstant udvikling af vores produkter, metoder og os selv, siden viden, på sin vis, er en af de vigtigste komponenter i at kunne opnå den højeste kvalitet, Vores arbejde på kvalitetssiden har resulteret i at Elpress har været certificeret i.h.t. ISO 9001 siden 1992.
Vores certifikat, med nummer FM20987, er udstedt af den internationalt genkendte BSI, British Standards Insitution, i England.
Det finnes en del forskjellige teststandarder og godkjente rutiner, som kan brukes til kabelforbindelser . På grund av dette og som følge av variasjoner i innhold av standarder fra forskjellige land er det nødvendig å gjøre et valg. Elpress brukes, for de nordiske markeder, i førsteomgang svenske standarder og senest også IEC- og EN-standarder, som allerede er gjeldende, eller som blir gjeldende i norden. Vi har også godkjennelser, som Det Norske Veritas (DNV), UL og andre.

IEC - International Electrical Commission - utgir internationalt anerkjendte standarder som til tross at de ikke er direkte obligatoriske ofte har stor gennomslagskraft og anvendes som grunnlag i internationale leveranser.
DNV - Det Norske Veritas Elpress KR/KS, KRF/KSF og KRT/KST forbindelser er i overensstemmelse med DNV´s regler for klassifisering av fartøyer og Det Norske Veritas’ Offshore Standard. Forbindelsene er godkjente for installasjoner på fartøyer og mobile “offshore” enheter.
KR/KS, KRF/KSF, KRFS, KRT/KST er UL godkjent i.h.t. fil nr. E205350. UL-certifiserte produkter blir leveret med UL-merking på labelen, samt UL filnummer og/eller certifiserings-kode til kontroll av en UL inspektør. Certifikatet kan downloades hos UL Product IQ.

System Elpress
System Elpress består av forbindelser og verktøy som er tilpasset og testet sammen for gi en ensartet forbindelse. Dette for at du som bruker skal føle deg trygg når du bruker våre systemer og for at du skal oppnå en sikker forbindelse ved riktig bruk av produktene.
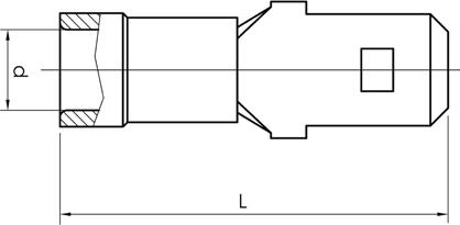
Isolerte forbindelser
Elpress ring-, gaffel- og stiftkabelsko er produsert av kvalitetskobber 99,95 %. Flat- og rundstiftsforbindelsene er produsert av messing eller tinnbronse. Alle kabelsko elektrolyttfortinnes for maksimal korrosjonsbeskyttelse. Kabelskoens hals er hardloddet og mykglødet, som betyr at den kan kontaktpresses i en hvilken som helst retning. Metallet i flatstiftshylsene er dessuten dobbeltbrettet i halsen. Dette gjør at den ferdige forbindelsen får svært god strekkfasthet og lav resistans.
Isolasjon
Elpress isoleringshylse er normalt produsert av halogenfri polykarbonat, PC, som har utmerkede deformasjonsegenskaper. Det beholder dessuten formen etter pressingen og dermed vibrasjonsstøtten opptil høye temperaturer. Det må utvises en viss forsiktighet ved alkalisk eksponering. Noen typer har isolasjon av PA, nylon, som også er halogenfri, eller PVC. Fargen på isoleringshylsen angir hvilket arealområde forbindelsen er beregnet for:
Isolation colors table





Lysegul hylse 0,1-0,5 mm²
Grønn hylse* 0,25-0,75 mm²
rød hylse 0,5-1,5 mm²
Blå hylse 1,5-2,5 mm²
Gul hylse 4-6 mm²
* eller gjennomsiktig hvit
Tabellen nedenfor viser egenskaper for Elpress’ isolerte forbindelser. Vær klar over at den er generell, da påvirkninger i miljø, temperatur og lignende kan påvirke forbindelsen. Polykarbonat, PC, og polyamid, PA, er halogenfrie, dvs. at de ikke inneholder noen av stoffene fluor, klor, brom eller jod.
Isolasjonsmateriale Maksimal temperatur Halogenfri Brennbarhetsklasse, UL94
PA (Polyamid)
PC (Polykarbonat)
PVC (Polyvinylklorid)
105° Ja V0
115° Ja V2
60° Nei, klor V0
Easy-entry
Elpress isoleringshylse er normalt av type easy-entry, som betyr at den styrer lederen rett inn i kabelskoen. Risikoen for bøyde og utstikkende tråder, og dermed eventuelle overslag eller dårligere elektriske egenskaper, elimineres.

Easy-entry.
Merking av isolerte forbindelser
De isolerte forbindelsene til Elpress er merket med logo, areal og ev. skruediameter for å forenkle arbeidet og kontrollmuligheten. Ved kontaktpressing av isolerte forbindelser gir Elpress’ pressbakker/tenger et avtrykk i isoleringshylsen slik at alle pressede forbindelser i etterkant kan sikres i henhold til normkravene.

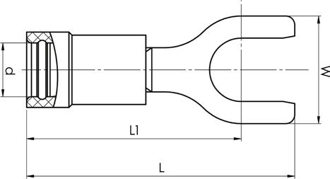
Eksempel på kontaktpressinger med Elpress isolerte forbindelser.
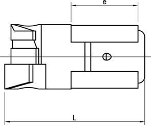
Kat.nr. A1532R (E, FLS, G osv.)
A = isolert
15 = Areal (1,5 mm2)
32 = Karakteristisk mål (hull 3,2 mm)
E = endehylse
FLS = fl.hylse rullet modell
FLSF = fl.hylse helisolert rullet modell
FLST = fl.hylse rullet av tinnbronse
G = gaffelkabelsko
H = flatstift
HA = rundstift (hann)
HO = rundstifthylse (hunn)
K = krokkabelsko
PSK = parallellskjøtehylse
R = ringkabelsko
SF = flatstiftkabelsko
SFB = flatstiftkabelsko, bøyd fremkant
SFK = flatstiftkabelsko, kort stift
SFL = flatstiftkabelsko, lang stift
SFN = flatstiftkabelsko, med avgrening
SR = stiftkabelsko
SRK = stiftkabelsko, kort stift
SK = skjøtehylse
SKW = skjøtehylse m/varmekrympeisolering

Kontaktpressing av Elpress ringkabelsko med håndverktøy GSA0760.
Mekaniske tenger
Når Elpress utvikler mekaniske presstenger, streber vi etter beste kvalitet og ergonomi i selve tangen, og de beste egenskapene hos den pressede forbindelsen. Tengene har et innebygd skrallesystem (ikke hobbytengene) som sikrer at hele presseprosessen fullføres - en forutsetning for profesjonelt og kvalitetssikret arbeid.

Elpress Mobile, profesjonelt verktøy med utskiftbare bakker for installatøren eller serviceteknikeren.
Miniforce-verktøy
Med de unike Miniforce-verktøyene er det etablert et nytt nivå når det gjelder ergonomisk tilpasning til brukeren og lave kraftbehov. Dette har gitt en reduksjon av håndtakskreftene med opptil 45 % og er resultatet av en avansert utviklingsprosess der man har fokusert på beste ergonomi og å redusere farene for arbeidsskader.

Miniforce type C har lengre håndtak for å forenkle tohåndsgrep, som ofte er en enkel og naturlig måte å redusere belastninger på. Elpress verktøy og forbindelser utgjør sammen et kontaktpressingssystem der presseresultatene fortløpende kontrolleres mot krav i etablerte standarder som IEC 60352-2, SEN 245010, DIN 46429, BS EN 61238-1 m.fl. Mange av håndtakene har symmetriske presseposisjoner som gjør det mulig å jobbe fra begge sider - noe som er viktig for venstrehendte. Tengene i Miniforce-, D- og 50-seriene er laget av svært høyverdig herdet stål som svartoksideres og lasermerkes.
Hvorfor sertifisering?
Sertifikatet som følger med tangen, har flere funksjoner:
• pressverktøy innføres ofte umiddelbart ved anskaffelse i et kvalitetsstyringssystem. Da skal selvsagt verktøyet status ved ankaffelsen være det første som står angitt, før man deretter følger regelmessige kontroller der ev. endringer kan oppdages og korrigeres.
• sertifikatet viser at hvert enkelt verktøy tilfredsstiller kravene i verktøyets grunnspesifikasjoner.
• sertifikatet angir hva som er de viktigste egenskapene, som skal følges opp. Elpress’ serviceavdeling gir mulighet til fortsatt oppfølging av kvaliteten på verktøyene.
Sertifisering av pressverktøy
Når det gjelder kvalitetssikring av verktøyene, sertifiserer vi allerede ved produksjonen av pressverktøyene, både handverktøyene av type Gxx og Pxx, dvs. Miniforce-tengene.

Sertifikat som følger med verktøyet.
Hva er det vi sertifiserer?
Hva er det vi sertifiserer?
Sertifisering av pressverktøyet betyr at hvert enkelt verktøy ved sluttmontering og kontroll dokumenteres med tanke på:
• håndtaksforspenning, som er kraften som kreves for at sperren som hindrer at en pressing avbrytes, ikke skal utløse for tidlig.
• pressuttakshøyder, dvs. de største høydemålene som kan måles i hvert uttak med bakkene presset sammen.


Elpress ergonomisk Miniforce-tang.
• Materiale: Cu 99,95 %, fortinnet Cu/Sn, hardloddet hals.
• Isolasjoner av PC har easy-entry, PC og PA er halogenfrie.































t = platens tykkelse, s = avisoleringslengde
• Materiale: Cu 99,95 %, fortinnet Cu/Sn, hardloddet hals.
• Isolasjoner av PC har easy-entry, PC og PA er halogenfrie.






















t = platens tykkelse, s = avisoleringslengde

• Materiale: Cu 99,95 %, fortinnet Cu/Sn, hardloddet hals.
• Isolasjoner av PC har easy-entry, PC er halogenfri.






t = platens tykkelse, s = avisoleringslengde
• Materiale: Cu 99,95 %, fortinnet Cu/Sn, hardloddet hals.
• Isolasjoner av PC har easy-entry, PC er halogenfri.



t = platens tykkelse, s = avisoleringslengde

• Materiale: Cu 99,95 %, fortinnet Cu/Sn, hardloddet hals.
• Isolasjoner av PC har easy-entry, PC og PA er halogenfrie.










0,5-1,5 20-16
20-16
16-14
16-14
4-6 12-10
s = avisoleringslengde
• Materiale: Cu 99,95 %, fortinnet Cu/Sn, hardloddet hals.
• Isolasjoner av PC har easy-entry, PC er halogenfri.













t = platens tykkelse, s = avisoleringslengde
• Materiale: Cu 99,95 %, fortinnet Cu/Sn, kontakthylse av Cu-rør
• Halogenfri PC-isolasjon uten easy-entry.



0,25-0,75 24-20 A0824SK 2018175 2,9 24,5 7 PC Nej DSA0115 100

0,5-1,5 20-16 A1525SK 2018176 3,4 24 7 PC Nej GSA0760 100

1,5-2,5 16-14 A2527SK 2018177 4,3 26 8 PC Nej GSA0760 100

4-6 12-10 A4652SK 2018178 6,5 33 9 PC Nej GSA0760 50
s = avisoleringslengde
• Materiale: Cu 99,95 %, fortinnet Cu/Sn, kontakthylse av Cu-rør.
• Smeltelim innvendig på isolasjonen.





mm² AWG Navn El-nummer d mm L s Isolasjonsmateriale Verktøy Stk./ pakke
0,5-1,5 20-16
A1535SKW 2018190 3,7 31,5 8 PA
GSW0560C 25 1,5-2,5 16-14 A2535SKW 2018191 4,6 31,5 8 PA
GSW0560C 25 4-6 12-10
s = avisoleringslengde
A4650SKW 2018192 6,5 37,5 9 PA
GSW0560C 25
Etter kontaktpressing og varming med varmluftpistol oppnås det en væsketett forbindelse som er limt mot kabelisolasjonen og skjøtehylsen.
• Materiale: Cu 99,95 %, fortinnet Cu/Sn, kontakthylse av Cu-rør.
• Isolasjon av halogenfri PA.





mm² AWG Navn El-nummer d mm L s
0,5-1,5 20-20
materiale Verktøy Stk./ pakke
2018194
1,5-2,5 16-16 A2517PSK 2018195 4 17 8 PA
4-6 12-10 A4634PSK 2018196 5,6 21 9 PA GSA0760
s = avisoleringslengde
Type PSK skal presses med GSA0760 (C) og med to pressinger.
• Materiale: messing, fortinnet Cu/Sn, hardloddet hals.
• Isolasjoner av PC og PA har easy-entry, PC er halogenfri.
















20-16
• Materiale: messing, fortinnet Cu/Sn.






• Materiale: messing, fortinnet Cu/Sn, hardloddet hals.
• Isolasjoner av PC og PA har easy-entry, PC og PA er halogenfrie.











• Materiale: messing, fortinnet Cu/Sn, hardloddet hals.
• Isolasjoner av PC og PA har easy-entry, PC er halogenfri.





• Materiale: Cu, fortinnet Cu/Sn.
• Isolasjon av halogenfri PA. Easy-entry.




s = avisoleringslengde
• Materiale: messing/Cu, fortinnet Cu/Sn.

• Isolasjoner av PC har easy-entry, PC og PA er halogenfrie. mm²




s = avisoleringslengde

• Materiale: messing/Cu, fortinnet Cu/Sn.
• Isolasjoner av PC har easy-entry, PC og PA er halogenfrie.






s = avisoleringslengde
Forsterkningshylse Nej GSA0760



RPL605 er en komplett sortimentsboks for profesjonell bruk, bestående av forbindelser og verktøy.
Egenskaper:
• det sertifiserte pressverktøyet GSA0760, pressområde 0,5-6 mm²
• avisoleringstang SCT001, klipper og avisolerer 0,5-6 mm²
• 605 stk. Elpress isolerte forbindelser 0,5-6 mm²
Elpress sortimentsboks beregnet for elektromekaniske verksteder og serviceverksteder.
Egenskaper:
• boks av ABS-plast, innsats av styrenplast
• 29 rom
• 997 isolerte forbindelseselementer 0,5-6 mm²
• 4 koblingslister
• pressverktøy GSA0760 Miniforce
• avisoleringstang SCT001
Elpress sortimentsboks for profesjonell bruk.
Egenskaper:
• boks av polypropenplast, innsats av styrenplast
• 11 rom
• 346 isolerte forbindelseselementer 0,5-6 mm²
• 3 koblingslister
• pressverktøy GSA0760 Miniforce
• avisoleringstang SCT001
mm² AWG Navn

Elpress sortimentsboks beregnet for hobby og lignende.
Egenskaper:
• boks av polypropenplast, innsats av styrenplast
• 11 rom
• 346 isolerte forbindelseselementer 0,5-6 mm²
• 3 koblingslister
• pressverktøy hobbytang T50 som kontaktpresser, klipper og avisolerer opp t.o.m. 6 mm² og klipper skruer M2,5-M5
AWG Navn El-nummer Nettovekt (kg) Lengde mm Bredde Høyde

Elpress sortimentsboks beregnet for hobby og lignende.
Egenskaper:
• boks av polypropenplast, innsats av styrenplast
• 11 rom
• 147 isolerte forbindelseselementer 0,5-6 mm²
• 2 koblingslister
• pressverktøy hobbytang T50 som kontaktpresser, klipper og avisolerer opp t.o.m. 6 mm² og klipper skruer M2,5-M5
mm² AWG Navn El-nummer Nettovekt (kg) Lengde mm Bredde Høyde
0,5-6 20-10
Hobbyverktøy for isolerte og uisolerte forbindelser 0,5-6 mm² samt kapping og avisolering
Egenskaper:
• laget av høyverdig stål med halvmyke håndtak
• pressinnstillingene er tydelig merket
• tengene har ikke skrallefunksjon
• klipper t.o.m. 6 mm²
• avisolerer t.o.m. 6 mm²
• klipper skruer M2,5-M5

Pressgeometrier
Spesielle egenskaper:
• kontaktpresser isolerte forbindelser 0,5-6 mm² og avgreningspresser uisolerte forbindelser 1,5-6 mm²
• røde håndtak

Pressgeometrier
Spesielle egenskaper:
• kontaktpresser isolerte forbindelser 0,5-6 mm² og rullpresser uisolerte forbindelser 0,5-2,5 mm²
• gule håndtak

Pressgeometrier
Spesielle egenskaper:
• rullpresser uisolerte forbindelser 0,5-6 mm²
• grønne håndtak
Egenskaper:
• pressinnstillingene er tydelig merket
• justerbar ved endringer etter lang tids bruk
• testet med Elpress forbindelser
• skrallefunksjon som garanterer fullgod pressing
• nødutløsning hvis presseprosessen må avbrytes
• unik design som gjør verktøyet tynt og smidig
• minimal muskelstyrke kreves for fullgod pressing
• passer både for høyre- og venstrehendte
• klarer minst 50 000 pressinger
• leveres med sertifikat for enkel kvalitetsoppfølging

Pressgeometrier

Pressgeometrier
Testet og sertifisert mekanisk håndtang for symmetrisk pressing av isolerte forbindelser 0,14-1,5 mm².
Spesielle egenskaper:
• kontroll av røde uttak skjer enkelt med tolk, ESAQ0760
mm² AWG Navn El-nummer Pressgeometri Nettovekt (kg) Lengde
Testet og sertifisert mekanisk håndtang for symmetrisk pressing av isolerte forbindelser 0,5-2,5 mm².
Spesielle egenskaper:
• kontroll av uttakene skjer enkelt med tolk, ESAQ0760
mm² AWG

Måleverktøy for kontroll av pressinnstillinger i følgende tenger: DSA0115, DSA0725, GSA0760(C), GSEA0340C.
Spesielle egenskaper:
• håndtaksdel Ø 8 mm
• enkel kontroll av verktøyets uttak
• Go- og no go-målene kontrolleres i uttakene ved kalibrering. Ta kontakt med Elpress for mer informasjon om kalibrering og kvalitetsstyring
mm² AWG Navn Nettovekt (kg) Skaft ø Lengde mm
0,5-2,5 20-14 ESAQ0760 0,024 8 55
Tool Die nests
DSA0115
DSA0725
GSA0760(C)
GSEA0340(C)
Miniforce-verktøy
Egenskaper:
• skrallefunksjon som ikke løser ut før pressingen er ferdig
• nødutløsning, hvis presseprosessen må avbrytes
• symmetriske og tydelig merkede pressinnstillinger
• justerbar ved endringer etter lang tids bruk
• testet med Elpress forbindelser
• unik mekanisme som reduserer maks. håndtakskraft fra 450 N helt ned til 250 N (modell C)
• ergonomisk håndtak som passer alle brukere
• maksimerer kvaliteten på arbeidet
• reduserer risikoen for arbeidsskader
• lett og smidig design uten å gi avkall på holdfastheten
• modell C har ekstra lange håndtak som lar deg bruke begge hendene
• klarer minst 80 000 pressinger
• leveres med sertifikat for enkel kvalitetsoppfølging

Pressgeometrier

Pressgeometrier
Testet og sertifisert mekanisk Miniforce håndtang for pressing av isolerte forbindelser 0,5-2,5 mm² samt isolerte og uisolerte endehylser 0,25-4 mm².
mm² AWG Navn El-nummer Pressgeometri Nettovekt (kg) Lengde mm Bredde 0,5-2,5 / 0,25-4 20-14 / 22-12
Testet og sertifisert mekanisk Miniforce håndtang for pressing av skjøtehylser 0,5-6 mm² med varmekrympeisolering av typen SKW.
mm² AWG Navn El-nummer Pressgeometri Nettovekt (kg) Lengde mm Bredde Høyde 0,5-6 20-10

Pressgeometrier

Følg momentene (1) og (2) ved fastsetting av kabelskoen i lokatoren på tang GSA0760(C).
Testede og sertifiserte mekaniske Miniforce håndtenger for symmetrisk pressing av isolerte forbindelser 0,5-6 mm².
Spesielle egenskaper:
• lokator som holder fast kabelskoen i riktig posisjon under pressing og som forenkler arbeidet for eksempel på trange steder
• kontroll av uttakene skjer enkelt med tolk, ESAQ0760
0,5-6 20-10
Batteridrevet pressverktøy for isolerte forbindelser 0,5-6 mm², uisolerte forbindelser 0,25-10 mm² og endehylser 0,5-50 mm²
Egenskaper:
• Li-ion-batteridrift (10,8 V og 2 Ah), ladetid ca. 40 min
• svært god tilgjengelighet og ergonomi
• verktøy for service og installasjon
• rask presseprosess 2-4 sek
• ca. 230 pressinger/batterilading
• bakker til verktøyet selges separat


Elpress miniverktøy i slanket design med et høytytende Li-ion-batteri som effektiviserer arbeidet gjennom økt batterikapasitet.
Presskraft maks. 13 kN. 1 stk. Li-ion-batteri og lader er inkludert.
Egenskaper:
• enhåndsgrep for enkel styring av alle verktøyfunksjoner
• kraftig presshode for lang levetid
• optimal pressing takket være parallellgående bakker
• brukervennlig takket være lav vekt
• høytytende 10,8 V Li-ion-batteri - med indikering av ladestatus
• åpent hode, roterbart
• det ergonomiske 2-komponenthuset med gripevennlig beskyttelse gir enkel og komfortabel bruk med en hånd
• automatisk retur av bakkene når pressingen er fullført
mm² AWG Navn El-nummer Nettovekt (kg) Lengde mm Bredde Høyde Note
0,25-50 24-1/0 PVL130P 2019594 1,5 330 85 60 Lader: 230VAC
0,25-50 24-1/0 PVL130P-WOBC 0,9 330 85 60 uten batteri/ lader

PVL130S - Elpress MINI, leveres med
Elpress miniverktøy med intuitiv PowerSense-funksjon kombinerer fordelene med manuelle pressverktøy og fordelene med batteridrevne hydrauliske pressverktøy. Presskraft maks. 15 kN. 1 stk. Li-ion-batteri og lader er inkludert.
Egenskaper:
• enhåndsgrep for enkel styring av alle verktøyfunksjoner
• elektronisk styring med skrallefunksjon og overvåking for fullstendig lukking av kjevene
• sikkerhetsøye brukes som fallsikring ved bruk utendørs
• motorvern garanterer sikkerheten ved overbelastning
• det ergonomiske 2-komponenthuset med gripevennlig beskyttelse gir enkel og komfortabel bruk med en hånd
• svært lav vekt og raskt presseforløp for maksimal effektivitet
• kraftig drivteknikk gir enkle pressinger
• høytytende 10,8 V Li-ion-batteri - med indikering av ladestatus
• LED-arbeidsbelysning
• Bakkepar SA0760 leveres med verktøyet
mm² AWG Navn
El-nummer Nettovekt (kg) Lengde mm Bredde mm Høyde Note
0,25-50 24-1/0 PVL130S 2019593 1,5
250 Lader: 230VAC 0,25-50 24-1/0
uten batteri/ lader

mm² AWG Navn
El-nummer Pressgeometri Nettovekt (kg) Applikasjon
0,5-6 20-10 SA0760 2017025 Oval 0,05 Isolerte forbindelser
0,25-2,5 22-14 KB0325 Tab 0,039 Uisolerte forbindelser 4-10 12-8 WB4099 2017026 W 0,05 Uisolerte forbindelser
0,5-6 20-10 RB0560 2017027 Roll 0,05 Uisolerte forbindelser
0,5-6 20-10 EB0560 Trapezoid 0,057 Endehylser 4-10 12-8 EB4010 2017028 Trapezoid 0,05 Endehylser 10-25 6-4 EB1025 2017035 Trapezoid 0,05 Endehylser 35-50 2-0 EB3550 2017036 Trapezoid 0,05 Endehylser


Mobile, kun ramme.

Elpress Mobile + bakkene OAA0525 og OEB0210.

Elpress Mobile + bakkene OMP45 og OCC1113.
Profesjonelt kontaktpressingsverktøy med utskiftbare bakker for installatøren eller serviceteknikeren.
Egenskaper:
• pålitelig, sikkert, økonomisk og ergonomisk verktøy
• parallellgående pressebevegelse med 10 kN pressekraft, testet for 20 000 krympinger
• skift pressbakker raskt og enkelt med et håndgrep
• pressbakkene holdes sammen parvis i en enhet som oppbevares i tilpasset holder
• stort utvalg av bakker gir deg mulighet til å bruke en verktøyramme til 19 ulike krympeapplikasjoner!
Mobile håndtang (kun ramme). Bakker suppleres.
mm² AWG Navn
Mobile håndtang med to utskiftbare bakker:
• Bakke OAA0525 for pressing av isolerte forbindelser 0,5-2,5 mm².
• Bakke OEB0210 for pressing av endehylser 0,25-10 mm².
• Tangen leveres med tilhørende bakker i blisterpakning.
Mobile håndtang med to utskiftbare bakker:
• OMP45 for pressing av modulærplugg RJ45.
• OCC1113 for pressing av koaksialkontakter RG58, RG59, RG62 og RG71.
• Tangen leveres med tilhørende bakker i blisterpakning. Navn

Elpress Mobile + bakkene OMS4, OMS3 og OMSL.

Avisoleringsverktøy LOKE.

Mobile håndtang med tre utskiftbare bakker samt avisoleringsverktøy LOKE for avisolering av solpanelkabel med ekstra tykk isolasjon:
• OMS4, rullpressing av kontakter med hylse Ø 4 mm, 2,5-6,0 mm².
• OMS3, firkantpressing av kontakter med hylse Ø 3 mm, 2,5-6,0 mm².
• OMSL, firkantpressing av kontakter, 2,5-6,0 mm².
Navn El-nummer Nettovekt (kg) Lengde mm Bredde
MOBILE SOLAR 2070535 0,772 234 64
Boks for Mobile-verktøy med plass til verktøyet samt 5-6 tilhørende bakker. Verktøy og bakker bestilles separat.
Navn El-nummer Nettovekt (kg) Lengde mm Bredde Høyde
MOBILE BOX 2011133 0,32 246 218 57
Alle bakker har samme enkle og hurtige indsætning i værktøjsrammen. Bakkerne holdes parvis sammen og leveres i en kassette, der kan bygges sammen med andre kassetter.






OAA0160
Isolerede forbindelser 0,1-0,5 & 4-6 mm².
El-nr.
2997 202 553
OPB0140
Power konnekter
0,1-4 mm².
El-nr.
2997 202 676
OWB4099
Uisolerede forbindelser 4-10 mm².
El-nr.
2997 202 618
OEB0210
Terminalrør
0,25-10 mm².
El-nr.
2997 202 540
ORB0110
Rulleforbindelser
0,1-1,0 mm². El-nr.
2997 202 692
OFO5432
ST, SC, SMA, SMB, SFR fiber optik.
El-nr.
2997 202 634

OMS4
Til rullepresning af kontakter med stift (/J 4 mm, 2,5-6,0 mm². El-nr: 2997 202 443







OAA0525
Isolerede forbindelser
0,5-2,5 mm².
El-nr:
2997 202 566
OPB6099
Power konnekter 6-10 mm². El-nr.
2997 202 689
OKB0725
Uisolerede forbindelser
0,75-2,5 mm².
El-nr.
2997 202 595
OEB1625
Terminalrør 16-25 mm². El-nr.
2997 202 702
ORB0560
Rulleforbindelser
0,5-6 mm². El-nr. 2997 202 663

OSW0360
Til pressemuffer med varmekrympisolering 0,3-0,75 og 4-6 mm².
EL-nr: 2997 202 427




OCC0908
RG174-179
BNC-TNC. El-nr. 2997 202 621

OKB0560
Uisolerede forbindelser
0,5-6 mm².
EL-nr:
2997 202 647
OEB3550
Terminalrør 35-50 mm². El-nr. 2997 202 715
OMP45
Modular stik R 45 8/8. El-nr. 2997 202 650

OSW0525
Til pressemuffer med varmekrympisolering 0,5-1,5 og 1,5-2,5 mm².
El-nr.
2997 202 430



OCC1113
RG58-59-62-71
BNC-TNC. El-nr. 2997 202 582

OMP11
Modular stik R 11
6/6, 6/4, 6/2. El-nr. 2997 202 579
OCC4755
CATV, RG6 og 59 BNC-TNC.
El-nr.
2997 202 605
OMSL Til firkantspresning af kontakter 2,5-6,0 mm.
El-nr: 2997 202 469


System Elpress
System Elpress består av forbindelser og verktøy som er tilpasset og testet sammen for beste ytelse. Dette for at du som bruker skal føle deg trygg når du bruker våre systemer og for at du skal oppnå en sikker forbindelse ved riktig bruk av produktene. Når du bruker Elpress kontaktpressingsverktøy ved pressing av Elpress endehylse, får du en forbindelse som er strekktestet iht. DIN 57609.
Endehylser
Elpress isolerte og uisolerte endehylser er laget av kobber 99,95 % og er fortinnet. Endehylsene har mål iht. DIN 46228 med noen unntak (se note i tabeller).
Isoleringshylsen er laget av PP (polypropen) og har en form som kan sammenlignes med easy-entry, se bilde. Elpress endehylser brukes når man trenger en perfekt tilkobling på en kabelende.
Med Elpress endehylse unngår du sprikende ledere og reduserer risikoen for kabelbrudd. De skaper dessuten et varig kontakttrykk og en stor kontaktflate.

Kontaktpresset endehylse.

Kontaktpresset TWIN-endehylse.

Easy-entry.
Fargekoder for isolerte endehylser og TWIN-endehylser
T type ETT
26 0,14 grå grå brun
24 0,25 lyseblå gul fiolett
22 0,34 turkis turkis skjær
20 0,50 oransje hvit hvit
18 0,75 hvit grå
blå hvit
3 25 brun gul svart
2 35 beige rød rød
1/0 50 olivengrønn blå blå
2/0 70 gul gul gul
3/0 95 rød rød rød
250 120 blå blå blå
300 150 gul gul gul
Eksempel på betegnelse
Kat.nr. A4-12ET
A = isolert
B = uisolert
4 = areal (4 mm²)
12 = Lengde metallhylse
ET = endehylse
ET2 = TWIN-endehylse
CSA, Canadian Standards Association, er en kanadisk organisasjon som sertifiserer produkter iht. amerikanske standarder. Elpress’ endehylser av typen A..ET / ETT / ETD, B. .. ET, A...ET2/ETT2/ETW2 er CSA-sertifiserte iht. amerikansk standard C22.2 No 158 og UL 1059 iht. fil No. 247206. Endehylser av typen A..ET/B... ET/A...ET2 er beregnet for fåtrådete Culedere 26 AWG til 500 MCM, som tilsvarer den metriske størrelsen 0,14 mm² til 240 mm². Skal brukes sammen med Elpress kontaktpressingsverktøy.
Mekaniske tenger
Når Elpress utvikler mekaniske presstenger, streber vi etter beste kvalitet og ergonomi i selve tangen, og de beste egenskapene hos den pressede forbindelsen. Tengene har et innebygd skrallesystem (ikke hobbytengene) som sikrer at hele presseprosessen fullføres - en forutsetning for profesjonelt og kvalitetssikret arbeid.

Elpress Mobile, profesjonelt verktøy med utskiftbare bakker for installatøren eller serviceteknikeren.
Miniforce-verktøy
Med de unike Miniforce-verktøyene er det etablert et nytt nivå når det gjelder ergonomisk tilpasning til brukeren og lave kraftbehov. Dette har gitt en reduksjon av håndtakskreftene med opptil 45 % og er resultatet av en avansert utviklingsprosess der man har fokusert på beste ergonomi og å redusere farene for arbeidsskader.

Miniforce type C har lengre håndtak for å forenkle tohåndsgrep, som ofte er en enkel og naturlig måte å redusere belastninger på. Elpress verktøy og forbindelser utgjør sammen et kontaktpressingssystem der presseresultatene fortløpende kontrolleres mot krav i etablerte standarder som IEC 60352-2, SEN 245010, DIN 46429, BS EN 61238-1 m.fl. Mange av håndtakene har symmetriske presseposisjoner som gjør det mulig å jobbe fra begge sider - noe som er viktig for venstrehendte. Tengene i Miniforce-, D- og 50-seriene er laget av svært høyverdig herdet stål som svartoksideres og lasermerkes.
Hvorfor sertifisering?
Sertifikatet som følger med tangen, har flere funksjoner:
• pressverktøy innføres ofte umiddelbart ved anskaffelse i et kvalitetsstyringssystem. Da skal selvsagt verktøyet status ved ankaffelsen være det første som står angitt, før man deretter følger regelmessige kontroller der ev. endringer kan oppdages og korrigeres.
• sertifikatet viser at hvert enkelt verktøy tilfredsstiller kravene i verktøyets grunnspesifikasjoner.
• sertifikatet angir hva som er de viktigste egenskapene, som skal følges opp.
Elpress’ serviceavdeling gir mulighet til fortsatt oppfølging av kvaliteten på verktøyene.
Sertifisering av pressverktøy
Når det gjelder kvalitetssikring av verktøyene, sertifiserer vi allerede ved produksjonen av pressverktøyene, både handverktøyene av type Gxx og Pxx, dvs. Miniforce-tengene.

Sertifikat som følger med verktøyet.
Hva er det vi sertifiserer?
Hva er det vi sertifiserer?
Sertifisering av pressverktøyet betyr at hvert enkelt verktøy ved sluttmontering og kontroll dokumenteres med tanke på:
• håndtaksforspenning, som er kraften som kreves for at sperren som hindrer at en pressing avbrytes, ikke skal utløse for tidlig.
• pressuttakshøyder, dvs. de største høydemålene som kan måles i hvert uttak med bakkene presset sammen.

Certificate that accompanies the tool.
Få sertifikatet ditt.

Elpress ergonomisk Miniforce-tang.
• Materiale: Cu 99,95 %, fortinnet Cu/Sn, CSA-godkjente.
• Isolasjon av polypropen, fargekode W.














































• Materiale: Cu 99,95 %, fortinnet Cu/Sn, CSA-godkjente.
• Isolasjon av polypropen, fargekode T.














































s = avisoleringslengde Vi kan også tilby endehylser med andre fargekoder og arealer over 50 mm².
• Materiale: Cu 99,95 %, fortinnet Cu/Sn. CSA-godkjente. • Isolasjon av polypropen, mål og fargekode iht. DIN46228 (se tabell).













































s = avisoleringslengde Vi kan også tilby endehylser med andre fargekoder og arealer over 50 mm².
• Materiale: Cu 99,95 %, fortinnet Cu/Sn, mål iht. DIN 46228 (se tabell).
AWG


• Materiale: Cu 99,95 %, fortinnet Cu/Sn. CSA-godkjente. • Isolasjon av polypropen, fargekode iht. DIN 46228.

















2

2 x 6 2x10 A6-18ET2

x 10 2x8
s = avisoleringslengde Bruk verktøyuttak som ligger nærmest totalarealet i hylsen.


• Materiale: Cu 99,95 %, fortinnet Cu/Sn. CSA-godkjente. • Isolasjon av polypropen, fargekode type T.

















2 x 10 2x8 A10-14ETT2
s = avisoleringslengde Bruk verktøyuttak som ligger nærmest totalarealet i hylsen.


• Materiale: Cu 99,95 %, fortinnet Cu/Sn. CSA-godkjente. • Isolasjon av polypropen, fargekode type W.















2 x 6 2x10 A6-14ETW2

2 x 6 2x10 A6-18ETW2

2 x 10 2x8 A10-14ETW2
s = avisoleringslengde Bruk verktøyuttak som ligger nærmest totalarealet i hylsen.

RPL5548 er en komplett sortimentsboks for elektrikere som ønsker orden og system. En systemløsning for oppbevaring av verktøy og endehylser med høy kvalitet som brukes i det daglige arbeidet.
Egenskaper:
• praktisk og sikkert utformet for å kunne stables og har uttakbare innsatser, perfekt for enkel påfylling av forbindelser.
• Boksen inneholder 1550 endehylser 0,14-10 mm², pressverktøyet PEB0110T samt avisoleringsverktøyet CT10.

RPL1800 er en profesjonell og komplett sortimentboks for elektrikere som ønsker orden på sakene. En systemløsning for oppbevaring av verktøy og endehylser som brukes i det daglige arbeidet.
Egenskaper:
• praktisk og sikkert utformet for å kunne stables og har uttakbare innsatser, perfekt for enkel påfylling av forbindelser.
• Sortimentboks for profesjonell bruk som inneholder 1800 isolerte endehylser, avisolerings- og klippeverktøyet SCT001 og presseverktøyet PEB0116H/ PEB0116S.
mm² AWG Navn El-nummer Nettovekt (kg) Lengde mm Bredde Høyde
0,5-16 20-10 RPL1800-PEB0116H 2011037 1,64 261 338 57 0,5-16 20-10 RPL1800-PEB0116S 2011036 1,64 261 338 57

Elpress sortimentsbokser for profesjonell bruk.
Egenskaper:
• laget av polypropylenplast, innsats av styrenplast
• 11 rom
• 800 isolerte endehylser 0,5-16 mm² type ET, fargekode W
• avisoleringstang SCT001

Elpress opphengsbare sortimentsboks.
Egenskaper:
• laget av plast
• 5 rom
• 100 isolerte endehylser 4-16 mm² type ET, fargekode W

Elpress opphengsbare sortimentsboks.
Egenskaper:
• laget av plast
• 5 rom
• 400 isolerte endehylser 0,5-2,5 mm² type ET, fargekode W
mm² AWG Navn
Egenskaper:
• liten og kompakt, optimal på trange steder
• skrallefunksjon som ikke løser ut før pressingen er ferdig
• velbalansert slik at verktøyet ikke glir ut av hånden
• høyfriksjonsgrep gjør at du kan bruke verktøyet med et bord som støtte
• tilpasset hull for tilkobling av sikkerhetsline
• ergonomisk tilpassede håndtak laget i gripevennlig materiale
• lav håndtakskraft kreves ved pressing av større arealer
• nødutløsning hvis presseprosessen må avbrytes
• testet med Elpress forbindelser
• leveres med sertifikat for enkel kvalitetsoppfølging

Pressgeometrier
Testet og sertifisert mekanisk Miniforce håndtang for pressing av endehylser 0,14-16 mm² med firkantpressing.
mm² AWG Navn El-nummer Pressgeometri Nettovekt (kg) Lengde mm Bredde

Pressgeometrier

Pressgeometrier
Testet og sertifisert mekanisk Miniforce håndtang for pressing av endehylser 0,14-16 mm² med sekskantpressing.
mm² AWG Navn El-nummer Pressgeometri Nettovekt (kg) Lengde mm Bredde
0,14-16,0 26-6 PEB0116H 2019591 Hexagonal 0,379 176 62
Testet og sertifisert mekanisk Miniforce håndtang for pressing av endehylser 0,14-10 mm².
Spesielle egenskaper:
• Roterbar bakke (PEB0110T)
• Front- og sidemating
mm² AWG Navn El-nummer Pressgeometri Nettovekt (kg) Lengde mm Bredde Høyde Note
0,14-10 26-8 PEB0110T 2000154 Trapezoid 0,385 180 65 Presser endhylser lengde ≤ 10mm
0,14-10 26-8 PEB0110T18 2070616 Trapezoid 180 25 65 Presser endhylser lengde ≤ 18 mm

Pressgeometrier
Egenskaper:
• skrallefunksjon som ikke løser ut før pressingen er ferdig
• nødutløsning, hvis presseprosessen må avbrytes
• symmetriske og tydelig merkede pressinnstillinger
• justerbar ved endringer etter lang tids bruk
• testet med Elpress forbindelser
• unik mekanisme som reduserer maks. håndtakskraft fra 450 N helt ned til 250 N (modell C)
• ergonomisk håndtak som passer alle brukere
• maksimerer kvaliteten på arbeidet
• reduserer risikoen for arbeidsskader
• lett og smidig design uten å gi avkall på holdfastheten
• modell C har ekstra lange håndtak som lar deg bruke begge hendene
• klarer minst 80 000 pressinger
• leveres med sertifikat for enkel kvalitetsoppfølging
Testet og sertifisert mekanisk Miniforce håndtang for pressing av isolerte forbindelser 0,5-2,5 mm² samt isolerte og uisolerte endehylser 0,25-4 mm².
mm² AWG Navn
0,5-2,5 / 0,25-4 20-14 / 22-12
El-nummer Pressgeometri Nettovekt (kg) Lengde mm Bredde
GSEA0340C 2011162 Oval, Trapezoid 0,613 256 80
Miniforce-verktøy

Pressgeometrier

Pressgeometrier
Egenskaper for EEB0160 og GEB4010C-TWIN:
• skrallefunksjon som ikke løser ut før pressingen er ferdig
• nødutløsning hvis presseprosessen må avbrytes
• tydelig merkede pressinnstillinger
• justerbar ved endringer etter lang tids bruk
• testet med Elpress forbindelser
• ergonomisk håndtak som passer alle brukere
• maksimerer kvaliteten på arbeidet
• reduserer risikoen for arbeidsskader
• lett og smidig design uten å gi avkall på holdfastheten
• modell C har ekstra lange håndtak som lar deg bruke begge hendene
• klarer minst 80 000 pressinger
• leveres med sertifikat for enkel kvalitetsoppfølging
Testet og sertifisert mekanisk Miniforce håndtang for pressing av isolerte TWIN-endehylser 2 x 4-2 x 10 mm².
mm² AWG Navn El-nummer Pressgeometri Nettovekt (kg) Lengde mm Bredde 4-10 12-8 GEB4010C-TWIN 2011170 Trapezoid
Testet og sertifisert mekanisk håndtang for pressing av endehylser 0,5-6 mm² og isolerte TWIN-endehylser 2 x 0,5-2 x 4 mm².
Spesielle egenskaper:
• en pressinnstilling som stiller seg inn automatisk
• frontmatet
• klarer presslängder opptil 17 mm
mm² AWG Navn El-nummer Pressgeometri Nettovekt (kg) Lengde mm Bredde 0,5-6 20-10 PZD3 2017340 Rectangle 0,472 192 66
Egenskaper:
• skrallefunksjon som ikke løser ut før pressingen er ferdig
• nødutløsning hvis presseprosessen må avbrytes
• tydelig merkede pressinnstillinger
• justerbar ved endringer etter lang tids bruk
• testet med Elpress forbindelser
• ergonomisk håndtak som passer alle brukere
• maksimerer kvaliteten på arbeidet
• reduserer risikoen for arbeidsskader
• lett og smidig design uten å gi avkall på holdfastheten
• modell C har ekstra lange håndtak som lar deg bruke begge hendene
• klarer minst 80 000 pressinger
• leveres med sertifikat for enkel kvalitetsoppfølging

Pressgeometrier
Testet og sertifisert mekanisk Miniforce håndtang for pressing av endehylser 4-10 mm².
mm² AWG Navn El-nummer Pressgeometri Nettovekt

Pressgeometrier
Testede og sertifiserte mekaniske Miniforce håndtenger for pressing av endehylser 10-25 mm².
mm² AWG Navn El-nummer Pressgeometri Nettovekt (kg) Lengde mm Bredde 10-25 8-4
10-25 8-4
Testede og sertifiserte mekaniske Miniforce håndtenger for pressing av endehylser 35-50 mm².

Pressgeometrier
Batteridrevet pressverktøy for isolerte forbindelser 0,5-6 mm², uisolerte forbindelser 0,25-10 mm² og endehylser 0,5-50 mm²
Egenskaper:
• Li-ion-batteridrift (10,8 V og 2 Ah), ladetid ca. 40 min
• svært god tilgjengelighet og ergonomi
• verktøy for service og installasjon
• rask presseprosess 2-4 sek
• ca. 230 pressinger/batterilading
• bakker til verktøyet selges separat


Elpress miniverktøy i slanket design med et høytytende Li-ion-batteri som effektiviserer arbeidet gjennom økt batterikapasitet.
Presskraft maks. 13 kN. 1 stk. Li-ion-batteri og lader er inkludert.
Egenskaper:
• enhåndsgrep for enkel styring av alle verktøyfunksjoner
• kraftig presshode for lang levetid
• optimal pressing takket være parallellgående bakker
• brukervennlig takket være lav vekt
• høytytende 10,8 V Li-ion-batteri - med indikering av ladestatus
• åpent hode, roterbart
• det ergonomiske 2-komponenthuset med gripevennlig beskyttelse gir enkel og komfortabel bruk med en hånd
• automatisk retur av bakkene når pressingen er fullført
mm² AWG Navn El-nummer Nettovekt (kg) Lengde mm Bredde Høyde Note
0,25-50 24-1/0 PVL130P 2019594 1,5 330 85 60 Lader: 230VAC
0,25-50 24-1/0 PVL130P-WOBC 0,9 330 85 60 uten batteri/ lader

PVL130S - Elpress MINI, leveres med bakkepar SA0760.
Elpress miniverktøy med intuitiv PowerSense-funksjon kombinerer fordelene med manuelle pressverktøy og fordelene med batteridrevne hydrauliske pressverktøy. Presskraft maks. 15 kN. 1 stk. Li-ion-batteri og lader er inkludert.
Egenskaper:
• enhåndsgrep for enkel styring av alle verktøyfunksjoner
• elektronisk styring med skrallefunksjon og overvåking for fullstendig lukking av kjevene
• sikkerhetsøye brukes som fallsikring ved bruk utendørs
• motorvern garanterer sikkerheten ved overbelastning
• det ergonomiske 2-komponenthuset med gripevennlig beskyttelse gir enkel og komfortabel bruk med en hånd
• svært lav vekt og raskt presseforløp for maksimal effektivitet
• kraftig drivteknikk gir enkle pressinger
• høytytende 10,8 V Li-ion-batteri - med indikering av ladestatus
• LED-arbeidsbelysning
• Bakkepar SA0760 leveres med verktøyet
mm² AWG Navn El-nummer Nettovekt (kg) Lengde mm Bredde mm Høyde Note
0,25-50 24-1/0 PVL130S 2019593 1,5
250 Lader: 230VAC 0,25-50 24-1/0 PVL130S-WOBC
uten batteri/ lader

mm² AWG Navn
El-nummer Pressgeometri Nettovekt (kg) Applikasjon
0,5-6 20-10 SA0760 2017025 Oval 0,05 Isolerte forbindelser
0,25-2,5 22-14 KB0325 Tab 0,039 Uisolerte forbindelser 4-10 12-8 WB4099 2017026 W 0,05 Uisolerte forbindelser
0,5-6 20-10 RB0560 2017027 Roll 0,05 Uisolerte forbindelser
0,5-6 20-10 EB0560 Trapezoid 0,057 Endehylser 4-10 12-8 EB4010 2017028 Trapezoid 0,05 Endehylser 10-25 6-4 EB1025 2017035 Trapezoid 0,05 Endehylser 35-50 2-0 EB3550 2017036 Trapezoid 0,05 Endehylser


Mobile, kun ramme.

Elpress Mobile + bakkene OAA0525 og OEB0210.

Elpress Mobile + bakkene OMP45 og OCC1113.
Profesjonelt kontaktpressingsverktøy med utskiftbare bakker for installatøren eller serviceteknikeren.
Egenskaper:
• pålitelig, sikkert, økonomisk og ergonomisk verktøy
• parallellgående pressebevegelse med 10 kN pressekraft, testet for 20 000 krympinger
• skift pressbakker raskt og enkelt med et håndgrep
• pressbakkene holdes sammen parvis i en enhet som oppbevares i tilpasset holder
• stort utvalg av bakker gir deg mulighet til å bruke en verktøyramme til 19 ulike krympeapplikasjoner!
Mobile håndtang (kun ramme). Bakker suppleres.
Mobile håndtang med to utskiftbare bakker:
• Bakke OAA0525 for pressing av isolerte forbindelser 0,5-2,5 mm².
• Bakke OEB0210 for pressing av endehylser 0,25-10 mm².
• Tangen leveres med tilhørende bakker i blisterpakning.
Mobile håndtang med to utskiftbare bakker:
• OMP45 for pressing av modulærplugg RJ45.
• OCC1113 for pressing av koaksialkontakter RG58, RG59, RG62 og RG71.
• Tangen leveres med tilhørende bakker i blisterpakning. Navn

Boks for Mobile-verktøy med plass til verktøyet samt 5-6 tilhørende bakker. Verktøy og bakker bestilles separat.
Alle bakker har samme enkle og hurtige indsætning i værktøjsrammen. Bakkerne holdes parvis sammen og leveres i en kassette, der kan bygges sammen med andre kassetter.







OAA0160
Isolerede forbindelser
0,1-0,5 & 4-6 mm².
El-nr.
2997 202 553
OPB0140
Power konnekter
0,1-4 mm².
El-nr.
2997 202 676
OWB4099
Uisolerede forbindelser
4-10 mm².
El-nr.
2997 202 618
OEB0210
Terminalrør
0,25-10 mm².
El-nr.
2997 202 540
ORB0110
Rulleforbindelser
0,1-1,0 mm².
El-nr.
2997 202 692
OFO5432
ST, SC, SMA, SMB, SFR fiber optik.
El-nr.
2997 202 634






OAA0525
Isolerede forbindelser
0,5-2,5 mm².
El-nr:
2997 202 566
OPB6099
Power konnekter
6-10 mm².
El-nr.
2997 202 689
OKB0725
Uisolerede forbindelser
0,75-2,5 mm².
El-nr.
2997 202 595
OEB1625
Terminalrør 16-25 mm².
El-nr.
2997 202 702
ORB0560
Rulleforbindelser
0,5-6 mm². El-nr.
2997 202 663

OSW0360
Til pressemuffer med varmekrympisolering 0,3-0,75 og 4-6 mm².
EL-nr:
2997 202 427




OCC0908
RG174-179
BNC-TNC.
El-nr.
2997 202 621

OKB0560
Uisolerede forbindelser
0,5-6 mm².
EL-nr:
2997 202 647
OEB3550
Terminalrør 35-50 mm².
El-nr.
2997 202 715
OMP45
Modular stik R 45 8/8. El-nr.
2997 202 650

OSW0525
Til pressemuffer med varmekrympisolering 0,5-1,5 og 1,5-2,5 mm².
El-nr.
2997 202 430



OCC1113
RG58-59-62-71
BNC-TNC.
El-nr.
2997 202 582

OMS4
Til rullepresning af kontakter med stift (/J 4 mm, 2,5-6,0 mm².
El-nr:
2997 202 443

OMSL Til firkantspresning af kontakter 2,5-6,0 mm².
El-nr:
2997 202 469
OMP11
Modular stik R 11
6/6, 6/4, 6/2.
El-nr.
2997 202 579
OCC4755
CATV, RG6 og
59 BNC-TNC.
El-nr.
2997 202 605


System Elpress
System Elpress består av forbindelser og verktøy som er tilpasset og testet sammen for gi en ensartet forbindelse. Dette for at du som bruker skal føle deg trygg når du bruker våre systemer og for at du skal oppnå en sikker forbindelse ved riktig bruk av produktene.
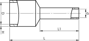
Uisolerte forbindelser
Elpress skjøtehylser, ring-, rør-, gaffel- og stiftkabelsko er laget av kvalitetskobber 99,95 %. Flatstifthylsene og rundstifthylsene er laget av messing. Alle forbindelser er elektrolyttfortinnet for maksimal korrosjonsbeskyttelse.
Kabelsko laget av kobberbånd har hardloddet hals som mykglødes, noe som betyr at den kan kontaktpresses i en hvilken som helst retning.

Eksempler på kontaktpressinger med Elpress uisolerte kabelsko.
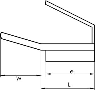
Merking av uisolerte forbindelser
Elpress uisolerte forbindelser er merket med logo, areal og ev. skruediameter for å forenkle arbeidet og kontrollmuligheten.
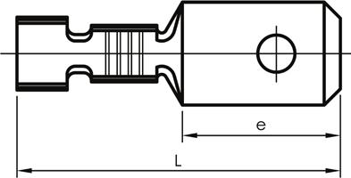
Kat.nr. B1532R (G, HO, FLS osv.)
B = uisolert
15 = Areal (1,5 mm²)
32 = Karakteristisk mål (hull 3,2 mm)
G = gaffelkabelsko
H = flatstift
HN = flatstift med avgrening
HA = rundstift
HO = rundstifthylse
R = ringkabelsko
SR = stiftkabelsko
FLS = flatstifthylse rullet modell
FLSB = flatstifthylse 90 rullet modell
FLSH = flatstifthylse m/hann rullet modell
FLSN = flatstifthylse m/avgrening rullet
modell
FLSV = flatstifthylse vinklet rullet modell
For mutter og skrue, av blankgalvanisert type med holdfasthetsklasse 8.8, som brukes for tilkobling av kabelsko med Cuog Al-plate, gjelder følgende:
• Bruk alltid momentnøkkel for å være sikker på at riktig tiltrekkingsmoment oppnås. Sørg for at den kalibreres med jevne mellomrom iht. leverandørens anvisninger.
• Bruk anbefalte momenter iht. skrueprodusentens forskrifter.
• Bruk alltid en hard flatskive for å redusere friksjonen mot anleggsflaten og hullkanttrykket, hardhet min. HB200.
• Monter iht. bildet.

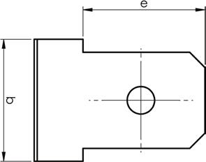
IEC - International Electrical Commission - gir ut internasjonalt gangbare standarder som, selv om de ikke er direkte bindende, ofte har stor gjennomslagskraft og brukes som underlag i internasjonale leveranser. I en teknisk rapport, IEC 61238-2, angis følgende anbefalinger når det gjelder skruestørrelser for tilkobling av kabelsko med Cu- og Al-plate, forutsatt at montering skjer med skive og med riktig tiltrekkingsmoment.

Lederareal, mm² Skrue 10 M6 16-50 M8
70-95 M10
120-300 M12
400-500 M16
KR/KS, KRF/KSF, KRFS, KRFN, KRT/KST er UL godkjente iht. fil nr. E205350. Cu-forbindelser av typen KRF/KSF er for fåtrådet og fleksibel kobberkabel, klasse 2 og 5 iht. IEC 60228 og har et arbeidsområde på 1-500 mm².

Mekaniske tenger
Når Elpress utvikler mekaniske presstenger, streber vi etter beste kvalitet og ergonomi i selve tangen, og de beste egenskapene hos den pressede forbindelsen. Tengene har et innebygd skrallesystem (ikke hobbytengene) som sikrer at hele presseprosessen fullføres - en forutsetning for profesjonelt og kvalitetssikret arbeid.

Elpress Mobile, profesjonelt verktøy med utskiftbare bakker for installatøren eller serviceteknikeren.
Miniforce-verktøy
Med de unike Miniforce-verktøyene er det etablert et nytt nivå når det gjelder ergonomisk tilpasning til brukeren og lave kraftbehov. Dette har gitt en reduksjon av håndtakskreftene med opptil 45 % og er resultatet av en avansert utviklingsprosess der man har fokusert på beste ergonomi og å redusere farene for arbeidsskader.

Miniforce type C har lengre håndtak for å forenkle tohåndsgrep, som ofte er en enkel og naturlig måte å redusere belastninger på. Elpress verktøy og forbindelser utgjør sammen et kontaktpressingssystem der presseresultatene fortløpende kontrolleres mot krav i etablerte standarder som IEC 60352-2, SEN 245010, DIN 46429, BS EN 61238-1 m.fl. Mange av håndtakene har symmetriske presseposisjoner som gjør det mulig å jobbe fra begge sider - noe som er viktig for venstrehendte. Tengene i Miniforce-, D- og 50-seriene er laget av svært høyverdig herdet stål som svartoksideres og lasermerkes.
Hvorfor sertifisering?
Sertifikatet som følger med tangen, har flere funksjoner:
• pressverktøy innføres ofte umiddelbart ved anskaffelse i et kvalitetsstyringssystem. Da skal selvsagt verktøyet status ved ankaffelsen være det første som står angitt, før man deretter følger regelmessige kontroller der ev. endringer kan oppdages og korrigeres.
• sertifikatet viser at hvert enkelt verktøy tilfredsstiller kravene i verktøyets grunnspesifikasjoner.
• sertifikatet angir hva som er de viktigste egenskapene, som skal følges opp.
Elpress’ serviceavdeling gir mulighet til fortsatt oppfølging av kvaliteten på verktøyene.
Sertifisering av pressverktøy
Når det gjelder kvalitetssikring av verktøyene, sertifiserer vi allerede ved produksjonen av pressverktøyene, både handverktøyene av type Gxx og Pxx, dvs. Miniforce-tengene.

Sertifikat som følger med verktøyet.
Hva er det vi sertifiserer?
Hva er det vi sertifiserer?
Sertifisering av pressverktøyet betyr at hvert enkelt verktøy ved sluttmontering og kontroll dokumenteres med tanke på:
• håndtaksforspenning, som er kraften som kreves for at sperren som hindrer at en pressing avbrytes, ikke skal utløse for tidlig.
• pressuttakshøyder, dvs. de største høytemålene som kan måles i hvert uttak med bakkene presset sammen.

Certificate that accompanies the tool.
Få sertifikatet ditt.

Elpress ergonomisk Miniforce-tang.

• Materiale: Cu 99,95 %, fortinnet, hardloddet hals. mm² AWG Navn


0,25-0,75
0,75-1,5 20-16 B1532R 2017063
0,75-1,5 20-16 B1543R 2017064
0,75-1,5 20-16 B1553R 2017065
0,75-1,5 20-16 B1565R 2017066
0,75-1,5 20-16 B1585R 2017067
0,75-1,5 20-16 B1510R
4-6
4-6 12-10 B4665R
4-6
t = platens tykkelse, s = avisoleringslengde

• Materiale: Cu 99,95 %, fortinnet Cu/Sn.
• For mangetrådet (klasse 5) og fåtrådet (klasse 2) Cu-leder.
• UL-godkjente (1,5-10 mm²).
Eksempel på platemerking KR: 10 10
10 = mm² 10 = Platehull for M10


0,75 (22)-18 KR0,75-3 2016210 M3
0,75 (22)-18 KR0,75-4 2016212 M4
1,5 (18)-16 KR1,5-3 2016220 M3
1,5 (18)-16 KR1,5-4 2016224 M4 6,5
1,5 (18)-16 KR1,5-5 2016228 M5 7,5 1,8 4,8 4,7 18
DKB0760
2,5 (16)-14 KR2,5-3 2016240 M3 7,5 2,3 3,5 4,1 17 1,3 7 DKB0325, DKB0760
2,5 (16)-14 KR2,5-4 2016244 M4 7,5 2,3 4,2 4,1 18 1,3 7 DKB0325, DKB0760
2,5 (16)-14 KR2,5-5 2016248 M5 8,5 2,3 4,8 4,8 19 1,1 7 DKB0325, DKB0760
2,5 (16)-14 KR2,5-6 2016252 M6 8,5 2,4 5,1 5,8 19 1,1 7 DKB0325, DKB0760
4 12 KR4-3 M3 8,5 3 4,2 5,8 21 1,5 8,5 GWB4099, ES2258
4 12 KR4-4 2016270 M4 8,5 3 4,2 5,8 22 1,5
4 12 KR4-5 2016274 M5 9 3 4,8 5,2 22 1,5 8,5 GWB4099, ES2258
4 12 KR4-6 2016278 M6 9,9 3 5 7 23 1,3 8,5 GWB4099, ES2258
6 10 KR6-4
t = platens tykkelse, s = avisoleringslengde

• Materiale: Cu 99,95 %, fortinnet Cu/Sn.


0,25-0,75 24-20 B0832G
0,75-1,5 20-16 B1532G 2017083
0,75-1,5 20-16 B1537GS 2017084
0,75-1,5 20-16 B1543G 2017085
0,75-1,5 20-16 B1553G 2017086 M5
1,5-2,5 16-14 B2532G 2017087 M3
1,5-2,5 16-14 B2543G 2017088
1,5-2,5 16-14
4-6 12-10 B4643G
t = platens tykkelse, s = avisoleringslengde
• Materiale: Cu 99,95 %, fortinnet Cu/Sn.

mm² AWG Navn El-nummer W
0,25-0,75 24-20 B0819SR 2017092
0,75-1,5 20-16 B1519SR 2017093
1,5-2,5 16-14 B2519SR 2017094
4-6 12-10 B4630SR 2017095
s = avisoleringslengde
DKB0325, DKB0760


Halstype Verktøy Stk./ pakke
DKB0325
DKB0325, DKB0760
DKB0325, DKB0760
DKB0760
• Materiale: Cu 99,95 %, fortinnet Cu/Sn.
• UL-godkjente (ikke KS0,75) mm² AWG Navn


4 12 KS4 2015022
s = avisoleringslengde

• Materiale: messing, fortinnet Cu/Sn.


0,5-1 20-18
0,75-1,5 20-16
1,5-2,5 16-14
1,5-2,5 16-14
1,5-2,5 16-14
4-6 12-10
t = metalltykkelse, s = avisoleringslengde

• Materiale: messing, fortinnet Cu/Sn. mm² AWG Navn
12-10
t = metalltykkelse, s = avisoleringslengde


• Materiale: messing, fortinnet Cu/Sn.



mm² AWG Navn El-nummer e mm L t s For flatstift Verktøy Stk./ pakke
0,5-1,5 20-16
t = metalltykkelse, s = avisoleringslengde
• Materiale: messing, fortinnet Cu/Sn.

mm²
t = metalltykkelse, s = avisoleringslengde

• Materiale: messing, fortinnet Cu/Sn.


mm² AWG Navn W mm e L t s For flatstift Verktøy Stk./ pakke
0,5-1
t = metalltykkelse, s = avisoleringslengde

• Materiale: messing, fortinnet Cu/Sn.

mm² AWG Navn El-nummer e
0,5-1
s = avisoleringslengde

L
• Materiale: messing, fortinnet Cu/Sn.

mm² AWG Navn
0,5-1,0

For flatstift Verktøy Stk./ pakke
s = avisoleringslengde
• Materiale: messing, fortinnet Cu/Sn.

mm² AWG Navn
0,2-0,5
0,2-0,5 24-20 B0502HO
0,5-1,5
s = avisoleringslengde




• Materiale: messing, fortinnet Cu/Sn.



• Materiale: messing, fortinnet Cu/Sn. AWG Navn


• Materiale: messing, fortinnet Cu/Sn. Navn W


• Materiale: messing, fortinnet Cu/Sn.


Ø = Hulldiameter
• Materiale: messing, fortinnet Cu/Sn.



Ø = Hulldiameter
• Materiale: messing, fortinnet Cu/Sn.



Ø = Hulldiameter

• Materiale: messing, fortinnet Cu/Sn


Ø = Hulldiameter
• Materiale: messing, fortinnet Cu/Sn.


• Materiale: messing, fortinnet Cu/Sn.



• Materiale: messing, fortinnet Cu/Sn.



• Brukes sammen med rette flatstifttilkoblinger.


• Brukes sammen med rette flatstifttilkoblinger.

L


• Brukes sammen med rette flatstifttilkoblinger. Navn W


• Brukes sammen med rette flatstifttilkoblinger.

Navn W mm L For flatstift

°C (Min. - Maks.)

• Brukes sammen med rette flatstifttilkoblinger. Navn W mm L For flatstift
ø


• Brukes sammen med vinklede flatstifttilkoblinger 90°. Navn


• Brukes sammen med flatstifthylser og flatstift 1,5-6 mm² med avgrening.
• Materiale nylon transparent.
• Maks. spenning 250 V.

Navn Pol
408-2-M 2
408-4-M 4
408-6-M 6
408-8-M 8

pakke Note
B2507FLSN, B4607FLSN
B2507FLSN, B4607FLSN
B2507FLSN, B4607FLSN
B2507FLSN, B4607FLSN
408-2-F 2 20 12,7
408-4-F 4
408-6-F 6
408-8-F 8
B2507HN, B4607HN
B2507HN, B4607HN
B2507HN, B4607HN
B2507HN, B4607HN
• Brukes sammen med rundstifthylser og rundstift 0,2-1,5 mm².
• Materiale polyamid transparent.
• Maks. spenning 250 V.
• Maks. strømstyrke 20 A.
• Temperaturområde -20 °C til +105 °C.
• Testet mot gjennomslag i 1 min med 1500 VAC.


MC02F 2 13,6
MC02M 2 13,5
MC03F 3 19,6 7,2
MC03M 3 19,6 7,1
MC04F 4 13,5 13,5
MC04M 4 13,5 13,5
MC06F 6 19,6 13,4
MC06M 6 19,6 13,4
MC09F 9 19,7 19,7
MC09M 9 19,7 19,7 27
MC12F 12 26 19,6 27
MC15F 15 32 19,6 27
MC15M 15 32 19,9

Note
B0502HA, B1502HA
B0502HO, B1502HO
B0502HA, B1502HA
B0502HO, B1502HO
B0502HA, B1502HA
B0502HO, B1502HO
B0502HA, B1502HA
B0502HO, B1502HO
B0502HA, B1502HA
B0502HO, B1502HO
B0502HA, B1502HA
B0502HA, B1502HA
B0502HO, B1502HO

• Brukes sammen med flatstifthylser.
• Materiale PVC transparent.
• Maks. spenning 400 V.
• Maks. strømstyrke 18 A.




Sortimentsboks beregnet for elinstallatører ute i felt og for serviceverksteder.
Egenskaper:
• boks av LDPE/TP
• 19 rom (+ 10 tomme rom)
• 700 uisolerte kabelsko og skjøtehylser 0,75-10 mm²
• pressverktøy DKB0325
• pressverktøy GWB4099 Miniforce
• avisoleringstang SCT001
Hobbyverktøy for isolerte og uisolerte forbindelser 0,5-6 mm² samt kapping og avisolering
Egenskaper:
• laget av høyverdig stål med halvmyke håndtak
• pressinnstillingene er tydelig merket
• tengene har ikke skrallefunksjon
• klipper t.o.m. 6 mm²
• avisolerer t.o.m. 6 mm²
• klipper skruer M2,5-M5

Pressgeometrier
Spesielle egenskaper:
• kontaktpresser isolerte forbindelser 0,5-6 mm² og avgreningspresser uisolerte forbindelser 1,5-6 mm²
• røde håndtak

Pressgeometrier
Spesielle egenskaper:
• kontaktpresser isolerte forbindelser 0,5-6 mm² og rullpresser uisolerte forbindelser 0,5-2,5 mm²
• gule håndtak

Pressgeometrier
Spesielle egenskaper:
• rullpresser uisolerte forbindelser 0,5-6 mm²
• grønne håndtak

Egenskaper:
• pressinnstillinger er tydelig merket
• justerbar ved endringer etter lang tids bruk
• testet med Elpress forbindelser mot krav iht. SEN og DIN
• skrallefunksjon som garanterer fullgod pressing
• nødutløsning hvis presseprosessen må avbrytes
• unik design som gjør verktøyet tynt og smidig
• minimal muskelstyrke kreves for fullgod pressing
• klarer minst 50 000 pressinger
• leveres med sertifikat for enkel kvalitetsoppfølging

Pressgeometrier
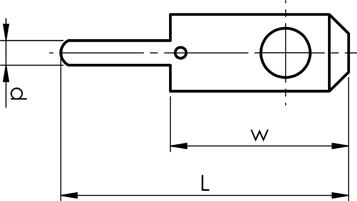
Presstang for rullpressing av kabelsko B1507FLSB8.
• Ikke målesertifikat
mm² AWG Navn
0,5-1,5 20-16

Pressgeometrier
Pressgeometri Nettovekt (kg) Lengde mm Bredde Høyde
Testet og sertifisert mekanisk håndtang for rullpressing av uisolerte flatstiftforbindelser, rundstift og rundstifthylser 0,15-1,5 mm². Til pressing av B1507FLS1, B1507FLSH brukes GRB0560.
mm² AWG Navn El-nummer Pressgeometri Nettovekt (kg) Lengde mm Bredde
0,15-1,5 26-16 DRB0115 2018205 Roll

Pressgeometrier

Testet og sertifisert mekanisk håndtang for avgreningspressing av Cu-forbindelser 0,25-2,5 mm².
mm² AWG Navn El-nummer Pressgeometri Nettovekt (kg) Lengde mm Bredde
0,25-2,5 24-14 DKB0325 2011015 Tab 0,444 192 66

Pressgeometrier
Testet og sertifisert mekanisk håndtang for avgreningspressing av Cu-forbindelser 0,75-6 mm².


Pressgeometrier

Egenskaper:
• skrallefunksjon som ikke løser ut før pressingen er ferdig
• nødutløsning hvis presseprosessen må avbrytes
• tydelig merkede pressinnstillinger
• justerbar ved endringer etter lang tids bruk
• testet med Elpress forbindelser
• unik mekanisme som reduserer maks. håndtakskraft fra 450 N helt ned til 250 N (modell C)
• ergonomisk håndtak som passer alle brukere
• maksimerer kvaliteten på arbeidet
• reduserer risikoen for arbeidsskader
• lett og smidig design uten å gi avkall på holdfastheten
• modell C har ekstra lange håndtak som lar deg bruke begge hendene
• klarer minst 80 000 pressinger
• leveres med sertifikat for enkel kvalitetsoppfølging
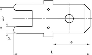
Testede og sertifiserte mekaniske Miniforce håndtenger for rullpressing av uisolerte forbindelser 0,5-6 mm². Tengene er av typen L, som er utstyrt med tre utskiftbare lokatorer for ulike typer kabelsko (se tabell).
Type LC har lange håndtak.
Spesielle egenskaper:
• leveres i praktisk plastboks
• lokator som holder fast kabelskoen i riktig posisjon under pressing og som gir deg en ”ekstra hånd”, noe som forenkler arbeidet f.eks. på trange steder
mm² AWG Navn
Holder Mærkning
A 1.
B1507FLS1
B1507FLSN 2. B2507FLS1
B2507FLSN 3. B4607FLSN
B4607FLS1
C 1. B1507H 2. B2507HN 3. B4607HN
E 1. B1505FLS (5 el 8) -1 2. B2505FLS (5 el 8) -1


Pressgeometrier
Testede og sertifiserte mekaniske Miniforce håndtenger for rullpressing av uisolerte forbindelser 0,5-6 mm².

Pressgeometrier
Testede og sertifiserte mekaniske Miniforce håndtenger for W-pressing av uisolerte ring-, gaffel- og stiftkabelsko samt rørkabelsko og skjøtehylser av typen KR og KS 4-10 mm². mm² AWG Navn El-nummer

Batteridrevet pressverktøy for isolerte forbindelser 0,5-6 mm², uisolerte forbindelser 0,25-10 mm² og endehylser 0,5-50 mm²
Egenskaper:
• Li-ion-batteridrift (10,8 V og 2 Ah), ladetid ca. 40 min
• svært god tilgjengelighet og ergonomi
• verktøy for service og installasjon
• rask presseprosess 2-4 sek
• ca. 230 pressinger/batterilading
• bakker til verktøyet selges separat


Elpress miniverktøy i slanket design med et høytytende Li-ion-batteri som effektiviserer arbeidet gjennom økt batterikapasitet.
Presskraft maks. 13 kN. 1 stk. Li-ion-batteri og lader er inkludert.
Egenskaper:
• enhåndsgrep for enkel styring av alle verktøyfunksjoner
• kraftig presshode for lang levetid
• optimal pressing takket være parallellgående bakker
• brukervennlig takket være lav vekt
• høytytende 10,8 V Li-ion-batteri - med indikering av ladestatus
• åpent hode, roterbart
• det ergonomiske 2-komponenthuset med gripevennlig beskyttelse gir enkel og komfortabel bruk med en hånd
• automatisk retur av bakkene når pressingen er fullført
mm² AWG Navn El-nummer Nettovekt (kg) Lengde mm Bredde Høyde Note
0,25-50 24-1/0 PVL130P 2019594 1,5 330 85 60 Lader: 230VAC
0,25-50 24-1/0 PVL130P-WOBC 0,9 330 85 60 uten batteri/ lader


PVL130S - Elpress MINI, leveres med bakkepar SA0760.
Elpress miniverktøy med intuitiv PowerSense-funksjon kombinerer fordelene med manuelle pressverktøy og fordelene med batteridrevne hydrauliske pressverktøy. Presskraft maks. 15 kN. 1 stk. Li-ion-batteri og lader er inkludert.
Egenskaper:
• enhåndsgrep for enkel styring av alle verktøyfunksjoner
• elektronisk styring med skrallefunksjon og overvåking for fullstendig lukking av kjevene
• sikkerhetsøye brukes som fallsikring ved bruk utendørs
• motorvern garanterer sikkerheten ved overbelastning
• det ergonomiske 2-komponenthuset med gripevennlig beskyttelse gir enkel og komfortabel bruk med en hånd
• svært lav vekt og raskt presseforløp for maksimal effektivitet
• kraftig drivteknikk gir enkle pressinger
• høytytende 10,8 V Li-ion-batteri - med indikering av ladestatus
• LED-arbeidsbelysning
• Bakkepar SA0760 leveres med verktøyet
mm² AWG Navn El-nummer Nettovekt (kg) Lengde mm Bredde mm Høyde Note
0,25-50 24-1/0 PVL130S 2019593 1,5
Lader: 230VAC 0,25-50 24-1/0
uten batteri/ lader

mm² AWG Navn
El-nummer Pressgeometri Nettovekt (kg) Applikasjon
0,5-6 20-10 SA0760 2017025 Oval 0,05 Isolerte forbindelser
0,25-2,5 22-14 KB0325 Tab 0,039 Uisolerte forbindelser 4-10 12-8 WB4099 2017026 W 0,05 Uisolerte forbindelser
0,5-6 20-10 RB0560 2017027 Roll 0,05 Uisolerte forbindelser
0,5-6 20-10 EB0560 Trapezoid 0,057 Endehylser 4-10 12-8 EB4010 2017028 Trapezoid 0,05 Endehylser 10-25 6-4 EB1025 2017035 Trapezoid 0,05 Endehylser 35-50 2-0 EB3550 2017036 Trapezoid 0,05 Endehylser


Profesjonelt kontaktpressingsverktøy med utskiftbare bakker for installatøren eller serviceteknikeren.
Egenskaper:
• pålitelig, sikkert, økonomisk og ergonomisk verktøy
• parallellgående pressebevegelse med 10 kN pressekraft, testet for 20 000 krympinger
• skift pressbakker raskt og enkelt med et håndgrep
• pressbakkene holdes sammen parvis i en enhet som oppbevares i tilpasset holder
• stort utvalg av bakker gir deg mulighet til å bruke en verktøyramme til 19 ulike krympeapplikasjoner!

Mobile håndtang (kun ramme). Bakker suppleres.

Mobile håndtang med to utskiftbare bakker:
• Bakke OAA0525 for pressing av isolerte forbindelser 0,5-2,5 mm².
• Bakke OEB0210 for pressing av endehylser 0,25-10 mm².
• Tangen leveres med tilhørende bakker i blisterpakning.
Navn El-nummer Pressgeometri Nettovekt (kg) Lengde mm Bredde MOBILE INSTALLATION 2011100 Square 0,695 234 64


Elpress Mobile + bakkene OMP45 og OCC1113.
Mobile håndtang med to utskiftbare bakker:
• OMP45 for pressing av modulærplugg RJ45.
• OCC1113 for pressing av koaksialkontakter RG58, RG59, RG62 og RG71.
• Tangen leveres med tilhørende bakker i blisterpakning.
Navn El-nummer Nettovekt (kg) Lengde mm Bredde
MOBILE DATA/COM 2011102 0,667 234 64

Elpress Mobile + bakkene OMS4, OMS3 og OMSL.

Avisoleringsverktøy LOKE.

Mobile håndtang med tre utskiftbare bakker samt avisoleringsverktøy LOKE for avisolering av solpanelkabel med ekstra tykk isolasjon:
• OMS4, rullpressing av kontakter med hylse Ø 4 mm, 2,5-6,0 mm².
• OMS3, firkantpressing av kontakter med hylse Ø 3 mm, 2,5-6,0 mm².
• OMSL, firkantpressing av kontakter, 2,5-6,0 mm².
Navn El-nummer Nettovekt (kg) Lengde mm Bredde
MOBILE SOLAR 2070535 0,772 234 64
Boks for Mobile-verktøy med plass til verktøyet samt 5-6 tilhørende bakker. Verktøy og bakker bestilles separat.
Navn El-nummer Nettovekt (kg) Lengde mm Bredde Høyde
MOBILE BOX 2011133 0,32 246 218 57

Alle bakker har samme enkle og hurtige indsætning i værktøjsrammen. Bakkerne holdes parvis sammen og leveres i en kassette, der kan bygges sammen med andre kassetter.






OAA0160
Isolerede forbindelser
0,1-0,5 & 4-6 mm².
El-nr.
2997 202 553
OPB0140
Power konnekter
0,1-4 mm².
El-nr.
2997 202 676
OWB4099
Uisolerede forbindelser
4-10 mm².
El-nr.
2997 202 618
OEB0210
Terminalrør
0,25-10 mm².
El-nr.
2997 202 540
ORB0110
Rulleforbindelser
0,1-1,0 mm².
El-nr.
2997 202 692
OFO5432
ST, SC, SMA, SMB, SFR fiber optik.
El-nr.
2997 202 634

OMS4
Til rullepresning af kontakter med stift (/J 4 mm, 2,5-6,0 mm².
El-nr:
2997 202 443







OAA0525
Isolerede forbindelser
0,5-2,5 mm².
El-nr:
2997 202 566
OPB6099
Power konnekter
6-10 mm².
El-nr.
2997 202 689
OKB0725
Uisolerede forbindelser
0,75-2,5 mm².
El-nr.
2997 202 595
OEB1625
Terminalrør 16-25 mm².
El-nr.
2997 202 702
ORB0560
Rulleforbindelser
0,5-6 mm². El-nr.
2997 202 663

OSW0360
Til pressemuffer med varmekrympisolering 0,3-0,75 og 4-6 mm².
EL-nr:
2997 202 427




OCC0908
RG174-179
BNC-TNC.
El-nr.
2997 202 621

OKB0560
Uisolerede forbindelser
0,5-6 mm².
EL-nr:
2997 202 647
OEB3550
Terminalrør 35-50 mm².
El-nr.
2997 202 715
OMP45
Modular stik R 45 8/8. El-nr.
2997 202 650

OSW0525
Til pressemuffer med varmekrympisolering 0,5-1,5 og 1,5-2,5 mm².
El-nr.
2997 202 430



OCC1113
RG58-59-62-71 BNC-TNC.
El-nr.
2997 202 582

OMSL
Til firkantspresning af kontakter 2,5-6,0 mm².
El-nr:
2997 202 469

OMP11
Modular stik R 11
6/6, 6/4, 6/2.
El-nr.
2997 202 579
OCC4755
CATV, RG6 og 59 BNC-TNC.
El-nr.
2997 202 605


System Elpress
System Elpress består av forbindelser og verktøy som er tilpasset og testet sammen for gi en ensartet forbindelse. Dette for at du som bruker skal føle deg trygg når du bruker våre systemer og for at du skal oppnå en sikker forbindelse ved riktig bruk av produktene. Ved å bruke Elpress’ Cu-forbindelseselementer sammen med et av Elpress’ pressystemer, får man en forbindelse som er testet iht. kravene i IEC 61238:1.

IEC, https://www.iec.ch/
Cu-forbindelser
Elpress’ kobberforbindelser er produsert av 99,95 % ren kobber. Vi produserer rørkabelsko av typen KR/KRF/KRD/KRT, skjøtehylser av typen KS/KSF/KSD/KST for fåtrådet leder, IEC 60228 klasse 2, og mangetrådet leder IEC 60228 klasse 5 samt C-hylser primært for avgrening av Cu-liner samt mange kundetilpassede produkter. Til mangetrådete og fåtrådete Cu-ledere brukes det kabelsko av typen KR/KRF og skjøtehylser av typen KS/KSF. Kabelsko av typen KRD/KRT og skjøtehylser av typen KSD/KST brukes normalt for fåtrådet Cu-leder f.o.m. 500 mm². Kabelsko av typen KR/KRF/KRD/ KST er beregnet for maks. 47 kV og brukes hovedsakelig i avslutninger for tilkobling til skinner og apparatuttak av kobber, mens skjøtehylser, type KS/KSF/KSD/KST, hovedsakelig brukes ved skjøting av kobberledere i kabelinstallasjon. De kan også brukes til rettskjøting av jordledninger. Med en avgreningshylse, type C, skjøter og avgrener man jordledninger, lynlederinstallasjoner o.l.
KR/KS, KRF/KSF, KRFS, KRFN, KRT/KST er UL godkjente iht. fil nr. E205350. Cu-forbindelser av typen KRF/KSF er for fåtrådet og fleksibel kobberkabel, klasse 2 og 5 iht. IEC 60228 og har et arbeidsområde på 1-500 mm².
Elpress KR/KS- og KRF/KSF, KRT/KSTforbindelser overholder DNVs regler for klassifisering av fartøy og Det Norske Veritas’ Offshore Standards. Forbindelsene er godkjente for installasjoner på fartøy og mobile offshore-enheter.
Normalt kreves en pressing opp t.o.m. 150 mm² og to eller tre pressinger for større arealer. Vær imidlertid klar over at det kan kreves et annet antall pressinger i andre tilfeller. Se tabeller for verktøybakker. Hvis det er mulig, skal pressinger plasseres ved siden av hverandre med et par mm avstand. Overlapping er imidlertid uunngåelig noen ganger.

Pressrekkefølge ved to pressinger.

Pressrekkefølge ved tre pressinger.
Merking av Cu-forbindelser
Elpress merkesystem for kobberforbindelser viser logo, kabelareal og typenummer for sekskantbakke. Dette systemet gir mulighet til å kontrollere at det ble brukt riktig verktøy under kontaktpressingen, fordi bakkenummeret automatisk preges inn under kontaktpressingen.

Merking rørkabelsko
25 (står på halsen)
Typenr. for sekskantbakke
(Elpress-logo) 150 12 F (står på platen)
150 = Cu-leder i mm²
12 = Hullstørrelse
F = KRF

Merking skjøtehylser
(Elpress-logo)
Typenr. for sekskantbakke
16 F (ev skjermlederareal og jordingssymbol)
16 = Cu-leder i mm²
F = KSF

Merking C-hylser (eksempel C70-95)
Arealmerking (side 1)
25-120 / 140-190
min. - maks. (mm² per leder) / min. - maks. (total mm² i hylsen)
Elpress-logo, bakkenummer (side 2)
BCx, "x" tilsvarer bakkenummer
Frittgående hull kabelskoplate iht. SS-ISO 273
Skruedimensjon
Hulldiameter (Ø mm)
M3 3,2
M4 4,3
M5 5,3
M6 6,4
M8 8,4
M10 10,5
M12 13
M16 17
M20 21
M24 26
For mutter og skrue, av blankgalvanisert type med holdfasthetsklasse 8.8, som brukes for tilkobling av kabelsko med Cuog Al-plate, gjelder følgende:
• Bruk alltid momentnøkkel for å være sikker på at riktig tiltrekkingsmoment oppnås. Sørg for at den kalibreres med jevne mellomrom iht. leverandørens anvisninger.
• Bruk anbefalte momenter iht. skrueprodusentens forskrifter.
• Bruk alltid en hard flatskive for å redusere friksjonen mot anleggsflaten og hullkanttrykket, hardhet min. HB200.
• Monter iht. bildet.


Kundetilpassede produkter
Et kundetilpasset produkt er en viktig del av arbeidet. Det er en spesiell utfordring å løse problemer for kunden og samtidig lage produktene med lønnsomhet. På denne måten øker vi også kunnskapen om kundenes behov. Blant de ovennevnte forbindelsene kan man nevne ulike modeller av T-skjøter der man kan koble til tre ledere av samme strørrelse ved hjelp av bare én forbindelse.
Disse brukes for eksempel under transformatorproduksjon. Andre forbindelser innen transformatorproduksjon er gjennomføringstapper og spesielle kabelsko for brytere. For å oppsummere kan man si at alle forbindelsene er laget slik at man på en enkel måte kan sikre forbindelser av høy kvalitet også i avanserte applikasjoner.
• Materiale: Cu 99,95 %, fortinnet Cu/Sn.
• For mangetrådet (klasse 5) og fåtrådet (klasse 2) Cu-leder.
• UL-godkjente (1,5-10 mm²).
Eksempel på platemerking KR: 10 10 10 = mm² 10 = Platehull for M10


0,75 (22)-18 KR0,75-3 2016210 M3
0,75 (22)-18 KR0,75-4 2016212 M4
1,5 (18)-16 KR1,5-3 2016220
1,5 (18)-16 KR1,5-4 2016224 M4
1,5 (18)-16 KR1,5-5 2016228 M5 7,5 1,8 4,8 4,7 18 0,85 7,5 DKB0325, DKB0760
2,5 (16)-14 KR2,5-3 2016240 M3 7,5 2,3 3,5 4,1 17 1,3 7 DKB0325, DKB0760
2,5 (16)-14 KR2,5-4 2016244 M4 7,5 2,3 4,2 4,1 18 1,3 7 DKB0325, DKB0760
2,5 (16)-14 KR2,5-5 2016248 M5 8,5 2,3 4,8 4,8 19 1,1 7 DKB0325, DKB0760
(16)-14
2016252 M6
4 12 KR4-3 M3 8,5 3 4,2 5,8
4 12
4 12
4
6 10
t = platens tykkelse, s = avisoleringslengde
• Materiale: Cu 99,95 %, fortinnet Cu/Sn.
• Inspeksjonshull.
• For fåtrådet (klasse 2) og mangetrådet (klasse 5) Cu-leder, for mangetrådet Cu-leder anbefales kontaktpressing med Dual-systemet.
• UL-godkjente (KRF16-500 mm²), DNV-godkjente (16-400 mm²).
Eksempel på merking KRF: 17 (halsen) Elpress-logo 70 10F (platen) 17 = Bakke nr. 70 = mm² 10 = platehull for M10 F = type KRF for fåtrådet og fleksibel leder.


t = platens tykkelse, s = avisoleringslengde
• Materiale: Cu 99,95 %, fortinnet Cu/Sn.
• Inspeksjonshull.
• For fåtrådet (klasse 2) og mangetrådet (klasse 5) Cu-leder, for mangetrådet Cu-leder anbefales kontaktpressing med Dual-systemet.
• UL-godkjente (35-400 mm²), DNV-godkjente (se note).

Eksempel på merking KRF: 17 (halsen) Elpress-logo 70 10F (platen) 17 = Bakke nr. 70 = mm² 10 = platehull for M10 F = type KRF for fåtrådet og fleksibel leder. mm²

50 1/0
70 2/0 KRF70-10X2-24-26 M10x2 25 13 11 17 25
95 4/0
4/0 KRF95-12X2-40 2016104
400 750
t = platens tykkelse, s = avisoleringslengde
• Materiale: Cu 99,95 %, fortinnet Cu/Sn.
•Inspeksjonshull.
• For fåtrådet (klasse 2) og mangetrådet (klasse 5) Cu-leder, for mangetrådet Cu-leder anbefales kontaktpressing med Dual-systemet.
•Lett å montere via kabelgjennomføring, muliggjør forhåndsmontering.
•Platens bredde er mindre eller like bred som halsen.
•UL-godkjente (95-300 mm² ), DNV-godkjente.
Eksempel på merking KRFS: 17 (halsen) Elpress-logo 70 10F (platen)17 = Bakke nr. 70 = mm² 10 = platehull for M10 F = type KRF for fåtrådet og fleksibel leder.


t = platens tykkelse, s = avisoleringslengde
• Materiale: Cu 99,95 %, fortinnet Cu/Sn.
• Inspeksjonshull.
• For fåtrådet (klasse 2) og mangetrådet (klasse 5) Cu-leder, for mangetrådet Cu-leder anbefales kontaktpressing med Dual-systemet.
• UL-godkjente (35-150 mm²). DNV-godkjente (16-150 mm²).
Eksempel på merking KRF: 17 (halsen) Elpress-logo 70 10F (platen) 17 = Bakke nr. 70 = mm² 10 = platehull for M10 F = type KRF for fåtrådet og fleksibel leder.


t = platens tykkelse, s = avisoleringslengde
• Materiale: Cu 99,95 %, fortinnet Cu/Sn.
• Inspeksjonshull.
• For fåtrådet (klasse 2) og mangetrådet (klasse 5) Cu-leder, for mangetrådet Cu-leder anbefales kontaktpressing med Dual-systemet.
• UL godkjente (35-150 mm²). DNV godkjente (16-150 mm²)
Eksempel på merking KRF: 17 (halsen) Elpress-logo 70 10F (platen) 17 = Bakke nr. 70 = mm² 10 = platehull for M10 F = type KRF for fåtrådet og fleksibel leder.



150
t = platens tykkelse, s = avisoleringslengde, SB = kort hals
• Materiale: Cu 99,95 %, fortinnet Cu/Sn.
• Med inspeksjonshull.
• UL-godkjente (10-500 mm²), DNV-godkjente (10-400 mm²).
• Rørkabelsko for fåtrådet (klasse 2) Cu-leder (iht. IEC 60228).
Eksempel på merking KRT: 16 (halsen) Elpress-logo 70 10 (platen)
16 = Bakke nr. 70 = mm² 10 = platehull for M10


500
t = platens tykkelse, s = avisoleringslengde, SB = kort hals
• Materiale: Cu 99,95 %, fortinnet Cu/Sn.
• Med inspeksjonshull.
• Rørkabelsko for fåtrådet (klasse 2).
Eksempel på merking KRD: 14 (halsen) Elpress-logo 70 10 (platen) 14 = Bakke nr. 70 = mm² 10 = platehull for M10


25 4
25 4
25 4
4
2
35 2
2
35 2
35 2
35 2
35 2
50 1/0 KRD50-6 M6 18 9,5 12 8,5 11,5 20 44 2,4 16 PVL350, V600, V1300, V250 100 12
50 1/0 KRD50-8 M8 18 9,5 12 8,5 11,5 20 44 2,4 16
V600, V1300, V250 100 12
50 1/0 KRD50-10 M10 18 9,5 12 9,5 11,5 21 49 2,4 20 PVL350, V600, V1300, V250 100 12
50 1/0 KRD50-12 M12 20 9,5 12 12 14 26 53 2,2 20 PVL350, V600, V1300, V250 100 12
50 1/0 KRD50-16 M16 23 9,5 12 15 18 33 60,5 1,8 20 PVL350, V600, V1300, V250 100 12
70 2/0 KRD70-00 25 11,3 14 31 63 2,2 23 PVL350, V600, V1300, V250 50 14 Uhullet plate
70 2/0 KRD70-7 M7 22 11,3 14 11 11 22 54 2,5 23 PVL350, V600, V1300, V250 50 14
70 2/0 KRD70-8 M8 22 11,3 14 11 11 22 54 2,6 23 PVL350, V600, V1300, V250 50 14
70 2/0 KRD70-10 M10 22 11,3 14 11 11 22 54 2,6 23 PVL350, V600, V1300, V250 50 14
70 2/0 KRD70-12 M12 22 11,3 14 12 13 25 57 2,6 23 PVL350, V600, V1300, V250 50 14
70 2/0 KRD70-14 M14 50
70 2/0 KRD70-16 M16 25 11,3 14 15 16 31 63 2,2 23 PVL350, V600, V1300, V250 50 14
95 4/0 KRD95-00 28 13 16 31 67 2,5 26 PVL350, V600, V1300, V250 50 16 Uhullet plate
95 4/0 KRD95-6 M6 24 13 16 11 11 22 58 3 26 PVL350, V600, V1300, V250 50 16
95 4/0 KRD95-8 M8 24 13 16 11 11 22 58 2,9 26 PVL350, V600, V1300, V250 50 16
95 4/0 KRD95-10 M10 24 13 16 11 11 22 58 2,9 26 PVL350, V600, V1300, V250 50 16
95 4/0 KRD95-12 M12 24 13 16 12 13 25 61 2,9 26 PVL350, V600, V1300, V250 50 16
95 4/0 KRD95-14 M14 24 13 16 12 13 25 61 2,8 26 PVL350, V600, V1300, V250 50 16
95 4/0 KRD95-16 M16 28 13 16 15 16 31 67 2,5 26 PVL350, V600, V1300, V250 50 16
120 250 KRD120-00 28 15 19 31 70 3,8 26 V600, V1300, V250 50 19 Uhullet plate
120 250 KRD120-8 M8 28 15 19 11 14 25 64 3,8 26 V600, V1300, V250 50 19
120 250 KRD120-10 M10 28 15 19 11 14 25 64 3,9 26 V600, V1300, V250 50 19
120 250 KRD120-12 M12 28 15 19 11 14 25 64 3,9 26 V600, V1300, V250 50 19
120 250 KRD120-14 M14 28 15 19 15 17 32 70 4 26 V600, V1300, V250 50 19
120 250 KRD120-16 M16 28 15 19 15 16 31 70 3,9 26 V600, V1300, V250 50 19
120 250 KRD120-20 M20 30 15 19 16,5 18,5 35 74 3,7 26 V600, V1300, V250 50 19
150 300 KRD150-00 32 17 22 38 83 4,8 30 V600, V1300, V250 50 22 Uhullet plate
150 300 KRD150-8 M8 32 17 22 15 23 38 83 4,8 30 V600, V1300, V250 50 22
150 300 KRD150-10 M10 32 17 22 15 16 31 76 4,9 30 V600, V1300, V250 50 22
150 300 KRD150-12 M12 32 16 22 15 16 31 76 4,9 30 V600, V1300, V250 50 22
150 300 KRD150-14 M14 32 17 22 15 17 32 76 5 30 V600, V1300, V250 50 22
150 300 KRD150-16 M16 32 17 22 15 16 31 76 4,9 30 V600, V1300, V250 50 22
150 300 KRD150-20 M20 32 17 22 19 19 38 83 4,9 30 V600, V1300, V250 50 22
185 350 KRD185-00 36 19 25 38 87 5,9 32 V600, V1300, V250 50 25 Uhullet plate
185 350 KRD185-8 M8 36 19 25 15 16 31 80 5,9 32 V600, V1300, V250 50 25
185
185 350 KRD185-12 M12 36 19 25 15 16 31 80 5,9 32 V600, V1300, V250 50 25
185 350
185
185
t = platens tykkelse, s = avisoleringslengde
• DIN rørkabelsko for fåtrådete (klasse 2) og flertrådet (klasse 5) Cu-ledere.
• Materiale: Cu 99,95 %, fortinnet Cu/Sn.
• Mål iht. DIN 46235, antallet pressinger angis på kabelskoens hals.
• For å presse DIN 46235-forbindelser, bruk pressbakker i henhold til DIN 48083. Eksempel på platemerking: 95 1095 = mm² 10 = platehull for M10



6
16 6
25 4
25
25 4
25
35 2
35 2
35 2
35
50 1/0
50 1/0
50 1/0
50
70 2/0
70 2/0
95 4/0
95 4/0
120 250
120 250
120 250 KRDIN120-16 M16
120 250
150 300
150 300
150 300
185 350
185 350
240 500
300
400
400
400
500
t = platens tykkelse, s = avisoleringslengde
V1300 20 20DIN
V1300 20 20DIN
V1300 20 20DIN
V1300 20 20DIN
V1300 20 22DIN
V1300 20 22DIN
• Materiale: Cu 99,9 %, fortinnet Cu/Sn.
• Mål iht. DIN 46234.


10 8
B10-5R M5 10 4,5 8 5 16 GWB4010, V600, V1300, V250 100 7 10 8 B10-6R M6 11 4,5 9 5,5 17 GWB4010, V600, V1300, V250 100 7
8 B10-8R M8 14 4,5 12 7 27 GWB4010, V600, V1300, V250 100 7 10 8 B10-10R M10 18 4,5 13 9 21 GWB4010, V600, V1300, V250 100 7 10 8
B10-12R M12 22 4,5 15 11 23 GWB4010, V600, V1300, V250 100 7 16 6 B16-5R M5 11 5,8 10 5,5 26 V600, V1300, V250
8 16 6 B16-6R M6 11 5,8 10 5,5 26 V600, V1300, V250 100 8
16 6 B16-8R M8 14 5,8 12 7 29 V600, V1300, V250 100 8
16 6 B16-10R M10 18 5,8 14 9 33 V600, V1300, V250 100 8 16 6 B16-12R M12 22 5,8 16 11 37 V600, V1300, V250
50 1/0 B50-6R M6 18 11 18 9 43 V600, V1300, V250
50 1/0 B50-8R M8 18 11 18 9 43 V600, V1300, V250
50 1/0 B50-10R M10 18 11 18 9 43 V600, V1300, V250
50 1/0 B50-12R M12 22 11 20 11 47 V600, V1300, V250
50 1/0 B50-16R M16 28 11 24 14 54 V600, V1300, V250
70 2/0 B70-8R M8 22 13 20 11 49 V600, V1300, V250
70 2/0 B70-10R M10 22 13 20 11 49 V600, V1300, V250
17
17
70 2/0 B70-12R M12 22 13 20 11 49 V600, V1300, V250 100 17
70 2/0 B70-16R M16 28 13 24 14 56 V600, V1300, V250 100 17
95 4/0 B95-10R M10 24 15 22 12 54 V600, V1300, V250
95 4/0 B95-12R M12 24 15 22 12 54 V600, V1300, V250
95 4/0 B95-16R M16 28 15 24 14 58 V600, V1300, V250
120 250 B120-10R M10 24 16,5 22 12 56 V600, V1300, V250 50
120 250 B120-12R M12 24 16,5 22 12 56 V600, V1300, V250 50
120 250 B120-16R M16 28 16,5 26 14 62 V600, V1300, V250 50
150 300 B150-12R M12 30 19 26 15 65 V600, V1300, V250
150 300 B150-16R M16 30 19 26 15 65 V600, V1300, V250
185 350 B185-12R M12 36 21 22 18 68 V1300, V250
185 350 B185-16R M16 36 21 22 18 68 V1300, V250
20
20
20
• Materiale: Cu 99,95 %, fortinnet Cu/Sn.
• Inspeksjonshull og innv. kabelstopp.
• For fåtrådet (klasse 2) og mangetrådet (klasse 5) Cu-leder, for mangetrådet Cu-leder anbefales kontaktpressing med Dual-systemet.
• UL-godkjente (1-500 mm²). DNV-godkjente (16-400 mm²).
Eksempel på merking: 20 95F (Elpress-logo er med på merkingen) 20 = Bakke nr. 95 = mm² F = type KSF for fåtrådet og fleksibel leder 111 = skjerm mm²


s =
• Materiale: Cu 99,95 %, fortinnet Cu/Sn.
• For fåtrådet (klasse 2) og mangetrådet (klasse 5) Cu-leder, for mangetrådet Cu-leder anbefales kontaktpressing med Dual-systemet.
• Med mellomvegg for å hindre oljelekkasje.
• UL-godkjente (1-500 mm²). DNV-godkjente (16-400 mm²).
Eksempel på merking: 20 95F (Elpress-logo er med på merkingen) 20 = Bakke nr. 95 = mm² F = type KSF for fåtrådet og fleksibel leder 111 = skjerm mm²


• Materiale: Cu 99,95 %, fortinnet Cu/Sn.
• For mangetrådet (klasse 5) og fåtrådet (klasse 2) Cu-leder.


s = avisoleringslengde
• Materiale: Cu 99,95 %, fortinnet Cu/Sn.
• For fåtrådet (klasse 2) og mangetrådet (klasse 5) Cu-leder, for mangetrådet Cu-leder anbefales kontaktpressing med Dual-systemet.


V600, DV1300, DV250
V600, DV1300, DV250
• Materiale: Cu 99,95 %, fortinnet, Cu/Sn.
• For entrådet leder (iht. IEC 60228 klasse 1).


s
avisoleringslengde Elpress-logo er med på merkingen.
• Materiale: Cu 99,95 %, fortinnet Cu/Sn.

• Dimensjoner iht. DIN 46230. mm² AWG

2/0
3/0
• Materiale: Cu 99,95 %, fortinnet Cu/Sn
• For kabel 10 mm² Cu Solid (Excel) og 16 mm² fåtrådet (Fxcel), monteres strekkavlastet.


t = platens tykkelse, s = avisoleringslengde
• Materiale: Cu 99,95 %, fortinnet Cu/Sn
• For kabel 10 mm² Cu Solid (Excel) og 16 mm² fåtrådet (Fxcel), monteres strekkavlastet.

• Med innvendig kabelstopp mm² AWG Navn

s = avisoleringslengde Elpress-logo er med på merkingen.Två plus to pressinger görs
• Materiale: Cu 99,95 %. Fortinnede hylser (unntatt C95-120, C150-185, C240-300 og C23 som ikke er fortinnet).
• For skjøting og avgrening av jordliner samt andre typer potensialutjevningsapplikasjoner. I noen tilfeller kreves det 2 eller 3 pressinger.
• Unik patentert løsning som bygger på tidligere patentert løsning for avgreningshylsen C25-50 (tidligere kjent som C89).

• Mulig å frontmate alle avgreninger. Navn

C6-10 2000147 6/6-16, 10/6-16 6-10/6-10, 16/10
C16-25 2000148 16/16-25, 25/(2*2,5)-25 16-25/16-25, 25/(2*2,5)-10
C50-70 2000149 50/50, 70/25-70, 95/25-50
C70-95 2000150 70/70, 95/50-95, 120/25-70


70/25-70, 95/25-50
95/50-70, 120/25-50
C95-120 2000151 95/95, 120/70-120, 150/25-70, 185/25-50 95/95, 120/70-120, 150/25-70, 185/25-50
C150-185 2000152 150/95-150, 185/70-185, 240/25-185, 300/25-120 150/95-150, 185/70-185, 240/25-185, 300/25-120
C240-300 2000153 300/240, 300/185, 300/150, 240/240 300/240, 300/185, 300/150, 240/240
Elpress-logo er med på merkingen. Den andre siden av C-hylsen er merket med størrelsen på Cu-line som passer.
* Kun sidemating ** Frontmating med ukomprimert kobberline, bruk C240-300
* Ved ukomprimert og/eller hard hovedline og avgrening, bruk C240-300
** Sidemating, frontmating i C95-120
*** 50 mm²/50 mm² sidemates, frontmates i C50-70



System Elpress
System Elpress består av forbindelser og verktøy som er tilpasset og testet sammen for gi en ensartet forbindelse. Dette for at du som bruker skal føle deg trygg når du bruker våre systemer og for at du skal oppnå en sikker forbindelse ved riktig bruk av produktene.
Al-forbindelser
Elpress’ forbindelser for Al-kabler er produsert av 99,7 % massivt og rent aluminium. Vi produserer Al-forbindelser av typen AK og AS, men også i stor grad kundetilpassede forbindelser eller forbindelser større enn 1200 mm².
Kabelsko type AK

Kabelsko type AK brukes i avslutninger på en Al-leder for tilkobling til skinner og apparatuttak
Skjøtehylser type AS

Skjøtehylser av typen AS brukes ved skjøting av aluminiumledere.

Dorpressing av Elpress skjøtehylse ved hjelp av presshode V250.
AlCu-forbindelser
Elpress’ AlCu-forbindelser for Al-kabler er fremstilt av massive materialer og med friksjonssveising. Denne metoden innebærer at aluminium føyes sammen med kobber. Dette skjer når aluminium roteres mot kobber under trykk, og er den metoden som gir den beste forbindelsen mellom Al og Cu.

Kabelsko av typen AKK brukes i avslutning på en Al-leder for tilkobling på Cu-skinne.
Skjøtehylser type AKS

Skjøtehylser av typen AKS brukes til skjøting av Al-ledere til Cu-ledere.
Stifthylser av typen AKP

Stifthylser av typen AKP er laget for tilkobling av Al-ledere til apparater beregnet for stifttilkobling av kobber.
Elpress-systemet passer både for fåtrådete ledere, iht. IEC 60228 klasse 2, og for solide ledere, iht. IEC 60228 klasse 1. Det bør imidlertid bemerkes at det er en arealtrinnforskjell mellom fåtrådete og solide Al-ledere (se tabeller). Ved bruk av sektorformet Al-kabel kreves det normalt en rundpressing, noe som skjer med rundpressingsverktøy. Ved kontaktpressing av Al-forbindelser gjøres det alltid to pressinger.Merk deg pressrekkefølgen.

Pressrekkefølge
Kundetilpassede produkter
Et kundetilpasset produkt er en viktig del av arbeidet. Det er en spesiell utfordring å løse problemer for kunden og samtidig lage produktene med lønnsomhet. På denne måten øker vi også kunnskapen om kundenes behov. Blant de ovennevnte forbindelsene kan man nevne ulike modeller av T-skjøter der man kan koble til tre ledere av samme strørrelse ved hjelp av bare én forbindelse.

Ved ønsker om varianter på hullbilde, tilkoblingsflaggets størrelse og lignende, produserer vi varianter av kabelsko.
Merking av Al- og AlCu-forbindelser
Elpress’ system for merking av Al- og AlCu-forbindelser angir lederareal (for fåtrådete og solide ledere) og referanse til rund- og kontaktpressingsverktøy innen Elpress’ sortiment. På bimetallskjøtehylsene er verktøyreferansen angitt for sekskantpressing av kobber.
KABELSKO:
Forklaring merking Al- og AlCu-forbindelser Halsmerking, f.eks.: ALU300-R21-P36 (Elpress-logo) T2
ALU300 = Al-leder i mm²
R21 = størrelsesnr. for dor og matrise til rundpressing P36 = størrelsesnr. for dor og matrise til kontaktpressing
SKJØTEHYLSER:
Forklaring merking Al- og AlCu-forbindelser
Eks.: Cu240 - 30 (Elpress-logo)
Cu240 = Cu-leder i mm²
30 = størrelsesnr. for sekskantbakke
Eks.: ALU300-R21-P36 (Elpress-logo) T2
ALU300 = Al-leder i mm²
R21 = størrelsesnr. for dor og matrise til rundpressing P36 = størrelsesnr. for dor og matrise til kontaktpressing
Frittgående hull kabelskoplate iht. SS-ISO 273
Skruedimensjon Hulldiameter (Ø mm)
3,2
M16
M20
M24
• Brukes til tilkobling av Al-leder på Al-skinne.
• To pressinger kreves - se bilde for pressrekkefølge.



t = platens tykkelse, s = avisoleringslengde
• Brukes hovedsakelig til skjøting av Al-ledere med samme areal.
• To pluss to pressinger kreves - se bilde for pressrekkefølge.
• Normal utførelse er med mellomvegg.



Pressrekkefølge
Ved behov for andre kombinasjoner, ta kontakt med Elpress., s = avisoleringslengde
• Brukes til skjøting av Al-ledere med ulike arealer.
• To pluss to pressinger kreves - se bilde for pressrekkefølge.
• Med mellomvegg.



Pressrekkefølge Fåtrådet
s, s1 = avisoleringslengde
• Brukes primært til skjøting av to Al-ledere med samme areal.
• For dorpressing av Al-forbindelser kreves det alltid to pressinger, se bilde.



s = avisoleringslengde
Skjøtehylser for 1 kV applikasjoner som presses med MultiCrimp-teknologien. For bruk med 1300-systemet.
• Ikke behov for rundforming. Al-ledere 50-240 mm², for både rund- og sektorformede ledere.
• Brukes hovedsakelig til skjøting av Al-ledere med samme areal.
• Normal utførelse er med mellomvegg.
• En pressing for 50-150 mm², to pressinger for 185-240 mm².

AS120-150

Fåtrådet Al mm² Solid Al mm² Navn El-nummer d mm D L s Verktøy Note
Sektorformet kabel trenger ikke rundformes
Sektorformet kabel trenger ikke rundformes
Sektorformet kabel trenger ikke rundformes
• Brukes for tilkobling av Al-ledere til apparatuttak og skinner av Cu.
• To pressinger kreves - se bilde for pressrekkefølge.



Pressrekkefølge
s = avisoleringslengde, t = platens tykkelse
• Brukes for tilkobling av Al-ledere til apparatuttak og skinner av Cu, osv.
• For fåtrådete Al-ledere.
• To pressinger kreves, se bilde.



Pressrekkefølge
t = platens tykkelse, s = avisoleringslengde
• Brukes for tilkobling av Al-ledere til apparater med tilkobling av kobber.
• To pressinger kreves - se bilde for pressrekkefølge.



Pressrekkefølge
Overgangsskjøtehylser av aluminium 16-95 mm² mot solid kobber 10 mm²
• Overgangsskjøt fra fåtrådet Al-leder til solid Cu-leder 10 mm² (f.eks. Excel, Excelett).
• To pressinger kreves for både Al (se bilde for pressrekkefølge) og Cu.



Pressrekkefølge
s = avisoleringslengde (Al), s1 = avisoleringslengde (Cu)
• Brukes til skjøting av Al-ledere og Cu-ledere.
• Fåtrådet Al-leder, fåtrådet/fleksibel Cu-leder. For mangetrådet Cu-leder anbefales kontaktpressing med Dual-systemet.
• To pressinger kreves for Al (se bilde).
• Ved pressing av Al-delen, bruk matrise 13P37M og dor 13P37D, ingen matriseholder kreves.
• Ved pressing av Cu-delen, plasser bakkene mellom markeringen på hylsen og kanten på Cu-delen.



300
300
400
400
Hvis Cu-leder av klasse 5 brukes, bruk tilsvarende DUAL-verktøy for (D)V1300 eller (D)V250., s = avisoleringslengde (Al), s1 = avisoleringslengde (Cu)
• Skjøt fra Al-leder til Cu-leder.
• Fåtrådet/solid Al-leder, fåtrådet/mangetrådet Cu-leder. For mangetrådet Cu-leder anbefales kontaktpressing med Dual-systemet.
• To pressinger kreves for Al (se bilde) normalt én for Cu.
• Ved sekskantpressing av Cu-delen plasseres bakkene midt mellom merkesporet og ytterkanten.



Pressrekkefølge

System Elpress
System Elpress består av forbindelser og verktøy som er tilpasset og testet sammen for gi en ensartet forbindelse. Dette for at du som bruker skal føle deg trygg når du bruker våre systemer og for at du skal oppnå en sikker forbindelse ved riktig bruk av produktene.
Hydrauliske pressystemer
Elpress hydrauliske pressystemer presser forbindelser fra 10 til 1200 mm². Systemene består av pumper og presshoder som fritt kan kombineres eller av komplette håndverktøy der disse enhetene er integrert. For kontaktpressing, rundpressing, kapping m.m. finnes det et stort utvalg tilbehør. Sammen med de matchende forbindelsene dannes det komplette systemet. Både pumper og håndverktøy har, med noen unntak, hurtigmatefunksjon, som gjør at kontaktpressingen starter allerede etter noen få pumpeslag. Systemene har innebygd, noe som sikrer at en påbegynt pressing fullføres og dermed gir et optimalt resultat. Pumper som valgfritt kobles til de ulike presshodene gir mulighet til komfortabelt arbeid i krevende situasjoner og med maksimal fleksibilitet.


Cu-forbindelser
V1300-systemet brukes til kontaktpressing av Cu-forbindelser 10-400 mm². Det finnes også i en C-versjon med åpent hode for bedre tilkomst på trange steder.

Al-forbindelser
V1300-systemet brukes til dorpressing av Al-forbindelser og rundpressing av Al-ledere 16-240 mm². Rundpressing utføres på sektorformede Al-ledere.

Cu-forbindelser
V250-systemet brukes til kontaktpressing av Cu-forbindelser 10-800 mm².

Al-forbindelser
V250-systemet brukes til dorpressing av Al-forbindelser og rundpressing av Al-ledere 16-630 mm². Rundpressing utføres på sektorformede Al-ledere.

Egenskaper:
• sertifisert verktøy for forbindelser iht. normen
• ergonomiske håndtak forenkler installasjonen
• saksbevegelse for tilkomst på trange steder
• skrallefunksjon som ikke løser ut før pressingen er ferdig
• sekskantpressing med tydelig merkede pressinnstillinger

Pressgeometrier

Pressgeometrier

Pressgeometrier
Testet og sertifisert mekanisk håndtang for pressing av Cu-forbindelser, type CUT 6-16 mm² og KR/KS 4-10 mm².
mm² AWG Navn El-nummer Pressgeometri Nettovekt (kg) Lengde mm Bredde Høyde 4-16 12-6
Testet og sertifisert mekanisk håndtang for pressing av Cu-forbindelser, type KRF/KSF 16-25 mm².
mm² AWG Navn El-nummer Pressgeometri Nettovekt (kg) Lengde mm Bredde Høyde 16-25 5-3 EL2258 2011138
Testet og sertifisert mekanisk håndtang for pressing av Cu-forbindelser, type CUT 6-16 mm² og KR/KRF/KS/KSF 4-16 mm².
mm² AWG Navn El-nummer Pressgeometri Nettovekt (kg) Lengde mm Bredde Høyde 4-16 12-6 T2258 2019592 Punch, Hexagonal 0,65 304 30 70

Pressgeometrier

Pressgeometrier
mm² AWG Navn Pressgeometri Nettovekt (kg) Lengde mm Bredde Høyde 10-25 8-4 ES2288 Hexagonal 0,654 300 30 70
Testet og sertifisert mekanisk håndtang for pressing av Cu 10-16 mm² i samme CU-hylse og Al 16-25 mm² i samme AL-hylse.
mm² AWG Navn El-nummer Pressgeometri Nettovekt (kg) Lengde mm Bredde Høyde 10-16 8-6 EW1025 2011197 Punch 0,678 300 30 70

Pressgeometrier
Mekanisk håndtang for pressing av Cu-forbindelser.
Egenskaper:
• utstyrt med skrallefunksjon
• presshjul av valset stål som gir høy holdfasthet
• presskraft opptil ca. 35 kN


Pressgeometrier
Mekanisk handtång för pressning av Cu-förbindningar, typ KR/KRF och KS/KSF, 10-70 mm².
Egenskaper:
• utstyrt med skrallefunksjon
• presshjul av valset stål som gir høy holdfasthet
• presskraft opptil ca. 35 kN


Pressgeometrier
Batteridrevet verktøy for pressing av rørkabelsko og skjøtehylser av typen KR/KS, KRF/KSF 10-70 mm², KRD/KSD 10-95 mm² med spesielle ”MB” bakker.
Egenskaper:
• åpningsbart hode for enkelt bakkebytte og god tilgjengelighet
• Høytytende 10,8 V Li-ion-batteri - med indikering av ladestatus
• svært god tilgjengelighet og ergonomi
• åpningsbart, roterbart ”flip top”-hode for enkelt bakkebytte og slanket presshode for god
• tilgjengelighet
• raskt presseforløp 3-4 sek
• ca. 100-180 pressinger/batteriladinger (avhengig av temp., frekvens, m.m.)
• 2-komponent hus med gripevennlig beskyttelse. Enhåndsgrep for enkel styring av alle verktøyfunksjoner
• Svært lav vekt og raskt presseforløp for maksimal effektivitet
• Automatisk retur av bakkene når pressingen er fullført
Leveres parvis.
For sekskantpressing av Cu 4-70 mm². CUT-hylser 6-16 mm² presses med MB4016. C-hylser 6-25 mm² presses med MBC5 og MBC6.

Bakkepar MB11 for PVL350.

mm² Navn El-nummer Antall pressinger Nettovekt (kg) Bakkeholder kreves Note
10 MB8 2017030 1 0,086 Nej for KR/KS 10 mm² og KRD/KSD 10-16 mm²
16 MB9 2017031 2 0,085 Nej
Brukes for KRF/KSF 16 mm² og KRD/KSD 25 mm²
25 MB11 2017032 2 0,083 Nej Brukes for KRF/KSF 25 mm² og KRD/KSD 35 mm²
35 MB13 2017033 2 0,081 Nej
50 MB14,5 2017034 2 0,08 Nej
70 MB17 2019586 3 0,075 Nej
4-10 MB4016 2019588 1 0,082 Nej
6-16 MBC5 2017447 2 0,11 Nej
16-25 MBC6 2017448 2 0,11 Nej
Brukes for KRF/KSF 35 mm²
Brukes for KRF/KSF 50 mm²
Brukes for KRF/KSF 70 mm² og KRD/KSD 95 mm²
Brukes for KR/KS 4-10 mm², CUT-hylser 6-16 mm²
Brukes for C-hylse C6-10
Brukes for C-hylse C16-25

Pressgeometrier
Pressverktøy for Cu-forbindelser 10-150 mm², Al-forbindelser 16-25 mm² (-35 solid) mm² og C-hylser 100 mm² (totalt)
Testet og sertifisert presshode for kontaktpressing av Cu-forbindelser av typen
KR/KS 10 mm², KRF/KSF 16-150 mm², KRD/KSD 16-185 mm², KRT/KST 10-240 mm², Al-forbindelser 16-25 mm² (-35 solid), C-hylser 6/6-50/50 mm², DIN 46235 10-95 mm². Brukes sammen med fotpumpe P4000 eller den elektrisk drevne pumpen PS710 (PS710E fås også med batteridrift).
Egenskaper:
• arbeidstrykk 63 MPa (630 bar)
• presskraft 55 kN
• robust tekstilveske med plass til 10 bakker er inkludert
mm² AWG/ MCM Navn El-nummer Pressgeometri Nettovekt (kg) Lengde mm Bredde Høyde 10-150 8-500 V600 2070523

Pressgeometrier
Testet og sertifisert hydraulisk håndverktøy for kontaktpressing av Cu-forbindelser type
KR/KS 10 mm², KRF/KSF 16-150 mm², KRD/KSD 16-185 mm², KRT/KST 10-240 mm², Al-forbindelser 16-25 mm² (-35 solid), C-hylser 6/6-50/50 mm², DIN 46235 10-95 mm².
Egenskaper:
• hurtigmating frem til bakkeinngrep gir korte presstider
• presskraft 60 kN
• vekt 2,5 kg
• leveres i solid tekstilveske
mm² AWG/ MCM Navn El-nummer Pressgeometri Nettovekt (kg) Lengde mm Bredde Høyde 10-150 8-500 V611 2011056 Punch, Hexagonal, Oval 2,6 425 115 53


Pressgeometrier
Testet og sertifisert batteridrevet pressverktøy for kontaktpressing av Cu-forbindelser type KR/KS 10 mm², KRF/KSF 16-150, KRD/KSD 16-185 mm², KRT/KST 10-240 mm², Al-forbindelser 16-25 mm² (-35 solid), C-hylser 6/6-50/50 mm², DIN 46235 10-95 mm². PVX611DB har et ekstra batteri.
Egenskaper:
• beskytter mot støv og rusk gjennom et tett kabinett
• ergonomisk design gjør den perfekt balansert i brukerens hånd
• vribar åpningsbar pressgaffel
• presskraftskontroll ved hjelp av trykkovervåkning
• enhåndsgrep for enkel betjening
• LED-belysning for enklere arbeid
• hurtigmating for mer effektiv pressing
• display med informasjon om verktøyet og serviceintervall
• testet sammen med Elpress TB-bakker og KB22/KB25
• pressovervåkning via display når riktig trykk/fullgod pressing ikke oppnås (varsellampe LED og signal)
mm² AWG/ MCM Navn El-nummer Pressgeometri Nettovekt (kg) Lengde
Bredde Høyde 10-150 8-500 PVX611 2070592 Punch, Hexagonal, Oval
10-150 8-500 PVX611-DB
10-150 8-500 PVX611-WOBC

Pressgeometrier
Mekanisk håndtang for pressing av Cu-forbindelser av typen KR/KS 10 mm², KRF/KSF 16-95 mm², KRD/KSD 16-120 mm², KRT/KST 10-120 mm², Al-forbindelser 16-25 mm² (-35 solid), DIN 46235 10-95 mm² og C-hylser 6/6-50/50 mm².
Egenskaper:
• åpningsbar for enkelt bakkebytte og for rask fjerning etter skjøting
• presskraft ca. 57 kN
• avansert kraftutveksling for laveste håndtakskraft
• lett å jobbe med på trange steder
• det kreves bare fire bakkepar for å presse 10-95 mm² Cu
• hurtigmatingsfunksjon
• leveres i metallboks
mm² AWG Navn El-nummer Pressgeometri Nettovekt (kg) Lengde mm Bredde Høyde 10-95 8-4/0 T2600 2011051 Punch, Hexagonal, Oval 1,9
10-120 8-250 T2600B Punch, Hexagonal, Oval 4,12
10-120 8-250 T2600C Punch, Hexagonal, Oval

Instruktionsskylt till T2600.
For Cu-forbindelser, sekskantpressing. Leveres parvis. TB-bakkene nedenfor er beregnet for Cu-forbindelser, type KRF/KSF, sammen med Cu-leder iht. IEC 60228.

Bakkepar TB7-20 for V600, V611, PVX611 og T2600.

Bakkepar KB22 for V600, V611 og PVX611.
mm² Navn El-nummer Antall pressinger Nettovekt (kg) Note
10 / 70 TB8-17 2011061 1, 2 0,138
16 / 35 TB9-13 2011062 1 0,149
25 / 50 TB11-14,5 2011063 1 0,149
10 / 95 TB7-20 2011064 1, 2 0,135


Pressrekkefølge ved to pressinger. Pressrekkefølge ved tre pressinger.
120 KB22 2011066 3 0,15 Brukes ikke med T2600
150 KB25 2011067 3 0,147 Brukes ikke med T2600
For skjøter på luftliner AlMgSi (Super B) og Al59, sekskantpressing. Leveres parvis.

Bakkepar TBNP 16-20.
mm² Navn El-nummer Antall pressinger Nettovekt (kg)
31 - 99 TBNP16-20 2000110 2x5, 2x10 0,135
For Cu-avgreninger med C-hylser, oval pressing. Leveres parvis.


TBC89-B13 Hhv. 1 og 2 pressinger.
Gjennomgående leder mm² Avgrening mm² mm² Navn El-nummer Antall pressinger Nettovekt (kg) Bakkeholder kreves Note
6-16 (C5) & 5-25 (C6)
6-16 (C5) & 5-25 (C6) Total: 12-26 (C5), 30-50 (C6)
6-50 6-50 Total: 50-100 (C89)
C5 (Hylse: C6-10) og C6 (Hylse: C16-25)
C89 (Hylse: C25-50) og B13 (KRF/ KSF: 35 mm²)
For Al-forbindelser, dorpressing. Brukes ikke til rundpressing.


Pressrekkefølge
Fåtrådet Al mm² Solid Al mm² Matriceholder El-nummer Matrice El-nummer Dorn El-nummer Antall pressinger 16-25 16-35 TV2620 2011081 TP13M 2011082 TP13D 2011083 2
To pressinger kreves alltid.
Testet og sertifisert mekanisk håndtang for pressing av Cu 10-16 mm² i samme CU-hylse og Al 16-25 mm² i samme AL-hylse. Den ene siden til å presse aluminium, og den andre siden til å presse kobber. Brukes med V600-systemet. Dorpressing.
Bakke som vist nedenfor er beregnet for bruk sammen med Cu-/Al-ledere iht. IEC 60228.

mm² KR/KS, KRF/KSF Fåtrådet Al mm² Navn El-nummer Antall pressinger Nettovekt (kg) Note 10-16 16-25 TBKA9-11,5 2070550 1 0,14 Brukes til å krympe AS1625 og AKS1625-1016
for pressing av fleksible Cu ledere i KRF/KSFforbindelser ved krevende applikasjoner 10-400 mm²

Egenskaper:
• patentert kontaktpressing
• for kontaktpressing av fleksible Cu-leder iht. IEC 60228, av type klasse 5
• brukes med Elpress KRF/KSF-forbindelser
• for ekstra tøffe miljøer, som bil og tog, der forbindelsene f.eks. også er utsatt for korrosjon, mekanisk holdfasthet og vibrasjon
• oppfyller IEC/EN 61238:1
• oppfyller krav til korrosjon iht. DIN V 40 046-37
• oppfyller kravene til vibrasjon iht. EN 50 155
• oppfyller kravene til mekanisk holdfasthet iht. SEN 24 50 10
Presseforløpet
Kontaktpressingen skjer i en totrinnsbevegelse. Først gir sekskantpressingen optimal kontakt mot lederen, noe som gjør at ingen tråder brytes eller ryker i kanten mot forbindelsen. Deretter presses doren inn, noe som gir 30 % bedre elektriske egenskaper.
Testet og sertifisert batteridrevet presspistol for kontaktpressing av Cu-forbindelser av typen KR/KRT 10 mm², KS/KST 10 mm², KRF/KRD/KRT 16-400 mm², KSF/KSD/KST 16-400 mm², Al-forbindelser 16-400 mm² (-240 solid), C-hylser opptil 240 mm² totalt areal (C95-120).
Egenskaper:
• ergonomisk design som gjør den perfekt balansert i brukerens hånd
• pressovervåkning med varsellampe (LED) og signal når riktig trykk / fullgod pressing ikke oppnås
• LED-arbeidsbelysning
• presskraft 124 kN (13 tonn)
• pressinger/lading: 60-120 avhengig av størrelse og temperatur
• presstid: 4-12 s avhengig av størrelse
• brukstemperatur -20 ˚C til +40 ˚C
• Li-ion Makita, 5,0 Ah, 18 V
• lader Li-ion Makita, ladetid 22 min 110-240VAC 50-60Hz

10-400 8-750 PVX1300 2070594 Punch, Dual, Hexagonal, Oval
10-400 8-750 PVX1300DB 2070595 Punch, Dual, Hexagonal, Oval
10-400 8-750 PVX1300-ADV 2000125 Punch, Dual, Hexagonal, Oval
10-400 8-750 PVX1300DB-ADV 2000126 Punch, Dual, Hexagonal, Oval





ADV. 10-400 8-750 PVX1300-WOBC-ADV Punch, Dual, Hexagonal, Oval
10-400 8-750 PVX1300-WOBC Punch, Dual, Hexagonal, Oval

Pressgeometrier
Testet og sertifisert presshode med patentert DUAL-teknologi for kontaktpressing av Cu-forbindelser av typen KR/KRF og KS/KSF 10-300 mm². Brukes sammen med fotpumpe P4000 eller den elektrisk drevne pumpen PS710 (PS710E fås også med batteridrift).
Egenskaper:
• presshode med den patenterte DUAL-teknologien som gir en optimalisert sekskantpressing + en viss dorinnpressing i to integrerte trinn
• arbeidstrykk 63 MPa (630 bar)
• presskraft 130 kN
• ingen bakkeholder kreves for DUAL-bakker
• annet tilbehør (uten Dual-funksjon) for kontaktpressing av både Cu- og Al-forbindelser kan brukes
• DUAL: 10-300 mm²

Pressgeometrier
Presshode med patentert DUAL-teknologi for kontaktpressing av Cu forbindelser av typen KR/KRF og KS/KSF 10-300 mm². Brukes sammen med fotpumpe P4000 eller den elektrisk drevne pumpen PS710.
Egenskaper:
• presshode for den patenterte DUAL-teknologien som gir en optimalisert sekskantpressing + en dorinnpressing i to integrerte trinn
• arbeidstrykk 63 MPa (630 bar)
• presskraft 130 kN
• ingen bakkeholder kreves for DUAL-bakker
• annet tilbehør (uten Dual-funksjon) for kontaktpressing av Cu- forbindelser kan brukes
• DUAL: 10-300 mm²
mm² AWG/ MCM Navn El-nummer Pressgeometri Nettovekt (kg) Lengde mm Bredde Høyde
10-400 8-750 DV1300C2 2070571 Dual, Hexagonal, Oval 4,9
Testet og sertifisert batteridrevet presspistol for kontaktpressing av Cu-forbindelser av typen KR/KRF og KS/KSF 10-400 mm², C-hylser opptil 240 mm² totalt areal (C95-120).
Egenskaper:
• ergonomisk design som gjør den perfekt balansert i brukerens hånd
• pressovervåkning med varsellampe (LED) og signal når riktig trykk / fullgod pressing ikke oppnås
• LED-arbeidsbelysning
• presskraft 124 kN (13 tonn)
• brukstemperatur -20 ˚C til +40 ˚C
• Li-ion Makita, 5,0 Ah, 18 V
• lader Li-ion Makita, ladetid 22 min 110-240VAC 50-60Hz

Pressegeometrier


10-400 8-750
PVX1300C2-ADV 2000127 Dual, Hexagonal, Oval
10-400 8-750 PVX1300C2DB-ADV 2000128 Dual, Hexagonal, Oval
Dual, Hexagonal, Oval

Pressgeometrier
Testet og sertifisert presshode med patentert DUAL-teknologi for kontaktpressing av Cu-forbindelser av typen KRF/KSF 120-400 mm². Brukes sammen med fotpumpe P4000 eller den elektrisk drevne pumpen PS710 (PS710E fås også med batteridrift).
Egenskaper:
• presshode med den patenterte DUAL-teknologien som gir en optimalisert sekskantpressing + en viss dorinnpressing i to integrerte trinn
• arbeidstrykk 63 MPa (630 bar)
• presskraft 250 kN (25 tonn)
• stort pressområde, 10-1000 mm² (Dual opptil 400 mm²)
• ingen bakkeholder kreves for DUAL-bakker
• Annet tilbehør (uten DUAL-funksjon) for kontaktpressing av både Cu- og Al-forbindelser kan brukes
• DUAL: 120-400 mm²
mm² AWG/ MCM Navn El-nummer Pressgeometri Nettovekt (kg) Lengde mm Bredde Høyde 10-800 8-1600 DV250 2018297 Punch, Dual, Hexagonal, Oval 4,8 280 111 74
Leveres parvis.
For Cu-forbindelser av typen KR/KRF og KS/KSF og fleksibel Cu-leder. Ingen bakkeholder kreves.

Bakkepar 13DB20.
mm² KR/KS, KRF/KSF Navn

Pressrekkefølge ved én pressing.

Pressrekkefølge ved to pressinger.
Leveres parvis.
For Cu-forbindelser av typen KR/KRF og KS/KSF og fleksibel Cu-leder. Ingen bakkeholder kreves.



Bakkepar 13DCB20. Pressrekkefølge ved én pressing. Pressrekkefølge ved to pressinger.
mm² KR/KS, KRF/KSF Navn El-nummer Antall pressinger Nettovekt (kg)
10 13DCB8 2070578 1 0,456 Nej
16 13DCB9 2070581 1 0,44 Nej 25 13DCB11 2070582 1 0,465 Nej
35 13DCB13 2070583 1 0,486 Nej
50 13DCB14,5 2070584 1 0,497 Nej 70 13DCB17 2070585 1 0,503 Nej
95 13DCB20 2070586 1 0,507 Nej
120 13DCB22 2070587 2 0,45 Nej
150 13DCB25 2070588 2 0,498 Nej
185 13DCB27 2070589 2 0,514 Nej
240 13DCB30 2070590 2 0,534 Nej
300 13DCB32 2070591 2 0,49 Nej
Leveres parvis. For Cu-forbindelser av typen KR/KRF og KS/KSF og fleksibel Cu-leder. Ingen bakkeholder kreves.



Pressrekkefølge ved én pressing.

Pressgeometrier
Testet og sertifisert presshode for kontaktpressing av Cu-forbindelser av typen KR/KRT 10 mm², KS/KST 10 mm², KRF/KRD/KRT 16-400 mm², KSF/KSD/KST 16-400 mm², Al-forbindelser 16-400 mm² (-240 solid), C-hylser opptil 240 mm² totalt areal (C95-120). Brukes sammen med fotpumpe P4000 eller den elektrisk drevne pumpen PS710 (PS710E fås også med batteridrift).
Egenskaper:
• arbeidstrykk 63 MPa (630 bar)
• presskraft 130 kN (13 tonn)
• smidig og praktisk presshode av stål
mm² AWG/ MCM Navn El-nummer Pressgeometri Nettovekt (kg) Lengde mm Bredde Høyde 10-400 8-750 V1300 2070320 Punch,

Pressgeometrier
Testet og sertifisert hydraulisk håndverktøy for kontaktpressing av Cu-forbindelser av typen KRF/KSF 10-400 mm², Al-forbindelser 16-400 mm² (-240 solid), C-hylser opptil 240 mm² totalt areal (C95-120).
Egenskaper:
• hurtigmating
• presskraft 130 kN (13 tonn)
• krever lav håndtakskraft, ca. 245 N ved maks. kraft
• gaffelen kan vris 180°
mm² AWG/ MCM Navn El-nummer Pressgeometri Nettovekt (kg) Lengde mm Bredde Høyde 10-400 8-750 V1311-A 2070323 Punch, Hexagonal, Oval 4,3 588 150 74
Testet og sertifisert batteridrevet presspistol for kontaktpressing av Cu-forbindelser av typen KR/KRT 10 mm², KS/KST 10 mm², KRF/KRD/KRT 16-400 mm², KSF/KSD/KST 16-400 mm², Al-forbindelser 16-400 mm² (-240 solid), C-hylser opptil 240 mm² totalt areal (C95-120).
Egenskaper:
• ergonomisk design som gjør den perfekt balansert i brukerens hånd
• pressovervåkning med varsellampe (LED) og signal når riktig trykk / fullgod pressing ikke oppnås
• LED-arbeidsbelysning
• presskraft 124 kN (13 tonn)
• pressinger/lading: 60-120 avhengig av størrelse og temperatur
• presstid: 4-12 s avhengig av størrelse
• brukstemperatur -20 ˚C til +40 ˚C
• Li-ion Makita, 5,0 Ah, 18 V
• lader Li-ion Makita, ladetid 22 min 110-240VAC 50-60Hz

CASE ADVANCED Pressgeometrier
mm² AWG/ MCM Navn
El-nummer Pressgeometri
10-400 8-750 PVX1300 2070594 Punch, Dual, Hexagonal,
10-400 8-750 PVX1300DB 2070595 Punch, Dual, Hexagonal, Oval
10-400 8-750 PVX1300-ADV 2000125 Punch, Dual, Hexagonal, Oval
10-400 8-750 PVX1300DB-ADV 2000126 Punch, Dual, Hexagonal, Oval


2 batterier
i
og CASE ADV. 10-400 8-750 PVX1300-WOBC-ADV Punch, Dual, Hexagonal, Oval
ADV og uten batteri/lader 10-400 8-750 PVX1300-WOBC Punch, Dual, Hexagonal, Oval 4,8
uten batteri/lader
B-bakkene nedenfor er beregnet for Cu-forbindelser, type KR/KRF og KS/KSF, sammen med så vel fåtrådet som mangetrådet Cu-leder av klasse 2 eller 5 iht. IEC 60228. For mangetrådet (klasse 5) Cu-leder anbefales kontaktpressing med Dual-systemet.
For Cu-forbindelser, sekskantpressing. Leveres parvis. B-bakkene nedenfor er beregnet for Cu-forbindelser, type KR/KRF og KS/KSF, sammen med Cu-leder iht. IEC 60228. For mangetrådete (klasse 5) Cu-ledere anbefales kontaktpressing med Dual-systemet.
Bruk indre bakkeholder V1316 og ytre bakkeholder V1318

Ytre bakkeholder V1318, B-bakker, indre bakkeholder V1316.
mm²
KR/KS, KRF/KSF

Pressrekkefølge ved én pressing.
For Cu-forbindelser, sekskantpressing. Leveres parvis. De integrerte B-bakkene nedenfor er beregnet for Cu-forbindelser, type KR/KRF og KS/KSF, sammen med Cu-leder iht. IEC 60228. For mangetrådete (klasse 5) Cu-ledere anbefales kontaktpressing med Dual-systemet. Brukes uten bakkeholder.




Integrerte bakker 13B38. Pressrekkefølge ved én pressing. Pressrekkefølge ved to pressinger. Pressrekkefølge ved tre pressinger.
mm² KR/KS, KRF/KSF Navn El-nummer Antall
10 13B8 2070543 1 0,438 Nej
16 13B9 2070544 1 0,445 Nej
25 13B11 2070545 1 0,46 Nej
35 13B13 2070546 1 0,475 Nej
50 13B14,5 2070547 1 0,471 Nej
70 13B17 2070548 1 0,465 Nej
95 13B20 2070549 1 0,473 Nej
120 13B22 2 0,421 Nej
150 13B25 2 0,422 Nej
185 13B27 2070175 2 0,419 Nej
240 13B30 2070176 2 0,413 Nej
300 13B32 2070177 2 0,408 Nej
400 13B38 2070174 3 0,308
For Cu-avgreninger med C-hylser, oval pressing. Hvis ikke annet er oppgitt, bruk indre bakkeholder V1316 og ytre bakkeholder V1318.

Ytre bakkeholder V1318, BC-bakker, indre bakkeholder V1316.

Gjennomgående leder mm² Avgrening mm² mm²

Ytre bakkeholder V1318

Indre bakkeholder V1316
Navn El-nummer Nettovekt (kg) V1316 2070330 0,197 V1318 2070328 0,309

En sikrere, sterkere og mer praktisk koffert for Elpress pressverktøy PVX1300 og PVX1300C2. CASE ADVANCED takler de aller tøffeste forholdene. Kofferten er IP67-klassifisert, tåler støv og kraftige støt. Drahåndtak og hjul på kofferten gjør det enkelt for brukeren å ta med seg verktøyet med riktig tilbehør.
Egenskaper:
• Livstidsgaranti
• Håndtaket tåler opptil 30 kg.
• Rom for praktisk oppbevaring av tilhørende bakker, matriser og dorer.
• Tåler temperaturer fra –30 °C opp til +90 °C.
• Mulighet til å låse kofferten med doble hengelåser.
• Trykkutjevningsventil.
• IP67 (helt vanntett ned til 1 meter).
• STANAG4280, DEF-STAN 81-41-sertifisering.
Navn El-nummer Nettovekt (kg)
PVX1300-CASE-ADV 2000146 7,6

Oppbevaringsboks som rommer verktøyet V1300 og tilbehør til å kontaktpresse Elpress Cu-forbindelser.
Egenskaper:
• materiale plywood
• innredningsmateriale polyetylen
• solid, formskåret innredning
Navn El-nummer Nettovekt (kg) Lengde mm Bredde Høyde LV1300B 2011132 5,115 570 467 130

Supplerende oppbevaringsboks for PVX1300. Boksen rommer PVX1300 samt lader og ekstra batteri. Det er også plass til bakkepar, avisoleringsverktøy og forbindelser. Boksen er utviklet sammen med L1300 CU-ALU og kan med fordel brukes sammen.
Egenskaper:
• materiale plywood
• innredningsmateriale polyetylen
• solid, formskåret innredning
Navn El-nummer
Nettovekt (kg)
Lengde mm
Bredde Høyde

Supplerende oppbevaringsboks for tilbehør til PVX1300. Boksen rommer alt tilbehør som trenges ved arbeid med 1300-systemet fra Elpress. Boksen har plass til 14 B-bakker, 1-2 bakkeholdere, 12-14 integrerte B-bakker (DUALbakkepar), 4 dorer (AL-pressing), 8 rundformingsdor og 3 matriser samt en matriseholder (eksempel). Boksen er utviklet sammen med L-PVX1300 og kan med fordel brukes sammen.
Egenskaper:
• materiale plywood
• innredningsmateriale polyetylen
• solid, formskåret innredning
Navn El-nummer
Nettovekt (kg)
Lengde mm
Bredde Høyde
For Al-forbindelser, dorpressing. For dorpressing av Al-forbindelser kreves det alltid to pressinger. For 16-150 (185 solid) mm², brukes matriseholder V1320

Matriseholder V1320, matrise P13M, dor P13D.

Pressrekkefølge
Fåtrådet Al mm² Solid Al mm² Matrise El-nummer Dor El-nummer Antall pressinger Matriseholder kreves Dorholder kreves Note
For Al-leder, rundpressing.
Bruk matriseholder V1320

Matriseholder V1320, matrise R6MR, dor 13R6DR.
Nej Nej Matrise med sikkerhetsline. For Al-forbindelser av type AKKxxxB/AKSxxxB og hylser av type ASxxxB.
For Al-leder.
Bruk matriseholder V1320

Fåtrådet Al mm² Solid Al mm² Navn El-nummer Nettovekt (kg) 16-150 16-185 V1320 2070326 0,367
For Al-tilkoblinger 50-240 mm², dornpressing, både runde og sektorformede ledere. Uten behov for rundpressing for sektorformede ledere. Brukes uten matriseholder.


Fåtrådet Al mm² Matrise El-nummer




Ekstra oppbevaringsboks til LV1300B og LV250 som rommer tilbehør til å kontaktpresse Elpress Al-forbindelser.
Egenskaper:
• materiale plywood
• innredningsmateriale polyetylen
• solid, formskåret innredning
Navn El-nummer Nettovekt (kg) Lengde mm
Bredde Høyde
Supplerende oppbevaringsboks for PVX1300. Boksen rommer PVX1300 samt lader og ekstra batteri. Det er også plass til bakkepar, avisoleringsverktøy og forbindelser. Boksen er utviklet sammen med L1300 CU-ALU og kan med fordel brukes sammen.
Egenskaper:
• materiale plywood
• innredningsmateriale polyetylen
• solid, formskåret innredning
Navn El-nummer Nettovekt (kg) Lengde mm Bredde Høyde
Supplerende oppbevaringsboks for tilbehør til PVX1300. Boksen rommer alt tilbehør som trenges ved arbeid med 1300-systemet fra Elpress. Boksen har plass til 14 B-bakker, 1-2 bakkeholdere, 12-14 integrerte B-bakker (DUALbakkepar), 4 dorer (AL-pressing), 8 rundformingsdor og 3 matriser samt en matriseholder (eksempel). Boksen er utviklet sammen med L-PVX1300 og kan med fordel brukes sammen.
Egenskaper:
• materiale plywood
• innredningsmateriale polyetylen
• solid, formskåret innredning
Navn El-nummer Nettovekt (kg) Lengde mm Bredde Høyde L1300 CU-ALU 2019598 3,76
Leveres parvis. Sekskantpressing. Bruk indre bakkeholder V1316 og ytre bakkeholder V1318.

Ytre bakkeholder V1318, BNP-bakker, indre bakkeholder V1316.
mm²
Luftline Bakke El-nummer Antall pressinger Nettovekt (kg) Bakkeholder kreves Note
31-62 B16NP 2x5 0,118 Ja AlMgSi 31-62 mm², FeAL: 62 mm², ALUS 50 mm²
99 B20NP 2x5 0,126 Ja AlMgSi 99 mm², FeAL: 99 mm²
157 13B26 2 0,420 Nej Luftline: 157 mm² (2x16 pressinger) 241 13B32 2070177 2 0,408 Nej Luftline: 241 mm² (2x16 pressinger)
Leveres parvis. Bakker BxxFE brukes for stålhylse, og BxxNP brukes for Al-hylse. Bruk indre bakkeholder V1316 og ytre bakkeholder V1318

Bakkbar B16NP
mm² Bakke Fe Bakke Al Antall pressinger Bakkeholder kreves
62 B6FE B16NP 2x5 Ja
99 B8FE B20NP 2x5 Ja

Pressgeometrier
Presshode for kontaktpressing av Cu-forbindelser av typen KR/KRF og KS/KSF 10-400 mm². Brukes sammen med fotpumpe P4000 eller den batteri- og nettdrevne pumpen PS710 (PS710E fås også med batteridrift).
Egenskaper:
• arbeidstrykk 63 MPa (630 bar)
• presskraft 130 kN
• smidig og enkelt å jobbe med
mm² AWG/ MCM Navn El-nummer Pressgeometri Nettovekt (kg) Lengde mm Bredde Høyde 100-400 8-750 V1300C2 2070570

Pressgeometrier
Testet og sertifisert hydraulisk håndverktøy for kontaktpressing av Cu forbindelser av typen KR/KRT 10 mm², KS/KST 10 mm², KRF/KRD/KRT 16-400 mm², KSF/KSD/KST 16-400 mm².
Egenskaper:
• hurtigmating
• gaffelen kan vris 180°
• presskraft 130 kN
• krever lav håndtakskraft, ca. 245 N ved maks. kraft
• lett å bære og jobbe med
mm² AWG/ MCM Navn El-nummer Pressgeometri Nettovekt (kg) Lengde mm Bredde Høyde 10-400 8-750 V1311C2-A 2070572 Hexagonal, Oval

Oppbevaringsboks som følger med verktøyene V1311C2-A og V1311A.
Testet og sertifisert batteridrevet presspistol for kontaktpressing av Cu-forbindelser av typen KR/KRF og KS/KSF 10-400 mm², C-hylser opptil 240 mm² totalt areal (C95-120).
Egenskaper:
• ergonomisk design som gjør den perfekt balansert i brukerens hånd
• pressovervåkning med varsellampe (LED) og signal når riktig trykk / fullgod pressing ikke oppnås
• LED-arbeidsbelysning
• presskraft 124 kN (13 tonn)
• brukstemperatur -20 ˚C til +40 ˚C
• Li-ion Makita, 5,0 Ah, 18 V

• lader Li-ion Makita, ladetid 22 min 110-240VAC 50-60Hz CASE
Pressegeometrier


10-400 8-750 PVX1300C2
8-750 PVX1300C2-ADV 2000127 Dual, Hexagonal,
10-400 8-750 PVX1300C2DB-ADV 2000128 Dual, Hexagonal,
10-400 8-750 PVX1300C2-WOBC-ADV Dual, Hexagonal, Oval
uten batteri/lader 10-400 8-750 PVX1300C2-WOBC Dual, Hexagonal, Oval


TS1300 med presshode
TS1300 er et bordstativ som kan brukes sammen med presshode DV1300C2 og V1300C2-AL. Bordstativet er beregnet for operatører med høyfrekvent bruk av C2-presshodet. Med bordstativet sikrer man stabil, sikker og enkel bruk av C2-presshodet.
mm² Navn
El-nummer Pressgeometri Nettovekt (kg) Lengde mm Bredde Høyde Note
10-400 TS1300CU 2000144 Dual, Hexagonal, Oval
Kun for kobber 16-400 TS1300AL 2000145 Punch
Kun for aluminium 10-400 TS1300 2000143
Brukes sammen med DV1300C2 for Cu eller V1300C2-AL for Al
B-bakkene nedenfor er beregnet for Cu-forbindelser, type KR/KRF og KS/KSF, sammen med så vel fåtrådet som mangetrådet Cu-leder av klasse 2 eller 5 iht. IEC 60228. For mangetrådet (klasse 5) Cu-leder anbefales kontaktpressing med Dual-systemet.
Leveres parvis.
For Cu-forbindelser, sekskantpressing. Brukes med bakkeholder V1330.


B-bakker. Pressrekkefølge ved én pressing. mm²
Leveres parvis. For Cu-forbindelser, sekskantpressing. Brukes uten bakkeholder.




For Cu-avgreninger med C-hylser, oval pressing.
Hvis ikke annet er oppgitt, brukes bakkeholder V1330

BC-bakker.
Gjennomgående

Leveres parvis. Ytre og indre bakkeholder for 1300-systemet (C2).

Bakkeholder V1330 (par).
Navn El-nummer Nettovekt (kg) Note V1330 2070331 0,43 Selges i par
Verktøy for Cu-forbindelser 10-800 mm², Al-forbindelser 16-630 mm² og C-hylser 6-300 mm²

Pressgeometrier
Testet og sertifisert presshode for kontaktpressing av Cu-forbindelser av typen KR/KRT 10 mm², KS/KST 10 mm², KRF/KRD/KRT 16-800 mm², KSF/KSD/KST 16-800 mm², Al-forbindelser 16-630 mm² (-300 solid), C-hylser 6/6-300/300 mm². Brukes sammen med fotpumpe P4000 eller den elektrisk drevne pumpen PS710 (PS710E fås også med batteridrift).
Egenskaper:
• arbeidstrykk 63 MPa (630 bar)
• presskraft 250 kN (25 tonn)
• stort pressområde, 10-800 mm²
mm² AWG/ MCM Navn El-nummer Pressgeometri Nettovekt (kg) Lengde mm Bredde Høyde 10-800 8-1600 V250 2070500 Punch, Hexagonal, Oval 4,68 280 111 74
B-bakkene nedenfor er beregnet for Cu-forbindelser, type KR/KRF og KS/KSF, sammen med så vel fåtrådet som mangetrådet Cu-leder av klasse 2 eller 5 iht. IEC 60228. For mangetrådet (klasse 5) Cu-leder anbefales kontaktpressing med Dual-systemet.
Leveres parvis.
For Cu-forbindelser, KRF/KSF, sekskantpressing. Hvis det kreves bakkeholder, bruk indre bakkeholder V2506, og ytre bakkeholder V2508.




Bakkepar B2542, brukes uten bakkeholder. Pressrekkefølge ved én pressing. Pressrekkefølge ved to pressinger. Pressrekkefølge ved tre pressinger.
mm² KR/KS, KRF/KSF Navn
For Cu-avgrening med C-hylser, oval pressing. Hvis det kreves bakkeholder, bruk indre bakkeholder V2506 og ytre bakkeholder V2508 for V250-systemet.

Bakkeholder V2508, BC-bakker, bakkeholder V2506.
Gjennomgående

Bakkepar B25C16

Hhv. 1 og 2 pressinger.
Indre bakkeholder V2506 og ytre bakkeholder V2508 for V250-systemet.


Ytre bakkeholder V2508. Indre bakkeholder V2506. Navn
V2506 2070501 0,341
V2508 2070502 0,632
For Al-forbindelser, dorpressing. For dorpressing av Al-forbindelser utføres det alltid to pressinger, se bilde. (ingen dorholder kreves)


Matriseholder V2521, matrise P13M, dor P13D. Pressrekkefølge
Fåtrådet Al
For Al-leder, rundpressing. Bruk dorholder V2540.

Matriseholder V2531, matrise R18MR, dor R18DR, dorholder V2540.
Fåtrådet Al mm² Solid Al mm² Matrise
16 16 (+25) R6MR 2070259 V2521 2070504 R6DR 2070279
25 35 R7MR 2070260 V2521 2070504 R7DR 2070280
35 50 R8MR 2070261 V2521 2070504 R8DR 2070281
50 70 R9MR 2070262 V2521 2070504 R9DR 2070282
70 95 R12MR 2070264 V2521 2070504 R12DR 2070284
95 120 R13MR 2070265 V2521 2070504 R13DR 2070285
120 150 R15MR 2070266 V2521 2070504 R15DR 2070286
150 185 R16MR 2070267 V2521 2070504 R16DR 2070287
185 240 R18MR 2070268 V2531 2070505 R18DR 2070288
240 R20MR 2070273 V2531 2070505 R20DR 2070293
300 300 R21MR 2070269 V2531 2070505 R21DR 2070289
400 R26MR 2070271 V2531 2070505 R26DR 2070291
500 R28MR 2070272 V2531 2070505 R28DR 2070292


16-150 16-185 V2521 2070504 0,921 185-500 240-300 V2531 2070505 0,75 16-500 16-300 V2540 2070506 0,157
Leveres parvis. For skjøter på luftliner AlMgSi (Super B) og Al59, sekskantpressing. Bruk indre bakkeholder V2506 og ytre bakkeholder V2508.

Bakkeholder V2508, BNP-bakker, bakkeholder V2506.
mm² Bakke Al Antall pressinger Nettovekt (kg) Bakkeholder kreves
31-62 B16NP 2x5 0,118 Ja
99 B20NP 2x5 0,126 Ja
157 B26NP 2x8 0,14 Ja
Leveres parvis. Bakker BxxFE brukes for stålhylse, og BxxNP brukes for Al-hylse. Bruk indre bakkeholder V1316 og ytre bakkeholder V1318

mm² Bakke Fe Bakke Al Antall pressinger Nettovekt (kg) Bakkeholder kreves
62 B6FE B16NP 2x5 0,1 Ja
99 B8FE B20NP 2x5 0,099 Ja

Ekstra oppbevaringsboks til LV1300B og LV250 som rommer tilbehør til å kontaktpresse Elpress Al-forbindelser.
Egenskaper:
• materiale plywood
• innredningsmateriale polyetylen
• solid, formskåret innredning

Oppbevaringsboks som rommer verktøyet V250 og tilbehør til å kontaktpresse Elpress Cu-forbindelser.
Egenskaper:
• materiale plywood
• innredningsmateriale polyetylen
• solid, formskåret innredning


Krympstasjon CS2500.

Elpress krympstasjon CS2500 gir effektiv produksjon med høyest mulig personsikkerhet. Avanserte intelligente egenskaper i kombinasjon med enkelhet gjør produktet unikt.
Egenskaper:
• konstruert for kontinuerlig produksjon av elektriske Cu-forbindelser, 10-300 mm²
• hurtiglåsing av kabelskoen med lav kraft reduserer den totale tiden for pressingen
• automatisk innstilling av presskraft opptil 250 kN gir optimal levetid for verktøy og tilbehør
• bare én pressing kreves i hele arbeidsområdet
• integrert Elpress DUAL-system
• hydraulikkpumpe PS710D med kontroll, overvåkning og feilrapportering
• betjening med fotpedal
• CE-godkjent, oppfyller kravene iht. bestemmelsene om maskinsikkerhet
• programvare Analysator for analyse- og rapportutskrift av pressinger
• 110-240VAC 50-60Hz
mm² AWG/ MCM Navn
Nettovekt (kg) Lengde mm Bredde Høyde 10-300 8-600 CS2500 59,5
Leveres parvis. For Cu-forbindelser av typen KR/KRF og KS/KSF og fleksibel Cu-leder, ingen bakkeholder kreves.

Bakkepar 13DCB20.


Analyzer, måler og analyserer hver enkelt krymp.
- programvare for kvalitetssikring av pressinger og system for kalibrering
Analysatorprogrammet brukes til å kvalitetssikre kontaktpressinger og lagre data til kvalitetsdokumenter. Med enkle grep kan man studere alle pressingene i PC-miljø, der de får sitt eget ID-nummer for full sporbarhet. Det unike SPC-verktøyet, Statistic Process Control, gjør det mulig å betrakte krymping som en målbar prosess. Analyzer er et statistikkprogram for systematiske studier av variasjoner i krympeprosessen. Videre kan man eksportere, importere, skrive ut eller lagre kurver, kalibreringsdata, batchrapporter osv.
Egenskaper:
• Elpress Analyzer forbedrer den generelle kvaliteten
• hjelper brukeren
• gir et verktøy for prosessforbedring
• måler og viser alle pressinger
• støtter forebyggende vedlikehold av utstyr
• skaper sporbarhet og dokumentasjon
• gjør kommunikasjonen enkel
• øker brukernes kompetanse
• eliminerer uriktige pressinger
• leveres med bruksanvisning
Navn El-nummer
Nettovekt (kg) Note
ANALYZER 2018260 0 Analysatorprogram

Pressgeometrier
Testet og sertifisert presshode for kontaktpressing av Cu-forbindelser av typen KRF/KSF 500-800 mm², KRD/KSD, KRT/KST 500-1000 mm², Al-forbindelser 8001200 mm², C-hylser 245-540 mm² (C150-185 og C240-300). Brukes sammen med fotpumpe P4000 eller den elektrisk drevne pumpen PS710.
Egenskaper:
• arbeidstrykk 63 MPa (630 bar)
• presskraft 400 kN
• leveres i plywood-kasse
mm² AWG/MCM Navn El-nummer Pressgeometri Nettovekt (kg) Lengde mm
500-1000 1000-2000 V1470 2071000 Punch, Hexagonal, Oval 20,76
Leveres parvis.
For Cu-forbindelser, sekskantpressing. To pressinger kreves ved pressing av Cu-forbindelser.
Fleksible ledere i KRF/KSF og fåtrådete ledere i KRD/KSD/KRT/KST.


B4040. Pressrekkefølge ved to pressinger.
mm² Navn El-nummer Antall pressinger Nettovekt (kg) Bakkeholder kreves For
500 B4040 2071013 2 4,011 Nej fåtrådet Cu-leder: KRD/KSD, KRT/KST 500 mm²
500 B4042 2071014 2 4,067 Nej mangetrådet Cu-leder: KRF/KSF 500 mm²
630 B4045 2071015 2 3,959 Nej fåtrådet Cu-leder: KRD/KSD, KRT/KST 630 mm²
630 / 800 B4053 2071016 2 3,901 Nej mangetrådet Cu-leder: KRF/KSF (samt fåtrådet Cu-leder 800 mm²: KRD/KSD/KRT/KST)
1000 B4056 2071018 2 3,67 Nej fåtrådet Cu-leder: KRD/KSD, KRT/KST
Leveres parvis.
For Cu-avgreninger med C-hylse, oval pressing. Det kreves kun én pressing for Cu-avgreninger med C-hylse.

B40C18.
Gjennomgående leder mm² Avgrening mm² mm² Navn Antall pressinger Nettovekt (kg) Bakkeholder kreves
For Al-forbindelser, dorpressing. Bruk matriseholder V1471. To pressinger kreves alltid ved pressing av Al-forbindelser.

Matriseholder V1471, matrise W60M, dor W60D.

Pressrekkefølge
Fåtrådet Al mm² Matrise El-nummer Dor El-nummer Antall pressinger


PS710
PS710 er en elektrisk drevet pumpe for kontaktpressing med avansert styring og overvåkning av kontaktpresseforløpet. Et fleksibelt system for et bredt bruksområde med høy ytelse og pålitelighet for profesjonell bruk. Pumpen egner seg for så vel kabelprodusenter som montører som jobber ute i felten. PS710 kan brukes for alle typer kontaktpressing eller kapping. PS710 har en strømkilde for alle typer kontaktpressing.
Tekniske data:
• mulighet til å bruke ulike trykkområder, 0-700 bar
• kan brukes med en PC i et datanettverk med en skriver, gjelder ikke PS710R
• oljestrøm ved 20 bar: 0,6 liter/min (PS710D 1,2 liter/min)
• oljevolum: 1,0 liter
• oljetype: HYDREX MV 22 eller lignende
• pressinger/batterilading: 120 pressinger med Cu 150 mm²
• omgivelsestemperatur: - 22 til 55 °C
• beskyttelse: IP54
• Nettdrift 85-276VAC 50-60Hz
• Li-ion-batteri 28,8 V, 3,0 Ah
• Oppfylte CE-krav: Maskinsikkerhet 2006/42/EF, Elektromagnetisk kompatibilitet 2014/30/EU, Lavspenningsdirektivet 2014/35/EU, ROHS 2014/35/EU, WEEE 2012/19/EU
• vekt ca. 12,4 kg
• kompakte mål 370 x 170 x 280 mm
Pumpen består av tre grunnleggende versjoner, alle med tilpasningsmuligheter.
For kabelprodusenten. Brukes med kontaktpressestasjon CS2500.
Egenskaper:
• unikt elektronisk styresystem sammen med en spesiell PC-programvare
• analyse og prosessovervåkning/styring, SPC, for sporing av hver pressing
• LCD-display med tastatur for full statusinformasjon om pumpen til montøren
• kommunikasjon med PC i sanntid gir umiddelbar kvalitetskontroll
• integrert kommunikasjon via CAN med Elpress CS2500
• høy gjennomstrømning fra hydraulikkpumpe for raskest mulig pressing
• kan med fordel brukes med PC i et datanettverk med skriver
Navn El-nummer Nettovekt (kg) Lengde mm Bredde Høyde
PS710D 2018243 12 370 170 280

For montører som arbeider i distribusjonsnettet eller industrien.
Egenskaper:
• liten størrelse og lav vekt gjør produktet enkelt å bruke i enhver situasjon
• høyeste ytelse, kan brukes både med Li-ion-batteri 28,8 V eller 220 V strømnett
• LCD-display med tastatur for full statusinformasjon om pumpen til montøren
• mulighet til å lagre og dokumentere kontaktpressinger i kontrollsystemet
• PC-kommunikasjon via USB
• for bruk med presshoder og kabelsakser
• Elpress ergonomiske håndtak ERGOCOM, med trådløs kommunikasjon, kan velges til
• lader 230 VAC 50 Hz, 10,8-28,8 V, ladetid 65 min
Navn El-nummer Nettovekt (kg) Lengde mm Bredde Høyde
PS710E 2018207 12 370 170 280

Inneholder:
• pumpe E-versjon
• kabel
• hydraulikkslange 2,4 m eller 5,0 m. Med trådløs kommunikasjon ERGOCOM
• batteri
• lader
• bærerem
• 110-240VAC 50-60Hz
Navn El-nummer Bruttovekt (kg) Lengde mm Bredde Høyde
PS710E251 2070522 24,5 370 170 280
PS710E501 26 370 170 280

For brukere som ønsker et driftssikkert standardprodukt (uten behov for dokumentert sporbarhet).
Egenskaper:
• pumpestyring uten elektronisk styresystem, reléstyrt
• enkelt utstyrt uten datakommunikasjon
• uten batteri
• for bruk med presshoder og kabelsakser
• Elpress ergonomiske håndtak ERGO, med kablet kommunikasjon, kan velges til
Navn El-nummer Nettovekt (kg) Lengde mm Bredde Høyde
PS710R 2018206 12 370 170 280

Inneholder:
• pumpe R-versjon
• kabel
• hydraulikkslange 2,4 eller 5,0 m. Med kablet kommunikasjon ERGO
• bærerem
• 110-240VAC 50-60Hz
Navn El-nummer Bruttovekt (kg) Lengde mm Bredde Høyde
PS710R250 2070539 23 370 170 280
PS710R500 24,5 370 170 280
* For land utenfor Sverige, ta kontakt med Elpress

Manøverhåndtak for betjening av pumpe PS710. Ergonomisk utformede håndtak som reduserer belastningen for operatøren ved arbeidsstasjonen. ERGOCOM styres med Bluetooth, og ERGO er kablet. Fås i ulike utførelser avhengig av hydraulikkslangens lengde.
Navn El-nummer Nettovekt (kg) For
HYD.SLANG KPL. 2,4M ERG PS710E 2018254 2,4 Hydraulikkslangekobl. (2,4 m). For PS710E, med ERGO-håndtak
HYD.SLANG KPL. 5M ERGO PS710E 2018255 3,9 Hydraulikkslangekobl. (5,0 m). For PS710E, med ERGO-håndtak
HYD.SLANG KPL.2,4M ERGO PS710R 2018256 2,43 Hydraulikkslangekobl. (2,4 m). For PS710R, med ERGO-håndtak
HYD.SLANG KPL. 5M ERGO PS710R 2018257 3,9 Hydraulikkslangekobl. (5,0 m). For PS710R, med ERGO-håndtak
HYD.SLANG KPL. 2,4M ERGOCOM 2,4 Hydraulikkslangekobl. (2,4 m). For PS710E, med ERGOCOM-håndtak
HYD.SLANG KPL. 5M ERGOCOM 3,9 Hydraulikkslangekobl. (5,0 m). For PS710E, med ERGOOM-håndtak
FCU-PS710R 2018263 2,8 Fotpedal for PS710R
FCU-PS710D&E 2018262 2,8 Fotpedal for PS710D og PS710E
BÄRREM PS710 2018261 0,12 Bærerem for alle PS710-versjoner

Egenskaper:
• unik utførelse i høyholdfast aluminiumslegering
• ergonomisk design
• slette, anodiserte (elokserte) overflater – lette å holde rene
• svært effektivt totrinns pumpesystem med hurtigmating
• enkel fotbetjent trykkavlastning (verktøyretur) etter automatisk stopp ved fullført pressing
• 2,2 m slange med hurtigkobling
• standard trykkinnstilling 630 bar / 63 MPa, (maks. innstilling 700 bar)
• sikkerhetsventil for retur ved alle trykk
• smidig transportposisjon for slangen
• eget uttak for trykkovervåkning

System Elpress
System Elpress består av forbindelser og verktøy som er tilpasset og testet sammen for gi en ensartet forbindelse. Dette for at du som bruker skal føle deg trygg når du bruker våre systemer og for at du skal oppnå en sikker forbindelse ved riktig bruk av produktene.
Luftlineskjøter
Elpress’ program for luftlineskjøter omfatter produkter for skjøting av kobberline, legerte aluminiumsliner av type AlMgSi (Super B) og Al59, samt for FeAl-liner. I tillegg til de velkjente skruskjøtene av kobber eller aluminium, finnes det kontaktpresskjøter LFS og LFEAL som presses med Elpress V600-, V1300- og V250-systemene. Kontaktpresskjøtene LFS, LFEAL og Elpress System er testet mot krav iht. SS 4241241.
Egenskaper:
• materiale kobber
• for tråd og line, se tabell
• skjøten vris slik at den får en vridning som er motsatt av linens slagretning
• verktøy: skiftenøkkel

Egenskaper:
• materiale aluminium
• skjøten vris slik at den får en vridning som er motsatt av linens slagretning
• verktøy: skiftenøkkel

Egenskaper:
• materiale aluminium
• for skjøting av luftliner
• oppfyller kravene i SS 4241241
• skjøterøret leveres med kontaktpasta på innsiden
• lederen skal rengjøres
Pressrekkefølge, se bilde. Ved pressing av LFS99 med T2600, V600, V611 og PVX611 kreves det 2x10 pressinger.
Egenskaper:
• ytre Al-hylse + indre stålhylse for sentertrådene
• oppfyller kravene i SS 4241241

Elpress-logo er med på merkingen. Merking XXXX = år, uke.
Pressrekkefølge, se bilde.

Pressgeometrier
Pressverktøy for Cu-forbindelser 10-150 mm², Al-forbindelser 16-25 mm² (-35 solid) mm² og C-hylser 100 mm² (totalt)
Testet og sertifisert presshode for kontaktpressing av Cu-forbindelser av typen
KR/KS 10 mm², KRF/KSF 16-150 mm², KRD/KSD 16-185 mm², KRT/KST 10-240 mm², Al-forbindelser 16-25 mm² (-35 solid), C-hylser 6/6-50/50 mm², DIN 46235 10-95 mm². Brukes sammen med fotpumpe P4000 eller den elektrisk drevne pumpen PS710 (PS710E fås også med batteridrift).
Egenskaper:
• arbeidstrykk 63 MPa (630 bar)
• presskraft 55 kN
• robust tekstilveske med plass til 10 bakker er inkludert
mm² AWG/ MCM Navn El-nummer Pressgeometri Nettovekt (kg) Lengde mm Bredde Høyde 10-150 8-500 V600 2070523

Pressgeometrier
Testet og sertifisert hydraulisk håndverktøy for kontaktpressing av Cu-forbindelser type
KR/KS 10 mm², KRF/KSF 16-150 mm², KRD/KSD 16-185 mm², KRT/KST 10-240 mm², Al-forbindelser 16-25 mm² (-35 solid), C-hylser 6/6-50/50 mm², DIN 46235 10-95 mm².
Egenskaper:
• hurtigmating frem til bakkeinngrep gir korte presstider
• presskraft 60 kN
• vekt 2,5 kg
• leveres i solid tekstilveske
mm² AWG/ MCM Navn El-nummer Pressgeometri Nettovekt (kg) Lengde mm Bredde Høyde 10-150 8-500 V611 2011056 Punch, Hexagonal, Oval 2,6 425 115 53


Pressgeometrier
Testet og sertifisert batteridrevet pressverktøy for kontaktpressing av Cu-forbindelser type KR/KS 10 mm², KRF/KSF 16-150, KRD/KSD 16-185 mm², KRT/KST 10-240 mm², Al-forbindelser 16-25 mm² (-35 solid), C-hylser 6/6-50/50 mm², DIN 46235 10-95 mm². PVX611DB har et ekstra batteri.
Egenskaper:
• beskytter mot støv og rusk gjennom et tett kabinett
• ergonomisk design gjør den perfekt balansert i brukerens hånd
• vribar åpningsbar pressgaffel
• presskraftskontroll ved hjelp av trykkovervåkning
• enhåndsgrep for enkel betjening
• LED-belysning for enklere arbeid
• hurtigmating for mer effektiv pressing
• display med informasjon om verktøyet og serviceintervall
• testet sammen med Elpress TB-bakker og KB22/KB25
• pressovervåkning via display når riktig trykk/fullgod pressing ikke oppnås (varsellampe LED og signal)
mm² AWG/ MCM Navn El-nummer Pressgeometri Nettovekt (kg)
10-150 8-500 PVX611 2070592 Punch, Hexagonal, Oval
10-150 8-500 PVX611-DB
10-150 8-500 PVX611-WOBC

Pressgeometrier
Mekanisk håndtang for pressing av Cu-forbindelser av typen KR/KS 10 mm², KRF/KSF 16-95 mm², KRD/KSD 16-120 mm², KRT/KST 10-120 mm², Al-forbindelser 16-25 mm² (-35 solid), DIN 46235 10-95 mm² og C-hylser 6/6-50/50 mm².
Egenskaper:
• åpningsbar for enkelt bakkebytte og for rask fjerning etter skjøting
• presskraft ca. 57 kN
• avansert kraftutveksling for laveste håndtakskraft
• lett å jobbe med på trange steder
• det kreves bare fire bakkepar for å presse 10-95 mm² Cu
• hurtigmatingsfunksjon
• leveres i metallboks
mm² AWG Navn El-nummer Pressgeometri Nettovekt (kg) Lengde mm Bredde Høyde 10-95 8-4/0 T2600 2011051 Punch, Hexagonal, Oval
10-120 8-250 T2600B Punch, Hexagonal,
10-120 8-250 T2600C Punch, Hexagonal,

Instruktionsskylt till T2600.
For skjøter på luftliner AlMgSi (Super B) og Al59, sekskantpressing. Leveres parvis.

Bakkepar TBNP 16-20.
mm² Navn El-nummer Antall pressinger Nettovekt (kg) 31 - 99 TBNP16-20 2000110 2x5, 2x10 0,135
Verktøy for Cu-forbindelser 10-400 mm², Al-forbindelser 16-400 mm² og C-hylser 6-240 mm² (totalt areal)

Pressgeometrier
Testet og sertifisert presshode for kontaktpressing av Cu-forbindelser av typen
KR/KRT 10 mm², KS/KST 10 mm², KRF/KRD/KRT 16-400 mm², KSF/KSD/KST 16-400 mm², Al-forbindelser 16-400 mm² (-240 solid), C-hylser opptil 240 mm² totalt areal (C95-120). Brukes sammen med fotpumpe P4000 eller den elektrisk drevne pumpen PS710 (PS710E fås også med batteridrift).
Egenskaper:
• arbeidstrykk 63 MPa (630 bar)
• presskraft 130 kN (13 tonn)
• smidig og praktisk presshode av stål
mm² AWG/ MCM Navn El-nummer Pressgeometri Nettovekt (kg) Lengde mm Bredde Høyde 10-400 8-750 V1300 2070320 Punch,

Pressgeometrier
Testet og sertifisert hydraulisk håndverktøy for kontaktpressing av Cu-forbindelser av typen KRF/KSF 10-400 mm², Al-forbindelser 16-400 mm² (-240 solid), C-hylser opptil 240 mm² totalt areal (C95-120).
Egenskaper:
• hurtigmating
• presskraft 130 kN (13 tonn)
• krever lav håndtakskraft, ca. 245 N ved maks. kraft
• gaffelen kan vris 180°
mm² AWG/ MCM Navn El-nummer Pressgeometri Nettovekt (kg) Lengde mm Bredde Høyde 10-400 8-750 V1311-A 2070323 Punch, Hexagonal, Oval 4,3 588 150 74
Testet og sertifisert batteridrevet presspistol for kontaktpressing av Cu-forbindelser av typen KR/KRT 10 mm², KS/KST 10 mm², KRF/KRD/KRT 16-400 mm², KSF/KSD/KST 16-400 mm², Al-forbindelser 16-400 mm² (-240 solid), C-hylser opptil 240 mm² totalt areal (C95-120).
Egenskaper:
• ergonomisk design som gjør den perfekt balansert i brukerens hånd
• pressovervåkning med varsellampe (LED) og signal når riktig trykk / fullgod pressing ikke oppnås
• LED-arbeidsbelysning
• presskraft 124 kN (13 tonn)
• pressinger/lading: 60-120 avhengig av størrelse og temperatur
• presstid: 4-12 s avhengig av størrelse
• brukstemperatur -20 ˚C til +40 ˚C
• Li-ion Makita, 5,0 Ah, 18 V
• lader Li-ion Makita, ladetid 22 min 110-240VAC 50-60Hz

CASE ADVANCED
Pressgeometrier
mm² AWG/ MCM Navn El-nummer Pressgeometri
10-400 8-750 PVX1300 2070594 Punch, Dual, Hexagonal, Oval


koffert 10-400 8-750 PVX1300DB 2070595 Punch, Dual, Hexagonal, Oval
2 batterier
10-400 8-750 PVX1300-ADV 2000125 Punch, Dual, Hexagonal, Oval
i CASE ADV. 10-400 8-750 PVX1300DB-ADV 2000126 Punch, Dual, Hexagonal, Oval
2 batterier og CASE ADV. 10-400 8-750 PVX1300-WOBC-ADV Punch, Dual, Hexagonal, Oval
i
ADV og uten batteri/lader 10-400 8-750 PVX1300-WOBC Punch, Dual, Hexagonal, Oval 4,8
uten batteri/lader
Leveres parvis. Sekskantpressing. Bruk indre bakkeholder V1316 og ytre bakkeholder V1318.

Ytre bakkeholder V1318, BNP-bakker, indre bakkeholder V1316.
mm² Luftline Bakke El-nummer Antall pressinger Nettovekt (kg) Bakkeholder kreves Note
31-62 B16NP 2x5 0,118 Ja AlMgSi 31-62 mm², FeAL: 62 mm², ALUS 50 mm²
99 B20NP 2x5 0,126 Ja AlMgSi 99 mm², FeAL: 99 mm²
157 13B26 2 0,420 Nej Luftline: 157 mm² (2x16 pressinger) 241 13B32 2070177 2 0,408 Nej Luftline: 241 mm² (2x16 pressinger)
Leveres parvis. Bakker BxxFE brukes for stålhylse, og BxxNP brukes for Al-hylse. Bruk indre bakkeholder V1316 og ytre bakkeholder V1318

Bakkbar B16NP
mm² Bakke Fe Bakke Al Antall pressinger Bakkeholder kreves
62 B6FE B16NP 2x5 Ja
99 B8FE B20NP 2x5 Ja
Verktøy for Cu-forbindelser 10-800 mm², Al-forbindelser 16-630 mm² og C-hylser 6-300 mm²

Pressgeometrier
Testet og sertifisert presshode for kontaktpressing av Cu-forbindelser av typen KR/KRT 10 mm², KS/KST 10 mm², KRF/KRD/KRT 16-800 mm², KSF/KSD/KST 16-800 mm², Al-forbindelser 16-630 mm² (-300 solid), C-hylser 6/6-300/300 mm². Brukes sammen med fotpumpe P4000 eller den elektrisk drevne pumpen PS710 (PS710E fås også med batteridrift).
Egenskaper:
• arbeidstrykk 63 MPa (630 bar)
• presskraft 250 kN (25 tonn)
• stort pressområde, 10-800 mm²
mm² AWG/ MCM Navn El-nummer Pressgeometri Nettovekt (kg) Lengde mm Bredde Høyde 10-800 8-1600 V250 2070500 Punch, Hexagonal, Oval 4,68 280 111 74
Leveres parvis. For skjøter på luftliner AlMgSi (Super B) og Al59, sekskantpressing. Bruk indre bakkeholder V2506 og ytre bakkeholder V2508.

Bakkeholder V2508, BNP-bakker, bakkeholder V2506.
mm² Bakke Al Antall pressinger
Nettovekt (kg)
Bakkeholder kreves
31-62 B16NP 2x5 0,118 Ja
99 B20NP 2x5 0,126 Ja
157 B26NP 2x8 0,14 Ja
Leveres parvis. Bakker BxxFE brukes for stålhylse, og BxxNP brukes for Al-hylse. Bruk indre bakkeholder V1316 og ytre bakkeholder V1318

mm² Bakke Fe Bakke Al Antall pressinger Nettovekt (kg) Bakkeholder kreves
62 B6FE B16NP 2x5 0,1 Ja
99 B8FE B20NP 2x5 0,099 Ja

Ekstra oppbevaringsboks til LV1300B og LV250 som rommer tilbehør til å kontaktpresse Elpress Al-forbindelser.
Egenskaper:
• materiale plywood
• innredningsmateriale polyetylen
• solid, formskåret innredning

Oppbevaringsboks som rommer verktøyet V250 og tilbehør til å kontaktpresse Elpress Cu-forbindelser.
Egenskaper:
• materiale plywood
• innredningsmateriale polyetylen
• solid, formskåret innredning
Skrueforbindelser opptil 36 kV
Elpress skruforbindelser fås som skjøtehylser og kabelsko for:
• fåtrådete og solide Al- og Cu-ledere
• runde tverrsnitt 10 t.o.m. 630 mm²
• sektortverrsnitt 16 t.o.m. 240 mm²

Skruene som brukes, er laget av messing som har fordelen av å gi lavere friksjon sammenlignet med aluminiums- eller stålskruer. Dette gjør det lettere for brukeren å utføre monteringen. Verktøy for monteringen er en pipenøkkel eller en muttertrekker med momentkrefter >100 Nm, og vi anbefaler at montøren bruker et motholdsverktøy for lettere å kunne holde i skrueforbindelsen under tiltrekking av skruene.
Klarer flere arealtrinn
En fordel med en skrueforbindelse er at monteringen enkelt kan gjøres uten tunge spesialverktøy samt at den klarer flere arealtrinn i samme skjøtehylse/kabelsko, f.eks. 10-50 mm². Det gir brukeren et redusert utvalg og en fleksibel løsning. Skrueforbindelser lages av herdet aluminium med en legering som gjør at både kobber- og aluminiumskabler kan skjøtes. Det oppstår ingen galvanisk korrosjon. Skrukabelskoene leveres med utfyllingsskiver som gjør at to ulike boltestørrelser kan brukes for å redusere antallet varianter av kabelsko.
Skiver kreves alltid for tilkobling av kabelsko med skruforbindelser mot skinne.

Skruene trekkes til ved hjelp av pipenøkkel. Du kan også bruke en muttertrekker.
SC50R50S
På skjøtehylsen SC50R50S sitter skruene forhåndsgjengede i hylsen og klarer alle kabelarealene på en gjengelengde. SC50R50S egner seg også svært godt som skjermskjøt for 10-35 mm² Cu/Al.

Skjøtehylse SC50R50S med forhåndsgjengede skruer.
Merking
Elpress’ merking av skrueforbindelser viser logo, produktnavn, kabelareal (for fåtrådete og solide ledere) og monteringsrekkefølge på skruer. Kabelskoplaten er merket med skruestørrelse M-gjenge for skrueforbindelser.
Kat. nr. SL70R70S-10-12
SL = Skrukabelsko
70R = maks. 70 mm² rund leder
70S = maks. 70 mm² sektorleder 10-12 = skruestørrelse 10 og 12M-gjenge
Kat. nr. SC50R50S
SC = skruskjøtehylse
50R = maks. 50 mm² rund leder
50S = maks. 50 mm² sektorleder
For mutter og skrue, av blankgalvanisert type med holdfasthetsklasse 8.8, som brukes for tilkobling av kabelsko med Cuog Al-plate, gjelder følgende:
• Bruk alltid momentnøkkel for å være sikker på at riktig tiltrekkingsmoment oppnås. Sørg for at den kalibreres med jevne mellomrom iht. leverandørens anvisninger.
• Bruk anbefalte momenter iht. skrueprodusentens forskrifter.
• Bruk alltid en hard flatskive for å redusere friksjonen mot anleggsflaten og hullkanttrykket, hardhet min. HB200.
• Monter iht. bildet.

Anbefalte tiltrekkingsmomenter for oljet skrue og mutter av blankgalvanisert type med holdfasthetsklasse 8.8 og grovgjenget (normalgjenget), som brukes med tilsvarende skive for tilkobling av kabelsko med Cu- og Al- plate. Se tabellen nedenfor.
Egenskaper:
• materiale i skruene: messing, for laveste friksjon
• mellomvegg
• forhåndsgjengede bryteskruer for enkel håndtering
• spenningsområde: 1 kV
• oppfyller kravene i normen IEC 61238-1
• PEN er en utfyllingsbit for utfylling ved skjøting av kabelens kobberskjerm

Skjøtehylse SC50R50S med forhåndsgjengede skruer.



Kabeltype rund mm² Kabeltype sektor mm² Navn Skjermleder Skjermleder (med utfyllingsbit)
70-150 70-150 SC150N 120-146 21-95 (SC150N/PEN)
s = avisoleringslengde
Egenskaper:
• materiale i skruene: messing, for laveste friksjon
• mellomvegg
• vendbare bryteskruer
• spenningsområde: 1 kV til 36 kV
• oppfyller kravene i normen IEC 61238-1
• PEN er en utfyllingsbit for utfylling ved skjøting av kabelens kobberskjerm


Kabeltype rund mm² Kabeltype sektor mm² Navn Skjermleder Skjermleder (med utfyllingsbit)
50-95 50-95

s = avisoleringslengde
For skjøting av kobberskjerm rundt ledere kreves det en utfyllingsbit som plasseres mellom skruen og skjermen. For valg av riktig utfyllingsbit, se tabell. Det kreves 2 utfyllingsbiter per skjøt.

SC95N PEN

Navn Skjermleder El-nummer Note
SC95N/PEN 16-57*
SC150N/PEN 21-95
SC240/PEN 29-146 2018291

*16-50 mm² (SC95N) / 16-57 mm² (SC95R95S)
Egenskaper:
• materiale i skruene: messing for laveste friksjon
• forhåndsgjengede bryteskruer for enkel håndtering
• spenningsområde: 1 kV for SL50N-10-12, SL95N-10-12 og
SL240N-10-12, 1-36 kV for øvrige
• oppfyller kravene i normen IEC 61238-1

• kabelskoene er av bimetalltype Kabeltype



t = platens tykkelse, s = avisoleringslengde
Egenskaper:
• materiale i skruene: messing for laveste friksjon
• vendbare bryteskruer
• spenningsområde: 1 kV til 36 kV
• oppfyller kravene i normen IEC 61238-1
• kabelskoene er av bimetalltype for beste funksjon

Skrukabelsko.



t = platens tykkelse, s = avisoleringslengde
Skrugrenklemmer for jordingsapplikasjoner. For avgrening av armeringsjern med fåtrådet jordline i Cu eller Fe.

Navn El-nummer Stk./ pakke
SBC50 2018299 1
Motholdsverktøy for en stabil og sikker montering av skrueforbindelser. Verktøyet er produsert av slitesterkt materiale og er enkelt justerbart for forbindelser opptil 400 mm².

ISL2201
Navn El-nummer Stk./ pakke
ISL2201 2018289 1
Komplette sett – click & heat
Komplette sett for enkel skjøting av 1 kV plastisolert 3-, 4- og 5-ledere.
Settet består av skruskjøtehylser med mellomvegg samt varmkrympisolasjon.
Forbindelsen mellom kabelen og skjøtehylsen skjer ved hjelp av skruer i en skrueforbindelse. Isolasjon skjer med passende varmkrymp.

Slik fungerer det:
• Kabelens ledere skjøtes med en skruskjøtehylse utstyrt med momentskruer som knekker når riktig moment oppnås.
• De ulike faselederne isoleres med varmkrympisolasjon av polyolefin.
• Isolasjonen er innvendig belagt med lim som smelter ved oppvarming.
• Når limet presses ut av den krympede kroppen, er monteringen ferdig, og skjøten blir helt vanntett.
• Sektorformede ledere trenger ikke rundformes.
• Med den medfølgende utfyllingsbiten kan du enkelt skjøte en 3+1-kabel mot en 4G-kabel.

Skjøting av lederen skjer med skruskjøtehylse. Ved hjelp av pipenøkkel trekker du til skruen til den knekker i brytesporet.

Krymping av isolasjonen skjer ved hjelp av varme.
Sett for skjøting av 3-, 4- og 5-lederkabel iht. IEC 60228. For både Cu/Al solide og fåtrådete ledere.

Kabeltype
10-50 16-50
KSC50N-1-4HS 2019578 1
10-50 16-50 KSC50N-1-5HS 2000106 1
35-95 50-95 KSC95N-1-4HS 2019579 1
35-95 50-95 KSC95N-1-5HS 2000107 1
70-150 70-150 KSC150N-1-4HS 2019580 1
70-150 70-150 KSC150N-1-5HS 2000108 1
95-240 95-240 KSC240N-1-4HS 2019582 1
95-240 95-240 KSC240N-1-5HS 2000109 1
Innhold: 1 yttermantel, 4 stk. SC50N, 4 stk. innerslanger samt slipeduk.
Innhold: 1 yttermantel, 5 stk. SC50N, 5 stk. innerslanger samt slipeduk.
Innhold: 1 yttermantel, 4 stk. SC95N, 4 stk. innerslanger samt slipeduk.
Innhold: 1 yttermantel, 4 stk. SC95N, 5 stk. innerslanger samt slipeduk.
Innhold: 1 yttermantel, 4 stk. SC150N, 4 stk. innerslanger samt slipeduk.
Innhold: 1 yttermantel, 5 stk. SC150N, 5 stk. innerslanger samt slipeduk.
Innhold: 1 yttermantel, 4 stk. SC240N, 4 stk. innerslanger samt slipeduk.
Innhold: 1 yttermantel, 5 stk. SC240N, 5 stk. innerslanger samt slipeduk.
Komplette sett – crimp & heat
Komplette sett for enkel skjøting av 1 kV plastisolert 4- eller 5G-kabel av fåtrådete Al-ledere 16-25 mm² samt for skjøting av, eller overgang til, Cu 10-16 mm² klasse 1, 2, 5 eller 6.
Settet består av varmkrympisolasjon og skjøtehylser, som tar flere arealer av kabelen. I konseptet finnes det en skjøtehylse for overgang mellom kobberkabelen og aluminiumskabelen. Brukes bl.a. til å skjøte Al-kabel for belysning og skilt. For å krympe skjøtehylsene trenger du bare ett verktøy, og du kan velge mellom et håndverktøy eller en pressbakke med en åpen matrise som passer i Elpress’ 6-tonns verktøysystem.
Slik
• Kabelens leder skjøtes med hylsene AS1625, AKS1625-1016 eller KSF16.
• Bruk Elpress håndtang EW1025, eller TB-bakkepar TBKA9-11,5 med 600systemet.
• Isolasjonens inner- og ytterslanger er dimensjonert slik at de lett kan påføres før de krympes med varme.
• Isolasjonens lengde er tilpasset slik at de sikkert dekker kabelens primær- og mantelisolasjon.
• Isolasjonen er av tykkvegget type og innvendig belagt med lim, som gjør skjøten vanntett og sterk mot ytre påvirkninger.
• Oppfyller kravene iht. SS-EN 50393. Skjøtehylsene er testet og godkjente iht. IEC 61238-1.
Kit for skjøting av 4- eller 5G-kabel av fåtrådete Al-ledere 16-25 mm² iht. IEC60228, samt for skjøting av, eller overgang til Cu 10-16 mm² klasse 1, 2, 5 eller 6. Oppfyller kravene iht. SS-EN 50393.

Fåtrådet Al

Sett for 4G-kabel.

Sett for 5G-kabel.

Krymping av isolasjonen skjer ved hjelp av varme.
16-25 10-16 KHS-AKS1025-4 1101803 V600, EW1025 4 1 yttermantel, 4 stk. AKS16-25-1016, 4 innerslanger samt slipeduk. 16-25 10-16
KHS-AKS1025-5 1101804 V600, EW1025 5 1 yttermantel, 5 stk. AKS16-25-1016, 5 innerslanger samt slipeduk. 16-25
KHS-AS1625-4 1101801 V600, EW1025 4 1 yttermantel, 4 stk. AS1625, 4 innerslanger samt slipeduk.
16-25 KHS-AS1625-5 1101802 V600, EW1025 5 1 yttermantel, 5 AS1625, 5 innerslanger samt slipeduk.

Komplette skjøtesett for MultiCrimp aluminiumspressing av lavspenningsledere (1 kV) 50-240 mm², iht. IEC 60228 med 1300-systemet. mm² Kabeltype rund mm² Kabeltype sektor mm² Navn El-nummer Note
50-95
KHS-AS5095-1-4
1 stk. yttermantel, 4 stk. innerslanger, 1 stk. rengjøringssett, manual
1
yttermantel, 4 stk. innerslanger, 1 stk. rengjøringssett, manual
185-240 185-240 KHS-AS185240-1-4 1100274 1 stk. yttermantel, 4 stk. forbindelser, 4 stk. innerslanger, 1 stk. rengjøringssett, manual
Avisoleringsverktøy
Til avisolering av kabel har vi f.eks. serien Embla, Tor og Oden, som avisolerer fra ca. 0,02 mm² opptil ca. Ø 40 mm² kabel. Verktøyene kjennetegnes av høy presisjon, ergonomisk tilpasning, brukervennlighet og pålitelighet.

EMBLA, ergonomisk tilpasset avisoleringsog kappeverktøy.

Med et enkelt håndgrep bruker du avmantlingsverktøyet ODEN.
Kappeverktøy
Verktøy fås i flere varianter for kapping av Cu- og Al-kabel opptil ca. Ø 85 mm. I tillegg til de enkleste mekaniske verktøyene som kapper kabler opptil Ø 20 mm, finnes det et stort utvalg hydrauliske verktøy for kabel opptil ca. Ø 85 mm.
Hvor store ledere verktøyet klarer, kommer først og fremst an på hvilken type leder som skal kappes, dvs om det er en lav- eller mellomspenningskabel og om det f.eks. er en solid leder i klasse 1, en fleksibel leder i klasse 5 eller en fåtrådet leder i klasse 2. Hardheten i lederens materiale påvirker også resultatet. PKL54C kan f.eks. kappe en lavspenningskabel av type Cu FKKJ 4 x 95 mm² eller Al AKKJ 4 x 240 mm² eller en mellomspenningskabel av type Al AXLJ 3 x 150 mm². Isolasjonen tar en viss plass på mellomspenningskabelen, og den kan derfor være begrensende.

Verktøy for PEX-kabel
Verktøyene FBS1722 og FBS1723 brukes til å preparere mellomspenningskabel, 12-24 kV, samt fjerne ledende sjikt og PEX-isolasjon.

Det stabile avisoleringsverktøyet FBS1722 gir bedre og jevnere resultat enn de fleste andre avisoleringsverktøy.
Egenskaper:
• klippekapasitet (EMBLA S, standardkassetten): - entrådet leder 1,5 mm² (AWG 16), - flertrådet leder 10 mm² (AWG 8)
• Allsidighet: Enkelheten og å kunne bytte avisoleringskassettene gjør det mulig å avisolere de fleste moderne isolasjonsmaterialer. Arbeidsområdet er det bredeste som finnes innen denne typen verktøy.
• Presisjon: Finjustering gjør det mulig å avisolere tynne isolasjoner uten å skade lederne. Mot slutten av avisoleringen åpnes avisoleringsknivene og holdes åpne under knivreturen, slik at kabelen enkelt og uten riper tas ut av verktøyet.
• Ergonomi: Spesielt utviklet form, mykt gummiinnlegg i det faste håndtaket, lav friksjon, optimalisert håndtaksbredde, vinklet hode og lav vekt sikrer komfortabelt arbeid med lav belastning.
• Lang bruk: Avisoleringskassetter og klippekniver kan byttes ut for lang verktøylevetid.
• Pålitelig: Testet til over 150 000 sykluser. Produsert i høyholdfast plast med dobbelt så høy styrke enn vanlig PA6 (nylon).
Avisolerings- og kappeverktøy.

Embla fås i 3 utførelser:
EMBLA S,
• med avisoleringskniv, rette blad, for PVC-isolasjoner 0,02-10 mm² (AWG 34-8)
EMBLA V,
• med avisoleringskniv, V-formede blad, for hardere isolasjoner 0,1-4 mm² (AWG 28-12)
EMBLA 16,
• med avisoleringskniv, ovalformede blad, for 4-16 mm² (AWG 12-5)
mm² AWG Navn El-nummer Nettovekt (kg) Lengde mm Bredde Høyde
0,02-10 34-8 EMBLA S 8814535 0,184 191 123 20
0,1-4 28-12 EMBLA V 8829206 0,18 191 123 20 4-16 12-6 EMBLA16 8829207 0,182 191 123 20
Avisolerings- og kappeverktøy med rettvinklet håndtak.

mm² AWG Navn El-nummer Nettovekt (kg) Lengde mm Bredde Høyde
0,02-10 34-8 EMBLA RA S 2019566 0,136 144 168 23
0,1-4 28-12 EMBLA RA V 2019568 0,136 144 168 23 4-16 12-6 EMBLA RA 16 2019570 0,136 144 168 23



EMBLA og EMBLA RA kan suppleres med nedenstående avisoleringskassetter for ulike typer kabelstørrelser og isolasjoner. Med et enkelt håndgrep byttes kassettene ut.
EMBLA SP S
• med avisoleringskniv, rette blad, for PVC-isolasjoner 0,02-10 mm² (AWG 34-8)
EMBLA SP V
• med avisoleringskniv, V-formede blad, for hardere isolasjoner 0,1-4 mm² (AWG 28-12)
EMBLA SP 16 med avisoleringskniv, ovalformede blad, for 4-16 mm² (AWG 12-5)
mm² AWG Navn El-nummer Nettovekt (kg)
0,02-10 34-8 EMBLA SP S-CASSETTE 8814541 0,002 0,1-4 28-12
SP 16-CASSETTE 8829208 0,002
SP V-CASSETTE 8814544 0,002 4-16 12-6


Tre avisoleringsfunksjoner.



ODEN avisolerer signal-, telefon- audio-, instrument-, datakabler m.m.

Kabelavisoleringsverktøy for avisolering av kabel Ø 4,5-40 mm
Egenskaper:
• to utskiftbare kroker for ulike kabeldiametere
• låste posisjoner for tverrsnitt, langsgående snitt og spiralsnitt
• avisolering: kabeldiametere 4,5-40 mm, isolasjonstykkelser opptil 4,5 mm
Maks. ø leder Navn El-nummer Nettovekt (kg) Lengde mm Bredde Høyde
4,5-40 TOR 8814536 0,206 150 (167) 42 (52) 31 (31)
Mål: Liten krok / (stor krok)
mm² AWG/MCM Navn
El-nummer Nettovekt (kg)
4,5-40 11-1 TOR SP KNIFE 8814542 0,0013 20-40 4-1 TOR SP BIG HOOK 8814546 0,0400 4,5-25 11-3 TOR SP SMALL HOOK 8814545 0,0400
Avmantlingsverktøy for avisolering av kabel Ø 2,5-11 mm. Brukes for signal-, telefon-, audio-, instrument-, datakabel og lignende.
Egenskaper:
• nøyaktig innjustering og justering utføres med en bryter med ni posisjoner
• avisolering: kabler Ø 2,5-11 mm, opptil 1,0 mm tykke mantler
• fleksibel: avisolerer mantelen på de fleste flerlederkabler og optiske kabler opptil Ø 11 mm
Maks. ø leder Navn El-nummer Nettovekt (kg) Lengde mm Bredde Høyde
2,5-11 ODEN 8814537 0,043 91 40 19
Navn El-nummer Nettovekt (kg)
ODEN SP KNIFE 8814543 0,0001

Avisolerings- og kappeverktøy for kapping og avisolering av ledere 0,5-6 mm².
Egenskaper:
• materiale: stål av høy kvalitet
• klipper 0,5-6 mm² (20-10 AWG)
• avisolerer 0,5-6 mm² (20-10 AWG)
• lett og smidig
• låsbar innstilling mm² AWG Navn El-nummer Nettovekt (kg) Lengde mm Bredde Høyde
0,5-6 10-20 SCT001 8814515 0,102 140 65 10
Kabelsaks for kapping av kabel opptil ca. Ø 10 mm².

Egenskaper:
• kapper Cu- og Al-kabel opptil ca. Ø 10 mm
• ikke beregnet til å kappe stål
• liten og letthåndterlig
• herdede klippeskjær av smistål
• skjærenes utforming gir et rent snitt
Maks. ø leder Navn Nettovekt (kg) Lengde mm Bredde Høyde
10 CT10 0,16 165 50 15
Kabelsaks for kapping av kabel opptil ca. Ø 20 mm².

Egenskaper:
• kapper Cu- og Al-kabel opptil ca. Ø 20 mm
• ikke beregnet til å kappe stål
• stødig og komfortabelt håndtaksgrep
• herdede klippeskjær av smistål
• skjærenes utforming gir et rent snitt
Maks. ø leder Navn El-nummer Nettovekt (kg) Lengde mm Bredde Høyde 20 CT20 8814257 0,471 240 78 21

Kabelsaks for kapping av kabel opptil ca. Ø 15 mm².
Egenskaper:
• kapper mangetrådet Cu- og Al-ledere.
• ikke beregnet til å kappe stål
• liten og letthåndterlig
• profesjonelt verktøy av høy kvalitet
• skjærenes utforming gir et rent snitt
• minimalt kraftbehov
mm² AWG Maks. ø leder Navn El-nummer Nettovekt (kg) Lengde mm Bredde Høyde
95 4/0 15 UP-B41 8814255 0,357 255 25 70
Ikke for ståltråd og ståltrådarmert kabel.
Kabelsaks for kapping av kabel opptil ca. Ø 34 mm.

Egenskaper:
• kapper normale typer Cu- og Al-kabler
• kapper legert friledningsline og BLX opptil 241 mm² (ikke FeAl)
• leveres med slitesterk tekstilveske
Maks. ø leder Navn Nettovekt (kg) Lengde mm Bredde Høyde
34 HKS34 0,908 350 185 60

Kabelsaks for kapping av kabel opptil ca. Ø 50 mm.
Kappeverktøy for stål- og Cu/Al-kabel med utskiftbare knivblad. HKS50 leveres med universalbladet UFE1 for Al/Cu, FeAl-line, fleksibel stålline og stagline. Leveres i en robust tekstilveske med bruksanvisning og rengjøringskam for gjenger.
Egenskaper:
• saksende bevegelse for beste snitt i den kappede kabelen
• enhåndsbetjening forenkler installasjonen
• pålitelig og utprøvd skrallefunksjon
• skift knivblad raskt og enkelt ved å løsne to skruer
• tydelig merkede bruksområder på knivbladene
Maks. ø leder Navn El-nummer Nettovekt (kg) Lengde mm Bredde Høyde
50 HKS50 8829200 1,443 350 185 60

Maks. ø leder Navn El-nummer Nettovekt (kg) Applikasjon
50 UFE2 8829202 0,13 For Cu/Al, fleks. stålline, INOX, FeAl-line, skruer, stagline, pianotråd og solid Cu-kontaktledning.
50 UFE1 8829201 0,104 For Cu/Al, fleks. stålline, INOX, FeAl-line, skruer, stagline og solid Cu-kontaktledning.
30 UFEB 8829205 0,111 For Cu/Al, fleks. stålline, FeAl-line og brukes hovedsakelig til å kappe data-/signalkabel.
50 UFE 8829203 0,104 For Cu/Al-kabel, ren snittflate og beregnet for de fleste fleksible kabler. Klipper ikke stål.

Kabelsaks for kapping av kabel opptil ca. Ø 62 mm.
Egenskaper:
• kapper normale typer Cu- og Al-kabler
• kapper legert friledningsline og BLX opptil 241 mm² (ikke FeAl)
• leveres med slitesterk tekstilveske
Maks. ø leder Navn El-nummer Nettovekt (kg) Lengde mm Bredde Høyde
62 HKS62 8800104 2,005 350 185 60
Kabelsaks for kapping av kabel opptil ca. Ø 80 mm.

Egenskaper:
• kapper normale typer Cu- og Al-kabler
• leveres med slitesterk tekstilveske
Maks. ø leder Navn Nettovekt (kg) Lengde Bredde mm Høyde
80 HKS80 3,199 585 215 65

Kabelsaks for kapping av kabel opptil ca. Ø 35 mm.
Egenskaper:
• saksklipp
• kapper normale typer Cu- og Al-kabler
• leveres med slitesterk tekstilveske
Maks. ø leder Navn El-nummer Nettovekt (kg) Lengde mm Bredde Høyde 35 HKS35F 8814253 1,59 330 185 60
Kabelsaks for kapping av kabel opptil ca. Ø 60 mm.

Egenskaper:
• saksklipp
• kapper normale typer Cu- og Al-kabler
• leveres med slitesterk tekstilveske
Maks. ø leder Navn El-nummer Nettovekt (kg) Lengde mm Bredde Høyde
60 HKS60F 8814254 3,421 470 185 60



FBS1722 leveres med boks, sillikonpasta og bruksanvisning.
Avisoleringsverktøy for fastsittende, ytre ledende sjikt på PEX-kabler.
Egenskaper:
• FBS1722 inneholder avisoleringsverktøyet, 100 g silikonpasta samt bruksanvisning i polstret plastboks
• avisolering kan gjøres fra Ø 10 til Ø 50 mm, noe som tilsvarer opptil 800 mm² ved 12 kV, 630 mm² ved 24 kV og 500 mm² ved 36 kV
• med en bryter stilles skjæredybden inn mellom 0 og 1,2 mm i trinn på 0,1 mm
• avisoleringen kan gjøres frem til 25 mm fra skjermkanten, og PEX-overflaten blir svært jevn hele veien
• skjæret er herdet, min. HRC 55, og spesialslipt, og svært lett å bytte ut
Maks. ø leder Navn El-nummer Nettovekt (kg) Lengde Bredde Høyde
10-50 FBS1722 2070579
Reservedeler til avisoleringsverktøyet FBS1722. RS = reservekniv samt SP = silikonpasta.
Navn El-nummer Nettovekt (kg)
FBS1722RS 2070540 0,006
FBS1722SP 2070541 0,115


FBS1723 leveres med boks, sillikonpasta og bruksanvisning.
Avisoleringsverktøy for avisolering av PEX-isolasjon på mellomspenningskabel.
Egenskaper:
• FBS1723 inneholder avisoleringsverktøyet, 100 g silikonpasta samt bruksanvisning i polstret plastboks
• verktøyet er lett å bruke - roter verktøyet med håndtaket
• avisolering kan gjøres fra Ø 15 til 52 mm, noe som tilsvarer for kabel 12 kV 50-1000 mm², 24 kV 25-1000 mm², 36 kV opptil 630 mm² og 52 kV opptil 500 mm²
• skjærets dybde kan stilles inn fra 0 til 15 mm
• ubegrenset avisoleringslengde
• skjærkniven fås som reservedel
• justerbar mating i 5 posisjoner, skjæret er herdet, min. HRC 55, og spesialslipt samt svært lett å bytte ut
Maks. ø leder Navn El-nummer Nettovekt (kg) Lengde mm Bredde Høyde 15-52 FBS1723 2070580 1,072 275
Reservedeler til avisoleringsverktøyet FBS1723. RS = reservekniv samt SP = silikonpasta.
Navn El-nummer Nettovekt (kg)
FBS1723RS 2070542 0,001
FBS1722SP 2070541 0,115


Elektrisk kabelsaks for kapping av Cu- og Al-kabel, maks. kappediameter 54 mm.
Egenskaper:
• ikke beregnet til å kappe stål
• leveres i en veske med Li-ion-batteri, 14,4 V, samt lader
• verktøyet utfører en saksebevegelse under kapping som gir et optimalt snitt
• innebygd sikring som overspenningsvern
• CE-merket
Maks. ø leder Navn El-nummer Nettovekt (kg) Lengde mm Bredde Høyde
54 PKL54C 2000188 3,6 338 220 120
54 PKL54C-WOBC 3,0 338 22 12

Egenskaper:
• klipper opptil 4x150 mm² Cu-ledere og ∅ 85 mm Al-, papir- og plastisolerte ledere (det kan være begrensninger alt etter lederens design og materiale)
• klipper stålarmerte kabler, men ikke ståltrådarmerte kabler
• brukes med fotpumpen P4000 eller den elektrisk drevne pumpen PS710
• leveres i plywood-kasse
mm² AWG Maks. ø leder Navn El-nummer Nettovekt (kg) Lengde mm Bredde Høyde 630 8-1000 85 KL2585

En serie kabelsakser som dekker nesten alle behov ved klipping av kraftkabler og -liner. Saksehodene (KL) drives med en av Elpress’ pumper, f.eks. fotpumpe P4000 eller pumpe PS710.
Ikke for ståltråd og ståltrådarmert kabel.
Maks. ø leder Navn El-nummer Nettovekt (kg) Lengde mm Bredde Høyde
40 HKL40 8814260 6,058 645 165 85
55 HKL55 8814261 4,133 560 140 55
85 HKL85 8814262 7,6 745 190 72
40 KL40 8814263 4,7 285 105 85
55 KL55 8814264 3,5 300 110 55
85 KL85 8814265 6,7 385 170 75
HKL40 / KL40 / HKL55 / KL55 / HKL85 / KL85


HKL85 og KL85
Hydraulisk håndkabelsaks HKL40 HKL55 HKL85
Hydraulisk kabelsakshode KL40 KL55 KL85
Maks saksåpning Ø 40 Ø 55 Ø 85
Maks. klippekraft, KN 88 43 55
Maks. klippekapasitet, f.eks.
kobberkabel Ø 40
400 (500) mm² 630 mm²
glødet solid leder Ø 20
stang Ø 30
aluminiumskabel Ø 40
3x240+95 mm² 3x240+95 mm² 630 (800 mm²)
glødet solid leder Ø 25
FeAl-line Ø 40 stang ca Ø 40
telefonkabel Ø 55
stålline (<180 daN/mm²) Ø 11 stålstang Ø 18
Fordeler
Elpress system for dypjording har mange fordeler:
• Jordlinen har ingen skjøter – ingen risiko for kontaktfeil.
• Spiss og fremre rør produseres for et stort arealområde; 16-95 mm².
• Kan brukes til ulike typer liner, f.eks. myk eller hard kobber, galvanisert eller rustfritt stål.
• Når det brukes kobberline, fungerer forlengelsesrørene som offeranode og gir god beskyttelse mot korrosjon.
• Full kontroll over at line og spiss følger hverandre og mulighet til å måle avledningsresistansen kontinuerlig.
• Fordi det er få inngående deler i systemet, blir neddrivingen både ukomplisert og driftssikker.
• Systemet har lav totalvekt sammenlignet med andre systemer.
• Totalkostnaden for en ferdig jording blir lavere enn for en som gjøres på tradisjonell måte.
• Rørlengde 800 mm for beste ergonomi.

Radiobasestasjon er en applikasjon for Elpress dypjordingsstasjon.
Teori
Elpress’ idé er et jordingssystem uten skjøter. Elektroden består av en kobberline som drives ned av et system bestående av 0,8 m lange stålrør. En herdet stålspiss baner vei for jordlinen, som stikkes inn i stålspissen og klemmes fast av det fremre røret. For hver 0,8 m nedført line og rør føres det et forlengelsesrør inn i det forrige røret. Fordi avledningsresistansen kontinuerlig kan måles i linens andre ende, avbryter man neddrivningen når den aktuelle verdien oppnås. Deretter dras det siste forlengelsesrøret opp.
Neddrivningen skjer normalt ved hjelp av en slagmaskin med tilpasset slagnakke eller slegge og slaghylse FS62C.

Levetid
Elpress dypjordingssystem består av stålrør og kobberline. Stålrørene fungerer som offeranode med relativt høy korrosjonsstrøm mot kobberelektroden (katoden).
Denne metallkombinasjonen virker stabiliserende og nøytraliserende på omgivelsene. Hvis det ligger en blymantlet kabel i jorden et par meter fra jordingen, blir korrosjonsstrømmen fra blyanoden til Fe+Cu-jordingen 40 % mindre enn verdien en jording uten Fe-rør ville ha gitt. Blymantelen får med andre ord en teoretisk levetid på nesten det dobbelte. Eksperimenter har vist at korrosjonsstrømmen praktisk talt reduseres til null etter noen måneder. Forklaringen er at det dannes et spesielt sjikt –polarisasjonslaget – inntil elektroden. Dette reduserer strømmen og dermed også korrosjonen. Hvor mye den reduseres, avhenger bl.a. av jordens egenskaper. En vekselstrømsbelastning bør teoretisk motvirke korrosjonen. Det betyr at den praktiske levetiden ofte blir lengre enn den teoretiske.
Elpress-systemet består av følgende 5 deler:
• herdet stålspiss
• fremre rør
• forlengelsesrør
• slagnakke/slaghylse
• jordline (fås hos grossist)
Funksjonen er enkel
• jordlinen stikkes inn i den herdede stålspissen og klemmes fast av det fremre røret.
• forlengelsesrørene er utstyrt med en styrepinne, som under arbeidet skyves inn i det forrige røret.
• avledningsresistansen kan måles kontinuerlig. Når den aktuelle verdien oppnås, avbryter man neddrivningen før det siste forlengelsesrøret dras opp (som dermed kan brukes om igjen).

Praktiske råd:
1. Planlegg jordingen. Hvilke grunnforhold gjelder?
Normal og løs jord - stålrør Ø 17 mm er nok.
Hard og steinete jord - stålrør Ø 21 mm (type HD) bør brukes. Er det mulighet for parallelle jordinger?
2. Fastsett jordens resistivitet. Ut fra denne og den maksimale avledningsresistansen kan man anslå hvor mye line som kreves.
3. Start neddrivingen ved å låse fast linen i den herdede spissen med det fremre røret. 16 mm² line bør brettes dobbelt før spissen slås på. Ved løs jord er det nok med slegge og slagbolt. I tyngre jord/ større dybde bør det brukes slagmaskin. OBS! Slagnakken må ikke rotere under arbeidet.
4. Kontroller at linen holder samme hastighet ned i jorden som røret. Hvis den ikke gjør det, har du følgende muligheter: - det kreves mer rør enn line; røret kan ha bøyd av og går da parallelt med jordoverflaten, og linen følger ikke røret gjennom jorden.
- røret fortsetter og linen stopper; linen har løsnet og kan dras opp, eller så har spydet slått seg inn.
- begge stopper; det er truffet på stein eller fjell. Hvis steinen ikke sprekker etter ca. 10 sekunder, må man starte på nytt.
Ved avbrutt neddriving starter du på nytt med en avstand på minst 1,5 ganger linelengden som allerede er drevet ned.
5. Mål avledningsresistansen kontinuerlig under neddriving av jordlinen. Ordne ev. parallelle jordinger. Skjøting og avgrening av jordlinen kontaktpresses ved hjelp av Elpress skjøtehylser eller avgreningshylser og verktøy.

Resistivitet under forskellige jordforhold.



Elpress dypjordingssystem FS består av 3 deler. Spiss (FS1x), fremre rør (FS2x) samt forlengelsesrør (FS3x).


Spiss, med herdet stål ytterst. Passer til FS21 og tillater bruk av ulike typer jordliner.
mm² Navn
El-nummer Nettovekt (kg) Lengde mm
Fremre rør av stål, utstyrt med riflet spor for effektivt feste av jordlinen. For løse og normale jordforhold.
ø Navn El-nummer Nettovekt (kg) Lengde mm 17 FS21 1285831 0,644 800
Forlengelsesrør av stål, utstyrt med styretapp som passer innvendig i forrige rør. For løse og normale jordforhold.
ø Navn El-nummer Nettovekt (kg) Lengde Note 17 FS31 1285837 0,804 870 Lengde inkl. styretapp
Elpress dypjordingssystem med grovere rør for tøffere grunnforhold FSHD (HD: ”Heavy Duty”) består av 3 deler. Spiss (FSHD1x), fremre rør (FSHD2x) samt forlengelsesrør (FSHD3x).

Herdet stålspiss beregnet for hard og steinete jord. Brukes sammen med fremre rør FSHD23.
mm² Navn El-nummer Nettovekt (kg) Lengde mm
25-70 (95) FSHD11 1285836 0,254 153

Fremre rør av stål, utstyrt med riflet spor for effektivt feste av jordlinen. Beregnet for hard og steinete jord.
ø Navn El-nummer Nettovekt (kg) Lengde mm
21 FSHD23 1285835 1,088 800

Forlengelsesrør av stål, HD, utstyrt med styretapp somm passer innvendig i forrige rør. Et stødigere rør beregnet for hard og steinete jord.
ø Navn El-nummer Nettovekt (kg) Lengde mm Note
21 FSHD31 1285838 1,224 870 Lengde inkl. styretapp

Drahåndtak med gripevennlig konstruksjon som forenkler opptrekking og gjør det mulig å bruke det siste forlengelsesrøret FS3x / FSHD3x om igjen.
ø Navn El-nummer Nettovekt (kg) Lengde mm Bredde

Slaghylse som brukes ved neddriving med slegge og lignende for å hindre at rørenden deformeres. Spesielt utformet for bruk med FS21-/FS31-rør.
Navn El-nummer Nettovekt (kg) Lengde mm Bredde
1285817 1,018 110 45

Slagbolt som brukes ved neddriving med slegge og lignende for å hindre at rørenden deformeres.
Navn El-nummer Nettovekt (kg) Lengde mm Bredde FS61 1285800 0,081 58 22

Slaghylse som brukes ved neddriving med slegge og lignende for å hindre at rørenden deformeres. Spesielt utformet for bruk med FSHD23-/FSHD31-rørene.
Navn El-nummer Nettovekt (kg) Lengde Bredde
FSHD62C 1285816 0,93 110 45

• spesielt konstruert for bruk med FS21- og FS31-rørene
• beskytter rørenden mot deformasjon ved neddriving med slagmaskin
• for rør av FS-type med ytre diameter 17 mm
• merket med katalognummeret
Navn Verktøy El-nummer Nettovekt (kg) Skaft ø Flenslengde Note
FS71C BBD 12 TS, BHB 14
FS72C BBD 12 T-01, Cobra 148/248, Pico 20, RH 571 5L/5LS, RH 658 5L/5LS, BHB 25
FS73C TEX 23E, TEX 25E
FS81C TE 52, TE 72, TE 92
FS83C USH27
FS85C BHF 25, BHF 30S 1285810 2,13
FS88C TE905/TE805 1285813 1,66
FS81D SDSMax Syst. 1285811
FS74C TEX 11-DCS, TEX-11-DKS, BR 37, BR 45, DR 19
FS77C TEX 31/31s, TEX41/41s, BR 67 UK BR 87 UK
Fås også i HD-versjon for rør med ytterdiameter 21 mm
Fås også i HD-versjon for rør med ytterdiameter 21 mm
Fås også i HD-versjon for rør med ytterdiameter 21 mm
En jording er en leder som er lagt i jorden for å avlede elektrisk strøm fra et anlegg som er koblet til jording og ut til den omkringliggende jorden.
En kunde som kjøper strøm, tar jording for gitt. Dette til tross for at bruk av strøm uten eller med dårlig jording, skjer under stor risiko. Alle strømleverandører må ha godkjent jording ved sine anlegg. Det betyr at overspenninger som kan oppstå av ulike årsaker, skal ledes ned i jorden slik at de ikke forårsaker skader. Jording fungerer altså som bl.a. personbeskyttelse, eiendomsbeskyttelse, signaloverføringsbeskyttelse, lynbeskyttelse og lignende. En godkjent jording bør ha: (1) lav elektrisk resistans, (2) evne til å lede spenning stabilt (til tross for værendringer) og (3) lang levetid, dvs. god motstand mot korrosjon.
Jordforhold eller ytre forhold?
Jordens betydning som leder av elektrisk strøm, er stor. De tekniske spesifikasjonene og kravene som finnes når det gjelder jording, viser fordelene som dypjording har, både som teknisk og økonomisk løsning, i forhold til overflatejording. Strømledning skjer i jorden gjennom elektrolytiske prosesser, såkalt ionledning. Faste partikler som gruskorn er som regel ikke ledende.
Jordens elektriske ledeevne avhenger derfor hovedsakelig av andelen saltholdig vann som bindes gjennom kapillærkrefter og osmotisk trykk i porene mellom sandkorn og i hygroskopiske humuspartikler (f.eks. leire).
Vannet i dyperliggende jordlag har som regel høyere saltinnhold enn vannet i overflatelaget. Jo høyere fuktighetsinnhold jorden har, desto bedre er ledeevnen. Jordens fuktighet varierer normalt mellom 5-40 %. Ved variasjoner under 14-18 % går ledeevnen betydelig ned. Kulde (frost) svekker jordens ledeevne betydelig. Det er svært viktig at man ved en jording eller et jordingssystem tar hensyn til alt dette.
Værforholdene - kulde, varme, regn og vind - påvirker hovedsakelig jordens øvre lag (0-1,5 m), som derfor viser de største variasjonene. Den mest effektiv jordingen oppnår man altså når elektroden plasseres dypt nok til at den ikke påvirkes av endringer i jordens fuktighet og temperatur.

i forhold til fugtighed.

Jordens resistivitet i forhold til temperaturen.

Resistivitet under forskellige jordforhold.
Man fastsetter kvaliteten på jordens elektriske egenskaper ved hjelp av dens resistivitet, som måles i Ωm (tidligere enhet Ωcm, 1 Ωm = 100 Ωcm). Jord med god elektrisk ledeevne har dermed lav resistivitet: 10-100 Ωm.
For hvert tilfelle av ulike jordarter må jordresistiviteten måles, og dette helst i flere årstider og under ulike værforhold. Ved måling brukes det i dag nesten utelukkende spenningskompenserte elektroniske resistansbroer (målemetode iht. Wenner) med 4 tilkoblingskontakter, der 2 er for strømelektroder og 2 for spenningssonder.
Kontaktene kobles til 4 vertikale metallspyd som slås ned i rekke ca. 0,3-0,5 m dypt på en avstand a meter fra hverandre. (Se bilde)
Hvis instrumentets avlesning er R, beregnes jordens resistivitet iht. følgende ligning: p = 2 x a x R Ωm I ikke-lagdelt jord er resistiviteten uavhengig av elektrodeavstanden a. Ved å øke avstanden a trenger strømmen dypere ned i jorden, og den målte resistiviteten kan synke eller øke avhengig av resistiviteten til jordlaget som ligger på ca. l meters dybde. Ved omtrentlig beregning av jordingens avledningsresistans når jordingsdybden er l, må jordens resistivitet måles med elektrodeavstand a ≈ 0,75 x l.

Måling af jordens resistivitet.

Måling av jordingens avledningsresistans
På grunn av jordens høye resistivitet (109 x resistivitetmetall) dannes det ved strømavledning i jorden et kraftig elektrisk felt rundt jordingen, noe som avtar i styrke med avstanden fra jordingen. På en viss avstand kan dette feltet neglisjeres (fjernet jord).
Jordingens avledningsresistans måles som regel med samme type instrument som brukes ved måling av jordens resistivitet. Under denne målingen trenger man imidlertid bare en spenningssonde og en strømelektrode (hjelpejording). Plassering av sonder og elektroder varierer mellom ulike målemetoder. De to metodene som følger, er en måleteknisk nøyaktig metode og en mer praktisk, forenklet metode.

Måling af jordingens overgangsmodstand
- Metode 1
Metode 1 (iht. lynbeskyttelsesstandarden SS 4870110). Denne metoden har en målefeil på + – 2 %.
Oppsummert sier denne metoden:
- Sonden og hjelpeelektroden plasseres iht. figuren i rett line fra jordingen som skal måles.
- Hvis grunnen er lagdelt, bør målingen utføres i to retninger. Den største verdien brukes.
- Måleresultatets pålitelighet avhenger av plasseringen av sonden/hjelpeelektroden. Se avstandstabellen nedenfor. Disse gir normalt akseptabel målenøyaktighet. jording - sonde = 0,5a-0,6a jording - elektrode = a a ≥ 40 m hvis l ≤ 4 m a ≥ 10 x l hvis l > 4 m

Måling af jordingens overgangsmodstand
- Metode 2
Metode 2
(iht. EBR-standard U2:80)
Denne metoden har en målefeil som normalt er større enn 2 %, men den er enklere å utføre enn metode 1.
Oppsummert sier denne metoden:
- Sonder og elektroder plasseres iht. figuren, 90° fra jordingens hovedretning.
- Plasseringen av sonde/elektrode er like ved måling av så vel enkel jording som jordingssystem, dvs. minst 80 m fra jordingen.
- Oppmåling av et jordingssystem skjer med åpen jordlederklemme.
- Oppmåling av resulterende overgangsresistans på flere jordingssystemer skjer med lukket klemme og med måleledningen koblet til på oversiden av jordlederklemmen. Ved hjelp av ledningsevnen og den maksimale avledningsresistansen, som bl.a. kreves i sterkstrømsforskriftene, kan man anslå hvor mye line man trenger i henhold til formelen:
l = lengde i meter
l = p / R
p = jordresistiviteteten i ohmmeter
R = avledningsresistans i ohm.
I diskusjonen om fordelen med dypjording sammenlignet med overflatejording, kan det her nevnes at for lik lederlengde er avledningsresistansen for en horisontal dypjording dobbelt så stor som for en dypjording, dvs.
R0 = 2 x p / l
Parallellkobling
Parallellkobling av flere jorduttak er av praktiske årsaker ofte nødvendig for å oppnå lav nok verdi på avledningsresistansen ved jording. For å begrense gjensidig kobling mellom individuelle jordinger, skal dypjording anbringes på en avstand a av 1,5 ganger jordingens dybde l. Resulterende avledningsresistans:
Rres = k x Rm der Rm er middelverdien av jordingens resistansverdi og k en reduksjonsfaktor, hvis verdi er hentet fra tabellen nedenfor. Økonomisk sett kan det poengteres at jordingens diameter spiller en ubetydelig rolle ved beregning av avledningsresistansen ved dypjording. Så når det brukes Elpress dypjordingssystem med kobberline, blir kostnaden lavere enn hvis det f.eks. brukes tradisjonelle systemer. Det som i praksis har betydning når det gjelder linediameteren, er hvilke strømmer man dimensjonerer systemet for og hvilke regler og krav som gjelder.
Eksempler på gjeldende krav: lynbeskyttelsesstandarden sier Cu-line min. 25 mm², EBR foreskriver min. Cu-line 35 mm² ved jording i luftledningsnett og min. 50 mm² ved jording i jordkabelnett.
Antall parallelle jordinger k for a = 1,5l

Parallelkobling Korrosjon
Levetiden til en jording avhenger av hvor god motstand mot korrosjon (rust) den har. Forutsetningen for alle typer korrosjon er en elektrolyttvæske som gjør det mulig å transportere positive metallioner fra anode til katode. Ved anoden oppløses metallatomer i elektrolytten og danner frie positive ioner - oksidering - og ved katoden der disse ionene nøytraliseres og deponeres på metalloverflaten - reduksjon.
Ved galvanisk korrosjon som forårsakes av kontakt mellom to metaller, er korrosjonshastigheten proporsjonal mot den galvaniske spenningen mellom metallene. Uedle metaller har høyere negativt potensial enn edlere metaller og utgjør derfor anode i en korrosjonsprosess.
Det er også en klar sammenheng mellom korrosjonshastigheten og jordresistiviteten. Korrosjonshastigheten avhenger av jordens sammensetning. Påvirkende faktorer er jordens pH-verdi, temperatur, oksygeninnhold, vanninnhold og resistivitet. Disse faktorene påvirker korrosjonsstrømmen lk, som er direkte proporsjonal med korrosjonshastigheten. lk kan fastsettes direkte måling med et A-meter eller beregnes, hvis overgangsresistansen Rö mellom de to elektrodene er kjent, i henhold til formelen:
lk = Ug / Rö Ug = den galvaniske spenningen Rö kan i enkelte tilfeller måles med en resistansbro av samme type som brukes ved måling av en jordings avledningsresistans. Korrosjonshastigheten uttrykkes ofte i μm/år, der 1 μm utgjør 1/1000 av 1 mm og betegner tykkelsen av det bortkorroderte ytre metallaget i 1 år. Tabellen nedenfor angir noen praktiske verdier som målepunkter ved ulike jordresistiviteter.
Resistivitet Korrosjon
p < 1 Ωm 100 μm/år
p = 1-10 Ωm 100-30 μm/år
p = 10-100 Ωm 30-4 μm/år
p > 100 Om ubetydelig

Det finnes et stort utvalg elektriske forbindelser i dag, og det kan være vanskelig å vite om man har valgt riktig løsning for installasjonen.
Et første skritt er å forsikre seg om at man velger et system som består av forbindelse, verktøy og en normert leder.
For at denne kombinasjonen av materialer skal kunne klassifiseres som et system, må det foreligge et felles testgrunnlag, en typetest iht. en norm som er relevant for materialet.
Det kan også være behov for å identifisere riktig forbindelse avhengig av kabelklasse. Kabler deles inn i ulike klasser avhengig av oppbygningen.
Med System Elpress har man en komplett løsning, KRF/KSF i kombinasjon med Dual kan kombineres med alle Cu-kabelklasser. Elpress’ system for dorpressing av aluminium er en robust løsning som kan brukes med alle typer al-kabler. Å ikke velge et system, medfører stor risiko. Alle forbindelser er konstruert med hensyn til et bestemt verktøysystem. Små målforskjeller på forbindelser og verktøy kan gi alvorlige konsekvenser, som varmgang eller brann.
Forbindelser
Elpress’ forbindelser er utviklet gjennom 60 års kontinuerlig arbeid for å alltid tilfredsstille de strengeste krav. Våre forbindelser er designet for å kunne brukes under en kontinuerlig temperatur på 90 °C og for alltid å kunne bære samme last som det aktuelle kabelarealet klarer.
Dette betyr blant annet at rørene til våre KRF/KSF er dimensjonert etter kabelens ledeevne.
Denne typen forbindelser skal presses med en heksagonal geometri, som gir en symmetrisk form som fordeler presskraften jevnt og sikrer at tynne tråder ikke skades og reduserer forbindelsens levetid.
Våre aluminiumsforbindelser er designet iht. de samme kriteriene og kravene som er nevnt ovenfor, og skal presses med et dorverktøy som garanterer at aluminiumens isolerende oksidlag brytes og at det skapes gode kontaktpunkter mellom leder og forbindelse.
Kabler
Elpress’ forbindelsessystemer er designet for å brukes sammen med kabler iht. IEC 60228. Dette er en internasjonal norm som brukes over hele verden og som beskriver en kabels oppbygning og ledeevne (Ω/km)
Normen deler kabler inn i klasser iht. bildet nedenfor.
Kablene i de ulike klassene skal ha mekaniske og elektriske egenskaper som tilsvarer kravene i normen, noe som betyr at de kan brukes med System Elpress uten spesiell tilpasning.
Forskjellene på de ulike kablene ligger, i tillegg til klassifiseringen av lederne, hovedsakelig i utformingen av isolasjonen.
Opplærte brukere
Et annet viktig aspekt i et system, er en kompetent og opplært operatør. For å kunne utføre et godt og sikkert arbeid, kreves det kunnskap om materialer, regler og viktigheten av å bruke en systemløsning. Vi tilbyr bedriftstilpassede opplæringer med både teoretiske og praktiske deler.

Sekskantpressing.

Dorpressing.


SEK - Svensk elstandard, https://elstandard.se
Standarder for elektriske forbindelser
SEK Svensk Elstandard er oppnevnt av regjeringen til å ha ansvaret for all standardisering innen elektrisitet i Sverige.
Standardene utformes hovedsakelig gjennom internasjonalt og europeisk samarbeid i organisasjonen IEC (International Electrotechnical Commission) og CENELEC (Comite’ Européen de Normalisation Electrotechnique).
Der representerer og samordner SEK svenske bedrifter og myndigheter. Disse normene er tilgjengelige på SEKs hjemmeside. Der finner du også håndbøker som viser regler og anbefalinger for ulike typer installasjoner.
Når det gjelder typetesting av elektriske forbindelser, er gjeldende standard IEC 61238-1-1, som erstatter alle nasjonale standarder. Den har vært aktiv siden 1993 og ble sist oppdatert i 2018, og er dermed den normen som best tilsvarer kravene som kan stilles til dagens installasjoner.
I tillegg til denne er det en lang rekke mer bransjespesifikke normer for f.eks. jernbane eller fordelingsanlegg der det, i tillegg til kravene i IEC 61238-1-1, kan være behov for vibrasjons- og miljøtester.

IEC, https://www.iec.ch/

CENELEC
https://www.cenelec.eu
Tester mot standard
Mange eksisterende produkter for elektriske forbindelser er eldre enn IEC 61238-1-1. Dette betyr ikke at de må testes på nytt mot den nye normen for å kunne brukes, da det er normen de ble testet mot ved lansering som gjelder. Dette er sjelden et problem da de trolig brukes i installasjoner av samme alder. I nyere installasjoner med høyere krav til strøm og temperatur er det viktig å velge materialer som er testet iht. gjeldende normer.
For å oppnå et godt pressresultat må man sikre rene lederflater uten synlige oksidlag.
Et godt kabelavisoleringsverktøy er en garantist for ren avisolering uten skader på enkelttråder. Følg Elpress’ anvisninger for avisoleringslengder.
Pressverktøy skal kontrolleres før arbeidet starter for å unngå risiko for personskader og sikre et godt resultat.
Pressbakkene er nøkkelen til en vellykket krympeprosess, uansett om de betjenes med hydraulikk eller håndkraft. Det er svært viktig at alle verktøydeler oppbevares tørre og rene og at de regelmessig kontrolleres for skader.
Skader og/eller forurensninger på verktøydeler kan gi et dårligere sluttresultat og redusert levetid på verktøyet

Instruksjoner og anvisninger
Elpress hydrauliske og mekaniske verktøysystemer er blant markedets sikreste.
Sikkerheten forutsetter at instruksjoner og anvisninger er tilgjengelige og følges nøye. Hvert Elpress-verktøy leveres derfor med en utførlig instruksjon om hvordan verktøyet skal brukes. Disse instruksjonene bør leses nøye før bruk, til operatørens eget beste.
Riktig bruk av verktøyene:
• øker produktiviteten
• øker verktøyenes levetid
• sikrer kvaliteten på utført arbeid
• minimerer risikoen for ulykker
Sikkerhetsregler
Nedenfor er noen enkle og vanlige regler som vi i Elpress anbefaler at alle operatører følger:
• Før man starter et arbeid med et pressverktøy, bør det utføres en grundig visuell inspeksjon. Det kontrolleres at pumpe, presshode, gafler, koblinger, slanger og andre komponenter er feilfrie og rene. Det skal også kontrolleres at innsatsene er riktig plassert i gaflene før arbeidet starter.
• Alle operatører skal bruke sikkerhetsutstyr, slik som f.eks. A51-hansker, vernebriller og vernesko.
• En slange som er bøyd eller knekt må ikke tilføres hydraulisk trykk. Slangen er laget for spesielt høyt trykk og må ikke erstattes av en annen type.
• Hydraulisk verktøy må aldri løftes etter slangen eller koblingen.
• Vær forsiktig så du ikke mister tunge gjenstander på hydraulikkslangen. Det kan skade stålarmeringen og forårsake lekkasje. Hvis det oppstår lekkasje, kan olje under høyt trykk treffe og trenge inn i huden og dermed føre til indre skader. Hvis dette skulle skje, må du umiddelbart kontakte lege.
• Verktøyene skal vedlikeholdes og kalibreres med jevne mellomrom.
• Kontroller at du har valgt riktig verktøy eller verktøyinnsats for forbindelsen og lederen som skal presses.
• Kontroller at anlegget er spenningsløst før du utfører arbeidet. Verktøyene er ikke konstruert for såkalt AUS, ”arbeid under spenning”.
• Vær klar over at det er snakk om svært høy presskraft. Stå derfor aldri foran et verktøy i presskraftens retning.
• Vær oppmerksom på risikoen for klem- og skjæreskader under arbeidet. Dette gjelder for alle typer pressverktøy og kabelsakser.
• Ved mistanke om feil på et pressystem, må du alltid kontakte Elpress serviceverksted.
Kontroll av pressresultat
For å sikre at verktøyet gir den forhåndsbestemte formendringen for kabelforbindelsen, må pressresultatet måles. Denne formendringen gir både mekanisk holdfasthet og gode elektriske egenskaper.
Heksagonal pressing
For kabelsko og skjøtehylser av kobber gjelder følgende:
• Kontroll av målet ”N” skjer i pressretningen.
• Mål med skyvelære, og sammenlign med tabellens ”N”-mål.
• Hvis måleresultatet overskrider ”N”-målet (iht. tabellen nedenfor) etter riktig utført kontaktpressing, ta kontakt med Elpress serviceverksted.

Pressbakke tabell type KRF/KSF med Dual-bakker (N-mål)
Type KRF/KSF med DUAL-bakker
KRF/KSF DB-bakke nr. maks. N mm
8 6,7
9 7,5
11 9,0
13 10,6
14,5 11,8
17
Pressbakke tabell type
(N-mål)
Type KRT/KST med B-bakker
Pressbakke tabell type KRD/KSD (N-mål)
Type KRD/KSD med B-bakker KRD/KSD Bakke nr. maks. N mm
16 8 6.3
25 9 7.3 35 11 8.8 50 12 10.2 70 14 11.6 95 16 13.0
120 19 15.0 (KB-bakke)
120 19 15.2
150 22 16,3 185 25 20.1 185 25 20,3 (CB- og KB-bakker) 240 27 20.5
300 30 23.3 400 32 24.5
Pressbakke tabell type KRF/KSF (N-mål)
Type KRF/KSF med B-bakker
KRF/KSF
Oval pressing
For avgreningshylser av Cu gjelder kontroll av målet ”h”. Dette skjer på den pressede ovalens maks. høyde, fortrinnsvis med skyvelære. Målene sammenlignes med tabellen nedenfor. Hvis ”h”-målet overskrides etter riktig utført kontaktpressing, ta kontakt med Elpress serviceverksted. Se målepunkter på bildet nedenfor.

Pressbakke tabell type C-hylser (H-mål)
C-bakke nr. Hylse maks. h mm
5 C6-10 12,5
6 C16-25 15,5
8-9 C25-50 22,0
13 C50-70, C7095 26,5
15 C95-120 30,8
18 C150-185 44,5
21 C240-300, C23 54,4
Dorpressing
For Al-forbindelser gjelder kontroll av målet ”T”, som måles i bunnen på deformasjonen som doren har laget på kabelforbindelsen. Dette kan gjøres med et spesialskyvelære. Ta kontakt med Elpress ved behov. Sammenlign ”T”-målet med tabellen. Hvis ”T”-målet overskrides etter en utført dorpressing, kan du kontakte nærmeste Elpress serviceverksted. Se målepunkter på bildet nedenfor.

Pressbakke tabell type AK/AS
Type AS/AK/AKK
Verktøy AS/AK/AKK Matrise Dor
16 P13M/TP13M P13D/TP13D 6,8 25 P13M P13D 6,8 35 P20M
P25M P25D 13,5 150SOLID 13P29M 13P29D 14,3 185 P32M P32D 18,4 240 P32M P32D 18,4
300 P36M P36/40/44D 21,0
300B 13P37M/P2537M 13P37D/P2537D 22,5
400B 13P37M/P2537M 13P37D/P2537D 22,5
400 P40M P36/40/44D 22,8
500B P44M P36/40/44D 24,5
500A P2552M P2552D 31,0
630A P2552M P2552D 31,0
630 W60M W60D 36,0
800 W60M W60D 36,0
1000 W60M W60D 36,0
1200 W70M W70D 41,0
Bolteforbindelse
Montering av en kabelsko med bolteforbindelse for elektrisk overføring krever spesiell oppmerksomhet. Det er viktig at dette gjøres på en riktig måte, like viktig som kontaktpressingen i den andre enden av kabelskoen.
Forbindelsen skal gi høy nok klemkraft, fordelt på ønskelig måte samt sikre de elektriske egenskapene over svært lang tid under høye og varierende belastninger av ulik art. Det er svært viktig å følge monteringsanvisningene. Disse er basert på teoretiske beregninger, verifiserte tester og erfaring fra feltstudier. Tiltrekkingen skal skje på en kontrollert måte ved hjelp av momentnøkkel, der den aktuelle skruen strammes til riktig nivå ved hjelp av det angitte momentet. Verktøyets nøyaktighet har stor betydning. Klemkraften som en riktig tiltrukket skrue oppnår, skal i en elektrisk forbindelse skape en kontaktflate som er stor nok til å sikre god ledeevne, uten fare for overoppheting. For at klemkraften skal fordele seg jevnt og skape en stor nok kontaktflate, må man alltid bruke harde flatskiver, type BRB HB200 SMS 70, under skruehode og mutter. Se bilde nedenfor. Det gjelder uansett hardhet på de ledende materialene (som er mykere enn HB200). Ellers risikerer man stor deformasjon på det ledende materialet og dårligere stramming, noe som kan øke risikoen for utilstrekkelig kontaktflate og overoppheting.

Bruk av ulike typer låseelementer eller fjærskiver øker ofte risikoen for setning. Hvis en spennskive av type DIN 6796, med svært høy spennkraft, plasseres og festes mellom f.eks. mutter og den harde flatskiven, kan det gi en økt margin mot altfor stor setning. Spennskivens diameter bør være mindre enn eller lik flatskivens, også etter full tiltrekking. Ellers øker risikoen for setning ved flatskivens ytterkant, der spennkreftene da konsentreres. Ved bruk av spennskive er det nok med 1 stk., og den bør helst plasseres på motsatt side av kabelskoen.

Montering av kabelsko mot tilkoblingsskinne
Maks. 2 stk. kabelsko av samme størrelse på samme skrue. Strømlast bør kontrolleres.
Forberedelser:
• Rengjør kontaktflater for skitt, oksidlag og fett ved hjelp av stålbørste og T-sprit. Dette er spesielt viktig for aluminium. Overflater som er fortinnet, forniklet, sølvbelagt må ikke børstes.
• Vaselin eller kontaktfett reduserer risikoen for korrosjon på rengjorte flater
Valg av festeelement:
• Skrue og mutter av holdfasthetsklasse 8.8.
• Smurt galvanisert skrue gir minst spredning av forspenningskraften.
• Velg rustfritt A4-80 i miljøer når det er stor risiko for korrosjonsangrep.
Valg av skiver:
• Velg alltid hard flatskive type BRB, HB200.
• Spennskive kan normalt utelukkes. Hvis det brukes spennskive type DIN 6796, skal den legges mellom skruehodet/ mutteren og flatskiven. Den må aldri legges direkte mot elektrisk kontaktflate uten en flatskive mellom. Flatskiven skal ha en ytre diameter som er minst like stor som spennskiven.
• 1 stk. spennskive er tilstrekkelig, og den bør legges på skinnens bakside, mellom mutter og hard flatskive. Se skisse.
Installasjon:
• Skruene skal trekkes til med momentverktøy for å sikre kontrollert tiltrekking.
• Momentnøkler skal kalibreres regelmessig. Smør skruen ved montering. Selv om momentet registreres riktig, er forspenningskraftgen helt avhengig av friksjonen.
• Tiltrekkingsmomentet iht. tabell. Nøyaktighet bedre enn ±5 %
• Kabelskoens plate og skinnen kan være av ulike materialer.
Al/Al gir en svakere forbindelse. Viktig å rengjøre og bruke kontaktfett. Spennskive + flatskive kan redusere risikoen for setning.
Al/Cu gir høyere risiko for korrosjon og setning, bruk kontaktfett.
Cu/Al gir lav risiko for galvanisk korrosjon nå skinnen er av Al.
Cu/Cu gir den beste forbindelsen, god kontakt og liten risiko for setning.
Anbefalte tiltrekkingsmomenter Gjenge
Mv = tiltrekkingsmoment (Nm)
Ff = forspenningskraft (kN) p = flatetrykk (N/mm²)
FZB = galvanisert + blankkromatert
FZY = galvanisert + gulkromatert
FZM = FZM= mekanisk forsinket
* (FZB, FZY, FZM)
A4/80
Service og vedlikehold
Elpress serviceavdeling vedlikeholder, reparerer, kontrollerer, kalibrerer og sertifiserer Elpress verktøy. Når serviceavdelingen har gått gjennom utstyret, utstedes sertifikater som verifiserer verktøyenes ytelse. For å sikre at de pressede forbindelsene holder en høy og jevn kvalitet, skal det gjøres regelmessige kontroller av kontaktpresseverktøyene.
Vi tilbyr:
• Avtale om forebyggende vedlikehold, Elpress Basic og Elpress Advance
• Kalibrering av verktøy
• Reparasjon (service på verktøy)
• Utleie av pressutstyr

Forebyggende vedlikehold
Elpress service tilbyr en fleksibel serviceløsning for økt trygghet med rask service og høy tilgjengelighet. Våre serviceavtaler fås i 2 nivåer, Elpress Basic og Elpress Advance. Å inngå en serviceavtale med Elpress innebærer følgende:
• Planlagt og forebyggende vedlikehold gir økt ytelse på utstyr
• Periodiske serviceintervaller reduserer risikoen for uforutsette driftsopphold ved at man kan påvise eventuelle sikkerhets- eller funksjonsfeil og anbefale tiltak for å unngå disse
• problemene
• Periodiske serviceintervaller utføres vanligvis med 12 måneders sykluser til en fast pris
• Pris fastsettes ut fra nivået på serviceløsningen og verktøyutstyret
• Sertifikat utstedes når utstyret tilfredsstiller kalibreringskravene
• Kalibrering kan også gjøres ute hos kunden

Elpress Basic
Dette er en grunnleggende serviceavtale som omfatter følgende punkter:
• Overgripende inspeksjon av verktøyet
• Sikkerhetsaspekter iht. samsvarserklæring (i samsvar med maskinsikkerhetsdirektivet, lavspenningsdirektivet, EMC-direktivet).
• Funksjonstest
• Kontroll av tilbehør, slik som pressbakker osv.
• Utstedelse av sertifikater
• Inspeksjonen følger Elpress’ krav til sluttkontroll og mottakskontroll. Elpress Advance Elpress Advance inneholder:
• Elpress Basic + avhjelpende vedlikehold Inkluderer kalibrering med sertifisering og slitasjereparasjoner til en fast kostnad.

Kalibrering med sertifisering av verktøy
Kalibrering følger samme punkter og krav som Elpress Basic, men det er kundens ansvar å sende inn verktøyet for kalibrering.
Utleie av kontaktpressingsutstyr
Noen ganger kan det hope seg opp mer arbeid enn man regnet med eller at enkeltprosjekter krever mer ressurser enn normalt, og da kan man leie utstyr hos Elpress.
Ved reparasjon av utstyr kan Elpress leie ut verktøy ved behov frem til Elpress har reparert og returnert utstyret.
Kjøpt nytt produkt?
Send inn produktregistreringsskjemaet til Elpress, og Elpress Basic inngår kostnadsfritt det første året.
Du får mer informasjon fra serviceavdelingen: www.elpress.net/no/produkter/systemelpress/service/
Forbindelsesmaterialer
Elpress bruker kobber, messing og aluminium som forbindelsesmaterialer. Kobber- og messingproduktene elektrolyttfortinnes for å få økt korrosjonsbestandighet. Hos en bimetallforbindelse (kobber og aluminium) er kobberdelen ubehandlet.
Messing
Messing brukes hovedsakelig til flatstifthylser i arealområdet opptil 6 mm², der man ønsker gode fjæringsegenskaper.
Messing er en legering mellom ca. 70 % kobber og ca. 30 % sink, og har svært god kaldformbarhet.
Kobber
Kobberen som Elpress bruker til forbindelser, har en renhetsgrad på minst 99,95 %. Dens gode egenskaper for bruk i elektriske forbindelser er bl.a. følgende:
• høy ledeevne (kun sølv er bedre)
• høy korrosjonsbestandighet
• god formbarhet
• god sammenføyningsevne
Under produksjon mykglødes forbindelseselementets hals for å få en så god formbarhet og omslutning rundt lederen som mulig under kontaktpressingen. Dette gir da en forbindelse som gir lav overgangsresistans og gode mekaniske egenskaper.
Aluminium
Aluminiumen som brukes til skjøtehylser og kabelsko, har en renhetsgrad på minst 99,7 % og egenskaper som bl.a.:
• lav vekt
• sterk, i forhold til vekten
• god elektrisk ledeevne, ca. 60 % av ledeevnen til kobber
• lettbearbeidet
Lederutforming
Kabelstandard IEC 60228 gir: Informasjon om materiale, konstruksjon og resistansverdier for både kobber- og aluminiumsledere.
Klasse 1 solid leder
Klasse 2 fåtrådet leder
Klasse 5 fleksibel leder
Klasse 6 svært fleksibel leder
UL-godkjente forbindelser
KR/KS, KRF/KSF, KRFS, KRFN, KRT/KST er UL godkjente iht. fil nr. E205350. Cu-forbindelser av typen KRF/KSF er for fåtrådet og fleksibel kobberkabel, klasse 2 og 5 iht. IEC 60228 og har et arbeidsområde på 1-500 mm².
Kryssreferansetabell for MCM og AWG til tilsvarende areal i mm²
MCM Nr Areal mm² AWG-nr. Areal mm²
- 2/0 67,4
3/0 85,5
- 4/0 107
Merknader:
1. Informasjonen i denne tabellen kommer fra kataloger utgitt av anerkjente kabelleverandører og viser ikke til offisielle standarder.
2. Arealene som er knyttet til AWG, varierer avhengig av ledernes ulike utforminger, dvs. antallet tråder.
AWG > 20 viser til enkelttrådete ledere.
AWG ≤ 20 viser til mangetrådete ledere.
Nøyaktige arealer for bestemte antall tråder finner du i kabelleverandørkatalogene.
Utvikling - tekniske tjenester
Elpress er en av Europas ledende produsenter av elektriske kontaktpressingssystemer og har 60 års erfaring med applikasjonsløsninger i alt fra kjernekraftverk til små elektroniske enheter.
Produkter i elektriske applikasjoner utsettes for både mekaniske og termiske belastninger. Elpress investerer store ressurser for å oppnå suksess gjennom en kontinuerlig produktutvikling mot bedre verdi, kvalitet og ytelse.
Til dette formålet brukes det moderne laboratorieutstyr, bl.a.:
• Høyspenningstesting
• Testing av mekanisk strekkfasthet
• Syklisk strømtesting
• Vibrasjonstesting
• Korrosjonstesting
• Resistansfastsettelse
Virksomheten omfatter også teoretiske studier, prototypeutvikling, teknisk dokumentasjon og rådgivning m.m. Personalets kompetanse, sammen med gode laboratorie- og beregningsverktøy, er et sterkt konkurransemiddel både når det gjelder konsulenttjenester og egne utviklingsprosjekter.


Laboratorierapport.


Kabelsko
De moderne og brukervennlige kabelavslutningene for 12 til 36 kV PEX-isolert kabel bestående av prefabrikerte moduler eller til og med helt ferdige avslutninger, gir ingen eller svært liten begrensning i bruken av kabelsko med typebetegnelsene AK, AKK eller KRF. Dette inkluderer også de såkalte ”toppstiftene” med typebetegnelse AKP.
En detalj å ta hensyn til ved bruk av KRF-kabelsko utendørs, er at denne kabelskoen er utstyrt med et inspeksjonshull som må tettes. Leverandøren av kabelavslutninger kan gi sin spesifikke løsning. Kabelsko av typen AK, AKK eller ”toppstift” AKP kan i dag brukes på høyspentkabelavslutninger der det finnes løsninger opptil 84 kV. Ved tvil må du alltid forhøre deg med kabelavslutningsleverandøren om det tekniske detaljene rundt utførelsen.
Ved montering av kabelavslutning for oljeimpregnert papirkabel der det brukes et oljereservoar, har produsentene som regel egne spesialutformede løsninger på lederforbindelsene.
Kabelsko type AK
Kabelsko type AK brukes i avslutninger på en Al-leder for tilkobling til skinner og apparatuttak
Kabelsko type AKK
Kabelsko av typen AKK brukes i avslutning på en Al-leder for tilkobling på Cu-skinne.

Skjøtehylser type AS
Skjøtehylser av typen AS brukes ved skjøting av aluminiumledere.
Skjøtehylser type AKS
Skjøtehylser av typen AKS brukes til skjøting av Al-ledere til Cu-ledere.

Skjøtehylser PEX-isolert kabel mot PEX-isolert kabel
I Sverige brukes det i dag fire typer skjøter innen spenningsområdet 12 til 36 kV. Disse er teip, varmekrymp, kaldkrymp og push-on-skjøter. Alle disse skjøtene er utformet slik at de tar skjøterør av typene AS, AKS og KSF. Skjøterør med koniske ender kreves ikke i dag.
De ulike produsentene har egne løsninger som er utviklet for å ta hånd om dårhullene og avstanden mellom isolasjonskanten og skjøterøret. Merk deg alltid skjøtprodusentens anvisning når det gjelder maksimumslengder og diametere på skjøterørene. Hvis du er i tvil, eller hvis monteringsanvisningen ikke angir det du lurer på, bør du forhøre deg med skjøtleverandøren.
Ved høyere spenninger, f.eks. 52 og 84 kV, stilles det andre krav til skjøtehylsen alt etter skjøtens konstruksjon og utførelse. Det finnes imidlertid løsninger der ”normale” skjøtehylser brukes sammen med tilsetningsmaterialer i spenningsområdet opptil 145 kV.
PEX-isolert kabel mot oljeimpregnert kabel
Ved montering av en overgangsskjøt mellom kabler med oljeimpregnert isolasjon og PEX-isolasjon ved spenninger på 12 kV og høyere, skal det brukes skjøterør med mellomvegg, uansett skjøtemetode og fabrikat. Skjøterør av typen AKS, KSF-M og AS har alltid mellomvegg.
Oljeimpregnert mot oljeimpregnert kabel
Ved skjøting av to kabler med denne typen isolasjon, kan det brukes skjøterør av typen AS, AKS, eller KSF, enten det er en oljerørskjøt eller en ”tørr” krympskjøt.
12:10
















System Elpress ssymboliserer - sikkerhet og kvalitet. For å opnå sikre forbindelser tilbyr vi certificerede løsninger bestående av kombinasjon; kabel, forbindelser og verktøy.
For at oppnå den korrekte installasjonen, bør installatøren gjennomgå et kurs i presseteknikk på Elpress Academy.


Ønsker du spesial løsninger, kan du kontakte oss slik at vår produktsjon og laboratorium kan verifisere din løsning.
Vi anbefaler også forebyggende vedlikehold av pressverktøy for og sikre en god forbindelse.
Certifisering, trening, rådgivning og service er System Elpress
– din sikre forbindelse!


Vi produserer testede systemer med tilhørende pressverktøy og forbindelser slik at du får en sikker installasjon.
Vi tilbyr:
Værktøj leveret med certifikat
Verificerede og testede kombinationer af kabler, terminaler og værktøj
Specialudviklede kundeløsninger med certificering
Certificerede og godkendte i henhold til UL, DNV og CSA
Kvalitetsgaranti og miljøcertificering i henhold til ISO9001 og ISO14001


For og oppnå sikre forbindelser tilbyr vi sertifiserende løsninger bestående av kombinasjonen; kabler, forbindelser og verktøy.
Dette er for at sikre deg som kunde når du bruker våres system, og for at sikre en sikker løsning når våres produkter blir montert korrekt.
Systemet inkluderer:
• Forbindelser
• Presseverktøy
• Den riktige kabelen
• Velutdannet og dyktig operatør
Systemet er utviklet og testet i forhold til gjeldene normer og standarder, eksempelvis IEC.
Produkt utvikling:
• Spesialutviklede kundeløsninger
• Spesialiserende segmenterende løsninger
• Markedsførende på teknologien innenfor vårt fagområde
• Innovative produkter

Kvalitet og miljø
Sertifisert i henhold til:
• ISO 14001
• ISO 9001
• DNV
• UL





Vi har de nødvendige ressurser for at du kan opprettholde den høyeste kvalitet

Vi tilbyr: Test i vårt laboratorium
Problemløsning Teknisk og kundeorientert støtte
Spesialdesignede terminaler og pressverktøy Revisjon og kvalitetssikring hos deg
Vi har mere en 50 års erfaring med utvikling, fremstilling og markedsføring av komplette løsninger innenfor kontaktpressings systemer til elektriske forbindelser. Vi er derfor i besittelse av lang erfaring og det beste utstyret til å imøtekomme dine forespørsler og krav.

Du får tilgang til følgende:
• Vår tekniske avdeling som utvikler løsninger tilpasset dine behov
• Vår produksjon som kan fremstille unike løsninger
• Vår laboratorium som kan levere:
- Elektriske tester
- Mekaniske tester
- Korrosjons- og miljøtester
Kontakt oss og la oss hjelpe deg.




Dit certificerede personale garanterer for slutkvaliteten af produktet og efterfølgende services. Vort uddannelsescertifikat er en kvalitetsgaranti mellem dig og din kunde

Vi fokuserer på følgende 4 områder: Forsyningssektoren og installatører Transformator produsenter Jernbane- og tog produsenter Vindmølle produsenter

Generell trening for all personal. Gir en generell vidten innenfor pressing på alle områder;
• Forbindelser mindre enn 10 mm²
• Cu-forbindelser større enn 10 mm²
• Al-forbindelser fra 16 mm²
• Cu-forgreninger
• Tiltrekkningsmoment

Treningen er rettet primært mot operatører med erfaring fra den daglige produksjonen. Formålet er trening i de gjeldene forhold for transformator produksjon. Treningen omhandler;

• Dypjording
• Standarder og krav
• Sikkerhet og vedlikehold
• Kvalitets inspeksjon
Treningen kombinerer teori og praksis og avsluttes med en skriftlig prøve. Kursdeltagerne mottar sertifikat etter endt trening.
Treningen er rettet primært mot supervisers, ingeniører, designere og kvalitetspersonale. Kurset krever en dypere viten om pressing- og vedlikeholdsrutiner. Etter endt trening mottar deltageren et kurssertifikat.
• Håndtering av verktøy
• Utredning og forberedelse til pressing
• Utførelse av selve pressingen
• Kvalitetskontroll
• Sikkerhet innenfor pressing
• Forebyggende vedlikehold i den daglige produksjon
Træningen består af en teoretisk og en praktisk del og afsluttes med en skriftlig prøve. Deltagerne modtager certifikat efter endt træning.
Træningen er rettet primært mod supervisors, designere og kvalitetspersonale og giver et grundigt kendskab til udregning, værktøjsvalg og –håndtering, problemløsning og kvalitetsvurdering. Gennemført træning giver en certificeret autorisation for området.
Oppfølgning av sertifiseringen skal påregnes.

Hvert treningsprogram har ett nivå for hele personalestaben, for eksempel designere, supervisere og kvalitets personale. Det er det også mulig og tilpasse treningen, så den passert til deres virksomhets behov og det er mulit og velge om treningen skal foregå hos dere eller i Elpress´ trenings fasiliteter.
Opplæring av personale i de spesielle lover og krav som gjelder for bane industrien. Treningen omhandler;
• Verktøy håndtering
• Planlegging og forberedelser for kontaktpressing
• Elpress Dual-teknologi
• Kvalitetskontroll
• Sikkerhet
• Forebyggende vedlikehold
i den daglige produksjon
Treningen består av en teoretisk og en praktisk del og avsluttes med en skriftlig prøve. Deltagerne mottar sertifikat etter endt trening.
Treningen er rettet primært mot supervisors, designere og kvalitetspersonale og gir et grundig kjennskap til utregning, verktøyvalg og –håndtering, problemløsning og kvalitetsvurdering. Gjennomført trening gir en sertifisert autorisasjon for området.

Opplæring av personale i de spesielle lover og krav som gjelder for vindmølle industrien. Treningen omhandler;
• Verktøy håndtering
• Planlegging og forberedelser for kontaktpressing

• Elpress Dual-teknologi
• Kvalitetskontroll
• Sikkerhet
• Forebyggende vedlikehold
Treningen består av en teoretisk og en praktisk del og avsluttes med en skriftlig prøve. Deltagerne mottar sertifikat etter endt trening.
Treningen er rettet primært mot supervisors, designere og kvalitetspersonale og gir et grundig kjennskap til utregning, verktøyvalg og –håndtering, problemløsning og kvalitetsvurdering. Gjennomført trening gir en sertifisert autorisasjon for området.
Oppfølgning av sertifiseringen skal påregnes.

Avtaler om forebyggende vedlikehold sikrer kvaliteten av dine forbindelser

Vi tilbyr:
Avtaler om forebyggende vedlikehold
Kalibrering av sertifiserende verktøy
Reparasjon / vedlikehold av verktøy
Utleie av presseutstyr
Salg av reservedeler


Vår serviceavdeling tilbyr deg en fleksibel løsning med fokus på sikkerhet og kvalifisert service:
• Planlagt og forebyggende vedligehold garanterer høj ydeevne for dit værktøj.
• Regelmæssig service minimerer risikoen for uforudsete nedbrud, ved at indikere sikkerhedseller funktionsdefekter og ved at foreslå løsninger til at undgå disse.
Elpress Basic serviceavtale inkluderer følgende punkter:
• Forebyggende vedlikehold, kalibrering med sertifikat
• Generell gjennomgang av verktøyet
• Sikkerhet i henhold til overensstemmelse erklæring (Overensstemmelse med Maskinsikkerhet Direktivet, Lav spenning Direktivet, EMC Direktivet)
• Funksjons test
• Kontroll av tilbehør, herunder pressebakker mm.
• Utstedelse av sertifikat
Inspeksjonen følger Elpress’ standard forskrifter.

• Regelmæssig service gennemføres normalt 1 gang årligt til en fast standard pris.
• Nar udstyret opfylder de gældende kalibreringskrav udstedes der et certifikat
• Servicen kan foretages hos dig
serviceavtalen inkluderer følgende punkter:
• Elpress Basis + forebyggende vedlikehold Inkluderer kalibreringssertifisering og reparasjon ved slitasje til en fast pris.
Kalibreringen følger de samme inspeksjons punkter og forskrifter som Elpress Basis, men det er kundens eget ansvar at innsende verktøyet til kalibrering.
Send produktregistreringsblanketten til Elpress og Elpress Basis er inkludert gratis det første året.




Navn Side
1006 7:1
1009 7:1 12523 3:13 12610 3:14
17127 3:13 17128 3:13
1010AL 7:1
1014AL 7:1 13B11 6:19
13B13 6:19
13B14,5 6:19 13B17 6:19
13B20 6:19 13B22 6:19 13B25 6:19
13B26 6:26 13B26 7:8
13B27 6:19 13B30 6:19 13B32 6:19 13B32 6:26 13B32 7:8 13B38 6:19
13B8 6:19 13B9 6:19 13BC13 6:20
13BC15 6:20
13C21B38 6:30
13CB11 6:30
13CB13 6:30
13CB14,5 6:30 13CB17 6:30
13CB20 6:30 13CB22 6:30
13CB25 6:30 13CB27 6:30 13CB30 6:30
13CB32 6:30 13CB8 6:30 13CB9 6:30 13CBC13 6:30 13CBC15 6:30 13DB11 6:15
13DB13 6:15
13DB14,5 6:15 13DB17 6:15 13DB20 6:15 13DB22 6:15 13DB25 6:15 13DB27 6:15 13DB30 6:15 13DB32 6:15 13DB8 6:15 13DB9 6:15
13DCB11 6:15 13DCB11 6:40
13DCB13 6:15
13DCB13 6:40
13DCB14,5 6:15
13DCB14,5 6:40
13DCB17 6:15
13DCB17 6:40
13DCB20 6:15
13DCB20 6:40
Navn Side
13DCB22 6:15
13DCB25 6:15
13DCB27 6:15
13DCB30 6:15
13DCB32 6:15
13DCB8 6:15
13DCB8 6:40
13DCB9 6:15
13DCB9 6:40
13P120150D 6:24
13P120150M 6:24
13P185240D 6:24
13P185240M 6:24
13P32M 6:23
13P37D 6:23
13P37M 6:23
13P5095D 6:24
13P5095M 6:24
13R12DR 6:23
13R13DR 6:23
13R15DR 6:23
13R16DR 6:23
13R18DR 6:23
13R18MR 6:23
13R20DR 6:23
13R20MR 6:23
13R6DR 6:23
13R7DR 6:23
13R8DR 6:23
13R9DR 6:23
20DCB22 6:40
20DCB25 6:40
20DCB27 6:40
20DCB30 6:40
20DCB32 6:40
401-12 3:18
404-1 3:18
405-3 3:18
408-2-F 3:17
408-2-M 3:17
408-4-F 3:17
408-4-M 3:17
408-6-F 3:17
408-6-M 3:17
408-8-F 3:17
408-8-M 3:17
A0,14-6ET 2:4
A0,14-6ETD 2:6
A0,14-6ETT 2:5
A0,14-8ET 2:4
A0,14-8ETD 2:6
A0,14-8ETT 2:5
A0,25-6ET 2:4
A0,25-6ETT 2:5
A0,25-8ET 2:4
A0,25-8ETD 2:6
A0,25-8ETT 2:5
A0,34-6ET 2:4
A0,34-6ETD 2:6
A0,34-6ETT 2:5
A0,34-8ET 2:4
A0,34-8ETD 2:6
A0,34-8ETT 2:5
A0,5-10ET 2:4
Navn Side
A0,5-10ETD 2:6
A0,5-10ETT 2:5
A0,5-6ET 2:4
A0,5-6ET2 2:8
A0,5-6ET2 2:9
A0,5-6ETD 2:6
A0,5-6ETT 2:5
A0,5-6ETW2 2:10
A0,5-8ET 2:4
A0,5-8ET2 2:8
A0,5-8ET2 2:9
A0,5-8ETD 2:6
A0,5-8ETT 2:5
A0,5-8ETW2 2:10
A0,75-10ET 2:4
A0,75-10ET2 2:8
A0,75-10ET2 2:9
A0,75-10ETD 2:6
A0,75-10ETT 2:5
A0,75-10ETW2 2:10
A0,75-12ET 2:4
A0,75-12ET2 2:8
A0,75-12ET2 2:9
A0,75-12ETD 2:6
A0,75-12ETT 2:5
A0,75-12ETW2 2:10
A0,75-6ET 2:4
A0,75-6ETD 2:6
A0,75-6ETT 2:5
A0,75-8ET 2:4
A0,75-8ET2 2:8
A0,75-8ET2 2:9
A0,75-8ETD 2:6
A0,75-8ETT 2:5
A0,75-8ETW2 2:10
A0503FLS5 1:9
A0503FLS8 1:9
A0514SR 1:6
A0522R 1:4
A0532G 1:5
A0532R 1:4
A0543R 1:4
A0553R 1:4
A0802HA 1:11
A0802HO 1:11
A0819SR 1:6
A0819SRK 1:6
A0824SK 1:7
A0825SFK 1:7
A0832G 1:5
A0832R 1:4
A0837G 1:5
A0837R 1:4
A0843G 1:5
A0843R 1:4
A0853R 1:4
A1,5-10ET 2:4
A1,5-10ETD 2:6
A1,5-10ETT 2:5
A1,5-12ET 2:4
A1,5-12ET2 2:8
A1,5-12ET2 2:9
A1,5-12ETD 2:6
A1,5-12ETT 2:5
Navn Side
A1,5-12ETW2 2:10
A1,5-18ET 2:4
A1,5-18ETD 2:6
A1,5-18ETT 2:5
A1,5-6ET 2:4
A1,5-6ETD 2:6
A1,5-6ETT 2:5
A1,5-8ET 2:4
A1,5-8ET2 2:8
A1,5-8ET2 2:9
A1,5-8ETD 2:6
A1,5-8ETT 2:5
A1,5-8ETW2 2:10
A10-12ET 2:4
A10-12ETD 2:6
A10-12ETT 2:5
A10-14ET2 2:8
A10-14ET2 2:9
A10-14ETW2 2:10
A10-18ET 2:4
A10-18ETD 2:6
A10-18ETT 2:5
A1-10ET 2:4
A1-10ET2 2:8
A1-10ET2 2:9
A1-10ETD 2:6
A1-10ETT 2:5
A1-10ETW2 2:10
A1-12ET 2:4
A1-12ET2 2:8 A1-12ET2 2:9 A1-12ETD 2:6
A1-12ETT 2:5
A1-12ETW2 2:10
A1503FLS5 1:9
A1503FLS8 1:9
A1503FLSF5 1:10
A1503FLSF8 1:10
A1504HA 1:11
A1504HO 1:11
A1505FLS5 1:9
A1505FLS8 1:9
A1505FLSF5 1:10
A1505FLSF8 1:10
A1507FLS 1:9
A1507FLSF 1:10
A1507FLSH 1:9
A1507FLST 1:9
A1507H 1:10
A1510R 1:4
A1515PSK 1:8
A1518SFL 1:7
A1519SR 1:6
A1519SRK 1:6
A1525SK 1:7
A1529SF 1:7
A1529SFN 1:7
A1530SFB 1:7
A1532G 1:5
A1532R 1:4
A1535SKW 1:8
A1537G 1:5
A1537GB 1:5
A1537GS 1:5
Navn Side
A1537R 1:4
A1543G 1:5
A1543GB 1:5
A1543K 1:6
A1543R 1:4
A1553G 1:5
A1553R 1:4
A1565G 1:5
A1565R 1:4
A1585R 1:4
A16-12ET 2:4
A16-12ETD 2:6
A16-12ETT 2:5
A16-18ET 2:4
A16-18ETD 2:6
A16-18ETT 2:5
A1-6ET 2:4
A1-6ETD 2:6
A1-6ETT 2:5
A1-8ET 2:4
A1-8ET2 2:8
A1-8ET2 2:9
A1-8ETD 2:6
A1-8ETT 2:5
A1-8ETW2 2:10
A2,08-8ET 2:4
A2,08-8ETD 2:6
A2,08-8ETT 2:5
A2,5-10ET 2:4
A2,5-10ET2 2:8
A2,5-10ET2 2:9
A2,5-10ETD 2:6
A2,5-10ETT 2:5
A2,5-10ETW2 2:10
A2,5-12ET 2:4
A2,5-12ETD 2:6
A2,5-12ETT 2:5
A2,5-13ET2 2:8
A2,5-13ET2 2:9
A2,5-13ETW2 2:10
A2,5-18ET 2:4
A2,5-18ETD 2:6
A2,5-18ETT 2:5
A2,5-8ET 2:4
A2,5-8ETD 2:6
A2,5-8ETT 2:5
A2500E 1:11
A2505FLS5 1:9
A2505FLS8 1:9
A2505FLSF5 1:10
A2505FLSF8 1:10
A2505HA 1:11
A2505HO 1:11
A2507FLS 1:9
A2507FLSF 1:10
A2507FLSH 1:9
A2507FLST 1:9
A2507H 1:10
A2510R 1:4
A2513R 1:4
A25-16ET 2:4
A25-16ETD 2:6
A25-16ETT 2:5
A2517PSK 1:8
A25-18ET 2:4
A25-18ETD
A4-10ET 2:4
A4-10ETD 2:6
A4-10ETT 2:5
A4-12ET 2:4
A4-12ET2 2:8
A4-12ET2 2:9
A4-12ETD 2:6
A4-12ETT 2:5
A4-12ETW2 2:10
A4-18ET 2:4
A4-18ET2 2:8
A4-18ET2 2:9
A4-18ETD 2:6
A4-18ETT 2:5
A4-18ETW2 2:10
A4600E 1:11
A4605HA 1:11
A4605HO 1:11
A4607FLS 1:9
A4607FLSF 1:10 A4607FLSH 1:9
A4607H 1:10
A4609FLS 1:9
A4610G 1:5
A4610R 1:4
A4613R 1:4
Navn Side
A4630SR 1:6
A4634PSK 1:8
A4640SF 1:7
A4643G 1:5
A4643R 1:4
A4645SFB 1:7
A4650SKW 1:8
A4652SK 1:7
A4653G 1:5
A4653R 1:4
A4665G 1:5
A4665R 1:4
A4685G 1:5
A4685R 1:4
A50-20ET 2:4
A50-20ETD 2:6
A50-20ETT 2:5
A50-25ET 2:4
A50-25ETD 2:6
A50-25ETT 2:5
A6-12ET 2:4
A6-12ETD 2:6
A6-12ETT 2:5
A6-14ET2 2:8
A6-14ET2 2:9
A6-14ETW2 2:10
A6-18ET 2:4
A6-18ET2 2:8
A6-18ET2 2:9
A6-18ETD 2:6
A6-18ETT 2:5
A6-18ETW2 2:10
AK1000-1 5:3
AK1000-2 5:3
AK1200 5:3
AK120-10 5:3
AK120-12 5:3
AK150-10 5:3
AK150-12 5:3
AK150-16 5:3
AK16-6 5:3
AK16-8 5:3
AK185-10 5:3
AK185-12 5:3
AK185-16 5:3
AK240-12 5:3
AK240-16 5:3
AK25-6 5:3
AK25-8 5:3
AK300-12 5:3
AK300-12SOLID 5:3
AK300-16 5:3
AK300-16SOLID 5:3
AK300-20 5:3
AK35-10 5:3
AK35-6 5:3
AK35-8 5:3
AK400-12 5:3
AK400-16 5:3
AK400-20 5:3
AK500A-1 5:3
AK500A-16 5:3
AK500A-2 5:3
AK500A-20 5:3
AK50-8 5:3
AK630A-1 5:3
5:7
AKK300-20SOLID 5:7
AKK300B-12 5:8
AKK300B-16 5:8
AKK35-12 5:7 AKK35-8 5:7
5:7
AKK400B-16 5:8
AKK500A-1 5:7
AKK500A-16 5:7
AKK500A-2 5:7
AKK500A-20 5:7
AKK500B-1 5:7
AKK500B-16 5:7
AKK500B-2 5:7
AKK500B-20 5:7
AKK50-10 5:7
AKK50-12 5:7
AKK50-8 5:7
AKK630A-1 5:7
AKK630A-2 5:7
Navn Side
AKK70-10 5:7
AKK70-12 5:7
AKK70-8 5:7
AKK800-1 5:7
AKK800-2 5:7
AKK95-10 5:7
AKK95-12 5:7
AKK95-16 5:7
AKK95-8 5:7
AKP120 5:8
AKP150 5:8
AKP16 5:8
AKP185 5:8
AKP240 5:8
AKP25 5:8
AKP300 5:8
AKP35 5:8
AKP50 5:8
AKP70 5:8
AKP95 5:8
AKS120-120 5:10
AKS120-50 5:10
AKS120-70 5:10
AKS120-95 5:10
AKS150-120 5:10
AKS150-150 5:10
AKS150-25 5:10
AKS150-35 5:10
AKS150-50 5:10
AKS150-70 5:10
AKS150-95 5:10
AKS16-10 5:10
AKS16-10S 5:9
AKS1625-1016 5:10
AKS185-120 5:10
AKS185-150 5:10
AKS185-185 5:10
AKS185-70 5:10
AKS185-95 5:10
AKS240-120 5:10
AKS240-150 5:10
AKS240-185 5:10
AKS240-240A 5:10
AKS240-35 5:10
AKS240-50 5:10
AKS240-70 5:10
AKS240-95 5:10
AKS25-10 5:10
AKS25-10S 5:9
AKS25-16 5:10
AKS300-150 5:10
AKS300-185 5:10
AKS300-240A 5:10
AKS300-300A 5:10
AKS300B-185 5:9
AKS300B-240A 5:9
AKS300SOLID-300 5:10
AKS35-10 5:10
AKS35-10S 5:9
AKS35-16 5:10
AKS35-25 5:10
AKS400-150 5:10
AKS400-185 5:10
AKS400-240A 5:10
Navn Side
AKS400-300A 5:10
AKS400B-240A 5:9
AKS400B-300A 5:9
AKS50-10 5:10
AKS50-10S 5:9
AKS50-16 5:10
AKS50-25 5:10
AKS50-35 5:10
AKS50-50 5:10
AKS70-10S 5:9
AKS70-35 5:10
AKS70-50 5:10
AKS70-70 5:10
AKS95-10 5:10
AKS95-10S 5:9
AKS95-16 5:10
AKS95-25 5:10
AKS95-35 5:10
AKS95-50 5:10
AKS95-70 5:10
AKS95-95 5:10
ANALYZER 6:41 AS1000-1 5:4
5:4
5:4
Navn Side
AS70-50 5:5
AS800-1 5:4 AS95 5:4
AS95-25 5:5
AS95-35 5:5
AS95-50 5:5
AS95-70 5:5
B0,25-5ET 2:7
B0,25-7ET 2:7
B0,34-5ET 2:7
B0,34-7ET 2:7
B0,34-9ET 2:7
B0,5-10ET 2:7
B0,5-6ET 2:7
B0,5-8ET 2:7
B0,75-10ET 2:7
B0,75-12ET 2:7
B0,75-6ET 2:7
B0,75-8ET 2:7
B0457H4 3:12
B0457H5 3:12
B0502HA 3:10
B0502HO 3:10
B07FLS1H 3:11
B07FLS2H 3:11
B07FLS3H 3:11
B0819SR 3:6
B0832G 3:6
B0832R 3:4
B0843G 3:6
B0843R 3:4
B0853R 3:4
B0907H4 3:12
B0907H5 3:12
B1,5-10ET 2:7
B1,5-12ET 2:7
B1,5-15ET 2:7
B1,5-18ET 2:7
B1,5-20ET 2:7
B1,5-7ET 2:7
B1,5-8ET 2:7
B1003FLS5 3:8
B1003FLS8 3:8
B1003FLSV5 3:9
B1003H 3:10
B1007HN 3:10
B10-10R 4:14
B10-12ET 2:7
B10-12R 4:14
B10-15ET 2:7
B10-18ET 2:7
B10-20ET 2:7
B10-25ET 2:7
B10-5R 4:14
B10-6R 4:14
B10-8R 4:14
B10SR 4:18 B11 6:19 B11 6:29 B11 6:33
B1-10ET 2:7
B1-12ET 2:7
B120-10R 4:14
B120-12R 4:14
B120-16R 4:14
B13 6:19
B13 6:29
B13 6:33
B14,5 6:19
B14,5 6:29
B14,5 6:33
B150-12R 4:14
B150-16R 4:14
B1502HA 3:10
B1502HO 3:10
B1505FLS5-1 3:8
B1505FLS8-1 3:8
B1507FLS1 3:8
B1507FLSB8 3:9
B1507FLSH 3:9
B1507FLSN 3:8
B1507H 3:10 B1510R 3:4 B1519SR 3:6
3:6
3:6
3:4
3:4
B16-5R 4:14
B16-6R 4:14
B16-8R 4:14 B1-6ET 2:7 B16NP 6:26 B16NP 6:26 B16NP 6:37 B16NP 6:37 B16NP 7:8 B16NP 7:8 B16NP 7:10 B16NP 7:10 B16SR 4:18 B17 6:19 B17 6:29 B17 6:33 B1807H4 3:12 B1807H5 3:12
B185-12R 4:14
B185-16R 4:14
B1-8ET 2:7
B2,5-10ET 2:7
B2,5-12ET 2:7
B2,5-15ET 2:7
B2,5-18ET 2:7
B2,5-20ET 2:7
B2,5-7ET 2:7
Navn Side
B2,5-8ET 2:7
B20 6:19
B20 6:29
B20 6:33
B20NP 6:26
B20NP 6:26
B20NP 6:37
B20NP 6:37
B20NP 7:8
B20NP 7:8
B20NP 7:10
B20NP 7:10
B22 6:19
B22 6:29
B22 6:33
B2457H4 3:13
B2457H5 3:13
B25 6:19
B25 6:29
B25 6:33
B2505FLS5 3:8
B2505FLS8 3:8
B2507FLS1 3:8
B2507FLSH 3:9
B2507FLSN 3:8
B2507H 3:10
B2507HN 3:10
B2510R 3:4
B25-10R 4:14
B25-12ET 2:7
B25-12R 4:14
B25-15ET 2:7
B25-16R 4:14
B25-18ET 2:7
B2519SR 3:6
B25-25ET 2:7
B2532 6:33
B25-32ET 2:7
B2532G 3:6
B2532R 3:4
B2537R 3:4
B2538 6:33
B2542 6:33
B2543G 3:6
B2543R 3:4
B2553 6:33
B2553G 3:6
B2553R 3:4
B2565R 3:4
B25-6R 4:14
B2585R 3:4
B25-8R 4:14
B25C15 6:34
B25C18 6:34
B25C21 6:34
B25SR 4:18
B26NP 6:37
B26NP 7:10
B27 6:33
B30 6:33
B35-10R 4:14
B35-12R 4:14
B35-16R 4:14
B35-18ET 2:7
B35-20ET 2:7
B35-25ET 2:7
B35-32ET 2:7
B35-6R 4:14
B35-8R 4:14
B35SR 4:18
B4040 6:43
B4042 6:43
B4045 6:43
B4053 6:43
B4056 6:43
B40C18 6:43
B40C21 6:43
B4-10ET 2:7
B4-12ET 2:7
B4-18ET 2:7
B4-20ET 2:7
B4607FLS1 3:8
B4607FLSN 3:8
B4607HN 3:10
B4610R 3:4
B4613R 3:4
B4630SR 3:6
B4643G 3:6
B4643R 3:4
B4653G 3:6
B4653R 3:4
B4665R 3:4
B4685R 3:4
B4-9ET 2:7
B50-10R 4:14
B50-12R 4:14
B50-16R 4:14
B50-18ET 2:7
B50-22ET 2:7
B50-25ET 2:7
B50-32ET 2:7
B50-6R 4:14
B50-8R 4:14
B50SR 4:18
B6-10ET 2:7
B6-12ET 2:7
B6-15ET 2:7
B6-18ET 2:7
B6-20ET 2:7
B6-25ET 2:7
B6FE 6:26
B6FE 6:37
B6FE 7:8
B6FE 7:10
B70-10R 4:14
B70-12R 4:14
B70-16R 4:14
B70-8R 4:14
B70SR 4:18
B8 6:19
B8 6:29
B8 6:33
B8FE 6:26
B8FE 6:37
B8FE 7:8
B8FE 7:10
B9 6:19
B9 6:29
Navn Side
B9 6:33
B95-10R 4:14
B95-12R 4:14
B95-16R 4:14
B95SR 4:18
B9953G 3:6
B9965G 3:6
BÄRREM PS710 6:48
BC13 6:34
BC5 6:20
BC5 6:30
BC5 6:34
BC6 6:20
BC6 6:30
BC6 6:34
BC8-9 6:20
BC8-9 6:30
BC8-9 6:34
C150-185 4:19
C16-25 4:19
C23 4:19
C240-300 4:19
C25-50 4:19
C50-70 4:19
C6-10 4:19
C70-95 4:19
C95-120 4:19
CS2500 6:39
CT10 10:6
CT20 10:6
CUT10 4:17
CUT16 4:17
CUT6 4:17
DB2522 6:16
DB2525 6:16
DB2527 6:16
DB2530 6:16
DB2532 6:16
DB2538 6:16
DKB0325 3:20
DKB0760 3:21
DRB0115 3:20
DSA0115 1:15
DSA0725 1:15
DV1300 6:13
DV1300C2 6:13
DV250 6:14
DV250 7:9
EB0560 1:19
EB0560 2:19
EB0560 3:25
EB1025 1:19
EB1025 2:19
EB1025 3:25
EB3550 1:19
EB3550 2:19
EB3550 3:25
EB4010 1:19
EB4010 2:19
EB4010 3:25
EL2258 6:3
EMBLA RA 16 10:3 EMBLA RA S 10:3 EMBLA RA V 10:3
V 10:3
10:3
6:3
6:4 ESAQ0760 1:15 EW1025 6:4
GEB1025 2:16
GEB1025C 2:16
GEB3550 2:17
GEB3550C 2:17
GEB4010C 2:16
GEB4010C-TWIN 2:15
GRB0560 3:23
GRB0560C 3:23
GRB0560L 3:22
GRB0560LC 3:22
GSA0760 1:17
GSA0760C 1:17
GSEA0340C 1:16
GSEA0340C 2:14
GSW0560C 1:16
GWB4099 3:23
GWB4099C 3:23
HB150 1:13
HKL40 10:12
HKL55 10:12
HKL85 10:12
HKS34 10:7
HKS35F 10:8
HKS50 10:7
HKS60F 10:8
Navn Side
HKS62 10:8
HKS80 10:8
HYD.SLANG KPL. 2,4M ERG PS710E 6:48
HYD.SLANG KPL. 2,4M ERGOCOM 6:48
HYD.SLANG KPL. 5M ERGO PS710E 6:48
HYD.SLANG KPL. 5M ERGO PS710R 6:48
HYD.SLANG KPL. 5M ERGOCOM 6:48
HYD.SLANG KPL.2,4M ERGO PS710R 6:48
ISL2201 8:5
ISO1003FL1 3:15
ISO1005FL1 3:15
ISO1507FLB 3:16
ISO1507FLS 3:16
ISO1507HBW6 3:15
ISO2507FLS1 3:16
K10T 7:1
K16 7:1
K25 7:1
K35 7:1
KB0325 1:19
KB0325 2:19
KB0325 3:25
KB22 6:9
KB25 6:9
KHS-AKS1025-4 9:3
KHS-AKS1025-5 9:3
KHS-AS120150-1-4 9:3
KHS-AS1625-4 9:3
KHS-AS1625-5 9:3
KHS-AS185240-1-4 9:3
KHS-AS5095-1-4 9:3
KL2585 10:12
KL40 10:12
KL55 10:12
KL85 10:12
KR0,75-3 3:5
KR0,75-3 4:4
KR0,75-4 3:5
KR0,75-4 4:4
KR1,5-3 3:5
KR1,5-3 4:4
KR1,5-4 3:5
KR1,5-4 4:4
KR1,5-5 3:5
KR1,5-5 4:4
KR10-10 3:5
KR10-10 4:4
KR10-10-90GR 4:9
KR10-12 3:5
KR10-12 4:4
KR10-4 3:5
KR10-4 4:4
KR10-5 3:5
KR10-5 4:4
KR10-6 3:5
KR10-6 4:4
KR10-6-45GR 4:8
KR10-6-90GR 4:9
KR10-8 3:5
KR10-8 4:4
KR10-8-45GR 4:8
KR10-8-90GR 4:9
KR2,5-3 3:5
KR2,5-3 4:4
Navn Side
KR2,5-4 3:5
KR2,5-4 4:4
KR2,5-5 3:5
KR2,5-5 4:4
KR2,5-6 3:5
KR2,5-6 4:4
KR4-3 3:5
KR4-3 4:4
KR4-4 3:5
KR4-4 4:4
KR4-5 3:5
KR4-5 4:4
KR4-6 3:5
KR4-6 4:4
KR6-4 3:5
KR6-4 4:4
KR6-5 3:5
KR6-5 4:4
KR6-6 3:5
KR6-6 4:4
KR6-8 3:5
KR6-8 4:4
KRD1000-00 4:12
KRD1000-20 4:12
KRD1000-24 4:12
KRD120-00 4:11
KRD120-10 4:11
KRD120-12 4:11
KRD120-14 4:11
KRD120-16 4:11
KRD120-20 4:11
KRD120-8 4:11
KRD150-00 4:11
KRD150-10 4:11
KRD150-12 4:11
KRD150-14 4:11
KRD150-16 4:11
KRD150-20 4:11
KRD150-8 4:11
KRD16-10 4:11
KRD16-12 4:11
KRD16-5 4:11
KRD16-6 4:11
KRD16-8 4:11
KRD185-00 4:11
KRD185-10 4:11
KRD185-12 4:11
KRD185-14 4:11
KRD185-16 4:11
KRD185-20 4:11
KRD185-8 4:11
KRD240-00 4:11
KRD240-10 4:11
KRD240-12 4:11
KRD240-16 4:11
KRD240-20 4:11
KRD240-20 4:12
KRD25-00 4:11
KRD25-10 4:11
KRD25-12 4:11
KRD25-6 4:11
KRD25-8 4:11
KRD300-00 4:12
KRD300-10 4:12
Navn Side
KRD300-12 4:12
KRD300-14 4:12
KRD300-16 4:12
KRD300-20 4:12
KRD300-24 4:12
KRD35-00 4:11
KRD35-10 4:11
KRD35-12 4:11
KRD35-14 4:11
KRD35-16 4:11
KRD35-6 4:11
KRD35-8 4:11
KRD400-00 4:12
KRD400-12 4:12
KRD400-14 4:12
KRD400-16 4:12
KRD400-20 4:12
KRD400-24 4:12
KRD500-00 4:12
KRD500-12 4:12
KRD500-14 4:12
KRD500-16 4:12
KRD500-20 4:12
KRD500-24 4:12
KRD50-10 4:11
KRD50-12 4:11
KRD50-16 4:11
KRD50-6 4:11
KRD50-8 4:11
KRD630-00 4:12
KRD630-12 4:12
KRD630-16 4:12
KRD630-18 4:12
KRD630-20 4:12
KRD630-22 4:12
KRD630-24 4:12
KRD70-00 4:11
KRD70-10 4:11
KRD70-12 4:11
KRD70-14 4:11
KRD70-16 4:11
KRD70-7 4:11
KRD70-8 4:11
KRD800-00 4:12
KRD800-16 4:12
KRD800-24 4:12
KRD95-00 4:11
KRD95-10 4:11
KRD95-12 4:11
KRD95-14 4:11
KRD95-16 4:11
KRD95-6 4:11
KRD95-8 4:11
KRDIN1000-20 4:13
KRDIN10-10 4:13
KRDIN10-5 4:13
KRDIN10-6 4:13
KRDIN10-8 4:13
KRDIN120-10 4:13
KRDIN120-12 4:13
KRDIN120-16 4:13
KRDIN120-20 4:13
KRDIN150-10 4:13
KRDIN150-12 4:13
Navn Side
KRDIN150-16 4:13
KRDIN150-20 4:13
KRDIN16-10 4:13
KRDIN16-12 4:13
KRDIN16-6 4:13
KRDIN16-8 4:13
KRDIN185-10 4:13
KRDIN185-12 4:13
KRDIN185-16 4:13
KRDIN185-20 4:13
KRDIN240-10 4:13
KRDIN240-12 4:13
KRDIN240-16 4:13
KRDIN240-20 4:13
KRDIN25-10 4:13
KRDIN25-12 4:13
KRDIN25-6 4:13
KRDIN25-8 4:13
KRDIN300-12 4:13
KRDIN300-16 4:13
KRDIN300-20 4:13
KRDIN35-10 4:13
KRDIN35-12 4:13
KRDIN35-6 4:13
KRDIN35-8 4:13
KRDIN400-12 4:13
KRDIN400-16 4:13
KRDIN400-20 4:13
KRDIN500-12 4:13
KRDIN500-20 4:13
KRDIN50-10 4:13
KRDIN50-12 4:13
KRDIN50-16 4:13
KRDIN50-6 4:13
KRDIN50-8 4:13
KRDIN625-20 4:13
KRDIN6-5 4:13
KRDIN6-6 4:13
KRDIN6-8 4:13
KRDIN70-10 4:13
KRDIN70-12 4:13
KRDIN70-16 4:13
KRDIN70-6 4:13
KRDIN70-8 4:13
KRDIN800-20 4:13
KRDIN95-10 4:13
KRDIN95-12 4:13
KRDIN95-16 4:13
KRDIN95-8 4:13
KRF120-10 4:5
KRF120-10-45GR 4:8
KRF120-10-90GR 4:9
KRF120-10-90GR-SB 4:9
KRF120-10X2-24-26 4:6
KRF120-12 4:5
KRF120-12-45GR 4:8
KRF120-12-90GR 4:9
KRF120-12-90GR-SB 4:9
KRF120-12X2-40 4:6
KRF120-14 4:5
KRF120-16 4:5
KRF120-16-45GR 4:8
KRF120-16-90GR 4:9
KRF120-16-90GR-SB 4:9
Navn Side
KRF120-8-90GR 4:9
KRF120-8-90GR-SB 4:9
KRF150-10 4:5
KRF150-10-45GR 4:8
KRF150-10-90GR 4:9
KRF150-10-90GR-SB 4:9
KRF150-10X2-24-26 4:6
KRF150-12 4:5
KRF150-12-45GR 4:8
KRF150-12-90GR 4:9
KRF150-12-90GR-SB 4:9
KRF150-12X2-40 4:6
KRF150-16 4:5
KRF150-16-45GR 4:8
KRF150-16-90GR-LB 4:9
KRF150-16-90GR-SB 4:9
KRF150-20 4:5
KRF16-10 4:5
KRF16-10-45GR 4:8
KRF16-10X2-24-26 4:6
KRF16-10X2-40 4:6
KRF16-12 4:5
KRF16-6 4:5
KRF16-6-45GR 4:8
KRF16-6-90GR 4:9
KRF16-6X2-16 4:6
KRF16-8 4:5
KRF16-8-45GR 4:8
KRF16-8-90GR 4:9
KRF185-10 4:5
KRF185-10-45GR 4:8
KRF185-10-90GR-SB 4:9
KRF185-10X2-24-26 4:6
KRF185-12 4:5
KRF185-12-45GR 4:8
KRF185-12-90GR-SB 4:9
KRF185-12X2-40 4:6
KRF185-16 4:5
KRF185-16-90GR-SB 4:9
KRF185-20 4:5
KRF240A-10 4:5
KRF240A-10-45GR 4:8
KRF240A-10X2-24-26 4:6
KRF240A-12 4:5
KRF240A-12-45GR 4:8
KRF240A-12X2-40 4:6
KRF240A-16 4:5
KRF240A-16-45GR 4:8
KRF240A-20 4:5
KRF25-10 4:5
KRF25-10-45GR 4:8
KRF25-10-90GR 4:9
KRF25-10X2-40 4:6
KRF25-12 4:5
KRF25-14X2-40 4:6
KRF25-6 4:5
KRF25-6-45GR 4:8
KRF25-6-90GR 4:9
KRF25-6X2-16 4:6
KRF25-8 4:5
KRF25-8-45GR 4:8
KRF25-8-90GR 4:9
KRF25-8X2-40 4:6
KRF300A-10 4:5
Navn Side
KRF300A-12 4:5
KRF300A-12X2-40 4:6
KRF300A-16 4:5
KRF300A-16-45GR 4:8
KRF300A-20 4:5
KRF300A-24 4:5
KRF35-10 4:5
KRF35-10-45GR 4:8
KRF35-10-90GR 4:9
KRF35-10X2-24-26 4:6
KRF35-10X2-40 4:6
KRF35-12 4:5
KRF35-14 4:5
KRF35-6 4:5
KRF35-6-45GR 4:8
KRF35-6-90GR 4:9
KRF35-8 4:5
KRF35-8-45GR 4:8
KRF35-8-90GR 4:9
KRF400A-00 4:5
KRF400A-12 4:5
KRF400A-12X2-40 4:6
KRF400A-16 4:5
KRF400A-20 4:5
KRF400A-24 4:5
KRF500-00 4:5
KRF500-12 4:5
KRF500-14 4:5
KRF500-16 4:5
KRF500-20 4:5
KRF500-24 4:5
KRF50-10 4:5
KRF50-10-45GR 4:8
KRF50-10-90GR 4:9
KRF50-10X2-24-26 4:6
KRF50-10X2-40 4:6
KRF50-12 4:5
KRF50-12-45GR 4:8
KRF50-12-90GR 4:9
KRF50-16 4:5
KRF50-6 4:5
KRF50-8 4:5
KRF50-8-45GR 4:8
KRF50-8-90GR 4:9
KRF630-00 4:5
KRF630-12 4:5
KRF630-16 4:5
KRF630-20 4:5
KRF630-24 4:5
KRF70-10 4:5
KRF70-10-45GR 4:8
KRF70-10-90GR 4:9
KRF70-10X2-24-26 4:6
KRF70-12 4:5
KRF70-12-45GR 4:8
KRF70-12-90GR 4:9
KRF70-12X2-40 4:6
KRF70-16 4:5
KRF70-6 4:5
KRF70-8 4:5
KRF70-8-45GR 4:8
KRF70-8-90GR 4:9
KRF800-00 4:5
KRF800-16 4:5
Navn Side
KRF800-24 4:5
KRF95-10 4:5
KRF95-10-45GR 4:8
KRF95-10-90GR 4:9
KRF95-10X2-24-26 4:6
KRF95-12 4:5
KRF95-12-45GR 4:8
KRF95-12-90GR 4:9
KRF95-12X2-40 4:6
KRF95-16 4:5
KRF95-16-45GR 4:8
KRF95-16-90GR 4:9
KRF95-8 4:5
KRFS120-10 4:7
KRFS120-12 4:7
KRFS120-6 4:7
KRFS120-8 4:7
KRFS150-10 4:7
KRFS150-12 4:7
KRFS150-6 4:7
KRFS150-8 4:7
KRFS185-10 4:7
KRFS185-12 4:7
KRFS240A-10 4:7
KRFS240A-12 4:7
KRFS240A-16 4:7
KRFS300A-10 4:7
KRFS300A-12 4:7
KRFS300A-16 4:7
KRFS400A-12 4:7
KRFS400A-16 4:7
KRFS50-10 4:7
KRFS50-6 4:7
KRFS50-8 4:7
KRFS70-10 4:7
KRFS70-6 4:7
KRFS70-8 4:7
KRFS95-10 4:7
KRFS95-12 4:7
KRFS95-6 4:7
KRFS95-8 4:7
KRT10-10 4:10
KRT10-12 4:10
KRT10-5 4:10
KRT10-6 4:10
KRT10-8 4:10
KRT120-10 4:10
KRT120-12 4:10
KRT120-16 4:10
KRT120-8 4:10
KRT150-10 4:10
KRT150-12 4:10
KRT150-16 4:10
KRT150-20 4:10
KRT16-10 4:10
KRT16-12 4:10
KRT16-5 4:10
KRT16-6 4:10
KRT16-8 4:10
KRT185-10 4:10
KRT185-12 4:10
KRT185-16 4:10
KRT185-20 4:10
KRT240-10 4:10
KRT240-16 4:10
KRT240-20 4:10
KRT25-10 4:10
KRT25-12 4:10 KRT25-16 4:10
4:10 KRT25-6 4:10 KRT25-8 4:10
KRT300-10 4:10
KRT300-12 4:10
4:10
4:10 KRT95-8 4:10
4:18
4:18
4:18
4:18
3:7
4:15 KS1,5 3:7 KS1,5 4:15 KS1,5P 4:16
3:7 KS10 4:15 KS10M 4:16 KS10P 4:17 KS120P 4:17 KS150P 4:17
KS16P 4:17
KS185P 4:17
KS2,5 3:7
KS2,5 4:15
KS2,5P 4:16
KS240P 4:17
Navn Side
KS25P 4:17
KS300P 4:17
KS35P 4:17
KS4 3:7
KS4 4:15
KS400P 4:17
KS500P 4:17
KS50P 4:17
KS6 3:7
KS6 4:15
KS630P 4:17
KS6P 4:16
KS70P 4:17
KS95P 4:17
KSC150N-1-4HS 9:2
KSC150N-1-5HS 9:2
KSC240N-1-4HS 9:2
KSC240N-1-5HS 9:2
KSC50N-1-4HS 9:2
KSC50N-1-5HS 9:2
KSC95N-1-4HS 9:2
KSC95N-1-5HS 9:2
KSF120 4:15
KSF120M 4:16
KSF150 4:15
KSF150M 4:16
KSF16 4:15
KSF16M 4:16
KSF185 4:15
KSF185M 4:16
KSF240A 4:15
KSF240AM 4:16
KSF25 4:15
KSF25M 4:16
KSF300A 4:15
KSF300AM 4:16
KSF35 4:15
KSF35M 4:16
KSF400A 4:15
KSF400AM 4:16
KSF50 4:15
KSF500 4:15
KSF500M 4:16
KSF50M 4:16
KSF630 4:15
KSF70 4:15
KSF70M 4:16
KSF800 4:15
KSF95 4:15
KSF95M 4:16
KSX10 4:18
KSX16 4:18
L1300 CU-ALU 6:22
L1300 CU-ALU 6:25
L-ALU 6:25
L-ALU 6:38
Navn Side
P44M 6:35
PEB0110T 2:13
PEB0110T18 2:13
PEB0116H 2:13
PEB0116S 2:13
PKL54C 10:11
PKL54C-WOBC 10:11
PL1001 1:12
PL450 1:13
PL451M 1:12
PL701 3:18
PL800ET-PEB0116H 2:12
PL800ET-PEB0116S 2:12
PS710D 6:45
PS710E 6:46
PS710E251 6:46
PS710E501 6:46
PS710R 6:47
PS710R250 6:47
PS710R500 6:47
PVL130P 1:18
PVL130P 2:18
PVL130P 3:24
PVL130P-WOBC 1:18
PVL130P-WOBC 2:18
PVL130P-WOBC 3:24
PVL130S 1:19
PVL130S 2:19
PVL130S 3:25
PVL130S-WOBC 1:19
PVL130S-WOBC 2:19
PVL130S-WOBC 3:25
PVL350 6:6
PVX1300-WOBC-ADV 6:12
PVX1300-WOBC-ADV 6:18
PVX1300-WOBC-ADV 7:7
PZD3 2:15
R12DR 6:36 R12MR 6:23
R12MR 6:36 R13DR 6:36 R13MR 6:23 R13MR 6:36 R15DR 6:36 R15MR 6:23 R15MR 6:36 R16DR 6:36 R16MR 6:23 R16MR 6:36 R18DR 6:36 R18MR 6:36 R20DR 6:36 R20MR 6:36 R21DR 6:36 R21MR 6:36 R26DR 6:36 R26MR 6:36 R28DR 6:36 R28MR 6:36 R6DR 6:36 R6MR 6:23 R6MR 6:36 R7DR 6:36 R7MR 6:23 R7MR 6:36
L-PVX1300 6:22
MOBILE DATA/COM 3:26
MOBILE INSTALLATION 1:20
MOBILE INSTALLATION 2:20
MOBILE INSTALLATION 3:26
MOBILE SOLAR
P13D 6:23
P13D 6:35
P13M 6:23
P13M 6:35
P20D 6:23
P20D 6:35
P20M 6:23
P20M 6:35
P2552D 6:35
P2552M 6:35
P25D 6:23
P25D 6:35
P25M 6:23
P25M 6:35
P32D 6:23
P32D 6:35
P32M 6:35
P36-40-44D 6:35
P36-40-44D 6:35
P36-40-44D 6:35
P36M 6:35
P4000 6:49
P40M 6:35
PVL350-WOBC 6:6
PVX1300 6:12
PVX1300 6:18
PVX1300 7:7
PVX1300-ADV 6:12
PVX1300-ADV 6:18
PVX1300-ADV 7:7
PVX1300-ADV-WOBC 6:12
PVX1300-ADV-WOBC 6:18
PVX1300C2 6:14
PVX1300C2 6:28
PVX1300C2-ADV 6:14
PVX1300C2-ADV 6:28
PVX1300C2DB 6:14
PVX1300C2DB 6:28
PVX1300C2DB-ADV 6:14
PVX1300C2DB-ADV 6:28
PVX1300C2-WOBC 6:14
PVX1300C2-WOBC 6:28
PVX1300C2-WOBC-ADV 6:14
PVX1300C2-WOBC-ADV 6:28
PVX1300-CASE-ADV 6:21
PVX1300DB 6:12
PVX1300DB 6:18
PVX1300DB 7:7
PVX1300DB-ADV 6:12
PVX1300DB-ADV 6:18
PVX1300DB-ADV 7:7
PVX1300-WOBC 6:12
PVX1300-WOBC 6:18
PVX1300-WOBC 7:7
3:25 RPL1800-PEB0116H 2:11 RPL1800-PEB0116S 2:11 RPL5548 2:11 RPL605 1:12
SA0760 1:19 SA0760 2:19 SA0760 3:25 SBC50 8:5 SC150N 8:3
SC150N/PEN 8:4
SC150R95S 8:3 SC240/PEN 8:4 SC240N 8:3
SC240R185S 8:3
SC400R240S 8:3
SC50R50S 8:3
SC630R 8:3
SC95N 8:3
SC95N/PEN 8:4
SC95R95S 8:3
SCT001 10:6
SD0525 2:12
SD4016 2:12
Navn Side
SL150R95S-10-12 8:5
SL150R95S-12X2-40 8:5
SL240N-10-12 8:4
SL240R-12-16 8:4
SL240R-12X2-40 8:4
SL240R185S-12-16 8:5
SL400R-12X2-40 8:4
SL400R240S-00 8:5
SL400R240S-16 8:5
SL400R240S-20 8:5
SL500B-630B-12X2-40 8:5
SL50N-10-12 8:4
SL630B-12X2-40 8:4
SL630R-1 8:5
SL630R-12X2-40 8:5
SL630R-14 8:5
SL630R-16 8:5
SL70R70S-10-12 8:5
SL95N-10-12 8:4
T2258 6:3
T2600 6:8
T2600 7:4
T2600B 6:8
T2600B 7:4
T2600C 6:8 T2600C 7:4
T3165A1 6:5
T3165B 6:5
T3165C 6:5
T50 1:14
T50 3:19
T51 1:14
T51 3:19
T52 1:14
T52 3:19
TB11-14,5 6:9
TB7-20 6:9
TB8-17 6:9
TB9-13 6:9
TBC5-C6 6:10
TBC89-B13 6:10
TBKA9-11,5 6:11
TBNP16-20 6:9
TBNP16-20 7:5
TH0650T 6:5
TH10120T 6:5
TOR 10:5
TOR SP BIG HOOK 10:5
TOR SP KNIFE 10:5
TOR SP SMALL HOOK 10:5
TP13D 6:11
TP13M 6:11
TRB0515B 3:20
TS1300 6:28
TS1300AL 6:28
TS1300CU 6:28
TV2620 6:11
UFE 10:7
UFE1 10:7
UFE2 10:7
UFEB 10:7
UP-B41 10:6
V1300 6:17
V1300C2 6:27
V1311-A 6:17
V1311-A 7:6
V1311C2-A 6:27
V1316 6:20 V1316 6:26
V1316 6:26 V1316 7:8 V1316 7:8 V1318 6:20 V1318 6:26 V1318 6:26 V1318 7:8 V1318 7:8 V1320 6:24 V1330 6:31 V1470 6:42 V250 6:32 V250 7:9 V2506 6:34 V2508 6:34 V2521 6:35 V2521 6:35 V2521 6:35 V2521 6:36 V2521 6:36 V2521 6:36 V2521 6:36 V2521 6:36 V2521 6:36 V2521 6:36 V2521 6:36 V2521 6:36 V2531 6:35 V2531 6:35 V2531 6:35 V2531 6:35 V2531 6:35 V2531 6:36 V2531 6:36 V2531 6:36 V2531 6:36 V2531 6:36 V2531 6:36 V2540 6:36 V600 6:7 V600 7:3 V611 6:7 V611 7:3 W60D 6:44 W60M 6:44 W70D 6:44 W70M 6:44
WB4099 1:19 WB4099 2:19 WB4099 3:25
V1300 7:6 Navn Side
Hovedkontor og fabrik
Elpress AB, Kramfors Sverige
Datterselskaper
Elpress AS, Gressvik Norge
Elpress A/S, Silkeborg Danmark
Elpress GmbH, Viersen Tyskland
Elpress China, Bejing Kina
Elpress Inc, Chicago USA
Salg
Region north Sweden, Kramfors
Region middle Sweden, Upplands Väsby
Region south Sweden, Gothenburg
Sales office, Ed
Suomi, Porvoo
India, New Delhi
Servicepartnere
Hydraulikkteknikk, Sjetten (Oslo) Norge
Enkom, Vasa Finland
Hamburger Hochdruck Hydraulik, Hamburg Tyskland
E-Tech Components, Skelmersdale UK
Precision Hydraulics, Portland USA
Distributører og partnere
Unitronic GmbH, Düsseldorf Tyskland
Enkom-Active Oy, Helsingby Finland
JF Knudtzen AS, Nesbru Norge
Jobarco, Br Benthuizen Nederland
ACTE Sp. Z o.o., Warszawa Polen
E-Tech Components, West Lancashire UK
















