

The word Be is from being yourself: The word hance is from enhance Authentic creative expression paired with enhancing the way you work. In learning, it is important to be true to yourself while enhancing yourself to achieve a greater version of oneself

KKEEP KEEP EEP MOVING MFORWARD OVING MFORWARD OVING FORWARD
'FORWARD' can include the sense of continuity, development and progression. For our studio works, exhibition is an official and big event, but it's not the end of design phase, meaning it would continue to higher levels, such as studio I to II and studio III to real practice. This is the time for us to move forward with confidence and faith even though there will be obstacles that block our future path. We believe the power of architecture perseverance and faith in oneself works wonders! We believe that our efforts can bring a better life to modern society. With faith, we move forward to the unknown future in a firm attitude and steady pace.
01 forewords 02 Events 03 studio works 04 memories

05 graduation quotes 06 reflection 07 thank you note
1

2
MS Sukhjit Kaur Sidhu Head of Programme Diploma Studies School of Architecture & Built Environment
Architectural historian, Spiro Kostof one said, “Architecture is a social act and the material theatre of human activity”. Architecture and Interior Architecture has long been associated with perfection and the ideas of beauty, however, both disciplines impact the social equity, cultural development, and human interactions, tremendously. Working closely with the Dignity for Children organisation, students were able to understand how the spaces they design could bring significant change to everyday lives of occupants who are learning to improve themselves, as well as the public perception of such communities. Architecture and interior architecture have great potential in enhancing the lives of people, especially through thoughtful design of spaces and the use of sustainable materials While students sharpen their tools for their own career pathways, we hope that their small acts of service towards the less fortunate communities will help them understand their own footprint in the world

WEE JIa bao President of Behance



It's really difficult to balance both sides when you ' re in your final semester of a degree programme, so I want to thank Johnny (the Treasurer Team Leader) and Ee Zhe (the Logistics Team Leader), two very capable individuals who made the entire event run very smoothly In addition, I want to express my gratitude to all of the committees for their commitment to our Behance exhibition from the time of the interview until the present. I appreciate your assistance and hope that he will live on in our collective memory. I also look forward to UCSI producing more and more captivating exhibitions.
It is a great pleasure to have this opportunity to lead this team A committee that includes four different classes and involves this amount of individuals is a big team to work together. I wouldn't say this event is the most successful but will be a great achievement that we accomplish in our uni life. What we did in the past four months and in this 2022-05 semester, is not always smooth but will be great memories and experiences we got in our life. Thanks to everyone in the team, no matter which team you allocated in or how much work you did, we did put on a good show for everyone to have this chance to display their hard work at the exhibition. Looking forward to any future event organised by the students.
Behance exhibition is an event that will let us learn how to help hand in hand and fulfil our goals and solve any problem that we face together. Throughout this event, I have learnt that we must move forward whenever we face hard times and never give up.
Vice
3
TAN HUEY WEN Vice President of Behance
TAN LI JUN President of Behance
Today is hard, tomorrow will be worse, but the day after tomorrow will be sunshine. All the best and remember keep moving forward.
4
We have hosted the first physical event of the semester called “The Freezing Party”. It was held on the 21st and 22nd of July from 10am up to 5pm. This event took place at UCSI university, Block A at the lobby entrance. The objectives for this event is to promote Behance exhibition and raise funds for it. Our event team worked hard to plan this event with sincerity and anticipation. In this event, we provided varieties of snacks such as ice-cream, french fries, drinks and some fun games to entertain UCSI students. Before the 'real freezing party', our committee member have done a trial event to test the reaction from UCSI students and lecturers. We sold a great amount of soya milks to them and gain some funds at the same time. We are very grateful for the supports and love we received. Thank you to the event team for organizing these two events while having their internal review
21st & 22nd AUGUST 2022
Trial for "The Freezing Party" Event


Explain the Game Rules
GAME RULES
Ping Pong Ball Throwing
Participant needs to throw a ping pong ball into coloured egg tray, different colours contain different points. The participant have to collect 10 points in order to get the rewards.

Event Team Member Helping to Promote the Event
Rubber Ball Throwing
Each participants will have 3 rubber ball for each entry. They have to throw the ball into coloured basket to get the rewards. But this time, only certain coloured baskets contain rewards.

5

16th & 17th AUGUST 2022 6

Behance Exhibition is organised by Diploma students of architecture and interior architecture in UCSI University. The objective of the exhibition is to give the opportunity to the SABE diploma students to showcase their design studio works and provide interaction between students and the public. A total of 101 students are making this exhibition a reality.
Site Model of Architecture Studio 2

Site Model of Architecture Studio 3

The benefits of this exhibition are students can gain event organizing skills, leadership skills, communication skills, get interaction with the public and much more. It is an important and meaningful event for the students, especially for those who are going to graduate and work in the real industry world soon.
Before the day of the exhibition, the committee members and lecturers set up the event space at night. We spread the carpet, fix the frame and arrange the frames and chairs at the event space. Everybody worked hard until midnight. We are very appreciative of everyone ' s hard works.

17th August, which is the second day of the exhibition, we have the presentation of Design Studio 3 where the external panels are invited to give comments and guidance to the students. Then, the closing ceremony and awards announcement are conducted. We congratulate all the winners with the most sincere and dedicated heart. It was such an amazing time for everyone to cheer for their friends. After that, we have the photo sessions where everyone take photo with our lecturers and friends. It is very important to keep this event recorded and have photos to keep with us. This is a great and meaningful memories for everyone. We hope that this is a marvelous period in each student's memories of studying architecture in UCSI university.
It's very honored and gratified to have such great talents in SABE The day went on with many customers in AEON mall who come to visit our exhibition. They are given stickers to vote for the best works in each studio. The winner with most votes will be announced in the next day.





On the first day of exhibition, we have the opening ceremony Students from design studio 2 have their presentation on the first day too. We have a fashion show from students of IDP, they walk through the show with their own designed headgear. It was exciting and fun, we all are amazed by their great works.
7
ARCHITECTURE DESIGN STUDIO 3 8
“I call my students ‘ my kids’ because in our year together, they are not just kids on my class list; they become a part of my heart.”
Nor Syawallina Binti Azman

Architecture Studio 3 Lecturer
With exposure like this, we expect our students to be the leaders of tomorrow who will foster and develop the reputation that UCSI has earned through the years as the best private University in Malaysia. Congratulations, and thanks to the commitment of so many students and lecturers. Thanks go to every student in this course, the committee, group leaders, respective lecturers from SABE and all who directly and indirectly contributed to this event. Again, Congratulations, Behance 2022
9
Despite all the challenges, we are justifiably proud of our students and their dedication to the exhibition. Our precious students are a credit to themselves and their families in how they conduct themselves with the spirit they bring to our school. Enjoy this journey and savour each event. We urge our students to continue to make the most of their talents, always do their best, and realize their full potential. What we sow now, we will harvest later. Sharing this knowledge and experience builds solidarity among students.
10
PROJECT BRIEF
This semester we have chosen to work closely with Dignity for Children Foundation, a non governmental organisation that provides holistic care and education for poor urban children in Kuala Lumpur, Malaysia. Dignity currently serves over 1,700 children and youth aged 1-18 years. Other than operating education programmes in Sentul Kuala Lumpur. Dignity for Children Foundation currently operates six (6) Transformational Enterprises: eat X dignity, cut X dignity, sew X dignity, art X dignity, grow X dignity and wellness X dignity.
Students must choose two (2) Dignity enterprises for the Youth Skills Centre with various skills training programs over 6-month periods. The centre will allow its students to explore and learn alongside experienced individuals or industry professionals and can learn about what it takes to run a business well. In addition, the centre must redefine areas of human interaction with architecture in creative manners with the programs in tandem with interactive, multidisciplinary academic classes where youth drive their learning, facilitated by a team of educators.
The students are required to design a Youth Skills Centre that brings together the best of academic learning and hands on, real world experiences for a vibrant education that meets the needs of each youth while serving the neighbouring community. It seeks to truly dismantle the walls between traditional classrooms and the real world, creating a youth friendly space with multiple outlets for different and meaningful expressions of creativity and learning in an urban community.
parking lot at medan tuanku LOT 67, LORONG MEDAN TUANKU 2, CHOW KIT, 50300 KUALA LUMPUR, WILAYAH PERSEKUTUAN KUALA LUMPUR s i t e a n a l y s i s The parking lot is located beside The Pusat Khidmat Gelandangan Medan Tuanku. This lot is under the management of the Kuala Lumpur City Hall (DBKL). It is a private parking lot which collects RM 7 maximum per entry. The Pusat Khidmat Gelandangan Medan Tuanku is an initiative of the Ministry of Federal Territories and Kuala Lumpur City Hall (DBKL) built by Sinotech Modular Housing Co Ltd with corporate social responsibility (CSR) with the aim of ensuring homeless and less able to get help and services accordingly. The Pusat Khidmat Gelandangan Medan Tuanku provides shelter, food and utilities. It allows the homeless to stay for any amount of time, including overnight housing for singles. The chosen site is about 1134 sqm. There are no high rise buildings next to the site, however, there is a future development project next to the site which building a 3-star 19 storeys hotel. There are a few shop lots near the site about 4 to 5 stories in height. There is a BP healthcare centre right opposite our site. 11

The weakness of our site is the land surface is uneven, therefore it is not safe for pedestrians to walk.



The thread for our site is there is no lamppost at the site. Therefore it is dangerous for the pedestrian or user to use during the night.
12
The strength of our site is there are good views. From our site, we can enjoy the KL city view including our KL landmark, KLCC, KL tower, Sheraton Hotel, The Quill Mall and JKG Tower.
The opportunity for our site is there are a lot of users. There are a lot of white collars that will park there and walk to their office nearby or they will go to the Monorail Medan Tuanku.

13
EATART
TAN LI JUN lijuntan11@gmail.com


EATART is a skill centre designed for youth that can experience art and eat while learning in a comfortable environment. The different colours used on the facade design is to represent my concept ''vital'' which brings an energetic vibe to the building and enhances the exterior look of the building to catch public attention.

14






15

KAW XIN YEE xinyee8389@gmail.com

ReLief is a space that creates a balance and comfortable learning experience for the user. As the city is a contested space and we always called it a concrete jungle, greens are less to see in the city.

Nature act as a catalyst for students to have a better learning environment. Thus, there are various types of plants planted around the building and there is a herb garden supporting the Eat x Dignity classroom.
RE.LIEF
16






TRANQUIL INSTITUTION
TAN YONG YE tanyongye2002@gmail.com


A peaceful environment is very important for a student to study The Tranquil Institution has the main idea to create a peaceful and quiet environment for the student to concentrate during their class. The simple design gives the student less distraction to study and the surrounding is planted with different plants to give the skill centre an enclosed environment for study purposes.
17

18






Serenity
19
The Serenity is a commercial skill centre that breaks the wall between the traditional classroom and the real world experience. The skill centre provided classes such as cooking and planting skills. As to cooperate with my concept "Oasis", I designed a centre courtyard in my building as the user can experience the urban green space in the middle of the building.

HEE CHOON YEW 1002060186@ucsiuniversity.edu.my


20






1002061033@ucsiuniversity.edu.my

SHAHID TAYYABA

21
The skill centre is designed to reflect a continuous pattern or a cycle that represents both the Dignity enterprises that chose, which are Eat x Dignity and Grow X Dignity. The cycle represents the flow of agriculture and food in both enterprises. My design is mainly focused to create an interactive and pleasant ambience in the design that will focus on sustainability, wellness and environment for the users
In between

22






In design studio 3, we are to design a commercial skill centre and my main idea is to design a building where modernity and nature coexist. Even in the city, users can still feel the feeling of being in nature in the building Users and students can feel the pleasure and fun of learning in a natural environment.

LEE JING KAI jingkai020319@gmail.com


Sur-nat
23
24






Art therapy school
AKIHIRO TOMITA 1002059102@ucsiuniversity.edu.my

'Contrast between "Busy" and "Quiet" ' is the concept Aimed at creating a space that heals people's mind even in rainy days, in order to relieve mental illness caused by the bustling urban environment.



25

26






RELIANCE
27
TAN JIA QIAN tanqian579@gmail.com


The Reliance Skill Center brings the meaning of something relied on. The project implemented a sustainable design and has a nice view, a few gardens and a green facade that let the public enjoy and relax. In the meantime, it achieves the concept of "self-sufficiency", from different aspects of both enterprises Grow x Dignity and Eat x Dignity. Sustainable design is also reflected by reuse the of natural resources.

28






INFI-NATE

INFI NATE, is a skill centre for the youth integrating healthy eating with skating and art painting. Dignity for the children foundation is providing education to children over the world equally.
MANDY LIM JIA JIA mandljj@outlook.com

29

30






31
The design of Soul Skills Center is inspired by the youth energy from the Dignity for Children Foundation The buildings are all facing the same direction which is the connection point between the Pusat Gelandangan Medan Tuanku and the skills centre. Human interaction is one of the main points of this design The colour scheme and form of the buildings were chosen to promote the creativity of the students.

THE SOUL 1002059106@ucsiuniversity.edu.my

CRYSTAL KANG WEI KEE

32






JOHNNY PANG YU ZHI

33
Inter-linked
1002060652@ucsiuniversity.edu.my

The link between the spaces creates some circulations. Link the opening to the building, to create views, natural light, wind flow and green texture. Stairs connect the respective activities together. Block by block to create the texture contains the view, light and wind. Types of opening; spin, slide, on top or special cut, control the views to its value.

34






SIAH MING FONG 100205967@ucsiuniversity.edu.my


My concept is about "light", light as in natural lighting filled in the space. I want to make the space comfortable by letting the user feel the warmth of daylight in the interior space You can see that the roof was chosen because it allows more sunlight into the inner room plus black glass to reduce the heat of the sun and also create a good learning environment

dove-eye
35
36






REGEN SEE EE ZHE 1002060111@studentucsiuniversityedumy


37
Regen Skill Centre is designed for dignity, a non-governmental organization to provide holistic care and education for marginalised and urban poor children. The building has a combination classroom, multipurpose hall and office for the students and teachers. Furthermore, the building also provides a restaurant and mini retail store for the public to enjoy food and fresh vegetable, while the profit will fully be donated

38






This project is a Youth Skills Centre that has chosen to work with the Dignity for Children Foundation, a non governmental organisation for poor urban children in Kuala Lumpur, Malaysia. This building is designed with two combinations of enterprise eat x growth dignity. This building provides education learning and hands-on.

HEARTSEASE
QAISARA deqbyqaisara01@gmail.com
39


40






The Arcadia is a community centre for youth to visit and learn skills such as sewing or grooming. It also is a small gateway place for the public to see, relax or shop the products from this skills centre The building uses an open concept and is surrounded by indoor and outdoor greens. It is to break the boundary of inside and outside to fit in my design concept - "in-between".

41
ARCADIA
WEE JIA BAO jia02bao06@gmail.com


42






BRIDGELAND'S
My concept is contrast, because in order to create a contrast with the surrounding rushing busy environment, so I want the user ' s feeling of using the place to be very casual and not feel stressed and busy I also tried to use dignity's logo color to create a representative appearance of the building.

CHANG KEAT WEI changc0411@gmail.com

43

44






INTERIOR ARCHITECTURE DESIGN STUDIO 3 45
Interior Architecture Studio 3 Lecturer

ZIRWATUL AMANI BT ABD AZIZ
46
Congratulations on making it this far throughout the global pandemic till endemic. Always keep up the dedication and sincerity. “We started here together and now we ’ re leaving the same way. The funny thing is you never appreciate what you had yesterday until it is gone today.” Two year have passed so fleetly and it’s for you to explore to the direction of enthusiasm, humble, respect and kindness. To the Behance Exhibition team, congratulations to dedication and hardwork. I truly wish for the very best in your future endeavour. Your journey through this school may stop here, but above all, it is the beginning of new heights for you. My final wish, “What we call the beginning is often the end. And to make an end is to make a beginning. The end is where we start from.” T.S. Eliot
Wellness is the state of health when the body, mind, and soul are in harmony. Its key elements are self responsibility, fitness and beauty treatments, a healthy diet, relaxation, meditation, intellectual activities, and placing high emphasis on environmental sensitivity and social relations. In this final studio, students are required to design a wellness design either gym or spa (minimum 20 30 pax guest), sized 3,000 3,500 sqft with all required spaces and necessary COVID-19 prevention procedures. Focus is given to the technical aspects of wellness design such as users ’ needs and activities, space requirements, and the operational system, facilities, and equipment. Students are required to produce an overall space plan, create design concepts and schemes, apply spatial quality elements and technical drawings, and understand the influence of site and building context.
47
PROJECT BRIEF
In other side, for the building analysis part, the surrounding trees create a peaceful atmosphere, which protects the building and provides shade. Due to its location at the city center, it will limit site expansion or renovation. During a pandemic, crowding can lead to the next wave of covid-19 infections, this will be one of the risks for the site.Also, as there are tall buildings nearby and the terrain is low. This may require more ventilation.Large spaces might be used to construct more walls and services to prevent social isolation as a result of the epidemic.
i t e a n a l y s i s
The site there is an open space outside the building, allowing customers to park in this space without having to worry about finding a parking space but, the parking area space is not big enough if there are many cars in the parking area. This will make it difficult for cars to move around the area. Also, it provides some public transportation near the venue, allowing customers to avoid traffic jams, in addition to making it possible to get there without driving. Also, there is a mall near the area which provides more people with dining issues.
MORI KOHI CAFE & MIDORIE MALAYSIA GREEN PLANET NO 13 , JALAN CAHAYA 15 , TAMAN CAHAYA , 68000 , AMPANG , SELANGOR

s
48
when I hear the buzz of the little world among the stalks, and grow familiar with the countless indescribable forms of the insects and flies, then I feel the presence of the Almighty, who formed us in his own image, and the breath of that universal love which bears and sustains us, as it floats around us in an eternity of bliss; and then, my friend, when darkness overspreads my eyes, and heaven and earth seem to dwell in my soul and absorb its power, like the form of a beloved mistress, then I often think with longing,
Oh, would I could describe these conceptions, could impress upon paper all that is living so full and warm within me, that it might be the mirror of my soul, as my soul is the mirror of the infinite God! O my friend but it is too much for my strength -- I sink under the weight of the splendour of these visions!
49




ALISA AFIRNA arfinaalisa@gmail.com


Balinese inspired dripping in style and deeply immersed in local culture meets the blissof peaceful by the beachWhere boundary pushing holistic bali designs which captivating traditions are peacefuly weaved into the ocean front architecture,with sustainable, natural elements paying tribute to Bali’s purest elements
50
BALINESE BLISS

51






TAN HUEY WEN hueywentan0211@gmail.com

For this project, I designed a Wellness spa with Egypt as the theme. The size is close to 4,000 square feet and can accommodate 25 people. The space includes an Entrance, reception, waiting area treatment room, changing room, storage( goods receiving area ), staff locker room, mini beverage healthy bar area, outdoor activities area, and management office The overall final design, all lighting, furniture, finishes, and materials used in this spa were chosen according to the more comfortable light blue and earth tones color scheme associated with the Egyptian style.

THE Rà
52

53






1002058714@gmail.com 54

YAP
Twenties implies that customers can return to being 20 years old after entering the spa. The clean looks of modern art deco style combines just enough aesthetic detail to make the interiors feel welcoming By using olive green wall paint and white marble create an environment that is harmonious and pleasing to eye.

TWENTIES XIN YAN

55






I am alone, and feel the charm of existence in this spot, which was created for the bliss of souls like mine. I am so happy, my dear friend, so absorbed in the exquisite sense of mere tranquil existence, that I neglect my talents. I should be incapable of drawing a single stroke at the present moment; and yet I feel that I never was a greater artist than now.
NG CHONG JIE 1002060115@gmail.com 56


YASUMI
A wonderful serenity has taken possession of my entire soul, like these sweet mornings of spring which I enjoy with my whole heart.

57






Ayurvedic massage combines the 5,000-year-old Indian principles of Ayurveda the science of life and pressure points. This type of massage is designed to create balance among the mind, body, and spirit, and help the body heal itself. It’s sometimes referred to as an “oil massage ” because it typically incorporates warm herb essential oils, as well as time honored and non traditional strokes and kneading that suit an individual’s needs.
spa RAGAVEE MEGANATHAN 1001748637@gmail.com 58

Kerala

59






60

ReGLOW XIN YI

1002060132@ucsiuniversity.edu.my
What will happen when uncluttered, minimal of modern meets the 80s bold and funky? ReGLOW is a woman only day spa which offers women a personalised and tailored glow up journey in a tranquil environment. Round edges and curves are widely used in the whole space as to symbolize feminine. The combination of pastel lilac and yellow is to bring the retro 80s vibes.
HENG

61






LUCAS CHING JIN KAI jinkaiching@yahoo.co.uk

WALKTHROUGH 62


IYASHI SPA
This project is to proposed wellness design at Mori Kohi Cafe & Midorie Malaysia at Jalan Aman, Kampung Datuk Keramat, Kuala Lumpur. The conception of design for Iyashi Spa is Zenuristic. It is the mixture concept of Zen and Futuristic. Zen is the main concept in the design where futuristic in Zen uristic represents embellisment and elements for Zen concept which mainly using stone and aluminium to create the futuristic atmosphere to Zen. The space planning of this project is mostly inspired by organic shape where neutral colour is the main colour scheme that would applied in Iyashi Spa.

63






ARCHITECTURE DESIGN STUDIO 2 64
Architecture Studio 2 Lecturer

65
Noor Fatehah Binti Mat So'od
Heartfelt gratitude also goes to all of you (Architecture and Interior Architecture students) who have spent time and effort in making this “Behance Exhibition” a success. Our students have shown tremendous efforts and did an excellent job in their works, and I truly hope that this showcase of studio’s work could help and inspire new generation in exploring and nurturing the beauty of the architecture.
Design intentions are like goals set to achieve within the design project where these intentions will underpin the project and ensure students’ proximity in the development of the design.
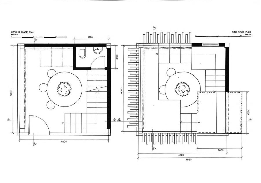
Students are required to design a residential house for two to four pax with house spaces to be as a place for the client’s daily life, thus it should not be a typical house but rather a place that can cater both private and public activities for the specific teachers from Dignity Children Foundation.
Students are to study the theme and special requirement design for the selected clients and should be able to use it as part of design concept or design intentions for a house approximately 100 msq (max 150msq).
PROJECT BRIEF
After exploring the understanding of architecture spaces, students are required to design a space to fit specific needs of the client (as for clients to rest and have spaces for activities and working).
66
67
s i t e a n a l y s i s
Located in Kuala Lumpur under DBKL, this site is chosen as our site for our final project due to its surroundings and neighbourhood context. The site itself is actually an existing carpark area where it is split into half for our site. The program around the site is residential, recreational, businesses (commercial) and facilities buildings.
Dignity for Children Foundation is a non-governmental organisation that provides holistic care and education for marginalised and urban poor children in Kuala Lumpur, Malaysia. Everyone should have an equal opportunity to access quality education as well as a real-life training in local businesses to develop life skills, employability skills and character for thr youths
keramat au2 Lorong Enggang 31, Keramat Au 2, 54200 Kuala Lumpur
Kebun Komuniti Keramat AU2 and Tabika Kemas Keramat Pangsa are located on the left side of the site whereas PPR PKNS flats are in front of the site, a carpark located in the left side of the site and a Klang River opposite of PKNS.

68
These conditions makes SWOT analysis easier to be observed on site. Circulations, climate and sensory and the above mentioned are all taken into considerations.
There are two easements for the site, one would be for the ingress, and the other for egress. As for softscape, there are two rows of existing trees at PKNS and the slope with approximately 2.3 meters high. Drains are visible from the site where water flows to the right side of the siteto a sewer manhole into Klang River.


The roads around Keramat Au2 are uneven especially on site, its condition is half tar half pebbles. Only two streetlamps are visible on site which makes it dark and dangerous for human activities at night.


The form of my design visually relates to this term as most of the design weight looks like it is supported on one side. However, in a more metaphoric manner, the life skills that are taught in dignity also represent the leg that supports all the weight as they are what the kids rely on in the future considering the fact that not everyone gets the chance to move further with their education.

SHAYMA SERHAN serhanshayma@gmailcom


It translates to the opposite in Italian and it is an artistic term that means counterpoise It is when a sculpture is standing on one leg while the other is usually bent at the knee.
69
contrapposto

70






CHONG ZHI HUA scpschongzhihua@gmailcom


Incorporating the sense of nature with work production and human wellbeing, The Soul of Sewing is designed to be around plants which helps improve memory and attention span thereby increasing concentration Concentration is the key to increasing production where it indirectly helps to grow the funds in order to support more people who are in need.
The Soul of Sewing intends to integrate residentially and SEW X DIGNITY for my client, Ms Melanie, having separated living and working spaces to fulfil her preference.

71
THE SOUL OF SEWING

72






THE FLOW
73


The FLOW is a residential building which combines the working area of our client This building aims to propose and provide more accessibility and welcoming to the public and pleasant to provide their cutting and washing services. These buildings were designed to interact with the surroundings no matter the nature or man

LIM ZI YAO zyanlim66@gmailcom

74






Being a semester 4 student in Diploma in Architectural Studies, I have learning the step of designing a house starting from doing site analysis and site response. Under the guidance of my studio lecturer, I learn a lot of technique thing and also to consider the comfortability of a house and also the design of the house

SEAW WOON BIN sebrina520@gmail.com

STITCHES OF LIFE
75

76






VAMBIENT CHIA CHU JUN chujun2003@gmail.com


77
VAMBIENT is defined as Visual and Ambient, the open plan house that enhances the visual with different rotation of form that faces towards the point of interest, the Klang river responding towards the surrounding site. It also adapted some traditional Malay Architecture to the house. The openness concept is applied that allows the user to have visual connectivity with the natural greenery and the house. Is a collaboration project with DIGNITY where we are requested to construct a house that will have public spaces to teach people about hairstyling and a private space to live.

78






WONG JING JIA avrilwjj@gmail.com


curves
Introducing the CURVES, the name comes from the exterior of the structure which emphasizes its fluidity and undulating architectural lines. Based on the desired enterprise which is Cut X Dignity, the CURVES serves as 70% living area with 30% working area which is a barbershop. Moreover, the CURVES is built to fulfil the needs of my client, Mr Alan including a master bedroom on the ground floor, more openings for more natural light Also, I am truly grateful for the outcome after countless tutorials.
79

80






the ambivalent
81
The Ambivalent is a house for Ms Joey from Eat x Dignity. The concept is to create a building to define and guild people to where they belong which is by separating it into public and private spaces The name Ambivalent comes from the feeling of MS.JOEY where she likes to communicate and hang out with her friends but at the same time, we are trying to keep her privacy secrets

PANG QI ZHEN pangq96@gmail.com


82






ukiyo-e
THONG CHEE ERN thongcheeern@gmailcom


Ukiyo-E is a building with a centralized organization. The purpose of using centralized organization is to separate working and living areas into two different spaces. Additionally, this organization will also provide good stack ventilation in this building that makes clients feel windy while living inside the house.
83

84






"More and more, so it seems to me, Light is the beautifier of the building" - Frank Lloyd Wright

The "IMPRESSIONISTS' HOUSE" idea came from the client's love for the artist Vincent Van Gogh, who put his mark on the art impressionism movement. The house is designed with the idea of letting in as much needed natural lighting as possible because luminosity plays a role in human life. It affects one ' s mode, and vision and enhances spaces.
THE impressionists' house MUNIRA SAID ATHUMAN munirakindo@gmailcom
85

86






87

88






89
the philantrophy
Philanthropy represents the light of education for poverty The foundation is established to provide skilful education so that the children in the B40 community become contributors to society. This project is to design a residential project integrated with Dignity Enterprise. I designed the building to totally separate living and work to achieve a holistic life of living. Moreover, this project is to highlight the multi functional and limitless space.

JESSICA CHU jessicachusy@gmailcom


90






ANGELINE KANG ROU YIENN rouyienn03@gmailcom



L'ETOFFE
91
L'ETOFFE or 布(bu)is inspired by the client, Ms Melanie and her works as well as hobbies. L'etoffe translates to fabrics, cloths and materials hence the peculiar layout of the building. Serving as a residence and studio, L'ettofe is an interlocking space that links the spaces harmoniously but at the same time separates the living and working space. The design aims to captivate and welcome outsiders to explore SEW X Dignity at the same time, creating a home for the said client.
92






ENFOLD is a house that combined 60% of living and 40% of working space. It is designed for miss joey who is a teacher in Eat x Dignity The name ENFOLD is because the building itself is enfolded by the white roof and this also can create a hierarchy feel that can attract people's attention and introduce eat dignity to the community.

ENFOLD
TIO BI JUN elosntio@gmail.com


93

94






OASIS FAM YIN HANG yin.hang021107@gmail.com


This building is designed for Ms Joey who is a teacher in Eat x Dignity. The idea of this building is a combination of a cooking workshop and a residential which is a school and also Ms Joey's house. About Eat x Dignity, it is a restaurant at the same time is a real life classroom where students are the ones serving the customers from the kitchen to the dining area.
95

96






BATILK
97
YONG YUN QI yunqii.y@gmail.com


BATILK is a workshop under Sew X Dignity that emphasizes the interaction between the workshop and the public, also between the indoor and outdoor. The workshop provides enough exposure to the public to attract people, but the privacy of the client is protected by vegetation, also the walkway separates public and private space.

98






INTERIOR ARCHITECTURE DESIGN STUDIO 2 99
Interior Architecture Studio 2 Leturer
Ilyana Binti Sujak

100
Congratulation to all students! This Behance Exhibition and yearbook showcases a wide range of very inspiring and creative projects developed by our talented students. It could not have been accomplished without the cooperation and input from all of you. I believe that good interior designers and architects will positively affects everyday lives and well being and is of vital importance in changing the world. I am proud to celebrate the achievement of our students as they have work hard alongside lecturers and peers with commitment and enthusiasm. I congratulate all of you on your achievements, the experiences you have gained and the risks you have taken and overcome. I hope that what you have gained in our programme will inspire you for the future.
Students are required to produce an overall space planning, creating design concept and design scheme, applying spatial quality elements, and technical drawings as well as to understand the influence of site and building context.
Students to apply sustainable materials/ finishes to the retail design according to their chosen design concept.
101
Design proposal has to be supported with precedent studies, design/project research, space requirements necessities, standard human anthropometrics and ergonomics, and process of ideas development.
Students are required to design a sustainable retail store design, with all required spaces.
PROJECT BRIEF
Focus is given to the technical aspects of retail design such as, staffs and customers’ needs and activities, space requirements and operational system/ facilities/ equipment and choice of sustainable materials/ finishes applied to the retail design.
SLATE @ THE ROW 52, Jalan Doraisamy, Chow Kit, 50300 Kuala Lumpur, Wilayah Persekutuan Kuala Lumpurs s i t e a n a l y s i s Slate @ The Row was design by Adela Askandar and Lim Kok Chin who are MARC Architects. The area was 3300 sq. feet and it established on January 2016 It located at the centre of city that surrounded by greeneries. There had great flow of people walk around the site People can go through the site by public transportation such as monorail that have 200m distance from Medan Tuanku Station; LRT that have 100m from Dang Wangi Station after exit gate A; train and bus. Beside that, there have parking amenities around the site, such as The Row Parking, there are available 150 200 parking spaces with RM6 per hour, and Quill City Mall Parking, there are available 1500 parking spaces with RM3/2 per hour. 102

103
Around the site have Klang River. For the sensory, we observe that the noise from vehicles and food shall, and the vehicles have released gas.

The 'SWOT' (Strengths, Weaknesses, Opportunities, and Threats) can be observed at the site. The strength of the site is that the surrounding trees create a natural atmosphere On the other hand, The exposure to natural light is limited due to the obstruction of high buildings is one of the weakness. For the opportunities, it can be a gathering place for people to relax And the threats of the site is voice pollution due to the vehicles.


The utilities around the site are MBSM Bank, Exim Bank, Islam Bank, and BP Healthcare. the socio economics over there are boutiques, cafes, plant shops, salons and bike retail

About my client Coqoon, that main selling face mask. Besides that, Coqoon's products have a minimalist design but they are highquality and sustainable products, so I would like to design with Muji Style to create a simple and comfortable retail store.

104
COQOON
CHAN YOKE WAN yokewanviveca@gmail.com


105






GO BULK
HOR CHAN YEW chanyewhor19@gmail.com


106
This is a zero-waste grocery store. Zero waste is a practice common in our daily lives. This practice essentially prioritizes waste prevention and at the same time, the reuse of products. According to this system, the material will be reused until the optimum level of consumption. This store is also known as a minimal package grocery store by encouraging customers to only buy what they need, using their own containers

107






Clothing retail designed with sustainable material is more common than anything, but using one of my favourite materials Green Marble as the primary material for this retail to light up the full retail with luxuries and a tropical atmosphere Materials for walls, floors, and facades are reusable and eco friendly. Focused on the speedbump, the speedbump is designed with multiple wood planks to increase the mystery of each product placed inside and at the same time increase the curiosity of customers.

LTTL TEH YU HANG tonyteh111@gmail.com

108

109






110
My design concept is geometry. Geometry is the science of forms, and interior design is the aesthetic synchronisation of patterns and shapes. Geometry is important in interior decorating because it makes the ornamental scheme more relevant, functional, and ergonomic. Besides that, this is a furniture retail store fully built with sustainable materials such as cardboard, steel, timber, terrazzo and more

MANDUKA
CHENG KE ROU chengkerou1019@gmail.com


111






BIG BRAIN
112
LEE SHU ZHEN shuzhen020319@gmail.com


This proposed sustainable retail design is divided into 14 categories The most important thing about this retail is the speed bump and window display. Due to the size of the products sold being large, the selected window display is a hanging display that does not occupy any space. Furthermore, the speed bump design is also a bedroom display area. It is at the center of the retail. Stepping in from the entrance, it will be the one that attracts the attention of customers.

113






114

The project aims to propose a sustainable retail design for LILIN + CO at Slate @ The Row, Jalan Doraisamy, Kuala Lumpur. This project's requirements mainly focus on technical aspects of retail design such as staff and customers' needs and activities, space requirements, equipment and choice of sustainable finishes applied to the retail. The Japandi used in this retail design concept combines the modern rustic aesthetic of Scandi interiors with the ergonomy harmony of Japanese culture.

LILIN + CO
YAP XIN YI eunxy2003@gmail.com

115






AKEMI UCHI
The project is located in Slate @ The Row, Kuala Lumpur. It was based on the redesign of the space for client Akemi Uchi to create a new storefront and interior environment The focus is on display and customer experience, so a retro style was used to present it, with the main colours referencing the product logo and the materials used being green, such as wood and plaster, in line with the shop's core concept of 'sustainability'. The Speed bump in the centre of the shop is made from the same fabric as the shop's merchandise, namely 'organic cotton.

LOH XIN YU lohxinyu449@gmail.com

116

117






The intention of the project is to design a sustainable retail store design for Bendang Artisan. It's a requirement to focus on technical aspects of retail design such as staff and customers’ needs and activities, space requirements and choice of sustainable materials applied to the retail design. The Jungalow style was used in this project; the design movement was characterized by simplicity and functionality with a neutral colour scheme to create a sense of warmth and comfort.

BENDANG ARTISAN
118
LIONG HUEY WEN hueywen2002@gmail.com


119






ROOT REMEDIES
The proposed site is located at Slate @ The Row of Jln Doraisamy, Chow Kit, Kuala Lumpur which is one of the main landmarks in the city This project targets to design a sustainable retail cosmetics product store for ROOT REMEDIES. Sustainable materials such as aluminium are the main material for the speed bump and green concrete with an epoxy finish for the flooring

120
CHOW CHENG HONG chowch888@gmail.com


121






KANTAN
CHIA JUN YI chiajunyi4321@gmail.com


This is a furniture retail store fully built with sustainable materials such as bamboo floors, sustainable tiles, brick walls, and sustainable ceilings. The entire retail store is following the concept ZEN design. Using different wood and board interspersed and stick to prevent the Zen concept. The product in the retail store are also sustainable products, all the products are made of wood, bamboo and especially rattan
122

123






This is a food retail store located at Slate @ The Row It is designed with sustainable materials such as timber, stone and brick. The concept of this store is following the 'Nordic' style. This design concept is minimalism and it used natural materials such as timber is the main material. There is also a speed bump design area which made of cardboard to hold sustainability in this store.
124

THE HIVE CHANG YU XUAN changyuxuan030609@gmail.com



125






My design concept is Origami is an art of paper folding derived from two Japanese words 'ORI' means fold and 'KAMI' means paper. Origami paper folded designs can therefore be well incorporated to invoke divine beauty, uniqueness, and comfort. Furthermore, the reason that I choose this concept is that origami can be folded and designed and is considered a craft. However, soap can also be made by yourself and is also considered a craft. Besides, my design intention is I would like to design a premium and grey tone atmosphere.
TAN ZHI NEED zhineed09@gmailcom


LAVE REPUBLIC
126

127






UNPLUG
DANIAL ISKANDAR MOHD FAISAL phantomisguud@gmail.com


UNPLUG is a store that sells not only its own products, rather, but also sell many other products from different brands as a means of promoting these brands. These brands and UNPLUG focus on using sustainable materials in the making of their products and to show people the importance of sustainability in our modern day society and that these materials are not only eco-friendly but are also able to be produced in mass quantities and in a short time
128

129






NUDE
130
My concept is an organic design concept. It is a concept of designing with shapes, such as designing wallpapers, stairs, etc. into various shapes of rotation or cocoon.

KEVIE KIING KIU MANC keviekiing@gmail.com


131






ARCHITECTURE DESIGN STUDIO 1 132
133
Its gives me great pleasure to be part of this year ’ s edition of the architecture "Behance exhibition and yearbook". This year ’ s book is full of a wide range of very inspiring and creative projects developed by our talented students from final year Diploma architecture and interior architecture. We strive to offer our students the best experience possible to ensure they are ready for the workplace and capable of providing solutions to design challenges.I take this opportunity to wish all graduates a very successful and bright future. We hope you will remain in touch with us as you forge ahead in your careers.
Muhammad Munzir Bin Mahazir
Architecture Studio 1 Lecturer

project brief
After exploring the understanding of the client requirement and the architectural spaces requirement, Students are required to design the basic needs of the client in order to open up his own identity workshop.
134
Students are to study the requirement of the design and the space requirement of the client to be a part of the design concept. Thus, the project should not be more than 16msq and included all the space requirements for the client.
Therefore, it can show an understanding of space planning as well as an accumulation of knowledge on structure and construction, design principles, human comfort, and functionality.
Students are required to design an infill project for the client which is the local artist, with intention of proposing his workspace. The strategies chosen should complement the client's identity to optimize the spaces.
Paul nickson aita artist
c l i e n t b r e i f
135
Paul Nickson Atia (b 1992) is a young artist from Malaysia His main interest lies in converging theories and conceptual frameworks of arts, architecture, history, anthropology, culture, and most importantly, the geopolitics and identities in contemporary art practice and narratives. His solo exhibition FORM(S) OF PRAYER(S) in 2019, explored the concept of prayers through the use of repetitive elements in his works. The series is manifested as questions and tributes over paying respect to concepts of prayers the reaffirmation of faith or formation of the new faith.

Paul holds a degree in architecture practicing and teaching locally for several years before turning his artistic pursuit toward drawings, paintings, and art installations. Therefore his drawings, paintings are most fully based on his strong architectural background.



136

“The Labyrinth Workshop" is a multifunctional artist workshop for the client, Paul Nickson Aita. While staying at the Labyrinth Workshop, he can move the movable wall to identify the space to form a private or public space. He also will have a connection between nature & working spaces with the natural light which exposes the interior, it can be the inspiration space for him too. The connection with nature will create a comfortable environment for him in this Labyrinth House.
137
THE LABYRINTH WORKSHOP
CHA HE RONG chaherong@gmail.com



138




139

A combination of modernity and tradition. The design showcases the Bidayuh longhouse, a traditional structure in his hometown of Kuching, Sarawak, and shipping containers to represent the history of the race metaphorically.


THE ARTBOX CHONG CAI YUN ccyun031005@gmail.com

140





TEOH TING JIA tingjiateoh@gmail.com



Boxy Auxy goes around from the interior and the exterior of this project. Boxy, edgy and cubical is a dime a dozen. My vision towards this project, which is as right as rain to our lovely client, from functional to the look, includes the habits which go around with the requirement of spaces. The project is inspired by the artwork of the client, we can immediately notice cubic form and a few designs principle such as rhythm, repetition and more which are applied to the project. Meanwhile, we took the measurement and habits to form the interior.

auxy boxy
141
142






143
CHAN JIONG WEN jiongwenchan@gmail.com


TRITICULAR MAZE
The triticular maze model was actually designed for my client Mr Nickson Paul Atia, who was a young Malaysian artist. This model was designed according to my client's characteristics which he likes to smoke, he was very movable, loves to have coffee every day and the main space is the workshop for my client. My model was a combination of a few spaces which are a workshop, store room, staircase, toilet and structure.

144




Artwork of the big picture idea for the project. It shows the overall design intent and provides direction for everyone on the project team from the model and the early schematic design phase all the wall through construction.

IVAN AUGUSTO MACHAVANA van.amachavana@gmail.com


IThe GREEN ARCH
145
146




LEE EN EN enenlee48@gmailcom


THE Tri-house
147
The Tri House functions as a parasite architecture for human beings to rest and do daily activities inside. The spaces of the shed can be divided into private areas and public areas. Probably the ground floor is used for doing daily activities and the second floor is used to be a working space.

148




the ART ingredients shop
The art ingredients shop was designed for my client Mr Nickson Paul Aita. It was designed with parasite architecture to provide for the user ' s needs. Moreover, I've used parasite architecture as usable spaces and unusable, the first floor plan has all the usable spaces such as the smoking area, and preparation coffee area and I decided to parasite a portion of the working area to enlarge the space Whereas, the facade of each parasite extension on the first floor is slanted and lands on the ground floor to give a sensation of a bigger space.


149
MAHMOUUD TALAL ALSHARIF mahmoudalsharif2001@gmail.com


150






151
PANG GEFEI panggefei@gmail.com


The name of this building is Glascony It's the combination of glass and balcony, I implemented modern architecture where the use of glass is widely used and added balconies to let the client have more space that is connected to nature I avoid adding walls within the structure because it would visually block the view of the space and makes it look smaller.
Glascony

152





PAUL-RASITE
153
HARRIS ISKANDAR hiosantan1403@gmail.com


This is my model called the “Paul Rasite”. It is a model that was built under the concept of “parasite architecture”. It is a personal art workshop for our client who is an artist. This model serves the functional aspect in every space and it also serves the aesthetic design pleasure.

154






155

THE Plate SOO ZI YI sooziyi03@gmailcom

The implementation of cathedral elements in a modern manner is utilized. This concept embodies the double volume vertical plates at the entrance courtyard. Besides the rhythm of simple arched geometry openings, dichroic glass is employed as a contemporary approach to stained glass.

156






157
A parasite concept artist workshop has been designed for my clientNickson Paul The design of the building also fulfils my client’s requirements. For example, a balcony that can allow him to smoke, a suspended scaffolding concept then allows him to draw his drawing & multifunctional furniture are provided in the editing area
THE Hexagon house

Tee Jiun Hau Jeffbskl0612@gmail.com


158






159

ARTIS STUDIO

A personal art workshop designed for the client-Nickson Paul with various functions that will help the client with his works It was built to let the client feel fun and relaxed while focusing on his job. The project starts with a given structure and a targeted clientNickson Paul After the studies, the concept "FRAME OF ARTS" has come to my mind to design a flexible, relaxing and multifunction space. This has become an aim to create spaces that provide flexibility for the client by using multifunctional furniture.

HO KOK TAO jasonhokoktao@gmailcom

160




161
FRAMELY WORKSHOP


Using the elements of the artist to design a personal workshop for my client, Paul Nickson. Since my client loves to do his artwork everywhere, the frame was designed for my client to have a special space to do his artwork and also can be a space for rest. The interior space is also designed to connect both floors, so that client can see what happens when he having his coffee on the first floor Last, the moveable staircase is important for clients to solve the problem when having high artwork.
LIOW YEE CHENG liowyeecheng2@gmail.com


162







Within the Greens
163
EVELYN CHEA MING YEN dreamingivulin@gmailcom


"Within the Greens" is designed according to the client's passion for nature and grids, combining the two interests to become a workspace where the client can create art within a cubic abandoned building surrounded by messy green plants with some rhythmic geometrical parasites just so the space could blend into the surrounding nature as well as his obsession for rhythmic repetitions.

164









Painting is a self healing activity It can allow our mind to relax and feel chill and heal. Therefore, the space requirement is high ceiling. The church is an example that reaches the space requirement, the space with high ceiling and natural light gives a kind of relaxation

165
Paul Workshop LIM JUN HAO limjunhao1703@gmailcom


166





LIM CHEW YAO chewyao18@gmail.com


Boundless, the overall use of industrial style design, the use of split level space to create a characteristic space. The space is divided into working studios, an art gallery, and coffee areas, reflecting the principles of publicity, diversity, and openness in the design.

BOUNDLESS
167
168




INTERIOR ARCHITECTURE DESIGN STUDIO 1 169
Congratulations to all our future designers on your well-deserved success! I'm so happy to be part of your design journey. Best wishes for your next future endeavours. Wassalam and lots of LoVe!
Interior Architecture Studio 1 Leturer
Nur Rafida Binti Hamzah
170

The history of interiors is best told in terms of the interior design styles which have dominated. There are many different types of interior design styles which are diverse and fascinating. Interior architects are typically part of the building or remodeling process from beginning to end. They begin a job by meeting with the client to discuss the expectations for the project. At these initial meetings, it is the interior architect's job to listen to the wants and needs of the client and make building suggestions. They also need to get a feel for the space
PROJECT BRIEF
A studio living space needs to be well organized to make living in one comfortable. Furniture that serves multiple purposes helps use the room efficiently. A dining table that folds to a small space also works well in a studio. Cleaning a studio apartment is fast, if the apartment is not too cluttered. About Iconic Interior Architecture According to study.com, an Interior architects specialize in designing and building interiors for safety, functionality and aesthetics. It is important that interior architects not only understand the durability and strength of building materials, but also be skilled in the use of light, color and textures in a space.
171
EKOCHERAS DUPLEX SERVICE APARTMENT EkoCheras Duplex Service Apartment Jalan Cheras, Taman Mutiara Barat, Cheras 9 Miles, 56000, Kuala Lumpur s i t e a n a l y s i s ABOUT THE SITE EkoCheras is an exciting mixed development situated on 12 acres of prime freehold land along Jalan Cheras, 9 km away from Kuala Lumpur City Centre. This is a mixed development encompasses of Office Suites, Three Service Apartment Towers, Hotel Suites and Shopping Mall, pictured as below. It has a direct link bridge to the Taman Mutiara MRT Station, thus making it very accessible to residences, staff and visitors to the mall and hotel. Main Building of EcoCheras Duplex Service Apartments 172

The Duplex in EkoCheras comes with a mezzanine open space and it’s It is single and couple living concept. One would surely enjoy the floor-to-ceiling glass/window that come with full natural sunlight for this open plan living space. Taman Mutiara MRT Station Facility ; Gymnasium Facility ; Swimming Pool Facility ; Playground Facility ; Eko Cheras Mall Facilities & Special Features •Infinity Sky Pool & Sky Garden •25m Sky Lounge (Sky Bridge connects the two towers) •Floating Gym with Yoda Deck •Heated Jacuzzi / Garden Jacuzzi •Sauna & Steam Room •Multipurpose Halls •Children Playground & Pool •Reading Room 173




VAVA LIVING
TAN JOE YI vvtan1023@gmail.com

174

A studio filled in with American design which is clean, comfortable and simple, it is my client Emily Henderson's favourite design style, it's also a studio for books lovers and over-accessorized. The multifunctional wall indicated the gallery area and an area to wear shoes. The wall will be until the ceiling so there will have a leader to climb up and get those books. The working area is linked with the multifunctional wall.

175








176

A studio living space needs to be well organized according to the client, Michael S Smith. His architectural style is European classic and American modern styles which are mainly wood furniture and marble texture Moreover, the multi functional wall was also designed according to the client where it was placed in the living room which used a replica fireplace to show his style.
CHOONG KAH YEW johnkai233@gmailcom

CLASSIC PASSIONATE

177






178

BRYAN KUOT JIA YAO bryankuot@gmailcom

son espace
A personal studio working space dedicated to the designer, Dorothy Draper. The style of the space is mainly modern baroque although it can't be seen much from the model. It features both modern and vintage due to the combination of vintage kindle furniture and a multifunctional wall installed in the kitchen area acting as a double sided wall which connects to the gallery area and kitchen area.


179





A compact studio living space designed for the client, Kelly Wearstler according to her style The style of this design is a juxtaposition which is referred to the mix and matches between two different eras of styles in one space. The vintage and modern combination in this studio design is what brings out the message of the juxtaposition style. Besides, a multi functional wall is also custom-made and installed in the living area. It is a wall with multiple functions like a TV cabinet, a storage volume, a gallery display, hand railing.

EVOLUT CHOO POH SIN pohsin0512@gmail.com

180

181






Pottery spot
A studio living space needs to be well organized according to the client, Jonathan Adler. His architecture style is mid century where it is main to simple, practical teak wood furniture with curved shapes dominated the mid 20th century's furniture market Moreover, the multi functional wall was also designed according to the client where it was placed in the living room which has a few functions like a TV cabinet, display cabinet and bookshelf.
182
CHAN KAI WEI kaiweichan316@gmailcom



183






(๑⚈ᴗ⚈๑) 184
Design is not simply the designer's invention; it encompasses the mood, inspiration, craziness, and sentiments of others, such as my client, Jean Nouvel, whose designs are unique, comfy, and monotonous; they belong to contrast. I created a versatile wall with curves and squares for my client based on his furniture design for a studio living area. Multiple squares may be utilized as a cupboard, and this wall was designed using several of his favourite colours.

TANG YU XUAN yuxuantang031014@gmailcom

SORSBY PSIRC

185






A studio designed for Justina Blakeney to fit her aesthetic of the bohemian Jungalow style interior. With a plant based colour pallet as well as a multifunctional wall that gives privacy to both the kitchen and the bedroom on the mezzanine floor. The design mainly focuses on the aesthetic that matches the client, Justina Blakeney.

AISHATH IBA NAUSHAD aishath.iba418@gmail.com


Minimal green
186
187






современный is the meaning of contemporary in Russian. As John Saladino, my client is one of the world’s most distinguished and respected architectural and interior designers. According to his design style, contemporary, I designed space in EkoCheras Duplex Service Apartment. In the space, I also designed a huge multifunctional wall as the drawer, gallery area, light source and other functions. SI QI

siqiau@gmail.com 188

современный AU

189






MUHAMMAD AFIQ DANIEL danieltarmizi13@gmailcom


A space for Thomas O'Brien I designed the space in the EkoCheras Duplex Service Apartment based on the style from one of his works, in the mid-century. In his own home, he has spaces that contrast from each other, in terms of palette or even style In the space, I designed a multifunctional wall that connects from the ground floor to the mezzanine floor, which has used for storage and shared between the bedroom, dining area and living area.

190
COZYWAYS
191








INTRODUCTION TO DESIGN PRINCIPLE 192
Introduction to Design Principles Lecturer

Amar Muhammad Bin Ramli
Bismillahhirahmannirahim. Peace be upon all of you. Alhamdulillah to Allah SWT, the God who had created this lovely world for us to have a good life, with a good families and friends. God who brings us together in this architecture and design world, God who makes our ideas happened and become a reality. Congratulations to all Architecture and Interior Architecture students that has succeed in your studies, especially for those who will finish Diploma and graduates, congratulation to all of you. For those who involved in making this great 'Behance Exhibition' happen, congrats! Enjoy your exhibition and keep the positive vibes! Peace!
193
PROJECT BRIEF
194
Body gear is not just an accessory that attached to our body but it gives impact physically and emotionally to the user and people. It is also representing the image of the user and its character. This semester student needs to design body gear from the study of Kuala Lumpur elements and transform it into their body gear.
Tree Top Rings. The name symbolizes a concept of civilization or colony. The base of the model symbolizes the main structure or the tree bark in this situation. The triangular forms symbolize the homes that surround the tree. The hierarchy symbolizes the power source.


195

MUHAMMAD FIRZAN FIRAS Firzanfiras@gmailcom
TREE TOP RINGS

196






LIM QI ER 1002265955@ucsiuniversity.edu.my.com



Emperor is important in a country and represents power and prestige. Thus, this design has a lot of rectangular and square shapes, to give a feeling of reliability and stability Besides, this design looks like the emperor ' s hat in ancient times.
emperor hat
197
198






Ferrismill
If we look down from the top, we will see what looks like a Ferris wheel. However, looking from the side we will see what a windmill looks like. Therefore, my model is named FerrisMill.

SOH JIA HUNG 0011jiahung@gmailcom

199

200






We can see that this model it's a very unique name (BRGKMonsta) It's named after its name and its character. B stands for BLACK, R stands for RED, G stands for GOLD and K stands for KILLER. And last but not least, MONSTA how's the character of it. It's aggressive and fierce but at the same time, it's not very violent looking.
BOH HIN BING STANLEY Stanleyboh78@gmail.com


BRGK. MONSTA
201

202






0 cubed
203
CHAI WAN JUN wanjun10141014@gmail.com


In order to make O cubed accessible for opening and closing, three cubes and three metal circular joints were combined with wood on the back It could be hand gear like a stylish manacle or a headpiece like a crown.

204






OOI SHIN RU shinruooi@gmail.com


205
MULTI BLOCKY
What we can see on this model is that the shape of my model is spinning, and we can see that my model is composed of multiple pieces of wood, so my model is called Multi Blocky.

206






The Strawberry Crown, a mode I made that is inspired by a real life event in my life. One day a red moon was said to be able to be seen on that day, so I and my friends went to go see it and just as we thought we were not gonna see it, we saw it. However, we were dumbfounded when we realized it was a power line with a red ball in the middle. So the design was inspired by the cables, poles and the red ball.
strawberry crown
207

ONG ZE FUI mason.ong134@gmail.com

208






benjaminleong1102@gmail.com 209


LEONG CHUN KIT
THE CYCLONE
The main idea that inspired me to design this model was from a well-known anime that everyone will know, “Naruto”. From my canvas drawing, it looks similar to a SHURIKEN Hence, when I continue to develop, I tried to transform it into a non static boomerang, making it looks like it is spinning in motion. Finally, I successfully transform it into my final model which is currently how it looks like. I give it the name CYCLONE because it also looks like a large wind system which is rotating and circulates around the center in a clockwise direction, similar to a hurricane

210






211

First of all, I will name this model SPACE SHUTTLE 194 because there are a lot of parts like the space shuttle wings (airfoil) around this helmet, and 194 is the last three numbers of my student ID, so I named it SPACE SHUTTLE 194. I start with things related to spaceflight to name this model because I think that the universe is a vast and mysterious thing. The helmet that I designed is like symbolized an astronaut who bravely develops the universe.
TAN YI MENG alvistanym@gmail.com

space shuttle 194

212






THE FUTURE
This model is known as The Future Considering the upcoming years, more places will face natural disasters like floods due to rising sea levels. Thus, this structure can help to solve the problem. The form will be floating in the water. Each block indicates different designs and concepts which provide multiple attractive and comfortable rooms for people to inhabit.

213
AMELIA WONG KAE ZUEN wongamelia2106@gmail.com


214






YEN KAI WEN 1002266379@ucsiuniversity.edu.my


The model resembles the symmetry of a cut jewel, along with the colours and shape. This is shown by the painted plywood of blue and red to demonstrate contrast along with the diamond symmetric cut.


the jewel
215
216






002/7 LIM YIK MOON 1002265676@ucsiuniversity.edu.my


The idea of naming this model is inspired by the character Zero Two (Darling In The Franxx) and Anya Froger's headgear (Spy X Family). This model had been several times bigger which made out of wooden beams.
217

218






NOR FAREESYA FIRAS Fareesyafiras@gmailcom

Ventilateur meaning fan or ventilation in English can be used to control the temperature in a space. Ventilation helps bring thermal comfort and help enhances the physical health of people in that environment. Ventilation's main purpose is to dilute and replace the atmosphere and improve air quality. It could be seen as the lungs of the buildings.

219
VENTILATEUR

220






ACCORDION
In order to create my model, which has an accordion like shape, I used paper and wood. To create a functional model that can shut and open, I folded the paper in accordion-like patterns and attached it to the wood using a nail gun and masking tape.

NURDANIA QISTINA Daniasaiful20@gmail.com

221

222






LOONG PIN JIE jayloong28@gmail.com


Mask in Summer

Summer is hot and we know it, still, people always barn under the sun at the beach, or in the swimming pool. I named it "Mask in Summer due to it provides a solid insulator to prevent pick people to spread the virus to the others with an unusual design. People who wear this mask will definitely get focused by the crowd and become the most handsome boy or the most beautiful girl.
223

224






The Phantom
225



HTIN LYNN htinlynn268199@gmail.com
For phantom in terms of object, which means continual death and gives a sense of blur. We can find the vibe of blurry from the colour of the model and also indicate the phantom by repetition of triangle sets

226



227

228






229




230





231

We are surfing with ' wave ' Sometimes you get good condition, and sometimes bad. When you face a barrier, you are in a valley of a wave. Just keep doing it and wait a moment. After some challenges, we will be able to surf nicely AKIHIRO TOMITA Sometimes good effort does not bring positive outcome but put rotten 'bai lan' will be very very very comfortable!!! #Small'BAI'pleasant #Large'BAI'happy CHANG KEAT WEI Silence is golden. Duct tape is silver I wish more people were fluent in silence. LUCAS CHING JIN KAI Success is a slow process but quitting won't speed it up. May we all have the strength to fight till the top. HEE CHOON YEW The times I was told no or wasn’t included, wasn’t chosen, didn’t win, didn’t make the cut…looking back it really feels like those moments were as important, if not more crucial, than the moments I was told ‘ yes ’ . HENG XIN YI It has been a rough but meaningful journey, I'm very grateful for my friends and lecturers' supports and guidances to lead me to graduation Happy graduation, everyone! CRYSTAL KANG WEI KEE Life is amazing, we are born here not to suffer ourself but to enjoy the wonder on this planet KAW XIN YEE There will be a day when flowers will bloom again, and when people will meet again, looking forward to the next reunion. LEE JING KAI Take pride in how far you ’ ve come. Have faith in how far you can go But don’t forget to enjoy the journey and why have you came when you leave MANDY LIM JIA JIA We never forget what we learn with pleasure. NG CHONG JIE LOL ALISA ARFINA It's time to celebrate all the hard work that led to this joyful occasion :) NUR QAISARA 232
TAN
SIAH
MING FONG Hardworking can beat talented Dont be sad if you are facing difficult situation, try faced it and do your best.
HUEY WEN It's been a long journey, and I'm still on the way, accumulating new knowledge Very grateful for being with you all on this journey TAN JIA QIAN The moment when you realize as difficult as architecture school is, it is also the best times of your life! It's my pleasure to have all of you as my friends #the night is still young TAN LI JUN Dashing is not rotten but the state of my self-confidence, disco let we dance not going to work tomorrow, may be bad grades, but very comfortable!!! #Just Chill First #Always work at the last minute only can maximize your potential
TAN
JOHNNY
YONG YE //the more hair u found on the floor, the lesser smile u find on my face// WEE JIA BAO Graduate is not the end, it’s the beginning. YAP XIN YAN 233
It’s been a memorable times throughout this journey There’s joy, fun, hardwork, stress, depress especially friendship, these we shall never forget… May we meet again.
PANG Dream big and dare to fail RAGAVEE Life is like a puzzle, missing a piece will never be perfect #youknowyouknow SEE EE ZHE Graduation has finally come! It’s not only a milestone for me, it’s also a milestone for the family and friends who have supported me I'm so proud of myself and my classmates achievements It was a rough ride with alots of obstacles in the midst but we gladly made it through SHAHID TAYYABA In the past three years, I have also made many good friends, and I will remember the time we do our homework together at Riana South.
234

It's my pleasure to be selected as the president for the final year exhibition 2022-05. Thank you to everyone who trusted me to take this position. This is the first time our team organising an event. Despite all the hardships we faced throughout the journey, I am glad to see every individual show their dedication to helping the team. Thank you for your time and effort in these four months. It is an excellent insight on discovering your inner strength and also a good opportunity to experience the quote "A friend in need is a friend indeed"
I am very happy to be able to co-host this Be-hance exhibition with everyone I also saw everyone ' s dedication to the event and their amazing work. I am very happy to be a part of it, thank you
I am more than just grateful as I say thank you to all of you for participating in this event. It means a lot to me to have such friendly members that can work together hand in hand. Thank you for your hard work this semester. Your dedication helped us reach our goals. I deeply appreciate every member of this team for showing relentless effort in this exhibition. Thanks! BAO President
TAN HUEY WEN
Vice President
235
WEE JIA
TAN LI JUN Vice President



Very honored to be chosen as secretary and have chance to serve you all. Thank you all for being cooperative and being patience with me. I learnt a lot and know more new people during this whole journey I hope my little contribution can make this exhibition more successful and become a beautiful memory for everyone.
I was happy to be a part of this event. I am glad to have the understanding of the leader in the preparation process to make the whole process go more smoothly. Finally, I hope that the exhibition will be completed successfully and bring you a different and special memory.
236
tio bi jun Vice Secretary KANG WEI KEE Secreatry


heng xin yi Design Team Assistant
Being in the position to learn from our fantastic leader makes me feel extremely appreciative It has its ups and downs, and there have been issues that we have had to solve with the help of our committee and leaders. I want to thank everyone who has involved in this event no matter is in the design team or others, cause we created a memorable event together.
ng chong jie Design Team Leader


lim zi yao Design Team Assistant

First of all, I would like to give a big shout-out to our president and my leader for 'bao sua bao hai', really grateful for their dedication throughout the preparation for this exhibition Watching them burning midnight oil just to make sure this whole thing could be run smoothly. As a design team assistant, I've gained a lot from seeing how design team work
237
I am proud to be the design team. This is my first effort at becoming a leader. First and foremost, I want to thank my team members for their collaboration and cooperation. Despite their hectic schedules, they make every effort to perform all of the chores allotted to them. As a leader, I also gained a lot from this experience
It’s a great honour to have our final exhibition ended flawlessly with all the hard works being paid by every students throughout the semester Every moment that have been pictured during this exhibition would be hearts and flowers to everyone.
mandy liim jia jia Event Team Assistant
siah ming fong Event Team Leader

238
Thank! for choosing me as the event leader, although this is my first experience with many mistakes, I have learned a lot and know how to run a team. In the beginning we planned our event to realize our event, thanks to my team for giving me a lot of ideas, although not perfect, I think we did our best.
I've really enjoyed the opportunity to get to work closely with everyone in the past few months Thank you for pushing me professionally and for making it such a pleasure to be at work. I honestly couldn't ask for a better colleague.
Chang Keat wei Event Team Assistant


xin yee Publication Team Asistant
Asistant 239
evelyn chea ming yen
It is always a satisfying thing to do when developments of small proposals turn into an actual thing in the end. It is a great experience working together with other batches for the same thing and I was grateful to be part of the team creating this yearbook. Glad that these few months of hard work from every publication member had paid off. Publication Team
kaw
Thanks to my leader for giving me this golden opportunity to work together and also thanks to everyone who paid hard work in the team.
I am very honored to be the leader of the publication. This is my first experience as a leader First of all, I need to thank the team members for their cooperation and cooperation to complete the assigned tasks. I also learned a lot of knowledge that I did not have before
YAP XIN YAN Publicarion Team Leader


It's my very first time taking part in the publication team.

I am glad to be part of the team throughout all these memorable and meaningful events. I felt grateful to receive guidance and advice from everyone. I am pleased that I was able to freeze the wonderful smiles and moments from everyone through photography.
240
lucas ching jin kai Multimedia Team Leader



chow cheng hong Multimedia Team Assitant
It was my pleasure that could let me work in the event. I'm glad that i you guys through this event, so that i could meet you guys and learn through from it. This event was a special meaning for me and i hope that the event could be better and better for the future Thank you guys for letting me join through this event. chan jiong wen Multimedia Team Assitant
“Too much of anything is the beginning of a mess. ” Dorothy Draper. Keep up hardworking and energetic can always bring surprise to you. Thank you all that I have met and collaborated with in this wonderful semester, you guys are perfect and outstanding.
helbert
I am very happy to be a part of the Behance committee .Nice to meet with you and work together. I have gained new things from this process too. This exhibition will be is a amazing experience and memorable for all of us, I believe.
hee choon yew Treasurer Team Assistant

241
It's a pleasure to be apart in BEHANCE event as a Treasurer leader. I'm glad that I have good team members which are cooperative and passionate, and participate well in this event. I know there were mistakes made throughout the journey, but in the nutshell, the key is knowing to learn from mistakes. Appreciate all.
I can see that we all worked together to make this exhibition a great success and created more memories.
I'm glad that we are able to organise a exhibition during our semester I have gained some extra knowledge being involved in the exhibition and its a opportunity that's not always there.
pang yu zhi Treasurer Team Leader

taN jia qian Treasurer Team Assistant

242
Is my honor to be part of this truthfully amazing committee. Throughout the semester, we had gone through a lot of hard time together, but enjoyed the final result. Mainly, I want to thank my both assistants for helping me a lot of times when I messed up. Thanks to everyone who took their time and helped out in the exhibition
see ee zhe Logistic Team Leader


fam yin haNg Logistic Team Assitaant
I am really grateful to be on the position learning things from our fabulous leader. I would say that this journey here is a blast having up and downs and facing problems then solving it with our leader and vice president. They taught me lots where I didn't knew before this and would like to shout out to those staying back helping us logistics team even when this is not what they really are supposed to and make our job lot more easy.
It's a very special experience for me as this is the first time organising an event as a logistics assistant I had learnt a lot of things from our leader and he do help me a lot when I was lost don't know what to do. Lastly, thanks to everyone who stay till the end to help us out cleaning and moving things back to UCSI!
paNg qi zhen Logistic Team Assitaant

Thank you to everyone for participating in the BEHANCE EXPO exhibition for diploma in ARCH and IA students of UCSI University held on the 16th and 17th of August 2022 at Aeon Maluri and making this a sucessful event We students were able to exhibit our work and gain useful feedback from the external review, comments from their batchmates, students from other batches; seniors and juniors, comments from guest as well as the shoppers at Aeon Maluri. This was a great experience for all of us. Furthermore, we would like to say a special thanks to the lecturers and committee members who managed to set everythings up for the exhibition to commence smoothly; and finally we would like to say thank you to the readers of the BEHANCE EXPO for using some time to read and look through our yearbook. Happy reading and have a great day!

243

244




All right reserved. No part of this publication may be reproduced, stored in a retrieval system, or transmitted, in any form or by any means, electronic, mechanical, photocopying, recording or otherwise, without prior permission of the copyright owner
