David Doan | Architecture Selected Works 2025

Page 1


DAVID DOAN

David Doan is a third-year Bachelor of Architecture student at Iowa State University with a passion for designing spaces that foster community and strengthen the connection between people and the built environment. He is thoughtful of the social, cultural, and natural contexts that shape architecture, exploring how design can create meaningful and responsive spaces. With a strong foundation in design thinking and spatial storytelling, he approaches each project with curiosity, intent, and a commitment to thoughtful design solutions.

Selected Works

I. Architecture x Land: Transcendent

II. Ritual: Sequester

III. Ecology Classroom: Gossamer

About: Resume 1 14 26

I. Architecture x Land: Transcendent
Richard F. Hansen Student Prize Finalist
Partner | Natalie Gard Instructor | Brent Schipper Fall 2024

Transcendent bridges earth and sky; a journey that honors Greenwood Park’s history and Mary Miss’s lost vision. Inspired by her Double Site, our design carries forward her intention of engaging with the landscape in meaningful, immersive ways. Though her work has been planned to be removed, its spirit endures— reflected in a space that amplifies the park’s

natural beauty and invites visitors to connect more deeply with their surroundings. By designing an event center, creating an experience that grounds and elevates, Transcendent celebrates the past while inspiring a renewed appreciation for the landscape’s evolving story.

Site Plan | Des Moines, IA | Greenwood Park

Nestled within a dense forest cluster, the site offers a sense of enclosure while framing expansive views of the park. From the above, the experience transforms dramatically—opening to the vastness of the park and sky, embodying the interplay of intimacy and

immensity. This duality defines the journey from being cradled by the trees to extending outward and upward, transcending physical boundaries. Each floor reflects this progression, moving from enclosure within the landscape to openness above it.

Double Site - A Dialogue Between Ground and Sky Visual

The manifesto draws on the site’s symmetry and alignment. The semi-structured grid incorporates organic forms that mirror the solid ground and flowing sky, while the Mary Miss bridge becomes a reflection point connecting both realms. The tree marks the

intersection of axis—Mary Miss’s bridge and the rose garden. Inspired by Mary Miss’s double site approach, connecting land and pond, we envisioned our design as a vertical journey, embracing both the ground and sky.

Manifesto: Land and Sky | A reflection of enclosure to openess
Third Floor Bridge Entrance Day View
Third Floor Bridge Entrance Night View
West Elevation
North Elevation
Section A
Section B

II. Ritual: Sequester

Partners | Sebastian Salamanca , Grace Morhardt
Instructor | Emily Guo Spring 2024

II.

Sequester meaning to withdraw or isolate, is a retreat into solitude, nestled in Big Bend National Park, its form inspired by the wreckage of a crashed spacecraft. Monolithic and otherworldly, it pulls you off familiar trails, guiding you through spaces designed for quiet reflection.

Each step leads deeper into isolation, where nature and simplicity converge. The journey culminates in the escape pods, where sitting in stillness offers a moment of contemplation, grounding you and heightening your connection to both self and the environment.

Site Plan | Big Bend, Texas | Big Bend National Park

AVERAGE MOON ORIENTATION

Moon Viewing Pod Closed Plan
Moon Viewing Pod Open Plan

Below Ground Plan

Ground Plan

Moon Viewing Pod West Elevation

Moon Viewing Pod Section A

Section
Section AA
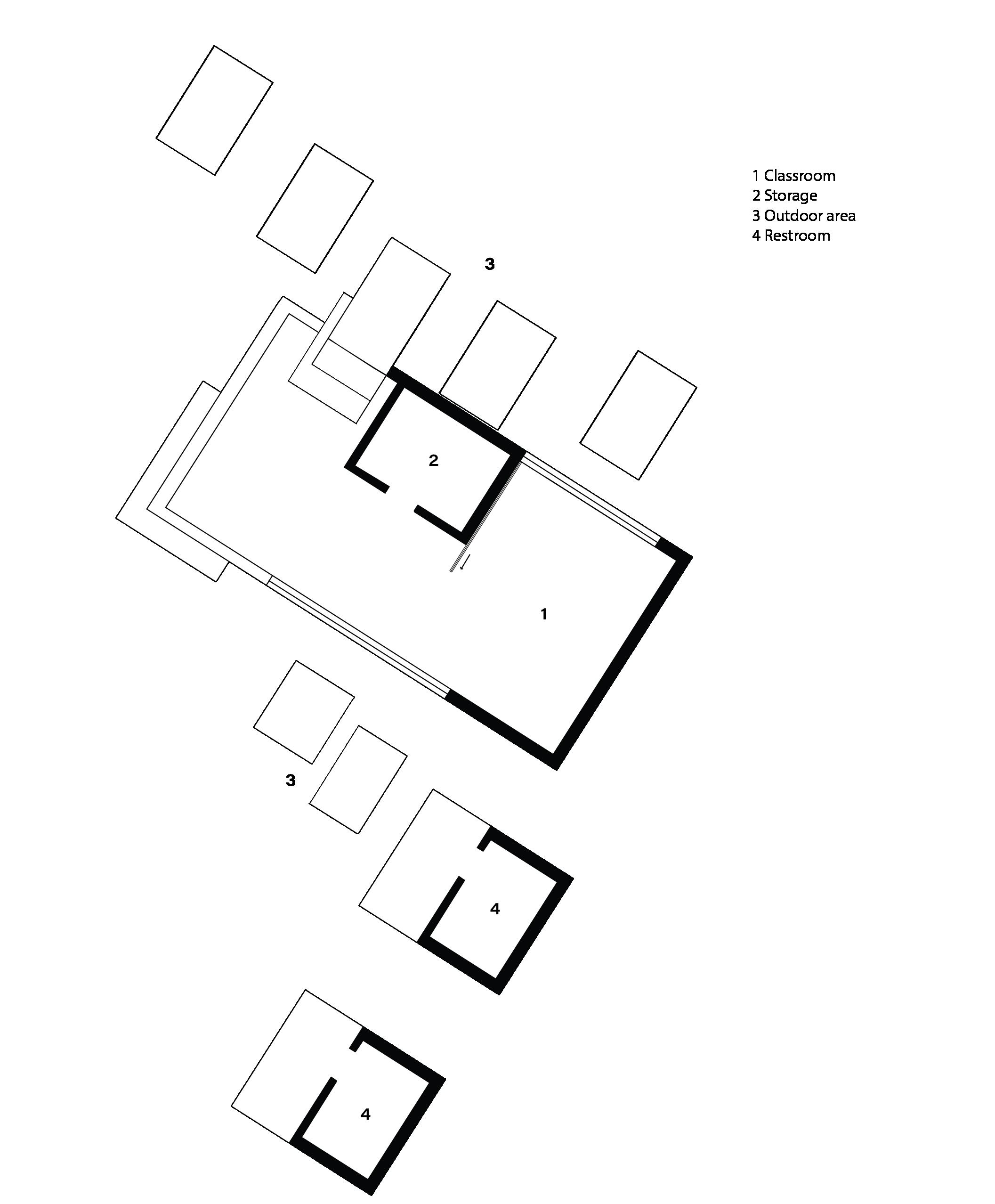
III. Ecology Classroom: Gossamer
Instructor | Brent Schipper + Cole Davis
2024

Gossamer, defined as something that is light and airy, is a space where nature’s rhythm and the fleeting beauty of springtime Siberian Squill blooms intertwine. The design immerses visitors in a landscape that shifts with the seasons, offering moments of quiet

reflection and connection. At the heart of the field, the canopy creates a light, airy experience that accentuates the beauty of the landscape. Gossamer crafting a living experience that shifts with the passage of time.

Abstract Manifesto - reflects the flow of the flowers across the site, coming together to form the shape of the canopy.
Site Plan | Ames, IA | Iowa State University
Exploded Axonometric Diagram
Circulation Diagram
Section A
Section B

David Doan

Des Moines, IA 515-512-6190

itsdaviddoan@gmail.com issuu.com/dtdoan

SKILLS

Digital: Rhinoceros 3D, AutoCAD, Sketchup, Enscape, Lumion

Adobe Illustrator, Adobe Photoshop, Adobe InDesign

Analog: Laser Cutting, Model Making, Sketching, Graphite, Charcoal

EXPERIENCE

EDUCATION

Graduation

Iowa State University Bachelor of Architecture | 3.82 GPA

Des Moines Area Community College, Des Moines, Iowa Liberal Arts and Sciences; Art

East High School, Des Moines, Iowa

Peer Mentor | Iowa State University - College of Design | Aug. 2024 - Present

• Provide guidance and support to first-year students transitioning to college life.

• Assist with coursework and academic challenges.

• Hold weekly office hours to offer personalized advice and discuss future major decisions.

• Promote and facilitate activities to build community among first-year students.

• Help students navigate resources within the College of Design for academic success.

Wardrobe Consultant / Sales Associate | Men’s Wearhouse | Oct. 2019 - Present

• Provided personalized assistance to customers based on their individual preferences and event requirements, enhancing their overall satisfaction.

• Collaborated with a team to address customer service issues and effectively solve problems, and worked closely with colleagues, fostering cooperation and teamwork to achieve shared goals and deliver exceptional service.

RECOGNITION

Richard F. Hansen Student Prize Finalist | “Transcendent” | Iowa State University | Fall 2024 College of Design Dean’s List | Iowa State University | Fall 2022 - Present College Dean’s List | Des Moines Area Community College | Fall 2021 - Spring 2022

ACTIVITES

National Organization of Minority Architecture Students

Social Media Chair | Iowa State University | 2022 - Present

• Managing our online presence by creating engaging content, accomplishments, and promoting events on platforms like Instagram to support NOMAS’s impact at ISU, advocating for diversity and inclusion in architecture.

StratAA - Architectural Archive | Iowa State University | 2024 - Present

DATUM - Architecture Student Journal | Iowa State University | 2024 - Present Vietnamese Student Association | Iowa State University | 2022 - Present

REFERENCES

Brent Schipper | Principal | ASK Studio

Professor of Practice Architecture | Iowa State University brents@iastate.edu

Emily Guo

Assistant Professor Architecture | Iowa State University emilyguo@iastate.edu

A little thank you

A heartfelt thank you to all who have supported and inspired this work. Your encouragement, insight, and belief in the process have made this journey thus far possible.

Turn static files into dynamic content formats.

Create a flipbook
Issuu converts static files into: digital portfolios, online yearbooks, online catalogs, digital photo albums and more. Sign up and create your flipbook.