


![]()



Inleiding
Onze troeven
DS Units ontwerpt, bouwt en verhuurt hoogwaardige modulaire units voor tijdelijke en permanente toepassingen.
Onze oplossingen worden dagelijks ingezet in onder meer de bouw, industrie, events, onderwijs, zorg, automotive, marketing, voeding en de particuliere sector.
Van een compacte opstelling tot een volledig modulair dorp: DS Units biedt een snelle, efficiënte en professionele oplossing voor elke ruimtelijke uitdaging.
Wat ons onderscheidt, is onze brede expertise en uitzonderlijk aanbod. DS Units behoort tot de weinige spelers op de markt die alle types modulaire units en containers in eigen beheer produceert. We gaan daarbij verder dan de standaardoplossingen. Dankzij jarenlange ervaring, diepgaande kennis van modulair bouwen en een innovatieve aanpak vinden we voor elk project de juiste configuratie.
Maatwerk, flexibiliteit en multifunctionaliteit vormen de kern van ons DNA. Omdat we werken met verschillende categorieën units én zowel verkoop als verhuur aanbieden, kunnen we inspelen op vrijwel elke behoefte. Van een eenvoudige opslagunit tot volwaardige kantoren, scholen of woningbouwprojecten, geen project is te klein of te groot. Ontwerp, ontwikkeling en opbouw gebeuren volledig in eigen huis. Zo behouden we maximale controle over kwaliteit, timing en afwerking, en kunnen we onze klanten steeds een doordachte, duurzame en betrouwbare oplossing bieden.

Bij DS Units geloven we dat jouw ervaring met onze units verder gaat dan enkel de aankoop of huur. We begeleiden je in het volledige traject: van transport en plaatsing tot onderhoud, herstellingen en aanpassingen op maat. Zo ben je verzekerd van een duurzame en zorgeloze oplossing.
De fundering voor de units is om te zorgen voor een stabiele en gelijkmatige verdeling van belasting, beperken slijtage en garanderen een correcte plaatsing op lange termijn. Zo blijft jouw unit duurzaam, waterpas en optimaal beschermd tegen verzakking.

Goed onderhoud is essentieel voor de levensduur en betrouwbaarheid van jouw unit. Onze onderhoudsservice zorgt ervoor dat installaties en voorzieningen altijd optimaal blijven functioneren.
Periodiek onderhoud van airco’s, verwarming en ventilatie
Controle en herstelling van elektriciteit en verlichting
Sanitaire onderhoudsservice (water, afvoer, aansluitingen)
Snelle interventie bij technische problemen
TRANSPORT & PLAATSING
Wij zorgen voor een veilige en efficiënte levering en plaatsing van jouw unit, volledig door ons eigen team. Met onze gespecialiseerde vrachtwagens en ervaren chauffeurs en plaatsers staat jouw unit snel en correct op zijn plek.

Modulair bouwen is een efficiënte en toekomstgerichte bouwmethode waarbij gebouwen worden opgebouwd uit vooraf ontworpen en geproduceerde units. Deze units worden in een gecontroleerde omgeving vervaardigd en vervolgens op de locatie samengebracht tot één functioneel geheel.
Bij DS Units staat modulair bouwen synoniem voor kwaliteit, flexibiliteit en snelheid. Elk project start vanuit een doordachte basis, met aandacht voor functionaliteit, duurzaamheid en afwerking. De modulaire units kunnen afzonderlijk worden ingezet of gecombineerd tot grotere structuren, zoals kantoren, scholen, zorginfrastructuur, commerciële ruimtes of tijdelijke voorzieningen.
Dankzij het modulaire principe zijn uitbreidingen, aanpassingen of herbestemmingen eenvoudig te realiseren. Dit maakt modulair bouwen bijzonder geschikt voor projecten die evolueren in de tijd of inspelen op tijdelijke noden.
Ontwerp, productie en opbouw gebeuren bij DS Units volledig in eigen beheer. Hierdoor garanderen we een constante kwaliteit, korte doorlooptijden en maximale controle over het volledige bouwproces.

SNELLERE REALISATIE
Omdat de units grotendeels vooraf worden geproduceerd, verloopt de bouwtijd op locatie aanzienlijk korter. Dit resulteert in een snellere ingebruikname van het gebouw.
KOSTENBEHEERSING FLEXIBILITEIT
Door gestandaardiseerde processen en productie in eigen beheer zijn de kosten beter voorspelbaar.
Onvoorziene werfkosten en vertragingen worden tot een minimum beperkt.
Modulaire gebouwen kunnen eenvoudig worden aangepast, uitgebreid of verplaatst. Dit biedt een belangrijke meerwaarde voor bedrijven en organisaties met veranderende behoeften.
DUURZAAMHEID
Modulair bouwen genereert minder bouwafval en laat toe materialen efficiënter te hergebruiken.
Daarnaast kunnen units worden herbestemd, wat de levensduur aanzienlijk verlengt.
MINIMALE IMPACT
Doordat de opbouw op locatie snel en gecontroleerd gebeurt, is de hinder voor de omgeving beperkt in vergelijking met klassieke bouwwerven.
CONSTANTE KWALITEIT
Productie in een gecontroleerde omgeving zorgt voor een hoge en consistente afwerkingsgraad, onafhankelijk van weersomstandigheden.

1.CONTACT
Elk project start met persoonlijk contact. We luisteren naar uw noden, bespreken de toepassing, timing en technische vereisten. Zo komen we samen tot de meest geschikte oplossing.

2.ONTWERP
Op basis van het eerste gesprek werken we een doordacht ontwerp uit. Hierbij houden we rekening met functionaliteit, flexibiliteit, regelgeving en eventuele maatwerkvereisten.

3.PRODUCTIE
De units worden volledig in eigen huis geproduceerd.
Dankzij onze eigen werkplaats van 8000m² garanderen we een efficiënte planning, consistente kwaliteit en korte doorlooptijden.

4.KWALITEIT
Voor levering wordt elke unit grondig gecontroleerd. We testen afwerking, technische installaties en veiligheid, zodat alles voldoet aan onze kwaliteitsnormen en aan de geldende regelgeving.


5.LEVERING
We zorgen voor een vlotte en professionele levering op locatie. Indien gewenst zorgen we ook voor de funderingswerken en de aansluiting van de nutsvoorzieningen, zodat de unit onmiddellijk inzetbaar is.
Ook na opleve blijven we bereik DS Units staat in opvolging, ondersteuning service, zowel verhuur als b verkochte un





Standaard units zijn geïnspireerd op het principe van zeecontainers, maar zijn dit niet. Ze worden door DS Units van A tot Z ontworpen en geproduceerd. Onze standaard units worden prefab gewijs gebouwd, wat resulteert in een korte levertermijn en zeer democratische prijzen.
De modules kunnen naar wens worden ingericht en afgewerkt. Daarnaast zijn ze koppelbaar en stapelbaar, wat toelaat om met standaard units complexe en grootschalige projecten te realiseren. Van eenvoudige toepassingen tot volledige modulaire gebouwen volledig volgens de geldende brand- en EPB-norm.
Dankzij een efficiënt productieproces bieden standaard units een uitstekende prijs-kwaliteitverhouding, zonder in te boeten op flexibiliteit of duurzaamheid.
Standaard buitenmaten
Breedte
Lengte
Hoogte
2435 / 2989 mm
2989 / 4550 / 4880 / 6055 / 7325 / 9125 mm
2590 / 2765 / 2915 mm
Typische toepassingen
Opslagruimtes
Werfunits
Kantoorgebouwen
Klas- en schoolgebouwen
Kenmerken
Eigen ontwerp en productie
Hoogwaardige staalstructuur
Modulair, koppelbaar en stapelbaar
Snelle levering
Scherpe prijszetting
De units van DS Units zijn opgebouwd volgens een doordachte staalconstructie die garant staat voor stabiliteit, duurzaamheid en flexibiliteit. Elke unit is ontworpen als een tweeassig stalen momentframe, wat zorgt voor een sterke en stijve basisstructuur.
De belasting wordt efficiënt verdeeld via secundaire draagbalken, die de krachten overbrengen naar de primaire liggers.
Dankzij deze constructiemethode kunnen onze units veilig worden verplaatst, gestapeld en gekoppeld, zonder in te boeten op stabiliteit of draagkracht. Bovendien laat de staalstructuur toe om grote overspanningen, open ruimtes en diverse indelingen te realiseren.


Het plafond van onze units vervult een dubbele functie. Naast de bovenste isolatielaag fungeert het plafond ook als primair dak, waardoor een uitstekende waterdichtheid en bescherming tegen weersinvloeden wordt gegarandeerd.
De buitenste laag bestaat uit een 0,7 mm dikke gecoate plaatstaal, schuin geplaatst voor een optimale afwatering en extra bescherming tegen regen, wind en sneeuw. De thermische isolatie van het plafond kan flexibel worden aangepast aan de vereiste U-waarden, door te werken met verschillende diktes en types isolatiemateriaal. 1. 2. 3. 4. Buitenbekleding in gecoat plaatstaal
Thermische isolatie op maat van het project
Dampscherm
Binnenafwerking naar keuze


De buitenwanden vormen de belangrijkste scheiding tussen binnen- en buitenruimte en spelen een cruciale rol op vlak van energieprestatie, akoestiek en brandveiligheid. Afhankelijk van de toepassing worden verschillende wandconstructies toegepast om te voldoen aan de geldende normen en vereisten.
De buitenzijde van de wand bestaat uit een 0,5 mm dikke gecoate plaatstaal, die bescherming biedt tegen weersinvloeden en zorgt voor een strakke, duurzame afwerking. De thermische isolatie kan, net zoals bij het plafond, aangepast worden aan de gewenste U-waarden.
2. 3. 4. Buitenbekleding in gecoat plaatstaal
Thermische isolatie op maat
Dampscherm
Binnenafwerking naar keuze


De vloer van onze units is ontworpen om belasting en slijtage probleemloos te weerstaan. Afhankelijk van de toepassing kan de vloeropbouw worden aangepast aan uiteenlopende belastingen, van lichte kantoorfuncties tot intensief industrieel gebruik. De vloer bestaat uit een draagkrachtige basisstructuur, gecombineerd met thermische isolatie en een duurzame buitenafwerking. De bovenafwerking kan afgestemd worden op het gebruik en de gewenste uitstraling.
Vloerbekleding naar keuze
Draagkrachtige vloerlaag
Dampscherm
Thermische isolatie
Buitenbekleding in 0,5 mm gegalvaniseerd plaatstaal






Premium units vertrekken vanuit de standaard unit, maar onderscheiden zich door een hogere afwerkingsgraad en een sterkere visuele uitstraling. Deze units zijn ideaal voor projecten waar comfort, uitstraling en functionaliteit samenkomen.
Mogelijke afwerkingen zijn onder andere:
Gevelbekleding
Vloerbekleding
Glazen wanden
Uitgebreide technische installaties
Premium units zijn geschikt voor zowel tijdelijke als permanente toepassingen en kunnen, net als standaard units, gekoppeld en gestapeld worden.
Standaard buitenmaten
Breedte
Lengte
Hoogte
2 435 / 2 989 mm
2 989 / 4 550 / 6 055 / 7 325 / 9 125 mm
2 590 / 2 765 / 2 915 mm
Op aanvraag zijn afwijkende afmetingen mogelijk
Typische toepassingen
Kantoren
Tuinunits
Onthaal- en verkoopruimtes
Kenmerken
Verzorgde binnen- en buitenafwerking
Elektriciteit, verlichting en verwarming mogelijk
Modulair uitbreidbaar
Geschikt voor tijdelijk en permanent gebruik
Ventilatie HVAC

Gecoat metaal (basis)

Thermowood ayous
Thermowood ayous zwart















Met onze staalbouw units gaan we nog een stap verder in flexibiliteit, afwerking en ontwerpvrijheid. Hoewel het productieproces volledig modulair en in ons eigen atelier plaatsvindt, biedt deze bouwmethode dezelfde mate van personalisatie en ontwerpvrijheid als bij traditionele bouw.
Doordat de bouw binnenshuis gebeurt onder gecontroleerde omstandigheden, kunnen we een snellere oplevering combineren met een hogere en consistentere afwerkingsgraad. Deze units zijn uitermate geschikt voor langdurig of permanent gebruik.
In tegenstelling tot standaard- en premium units zijn luxe units niet gebonden aan vaste afmetingen. Per unit hanteren we richtafmetingen tot:
Maximale lengte: 13,5 m
Maximale breedte: 4,5 m
Standaard buitenmaten: volledig op maat
Typische toepassingen
Permanente kantoren
Showrooms
Woonunits
Publieke of commerciële gebouwen
Aanbouw aan bestaande gebouwen
Kenmerken
Volledig maatwerk
Hoge afwerkingsgraad
Grote ontwerpvrijheid
Geschikt voor permanent gebruik



Micro-rib panelen (basis)




VLOERBEKLEDING

WANDBEKLEDING




Keramische tegel








Onze container units vertrekken van bestaande zeecontainers en vormen zo een sterke, robuuste en duurzame basis. Ze
worden in eigen atelier aangepast volgens het beoogde gebruik en zijn geschikt voor tijdelijke en permanente toepassingen.
Standaard containers
Ombouw containers
Technische containers
Glas containers
Standaard buitenmaten
10ft DV
20ft DV
20ft HC
40ft DV
40ft HC
2991 x 2438 x 2591 mm
6058 x 2438 x 2591 mm
6058 x 2438 x 2896 mm
12192 x 2438 x 2591 mm
12192 x 2438 x 2896 mm
Kenmerken
Gebaseerd op zeecontainers
Robuuste staalstructuur
Technisch en functioneel maatwerk
Snelle inzetbaarheid









Onze DS-Box is een unieke modulaire oplossing met een premium afwerking en een modern, stijlvol design. Deze 100% modulaire units combineren luxe, flexibiliteit en topkwaliteit in één krachtig concept.
Of het nu gaat om een eventruimte, pop-up concept, kantoor of creatieve opstelling: de DS-Box past zich moeiteloos aan elke toepassing aan. Dankzij het koppelbare en stapelbare ontwerp zijn de configuratiemogelijkheden vrijwel eindeloos.
Elk DS-Box-project start vanuit uw ideeën. We werken een gedetailleerd uitvoeringsplan uit op maat en starten pas met de productie na uw goedkeuring. Zo bent u verzekerd van een resultaat dat tot in de kleinste details klopt.
Standaard buitenmaten
Standaard
Typische toepassingen
Event- en belevingsruimtes
Pop-upconcepten
Kantoren
Creatieve en commerciële opstellingen

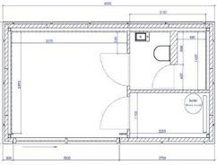
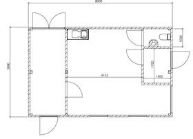
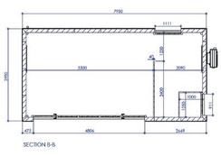
DS Units biedt een reeks zorgvuldig uitgewerkte projectmodellen die dienen als inspiratie en vertrekpunt. Deze modellen
tonen verschillende opstellingen en toepassingen, maar vormen nooit een beperking. Elke unit kan aangepast, uitgebreid of volledig hertekend worden volgens uw wensen.




Oppervlakte
Aantal units
Afmetingen
DS nummer
Prijs vanaf
14 m²
1 unit
6055x2435x2765 mm
DS0016
€ 8 950,00
Oppervlakte
Aantal units
Afmetingen
DS nummer
Prijs vanaf
18 m² 1 unit
6055x2989x2765 mm
DS0013 € 10 500,00




Oppervlakte
Aantal units
Afmetingen
DS nummer
Prijs vanaf
18 m² 1 unit
6055x2989x2765 mm
DS0161 € 14 000,00

Oppervlakte
Aantal units
Afmetingen
DS nummer
Prijs vanaf
27 m² 1 unit
9125x2989x2765 mm
DS022 € 24 950,00

Oppervlakte
Aantal units
Afmetingen
DS nummer
Prijs vanaf
24 m² 1 unit
8000x2989x2765 mm
DS0023 € 19 950,00




Oppervlakte
Aantal units
Afmetingen
DS nummer
Prijs vanaf
18 m² 1 unit
6055x2989x2765 mm
DS0134 € 15 950,00

18 m² 1 unit
6055x2989x2765 mm
DS0133 € 17 950,00

18 m² 1 unit
6055x2989x2765 mm
DS0112 € 15 950,00





18 m²
1 unit
6055x2989x2765 mm
DS0186 € 18 950,00

18 m² 1 unit
6055x2989x2765 mm
DS0132 € 15 950,00
18 m² 1 unit
6055x2989x2765 mm
DS0130 € 18 950,00



Oppervlakte
Aantal units
Afmetingen
DS nummer
Prijs vanaf
18 m²
1 unit
6055x2989x2765 mm
DS0146 € 19 950,00


13 m² 1 unit
4550x2989x2765 mm
DS0124 € 16 950,00
18 m² 1 unit
6055x2989x2765 mm
DS0138 € 19 950,00



Oppervlakte
Aantal units
Afmetingen
DS nummer
Prijs vanaf

Oppervlakte
Aantal units
Afmetingen
DS nummer
Prijs vanaf
12 m² 1 unit
4000x2989x2765 mm
DS0135 € 12 950,00

14 m² 1 unit
4550x2989x2765 mm
DS0114
€ 14 950,00

Oppervlakte
Aantal units
Afmetingen
DS nummer
Prijs vanaf
15 m² 1 unit
6055x2435x2765 mm
DS0136
€ 17 950,00



Oppervlakte
Aantal units
Afmetingen
DS nummer
Prijs vanaf
18 m² 1 unit
6055x2989x2765 mm
DS0115
€15 980,00

Oppervlakte
Aantal units
Afmetingen
DS nummer
Prijs vanaf

Oppervlakte
Aantal units
Afmetingen
DS nummer
Prijs vanaf

18 m² 1 unit
6055x2989x2765 mm
DS0121
€ 14 950,00
18 m² 1 unit
6055x2989x2765 mm
DS0107
€ 16 950,00




Oppervlakte
Aantal units
Afmetingen
DS nummer
Prijs vanaf
18 m² 1 unit
6055x2989x2765 mm
DS0142
€ 15 950,00

Oppervlakte
Aantal units
Afmetingen
DS nummer
Prijs vanaf
18 m² 1 unit
6055x2989x2765 mm
DS0123 € 16 950,0
Oppervlakte
Aantal units
Afmetingen
DS nummer
Prijs vanaf

18 m² 1 unit
6055x2989x2765 mm
DS0126
€ 20 500,00




Oppervlakte
Aantal units
Afmetingen
DS nummer
Prijs vanaf

21 m² 1 unit
7000x2989x2765 mm
DS0106
€ 24 950,00
Oppervlakte
Aantal units
Afmetingen
DS nummer
Prijs vanaf

Oppervlakte
Aantal units
Afmetingen
DS nummer
Prijs vanaf
22 m² 1 unit
7325x2989x2765 mm
DS0131
€ 20 950,00
24 m² 1 unit
8000x2989x2765 mm
DS0127
€19 950,00



Oppervlakte
Aantal units
Afmetingen
DS nummer
Prijs vanaf

Oppervlakte
Aantal units
Afmetingen
DS nummer
Prijs vanaf
24 m² 1 unit
8000x2989x2765 mm
DS0118
€ 22 950,00
Oppervlakte
Aantal units
Afmetingen
DS nummer
Prijs vanaf

27 m² 1 unit
9125x2989x2765 mm
DS0144
€ 22 950,00

27 m² 1 unit
9125x2989x2765 mm
DS0141
€26 950,00



Oppervlakte
Aantal units
Afmetingen
DS nummer
Prijs vanaf
30 m²
2 units
6055x2435x2765 mm (2x)
DS0140 € 24 950,00

Oppervlakte
Aantal units
Afmetingen
DS nummer
Prijs vanaf
30 m²
2 units
6055x2435x2765 mm (2x)
DS0119 € 27 950,00



Oppervlakte
Aantal units
Afmetingen
DS nummer
Prijs vanaf
36 m²
2 units
6055x2989x2765 mm (2x)
DS0148 € 24 950,00

48 m²
2 units
8000x2989x2765 mm (2x)
DS0164 € 42 950,00


Oppervlakte
Aantal units
Afmetingen
DS nummer
Prijs vanaf
55 m²
2 units
9125x2989x2765mm (2x)
DS0129
€ 36 950,00

Oppervlakte
Aantal units
Afmetingen
DS nummer
Prijs vanaf
55 m²
2 units
9125x2989x2915mm (2x)
DS0110
€ 39 950,00


Oppervlakte
Aantal units
Afmetingen
DS nummer
Prijs vanaf
55 m²
2 units
9125x2989x2765 mm (1x)
9125x2435x2765 mm (1x)
DS0205
€ 44 150,00
Oppervlakte
Aantal units
Afmetingen
DS nummer
Prijs vanaf
90 m²
2 units
9125x2435x2765 mm (3x)
DS0204
€ 63 150,00



Oppervlakte
Aantal units
Afmetingen
DS nummer
Prijs vanaf

40 m²
2 units
6055x2989x2765 mm (1x)
7325x2989x2765 mm (1x)
DS0128
€ 34 950,00
Oppervlakte
Aantal units
Afmetingen
DS nummer
Prijs vanaf
51 m²
3 units
6055x2435x2765 mm (1x)
6055x2989x2765 mm (2x)
DS0109
€ 49 950,00






Oppervlakte
Afmetingen
DS nummer
Prijs vanaf
16 m²
4000x4000x3000 mm
DS0176 € 19 950,00

Oppervlakte
Afmetingen
DS nummer
40 m²
10000x4000x3100 mm
DS0167 € 39 950,00



Oppervlakte
Afmetingen
DS nummer
Prijs vanaf
18 m²
6000x3000x3000 mm
DS0028
€ 32 950,00

20 m²
6000x3400x3000 mm
DS0187 € 34 950,00



Oppervlakte
Afmetingen
DS nummer
Prijs vanaf
12 m²
4000x3120x2800 mm
DS0168 € 29 950,00

Oppervlakte
Afmetingen
DS nummer
Prijs vanaf
24 m²
8000x3000x3000 mm
DS0025 € 31 900,00



Oppervlakte
Afmetingen
DS nummer
Prijs vanaf
40 m²
8000x5000x3300 mm
DS0173
€ 59 950,00

Oppervlakte
Afmetingen
DS nummer
Prijs vanaf
78 m²
9000x3200x2950 mm (2x)
8000x3155x2950 mm(1x)
DS0178
€ 119 000,00



Oppervlakte
Afmetingen
DS nummer
Prijs vanaf
40 m²
8000x2500x3000 mm (2x)
DS0166
€ 59 900,00

Oppervlakte
Afmetingen
DS nummer
24 m²
8000x3000x3000 mm
DS0190
Prijs vanaf Vanafprijsexcl.transport,optionelevloer-,wand-engevelafwerkingenwarmtepompgebaseerdopeenstandaardelektrischbasispakket.Tekeningenzijnindicatief.
€ 34 950,00




Oppervlakte
Afmetingen
DS nummer
Prijs vanaf
28 m²
9102x3102x3000 mm
DS0170
€ 34 950,00
Oppervlakte
Afmetingen
DS nummer
Prijs vanaf
28 m²
8000x3500x2900 mm
DS0171
€ 37 900,00




Oppervlakte
Afmetingen
DS nummer
Prijs vanaf
36 m²
6000x6000x3500 mm
DS0197
€ 44 900,00
Oppervlakte
Afmetingen
DS nummer
Prijs vanaf
36 m²
6000x6000x3500 mm
DS0198 € 44 900,00


88 m²
10000x4000x2930 mm (1x)
12000x4000x2930 mm (1x)
DS0189 € 79 950,00


Oppervlakte
Afmetingen
DS nummer
Prijs vanaf
32 m²
8000x4000x3500 mm
DS0026 € 37 950,00


Oppervlakte
Afmetingen
DS nummer
Prijs vanaf
15 m²
4690x3245x2900 mm
DS0152
€ 19 950,00


Oppervlakte
Afmetingen
DS nummer
45 m²
6000x7500x3400 mm
DS0180
€ 49 950,00


Oppervlakte
Afmetingen
DS nummer

21,50 m²
6700x3200x2900 mm
DS0029

6000x3000x2900 mm
Vanafprijsexcl.transport,optionelevloer-,wand-engevelafwerkingenwarmtepompgebaseerdopeenstandaardelektrischbasispakket.Tekeningenzijnindicatief.



Oppervlakte
Afmetingen
DS nummer
18 m²
5000x3000x3000 mm
DS0199

3000x4000x3000 mm



Oppervlakte
Afmetingen
DS nummer
Prijs vanaf
72 m²
12000x6000x3100 mm
DS0165
€ 66 990,00

Oppervlakte
Afmetingen
DS nummer
Prijs vanaf
40 m²
10000x4000x3100 mm
DS0030
€ 79 950,00


Oppervlakte
Afmetingen
DS nummer
Prijs vanaf
44 m²
10900x3890x3000 mm
DS0155 € 79 950,00


50 m²
11750x4250x3100 mm
DS0183 € 84 950,00




DS Units biedt een uitgebreid gamma aan modulaire units in verhuur, geschikt voor tijdelijke en semi-permanente toepassingen. Of het nu gaat om een korte inzet voor een event of een langdurig project, wij zorgen voor een flexibele en zorgeloze oplossing.
Onze verhuurunits zijn inzetbaar in uiteenlopende sectoren zoals bouw, industrie, events, onderwijs, zorg, marketing en de publieke sector. Van één enkele unit tot volledige modulaire opstellingen: alles is mogelijk.
Dankzij onze productie en ombouw in eigen beheer kunnen verhuurunits worden afgestemd op het gewenste gebruik, met opties zoals isolatie, elektriciteit, sanitair, verwarming, airco en interieurafwerking. Units kunnen afzonderlijk geplaatst, gekoppeld of gestapeld worden naargelang de noden van het project.
DS Units verzorgt het volledige traject: transport, plaatsing, ophaling en service. Zo ben je verzekerd van een betrouwbare, efficiënte en professionele verhuuroplossing, volledig op maat van jouw project.



























































Droomt u van een unieke unit of maatwerkproject? Hier is de plek om uw ideeën tot leven te brengen. Teken, noteer of schets uw concept en laat uw creativiteit de vrije loop. Zo kunnen wij samen met u een oplossing uitwerken die perfect aansluit bij uw wensen.
Heeft u een concrete vraag, een project in gedachten of wenst u advies over de juiste modulaire oplossing? Het team van DS Units denkt graag met u mee.
Van eerste idee tot realisatie begeleiden we u stap voor stap en zoeken we samen naar een oplossing die perfect aansluit bij uw noden, timing en budget. Of het nu gaat om aankoop of verhuur, een standaardopstelling of volledig maatwerk: wij staan voor u klaar.
Neem vrijblijvend contact met ons op voor meer informatie, een offerte of een persoonlijk gesprek.
info@dsunits.be
+32 52 30 24 47 dsunits.be
Brusselsesteenweg 149
1785 Merchtem

