Disability Support Guide NT Navigator

Page 1

EDITION 1 DISABILITY SUPPORT GUIDE DisabilitySupportGuide.com.au | TalkingDisability.com.au / TalkingDisability | @TalkDisability_ Your Journey | Choice & Control | Information & Supports 9772652312008 ISSN 2652-3124 Northern Territory Navigator

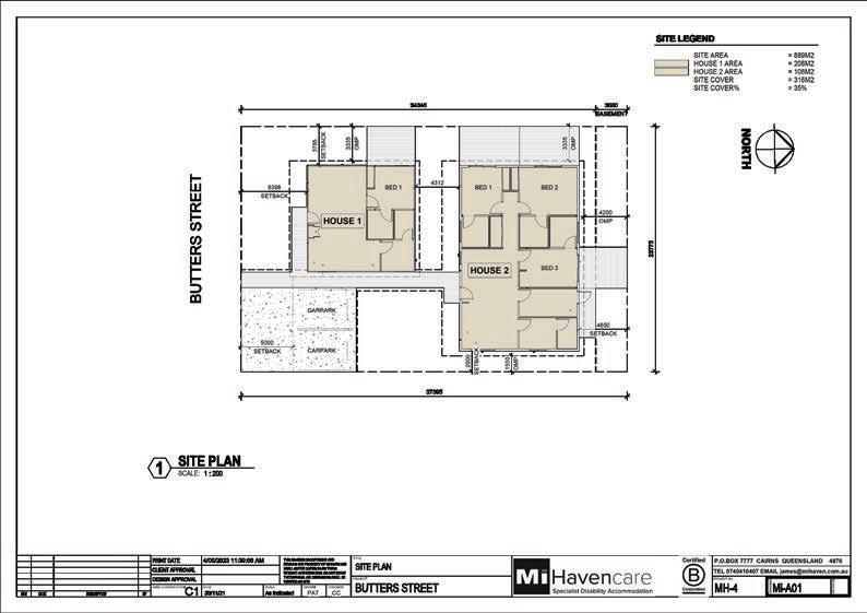
MiHaven Care is proud to be coming to Darwin to build its Award-winning Specialist Disability Accommodation (SDA)

Coming soon to Moil

• House 1 – 1 bedroom High Physical Support villa w/ Overnight On-Site Accommodation for Carers

• House 2 – 3 bedroom High Physical Support house w/ Overnight On-Site

Accommodation for Carers

Expressions of Interest from SIL Providers are welcomed.

NDIS Provider #4050069355

Site plan for MiHaven Care SDA in Moil

The building design and interiors, whilst being functional and compliant to NDIS High Physical Support design standards, will reflect the similar quality of MiHaven’s bespoke, Master Builder Award-winning homes that have benchmarked new SDA development in Cairns, QLD.

2 Disability Support Guide Northern Territory Navigator Edition 1
mihavencare.com.auContact us today 0497 308 238 sda@mihaven.com.au
ENQUIRE NOW
1 DisabilitySupportGuide.com.au Contents Contents Welcome 2 Steps to accessing disability supports 3 Research 4 Preparation 5 Planning meeting 6 Finding providers 7 Managing services 8 NDIS planning meeting checklist 9-10 Partners of the NDIS 11-12 Northern Territory phone numbers and websites 13 National phone numbers and websites 14 Definitions and often used terms 15-16 How to read the directory tables 17 In-home and Community Support directory 18-23 Therapists and Specialists directory 24-28 Accommodation directory 29-34 Advisors directory 35-44 Equipment and Technology directory 45-48 Mental Health directory 49-51  Advertisers in this Navigator Guide Cocoon SDA Care 23, 34 Endless Possibilities NT 19, 33 Eunoia Lane 39 First2Care 38 Leap In 40 Life Without Barriers (National Disability) IBC Linkup Australia Pty Ltd 32, 42, OBC MiHaven IFC Orange Plan Management 36 Purple Support 21, 31 RAR Therapy BL TK Community Care Services 41

Welcome

Welcome to this first edition of the Disability Support Guide Navigator dedicated to supports provided in the Northern Territory.

We know how challenging it can be to find the right provider for your needs and understand this can be even more difficult in regional or remote areas of Australia.

There may be less providers to choose from or it’s hard to find a local provider who can support you in your own community.

That’s why DPS, the company behind the print and online Disability Support Guide resources, created this special A5 Navigator for the Northern Territory (NT).

This handy mini guide will touch on some of the key steps to accessing disability support services and includes a directory of providers delivering a range of disability support products and services near you.

Just like the set up of the larger publication, we have broken down the directory listings into a number of different sections, such as In Home & Community Support, Therapists & Specialists, Accommodation, Advisors, Equipment & Technology and Mental Health. Each section includes a dedicated list of different service providers delivering products and services specifically in the NT.

You can use this navigator edition in conjunction with our website DisabilitySupportGuide.com.au to find out more about each provider listed in the guide. The associated ‘DSG Web ID’ links directly to the relevant profile online and the services they offer.

To find out more about our range of home, aged care, retirement and disability resources, or to request a copy of the regular Disability Support Guide, visit the website or contact us on 1300 186 688 or by emailing info@dps.com.au.

Disability Support Guide

Northern Territory

Navigator Edition 1

Printed March 2024

Deputy Editor

David McManus

david.mcmanus@dps.com.au

Chief Executive Officer

Michelle Beech

DPS Publishing Pty Ltd ● 1300 186 688 ● PO Box 1026, Pasadena SA 5042 info@dps.com.au ● DisabilitySupportGuide.com.au ● ABN 53 090 793 730 Advertising Distribution Proudly produced sales@dps.com.au distribution@dps.com.au and printed 1300 186 688 1300 186 688 in Australia

The factual material contained in this publication has been obtained from information supplied by government departments, industry and organisations, by personal interview and by telephone and correspondence. At the time of going to press the publisher believed that all information submitted for publication was accurate and complete. However, the publisher can take no responsibility for inaccuracies or incomplete information that may have been supplied to them in the course of their enquiries detailed above. The facts published indicate the result of those enquiries and no warranty as to their accuracy can be given. The information in this publication is general in nature and does not constitute financial, legal or other professional advice. Readers should consider whether the information is appropriate to their needs and seek professional advice tailored to their personal circumstances. Images within this publication may have been altered from their original format.

© Copyright. No part of this publication can be used or reproduced in any format without express permission in writing from The Publisher. ® Aged Care Guide is a registered trademark.

2 Disability Support Guide Northern Territory Navigator Edition 1
Welcome

Steps to accessing disability supports

If you’re living with a disability you may be able to access supports through government-funded services. There are lots of different support options available that can help make life easier but it can be hard to know where to start. We’ve broken the process of accessing support down into simple steps that will help you get from A to B in your support journey.

Research

Learn about how to access the NDIS and get an overview of the different support options that are available to help you live your best life.

Preparation

Get an understanding of what you need to consider and prepare ahead of getting access to disability support services.

Steps to accessing supports

Planning meeting

Your LAC or ECEI will work with you to set long- and short-term goals and determine what supports are needed to help you meet those goals.

Finding providers

Find providers to deliver a range of products and services meeting your needs and requirements.

Managing services

Read about managing your supports, for example: when your needs change, your supports no longer suit you or you would like to change providers.

3 DisabilitySupportGuide.com.au

Research

Research

Disability support in Australia is mostly available through the National Disability Insurance Scheme (NDIS). If you’re living with a disability you may be able to access supports through government-funded services.

The first step in your research should be to check if you are eligible for the NDIS and to then apply to join the Scheme.

To be eligible you need to be:

⃝ under the age of 65;

⃝ an Australian citizen, permanent resident or hold a Protected Special Category Visa;

⃝ diagnosed with a disability that affects your ability to perform everyday activities or be a child up to the age of six with developmental delay requiring early intervention supports.

To check if you are eligible and to apply you can contact the National Disability Insurance Agency (NDIA) on 1800 800 110 or visit ndis.gov.au. You may need to provide proof of your diagnosis or other documents to show your need for supports as part of your application.

Once you have applied, you can start looking into what kinds of disability support are out there and get an idea of what you might benefit from.

The objectives of the NDIS are to help you develop greater independence, assist you to get more involved in the community, support you in developing new skills and/or getting a job and find ways to improve your overall wellbeing.

However, above all, the NDIS is based on each person receiving an individual plan that funds the supports to match their goals and what they want to achieve in life.

This means the types of supports available to you cover all areas of life and are tailored to exactly what you need to achieve your goals.

Options can include equipment, assistive technology and home modifications, supports to access the community, such as transport or funding for centre based activities, assistance with daily living, like help with showering and meal preparation or supports for building your skills, such as therapies or programs.

While working out what supports you’ll receive funding for through your plan, the NDIS will look at whether they are considered ‘reasonable and necessary’.

This means they must be related to your disability and not be a daily living costsuch as the cost of groceries or rent, be good value for the amount they cost and be likely to be effective and beneficial to you.

Any informal supports given to you by family, carers, networks and the community will also be considered.

The NDIS also won’t fund supports provided through other funding streams – like learning supports provided for children with disability in schools, that are funded by education departments.

If you are not eligible for the NDIS you may be able to access some funding from State and Territory Governments. For example, you might be able to have some assistive technology funded or access mental health support through the Northern Territory Government’s programs.

4 Disability Support Guide Northern Territory Navigator Edition 1

Preparation

Once you have been approved as a participant of the NDIS you can start preparing for a planning meeting.

A Local Area Coordinator, NDIA planner or Early Childhood Early Intervention Coordinator will contact you after you are approved for funding to set up this meeting.

Together you will put a plan together which includes your short- and long-term goals, work out how you can reach those goals and what supports you need. This plan is then sent to the NDIA for approval and allocation of funding for any supports or equipment.

To make sure you’re well prepared for your planning meeting, it is important you collect a range of supporting documents and information. These could include:

⃝ Specialist reports of therapy assessments

⃝ Letters from your doctor

⃝ Personal documents about you or your family

⃝ Day program rosters

⃝ Information from your employer or volunteer organisation

⃝ Activity schedules or a behaviour support plan

Although it’s not a requirement that you bring quotes for any assistive technology or equipment you want in your plan, quotes can assist the planner you are working with to have a better idea of the level of funding you need.

As well as preparing documents, it can be helpful if you think about and write down anything that will assist with planning your supports. This includes:

⃝ Any formal supports you are currently receiving, such as therapy, as well as any informal supports from family members or friends

⃝ The regular activities you do, such as sport, volunteering or participating in community groups

⃝ Where you live, who you live with and whether you are happy with those arrangements

⃝ Your short- and long-term goals

⃝ Any barriers you currently face to achieving your goals

⃝ Details of what ‘good’ days and ‘bad’ days mean to you, to highlight your daily challenges so you can receive necessary supports

⃝ A statement from your carer detailing your needs, such as personal care, domestic tasks, social participation, eating or drinking, as well as where further support is needed and the impact of your caring role, such as financial, employment, physical and mental health implications

⃝ Any questions you have

It’s also worth getting an understanding of the different ways your funding can be managed - look after it yourself, use a plan manager or have the NDIA look after this and what your preferred option would be. You can discuss this in more detail during your planning meeting.

5 DisabilitySupportGuide.com.au
Preparation

Planning meeting

Planning meeting

The NDIS planning meeting will be used to set long- and short-term goals and will be used by the NDIA to decide how much funding you receive and what types of supports you can access to help you achieve your goals.

The meeting may be held in your planner’s office or you can ask them to come to your home. In some cases, for example — if you live in a rural area, you may be able to have the meeting over the phone.

A plan meeting can take a few hours and the planner you are meeting with will ask lots of questions to get a picture of you, your circumstances and your goals.

Every time you have a planning or review meeting it is important to remember to take your time and not rush, to make sure everything that you want is discussed so that your plan can include the best possible supports.

Your first NDIS plan can focus on the supports you need right now, to give you time to work out what your longer-term goals might be.

During the meeting you will also talk about how you will be able to measure the progress you make towards your goals and how you will tell if your plan is working when all your supports are in place.

You can have a support person present during the meeting, who can provide emotional support or fill in any gaps in information if required. You can also appoint a plan nominee to make decisions about your plan and supports on your behalf if you need them to, for example: if you have regular trips to hospital and need someone to arrange your home supports ready for when you are discharged. Some tips to help you get the most out of your planning meeting include:

⃝ Write down the contact information of your planner in case you have questions after the meeting

⃝ Take notes during your meeting to help you remember what was talked about

⃝ Go through all the information and documentation you brought into the meeting with your planner

⃝ If you need language or cultural support, including Auslan interpretation, make sure you ask the planner about it

⃝ Make sure the planner answers all your questions and that you have time to understand how it all works

⃝ Ask the planner to read back what they have noted down about your goals to make sure you are both on the same page

⃝ Make a decision about what type of plan management you want to use - agency managed, plan managed, self managed or a combination - but remember you can change this at any time

⃝ Confirm a date when your plan will be reviewed. Typically, a plan will last for 12 months, but this might be sooner if you need it to be

During a plan review meeting, you will work through your existing plan to look at how you’ve progressed towards your goals and whether you have any new goals. You will also look at the supports you receive to see what is working, what needs to change and what new or different supports you might need to work towards your new goals.

The plan review is also a chance to ask for funding for assistive technology or equipment you might need over the next year.

6 Disability Support Guide Northern Territory Navigator Edition 1

Finding providers

There are many disability support providers out there offering a range of different services and opportunities.

Choosing which provider to trust with providing support is an important personal decision - one that you want to think carefully about and shouldn’t rush. You might want to start by writing down what you are looking for in a provider and what is important to you.

Some questions that you might like to think about include:

⃝ Do you want most of your supports to be through the same provider or are you comfortable with managing services from multiple providers?

⃝ Do you want the same support worker to visit each time?

⃝ Are you willing to see therapists and specialists at clinics or do you want them to be able to deliver the service in your home, or another location?

⃝ How soon do you need the service provider to start your supports?

⃝ Do you need the provider to be flexible and able to change the times and places support is provided to meet your schedule?

⃝ For supports where you need to go to a location in the community, such as day programs, would you like the provider to offer you transport?

Once you have an idea of what you are looking for, you can use this Navigator Guide or the DisabilitySupportGuide.com.au directory to find providers in your area that meet your requirements.

When considering a potential provider, take your time to do some research:

⃝ Look at the provider’s website, social media pages and online reviews - if you know anyone who currently receives services from the provider or has in the past, ask about their experiences of the provider

⃝ Check out their credentials, such as quality certifications and industry awards

⃝ Do they have any past or present sanctions from the NDIS Commission?

⃝ Have a look at the types of services they provide and whether these will meet exactly what you need

⃝ If you are a First Nations person, from a Culturally and Linguistically Diverse (CALD) background or identify as LGBTQIA+, ask the provider whether they have any experience or qualifications in providing services that are inclusive of you

With NDIS funding, it is also important to know how the management of your plan affects the types of providers you can use. For any parts of your plan that are agency managed you can only claim for services from a registered NDIS provider. If your plan or part of your plan is plan managed or self managed, you can use those funds for both registered and non-registered NDIS providers.

When you have decided on a provider, you need to discuss fees and costs with them, as well as exactly what supports they will provide and when. The document that sets out all of these details is called a service agreement and you will need a different agreement with every service provider you have.

Finding providers

7 DisabilitySupportGuide.com.au

Managing services

Managing Services

You may find that after using your supports for a while you need to change your services, goals or NDIS plan.

This could be because:

⃝ You are moving to another area that your provider doesn’t service

⃝ Your needs or circumstances have changed and you need more or different support

⃝ Your provider is no longer delivering the services you need

⃝ You are unhappy with your provider or you feel uncomfortable or unsafe with their services

⃝ You have achieved a goal and would like something new to work towards

The process of making changes to your current services depends on the type of support you are receiving and the reason you want to change it.

Not all changes to your plan will mean you need a full review and you can talk to an NDIS representative, Local Area Coordinator or Early Childhood Early Intervention partner about whether you need to ask for a plan review or not.

If the reason you want to change providers is that you are not completely happy with them, the first step should be to talk with your current provider.

While you don’t have to give a reason why you want to end the service, it can be helpful if you feel comfortable giving the provider your reasons. Providers sometimes need feedback to make sure their services are doing the best they can, so talking constructively with your provider gives them a chance to understand.

The next step is to look over the service agreement you have with your current provider to check what the process is that you agreed to follow. This could include how much notice you need to give your provider about stopping your services and whether you need to pay cancellation costs.

Once you have given your provider a chance to respond to your concerns, consider whether they will fix the issue or not.

If not, end your service agreement by following the steps in the service agreement document and ask your provider to end their service booking on the NDIS portal.

In some cases you might have to contact the National Disability Insurance Agency (NDIA) to cancel a service booking, so ask the provider if this is the case for you.

Your support coordinator or plan manager, if you have one, also needs to know what you’re planning and when you are ending the arrangement with your provider. They might also be able to help you with the process and answer questions you have.

If you want to make changes to your goals or your NDIS plan it’s a good idea to speak with your NDIS representative first to understand the correct process.

Keep in mind that you will have a regular plan review meeting, so if you need to change your goals this can likely wait until your scheduled review.

You can also request an unscheduled plan review at any time, which might be needed if your circumstances change, your plan no longer meets your needs or you would like to change how your plan is managed.

This is called a participant-requested review and can be requested through a change of circumstances form, found on the NDIS website or at an NDIS office.

8 Disability Support Guide Northern Territory Navigator Edition 1

NDIS Planning Meeting Checklist

It’s never too early to start planning! To help you make the most of your planning meeting, we have put together a checklist of useful information before and during the meeting and what to look out for when you receive your plan.

Before your planning meeting

Familiarise yourself with the NDIS:

Go to pages 15-16 of this Guide for our handy list of definitions and often used terms

Information about the NDIS, your eligibility, developing your first plan and what to expect at your planning meeting can be found on our website:

DisabilitySupportGuide.com.au/information

Take the time to write down your:

Personal details

Current informal supports from family and friends

Current formal supports

Activities (regular and occasional) and how you get to and from them

Living arrangements

Short- and long-term goals

How you would like to manage your funding – read more about the different options at DisabilitySupportGuide.com.au/information/article/managing-your-plan

Gather your supporting documents, such as assessment reports, medical results or day options. Make sure you keep copies of these documents. These documents may include:

Information, reports and assessments of your disability

Detailing ‘good’ days and ‘bad’ days, to ensure you highlight your daily challenges and receive the necessary supports you need

NDIS Planning Workbook – available online at ndis.gov.au. The questions in this planning workbook can help you collect the information used to determine your needs and goals

Carers statement – Take some time to write a detailed list of your caring responsibilities such as personal care, domestic tasks, social participation, eating or drinking, as well as where further support is needed and the impact of your caring role, such as financial, employment, physical and mental health implications

Evidence of age and residency such as a copy of your passport or birth certificate

Bank account details to be used for your NDIS funds

9 DisabilitySupportGuide.com.au NDIS Planning Meeting Checklist

NDIS Planning Meeting Checklist

Prepare a list of questions to ask during your meeting, such as:

When can I expect to receive my NDIS plan?

How can I get in contact with you after our meeting if I remember something else?

Who will help me understand my plan and answer any further questions I have?

Who can help me organise my supports and put my plan into action?

Can you repeat my answers back to me?

Am I able to review my plan before it is finalised?

During your planning meeting

Think of who you’d like to bring with you to your planning meeting; It could be your carer, a parent, a friend or your partner

Write down your planner’s name and contact details

Take notes so you can refer to what has been discussed later on

Go through the information you collected and prepared

A sk about language or cultural support

Present any quotes for items/services you are requesting

Present specialist reports showing therapies or supports recommended

Advise which plan management option you wish to use

Remember to tell your planner why you need certain supports

Confirm when your next plan review will be held

Make sure all your questions are answered

Appoint a plan nominee if you wish. This is someone who can make decisions about your plan and supports on your behalf, if necessary

Remember to take your time and don’t be rushed. This meeting is to determine the supports you need so you want to make sure you get it right

When you receive your plan

Check it to make sure you understand what is included in your plan

Await contact by an NDIS representative to discuss putting your plan into action

Notify your service providers and organise a time to sign Service Agreements

Link your myGov account to your NDIS participant portal, following the instructions sent by the NDIA. The NDIS participant portal allows you to view your plan and manage your services with your providers

A s you begin to receive support through your plan, think about how these supports are working for you and what else you may need to achieve your long-term goals before your plan review in 12-months time.

10 Disability Support Guide Northern Territory Navigator Edition 1

Partners of the NDIS

The National Disability Insurance Scheme (NDIS) supports more than half a million people living right across Australia. To be able to deliver the NDIS in a way that works at a local community level, the National Disability Insurance Agency (NDIA) partners with community-based organisations.

The local community organisations work with people with disability to help them with their support journey and are called NDIS partners. The partners of the NDIS include Local Area Coordinators (LAC) and Early Childhood Early Intervention (ECEI) providers.

These organisations know what supports and services are available in your community and can explain how the NDIS system works. Over 70 percent of NDIS participants are supported through LACs or ECEI partners.

Local Area Coordinator partners

LACs assist the NDIA in working with you as a participant to set goals as well as prepare and implement your plan.

LACs have three key roles:

⃝ linking you to the NDIS;

⃝ providing you with information and support in the community;

⃝ working with your local community to make sure it’s both welcoming and inclusive for people with disability.

Once your request to be part of the NDIS has been approved, you will be notified and a LAC representative will contact you to arrange a planning meeting. The LAC will work with you to put your plan together and will send it to the NDIA for approval.

Early Childhood Early Intervention partners

The Early Childhood Early Intervention (ECEI) program supports children under the age of seven who have a disability or developmental delay.

These organisations have a sound knowledge of the early childhood approach and work with other government departments, such as the education department, to make sure children are getting the best developmental supports.

ECEIs work with your whole family to help your child to reach their full potential.

NDIA-managed areas

In most cases, people entering the NDIS will communicate with their LAC about their plan. However, some regional and remote areas are not serviced by a LAC partner. Similarly, ECEI partners don’t tend to be located in remote or very remote areas.

If you don’t have a LAC or ECEI partner in your area, the NDIA will work with you directly to connect you to supports in your area.

You can find a list of the different NDIS partners in the Northern Territory on the following pages.

Partners of the NDIS

11 DisabilitySupportGuide.com.au

Northern Territory

NDIS partner information

The organisations listed below have been engaged by the NDIS to assist with Early Childhood Early Intervention and Local Area Coordination in the Northern Territory.

Early Childhood Early Intervention (ECEI) Partners – These early childhood partners in the community provide advice, assistance and support to children up to the age of seven who have a disability or developmental delay.

Local Area Coordinators (LAC) – LACs are local organisations that help you with your NDIS journey. They provide infwormation about the NDIS, hold planning/review meetings and can connect you with local services and activities.

NDIS managed areas – For many people entering the NDIS, the LAC will be their main point of contact for the NDIS. In areas not serviced by a LAC partner, the NDIS will work with you directly to connect you to supports in your area.

Service Area Council ECEI partner LAC partner

Greater Darwin

Alice Springs

All other areas not supported by a NDIS partner

Darwin Litchfield Palmerston

Alice Springs

Early Childhood Australia 1800 959 995 ecant@ndis.gov.au

APM 1800 276 522 lac@apm.net.au

National Disability Insurance Scheme (NDIS) 1800 800 110

NDIS 1800 800 110 1800 800 110

Darwin NDIS Office 24 Knuckey Street, Darwin 0800 NT

Alice Springs NDIS Office 5 Railway Terrace, Alice Springs 0870 NT

12 Disability Support Guide Northern Territory Navigator Edition 1 Partners of
NDIS
the
NDIS

Northern Territory useful phone numbers and websites

Autism NT 08 8948 4424 autismnt.org.au

Carers NT 1800 422 737 carersnt.asn.au

Companion Card (NT) 1800 139 656 nt.gov.au/wellbeing/disability-services/ nt-companion-card

Darwin Community Legal Service 1800 812 953 or 08 8982 1111 dcls.org.au

Darwin Public Trustee 08 8999 7271 nt.gov.au/law/bdm/about-public-trustee

Department of Education 08 8999 5659 education.nt.gov.au

Disability Sports Association NT 0436 407 445 sportsnt.org.au

Down Syndrome Association of NT 08 8985 6222 downsyndroment.com.au

GROW NT 08 8912 2220 grow.org.au

Guide Dogs SA/NT 1800 757 738 sant.guidedogs.com.au

Integrated Disability Action 08 8948 5400 idainc.org.au

National Disability Services NT 08 8941 0634 nds.org.au

Northern Territory Mental Health Line 1800 682 288 nt.gov.au/wellbeing/mental-health

Office of Disability 08 8999 2809 health.nt.gov.au/professionals/ office-of-disability

Office of the Public Guardian 1800 810 979 publicguardian.nt.gov.au

Riding for the Disabled NT 08 8952 3838 rdaalicesprings.org

Women’s Council 08 8958 2345 npywc.org.au

13 DisabilitySupportGuide.com.au NT phone numbers and websites

National Useful Phone Numbers and Websites

Australian Disability Enterprises 1300 043 517 buyability.org.au

Australian Federation of Disability Organisations (AFDO) 1800 219 969 afdo.org.au

Autism Connect - Amaze 1300 308 699 amaze.org.au

Beyond Blue 1300 224 636 beyondblue.org.au

Blind Citizens Australia 1800 033 660 bca.org.au

Brain Injury Australia 1800 272 461 braininjuryaustralia.org.au

Carers Australia 02 6122 9900 carersaustralia.com.au

Carer Gateway 1800 422 737 carergateway.gov.au

Carer Gateway Counselling Service 1800 242 636 carergateway.gov.au

Cerebral Palsy Alliance 02 9975 8000 cerebralpalsy.org.au

Deafness Forum of Australia 02 6262 7808 deafnessforum.org.au

Department of Health 02 6289 1555 health.gov.au

Department of Social Services 1300 653 227 dss.gov.au

Disability Employment Services (DES)1800 464 800 jobaccess.gov.au

Disability Gateway 1800 643 787 disabilitygateway.gov.au

Federation of Ethnic Communities’ Councils of Australia (FECCA) 02 6282 5755 fecca.org.au

First People’s Disability Network 02 9267 4195 fpdn.org.au

Headspace 1800 650 890 headspace.org.au

Inclusion Australia 1300 312 343 inclusionaustralia.org.au

Independent Living Centres 1300 885 886 ilcaustralia.org

JobAccess 1800 464 800 jobaccess.gov.au

LGBTIQ+ Health Australia 02 7209 6301 lgbtiqhealth.org.au

Lifeline 13 11 14 lifeline.org.au

MyGov

National Continence Helpline

13 23 07 my.gov.au

1800 330 066 continence.org.au

National Dementia Helpline 1800 100 500 dementia.org.au/helpline

National Disability Insurance Scheme (NDIS) 1800 800 110 ndis.gov.au

National Disability Services 02 6283 3200 nds.org.au

NDIS Administrative Appeals Tribunal 1800 228 333 (AAT) aat.gov.au

National Ethnic Disability Alliance 02 6262 6867 neda.org.au

National Relay Service

Voice Relay number - 1300 555 727 accesshub.gov.au/about-the-nrs TTY number - 133 677

SMS relay number - 0423 677 767

NDIS Quality and Safeguards Commission

1800 035 544 ndiscommission.gov.au

Out Together 1300 111 400 wellways.org/out-together

People with Disability Australia

1800 422 015 pwd.org.au

Relationships Australia 1300 364 277 relationships.org.au

QLife

1800 184 527 qlife.org.au

SANE Australia 1800 187 263 sane.org

Services Australia Information Service 13 24 68

servicesaustralia.gov.au

Services Australia - Centrelink Disability, Sickness & Carers Line 13 27 17 servicesaustralia.gov.au/individuals/ centrelink

Services Australia - Medicare 13 20 11 servicesaustralia.gov.au /individuals/medicare

Spinal Cord Injuries Australia

1800 819 775 scia.org.au

Stroke Foundation 1800 787 653 strokefoundation.org.au

Translating and Interpreting Service 13 14 50 tisnational.gov.au

14 Disability Support Guide Northern Territory Navigator Edition 1 National phone numbers and websites

Definitions and often used terms

When going through all the information provided to you, you may come across some words you have not heard before or you are unsure of what they mean. We’ve put together a list of ‘definitions and often used terms’ where we explain the meaning of these words.

Access requirements – Criteria that need to be met for someone to become a participant in the NDIS.

Accessible – A place that is able to be reached, entered or used by every individual, including those with disability, for example by elevator, ramp or chair lift.

Advocacy – A person or organisation that acts as your voice and supports your rights. Advocates campaign and speak up for social change, inclusion, equal rights and opportunity.

Agency managed – One of the management options available where the budget in your plan is looked after by the NDIA; Also see ‘Plan managed’ and ‘Self managed’.

Assistive technology – A product, device or piece of equipment that helps maintain, increase or improve your skills and functional abilities.

Capacity-building support – Funding for therapies and services that will help you build your skills and independence; Also see ‘Capital support’ and ‘Core support’.

Capital support – Funding for aids and equipment to allow you to live independently or help your carer to support you. This can also include funding for specialist accommodation. Also see ‘Capacity building support’ and ‘Core support’.

Carer – Someone who looks after a person with disability. This can be a family member or a paid helper.

Carers statement – A document describing the care provided by an informal carer to a loved one to ensure the person with disability receives appropriate support in their NDIS plan.

Core support – Funding for supports that will help you go about your daily life. Also see ‘Capacity building support’ and ‘Capital support’.

Developmental delay – When a child develops at a slower rate than other children of the same age and doesn’t reach milestones at the expected times.

Diagnosis – The identification of a disease, disorder, condition or disability following assessments, tests and discussion about symptoms.

Disability – A physical, mental, cognitive or developmental condition that limits a person’s ability to engage or take part in everyday activities or interactions. The condition is permanent or likely to be permanent.

Eligibility – Whether a person is able to receive support through the NDIS.

Early Childhood Early Intervention (ECEI) – Supports available under NDIS for children under the age of seven years to help reduce the effects of a disability, improve their skills and limit the need for assistance in later life.

Formal support – When you pay someone to help you with activities like going to the shops, helping you shower or preparing a meal. You may find these people through an agency or your service provider sends these people to help you.

Funding – Supports paid for under the NDIS. These supports are documented in your plan and must meet your goals and needs.

Government funded – Money or funds for supports made available by the State/Territory or Federal Government.

Informal support – Help you’re receiving from family, friends and social networks with activities like cooking meals, going shopping or driving you to appointments. You don’t pay these people to help you.

15 DisabilitySupportGuide.com.au
Definitions and often used terms

Definitions and often used terms

Intervention support – A combination of the different supports available to help maintain or improve your independence and participation within your community.

Local Area Coordinators (LAC) – Local community organisations that have partnered with the NDIA to help participants access and manage the NDIS. Read more on page 11.

Modifications – Changes made to an environment, product or equipment to make it easier to use or access, to help increase your independence.

National Disability Insurance Agency (NDIA) – The independent government agency that looks after the funding and coordination of the NDIS.

National Disability Insurance Scheme (NDIS) – Government-run program that helps support people living with disability or early intervention needs, to meet their individual needs, reach personal goals, participate in the community and increase their independence.

Participant – Someone who has been approved to receive supports through the NDIS.

Participant statement – a document describing the goals and aspirations you want to achieve with the help of the NDIS.

Plan – A document detailing the individual needs and goals of a participant and the types of supports that will be funded under the NDIS to help meet those goals.

Plan implementation – Organising the supports and funding within your NDIS plan so it works for you.

Plan managed – One of the management options available where a plan manager handles your NDIS plan and will look after the payment of services and products; Also see ‘Agency managed’ and ‘Self managed’.

Plan manager – A professional who can help you get the most out of your NDIS funding by handling the paperwork and payments associated with your supports.

Plan review – Meeting with your LAC or NDIA representative to review your plan, measure your progress against your goals and discuss what supports are or aren’t working as well as explore and set new goals for your next plan.

Planning meeting – Meeting with a LAC or NDIA representative to discuss your needs and goals that will form the basis of a plan of supports.

Provider – A person or organisation that delivers services to people living with disability. Also see ‘Registered provider’.

Registered provider – A person or organisation that has registered with the NDIS and meets certain criteria to provide a product or service to participants of the NDIS; Also see ‘Provider’.

Respite – A break from your usual living or caring environment. This could be at a day centre, within the community, at someone else’s home or in-home support.

Scheme – Another word for program. Used as a shortened term to refer to the National Disability Insurance Scheme (NDIS).

Self managed – One of the management options available where you organise supports and payments to providers yourself; Also see ‘Agency managed’ and ‘Plan managed’.

Service agreement – A contract between you and your provider detailing the types of services and supports that will be delivered.

Specialist Disability Accommodation (SDA) – Funding towards the cost of purpose built or specialist designed housing. Available under the ‘Capital supports group’ to some high support needs NDIS participants.

Unregistered provider – A person or organisation that has chosen not to register with the NDIS and does not need to adhere to NDIA guidelines and pricing; Also see ‘Provider’.

16 Disability Support Guide Northern Territory Navigator Edition 1

How to read the directory tables

In the directory section starting on page 20 of this guide you’ll find six sections covering In Home & Community Support, Therapists & Specialists, Accommodation, Advisors, Equipment & Technology and Mental Health.

The tables list a number of providers, including both registered and unregistered NDIS providers servicing the Northern Territory, in alphabetical order.

The lists detail whether these providers are registered to deliver Core, Capital or Capacity support and indicate some of the specific services that each of the providers deliver.

The tables show if the provider can come to your house or school to deliver services or work from a set location, such as a medical practice. They also indicate what age groups providers can deliver services to.

A bold listing indicates the provider has paid to have their services listed in this Guide. If a service provider has an advertisement in this Guide, then the page number of the advert is listed in red under ‘Advertisement Page’.

For a complete overview of providers and services registered in each state and territory visit DisabilitySupportGuide.com.au/topics/ndis-providers

How to read the tables

17 DisabilitySupportGuide.com.au

In Home & Community Support

18 Disability Support Guide Northern Territory Navigator Edition 1 Disability Support Guide FNQ Navigator 2024 18 18
Disability Support Guide Northern Territory Navigator Edition 1 18
Most Person-Centred Daily Living Support Organisation Northern Territory Australian Enterprise Awards 2023 Winner! Endless Possibilities NT

In-Home & Community Support

Visit DisabilitySupportGuide.com.au/topics/ndis-providers for a complete overview of providers and services registered within the State or Territory. For the most up-to-date information about providers and services listed in this Guide visit the website and enter the DSG Web ID numbers in the search field. 20 Disability Support Guide Northern Territory Navigator Edition 1
How to Read see page 17 DSG Web ID Provider Name Location Phone RegisteredNDISProviderCORECAPITALCAPACITYCommunityAccess&Inclusion Services Domestic Assistance HomeMaintenance/GardeningLifeSkillsMeals/ShoppingPersonalCareRespiteCareSports/Social/RecreationalSupportTransportOtherSupportdeliveredathomeSupportdeliveredinpractice 0-4years Age Groups 5-12years13-17years18-64years65+yearsAdvertisement Page Providers servicing All of NT 2 Wog Girls Cleaning 1300 519 852 • • • • • • • • • • • • • • • 53471 Abigail Mamas Healthcare Services Pty Ltd 0401 093 396 • • • • • • • • • • • • • • • 65824 Ability Homes Australia 0472 906 922 • • • • • • • • • • • • 57741 Accessible & Short Term Accommodation 0418 153 101 • • • • • • • • • • • • • • • 62669 Accessible Accommodatio n - Holiday, Respite, Short To Medium Term Stays (STA & MTA ) 1300 180 889 • • • • • • • • • • • 48530 Accessible Telecoms 1800 442 300 • • • • • • • • • 60408 Aidacare 1300 133 120 • • • • • • • • • • • • 40037 Alternative Answers 0414 608 341 • • • • • • • • • 40950 Andrew Stewart - Hearing Connections 0411 757 622 • • • • • • • • • • • • 58043 Angels Care Australia 1800 264 357 • • • • • • • • • • • • • • • • 55116 Ashlee Judd 1300 364 243 • • • • • • • 69490 Aussie Ergonomics Pty Ltd Mackay & Townsville 0412 317 903 • • • • • • • • 65189 BDMS Community Services NT & NSW Rapid Creek 08 8948 5753 • • • • • • • • • • • • • • 63353 Bedshed Mornington 03 5973 6333 • • • • • • • • • • • 59455 Body Cycles Australia 0407 912 107 • • • • • • • • • • • 44991 Centre Care Disability Support Services 0422 013 555 • • • • • • • • • • • • • • • • • • 64436 ClassBento 0488 839 505 • • • 61930 Cocoon SDA Care 1800 262 666 • • • • • • • • • • • • • • • • • • • 23, 34 55140 Continuity Care Australia Pty Ltd 1800 012 273 • • • • • • • • • • • • • • 63349 Drake Medox 1300 360 070 • • • • • • • • • • • • • • • • • • 40230 Endless Possibilities NT Winnellie 08 8945 3697 • • • • • • • • • • • • • • • • • • • • 19, 33 64315 Essential Disability Care Services 1300 225 199 • • • • • • • • • • • • • • • • • • • • 55397 Foundations Family Nutrition 0467 897 370 • • • • • • • • • • • 46476 Get Picked Up 1300 648 688 • • • • • • • • • • 63478 Guardian Nursing Agency 1300 133 633 • • • • • • • • • • • 62545 Guide Dogs SA/NT 1800 757 738 • • • • • • • • • • • • 47980 Healing Through Arts 0423 748 060 • • • • • • • • • • 48202 Here2home 08 7123 4162 • • • • • • • • • • 62371 Hireup 02 9113 5933 • • • • • • • • • • • • • • 40332 Housing Hub 1300 616 463 • • • 62719 Joshua Harry Healthcare 07 4122 2673 • • • • 65107 Joya Medical Supplies 07 5564 6628 • • • • • • • • • • • • • • • • 64018 Kingdom Care 1300 012 875 • • • • • • • • • • • • • • • • • 64569 Leisure Options 1300 363 713 • • • • • • • • • • 46821 Leonie's Caring 1800 491 805 • • • • • • • • • • • • • • 65318 Life Without Barriers NT lwb.org.au Winnellie 1800 610 699 • • • • • • • • • • • • • • • • • • IBC 42555 Lifepath Care Services 0432 457 083 • • • • • • • • • • • • • • • • • • 65443 Lifestyle Solutions 1800 634 748 • • • • • • • • • • • • • • • • • • • • 40432 LinkUp Disability Services NT Alice Springs 1300 577 313 • • • • • • • • • • • • • • • • • 32, 42, OBC 47981 Mable 1300 736 573 • • • • • • • • • • • • • • • 55064 Maple Community Services 1800 780 964 • • • • • • • • • • • • • • • • • 63411 Maximize Care Services 07 3349 9919 • • • • • • • • • • • • • • 65723 Mr Meticulous Services - cleaning +house 0402 317 313 • • • • • • • 66690 Muscular Dystrophy Australia 03 9320 9555 • • • • • • • • • 46995 Nest 1300 547 905 • • • • • • • 62023 IBC Inside Back Cover OBC Outside Back Cover
21

In-Home & Community Support

Visit DisabilitySupportGuide.com.au/topics/ndis-providers for a complete overview of providers and services registered within the State or Territory. For the most up-to-date information about providers and services listed in this Guide visit the website and enter the DSG Web ID numbers in the search field. 22 Disability Support Guide Northern Territory Navigator Edition 1
How to Read see page 17 DSG Web ID Provider Name Location Phone RegisteredNDISProviderCORECAPITALCAPACITYCommunityAccess&Inclusion Services Domestic Assistance HomeMaintenance/GardeningLifeSkillsMeals/ShoppingPersonalCareRespiteCareSports/Social/RecreationalSupportTransportOtherSupportdeliveredathomeSupportdeliveredinpractice 0-4years Age Groups 5-12years13-17years18-64years65+yearsAdvertisement Page Australia’s Favourite Online Disability Support Portal www.disabilitysupportguide.com.au DPSQUALITY Est. 1999 Providers servicing All of NT continued Respite @ Byron Care Stay 0432 545 266 • • • • • • • • • • • 63055 Right at Home RightCare 07 3054 1360 • • • • • • • • • • • • 64619 Sharing the Journey 0414 094 162 • • • • • 45208 Signpedia 0436 400 194 • • • • • • • • • • • • • • • 50043 Spinal Cord Injuries Australia 1800 819 775 • • • • • • • • • • • • 40664 Sunshine Supported Residential Service 03 9469 3300 • • • • 50136 Support Space 0451 335 952 • • • • • • • • • • • • • • • • • 64587 TEAH Yarrawonga 1300 203 059 • • • • • • • • • • • • • • 64047 The CareSide 1300 854 080 • • • • • • • • • • • • • • • 61782 The Good Meal Co. 1800 155 255 • • • • • • • • • 64544 Total Care Disability Services 1300 977 007 • • • • • • • • • • • • 64003 Unique Care and Accommodation 0481 054 899 • • • • • • • • • • • • • • • • 40726 Vivid Art for Wellbeing 0407 275 327 • • • • • • • 60339 Watu Care Services 1300 172 076 • • • • • • • • • • • • • • 64025 Wonsie - Bodysuits for kids and adults 0409 309 129 • • • • • • • • • • 40525 Providers servicing Alice Springs region Abilifly Support Services Alice Springs abilifly.com.au Alice Springs 08 8953 7629 • • • • • • • • • • • • • • • • • • • • 64149 ITEC Health Winnellie 08 8923 9900 • • • • • • • • • • 44097 STEPS Group Australia - Alice Springs Alice springs 07 5458 3000 • • • • • • 64527 Providers servicing Darwin region Australia Disability Services 1300 237 634 • • • • • • • • • • • • • • • 50848 Easy Living Care Solutions 0460 809 276 • • • • • • • • • • • • • • 44088 Healthscope Independence Services 03 8551 8888 • • • • • • • • • • • • • • 64438 I Hate Cooking - In Home Cooking Support From Passionate Cooks. 0410 526 477 • • • • • • • • 53390 ITEC Health Winnellie 08 8923 9900 • • • • • • • • • • 44097 Purple Support Winnellie 08 7969 8513 • • • • • • • • • • • • • • • • • 21, 31 64085 STEPS Group Australia - Casuarina Casuarina 08 8925 5600 • • • • • • 64516 TK Community Care Services 08 8931 3224 • • • • • • • • • • • • • • • • • 41 57816 Top2Bottom Nursing Services Humpty Doo 0497 947 570 • • • • • • • • 64378 Providers servicing Kakadu Arnhem region Active Performance 0427 547 918 • • • • • • • • • • • • 44073 TK Community Care Services 08 8931 3224 • • • • • • • • • • • • • • • • • 41 57816 Top2Bottom Nursing Services Humpty Doo 0497 947 570 • • • • • • • • 64378 Providers servicing Katherine Daly region ITEC Health Winnellie 08 8923 9900 • • • • • • • • • • 44097 Purple Support Winnellie 08 7969 8513 • • • • • • • • • • • • • • • • • 21, 31 64085 TK Community Care Services 08 8931 3224 • • • • • • • • • • • • • • • • • 41 57816 Top2Bottom Nursing Services Humpty Doo 0497 947 570 • • • • • • • • 64378

SIL Supports

Assist with daily activities

Medication management

Community nursing care

Specialised Disability

Accommodation (SDA)

Short-term/medium-term accommodation

Daily tasks/shared living Accommodation

*In-home respite

Capacity Building

Development of life skills

Community participation

Assistance with travel

Social and recreational activities

www.cocoons.com.au info@cocoons.com.au

In-Home Supports

Assistance with household tasks

Assistance with self-care

Home-based assistance for a child

Meal preparation

*Subject to availabilities

23 DisabilitySupportGuide.com.au Discover High Quality Care Today PROVIDING 24/7 EXCEPTIONAL CARE FOR PEOPLE WITH DISABILITY
cocoonsdacare cocoonsdacare cocoonsdacare
Provider Number: 4050006516 1800 COCOON | 1800 262 666
23

Therapists & Specialists

Disability Support Guide FNQ Navigator 2024 24 24
Disability Support Guide Northern Territory Navigator Edition 1 24

Therapists & Specialists

Visit DisabilitySupportGuide.com.au/topics/ndis-providers for a complete overview of providers and services registered within the State or Territory. For the most up-to-date information about providers and services listed in this Guide visit the website and enter the DSG Web ID numbers in the search field. 25 DisabilitySupportGuide.com.au
How to Read see page 17 DSG Web ID Provider Name Location Phone RegisteredNDISProviderCORECAPITALCAPACITYBehaviouralSupport Services Dietitian/NutritionistEarlyInterventionOccupationalTherapistExercisePhysiologistsPhysiotherapistPsychologistSpeechTherapistTherapeuticSupports OtherSupportdeliveredathomeSupportdeliveredinpractice 0-4years Age Groups 5-12years13-17years18-64years65+yearsAdvertisement Page Providers servicing All of NT 24/7 Personal Alarm Service -Rosie by Vitalcare 1800 476 743 • • • • • • • • • • • 61710 AbbiCare 1300 884 975 • • • • • • • • 48934 AbbiCare National Mobility Supplier 1300 884 975 • • • • • • 62232 Abigail Mamas Healthcare Services Pty Ltd 0401 093 396 • • • • • • 65824 Ability Therapy Specialists Pty Ltd 0468 863 740 • • • • • • 40809 Access Therapist 1300 886 077 • • • • • • • • • • • • • • • • • 64049 Accessible Accommodation - Holiday, Respite, Short To Medium Term Stays (STA & MTA ) 1300 180 889 • • • • • • • • • • 48530 Accessible Telecoms 1800 442 300 • • • • • • • 60408 Activ8 Health Club 02 8544 0487 • • • • • • • • • • • • 40849 Active Adaptive 0402 917 043 • • • • • • 50102 ActivTec Solutions 1300 304 645 • • • • • • • • • • 48540 AHP Disability Services 1800 247 342 • • • • • • • • • • • 61648 Aidacare 1300 133 120 • • • • • • • • • • • • 40037 Alternative Answers 0414 608 341 • • • • • • • • • • 40950 Angels Care Australia 1800 264 357 • • • • • • • • • • • 55116 Ashlee Judd 1300 364 243 • • • • • • • • • • 69490 ASSA ABLOY Entrance Systems 1300 131 310 • • • • • • • • 48639 Assistive Technology Lab Darwin 0410 544 731 • • • • • • • • • • • • • • 57746 Astute Therapy Solutions Pty Ltd 0493 059 912 • • • • • • • 65298 Audeara 1300 251 539 • • • • • • • • • 47957 Aussie Ergonomics Pty Ltd Mackay & Townsville 0412 317 903 • • • • • 65189 Australian Recreational Therapy Association 02 9887 5035 • • • 20030 Avant Innovations 02 8315 2834 • • • • • • • • • • • • • • • • • 40099 Axis Medical and Rehabilitation 1300 886 744 • • • • 40101 Behaviour Help 0423 293 254 • • • • • • • • • • • • 49062 Big Sky Psychology Katherine 0473 010 904 • • • • • • • • • • • 48938 Breaking Free Therapy 0438 953 101 • • • • • • 67099 Bright Diets 0413 774 411 • • • • • • • • • 41241 Care Squared 1300 632 639 • • • • • • • • • • • • • • • • • 63987 Centre for Human Potential - multilingual psychologists 07 3211 1117 • • • • • • • • 64164 Centre for Human Potential - Online Counselling 07 3211 1117 • • • • • • • • • • • 64119 Centre for Human Potential - Psychology Clinic 07 3211 1117 • • • • • • • • 64159 ClassBento 0488 839 505 • • • 61930 Coastal Dietetics 0488 903 659 • • 63124 Cocoon SDA Care 1800 262 666 • • • • • • • • • • • • • • • • 23, 34 55140 Continuity Care Australia Pty Ltd 1800 012 273 • • • • • 63349 CoordiKids 0415 316 239 • • • • • • • • • • 44305 Dawn Clocks 1300 958 905 • • • • • • • • • 55504 Dejay Medical 02 9838 8869 • • • • • • • • • 40212 Dejay Medical - Melbourne 02 9838 8869 • • • • • • • • • 60999 Drake Medox 1300 360 070 • • • • • • • • • • • • 40230 Early Start Australia | New South Wales 1300 372 439 • • • • • • • • • 63459 Early Start Australia | Victoria & Tasmania 1300 372 439 • • • • • • • • • • 63460 Embodied Psychology 03 8593 9598 • • • • • • 48425 Empower Healthcare 1300 043 578 • • • • • • • • • 55321

Therapists & Specialists

Visit DisabilitySupportGuide.com.au/topics/ndis-providers for a complete overview of providers and services registered within the State or Territory. For the most up-to-date information about providers and services listed in this Guide visit the website and enter the DSG Web ID numbers in the search field. 26 Disability Support Guide Northern Territory Navigator Edition 1
How to Read see page 17 DSG Web ID Provider Name Location Phone RegisteredNDISProviderCORECAPITALCAPACITYBehaviouralSupport Services Dietitian/NutritionistEarlyInterventionOccupationalTherapistExercisePhysiologistsPhysiotherapistPsychologistSpeechTherapistTherapeuticSupports OtherSupportdeliveredathomeSupportdeliveredinpractice 0-4years Age Groups 5-12years13-17years18-64years65+yearsAdvertisement Page Providers servicing All of NT continued Encara | Allied Health 1300 761 965 • • • • • • • • • • • 49136 Endless Possibilities NT Winnellie 08 8945 3697 • • • • • • • • • • • 19, 33 64315 Epilepsy Association of SA and NT 1300 850 081 • • • • • • • • • • 45495 Essential Disability Care Services 1300 225 199 • • • • • • • • • • • 55397 Eunoia Lane Winnellie 08 8947 6908 • • • • • • • • • • • • 39 60988 European Bedding 08 9384 0388 • • • • • • • • 47668 Fabic Behaviour Specialist Services Clinic 07 5530 5099 • • • • • • • • • • • • • • • • 40270 Family and Trauma Centre 03 9013 7004 • • • • • • • • • • • 61681 Feed Your Future Dietetics 0432 889 752 • • • • • • • • • • • 53374 Fitness Inside Out 1300 735 790 • • • • • 41849 Five Sparrows Well-Being 0412 932 404 • • • • • • 64674 Foundations Family Nutrition 0467 897 370 • • • • • • • • • • • • • 46476 Fun Ability 0499 566 324 • • • • • • • • • • • 63903 FurTastic Friends by Bocchetta Plush Toys 07 5568 0641 • • • • • • • 62267 Guardian Nursing Agency 1300 133 633 • • • • • • • • • 62545 Guide Dogs SA/NT 1800 757 738 • • • • • • • • • • • • 47980 Happyer Therapy 02 6190 9291 • • • • • • • 64338 Healing Through Arts 0423 748 060 • • • • • • • • • • 48202 Here2home 08 7123 4162 • • • • • • • • • 62371 Hireup 02 9113 5933 • • • • • • • • • 40332 Hively Health 1300 114 769 • • • • • • • • • • • • • • 63928 Iceepak Australia 1300 559 568 • • • • • • • • • 49381 IncontinenceProducts.com.au 02 9531 2011 • • • • • • • • 62107 Inspire Early Intervention 0457 248 889 • • • • • • • • • • • 54115 Internal Sunshine Beaconsfield 03 9100 4588 • • • • • • • • • • • • • 63943 Internal Sunshine Malvern East 03 9100 4588 • • • • • • • • • • • • 63941 Joshua Harry Healthcare 07 4122 2673 • • • • • • • • 65107 Joya Medical Supplies 07 5564 6628 • • • • • • • • • • • 64018 Karinya Counselling Centre 03 9802 2886 • • • • • • • • • 49470 Kids Matters OT 07 3392 6133 • • • • • • • • 54179 Kingdom Care 1300 012 875 • • • • • • • • 64569 Leonie's Caring 1800 491 805 • • • • • 65318 Life Skills 4 Kids 02 6555 9877 • • • • • • • • • • 42554 Life Without Barriers NT lwb.org.au Winnellie 1800 610 699 • • • • • • • • • IBC 42555 Lifestyle Solutions 1800 634 748 • • • • • • • • • • • • • • • • 40432 Link Assistive 08 7120 6002 • • • • • • • • • • 45266 Lusio Rehab the home of LusioMATE 1300 158 746 • • • • • • • • • • • • • • • 49573 Mable 1300 736 573 • • • • • • • • • • 55064 Maximize Care Services 07 3349 9919 • • • • • • 65723 Med-Psych 02 4929 4882 • • • • • • • • • • • • • 63539 Mobility Scooters for Hire Sale Service 03 7036 4440 • • • • • • • 49684 Muscular Dystrophy Australia 03 9320 9555 • • • • • • • • • 46995 My Diffability Australia 03 8456 6613 • • • • • • • • • • 40500 MyBurrow 0422 254 383 • • • • • • • • • • • • • • 55448 National Auslan Interpreter Booking & Payment Service 1800 246 945 • • • • • • • • • • 44134 nicole neave 0422 183 566 • • • • • • • • 52986 IBC Inside Back Cover

Therapists & Specialists

Visit DisabilitySupportGuide.com.au/topics/ndis-providers for a complete overview of providers and services registered within the State or Territory. For the most up-to-date information about providers and services listed in this Guide visit the website and enter the DSG Web ID numbers in the search field. 27 DisabilitySupportGuide.com.au
How to Read see page 17 DSG Web ID Provider Name Location Phone RegisteredNDISProviderCORECAPITALCAPACITYBehaviouralSupport Services Dietitian/NutritionistEarlyInterventionOccupationalTherapistExercisePhysiologistsPhysiotherapistPsychologistSpeechTherapistTherapeuticSupports OtherSupportdeliveredathomeSupportdeliveredinpractice 0-4years Age Groups 5-12years13-17years18-64years65+yearsAdvertisement Page Providers servicing All of NT continued NIGHT N DAY COMFORT 02 9531 2011 • • • • • • • • • • • 42784 Peggs 1800 111 811 • • • • • • • • • • • 48282 Plan For You 0400 571 974 • • • • • • • • 64537 Plena Healthcare 13 60 33 • • • • • • • • 37938 Principality Healthcare 1300 696 220 • • • • • • • • • • • 54486 Quantum Reading Learning Vision 1300 883 853 • • • • • • • • • • 40584 Radiance Hobart Counselling & Self-Development 0409 191 342 • • • • • • • 45784 Ramsey Speech Pathology 0476 799 959 • • • • • • • • 47915 Ramsey Speech Pathology 0476 799 959 • • • • • • • • 61324 Relationships & Private Stuff 0416 122 634 • • • • • • • 41724 Respite @ Byron Care Stay 0432 545 266 • • • • • 63055 Right at Home RightCare 07 3054 1360 • • • • 64619 Safety and Mobility 02 9983 9520 • • • • • • • • • • • • 43412 Sensory Oasis for Kids 03 9399 4783 • • • • • • • • 50026 Sharing the Journey 0414 094 162 • • • • 45208 Siblings Australia 08 8253 4936 • • • • • • • • • • 45456 Signpedia 0436 400 194 • • • • • • • • • • 50043 Simply Nutrition Dietitians 1300 380 694 • • • • • • • • • • • • • 60946 Spinal Cord Injuries Australia 1800 819 775 • • • • • • • • • • • • • 40664 Sunrise Medical Australia 02 9678 6600 • • • • • • 43637 Sunshine Supported Residential Service 03 9469 3300 • • • 50136 Support Space 0451 335 952 • • • • • • • • • • • • • • • • • 64587 Surgical Engineering AUS 07 3869 1919 • • • • • • • • • 40679 Surgical House 08 9381 4199 • • • • • • • • • • 47852 Suzanne Vandeleur 0408 059 395 • • • • • • • 54699 Tactile Terps 0400 400 966 • • • • 48031 TEAH Yarrawonga 1300 203 059 • • • • • • • • 64047 Technical Solutions Australia 03 9737 9000 • • • • • • • • • 40688 The Brainary 03 5229 2260 • • • • • • • • • • • • • 40690 The Hospital Research Foundation Group Parkinson's (THRFG Parkinson's) 08 8357 8909 • • • • • • • • • • • • • 45360 The INS Group 02 4254 6226 • • • • • • 40696 The OT Wellness Clinic 0457 312 033 • • • • • • • • 63813 The Shapes United 1300 893 826 • • • • • • • 63955 Therapeutic Pillow International 03 8585 6685 • • • • • • • • • • • 40712 Therapy Alliance Group 1300 661 945 • • • • • • • • • • • • • • • • • 44825 Total Care Disability Services 1300 977 007 • • • • • • • 64003 Tropical Beaches Psychology 0434 039 615 • • • • • 70320 Two Way Street 0434 266 237 • • • • • • 45524 Unique Care and Accommodation 0481 054 899 • • • • • • • • • 40726 Virtual Reality Therapy Australia 1300 932 323 • • • • • • • • • • 64022 Vivid Art for Wellbeing 0407 275 327 • • • • • • • 60339 Wonsie - Bodysuits for kids and adults 0409 309 129 • • • • • • • • • • • 40525 Providers servicing Alice Springs region Pacific Health & Wellbeing 07 3267 3287 • • • • • • • • • • • 43098 Rural and Regional Therapy Services (RAR Therapy) 1800 734 466 • • • • • • • • • • • • • • • • • 44714 STEPS Group Australia Alice springs 07 5458 3000 • • • 64527 Providers servicing Darwin region Australia Disability Services 1300 237 634 • • • • • • • • • • • • 50848

Therapists & Specialists

Visit DisabilitySupportGuide.com.au/topics/ndis-providers for a complete overview of providers and services registered within the State or Territory. For the most up-to-date information about providers and services listed in this Guide visit the website and enter the DSG Web ID numbers in the search field. 28 Disability Support Guide Northern Territory Navigator Edition 1
How to Read see page 17 DSG Web ID Provider Name Location Phone RegisteredNDISProviderCORECAPITALCAPACITYBehaviouralSupport Services Dietitian/NutritionistEarlyInterventionOccupationalTherapistExercisePhysiologistsPhysiotherapistPsychologistSpeechTherapistTherapeuticSupports OtherSupportdeliveredathomeSupportdeliveredinpractice 0-4years Age Groups 5-12years13-17years18-64years65+yearsAdvertisement Page Providers servicing Darwin region continued NextSense 1300 581 391 • • • • • • • • • • • • • • • • • • • 43388 Pacific Health & Wellbeing 07 3267 3287 • • • • • • • • • • • 43098 Rural and Regional Therapy Services (RAR Therapy) 1800 734 466 • • • • • • • • • • • • • • • • • 44714 Seating Matters 1300 001 050 • • • • • • • • • • • • • 40570 STEPS Group Australia Casuarina 08 8925 5600 • • • 64516 TK Community Care Services Winnellie 08 8931 3224 • • • • • • • • • • • • • • • • • 41 57816 Top2Bottom Nursing Services Humpty Doo 0497 947 570 • • • • • • • • 64378 Providers servicing Kakadu Arnhem region Active Performance 0427 547 918 • • • • • • • • • • • • • • • • 44073 Pacific Health & Wellbeing 07 3267 3287 • • • • • • • • • • • 43098 TK Community Care Services Winnellie 08 8931 3224 • • • • • • • • • • • • • • • • • 41 57816 Top2Bottom Nursing Services Humpty Doo 0497 947 570 • • • • • • • • 64378 Providers servicing Katherine Daly region Rural and Regional Therapy Services (RAR Therapy) 1800 734 466 • • • • • • • • • • • • • • • • • 44714 TK Community Care Services Winnellie 08 8931 3224 • • • • • • • • • • • • • • • • • 41 57816 Top2Bottom Nursing Services Humpty Doo 0497 947 570 • • • • • • • • 64378

Accommodation

29 DisabilitySupportGuide.com.au
29 DisabilitySupportGuide.com.au

Accommodation

Visit DisabilitySupportGuide.com.au/topics/ndis-providers for a complete overview of providers and services registered within the State or Territory. For the most up-to-date information about providers and services listed in this Guide visit the website and enter the DSG Web ID numbers in the search field. 30 Disability Support Guide Northern Territory Navigator Edition 1
How to Read see page 17 DSG Web ID Provider Name Location Phone RegisteredNDISProvider CORE CAPITALCAPACITY24HourEmergency Services HousingLongTermAccommodationRespiteSharedLivingShortTermAccommodationSpecialistDisabilityAccom(SDA)SupportedIndependentLiving Tenancy0-4years Age Groups 5-12years13-17years18-64years65+yearsAdvertisement Page Providers servicing All of NT Abigail Mamas Healthcare Services Pty Ltd 0401 093 396 • • • • • • • • • • • • • 65824 Ability Homes Australia 0472 906 922 • • • • • • • • • • 57741 Accessible & Short Term Accommodation 0418 153 101 • • • • • • • • • • • • • 62669 Accessible Accommodation - Holiday, Respite, Short To Medium Term Stays (STA & MTA ) 1300 180 889 • • • • • • • • • • • • • • 48530 Angels Care Australia 1800 264 357 • • • • • • • • • • • • • • 55116 BDMS Community Services NT & NSW Rapid Creek 08 8948 5753 • • • • • • • • 63353 Cocoon SDA Care 1800 262 666 • • • • • • • • • • • • • • • • 23, 34 55140 Continuity Care Australia Pty Ltd 1800 012 273 • • • • • • • • • • 63349 Drake Medox 1300 360 070 • • • • • • • • • • 40230 Endless Possibilities NT Winnellie 08 8945 3697 • • • • • • • • • • • • • • • • 19, 33 64315 Essential Disability Care Services 1300 225 199 • • • • • • • • • • • • • • • 55397 Guardian Nursing Agency 1300 133 633 • • • • • • • • • 62545 Hireup 02 9113 5933 • • • • • • 40332 Housing Hub 1300 616 463 • • • • • • • 62719 Joya Medical Supplies 07 5564 6628 • • • • • • • • • • • • • • • • 64018 Kingdom Care 1300 012 875 • • • • • • • • • • • • 64569 Leisure Options 1300 363 713 • • • • • • • 46821 Leonie's Caring 1800 491 805 • • • • • • • • • • 65318 Lifepath Care Services 0432 457 083 • • • • • • • • • • • • • • • • 65443 Life Without Barriers NT lwb.org.au Winnellie 1800 610 699 • • • • • • • • • • • IBC 42555 Lifestyle Solutions 1800 634 748 • • • • • • • • • • • • • • • • 40432 LinkUp Disability Services NT Alice Springs 1300 577 313 • • • • • • • • • • • • 32, 42, OBC 47981 Mable 1300 736 573 • • • • • • 55064 Maple Community Services 1800 780 964 • • • • • • • • • • • • 63411 Maximize Care Services 07 3349 9919 • • • • • • 65723 Mount Gambier Apartments 0409 250 577 • • • • 64432 Nest 1300 547 905 • • • • • • • • • • • • 62023 Respite @ Byron Care Stay 0432 545 266 • • • • • • 63055 Right at Home RightCare 07 3054 1360 • • • 64619 Signpedia 0436 400 194 • • • • • • 50043 Simply Helping Franchising 0409 977 620 • • • • • • 63538 Spinal Cord Injuries Australia 1800 819 775 • • • • • • • • • 40664 Sunshine Supported Residential Service 03 9469 3300 • 50136 Support Space 0451 335 952 • • • • • • • • • • • • • • 64587 TEAH Yarrawonga 1300 203 059 • • • • • • • • 64047 The CareSide 1300 854 080 • • • • • • 61782 Total Care Disability Services 1300 977 007 • • • • • • • • 64003 Unique Care and Accommodation 0481 054 899 • • • • • • • 40726 Watu Care Services 1300 172 076 • • • • • • • • 64025 Youngcare 1800 844 727 • • • • • • • • 48054 Providers servicing Alice Springs region Abilifly Support Services abilifly.com.au Alice Springs 08 8953 7629 • • • • • • • • • • • • • • • • 64149 ITEC Health Winnellie 08 8923 9900 • • • 44097 IBC Inside Back Cover OBC Outside Back Cover
31

Accommodation

Accommodation

Visit DisabilitySupportGuide.com.au/topics/ndis-providers for a complete overview of providers and services registered within the State or Territory. For the most up-to-date information about providers and services listed in this Guide visit the website and enter the DSG Web ID numbers in the search field. 32 Disability Support Guide Northern Territory Navigator Edition 1
How to Read see page 17 DSG Web ID Provider Name Location Phone RegisteredNDISProvider CORE CAPITALCAPACITY24HourEmergency Services HousingLongTermAccommodationRespiteSharedLivingShortTermAccommodationSpecialistDisabilityAccom(SDA)SupportedIndependentLiving Tenancy0-4years Age Groups 5-12years13-17years18-64years65+yearsAdvertisement Page Providers servicing Darwin region Australia Disability Services 1300 237 634 • • • • • • • • • • • 50848 Easy Living Care Solutions 0460 809 276 • • • • • • • • • • • 44088 Healthscope Independence Services 03 8551 8888 • • • • • • • • • • • 64438 ITEC Health Winnellie 08 8923 9900 • • • 44097 MiHaven mihavencare.com.au 07 4041 0407 • • • • • IFC 62767 Purple Support Winnellie 08 7969 8513 • • • • • • • • • • • • 21, 31 64085 TK Community Care Services Winnellie 08 8931 3224 • • • • • • • • • • • • 41 57816 Providers servicing Kakadu Arnhem region TK Community Care Services Winnellie 08 8931 3224 • • • • • • • • • • • • 41 57816 Providers servicing Katherine Daly region ITEC Health Winnellie 08 8923 9900 • • • 44097 MiHaven mihavencare.com.au 07 4041 0407 • • • • • IFC 62767 Purple Support Winnellie 08 7969 8513 • • • • • • • • • • • • 21, 31 64085 TK Community Care Services Winnellie 08 8931 3224 • • • • • • • • • • • • 41 57816 Services We Provide Supported Independent Living & Accessible Disability Housing Short & Medium Term Accomodation Contact: 1300 577 313 Email: admin@linkup.net.au Website: www.linkup.net.au
Discover tailored NDIS housing at LinkUp Australia. Our range of accommodation is designed to meet the unique needs of NDIS participants. Contact us today to explore available options and secure a suitable home for individuals with diverse abilities. Specialist Disability Accommodation
33
34 Disability Support Guide Northern Territory Navigator Edition 1 cocoonsdacare cocoonsdacare cocoonsdacare
info@cocoons.com.au Provider Number: 4050006516 PROVIDING 24/7 EXCEPTIONAL CARE IN PURPOSE-BUILT WORLD-CLASS DISABILITY HOMES Cocoon SDA care is a registered NDIS provider Our design and builds exceed robust standards We support functional impairments and very high support needs All homes are able to have modifications and participant input Our participant is at the centre of every decision We offer highly trained staff for your SIL support needs SDA Homes Ready Today For You 1800 COCOON | 1800 262 666 SIL & SDA Available Today
www.cocoons.com.au
35 DisabilitySupportGuide.com.au Advisors 35 DisabilitySupportGuide.com.au
36

Advisors

Visit DisabilitySupportGuide.com.au/topics/ndis-providers for a complete overview of providers and services registered within the State or Territory. For the most up-to-date information about providers and services listed in this Guide visit the website and enter the DSG Web ID numbers in the search field. 37 DisabilitySupportGuide.com.au
How to Read see page 17 DSG Web ID Provider Name Location Phone RegisteredNDISProvider CORECAPITALCAPACITYAssessment Services CaseCoordinationEducationSupportEmploymentSupportFinancialSupportInterventionSupportPlanManagersSupportCoordination Other SupportdeliveredathomeSupportdeliveredinpractice 0-4years Age Groups 5-12years13-17years18-64years65+yearsAdvertisement Page Providers servicing All of NT 101 Plan Management 08 7071 1555 • • • • • • • • • 48470 Ability Therapy Specialists Pty Ltd 0468 863 740 • • • • • • 40809 Able Futures Woy Woy 1800 788 884 • • • • • • • • • • • • 40011 Acacia Plan Management 1300 697 526 • • • • 53560 Accessible & Short Term Accommodation 0418 153 101 • • • • • • • • 62669 Accessible Telecoms 1800 442 300 • • • • • • • • 60408 Account Keeper 0414 443 041 • • • • 66150 Account Keeping 02 9721 3072 • • • • • • • 64239 Activ8 Health Club 02 8544 0487 • • • • • • • • 40849 Aged Care Connect 0400 888 381 • • • • 38143 Aiim Choices - WA - SA - NT aiimchoices.com.au 1800 878 978 • • • • • • • • • • • 63655 Allround Plan Management 0456 961 135 • • • • • • • • • • 63350 Alpha Plan Management 1300 290 602 • • • • • • • • • • 61852 Aspect Plan Management 1300 770 986 • • • • • • 62088 Assistive Technology Lab Darwin 0410 544 731 • • • • • • • • • • • 57746 Auscare Support 1800 940 515 • • • • • • • • • • • 48651 Australian Support Resources 1300 521 541 • • • • • • • • 61709 Best Financial Consultations 02 9623 2577 • • • 66729 Beyond Plan Managers 0468 862 874 • • • • • • 66893 Blitzit Plan Manager 1300 966 119 • • • • • • • • • • 41199 Boomaroo Plan Management 0492 853 012 • • • • • • • • • 62012 Boon Consulting 02 6106 9989 • • • • • 66933 Bright Diets 0413 774 411 • • • • • • • • • • 41241 BudgetNet Plan Management 1300 402 568 • • • • • • • • • • 57000 Centre Care Disability Support Services 0422 013 555 • • • • • • • • • • • 64436 ChoicePlan Management (ChoicePlan Pty Ltd) 0457 471 268 • • • • • • • • • • 68093 Circle Specialist Coordination 08 6118 7485 • • • • • • • • • • • • 64677 Circle Specialist Coordination 08 6118 7485 • • • • • • 67904 Cocoon SDA Care 1800 262 666 • • • • • • • • • • • • • • 23, 34 55140 Colette Bessell Bookkeeping NDIS Plan Manager 0447 887 773 • • • • • • • • 57886 Continuity Care Australia Pty Ltd 1800 012 273 • • • • • • • • • 63349 CoordiKids 0415 316 239 • • • • • • • • 44305 Developing Links 1300 100 556 • • • • • • • • • • 47943 Drake Medox 1300 360 070 • • • • • • • • • • • • 40230 Eden in Oz & NZ 0437 739 779 • • • • 37978 Embodied Psychology 03 8593 9598 • • • • • • 48425 Enabled4Life NDIS Plan Management 1300 667 454 • • • • • • • • 47974 Endless Possibilities NT Winnellie 08 8945 3697 • • • • • • • • • • • • • • 19, 33 64315 Essential Disability Care Services 1300 225 199 • • • • • • • • • • • • • 55397 Eunoia Lane Winnellie 08 8947 6908 • • • • • • • • • • • • • • 39 60988 Fabic Behaviour Specialist Services Clinic 07 5530 5099 • • • • • • • • • • • 40270 Family and Trauma Centre 03 9013 7004 • • • • • • • • • • • 61681 Family Plan Management 0484 067 703 • • • • • • • 64371 First Choice Plan Management 0423 277 597 • • • • • • • • • • 62196 First2Care 1300 322 273 • • • • • • • • • • • • 38 44777
ALICE SPRINGS: 08 8953 8657 admin@eunoialane.com.au WESTPOINT, 1 Stott Terrace, Alice Springs NT 0870 P.O. Box 608, Alice Springs NT 0871 HEAD OFFICE: 08 8947 6908 admin@eunoialane.com.au TERMINAL One, Level 1, 396 Stuart Highway, Winnellie NT 0820 P.O. Box 36086,Winnellie NT 0821 www.eunoialane.com.au Find us on Contact us CAIRNS: (07) 4249 3986 admin@eunoialane.com.au The Bolands Centre: 14 Spence Street, Cairns, 4870, QLD BROOME: (08) 5105 8003 admin@eunoialane.com.au 3/26 Robinson street, Broome WA 6725 P.O. Box 7445, Broome WA 6725 Do you need help with your NDIS plan? Support Coordination Specialist Support Coordination Occupational Therapy 39

Advisors

Visit DisabilitySupportGuide.com.au/topics/ndis-providers for a complete overview of providers and services registered within the State or Territory. For the most up-to-date information about providers and services listed in this Guide visit the website and enter the DSG Web ID numbers in the search field. 40 Disability Support Guide Northern Territory Navigator Edition 1
How to Read see page 17 DSG Web ID Provider Name Location Phone RegisteredNDISProvider CORECAPITALCAPACITYAssessment Services CaseCoordinationEducationSupportEmploymentSupportFinancialSupportInterventionSupportPlanManagersSupportCoordination Other SupportdeliveredathomeSupportdeliveredinpractice 0-4years Age Groups 5-12years13-17years18-64years65+yearsAdvertisement Page Providers servicing All of NT continued Foundations Family Nutrition 0467 897 370 • • • • • • • • • • • • 46476 Grace Professional Services 0429 430 806 • • • • • • • • • 63399 Guardian Nursing Agency 1300 133 633 • • • • • • • • • 62545 Guide Dogs SA/NT 1800 757 738 • • • • • • • • • • • • • • 47980 Hazlaw Bookkeeping 0450 598 274 • • 70530 Healing Through Arts 0423 748 060 • • • • • • • • • 48202 Health Assure Plan Management 1300 545 095 • • • • • • • • • • 63939 Healthy Plan Management 03 9115 1453 • • • • • 69444 Here2home 08 7123 4162 • • • • • • • • • • 62371 Hireup 02 9113 5933 • • • • • • • • • • 40332 Hively Health 1300 114 769 • • • • • • • • • • • • 63928 Independent Life Plan Management 0417 522 162 • • • • • • • • • 64060 Inspire Early Intervention 0457 248 889 • • • • • • • • • • • 54115 Instacare Plan Managers 1300 002 221 • • • • • • • • • • 54117 Internal Sunshine Beaconsfield 03 9100 4588 • • • • • • • • • • • • 63943 Internal Sunshine Malvern East 03 9100 4588 • • • • • • • • • 63941 Jelly Bean Accounts 02 4063 1400 • • • • • • • • • 42339 Joshua Harry Healthcare 07 4122 2673 • • • 65107 Book your FREE Understand Your Plan Session with an expert plan manager. In your session we’ll: • help you understand the funding in your NDIS plan • explain the different budget categories • discuss the kinds of supports you can use • share tips and tricks about how the NDIS works. It doesn’t matter if you’re self-managed, NDIA-managed or even with another plan manager. Need help to make sense of your NDIS Plan? 1300 05 78 78 | leapin.com.au Why wait? Call today.

At TK Community Care we want to see the world through your eyes and provide services that work for you, not around you. Our vision is to provide the highest quality services, maintained through the highest standards. We believe that quality care should be accessible by all, and that we can deliver an around-the-clock, customer-focused experience this way.

enquiry@tkcommunitycare.com.au

www.tkcommunitycare.com.au

We offer a wide range of services including but not limited to:

• Support Coordination

• Community Nursing

• Accommodation (SIL, STA, MTA and Respite)

• Community Access

• In-home Domestic Supports

• Development of Daily Living and Life Skills

41 DisabilitySupportGuide.com.au
8931
08
3224
41
Visit DisabilitySupportGuide.com.au/topics/ndis-providers for a complete overview of providers and services registered within the State or Territory. For the most up-to-date information about providers and services listed in this Guide visit the website and enter the DSG Web ID numbers in the search field. 42 Disability Support Guide Northern Territory Navigator Edition 1 Advisors How to Read see page 17 DSG Web ID Provider Name Location Phone RegisteredNDISProvider CORECAPITALCAPACITYAssessment Services CaseCoordinationEducationSupportEmploymentSupportFinancialSupportInterventionSupportPlanManagersSupportCoordination Other SupportdeliveredathomeSupportdeliveredinpractice 0-4years Age Groups 5-12years13-17years18-64years65+yearsAdvertisement Page Providers servicing All of NT continued Kalinga Australia Pty Ltd 02 6156 4276 • • • • • • • • • • • 40393 Kingdom Care 1300 012 875 • • • • • • • • • • • 64569 Leap in! Plan Management 1300 057 878 • • • • • • • • • 40 52050 Leonie's Caring 1800 491 805 • • • • • • • 65318 Life Without Barriers NT lwb.org.au Winnellie 1800 610 699 • • • • • • • • • • • • • IBC 42555 Lifestyle Solutions 1800 634 748 • • • • • • • • • • • • • • 40432 LinkUp Disability Services NT Alice Springs 1300 577 313 • • • • • • • • • • • 32, 42, OBC 47981 Maple Community Services 1800 780 964 • • • • • • • • • 63411 Maple Plan 1800 343 966 • • • • • • • • • 54275 Massimo Plans 0481 893 193 • • • • • 66122 My Care Plan Manager 0478 630 313 • • • • • • • • • 63628 My Care Planner 1800 954 480 • • • • • • • • • • • 63275 My Plan Manager 1800 861 272 • • • • • • • • • 40502 My Plan Support Agency 02 9161 3900 • • • • 52314 myAutonomy Plan Management 1300 603 389 • • • • • • • • • 63624 MyBurrow 0422 254 383 • • • • • • • 55448 Contact: 1300 577 313 Email: admin@linkup.net.au Website: www.linkup.net.au We are here to assist you with: Understanding your NDIS plan Finding the right supports Managing your budget Connecting with the community Finding suitable disability accommodation Accessing nursing support Daily living activities
Coordination Support coordination helps individuals with disabilities access personalized services by guiding them through the complex landscape of available supports. Effective support coordination principles and practices empower both support coordinators and individuals with disabilities to work together, enhancing quality of life and achieving meaningful goals. IBC Inside Back Cover OBC Outside Back Cover
Support

Advisors

Visit DisabilitySupportGuide.com.au/topics/ndis-providers for a complete overview of providers and services registered within the State or Territory. For the most up-to-date information about providers and services listed in this Guide visit the website and enter the DSG Web ID numbers in the search field. 43 DisabilitySupportGuide.com.au
How to Read see page 17 DSG Web ID Provider Name Location Phone RegisteredNDISProvider CORECAPITALCAPACITYAssessment Services CaseCoordinationEducationSupportEmploymentSupportFinancialSupportInterventionSupportPlanManagersSupportCoordination Other SupportdeliveredathomeSupportdeliveredinpractice 0-4years Age Groups 5-12years13-17years18-64years65+yearsAdvertisement Page Providers servicing All of NT continued MyIntegra - NDIS Plan Management & Support Coordination 1800 696 347 • • • • • • • • • • • 40361 Myplanzz Plan Management and Support Coordination 0474 459 660 • • • • • • • • • • • • 64317 National Disability Coordination 0491 139 694 • • • • • • • • • • • 66325 NDSP Plan Managers 1800 636 377 • • • • • • • • • 48287 Nest 1300 547 905 • • • • • • • • 62023 Onboard Supports 1300 359 884 • • • • 62673 Orange Plan Management 1300 611 990 • • • • • • • • • 36 64478 Oura Plan Management Pty Ltd 0481 032 310 • • • • 68130 Pabs Place 0417 858 262 • • • • 68304 Pacify Plan Management 1800 959 344 • • • • 63358 Pathways to Care- NDIS Plan Management 1300 467 284 • • • • • • • • • 63446 Peak Plan Management 1300 732 324 • • • • • • • • • 54433 Plan For You 0400 571 974 • • • • • • • • • • 64537 Plena Healthcare 13 60 33 • • • • • 37938 Quality Disability Management Services (QDMS) 0411 219 312 • • • • • • • • • • 43254 Quantum Reading Learning Vision 1300 883 853 • • • • • • • • • • • 40584 Ramsey Speech Pathology 0476 799 959 • • • • • • 47915 Ramsey Speech Pathology 0476 799 959 • • • • • • 61324 Relationships & Private Stuff 0416 122 634 • • • • • • • 41724 Right at Home RightCare 07 3054 1360 • • • • • • 64619 RippleAbility 08 9560 6464 • • • • • • • • 63929 Ross Management Services 0481 721 373 • • • • • • • • • • 43383 Rosy Fox 03 8609 3600 • • • • • • • • 62275 Ruby Accountant 0435 025 296 • • • • • • • • • • 63040 Safety and Mobility 02 9983 9520 • • • • • • • • • • • 43412 Sage Care Advice 07 5322 5333 • • • • • 38161 Sharing the Journey 0414 094 162 • • • • • 45208 Shoalhaven Plan Management Pty Ltd 02 4413 2481 • • • • • • • • 51587 Signpedia 0436 400 194 • • • • • • • • 50043 Soothing Minds Plan Management 08 8448 1106 • • • 63470 Spinal Cord Injuries Australia 1800 819 775 • • • • • • • • • • • • • • 40664 Step 2 Plan Management 03 4250 8009 • • • 68431 Sunrise Medical Australia 02 9678 6600 • • • • 43637 Support Space 0451 335 952 • • • • • • • • • • • • • • • • 64587 Tactile Terps 0400 400 966 • • • • 48031 Taylored Support Coordination 1300 816 512 • • • • • • • • • • • • 63342 Technical Solutions Australia 03 9737 9000 • • • • • • • • • 40688 The Brainary 03 5229 2260 • • • • • • • • • 40690 The Carers Place 1300 915 080 • • • • • • 62799 Therapy Alliance Group 1300 661 945 • • • • • • • • • • • • 44825 Total Care Disability Services 1300 977 007 • • • • • • • • • • • 64003 Two Way Street 0434 266 237 • • • • 45524 Unique Care and Accommodation 0481 054 899 • • • • • • • • • • • 40726 WorkPlacePLUS 03 9492 0958 • • • • • • 62803 Youngcare 1800 844 727 • • • • • • • • 48054 Your Plan Manager 1800 968 775 • • • • • • • • • • 50404
Visit DisabilitySupportGuide.com.au/topics/ndis-providers for a complete overview of providers and services registered within the State or Territory. For the most up-to-date information about providers and services listed in this Guide visit the website and enter the DSG Web ID numbers in the search field. 44 Disability Support Guide Northern Territory Navigator Edition 1
How to Read see page 17 DSG Web ID Provider Name Location Phone RegisteredNDISProvider CORECAPITALCAPACITYAssessment Services CaseCoordinationEducationSupportEmploymentSupportFinancialSupportInterventionSupportPlanManagersSupportCoordination Other SupportdeliveredathomeSupportdeliveredinpractice 0-4years Age Groups 5-12years13-17years18-64years65+yearsAdvertisement Page Providers servicing Alice Springs region ITEC Health Winnellie 08 8923 9900 • • • 44097 Rural and Regional Therapy Services (RAR Therapy) 1800 734 466 • • • • • • • • • • • 44714 STEPS Group AustraliaAlice Springs Alice springs 07 5458 3000 • • • • • 64527 Providers servicing Darwin region Australia Disability Services 1300 237 634 • • • • • • • • 50848 ITEC Health Winnellie 08 8923 9900 • • • 44097 NextSense 1300 581 391 • • • • • • • • • • • • • 43388 Purple Support Winnellie 08 7969 8513 • • • • • • • • • • 21, 31 64085 Rural and Regional Therapy Services (RAR Therapy) 1800 734 466 • • • • • • • • • • • 44714 Seating Matters 1300 001 050 • • • • • • • • • • • 40570 STEPS Group Australia Casuarina 08 8925 5600 • • • • • • 64516 TK Community Care Services Winnellie 08 8931 3224 • • • • • • • • • • 41 57816 Providers servicing Kakadu Arnhem region Active Performance 0427 547 918 • • • • • • • • • • • • 44073 TK Community Care Services Winnellie 08 8931 3224 • • • • • • • • • • 41 57816 Providers servicing Katherine Daly region ITEC Health Winnellie 08 8923 9900 • • • 44097 Purple Support Winnellie 08 7969 8513 • • • • • • • • • • 21, 31 64085 Rural and Regional Therapy Services (RAR Therapy) 1800 734 466 • • • • • • • • • • • 44714 TK Community Care Services Winnellie 08 8931 3224 • • • • • • • • • • 41 57816
Advisors

Equipment & Technology

45 DisabilitySupportGuide.com.au

E quipment & Technology

Visit DisabilitySupportGuide.com.au/topics/ndis-providers for a complete overview of providers and services registered within the State or Territory. For the most up-to-date information about providers and services listed in this Guide visit the website and enter the DSG Web ID numbers in the search field. 46 Disability Support Guide Northern Territory Navigator Edition 1
How to Read see page 17 DSG Web ID Provider Name Location Phone RegisteredNDISProvider CORECAPITALCAPACITYAssistiveTechnology Services Communication Equipment EducationalToysHealthcareHomeModificationsMobilityEquipmentVehicleModifications Other 0-4years Age Groups 5-12years13-17years18-64years65+yearsAdvertisement Page Providers servicing All of NT 24/7 Personal Alarm Service-Rosie by Vitalcare 1800 476 743 • • • • • • • • • • • • • 61710 AbbiCare 1300 884 975 • • • • • • • • 48934 AbbiCare National Mobility Supplier 1300 884 975 • • • • • • • 62231 AbbiCare National Mobility Supplier 1300 884 975 • • • • • • • 62232 Accessible Telecoms 1800 442 300 • • • • • • • • 60408 Activ8 Health Club 02 8544 0487 • • • • • • • • 40849 Active Adaptive 0402 917 043 • • • • • • • 50102 ActivTec Solutions 1300 304 645 • • • • • • • • • • • 48540 Aidacare 1300 133 120 • • • • • • • • • • • • • • 40037 Aleva Advanced Continence Care Products 1300 253 821 • • • • • • 38095 Alpha Medical Solutions Pty Ltd 1300 783 747 • • • • • • • • • • • • 40048 Ambassador Motion Furniture 02 9905 0913 • • • • • • • • • • 48597 Amind 0419 668 722 • • • • • • 40054 Andrew Stewart - Hearing Connections 0411 757 622 • • • • • • • • • • • 58043 Arthritis Solutions 0400 885 941 • • • • • • • • 40072 Ashlee Judd 1300 364 243 • • • • • • • 69490 ASSA ABLOY Entrance Systems 1300 131 310 • • • • • • • • • 48639 Atlas McNeil Healthcare 1800 888 541 • • • • • • • • • 40731 Audeara 1300 251 539 • • • • • • • • • • • 47957 Aussie Ergonomics Pty Ltd Mackay & Townsville 0412 317 903 • • • • 65189 Avant Innovations 02 8315 2834 • • • • • • • • • • • • • • • 40099 Axis Medical and Rehabilitation 1300 886 744 • • • • • 40101 Bedshed Mornington 03 5973 6333 • • • • • • • • • • • • 59455 Belly Bands 07 5476 9658 • • • • • • 63465 Bendtech 07 3290 4007 • • • 38090 Better Living Products 03 9807 2992 • • • • • • • • • • • 55364 Body Cycles Australia 0407 912 107 • • • • • • • • • • 44991 Brazier Mobility 1800 272 943 • • • • • • • • • • • 45257 ConfidenceClub 1800 861 199 • • • • • 40215 Daily Orders 0402 291 399 • • • • • • • • • 63549 Dawn Clocks 1300 958 905 • • • • • • • • • • • 55504 DCT Associates 08 8337 1414 • • • • • • • • • 50206 Dejay Medical 02 9838 8869 • • • • • • • • • • • 40212 Dejay Medical - Melbourne 02 9838 8869 • • • • • • • • • • • 60999 Down UnderCare 07 3333 2018 • • • • • • • • 40195 Easy Access Lifts 08 9244 8148 • • • • • • • • • • 53369 Electric Vehicles Oceania 02 8897 5374 • • • • • • • • 48163 Emergency ID Australia 1300 369 142 • • • • • • • • • • • • 40246 Encara | Allied Health 1300 761 965 • • • • • • • 49136 Enware Australia 1300 369 273 • • • • • • • • 41763 Epi-Assist Australia 1800 684 422 • • • • • • • • • • 40256 Epilepsy Association of SA and NT 1300 850 081 • • • • • • • • 45495 Essential Disability Care Services 1300 225 199 • • • • • • • • • 55397 European Bedding 08 9384 0388 • • • • • • • • 47668 Femme Undies 02 9531 2011 • • • • • • 62108 Foundations Family Nutrition 0467 897 370 • • • • • • • • 46476 Fun Ability 0499 566 324 • • • • • • • • • • • • • • 63903 FurTastic Friends by Bocchetta Plush Toys 07 5568 0641 • • • • • • • • 62267 Gimel 1300 317 536 • • • • • • • • • • • • 49239 Guardian Safety Pendants 1300 025 378 • • • • • • • • • • 63994 Healthcare Innovations Australia 1300 499 282 • • • • • • • • • • • 40322

E quipment & Technology

Visit DisabilitySupportGuide.com.au/topics/ndis-providers for a complete overview of providers and services registered within the State or Territory. For the most up-to-date information about providers and services listed in this Guide visit the website and enter the DSG Web ID numbers in the search field. 47 DisabilitySupportGuide.com.au
to
17 DSG Web ID Provider Name Location Phone RegisteredNDISProvider CORECAPITALCAPACITYAssistiveTechnology Services Communication Equipment EducationalToysHealthcareHomeModificationsMobilityEquipmentVehicleModifications Other 0-4years Age Groups 5-12years13-17years18-64years65+yearsAdvertisement Page Providers servicing All of NT continued Healthport 08 7122 3855 • • • • • • 63074 HealthSaver 1300 767 888 • • • • • • • 49319 Holistic Incontinence 1800 103 933 • • • • • • • • • 40335 Human Centred Innovations Pty Ltd 0421 258 052 • • • • • • • • • • • 40345 Iceepak Australia 1300 559 568 • • • • • • • • • 49381 IncontinenceProducts.com.au 02 9531 2011 • • • • • • • • • • • • • 62107 Independence Australia 1300 788 855 • • • • • • • • • • • 62148 INS CareCall 1300 599 532 • • • • • • • 61636 INS LifeGuard 1800 636 226 • • • • • 37520 INS Technologies 1800 636 226 • • • • • 37933 Instacare Online Shop 1300 002 221 • • • • 64086 InteliCare 1300 001 145 • • • • • • • 62264 Jomor Healthcare 03 9912 5472 • • • • • • • • • • • 46710 Joya Medical Supplies 07 5564 6628 • • • • • • • • • • • 64018 KISA Assistive Technology 1300 557 453 • • • • • • • • 37930 Life Skills 4 Kids 02 6555 9877 • • • • • • 42554 LifeVac Australia 1300 890 345 • • • • • • • • • 48249 Link Assistive 08 7120 6002 • • • • • • • • • • • 45266 Lusio Rehab the home of LusioMATE 1300 158 746 • • • • • • • • • • • 49573 Magic Mobility 03 8791 5600 • • • • • • • • • • • 47187 Make Tech Work 4 U 0448 001 807 • • • • • • • • • 40452 mCareWatch 1300 188 557 • • • • 37822 MedicAlert Foundation 1800 882 222 • • • • • • • • • • • 40087 Medifab 1300 543 343 • • • • • • • • • • • 40471 Medisa 1300 721 733 • • • • • • • • • • • • • 64063 MePACS : Personal Alarms & 24/7 Emergency Care Service (SA/NT) 1800 685 329 • • • • • 61626 Mobility Aids and More 08 8552 1098 • • • • • • • 48274 mobility app 1300 438 227 • 62747 Mobility Engineering 02 9482 4572 • • • • • • • • • • • • 42806 Mobility Scooters for Hire Sale Service 03 7036 4440 • • • • • • • 49684 My Diffability Australia 03 8456 6613 • • • • • • • • • • • • • 40500 MyBurrow 0422 254 383 • • • • • • • • 55448 myhomefone 1300 031 107 • • • • • • • • • • • 53361 National Australian Nappies Pty Ltd 03 9795 7888 • • • • • • 47005 National Australian Necessity Supplies 1800 220 222 • • • • • • 37552 NIGHT N DAY COMFORT 02 9531 2011 • • • • • • • • • • • • • • • 42784 Novis Healthcare 1300 738 885 • • • • • • • 49762 Nuheara Limited 08 6555 9999 • • • • • • • • 62504 OZwool Medical Sheepskin Products 07 3314 6975 • • • • • • • • • • • • 40748 Paralogic 1300 727 222 • • • • • • • • • 40549 Paul Hartmann 1800 805 839 • • • • • • • 40553 Peggs 1800 111 811 • • • • • • • • • • • • 48282 Petal Back Clothing 0402 075 290 • • • 54439 Pharmaquip Healthcare 07 3806 4274 • • • • • • 54443 Principality Healthcare 1300 696 220 • • • • • • • • • • • • • 54486 Quantum Low Vision Solutions - ClearReader 1300 883 853 • • • • 37503 Quantum Low Vision Solutions - ClearView 1300 883 853 • • • • 37488 Quantum Reading Learning Vision 1300 883 853 • • • • • • • • • 40584 Ramsey Speech Pathology 0476 799 959 • • • • • • 47915 Ramsey Speech Pathology 0476 799 959 • • • • • • 61324
How
Read see page

E quipment & Technology

Visit DisabilitySupportGuide.com.au/topics/ndis-providers for a complete overview of providers and services registered within the State or Territory. For the most up-to-date information about providers and services listed in this Guide visit the website and enter the DSG Web ID numbers in the search field. 48 Disability Support Guide Northern Territory Navigator Edition 1
How to Read see page 17 DSG Web ID Provider Name Location Phone RegisteredNDISProvider CORECAPITALCAPACITYAssistiveTechnology Services Communication Equipment EducationalToysHealthcareHomeModificationsMobilityEquipmentVehicleModifications Other 0-4years Age Groups 5-12years13-17years18-64years65+yearsAdvertisement Page Providers servicing All of NT continued Safety and Mobility 02 9983 9520 • • • • • • • • • • • • • • 43412 Safety Link Personal Response Service 1800 813 617 • • • • • • • • • 37804 Sensory Oasis for Kids 03 9399 4783 • • • • • • • • • • 50026 Sleeptime 02 9018 9255 • • • • • • • • 64157 Stair Climbers 0411 458 887 • • • 63304 Staydry 1800 684 878 • • • • • • • • • • • • 40201 Sunrise Medical Australia 02 9678 6600 • • • • 43637 Surgical Engineering AUS 07 3869 1919 • • • • • • • • • • • • 40679 Surgical House 08 9381 4199 • • • • • • • • • • • • • 47852 Surgical House Continence Products & Accessories 08 9381 4199 • • • • • • • • • • 37546 Surgical House Daily Living / Independence Products 08 9381 4199 • • • • • 37784 Surgical House Nutrition Food Products 08 9381 4199 • • • • • • • • • 37547 Surgical House Wound Care & Pressure Management 08 9381 4199 • • • • • • • • • 37607 Technical Solutions Australia 03 9737 9000 • • • • • • • • • • • • 40688 TENA Incontinence Products 1800 623 347 • • • • 37040 The 'Wonder Sheet' 07 5591 1629 • • • • • • • • • • • 40224 The Bidet Shop 07 5591 7744 • • • • • • • • 44794 The Bidet Shop 07 5591 7744 • • • • • • • • 62252 The Brainary 03 5229 2260 • • • • • • • • • • • • 40690 The INS Group 02 4254 6226 • • • • • • • 40696 The Sensory Specialist 0451 347 047 • • • • 62742 The Shapes United 1300 893 826 • • • • • • 63955 Therapeutic Pillow Australia 03 8585 6685 • • • • • • • • 38456 Therapeutic Pillow International 03 8585 6685 • • • • • • • • 40712 Therapy Alliance Group 1300 661 945 • • • • • • • • • 44825 Total Ability - Driving Hand Controls and Vehicle Access 1300 858 410 • • • • 40719 Two Way Street 0434 266 237 • • 45524 Ultramatic 1800 210 330 • • • • • • • • 48439 Wenatex the Sleep System 1300 858 139 • • • • • 50360 Wonsie - Bodysuits for kids and adults 0409 309 129 • • • • • • • • • • • 40525 Providers servicing Alice Springs region HPG Insurance & Maintenance Works 08 7221 2831 • • • • • • 55973 Rural and Regional Therapy Services (RAR Therapy) 1800 734 466 • • • • • • • • • • • • • • 44714 Providers servicing Darwin region HPG Insurance & Maintenance Works 08 7221 2831 • • • • • • 55973 NextSense 1300 581 391 • • • • • • • • • • • 43388 Rural and Regional Therapy Services (RAR Therapy) 1800 734 466 • • • • • • • • • • • • • • 44714 Seating Matters 1300 001 050 • • • • • • • • • • • • 40570 Top2Bottom Nursing Services Humpty Doo 0497 947 570 • • • • • • 64378 Providers servicing Kakadu Arnhem region HPG Insurance & Maintenance Works 08 7221 2831 • • • • • • 55973 Top2Bottom Nursing Services Humpty Doo 0497 947 570 • • • • • • 64378 Providers servicing Katherine Daly region HPG Insurance & Maintenance Works 08 7221 2831 • • • • • • 55973 Rural and Regional Therapy Services (RAR Therapy) 1800 734 466 • • • • • • • • • • • • • • 44714 Top2Bottom Nursing Services Humpty Doo 0497 947 570 • • • • • • 64378 Providers servicing MacDonnell region HPG Insurance & Maintenance Works 08 7221 2831 • • • • • • 55973

Mental Health

49 DisabilitySupportGuide.com.au

Mental Health

Visit DisabilitySupportGuide.com.au/topics/ndis-providers for a complete overview of providers and services registered within the State or Territory. For the most up-to-date information about providers and services listed in this Guide visit the website and enter the DSG Web ID numbers in the search field. 50 Disability Support Guide Northern Territory Navigator Edition 1
How to Read see page 17 DSG Web ID Provider Name Location Phone RegisteredNDISProvider CORE CAPITALCAPACITYPsychologist Services PsychosocialSocialWorkersSupportGroupsOtherMentalHealth Professionals SupportdeliveredathomeSupportdeliveredinpractice 0-4years Age Groups 5-12years13-17years18-64years65+years Advertisement Page Providers servicing All of NT Abigail Mamas Healthcare Services Pty Ltd 0401 093 396 • • • • • • 65824 Ability Therapy Specialists Pty Ltd 0468 863 740 • • • • 40809 Access Therapist 1300 886 077 • • • • • • • • • • • • • 64049 Activ8 Health Club 02 8544 0487 • • • • • • • • • • 40849 AHP Disability Services 1800 247 342 • • • • • 61648 Alternative Answers 0414 608 341 • • • • • • • • 40950 Angels Care Australia 1800 264 357 • • • • • • • • • 55116 Avant Innovations 02 8315 2834 • • • • • • • • • • • 40099 Big Sky Psychology Katherine 0473 010 904 • • • • • • • • • • • 48938 Breaking Free Therapy 0438 953 101 • • • 67099 Care Squared 1300 632 639 • • • • • • • • • 63987 Centre for Human Potential - multilingual psychologists 07 3211 1117 • • • • • • • • 64164 Centre for Human Potential - Online Counselling 07 3211 1117 • • • • • • • • • • 64119 Centre for Human Potential - Psychology Clinic 07 3211 1117 • • • • • • • • 64159 Cocoon SDA Care 1800 262 666 • • • • • • • • • • • 23, 34 55140 Continuity Care Australia Pty Ltd 1800 012 273 • • • • • 63349 Early Start Australia | New South Wales 1300 372 439 • • • • • • 63459 Early Start Australia | Victoria & Tasmania 1300 372 439 • • • • • 63460 Embodied Psychology 03 8593 9598 • • • • • 48425 Endless Possibilities NT Winnellie 08 8945 3697 • • • • • • • • • • • 19, 33 64315 Essential Disability Care Services 1300 225 199 • • • • • • • • • • • • • 55397 Fabic Behaviour Specialist Services Clinic 07 5530 5099 • • • • • • • • • • • • 40270 Family and Trauma Centre 03 9013 7004 • • • • • • • • • 61681 Five Sparrows Well-Being 0412 932 404 • • • • • 64674 Guide Dogs SA/NT 1800 757 738 • • • • • • • • • • • • 47980 Healing Through Arts 0423 748 060 • • • • • • • • • • • 48202 Hireup 02 9113 5933 • • • • • • • • 40332 Hively Health 1300 114 769 • • • • • • • • • • • • 63928 Internal Sunshine Beaconsfield 03 9100 4588 • • • • • • • • • • • 63943 Internal Sunshine Malvern East 03 9100 4588 • • • • • • • • • • 63941 Joshua Harry Healthcare 07 4122 2673 • • • • • 65107 Karinya Counselling Centre 03 9802 2886 • • • • • • • • • 49470 Lifestyle Solutions 1800 634 748 • • • • • • • • • • • • • 40432 Mable 1300 736 573 • • • • • • • 55064 Maximize Care Services 07 3349 9919 • • • • • • 65723 Med-Psych 02 4929 4882 • • • • • • • • • • • • 63539 Muscular Dystrophy Australia 03 9320 9555 • • • • • • • • • 46995 MyBurrow 0422 254 383 • • • • • • • • • 55448 nicole neave 0422 183 566 • • • • • • 52986 Radiance Hobart Counselling & Self-Development 0409 191 342 • • • • • 45784 Respite @ Byron Care Stay 0432 545 266 • • • • • 63055 Sharing the Journey 0414 094 162 • • • • 45208 Support Space 0451 335 952 • • • • • • • • • • • • 64587 Suzanne Vandeleur 0408 059 395 • • • 54699 The Brainary 03 5229 2260 • • • • • • • • • • • 40690 The Hospital Research Foundation Group Parkinson's (THRFG Parkinson's) 08 8357 8909 • • • • • • • • • • • 45360 Therapy Alliance Group 1300 661 945 • • • • • • • • • • • 44825

Mental Health

Visit DisabilitySupportGuide.com.au/topics/ndis-providers for a complete overview of providers and services registered within the State or Territory. For the most up-to-date information about providers and services listed in this Guide visit the website and enter the DSG Web ID numbers in the search field. 51 DisabilitySupportGuide.com.au
How to Read
page 17 DSG Web ID Provider Name Location Phone RegisteredNDISProvider CORE CAPITALCAPACITYPsychologist Services PsychosocialSocialWorkersSupportGroupsOtherMentalHealth Professionals SupportdeliveredathomeSupportdeliveredinpractice 0-4years Age Groups 5-12years13-17years18-64years65+years Advertisement Page Providers servicing All of NT continued Total Care Disability Services 1300 977 007 • • • • • • • 64003 Tropical Beaches Psychology 0434 039 615 • • • • 70320 Unique Care and Accommodation 0481 054 899 • • • • • • • • • 40726 Virtual Reality Therapy Australia 1300 932 323 • • • • • • • • • • 64022 Vivid Art for Wellbeing 0407 275 327 • • • • • • 60339 Providers servicing Alice Springs region Rural and Regional Therapy Services (RAR Therapy) 1800 734 466 • • • • • • • • • • • • 44714 STEPS Group Australia - Alice Springs Alice springs 07 5458 3000 • • • 64527 Providers servicing Darwin region Australia Disability Services 1300 237 634 • • • • • • • 50848 NextSense 1300 581 391 • • • • • • • • • • • • • 43388 TK Community Care Services Winnellie 08 8931 3224 • • • • • • • • • • 41 57816 Rural and Regional Therapy Services (RAR Therapy) 1800 734 466 • • • • • • • • • • • • 44714 Providers servicing Kakadu Arnhem region Active Performance 0427 547 918 • • • • • • • • • • • • • 44073 TK Community Care Services Winnellie 08 8931 3224 • • • • • • • • • • 41 57816 Providers servicing Katherine Daly region Rural and Regional Therapy Services (RAR Therapy) 1800 734 466 • • • • • • • • • • • • 44714 TK Community Care Services Winnellie 08 8931 3224 • • • • • • • • • • 41 57816
see
52
lwb.org.au Support on your terms Disability services Looking for a disability service provider? We’ve got lots of services, and we’re sure there’s a perfect match for you. Partner with us to live your best life. 1800 610 699

Social and Community Access

Supported Independent Living (SIL)

Specialist Disability Accommodation (SDA)

Short & Medium Term Accommodation

Assistance with Daily Activities

Nursing Supports

Unlock your potential with LinkUp Australia – where personalised NDIS support transforms challenges into opportunities, enabling you to live your best life and empowering you to thrive!

admin@linkup.net.au www.linkup.net.au 1300 577 313 �������������������������������� �������������������������������� �������������������������������� ��������������������������������, �������������������������������� ������������������������ !
Our Services: NDIS Support Coordination

Turn static files into dynamic content formats.

Create a flipbook
Issuu converts static files into: digital portfolios, online yearbooks, online catalogs, digital photo albums and more. Sign up and create your flipbook.
Disability Support Guide NT Navigator by Care & Co Media (formally DPS Publishing) - Issuu