Vuil- en rioolwaterinstallaties - technische data duijvelaar pompen

Page 116


Vuil- en rioolwater pompen en installaties

Technisch specificatieboek

serie: Vuil- en rioolwater pompen, Modulaire installaties en Feka-Units

1 Werkwijze modulaire

2 Vuil- en rioolwater pompen (stap

2.1Algemeen...............................................................................................................................................6

2.2Vuilwater

2.3DVV

2.4DVV

2.5DVV

2.6DVV

2.7DVV

2.13DRV

2.14DRV

3 Niveaubesturing set (stap 2)

4

4.4DP

5 Putten HDPE en Beton (stap 4) 5.1Introductie............................................................................................................................................55

5.2HDPE

5.3HDPE

5.4Beton

(stap 4a)...................................................................................56

beloopbaar deksel (stap 4b)........................................................................................66

(stap 4c)...............................................................................................................................78

5.5Onderdelen bouwkundige

6 Vuilwater Unit 6.1Introductie...........................................................................................................................................116

6.4Vlakzuiger DVV23 serie met elektrodepen niveau besturing.............................................................122

6.5Specificatie tekst................................................................................................................................124

7 FekaUnit C

7.1Introductie..........................................................................................................................................125

7.2Grafieken FekaUnit C........................................................................................................................127

7.3Technische gegevens FekaUnit C.....................................................................................................129

7.4Medium lijst........................................................................................................................................135

7.5Specificatie tekst................................................................................................................................136

1Werkwijze modulaire opbouw

1.1Algemeen

Wanneer U een complete riool- of vuilwater installatie wil selecteren zijn de volgende stappen nodig:

1Kies de juiste pomp voor de applicatie zie: 2Vuilen rioolwater pompen (stap 1)6

2Selecteer de niveaubesturingskit zie: 3 Niveaubesturing set (stap 2)44

3Kies de gewenste type schakelkast en selecteer op basis van de In de juiste versie zie: 4 Besturingskast (stap 3)46

4Kies het gewenste reservoir in HDPE of Beton zie: 5Putten HDPE en Beton (stap 4)55

5Selecteer de juiste koppeling/appendage kit zie: 5Putten HDPE en Beton (stap 4)55

6Selecteer de gewenste deksel type zie: 5Putten HDPE en Beton (stap 4)55

Figuur 1: Overzicht modulaire opbouw riool- en vuilwaterinstallatie

2Vuil- en rioolwater pompen (stap 1)

2.1Algemeen

De vuil-en rioolwaterpompen types DVV, DRV(N), en DRS zijn een complete reeks onderwaterpompen voor een scala aan watertransport toepassingen.

2.1.1Applicaties

Voor de pompenreeks gelden de volgende applicaties:

- vuilwater afvoer en drainage

- tunnelwater afvoer

- vuil-en rioolwatertoepassingen in pompputten

- lichte industriële applicaties

- watertoevoer voor agricultuur en drainage

- irrigatie systemen

2.1.2Werkbereik

De reeks heeft het volgende werkbereik:

DVV

Max. medium temperatuur [°C]40 (reeks 7,10, 200) 50 (reeks 4, 27)

Maximale opvoerhoogte [mWk]25

Maximale capaciteit [m3/h]130

Drukklasse PN2,5 tot PN16

DRVN

Max. medium temperatuur [°C]40

Maximale opvoerhoogte [mWk]36

Maximale capaciteit [m3/h]180

Drukklasse PN6 tot PN16

DRS

Max. medium temperatuur [°C]40 (reeks 3) 55 (overige reeksen)

Maximale opvoerhoogte [mWk]49,5

Maximale capaciteit [m3/h]22

Drukklasse PN6 tot PN16

2.1.3Waaier types

Voor de vuil- en rioolwaterpompen DVV, DRV en DRS zijn (afhankelijk van de pompserie) verschillende waaier types leverbaar, zie onderstaande tabel.

Vortex waaier

Vrije doorlaat

Relatief laag rendement

Voor afvalwater met grote bestanddelen

Versnijder

Zelfreinigende hydraulische onderdelen

Hoog hydraulisch rendement

Hoge slijtweerstand

Relatief hoge druk

Voor afvalwater met versnijdbare bestanddelen

2.1.4Materiaal conversie

De onderstaande tabel beschrijft de diverse standaards voor de gebruikte materialen in de pompreeksen

Materiaal Omschrijving

JL 1030Gietijzer

JL 1040Gietijzer

1.4021Chroom staal

1.4028Chroom staal

1.4301Chroom-nikkel staal

1.4404Chroom-nikkel-molybdeen staal

GG20GJL-200 EN 1561A48:25B

GG25GJS-250 EN 1561A48:40B

1.4021X20Cr13 EN 10088A276:420

1.4028X30CR13 EN 10088A276:410

1.4301X5CrNi 18-10EN 10088A276:304

1.4404X2CrNiMo 17-12-2EN 10088A276:316L

1.4408Chroom-nikkel-molybdeen staal (gegoten)1.4408GX5CrNiMo 19-11-2EN 10088A743CF8M

1.4571Chroom-nikkel-molybdeen-titanium stal1.4571X6CrNrMoTi17-12-2En 1088A276:316Ti

PAPolyamide (35%glasvezel) PA

PP0 GF20Polyfenyleenoxide (20% glasvezel) Noryl

PP GF30Polypropyleen (30% glasvezel) PP GF30

2.1.5Typesleutel

De pompen zijn omschreven conform de volgende tabel

Duijvelaar V (=Vuilwater) R (=Rioolwater) Versnijder Vortex Nominale capaciteit [l/s] vermogen (kWx10) Aantal polen 1 Wisselspanning (1x230V) vlotterschakelaar vlotterschakelaar (los) Waaierdiameter 2 Voor oliehoudend medium Industrie versie Koelmantel Vergrootte doorlaat Aansluiting Materiaal pomphuis Vermogen Un [V] Frequentie aantal polen Toerental Elektrische aansluiting

1.Alleen voor rioolwater

2.Alleen voor rioolwater

2.2Vuilwater Pump

24324048566472

Impg.p.m.202428323640444852566064

3/h] 050100150200250

U.S.2016g.p.m.28364452606876 02468101214 1612

Tabel 1: Materialen

Pomphuis Technopolymer

Waaier Technopolymer

Motoras AISI420

Seals Dubbele lip seal

ElastomerenNBR / EPDM

Keerklep Geïntegreerd

Niveau besturingGeïntegreerd

Tabel 2: Applicaties

Klein huishoudelijk afvalwater

Toepassingen in gebouwentechniek

Toepassingen in agricultuur

Drainage en irrigatie systemen

Diverse afwatering toepassingen

Tabel 3: Afmeting

2000,251,81x230VSok G 1 1/4 (BI)10

3500,52.71x230VSok G 1 1/4 (BI)10

5000.63.71x230VSok G 1 1/4 (BI)10

2.3DVV 7

Tabel 4: Materialen

Pomphuis1.4301 / AISI304

Motorhuis1.4301 / AISI304 WaaierPA

Motoras1.4021 / AISI420

SealsSIC/SIC, SIMM

ElastomerenNBR

Tabel 5: Applicaties

Diverse afwateringsystemen

Tunnel afwatering

Toepassingen in agricultuur

Drainage en irrigatie systemen

Licht industriële toepassingen

Tabel 6: Afmetingen

Model Toepasbaar installatie P2 [kW] In [A] Un [V] Aansluiting Doorlaat [mm] Maatvoering (LxWxH) [mm] Massa [kg] Artikelnummer

76JA 0,551,73x400VG 6/410300x280x44013,36129128652

76 S 0,551,73x400V+NG 6/410300x280x44015,161630079

76 WJA 0,554,11x230VG 6/410300x280x44012,26129128651

76 WS 0,554,11x230VG 6/410300x280x44012,76129128650

78JA 0,751,93x400VG 6/410300x280x44013,36129128655

78 S 0,751,93x400V+NG 6/410300x280x44015,161630100

78 WJA 0,755,51x230VG 6/410300x280x44012,261630104

78 WS 0,755,51x230VG 6/410300x280x44012,76129128653

711JA 1,12,53x400VG 6/410300x280x44013,361630711

711 WJA 1,16,551x230VG 6/410300x280x44014,561630712

711 WS 1,16,551x230VG 6/410300x280x440156129128656

715JA 1,53,63x400VG 6/410300x280x44015,66129128661

715 S 1,53,63x400V+NG 6/410300x280x44017,561630716

715 WJA 1,58,951x230VG 6/410300x280x44014,561630720

715-WS 1,58,951x230VG 6/410300x280x440156129128659

722 JA 2,24,83x400VG 6/410300x280x44015,761630722

722 S 2,24,83x400V+NG 6/410300x280x44017,661630735

2.4DVV 7 VD

Tabel 7: Materialen

Pomphuis1.4301 / AIS304

Motorhuis1.4301 / AISI304

WaaierPA

Motoras1.4021 / AISI420

SealsSIC/SIC, SIMM

ElastomerenNBR

Tabel 8: Applicaties

Algemeen afvalwaterafvoer

Toepassingen in gebouwentechniek

Toepassingen in agricultuur

Drainage en irrigatie systemen

Diverse afwatering toepassingen

Model Toepasbaar installaite

Tabel 9: Afmetingen

76 VDJA 0,551,73x400VG 6/435300x280x50014,461630078

76 S VD 0,551,73x400V+NG 6/435300x280x50016,161630084

76 W VDJA 0,554,11x230VG 6/435300x280x50013,261630076

76 WS VD 0,554,11x230VG 6/435300x280x50013,761630077

711 VDJA 1,12,53x400VG 6/435300x280x50014,461630701

711 S VD 1,12,53x400V+NG 6/435300x280x50016,161630703

711 W VDJA 1,16,551x230VG 6/435300x280x50015,561630694

711 WS VD 1,16,551x230VG 6/435300x280x5001661630690

722 VDJA 2,24,83x400VG 6/435300x280x50016,961630734

722 S VD 2,24,83x400V+NG 6/435300x280x50018,761630740

2.5DVV 7 K

Tabel 10: Materialen

Pomphuis1.4301 / AISI304

Motorhuis1.4301 / AISI304

WaaierPA

Motoras1.4021 / AISI420

SealsSIC/SIC, SIMM

ElastomerenNBR

Tabel 11: Applicaties

Diverse afwateringsystemen

Tunnel afwatering

Toepassingen in agricultuur

Drainage en irrigatie systemen

Licht industriële toepassingen

Tabel 12: Afmetingen

76 K0,551,73x400VG 210300x280x44015,361630073

76 W K0,554,11x230VG 210300x280x44014,261630088

76 WS K0,554,11x230VG 210300x280x44014,761630093

78 K0,751,93x400VG 210300x280x44015,361630098

78 S K0,751,93x400V+NG 210300x280x44017,161630102

78 W K0,755,51x230VG 210300x280x44014,261630106

78 WS K0,755,51x230VG 210300x280x44014,761630110

711 S K1,16,553x400V+NG 210300x280x44017,161630700

711 W K1,16,551x230VG 210300x280x44016,561630696

711 WS K1,16,551x230VG 210300x280x4401761630389

715 K1,53,63x400VG 210300x280x44017,661630713

715 S K1,53,63x400V+NG 210300x280x44019,561630718

715 W K1,58,951x230VG 210300x280x44016,561630723

715 WS K1,58,951x230VG 210300x280x4401761630728

722 K2,24,83x400VG 210300x280x44017,761630732

722 S K2,24,83x400V+NG 210300x280x44019,661630738

2.6DVV 7 IN VD

Tabel 13: Materialen

Pomphuis1.4301 / AIS304

Motorhuis1.4301 / AISI304

WaaierPA

Motoras1.4021 / AISI420

SealsSIC/SIC, SIMM

ElastomerenNBR

Tabel 14: Applicaties

Algemeen afvalwaterafvoer

Toepassingen in gebouwentechniek

Toepassingen in agricultuur

Drainage en irrigatie systemen

Diverse afwatering toepassingen

Tabel 15: Afmetingen

Model P2 [kW] In [A] Un [V] Aansluiting Doorlaat [mm] Maatvoering (LxWxH) [mm] Massa [kg]

Artikelnummer

76 IN VD0,551,73x400VG 6/435300x280x44012,261630072

76 S IN VD0,551,73x400VG 6/435300x280x44012,761630081

76 W IN VD0,554,11x230VG 6/435300x280x44012,261630087

76 WS IN VD0,554,11x230VG 6/435300x280x44012,761630092

711 WS IN VD1,16,51x230VG 6/435300x280x44014,561630688

711 W IN VD1,16,51x230VG 6/435300x280x4401561630697

711 IN VD1,12,53x400VG 6/435300x280x44013,861630708

711 S IN VD1,12,53x400V+NG 6/435300x280x44015,161630709

722 IN VD2,24,803x400VG 6/435300x280x4401961630731

722 IN VD 2,24,803x400V+NG 6/435300x280x44020,861630737

2.7DVV 7 IN K

Tabel 16: Materialen

Pomphuis1.4401 / AISI316

Motorhuis1.4401 / AISI316 WaaierPA

Motoras1.4021 / AISI420

SealsSIC/SIC, SIMM ElastomerenNBR

Tabel 17: Applicaties

Voor licht zure en enigszins agressieve vloeistoffen Tunnel afwatering Industriële applicaties

Tabel 18: Afmetingen

76 IN K0,551,73x400VG 210300x280x44015,361630071

76 S IN K0,551,73x400V+NG 210300x280x44017,161630080

76 W IN K0,554,11x230VG 210300x280x44014,261630086

76 WS IN K0,554,11x230VG 210300x280x44014,761630091

78 IN K0,751,93x400VG 210300x280x44017,361630097

78 S IN K0,751,93x400V+NG 210300x280x44017,161630101

78 W IN K0,755,51x230VG 210300x280x44014,261630105

78 WS IN K0,755,51x230VG 210300x280x44014,761630109

711 IN K1,12,53x400VG 210300x280x44014,361630707

711 S IN K1,12,53x400V+NG 210300x280x44017,161630704

711 W IN K1,16,551x230VG 210300x280x44016,561630698

711 WS IN K1,16,551x230VG 210300x280x4401761630692

715 IN K1,53,63x400VG 210300x280x44017,661630727

715 S IN K1,53,63x400V+NG 210300x280x44019,561630717

715 W IN K1,58,951x230VG 210300x280x44016,561630721

715 WS IN K1,58,951x230VG 210300x280x4401761630726

722 S IN K2,24,83x400V+NG 210300x280x44019,661630736

2.8DVV 7 O K

Tabel 19: Materialen

Pomphuis1.4301 / AISI304

Motorhuis1.4301 / AISI304 WaaierPA

Motoras1.4021 / AISI420

SealsSIC/SIC, SIMM ElastomerenFPM

Tabel 20: Applicaties

Oliehoudende vloeistoffen Tunnel afwatering Industriële applicaties

Tabel 21: Afmetingen

76 O K0,551,73x400VG 210300x280x44015,361630074

76 S O K0,551,73x400V+NG 210300x280x44017,161630083

76 W O K0,554,11x230VG 210300x280x44014,261630089

76 WS O K0,554,11x230VG 210300x280x44014,761630094

78 O K0,751,93x400VG 210300x280x44017,361630099

78 S O K0,751,93x400V+NG 210300x280x44017,161630103

78 W O K0,755,51x230VG 210300x280x44014,261630107

78 WS O K0,755,51x230VG 210300x280x44014,761630111

711 O K1,12,53x400VG 210300x280x44014,361630705

711 S O K1,12,53x400V+NG 210300x280x44017,161630699

711 W O K1,16,551x230VG 210300x280x44016,561630695

711 WS O K1,16,551x230VG 210300x280x4401761630091

715 O K1,53,63x400VG 210300x280x44017,661630714

715 S O K1,53,63x400V+NG 210300x280x44019,561630719

715 W O K1,58,951x230VG 210300x280x44016,561630724

712 WS O K1,58,951x230VG 210300x280x4401761630729

722 O K2,24,83x400VG 210300x280x44017,761630733

722 S O K2,24,83x400V+NG 210300x280x44019,661630739

2.9DVV 10

Tabel 22: Materialen

PomphuisJL 1040 / GG25, IN versie 1.4408

Motorhuis1.4301 / AISI304, IN versie 1.4408

WaaierPA

Motoras1.4021 / AISI420, IN versie 1.4571

SealsSIC/SIC, SIMM

ElastomerenNBR, O versie FPM

Tabel 23: Applicaties

Algemeen afvalwaterafvoer

Toepassingen in gebouwentechniek

Toepassingen in agricultuur

Drainage en irrigatie systemen

Diverse afwatering toepassingen

Tabel 24: Afmetingen

Model P2 [kW] In [A] Un [V] Aansluiting Doorlaat [mm] Maatvoering (LxWxH) [mm] Massa [kg] Artikelnummer

10222,24,83x400VG 211340x240x48022,561631022

1022 IN2,24,83x400VG 211340x240x48023,561631023 1022 O2,24,83x400VG 211340x240x48023,561631024

1022 S2,24,83x400V+NG 211340x240x48024,561631025

1022 S IN2,24,83x400V+NG 211340x240x48025,561631026

1022 S O2,24,83x400V+NG 211340x240x48025,561631027

2.10DVV

Tabel 25: Materialen

PomphuisJL 1040 / GG25, IN versie speciale coating

MotorhuisJL 1040 / GG25, IN versie speciale coating

WaaierJL 1040 / GG25, optie gehard JL 1040

Motoras1.4021

SealsTUC/TUC, TUC/TUC

ElastomerenNBR

Tabel 26: Applicaties

Algemeen afvalwaterafvoer

Toepassingen in gebouwentechniek

Toepassingen in agricultuur

Drainage en irrigatie systemen

Diverse afwatering toepassingen

Tabel 27: Afmetingen

Model P2 [kW] In [A] Un [V]

274048,53x400VNW8012511x356x55660,561632740

2740 S48,53x400V+NNW8012511x356x5566161632742

2740 IN48,53x400VNW8012511x356x55660,561632741

2740 S IN48,53x400V+NNW8012511x356x5566161632743

27757,515,43x400VNW10012578x356x62894,561632775

2775 S7,515,43x400V+NNW10012578x356x6289661632777

2775 IN7,515,43x400VNW10012578x356x62894,561632776

2775 S IN7,515,43x400V+NNW10012578x356x6289661632778

Flenspijp wordt niet standaard meegeleverd

2.11DRV 6 100-110

Tabel 28: Materialen

PomphuisJL 1030 / GG20

MotorhuisJL 1030 / GG20

WaaierJL 1030 / GG20

Motoras1.4021 / AISI420

SealsSiC / AL2O3 - Simm

ElastomerenNitril

Kabel10 m [3x12] (1x230V) 10 m [4x12] (3x400V)

Tabel 29: Applicaties

Rioolwater afvoer in gebouwentechniek

Tunnel afvalwaterafvoer

Drainage

Gemeentelijke rioolwater systemen

Licht industriële toepassingen

Toepasbaar installatie

Tabel 30: Afmetingen

2.12DRV 6 120-130

Tabel 31: Materialen

PomphuisJL 1030 / GG20

MotorhuisJL 1030 / GG20

WaaierJL 1030 / GG20

Motoras1.4021 / AISI420

SealsSiC / AL2O3 - Simm

ElastomerenNitril

Kabel10 m [3x12] (1x230V) 10 m [4x12] (3x400V)

Tabel 32: Applicaties

Rioolwater afvoer in gebouwentechniek

Tunnel afvalwaterafvoer

Drainage

Gemeentelijke rioolwater systemen

Licht industriële toepassingen

Toepasbaar installatie

Tabel 33: Afmetingen

611-2 120JA 1,1318,33x400VDN50432361656112

611-2 W 120JA 1,18,218,21x230VDN50432361656114

611-2 W 130JA 1,18,218,21x230VDN50412361656115

611-2 WS 120 1,18,218,21x230VDN50432361656118

611-2 WS 130 1,18,218,21x230VDN50412361656119

615-2 130JA 1,53,518,33x400VDN50412361656152

2.13DRV 8 110-120

Tabel 34: Materialen

PomphuisJL 1030 / GG20

MotorhuisJL 1030 / GG20

WaaierJL 1030 / GG20

Motoras1.4021 / AISI420

SealsSiC / AL2O3 - Simm

ElastomerenNitril

Kabel10 m [3x12] (1x230V) 10 m [4x12] (3x400V)

Tabel 35: Applicaties

Rioolwater afvoer in gebouwentechniek

Tunnel afvalwaterafvoer

Drainage

Gemeentelijke rioolwater systemen

Licht industriële toepassingen

Model Toepasbaar installatie

Tabel 36: Afmetingen

88-2 110JA 0,752,818,33x400VDN65602661650882

88-2 W 110JA 0,75618,21x230VDN65602661650884

88-2 WS 110 0,75618,21x220VDN65602661650886

811-2 120JA 1,1318,33x400VDN65582661658112

811-2 W 120JA 1,18,218,21x230VDN65582661658105

811-2 WS 120 1,18,218,21x220VDN65582661658109

Tabel 37: Materialen

PomphuisJL 1030 / GG20

MotorhuisJL 1030 / GG20

WaaierJL 1030 / GG20

Motoras1.4021 / AISI420

SealsSiC / AL2O3 - Simm

ElastomerenNitril

Kabel10 m [3x12] (1x230V) 10 m [4x12] (3x400V)

Tabel 38: Applicaties

Rioolwater afvoer in gebouwentechniek

Tunnel afvalwaterafvoer

Drainage

Gemeentelijke rioolwater systemen

Licht industriële toepassingen Model Toepasbaar installatie

Tabel 39: Afmetingen

811-2 W 130JA 1,18,218,21x230VDN65562561658106

811-2 WS 130 1,18,218,21x230VDN65562561658110

815-2 130JA 1,53,518,33x400VDN65562561658152

Tabel 40: Materialen

Pomphuis GJL 250

Motorhuis GJL 250

Waaier GJL 250

Motoras 1.4021

Seals SiC/SiC - AL2O3

Elastomeren NBR

Kabel 10 m H07RN8-F7G1.52

Toepasbaar installatieGehele reeks

Tabel 41: Applicaties

Rioolwater afvoer in gebouwentechniek

Tunnel afvalwaterafvoer

Drainage

Gemeentelijke rioolwater systemen

Licht industriële toepassingen

Model P2 [kW] In [A] Ia [A] Un [V]

Tabel 42: Afmetingen

(LxWxH) [mm]

[kg]

913-2 901,33,58203x400VNW5040364x322x470416139190221

913-2 1071,33,58203x400VNW5040364x322x470416139190222

919-2 1201,94,67203x400VNW5040364x322x470426139190223

923-2 1302,35,61203x400VNW5040364x322x470426139190224

Tabel 43: Materialen

Pomphuis GJL 250

Motorhuis GJL 250

Waaier GJL 250

Motoras 1.4021

Seals SiC/SiC - AL2O3

Elastomeren NBR

Kabel 10 m H07RN8-F7G1.52

Toepasbaar installatieGehele reeks

Tabel 44: Applicaties

Rioolwater afvoer in gebouwentechniek

Tunnel afvalwaterafvoer

Drainage

Gemeentelijke rioolwater systemen

Licht industriële toepassingen

Model P2 [kW] In [A] Ia [A] Un [V]

Tabel 45: Afmetingen

1131-2 1303,16,9503x400VNW5040336x254x532526139190225

1131-2 1403,16,9503x400VNW5040336x254x532526139190226

1142-2 1504,29503x400VNW5040336x254x532536139190227

1142-2 1604,29503x400VNW5040336x254x532536139190228

Tabel 46: Materialen

Pomphuis GJL 250

Motorhuis GJL 250

Waaier GJL 250

Motoras 1.4021

Seals SiC/SiC - AL2O3

Elastomeren NBR

Kabel 10 m H07RN8-F7G1.52

Toepasbaar installatieGehele reeks

Tabel 47: Applicaties

Rioolwater afvoer in gebouwentechniek

Tunnel afvalwaterafvoer

Drainage

Gemeentelijke rioolwater systemen

Licht industriële toepassingen

Tabel 48: Afmetingen

128-4 1120,82,917,43x400VNW6565353x265x518496139190234

128-4 1250,82,917,43x400VNW6565353x265x518496139190235

128-4 1350,82,917,43x400VNW6565353x265x518496139190236

128-4 1450,82,917,43x400VNW6565353x265x518496139190237

128-4 1550,82,917,43x400VNW6565353x265x518496139190238

1213-4 1651,33,617,43x400VNW6565353x265x518506139190239

1213-4 1751,33,617,43x400VNW6565353x265x518506139190240

1218-4 1851,84,817,43x400VNW6565353x265x518516139190241

1218-4 1951,84,817,43x400VNW6565353x265x518516139190242

Tabel 49: Materialen

Pomphuis GJL 250

Motorhuis GJL 250

Waaier GJL 250

Motoras 1.4021

Seals SiC/SiC - AL2O3

Elastomeren NBR

Kabel 10 m H07RN8-F7G1.52

Toepasbaar installatieGehele reeks

Tabel 50: Applicaties

Rioolwater afvoer in gebouwentechniek

Tunnel afvalwaterafvoer

Drainage

Gemeentelijke rioolwater systemen

Licht industriële toepassingen

Model P2 [kW] In [A] In [A] Un [V]

Tabel 51: Afmetingen

1331-2 1203,16,9503x400VNW6565367x251x578586139190229

1331-2 1283,16,9503x400VNW6565367x251x578586139190230

1331-2 1363,16,9503x400VNW6565367x251x578596139190231

1342-2 1464,29503x400VNW6565367x251x578596139190232

1342-2 1524,29503x400VNW6565367x251x578606139190233

Tabel 52: Materialen

Pomphuis GJL 250

Motorhuis GJL 250

Waaier GJL 250

Motoras 1.4021

Seals SiC/SiC - AL2O3

Elastomeren NBR

Kabel 10 m H07RN8-F7G1.52

Toepasbaar installatieGehele reeks

Tabel 53: Applicaties

Rioolwater afvoer in gebouwentechniek

Tunnel afvalwaterafvoer

Drainage

Gemeentelijke rioolwater systemen

Licht industriële toepassingen

Model P2 [kW] In [A] Ia [A] Un [V]

Tabel 54: Afmetingen

2419-4 1201,96,1437,53x400VNW8076392x322x582636139190243

2419-4 1351,96,1437,53x400VNW8076392x322x582636139190244

2419-4 1501,96,1437,53x400VNW8076392x322x582636139190245

2426-4 1652,6737,53x400VNW8076392x322x582646139190246

2437-4 1803,79,337,53x400VNW8076392x322x582656139190247

2437-4 1953,79,337,53x400VNW8076392x322x582656139190248

2437-4 2103,79,337,53x400VNW8076392x322x582656139190249

18 (4P)

2.20DRV

Tabel 55: Materialen

Pomphuis EN GJL-250

Motorhuis EN GJL-250

Waaier EN GJL-250

Motoras 1.4021

Seals Ca/Al2O3-SiC/SiC

Elastomeren NBR70

Kabel H07RN-F 4G1.5+2x1

Toepasbaar installatieGehele reeks

Tabel 56: Applicaties

Rioolwater afvoer in gebouwentechniek

Tunnel afvalwaterafvoer

Drainage

Gemeentelijke rioolwater systemen

Licht industriële toepassingen

Tabel 57: Afmetingen

DRVN 1817-4 1401,73,71273x400VDN 100 (8 holes)100433 x 323 x 821726139190574

DRVN 1817-4 1601,73,71273x400VDN 100 (8 holes)100433 x 323 x 821736139190555

DRVN 1817-4 1801,73,71273x400VDN 100 (8 holes)100433 x 323 x 821736139190556

DRVN 1817-4 1901,73,71273x400VDN 100 (8 holes)100433 x 323 x 821746139190575

2.21DRV 25 (4P)

Tabel 58: Materialen

Pomphuis EN GJL-250

Motorhuis EN GJL-250

Waaier EN GJL-250

Motoras 1.4021

Seals Ca/Al2O3-SiC/SiC

Elastomeren NBR70

Kabel H07RN-F 4G1.5+2x1

Toepasbaar installatieGehele reeks

Tabel 59: Applicaties

Rioolwater afvoer in gebouwentechniek

Tunnel afvalwaterafvoer

Drainage

Gemeentelijke rioolwater systemen

Licht industriële toepassingen

Model P2 [kW] In [A] Ia [A] Un [V]

Tabel 60: Afmetingen

DRV 2517-4 1601.73.71273x400VDN 100 (8 holes)100433 x 323 x 821736139190557

DRV 2523-4 1702,35,15383x400VDN 100 (8 holes)100433 x 323 x 821756139190558

DRV 2536-4 1803,67,56453x400VDN 100 (8 holes)100433 x 323 x 821966139190559

DRV 2536-4 1903.67,56453x400VDN 100 (8 holes)100433 x 323 x 821966139190576

OPMERKING

Grotere waaierdiameters op aanvraag.

2.22DRS 3, (2P)

Tabel 61: Materialen

Pomphuis JL 1030 / GG20

Motorhuis JL 1030 / GG20

Waaier JL 1040 / GJL250

Versnijder 1.2080 (K100)

Motoras 1.4021 / AISI420

Seals SiC / SiC - Simm

Elastomeren Nitril

Kabel 10 m [4x12]

Tabel 62: Applicaties

Rioolwater afvoer in gebouwentechniek

Gemeentelijke rioolwater systemen

Diverse afvalwatertoepassingen

Tabel 63: Afmetingen

311-2 W 145JA 1,18,218,21x230VDN5072661663112

311-2 WS 145 1,18,218,21x230VDN5072661663114 315-2 145JA 1,53,518,33x400VDN5072561663115

Model Toepasbaar installatie
2.23DRS 4 (2P)

Tabel 64: Materialen

Pomphuis GJL 250

Motorhuis GJL 250

Waaier GJL 250

Versnijder 1.2080.02 (K100)

Motoras 1.4021

Seals SiC/SiC - AL2O3

Elastomeren NBR

Kabel 10 m H07RN8-F7G1.52

Toepasbaar installatieGehele reeks

Tabel 65: Applicaties

Rioolwater afvoer in gebouwentechniek

Gemeentelijke rioolwater systemen

Diverse afvalwatertoepassingen

Tabel 66: Afmetingen

Model P2 [kW] In [A] Ia [A] Un [V] Aansluiting Doorlaat [mm] Maatvoering (LxWxH) [mm] Massa [kg] Artikelnummer

413-2 1201,33,58203x400VNW506322x250x4704761664132

413-2 1401,33,58203x400VNW506322x250x4704761664133

419-2 1601,94,67203x400VNW506322x250x4704761664192

2.24DRS 6 (2P)

Tabel 67: Materialen

Pomphuis GJL 250

Motorhuis GJL 250

Waaier GJL 250

Versnijder 1.2080.02 (K100)

Motoras 1.4021

Seals SiC/SiC - AL2O3

Elastomeren NBR

Kabel 10 m H07RN8-F7G1.52

Toepasbaar installatieGehele reeks

Tabel 68: Applicaties

Rioolwater afvoer in gebouwentechniek

Gemeentelijke rioolwater systemen

Diverse afvalwatertoepassingen

Tabel 69: Afmetingen

Model P2 [kW] In [A] Ia [A] Un [V] Aansluiting Doorlaat [mm] Maatvoering (LxWxH) [mm] Massa [kg]

Artikelnummer

631-2 1753,16,9503x400VNW506336x254x5325461666312

642-2 1904,29503x400VNW506336x254x5325461666313

3Niveaubesturing set (stap 2)

3.1Algemeen

De vuil-en rioolwaterinstallaties worden standaard uitgevoerd met een hydrostatische drukopnemer om het niveau in put te meten. Een vlotter wordt gebruikt voor een extra hoogwateralarm.

3.2Hydrostatische drukopnemer

Hydrostatische drukopnemer

Bereik [4-20mA]0-300cmWk0-150cmWk

Materiaal RVS huis PA Kap PUR Kabel RVS huis PA Kap PUR Kabel

Max. medium temperatuur [°C] -10 .. 50 °C-10 .. 50 °C

Voedingspanning [VDC] 10...30 10...30

Signaal 4-20mA [U-] Groen Groen

Art.nr.

62073501Niveau besturingset bereik 0-3 mtr (standaard)

62073502Niveau besturingset bereik 0-1.5 mtr (optie)

Tabel 70: Inhoud niveaubesturingset

Artikel

Hydrostatische drukopnemer

Ophangwig ten behoeve van hydrostatische drukopnemer

Vlotterschakelaar

Ballastgewicht (2,1 kg) ten behoeve van vlotterschakelaar

Ketting AISI316 2000mm

Harpsluiting AISI316

Ankerhaak M10 AISI304

Patentplug M10 MS

Kabelbinder 2x

Voeding [U+]Bruin Bruin

Aarde Grijs Grijs

Kabellengte [m]15 10m

DrukklassePN2,5 PN2,5 IP 68 68

Massa opnemer = 180 gr kabel = 80 gr/ m opnemer = 180 gr kabel = 80 gr / m

3.3Vlotterschakelaar

Vlotterschakelaar

Bereik aan/uit 25 graden 25 graden 25 graden

Materiaal Polypropylene huis / Neopren kabel

Polypropylene huis / Neopren kabel

Polypropylene huis / Neopren kabel

Max. medium temperatuur [°C]50 °C 50 °C 50 °C

Voedingspanning [VAC]250 50/60Hz 250 50/60Hz 250 50/60Hz

Amperage schakel 8A inductive load8A inductive load8A inductive load

Kabellengte [m] 5 10 20

Massa kabel

Massa contragewicht

gr / m

gr

gr / m

gr

gr / m

gr

4Besturingskast (stap 3)

4.1DP Levelcontrol II

Alle besturingkasten zijn uitgevoerd met een DP

Levelcontrol II (DPLCII) niveaubesturing. Dit is een niveau-afhankelijk toestel voor pompbesturing en bewaking met display voor een of twee pompen. De volgende functies zijn mogelijk:

4.1.1Werkbereik

De reeks heeft het volgende werkbereik:

DP Levelcontrol II Binnenwand montage (biw)

Spanning1

1~230VAC +10% -15%, 3~400VAC +10% -15%

Frequentie 50 / 60 Hz ± 2%

Nom. Isloatiespanning500 VAC

Aantal pompen Maximaal 2

In per motor 1 tot 10A max.

Beschermingsklasse IP54

Materiaal omkastingPolycarbonaat

Omgevingstemperatuur-10 tot 50 °C

Afmeting h x b x d [mm]400 x 281 x 135

1.Bij 3~400V is geen nul benodigd

Buitenwandmontage (buw) Ingraafsokkel (is)

Glasvezel versterkt polyesterRVS 304

600 x 600 x 200

1200 x 435 x 265

Figuur 2: DPLCII BIW

4.1.2Technische gegevens in/uitgangen

In/uitgang specificatie

Standaard (x) optie (o)

4 x Digitaal (Vlotterschakelaar) 12..25.2 VDC x

Analoog 2 of 3 draads, 4-20mA. Ingangsweerstand ≤ 300 Ω x

Motorbeveiliging (bimetaal) 2 per pomp, 24 VDC x

Externe alarm ingang 24 VDC x

Bevesting op afstand ingang 24 VDC x Accu 24 VDC, Gebruiksduur ca. 10 uur met ingebouwde piëzo zoemero

4.1.3Functies van de DP Levelcontrol II

Functie 1 pomp 2 pompen

Legen van een vuil- of rioolwaterput xx

Reserve pomp x

Pompwissel na iedere start x

Pieklast schakeling x

Looptijdbegrenzing xx

Uit via nalooptijd xx

Uit via niveau xx

Proefdraaien na een stilstand xx

Alarmgeheugen xx

Weergave en bediening

Display met 7 segmenten xx

Weergaven van de waterstand xx

Bedrijf-, storing-, pomp draait- per pomp via meerkleurige LED xx

Verzamelstoring via LED xx

Hoogwater via LED xx

Netspanning xx

Bedrijfsuren per pomp xx

Pompstarts per pomp xx

Detectie draaiveld xx

Fase bewaking xx

Wijzigen schakelniveaus xx

Ingebouwde onderdelen

H-0-A schakelaar per pomp xx

Direct start (DOL) xx

Motorbeveiliging

Motorbeveilingschakelaar xx

Ingang motortemperatuur waarschuwing xx

Ingang motortemperatuur alarm xx

Pomp

Aansluiting voor 2 bimetalen xx

Inbouwopties

Accu oo

Meldmodule met Modbus, Analoge uitgang en 6 digitale contacten oo

Alarminstallatie

1 vrije alarmingang xx

1 digitale ingang hoogwateralarm xx

Potentiaalvrij wisselcontact xx

Piëzo zoemer 85 dB(A) xx

In en uitgangen

Ingangen voor vlotterschakelaars (4)

4-20mA analoge ingang

Bevestiging op afstand

12 VDC aansluiting voor claxon, lamp etc.

Functie
1 pomp 2 pompen

4.1.4Aansluitklemmen

Item Uitleg

1Aansluiting Pomp 1

2Aansluiting Pomp 2

3Netaansluiting

4Vochtigheidsbewaking pomp 1 en pomp 2

52 x Bimetalen tbv pomp1 en pomp 2

6Vrijgave

7Potentiaalvrij wissel alarm contact

8Aansluitingen niveau sensoren (vlotter of levelsensor)

9Aansluiting hoogwatervlotter

10Aansluiting vlotter Fekaunit C

11Aansluiting alarm 12 VDC

12Ingang extern alarm

13Extern reset

14Hydrostatische levelsensor 4-20mA

15Hoogwatervlotter

16Aansluiting accu (optie)

4.1.5Technische specificatie meldmodule (optie)

Item Waarde

Artikelnummer 77870873

Aansluitspanning 9-30 VDC (via DPLCII)

6 x Contacten, potentiaal vrije wissel contacten

30 V, 1 A

Veldbus Modbus-RTU, RS485, 38400bit/s, 8-even-1

Analoog uitgang 0/4-20 mA

Massa 0.3 kg

Tabel 71: Vrij programmeerbare meldingen

Melding

Standaard contact

Thermische fout pomp 1 Wisselcontact 1

Thermische fout pomp 2 Wisselcontact 2

Motortemperatuur 1 te hoog

Motortemperatuur 2 te hoog

Geen spanning Mist een fase

Waterdetectie motor 1

Waterdetectie motor 2

Hoogwater alarm Wisselcontact 3

Sensor fout Wisselcontact 4

Fase volgorde fout

Te lage spanning (-15%)

Te hoge spanning (+15%)

Lege accu

Onderhoud gewenst

Pomp 1 geblokkeerd kan niet worden gestart

Pomp 2 geblokkeerd kan niet worden gestart

Melding

Pomp 1 beschikbaar

Pomp 2 beschikbaar

Standaard contact

Pomp 1 in bedrijf Wisselcontact 5

Pomp 2 in bedrijf Wisselcontact 6

H-0-A schakelaar pomp 1 op “auto”

H-0-A schakelaar pomp 2 op “auto”

Proefdraaien pomp 1

Proefdraaien pomp 2

Tabel 72: Analoge uitgang

Signaal (0/4-20mA) Standaard

Niveau x

Voedingsspanning

Totaal In1

1.alleen in combinatie met Inmeetmodules (optie)

Tabel 73: Modbus RTU

Signaal RS485

Niveau (analoog)

Niveau (digitaal)

Spanning

Accu spanning Bedrijsuren unit

Bedrijfsuren pomp 1 en 2

Aantal starts pomp 1 en 2

In pomp 1 en 21

Vermogen pomp 1 en 21

Powerfactor pomp 1 en 21

Alle actieve meldingen

Oude meldingen

1.alleen in combinatie met Inmeetmodules (optie)

4.1.6Technische specificatie AccuPack (optie)

Accupack voor netonafhankelijke voeding van:

• de electronica

• het sensor systeem

• de alarminstallatie

Item Waarde

Artikelnummer 77870872

Spanning 12 VDC (2x6VDC)

Vermogen 1,3 Ah

Gebruiksduur

Laadtijd

Ca. 10 uur bij voeding van de ingebouwde piëzozoemer 85 dB(A), de electronica en het sensorsysteem

Ca. 4 uur bij voeding van een externe alarminstallatie, zoals claxon, combialarm en flitslamp

Ca. 11 uur (bij volledige ontlading van de accu)

Massa 0.8 kg

Figuur 3: (1) AccuPack

4.1.7DP Messenger II

4: DP Messenger II

Met de uiterst compacte DP-Messenger alarmmelder beheert u via het mobiele telefoonnet uw machines en installaties op afstand. Door het activeren van de 2 ingangen stuurt de alarmmelder bij storing een smsen/of e-mailbericht. Met de DP-Messenger heeft u continu zicht op de status van technische installaties en grijpt u op elk gewenst moment in. Door de standaard ingebouwde noodvoeding stuurt de DPMessenger bij spanningsuitval alsnog een alarmbericht.

Tabel 74: Technische specificatie:

Item Waarde

Artikelnummer 77601110

BeschermingsgraadIP55

Afmeting HxBxD [mm]175x175x150

Afmeting HxBxD [mm] met antenne 270x175x150

Aansluitspanning [V]1x230 V

Frequentie [Hz] 50Hz

Ingebouwde noodvoedingSupercap

Antenne Ja

Ingangen digitaal 2x

Uitgangen digitaal2x NO/NC 100VAC/DC max 1A

Bevestigen berichtdoor terug bellen of smsen

Mobile netwerk GSM/GPRS/EDGE 850/900/ 1800/1900 MHz

Aantal oproep nummers8 per ingang

Figuur

4.2DP Levelcontrol II Binnenwand montage (BIW)

4.2.1Maten DPLCII BIW

Tabel 75: Algemene waarden

Kast type Binnenwand montage

Niveau besturingHydrostatischedrukopnemer met 1 hoogwatervlotter

Pompstart DOL

IsolatieklasseIP54

Tabel 76: Serie DPLCII BIW

9041121116DKVO

1.voor een maximale kabellengte van 25

Figuur 5: BIW hxbxd = 400x281x135

4.3DP Levelcontrol II Buitenwand montage (BUW)

4.3.1Maten DPLCII BUW

Tabel 77: Algemene waarden

Kast type Buitenwand montage

Niveau besturingHydrostatischedrukopnemer met 1 hoogwatervlotter

Pompstart DOL

IsolatieklasseIP54

Figuur 6: BUW hxbxd = 600x600x200

Tabel 78: Serie DPLCII BUW

9041121316DKVO

9041121325DKVO

9041121340DKVO

1.voor een

4.4DP Levelcontrol II Ingraafsokkel (IS)

4.4.1Maten DPLCII IS Tabel 79: Algemene waarden

Kast type Ingraafsokkel

Niveau besturingHydrostatischedrukopnemer met 1 hoogwatervlotter

Pompstart DOL

IsolatieklasseIP54

Figuur 7: IS hxbxd = 1200x435x265

Tabel 80: Serie DPLCII IS

5Putten HDPE en Beton (stap 4)

5.1Introductie

5.1.1Afkortingen

Aanduiding Betekenis

KL Kamlock koppeling

VBVoetbocht koppeling

SNDroge snel koppeling

LT Level transmitter (4-20mA)

IS Ingraafsokkel

BIWBinnenwandmontage

BUWBuitenwandmontage

DPLCDuijvelaar Pompen Level Control

LEDlight-emitting diode

DVVDuijvelaar Vuilwater Vortexwaaier

DRV(N)Duijvelaar Rioolwater Vortexwaaier

DRSDuijvelaar Rioolwater Snijder

BLBBeloopbaar deksel

PVCPolyvinylchloride

GGGrijs gietijzer

PEpolyetheen

HDPEhogedichtheidpolyetheen

RVSroest vast staal

SBRStyreen-butadieenrubber

POMPolyoxymethyleen

Bi Binnendraad

Bu Buitendraad

SimmSimmering afdichting

5.1.2Basis materialen

Tabel 81: Installatie onderdelen

Item Vuilwater Rioolwater

SlangklemmenAISI 304

HijskettingMet overnameogen RVS316-A4 320kg gecertificeerd NEN-EN 818-1

HarpsluitingRVS 316 A4 WLL 630kg (8mm), 400kg (6mm) gecertificeerd NEN-EN 13889

KeerklepRubber/GGGG

Slang PVC gewapendSBR gewapend

KL kop. AISI 316

VB 2” AISI 316

VB> 2” GG

SN kop. 2”AISI 316

SN kop. DN80GG

5.1.3Specificatie HDPE put Tabel 82: Installatie onderdelen

Item

Materiaal hogedichtheidpolyetheen

Max. grondwaterstandMax 0,5 m onder maaiveld

Keurmerk Komo keur

Levensduur Mimimaal 50 Jr

5.1.4Specificatie Beton put Tabel 83: Installatie onderdelen

Item

Materiaal Beton C35/45

Milleu klasse XA3

max. grondwaterstandMax 0,5 m onder maaiveld

Keurmerk Komo keur / BRL 9202

Levensduur Mimimaal 50 Jr

5.1.5Specificatie deksels Tabel 84: Installatie onderdelen

Item

BLB PE Beloopbaar deksel, PE 125 kg max

BLB Alu-luikBeloopbaar deksel, Alu 125 kg max

BLB gegalvanizeerdBeloopbaar deksel, thermisch verzinkt. Belastbaar 25 kN (voetgangers en brom-fietsers)

ZV

Zwaarverkeers deksel Klasse D400 kN

5.2HDPE Put met zwaar verkeer deksel (stap 4a)

5.2.1Inbouwvoorbeeld RW1 met voetbochtkoppeling

8: Inbouwvoorbeeld RW1 VB gefit HDPE

Figuur

Het inbouwvoorbeeld is de tekening van de complete put. Onderstaand artikelnummer is alleen de HDPE put met leidingset. De pomp, niveau besturing, schakelkast zijn in de vorige hoofdstukken behandeld. De deksel komt in paragraaf 5.2.6. Deze HDPE putten zijn geschikt voor een zwaar verkeer deksel.

Tabel 85: Artikelnummer

Art. nummer 62073303

PersleidingG2

KeerklepG2

Volume500 l

Type bij behorende deksel Zwaarverkeer

DxH 800x1300 mm

Toevoer

Aantal 1

Type Spie

MateriaalHDPE

Maat 160 mm

Afvoer

Aantal 1

Type Knel

Maat 75 mm

Figuur 9: RW1 VB gefit HDPE compleet

Figuur 10: 20160063

5.2.2Inbouwvoorbeeld RW2 met voetbochtkoppeling

11: Inbouwvoorbeeld RW2 VB gefit HDPE

Figuur
MAAIVELD
SECTION

Het inbouwvoorbeeld is de tekening van de complete put. Onderstaand artikelnummer is alleen de HDPE put met de leidingset. De pompen, niveau besturing, schakelkast zijn in de vorige hoofdstukken geselecteerd. De deksel komt in paragraaf 5.2.6. Deze HDPE put is geschikt voor een zwaar verkeer deksel.

Tabel 86: Artikelnummer

Art. nummer 62073304

PersleidingG2’ Keerklep2 x G2

Volume700 l

Type bij behorende deksel Zwaarverkeer

DxH 1000x1300 mm

Toevoer

Aantal 1

Type Spie

MateriaalHDPE

Maat 160 mm

Afvoer

Aantal 1

Type Knel

Maat 75 mm

Figuur 12: RW2 VB gefit HDPE compleet

Figuur 13: 62073304

5.2.3Inbouwvoorbeeld RW1 met snelkoppeling

14: Inbouwvoorbeeld RW1 SN gefit HDPE

Figuur

Het inbouwvoorbeeld is de tekening van de complete put. Onderstaand artikelnummer is alleen de HDPE put met leidingset. De pomp, niveau besturing, schakelkast zijn in de vorige hoofdstukken behandeld. De deksel komt in paragraaf 5.2.6.Deze HDPE putten zijn geschikt voor een zwaar verkeer deksel.

Tabel 87: Artikelnummer

Art. nummer 62073301

PersleidingG2

KeerklepG2

Volume500 l

Type bij behorende deksel Zwaarverkeer

DxH 800x1300 mm

Toevoer

Aantal 1

Type Spie

MateriaalHDPE

Maat 160 mm

Afvoer

Aantal 1

Type Knel

Maat 75 mm

Figuur 15: RW1 SN gefit HDPE compleet

Figuur 16: 62073301

5.2.4Inbouwvoorbeeld RW2 met snelkoppeling

17: Inbouwvoorbeeld RW2 SN gefit HDPE

Figuur

Het inbouwvoorbeeld is de tekening van de complete put. Onderstaand artikelnummer is alleen de HDPE put met de leidingset. De pompen, niveau besturing, schakelkast zijn in de vorige hoofdstukken geselecteerd. De deksel komt in paragraaf 5.2.6. Deze HDPE put is geschikt voor een zwaar verkeer deksel.

Tabel 88: Artikelnummer

Art. nummer 62073302

PersleidingG2’ Keerklep2 x G2

Volume700 l

Type bij behorende deksel Zwaarverkeer

DxH 1000x1300 mm

Toevoer

Aantal 1

Type Spie

MateriaalHDPE

Maat 160 mm

Afvoer

Aantal 1

Type Knel

Maat 75 mm

Figuur 18: RW2 SN gefit HDPE compleet

Figuur 19: 62073302

5.2.5Koppeling kit

Tabel 89: Koppeling Kit voetbochtkoppeling (per pomp)

Art. nummer Voor pomp type

62073101 DRV6/9, DRS3/4/6

Figuur 20: 62073101

Tabel 90: Koppeling Kit snelkoppeling (per pomp)

Art. nummer Voor pomp type

62073203 DRV6, DRS3

62073204 DRV9, DRS4/6

62073224 DVV7

AISI316 / Gietijzer

AISI316 / Gietijzer

AISI316 / Gietijzer

Figuur 21: 62073204

5.2.6Zwaarverkeer deksel ten behoeve van HDPE put

Tabel 91: Artikelnummers tbv RW1 HDPE put

Art. nummer Item

62073401 Afdekplaat met gat 630 mm 900x900x200 beton 64060037 Zwaarverkeer deksel 740x520x170 beton/gietijzer

Figuur 22: 62073401 + 64060037

Art. nummer Item

Tabel 92: Artikelnummers tbv RW2 HDPE put

Materiaal 62073402 Afdekplaat met gat 735 mm 1100x1100x200 beton 64060044 Zwaarverkeer deksel 870x700x170 beton/gietijzer

Figuur 23: 62073402 + 64060044

5.3HDPE Put met beloopbaar deksel (stap 4b)

5.3.1Inbouwvoorbeeld RW1 met voetbochtkoppeling

24: Inbouwvoorbeeld RW1 VB gefit HDPE

Figuur

Het inbouwvoorbeeld is de tekening van de complete put. Onderstaand artikelnummer is alleen de HDPE put met leidingset. De pomp, niveau besturing, schakelkast zijn in de vorige hoofdstukken behandeld. De deksel komt in paragraaf 5.3.6. Deze HDPE putten zijn geschikt voor een beloopbaar deksel.

Tabel 93: Artikelnummer

Art. nummer 62073307

PersleidingG2

KeerklepG2

Volume500 l

Type bij behorende deksel Beloopbaar

DxH 800x1500 mm

Toevoer

Aantal 1

Type Spie

MateriaalHDPE

Maat 160 mm

Afvoer

Aantal 1

Type Knel

Maat 75 mm

26: 20160688

Figuur 25: RW1 VB gefit HDPE compleet
Figuur

5.3.2Inbouwvoorbeeld RW2 met voetbochtkoppeling

Figuur 27: Inbouwvoorbeeld RW2 VB gefit HDPE

Het inbouwvoorbeeld is de tekening van de complete put. Onderstaand artikelnummer is alleen de HDPE put met de leidingset. De pompen, niveau besturing, schakelkast zijn in de vorige hoofdstukken geselecteerd. De deksel komt in paragraaf 5.3.6. Deze HDPE put is geschikt voor een beloopbaar deksel.

Tabel 94: Artikelnummer

Art. nummer 62073308

PersleidingG2’ Keerklep2 x G2

Volume700 l

Type bij behorende deksel Beloopbaar

DxH 1000x1500 mm

Toevoer

Aantal 1

Type Spie

MateriaalHDPE

Maat 160 mm

Afvoer

Aantal 1

Type Knel

Maat 75 mm

Figuur 28: RW2 VB gefit HDPE compleet

Figuur 29: 20160689

5.3.3Inbouwvoorbeeld RW1 met snelkoppeling

30: Inbouwvoorbeeld RW1 SN gefit HDPE

Figuur

Het inbouwvoorbeeld is de tekening van de complete put. Onderstaand artikelnummer is alleen de HDPE put met leidingset. De pomp, niveau besturing, schakelkast zijn in de vorige hoofdstukken behandeld. De deksel komt in paragraaf 5.3.6. Deze HDPE putten zijn geschikt voor een beloopbaar deksel.

Tabel 95: Artikelnummer

Art. nummer 62073305

PersleidingG2

KeerklepG2

Volume500 l

Type bij behorende deksel Beloopbaar

DxH 800x1500 mm

Toevoer

Aantal 1

Type Spie

MateriaalHDPE

Maat 160 mm

Afvoer

Aantal 1

Type Knel

Maat 75 mm

Figuur 31: RW1 SN gefit HDPE compleet
Figuur 32: 20160690

5.3.4Inbouwvoorbeeld RW2 met snelkoppeling

33: Inbouwvoorbeeld RW2 SN gefit HDPE

Figuur

Het inbouwvoorbeeld is de tekening van de complete put. Onderstaand artikelnummer is alleen de HDPE put met de leidingset. De pompen, niveau besturing, schakelkast zijn in de vorige hoofdstukken geselecteerd. De deksel komt in paragraaf 5.3.6. Deze HDPE put is geschikt voor een beloopbaar deksel.

Tabel 96: Artikelnummer

Art. nummer 62073306

PersleidingG2’ Keerklep2 x G2

Volume700 l

Type bij behorende deksel Beloopbaar

DxH 1000x1500 mm

Toevoer

Aantal 1

Type Spie

MateriaalHDPE

Maat 160 mm

Afvoer

Aantal 1

Type Knel

Maat 75 mm

34: RW2 SN gefit HDPE compleet

Figuur 35: 20160691

Figuur

5.3.5Koppeling kit

Tabel 97: Koppeling Kit voetbochtkoppeling (per pomp)

Art. nummer Voor pomp type

62073101 DRV6/9, DRS3/4/6

Figuur 36: 62073101

Tabel 98: Koppeling Kit snelkoppeling (per pomp)

Art. nummer Voor pomp type

62073203 DRV6, DRS3

62073204 DRV9, DRS4/6

62073224 DVV7

AISI316 / Gietijzer

AISI316 / Gietijzer

AISI316 / Gietijzer

Figuur 37: 62073204

5.3.6Beloopbaar deksel ten behoeve van HDPE put

Tabel 99: Putluik met valrooster tbv RW1 HDPE put

Art. nummer Item

62073401

Afdekplaat met gat 630 mm 900x900x200 beton

62073403 Putluik beloopbaar met valrooster600x600 AISI304/316

Figuur 38: 62073401 + 62073403

Tabel 100: Putluik met valrooster tbv RW2 HDPE put

Art. nummer Item

62073402

Afdekplaat met gat 735 mm 1100x1100x200 beton

62073404 Putluik beloopbaar met valrooster700x700 AISI304/316

Figuur 39: 62073402 + 62073404

Tabel 101: PE deksel tbv RW1 + RW2 HDPE put

40: 62073406 + 62073407

Figuur

5.4Beton put (stap 4c)

5.4.1Standaard beton put uit voorraad 1000x1000

Figuur 41: 20221006

Tabel 102: Betonput 1000x1000

ZIE DETAIL B

5.4.2Standaard beton put 800x800 (inw)

Figuur 42: 64410640

Tabel 103: Betonput 800x800

Figuur 43: 64401040

Tabel 104: Afdekplaat 1100x1100

GEWICHT BETON PLAAT MET BLB DEKSEL: 325 kg

ART.NR. 64401040 4x KOGELKOPANKER Art. nummer

5.4.3Standaard beton put 1000x1000 (inw)

Figuur 44: 64432000

Tabel 105: Betonput 1000x1000

Figuur 45: 64401085

Tabel 106: Afdekplaat 1300x1300

64401055

GEWICHT BETON PLAAT MET BLB DEKSEL: 430 kg

64401085

5.4.4Standaard beton put 1250x1250 (inw)

Figuur 46: 64452000

Tabel 107: Betonput 1250x1250

GEWICHT BETON PLAAT MET BLB DEKSEL: 1030 kg ART.NR. 64402085

Figuur 47: 64402085

Tabel 108: Afdekplaat 1550x1550

KOGELKOPANKER

64402313 1550x1550x200/280Zwaarverkeer

64402729 1550x1550x200/280Zwaarverkeer

(ex. deksel)

(ex. deksel)

(ex. deksel)

5.4.5Standaard beton put 1500x1500 (inw)

Figuur 48: 64492000

Tabel 109: Betonput 1500x1500

Afvoer
Massa [kg]

Figuur 49: 64403315

Tabel 110: Afdekplaat 1800x1800

BETON

1515 (ex. deksel)

1432 (ex. deksel)

5.4.6Inbouwvoorbeeld appendage set RW1 met voetbochtkoppeling (stap 5)

(SPARING)

300600 (SPARING)

Figuur 50: Inbouwvoorbeeld RW1 VB gefit

SECTION
SECTION

Het inbouwvoorbeeld is de tekening van de complete put. Onderstaand artikelnummer is alleen de leidingset. De pomp, niveau besturing, schakelkast zijn in de vorige hoofdstukken behandeld. De beton put en bovenplaat met deksel staan verder op in dit hoofdstuk.

Art. nummer Tbv pomp type App. maat Pers aansluiting 62073207DRV6/9 DRS3/4/6G21 x G2

Figuur 51: RW1 VB gefit compleet
Tabel 111: 1 pomps voetbochtkoppeling kit
Figuur 52: 62073207

5.4.7Inbouwvoorbeeld appendage set RW2 met voetbochtkoppeling (stap 5)

53: Inbouwvoorbeeld RW2 VB gefit

Figuur

Het inbouwvoorbeeld is de tekening van de complete put. Onderstaand artikelnummer is alleen de leidingset. De pomp, niveau besturing, schakelkast zijn in de vorige hoofdstukken behandeld. De beton put en bovenplaat met deksel staan verder op in dit hoofdstuk.

Art. nummer Tbv pomp type App. maat Pers aansluiting 62073208DRV6/9 DRS3/4/6G21 x NW80

Figuur 54: RW2 VB gefit compleet
Tabel 112: 2 pomps voetbochtkoppeling kit
Figuur 55: 62073208

5.4.8Inbouwvoorbeeld appendage set RW1 met voetbochtkoppeling (stap 5)

56: Inbouwvoorbeeld RW1 VB geflensd

Figuur

Het inbouwvoorbeeld is de tekening van de complete put. Onderstaand artikelnummer is alleen de leidingset. De pomp, niveau besturing, schakelkast zijn in de vorige hoofdstukken behandeld. De beton put en bovenplaat met deksel staan verder op in dit hoofdstuk.

Art. nummer Tbv pomp type App. maat Pers aansluiting

62073209DRV8/12/13NW651 x NW80

62073211DRV24NW801 x NW80

62073213DRV27NW1001 x NW100

Figuur 57: RW1 VB geflensd compleet
Tabel 113: 1 pomp voetbochtkoppeling kit
Figuur 58: 62073209+62073211+62073213

5.4.9Inbouwvoorbeeld appendage set RW2 met voetbochtkoppeling 2 x NW80/NW65 (stap 5)

Figuur 59: Inbouwvoorbeeld RW2 VB geflensd

Het inbouwvoorbeeld is de tekening van de complete put. Onderstaand artikelnummer is alleen de leidingset. De pomp, niveau besturing, schakelkast zijn in de vorige hoofdstukken behandeld. De beton put en bovenplaat met deksel staan verder op in dit hoofdstuk.

Art. nummer Tbv pomp type App. maat Pers aansluiting

62073210DRV8/12/13NW652 x NW80

62073212DRV24 NW802 x NW80

Figuur 60: RW2 VB gefit compleet
Tabel 114: 2 pomps voetbochtkoppeling kit
Figuur 61: 62073210+62073212

5.4.10Inbouwvoorbeeld appendage set RW2 met voetbochtkoppeling 2 x NW80/100 (stap 5)

Figuur 62: Inbouwvoorbeeld RW2 VB geflensd

Het inbouwvoorbeeld is de tekening van de complete put. Onderstaand artikelnummer is alleen de leidingset. De pomp, niveau besturing, schakelkast zijn in de vorige hoofdstukken behandeld. De beton put en bovenplaat met deksel staan verder op in dit hoofdstuk.

Art. nummer Tbv pomp type App. maat Pers aansluiting

62073212DRV24 NW802 x NW80

62073214DRV27 NW1002 x NW100

Figuur 63: RW2 VB gefit compleet
Tabel 115: 2 pomps voetbochtkoppeling kit
Figuur 64: 62073214

5.4.11Inbouwvoorbeeld appendage set RW1 met droge snelkoppeling G2 (stap 5)

65: Inbouwvoorbeeld RW1 SN gefit

Figuur

Het inbouwvoorbeeld is de tekening van de complete put. Onderstaand artikelnummer is alleen de leidingset. De pomp, niveau besturing, schakelkast zijn in de vorige hoofdstukken behandeld. De beton put en bovenplaat met deksel staan aan het begin van dit hoofdstuk.

116: 1 pomps droge snelkoppeling kit

Art. nummer Tbv pomp type App. maat Pers aansluiting

62073215DRV6, DRS3G21 x G 2”

62073217DRV9/11, DRS4/6G21 x G 2” 62073227DVV7 G21 x G 2”

Figuur 66: RW1 SN gefit compleet
Tabel
Figuur 67: 62073217

5.4.12Inbouwvoorbeeld appendage set RW2 met droge snelkoppeling G2 (stap 5)

68: Inbouwvoorbeeld RW2 SN gefit

Figuur

Het inbouwvoorbeeld is de tekening van de complete put. Onderstaand artikelnummer is alleen de leidingset. De pomp, niveau besturing, schakelkast zijn in de vorige hoofdstukken behandeld. De beton put en bovenplaat met deksel staan aan het begin van dit hoofdstuk.

Art. nummer Tbv pomp type App. maat Pers aansluiting

62073216DRV6, DRS3G21 x NW80

62073218DRV9/11, DRS4/6G21 x NW80

62073228DVV7 G21 x NW80

Figuur 69: RW2 SN gefit compleet
Tabel 117: 2 pomps droge snelkoppeling kit
Figuur 70: 62073216

5.4.13Inbouwvoorbeeld appendage set RW1 met droge snelkoppeling NW80 (stap 5)

Figuur 71: Inbouwvoorbeeld RW1 SN geflensd

Het inbouwvoorbeeld is de tekening van de complete put. Onderstaand artikelnummer is alleen de leidingset. De pomp, niveau besturing, schakelkast zijn in de vorige hoofdstukken behandeld. De beton put en bovenplaat met deksel staan aan het begin van dit hoofdstuk.

Art. nummer Tbv pomp type App. maat Pers aansluiting

62073219DRV8 NW801 x NW80

62073221DRV12/13NW801 x NW80

Figuur 72: RW1 SN geflensd compleet
Tabel 118: 1 pomps droge snelkoppeling kit
Figuur 73: 62073221

5.4.14Inbouwvoorbeeld appendage set RW2 met droge snelkoppeling NW80 (stap 5)

GEVEN

74: Inbouwvoorbeeld RW2 SN geflensd

Figuur

Het inbouwvoorbeeld is de tekening van de complete put. Onderstaand artikelnummer is alleen de leidingset. De pomp, niveau besturing, schakelkast zijn in de vorige hoofdstukken behandeld. De beton put en bovenplaat met deksel staan aan het begin van dit hoofdstuk.

Art. nummer Tbv pomp type App. maat Pers aansluiting

62073220DRV8 NW802 x NW80

62073222DRV12/13NW802 x NW80

Figuur 75: RW2 SN geflensd compleet
Tabel 119: 2 pomps droge snelkoppeling kit
Figuur 76: 62073222

5.4.15Optie lijst 3 meter put ipv 2 meter

Tabel 120: OV nummers tbv aanpassing put diepte naar 3 meter

Art. nummer Aantal pompen Tbv type pomp

OV100224061 Voetbocht G2

OV100224071 Voetbocht NW65

OV100224081 Voetbocht NW80

OV100224091 Voetbocht NW100

OV100224152 Voetbocht G2

OV100224162 Voetbocht NW65

OV100224172 Voetbocht NW80

OV100224182 Voetbocht NW100

5.5Onderdelen bouwkundige put (bestaand)

5.5.1Appendage sets put (stap 5)

Tabel 121: 1 pomps Kamlockkoppeling kit

62073225DVV2 G21 x G2

62073241DVV7 G21 x G2

Tabel 122: 2 pomps Kamlockkoppeling kit

62073226DVV2 G22 x G2

62073242DVV7 G22 x G2

77: 62073241 - 20190324

78: 62073242 - 20190325

Figuur
Figuur

Tabel 123: 1 pomps voetbochtkoppeling kit

Art. nummer Tbv pomp type App. maat Pers aansluiting

62073207DRV6/9 DRS3/4/6G21 x G2

Figuur 79: 62073207

Tabel 124: 2 pomps voetbochtkoppeling kit

Art. nummer Tbv pomp type App. maat Pers aansluiting

62073208DRV6/9 DRS3/4/6G21 x NW80

Figuur 80: 62073208

Tabel 125: 1 pomp voetbochtkoppeling kit

Art. nummer Tbv pomp type App. maat Pers aansluiting

62073209DRV8/12/13NW651 x NW80

62073211DRV24NW801 x NW80

62073213DRV27NW1001 x NW100

Tabel 126: 2 pomps voetbochtkoppeling kit

Art. nummer Tbv pomp type App. maat Pers aansluiting

62073210DRV8/12/13NW652 x NW80

62073212DRV24 NW802 x NW80

62073214DRV27 NW1002 x NW100

Figuur 81: 62073209+62073211+62073213

Figuur 82: 62073210+62073212

Tabel 127: 1 pomps droge snelkoppeling kit

Art. nummer Tbv pomp type App. maat Pers aansluiting

62073215DRV6, DRS3G21 x G 2”

62073217DRV9/11, DRS4/6G21 x G 2”

62073227DVV7 G21 x G 2”

Tabel 128: 2 pomps droge snelkoppeling kit

Art. nummer Tbv pomp type App. maat Pers aansluiting

62073216DRV6, DRS3G21 x NW80

62073218DRV9/11, DRS4/6G21 x NW80

62073228DVV7 G21 x NW80

Figuur 83: 62073217

Figuur 84: 62073216

Tabel 129: 1 pomps droge snelkoppeling kit

Art. nummer Tbv pomp type App. maat Pers aansluiting

62073219DRV8 NW801 x NW80

62073221DRV12/13NW801 x NW80

Figuur 85: 62073221

Tabel 130: 2 pomps droge snelkoppeling kit

Art. nummer Tbv pomp type App. maat Pers aansluiting

62073220DRV8 NW802 x NW80

62073222DRV12/13NW802 x NW80

Figuur 86: 62073222

5.5.2Instortdelen sets

Instortdelen sets zijn sets bestaande een beloopbaar deksel en een muurdoorvoerstuk om op locatie te worden ingestort in het beton. Deze set is inclusief bouten, moeren, ringen en flenspakkingen

Tabel 131: Artikelnummer instortdelen

64065080500 + broekstuk NW80/NW100GGG40500x800

64065100500 + broekstuk NW100/NW150GGG40500x800

64068080400 + broekstuk NW80/NW100GGG40800x800

64068100500 + broekstuk

64068150500 + broekstuk

5.5.3Deksels

NW100/NW150GGG401000x1000

NW150/NW200GGG401000x1000

Tabel 132: Artikelnummers deksels

deksel met valrooster1.25

5.5.4Muurdoorvoerstukken

Tabel 133: Artikelnummers

5.5.5Koppelingen / overgangsstukken

Tabel 134: Artikelnummers

64211520G2 x50mm BI x Knel PN6

64211631G2 x63mm BI x Knel PN6

64212752G2 x75mm BI x Knel PN6

64212901G2 x90mm BI x Knel PN6

64150161 NW65/80x75mm Flens x Knel - trekvast PN10

64150162 NW65/80x90mm Flens x Knel - trekvast PN10

64150163 NW100x110mm Flens x Knel - trekvast PN10

64150165 NW150x160mm Flens x Knel - trekvast PN10

GGG40

GGG40

GGG40

GGG40

5.5.6Broekstukken

Tabel 135: Artikelnummers

Art. nummer Maat

64050080NW80xNW100xNW80Flens PN10 GG25

64050100NW100xNW150xNW100Flens PN10 GG25

5.5.7Flenspakkingen

Tabel 136: Artikelnummers

64050200NW150xNW200xNW150Flens PN10 GG25 Art.

75020025 70x35x3 NW25 Rubber

75020032 82x43x3 NW32 Rubber

75020040 92x49x3 NW40 Rubber

75020050 107x61x3 NW50

75020065 127x77x3 NW65

75020080

5.5.8Boutensets

De boutenset bestaat uit: 8 Bouten en moeren en 16 sluitringen.

Tabel 137: Artikelnummers

Rubber

Rubber

5.5.9Verloopklauwen

Voetbochten van derden naar Duijvelaar Pompen

Tabel 138: Artikelnummers

Art. nummer Van Naar Maat

6139000736Flygt

6139016020Flygt

DRV8/12/13 DN65

DRV8/12/13/24 DN80

6139020578Flygt DRV24/27 DN100

6139021971Flygt

DRV9/11 DRS4/6 DN50

6139022270Flygt DRV6 DRS3 DN50

6139024011 ABS DRV6/9/11 DRS3 DN50

6139024012 ABS

DRV8/9/11/12/13 DN65

6139024013 ABS DRV24 DN80

6139024014 ABS DRV27 DN100

6139024015 ABS DRV24 DN80 2-pijps

6139024016 ABS DRV27 DN100 2-pijps

6139024062 ABS DRS4/6 DN50

6139024156Grundfos

6139024157Grundfos

6139024158Grundfos

DRV6/9/11 DRS3 DN40

DRV6/9/11 DRS3/4/6 DN50

DRV8/12/13 DN65

6139024159Grundfos DRV24 DN80

6139024160Grundfos DRV27 DN100

6139024170Grundfos

6139024171Grundfos

DRV6/9/11 DRS3/4/6 DN65

DRV6/9/11 DRS3/4/6 DN80

6139024172Grundfos DRV8/12/13 DN80

6139024173Grundfos DRV24 DN100

6Vuilwater Unit

6.1Introductie

6.1.1Afkortingen

Aanduiding Betekenis

VUNVuilwater Unit

DVVVuilwater pomp met vortex waaier

1 VLUitgevoerd met 1 vlotter

W 1~ pomp

SL Slang koppeling

PE Polyethyleen

PVCPolyvinylchloride

PP Polyproyleen

LLDPELinear low-density polyethylene

NBRNitrilbutadieenrubber

SBRStyreen-butadieenrubber

POMPolyoxymethyleen

Bi Binnendraad

SimmSimmering afdichting

6.1.2Werkbereik

Het werkbereik van de installatie kan als volgt worden samengevat:

Tabel 139: Specificatie van het werkbereik

Type VUN

Vloeistoftemperatuur [°C]40

Maximale opvoerhoogte [mWk]6

Maximale capaciteit [m3/h]8

Tabel 140: Specifieke toepassingen

Type: Toepassingsgebied

VUN 58LAutomatische waterafvoer van spoelbakken, douches, wasmachines, enz.

6.1.3Basis materialen

Item VUN 58 L

Reservoir

Item

Pomphuis

LLDPE

200

Technopolymer

As AISI 420 Waaier

Zuigdeksel

Technopolymer

Technopolymer

Asafdichting dubbele lip seal

Afdichtingen NBR

Keerklep Rubber

6.1.4Modelcode

VUN 1 DVV 23 W(S) PVC 40 mm LIJM 40 mm 1 x 230V 1 VL PE 58 L Uitleg

VUN

VuilwaterUnit 1 1 pomp

DVV

Type pomp PVC 40 mm

Appendage materiaal en maat LIJM 40 mm

Pers aansluiting 1 x 230V Aansluitspanning 1 VL Niveaubesturing met 1 vlotter PE 58 LMateriaal en inhoud reservoir

6.2Grafieken

6.2.1Grafiek DVV2 serie

Figuur 87: Grafiek DVV2 serie (vlakzuiger)

6.2.2Grafiek t.b.v. VUN Vigila 200

Performancecurve

Figuur 88: Grafiek t.b.v. VUN Vigila 200

6.3VUN 58 L serie

6.3.1VUN Vigila 200

Figuur 89: Afmeting

Figuur 90: Opstelling

Tabel 141: HWA Optie DVV

Figuur 91: HoogWaterAlarm Optie
WARTEL M12

6.4Vlakzuiger DVV23 serie met elektrodepen niveau besturing

TNR 71-4

TNR xxx

TNR 571

2x M4 TAPPEN

TNR 09-9

Los meeleveren (2x)

TNR 81-39

TNR 655

Figuur 92: DVV23 met elektrodepen besturing 20210583

Tabel 142: Benaming onderdelen

TNR/ TEAQ Omschrijving

09-9 elektrodepen

71-4 draadnippel met slangtule

81-39 somzadel

571 bevestigingsbeugel niveau besturing

655 pomp

Figuur 93: Opstellingstekening

Tabel 143: Serie DVV Vlakzuig

Figuur 94: Minimale zuighoogte

Art. nummer Pomp type Pers aansluiting Niveau besturing Spanning [V]

6.5Specificatie tekst

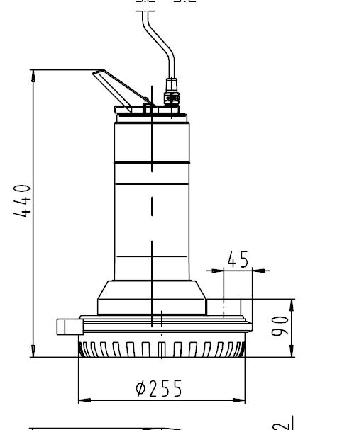
6.5.1Specificatie van de DVV 23 Vlakzuig

Vuilwaterpomp in vlakzuiguitvoering geschikt voor het afvoeren van afvalwater zonder vaste bestanddelen. Met een vrije doorlaat van 10 mm en een persaansluiting van G 5/4". Inclusief een keerklep.

Compleet met niveau besturing: 3 Instelbare electrodepennen voorzien van koppelsteker.

6.5.2Specificatie van de VUN DVV 200

Compacte volautomatische vuilwaterpompinstallatie bestaande uit een vuilwaterdompelpomp type Vigila met een 0,25 kW elektromotor, 1x230 Volt, IP 68 en geintegreerde niveau besturing. Inclusief keerklep.

Ingebouwd in een LLDPE reservoir van 58 liter bruto, voorzien van drie aansluitingen ten behoeve van be-/ ontluchting en toevoer, persaansluiting 3/4” bi en een aftapkraan 1/2” met slangwartel.

7FekaUnit C

7.1Introductie

7.1.1Afkortingen

Aanduiding Betekenis

Feka UnitFecalienopvoerinstallatie

C Compact

V Vortex waaier

S Versnijder

S3 50% volgens VDE, max 60 st/uur

IP International Protection Rating, ook soms

Ingress Protection

BIWBinnen wand montage

RVSRoest vast staal

PE Polyethyleen

Bu Buitendraad

Bi Binnendraad

VL Vlotter

mWkMeter water kolom

7.1.2Werkbereik

Het werkbereik van de installatie kan als volgt worden samengevat:

Tabel 144: Specificatie van het werkbereik

Type FekaUnit C

Vloeistoftemperatuur [°C]401

Maximale opvoerhoogte [mWk]25

Maximale capaciteit [m3/h]36

Bedrijfswijze

OverInbaar

S3

Maximaal 2 mWk, en maximaal 7 dagen (behalve stekerdoos, CEE-stekker, schakelkast)

Beschermklasse IP 54

1.maximaal 5 minuten tot 65 °C

Tabel 145: Specifieke toepassingen

Type Toepassingsgebied

FekaUnit CAfvoer van afvalwater van toiletinstallaties onder het rioolniveau bijvoorbeeld:

- woonboten

- souterrains

- bars, partykelders

- bioscopen en theaters

- warenhuizen

- ziekenhuizen

- hotels en restaurants enz.

7.1.3Basis materialen

Item Vortex (V) Versnijder(S)

PomphuisPolyethyleenGietijzer

Keerklep Gietijzer Gietijzer (PVC voor de 40 l)

ReservoirPolyethyleenPolyethyleen

Waaier Ultradur Gietijzer

Versnijder Norihard

Motoras RVS RVS

MotorhuisGietijzer Gietijzer

Vlotter PolypropyleenPolypropyleen

Bouten en moerenRVS RVS

7.1.4Motor

Item

Beveiliging tegen oververhitting Bi-metaal

UitvoeringVDE 0530, deel1/IEC 34-1

BeschermklasseIP 68 IsolatieklasseF

Spanning [V]3x400 en 1x230

Frequentie [Hz]50

Geluid dB[A]70 (als motor inbedrijf is)

LageringLevensduur vetgesmeerde kogellagers

7.1.5Asafdichting

Item V uitvoering S uitvoering

PompzijdeAsafdichtingsring Mechanische asafdichting

MotorzijdeAsafdichtingsring Asafdichtingsring

Vulling tussen kamer Vet Vet

7.1.6Goedkeuring

EN 12 050-1Europese Norm

CE Voldoet aan Europese Veiligheidsrichtlijn

7.1.7Modelcode

FEKA UNIT C 1 V67-2 W NW80 1x230V 1 VL

FEKA UNIT C

60 l Uitleg

Type installatie 1 2

V67-2 V915-2

S315-2L S315-2H

Aantal pompen

Type pomp; V = vortex waaier S = versnijderW - = 3~ W = 1~

NW80

NW80/100 2”BU / 5/4” BI

Pers aansluiting 1x230V 3x400V Un [V] 1

Aantal vlotters

BIW Schakelkast type

PEMateriaal reservoir

40 l 60 l 100 l 150 l

Inhoud reservoir

7.2Grafieken FekaUnit C

7.2.1Grafiek V67-2 en V915-2

Figuur 95: Grafiek V67-2 (1) en V915-2(2) (50 Hz ~ 2800 rpm)

7.2.2Grafiek S315-2

Figuur 96: Grafiek S 315-2 (L = S1, H = S2) (50 Hz ~ 2800 rpm)

7.3Technische gegevens FekaUnit C

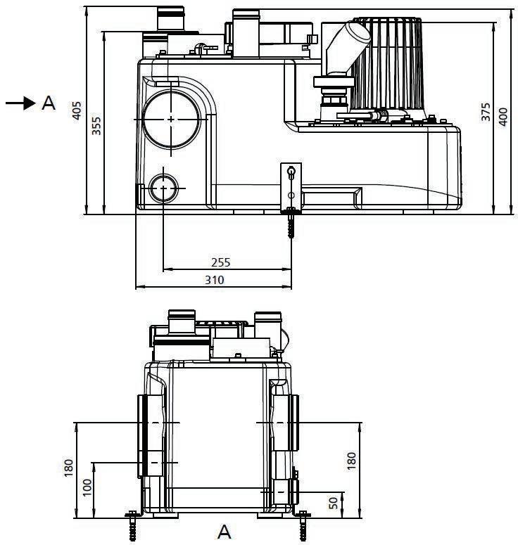
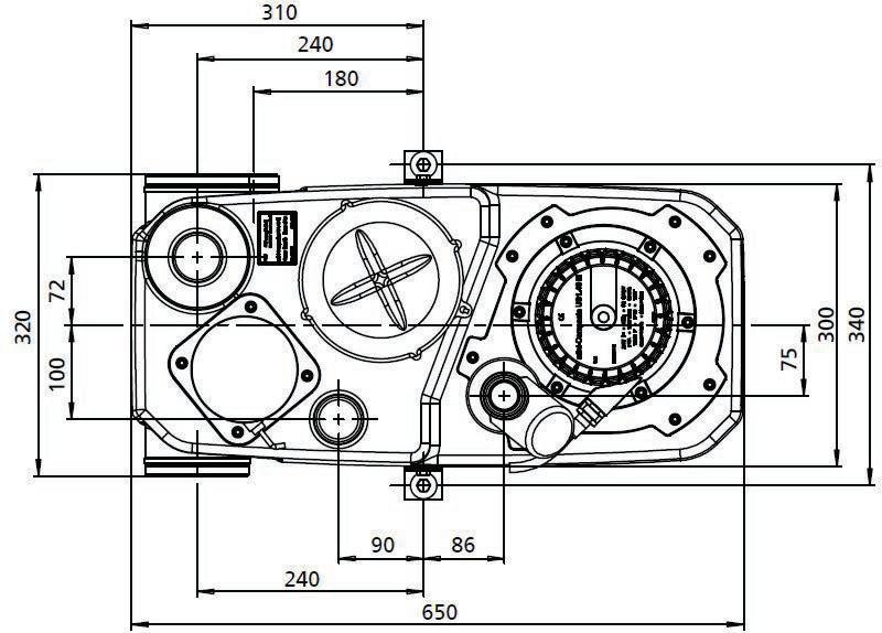
7.3.1FekaUnit C 1 60L

7.3.2Boven- en zijaanzicht

7.3.33D aanzicht

Tabel 147: Algemene waarden

Type;

Artikelnummer

C1 V67-2

6129131500

Tabel 146: Aansluitingen

Type

Maat

1 Toeloop DN 100

2 Toeloop DN 100

3 Toeloop DN 100/50

4 Toeloop DN 50

5 Aftap DN 40

6 Ontluchting DN 50

7 Persleiding DN 80/100

Optie; Persleiding kit overgangsstuk DN80/80 artikelnummer 6119070679

C1 V67-2W

6129131501

Inhoud reservoir [l] 60 60

Netto inhoud [l] H=180 / Verticale inIn1

Kabel lengte2 [m]

Massa [kg] 41 42

Besturing

Levelcontrol Basic 1 D

1.Afhankelijk van de ingestelde inschakelpunt en aangesloten toevoer 20 / 30 20 / 30

Levelcontrol Basic 1 E25

Aansluitspanning 3x400V+N 1x230V

Keerklep Inclusief Inclusief

2.Lengte van de motorkabel naar de kast / lengte kabel van de kast naar WCD. 4 / 1 4 / 1

7.3.4FekaUnit C 1 100L

7.3.4.1Boven- en zijaanzicht

7.3.4.23D aanzicht

Tabel 148: Aansluitingen

1 Toeloop DN 150/100

2 Toeloop DN 150/100

3 Toeloop DN 150/100

4 Toeloop DN 150/100

5 Aftap DN 40

6 Ontluchting DN 70

7 Persleiding DN 80/100

Optie; Persleiding kit overgangsstuk DN80/80 artikelnummer 6119070679

Tabel 149: Algemene waarden

Artikelnummer

Netto inhoud [l] H=180 / H=250 / Ver. inIn1

I [A] (Istart) 2.1 (9A)5.1 (16A)3.5 (16A)9 (28A)

Kabel lengte2 [m]

Keerklep

1.Afhankelijk van de ingestelde inschakelpunt en aangesloten toevoer

2.Lengte van de motorkabel naar de kast / lengte kabel van de kast naar WCD.

7.3.5FekaUnit C 2 150L

7.3.5.1Boven- en zijaanzicht

7.3.5.23D aanzicht

Tabel 151: Algemene waarden

Type;

C2 V67-2

Tabel 150: Aansluitingen

Type Maat

1 Toeloop DN 150/100

2 Toeloop DN 100/50

3 Toeloop DN 150/100

4 Toeloop DN 150/100

5 Aftap DN 40

6 Ontluchting DN 70

7 Persleiding DN 80/100

Optie; Persleiding kit overgangsstuk DN80/80 artikelnummer 6119070679

C2 V67-2W

Artikelnummer 6129131520 6129131521

Inhoud reservoir [l] 150 150

Netto inhoud [l] H=180 / H=250 / Ver. inIn1

/ 83 / 91

/ 83 / 91 P2 [kW]

(9A)

Kabel lengte2 [m]

Massa [kg] 100 111

Besturing

Aansluitspanning

Levelcontrol Basic 2 ZD

(16A)

Levelcontrol Basic 2 ZE25

3x400V+N 1x230V

Keerkleppen 2x Inclusief Inclusief

1.Afhankelijk van de ingestelde inschakelpunt en aangesloten toevoer

2.Lengte van de motorkabel naar de kast / lengte kabel van de kast naar WCD. 4 / 1 4 / 1

7.3.6FekaUnit C 1 40L

7.3.6.1Boven- en zijaanzicht

Tabel 153: Algemene waarden

Type;

Artikelnummer

Inhoud reservoir [l]

Netto inhoud [l] H=180 / Verticale inIn1

S315-2 L

/ 17

7.3.6.23D aanzicht

Tabel 152: Aansluitingen

Type Maat

A Toeloop DN 100

B Toeloop DN 100

C Toeloop DN 100/50

D Toeloop DN 50

1 Aftap DN 40

2 Ontluchting DN 50

3 Persleiding DN 32

S315-2W L

/ 17 P2 [kW]

I [A] (Istart)

Kabel lengte2 [m]

Massa [kg]

/ 1

(16A)

(55A)

/ 1

Besturing Levelcontrol Basic 1 D Levelcontrol Basic 1 E50

Aansluitspanning 3x400V+N 1x230V

Keerklep Inclusief, PVC

1.Afhankelijk van de ingestelde inschakelpunt en aangesloten toevoer

2.Lengte van de motorkabel naar de kast / lengte kabel van de kast naar WCD.

Inclusief, PVC

C1
C1

7.3.7FekaUnit C 1 S315-2

7.3.7.1Boven- en zijaanzicht

7.3.7.23D aanzicht

Tabel 155: Algemene waarden

Type;

C1 S315-2H

Tabel 154: Aansluitingen

Type Maat

1 Toeloop DN 150/100

2 Toeloop DN 150/100

3 Toeloop DN 150/100

4 Toeloop DN 150/100

5 Aftap DN 40

6 Ontluchting DN 70

7 Persleiding DN50 / DN 32

C1 S315-2H W

Artikelnummer 6129131740 6129131741

Inhoud reservoir [l] 100 100

Netto inhoud [l] H=180 / H=250 / Ver. inIn1

[kW]

I [A] (Istart)

Kabel lengte2 [m]

(16A)

Massa [kg] 57 68

Besturing

/ 46 / 64

(28A)

Levelcontrol Basic 1 D

Levelcontrol Basic 2 ES

Aansluitspanning 3x400V+N 1x230V

1.Afhankelijk van de ingestelde inschakelpunt en aangesloten toevoer 33 / 46 / 64

2.Lengte van de motorkabel naar de kast / lengte kabel van de kast naar WCD. 4 / 1 4 / 1

Keerklep Exclusief Exclusief

7.3.8FekaUnit C 2 S315-2

7.3.8.1Boven- en zijaanzicht

7.3.8.23D aanzicht

Tabel 157: Algemene waarden

Type;

S315-2L

Tabel 156: Aansluitingen

Type Maat

1 Toeloop DN 100/50

2 Toeloop DN 150/100

3 Toeloop DN 150/100

X Niet mogelijk

5 Aftap DN 40

6 Ontluchting DN 70

7 Persleiding DN50 / DN 32

S315-2L W

Artikelnummer 6129131742 6129131743

Inhoud reservoir [l] 150 150

Netto inhoud [l] H=250 / Ver. inIn1

P2 [kW] 1,5 1,5

I [A] (Istart) 3.5 (16A) 9 (28A)

Kabel lengte2 [m]

Massa [kg] 116 127

Besturing

Aansluitspanning

Levelcontrol Basic 2 ZD

2.Lengte van de motorkabel naar de kast / lengte kabel van de kast naar WCD. 4 / 1 4 / 1

Levelcontrol Basic 2 ZES

3x400V+N 1x230V

Keerklep Exclusief Exclusief

1.Afhankelijk van de ingestelde inschakelpunt en aangesloten toevoer 85 / 95 85 / 95

C2
C2

7.4Medium lijst

OPMERKING

De volgende tabel dient als oriëntatiehulp. De gegevens dienen als richtwaarden. Garantie-eisen kunnen er niet aan ontleend worden.

Voor meer informatie zie www.dp.nl

Medium

Huishoudelijk afvalwater en fecaliën

Baden, douches, wasbakken, bidets, toiletten, urinoirs, spoelbakken, schrobputjes, af- en wasmachines

Industrieel afvalwater

Keukens, wasruimten, toiletinstallaties, ziekenhuizen, hotels, sportterreinen en zwembaden1

Condenswater van de CV-ketel

Puur alleen het condenswater

Keukenafvalwater

De toevoer van vethoudend afvalwater is alleen mogelijk via een vetafscheider

Afvalwater van het laboratoria

Waar lozing op het riool is toegestaan

Zouthoudend spoelwater

Zeewater

Zwembadwater met chloordelen

Agressief vuilwater

pH 5 tot 12, schoonmaak-, desinfecterings-, spoel- en wasmiddel

Strooizouthoudend vuilwater uit garage

1.Voor afvoerzwembadwater eerst leverancier raadplegen

2.Met een gezamenlijke afvoer van douches en toiletten geen probleem

3.Navragen aan de hand van analyse, temperatuur en bedrijfswijze

Feka-Unit C

Geschikt

Geschikt

Ongeschikt2

Geschikt

3

Ongeschikt

Ongeschikt

Ongeschikt

Ongeschikt

7.5Specificatie tekst

7.5.1Specificatie tekst Feka-Unit C1(2) V

Overstroombaar opvoerinstallatie met reservoir bestaande uit:

• Gas-, reuk- en waterdicht reservoir van slagvaste kunststof.

• Één of twee rioolwaterpompen met een vortex waaier.

• Terugslagklep(pen) met volle doorlaat en leegloopbout.

• Broekstuk (2 pomps uitvoering)

• Analoge vloeistofniveaumeting met sensorcontrole

• Schakelkast ten behoeve binnenwand montage

Al onze Feka-Units voldoen aan de EN 12 050-1.

7.5.2Specificatie tekst Feka-Unit C1 (2) S

Overstroombaar opvoerinstallatie met reservoir bestaande uit:

• Gas-, reuk- en waterdicht reservoir van slagvaste kunststof.

• Één of twee rioolwaterpompen met een vuilversnijder.

• Analoge vloeistofniveaumeting met sensorcontrole

• Schakelkast ten behoeve binnenwand montage

Al onze Feka-Units voldoen aan de EN 12 050-1.

7.5.3Specificatie tekst Levelcontrol Basic

De Levelcontrol basic van het type D, E25, E40, E50 zijn als volgt uitgevoerd:

• Kant en klaar aansluitbaar, 1 m netaansluitkabel

• H-0-A schakelaar(s)

• Bevestigingstoets (OK)

• Pompbeveiliging met temperatuurvoelers in de motorwikkeling

• Ingang voor externe storingsmelding

De schakelkast heeft de volgende meldingen:

• LED pomptoestand

• LED hoogwater

• LED draaiveld (alleen bij 3~)

• Potentiaal vrij verzamelstoringsmelding (NC, NO)

• Geïntegreerde alarmzoemer

• Accugevoed, netonafhankelijk alarm

7.5.4Specificatie tekst Levelcontrol Basic 2

De Levelcontrol basic 2 van het type ZD, ZE25, ES, ZES zijn als volgt uitgevoerd:

• Kant en klaar aansluitbaar, 1 m netaansluitkabel

• Hoofdschakelaar (alleen ZES)

• Numeriek display ten behoeve van diverse aanduidingen en meldingen

• Navigatietoetsen

• H-0-A schakelaar(s)

• Pompbeveiliging met temperatuurvoelers in de motorwikkeling

• Twee ingangen voor externe storingsmelding en uitschakeling op afstand

• Gelijkmatige pompbelasting door automatische pompwissel (niet bij de ES)

• Pieklastschakeling (niet bij de ES)

De schakelkast heeft de volgende meldingen:

• LED pomptoestand

• LED hoogwater

• LED draaiveld (alleen bij 3~)

• Potentiaal vrij verzamelstoringsmelding of bedrijfsmelding (NC, NO)

• Geïntegreerde alarmzoemer

• Accugevoed, netonafhankelijk alarm

duijvelaar pompen

Postbus 28

2400 AA Alphen aan den Rijn

t (0172) 48 83 88

dp@dp.nl

www.dp.nl

9/2025

97004471 Z

Kan zonder voorafgaand bericht worden gewijzigd

Turn static files into dynamic content formats.

Create a flipbook
Issuu converts static files into: digital portfolios, online yearbooks, online catalogs, digital photo albums and more. Sign up and create your flipbook.