VIKPARTIER - projektering, montering, justering

Page 1

PROJEKTERING | MONTERING | JUSTERING

VIKPARTIER

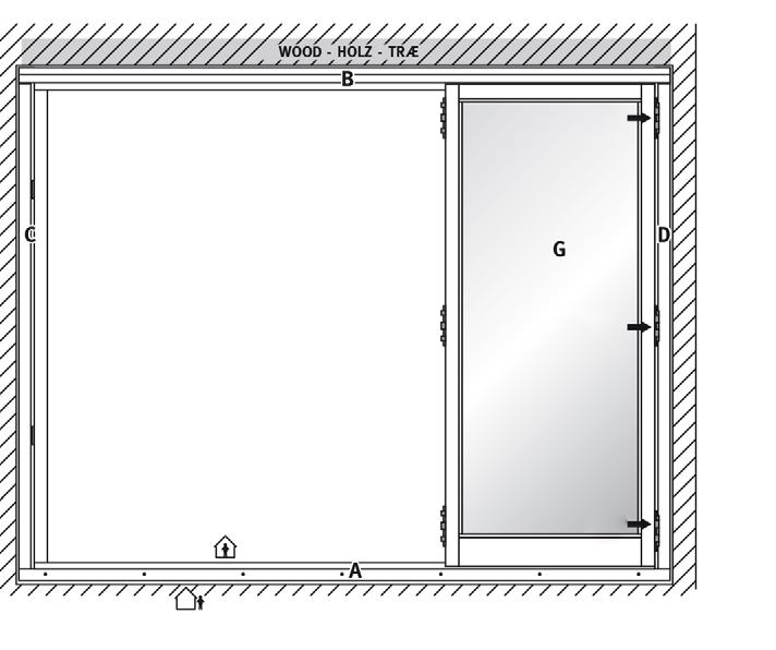
1. OVANSTYCKE

Vikdörrens karm kan placeras antingen helt skyddat av balk eller med aluminiumprofilen utanför balk. Du väljer det som passar din fasad bäst.

OBS! Det är helt avgörande för en lyckad installation och en väl fungerande vikdörr att ovanstycket är väl infäst i för fasaden dimensionerad balk av limträ eller stål.

Alla karmovanstycken är 60 mm – oavsett om du har valt någon av profilerna 2-glas KULTUR eller 3-glas NORD. Om du önskar linjering med intilliggande fönster skall även dessa fönster ha 60 mm karm i ovanstycket.

2. SIDOSTYCKE & TILLVAL

Räkna med att du behöver ca. 15 mm per sida för tillräcklig drevning. Du ser även på angivna mått hur du kan anpassa fasad och putsning/listning för en fin anslutning till vikpartiet.

Sidostycket är den enda delen av karmen som kan levereras med allmogeprofil och de olika typerna är markerade med cirklar. Du kan även se olika typer av droppnäsor. Prata gärna med oss om du har önskemål kring just profiler och lister.

3. TRÖSKEL

Vikpartier leder nästan alltid ut till en uteplats och inte sällan vill man ha en så låg tröskelkänsla som möjligt. Tänk på att det kan vara möjligt att anpassa husets bottenplatta för att minska synlig tröskel. Minst 15 mm synlig tröskel brukar vara lagom, och glöm inte planera in höjd på invändigt golv.

Utvändigt skall det finnas plats för tröskelplåt och att dörrbladen går fritt under alla årstider. (Tips! Om du ska montera tröskelplåt i efterhand se under punkten 4 nedan).

4. EFTERARBETEN

1. Om du önskar täcka aluminiumprofilen med fasadbeklädnad eller liknande så finns det flera sätt. Det enklaste är en enkel regel ovan h-profilen som fasad/ skrivmaterial fästes i. H-profilen går även att måla.

2. Montage av tröskelplåt går att utföra efter det att vikpartiet är fullt monterat. Lossa på skruvarna till styrskenan i tröskeln, tryck in tröskelplåten i uttaget för plåt bakom skenan, och använd samma skruv att fästa plåten som du fäster skenan. Spåret är anpassat för max 1 mm plåt.

Karmskruv ←

Eventuell extra karmskruv vid behov Karmskruv ←

Karmskruv ←

4.1

4.2

GLASLIST BÅGE

Rak eller dekorerad glaslist

Rak eller allmogeprofil

KARM

DROPPNÄSA

Rak eller allmogeprofil

Trä eller aluminium

1:200 A4 2021-04-28 Sidostycke DOFAB Kultur Vikdörr DOFAB Kultur Vikdörr Dekorerad glaslist utsida Rak profil insida 1:200 A4 2021-04-28 Sidostycke DOFAB Kultur Vikdörr DOFAB Kultur Vikdörr 1:200 A4 2021-04-28 Sidostycke DOFAB Kultur Vikdörr DOFAB Kultur Vikdörr DOFAB Kultur Vikdörr 1:200 A4 2021-04-28 Sidostycke DOFAB Kultur Vikdörr DOFAB Kultur Vikdörr DOFAB Kultur Vikdörr 2 1:200 A4 2021-04-28 Bottenstycke DOFAB Kultur Vikdörr DOFAB Kultur Vikdörr 1
INFÖR PROJEKTERING
← ←
DOFAB Kultur 2-glas DOFAB Nord 3-glas Eventuell extra karmskruv vid behov

LITEN ORDLISTA

Vid leverans står det en låda på din pall. I lådan finns alla dina beslag. Det ligger också med en lista med det antal som just du behöver. Här beskriver vi vad alla delar heter.

Sök filmen: DOFAB MONTERA VIKDÖRR

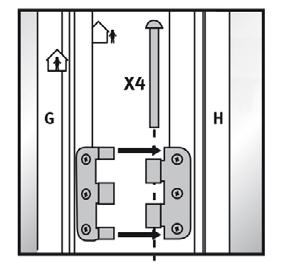
KULLAGER

Om kullager är levererade med din order, se till att slät sida är vänd utåt på båda sidor kullagret.

INFÖR MONTAGE BEHÖVER DU

• Karmskruv och plugg med längd anpassad för respektive väggtyp (be om hjälp i din bygghandel)

• Skruvdragare

• 14 mm borr

• Vattenpass

• Tumstock

• Cylinder, om inte denna redan är beställd

• Gångjärnsknäckare

• Transparent byggsilikon

En grej till! Det behöver inte vara svårt att montera en vikdörr även fast det kan kännas så. Det gäller bara att vara noggrann! Det viktigaste är att du antingen har rätt dimensionering på avbärning i hålet eller har säkerställt att det finns en balk att fästa upp i. Du kan se hela filmen på Youtube och är det ändå problem så ring oss på 040 - 230 270 så hjälper vi dig jättegärna!

ALUMINIUMSKENA

TRÄSKRUV STYRSTIFT TRÖSKEL OVANSTYCKE SIDOSTYCKE H-PROFIL STYRSKENA DÖRRBLAD GÅNGDÖRR SPRINT VAGN
← ← ← ← ← ← ← ← ←
← ←
Kommer förmonterad på ovanstycket.

instructions for folding doors wooden lintels) nleitung

für fAlttüre

FÖRKLARANDE

RITNINGAR

1 1 2 2 3 1 D CONCRETE, IRON, BRICK - BETON, EISEN, ZIEGELSTEIN - BETON, JERN, MURSTEN C D A CONCRETE, IRON, BRICK - BETON, EISEN, ZIEGELSTEIN - BETON, JERN, MURSTEN K D D C D B 3 3 3 G X? X? X? X? X? 4 4 G 13 11 B WOOD HOLZ TRÆ min. XX 54 D X1 X2 X2 X1 11 B WOOD HOLZ TRÆ 54 X? X? X? X? X? X? X? X? X? X? 5 E G x7 x7 X6 X6 4 4 E
Holzstürzen) ledning til foldedØr overligger i træ) b1 5 5 5 5 5 9 13 DOFAB Beräkning antal karmskruv/karmsida 13 14 22 18
Vid större bredder beräkna en karmskruv per 60-70 cm.
auf
SÅ BERÄKNAR DU ANTAL KARMSKRUV
7 8 11

SÅ MONTERAR DU DITT VIKPARTI

Börja med att läsa igenom anvisningarna. Kontrollera så att du har alla delar. Karmen kan komma monterad eller omonterad, beroende på storleken på vikpartiet.

Kontrollera öppningens mått och vi börjar med höjdmåttet. Där ska du ha ca 10-15 mm ställplats.

Mät sedan breddmåttet. Jämför med vikpartiet medan det fortfarande står på pallen. Demontera aldrig det befintliga förrän du är säker på att den nya dörren passar. Du behöver 10-15 mm i varje sida.

Sedan väger vi av golvet med hjälp av ett vattenpass. Lägg mellanlägg så att golvet blir perfekt vågrätt. Nu kan vi montera ihop karmen till vikpartiet.

Börja med att lägga ut de fyra delarna som tillhör partiets karm.

Efter det, passa in delarna i varandra och knacka ihop dem försiktigt. Glöm inte att lägga en liten sträng silikon mellan bottenstycke och sidostycke för vattentäthetens skull.

För gärna in vagnen på plats innan monteringen! Därefter lyfter du karmen på plats i hålet. Centrera så att du har karmen så som du vill ha den. Stabilisera den med ett par kilar eller kuddar.

Nu ska vi förbereda för karmskruvarna. Gör markering 150 mm ner från karmens ovanstycke och en markering 150 mm uppfrån karmens bottenstycke på vikpartiets båda sidor.

Kontrollera så att det finns ordentligt med vägg att fästa karmen i. Nu är det klart att borra.

Då är första hålen borrade. Kontrollera så att karmen är i lod. Justera annars skruvarna tills karmen är i lod på alla håll.

Nu är det dags att skruva i resten av karmskruvarna. Fördela avstånden så att det är ca CC 600 mm, i både sido- och ovanstycke.

Plocka fram det första dörrbladet. Kontrollera markeringen på dörrarna så att du monterar dem i rätt ordning. Slagdörren monteras sist.

bladet på plats i gångjärnen och tryck ner sprinten.

1 2 9 8 7 11 12 3 13 4
5
6
10
Sätt

Nu monterar du nästa blad som du fäster i första bladet med sprintar i gångjärnen. Sedan är det dags för dörrbladet som ska hänga i aluminiumprofilen.

För att underlätta montering, demontera övre och undre gångjärn på både den sist satta och på dörrbladet som ska monteras.

Här ser du hur vi demonterar nedre gångjärnet. Stötta upp dörrbladet.

Ta av hela gångjärnet och montera det i sin helhet på pinnen om det inte levererats färdigmonterat. Om du har kullager levererad med din order så montera på dem. Se till att de kommer på rätt håll.

Lyft in gångdörren på plats och montera de två sprintarna på mellangångjärnen först.

Kullagret är korrekt när den släta sidan är vänd utåt. Därefter, montera tillbaka ena vingen av gångjärnet på dörrbladet.

Däreftrer skruvar du fast gångjärnet däruppe som hänger i vagnen.

Stäng dörrarna och kontrollera så att allt är rakt och snyggt.

Behöver det justeras gör du det med muttrarna som sitter på gångdörren.

Montera därefter styrpinnen på gångjärnen och skruva fast gångjärnet i båda dörrbladen.

Sök filmen: DOFAB MONTERA VIKDÖRR

För in tröskelblecket under skenan i utfräst spår. Skruva sedan fast både skena och bleck.

Då var det klart! Lycka till med ditt nya vikparti!

14
15 16 17 18 20 21 22 23 24
Lägg skenan på plats längs bottenstycket.
25
26 27
Till detta behöver du en 13nyckel.
19

SÅ JUSTERAR DU DITT VIKPARTI

OM AVSTÅNDET ÄR FÖR STORT

DETTA BEHÖVER DU

OM AVSTÅNDET ÄR FÖR LITET

DETTA BEHÖVER DU

Om det finns ett behov av att dela dörrarna åt, behöver du en halv svart pallbricka och en 100 mm skruv som du fäster i pallbrickan.

Tänk på att funktion är viktigare än utseende - om dörren fungerar fint och är helt tät - låt den vara. Vikdörrar är komplexa.

Stäng till dörren försiktigt och tryck. Sedan fortsätter du och gör likadant på de andra gångjärnen.

Du använder din pallbricka och stoppar in den så långt in mot gångjärnet som det är möjligt.

Om du behöver föra ihop dörrbladen en aning, använder du en gångjärnsknäckare som vi har öppnat käften på lite grand, så att den passar på gångjärnet i stängt läge.

Tryck försiktigt och därigenom delar du lite på gångjärnen.

Vi trär på vår gångjärnsknäckare på toppen av gångjärnet. Knäck lite åt vänster, knäck lite åt höger.

Sedan för du ner gångjärnsknäckaren till mitten på gångjärnet och tryck lite åt vänster och lite åt höger.

För sedan ner verktyget ytterligare så den når bottendelen av gångjärnet. Sedan fortsätter du med restrande gångjärn efter behov.

1 2 3 4 1 2 3 4
1. Svart pallbricka 2. 100 mm skruv 1. Gångjärnsknäckare
EMAIL info@dofab.se WEB www.dofab.se STOCKHOLM telefon 08-230 270 Brännkyrkagatan 82 118 23 Stockholm GÖTEBORG telefon 031-230 270 Barlastgatan 2 414 63 Göteborg MALMÖ telefon 040-230 270 Agnesfridsvägen 125 213 75 Malmö INSTAGRAM dofab_se FACEBOOK dofabab

Turn static files into dynamic content formats.

Create a flipbook
Issuu converts static files into: digital portfolios, online yearbooks, online catalogs, digital photo albums and more. Sign up and create your flipbook.
VIKPARTIER - projektering, montering, justering by DOFAB AB - Issuu