A&T - Recommended Options

Page 1

Recommended Options

© 2022 | ADVISORY & TRANSACTION SERVICES
NOVEMBER 2022
ADVISORY & TRANSACTION SERVICES
Prepared for Qualtrics

SCENARIO

BUILDING UNIT AREA (SQ. FT.) SUBJ. TO SURVEY

Options which are featured in the prelim. financial analysis

EST SETTLING GROSS RENT PSF PM REMARKS

Conventional Office Options

(A) Asia Square Tower 1 #27 02/03 11,262 [$12.30 to $12.80] Fitted, Available Sep 2023

(B) Asia Square Tower 2 #25 03 11,138 [$12.20 to $12.50] Fitted, Available from April 2023 Subdivision required

1

Grade A

Fitted

2

Grade A Bare

(C) MBFC T3 #26 04 8,730 [$12.80 to $13.50] Fitted, Available Mid May 2023

(D) CapitaGreen #21 04 6,550 [$12.50 to $13.00] Fitted, Currently occupied by Twitter Availability to be advised

(E) Guoco Tower #20 01A 6,280 [$12.60 to $13.50] Nicely Fitted, Available April 2023

(A) IOI Central Boulevard Twr Low Mid 9,579 [$12.50 to $13.00] Bare, Building under construction completes Q4 2023

(B) MBFC T1 #08 02 9,612 [$12.80 to $13.50] Bare, Immediate Availability

(C) Guoco Midtown #21 03 7,359 [$13.00 to $13.50] Bare, Building under construction completes Dec 2022

(A) 30 Raffles Place L25 9,483 [$10.00 to $11.00]

3

Grade B Fitted

4

(B) Suntec T1 L35 10,097 [$10.00 to $10.50]

Co-Working Enterprise Solution

Partially Fitted, Immediate Availability Landlord capex incentive to be explored

Partially Fitted, Immediate Availability Landlord capex incentive to be explored

(A) 21 Collyer Quay (WeWork) #06 W101 ~4,000 $100,000 [$25.00 psf] 72 workstations, 2x 4 pax meeting rms, breakout area & pantry. Avail Apr 23

(B) Asia Square T2 (The Work Project) #10 27/28 ~2,114

$60,170 [$28.46 psf]

(C) Afro Asia Building (The Great Room) #16 01 ~3,500 $80,000 [$22.85 psf]

(D) Bayspace (MBFC Tower 2) #08 06 ~4,450 $120,000 [$26.97 psf]

Partially Fitted, Immediate Availability Landlord capex incentive to be explored

Partially Fitted, Available Q1 2023 Landlord capex incentive to be explored

Bare, Building under construction completes Dec 2022

SUBJECT TO CHANGE & AVAILABILITY
Recommended Options
Recommended Options SUBJECT TO CHANGE & AVAILABILITY No. Building Name 1 Asia Square Tower 1 2 Asia
Tower 2 3 MBDC Tower 3 4 CapitaGreen 5 Guoco Tower 6 IOI Central Boulevard Towers 7 MBFC Tower 1 8 Guoco Midtown 9 30 Raffles Place 10 Suntec Tower 1 11 WeWork,21 Collyer Quay 12 The Work Project, Asia Square Tower 2 13 The Great Room, Afro Asia 14 Bayspace, MBFC Tower 2 Legend
Square
© 2022 CBRE Group, Inc Information herein is based on third party sources we believe reliable and we do not assure its accuracy or completeness Offerings are subject to price changes, rental, other conditions, prior sale, lease or financing, or withdrawal without notice Historical estimates are for reference only, and do not promise current or future performance You should hire your own professional advisors to investigate the property and transaction Typical Floor Plan Subject to changes Location Map Asia Square Tower 1 Marina Bay Micro Market | 8 Marina View, S(018960) Property Information Year Built. (Refurbished) 22 June 2011 Ownership QIA Nearest MRT Station 2 mins sheltered access to Downtown MRT Net Lettable Area 1,260,000 sq ft Total Floors (Office) 43 Storeys (Office: 38 Storeys) Flex Operator Signature by Regus Notable Specifications Typical Floor Plate 32,000 35,000 sq ft Floor to Ceiling Height Office Floors: 2.9 m Trading Floors: 3.05 m Floor System Raised Floor 150 mm Occupancy Load 4.5 kN / m² Air Con System Centralized Air Con Green Rating BCA Greenmark Platinum Carpark Allocation Total Lots 580 [1 lot : 4,500 sf ] Current Rate $500 / Lot / Month
© 2022 CBRE Group, Inc Information herein is based on third party sources we believe reliable and we do not assure its accuracy or completeness Offerings are subject to price changes, rental, other conditions, prior sale, lease or financing, or withdrawal without notice Historical estimates are for reference only, and do not promise current or future performance You should hire your own professional advisors to investigate the property and transaction Subject to changes Asia Square Tower 1 #27- 02/03 (11,262 SF) From Sep 23 Subdivision Plan Existing Layout 80 Workstations
© 2022 CBRE Group, Inc Information herein is based on third party sources we believe reliable and we do not assure its accuracy or completeness Offerings are subject to price changes, rental, other conditions, prior sale, lease or financing, or withdrawal without notice Historical estimates are for reference only, and do not promise current or future performance You should hire your own professional advisors to investigate the property and transaction Typical Floor Plan Subject to changes Location Map Asia Square Tower 2 Marina Bay Micro Market | 12 Marina View, S(018961) Property Information Year Built. (Refurbished) August 2013 Ownership CapitaLand Nearest MRT Station 5 mins walk to Downtown MRT Net Lettable Area 780,000 sq ft Total Floors (Office) 46 Storeys (26 Storeys) Flex Operator The Work Project, Justco Notable Specifications Typical Floor Plate 27,000 31,000 sq ft Floor to Ceiling Height 2.9m Floor System 150mm Raised Flooring Occupancy Load 4.5 kN/m2 Air Con System Centralised Air Con System Green Rating BCA Greenmark Platinum Carpark Allocation Total Lots 580 [ 1 : 4,500 sq ft ] Current Rate $450 / Lot / Month
© 2022 CBRE Group, Inc Information herein is based on third party sources we believe reliable and we do not assure its accuracy or completeness Offerings are subject to price changes, rental, other conditions, prior sale, lease or financing, or withdrawal without notice Historical estimates are for reference only, and do not promise current or future performance You should hire your own professional advisors to investigate the property and transaction Subject to changes Asia Square Tower 2 #25 - 02/03 (111,138 SF) From Apr 23 Possible to consider subdivision of 11,138 sf Workstations 134 Meeting Rooms 9 Proposed Subdivision Plan Existing Layout Test Fit Plan Changes in Green 85 Workstations
© 2022 CBRE Group, Inc Information herein is based on third party sources we believe reliable and we do not assure its accuracy or completeness Offerings are subject to price changes, rental, other conditions, prior sale, lease or financing, or withdrawal without notice Historical estimates are for reference only, and do not promise current or future performance You should hire your own professional advisors to investigate the property and transaction Subject to changes Asia Square Tower 2 #25 - 02/03 Reference Images
© 2022 CBRE Group, Inc Information herein is based on third party sources we believe reliable and we do not assure its accuracy or completeness Offerings are subject to price changes, rental, other conditions, prior sale, lease or financing, or withdrawal without notice Historical estimates are for reference only, and do not promise current or future performance You should hire your own professional advisors to investigate the property and transaction Typical Floor Plan Subject to changes Location Map Marina Bay Financial Centre T3 Marina Bay Micro Market | 12 Marina Boulevard, S(018982) Property Information Year Built. (Refurbished) March 2012 Ownership Raffles Quay Asset Management Nearest MRT Station Direct access to Marina Bay MRT Net Lettable Area 1,234,631 sq ft Total Floors (Office) 40 Storeys Flex Operator Regus Notable Specifications Typical Floor Plate 30,000 sq ft Floor to Ceiling Height 2.8 m Floor System 180mm Raised Flooring Occupancy Load 3.5kN/m2 Air Con System District cooling system Green Rating BCA Greenmark Platinum Carpark Allocation Total Lots 440 lots [ 1 : 3,800 sq ft ] Current Rate $ 450 / lot / month
© 2022 CBRE Group, Inc Information herein is based on third party sources we believe reliable and we do not assure its accuracy or completeness Offerings are subject to price changes, rental, other conditions, prior sale, lease or financing, or withdrawal without notice Historical estimates are for reference only, and do not promise current or future performance You should hire your own professional advisors to investigate the property and transaction Subject to changes MBFC Tower 3 #26 - 04 (8,730 SF) 62 Workstations
© 2022 CBRE Group, Inc Information herein is based on third party sources we believe reliable and we do not assure its accuracy or completeness Offerings are subject to price changes, rental, other conditions, prior sale, lease or financing, or withdrawal without notice Historical estimates are for reference only, and do not promise current or future performance You should hire your own professional advisors to investigate the property and transaction Typical Floor Plan Subject to changes Location Map CapitaGreen Raffles Place Micro Market | 138 Market Street, S(048946) Property Information Year Built. (Refurbished) December 2014 Ownership CapitaLand Nearest MRT Station 5 mins walk to Raffles Place MRT Net Lettable Area ~700,000 sq ft Total Floors (Office) 40 Storeys (Office: 34 Storeys) Flex Operator The Work Project & Servcorp Notable Specifications Typical Floor Plate ~22,000 sq ft Floor to Ceiling Height 3.2 m Floor System 150mm Raised Flooring Occupancy Load 3.5kN/m2 Air Con System Centralised System Green Rating Greenmark Platinum Carpark Allocation Total Lots 180 lots [ 1 : 4,500 sq ft ] Current Rate $ 450 / lot / month
© 2022 CBRE Group, Inc Information herein is based on third party sources we believe reliable and we do not assure its accuracy or completeness Offerings are subject to price changes, rental, other conditions, prior sale, lease or financing, or withdrawal without notice Historical estimates are for reference only, and do not promise current or future performance You should hire your own professional advisors to investigate the property and transaction Subject to changes CapitaGreen #21 - 04 (6,550 SF) Existing Layout 67 Workstations
© 2022 CBRE Group, Inc Information herein is based on third party sources we believe reliable and we do not assure its accuracy or completeness Offerings are subject to price changes, rental, other conditions, prior sale, lease or financing, or withdrawal without notice Historical estimates are for reference only, and do not promise current or future performance You should hire your own professional advisors to investigate the property and transaction Typical Floor Plan Subject to changes Location Map Guoco Tower Tanjong Pagar Micro Market | 1 Wallich Steet, S(078881) Property Information Year Built. (Refurbished) September 2016 Ownership GuocoLand Nearest MRT Station 5 mins sheltered walk to Tanjong Pagar MRT Net Lettable Area 880,000 sq ft Total Floors (Office) 62 Storeys (Office: 31 Storeys) Flex Operator Regus Notable Specifications Typical Floor Plate 27,000 30,000 sq ft Floor to Ceiling Height 2.9 m Floor System 150mm Raised Flooring System Occupancy Load 4.0 kN/m2 Air Con System Centralised VAV System Green Rating Greenmark Platinum Carpark Allocation Total Lots 233 lots [ 1 : 4,500 sq ft ] Current Rate $ 320 / lot / month
© 2022 CBRE Group, Inc Information herein is based on third party sources we believe reliable and we do not assure its accuracy or completeness Offerings are subject to price changes, rental, other conditions, prior sale, lease or financing, or withdrawal without notice Historical estimates are for reference only, and do not promise current or future performance You should hire your own professional advisors to investigate the property and transaction Subject to changes Guoco Tower #20 - 01A (6,495 SF) Subdivision Plan Existing Layout 77 Workstations
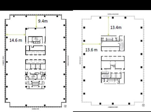
© 2022 CBRE Group, Inc Information herein is based on third party sources we believe reliable and we do not assure its accuracy or completeness Offerings are subject to price changes, rental, other conditions, prior sale, lease or financing, or withdrawal without notice Historical estimates are for reference only, and do not promise current or future performance You should hire your own professional advisors to investigate the property and transaction Typical Floor Plan Subject to changes Location Map IOI Central Boulevard Towers Marina Bay Micro Market | 2 Central Boulevard, S(018916) Property Information Year Built. Est. TOP October 2023 Ownership IOI Properties Nearest MRT Station 2 mins walk to Downtown MRT Net Lettable Area East: 229,000 sf | West : 890,0000 sf Total: 1.258 mil sq ft Total Floors (Office) East: 9 Storeys | West: 40 Storeys Notable Specifications Typical Floor Plate East: 25,400 sq ft West: 21,500 23,000 sq ft Floor to Ceiling Height East: 2.9m | West: 2.8m Floor System 150 mm Raised Floor Occupancy Load 3.5 kN / m² Air Con System District Cooling Chilled Water Green Rating Slated to be Green Mark Platinum Carpark Allocation Total Lots 266 Lots Current Rate To Be Determined
© 2022 CBRE Group, Inc Information herein is based on third party sources we believe reliable and we do not assure its accuracy or completeness Offerings are subject to price changes, rental, other conditions, prior sale, lease or financing, or withdrawal without notice Historical estimates are for reference only, and do not promise current or future performance You should hire your own professional advisors to investigate the property and transaction Subject to changes IOI Central Boulevard Towers Typical Floor, Proposed Subdivision (9,579 SF) 81 Workstations Test Fit Plan
© 2022 CBRE Group, Inc Information herein is based on third party sources we believe reliable and we do not assure its accuracy or completeness Offerings are subject to price changes, rental, other conditions, prior sale, lease or financing, or withdrawal without notice Historical estimates are for reference only, and do not promise current or future performance You should hire your own professional advisors to investigate the property and transaction Subject to changes IOI Central Boulevard Towers West Tower - Low Mid Zone Views taken from L22 Towards Marina South A B C D A Towards Marina Bay > C Towards Telok Ayer B Towards Tanjong Pagar D Lift Lobby Subdivision Line >
© 2022 CBRE Group, Inc Information herein is based on third party sources we believe reliable and we do not assure its accuracy or completeness Offerings are subject to price changes, rental, other conditions, prior sale, lease or financing, or withdrawal without notice Historical estimates are for reference only, and do not promise current or future performance You should hire your own professional advisors to investigate the property and transaction Typical Floor Plan Subject to changes Location Map Marina Bay Financial Centre T1 Marina Bay Micro Market | 8 Marina Boulevard, S(018983) Property Information Year Built. (Refurbished) March 2010 Ownership Raffles Quay Asset Management Nearest MRT Station 2 mins walk to Downtown MRT Net Lettable Area 614,000 sq ft Total Floors (Office) Office: 29 storeys Flex Operator ServCorp Notable Specifications Typical Floor Plate 20,000 sq ft Floor to Ceiling Height 2.75 m Floor System Approx. 180 mm Raised Floor Occupancy Load 3.5 kN / m² Air Con System District cooling system with 2 AHUs per floor Green Rating BCA Greenmark Gold Carpark Allocation Total Lots 440 (tenants) & 250 (visitors) [ 1 lot: 3,800 sq ft ] Current Rate $450 / Lot / Month
© 2022 CBRE Group, Inc Information herein is based on third party sources we believe reliable and we do not assure its accuracy or completeness Offerings are subject to price changes, rental, other conditions, prior sale, lease or financing, or withdrawal without notice Historical estimates are for reference only, and do not promise current or future performance You should hire your own professional advisors to investigate the property and transaction Subject to changes MBFC Tower 1 #08 - 02 (9,612 sf) Test Fit Plan 78 Workstations
© 2022 CBRE Group, Inc Information herein is based on third party sources we believe reliable and we do not assure its accuracy or completeness Offerings are subject to price changes, rental, other conditions, prior sale, lease or financing, or withdrawal without notice Historical estimates are for reference only, and do not promise current or future performance You should hire your own professional advisors to investigate the property and transaction Typical Floor Plan Subject to changes Location Map Guoco Midtown City Hall/Bugis/Beach Rd Micro Market | 128 Beach Road, S(189773) Source: OneMap Property Information Year Built. (Refurbished) Expected TOP Q4 2022 Ownership Guocoland (Singapore) Pte Ltd Nearest MRT Station 4 mins walk to Bugis MRT Net Lettable Area 709,000 sq ft Total Floors (Office) 31 Storeys (Office: 22 Storeys) Flex Operator Landlord Operated Notable Specifications Typical Floor Plate 27,000 sq ft 30,000 sq ft Floor to Ceiling Height 3.3 m Floor System 150mm raised flooring Occupancy Load 3.5 7.5 kN /M2 Air Con System Centralised Chilled Water System Green Rating Greenmark Platinum Carpark Allocation Total Lots 300 lots Current Rate To be advised LOW RISE ( 8th 18th STOREYS)
© 2022 CBRE Group, Inc Information herein is based on third party sources we believe reliable and we do not assure its accuracy or completeness Offerings are subject to price changes, rental, other conditions, prior sale, lease or financing, or withdrawal without notice Historical estimates are for reference only, and do not promise current or future performance You should hire your own professional advisors to investigate the property and transaction Subject to changes Guoco Midtown #21 - 03 (7,359 sf) 70 Workstations Test Fit Plan
© 2022 CBRE Group, Inc Information herein is based on third party sources we believe reliable and we do not assure its accuracy or completeness Offerings are subject to price changes, rental, other conditions, prior sale, lease or financing, or withdrawal without notice Historical estimates are for reference only, and do not promise current or future performance You should hire your own professional advisors to investigate the property and transaction Typical Floor Plan Subject to changes Location Map 30 Raffles Place Raffles Place Micro Market | 30 Raffles Place, S(048622) Property Information Year Built. (Refurbished) 17 Jan 2020 Ownership Oxley Holdings Limited Nearest MRT Station Direct access to Raffles Place MRT Net Lettable Area 373,905 sq ft Total Floors (Office) 32 Storeys + 1 Basement (Office: 30 Storeys) Flex Operator WeWork Notable Specifications Typical Floor Plate 9,763 12,314 sq ft Floor to Ceiling Height 2.7M Floor System Cement Screed Occupancy Load 4 kN/m2 Air Con System Centralised Chilled Water System Green Rating Green Mark Platinum Carpark Allocation Total Lots 71 Lots [ 1 : 8,000 sq ft ] Current Rate $350 / Lot / Month
© 2022 CBRE Group, Inc Information herein is based on third party sources we believe reliable and we do not assure its accuracy or completeness Offerings are subject to price changes, rental, other conditions, prior sale, lease or financing, or withdrawal without notice Historical estimates are for reference only, and do not promise current or future performance You should hire your own professional advisors to investigate the property and transaction Subject to changes 30 Raffles Place L25 (9,483 SF) Existing Layout Test Fit Plan 78 Workstations
© 2022 CBRE Group, Inc Information herein is based on third party sources we believe reliable and we do not assure its accuracy or completeness Offerings are subject to price changes, rental, other conditions, prior sale, lease or financing, or withdrawal without notice Historical estimates are for reference only, and do not promise current or future performance You should hire your own professional advisors to investigate the property and transaction Typical Floor Plan Subject to changes Location Map Suntec Tower 1 Suntec Micro Market | Source: OneMap 7 Temasek Boulevard, S(038987) Property Information Year Built. (Refurbished) November 1995 Ownership Strata Titled Nearest MRT Station 3 mins walk to Promenade MRT, Covered Access Net Lettable Area 470,359 sq ft Total Floors (Office) 44 Storeys + 2 Basements (Office: 40 Storeys) Flex Operator Nil Notable Specifications Typical Floor Plate 11,800 = 14,300 sq ft Floor to Ceiling Height 2.75m Floor System Under Floor Trunking Occupancy Load 4.5 kN / m2 Air Con System Centralised VAV System Green Rating Carpark Allocation Total Lots 3,251 [ 1 : 3,000 sq ft ] Current Rate $240 / Lot / Month
© 2022 CBRE Group, Inc Information herein is based on third party sources we believe reliable and we do not assure its accuracy or completeness Offerings are subject to price changes, rental, other conditions, prior sale, lease or financing, or withdrawal without notice Historical estimates are for reference only, and do not promise current or future performance You should hire your own professional advisors to investigate the property and transaction Subject to changes Suntec Tower 1 L35 (10,096.54 SF) Existing Layout Test Fit Plan 122 Workstations

Co-Working Options

Prepared for Qualtrics

© 2022 CBRE Group, Inc Information herein is based on third party sources we believe reliable and we do not assure its accuracy or completeness Offerings are subject to price changes, rental, other conditions, prior sale, lease or financing, or withdrawal without notice Historical estimates are for reference only, and do not promise current or future performance You should hire your own professional advisors to investigate the property and transaction Subject to changes 21 Collyer Quay WeWork #06 - W101 (~4,000 SF) $100,000 + GST per month
© 2022 CBRE Group, Inc Information herein is based on third party sources we believe reliable and we do not assure its accuracy or completeness Offerings are subject to price changes, rental, other conditions, prior sale, lease or financing, or withdrawal without notice Historical estimates are for reference only, and do not promise current or future performance You should hire your own professional advisors to investigate the property and transaction
to changes 21 Collyer Quay WeWork Shared Amenities
Subject
© 2022 CBRE Group, Inc Information herein is based on third party sources we believe reliable and we do not assure its accuracy or completeness Offerings are subject to price changes, rental, other conditions, prior sale, lease or financing, or withdrawal without notice Historical estimates are for reference only, and do not promise current or future performance You should hire your own professional advisors to investigate the property and transaction
to changes Asia Square Tower
The Work Project #10 -27/28 (~2,114 SF) 65 w/s
Subject
2
© 2022 CBRE Group, Inc Information herein is based on third party sources we believe reliable and we do not assure its accuracy or completeness Offerings are subject to price changes, rental, other conditions, prior sale, lease or financing, or withdrawal without notice Historical estimates are for reference only, and do not promise current or future performance You should hire your own professional advisors to investigate the property and transaction Subject to changes
The Great Room #16 - 01 (~3,500 SF) 80 w/s
Afro Asia Building
© 2022 CBRE Group, Inc Information herein is based on third party sources we believe reliable and we do not assure its accuracy or completeness Offerings are subject to price changes, rental, other conditions, prior sale, lease or financing, or withdrawal without notice Historical estimates are for reference only, and do not promise current or future performance You should hire your own professional advisors to investigate the property and transaction
to changes MBFC Tower 2 Bayspace #08 - 06 (~4,450 SF) 72 w/s Expansion Option Additional
Subject
ADVISORY & TRANSACTION SERVICES Contact Us © Copyright 2022 All rights reserved This report has been prepared in good faith, based on CBRE’s current anecdotal and evidence based views of the commercial real estate market Although CBRE believes its views reflect market conditions on the date of this presentation, they are subject to significant uncertainties and contingencies, many of which are beyond CBRE’s control In addition, many of CBRE’s views are opinion and/or projections based on CBRE’s subjective analyses of current market circumstances Other firms may have different opinions, projections and analyses, and actual market conditions in the future may cause CBRE’s current views to later be incorrect CBRE has no obligation to update its views herein if its opinions, projections, analyses or market circumstances later change Nothing in this report should be construed as an indicator of the future performance of CBRE’s securities or of the performance of any other company’s securities You should not purchase or sell securities of CBRE or any other company based on the views herein CBRE disclaims all liability for securities purchased or sold based on information herein, and by viewing this report, you waive all claims against CBRE as well as against CBRE’s affiliates, officers, directors, employees, agents, advisers and representatives arising out of the accuracy, completeness, adequacy or your use of the information herein Agency License No.: L3002163I Singapore Louise Toovey Senior Director Advisory & Transaction Services CEA Reg. No. R043716Z M: +65 8189 9535 E: louise.toovey@cbre.com.sg Victoria Tan Associate Director Advisory & Transaction Services CEA Reg. No. R057482E M: +65 9022 5216 E: victoria.tan@cbre.com.sg
Issuu converts static files into: digital portfolios, online yearbooks, online catalogs, digital photo albums and more. Sign up and create your flipbook.
A&T - Recommended Options by CBRE-SEA - Issuu