【20230725ウェビナー】CBRE説明資料

Page 1

2023/7/25

物件概要

ビル名称 INPEX新潟ビルディング

所在地 新潟県新潟市中央区東大通一丁目29番、40番(地番)

交通 JR新潟駅徒歩2分

建築主 株式会社INPEXビジネスサービス

設計 大成建設株式会社一級建築士事務所

施工 大成建設株式会社 北信越支店

竣工 2024年9月末(予定)

用途 事務所、店舗(ショールーム、飲食店)、駐車場(自走式231台)

階数 事務所棟:地上10階 駐車場棟:6階

構造

主体構造:鉄筋コンクリート(壁柱構造)

特殊構造:基礎免震(高原衰積ゴム支承、オイルダンパー)

建築面積 2,493.05㎡

延床面積 19,289.73㎡

イメージ

2. 建物構成

3. オフィススペック

4. 対応・環境性能

イメージ
目次 アクセス 1.

アクセス

INPEX新潟ビルディング

新潟駅まで 徒歩約2分

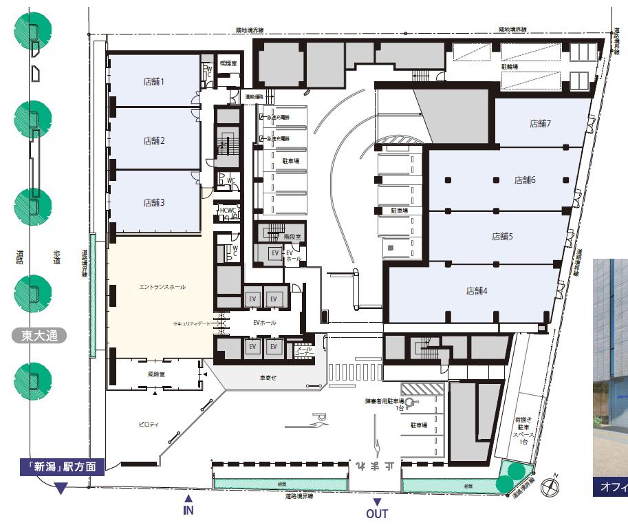
1階配置図

新潟ビルディング

イメージ
イメージ
イメージ

建物構成

INPEX新潟ビルディング

建物構成
2F-10F オフィス 1F 店舗 2F-RF 駐車場
新潟ビルディング
• 自走式駐車場 231台 • 急速EV充電器 2台
オフィスに自走式駐車場を併設
1Fと5Fでオフィスと駐車場を接続
駐車場
オフィスフロアプラン 分割フロアプラン ワンフロアプラン 基準階面積: 325.65坪(1,076.53㎡) 分割フロア面積: 287.06坪(948.95㎡)

貸室面積100坪前後のご提案区画

INPEX
① 30.31坪 + ② 24.39坪 + ③ 24.39坪 + ④ 24.39坪 ⇒ 103.48坪 ④ 24.39坪 + ⑤ 24.39坪 + ⑥ 51.50坪 ⇒ 100.28坪 ⑤ 24.39坪 + ⑥ 51.50坪 + ⑦ 24.39坪 ⇒ 100.28坪 ⑥ 51.50坪 + ⑦ 24.39坪 + ⑧ 24.39坪 ⇒ 100.28坪
新潟ビルディング
INPEX
貸室面積
坪前後のご提案区画 ① 30.31坪 + ② 24.39坪 + ③ 24.39坪 ⇒ 79.09坪 ⑥ 51.50坪 + ⑦ 24.39坪 ⇒ 75.89坪 ⑧ 24.39坪 + ⑨ 24.39坪 + ⑩34.50坪 83.28坪
新潟ビルディング
70~80
INPEX
貸室面積
① 30.31坪 + ② 24.39坪 ⇒ 54.70坪 ③ 24.39坪 + ④ 24.39坪 ⇒ 48.78坪 ⑥ 51.50坪 ⇒ 51.50坪 ⑦ 24.39坪 + ⑧ 24.39坪 ⇒ 48.78坪 ⑨ 24.39坪 + ⑩34.50坪 ⇒ 58.89坪
新潟ビルディング
50坪前後のご提案区画
INPEX新潟ビルディング 貸室面積20~30坪前後のご提案区画 24.39坪(区画2~5、 7~9) 30.31坪(区画1)、34.49坪(区画10)
基準階共用部のイメージ イメージ イメージ
INPEX新潟ビルディング

オフィス仕様

イメージ
OAフロア:100mm 天井高 2,800mm ダブルスキン方式 ダブルスキン+高断熱 Low-eペアガラス LED照明 床荷重500kg/㎡ ヘビーデューティーゾーン1,000kg/㎡ イメージ

対応と環境性能

非常用発電機など災害時の安心・安全を確保するBCP対応

~停電時にも電力を確保する給電システム~

CASBEE新築で最高のSランク達成を目指します。

地震リスクを低減し無柱空間を 実現できる「免震+RC壁柱」構造

ZEB Ready認証の取得を目指します。

INPEX

INPEX新潟ビルディング

Issuu converts static files into: digital portfolios, online yearbooks, online catalogs, digital photo albums and more. Sign up and create your flipbook.