


COA nO: CA/2020/124658
Address - BAithul BArique (h) KunnAthupAlAm, PO GA COllege ,CAliCut-14
no-04-21
KerAlA - indiA dOB :11- April - 1996
COntACt : mAil - dilkushmarjanvp@gmail.com mOB - +971 566198717 +91 8714494654
instagram.com/_dilkush_marjan facebook.com/dilkush.marjan linkedin.com/in/dilkush-marjan
I am a highly self-motivated, confident and professional individual, a good team player who possesses excellent problemsolving skill, curiosity to learn about new things, and attention to detail. A strong believer in the ability of architecture and research combined with design thinking for strengthening and having a positive impact on the world.
GSAP
Bachelor of Architecture 2015-2020
Whitefield - Bangalore RAHMANIYA HSS 2012-2014
Higher secondary Education Medical College- Calicut
OLIVE EM SCHOOL 2000-2012
Schooling from Kindergarden to High School Kinassery-Calicut
Fplus Architects-Calicut
2 Year experience- Aug 2020 - April 2022
Successfully completed 10 out of 25 projects with in time span of 2 years. Solely trained and oversaw the work of 2 junior architects and interns. Effectively handled most of the works on site and off-site with effective communication with clients to ensure we met their needs and vision timely and efficiently.
Elevation Designs,3d modeling,Architecture Visualization
INTERNSHIP
Fplus Architects-Calicut 7 months - July 2018 - Jan2019
HOUSING COMMERCIAL INSTITUTIONAL VILLA RESIDENCE
ANNUAL NASA CONFERENCE 2018
MOHAMMED SAHEER LANDSCAPE TROPHY AND-2018
BAMBOO WORKSHOP & TENSEGRITY ANC-2018
GSAP INNOVATIVE DESIGN COMPETITION WINNERS -2017
ZONE5 NASA FOOTBALL RUNNER UPS -2018
COLLEGE BADMINTON DOUBLES CHAMPIONS -2019
COLLEGE CRICKET TEAM CHAMPIONS - 2020
PHOTOSHOP, SKETCHUP, LUMION, AUTOCAD, REVIT.
SKILLED IN : rhinoCeros,GrasshoPPer, INDESIGN, VRAY,ILLUSTRATOR.
Type : RESIDENTIAL
Location:Vibhuthipura - Bangalore
Studio : 8th sem GSAP
Guide :Ar.Manu Kashyap
Date :May 2019
HEXAGON - LAKE VIEW APARTMENT:10 Story Residential Apartment tower with a beautiful lake view on the Bank of Vibhuthipura Lake in Bangalore. The site is situated in a residential locality with easy access to main Nodes. Two towers of apartments with 1BHK and 2BHK Housing units shared by a common central courtyard.The Name itself evolved from the private balcony concept with Hexagonal shape,which creates a sense of privacy and allows maximum natural light inside through the large balcony openings.
Two identical towers facing each other with one side lake view and central courtyard concept arranged in a perticular manner with cross ventilation between the building forms .
2BHK Apartments have individual balconys facing the courtyard/lake view.Small entrance foyer leadings to the dining and Living space.open kitchen and utility space have clearstory for natural lighting and ventilation
1BHK Apartments have large windows. Small entrance foyer leadings to the dining and Living space.open kitchen and utility space have clearstory for natural lighting and ventilation
Central Courtyard is a Space for interaction.it has multiple seating spaces which arranged in such a way that people will get a space to sit and interact and build the community strong
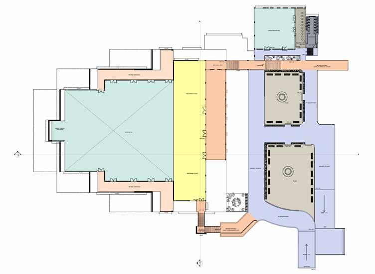
Type : MOSQUE (Public building)
Location:Whitefield
Studio :Xth sem GSAP (THESIS)
:Ar.Venkitesh
Date :June 2020
WAHADATH - CENTRE FOR SPIRITUAL GATHERING AND CULTURAL LEARNING : Thesis aim to create a space for spiritual gathering and cultural learning that incorporate the effect of architecture on human spiritual beliefs. It seeks not only create a huge mosque with large space and a spiritual Centre but one where the space which gives spiritual and how they connects with the god along with everybody else as a communal entity
Connecting Space
Secondary Structures
Supporting Facilities
Public Access
Views To Site
To avoid the deviation of visuals from the Centre of attraction of the project that the mosque and the spiritual Centre , isolated all the supporting facilities to one corner of the site and the space between mosque and spiritual Centre create interaction between Muslims and other religion.
The design of the Mosque, including the form and plan has been evolved from the ‘Praying hand’ posture. The concept forms an organic design and can house 15002000 people at once. It also includes a Ladies prayer hall on the north east corner that houses 150- 200
ladies. A mezzanine floor that is provided for NonMuslims where they can watch them pray while standing next to each other, shoulder to shoulder symbolizing disregard for social status. The mezzanine leads to the Spiritual Centre. Only one entry and exit been provided to maximize interaction among the people. The white color for the building symbolize peace and
LEGENDS
Prayer hall
Circulation Outrside
Central Plaza
Restrooms
Circulation inside Mezzanine Floor Ablution
Way to Spiritual centre through mezzanine floor
Type : SPIRITUAL CENTRE (Public building)
GSAP
:Ar.Venkitesh
:June 2020
SPIRITUAL CENTRE -The spiritual Centre is a space that can be used by anyone regardless of their faith. The intention of this Centre is to provide a shared space for all people who can interact, educate and share their beliefs and knowledge. Although, the desired objective will not be achieved immediately,but the community will gradually grow stronger and will understand the need for a space like this. It can also be used to conduct various religious or spiritual programs
The building form has evolved from the praying hand posture which symbolizes the idea of togetherness and unity.
Rotating cuboid in
angle
North Wall
Tinted glass (North side)
Waterbody
South Wall
Louvers (South Wall)
WATER signifies a large aspect of nature and has a tremendous effect on people due to its form, color ,and texture. One primary feature of water that really affects our mindset is the property of floating. The sense of floating in water leads you to a controlled state of mind and body that heals us. This has been used as a concept for my design where the Spiritual Centre experiences the sense of floating by being isolated on a water body that promotes a calm and tranquil environment.
Exposed concrete, Teakwood and Tinted glass are the primary materials used in the structure. Exposed concrete forms the basic structural support. To highlight the concept of praying hands rather than the form from the outside, teak wood has been used to create an organic form inside the building. Tinted glass on the north side minimizes the quantity of daylight entering the building. The harsh sunlight from the southern side is dealt with by providing vertical louvers
Type : COMMERCIAL
Location:CALICUT
Studio :FPLUS Architects
Guide :Ar.Muhammed Firoz
Date :September 2021
DOAA Proposed design of 1.25lakh square feet shopping complex in the middle of a busy suburban city called Koduvally in Calicut district Kerala. Koduvally is also known as the GOLD souq of the district. So the client wanted to bring the Jewelery shops on the ground floor, and other clothing and apparel on the second and third floor respectively. Food and fun activities on the fourth floor. The form of the building evolved from the site shape itself generating maximum footprint for the building without losing the shopping experience.
Project role :Design development , concepts ,conceptual 3d,Discussion with client and Drawings.