Disha_Tomar_Portfolio

Page 1

portfolio Interior Architecture & Design Disha Tomar

DISHA TOMAR

Interior Architect

Passionate interior architect skilled in conceptualizing and implementing innovative design solutions for residential and commercial spaces. Dedicated to reshaping the relationships between humans, space, and nature. Proficient in space planning, project management, material selection, and overseeing project lifecycles.

EDUCATION

Present- Master of Arts in Interior Architecture & Design

2023 Academy of Art University, San Francisco, USA.

2014 - Bachelor of Architecture

2020 School of Architecture, IPS Academy, Indore, India

WORK EXPERIENCE

2020-2022 ASSOCIATE ARCHITECT/DESIGNER

Studio Sanjay Shah Associate Architects & Interior Designers

- Design and execution of diverse projects spanning residential, commercial, healthcare, and hotel spaces.

- Created mood boards, sketches, plans, elevations, and 3D renderings using AutoCAD, SketchUp, Photoshop, and Lumion to visualize design concepts for projects.

- Acted as a key liaison between clients, consultants, and the project team, ensuring clear communication and alignment with project objectives.

SIMCHA ISLAND (CENTRAL INDIA’S BIGGEST AMUSEMENT PARK PROJECT)

- Developed an intricate concept design for the main restaurant.

- Created presentations, physical material mood boards, interior elevations, and floor plans.

2019-2020 INTERN ARCHITECT

Studio Sanjay Shah Associate Architects & Interior Designers

ACHIEVEMENTS

● Registered Architect (Council of Architects, India)

Featured on a news channel for achieving a top 10 national ranking in a Science Exhibition for the Smart City Project.

● Head Social Worker at Kasturba Gandhi (NGO), India

● National Level Kathak (Traditional) Dancer

● Won First Prize for Sustainable Home Design at National Association of Student of Architecture)

IAD Club Portfolio Winner 2024 at Academy of Art University

TECHNICAL TOOLS

AutoCAD I Revit I Sketchup I Lumion I Enscape I Adobe Photoshop I Midjourny I Microsoft Office

San Francisco, CA

+1 341-213-8959

dishatomar095@gmail.com

linkedin.com/in/disha-tomar-8b14a2194

- Conducted in-depth research and analysis on various residential projects, providing valuable insights that informed design decisions and solutions for complex spatial challenges.

- Supported the lead architect and designer in creating final layouts and space planning for commercial and residential projects.

DESIGN SKILLS

Concept Development I Space Planning I Architectural Drafting I Sketching I Furniture Selection I Material Sourcing I Sustainable Design I Design Trends I Building Codes

INTERPERSONAL SKILLS

Communication I Critical Thinking I Team Collaboration

I Problem Solving I Time Management I Multi-tasking I Highly Organized I Adaptability

CONTENTS 01 03 02 04 HILL VIEW RESIDENCE EL OCASO CAFE & BAKERY MEDICAL CENTER LONE OAK SPA RESIDENTIAL COMMERCIAL COMMERCIAL RESIDENTIAL

01 HILL VIEW

Location: Indore, India

Area: 13,000 Sq. ft

Property Type: Residential

Professional Project

PROJECT OVERVIEW

Hill View, a luxurious home design spanning over 13,000 square feet set against the tranquil landscape is located in Indore, India. Hill View offers a peaceful retreat from the bustling city life. Residents can enjoy the beauty of nature right from their doorstep, with stunning views of the nearby hills. Residents of Hill View can indulge in a range of luxurious amenities, including a well-appointed kitchen, spa-like bathrooms, landscaped gardens, and a private terrace to soak in the panoramic views.

2024 I Disha Tomar I Inter or Architecture & Design Portfolio 01

FORM FORMATION

The building's composition is a harmonious interplay of rectilinear volumes, delineated by crisp edges and defined by proportional relationships, creating a sense of order and stability within its architectural expression. Each rectangular form, carefully arranged in sequence, contributes to the building's overall visual rhythm and spatial coherence, embodying a timeless elegance in its design.

GROUND FLOOR CONCEPT

The Hill View house is surrounded by nature which revolve around harmonizing the interior with the natural surroundings, creating a seamless connection between indoor and outdoor spaces. The concept for the house is on the idea of "organic luxury," where natural elements and materials are integrated into the design to complement the outdoor landscape. This involves large windows that frame panoramic views of the surrounding nature using sustainable and locally sourced materials like wood, stone, and glass, and incorporating biophilic design principles to bring elements of nature indoors.

LIVING ROOM BEDROOM GUEST BEDROOM DINING TEMPLE 16'0"X24'0" 30'0"X26'0" INFORMAL DINING 15'0"X10'0" 12'0"X14'0" BEDROOM KITCHEN 15'0"X20'0" STORE UTILITY 14'0"X7'0" BEDROOM 10'0"X10'8" LIVING/ KITCHEN SERVANT 11'8"X10'8" LOBBY ENTRANCE DRAWING ROOM 20'0"X23'0" TOILET TOILET SIT OUT 12'0"X24'0" SIT OUT 14'0"X5'4" TOILET 11'0"X13'0" 14'0"X16'0" BEDROOM BEDROOM BEDROOM 16'0"X17'5" WALK IN WARDROBE 11'0"X18'0" TOILET 11'0"X5'0" LOUNGE 12'0"X13'0" 11'6"X17'9" 11'6"X17'9" DRESS TOILET 12'2"X6'9" 12'2"X5'9" DRESS 15'6"X13'0" TOILET 6' WIDE PASSAGE PLANTER LIFT LIFT SIT OUT 14'0"X5'4"
02
2024 I Disha Tomar I Inter or Architecture & Design Portfolio
03 LIVING AREA 2024 I Disha Tomar I Inter or Architecture & Design Portfolio

KITCHEN 3D RENDERS

KITCHEN LEVATIONS

04 2024 I Disha Tomar I Inter or Architecture & Design Portfolio
05 3D EXTERIOR RENDER 2024 I Disha Tomar I Inter or Architecture & Design Portfolio

WINTHROP MEDICAL CENTER

Location: 530 Spring St, Arkansas

Area: 16,00Sq. ft

Project Type: Remodeling Heritage Building

Academic Project

PROJECT OVERVIEW

Situated at 530 Spring St in Winthrop, within the picturesque Little River Country on the southwest border of Arkansas, stands a two-story 1913 Georgian Colonial Revival Style school building. This historic gem is proudly listed on the Arkansas Register of Historic Places. For this building, the project entails a revolutionary undertaking. Specifically, one half of the first floor will be transformed into a modern medical facility, and the other half will remain a museum.

02
06
2024 I Disha Tomar I Inter or Architecture & Design Portfolio

CONCEPT

The concept was around the idea of "a Life Space”, a welcoming space. Lewin (1936) a German-American psychologist defined 'life space' as the sum of all the effects on a person at any given time, including both the exterior and interior personal environments. The conceptualization of field theory and 'life space' necessitates a way of viewing outcomes that takes into consideration the interplay between the person and the environment.

SCHEMATIC DEVELOPMENT

ADJANCENCY MATRIX

Primary adjacency

Secondary adjacency

Undesired adjacency

Consultation Office

Exam Room

Restroom Admin Office

FLOOR PLANS

Nurse Station

Break Room

Reception Waiting Store

Escape Hatch

Consu tation Office Consultation Off ce Exam Room Exam Room Exam Room Exam Room Restroom 1 Restroom 2 Breakroom Admin office Nurse Station
07
Option
2024 I Disha Tomar I Inter or Architecture & Design Portfolio
Option 2
3 Option 1

AXONOMETRIC

DETAILS

DESIGN APPORACH

The goal is to utilize the available space effectively by seamlessly integrating plants, natural elements, ample natural light, and a clean, minimalist aesthetic into the design. This involves strategically placing greenery to enhance indoor air quality, incorporating biophilic elements to create a sense of calm and connection with nature, and utilizing materials like wood, stone, and earthy textures to promote a serene ambiance. Maximizing natural light through thoughtful window placements and open layouts not only reduces energy usage but also enhances the overall atmosphere of the space. By adhering to clean design principles and ensuring clutter-free environments, the objective is to create spaces that support hygiene standards and tranquility, ultimately fostering wellness, productivity, and a harmonious experience for occupants within the given space constraints.

NATURE HEALING

Incorporating natural plants into a medical center offers numerous benefits that contribute to a healthier and more pleasant environment for patients and staff alike. Studies have shown that exposure to nature, even in indoor settings with plants, can lead to faster recovery times and improved overall well-being.

"Contact with nature offers restorative benefits, promoting healing and enhancing the quality of life in healthcare environments."

VIEW
Sword fern
Chinese Evergreen
Dracaena Corn Plant
08 2024 I Disha Tomar I Inter or Architecture & Design Portfolio
Width-22" Depth-27" Height-47" Weight-35 lb Floor Lamp in Consultation Office
seating in waiting area
Lighting Lamp
Wall mount shelf Ecos wall paint Floor coverings Hardwood Wallcovering Coaster Furniture
Wooden
Office table Gaby exclusive chair
09 2024 I Disha Tomar I Inter or Architecture & Design Portfolio
MATERIAL BOARD Details BREAK ROOM VIEW
"In nature, we find beauty in the organic flow of shapes, a harmonious dance of form and function."

CONSULTATION OFFICE

Co u n O e o s o O c am o m E mR om x m oom x m oom e o m R o m2 B k om dm e N r S n
3D RENDERS
2024 I Disha Tomar I Inter or Design Portfolio 10 EXAM
ROOM

EL OCASO CAFE & BAKERY

Location: Presidio, San Francisco

Area: 12,00Sq. ft

Academic Project PROJECT OVERVIEW

El Ocaso Cafe and Bakery is located in Presidio, San Francisco. The project focuses on establishing an affordable dining experience where people can relax and enjoy delicious American cuisine and bakery delights. The focus was on designing functional yet visually appealing seating areas, incorporating elements that promote relaxation and social interaction.

DESIGN APPROACH

The goal is to create a space that balances affordability an comfort while maintaining a stylish ambiance. The design emphasizes functional yet visually appealing seating areas that encourage relaxation and social interaction. By incorporating natural materials and warm tones, we enhance the welcoming atmosphere, while strategic lighting adds to the cozy and inviting feel.

03
11 2024 I Disha Tomar I Inter or Architecture & Design Portfolio

CONCEPT

El ocaso is Spanish word for "sunset." The concept and inspiration come from the mesmerizing Miami sunset, which paints the sky with a kaleidoscope of fiery hues that blend seamlessly into the horizon. With a backdrop of centuriesold trees, picturesque trails, and iconic landmarks like the Golden Gate Bridge, an American cafe in the Presidio could offer patrons an immersive dining experience a blend of culinary delights with a view. Designing a cafe for such location adorned with shades of vibrant blue and pink, epitomizes a fusion of psychological, behavioral, and cultural elements in design. The deliberate choice of calming blue and inviting pink hues creates an ambiance that not only soothes patrons but also encourages conviviality and relaxation, aligning perfectly with Miami's energetic cultural vibe.

SUNSET Miami BEACH NATURE SUNRAYS WAVES PALM TREES COLORS COLOR PALETTE
MIND MAPPING
12 2024 I Disha Tomar I Inter or Architecture & Design Portfolio

THE WAVE INSPIRED FLOOR

Stepping onto the mosaic tile flooring feels like embarking on a serene journey across the ocean's expanse. Tile mimic the graceful undulations of waves, creating a fluidity that captivates the senses. Shades of blue, green, and turquoise blend seamlessly, evoking the ever-changing hues of the sea. With each step, one can almost hear the gentle lapping of water against the shore, as if transported to a tranquil coastal paradise. This flooring concept brings the calming essence of the ocean indoors, offering a harmonious retreat for the soul.

PROCESS SKETCH

FLOOR PLANS

13
2024 I Disha Tomar I Inter or Architecture & Design Portfolio

MATERIAL, FINISHES AND FF&E

ECOS INTERIOR AIR PURIFYING PAINT

Water Based PH: 8-11

Viscosity: Variable

Low emitting paint

CHANNELS RESTAURANT BOOTH

Mix upholstery materials on seat and back Length 48" Height 42"

Seat Upholstery: T13 Light Blue wood Legs

Brand: Restaurant furnitue.com

DALTILE MEMOIR

12" x 12" Square Floor

Model:ME29SQ1212MTJJ1

Matte Visual

MAGNIFICA THE THIRTIES

30" x 30" - 8mm

Honed Porcelain Tile

Shape: Square

ITALIAN MARBLE

SKU:87458721

Ultra Matte Finish

Lab Design Collection

GRANDNOOR WHITE MARBLE STONE MERIDIAN FURNITURE BRANDY

Dimensions: 55"D x 31.5"W x 30"H

Color: White

Brand: GrandNoor

Material : Marble sintered stone

PINK VELVET DINING CHAIR

Seat Height : 17.8"

Color : Pink

Material: Velvet

Dimensions: 23"L x 19"W x 35"H

LEVANZO CREAM TERRAZZO TILE COUNTER TOP MARBLE - VAGLI CALACATTA

Materials: marble, concrete

Width: 16" Length: 16" , 3/4" thick

Color : Cream color Flat surface

Finish : Honed/Matte finish

Made in Italy

Calacatta
3 CM Slab
Type: Natural Stone Item Code: 93565457335 Description: Marble Vagli
Honed
14 2024 I Disha Tomar I Inter or Architecture & Design Portfolio
15 HAND SKETCH 3D RENDER 2024 I Disha Tomar I Inter or Architecture & Design Portfolio
16 3D RENDER 2024 I Disha Tomar I Inter or Architecture & Design Portfolio

04 LONE OAK SPA

Project Type: Remodeling Spa

Area: 194 Sq. ft

Academic Project

PROJECT OVERVIEW

Remodeling a small spa is a transformative project aimed at enhancing the overall guest experience. The design approach involves carefully reimagining the spa's interior design to create a tranquil and inviting atmosphere. This includes updating the aesthetic with natural elements, soothing colors, and comfortable furnishings to promote relaxation. Focusing on optimizing the layout for improved functionality and flow, ensuring a seamless experience for both guests and staff. Through thoughtful renovation, we aim to elevate every aspect of the spa, from the ambiance to the services offered, providing a rejuvenating retreat for clientele.

17 2024 I Disha Tomar I Inter or Architecture & Design Portfolio

CONCEPT MOOD BOARD

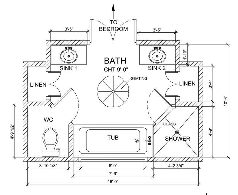
The concept of an Indian-Moroccan style bathroom is a captivating blend of two distinct yet harmonious design aesthetics, resulting in a luxurious and culturally rich spa space. Key features of this style include intricate patterns, vibrant colors , and ornate detailing. Traditional Indian architectural elements, such as intricately carved arches and decorative tiles. In an Indian-Moroccan style spa, expect to find luxurious elements like a beautifully crafted bathtub, porcelain tiles adorned with vibrant colors and elaborate patterns, and ornamental accents such as lantern-style lighting fixtures and mirrors. The fusion of warm Indian hues with the mesmerizing blues and greens of Moroccan design creates a visually stimulating atmosphere. This concept embodies a sense of opulence, cultural heritage, and exotic charm, offering a unique and indulgent bathing experience that transports individuals to the enchanting realms of both India and Morocco.

FLOOR PLAN

INITIAL DIGITAL SKETCHES

18 2024 I Disha Tomar I Inter or Architecture & Design Portfolio

DESIGN APPORACH

Lone oak spa is the fusion of Indian and Moroccan traditions. Inspired by rich colors, intricate patterns, and cultural elements. Design seamlessly integrates traditional motifs, luxurious textures, and soothing ambiance to offer a unique and immersive spa experience rooted in global heritage.

Lantern

Chandelier Terracotta Paint

Marble Stone

Cognac Brown

Leather Pouf

19
2024 I Disha Tomar I Inter or Architecture & Design Portfolio

FURNITURE DESIGN SKETCHES

INSPIRATION

SKETCHES

20
2024 I Disha Tomar I Inter or Architecture & Design Portfolio
you
thank
Disha Tomar

Turn static files into dynamic content formats.

Create a flipbook
Issuu converts static files into: digital portfolios, online yearbooks, online catalogs, digital photo albums and more. Sign up and create your flipbook.
Disha_Tomar_Portfolio by dishato - Issuu