








































Residential & Commercial Shop drawings & Pictures









Artist Studio
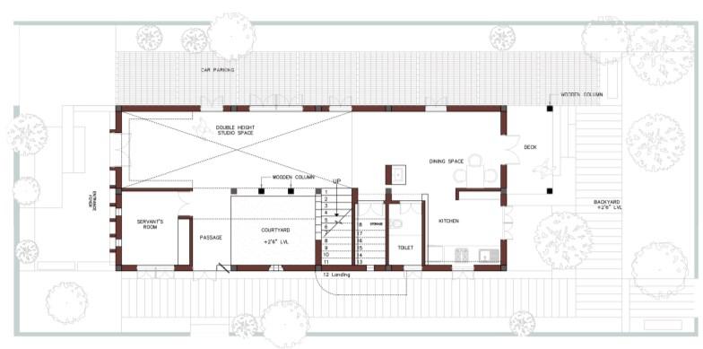
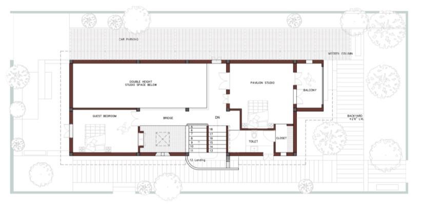
Studio for Sculptor & Residence space design
Miscellaneous Details & Shop Drawings







& Commercial





Layout – Commercial Project

electrical layout – Residential Project



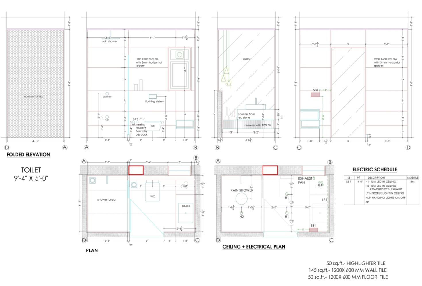
Bathroom layout – Residential Project





Sculptor’s atelier as an open, adaptable creative environment where spatial flow, light, and material character work together to support artistic practice. The space is organized around a clear and intuitive layout that encourages movement, interaction, and creative freedom, while the expressive façade and interior atmosphere reflect the raw, honest nature of the artist’s work.
Artist Studio
Studio Space for Sculptor
Curated experience of the space by thoughtfully integrating reused elements — including furniture, doors, and windows — to create a layered, sustainable, and emotionally resonant interior that celebrates memory, craft, and material continuity..












