Diseño de la Ciudad - 98

Page 1

JUNIO 2016 98 diseño de la ciudad DC

Urba Deco es una luminaria urbana LED con una forma única para proporcionar Iluminación ambiental de calidad en la ciudad. Es muy versátil, permite cubrir proyectos completos con consistencia de diseño, gracias a sus posibilidades de montaje. Urba Deco es válida para Iluminación urbana. Su diseño arquitectural le otorga a la ciudad una identidad única.

Urba Deco – Iluminación urbana arquitectural inteligente y sofisticada

Urba Deco

• Identidad única gracias a su diseño sofisticado

• Equilibrio entre prestaciones y confort

• 24 distribuciones fotométricas, y cinco modos de montaje

• Ligera y precableada para facilidad de instalación y libre de mantenimiento

• Columnas y brazos disponibles

www.thornlighting.com

Papelera Bruma Papelera

TU CIUDAD TU CIUDAD
VESTIMOS
Urbes21.com
Diseño Paul Henninge
98 diseño de la ciudad LUMÍNICA www.revistaluminica.es
DISEÑo DE LA CIUDAD www.diseñodelaciudad.es
PublicaciOnES Comge e ditoriAL, S.L .

logroño celebra la segunda edición de concéntrico, primer festival de arquitectura efímera en nuestro país 04 Estética urbana

nuevo acceso al centro histórico de Gironella (carles Enrich) 09 Espacios públicos

Reforma del puente de Sarajevo. barcelona (bcQ arquitectura barcelona) 14

urbanización y ajardinamiento de espacios libres en el barrio novo Mesoiro, a coruña (Estudio de arquitectura naOS) 18

El Paisaje como herramienta indispensable en la planificación y regeneración urbana (Rafael narbona) 22 Parques y jardines 26 Noticias

nuevo Paisaje nocturno para la ciudad de Ávila (Rafael Gallego) 32 Alumbrado público

Plaza de San Juan en irún (uzcanga arquitectos, slp) 38

la estación más vanguardista de Holanda y su estrategia luminotécnica 42

iluminación del entorno del Palacio de Deportes de cartagena 46

STElaRia, sistema para la gestión remota e inalámbrica punto a punto de alumbrado público 48

Rethink the night, en Kea , Grecia. (lara Elbaz) 50

Solución para la iluminación vial de copenhague 53

alumbrado vial con tecnología lED en la Ronda de Dalt de barcelona 58

novedades feria light+building en Francfort 60

Premios V concurso de Áreas de Juegos infantiles, Expoalcaldia 71 Áreas de juego

novedades feria Expoalcaldía en Zaragoza 78 Ferias

Daniel Parra, realismo dinámico 88 El artista y la ciudad

editA: cOMGE Editorial S. l • Kálamos, 28. portal 4 - 1º 1 • 28232 Las Ro zas (Madrid) - Tel: 91 603 05 05 dire C tor A: Mª José Monge - Coordi NA dor ge N er AL: José María Moreno redACC i ÓN y PUBL i C idA d : info@comge.es - Tel: 91 603 05 05 Preim P re S i ÓN : J. A. Diseño Editorial, S.L. - im P rime : Gráficas Elisa - d e P Ó S ito Leg AL : M-42426-95 - i SSN: 1136-9213 Prohibida
la reprodución total o parcial de los textos y fotografías incluidos en la revista, sin previa autorización del autor. l as empresas anunciantes son las únicas responsables del contenido de los originales. Diseño de la c iudad no se hace responsable de las opiniones expresadas por sus colaboradores.

Logroño celebra la segunda edición de Concéntrico, primer festival de arquitectura efímera en nuestro país

Inspirado en el Festival des Architectures Vives de Montpellier, Concéntrico 02 propone hablar de ciudad, de las transformaciones que se están viviendo y de las necesidades de sus habitantes, a través de siete instalaciones realizadas en puntos poco transitados del corazón de Logroño que el Festival invita a descubrir de la mano de la

figura del arquitecto como observador de la ciudad y de las necesidades de sus habitantes

El Festival, celebrado entre los días 28, 29 y 30 de abril y 1 de mayo, estuvo dirigido por el arquitecto Javier Peña, y organizado por la Fundación Cultural de los Arquitectos de La

Rioja (FCAR) en colaboración con el Ayuntamiento de Logroño, Garnica y el Cedir. A esta edición se han sumado además Goethe Institut, el Instituto Cervantes, el Museo Würth La Rioja y Acción Cultura Española

El 1 de mayo se cerró en Logroño Concéntrico 02, el festival de arquitecturas

4 DC 98 4 ESTÉTICA URBANA
1
1. David Bergasa. “Pabellón-Sede”. Fotografías: Josema Cutillas.

efímeras en el que arquitectos y diseñadores reflexionaron sobre el espacio público a través de intervenciones arquitectónicas pensadas y realizadas de forma específica para redescubrir cada ubicación.

La segunda edición de Concéntrico reunió en la capital riojana a equipos de arquitectos y diseñadores de distintos puntos de España y Francia, donde se celebra el Festival des Architectures Vives de Montpellier que ya va por su undécima edición y que es el evento de referencia de Concéntrico. La presencia francesa se debió precisamente al intercambio de equipos que se va a producir este año entre ambos festivales.

Aunque próximo a otras experiencias en el ámbito de la arquitectura efímera en espacios públicos como el caso de Madrid

Abierto, Los patios de geranios en Córdoba o las Alfombras de flores en las  escaleras de Girona, Concéntrico busca, sin embargo, hablar de ciudad y de las transformaciones que ésta ha tenido desde sus entrañas. Por ese motivo, y teniendo en cuenta la labor social del arquitecto como observador de la ciudad y de las necesidades de sus habitantes, se traza un festival cuyo briefing de partida no es otro que definiciones sobre cómo se han configurado esos espacios y cómo han repercutido en la ciudad, más allá de aspectos estéticos o formales.

El Festival permite redescubrir rincones públicos poco frecuentados del casco histórico de la capital riojana como la Plaza de Santa Ana; otros que habitualmente están cerrados al público

como es el caso del patio del Museo de La Rioja, el Claustro de la Iglesia de  Palacio o el Calado de San Gregorio;  y otros cargados de historia, pero que son poco frecuentados como el Patio de Ruavieja o la Plaza de San Bartolomé.

Siete intervenciones, un pabellón sede del Festival, dos exposiciones y cinco presentaciones completaron el programa de Concéntrico que llevaron a cabo estos días los profesionales de siete estudios de arquitectura de diferentes puntos de España y Francia, 120 alumnos de la Escuela de Diseño de La Rioja y 24 voluntarios. Un diálogo entre el patrimonio y la arquitectura contemporánea para activar la reflexión de los ciudadanos sobre los espacios de la ciudad del que participaron más de 20.000 visitantes.

5 DC 98
2. David Bergasa. “Pabellón-Sede”.
24 3
3 y 4. Javier Dulín. “02+04=Alexander Platz”. San Bartolomé.

Pabellón e intervenciones

El arquitecto David Bergasa es el creador del Pabellón sede de Concéntrico 02 que se levantó junto a la Oficina de Turismo de la ciudad. La propuesta parte de la figura de un cubo que se ha dividido diagonalmente creando una cuña y una grada que se convierten en el pabellón principal e hito del festival.

El equipo francés formado por Gabrielle Vinson, Quentin Devoyer y Edwin Toledo confeccionó en la Plaza del Revellín Salón Urbano, una llamada a la imaginación colectiva para valorar y enriquecer un espacio que proyecta una gran sensación de intimidad. Su instalación capta esa intimidad y la refuerza.

Los alumnos de la ESDIR intervienen en el Patio del Museo de La Rioja con la intervención El patio fragmentado: Arquitectura para gatos que diseñaron los alumnos de las cuatro especialidades que se imparten en la ESDIR: gráfico, producto, interiores y moda. La intervención se realizó en el patio del Museo,

6 DC 98
5 y 6. García/ Beni / Castillón. “Hortus Conclusus”. Patio Ruavieja. 7 y 8. Esdir. “Arquitectura para gatos”. Museo.
5 7 8 6 9
9. Maio. “Boggie”. Calado de San Gregorio.

donde un grupo numeroso de gatos tiene fijada su morada y los vecinos y trabajadores del Museo colaboran en su alimentación. Esta ocupación por parte de los gatos y el beneplácito de los vecinos ha dulcificado un espacio un tanto degradado.

Los integrantes del estudio de arquitectura catalán Maio intervinieron con Boogie en el Calado de San Gregorio. Este equipo, especializado en sistemas flexibles, acaba de participar como invitado en la Chicago Architecture Bienal 2015. La propuesta que llevaron a cabo en el Calado de San Gregorio enfatiza la estructura abovedada y la materialidad pétrea del espacio. Para ello, en medio de la oscuridad del lugar, una serie de

luces danzan a lo largo del espacio, iluminándolo y dejando entrever su envoltura pétrea.

Fernando Abellanas, diseñador y artesano autodidacta, trabajó en el Patio del Claustro de Palacio para crear Ciudad oculta, una conquista por los pequeños lugares. Una intervención en la que busca crear un refugio en el que observar sin ser visto.

El arquitecto riojano Javier Dulín intervino en la Plaza de San Bartolomé con el objetivo de que este espacio “genere ciudad”. Sin interferir en los recorridos de este lugar de tránsito crea “02 + 04 = Alexander Platz”, un mini teatro que

reproduce la planta del Teatro Real de Madrid, orientado hacia la torre de San Bartolomé, buscando su reflejo como fondo de escena, con la idea de que se utilice durante el Festival de una forma espontánea, libre y culta.

Los arquitectos Daniel Montes y Sara Canalejas montaron Artefactos en la Plaza de Santa Ana. A partir de 18 paneles, produjeron 108 piezas con hendiduras en sus laterales, que se ensamblan generando infinitos artefactos. La intervención se basa en la construcción de tres artefactos, colocados en puntos específicos creando tensiones, nuevos recorridos y conectando el espacio visualmente.

7 DC 98
10 y 11. Fernando Abellanas. Lebrel “Ciudad Oculta”. Iglesia Palacio.
10 11 12 13
12 y 13. Daniel Montes y Sara Canalejas. “Artefactos”. Plaza de Santa Ana.

Hortus Conclusus es el nombre  del proyecto ganador del concurso para realizar la intervención del patio de Ruavieja, la única junto al pabellón que no fue un encargo directo. Sus autoras son las arquitectas María Beni Ezquerro, Isabel Castillón Gómez y Rocío García Samaniego. Un hortus conclusus o “huerto cerrado” es la figura típica del jardín en la Edad Media. Un pequeño oasis aislado de la ciudad en forma de claustro. En el patio de la policía municipal, en pleno corazón de la ciudad medieval de Logroño, se elevará un oasis colorido con especies tan autóctonas como los “champis” del Soriano.

exPosiciones y conferencias

El Museo Würth La Rioja acogió hasta el 29 de mayo la exposición Architectus Omnibus? , una muestra que reunió diez proyectos de arquitectos españoles y alemanes seleccionados tras una convocatoria pública dirigida a profesionales de ambos países en el marco del VI Encuentro Hispano-Alemán de Cultura que organizaron ambas instituciones. En las propuestas seleccionadas se reivindica una conciencia sostenible de la profesión a través de nuevas actitudes y maneras de entender la arquitectura.

También pudo verse hasta el 1 de mayo la exposición con los 49 trabajos presentados a los dos concursos de Concéntrico 02 y que reunió a más de 1700 visitantes.

Gonzalo Herrero, el coordinador de arquitectura en el Design Museum London,  dialogó con los asistentes sobre el debate reflexivo en el que están sumergidos arquitectura y diseño.

Marion Moustey, coordinadora del Festival de Architectures Vives de Montpellier habló de la cita arquitectónica referencia de Concéntrico.  Ambas charlas se celebran gracias al  apoyo y la colaboración de Acción Cultural Española. n

8 DC 98
14, 15 y 16. Vinson. Toledo Devoyer. “Salón Urbano”. Muralla Revellin. 15 16
14

PÚBLICOS

Nuevo acceso al centro histórico de Gironella

Gironella es un municipio que ha crecido en las últimas décadas dividido por el río Llobregat. El centro histórico se encuentra en la cima de una colina de 20 metros a la orilla derecha del río mientras que la parte moderna se ha situado al otro lado.

El frente fluvial está formado por un conjunto de vestigios de distintas épocas, como la muralla del castillo, declarada BCIN, o las colonias textiles de principios del siglo XX que bordean el río que suponen un patrimonio arquitectónico e histórico para el pueblo.

9 DC 98
El lugar
9 ESPACIOS
Carles Enrich arquitectura + urbanismo

DiscontinuiDaD urbana

El desnivel de 20 metros ha generado una fractura social. Con los años el centro histórico se ha ido despoblando debido a las dificultades de accesibilidad. Las estrechas calles escalonadas que llevan a la plaza de la Vila suponen un esfuerzo para la gente mayor y los más pequeños.

La propuesta consiste en la inserción de un ascensor para mejorar la accesibilidad al casco antiguo y potenciar la conectividad urbana entre las dos partes del pueblo, dinamizando el uso del centro histórico y evitando la exclusión social.

Ficha técnica

Autor : Carles Enrich

Colaboradores: Adriana Campmany, Àngel Rosales, Ada Sánchez, arquitectos

Promotor: Servicio de Patrimonio Arquitecónico Local (Diputación de Barcelona) Ayuntamiento de Gironella

Estructura: MA+SAad

Constructor: Construcciones Solà-Cardona

Instalación ascensor: Inelsa Zener

Fotografías: Adrià Goula

Situación: Gironella

Proyecto: 2013-2015

Fecha fin de obra: agosto 2015

10 DC 98

MatErialiDaD

Con la intención de integrarse como una capa más en la memoria histórica del lugar y dialogar con todas las preexistencias, proponemos la ubicación del ascensor en un punto estratégico del camino de Cal Metre, por donde antiguamente se accedía a las

colonias textiles. Reconocemos el estrato vegetal del paseo de Cal Metre como un primer nivel de relación con el espacio público y buscamos una continuidad material con las industrias textiles.

11 DC 98

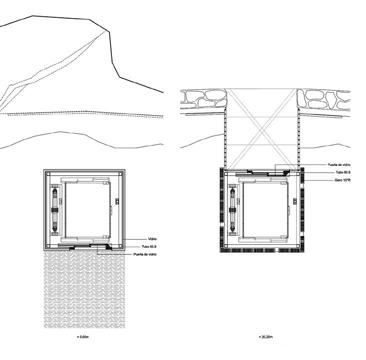
En este sentido, los 8 metros inferiores de la caja del ascensor se resuelven con un cerramiento vidriado, cuya transparencia garantiza la integración en el paseo de Cal Metre por debajo de la copa de los plátanos, que suponen un magnífico umbráculo cambiante con las estaciones. Los 16 metros superiores están formados por una celosía cerámica que cierra tres caras de la estructura, dejando la cara interior abierta para mantener un contacto visual con el muro y los vestigios de la muralla durante el trayecto vertical.

12 DC 98

Carles Enrich (Barcelona, 1980). Arquitecto ETSAB, 2005. Máster en Teoría y Práctica del Proyecto Arquitectónico, 2010. Tesis doctoral “Comercio itinerante y ciudad en movimiento” en proceso. Profesor de Proyectos y Urbanismo en la Escuela de Arquitecura de Reus desde 2008 y actualmente profesor de Proyectos en la ETSAB. Ha participado en varios congresos y seminarios internacionales y ha sido invitado como conferenciante en diversas escuelas de arquitectura.

La estructura está formada por 4 pilares tubulares de 80.8 y unos anillos tubulares de 80.8 cada 1,5 metros que rigidizan el sistema. Unos perfiles L 100 soldados a estos anillos permiten la sujeción de los tramos de celosía cerámica. La celosía se resuelve con un único material, en este caso gero modelo 10*R colocado de canto, dejando unos huecos que ofrecen mayor

porosidad y vistas puntuales al paisaje. La elección y disposición del material viene dada por criterios de relación con las naves industriales, pero también por criterios de economía (bajo coste, facilidad de ejecución y nulo mantenimiento), criterios climáticos (protección solar de la cabina, ventilación de la caja) y, al mismo tiempo, la posibilidad de disponer de una entrada de luz indirecta. n

Funda su propio estudio «Carles Enrich _ arquitectura + urbanismo» en 2009 donde desarrolla proyectos a distintas escalas obteniendo reconocimientos en concursos y obra construida, entre los que destacan: Premio en la Bienal Española de Arquitectura y Urbanismo, Primer Premio Europan 12, Segundo Premio Europan 13 de la AMB, Primer Premio en Passatges Metropolitans o Premio AJAC (jóvenes arquitectos catalanes) en dos ocasiones. También ha sido seleccionado en los Premios FAD y finalista en el Premio Europeo del Espacio Público, Premio AADIPA (intervención en el patrimonio arquitectónico) y Arquia Próxima IV, donde obtuvo el reconocimiento de la votación pública. Sus realizaciones han sido publicadas en revistas y medios especializados y expuestas internacionalmente como en la Bienal de Venecia.

Carles Enrich

13 DC 98

Reforma del puente de Sarajevo. Barcelona

La arquitectura del paisaje debe transmitir sensaciones confortables a la ciudad. Por eso no nos interesa sólo que el puente se muestre con una nueva imagen; el proyecto se centra en la propuesta de nuevos materiales y en la nueva experiencia que ofrece a sus usuarios. Nos interesan especialmente las nuevas cosas que las personas podrán hacer en el puente. Pasear, encontrarse un vecino, sentarse, conversar,

refugiarse en una sombra, observar las vistas y el flujo de tráfico constante como si fuera un río caudaloso... Atravesar este puente se vivirá como la experiencia de atravesar un espacio ajardinado.

También nos resulta importante la experiencia de los usuarios de los vehículos, que pasan el puente por debajo. Entre el puente y los muros laterales de la avenida

tendrán la sensación de atravesar una puerta vegetal que, literalmente, les da la bienvenida a la ciudad.

El Puente de Sarajevo, construido sobre la Meridiana en los años ochenta como un puente para vehículos, se transforma en un puente para peatones; el proyecto consiste en convertirlo en un nuevo lugar; un nuevo espacio libre que puedan compartir los

14 DC 98
14 ESPACIOS PÚBLICOS
La arquitectura del paisaje debe transmitir sensaciones confortables a la ciudad. BCQ arquitectura barcelona

habitantes de los barrios de la Trinitat Vella y la Trinitat Nova. La historia de este puente comienza de nuevo. Las personas, por su forma de vivirlo y de utilizarlo nos enseñarán a lo largo del tiempo lo que este espacio público puede hacer para mejorar la calidad de vida en un barrio.

Los materiales empleados de diseño son la vegetación de enredaderas, el hierro, el hormigón y la luz. El mismo puente incorpora la captación de energía solar que utiliza para la iluminación nocturna y el nuevo hormigón fotocatalítico que limpia el aire de CO2 y reduce la contaminación. En definitiva, se propone que el puente se convierta en un nuevo espacio cívico ajardinado dotado de la tecnología más contemporánea para mejorar las condiciones de habitabilidad del entorno y minimizar (o anular) consumos, emisiones y gastos de mantenimiento.

15 DC 98

Bajo el concepto de “Green Bridge”, se incorporan elementos tales como:

Muro vegetal que mejora la calidad del paisaje urbano y da continuidad a las nuevas zonas verdes recientemente creadas con las obras de urbanización realizadas en los dos extremos del puente.

Pérgolas con enredaderas que amplían el espacio verde disponible para el ciudadano y favorecen la biodiversidad, y que junto con la incorporación de nuevo mobiliario, consiguen un espacio para las personas generando áreas de estancia y de paseo.

Eficiencia energética en la iluminación: alumbrado con LEDs, que bajan el consumo y favorecen el ahorro energético, e instalación de placas fotovoltaicas para la captación de energía.

Ficha técnica

Nombre de la Obra: Reforma del puente de Sarajevo. Barcelona

Autor: BCQ arquitectura barcelona. David Baena, Toni Casamor, Manel Peribáñez, Maria Taltavull

Arquitectos colab: Mika Iitomi (Paisajista)

Ubicación: Desde Calle Mireia hasta Calle S’Agaró. Barcelona. 41.451793, 2.189204

Promotor: Ajuntament de Barcelona BIMSA Barcelona d’Infraestructures Municipals

Constructor: Romero Polo

Instalaciones: AIA Instal·lacions Arquitectòniques

Cálculo de estructuras: Javier Monte Collado, Arquitecto Estructuras

Sup.total actuación: 1.330 m2

Longitud y anchura: 60,40m (luz) | 12,10 (ancho)

Construcción: Abril 2016

Fotografía/Renders: BCQ arquitectura barcelona

Industriales:

Pérgolas, Estructuras metálicas: MEPAL

Jardinería: VIVERS TER

Pavimentos: BREINCO

Pasarela madera: MADERAS PLANES

Iluminación: SALVI

Hormigón fotocatalítico (colocación): Romero Polo

16 DC 98

BCQ arquitectura barcelona

Con 20 años de experiencia profesional, Toni Casamor y David Baena desarrollan desde su estudio BCQ arquitectura barcelona proyectos de arquitectura, paisaje y urbanismo en todas sus escalas y dimensiones como resultado de la combinación entre aspectos como la calidad del diseño, la funcionalidad y la viabilidad técnica en el diseño creativo. Últimamente se han incorporado como socios Manel Peribáñez, y María Taltavull. En estos momentos, el estudio reúne un sólido equipo de profesionales entre arquitectos y arquitectos técnicos, arquitectos paisajistas, colaboradores y administración.

Pavimentos con diferentes prestaciones y texturas (adoquín, hormigón y asfalto) y diseño discontinuo, refuerzan el uso preponderante del peatón y sugieren una circulación a baja velocidad al conductor del vehículo.

Pavimentos que incorporan nuevas tecnologías de acuerdo al nuevo Plan Director de Pavimentos:

Hormigón fotocatalítico: absorben los óxidos de nitrógeno y los transforman en sustancias inocuas para el medio ambiente, reduciendo significativamente la concentración de contaminantes gaseosos y al mismo tiempo son autolimpiantes. n

Desde el principio han compaginado su trabajo de diseño de proyectos y construcción con la actividad docente de Arquitectura y urbanismo como profesores en cursos y talleres en las principales escuelas de Arquitectura de Cataluña e internacionales como la ETH de Zúrich (Suiza), la Delft School of Architecture (Holanda), el Instituto Strelka de Moscú (Rusia) y la McGill University en Montreal (Canadá).

Entre sus trabajos destacan la Plaza Villa de Madrid en Barcelona (2003), los Edificios comerciales y la Urbanización del Puerto Deportivo para el Foro Internacional de las Culturas de Barcelona (2004) y el Pabellón polideportivo y la Pista de patinaje municipales en Olot (2010). Recientemente caben destacar el ed ificio de Oficinas para la Seguridad Social (2011) y la Biblioteca Sant Gervasi-Joan Maragall (2014) ambas en Barcelona, y a nivel internacional del Edificio para el Ministerio de Justicia en Zugdidi, Georgia (2014).

El trabajo de BCQ es exponente del reciente desarrollo de la arquitectura y el modelo urbano de la ciudad de Barcelona. BCQ ha

obtenido recientemente el Premio Ciudad de Barcelona y el Premio Cataluña Construcción de Ejecución de Obra por la Biblioteca Sant Gervasi-Joan Maragall, y el Premio MIPIM 2013 al mejor edificio industrial y logístico con la Depuradora del Maresme Nord. El estudio cuenta con publicaciones monográficas sobre su trabajo como el libro Reflejos|Reflections (2008), el volumen TC Cuadernos n.105|BCQ BAENA CASAMOR Arquitectura 1996-2012 y Library of Light|Biblioteca de Llum, monográfico sobre la Biblioteca Sant Gervasi-Joan Maragall (2014).

BCQ Arquitectura barcelona cumple con un Sistema de Gestión Integrado de Calidad, Ambiental y de Ecodiseño para desarrollar la actividad profesional de una manera eficaz, satisfactoria y sostenible ambientalmente. En estos momentos dispone de las certificaciones UNE-EN ISO 9001: 2015 Gestión de Calidad, UNE-EN ISO 14001: 2004 Gestión Medioambiental, UNE-EN ISO 14006: 2011 ECODISEÑO y EFITECNIC/2009 nivel Avanzado Calidad y Eficiencia en Gestión de Oficinas Técnicas.

17 DC 98

Urbanización y ajardinamiento de espacios libres en el

Novo Mesoiro (A Coruña)

Estudio de Arquitectura NAOS

barrio

El proyecto realizado por el estudio de arquitectura NAOS responde al encargo del Ayuntamiento de A Coruña en un espacio libre entre las calles Ribeira Sacra y Fragas do Eume, en el barrio de Novo Mesoiro, con el objeto de ordenar, dinamizar y aportar contenido a este espacio al tiempo que resolvía el acceso peatonal de una calle con otra, con un recorrido accesible.

La parcela en la que se ejecutó la actuación está rodeada por bloques de viviendas y posee una pendiente acusada en dirección norte-sur, con una forma alargada y con acceso desde las esquinas en el espacio que dejan los bloques de viviendas entre ellos. Forma parte de una bolsa de terreno que recorre unos 400 metros lineales de los cuales la actuación engloba 100 metros lineales.

La actuación ordenó este espacio, aportando accesos peatonales y conectando las calles en su parte central, cumpliendo además el acceso para discapacitados. Esta ordenación genera, además, un espacio habitable que evita el estado de abandono que presentaba inicialmente, ofreciendo a los vecinos del barrio nuevas estancias y espacios de esparcimiento.

18 DC 98 18 ESPACIOS PÚBLICOS

Solución adoptada

Novo Mesoiro es un barrio de reciente creación en A Coruña, con un crecimiento paulatino y en constante desarrollo. Esta actuación viene a satisfacer las necesidades existentes y así evitar que la parcela permanezca inhabitable y resolver su estado de abandono. La accesibilidad entre las calles se resolvió con la ejecución de dos pasos directos con tramos de escaleras, aportando un paso peatonal para acceder de una calle a otra, sin necesidad de recorrer todo el entorno. Además, se ejecutó una rampa que salva el desnivel existente para el uso de personas con discapacidad.

Con la urbanización y ajardinamiento de la parcela se aporta un nuevo espacio de recreo y esparcimiento para los vecinos de los edificios colindantes, ya que cuenta con

zonas de estar con nuevo mobiliario urbano e iluminación artificial en toda la zona. Al mismo tiempo, se contempló la ejecución de jardines y zonas verdes que hacen del lugar un espacio habitable, teniendo en cuenta que anteriormente se encontraba en un estado de abandono e insalubre, sin mantenimiento y configurada como una zona de difícil acceso.

actuación

La actuación tenía como objetivo ordenar el interior de la manzana, definiendo posibles usos y las áreas donde materializarlos, y así enriquecer con nuevos contenidos los espacios. Se buscaba, de este modo, convertir el espacio en catalizador de nuevos flujos peatonales y actividades de recreo.

Se ejecutó un parque con carácter dinámico y no estancial, ya que no se trata de un espacio soleado por estar flanqueado por los bloques de viviendas. En consecuencia, se construyó un espacio en donde se desarrollan distintas actividades deportivas y de juego, orientadas tanto a niños como a mayores.

La actuación consistió en la ejecución de unas plataformas unidas por escaleras y rampas, para ofrecer accesos peatonales entre calles. Las plataformas cuentan, a su vez, con áreas de descanso provistas de bancos, papeleras y parterres.

Debido al desnivel existente en la orientación norte-sur, que provocaba la fractura entre ambas calles, había que buscar una solución de conexión. Por ello,

Proyecto: Urbanización y ajardinamiento de espacios libres en el barrio Novo Mesoiro (A Coruña)

Arquitectos: Estudio de Arquitectura NAOS. - www.naos.es

Empresa constructora: Jardinería Arce

Carpintería: Ingenia Domo Madera

Luminarias: Setga

Ajardinamiento: Jardinería Arce

19 DC 98
Ficha técnica

se permitió el enlace mediante escaleras de una forma directa y un recorrido adaptado para personas con discapacidad a través de rampas.

Se realizaron dos plataformas, a modo de paseos paralelos a los edificios, unidas con dos escaleras situadas en la prolongación de huecos que se abren entre edificios con talud vegetal intermedio. En medio del talud se sitúa una rampa, que dota de gran fluidez al parque.

Ambas plataformas se constituyen con una solera de hormigón armado semipulido en que se gravaron unas juntas que recorren los paseos. En las plataformas se formalizaron unos parterres en el que se sitúan los bancos de madera, que nacen del pavimento a modo de pliegue del propio suelo.

El mobiliario urbano ha sido diseñado por el Estudio de Arquitectura NAOS y está realizado en madera de iroko, una madera tropical de gran durabilidad y escaso mantenimiento, óptima para uso exterior. Fueron realizados por la empresa Ingenia Domo Madera S.L. Las luminarias que rodean el espacio son de la marca SETGA. El ajardinamiento fue realizado por la empresa constructora, Jardinería ARCE. n

20 DC 98

Shuffle

Convivir en un mundo lleno de desafíos

Co N eCTAN do A LA s perso NA s Co N sus e NTor N os so C i AL es

Más eficiente. Más inteligente e interactivo. Conectado. Ha llegado la revolución digital para servir a las personas en un mundo cada vez con más desafíos. SHUFFLE es mucho más que una columna de iluminación. Conecta a las personas con su medio. Siempre.

www.schreder.es
Luz + Controles WLAN Cámara CCTV Altavoz Cargador de vehículos eléctricos

El Paisaje como herramienta indispensable en la planificación y regeneración urbana

El pasado día 16 de junio, en el marco de la Feria de Urbanismo y Medio Ambiente celebrada en IFEMA, Madrid, y dentro de las sesiones del II Foro de las Ciudades, la Asociación Española de Paisajistas organizó una sesión técnica acerca de la necesidad de contar con el paisaje en los procesos de planificación y regeneración urbana. Partiendo de la publicación « La Planificación del Paisaje en el ámbito Local Europeo» , editado por el Observatorio del Paisaje de Cataluña, su Director Pere Sala introdujo el tema de debate, en el que participaron también los responsables del nuevo plan urbanístico de la ciudad francesa de Narbonne, Nathalie Garnier, Concejala de Urbanismo y Jean Antoine Lapena, Jefe de la oficina de Urbanismo. Así mismo participaron Ibón Areso, ex-concejal de urbanismo y ex-alcalde de Bilbao, Jesús Avezuela Cárcel, socio de la Consultora Internacional KPMG y Duarte d’Araujo,

asesor del concejal de Estructura Verde de la ciudad de Lisboa. Completaron el grupo de ponentes el profesor de la Universidad Autónoma de Madrid, Juan Carlos Barrios y el Delegado Internacional de la Asociación Española de Paisajistas, Antonio Sopesens, Rafael Narbona, presidente de la AEP , realizó las labores de moderador.

Tener en cuenta el paisaje y las singularidades del territorio, es decir, los sistemas naturales, a la hora de programar cualquier acción de planificación o regeneración urbana, es el mejor aliado para una ciudad no solo resiliente, sino también saludable, serena, habitable y vital. Hace más de doscientos años uno de nuestros colegas dijo aquello de que a la hora de trabajar lo primero que había que hacer era contratar a la Naturaleza, porque te iba a hacer la mitad del trabajo, y además, gratis. Hemos despreciado a este genial compañero de

trabajo durante demasiados años, pensando que éramos capaces de resolver cualquier problema con nuestras herramientas artificiales.

Casi todas nuestras ciudades obviaron los valores del entorno como valor añadido a su planificación, resultando en sucesivas ampliaciones casi siempre, siguiendo tramas tipo ensanche, sin respetar los valores que brindaba el lugar. Hay unos espacios verdes, más por reglamentación que por voluntad, que van a parar al suelo menos rentable y que nunca tienen en cuenta su accesibilidad y su interconexión, lo que les hace perder más de la mitad de su valor social. Afortunadamente, ya hay ciudades que han optado por cambiar el sentido del proceso e intentan hasta recuperar cauces que en su día se desviaron o se cubrieron directamente. El ejemplo más importante es Vitoria, que

22 DC 98
22 PARQUES Y JARDINES
Rafael Asociación Española de Paisajistas

está sirviendo de ejemplo y estímulo en otras ciudades españolas.

Los problemas, sin embargo, siguen siendo muchos; primero están los directamente relacionados con la destrucción de los sistemas naturales: inundaciones por encauzar, desviar y hasta, directamente, rellenar cauces para construir sobre ellos, o crecimientos que bloquean o alteran los vientos y brisas que hacen soportables nuestras ciudades más calurosas en verano. Y una de las cosas que parece más evidente es el aumento de las temperaturas extremas y de los episodios de fuertes tormentas. Si se desconecta por completo la ciudad de su entorno natural sin cauces naturales de conexión, la ciudad no puede respirar, y si una ciudad no respira sus ciudadanos tampoco. Y, por supuesto, una movilidad basada casi exclusivamente en el vehículo privado, lo que

dificulta las posibilidades de implantación de rutas exclusivas para el transporte público, de rutas seguras para los ciclistas y de recorridos saludables para los peatones.

Curiosamente, casi todas las ciudades antiguas fueron respetuosas y coherentes con su entorno, entre otras cosas porque no tenían más remedio que aprovechar los sistemas naturales para su defensa, movilidad, transporte, provisiones, etc. Probablemente, la primera ciudad moderna planificada a partir de los valores del paisaje y del territorio fue Camberra, por parte de Griffin hace ya más de un siglo, aunque antes de él hubo una serie de trabajos muy interesantes, y que Griffin admiraba, en los que Olmsted y Vaux crearon los primeros sistemas de parques urbanos, conectados por corredores verdes y que hasta laminaban las escorrentías pluviales. Vamos,

lo que ahora creemos haber inventado con las infraestructuras verdes urbanas. Incluso en algunas ciudades diseñaron sistemas de fitodepuración para las aguas residuales. Con estos trabajos se dieron cuenta de que una buena planificación urbana está inexorablemente unida a una planificación verde previa, que sirva además para conectar la ciudad con su entorno. Y de ahí nació, a finales del siglo XIX, los primeros grados en Arquitectura del Paisaje , una disciplina cuyo fin, desde sus orígenes, ha sido la planificación urbana. De hecho, y dada su importancia, en 1923 se desglosó en dos carreras, iniciándose el grado en Planificación Urbana . Y luego vino la Ecología del Paisaje y más tarde el Landscape Urbanism , al que todavía no le hemos encontrado una traducción adecuada. Todas estas disciplinas no son más que disciplinas de planificación a

23 DC 98
Estructura verde, avenida en Vitoria-Gasteiz.

diferentes escalas, pero con un denominador común: el uso del paisaje como herramienta de decisión y no como simple maquillaje post-destrucción. Todo aquel trabajo fue olvidándose en pos de la modernidad y el crecimiento salvaje y sin control.

Para avanzar en un entorno que garantice mínimamente unos estándares adecuados de calidad de vida, la clave está en el cambio del modelo de trabajo a todas las escalas. Desde el modo de relacionarse los departamentos de las administraciones, sobre todo locales, hasta el modo en que intervienen los distintos profesionales implicados. Ya no se suman saberes y se

encarpetan juntos. Hay que mezclar esos saberes para poder resolver problemas complejos. Y no estamos acostumbrados a trabajar así. Ni en la administración ni en los despachos. Cuanto antes lo entendamos, antes empezaremos a disfrutar de ciudades sanas, serenas, habitables y vitales, porque los proyectos de planificación y regeneración deben de contar con muchos profesionales de campos muy diversos y sobre todo con distintas sensibilidades, ya que se trata de definir y de decidir sobre la calidad de vida y el confort vital de millones de personas.

No solo se trata de contar con paisajistas, lo irrenunciable es contar con el paisaje y con el territorio como aliados y como

herramientas de planificación. Nosotros somos uno más, probablemente los primeros en llegar al lugar y facilitar al resto del equipo herramientas y datos útiles que faciliten su trabajo posterior.

Esta Jornada, también ha sido posible gracias al patrocinio de: ICL Speciality Fertilizers, empresa especializada en fertilización de suelos y producción de semillas, también al Grupo LLEDÓ Iluminación, empresa especializada en iluminación sostenible como los sistemas de BEGA y por último a URBES 21, Dotaciones Urbanas, empresa especializada en mobiliario urbano de diseño y elaboración sostenible. n

24 DC 98
Plan de desarrollo en Narbonne, Francia

Natural Puzzle de Metalco

Diseñado por Pio & Tito Toso, Metalco cuenta en su catálogo con esta pieza escultura denominada Naturale Puzzle que nace de la idea de diseñar un elemento de mobiliario urbano que se integre en el medio ambiente del modo más natural y armónico posible.

Natural Puzzle es un sistema modular de mobiliario urbano polivalente que une la función del asiento con los elementos verdes de la jardinería y del alcorque. Se presenta como una ágil y dinámica línea de filtro, elemento de transición, entre lo natural (verde) y lo que es artificial (el pavimento del espacio urbano).

Permite una gran libertad de composiciones a través del juego de agregación libre y de “abrazar”, protegiendo, las plantas de un parque público o de un jardín privado.

Está realizado en HPC (High Performance Concrete) que permite realizar objetos extremadamente finos pero con una alta resistencia mecánica.

26 DC 98 26 NOTICIAS www.metalco.it

La capital asturiana brilla ahora con una luz diferente, más natural y económica. Un total de 1.466 faroles fernandinos ATP siglo XLA LED, instalados con el Difusor Confort® para mitigar molestias oculares, iluminan ya 39 de las calles más emblemáticas de la ciudad. Con esta actuación, que constituye la primera fase del plan de sustitución de alumbrado público del Ayuntamiento de Oviedo, ATP ha conseguido mejorar la imagen nocturna del caso urbano y ahorrar energía. Los nuevos equipos brindan a los viales un aspecto diáfano, claro y lleno de color, a la vez que permiten economizar en más de un 70% el consumo eléctrico y reducir el flujo al hemisferio superior.

Con las Siglo XLA LED, los objetos se perciben con su color original, en lugar de presentar el característico aspecto amarillo o anaranjado causado por otras fuentes de luz. Además, el Difusor Confort de estos fernandinos, diseñado especialmente para la tecnología LED, ofrece la máxima comodidad visual y evita el deslumbramiento de los viandantes.

27 DC 98
Oviedo brilla con una luz diferente y ahorra en el consumo eléctrico www.atpiluminacion.com Innovando el juego cada día. Diseño y planificación de espacios Splash Park. Sistemas completos de calidad y gestión de agua. www.acuaticplay.com info@acuaticplay.com Tel. 971 69 45 81

El Ayuntamiento de Arrasate se ha sumado a las buenas prácticas en materia de sostenibilidad. El municipio lleva muchos años poniendo en práctica diferentes actuaciones en materia de eficiencia energética y recientemente ha completado la instalación de las primeras farolas solares en el municipio. En concreto, se han instalado 19 farolas solares LED en el barrio de Udala.

La empresa vasca LightBlue, ha sido la encargada de suministrar las farolas de fabricación propia. Cada una de ellas cuenta con una placa fotovoltaica que suministra energía que se almacena en unas baterías. Se trata de farolas totalmente autónomas y cuentan con una gestión electrónica inteligente de la energía, que permite garantizar su funcionamiento durante toda la noche, las 365 noches del año. Por otro lado, el modelo de farolas instaladas en esta localidad, cuentan con un sistema de regulación de iluminación en función de la detección de movimiento, adecuándose el nivel de luz a las necesidades de uso en cada momento, estando siempre encendidas.

Este tipo de farolas ofrecen grandes ventajas frente al alumbrado eléctrico convencional, ya que además de ofrecer un coste energético cero, posibilitan poner farolas donde se necesita, aunque no haya canalizaciones o toma eléctrica en el lugar. Además, resultan adecuadas para paseos, calles, parques, jardines, polígonos industriales, carreteras, cruces, rotondas, etc., y su gran ventaja de ahorro en obras y canalizaciones no sólo se limita a entornos interurbanos, sino también en entornos urbanos, ya que el hecho de evitar canalizaciones, justifica apostar por ellas.

OMNIstar proporciona una combinación imbatible de rendimiento y flexibililidad para iluminar zonas en las que se necesitan paquetes lumínicos elevados, a la vez que ofrece un ahorro máximo de energía y costes de mantenimientos, una visibilidad mejorada y un corto plazo de amortización. Ofrece una alternativa avanzada a las luminarias con fuentes tradicionales de alta potencia, con las ventajas y la flexibilidad de una solución LED.

Ideal para calles, explanadas, paseos marítimos y plazas, así como para grandes áreas como áreas de peaje, aparcamientos, y vías y carreteras, rotondas, cruces viarios y de autopistas, etc.

En cuanto a las fuentes de luz, la OMNIstar puede hacer combinaciones de hasta 120.000 lúmenes. Un motor LED compacto y equipado con 128 ó 144 LED, proporciona entre 30.000 y 40.000 lúmenes por unidad. Está diseñada para funcionar de forma fiable en cualquier entorno, incluso en las condiciones más extremas (Ta desde -35ºC hasta 55ºC).

Está fabricada en aluminio inyectado a alta presión, la unidad óptica pesa sólo 14 kilogramos y ofrece una gran relación lm/kg. El elevado grado de hermeticidad de la unidad óptica mantiene su rendimiento durante la vida útil de OMNIstar y reduce los trabajos de rendimieto IP66.

www.schreder.com
Arrasate apuesta por la sostenibilidad al instalar farolas solares
28 DC 98 www.light-blue.es
OMNIstar, la solución LED de SCHREDER para aplicaciones de alta potencia

Valencia formará profesionales especializados en tecnología LED

El máster está organizado por FEDEMCA y ASEDER, con la colaboración de Caixa Popular y Grupo Sering, y se impartirá en la Escuela de Negocios Luis Vives de Cámara Valencia. Se trata del primer máster de estas características que se impartirá en España y que surge ante la demanda de profesionales cualificados en este sector. Valencia formará profesionales especializados en tecnología LED gracias al  I Máster Executive en Diseño de Productos y Espacios con Tecnología LED. Se trata de unos estudios pioneros en nuestro país y también en el resto de Europa, que surgen ante la demanda de especialistas cualificados en esta tecnología en constante desarrollo en la actualidad.

“Esta tecnología ya está en condiciones de sustituir totalmente a los sistemas convencionales de iluminación de todo el planeta, suceso que vaticinan muchos expertos de diferentes campos y

países. Esto supone la necesidad de una formación especializada que el sector ya demanda. Los técnicos y los recién titulados deben ver esto como una oportunidad de incorporación

al mercado laboral ya que esta especialización está muy solicitada en la actualidad y lo estará aún más en los próximos años.

Esta formación ayudará al sector español a mejorar su posición y le permitirá ocupar puestos en mercados en los que están presentes empresas europeas y que algunos fabricantes españoles no tenían capacidad técnica para abordar.

El máster, el primero de estas características que se imparte en España, está dirigido a Ingenieros, Arquitectos y Diseñadores con conocimientos de herramientas de diseño de producto CAD 3D, SOLID WORK, SOLID EDGE, etc. El curso se impartirá en la Escuela de Negocios Luis Vives de Cámara Valencia y cuenta con la colaboración de Caixa Popular.

29 DC 98
RETROFIT
al LED con la mínima inversión y fácil instalación by SACOPA S.A.U · Pol. Ind. Poliger Sud, Sector I, nau 7 · 17854 St Jaume de Llierca (Girona) +34 972287272 · ignialight.com 24W - 32W -
www.aseder.org
Adaptación
40W IP66- IK10

L’Aquàrium de Barcelona renueva su iluminación

L’Aquàrium de Barcelona, moderniza después de 20 años el sistema completo de iluminación. Endesa, la compañía proveedora de electricidad, se ha encargado de llevar a cabo un proyecto “a medida” para el centro. Durante nueve meses han trabajado para sustituir un total de 3.200 puntos de luz; 2.800 de las zonas públicas y 440 en el interior de los acuarios. Todos ellos por un sistema lumínico de tecnología LED. El nuevo cambio, permitirá un ahorro importante de energía, potencia, mantenimiento y sobre todo, de emisiones de CO2 hacia la atmósfera.

Además, la tecnología LED empleada en el centro, consigue una mayor definición de las formas, colores y contrastes bajo el agua, mejorando así la calidad visual del espectador. Gracias al cambio de iluminación, la escenografía ha multiplicado su atractivo y el nuevo estilo de colores consigue una percepción más auténtica de cada acuario y hábitat natural.

Para Patricia Bultó, Bióloga y director técnico de L’Aquàrium de Barcelona, este cambio ha supuesto también una mejora significativa para los animales. Según los estudios ópticos realizados a los peces, se ha demostrado que el rango azulado de la iluminación LED favorece a las capacidades visuales de los animales, disminuyendo así el posible estrés y mejorando su bienestar.

El empleo de tecnología LED supone un ahorro en iluminación cercano al 70% y este ahorro redunda en una disminución indirecta de aproximadamente 1.200 toneladas anuales de CO 2 a la atmósfera y consigue aumentar la durabilidad de las lámparas a 50.000 horas de luz.

Twilight es un extremo de poste caracterizado por su forma circular, declinada en múltiples variantes, que ofrece una solución compacta para sustituir los sistemas ya existentes y más invasivos de lámparas tradicionales favoreciendo una iluminación urbana y residencial de bajo impacto medioambiental. Existen tres versiones: Twilight Joburg, Bilbao y Canberra, cada una de ellas fuertemente caracterizada por su diseño: distinto pero siempre de forma circular.

Las dos ópticas previstas, simétricas y asimétricas, aseguran una iluminación uniforme de las superficies horizontales y verticales respetando el valor de iluminación semicilíndrica que permite reconocer a los peatones y garantizar la seguridad. Twilight se embellece con dos complementos decorativos para configuraciones personalizadas. Estos complementos favorecen la concentración del flujo en las superficies verticales y limitan la dispersión de luz hacia arriba de acuerdo con las normas anticontaminación lumínica. La miniaturización de la lámpara LED COB y del grupo óptico permite, incluso en exteriores, reducir el volumen de la lámpara y minimizar su presencia en el espacio asegurando en todo momento altos niveles de uniformidad, eficiencia y confort visual.

La óptica se ha diseñado, desarrollado y diferenciado para garantizar la mejor distribución simétrica o elíptica. La óptica simétrica es perfecta para iluminar vías peatonales o carriles bici, para proyectar la luz donde se necesita y eliminar la luz intrusiva.

30 DC 98
www.iguzzini.es
Nueva luminaria urbana Twilight de iGuzzini

Nueva gama de luminarias de NOVATILU

Novatilu, fabricante de iluminación y equipamiento urbano, ha presentado toda una gama de luminarias basadas en su propia tecnología Novaled. Este desarrollo permite adaptar cualquier luminaria a las necesidades y requerimientos de cada proyecto sin renunciar a unas especificaciones de alto nivel. Los módulos Novaled se adaptan en potencia, número de led’s, distribución lumínica, temperatura de color, etc., con el fin de cumplir con el Reglamento de Eficiencia Energética con el mínimo consumo posible y al mínimo coste.

La incorporación de led’s de última generación (Cree, Osram, Nichia),

hace que la eficiencia lumínica de los dispositivos sea superior a 140 lm/w, y la vida media superior a las 100.000 horas. Disponible en cualquier temperatura de color (3000ºK, 4000ºK), incluso en Ambar para las zonas de especial protección lumínica. La incorporación de diversas ópticas secundarias permite ofrecer más

de 15 distribuciones lumínicas distintas, desde simétricas a asimétricas, intensivas a extensivas, circulares con distintos ángulos de apertura, elípticas, e incluso especiales para pasos de peatones. Los drivers utilizados son de la mayor eficiencia y compatibles con cualquier sistema de control y regulación. Desde sencillos dispositivos de reducción de flujo de doble nivel con línea de mando, temporizadores programables de múltiples niveles y pasos, hasta complejos sistemas de telegestión.

www.novatilu.com

Herminio González e Hijos, S.L.

Diseños a Medida

Columnas de Gran

Semáforos

31 DC 98
Diseño, Cálculo y fabricación de soportes de alumbrado público
Calibre 102 (Pol. Ind. P-29); 28400 C. Villalba (Madrid) // +34 91 850 1893 // comercial@herminiogonzalez.es www.herminiogonzalez.com
Altura
Red comercial internacional Nuestros productos están presentes en 4 continentes
Columnas Convencionales

Nuevo Paisaje Nocturno para la Ciudad de Ávila

La ciudad de Ávila posee desde hace mas de 30 años el reconocimiento de la UNESCO como un ejemplo de ciudad fortificada, que ha conservado íntegramente su muralla, que mantiene un marcado carácter medieval, compaginando tanto aspectos religiosos como defensivos.

La densidad de sus monumentos civiles y religiosos tanto intramuros como extramuros, junto a su relación espacial e histórica con el espacio urbano, hacen de la ciudad un ejemplo de extraordinario valor que debe ser conservado, y transmitido como un legado para las generaciones venideras.

Esta es la filosofía que se promueve en todos los ámbitos de gestión en la ciudad y que ha se ha seguido a la hora de realizar el cambio tecnológico del alumbrado público. Comunicar los importante valores patrimoniales, históricos, culturales… con las múltiples oportunidades que tiene la iluminación ha sido el motor para desarrollar el plan director de iluminación de la ciudad de Ávila.

El proyEcto, la EstratEgia lumínica

El proyecto “Nuevo Paisaje Nocturno de Ávila” es su Plan Director de Iluminación. Consiste en la renovación de la totalidad del alumbrado público existente en el término urbano, inicialmente contempla tanto su parte funcional como de la ornamental.

Fomenta los valores culturales extraordinarios al estar imbuido de la filosofía de conservación y valorización que tan buenos resultados ha dado a la Ciudad en las últimas décadas, porque aunque uno de los principales motivos que lo pone en marcha es la eficiencia energética, este proyecto no ha querido desaprovechar la gran oportunidad que supone esta intervención generalizada en toda la Ciudad para “construir una nueva visión” de la misma y utilizar la iluminación como un elemento que mejore la vida de sus ciudadanos, a la vez que la pone en valor, la embellece y la hace mas competitiva en el territorio.

Los retos a los que se enfrenta el Proyecto consisten en:

— Mejorar la vida de los habitantes de Ávila y de los turistas que la visitan

— Corregir los errores acumulados, mejorar la instalación y hacerla más eficiente

— Incrementar la belleza de la Ciudad y el confort nocturno

— Recuperar la visión de las estrellas tanto desde la Ciudad como desde su entorno (el cielo es también patrimonio)

— Mejorar el marketing y posicionamiento de la Ciudad

— Aumentar las pernoctaciones y los negocios

— La ejecución del Proyecto: La obtención de recursos económicos para implantarlo

— Comunicación del Proyecto: Dar a conocer la transformación de la Ciudad tanto a vecinos como a turistas y a la sociedad en general

— La influencia del contexto en el Patrimonio, y las capacidades del Patrimonio de influir en su entorno.

El equipo impulsor del proyecto estuvo formado por la parte política y técnica del Ayuntamiento, encabezado por el mismo

DC 98 32 ALUMBRADO PÚBLICO

alcalde tras la incorporación de la Ciudad al Pacto de los Alcaldes (www.eumayors.eu) en el que se comprometían en reducir un 20% de las emisiones de CO 2 antes de 2020. Ávila también es miembro de la Alianza Lightscape Cities (integradas por Valladolid, Córdoba, Logroño, Plasencia, Palencia y Ávila)

que promueve el uso de la iluminación en la ciudad como un elemento cohesionador y regenerador a la vez que contempla el alto valor experiencial de la luz.

Este liderazgo ha sido muy importante ya que ha dotado al proyecto de una

concepción transversal y ha sido considerado como impulsor y dinamizador de la Ciudad, tanto hacia el exterior mostrando sus cuantiosos monumentos y bellos entornos, como internamente, sirviendo de acicate para que los colectivos locales se posiciones en la vanguardia y la excelencia.

33 DC 98
Skyline antes del proyecto. Skyline actual.

A este equipo inicial se fueron incorporando técnicos externos: empresas de turismo, universidades locales, fotógrafos amateurs, gremios de comerciantes y hoteleros, asociaciones de vecinos, medios de comunicación locales… Para generar una estrategia lumínica de la Ciudad, lo más completa posible, que recoja las diferentes necesidades que tienen los habitantes y que muestre la ciudad de la manera mas bella posible.

Dicha estrategia lumínica se ha “traducido” en un Lighting Masterplan* estructurado en cuatro ámbitos:

1. Ilum inación funcional: el alumbrado público encargado de iluminar las calles

2. Ilum inación ornamental: la iluminación de los monumentos y sus entornos. También plazas y jardines

3. Ilum inación lúdica: suele ser esporádica y se usa en fiestas: navidad, patronales, culturales…

4. Ilum inación comercial: es la de los escaparates, rótulos, displays, etc.. Privada y de uso comercial

Estos cuatro ámbitos a modo de capas superpuestas configuran nuestra visión del espacio cuando paseamos por la ciudad. Es

cómo se nos revelan los entornos por la noche.

El Masterplan se ha estructurado en estos 4 ámbitos para facilitar la gestión de las intervenciones, ya que van a ser desarrolladas en distintos momentos, con diversos presupuestos, han de cumplir variadas normativas y con tienen responsables técnicos y políticos diferentes. Pero la estrategia lumínica contempla la concepción global y el desarrollo total de las acciones de manera independiente.

El proyecto se comenzó a plantear a finales del 2011 en reuniones internas del Ayuntamiento. Durante el 2012 y parte del 2013 se desarrolla y documenta la estrategia lumínica.

El Ayuntamiento recurrió a la formula de la externalización del Servicio de Alumbrado, para lo cual convocó un concurso público que se adjudicó a la empresa de servicios Grupo EULEN SA a finales de 2013. Dicha empresa va a ser la encargada de ejecutar el Masterplan y de su mantenimiento durante un período de 12 años

34 DC 98
* El Masterplan “Nuevo Paisaje Nocturno de Ávila” ha sido galardonado en 2015 con el Primer Premio City.People.Light, en reconocimiento a la contribución que aporta la luz para mejorar la calidad de vida de la gente en las ciudades. El premio es otorgado anualmente por la asociación LUCI con la colaboración de Philips. Es la segunda ciudad española que recibe este prestigioso galardón después que Valladolid lo recibiera en 2011 por su proyecto “Ruta Ríos de Luz”. Ambos proyecto han sido realizado por el mismo estudio de Diseño de Iluminación AUREOLIGHTING, dirigido por Rafael Gallego. Anillo extramuros.

la EjEcución dEl mastErplan “nuEvo paisajE nocturno dE Ávila”

A principio de 2014, Grupo EULEN SA comienza a ejecutar las primeras instalaciones. A día de hoy (junio de 2016) mostramos lo que ha sido realizado.

En el ámbito 1 - Iluminación funcional

A finales de 2014 ya habían sido sustituidos la totalidad de los mas de 13.000 puntos de luz de la ciudad y corregido errores existentes en la instalación antigua.

El Masterplan recoge la división de la ciudad en 3 zonas:

Intramuros, con fuente de luz LED 2700k Prim er ensanche de la ciudad Extramuros, con fuente de luz LED 4000k Suce sivos ensanches residenciales, con fuente de luz Vapor de Sodio 2200k

En todos los casos, las luminarias no envían luz hacia el hemisferio superior y están provistas de sistemas de regulación que permiten disminuir el flujo lumínico en los momentos de la noche de nulo o mínimo uso.

El ámbito 2.- Iluminación ornamental Comenzó a ejecutarse a finales de 2014 y a día de hoy se ha finalizado el eje

monumental Ayuntamiento-Diputación-La Santa (parte del antiguo cardo romano)

— Fachadas y plaza del Ayuntamiento (plaza del Mercado Chico)

— Fachadas y plaza de la Diputación (plaza Corral de Campanas)

— Fachadas y Plaza de La Santa

Actualmente se está desarrollando el proyecto de iluminación de los espacios Teresianos Monasterio de San José (Las Madres), Monasterio de Sta María de Gracia y el Monasterio de la Encarnación. También el proyecto para la Plaza y Fachadas de la Plaza de Sta Teresa (plaza del Mercado

35 DC 98
Anillo intramuros.

Grande) con intención de ejecutar los proyectos a lo largo del presente año.

En el ámbito ornamental, el Masterplan contempla la iluminación de mas de 50 monumentos y sus entornos, así como de la totalidad de la muralla que en sus 2,5 km de longitud, dispone de 88 torreones y 9 puertas y es el mayor símbolo de la ciudad.

El proyecto y la instalación ya ejecutada de las áreas ornamentales del Masterplan ha

sido realizada con la aportación económica de la empresa Grupo EULEN SA, en cumplimiento de su parte en el Contrato de servicios firmado con el Ayuntamiento.

Como se indicó en la descripción del Proyecto, la parte económica para desarrollar el Masterplan es uno de los retos que tiene la Ciudad. A día de hoy se está buscando financiación para la continuación del mismo. Para finalizar el ámbito 2 y el ámbito 4, y hacerlo en el menor período de tiempo posible:

Pres upuesto anual del propio Ayuntamiento. Lo que va a permitir que cada año se destine una partida económica al desarrollo del Proyecto. Subvenciones de las administraciones provinciales, regionales, estatales o europeas. En cada administración habrá que solicitar en el momento en que hayan convocatorias. Patrocinios por parte de empresas y fundaciones, para esponsorizar la iluminación de monumentos y entornos.

36 DC 98

El ámbito 3.- Iluminación comercial

El nuevo equipo municipal será el encargado de abordar el desarrollo de una nueva normativa municipal que regule el uso de la iluminación privada de uso comercial en la vía pública. Después de controlar (bajar los niveles y ordenar) la iluminación funcional y la ornamental, la iluminación comercial no puede convertirse en una “guerra de luz” para llamar la atención, necesita estar acorde con el trabajo realizado en los otros ámbitos.

El ámbito 4.- Iluminación lúdica

Se plantea realizar una serie de intervenciones con carácter de show

lumínico y/o multimedia de manera permanente, en diferentes entornos de la Ciudad con el objetivo de generar atractivos lumínicos-turísticos y dotar de mayor atractivo el entorno urbano.

la comunicación dEl mastErplan “nuEvo paisajE nocturno dE Ávila”

La comunicación es otra de los objetivos que contempla la estrategia lumínica. Ávila realiza una campaña de comunicación con todos los miembro de la Alianza Lightscape Cities a través de redes sociales y en medios generalistas, mediante vídeos y noticias en las que las experiencias que generan la iluminación son el eje central.

También se promueve la participación en entornos más profesionales como congresos sobre smart cities, iluminación o turismo, así como concursos, artículos y casos de estudio.

La Ciudad medieval de Ávila afronta su futuro con optimismo. Sabe que tiene frente a si una gran oportunidad y no la quiere perder. La iluminación, las atmósferas, los ambientes nocturnos en la ciudad son un gran activo que no ha sido explotado hasta el día de hoy ni por sus habitantes, ni por los comerciantes ni por los turistas… y que otorgaría a Ávila una ventaja competitiva frente a las ciudades vecinas empleando la iluminación como herramienta de Marketing. n

37 DC 98

Plaza de San Juan en Irún

Reseña históRica

La historia de la plaza de San Juan comienza cuando en 1564 el concejo acuerda colocar una columna de piedra, San Juan Harri, que se convirtió en el símbolo de la independencia de Irún respecto de Fuenterrabía, en el lugar en el que se reunían sus vecinos cuando eran llamados a tomar las armas.

Posteriormente con la construcción de la nueva casa concejil 1756-1763 se aprovechó la ocasión para ampliar el espacio público, y crear propiamente la Plaza de San Juan.

El debate sobre la reforma urbana del entorno de las plazas San Juan y Etxeandia

se remonta a los años posteriores a la Guerra Civil, cuando en 1941 fue aprobado por el Ayuntamiento el denominado PLAN DE URBANIZACIÓN DE LA ZONA OFICIAL al objeto de proceder a la reconstrucción del área central de la ciudad, devastada durante la referida contienda.

En la década de los años setenta se cuestiona la ordenación recogida en el Plan General del año 1965, y se inicia un proceso de elaboración de alternativas que ordene un espacio de tanto significativo para la ciudad.

A pesar de la selección de dos propuestas como fruto de concurso realizado en el año 1974, el proceso de sustituir la ordenación aprobada quedará paralizado hasta el año 1988, fecha en la que se reinician los

estudios con la participación del arquitecto Robert Krier, cuyos criterios provocaron una fuerte oposición ciudadana, que condujeron a la paralización del proyecto.

Durante los meses de diciembre de 2003 y enero de 2004, en el marco del procedimiento establecido en el Plan General de Ordenación Urbana se realizó un proceso de participación ciudadana en el que participaron unos 2.000 iruneses.

Una de las conclusiones más importantes que se deduce del proceso de participación ciudadana iniciado por el Ayuntamiento, y en donde se produce un consenso generalizado, es en la necesidad de salir de la situación de los últimos años y

38 DC 98 38 ALUMBRADO PÚBLICO
Uzcanga Arquitectos, slp

la puesta en marcha de un proyecto de renovación urbana del centro de la ciudad.

Con las sugerencias recibidas y los resultados del taller de debate se elaboró un documento con las conclusiones del proceso de participación y las aportaciones de la ciudadanía, A partir del consenso manifestado para la puesta en marcha de un proyecto de renovación, las opiniones de los ciudadanos se estructuran en tres ejes esenciales: un Espacio Abierto, un Espacio Diverso, un Espacio de Identidad.

A mediados de 2005 se convocó un Concurso Internacional de ideas para la Ordenación de las Plazas de San Juan y Jenaro Etxeandía, recogiendo el Pliego del

39 DC 98

Concurso las conclusiones del debate ciudadano. Concurso que tras la selección de un jurado de tres propuestas, éstas fueron votadas por la ciudadanía eligiéndose la propuesta ya construida.

MeMoRia explicativa

La obra realizada forma parte de una amplia operación cuya finalidad es la regeneración urbanística de la Plaza de San Juan y de sus bordes, estableciendo

una serie de nuevos usos que encaucen y posibiliten la transformación buscada.

Se pretende en definitiva que la Plaza de San Juan recupere su papel esencial en la ciudad, la importancia urbana que ha tenido durante 250 años de presencia fundamental. Además de ser el corazón administrativo de la ciudad, será también su corazón cultural, dando respuesta a las exigencias que el crecimiento de la ciudad demanda.

Buena parte de la nueva plaza ya está en uso. El gran espacio geométricamente regular en el que la Casa Consistorial es protagonista, pavimentado con grandes losas de granito oscuro, se prolonga en otro más orgánico, donde predominan las formas curvas, caracterizado por el arbolado y el colorido tanto de pavimentos como de los elementos vegetales, y que permite establecer una secuencia continua con los cercanos parques de la Sargía y Gain Gainean.

40 DC 98

Entre ambos espacios principales la plaza se rebaja formalizándose un recinto en el que se exterioriza la futura biblioteca, posibilitando su iluminación natural, y resolviendo a su alrededor los ajustes topográficos necesarios

Se ha cuidado el diseño de pavimentos, bordillos, herrería, bancos, etc., resolviéndolos sin estridencias formales, buscando acentos para generar una imagen propia del conjunto.

eleMentos de iluMinación

Los elementos de iluminación se diferencian según las zonas, colocando báculos altos en los bordes del espacio institucional, utilizándose en los restantes espacios elementos más bajos integrados en parterres y recorridos, obteniéndose espacios de iluminación diversa.

Sistemas de iluminación Multiwoody con proyector Maxiwoody, sistema Cut-off,

Lavinia, Linealuce, Ledstrip, Cup e iPro; empotrables Comfort y Light Up Walk Professional.

La nueva plaza, que se ha integrado con naturalidad en el día a día de la vida ciudadana, con la ejecución de las edificaciones previstas en la ordenación, se irá consolidando y enriqueciendo un conjunto urbano potente, diverso y activo, a la altura de lo que Irún merece. n

Ficha técnica

Proyecto: Urbanización Plaza de San Juan y Jenaro Etxeandía.

Promotor: Ayuntamiento de Irún.

Proyecto y Dirección de Obra: Uzcanga Arquitectos , Luis Uzcanga, Almudena Grandío e Ignacio Iriarte, arquitectos.

Paisajismo: Uzcanga Arquitectos, Almudena Grandío, arquitecta responsable.

Productos: Sistemas Multiwoody, Proyector Maxiwoody, Lavinia, Linealuce, Ledstrip, Cup, iPro, Sistema Comfort, Light Up Walk Professional de iGuzzini Illuminazione.

Proyecto de iluminación: iGuzzini Illuminazione Ibérica

Fotografías nocturnas: Luz y Arquitectura. Gala Martínez

41 DC 98

La estación más vanguardista de Holanda y su estrategia luminotécnica

En noviembre de 2015, la estación central de Arnhem abrió sus puertas, cumpliéndose las expectativas de un proyecto a largo plazo que buscaba consolidarse como un nuevo icono de la arquitectura neerlandesa y europea. El proyecto encabezado por UN studio, la principal firma de arquitectura del país; Arup, la marca líder mundial en ingeniería urbana, contó en su apartado de iluminación con la dirección de la prestigiosa diseñadora lumínica holandesa Irish Dijkstra, fundadora de Atelier Lek. La presencia de “Lighting Designers” en el equipo de proyecto permitió implementar una estratégica luminotécnica independiente capaz de dar respuesta a los fundamentos de la arquitectura moderna, potenciando así su esencia: el encuentro entre la luz y la forma. Desde

2007, Atelier Lek contribuyó a la creación una visión vanguardista de la estación, traduciéndola posteriormente a un master plan ejecutable capaz de integrar coste total de propiedad, confort visual y armonización estética. Tras un “benchmark” de las alternativas más avanzadas y versátiles del mercado, la luminaria Lined de Setga fue el diseño seleccionado para iluminar las vías de acceso y el entorno de esta futurística estación de ferrocarril.

Según la diseñadora lumínica Irish Dijkstra,

“La luminaria Lined presurizada con una atmósfera inerte, encaja a la perfección en la imagen deseada y define a su vez nuevos estándares en términos de calidad lumínica, durabilidad y operatividad. Para ser proveedor del municipio de

Arnhem, el fabricante de luminarias LED debe comprometerse con un “Product Service System (PSS)”, especialmente diseñado para este proyecto cuyos requerimientos de vida útil, mantenimiento y servicio post venta son altamente exigentes”.

42 DC 98
42 ALUMBRADO PÚBLICO

Fiabilidad tecnológica

La luminaria aplicada destaca por su tecnología APS – Argon Pressurised System con IP68, mediante la cual el módulo óptico-electrónico se encuentra presurizado en una atmósfera inerte de gas argón con el objetivo de impedir la entrada de aire húmedo procedente del exterior. Un fenómeno producido a causa de la reducción de presión que experimenta el interior de cualquier luminaria LED estándar en el momento del apagado. Al crear dicha

atmósfera inerte se evitan por tanto los efectos destructivos de la humedad, la salinidad, los componentes orgánicos volátiles y la sulfurización en los semiconductores LED, siendo todos ellos elementos presentes en el ambiente exterior de una ciudad.

Cabe destacar que estudios recientes de Samsung Electronics [1] [2] como del Harbin Institute of Technology [3], presentaron evidencias empíricas sobre la degradación

La tecnología LED del fabricante español SETGA fue seleccionada para iluminar Arnhem Centraal Station

43 DC 98
[1] Costantini. A; Sulfurization - Samsung LED technology, Samsung Electronics (2015). [2] Lee. S; Case study of LED PKG field failures, discoloration. Samsung Electronics (2015). [3] Zhao, S.; Caers, J.; Hang, C.; Fei, J.; Tian, Y.; Zhang, W. y Wang, C. (2013). The effects of humidity and temperature on flexible pac kaging led modules. Philips Research High Tech Campus 34, Harbin Institute of Technology, p 1126 – 1129

prematura del flujo y las variación de la temperatura de color y el CRI a causa del impacto de dichos agentes. Por ello, la tecnología de gas argón (APS) de SETGA fue un aspecto especialmente valorado a la hora de analizar el potencial de vida útil, rendimiento y estabilidad cromática en un país donde los índices de humedad relativa se sitúan por encima del 80%.

A fin de minimizar el coste total de propiedad (TOC), la luminaria Lined incorpora un programa de reemplazó a largo plazo mediante el cual el fabricante tiene la capacidad de actualizar la tecnología LED en el interior del módulo óptico - electrónico reaprovechando el resto de componentes de la luminaria. Según una tesis elaborada en la prestigiosa escuela de negocios Esade, las tecnologías LED basadas en atmósferas inertes y en este modelo de mantenimiento a L/P conllevaría una reducción adicional del 40% en el coste total de propiedad medio de la infraestructura de alumbrado público de la UE respecto a los estándares LED existentes en el mercado, pasando del -50,46% al -70,58%.

Vanguardia y Versatilidad conceptual.

Según el equipo de proyecto de SETGA, integrado por Jesús Saveedra, Jorge Lameiro, y Francisco Paz, “el proyecto Arnhem ceentral station supuso una oportunidad de co-innovación, a partir de la cual la forma elemental de la Luminaria Lined demostró una vez más su capacidad para adaptarse a la esencia de cada reto urbano”. En esta ocasión, Irish Dijkstra buscaba un elemento de soporte simétrico capaz de proporcionar continuidad a la forma, eludiendo el diseño arrogante para preservar la armonía con un entorno moderno, desde la honestidad estética. A partir de esta visión, nació la serie de soportes Arnhem.

Holanda, un país que Valora la tecnología Fabricada en españa.

El pasado 25 de Noviembre, el Het Financieele Dagblad (fd.nl), la principal

cabecera económica holandesa, publicaba el titular “Spaanse ledlampen veroveren Nederland” (la iluminación LED española conquista las calles de Holanda) [4]. En dicho artículo se destacó la sorprendente progresión experimentada por el fabricante español Setga en el mercado neerlandés, la cuna fundacional de la industria lumínica europea, donde la obtención entre 2013 y 2014 de dos contratos consecutivos para iluminar las áreas más emblemáticas de Ámsterdam contribuyó a la posterior consolidación de la tecnología LED gallega en más de 30 ciudades del país durante el curso de 2015. Este reconocimiento en la prensa nacional de Holanda contó con menciones explicitas a las ciudades de Nijmegen, Almere,

Arnhem, Aalsmeer, Ámsterdam Wassenaar y Bergen, e incluso con los testimonios de varios técnicos municipales, quienes pusieron de manifiesto el alto valor tecnológico de las luminarias LED fabricadas en Galicia. Con el fin de seguir impulsando su crecimiento en el mercado Holandés durante los próximos años, Setga ha cerrado a principios del Diciembre pasado un acuerdo de inversión en el capital de Modernista, su distribuidor exclusivo en el país desde hace 6 años. La conquista conjunta de los proyectos más emblemáticos del país en los últimos dos años: Ámsterdam Red Carpet, Ámsterdam siglo XXI, Bergen y la estación de Arnhem, junto con un crecimiento medio en ventas del 270%, y la entrada en más de 30 municipios, han constituido los principales drivers de este acuerdo. El principal objetivo de esta decisión estratégica es profundizar aun más en el modelo de co-innovación, agilidad y apoyo técnico continuo desarrollado con éxito durante los últimos 25 años en España. Para ello, su filial Setga Nederland y Modernista acaban de crear un centro de proyectos para todos los Países Bajos, lo cual ha supuesto un crecimiento del equipo operativo en el país del 120%. Continuar apostando por la innovación y la anticipación tecnológica será un factor clave para consolidar la posición de Setga en el mercado holandés. El desarrollo de su última generación de luminarias LED dotadas de la tecnología de gas argón, ha supuesto una inversión total de 2.700.000 €, incluyendo maquinaria y utillaje, costes de I+D y más de 25 homologaciones internacionales exigibles por los institutos energéticos de los 11 países en los que opera Setga.

A pesar de su diversificación hacia los mercados internacionales, la vocación de Setga pasa por continuar situando más del 95% de su cadena de valor de componentes en España, y al menos un 80% en Galicia. De los 50 componentes mecánicos y electrónicos que de media conforman una luminaria, 40 se fabrican a menos de 50 kilómetros de la sede central de Setga en Pontevedra. n

http://fd.nl/ondernemen/1128790/spaanse-ledverlichting-verovert-nederlandse-straten.

44 DC 98 [4]
UN studio, Arup, Atelier Lek, B+B, y el municipio de Arnhem desarrollaron conjuntamente este nuevo icono de la arquitectura neerlandesa

Iluminación del entorno del Palacio de Deportes de Cartagena

Partíamos de una instalación discordante con la moderna edificación del Palacio de Deportes

Existía inicialmente una luminaria tipo bola sin protector provocando alta contaminación lumínica, instaladas sobre una columna de fundición de estilo clásico que no correspondía con la imagen de contemporaneidad que tiene el entorno. Además, todas se encontraban en muy mal

estado sufriendo unos costes de mantenimiento muy elevados.

Con la nueva iluminación proyectada se están consiguiendo ahorros de más del 60% y un efecto de uniformidad en la iluminación que ha dado a este paseo una sensación de seguridad y bienestar que invita al paseo y a la práctica del deporte y prueba de ello es el aumento de ciudadanos que ahora utilizan esta zona.

La colaboración entre los gestores municipales y el equipo de Schréder ha convertido esta zona en un lugar de convivencia . El deseo de los representantes municipales era rehabilitar esta zona pública acorde con su relevancia , adoptando soluciones de calidad y duraderas que sirvieran para realzar la arquitectura. También era muy importante elegir una solución anti vandalismo , pues era uno de los problemas más costosos que conllevaba la iluminación anterior, se optó por la luminaria

46 DC 98 46 ALUMBRADO PÚBLICO

TECEO 1 , pues requiere de un mínimo mantenimiento, además de aportar importantes ahorros energéticos.

Con una solución convencional, la depreciación del flujo luminoso a lo largo del tiempo conlleva un exceso de iluminación inicial - y por tanto un exceso de consumo energético -, de modo que la eficacia se reduce lentamente hasta alcanzar el nivel mínimo necesario al final de la vida útil de la instalación, pero las luminarias Teceo funcionan de forma diferente, manteniendo la emisión de flujo luminoso constante (Constant Light Output - CLO). Controlan de forma precisa y autónoma sus necesidades energéticas durante el ciclo de vida de la luminaria para proporcionar el nivel requerido de manera constante —ni más ni menos— a lo largo de toda la vida útil. Cartagena ha adoptado una solución inteligente para crear un nuevo espacio de convivencia.

Un coste total mínimo para la propiedad es el concepto prioritario de la gama Teceo. Está equipada con LED y ofrece una alternativa muy competitiva a las luminarias equipadas con fuentes de luz tradicionales, como en el caso de este proyecto, donde finalmente se instala la opción Teceo 1 con 48 leds óptica 5103 NW 75 W de potencia sobre columna cilíndrica doble brazo, instaladas a una Interdistancia de 28 metros y con un punto doble para iluminar acera y el acceso al nuevo pabellón de deportes de Cartagena.

Las luminarias Teceo están equipadas con la segunda generación de motores fotométricos LensoFlex®2 específicamente desarrollados para iluminar espacios donde el bienestar y la seguridad de las personas que los usan son fundamentales.

Ficha técnica

Proyecto: Entorno Palacio Deportes de Cartagena

Promotores del proyecto: Gestores municipales del Excmo. Ayto. de Cartagena

Producto LED: Luminaria instalada Teceo 1 de Schréder Socelec

Usando tecnología punta, las luminarias Teceo han sido diseñadas para cumplir con el concepto FutureProof.

El motor fotométrico tiene una hermeticidad IP 66 para proteger a los LED y a las lentes de entrar en contacto con el entorno exterior y mantener así las prestaciones fotométricas a lo largo del tiempo. La unidad óptica puede desmontarse fácilmente, lo que permite su sustitución in situ al final de su vida útil con el fin de aprovechar futuros avances tecnológicos. Este procedimiento fácil y rápido reduce los costes de mantenimiento y contribuye a reducir el coste total.

El concepto FutureProof permite actualizar de forma sencilla cualquier versión de la luminaria y aprovechar así posibles avances tecnológicos. n

47 DC 98

STELARIA, sistema para la gestión remota e inalámbrica punto a punto de alumbrado público

La empresa aragonesa ELT ha apostado en el último año por desarrollar soluciones que combinan la tecnología LED con dotar de inteligencia y conectividad a las luminarias en el entorno urbano. La apuesta por un modelo avanzado de negocio basado en proporcionar a sus clientes una solución integral de gestión del alumbrado público se basa en el desarrollo de sistemas y equipos específicos para conquistar un entorno caracterizado por la comunicación e interacción de los objetos a través de internet.

El sector de la iluminación está viviendo una doble revolución tecnológica en muy poco tiempo. Primero fue la irrupción de la tecnología SSL (Solid State Lighting), comúnmente conocida como LED, que hoy por hoy es una realidad extendida. La tecnología SSL ha actuado como catalizador de una segunda revolución en ciernes, que consiste en dotar de inteligencia y conectividad a las luminarias en lo que hoy en día denominamos internet de las cosas (IoT – Internet of Things). Esta denominación hace referencia a la capacidad de monitorizar y gestionar los objetos presentes en las diferentes áreas en las que se desarrolla la

actividad humana: desde las plantas de producción o las ciudades, hasta la salud y el ocio o la búsqueda de la eficiencia y la mejora de nuestra calidad de vida. La definición, diseño y arquitectura de un sistema de gestión de alumbrado exterior, además de proporcionar un control eficiente de la iluminación, puede, bajo esta premisa, conformar un sistema de iluminación inteligente (Smart Lighting).

La división de sistemas inteligentes de ELT ha creado STELARIA, una potente solución integral de hardware y software para iluminación inteligente en entornos urbanos que reinventa el concepto tradicional de telegestión.

Se ha desarrollado un sistema de gestión de la iluminación urbana punto a punto basado en la capacidad de monitorizar, adquirir y controlar los datos de los nuevos drivers LED de la compañía. Éstos incorporan la avanzada tecnología eSMART, desarrollada por el equipo de ELT, y que permite generar perfiles de iluminación programables en tiempo real según parámetros como la localización de la luminaria, el calendario o el

horario. De esta forma es posible conseguir un alumbrado flexible, adaptado a las características del entorno y a las necesidades del ciudadano, optimizando al mismo tiempo el consumo de energía, con el consiguiente ahorro económico.

Para los gestores de alumbrado, STELARIA se convertirá en el mejor aliado. La información relativa a los parámetros relacionados con el propio driver, el módulo LED y la red eléctrica se recibe en tiempo real. Con todos esos datos se facilitan tareas de mantenimiento preventivo de las instalaciones y se hace posible realizar test diagnósticos además de permitir gestionar de forma eficaz las alarmas e incidencias que puedan surgir.

Un paquete software de desarrollo propio permite realizar la monitorización y control del driver y de cada una de las luminarias. Éste tiene distintos módulos y aplicaciones, está basado en gestión web, es multidispositivo y permite diferentes perfiles de usuario. Mediante la geolocalización de las luminarias se pueden habilitar diferentes instalaciones y agrupar dichas luminarias

48 DC 98 48 ALUMBRADO PÚBLICO
División Sistemas Inteligentes ELT

para su gestión según diferentes criterios lógicos: individual, instalación completa, calle, tipo, etc.

La interfaz de usuario es intuitiva y de fácil manejo, facilitando de este modo a los gestores de las infraestructuras de alumbrado la tarea de la monitorización, reprogramación y mantenimiento de las mismas.

Los sistemas de gestión de la iluminación urbana actuales están basados, en un elevado porcentaje, en comunicaciones a través de los cables de la red eléctrica, lo que se conoce como comunicaciones PLC (Power Line Communication), centralizadas en cuadro eléctrico. Estos sistemas sólo permiten realizar labores básicas de telegestión sobre las luminarias, ya que presentan diferentes limitaciones que los alejan del concepto de iluminación inteligente.

En primer lugar, las redes PLC disponen de una baja capacidad de transferencia de datos, así como una limitada capacidad de interacción entre el sistema de control y las luminarias, y una estructura de red vinculada a cuadro eléctrico. En segundo lugar, existe un problema de interoperabilidad y ampliación de las redes PLC, dado que los diferentes sistemas y protocolos no son compatibles entre sí. En tercer lugar, la ampliación del sistema con nuevas aplicaciones presenta una gran complejidad (actualizaciones, escalabilidad y extensibilidad). Finalmente, los sistemas basados en PLC son complejos de instalar y de mantener, y no implementan niveles elevados de seguridad en las comunicaciones.

En lo referente a la tecnología utilizada en el sistema de comunicaciones de STELARIA, ELT ha diseñado y fabrica dispositivos instalados en el exterior de la luminaria que se conectan al driver LED mediante un puerto específico. Con esto se genera una red mesh multisalto en la banda de frecuentas libres ISM, consiguiendo un sistema de comunicaciones bidireccional con las luminarias. El protocolo de red utilizado se basa en 6lowPAN, protocolo estándar propuesto por el IETF (Internet Engineering Task Force) para redes inalámbricas de sensores (WSN, Wireless Sensor Network).

Los nodos de luminarias de la red mesh se comunican con la plataforma de gestión mediante nodos gateway (concentradores) 2G/3G/4G, en número y posición tal que permitan la suficiente redundancia como para evitar los canales críticos del sistema. Los gateways se encargan además de la gestión de los nodos en su radio de influencia y de la sincronización de eventos. Los dispositivos de comunicaciones, nodo y gateway, disponen de un diseño innovador y único que les permite su fácil instalación en el exterior de las luminarias, utilizando para ello el mismo alojamiento estándar usado por otros dispositivos como las fotocélulas.

El sistema dispone de mecanismos de descubrimiento automático de dispositivos y autoconfiguración de red, mecanismos que se utilizan para hacer el proceso de instalación y entrega de la instalación de una manera rápida y sencilla. ELT ofrece además a sus clientes el servicio de gestión de las redes de comunicaciones mediante personal cualificado específico.

Las prioridades para ELT de cara a garantizar un buen servicio de la instalación son: la seguridad, la privacidad y la fiabilidad. En STELARIA se han aplicado los más exigentes y actuales protocolos de seguridad, con mecanismos de protección a diferentes niveles para que las comunicaciones y los datos sean seguros de extremo a extremo.

STELARIA incorpora una plataforma de almacenamiento y tratamiento de datos, con la correspondiente capacidad de inteligencia de negocio y con herramientas de presentación y visualización de resultados. Esto permite que determinados datos activos intercambiados en los sistemas de

gestión remota del alumbrado público se puedan combinar con datos pasivos de los sistemas de gestión municipales o con los datos de cualquier otro servicio municipal (residuos, tráfico, emergencias, e-administración, etc.).

STELARIA lleva a su máxima expresión el concepto de alumbrado inteligente. Cada luminaria para alumbrado exterior se convierte así en potencial servidor de datos (data-enabled lighting). La infraestructura de iluminación pasa de este modo a convertirse en un servicio: además de ser puntos de luz, las luminarias son nodos de la infraestructura del Internet de las Cosas (IoT).

Los dispositivos de comunicaciones y la arquitectura del sistema STELARIA están preparados para facilitar la incorporación de sensores adicionales (medioambientales, ruido, movimiento, vibración y una larga lista de posibilidades), permitir y habilitar su integración en plataformas Smart City o plataformas horizontales de gestión de ciudad, y facilitar la instalación de otras infraestructuras de comunicaciones o de otros servicios urbanos.

STELARIA es una potente herramienta, avanzada e intuitiva, que proporciona a los gestores de las infraestructuras de alumbrado, bien sean privadas o de titularidad pública, la capacidad de mejorar el servicio que prestan al ciudadano, ahorrando simultáneamente en costes mediante la reducción del consumo eléctrico y la optimización del mantenimiento y operación de las instalaciones haciendo el entorno urbano mucho más sostenible. n

49 DC 98

RETHINK THE NIGHT, en Kea (Grecia)

Taller que se llevará a cabo en Kea, del 10 al 14 de Octubre de 2016

¿Cómo nos relacionamos con la oscuridad?

¿Cuales son las características visuales especificas de la noche? ¿Cómo se iluminan nuestras ciudades?¿Cuanta luz es necesaria para que nos sintamos seguros?¿Como podemos mejorar el paisaje nocturno?....

Para responder a todas estas preguntas y a algunas mas, el Comité Helénico de Iluminación organiza por tercer año consecutivo el Taller Internacional de Iluminación “Rethink the Night”, en la isla Griega de Kea.

Kea fue elegida como sede para el taller debido a su alta calidad de cielo oscuro, equivalente a la del desierto de Atacama en Chile. Esta característica se atribuye a la combinación de 2 factores: por una parte, su bajo índice de población, que ha contribuido

DC 98
50 ALUMBRADO PÚBLICO
Lara Elbaz , lighting design

a una baja demanda de iluminación, y por el otro, los fuertes vientos que impiden la propagación hasta Kea de la contaminación luminosa de las cercanas zonas sobreiluminadas de Attica.

EL objetivo fundamental del taller es re-establecer el verdadero significado de la luz natural nocturna y animar a que los expertos en iluminación se la replanteen para poder diseñar entornos nocturnos integrados, equilibrados y respetuosos.

El método de trabajo consiste en el desarrollo de técnicas de diseño de iluminación respetuosas con la noche para zonas con extraordinaria calidad de cielo nocturno, para lo cual se realizan y analizan mediciones comparativas del cielo oscuro y se proporciona el acceso a tres tecnologías actuales de iluminación (la luz dinámica, la fosforescencia y la proyección y mapping) aplicadas a tres espacios diferentes seleccionados para el taller.

Además de asistir a conferencias impartidas por especialistas en la materia, los participantes al taller, provenientes del mundo entero, se dividen en tres grupos para llevar a cabo la parte práctica, utilizando cada grupo una técnica diferente de iluminación gracias a una interesante selección de material y el apoyo técnico de un equipo de instaladores que garantizan la seguridad del taller. n

51 DC 98
Mas información e inscripciones en: rethinkthenight.com
Nuestras revistas... también en edición digital www.disenodelaciudad.es www.revistaluminica.es COMGE Editorial S.L. • www.disenodelaciudad.es • www.revistaluminica.es

Solución para la iluminación vial de Copenhague

En la capital de Dinamarca, Copenhague, la mitad de los puntos de iluminación han sido sustituidos por luminaria LED de gran eficiencia energética. La luminaria Thor de Thorn ofrece diseño escandinavo y unas prestaciones lumínicas excepcionales. Conectada a un sistema inalámbrico de control de la iluminación, es posible implementar un control de la iluminación con garantía de futuro, lo que es un aspecto importante de la Ciudad Inteligente

nformación básica

La Ciudad de Copenhague, Dinamarca, es una de las ciudades más inteligentes y sostenibles del mundo. Habiendo fijado el objetivo ambicioso de llegar a un nivel de cero Carbono en 2025, Copenhague está transformando en estos momentos el modo en que gestiona la energía y lleva camino de convertirse en la primera ciudad con cero carbono del mundo. Para contribuir a este objetivo se utilizan energías renovables, se construyen edificios energéticamente eficientes y se incrementa la red de carriles bici de la ciudad. Gracias a estos esfuerzos, la comunidad, con sus 600 000 habitantes, ha recibido el nombramiento de «Ciudad Verde» en 2014.

Otro requisito fundamental para conseguir el objetivo de balance neutro de carbono en Copenhague es una reducción sustancial del consumo de energía de la iluminación vial. Para cumplir este objetivo, había que sustituir los casi 20.000 puntos de luz del alumbrado público, casi todas lámparas de vapor de sodio a alta presión .

objetivos para la iluminación

Copenhague deseaba implementar una solución lumínica energéticamente eficiente que no sólo consumiera menos energía, sino que también utilizara controles inalámbricos seguros con el fin de incrementar el ahorro de energía. Otros objetivos eran el aumento de la seguridad y la comodidad y la mejora de la calidad de la iluminación.

A comienzos de 2016 ya se habían sustituido casi 20.000 puntos de luz del alumbrado vial por lámparas con tecnología LED exclusivamente. La gran mayoría están montadas en sistemas de catenarias sobre la carretera. Con el cambio a fuentes de luz

53 DC 98
53 ALUMBRADO
PÚBLICO
Thorn
1
1. La mayoría de las farolas de Copenhague están montados en catenarias sobre la carretera.

LED, el consumo de energía se ha reducido aproximadamente en un 57%, lo que garantiza una reducción tanto de la huella de carbono como de los costes de mantenimiento. El proyecto de renovación, que también incluye controles inteligentes de la luminosidad, está gestionado por Citelum, que obtuvo el contrato en 2013 cuando fue licitado por la Ciudad de Copenhague. Thorn suministró la exclusiva luminaria Thor para este proyecto. La luminaria Thor satisface los requisitos específicos del proyecto, incluidas las opciones de montaje tanto en catenaria como en poste.

Los objetivos para la iluminación de la ciudad de Copenhague eran los siguientes:

• Sustituir las lámp aras de vapo r de sodi o a alta presión de autovías, carreteras y calles residenciales de Copenhague por la luminaria LED de diseño exclusivo

• Conseguir un ahor ro sust ancial de energía y CO 2 para ayudar a la ciudad a lograr su objetivo de carbono cero en 2025

• Mejorar la cali dad de la ilum inación vial para incrementar la seguridad y la comodidad

• Integrar la ilum inación en los dato s de dens idad de tráfico para adaptar los

niveles de iluminación de acuerdo con el uso de las carreteras en el futuro

• Crear un sistema de gest ión cent ral para una gestión y control efectivos de la iluminación vial

Desarrollo De una luminaria personalizaDa para la ciuDaD De copenhague

En barrios tales como 2100 Oesterbro o 2300 S Amager, la luminaria Thor conforma el paisaje de la ciudad. La Ciudad de Copenhague quería llevar a las calles algo nuevo y urbano, pero también mantener la

2 y 3. La luminaria se integra perfectamente en el ambiente, montada en poste.

4. La mayoría de las farolas de Copenhague están montados en catenarias sobre la carretera, dependiendo del tamaño de la carretera en una o dos filas.

54 DC 98
4 3 2

familiaridad con una forma similar a la antigua iluminación y una imagen reconociblemente nórdica que durara varias décadas. La luminaria también debía poder ser capaz de integrar futuras tecnologías para una ciudad Inteligente y ofrecer la posibilidad de emitir luz hacia arriba. Y no hace falta decir que tenía que ser posible montar la lámpara en sistemas de catenaria así como en postes. Además, debería proporcionar una distribución uniforme de la luz, similar a las antiguas lámparas.

La luz debía abarcar la carretera, la acera y los carriles bici. Esto incrementa la sensación de seguridad y los peatones perciben las aceras como un espacio público y atractivo.

Thorn desi gnó al dise ñador dané s Morten Lyhn e para que ayudara a poner en práctica los objetivos de Copenhague. Su diseño está caracterizado por la sencillez. Combina funcionalidad y estética, partiendo de un diseño inteligente con vistas a futuro.

Con un diseño circular y sencillo, esta luminaria continúa la tradición de Copenhague de accesorios luminosos circulares. La eficacia lumínica de 97 lm/W

satisface los requisitos de rendimiento. En la parte superior de policarbonato se aloja un módulo LED adicional y, como resultado de ello, la luz se dirige hacia arriba conforme a las especificaciones. Esta luz indirecta garantiza que la luminaria conserve la imagen de su forma también cuando está oscuro. La cúpula también satisface los requisitos de la ciudad inteligente, es decir, la antena y el sistema electrónico pueden montarse en el interior del accesorio.

Aproximadamente 8500 luminarias Thor montadas en un sistema de catenaria a una altura de 8 metros así como 1.500 luminarias colocadas en postes a una altura de 6 metros otorgan una apariencia y sensación escandinavas y se integran armoniosamente en el paisaje urbano. Con una selección de diferentes temperaturas de color y una distancia entre luminarias de 28 metros a 30 metros, las carreteras principales y las áreas residenciales, las plazas y los parques, permanecen iluminados conforme a las normas viales. De acuerdo con los niveles de luminosidad daneses, generalmente inferiores a los del resto de Europa, Thor se instaló con niveles de luminosidad de 0,75 a 1 cd/m2 y niveles de

iluminancia de 2,5 a 15 luxes. También se cumplen otros requisitos estrictos, especialmente para las carreteras mojadas.

conectiviDaD para gestión Del tráfico, monitorización y eficiencia energética

La nueva iluminación vial de Copenhague se conecta a través de un sistema de control inalámbrico a la Red SilverSpring, que está basada en el protocolo «IPv6 inalámbrico» y es compatible con el software de Citelum. Basándose en esto, las funcionalidades de las luminarias pueden utilizarse para una gestión inteligente de la iluminación y, como resultado de ello, para un funcionamiento energéticamente eficiente y una monitorización global acompañada por intervalos de mantenimiento planificados.

Se está preparando la puesta en práctica en el futuro de controles de la iluminación basados en los niveles de luz natural. Otra posibilidad es conectar la iluminación con los datos de gestión del tráfico y adaptar la iluminancia (sin afectar a la seguridad) basándose en la densidad del tráfico y la situación de la carretera. Si la densidad del tráfico es inferior, las luminarias, que disponen

55 DC 98
5
5. Thor, instalada en una de las carreteras principales de Copenhague.

de una óptica para carreteras mojadas con el fin de iluminar éstas, pueden oscurecerse entre un 30 % y un 70 %. Además de eso, se puede incorporar la política de transporte amiga de las bicicletas de Copenhague introduciendo sistemas de cámaras y sensores opcionales, que pueden integrarse en la luminaria Thor. Es posible detectar a los ciclistas y, a continuación, guiarlos hacia lo que parece ser la ruta más tranquila o más rápida. Esto demuestra las posibilidades que ofrecen actualmente las tecnologías y la conectividad de datos, así como el grado de compromiso de Copenhague con la creación de una Ciudad Inteligente que sea beneficiosa para sus ciudadanos.

ventajas De la nueva luminaria thorn De Diseño exclusivo

La nueva farola Thor, diseñada y desarrollada exclusivamente por Thorn, proporciona los siguientes beneficios a la Ciudad de Copenhague:

• Iluminación LED energéticamente efic iente (97  Llm/W), que reduce el consumo de energía hasta en un 60 %

• Máximo ahor ro de energía con gest ión de la p roducción lumínica durante la noche.

En la actualidad, las opciones de control incluyen un oscurecimiento con luz del día y un programa predeterminado. En el futuro, los datos inteligentes se utilizarán para ajustar automáticamente los niveles de la iluminación vial.

• Una mayo r cali dad de la luz mejo ra la como didad y la seguridad (niveles de luminancia de 0,75 a 1 cd/m2; niveles de iluminancia de 2,5 a 15 luxes; diversas temperaturas de color; índice de reproducción cromática de 80)

• Construcción fiab le que requ iere poco mantenimiento, lo que reduce sustancialmente los costes de funcionamiento durante una duración prevista muy prolongada.

• Fácil mantenimiento, con aler tas de fall o / erro r instantáneas al sistema de gestión central

• Diseñado para mejo rar la arqu itectura dist intiva de Copenhague

Datos clave

• Lu minaria urba na de dise ño excl usivo

• Ah orro de energía de hast a el 60 %

• Re ducción sust ancial del mantenimiento, con una duración de 90 000-horas

• Il uminación de gran cali dad, que apor ta como didad y seguridad

• Co ntroles inte ligentes de la ilum inación

centraDa en la aplicación – la nueva thor l

La experiencia de este exigente proyecto ha sido empleada en crear la segunda generación de Thor. Thor L es una luminaria urbana inteligente basada en la luminaria Thor diseñada específicamente para la Ciudad de Copenhague. Ofrece una solución

verdaderamente conectada para una iluminación inteligente y energéticamente eficiente. Puede incorporar sistemas de control inalámbricos inteligentes y es compatible con diversos dispositivos de comunicación, incluidas cámaras de circuito cerrado y sensores. La cúpula superior de policarbonato de Thor L permite montar componentes dentro de la cúpula con el fin de satisfacer los requisitos de una Ciudad Inteligente.

Diseñada para integrarse fácilmente en cualquier entorno urbano, Thor L dispone de una óptica de iluminación de gran calidad que mejora la comodidad del usuario y de una amplia gama de opciones flexibles de montaje, incluido montaje lateral, en poste, en suspensión y en catenaria. Thor L suministra una potencia lumínica de 12 000 lúmenes, y es posible elegir una cúpula completa o un acabado en ópalo con el fin de facilitar la creación de una firma lumínica diferenciada. La compatibilidad con tres ópticas R-PEC (comodidad en calles, carreteras mojadas y carreteras estrechas) permite una colocación precisa de las luces sin pérdida de la capacidad de iluminación. Thor L está disponible en 3000 K y 4000 K.

Thor resulta idónea para sistemas energéticamente eficientes y sostenibles. Con su estética escandinava, proporciona valor y ventajas a cualquier paisaje urbano. n

56 DC 98
6
6. La farola LED Thor L de Thorn.
Tel. 971 72 75 05 central@hags. es www.hags.es

Alumbrado vial con tecnología LED en la Ronda de Dalt de Barcelona

El Grupo Simon ha ubicado en la Ronda de Dalt de Barcelona las luminarias Nath L Instanium® LED que sustituyen a las convencionales de sodio. Los tres carriles de la ronda han ganado en seguridad, eficiencia y sostenibilidad consiguiendo un ahorro energético de más del 50%, entre otras ventajas.

La salida 15 de la Ronda de Dalt, en las Rondas de Barcelona, dispone de una nueva iluminación vial diseñada por Simon. Las luminarias Nath L Instanium® LED destinadas al alumbrado vial ofrecen, entre múltiples ventajas, un alto rendimiento lumínico, un diseño específico para soportar las condiciones climatológicas más adversas y un mantenimiento sencillo.

La importancia de la iluminación en la seguridad para los conductores, es cada vez más importante. Las soluciones de la firma de eficiencia energética para alumbrado público, con la óptica RJ, consiguen aportar una uniformidad excepcional de la luz, que para estas carreteras donde se circula a 80 km/h es fundamental.

58 DC 98 58 ALUMBRADO PÚBLICO

Algunas de las características técnicas más destacables son entre otras; la temperatura de color de 4000K y el índice de reproducción cromática que es superior al 70% y consigue un confort visual altamente superior, si se comparan con las luminarias sustituidas.

Los modelos Nath poseen un sistema de apertura sin herramientas, la posibilidad del desconector automático al abrir el compartimento, un avanzado sistema de refrigeración sin aletas de disipación a la vista, un único cuerpo con dos volúmenes independientes para el equipo y el grupo lumínico LED que evita la irradiación de calor mutua y finalmente, un nivelador incorporado para la correcta instalación de la luminaria.

Estos modelos forman parte de la propuesta que la empresa presenta para ofrecer flujos lumínicos superiores a 25.000 lumenes, permiendo la sustitución directa de luminarias de 250W con tecnología de sodio a alta presión y consiguiendo ahorros de hasta el 65% del consumo de energía eléctrica. n

59 DC 98

ferias

light+ building

Light+Building vuelve a batir récord de cifras con visitantes, expositores y superficie

La próxima Light + Building se celebrará del 18 al 23 de marzo de 2018. Novedades LIGHT BUILDING

Light + Building ha vuelto a demostrar su posición principal como feria líder mundial en el campo de la luminotecnia y de la tecnología de edificios. El mayor certamen a nivel mundial de iluminación, electrotecnia y automatización de viviendas y edificios cerró sus puertas el 18 de marzo con cifras récord. Todos los datos importantes han registrado un crecimiento – ha aumentado el número de visitantes, de expositores, así como la superficie de exposición ocupada.

Los 2.589 expositores (en 2014: 2 465*) de 55 países presentaron sus novedades mundiales en una superficie de aproximadamente 248.500 metros cuadrados (en 2014: 245 000 metros cuadrados*).

Aproximadamente 216.000 visitantes profesionales (en 2014: 211 232*) de 160 países en total visitaron del 13 al 18 de marzo el recinto ferial en Fráncfort del Meno y se informaron sobre las innovaciones, soluciones y novedades del sector.

La internacionalización ha vuelto a aumentar con respecto a la pasada edición: el 67% (en 2014: el 63% de los expositores y el 49% (en 2014: el 47% de los visitantes provenían del extranjero.

Después de Alemania, los países con el mayor número de visitantes han sido Italia, Países Bajos, Francia, Gran Bretaña y China. España y los países del Este como Polonia, la República Checa, Hungría y Rumanía han registrado un aumento significativo de visitantes, lo mismo que Turquía, India, Marruecos e Irán.

LA LUMInALe

Por la noche, la Luminale actuó de puente entre la ciudad y el recinto ferial. La bienal de la cultura de la luz mostró en la región Reno-Meno más de 200 escenificaciones lumínicas únicas paralelamente a la feria líder mundial. Este año aproximadamente 200 000 huéspedes visitaron el “laboratorio de luz urbano”. La combinación de feria especializada y descubrimiento de la ciudad transformó la región de Reno-Meno en un punto de encuentro único que giró alrededor del tema de la iluminación.

Por octava vez en su historia ofreció una ocasión única para contemplar la arquitectura desde “una luz completamente distinta” y descubrir conceptos lumínicos fascinantes repartidos por toda la ciudad.

* Datos certificados por la FKM.

60 DC 98 60 ALUMBRADO PÚBLICO

2

3

AOD & LEDS

GO

PROJECT Línea SUDOKU

Nueva línea denominada Sudoku como sustitución de las luminarias convencionales de halogenuro metálico hasta 2000W. Gran eficiencia y variedad de ópticas.

ATP ILUMINACIÓN Luminaria AIRE

Luminaria LED de alto rendimiento con sistema de disipación internacionalmente patentado. Ofrece la solución definitiva al sobrecalentamiento del LED y alarga considerablemente su vida útil. El Disipador Laminar® de la serie Aire está totalmente expuesto y en contacto directo con el exterior, de manera que el calor se transmite al ambiente y se reduce al máximo la temperatura de trabajo de los dispositivos LED.

BENITO -Light Luminaria ELIUM

De diseño extra plano de gran eficiencia. Concebida para aplicaciones de tipo vial pero también útil en multitud de aplicaciones gracias a dos tamaños y dos tipos de distribuciones ópticas. Perfecta para instalar en columnas entre 4 y 12 metros en calles residenciales y urbanas anchas y estrechas, carriles para bicicletas, aparcamientos, parques, plazas, avenidas, autovías y autopistas.

El Sudoku es una luminaria de alto rendimiento hasta 135lm/W de sistema para uso interior y exterior, con IP67 y IK08. Su diseño modular facilita su mantenimiento y permite cambiar los componentes que lleva, tanto drivers como fuente de luz. Es ideal como aplicación en iluminación, publica, deportiva y grandes superficies.

Asimismo, los equipos y las placas de diodos se encuentran ubicados en compartimentos separados, estancos e independientes, lo que evita la transferencia térmica entre ambos elementos. El sistema de disipación ideado por ATP está patentado internacionalmente.

Entre sus características, destacar su diseño aerodinámico; disipación pasiva sin aletas; mínima superficie de resistencia al aire; diseño con antideslumbramiento; fijación en tubo de Ø 60 milímetros tanto en Top como en lateral. Posibilidad de inclinación de 0º, 5º 10º y 15º; Incorpora módulos B-flex. Utiliza avanzados LEDs así como una combinación de lentes de última generación para ofrecer una solución perfecta en cada una de las aplicaciones. Temperaturas disponibles en 3000ºK y 4000ºK. Índice de reproducción cromática CRI>70.

61 DC 98
1

Baliza LED ideada por David Abad. Su diseño está basado en una extrusión que recrea de modo minimalista el arquetipo de vivienda con cubierta a dos aguas. Este diseño tiene una conexión directa con la arquitectura, no solo por sus formas, sino también por su cuerpo de hormigón, disponible en acabados blanco, gris o negro. Como accesorio, White House permite el uso de placas metálicas de señalética en sus fachadas abiertas, que permiten modelar la luz. Tiene dos LED integrados, que garantizan un escaso consumo y una óptima iluminación, y permite su instalación en todo tipo de jardines y terrazas.

Gama de centros de mando para servicios municipales como el alumbrado público, regulación de tráfico o parques y jardines.Serie de gran calidad, innovación y diseño, cuyo objetivo es mejorar la estética de los elementos de mobiliario urbano técnicos en la ciudad. La serie se convierte en una apuesta por parte de los ayuntamientos, ya que loran sustituir los cuadros de mando convencionales y poco integrables en ambientes urbanos, por la fusión de diseño y arquitectura urbana.

7 e RCO

Las balizas proporcionan orientación y seguridad en superficies abiertas y caminos. Además de generar la iluminación básica necesaria, jerarquizan estructuras espaciales, enfatizan y delimitan rutas de tránsito y plazas públicas.

Está equipada con irradiación radial de 360° para superficies abiertas o, como alternativa, con distribución luminosa semicircular para caminos; y está disponible en diversos tamaños y paquetes de flujo luminoso. El bañador de suelo posibilita unas interdistancias de luminarias extraordinariamente grandes, de hasta 10 metros, con una luz precisa y uniforme y un apantallamiento perfecto.

6

ELT

Módulos LED eLED Street SQR

Nuevo módulo LED para aplicaciones de alumbrado público. Con un rendimiento de 150 lm/W, ofrece 7050 lúmenes en 47Watios. Apropiado para funcionamiento en corriente constante. Alta eficiencia óptica y alto rendimiento de la distribución de la luz, válidas para diversas aplicaciones. Diseño para una óptima gestión térmica. Instalación en luminaria. Aplicaciones de exterior e interior ( vial, aparcamientos y garajes, entornos decorativos y arquitectónicos, ambientes urbanos y residenciales, etc.)

Las variantes con distribución luminosa de haz extensivo de 180° poseen una potencia instalada entre 8W y 12W y paquetes de flujo luminoso de 840lm a 1650lm.

Las versiones con irradiación radial de 360° cuentan con una potencia instalada entre 16W y 24W y paquetes de flujo luminoso de 1680lm a 3300lm. Castor está disponible con una altura de 800 milímetros o de 900 milímetros, dos temperaturas de color diferentes y con equipos auxiliares conmutables o regulables mediante DALI.

62 DC 98 4
B.LUX Baliza WHITE HOUSE
5
EDIGAL Serie TUECRO Baliza CASTOR

Luminaria de diseño avanzado, limpio y esbelto. Ha sido concebida para integrarse arquitectónicamente en la iluminación de carreteras, calles y aparcamientos. El empleo de LEDs de alta eficiencia junto con un innovador diseño óptico que integra el reflector en la PCB de LED, permiten cubrir grandes interdistancias entre luminarias con elevados niveles de uniformidad y

FEILO SYLVANIA Sylveo LED

Gama completa de proyectores LED para aplicaciones de exterior e interior. Perfecto para reemplazar proyectores de tecnología tradicional HID e ideal para la iluminación de áreas industriales, de estacionamiento, fachadas de edificios, vallas publicitarias… Disponible en blanco neutro (4.000K) y blanco cálido (3000K). Óptica intensiva, extensiva y asimétrica como estándar. Alto flujo luminoso de hasta 31.360 lm (versión 4000K de 331W), y hasta 109lm / W (versión 4000K de 114W)

Columnas elegantes e innovadoras que resaltan su belleza gracias a la originalidad del acero de rugosidad geométrica. Los acabados propuestos, en imitación al acero corten, añaden a su vez estilo y personalidad a esta gama de productos, patentada por la firma.

Junto con las columnas de diseño también están, su línea de columnas convencionales, fabricadas con materias primas de primera calidad, maquinaria de última tecnología y mano de obra altamente cualificada. La capacidad de HGH para adaptar estos productos a las exigencias de los mercados internacionales en que opera, así como su característico acabado en un galvanizado uniforme y brillante, despertó el interés de los visitantes.

Diseño robusto con IK08 y excelente resistencia térmica -45° C - + 45° C. Clase energética A ++ con una alta vida útil de 50.000 horas.

Proyector compacto para una gran facilidad de instalación y cable integrado en el producto por lo que no hay necesidad de abrir la caja ni recableado durante la instalación. Además viene completo con driver de última generación y un soporte orientable para el montaje.

63 DC 98 8
ETI DoLED
9
10
HERMINIO GONZALEZ E HIJOS (HGH) Nueva línea de columnas de diseño

HESS

Luminaria ARINI

Arini aúna luz y multifuncionalidad con un diseño excepcional. Con la fluidez de sus curvas, actúa como una visión armónica de conjunto que se asemeja a un papagayo sentado en un árbol estilizado. ARINI abre nuevas posibilidades de diseño y aplicación para estructuras urbanas y resulta tan variada, inteligente y colorida.

IGNIALIGHT

Módulo Retrofit

El nuevo módulo Retrofit simplifica la actualización del alumbrado público facilitando la adaptación a tecnología LED de las luminarias viales de descarga. Fabricado en inyección de aluminio, con un grado de protección IP66/ IK10 y de sencilla adaptación a las luminarias existencias permite beneficiarse del ahorro, eficiencia y sostenibilidad de la tecnología LED con una mínima inversión.

El Retrofit se fabrica con LED de última generación, vidrio plano, diferentes potencias (24, 30, 40W) y temperaturas de color y con dispositivos de control opcional.

IGUZZINI Luminaria QUID

Creada por Enzo Eusebi, Quid es una luminaria de diseño minimalista y líneas cuadradas. Nace como luminaria viaria led destinada a la iluminación de carreteras urbanas e interurbanas, para dar respuesta a las exigencias actuales y futuras, desde el simple encendido on-off a la gestión Dali que representa la clave de acceso a potenciales integraciones con “smart-city”.

Con diferentes ambientes y efectos de iluminación, ARINI transforma durante la noche los espacios y plazas urbanos. Los proyectistas y los arquitectos pueden, adaptar la iluminación a las características específicas de los proyectos y resaltar los puntos más destacados mediante el uso de GOBOs.

Con su multifuncionalidad, ARINI logra una armonía moderna y asegura que los espacios públicos se conviertan en áreas atractivas con un elevado factor de comodidad. Con la integración de altavoces, cámaras, GOBOs y Wi-Fi, ARINI aumenta la calidad de vida y de la estancia y garantiza un alto nivel de seguridad, comunicación y conexión a las redes. Además de su forma orgánica la convierten en una verdadera obra de arte. La parte trasera de la luminaria se puede equipar con una luz RGBW.

La gestión del consumo, la máxima eficiencia y un mínimo mantenimiento son las características principales que convierten el módulo Retrofit en un nuevo aliado para transformar las ciudades y pueblos en un alumbrado con la tecnología más eficiente y sostenible.

Incorpora ópticas de última generación Opti smart lenses, viarias y confort, de alto rendimiento visual, para dar respuesta de manera puntual a los distintos tipos de vías de tránsito: aparcamiento, carriles bicis, vías con tráfico de vehículos urbanas e interurbanas y calles con tráfico intenso. La luz es homogénea, el rendimiento cromático elevado y la dispensión del flujo luminoso hacia arriba nula. Disponible en un único tamaño, se puede instalar en extremo de poste o en brazo simple o doble. También se puede instalar, aplicando los mismos criterios, en postes cónicos y perfilados de líneas curvas y fluidas. IP66, clase de aislamiento II. Ópticas disponibles ST1, ST1.2 y A45

64 DC 98
12
13
11

Más que una baliza de exterior, Seti es un sistema de iluminación que se desarrolla verticalmente con el objetivo de cubrir diversos formatos y distintas formas de iluminar. Este sistema está conceptualizado como un perfil de extrusión al cual podemos insertar distintas fuentes de luz, focal, ambiental, o de pura señalización, generando infinidad de posibilidades. Se beneficia de todo el Know-how existente sobre estructuras, y se aplica a la tipología de las balizas. Con tres tipologías de luz, permite señalizar de distintas formas: mediante una iluminación difusa y de alto confort, con una luz indirecta que señaliza el camino o bien mediante un pequeño piloto de color que nos guía. El concepto mecánico es causante del gran abanico de posibilidades que ofrece. Trata de módulos lumínicos independientes en los cuales los elementos eléctricos ya están protegidos contra las inclemencias , y se pueden instalar tanto en la parte frontal, como en la trasera, y en algunos casos en ambas.

LEC

Almenara LECology

Permite a regular la temperatura del color, la intensidad y el espectro visible en función de la hora del día, pudiendo pasar de 6000 a 1700 K sin apenas luz azul (menos de 500 nanómetros) no afectando a los ritmos circadianos de la mayoría de fauna nocturna y cumpliendo con las especificaciones de las normas establecidas por el Instituto de Astrofísica de Canarias (IAC) para la protección del cielo nocturno

LLEDÓ+BEGA

Sistema modular LED para luminarias de balizamiento BEGA LED. Esta innovación ofrece un sistema de iluminación para tener luminarias de la misma tecnología pero con diferentes alturas o diámetro.

Los accesorios auxiliares tales como los proyectores integrados, sensores de movimiento y tomas de corriente pueden ser una opción a elegir. Se consigue así, suprimir la necesidad de instalaciones adicionales y reducir los costes.

Los sistemas modulares de BEGA LED pueden equiparse bajo pedido con las baterías de emergencia para una o tres horas de funcionamiento como de iluminación de emergencia.

Disponible en diferentes temperaturas de color 3000K o 4000K + K4, el LED garantiza un mínimo de vida útil de 50.000 horas y 20 años de garantía de disponibilidad de los módulos LED.

65 DC 98 14
LAMP LIGHTI n G Baliza SETI. Diseño de Estudi Arola.
15
16

OSRAM

Streetlight

En el sector de las smart city Osram Lighting Solutions mostró una nueva generación del sistema de control de la iluminación (SLC RF) que conecta las luminarias de una red inalámbrica a través de la radio, basado en el nuevo concepto de capacidad standard de internet IPv6. Un interfaz para sensores de luz o de RF (radiofrecuencia) y una antena integrada hacen que las luminarias sean también smart-ciudad «.

Estas farolas proporcionan una manera económica de iluminar carreteras, caminos, infraestructuras , aparcamientos y pasos de peatones. La farola LED20 permite una instalación rápida y sencilla. La versión estándar de la farola LED 20, alcanza alrededor de 100.000 horas de servicio (L90/ B10).

PERFORMANCE IN LIGHTING

Theos de SBP Urban Lighting

Conjunto de equipos para el alumbrado público, equipado con fuentes de luz LED, Theos ofrece un alto rendimiento gracias a una óptica particular, desarrollada para reducir al mínimo las pérdidas de flujo luminoso y la disipación de calor. La serie se puede instalar en grandes avenidas y entornos de diseño urbano.

PHILIPS Philips ACTIVESITE

Plataforma de gestión del alumbrado conectado basada en la nube que permite que la iluminación arquitectónica de Philips Color Kinetics sea monitorizada, gestionada y programada desde cualquier parte del mundo incluso desde dispositivos móviles o tabletas. Esta plataforma ya está siendo usada en edificios como la Torre Cepsa de Madrid, el Baño de la Cava de Toledo, El Allianz Arena de Munich o The Bay Bridge en San Francisco.

El sistema también permite el acceso en remoto a todas aquellas personas autorizadas, que pueden programar el contenido y lanzarlo desde cualquier parte del mundo. Los usuarios autorizados pueden operar múltiples instalaciones de iluminación desde un único panel de control, donde pueden configurar alertas de correo electrónico de notificación de anomalías en el sistema o realizar análisis de datos para el rendimiento histórico del sistema. ActiveSite también permite a los usuarios programar espectáculos de antemano para fiestas y eventos especiales e incluso pueden reaccionar en tiempo real a los eventos locales y mundiales.

66 DC 98
17
18
19

PRILUX Luminaria VERIA

Luminaria de alumbrado vial donde se unen, diseño, tecnología y eficiencia. Ofrece una solución para cualquier calle y carretera, con un diseño innovador y perfectamente refrigerado. Alto rendimiento lumínico y larga vida útil. Su óptica asimétrica vial permite optimizar la distribución de luz para dar solución a todo tipo de carreteras y viales.

RZB

Luminarias GONIA & LARUTA

SANTA & COLE Proyector ARNE

Disponible desde 18 watios hasta 75 watios. Diseñada para aprovechar zonas con sistemas de regulación ya existentes haciendo que la instalación no necesite de cableados añadidos.

Las gamas Gonia y Laruta arrojan una nueva luz en las calles, senderos, parques y aparcamientos. El diseño de la Gonia recuerda a lámparas de gas y su diseño lineal clásico asegura que se ajusta a ambientes rurales. Laruta, por otra parte, es ideal para el uso en arquitectura moderna, debido a su diseño recto. Gracias a su elevado grado de protección, IP65, ambas ofrecen una protección duradera contra la suciedad sin necesidad de mantenimiento. Cuando la vida útil de los Led ha llegado a su fin, el mantenimiento es sencillo gracias a los conectores rápidos de las placas de Led estandarizadas. Ambas gamas se benefician de una plataforma tecnológica compartida, fabricación, instalación y logística sencilla. El concepto Plug Play con cable de conexión premontado consigue unos volúmenes de transporte mínimos. Para permitir la rotación de los brazos, por aspectos arquitectónicos, las placas de Led pueden girarse 90 grados de forma sencilla.

Busca la utilidad y la fácil integración en cualquier espacio urbano gracias a su simplicidad formal y tamaño reducido. Incorpora un módulo de tecnología LED que admite diferentes composiciones, número de LEDs, potencias, temperatura de color y ópticas.

Las luminarias, para instalación en punta de poste, son de uso universal. Existen tres distribuciones de luz diferentes: clase S, clase ME o flood lighting. La elección de la temperatura de color y de la distribución del haz de luz convierte a estas luminarias en una opción para la iluminación de caminos privados así como para alumbrado público de calles céntricas.

Sus distintos soportes de sujeción permiten una sencilla fijación a distintos soportes urbanos existentes. Se presenta con cuatro configuraciones distintas, fijación a columna, a muro, suspensión de techo y de catenaria. (Es compatible con las farolas Latina, Sara, Rama y Candela). El proyector está fabricado en aluminio reciclado acabado pintado. Disipador interior de extrusión de aluminio anodizado. Difusor de vidrio templado. Todos los soportes de fijación del proyector son de acero inoxidable acabado pintado y el cableado para la suspensión de acero inoxidable.

En cuanto a la luminaria, conjunto de lentes ópticas viarias o extensivas. Equipo electrónico regulable y posibilidad de alimentar la lámpara de 350mA a 500mA.

67 DC 98 20
21
22

SCHRÈDER

Columna SHUFFLE

La solución definitiva para apoyar a administradores de espacios públicos y privados que buscan involucrar a la gente con su entorno. Puede integrar sistemas de control, altavoces, cámaras de seguridad, wifi, cargador de vehículos eléctricos, señalética. Puede integrar hasta 5 módulos en cada columna para satisfacer las necesidades de cada ambiente, asegurando mejores servicios e infraestructura para los ciudadanos. Gracias a un diseño inteligente, la Shuffle es una solución asequible, eficiente en términos energéticos y que requiere muy poco mantenimiento. Utiliza un solo suministro de energía para implementar eficazmente diversos servicios. Al proporcionar múltiples requisitos en una sola columna, se minimiza el material necesario en espacios y reduce la huella de carbono de la instalación. Con fácil fijación, módulos rotables y conexiones de plug-in.

SECOM ILUMINACIÓN

Luminarias ESDIUM LED

Compuesto por 4 grupos, Esdium Sport, Esdium Pro, Esdium Industrial y Esdium Tunnel. Esdium LED, es una luminaria que ofrece un rendimiento perfecto para cualquier tipo de instalación, ya que su diseño y desarrollo ha sido concebido para la iluminación de grandes espacios que se requieran grandes paquetes lumínicos, a la vez que bajas pérdidas de luminosidad gracias a sus diferentes lentes  y potencias, llegando hasta los 900w. Esas cualidades les permiten satisfacer un amplio abanico de necesidades de iluminación, como: campos de fútbol, centros deportivos, grandes proyecciones, túneles, naves industriales, etc.

SETGA

Sistema PRUDENZA

La innovación de Esdium Sport LED le permite ser orientada de una manera precisa, con marcador de ángulo y módulos orientables individuales, compuestos cada uno de ellos por 18 LEDs, con una potencia de 150w, fabricado en aluminio inyectado de alto rendimiento y cierre de metacrilato (PMMA).

Sistema de refuerzo para pasos de peatones, que integra un sistema de balizamiento intermitente, dirigido a los conductores, y una luminaria interactiva con alta incidencia fotométrica en el plano vertical del peatón. Al detectar la presencia de peatones en el entorno, la serie Prudenza intensifica la luminancia en el plano vertical, facilitando el reconocimiento anticipado por parte del tráfico rodado. Su fotometría adaptada garantiza a los conductores un nivel de confort visual pleno sin sufrir ningún tipo de deslumbramiento. El sistema de balizamiento intermitente dirigido a los vehículos refuerza el aviso, incrementando el estado de atención y focalización visual en el paso de peatones. A su vez, esta serie destaca por su capacidad de conectividad con otras series de refuerzo semafórico complementarias. El sistema Prudenza está compuesto por un fuste de acero inoxidable cilíndrico fabricado íntegramente en acero inoxidable 314 o 316, cuya altura y diámetro estándares se sitúan en los 3.58 metros y 129 milímetros respectivamente. Dicho elemento integra un sistema de balizamiento con ópticas LED ámbar, y actúa como soporte de un detector de presencia y una luminaria LED registrable de acero inoxidable con un módulo óptico inmerso en una atmosfera de gas Argón IP68.

68 DC 98
23
24
25

SILBERSONNE VIALES LED

La luz vial LED es la solución perfecta para mejorar la calidad de vida y las infraestructuras urbanas de una forma eficiente y ahorrando costes. Realzan las calles de la ciudad al mismo tiempo que proveen de seguridad a los ciudadanos y disminuyen los costes de mantenimiento. Disponibles en diversas potencias, desde los 30W hasta los 190W y con una eficiencia por encima de los 100lm/W, su carcasa con función refrigerante aumenta notablemente el rendimiento de las luminarias, llegando a alcanzar las 50.000 horas de vida útil.

THORN

Luminaria URBAN DECO

Luminaria LED urbana decorativa con una forma única para proporcionar alta calidad de la iluminación para crear un ambiente cálido en el paisaje urbano. Luminaria muy versátil, que permite cubrir proyectos completos, con un máximo de coherencia en el diseño, ya que se puede montar sobre poste alto, suspendido, pared y catenaria dependiendo de los requisitos paisaje urbano. Además, está disponible con una colección de columnas y soportes específicos. La linterna está disponible con un difusor prismático con óptica simétrica o asimétrica. Ofrece más de 20 distribuciones de luz diferentes para crear la luz adecuada para cada aplicación. Urba Deco está disponible con una salida de luz de hasta 8.000 lúmenes de luminarias, mientras que una alta eficacia (> 100 Llm / W) asegura un bajo consumo de energía.

IP66 IK10

Gracias a su concepto modular y versátil, la ViaCon LED ofrece un máximo de libertad creativa y de seguridad futura. Con más de 20 curvas de distribución de las intensidades luminosas diferentes y numerosas posibilidades de montaje, la luminaria energéticamente eficiente puede adaptarse a medida a cualquier situación de iluminación pensable.

El concepto modular del bloque eléctrico es único: La ViaConLED está disponible con tres variantes diferentes de bloque eléctrico, desde la versión básica hasa una versión Smart Lighting Ready, apta para realizar casi cualquier aplicación de gestión de la iluminación y Smart City pensables. Gracias a la estructura modular, el bloque eléctrico también puede reequiparse y sustituirse posteriormente de forma sencilla y económica utilizando plug and play.

69 DC 98 28
TRILUX ViaCon LED
26
27

Premios V Concurso de Áreas de Juego Infantiles

El pasado 8 de marzo de marzo y durante la celebración de Expoalcaldia se hizo entrega de los premios de la V edición Concurso de Áreas de Juegos Infantiles, convocado por el certamen y que tienen como objetivo reconocer y distinguir a aquellos Municipios, Entidades Territoriales o actuaciones

privadas que hayan ejecutado proyectos de áreas de juego infantiles nuevas o rehabilitadas, teniendo en cuenta la armonía con el entorno, valor lúdico, la accesibilidad y diseño universal, integración generacional, seguridad, originalidad e innovación en el diseño y gestión sostenible.

AColumpio de oro: AyuntAmiento de AntequerA,  málAgA

Parque Infantil: “La Negrita”, un área de juegos cuyas premisas de basan en un diseño singular tematizado y exclusivo, partiendo del concepto íntegramente ligado a Antequera del olivar y las olivas. El área de juegos parte inicialmente de la idea que Antequera goce de una zona de juegos para niños cuyas premisas se establecieron dada

la ubicación, ya que forma parte del “Paseo Real de Anquera”, un ámbito urbano de disfrute y expansión para los ciudadanos.

Dentro del proyecto integral del Paseo Real se incluyó el parque infantil “La Negrita”, que debe su nombre a una estatua situada en la zona anexa al parque. Una figura femenina de aspecto idealizado, ataviada a la manera clásica con túnica de vaporosos pliegues y un complejo peinado recogido.

71 DC 98
71 ÁREAS DE JUEGO
CAtegor ÍA A: Municipios o Entidades Territoriales con una población de 1 a 50.000 habitantes.

El parque se sitúa en un espacio que actúa de articulación entre el Paseo Real y los jardines que dan acceso a la zona de la ciudad más contemporánea y se tuvo en cuenta a los más pequeños, así se enfatiza un uso social del Paseo ya que se hace más atractivo y los niños se involucran más en el uso del mismo.

La zona infantil se ha concebido como un parque singular y exclusivo, su concepto está íntimamente ligado a Antequera, y esto se ha conseguido gracias al diseño de los elementos más destacables del parque que simulan un fruto tan arraigado en la cultura de Antequera como son las olivas, se ha jugado con sus colores, formas y tamaños, incluso se ha previsto una zona en la que se

han instalado en el suelo simulando una zona de “recolecta de olivas”, dada la ubicación de estas últimas, se ha conseguido una homegenización visual y estética del parque, ya que el elemento de mayor altura que también tiene como base en su diseño las olivas, no es un elemento desconexo del resto del parque, sino que todo el espacio de juego participa del mismo lenguaje, de tal manera que se entienda como un todo.

Según se pasea por el parque, la complejidad de uso de los elementos de juego es gradual según se recorre de manera longitudinal, en la zona Este existen áreas donde podemos encontrar columpios, toboganes de poca altura, zonas para reptar, muelles, plataformas,

etc, .. a medida que nos alejamos de la zona nos encontramos con elementos de juego de mayor dificultad, como la tirolina, un tobogán-tubo de gran altura, un elemento para trepar, cama elástica, etc… y avanzando en este sentido, nos encontramos con un elemento trepa de cierta dificultad y para finalizar el recorrido se presenta el elemento más singular y destacado por su gran altura y las distintas posibilidades lúdicas que ofrece, desde este elemento parten varios toboganes de gran longitud y de recorridos muy sinuoso.

El delegado de Mantenimiento, Obras, Inversiones Productivas y Personal, José Ramón Carmona Sánchez, recogió el premio en nombre del Ayuntamiento.

72 DC 98
Columpio de Oro: Ayuntamiento de Antequera, Málaga

Columpio de plAtA: AyuntAmiento de meCo, mAdrid

Parque Infantil “Senda de la Plata”, un área que pretende conseguir un espacio de juegos singular, llamativo, original e innovador donde los usuarios están protegidos contra el sol y la lluvia y disfrutar jugando todo el año.

El planteamiento de esta plaza se hace aprovechando su enclave, situación, nombre y orografía por lo que se aprovechan los dos niveles diferentes para crear en cada uno de ellos un especio destinado a edades diferente de uso.

Se encuentran columpios, toboganes de poca altura, zonas para reptar, muelles, plataformas, etc. A medida que nos alejamos de esta zona nos encontramos con

elementos de juego de mayor dificultad, como es la tirolina, un tobogán-tubo de gran altura, un elemento para trepar; cama elástica, etc…. Avanzando en este sentido, existen elementos de trepa de cierta dificultad, el elemento más singular y destacado por su gran altura y las distintas posibilidades lúdicas que ofrece, desde este elemento parten varios toboganes de gran longitud y de recorrido muy sinuoso.

En cuanto al diseño, se ha tenido en cuenta que las zonas tengan acceso a usuarios con discapacidades tanto motriz como cualquier otra y se han dispuesto elementos en todas ellas que permitan el juego a cualquier usuario (columpio cesta, túnel, etc). Se considera más importante que los juegos normales tengan partes o componentes dentro de ellos accesibles que la creación de un elemento específico para usuarios con problemas de

motricidad, mejorando así la integración de este colectivo con el resto de usuarios.

Todos los elementos guardan relación entre sí, tanto a nivel espacial, visual, lúdico, etc. Juegos en altura llamativos y atractivos. Tirolinas de 20 metros, elementos lúdicos que dan la posibilidad de realizar itinerarios o circuitos divertidos.

El área cuenta con un vallado perimetral y cartel indicador de las actividades y las normas recomendables para su buen y uso y mantenimiento. Pavimento de seguridad de caucho continuo de acabado poroso, resistente a la intemperie y antideslizante. También cuenta con una fuente de agua potable y papeleras.

El alcalde del municipio, Pedro Sanz Carlavilla, fue el encargado de recoger el premio

73 DC 98
Columpio de Plata: Ayuntamiento de Meco, Madrid.

Columpio de BronCe: AyuntAmiento de BurlAdA, nAvArrA

Área de juegos infantiles instalada en Plaza Francisco Zubiate “Parrita”. Área de parques metálicos para niños entre 3 y 12 años. Línea BITS. Un parque que busca la armonía con la arquitectura de la ciudad contemporánea sin perder la función principal de un parque: jugar. Con postes de acero plastificados en gris, plataformas triangulares y paneles de colores llamativos pero no sobrecargados.

El área infantil se compone de elementos que fomentan la libre interpretación del

juego en función a una accesibilidad que no está delimitada por caminos y cerramientos prestablecidos. La libertad de juego y la amplia posibilidad de juegos dentro del parque, es el aspecto característico de esta área. Por eso, las estructuras disponen de múltiples agarres (barras, cuerdas, escalones, rampas..) que permiten acceder desde múltiples puntos diferentes.

Mediante unas formas y líneas inspiradas en los circuitos electrónicos, se obtiene un

producto diferente, innovador e integrado en la actualidad. A su vez, se consigue crear un espacio de juego amplio, sin reglas ni restricciones, poniendo el juego al servicio de la creatividad. Permitiendo al niño demostrar sus habilidades y destrezas. Inventando un mundo de nuevos desafíos que superar.

El concejal de Obras, Servicios e Inversiones del Ayuntamiento de Burlada, Fermín Tarragona Castro, fue el encargado de recoger el premio.

74 DC 98
Columpio de Bronce: Ayuntamiento de Burlada, Navarra.

CAtegori A B: Municipios o Entidades territoriales con una población de 50.0001 a 250.000 habitantes.

BColumpio de oro  Al AyuntAmiento de AlmerÍA, AndAluCÍA

“Parque de las  Familias”- Zona de Reciclaje, un área que representa el proceso completo del reciclaje convertido en juego según edades y adaptado a las distintas capacidades físicas y sensoriales. Juegos de integración… sin que se note.

En esta área de juegos se ha representado el proceso completo del reciclaje: desde la separación de basuras que realizan los ciudadanos, hasta la transformación de los residuos en la planta de reciclaje.

El área de juegos dispone de distintas zonas destinadas a distintas franjas de edad, así como adaptadas a distintas capacidades tanto físicas como sensoriales. Se proponen juegos para todos, universales, con la finalidad de que todos puedan disfrutar y aprender juntos. Son juegos de integración…. Sin que se note.

En la zona de niños pequeños se han dispuesto dos juegos combinados con torres en forma de 3 contenedores selectivos, a los que se puede subir y bajar mediante escaleras, elementos de trepa, toboganes y tubos de bomberos.

Alrededor de estos juegos se han dispuesto diversos balancines de muelles con paneles en forma de residuos cotidianos: una manzana, una pila, una botella de plástico y una lata de refresco.

En el área de juegos se ha dispuesto un juego combinado en forma de camión de recogida de residuos destinado a niños medianos. Éste consta de una plataforma elevada equipada con múltiples paneles lúdicos a la que,

además de subir y bajar mediante elementos de trepa y tobogán, se puede acceder mediante una rampa adaptada. Tanto por su amplio espacio interior como por sus accesos, este juego resulta adaptado para niños con movilidad reducida, fomentando que todos jueguen juntos independientemente de sus capacidades.

Para completar la actividad lúdica e insistir en la importancia de la recogida selectiva, se ha dispuesto un carrusel y un columpio cesta con los símbolos del reciclaje.

En la zona destinada a niños mayores se ha dispuesto un juego de arena equipado con cintas transportadoras que evoca el proceso de separación de las plantas de clasificación. Para completar el proceso de reciclaje, se ha dispuesto un gran juego combinado con un tobogán de 3 metros de altura en forma de planta de valoración, done realmente los residuos se someten al proceso de reciclaje para extraer materias primas o transformarlos en nuevos productos transformados.

Para completar la actividad lúdica, se ha dispuesto una gran cama elástica hinchable con los colores de los contenedores de recogida selectiva de residuos: azul, amarillo y verde.

También se han instalado carteles lúdicopedagógicos que informan sobre el reciclaje y su importancia en el ahorro y la preservación del medioambiente. También se han dispuesto papeleras y tres depósitos para la selección de residuos, así como bancos.

El segundo teniente de alcalde y concejal del área de Presidencia del Ayuntamiento de Almería, Manuel Guzmán de la Rosa, fue el encargado de recoger el premio.

75 DC 98
Columpio de Oro al Ayuntamiento de Almería, Andalucía,

Columpio de plAtA, AyuntAmiento  de AlCoBendAs, mAdrid

“Paseo de Fuentelucha”- Área del Océano. Basado en el fondo marino, y donde se potencia el juego en elementos aéreos que dan sensación de estar ingrávidos suspendidos en el agua.

En un rectángulo de 499 metros cuadrados y en el bulevar del Paseo de Fuenteluchas, en Alcobendas, se ha creado un área de juegos infantiles, con una temática singular que además, proporciona sombra y resulta adecuada para el juego de niños con discapacidad.

El área creada es un entorno de fondo marino, donde una estructura en forma de carpa de 35,7 metros de largo por 14 metros de ancho, compuesta por 22 arcos de tres tamaños diferentes, colocados de manera

simétrica, consiguen dar el efecto de movimiento sinuoso tanto lateralmente como en su parte superior, imitando así el movimiento de una ola marina.

La estructura, sirve de soporte tanto para el material que genera la sombra como a los elementos de juego que cuelgan de élla. De esta manera la plaza se convierte en un fondo marino, donde se explota la posibilidad de colgar múltiples elementos de juego de la estructura aérea, dando la sensación de que los peces, mantas, medusas… se suspenden ingrávidamente en el agua.

Para dar fuerza a la idea de fondo marino se han diseñado una serie de juegos habituales en el mar, como una ballena azul de tamaño real que alberga en su interior juegos de hamacas ( peces ) ; una estación submarina de base pentagonal, con dos toboganes de

tubo de acero; un submarino formado también por arcos donde se han reproducido la cabina superior y el visor típicos de estas naves; una pequeña montaña que simula un banco de anémonas, arrecifes de colores con peces que sirven para trepar y esconderse entre ellos; medusas compuestas por tres neumáticos de caucho colgados por cuatro puntos a la parte superior a la estructura y al suelo para evitar el movimiento; y una familia de 3 mantas de distintos tamaños de caucho.

Las mantas y las medusas tienen un grado de libertad limitado y una forma envolvente convirtiéndose en lugares idóneos para el suave balanceo de niños con discapacidades.

La concejal de Participación Ciudadana y Distrito Norte del Ayuntamiento, Paloma Cano, fue la encargada de recoger el premio

76 DC 98
Columpio de Plata: Ayuntamiento de Alcobendas, Madrid

Columpio de BronCe  AyuntAmiento de lAs rozAs, en mAdrid

Área de juegos “Mini Aeropuerto” instalado en el Parque París, y en el que tomando como antecedente un templete existente con anterioridad en el parque, se ha querido dar la sensación de estar inmerso en un aeropuerto que incluye pasarela desde la terminal hasta un avión y promoviendo el juego para todos.

Toda la temática del área infantil así como el gran juego singular están tematizados con motivos aeronáuticos, donde predominan los colores blanco y azul. Diseñada con un gran juego singular con forma de avión fabricado a escala real aparcado en la terminal esperando a ser embarcado por los pasajeros gracias a la pasarela o “finger” que lo conecta con “terminal” central (antiguo templete) y distintos elementos tematizados

que completan la temática del aeropuerto. Al otro lado del templete se ubican dos grandes camas elásticas hinchables a modo de nubes.

En el área infantil se han incluido elementos como redes de trepa, columpios cuna y nido accesibles, columpios normales, rampas adaptadas y accesibles, toboganes de varios niveles de dificultad y condición física, laberintos, puentes, rocódromos de varios niveles de dificultad escaleras de varios niveles, juegos sensoriales para el desarrollo de tres sentidos ( oído, vista y tacto), juego de equilibrio, juegos para el desarrollo de la capacidad intelectual del usuario, tirolkina, toboganes desafío, balancín de muelles sentado quíntuple, balancines de muelles sencillos y de pie, escaleras desafío, redes carrusel tridimensionales, camas hinchables de gran tamaño. n

77 DC 98
Columpio de Bronce  Ayuntamiento de Las Rozas, en Madrid,

ferias

El 6º salón de Expoalcaldía y la 15ª edición de Tecnodeporte 2016 cerraron sus puertas como referentes del municipalismo, el desarrollo sostenible, el ocio y el deporte con la participación de 78 firmas expositoras procedentes de Alemania, Canadá, España, Finlandia, Francia, Polonia, Portugal, Reino Unido y Suiza. Además la muestra se complementó con un programa de actividades en el que participaron profesionales tanto nacionales como internacionales.

Empresas destacadas de ambos sectores participaron en esta convocatoria donde se han dado a conocer algunos de los equipamientos y servicios que dan respuesta a las necesidades de una sociedad que evoluciona y precisa soluciones por parte de quienes planifican y proyectan las ciudades.

La celebración de Expoalcaldía y Tecnodeporte coincidió con el 22 Salón Internacional del Agua y del Riego (SMAGUA). De esta forma, los tres salones

compartieron escenario aprovechando las sinergias existentes y el perfil del público profesional al que se dirigen. Los tres salones han recibido más de 32.800 visitas y las firmas expositoras coincidieron en destacar la calidad y profesionalidad de los visitantes y encuentros celebrados.

78 DC 98 78 ALUMBRADO PÚBLICO
Expoalcaldia y Tecnodeporte en Zaragoza, referentes del municipalismo, desarrollo sostenible, ocio y deporte

La cubrición de las áreas de zonas de juegos infantiles, con el fin de proteger las mismas de las inclemencias meteorológicas, sol, lluvia, viento, etc. mediante la utilización de cubiertas téxtiles, tensoestructuras, se está manifestando como la solución que proporciona una mejor rentabilidad social, estética, funcional y económica.

Los parques PLAYMOBIL recrean los escenarios más representativos de la marca, como el castillo medieval o el barco pirata, creando espacios donde padres e hijos podrán compartir la experiencia. Playmobil pretende ir más allá de su juguete tradicional para crear una estrategia global transmedia que incluye la creación de contenido audiovisual (serie de animación “Súper 4”) y productos licenciados.

Los componentes que conforman una cubierta textil no precisan de mantenimiento posterior dado que ni el acero galvanizado, ni la lona de la cubierta, así como el resto de componentes precisan de ningún mantenimiento salvo, en su caso, de la limpieza. Este tipo de cubrición, ofrece soluciones a medida tanto para parques de nueva creación como de parques existentes.

Playmobil ofrece la oportunidad de trasladar la magia de sus productos a los parques públicos y privados para que padres y niños jueguen y compartan la misma afición, creando un valor añadido frente a los tradicionales parques infantiles.

79 DC 98 1
ARQUITECTURA TEXTIL Cubiertas textiles
2
DR. PLAY Parques infantiles de Playmobil

3EURONIX

Pistas de Pádel Europad

F abricantes de estructura metálicas destinadas al deporte del Pádel y otros deportes. Este modelo es el llamado EUROPAD al que se puede incorporar una sub estructura para que sea portátil o lo que es lo mismo se sustente por si sola sin necesidad de anclarla al pavimento.

Su principal característica es su perfilería, con todos los postes en sección 120.60.3 milímetros. Reforzando la zona de vidrios con otros perfiles de la misma sección a 1,05 del suelo.

Otra característica basada en la estética, es la eliminación de perfil en la esquina y marcos de sustentación de vidrios, consiguiendo convertir el modelo en semi panorámico. De esta manera el espectador consigue mayor visibilidad durante el juego. Los vidrios van volados (no apoyados en perfiles) y sujetos con tacos de neopreno de 8 milímetros compactos. Consiguiendo una flexión mayor en el rebote de la pelota con el vidrio y relentizando el juego.

4

GOOD WORK

Iluminación LED y familia de mobiliario urbano

Presentó todas las novedades de iluminación LED para vía pública y espacios deportivos. Estos productos de última generación están basados en un uso inteligente de la energía, soluciones con 130-160 lm/W. logrando mejores rendimientos. De esta manera, conseguimos mayores ahorros de energía en los proyectos de eficiencia energética, rentabilizando el producto en menos tiempo.

Otra de las novedades fue la nueva línea de mobiliario urbano y fuentes modulares, fabricados de piedra artificial (microagregados de mármol y súper-cemento 52.5 R), para la decoración de interiores, jardines y vías públicas.

5

HAGS

Asiento Tango

El nuevo asiento HAGS de dos plazas Tango para columpio, promueve la interacción y la comunicación durante el juego entre las diferentes generaciones: permite columpiarse a un adulto o niño mayor frente al pequeño, mejorando la interacción de forma positiva mientras se divierten. Tango consta de un asiento cuna apto para niños de 1 a 5 años y un asiento plano para acompañante.

Se ha creado un asiento confortable y seguro para niños con diferentes capacidades, sin comprometer los valores del juego. La parte del asiento cuna está provisto de soportes laterales y traseros, para asegurar la posición, y la parte frontal del asiento dispone de asideros para garantizar al niño una mayor confianza durante el juego. Garantiza seguridad y un óptimo confort para todos los usuarios. Tango es un sistema patentado, que además de cumplir con las normas de seguridad UNE EN 1176, está diseñado para adaptarse a la mayoría de estructuras de columpio.

Fabricado con materiales resistentes y de larga duración. El asiento de plástico, con cadenas de acero inoxidable, galvanizadas o forradas.

Dimensiones: L: 1,11 m. W: 0,56 m. H: 0,35 m.

80 DC 98

6

INDUSTRIAS AGAPITO

Circuito canino Agility

El Agility es una competición canina abierta a todas las razas y tamaños de perros. Consiste en hacerles superar distintos obstáculos para valorar y potenciar su inteligencia y agilidad. Es una actividad educativa y deportiva que favorece su buena integración dentro de la sociedad. Esta disciplina implica una relación armónica entre el perro y su guía, lo que redundará en la perfecta relación del equipo. El recorrido está compuesto por la mayor variedad posible de obstáculos cuya colocación sobre el terreno determina el grado de dificultad y velocidad.

El Circuito Canino Agility, está diseñado conforme al  reglamento de la Federación Canina Internacional (Fédération Cynologique Internationale). Los distintos elementos son aptos para categorías caninas S, M y L, según el modelo y están diseñados y fabricados

7

MANUFACTURAS DEPOTIVAS Serie Granja

La serie Granja está compuesta por parques infantiles de una torre que se combinan para dar lugar a parques infantiles de dos o tres torres: El Pajar, el Establo y el Granero, el Caserío, la Masía o la Granja. Para niños entre tres y doce años.

8

PROARTE Itinerarios saludables para ciudad

Todos ellos tienen una estructura de hierro galvanizado combinada con polietileno, polietileno antideslizante, acero inoxidable y cuerda de poliéster multifilamentos.

Orientar el espacio hacia un modelo de ciudad saludable que promueva estilos de vida más activos para combatir esta problemática es el objetivo del proyecto “Itinerario Saludable en tu ciudad”. Utilizando el entorno e infraestructuras disponibles señaliza itinerarios saludables combinados con rutas turísticas por los principales recursos patrimoniales de la localidad. El proyecto consiste en señalizar diferentes itinerarios mediante paneles informativos, atriles interpretativos, flechas orientativas y/o balizas de seguimiento. En función de los soportes y necesidades de cada proyecto en concreto, se ofrecerá información clara y concisa, adaptada a todos los públicos, sobre la calidad del ejercicio que se está realizando: distancia recorrida, tiempos reales, gasto calórico y recomendaciones para programar la actividad diaria en función de los objetivos marcados. Complementariamente, se incluirá información sobre los recursos patrimoniales que se encuentran a lo largo del recorrido. Con la creación de estos itinerarios se creará una experiencia completa y satisfactoria que ayudará a cambiar los hábitos de los ciudadanos, buscando garantizar su calidad de vida y bienestar.

para su instalación en parques públicos en la intemperie, con materiales de máxima calidad como el acero galvanizado en caliente o el polietileno de alta densidad. Estos materiales son lavables con agua a presión e incluso productos químicos.  No les afecta la humedad. No hay partes de madera, contrachapados, hpl, que puedan deteriorarse o pudrirse por los residuos caninos.

Los dibujos e instrucciones están grabados en relieve mediante control numérico y permanecen indelebles con el paso del tiempo.

81 DC 98

9

PROINVA

Caminos escolares seguros

Iniciativa de Proinova que engloba toda una serie de actuaciones encaminadas a la mejora de la seguridad vial en zonas de convivencia de tráfico rodado y usuarios vulnerables. Los elementos de seguridad de los que se componen estas actuaciones, son en su mayoría elementos inteligentes con detección de presencia de viandantes, así como detección y medición de velocidad de tráfico rodado. Elementos tales como:

10

RS TECNOLOGÍA RS LightPlus

Gracias a la innovación del departamento de I+D+I y al trabajo constante de los técnicos, RS Tecnología ha creado un nuevo pavimento asfáltico de altas prestaciones. RS LightPlus el pavimento continuo flexible y luminiscente, creado para carriles bici, parques y calles peatonales. Este pavimento captura la luz solar durante el día mediante un agregado sintético luminiscente y por la noche la dispersa, teniendo un aporte de luz extra que puede ser muy útil en situaciones de poco o nulo alumbrado. Este pavimento se puede realizar con el sistema RS AsphaltPlus

VORTEX AQUATIC STRUCTURES INTERNATIONAL Splashap

Un Splashpad® es un parque de agua sin profundidad que brinda horas y horas de diversión para toda la familia. Combina las sensaciones de los diferentes movimientos naturales del agua—que fluye, rocía y se derrama—con más de 250 funcionalidades para crear una aventura acuática sin igual.

Radares de velocidad con diseño exclusivo para entornos escolares; señalización horizontal de alta visibilidad para entornos escolares; señalización emocional para entornos escolares; señalización LED vertical con detector de presencia de peatones e iluminado azul progresivo, alimentada mediante panel solar; señalización vertical de advertencia “zona escolar”, iluminada con focos y alimentada mediante panel solar.

Son muchos los beneficios que un Splashpad® puede aportar a su municipio o ciudad, ya que reúne a personas de todas las edades, creando comunidades participativas en las que el juego libre estimula la imaginación y la creatividad de los niños. Estos parques sin profundidad eliminan los riegos de ahogarse y los costes de personal de vigilancia, además de crear parques accesibles que estimulan el desarrollo físico, funcional y social en niños de todas las capacidades.

Aparte del beneficio social que aporta, puede integrarse en cualquier entorno, paisaje o instalación, desde un área junto al parque infantil tradicional, una plaza pública o en las piscinas municipales. Vortex plantea soluciones sostenibles y ecológicas como los sistemas de para recirculación y reutilización del agua que reducen tanto el consumo de agua como el de energía eléctrica.

82 DC 98
11

Daniel Parra. Realismo dinámico

“Descifrar lo que está delante de nuestros ojos requiere una lucha constante”. Orwell.

La obra pictórica urbana del pintor español Daniel Parra Lozano (1980), alejada del realismo fotográfico y próxima al plein-air, busca insistentemente captar las atmósferas y ambientes propios de cada ciudad con el mayor realismo natural posible haciendo uso de técnicas, pinceladas y recursos

83 DC 98
83 EL ARTISTA Y LA CIUDAD
1. Love Me. Óleo sobre madera. 60x60cm. 2016
84 DC 98
2 3
La obra pictórica urbana Daniel Parra próxima al plein-air, busca captar las atmósferas y ambientes propios de cada ciudad
02. Grimburgwal Street. Óleo sobre madera. 60x60cm. 2015. 03. Doelensluis. Óleo sobre madera. 60x60cm. 2015.

personales que, por un lado, evitan el academicismo con el que se formó en su primera etapa y, por otro, invitan a descubrir un nuevo lenguaje y sistema de representación (fue necesario aprender a construir para poder saber destruir).

Lo que llama la atención al estar frente a uno de sus trabajos es la doble lectura que posee: una cercana y una lejana. La primera nos permite ver, con formas muy abstractas y frescas, la naturalidad y energía propias del

85 DC 98
04. Zinkbuis Riolering. Óleo sobre madera. 34x60cm. 2015.
4 5
05. Victoria Hotel. Óleo sobre madera. 60x60cm. 2015.
86 DC 98
El artista pretende transmitir al espectador una sensación de relajación a través pinceladas y trazos aplicados sin
esfuerzo aparente 6. Noord Cyan. Óleo sobre madera. 34x60cm. 2015. 7. Urbano B&N 05. Carbón sobre madera. 34x60cm. 2015. 8. Urbano B&N 02. Carbón sobre madera. 120x60cm. 2015.
7 8 9 6
9. Urbano B&N 01. Carbón sobre madera. 120x60cm. 2015.

Daniel Parra Lozano. Córdoba, 1980. Licenciado en BBAA por la Universidad de Sevilla (2000-2005)

Galardonado con más de 250 premios nacionales e internacionales en las modalidades de Pintura, Dibujo, Ilustración y Cómic. A destacar:

• 1º Prem io Cert amen Inte rnacional de P intura Rápida de Amsterdam, Paises Bajos.

• 1º Prem io I Cert amen Inte rnacional de P intura Rápida de Jaén.

• 1º Prem io XI Cert amen Pint ura José Mª Martín Cárpena, Málaga.

• 1º Prem io VII Cert amen Naci onal de P intura Rápida Sierra de Cazorla, Jaén.

• 1º Prem io XXI Cert amen de Pint ura Rápida “Ciudad de Ávila”, Ávila.

• 1º Prem io V Cert amen Naci onal de Pint ura Rápida Torrejón de la Calzada, Madrid.

• 1º Prem io XVI Cert amen Inte rnacional de Pintura Rápida de Castellar, Jaén.

• 1º Prem io Cert amen Naci onal de Pint ura Nocturna Museo de Bellas Artes de Murcia.

• 1º Prem io III Cert amen Naci onal de

proceso creativo. El artista no pretende transmitir al espectador un esfuerzo visual, sino una sensación de relajación a través pinceladas y trazos aplicados sin esfuerzo aparente. A medida que nos alejamos de la obra y pasamos a la segunda lectura, la lejana, nos damos cuenta de que se nos presenta una obra de acabado realista y perfectamente conformada.

En sus obras predomina con especial importancia una cuidada composición, unos ritmos visuales (o narrativa) que nos guían por el cuadro, un agradable y armónico colorido y una poderosa fuerza gráfica. n

Pint ura al Aire Libre de Lorca, Murcia.

• 1º Prem io en el VIII Cert amen de Pint ura Rápida de Vitoria.

• 1º Prem io VII Cert amen Naci onal Pint ura Rápida de Godella, Valencia.

• 1º Prem io II Cert amen Naci onal de Pint ura Rápida Ciudad de Berja, Almería.

• 1º Prem io IV Cert amen Naci onal de P intura Rápida de Alcadozo, Albacete.

• 1º Prem io X Cert amen Naci onal de Pint ura al Aire Libre de Cehegín, Murcia.

• 1º Prem io XVI Cert amen Naci onal de P intura al Aire Libre de Torrelavega, Cantabria.

Expone individual y colectivamente en más de 60 ocasiones a nivel nacional e internacional en las disciplinas de pintura, ilustración y escultura, en ciudades como Ámsterdam (Holanda), Breda (Holanda), Madrid,  Frosinone (Italia), Granada, Zamora, Murcia, Badajoz, Córdoba, Oviedo o Lleida. A destacar:

• Feria Inte rnacional de Arte “Rea lisme” 2015 y 2016. Representado por Galería Mokum.

Amsterdam (Holanda)

• Exposición cole ctiva “winterstoonteller 2015”. Galería Mokum. Amsterdam (Holanda)

• Feria Inte rnacional de Arte “Art Bred a” 2015. Representado por Galería Mokum. Breda (Países Bajos).

• Exposición indi vidual Gale ría “Art Point”, Lleida.

• Exposición cole ctiva “Pintar Rápi do”. The Posthoornkerk building. Amsterdam, Países Bajos.

• Exposición cole ctiva en Arco ’08, stan d instituto juventud de Madrid. Jóvenes Creadores, modalidad Cómic.

• Exposición indi vidual “Est ados”. Vill a Comunale di Frosinone, Italia

• “Oviedo urba no”. Sala expo siciones BBVA , Oviedo.

Además de su desarrollo como pintor y dibujante, se establece como Artista/Ilustrador Freelance desde 2006 hasta la fecha de hoy en importantes Agencias de Publicidad Españolas para clientes como BMW, Amstel, Heineken, Cruzcampo, Palau de la Música, Beefeater, Ciudad Artes y Ciencias, Viceroy, Makro…

87 DC 98
Daniel Parra Lozano
10
10. Haymarket-Street. London. 80x60 cm. Acrílico sobre madera. 2014.

Boletín de suscripción Diseño de la Ciudad

La suscripción a la edición impresa comprende el envío por correo postal de 4 números al año.

Annual suscription price includes 4 issues sent by ordinary mail.

España: 50,00 € Spain: 50,00 €

Europa: 75,00 € Europe: 75,00 €

Resto de países: 90,00 €. Other countries: 90,00 €

DATOS PERSONALES PERSONAL DATA

Nombre name

Empresa company

Dirección para envío postal addres ......................................................................................

Ciudad city

Código postal postal code

Pais country

Teléfono phone nº

NIF - CIF passport nº .............................................................................................................

E-mail

FORMAS DE PAGO METYHOD OF PAYMENT

Transferencia bancaria c/c: ES54 1465 0110 6119 0016 5038

Código BIC/SWIFT: INGDESMMXXX (Comge Editorial, S.L. )

Bank transfer: ES54 1465 0110 6119 0016 5038 - BIC/SWIFT Code: INGDESMMXXX

Cheque check ............ (Comge Editorial, S.L. )

COMGE Editorial S.L. Kálamos, 28. P 4 - 1º 1 • 28232 Las Rozas (Madrid) Tel: 91 603 05 05 • info@comge.es www.disenodelaciudad.es
DOMUS DISEÑO: RAMÓN ÚBEDA & OTTO CANALDA FOTOGRAFÍA: RAFAEL VARGAS www.escofet.com

Turn static files into dynamic content formats.

Create a flipbook
Issuu converts static files into: digital portfolios, online yearbooks, online catalogs, digital photo albums and more. Sign up and create your flipbook.