
$585,000
![]()

$585,000
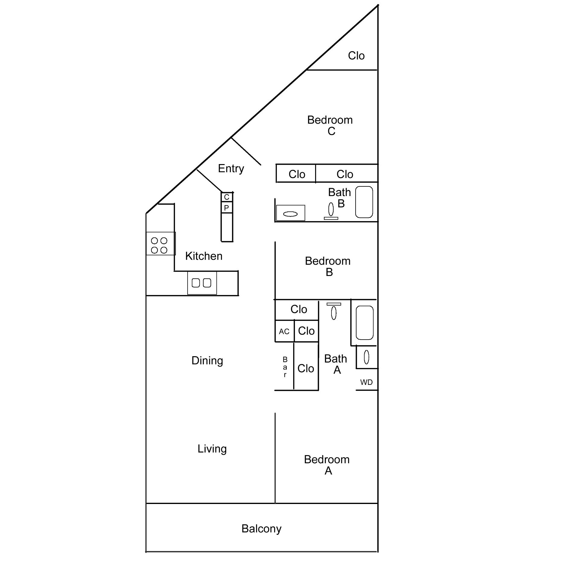
Picture yourself waking up to the sound of the waves in this spacious, open -concept beachfront condo at one of SPI's most popular resorts. The living room & primary bedroom have ocean views, & the balcony lets you soak in the scenery without ever stepping into the sand. The kitchen has stainless steel appliances, perfect for whipping up breakfast before heading to the beach, or for storing leftovers from your favorite local restaurants. All 3 bedrooms have ample closet space, though most days you ’ll only need a few pairs of shorts & your favorite flip flops. A convenient in-unit washer/dryer makes beach living even easier. This condo is selling fully furnished, so you can skip the heavy lifting and jump straight to the fun part. The Saida condominium complex offers gated entry, 3 pools (1 heated), tennis courts, 24 -hour security, a seasonal poolside bar, & elevator. This place has everything you need to live the island life!


sqft



Primary bedroom has ocean view & ensuite bath
2 BATHS
Primary has walk - in shower, guest has dual sinks & tub/shower combo
2 unassigned parking space



Saida IV has 9 stories # of
Saida IV has 81 units
YEARLY INSURANCE FEE (2025) $4,600

• Water/Sewer
• Trash
• Basic Cable
• Wifi
• Pest Control
• Reserve Account HOA FEE INCLUDES:


Property Taxes Without Exemptions: $9,235
Tax Year: 2025
For More Information, visit: https://www.cameroncad.org/Pages/FAQ

• ocean view
• open concept
• selling fully furnished
• dry bar in living/dining area
• stainless steel appliances
• convenient in - unit washer/dryer
• plenty of closet space
• balcony

• 3 pools (1 heated)
• tennis courts
• gated entry
• gated beach access
• 24 - hour security
• poolside bar (in season)
• elevator
Rental Restrictions: no restrictions


Pet Restrictions: no restrictions


o cean view

b alcony spans width of condo

p artial ocean view

open concept

s elling fully furnished


o pen to kitchen




p lenty of storage


additional seating

s tainless steel appliances

l ots of cabinet & counter space


p artial ocean view

e nsuite bath






























p oolside palapa area


n orth view

w est view

s outh view

l ocated directly on the beachfront


g uarded entry

e ntry sign