
21 minute read
Una sfida strutturale Giacomo Tempesta
Una sfida strutturale
Giacomo Tempesta
Premessa Il progetto strutturale, a firma del sottoscritto, relativo al progetto elaborato dopo il concorso dal gruppo di progettazione viene depositato presso il Genio Civile di Firenze il 23/12/2012, con la denominazione di “Nuovo Edificio Polivalente a Prevalente Destinazione Pubblica e Nuovo Ingresso al Plesso Didattico della Facoltà di Architettura – Lotto 1”. L’iter esecutivo del progetto 2012 non ebbe comunque seguito immediato, principalmente a causa di sopraggiunte perplessità, da parte della committenza, circa l’effettiva opportunità di confermare un inter composto da due differenti stralci di progetto. Tra il 2012 e il 2015, superati gli ostacoli burocratici e reimpostato l’iter di presentazione per la richiesta del permesso a costruire, venne redatto un nuovo progetto sia architettonico che strutturale; quest’ultimo, pur mantenendo le caratteristiche generali dei precedenti dal punto di vista del linguaggio architettonico, fu basato su nuovi elementi concettuali sia funzionali che strutturali. Nel nuovo progetto l’edificio si configura ancora “ come ponte funzionale fra i vuoti dei cortili storici e la nuova piazza, assolvendo il ruolo di porta di tutto il lato sud ” di Piazza Annigoni, ma rinuncia alla sua precedente sostanziale unicità dimensionale, con conseguente continuità del prospetto sulla piazza, scomponendosi in tre corpi effettivamente distinti (Corpo A, B, C), ai quali vengono fatte corrispondere strutture la cui concezione e la cui consistenza rispondono non solo a diversi ruoli funzionali, ma soprattutto a differenti assetti strutturali le cui specificità fanno diretto riferimento al rapporto delle strutture stesse con le caratteristiche del terreno di fondazione e con le possibili interazioni con il parcheggio interrato adiacente. Il progetto pur configurandosi come una rielaborazione del progetto del 2012, in alcuni punti sostanziale, viene presentato come variante del precedente. Il 21 giugno 2016 viene depositato nuovo progetto strutturale esecutivo denominato “Nuovo Edificio Polivalente a Prevalente Destinazione Pubblica e Nuovo Ingresso al Plesso Didattico della Facoltà di Architettura. Variante 1 al progetto n. 154325 del 23.12.2012”. Nel nuovo progetto i tre corpi indipendenti A, B e C, si configurano con caratteristiche individuate non solo da esigenze funzionali ben distinte ma soprattutto da consistenze e tipologie strutturali sostanzialmente diverse, frutto di scelte ponderate che si confrontano con la marcata complessità e articolazione del sito.
pagina a fronte Schizzo della struttura del corpo B.
Vista dello schema planimetrico relativo al progetto redatto e presentato nel giugno del 2016, come variante 1 del progetto del 2012. L’edificio viene sostanzialmente scomposto in tre corpi indipendenti.
Schema effettivo del lotto edificabile.
Schema effettivo della disposizione dei 3 blocchi.
Schema “apparente” del lotto edificabile.



Considerazioni generali sul progetto strutturale L’idea strutturale alla base del progetto, in considerazione dei numerosi vincoli presenti nel sito inerenti alle strutture esistenti disposte in adiacenza e delle caratteristiche geometriche dell’area edificabile, tenendo conto della sostanziale distinzione in aree funzionali diversificate all’interno del manufatto, è stata sviluppata seguendo tre aspetti generali: La scomposizione dell’edificio in tre elementi distinti definiti convenzionalmente come Blocco A, Blocco B e Blocco C, ciascuno dei quali caratterizzato da un impianto strutturale specifico; La definizione delle relazioni suolo - struttura attraverso l’organizzazione di un sistema di fondazioni nel quale convivono in contemporanea la tipologia di fondazioni dirette e di fondazioni indirette; la necessità di definire attraverso opportuni giunti sismici il distanziamento perimetrale tra l’organismo strutturale del nuovo edificio e i manufatti esistenti attigui, disposti in corrispondenza delle zone di adiacenza, oltre a quello specifico tra i singoli blocchi. In relazione al primo punto, la scelta di una chiara distinzione e indipendenza tra i tre blocchi è stata dettata dalla necessità di dover tenere conto di tre elementi sostanziali: La conformazione planimetrica assunta dal manufatto è decisamente irregolare e a sua volta derivante dalla geometria anomale del lotto edificabile. Tale circostanza, se affrontata con la scelta di un manufatto unitario, sia strutturalmente che per materiali e organizzazione, avrebbe comportato il disconoscimento a

Schema della disposizione dei 3 blocchi.
priori degli elementari principi di omogeneità della distribuzione delle masse e delle rigidezze richiesti per una migliore risposta sismica dell’edificio, fortemente richiamati dalle norme. La non coincidenza tra area edificabile apparente e area del sito di fondazione. Quest’ultima, infatti, non ne ripropone una geometria corrispondente a causa dello sviluppo perimetrale della paratia del parcheggio interrato il cui andamento mostra una risegatura dovuta alla presenza e disposizione della rampa di accesso (modificata in corso d’opera durante la realizzazione del parcheggio), con conseguente modifica e riduzione della superficie utile effettiva. La destinazione funzionale delle varie parti dell’edificio, nella scelta progettuale e nei desiderata della committenza, si presenta sostanzialmente diseguale. Ad un’area, cui è stato fatto corrispondere il punto principale di ingresso uscita, di volume più ampio e prevalentemente destinata ad uffici con l’eventuale possibilità di accesso al pubblico (seppur con normali affollamenti), se ne affianca un’altra disposta in successione ed alla quale si accede solo dall’interno dell’edificio in corrispondenza del primo e del secondo livello, di minore volume, cui sono destinati uffici con funzione direttiva e per la quale non è previsto l’accesso diretto al pubblico. Vi è poi una terza area di servizio, che ospita un piccolo punto di ristoro, pausa lavoro e relax, destinata anche a spazio per riunioni interne del personale alla quale corrisponde una uscita secondaria. In relazione a quanto sopra descritto in merito alla geometria del sito ed ai suoi fattori condizionanti e, al tempo stesso, seguendo la logica della chiara distinzione funzionale delle varie aree del manufatto, il progetto ha previsto di posizionare il Blocco A in corrispondenza dell’area più ampia del sito edificabile, con un perimetro che ne ripropone la configurazione geometrica, il cui fronte su piazza Annigoni si sviluppa, ad una distanza di 2.5 m, parallelamente alla traccia della paratia del parcheggio interrato. Il Blocco B, sul quale insiste la pensilina di copertura, è stato disposto, con una leggera deviazione del suo asse rispetto al fronte principale della paratia, in prossimità della risega che quest’ultima presenta nell’area centrale del sito. Al fine di mantenere congrue le distanze dalla paratia dalla base di appoggio fondale, il volume del fusto portante e lo sviluppo della sua fondazione si presentano, fino al primo livello di impalcato, con una superficie ridotta rispetto a quella effettiva di quest’ultimo che quindi si dispone in aggetto sui quattro lati. Il Blocco C è stato infine posizionato in corrispondenza dell’area ridotta di suolo, a ridosso della risega del perimetro che la paratia presenta in adiacenza alla curva di accesso al parcheggio.

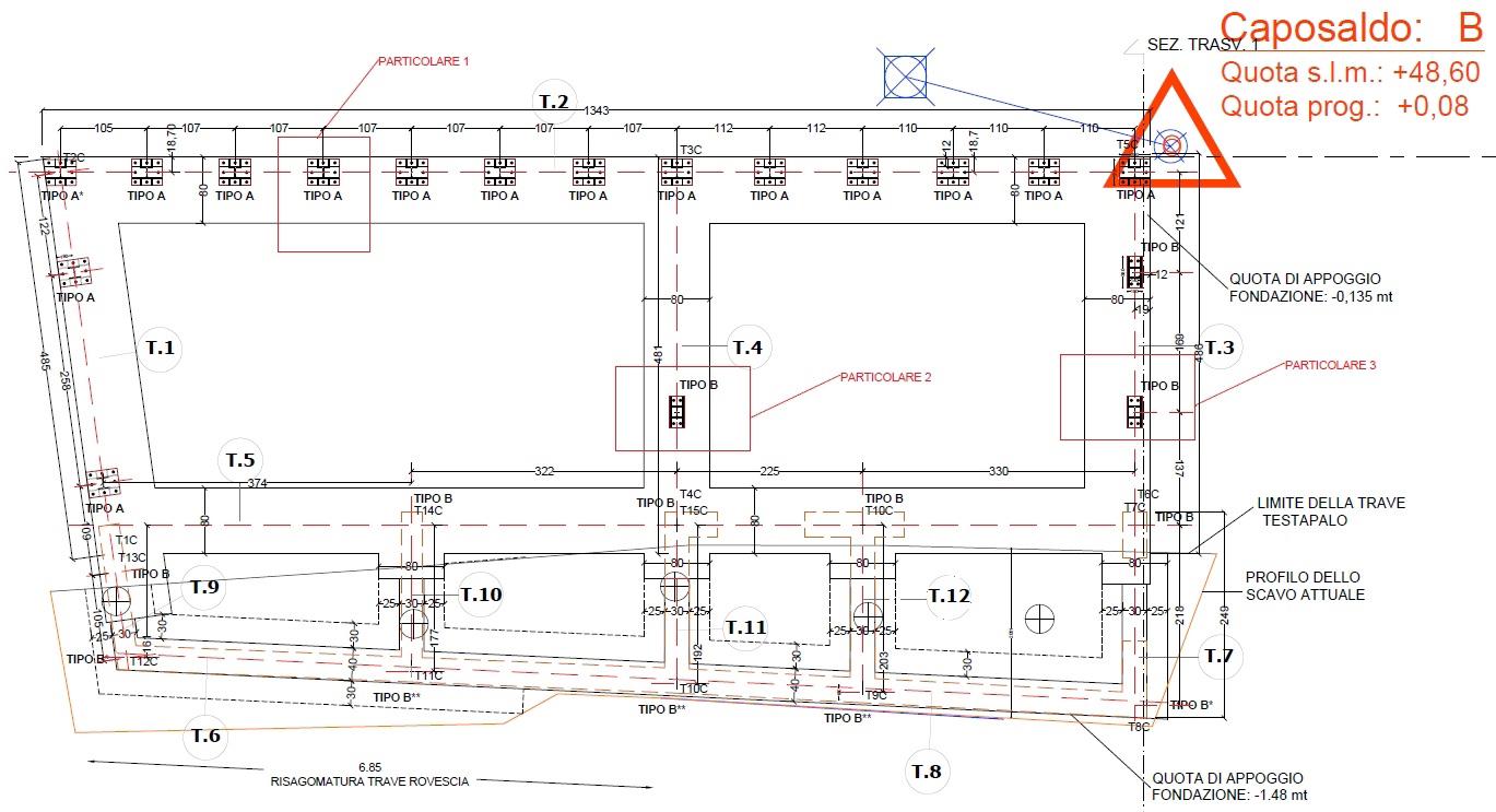
Blocco A Organizzazione del sistema di fondazioni Schema delle strutture del primo impalcato di solaio.

Sezione schematica del sistema di fondazione in rapporto alle strutture del parcheggio interrato. Blocco A L’area su cui insiste il blocco A è quella dove il terreno di fondazione assume caratteristiche più tradizionali e omogenee. A circa 1.80 m dal piano di calpestio, per tutta la sua superficie, quest’ultimo possiede caratteristiche idonee alla realizzazione di una fondazione tradizionale a travi rovesce. I vincoli e le condizioni al contorno delle quali è stato necessario tener conto sono, nell’ordine: l’aderenza con un tratto del vecchio muro del perimetro di santa Verdiana che risulta adiacente alla geometria dell’edificio in corrispondenza della sua parete interna; l’aderenza con il breve tratto di muro appartenente all’edificio del bar; la paratia del parcheggio, lato piazza, il cui testa palo si sviluppa longitudinalmente per tutta la lunghezza del corpo A, discostandosi dal fronte del nuovo edificio ad una distanza di poco più di 2 m. La struttura del Corpo A, al quale corrispondono due piani fuori terra che si sviluppano, a partire dal piano di calpestio e misurati in corrispondenza dei piani di impalcato, per un’altezza di 8.00 m, si caratterizza attraverso strutture verticali realizzate interamente con setti in c.a. ed impalcati in solai misti acciaio – calcestruzzo con soletta collaborante dotati nella maggioranza dei casi di connettori a piolo (fanno eccezione i soli solai del piano intermedio dell’area dei destinai ai servizi igienici ed agli sbarchi dell’ascensore). Rispetto al progetto del 2012 il nuovo progetto ha totalmente modificato la gerarchia degli scarichi a terra dei carichi di impalcato e dei carichi di esercizio: le orditure delle travi infatti sono state disposte ortogonalmente ai setti di controvento a loro volta ortogonali ai due muri di perimetro longitudinali. Questa scelta è finalizzata alla precisa necessità di trasferire la gran parte delle pressioni sul terreno in un’area che fosse il più distante possibile dalla paratia del parcheggio interrato in modo da minimizzarne le interazioni (in tal modo l’asse mediano longitudinale dell’edificio disposto parallelamente al fronte della paratia risulta distante da quest’ultima circa 7 m). Attraverso tale soluzione è stato inoltre possibile ottenere che i carichi a terra trasferiti dai setti posti in parallelo sia alla paratia che alle murature di confine poste in adiacenza, fossero limitati ai soli pesi propri dei setti stessi. Ulteriore scelta, finalizzata ad annullare le interferenze con le strutture del parcheggio interrato, è stata quella che ha portato all’adozione di un sistema di fondazioni di tipo misto, superficiali e profonde, nel quale ambedue le tipologie fossero in grado di sopportare i carichi indipendentemente l’una dall’altra nel rispetto delle portanze del terreno; questo con l’intento primario di far sì che la prevalenza dei bulbi di pressione si posizionasse ad una profondità (circa 10 m dal piano di campagna) superiore a quella del piano inferiore del parcheggio (circa 6 m dal piano di campagna). Il sistema comprende quindi un sistema di travi rovesce interconnesse, disposte con la propria orma ad una profondità di 1.80 m dal piano di campagna, ed un sistema di 28 pali in c.a. del diametro di 30 cm e lunghezza di 7.00 misurata a -0,80 m dal piano di campagna, disposti lungo l’asse delle travi ad interassi di circa 2.50 m.

Blocco A Schema dei setti in c.a. Dettaglio delle strutture di impalcato.


Blocco A Dettaglio delle strutture di impalcato. Impalcato del solaio intermedi.

Il problema dell’adiacenza tra i setti di perimetro e le murature degli edifici limitrofi è stato risolto attraverso la realizzazione di un giunto distanziatore con funzioni sismiche che (tenendo conto delle irregolarità geometriche delle murature preesistenti) varia dai 10 ai 18 cm. A tale proposito è opportuno porre in evidenza come l’effettiva adiacenza del Blocco A con gli edifici limitrofi si riduca di fatto al solo tratto di circa 5 m con la parete in muratura, mista in pietra e mattoni, alta circa 4 metri, appartenente al bar presente sul lato ovest verso il mercato di Piazza Ghiberti (tratto 4 - 5 à fig.12), trascurando il breve tratto 3 – 4 che confina con una sottile parete di un paio di metri (per la quale è stato previsto un consolidamento con betoncino armato) relativa al perimetro di una piccola corte interna. Il confine con il Plesso di santa Verdiana non vede invece una contrapposizione diretta tra il nuovo setto in c.a. con relativa fondazione e i corpi edilizi del Dipartimento di Architettura e relative fondazioni disposte in prossimità del confine; in questo caso infatti, a dividere le due strutture, si trova il vecchio muro di recinzione del convento, di circa 50 cm di spessore: i corpi di fabbrica con struttura portante composta da telai in c.a. per il tratto 1 -2, ed in acciaio l’altro tratto 2 - 3, edificate in occasione dell’intervento di recupero della fine degli anni ’80, si discostano dal muro di recinzione lasciando una intercapedine di circa 60 cm (fig. 12). In definitiva non vi è adiacenza diretta tra nuove strutture e strutture preesistenti fatta esclusione per il muro di recinzione che, di fatti, rimane contenuto in una sorta di sandwich interno. Sempre in relazione al Blocco A, e tornando al tema del sistema delle fondazioni, la figura 13 mostra il sistema delle travi rovesce comprensive della disposizione dei 28 pali e una schematizzazione del rapporto delle aree di influenza del sistema complessivo con il terreno di fondazione, gli edifici limitrofi di santa Verdiana e la struttura del parcheggio interrato. Il Blocco A si prefigura come un corpo di fabbrica nel quale, come sopra già ricordato, si svolgeranno funzioni di ufficio (Firenze Parcheggi Spa) con possibile accesso al pubblico: Classe II – Cat. B2. La sua configurazione strutturale è caratterizzata da un sistema portante a setti in c.a. e un sistema di impalcati, disposti su due
livelli di piano ed un piano ammezzato di servizio, realizzati con solai misti in acciaio e calcestruzzo, in lamiera grecata con soletta collaborante mediante connettori a piolo, per i vani di luce maggiore, o solai in acciaio e laterizio per le aree di servizio. Al fine di ridurre al massimo le possibili interferenze con le strutture di contenimento del parcheggio, il sistema fondale connesso ai setti portanti, ovvero quelli che raccolgono il 90% delle azioni trasmesse dagli impalcati in funzione dell’orditura degli orizzontamenti, è stato disposto ortogonalmente alla piazza. In tal modo l’orma della fondazione continua a trave rovescia di ciascun setto appoggia pienamente sull’area più ampia e omogenea, oltre che distante dalla paratia, del terreno edificabile. La trave rovescia posta al di sotto del fronte di parete parallelo alla piazza assume quindi il solo onere di sostenere il solo peso proprio del setto di perimetro, setto che peraltro si presenta con ampie forature vetrate per quasi l’80% del suo sviluppo. Il setto retrostante, completamente cieco (fatta eccezione che per le due piccole finestrature lucifere in corrispondenza della parte antistante il cortile interno di santa Verdiana), segue il perimetro obbligato, definito dallo sviluppo lineare della cinta muraria dell’antico convento che si interpone, come una sorta di sandwich di separazione, tra la nuova struttura e le strutture della sede didattica di Architettura che se ne discostano di circa 0.8 m. L’interfaccia tra nuovo setto e fronte della cinta muraria retrostante è stata risolta predisponendo uno scostamento che determina un’intercapedine variabile tra 10 e 20 cm (a seconda delle irregolarità della muratura di confine), che si prefigura come un vero e proprio giunto di separazione nel cui spazio è stata interposta, tra l’altro, un lastra di materiale coibente di 8 cm. Anche sul fonte laterale del blocco, posto in adiacenza per circa 6 metri alla muratura di perimetro dell’edificio del bar della piazza, è stato lasciato uno stacco di circa 10 cm. In considerazione delle altezze e della morfologia degli edifici interessati è facilmente dimostrabile che l’ampiezza dell’intercapedine è superiore al valore che si ottiene per la definizione del giunto sismico corrispondente.
Blocco B Il Blocco B insiste su un’area di terreno le cui caratteristiche sono le medesime di quello sul quale insiste il Corpo A. È composto da un elemento rettangolare centrale (con riferimento agli assi 3,5 x 2,95 m) realizzato con setti armati, di spessore 35 cm, contenente al suo interno un’ossatura intelaiata in profili d’acciaio HEB 200. Il manufatto in oggetto si mantiene chiuso a partire dallo spiccato di fondazione fino alla quota del primo impalcato posto a + 5,00 rispetto al piano di campagna, per poi proseguire con i soli due setti più lunghi per altri 6 m, fino alla quota della pensilina posta a + 11,00. L’interazione con il terreno è realizza attraverso una piastra di fondazione (5.70 x 5.10 m), nervata con sette travi rovesce incrociate, quattro in parallelo con il lato corto e tre con quello lungo, posta ad una quota di spiccato di – 2.50 m rispetto al piano di campagna, e munita di 12 pali di 7 m di lunghezza. Anche in questo caso la scelta progettuale è stata quella di optare per una fondazione mista, superficiale e profonda, per la quale il valore della portanza di ciascuna tipologia è comunque in grado di sostenere i carichi trasmessi dalla struttura fuori terra. Il Blocco B si prefigura come un corpo di fabbrica nel quale si volgeranno funzioni di ufficio direttivo (Firenze Parcheggi Spa), accessibile solo dall’interno attraverso il passaggio dal Blocco A e non aperto al pubblico.

Blocco B Organizzazione del sistema delle fondazioni. Sezione schematica del sistema di fondazione in rapporto alle strutture del parcheggio interrato.

Blocco B. Morfologia delle carpenterie metalliche con differenziazione dei vari elementi.
Morfologia delle carpenterie metalliche con differenziazione dei vari elementi.
Morfologia delle carpenterie metalliche con differenziazione dei vari elementi. Dettagli dei giunti bullonati.






Blocco B Scomposizione degli elementi in acciaio delle mensole di impalcato. Dettagli della carpenteria metallica delle mensole di impalcato. Dettagli della carpenteria metallica delle mensole di impalcato. Scomposizione degli elementi costituenti le mensole di impalcato e modalità di assemblaggio. Dettagli della carpenteria metallica delle mensole di impalcato.
Vista assonometrica dell’intero impianto strutturale in acciaio.


Blocco B. Impalcato di piano con differenziazione dei vari elementi assemblati.
Carpenteria metallica della trave principale della pensilina.
Impalcato della pensilina con differenziazione dei vari elementi assemblati.



Elementi di telaio costituenti lo scheletro in acciaio del fusto in c.a. Il sistema dei connettori a U migliora la collaborazione tra i due materiali. Assemblaggio in opera degli elementi in acciaio costituenti le mensole di sostegno del primo impalcato. Assemblaggio in opera degli elementi in acciaio costituenti le mensole di sostegno del secondo impalcato. La connessione viene eseguita mediante coprigiunto bullonato, mantenendo gli elementi i sospensione fino a completamento dell’operazione.



Movimentazione e calo verticale dell’elemento centrale monoblocco in corrispondenza del secondo impalcato e connessione con i profili verticali di perimetro. Griglia completa costituente il secondo impalcato di piano. È visibile, al livello inferiore, la stesura del solaio in lamiera grecata collaborante. Completamento delle connessioni degli elementi verticali ed orizzontali costituenti il sistema strutturale. I vari elementi composti, preconfezionati fuori in officina, risultano connessi mediante coprigiunto bullonato.



Griglia completa costituente il secondo impalcato di piano. Sono visibili, sul perimetro ed in corrispondenza del fusto centrale, gli elementi verticali pre-assemblati necessari alla connessione con le strutture del livello superiore.
Blocco B. Terzo livello: griglia dei profili di appoggio delle travi della pensilina. È visibile, al livello inferiore, la disposizione delle armature supplementari relative alla realizzazione dell’impalcato di solaio in lamiera grecata collaborante. Assemblaggio in opera del sistema dei profili costituenti la struttura della pensilina. Completamento dell’assemblaggio in opera del sistema dei profili costituenti la struttura della pensilina.



Blocco C Sezione schematica del sistema di fondazione in rapporto alle strutture del parcheggio interrato.
Vista montaggio carpenteria corpo C. La struttura portante prevalente del blocco è quella in acciaio al fine di garantire una continuità, sia nei materiali che nella tecnologia, con la pensilina che lo sovrasta. Fanno eccezione la prima parte del fusto, a partire dallo spiccato di fondazione, e la sua prosecuzione mediante due setti paralleli fino al livello della pensilina. Questi ultimi sono stati previsti con una struttura mista in setti in c.a. che ospitano, annegata al proprio interno, una intelaiatura in profili d’acciaio che funge da scheletro portante aggiuntivo e che permette un congruo sistema di connessione continua con la struttura degli impalcati aggettanti dei due livelli superiori. La caratteristica emergente è quella che vede l’impianto strutturale partire dal basso con le dimensioni contenute del fusto per poi allargarsi, in corrispondenza del primo livello, attraverso lo sviluppo in aggetto di mensole in profili d’acciaio poste a sorreggere l’intera struttura degli impalcati superiori, confinati da un impianto intelaiato in carpenteria metallica, fino alla pensilina. Lo spessore dei setti in c.a. è di 35 cm (con sviluppo di circa 13 m dallo spiccato di fondazione per i due che proseguono fino al livello della pensilina), l’ossatura in acciaio è formata da profili HEB 200. In merito all’interazione tra i due materiali occorre osservare come lo spazio tra la casseratura di contenimento del getto e la superficie perimetrale dei profili in acciaio, misurato omoteticamente, anche tenendo in considerazione dell’ingombro delle armature metalliche, abbia la dimensione netta minima di 7.5 cm. Ciò comporta che nelle fasi di getto (eseguito per cantieri verticali di circa 1.5 m) è stato possibile controllare con accuratezza sia il passaggio che la diffusione omogenea del conglomerato cementizio all’interno del cassero accertando quindi la completa occupazione del volume da riempire e l’assenza di vuoti tra i profili. L’interazione e la collaborazione tra gli elementi in acciaio e la massa in calcestruzzo sono state ulteriormente migliorate e garantite mediante un sistema di connettori sagomati ad U (realizzati con barre ∅ 14 a aderenza migliorata) saldati in corrispondenza delle facce dei profili ed annegati nel getto.
Blocco C Il blocco C si prefigura come una sorta di padiglione, ovvero un volume coperto (con impalcato piano di copertura praticabile per la sola manutenzione), sostanzialmente vuoto al suo interno. L’unico piano di calpestio, escludendo lo stretto passaggio a ballatoio posto alla quota di + 5.10, è quello del piano terra che quindi grava direttamente, anche se solo in parte, su una porzione del solaio del parcheggio interrato, previa interposizione di un vespaio areato. Sull’esigua striscia di terreno in corrispondenza della quale è stato predisposto il sistema di fondazioni gravano i carichi trasmessi dal setto in c.a. del perimetro posteriore e quelli trasmessi da tre setti, sempre in c.a., disposti a pettine, due dei quali a definizione del fusto dell’ascensore di servizio che serve il passaggio da piano terra al piano del ballatoio. Solo una ridotta parte delle azioni trasmesse dalla copertura gravano sul fronte verso la piazza. Quest’ultimo è costituito da un sistema intelaiato di tipo reticolare formato da profili in acciaio HEA 140 e collegato trasversalmente ai setti retrostanti. Il sistema dei montanti, disposti ad un interasse di 1.2 m, trasferisce sul cordolo armato posto alla base una distribuzione uniforme di carico di tipo lineare di bassa entità cui contribuiscono sia i carichi di copertura che i pesi propri delle strutture di facciata che ospitano, tra l’altro, un’ampia apertura finestrata.



Blocco C Organizzazione del sistema delle fondazioni.
Schema dei telai in acciaio.
Schema dei telai in acciaio.

Vista montaggio carpenteria corpo C. L’edificio C trasferisce sul solaio del parcheggio interrato una parte dei carichi derivante dal solaio di copertura ed il solo peso proprio delle strutture di facciata. I carichi trasmessi sono decisamente inferiori ai valori definiti per l’impalcato di calpestio della piazza, ovvero 2500 daN/mq. La parte più consistente del manufatto, realizzata in setti in c.a., insiste come sopra ricordato, sulla fondazione appoggiata in corrispondenza della striscia tergale di terreno, definita da una piastra nervata con travi rovesce in coesistenza con 5 pali trivellati. Le pressioni medie trasmesse al suolo sono trascurabile, esse non superano mai il valore di 0.6 daN/cmq nella condizione più sfavorevole. L’apparto fondale è quindi disposto in modo prevalente lungo la striscia di terreno tergale adiacente al cortile del plesso di santa Verdiana, confinato verso Piazza Annigoni dalla paratia di bordo della rampa d’accesso al parcheggio interrato. Lungo quest’area, infatti, si sviluppa il setto in c.a. di perimetro e la sequenza de setti ortogonali disposti a pettine, su tre dei quali appoggia il passaggio a ballatoio interno. Il sistema è composto da una piastra, la cui geometria rispecchia la forma della striscia di terreno, sormontata da un reticolo travi rovesce. Lungo l’asse mediano della piastra ed in corrispondenza di ogni setto trasversale e della trave rovescia ad esso associata, sono stati disposti cinque pali ∅ 300 e profondità 7 m misurati dallo spiccato di fondazione posto a – 1.5 m da quello di campagna. Le azioni trasferite al terreno dalle strutture superiori sono molto ridotte e dipendono prevalentemente dai carichi di peso proprio dei setti, da quelli derivanti dalla limitata porzione dell’impalcato del ballatoio e della ridotta area di influenza dell’impalcato di copertura.






