

There is just something about Carnation Lane! Come check out this beautiful Bluffton cottage showcasing a spacious front porch, oversize custom back porch, three bedroom, two bath, open concept living at its finest! A finished sunroom elongates the spacious family room to create a cozy reading nook or expansive entertaining area. Third bedroom currently used as a study. Check off all your boxes without breaking the bank. A meticulously maintained home waiting for its next lucky owners. Let the fun begin!























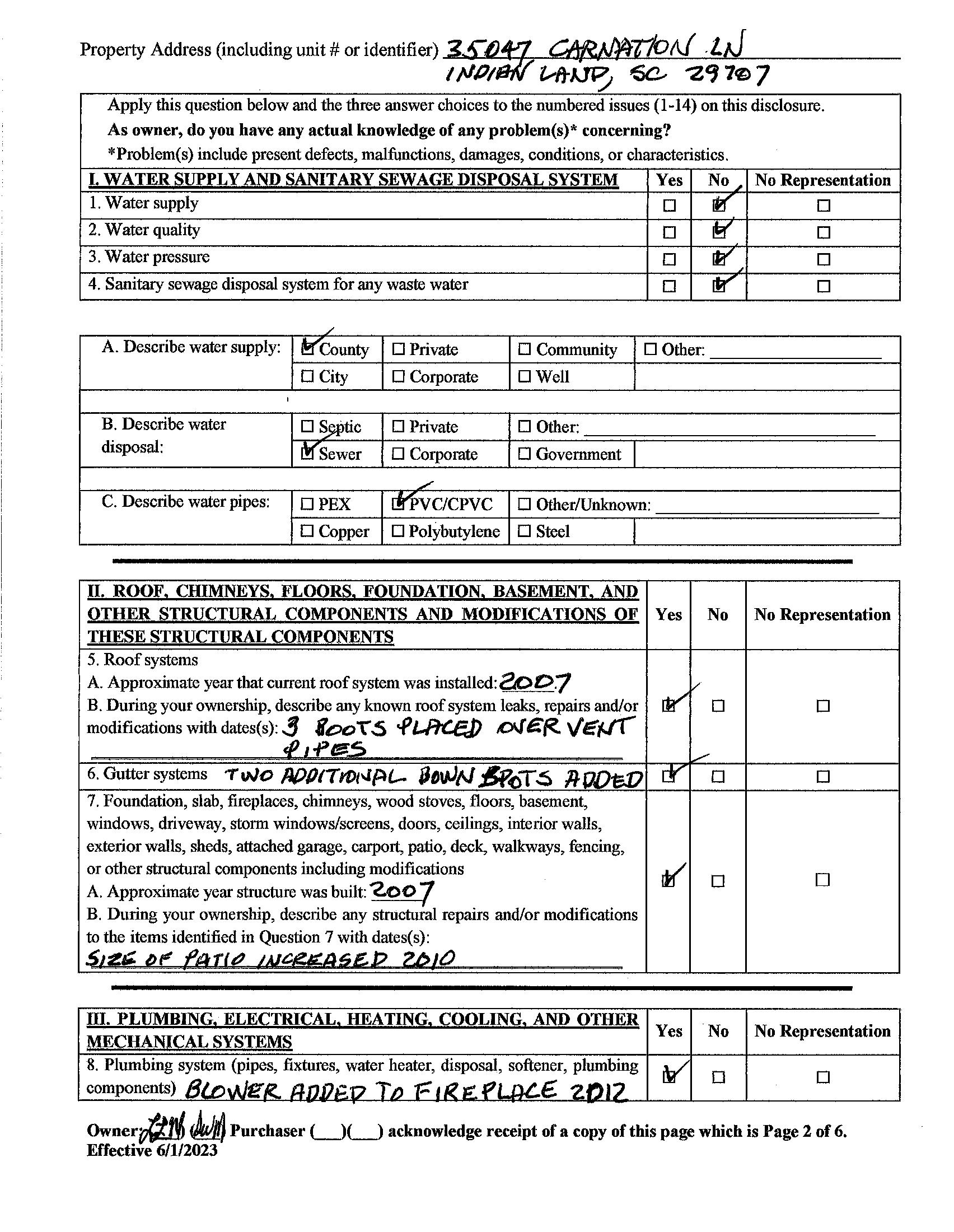
35047CarnationLane,FortMill,SouthCarolina29707
35047 Carnation Lane, Fort Mill, South Carolina 29707
MLS#: 4319790 Category: Residential County: Lancaster
Status: ACT City Tax Pd To: Fort Mill Tax Val: $382,600
Subdivision: Sun City Carolina Lakes Complex:
Zoning Spec: PDD
Parcel ID: 0016H-0A-060.00
Zoning:
Deed Ref: 401/25
Legal Desc: PLAT 2007-575 35047 CARNATION LN
Apprx Acres: 0.19
Apx Lot Dim:

Additional Information
Assumable: No
Spcl Cond: None
Rd Respons: Publicly Maintained Road
General Information
School Information Type: Single Family Elem: Unspecified Style: Ranch Middle: Unspecified
Levels Abv Grd: 1 Story High: Unspecified
Const Type: Site Built SubType:
Building Information
Ownership: Seller owned for at least one year
Room Information
Main Kitchen Dining Rm FamilyRm
Bath Full Bedroom Bedroom
Parking Information
Main Lvl Garage: Yes Garage: Yes # Gar Sp: 2
Covered Sp: Open Prk Sp: No # Assg Sp: Driveway: Concrete Prkng Desc:
Parking Features: Garage Attached
Features
Carport: No # Carport Spc:
View: Doors: French Doors
Windows:
Laundry: Laundry Room, Main Level, Sink Fixtures Exclsn: No
Foundation: Slab
Accessibility:
Exterior Cover: Brick Partial, Vinyl
Basement Dtls: No
Fireplaces: Yes/Family Room
Construct Type: Site Built
Road Frontage: Road Surface: Paved
Roof: Architectural Shingle
Patio/Porch: Front Porch, Rear Porch
Other Structure:
Appliances: Dishwasher, Disposal, Electric Range, Refrigerator with Ice Maker, Washer/Dryer Included Floors: Carpet, Prefinished Wood, Tile
Comm Feat: 55 and Older, Business Center, Club House, Dog Park, Fitness Center, Game Court, Golf Course, Hot Tub, Indoor Pool, Street Lights, Tennis Court(s), Walking Trails Utilities
Sewer: City Sewer Water: City Water Heat: Forced Air Cool: Central Air
Association Information
Subject to HOA: Required Subj to CCRs: Yes HOA Subj Dues: Mandatory
HOA Mangemnt: Associa Carolinas
HOA Phone: Assoc Fee: $364/Monthly
Remarks Information
Public Rmrks: There is just something about Carnation Lane! Come check out this beautiful Bluffton cottage showcasing a spacious front porch, oversize custom back porch, three bedroom, two bath, open concept living at its finest! A finished sunroom elongates the spacious family room to create a cozy reading nook or expansive entertaining area. Third bedroom currently used as a study. Check off all your boxes without breaking the bank. A meticulously maintained home waiting for its next lucky owners. Let the fun begin!
FileNo.: ParcelNo.:
PropertyAddress:









