


![]()



Hawthorn Manor Assisted Living Facility Is Designed With A Deep Commitment To Enhancing The Sensory Experience Of Its Residents, Who Require Support In Their Daily Lives. As We Age, Our Senses Of Touch, Smell, And Sight Naturally Decline, Affecting Our Perception Of Comfort And Surroundings. The Design Of Hawthorn Manor Focuses On Creating A Safe And Nurturing Environment That Feels Like Home, Prioritizing The Following Features:
• Enhanced Sensory Design
• Comfort And Safety
• Home-Like Atmosphere
• Functional Elegance
• Community And Privacy
• Holistic Well-Being


Scale: 1/8” = 1’-0”
*Furniture Plans Drawn In Autodesk-AutoCAD Drawings Are Not To Scale-All Scales Represent Industry Standard
Second Floor Furniture Plan
Scale: 1/8” = 1’-0”
P-1 (CEILING) BENJAMIN MOORE DECORATORS WHITE - LATEX FLAT
P-2 (OFFICES) BENJAMIN MOORE #981 - LATEX EGGSHELL
P-3 (DOOR FRAMES) BENJAMIN MOORE #1618 - LATEX SEMI-GLOSS
WALLCOVERING SCHEDULE
W-1 INNOVATIONS IN WALLCOVERING; ALCHEMY SERIES MUSHROOM #78825
W-2 INNOVATIONS IN WALLCOVERING; ALCHEMY SERIES TEAL #78801
W-3 MDC METROPOLIS #4MDMED8182; 54" EDMORE GREY
FLOORING SCHEDULE
A (STONE TILE) STONE DESIGNS, INC; BLACK GRAPHITE SLATE
B (STONE TILE ACCENT) BRANN CLAY PRODUCTS CO; CAMBRIAN BLACK B1(6X24) B2 (8X36
C (CARPET) PRINCE STREET TECHNOLOGIES, INC; STYLE: 41142 SALUTATION 27Z; COLOR: #6017
LIVE FROM NY
D (BORDER CARPET) PRINCE STREET TECHNOLOGIES, INC; STYLE:CLASSIC; COLOR: #CL113
E (VCT) AZROCK COMMERCIAL FLOORING; SIZE: 12 X 12; COLOR: #V-874 DESERT HAZE
F (VINYL CONDUCTIVE TILE) FLEXCO STATIC DISSIPATIVE SOLID VINYL TILE; COLOR: #ESD-66
BASE
- A,B,C,D FLOORING TO HAVE WOOD BASE, MEDIUM STRAIN ON CHERRY VENEER
- E & F FLOORING TO HAVE 4" VINYL BASE; VPI PREMIUM WALL BASE; COLOR: 35 GRAPHITE P 1

Hawthorn Manor’s Exterior Landscaping Design Aims To Create A Serene, Engaging, And Therapeutic Environment For Senior Residents. The Thoughtfully Planned Outdoor Spaces Are Designed To Promote Physical Activity, Social Interaction, And Mental Well-Being Through A Variety Of Amenities And Natural Elements. This Holistic Approach To Landscaping Not Only Beautifies The Living Environment But Also Significantly Contributes To The Overall Quality Of Life For The Senior Community At Hawthorn Manor.
The Landscaping Design Follows Occupational Safety And Health Administration (OSHA) Guidelines To Ensure The Safety Of Residents And Maintenance Staff. This Includes Safe Walkways, Non-Slip Surfaces, Proper Lighting, And Secure Installation Of Outdoor Furniture And Equipment.
Hawthorn Manor’s Exterior Landscaping Design adheres to a comprehensive set of code standards and guidelines to create a safe, accessible, and therapeutic environment for senior residents. By incorporating ADA compliance, OSHA and CDC regulations, therapeutic landscape principles, and sustainable practices, the design significantly enhances the quality of life for the senior community while ensuring safety, accessibility, and environmental responsibility.

Design: A Network Of Paved Walking Trails Winds Throughout The Property, Providing Residents With Safe, Accessible Pathways For Daily Exercise. The Trails Are Designed With Gentle Grades, Handrails, And Seating Areas At Regular Intervals, Ensuring They Are Suitable For Seniors With Varying Levels Of Mobility. Benefits: Encourages Physical Activity, Which Is Vital For Maintaining Mobility, Strength, And Cardiovascular Health.
Walking Also Provides Stimulation And Opportunities For Social Interaction Residents.
Design: A Spacious Greenhouse Allows Residents To Engage In Gardening Activities Regardless Of Weather Conditions. Benefits: Gardening Is A Therapeutic Activity That Can Improve Mental Health, Provide Physical Exercise, And Offer A Sense Of Purpose And Accomplishment.
Design: The Pool Area Features A Retractable Roof, Enabling Year Round Use. Adjacent Exterior Restrooms Provide Convenience And Accessibility.
Benefits: Swimming And Water Are Excellent For Low Impact Physical Therapy, Improving Joint Flexibility, Strength, And Overall Fitness. The Pool Also Serves As A Social Hub

Themed Gardens, Sensory Garden, And Vegetable Garden, Offer Diverse Experiences For Residents. Sensory Gardens Stimulate The Senses With Fragrant Plants, Textured Foliage, And Vibrant Colors. Vegetable Gardens Provide Educational And Recreational Opportunities, Enhancing Residents’ Quality Of Life.

A
Samuelson: Drum Side Table
Finish: Solid Wood #501
B





Passerini: Camelia Coffee Table.
Finish: Lacquered Top And Satin Brass Finish Legs. C
Samuelson: Immersion Smart Chair Finish: Ebonized
* Lumbar Support, Arm, Seat Height, Pitch And Depth Assure Healthy Sitting Posture. D
Samuelson: Douglass
Finish: Ebonized Walnut
* Our Patented Hardware
Suspends A Folded Walker, Or Any Personal Item, On The Back Of Our Chairs
E
Kwalu: Biella Sofa
Finish: In Northern Oak
* Durable Finish, Steel




Kwala: Arpino Cafe
Finish: Northern Oak
*Seat Cushion Is Field
Replaceable Easy To Clean And Maintenance-Free.
B
Spacetables: Santa Fey Collection
Finish: Porch Swing + Calcutta Warm C
Kwala: Novara Chair
Finish: Northern Oak D
Spacetables: Santa Fey Collection
Finish: Porch Swing + Calcutta
* Back Cutout, Casters And Back Handle Included



Charter: Dining Chair 700875-Dea
Upholstered, Waterfall Seat.
Exposed Finished Solid Wood,Seat Apron
B
Private Dining Built In: Finish:Sugar Maple
C
Reinforced And Concealed Cleanout A
Kwalu: Havest Dining Table
Finish: Light Walnut
Furniture In Hawthorn Manor Assisted Living Facility Adheres To Specific Codes And Standards To Ensure Safety, Accessibility, And Comfort For Residents. National Fire Protection Association (NFPA): NFPA 101, Life Safety Code, Includes Requirements For The Fire Resistance Of Furniture In Healthcare Facilities To Ensure It Does Not Contribute To The Spread Of Fire And Smoke.


This Home In Washington Harmoniously Blends Organic Elements With Mid-Century Modern Design To Create A Sanctuary For Both The Owners And Their Guests.
• The Couple’s Passion For Cooking And Entertaining Is Met With A Spacious Main Kitchen, An Impressive Outdoor Grill Station, And Ample Seating Options.
• Natural Colors And Sustainable Materials Echo The Stunning Washington Landscape, Fostering A Seamless Connection Between Indoor And Outdoor Spaces Through Numerous Windows That Provide Ample Natural Lighting.
• Hospitality Is At The Heart Of This Retreat. The Thoughtful Layout And Amenities Ensure That Guests Feel Welcomed And Pampered. With Inviting Areas For Gathering, The Home Is Perfect For Hosting Friends And Family. When The Couple Is Away, Their EcoFriendly Retreat Is Available For Short-Term Rentals, Offering Guests A Unique Experience Of Comfort And Luxury. The Washington Retreat Is A Perfect Blend Of Style, Functionality, And Hospitality, Making It An Inviting And Versatile Space For Everyone.







Ventilation Equipment: The kitchen design includes ENERGY STAR-rated exhaust fans, which are recognized for their energy efficiency and performance. These fans meet the stringent criteria set by the U.S. Environmental Protection Agency (EPA) for energy efficiency and help reduce energy consumption and utility costs.
3D Renderings - Produced In AutoCAD - Exported To Sketchup - Rendered In Enscape

B C D
Living: Eikund Fluffy Lounge Chair Sheepskin Upholstery
Living: Cloud Modular 3-Piece Sofa In Dove


The Exterior Features Three Living Spaces And Two Dining Areas, All Illuminated With Ample Lighting To Create A Warm And Inviting Atmosphere. This Integration Of Indoor And Outdoor Living Spaces Emphasizes Comfort, Functionality, And Aesthetic Appeal, Ensuring A Seamless Experience For Both Everyday Living And Social Gatherings.

Indoor Dining Lighting


3D Renderings - Produced In AutoCAD - Exported To Sketchup - Rendered In Enscape




Adhering To The National Electrical Code (NEC) And Washington State Codes For Outdoor Electrical Outlets And Lighting, The Washington Retreat Design Ensures A Safe, Functional, And Enjoyable Outdoor Environment. Incorporating GFCI Protection, Weatherproof Enclosures, And Strategic Placement Of Outlets Not Only Meets Regulatory Requirements But Also Enhances The Overall Usability And Safety Of The Outdoor Spaces.


The Stewart Residence has a focus on making each space uniquely their own while maintaining a cohesive style. Every space is designed to feature a distinctive architectural element, considering acoustics and traffic patterns to ensure functionality and aesthetic harmony.
Diverse Materials for Wall Dividers: To meet Mr. and Mrs. Stewart’s needs, various materials such as wood, mirrors, and fireplaces are utilized for wall dividers, adding both function and visual interest.
Ceiling Details: Embracing the Stewarts’ openness to ceiling details, a barrel vault is incorporated in one area to create intimacy and improve acoustics, drawing attention to the architectural elegance of the space.
Custom Millwork: Custom millwork is a key feature throughout the suite, with bespoke cabinetry, TV units, wall paneling, and shelving, ensuring each piece is perfectly tailored to the Stewarts’ preferences.
Cohesive Use of Wood Tones: A variety of wood tones and materials are integrated into each room, creating a cohesive yet dynamic aesthetic that ties the entire suite together.
Entertainment-Friendly Layout: Given the importance of entertainment for the Stewarts, especially with an upcoming family reunion, the design includes multiple seating areas and an open layout to facilitate social gatherings without obstruction.






In designing a secure and adaptable living environment for aging in place, every choice has been made to balance practicality with contemporary aesthetics. This space integrates custom architectural details, enhancing functionality while maintaining a modern design. Key features include:
Custom Architectural Detail: A half-wall divider with built-in shelves, providing ample space for an extensive book collection and creating a distinct separation without compromising openness.
Versatile Custom Dressers: Multi-functional custom dressers that can be utilized in various ways, ensuring flexibility and convenience for the residents.
Optimized Circulation:
The layout maximizes circulation, fostering a sense of openness. This includes seamless transitions from the TV area to a cozy reading nook capable of housing over 100 books.
Art-Enhanced TV Wall:
The TV wall features carefully curated artwork, adding a personal and aesthetic touch to the living space.
Multi-functional Bedroom: A thoughtfully designed bedroom divided into three functional areas, tailored to meet the needs of Mr. and Mrs. Thomson, ensuring comfort and accessibility.




Scale: 1/8” = 1’-0”






The Vision For This Office Design Is To Create A Functional, Aesthetically Pleasing, And Sustainable Workspace That Enhances Productivity, Comfort, And Brand Identity. The Design Will Incorporate Modern Elements With A Touch Of Sophistication, Ensuring The Office Environment Is Conducive To Creativity And Collaboration. By Carefully Selecting Materials, Colors, And Finishes, The Space Will Be Transformed Into An Inspiring And Productive Work Environment That Reflects The Company’s Values And Vision.

Drawings Are Not To Scale-All Scales Represent Industry Standard
PAINT SCHEDULE
P-1 (CEILING) BENJAMIN MOORE DECORATORS WHITE - LATEX FLAT
P-2 (OFFICES) BENJAMIN MOORE #981 - LATEX EGGSHELL
P-1 (CEILING) BENJAMIN MOORE DECORATORS WHITE - LATEX FLAT
P-3 (DOOR FRAMES) BENJAMIN MOORE #1618 - LATEX SEMI-GLOSS
P-2 (OFFICES) BENJAMIN MOORE #981 - LATEX EGGSHELL
WALLCOVERING SCHEDULE
P-3 (DOOR FRAMES) BENJAMIN MOORE #1618 - LATEX SEMI-GLOSS
W-1 INNOVATIONS IN WALLCOVERING; ALCHEMY SERIES MUSHROOM #78825
WALLCOVERING SCHEDULE
W-2 INNOVATIONS IN WALLCOVERING; ALCHEMY SERIES TEAL #78801
W-3 MDC METROPOLIS #4MDMED8182; 54" EDMORE GREY
W-1 INNOVATIONS IN WALLCOVERING; ALCHEMY SERIES MUSHROOM #78825
FLOORING SCHEDULE
W-2 INNOVATIONS IN WALLCOVERING; ALCHEMY SERIES TEAL #78801
A (STONE TILE) STONE DESIGNS, INC; BLACK GRAPHITE SLATE
W-3 MDC METROPOLIS #4MDMED8182; 54" EDMORE GREY
FLOORING SCHEDULE
B (STONE TILE ACCENT) BRANN CLAY PRODUCTS CO; CAMBRIAN BLACK B1(6X24) B2 (8X36
A (STONE TILE) STONE DESIGNS, INC; BLACK GRAPHITE SLATE
C (CARPET) PRINCE STREET TECHNOLOGIES, INC; STYLE: 41142 SALUTATION 27Z; COLOR: #6017 LIVE FROM NY
B (STONE TILE ACCENT) BRANN CLAY PRODUCTS CO; CAMBRIAN B1(6X24) B2 (8X36
D (BORDER CARPET) PRINCE STREET TECHNOLOGIES, INC; STYLE:CLASSIC; COLOR: #CL113
E (VCT) AZROCK COMMERCIAL FLOORING; SIZE: 12 X 12; COLOR: #V-874 DESERT HAZE
C (CARPET) PRINCE STREET TECHNOLOGIES, INC; STYLE: 41142 SALUTATION 27Z; COLOR: #6017 LIVE FROM NY
F (VINYL CONDUCTIVE TILE) FLEXCO STATIC DISSIPATIVE SOLID VINYL TILE; COLOR: #ESD-66 BASE

D (BORDER CARPET) PRINCE STREET TECHNOLOGIES, INC; STYLE:CLASSIC; COLOR: #CL113
- A,B,C,D FLOORING TO HAVE WOOD BASE, MEDIUM STRAIN ON CHERRY VENEER -
- A,B,C,D FLOORING TO HAVE WOOD BASE, MEDIUM STRAIN ON CHERRY VENEER - E & F FLOORING TO HAVE 4" VINYL BASE; VPI PREMIUM WALL BASE; COLOR: 35 GRAPHITE P 1
E (VCT) AZROCK COMMERCIAL FLOORING; SIZE: 12 X 12; COLOR: #V-874 DESERT HAZE F (VINYL CONDUCTIVE TILE) FLEXCO STATIC DISSIPATIVE SOLID VINYL TILE; COLOR: #ESD-66 BASE

1. ALL CABINET WORK SHALL BE
Reception Desk Plan View
*Ada Front Roll Up
*Counters & Front Of Desk:
Quartz Salt Lake Cambria
Reception desk section
MANAGEMENT OFFICE
PROJECT #2

4. CABINET CONTRACTOR SHALL COORDINATE WITH
CONTRACTOR ALL FIRE-PROOFED WOOD BLOCKING NECESSARY FOR CABINET INSTALLATION.
Reception Desk Front Elevation:
*Classic Etched Glass With Brushed Aluminum For The Logo
*Fluted Panels In Pine: Stained Golden Pecan
*Glossy Gold Metal Trimming
*Curved Glass

*Installation: Comes In 3 Parts, 1) Desk With Cabinetry 2)Ada Curved Corner 3) Logo Wall
INTERIORS 2220
Reception Desk Rear Elevation:
*Glossy Gold Metal Toe Kick
*Cabinets: Metal With A Finish Of White Acrylic Latex Paint
*Integrated Task Light 1/2” Under Top
*Laminate Paint: White Pearl
*Tack Board
In The Bustling City Of Naperville, Simply Candid Stands As A Premier Destination For Photography Enthusiasts. This Retail Store, Meticulously Designed With A Blend Of Organic Elements And Modern Aesthetics, Caters To Those With An Eye For The Lens. The Product Line Ranges From High-Quality Cameras To Essential Accessories Like Lenses, Tripods, Memory Cards, Camera Cases, Battery Packs, Neck Straps, And Shutter Release Remotes, Ensuring That Both Beginners And Seasoned Photographers Find Everything They Need To Start Or Upgrade Their Photography Journey.
Simply Candid Offers A Unique Specialty Service: A 30-Minute Shoot Session Available Both Indoors And Outdoors, Perfect For Customers Seeking Expert Tips And HandsOn Experience. The Store’s Design Features A Striking Custom Ceiling Detail That Artistically Mimics A Large Camera Lens, Symbolizing The Heart Of Our Passion For Photography.
Simply Candid Is More Than Just A Store; It’s A Creative Space Where Photography Enthusiasts Can Find Inspiration, The Latest Equipment, And Expert Guidance, All Under One Roof.


























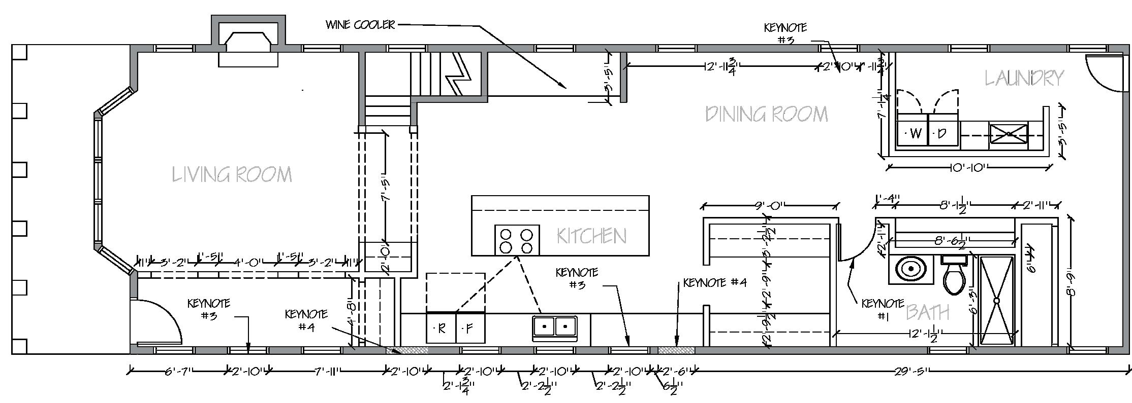
The Essence Of A Brownstone Lies In Its Historic Charm And Architectural Details. This Project Embraces The Spirit Of Preservation, Channeling History Through Meticulously Restored And Enhanced Molding Details And Wall Openings.
Big Changes Were Made With A Respectful Nod To The Past, Ensuring That Every Update Seamlessly Integrates With The Building’s Storied Legacy. The 10-Foot Ceilings Serve As A Canvas For Intricate Details, Amplifying The Grandeur Of The Space. By Thoughtfully Incorporating Small, Elegant Touches Throughout The Home, The Design Honors The Original Craftsmanship While Introducing Contemporary Sophistication.
Key Features Of This Design Include
• Beautiful Large Molding Arches At The Entrance, Offering A Grand And Inviting Welcome.
• The Modern Kitchen, Free Of Upper Cabinets, Allows An Abundance Of Sunlight To Flood The Space, Creating A Bright And Airy Atmosphere.
• Adjacent To The Kitchen Is A Spacious Walk-In Pantry, Providing Ample Storage While Maintaining The Kitchen’s Clean Lines.
• The Dining Area Is Conveniently Located Next To The Kitchen, Facilitating Easy Meal Service And Social Interaction.
• Tucked Away At The Back Of The Home Are The Restroom And Laundry Area, Thoughtfully Designed With Ample Closet Space For Convenience And Organization.






Demolition Plan
Scale 3/16”-1’-0”



Construction Plan
Scale 3/16”-1’-0”

Reflected Ceiling Plan
Scale 3/16”-1’-0”
Custom Ceiling Details In The Main Living Area, Dining Room, And Kitchen Add A Touch Of Elegance And Continuity Throughout The Space.
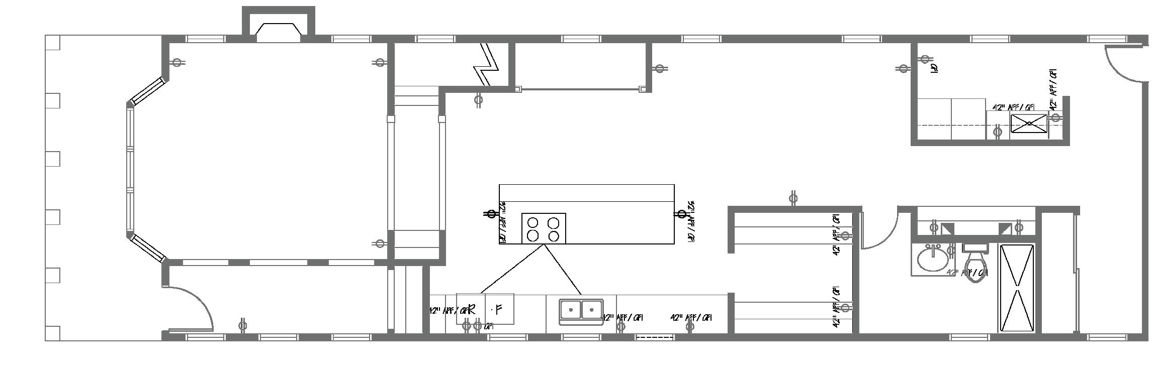
Electrical Voice Data Plan
Scale 3/16”-1’-0”

Outlets are placed in key areas throughout the Brownstone to ensure accessibility and functionality. In the kitchen, dining areas, and living spaces, outlets are positioned to accommodate appliances, lighting, and electronic devices. Each room is thoughtfully designed to provide convenient access to power sources without cluttering the space.
Drawings Are Not To Scale-All Scales Represent Industry Standard



Diana Earned Her Associate In Applied Science In Interior Design From The College Of Dupage, She Is Dedicated To Bringing Creativity, Technical Skill, And A Passion For Design To Every Project. Her Active Membership In The Nkba Reflects Her Commitment To Staying Current With Industry Trends And Standards.Diana Is Proficient In A Variety Of Design Software Including Autodesk AutoCAD, Sketchup, Chief Architect, Enscape, Adobe Photoshop, And Adobe InDesign. Her Strong Skills In 3d Modeling And Visualization Enable Her To Create Detailed And Realistic Representations Of Design Concepts, Allowing Clients And Collaborators To Fully Experience The Vision Before Implementation.
Diana’s Design Journey Has Been Diverse, Ranging From Residential To Retail Spaces, And She Has Recently Developed A Keen Interest In Healthcare Design. This New Direction Excites Her As It Combines Her Love For Design With The Opportunity To Make A Meaningful Impact On Environments That Support Health And WellBeing.She Approaches Every Project With A Deep Appreciation For Both Aesthetics And Functionality, Striving To Create Spaces That Are Not Only Visually Appealing But Also Enhance The Quality Of Life For Their Occupants. With A Solid Foundation In Interior Design And A Forward-Thinking Perspective, Diana Is Enthusiastic About Contributing To The Field And Exploring New Opportunities In Design. • dianagdesigns@aol.com • https://issuu.com/dianagdesigns • College Of Dupage Summer 2024