Skip to main content

Construction Drawing Portfolio - Selected Works 2020 - 2022

Page 1

INTERIOR DESIGN

Interior Layouts for furniture for two High end Residence projects

Project 1: Shah Family Residence

Location: Ahmedabad, India

Built up: 630 Sqmt

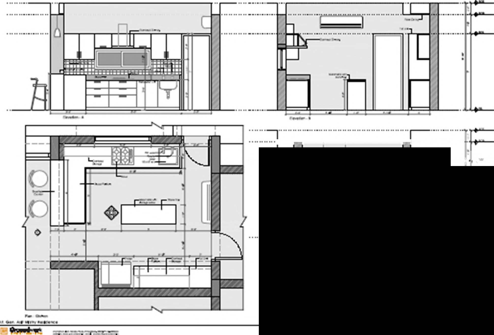
Project 2: Residence of retired Lt. General Asit Mistry

Location: Ahmedabad, India

Built up: 500 Sqmt

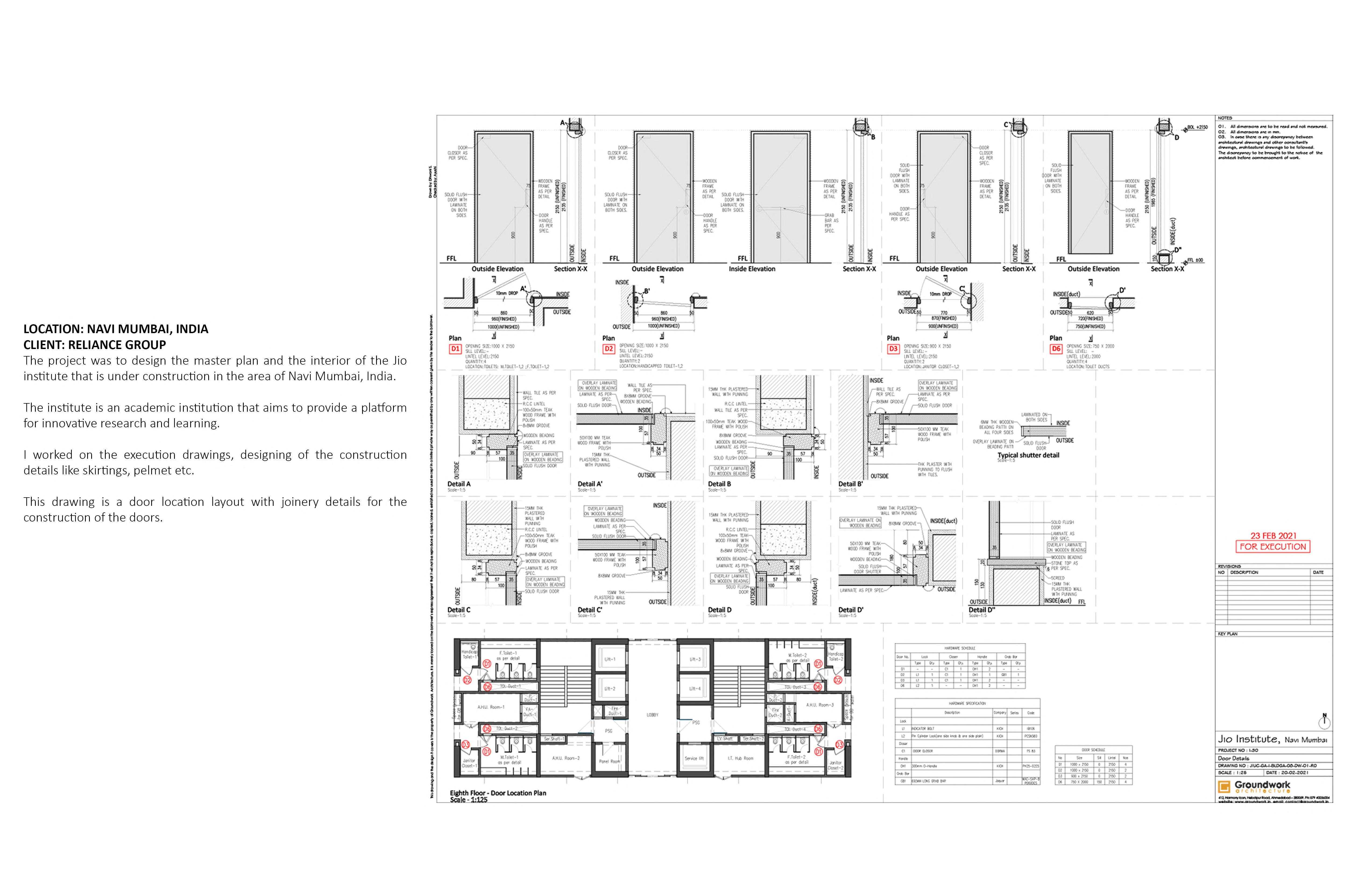
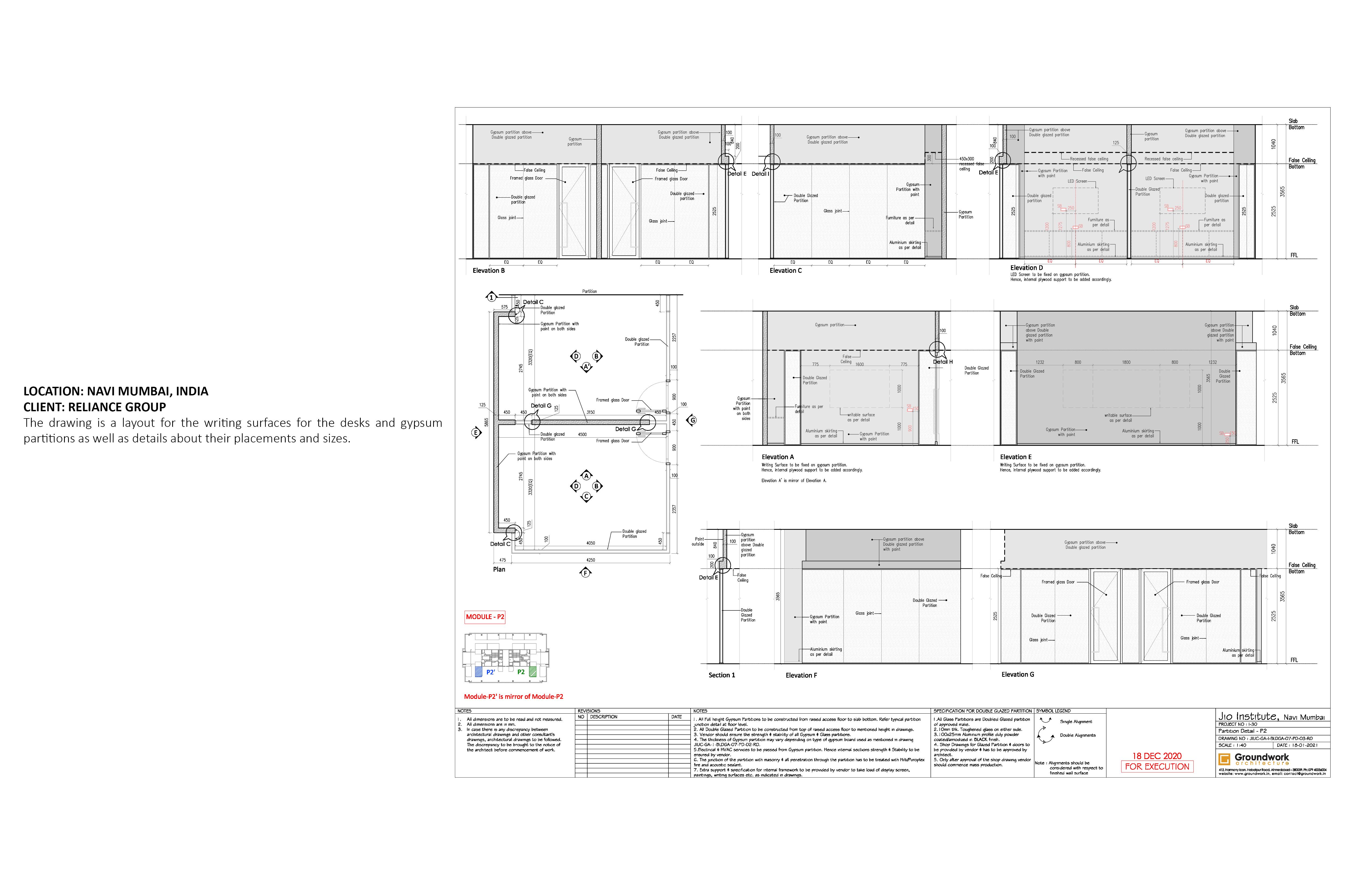
While working as part of an interior design firm called Scope Unlimited to design the interior of this residence in Ahmedabad, India, we worked out furniture layouts for the spaces. The drawings were created for both projects done: A residence for the Shah family in Gokuldham, India and the residence of retired Lt General of India, Asit Mistry. The drawings were made for visualization purposes as well as for space optimization for custom made furniture.

ADDRESS:- PROJECT:•RESIDENCEOFBIRENBHAI

915, Shiromani Complex, opp.Ocenpark, Satellite,A.bad,

INTERIOR DESIGNERS

IDATE:·14·05·19 EALT:•SHITALDWGNO:-3

Tel·079·26751844/26761844,Mob:+919157348234 1-----------------+-------+------+---------t

E·Mail:info@scopeinterior.com

ORAWINGTITLE:-FURNITUREPLANOFG.F. Web: www.scopeinterior.com

SCALE:•FIT CHECKEDBY:- REVISION:-

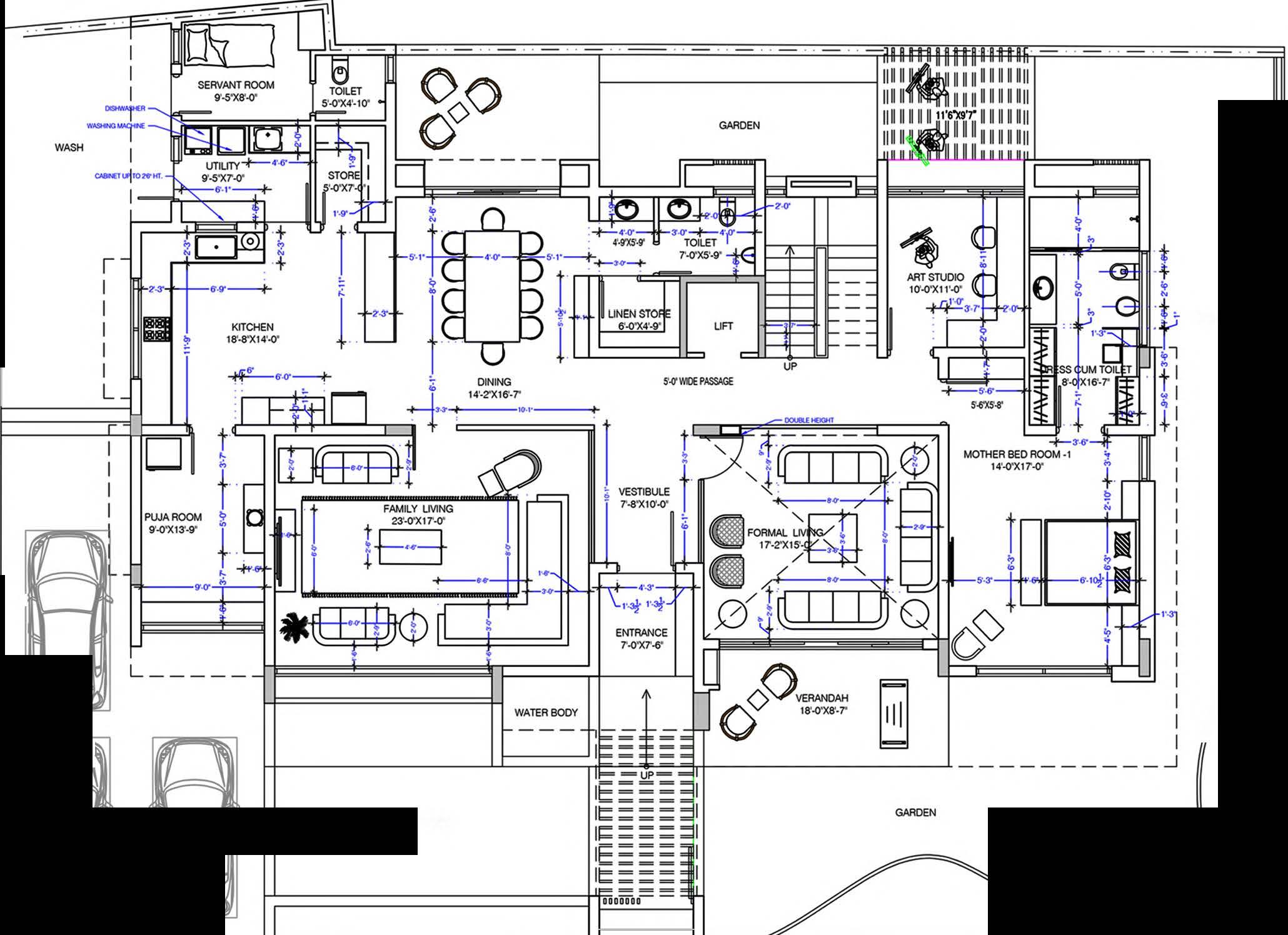
Furniture layout for Shah family residence

r.== GARDEN , ___,__
rr l ' - GARDEN Iii-II---'--ll"flOAR� � .7«fw'Unlimited �
<------------RO A ------------>
t----,---..---..------,-1-..................... ................. r.==:;I ......................" ..,.._ +-
Furniture layout for residence of Lt. General Asit Mistry

Turn static files into dynamic content formats.

Create a flipbook
Construction Drawing Portfolio - Selected Works 2020 - 2022 by dhwani1311 - Issuu