Victorian Period Room

Page 1

Project 2: Period Room

History of Furniture & Decorative Arts

Project Justification

Marion and Joseph Blythe are a child free couple in their late 40s, seeking an interior design professional to refurbish and update their living and dining room areas. They enjoy different time periods, and have requested a Victorian feel to be applied to the spaces. To accommodate, color choices of brown,creams,and, light blue have been applied to the interior. Walnut and Mahogany carved furniture add a warm essence, also staying true to the Victorian standard. Champagne gold accents, with delicate lace details throughout both rooms tie everything together.

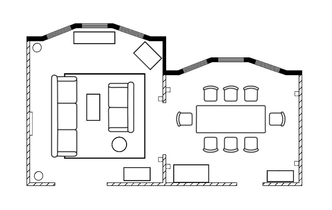
Dining and Living room area

Dining Room Floor Plan

1. Light Blue paint

2. Cream lace wallpaper

3. Patterned wood floor paneling

4. Wall sconces

5. Polyester curtains

6. Mahogany dining table

7. Lace table runner 8. Walnut buffet
1 2 1 3 4 5 6,7 8 9
9. Mahogany bench

Dining Furniture & Furnishings

Living Room Floor Plan

1. Tufted velvet couch and loveseat, camel colored

2. Mahogany double layer coffee table

3. Mahogany carved side table

4. Champagne gold standing room lights

5. Walnut bookshelf

6. Cream suede bench

7. Light filtering sheer curtains

8. Mahogany electric fireplace

9. Textured Pile Chocolate Brown Area Rug

10. Wall sconces 11. Wall art 12. Patterned wood floor paneling 13. Cream colored paint
1 1 2 3 4 4 6 8 9 10 7 7 5 13 14
14. Accent blue floral wallpaper
Living Room Furniture & Furnishings

Turn static files into dynamic content formats.

Create a flipbook
Issuu converts static files into: digital portfolios, online yearbooks, online catalogs, digital photo albums and more. Sign up and create your flipbook.