Beachfront Home lighting

Page 1

Primary bed & bath suite : lighting

Lexis Kelly

Principles of Interior Design

CClient profile

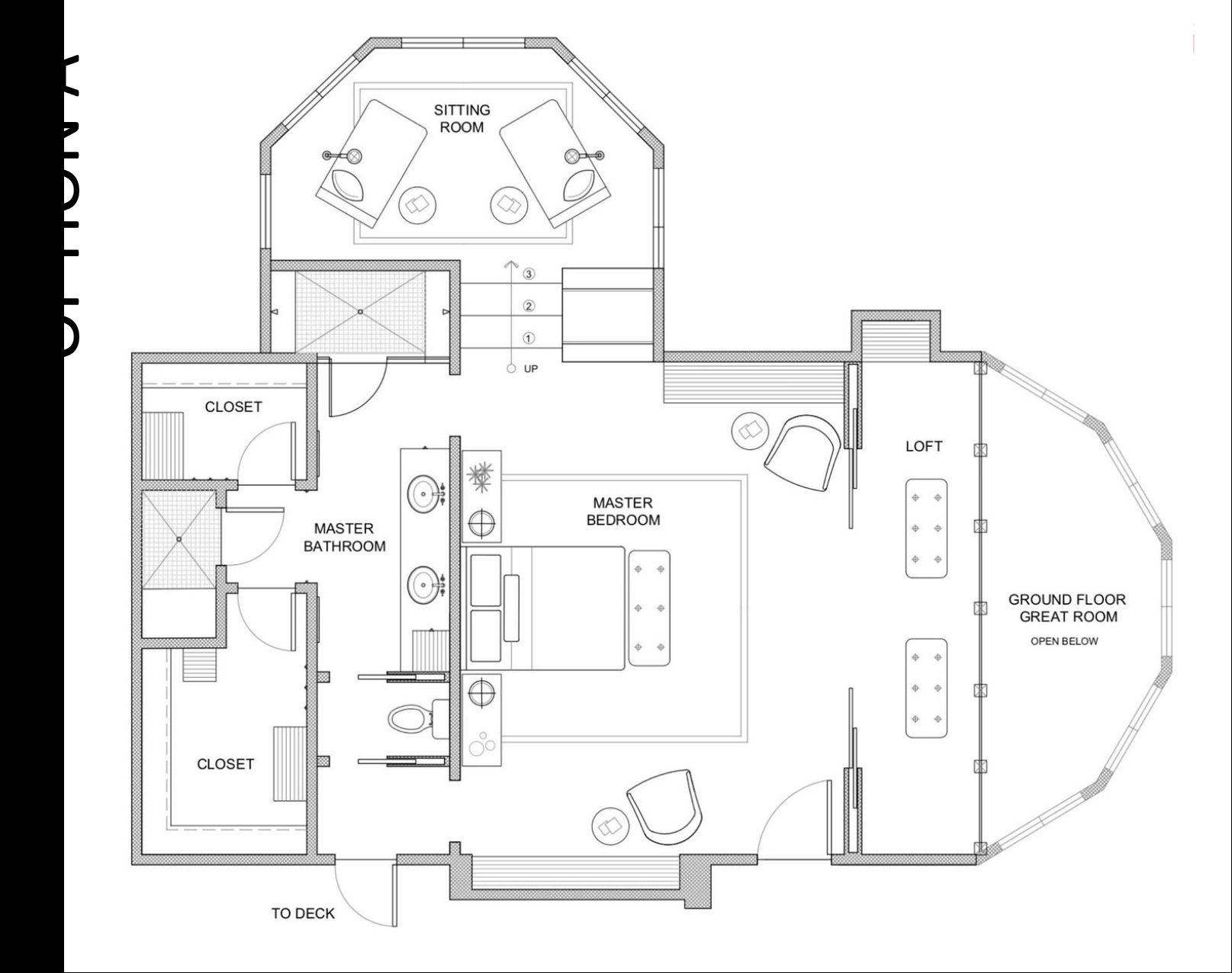
ameron and Madison Pierce are a married, childfree couple in their late 20s that have just moved to Virginia Beach, VA. Being new to the coast, they would like to give their primary bedroom and bathroom a clean and comfortable theme to accentuate a new beginning, while still maintaining a youthful but modern approach. The couple live in a beach-front bungalow style home that has access to lots of natural light and fresh ocean breezes, and would like those features to be highlighted.

Floor plan: Option A

1.Bristol Wood Bead

flush mount light

2.Dimming Flush mounted sconce(s)

3.Remi Natural Linen table lamps

4.Modern Minimalist LED Ceiling lamp

4.* 1. 2.
* * * * *
3.

Primary bedroom lighting

1. 4 - Light Dimmable Vanity Light
2. ModPLUS Round LED Flushmount
3.Flushmount LED Ceiling Light
1. 1. 2. 3. 3. 1. 2.
1.Wooden Furniture Floor Lamp Lighting 2.flush mounted sconce
1. 2.
Sitting room

Turn static files into dynamic content formats.

Create a flipbook
Issuu converts static files into: digital portfolios, online yearbooks, online catalogs, digital photo albums and more. Sign up and create your flipbook.
Beachfront Home lighting by Lexis Kelly - Issuu