Shani Walfish Portfolio

Page 1

SHANI WALFISH Creative Portfolio Interior Designer

About Me SKILLS

Interior design has always been a passion of mine. Although I enjoy all aspects of interior design, space planning was the part that drew me to this field. The quote on the following page encompasses what pulls me to interior design. I love to create a space that is useful, practical as well as beautiful.

AutoCAD

Microsoft Office

EDUCATION

Design Alive Interior Design Course -

Learnt skills in space planning, design and AutoCAD. Currently learning REVIT

REFERENCES

Contact for references

Table of Contents

C U S T O M H O M E - 1 K
M
L A W O F
C
7 K A R A O
I T C H E N R E M O D E L 9
A S T E R B E D R O O M R E M O D E L - 1 3
F I
E - 1
K E C A F E 2 3
“If you want a golden rule that will fit everything, this is it: Have nothing in your houses that you do not know to be useful or believe to be beautiful.” – William Morris

Custom Home

The custom home was designed for a family that wants their home to be welcoming, happy, and calm. The design, as well as the space planning, was created with this in mind. Each room was designed with the purpose of creating a calm and inviting feeling. In addition, the ability to host guests was at the forefront when creating this home.

Mood Board

1 - D E S I G N S B Y S H A N I
D E S I G N S B Y S H A N I - 2 Floor
Plans
RCP and Electrical Plans 3 - D E S I G N S B Y S H A N I

Section Elevations

D E S I G N S B Y S H A N I - 4
Kitchen Cabinets, Finishes, and Appliances Cabinet Choice Cabinet Colors Butcher block Counter top for Island Countertop Backsplash Meat Oven Dairy Induction Cooktop Dairy O and Microwave Built -in Fridge and Freezer Dishwasher Range Hood 5 - D E S I G N S B Y S H A N I
Kitchen
D E S I G N S B Y S H A N I - 6
Elevations
Master Bathroom Double Vanity Toilet Bathtub Shower Faucet Toilet Flush Wall Tile Floor Tile 7 D E S I G N S B Y S H A N I
CouchSet AreaRug ReigateSideChairB ReigateSideChairA ReigateLiving RoomOttoman Samples and Sketches WoodFlooringfor House 92" 128"Extendable DiningTable DiningRoomChairs Lighting DiningandLiving RoomPaint CubeStorage Dining Room Samples Living Room Samples Lighting RangeHood D E S I G N S B Y S H A N I - 8

Kitchen Remodel

The kitchen remodel was a project done for a fellow designer. The client has specific appliances that were maintained in this design. Using the existing appliances, a new design and floor plan was created to optimize storage and givethekitchenafreshlook.

F u r n i s h i n g S e l e c t i o n s

Cabinet Style

Upper Cabinet Color

Countertop and Backsplash

Lower Cabinet Color

Handle Faucet

9 D E S I G N S B Y S H A N I
D E S I G N S B Y S H A N I - 1 0 Floor Plan

Elevations

1 1 D E S I G N S B Y S H A N I
D E S I G N S B Y S H A N I - 1 2
Elevations

Master Bedroom

This bedroom was designed for the parents of six kids, four of whom live at home. The space was designated as a space to find reprieve from the busyness of the home. We utilized relaxing colors for the busy parents to refresh themselves

o o d B o a r d

Calm

Rejuvinating Peaceful

1 3 - D E S I G N S B Y S H A N I
M

Hand Renderered Floor Plan

D E S I G N S B Y S H A N I - 1 4
1 5 - D E S I G N S B Y S H A N I
Furniture Sample Board
D E S I G N S B Y S H A N I - 1 6
FF&E and Sketches

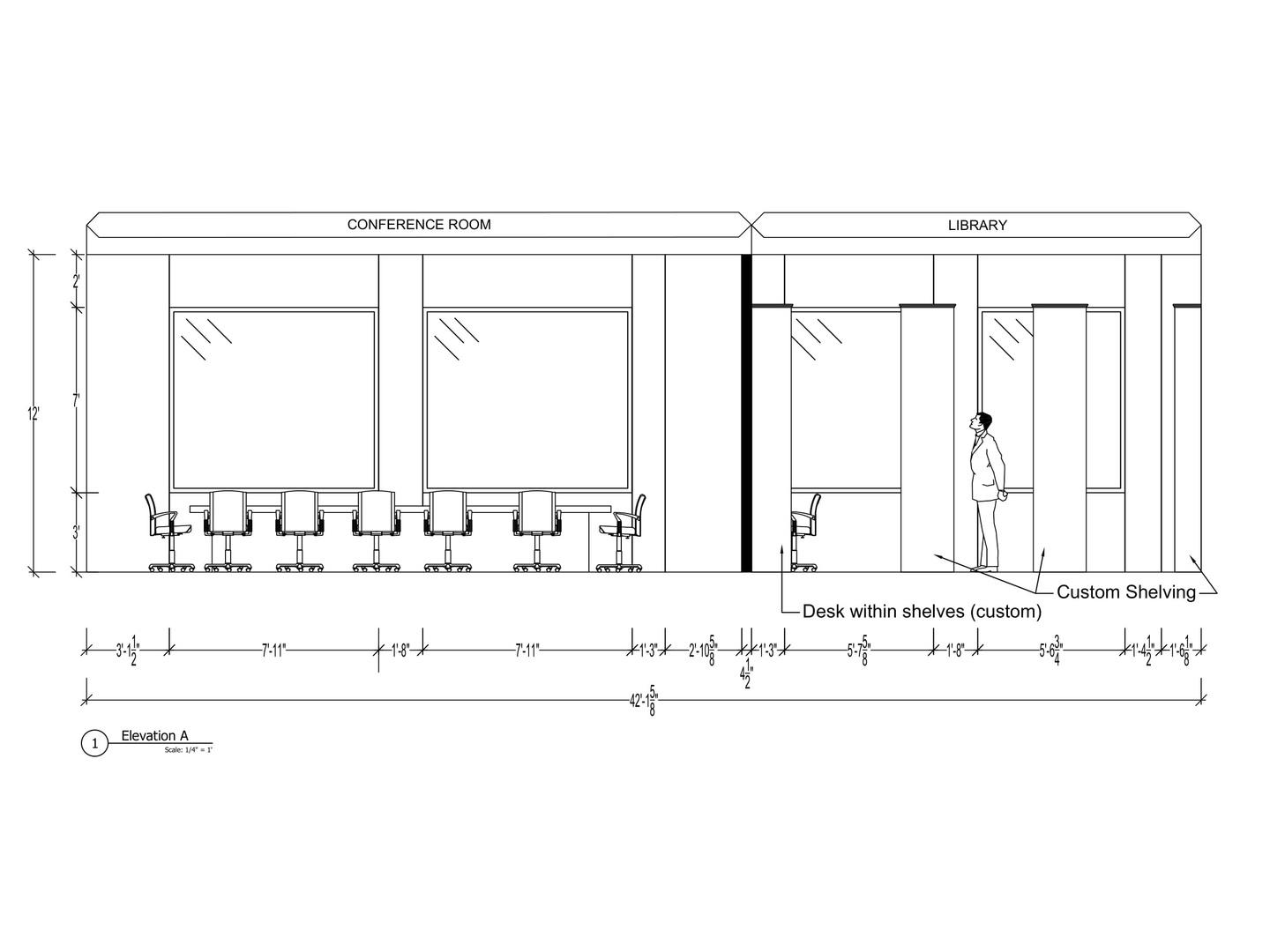
Law Office

The law office was designed with the intent to impress. The client wanted to be sure that anyone who walks in will feel the success and wealth of the firm. We used traditional design and décor to emphasize the power and successofthelawyers.

CONCEPTBOARD

1 7 - D E S I G N S B Y S H A N I
D E S I G N S B Y S H A N I - 1 8 Floor Plan
1 9 - D E S I G N S B Y S H A N I
LibraryShelving ReceptionDesk Design CustomReception Desk LobbySeating LibrarySeating Receptionist Seating Lighting Wallpaperfor Recption CarpetforAll Rooms D E S I G N S B Y S H A N I - 2 0 Reception Sample Board
2 1 - D E S I G N S B Y S H A N I
Elevations
Break Room Elevations and Sample Board Countertopsand Tabletop BreakRoom Flooring WallDécor CabinetChoice TableBase BreakRoom Seating BathroomVanity BathroomTile Toilet D E S I G N S B Y S H A N I - 2 2

Karaoke Café

The Karaoke Café is a unique project. The Café is designed with the intent of a cozy place to sing and hear live music. With a stage in the corner, as well as private Karaoke rooms, the patrons can enjoy live music, or choose to sing privately. The design is intended for a kosher crowd with thoughts of Kol Isha in mind.

M o o d B o a r d

2 3 - D E S I G N S B Y S H A N I
D E S I G N S B Y S H A N I - 2 4 Floor Plan
Stage and Karaoke Room 15 16 17 18 1920 23 24 26 28 29 30 31 21 22 25 27 2 5 - D E S I G N S B Y S H A N I Sketches

Elevations

D E S I G N S B Y S H A N I - 2 6
LET'S WORK TOGETHER shani.walfish@gmail.com 347-551-3592

Turn static files into dynamic content formats.

Create a flipbook
Issuu converts static files into: digital portfolios, online yearbooks, online catalogs, digital photo albums and more. Sign up and create your flipbook.
Shani Walfish Portfolio by Design Alive LTD - Issuu