

INTERIOR DESIGN
Aliza Lewis
TABLEOFCONTENTS

I ENTERED THE INTERIOR DESIGN FIELD BECAUSE I HAVE ALWAYS HAD A PASSION FOR CREATIVITY AND ITS EXPRESSION. MY STRENGTH AS A DESIGNER IS THE ABILITY TO FOCUS ON THE DETAILS OF A PROJECT WHILE STILL KEEPING MY EYE ON THE BIG PICTURE.
I WOULD SAY THAT MY DESIGN FOCUS IS ON CREATING RUSTIC AND COMFORTABLE SPACES, BUT I AM A DESIGNER THAT CAN WEAR MANY HATS. I HAVE A BACHELOR’S DEGREE IN MARKETING AND MANAGEMENT WHICH I FEEL BRINGS A UNIQUE SET OF SKILLS AND CREATIVITY TO THE TABLE.
EDUCATION
EDUCATION:
DESIGN ALIVE: 2023-2024
STUDENT SPOTLIGHT AWARD
TOURO COLLEGE: B.S. IN MARKETING AND MANAGMENT: 2018-2021
DEAN’S LIST RECIPIENT
DESIGN&COMPUTERSKILLS
DESIGN SKILLS:
CONSTRUCTION
DOCUMENTION SETS
ELECTRICAL, LIGHTING, & RCP PLANS
BLOCK/BUBBLE
DIAGRAMS
CONCEPT BOARDS
SAMPLE BOARDS
SCHEDULES & FF&E
SCHEMATIC DESIGN
SPACE PLANNING
DESIGN SOFTWARE: AUTOCAD
REVIT
COMPUTER SKILLS: CANVA
CONSTANT CONTACT
EVENTBRITE
GOOGLE MY BUSINESS
HELIUM 10
HOOTSUITE
MAILERLITE
MICROSOFT EXCEL
MICROSOFT POWERPOINT
MICROSOFT WORD
SLACK
TRELLO
QUICKBOOKS
ZAPIER
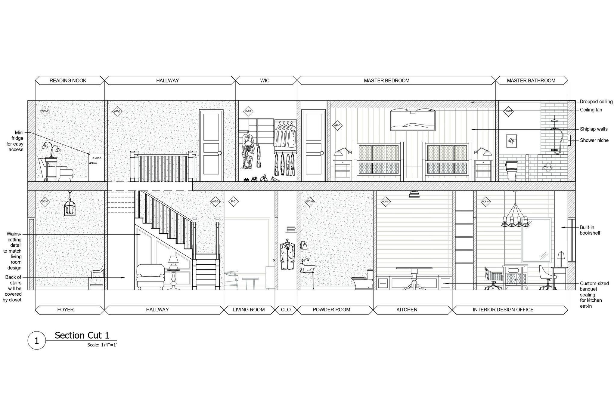
CUSTOM HOME
THIS CUSTOM HOME HAS A MIX OF ECLECTIC AND FARMHOUSE STYLE PIECES. THE CLIENT WANTED TO CREATE A SPACE THAT IS BOTH MATURE AND COZY THROUGH THE USE OF MANY SOFAS AND ARMCHAIRS; THIS LOOK WAS ABLE TO BE ACHIEVED. THE POPS OF COLOR AND FLORAL DESIGN REALLY SHOWCASED THE CLIENT’S UNIQUE TASTE. THERE WERE MANY COMMON THEMES SEEN THROUGHOUT THE HOUSE THAT HELPED TIE THE WHOLE DESIGN TOGETHER AND MAKE THE SPACE COHESIVE.









FLOORFINISHESPLANS















Girl’sVanity:
This single-sink vanity offers counterspace as well as plenty of drawers, perfect for a teenage girl’s bathroom.
AccentTable:
This yellow accent table helps tie the colors together in the living room. It also has a rattan detail on the top, which is seen throughout the house This piece helps give the room an eclectic look.

InteriorDesign LightFixture:
This blue light fixture for the interior design office helps to tie together the other blue colors in the room.

Staircase:
This staircase has wainscotting detail in the front that matches the wainscotting wall detail in the living room. It brings cohesion to the space.
































DESIGNSELECTIONS




LIVING ROOM













INTERIOR DESIGN OFFICE





















































BOY’S BEDROOM
BOY’S W.C.
GIRL’S BEDROOM
LAW OFFICE
THIS MODERN LAW OFFICE IN ATLANTA, GEORGIA PERFECTLY ENCAPSULATES THE FEEL OF AN UPSCALE OFFICE IN CORPORATE AMERICA. THE MUTED GREY WALLS COMBINED WITH THE HERRINGBONE WOODEN FLOOR HELPS CREATE A CALMING WORK ENVIRONMENT THAT HELPS INCREASE WORK PRODUCTIVITY. THE POPS OF COLOR THROUGHOUT THE OFFICE CREATE SOME TEXTURE AND A LITTLE WHIMSY. IT’S THE PERFECT PLACE TO MEET WITH CLIENTS OR WORK ON A COMPLICATED LAW BRIEF.





ConceptBoard
Modern. Organized. Comfortable.
PRESTON
& ASSOCIATES ATTORNEY LAW

FLOORPLAN&FURNITUREPLAN





RECEPTIONPLANS,SKETCHES, &DESIGNSELECTIONS









ReceptonDesk
The reception desk has a modern look with a front




BarcelonaTable
Using the Barcelona Table in one of the Principals’ Office will help draw a connection to the van der Rohe themed Reception Area













RECEPTION WAITING AREA







PRINCIPAL OFFICE










Finishes Schedule







KITCHEN REMODEL
ENTER A SPACIOUS KITCHEN WITH ENOUGH STORAGE TO SATISFY ALL YOUR NEEDS. THIS KITCHEN OFFERS MATTE EURO-STYLE CABINETS, UPSCALE APPLIANCES, AND A LARGE WORK AREA. THIS REMODEL HAS ENOUGH SPACE FOR ALL OF THE CLIENT’S NEEDS AS WELL AS CLEAR DIVISIONS FOR MEAT, DAIRY, AND PAREVE. MODERN AND FUNCTIONALITY MEET IN THIS GORGEOUS REMODEL.























RUSTIC CAFE MOOD BOARD
WALK INTO THIS CAFE AND INSTANTLY FEEL THE RUSTIC AND COZY VIBE. THE SIMPLE AND ORGANIC MENU PERFECTLY OFFSETS WITH THE NAUTRAL AND SOLID WOODEN FURNITURE. THE CLIENT WANTED THE SPACE TO FEEL INSTANTLY WARM AND REMINISCENT OF A SAN FRANCISCO SOURDOUGH BAKERY. THIS LOOK WAS ACHIEVED THROUGH THE USE OF SOURDOUGH IMAGERY AND ONEOF-A-KIND FURNITURE PIECES. WITH A CAFE THAT ALLOWS CUSTOM ORDERS AND RUSTIC FURNITURE, YOU FEEL RIGHT AT HOME.









BLOCKDIAGRAM,FLOORPLAN, &FURNITUREPLAN













LogoSign
Thiswouldbe displayedabovethe door.

CheckoutArea/CoffeeStation
Acheckoutarea/coffee stationwherepeoplecan ordertheircustombagels andpersonalizedcoffees.
DESIGNSELECTIONS











STARTER STATION CHECKOUT AREA/COFFEE STATION






TABLETOPS






BATHROOM EAT-IN AREA
BEDROOM PROJECT
THE REDESIGN OF THIS BEDROOM IS MEANT TO CONVEY FEELINGS OF COMFORT, ELEGANCE, AND CALM THROUGH THE REPETITIVE USE OF A SOFT COLOR PALETTE. THE PRIMARY COLORS OF THE SPACE ARE PINK, GREY, AND WHITE, WITH AN EMPHASIS ON MARBLE DESIGN. THE NEUTRAL COLOR SCHEME HELPS CREATE A HARMONY WITHIN THE ROOM. THE REDESIGN WAS MEANT TO MAXIMIZE THE SPACE WHILE STILL MAINTAINING AN AIRY FEEL. THE USE OF A PULLUP STORAGE BED AS WELL AS A VANITY WITH DRAWERS HELPED CREATE AN OPEN AND VISUALLY APPEALING SPACE. THE REPETITIVE USE OF STRAIGHTLINED FURNITURE IS A GREAT CONTRAST TO THE PLUSH READING CHAIR AND QUEEN SIZED BED.
Mood Board
Comfortable.

















