Skip to main content

PORTFOLIO│SELECTED WORKS│DEEPAM MEHTA

Page 1


I AM

08.05.2002

year 05 b.arch malaviya national institute of technology, jaipur deepam mehta

address chokhawala apt., n/r kakadia apt., ghod dod road, athwalines, surat-395007

phone instagram linkedin email +919512533919 @deepammehta deepam-mehta77b968214

2020uar1060 @rapt.harbour @mnit.ac.in

STATEMENT OF PURPOSE

As a fifth-year student in architecture, I am passionate about learning through visual means and my love for art, literature, and the world of architecture. I am fascinated by the complexities and mysteriesofdesignandthevisionaryabilitiesofarchitects.

My academic journey has been a journey of self-discovery, refining my skills in asking thoughtprovoking questions and exploring the world around me. I find inspiration in subtle occurrences like rain drops, the intricacies of art, and human behaviour. Architecture serves as the medium through whichweexpressouremotionsandthoughts,motivatingmetodelvedeeperintothefield.

As I progress in my academic pursuits, I have come to embrace the value of humility and the vast world of architecture. I am actively seeking opportunities to learn from experienced mentors and esteemed architectural firms, with the objective of continuing my education through practice and creating spaces that go beyond mere structures. As an aspiring architect, I eagerly anticipate makingalong-lastingimpactwhilenurturingmyenduringinterests.

In addition to my academic journey, I have gained practical experience in my father's pharmaceutical manufacturing unit, shaping me into an individual who aspires to be more than just a small part of the vast industrial machinery. My insights and skills will prove to be an asset to my future endeavours, and I intend to develop as an apprentice and prove invaluable as a resourceasanacademicoraprofessional.

OVERVIEW

/selected works 2020-2023

interpretation center

SANGANER

railway station+parking facility

heritage resort

UTTARNOOK

backpackers’ hostel

product design

projects, art, photography, etc

JALEB CHOWK
FATEHGARH NAYLA

interpretation center

course: architectural design iv typology: interpretation center/museum location: jaleb chowk, jaipur collaborator: aryan shonak

objective: nestled in the vibrant heart of jaipur lies the storied jaleb chowk, an emblem of cultural richness now quietly weathered by time. in response, this architectural endeavour was born, an exploration of the site's history and existing conditions. the assignment? to breathe vitality back into this neglected space, crafting an interpretation center that not only honours the surrounding structures but also becomes an integral part of the city's narrative. a harmonious duet of modern architecture and the timeless grace of rajput aesthetics is envisioned, a poetic revival of jaleb chowk into a cultural haven. Two built structures:

•exhibitory & workshop spaces

• upwards of 250capacityauditorium,restaurant&administrative spaces

in jaipur's heart, where tales softly hum, jaleb chowk echoes stories, ancient drum. nestled near the cradle of history's hand, a modern refuge, where old tales withstand.

over jantar mantar's cosmic ballet, city palace's echoes, where kings held sway. the royal school, whispers of yore, each a gem the modern center restores.

its facade, a ripple in time's sweet trance, details dance, a visual romance. a magnetic pull in its every line, inviting eyes to a journey divine.

jaleb chowk, a canvas reborn, where past and present gently adorn. in the arms of history's tender kiss, a timeless welcome, pure bliss.

SITE:JALEB CHOWK

EVOLUTION

existing: jaleb chowk served as a gateway courtyard for the amer and later the city palace but is not reduced to a trash yard and haphazardunpaidparking.

programme: stacking and splitting the spaces accordingly to create a divide within the complex, dividing the main interpretation center&theauditorium

massing&analysis: analyzing what exists and thus developing abstract massing in the farther part of the site so as to increase visual andphysicalconnectionstothevicinity.

connection and tie-in: identifying and removing the visual barriers to “the gate” to allow pedestrian and visual access to the same. Maintaining the line of sight along the centralaxisofthesite.

terraform: creating the conjunction of public spaces and activity in the vicinity to create a lively space and integrating all the physical interventionsofthestructures.

HAWA MAHAL
THE PALACE SCHOOL
CITY PALACE
TOWN HALL
CITY PALACEJANTAR MANTAR
HAWA MAHAL ROAD
PALACE

DESIGN & DOCUMENTATION

muse: the facade captivates with its intricate translucency, mimicking the delicate dance of ripples on water, designed to create a visual poetry that harmonizes with the fluidity of nature.

emphasis: the entrance leads the visitors into a space of exhilarating experiences of a built form where the central clear axis emphasizes the gate and the built structures flung on eithersidedirectsyourvisiondownthe axisto thesamegate.

rhythm: fascinating example of repetition in the street facade that stops you in your tracks, forcing you to let in the beauty that welcomesyouintothebuilding.

unity of pattern: the modern reinterpretation of traditional jaalis through perforated metal is a visual marvel, infusing the space with a contemporary aesthetic. the patterns not only adorn the facade but also choreograph the layouts, fostering a harmonious and visuallyengagingenvironment.

lineofsight
citypalace jantarmantar

1.wood workshop

2.storage

3.painting&conservation

workshop

4.block printing workshop

5.blue pottery workshop

6.entry/exit

workshops

exhibition spaces

auditorium & related

spaces

toilets

sta access & spaces

café &related spaces

1.entry/exit

2.children’s exhibit

3.entrance foyer

4.themed galleries

5.artefact conservation exhibit

6.basement entry/exit

7.a/v room

8.restaurant, bar &related spaces

9. pavilions

10. landscaped park

11. horse stable(existing)

12. parking

workshops

exhibition spaces

auditorium & related spaces

toilets

sta access & spaces

café &related spaces

the entrance ramp gracefully descends, a subtle design element not only oers accessibility but also transforms the entryway into an immersive experience,invitingexplorationwitheverystep.

the wavy parametric jigsaw roof brilliantly lights up the pavilion's buer spaces, creating a captivating interplayofshadowsandradiance.

1.temporary exhibit

2.storage

3.permanent art exhibit

4.grand installation hall

5.history & heritage exhibit

6.admin floor

workshops

exhibition spaces

auditorium & related spaces

toilets

sta access & spaces

café &related spaces

the facade, adorned with elegant lights, transforms into a nocturnal spectacle, oering a feast for visitors. as night falls, the play of light adds a touch ofenchantmenttothearchitecturalcanvas.

the sample mockup render oers a preview, greeting visitors with a dynamic interplay of shadows & textures, promising an immersive architecturalexperience.

1.thematic diorama room

2.storage

3.auditorium

4.waiting room

5.vip room

6.storage

7.backstage

8.green room

9.control room

workshops

exhibition spaces

auditorium & related

spaces

toilets

sta access & spaces

café &related spaces

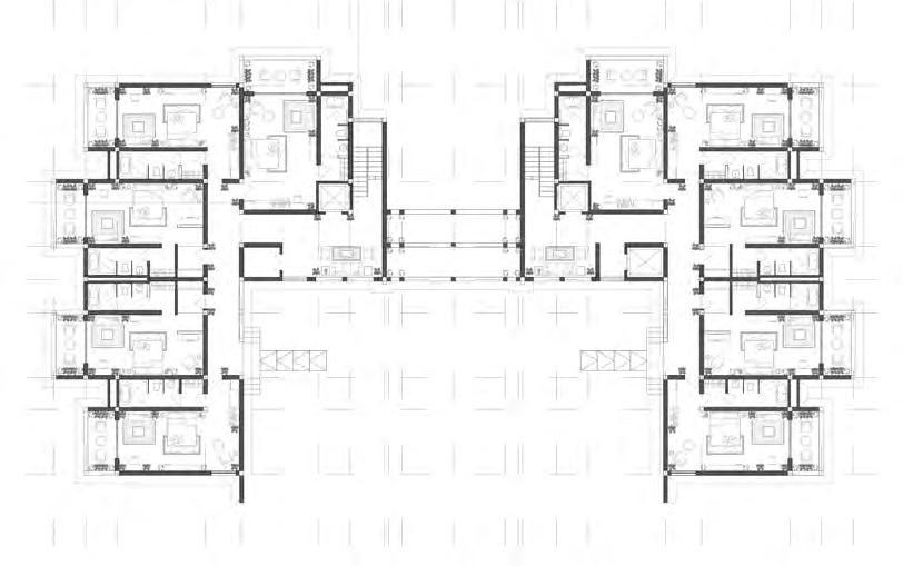
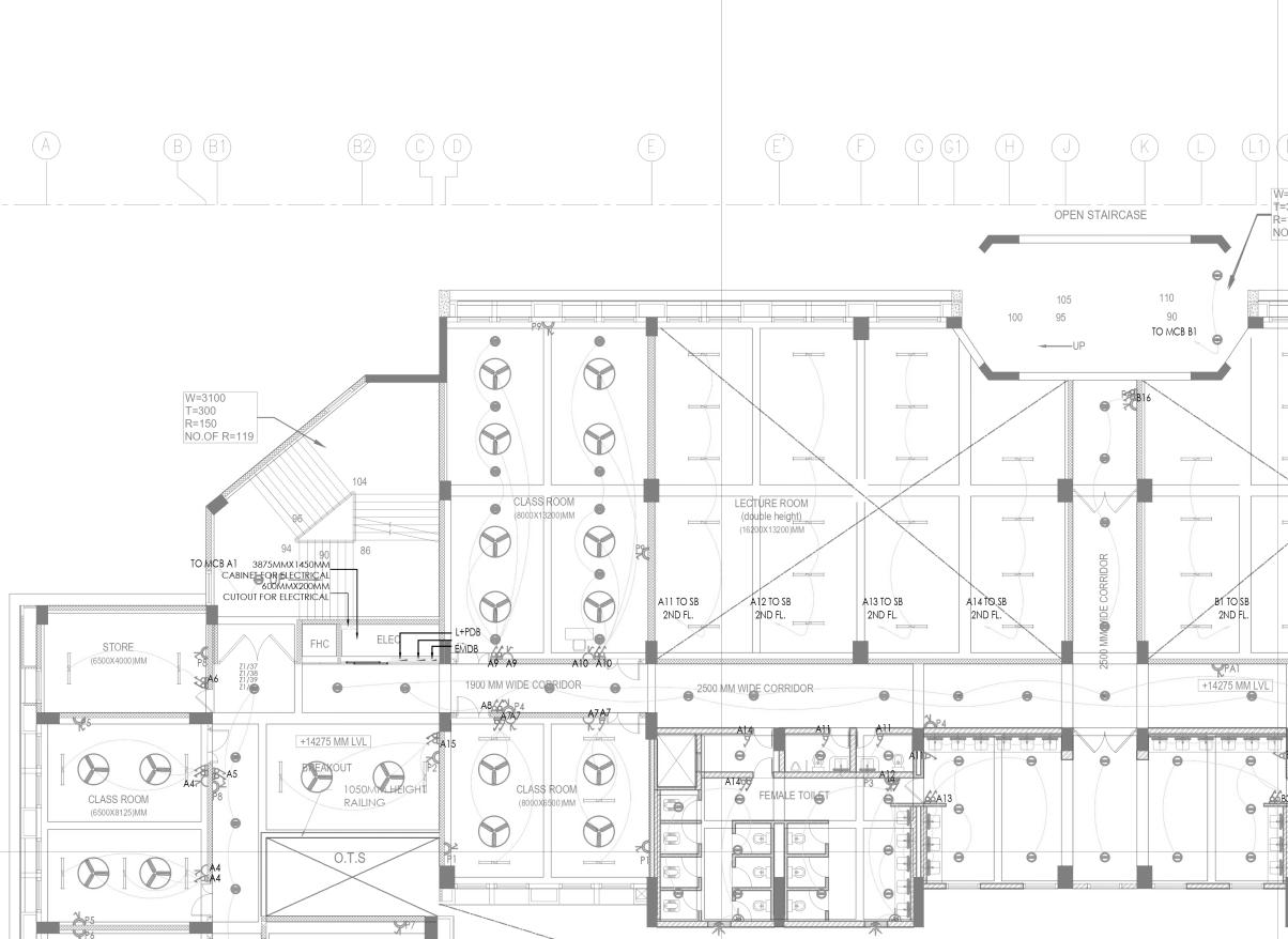
railway station + parking facility

course: architectural design vi(in-progress) typology: railway station & parking facility location: jaipur

objective: situated amid urban sprawl, sanganer, a sub division of jaipur emerges as a promising area poised for bustling activity. fueled by the city's ongoing expansion and the advent of housing projects in sitapura and pratap nagar, sanganer stands at the gates of transformative growth. the undertaking at hand entails the redevelopment of the current station, a facility currently falling short of its potential. this ambitious project mandates a comprehensive on-site study and an exploration of diverse literature case studies. as we navigate this dynamic landscape, our goal is to reimagine the station, transforming it into a vibrant and functional nexus that harmonizes with sanganer's evolving identity.

in sanganer's heart, where stories unfold, a railway station, dreams and tales retold. city's pulse beats, with each footfall's sound, a metropolis rises, aspirations abound.

amidst the hustle, a personal embrace, of hurried steps and echoes of grace. a journey's beginning, a tearful goodbye, in the station's rhythm, lives amplify.

in the design, the sand dunes inspire, monolithic columns, stories entire. a y-shaped ode to journeys untold, a symphony of pasts and futures to behold.

sanganer, a rising city's poetic spree, in architectural dreams, it finds its key.

SITE CONTEXT

location:sanganer, jaipur, rajasthan coordinates: 26.81436, 75.77313

area: 70430 sq. m.

transit:

•jpr. international airport(7.2km)

•gandhinagar railway station(9km)

•jaipur junction railway station(13.1km)

•metro station(proposed-2.2km)

space allocation diagram

GANDHINAGAR RS
THE PALACE SCHOOL SANGANER RAILWAY STATION
JAGATPURA RS
JPR. INTER. AIRPORT
DURGAPURA RS

PROPOSED SITE PLAN

1.railway station

2.departure

3.arrival

4.mlcp

5.parking facility

6.public park

7.sta accomodation

8.parcel facility

•ecient climate control: etfe roofing balancessunlightandcomfort.

•lightweight durability: etfe is light, durable,idealforhotclimates.

•daylight optimization: transparent etfe minimizes reliance on artificial lighting.

•uv-resistant sustainability: etfe ensures sustained performance, lowmaintenance,andsustainability.

perforated metal sheets

•durable aesthetics: durable metal sheets enhance structure longevity andvisualappeal.

•daylight integration: perforations allow controlled natural light, reducing reliance on artificial lighting.

•sustainable shielding: metal cladding provides a sustainable and lowmaintenance protective barrier.

low u-value glass blocks

•insulating eciency: low u-value glass block cladding minimizes heat transfer forenergyeciency.

•durably translucent: durable glass blocks maintain translucency, ensuring long-lastingaestheticappeal.

•natural illumination: translucent properties allow diused natural light, reducingtheneedforartificiallighting.

departure arrival admin

1.ticketing

2.accounts

3.personal relations/passenger help

4.cctv & security

5.station master, director, chi and cbs& tele oces

6.cloak room

7.medbay & first aid stations

8.engineers’ and tool rooms

elevators & stairwells

9. hotel reception & housekeeping

washrooms

1.toilets

2.showers

3.baby feeding rooms

ROOFTRUSS HOTELFLOOR

retail

1.shops

2.atm

services

1.hvac

2.electricals

3.csv

eateries & rec.

1.restaurants

2.cafes

3.event room

4.arcade/game room

waiting area

1.waiting area

2.lounges

3.dorm

4.retiring room

hotel

1.hotel rooms

2.balcony lounge

3.game room

1.departure halls

2.arrival halls

3.escalators, travelators, staircases

4.luggage belt

5.stairwells

6.cctv & security

7.public relations/helpdesk

8.ticketing counters

9.cbs & telecommunication

10.station director’s

11.station inspector’s

12.station master’s 13.service room

(electrical, fire safety, hvac, csv)

14.p.r. & cctv

15.medbay&emerg ency response

16.engineers’ room

17. tool room

18.baby feeding rooms

19. hotel reception 18

1.departure halls

2.arrival halls

3.escalators, travelators, staircases

4.luggage belt

5.stairwells

6.pharmacy & medbay

7.storage

8.ticketing counters

9.baby feeding rooms

10.retiring rooms

11.cloak room

12.rpf oce

13.service room (electrical, fire safety, hvac, csv)

14.p.r. & rpf

15.cloak room

16.male dorrms

17.accounts&records

18.baby feeding rooms

19. female dorms

5.stairwells

concourse lvl. 2 +12850

1.restaurant

2.hotel

3.reception

4.game room

5.stairwells 6.hosekeeping& storage

7.kitchen&counters

8.event hall

9.lounge & library

multi-level parking facility

2nd

east elevation

iii.fatehgarh nayla

FATEHGARH NAYLA

heritage resort

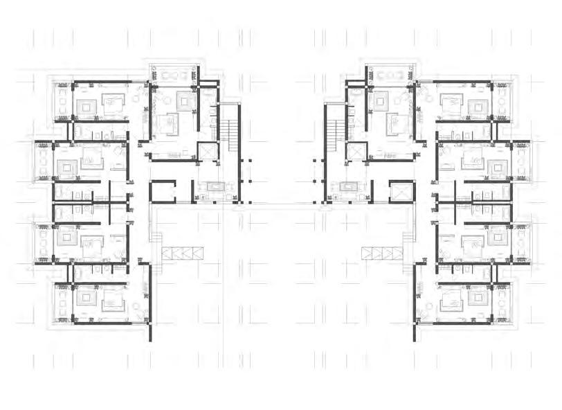
course: architectural design v typology: hotel/resort/adaptive reuse location: jaipur

objective: nestled on the outskirts of jaipur, the nayla haveli near the village of kanota, erected in 1875, stands as a captivating testament to a fusion of european and rajasthani(indo-saracenic) architectural influences. tasked with a compelling brief, our mission encompasses a thorough measured drawing and the formulation of a proposal centered on adaptive reuse. the vision is to transform this historical gem and its encompassing landscape into a boutique heritage resort. envisaged are 35 rooms and 10 cottages, accompanied by essential amenities such as a gym, café, restaurant, sauna, and entertainment spaces, creating a harmonious blend of historic charm and contemporary luxury.

in nayla’s whispers, history unfurls, a haveli, once forgotten, now swirls. eighteen seventy-five, where tales align, european grace, rajasthani design.

from ruins, a phoenix rises in bloom, boutique resort, opulence in the gloom. jaipur's hues weave vibrant threads, in every stone, the narrative spreads.

aravalli watches, silent and wise, as climbing creepers softly rise. past and present in sweet cohesion, nayla's haveli, a poetic vision.

SITE

location:nayla, jaipur, rajasthan area: 13600+9550=23150 sq. m.

bylaws:

•bar:0.6

•far:0.75

•ground coverage:20%

•setbacks:12m(front)&9m

•permissible height:15m

KANOTA VILLAGE NAYLA
NAYLA HAVELI (PHC)
NAYLA FORT
NAYLA KANOTA MARG

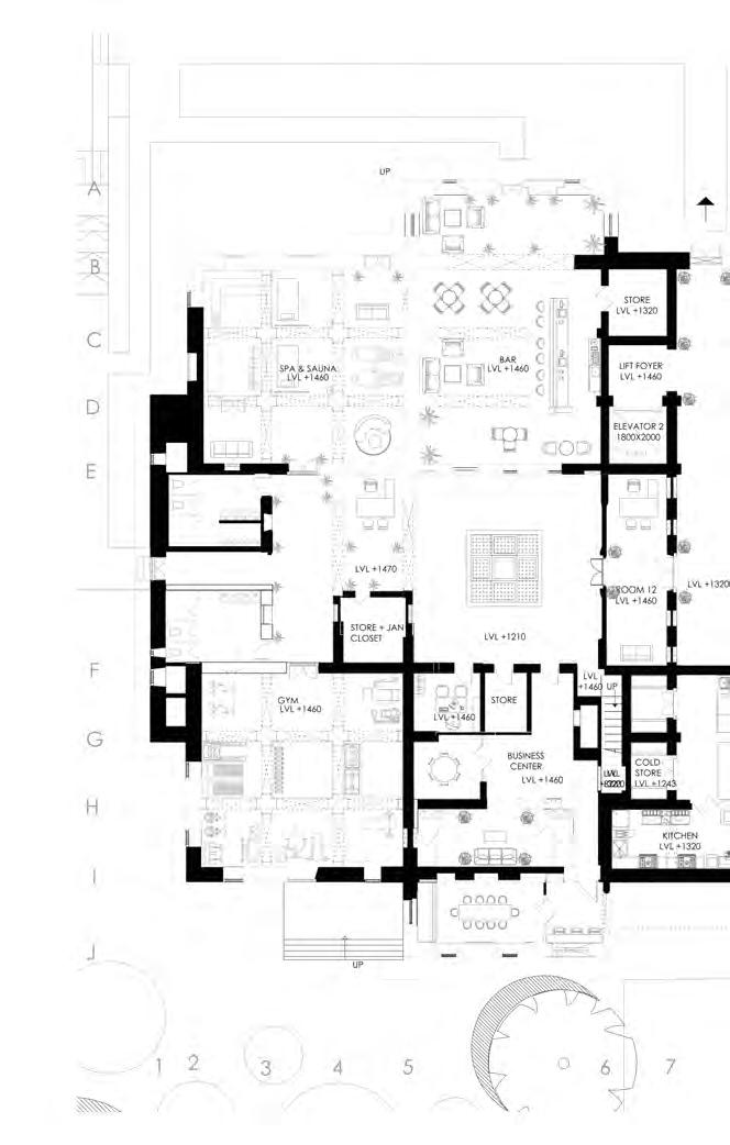
PROPOSED DESIGN

thehaveli'sinteriorsundergoa transformation, preserving its essence while greeting with open courtyards with fountains and public and semi-private recreational areas on the ground floor. this includes the addition of a boutique specialty restaurant and amenities such as a gym, spa,andmore.

first-floor rooms are transformed into opulent heritage suites featuring cozy sit-outs, balconies, breakout lounges, and game rooms. previouslyunusedspacescome to life with embellishments, including installations and mosaicflooring,addingatouch of elegance and character to thesurroundings.

the first-floor rooms are transformed into lavish heritage suites featuring cozy sit-outs, balconies, breakout lounges, and game rooms. previously unused spaces come to life with embellishments,

the upper floor, unobstructed to the sky, is dedicated to terrace gardens and serene spaces for meditation and yoga. it provides a vantage point for observing the enchanting clouds of jaipur engaged in conversation over the hills in thenorth.

the new hotel accommodation block, featuring the new standard rooms, aligns seamlessly with the haveli's transverse axis. embraced by a native, flowering tree, the built structure mirrors and harmonizes with the architectural essence of the haveli.

the new restaurant and banquet hall complex elegantly incorporates octagonal features from the perimeter wall, creating a juxtaposition with the indosaracenic architecture of the haveli. enriched by glass and marble elements, the interiors boast opulent european design, bathed in the glow of naturallightstreamingthrough theskylight.

the cottages deviate from traditional architecture but accentuate arches in a contemporary manner. chic and two-storied, each features a private jacuzzi pool and yard. thoughtfully spaced, the modules ensure ample privacy without compromising the visual harmony.

50 PROPOSED SITE PLAN

1.entrance

2.drop o and roundabout

3.parking

4.planters & water body

5.caddy parking

6.main building- naila haveli

7.gazebo

8.new building-accomodation

9.pool & poolside bar

10.changing rooms & lockers

11.way to cottages

12.court sports

13.service entry

14.banquet lawn

15.banquet & restaurant

16.lawn

17.existing perimeter wall

18.service area

19. electrical room

20.transformer room

21.antique luxury car display

22.security & maintenance sta

23.gm,deputies &other oces

24.lounges/standby rooms

25.toilets

26.laundry & storage

•new addition to the site

ground floor plan +1460

1.entry/exit

2.luggage room

3.toilets

4.fountain & planters

5.elevator foyer

6.bar storage

7.gym, spa & sauna reception

nayla haveli ground floor plan & elevations

8.manager’s oce

9.business center 10.conference room 11.computer room

12.loading bay 13.kitchen 14.storage 15.serving station

1.public

2.toilets

3.sta access

4.for guests

5.recreational

first floor plan +6190/6290

1.room type#1

2.room type#2

3.room type #3

4.bathroom+ closet

5.balcony

6.walk-in closet

7.toilet

8.bath

9.pantry 10.storage/house keeping

11.installation gallery

3.sta access

4.for guests 5.recreational

BALCONY-PERGOLA

accomodation block

ground floor +450

1.room type 1

2.room type 2

3.room type 3

4.service elevator

5.help desk

6.storage/housekeeping

7.breakout lounge

first floor +4100

1.room type 1

2.room type 2

3.room type 3

4.service elevator

5.breakout lounge

6.storage/housekeeping

7.breakout lounge

second floor +7750

1.room type 1

2.room type 2

3.room type 3

4.service elevator

5.breakout lounge

6.storage/housekeeping

7.breakout lounge

floor plan lvl.3800

mezzanine

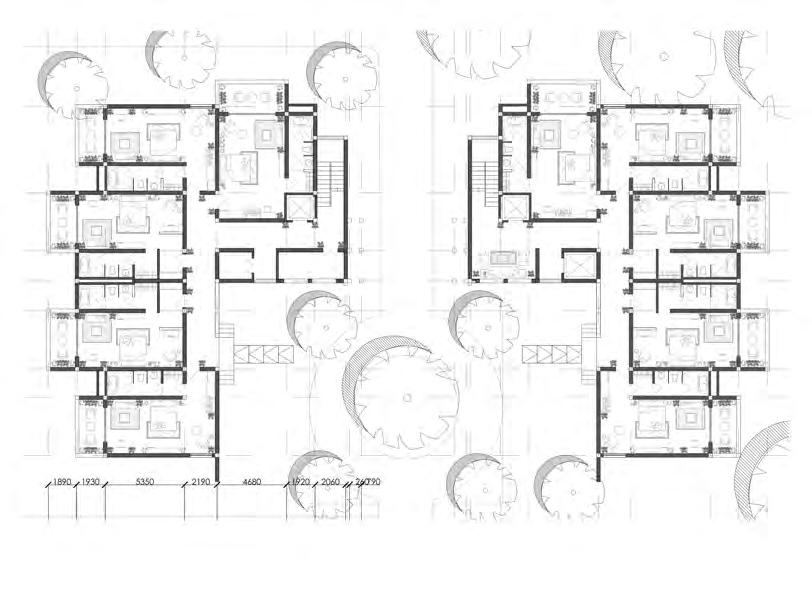
backpackers’ hostel

course: architectural design iv (minor design exercise) typology: hotel/resort/dorm/motel location: rishikesh

objective: to create an upscale backpackers' hostel in the hilly terrain of rishikesh along the ganges river, with a primary emphasis on oering a restful and comfortable lodging experience to alleviate the strains of travel. incorporate water features to establish a serene and balanced atmosphere while employing innovative design components to impart an unforgettable stay for guests. simultaneously, acquire an introduction to the principles of design, composition, spatial organization, and more, all aimed at serving the defined purpose.

amidst the hills, where ganga flows, a hostel dreamt, where weary guests find repose. on rishikesh's banks, with nature's sweet embrace, in harmony with gods, it finds its place.

in cabins, slightly triangular in grace, they rest, connecting earth to starry space. by bonfires, tales are spun by river's flow, as constellations twinkle, soft and low.

with reverence to the gods, they find their way, a sacred pause, in this divine ballet. beneath the stars, they sip hot soup so deep, by pool’s warmth, ganges whispers secrets to keep.

for in this haven, nature's song does play, ahostelnestledwheretheriver'swaterssway.

2.Exit

3.Parking

4.Admin, Housekeeping & other Sta Oces

5.Reception

6.Restaurant& Bar

7.Kitchen

8.Sta Quarter

9.Cabin for 2

10.Cabin for 6 (Bunk Beds) +2 Extra

11.Cabin for Family of 6 +2 Extra

12.Hot Spring Jacuzzi Pool

13.Bonfire Camps

14.Wildflower Planters

15.Service Entry

pool

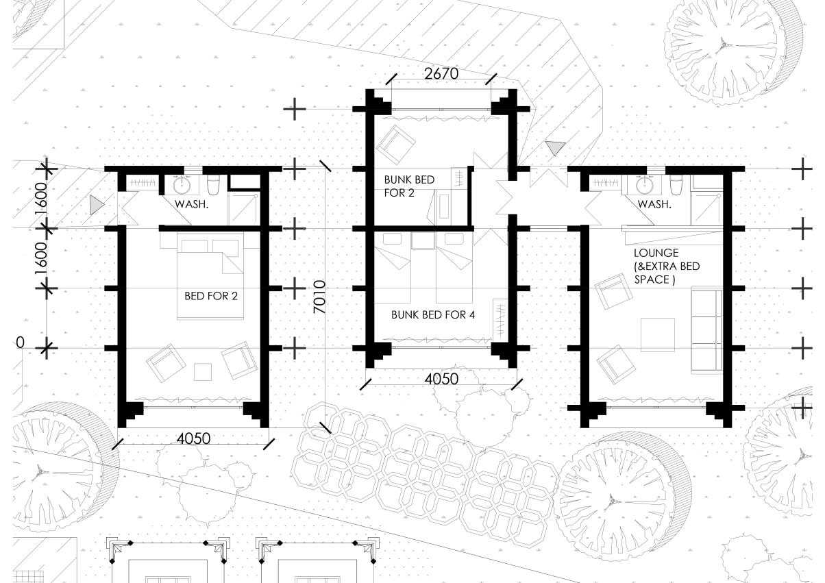
plan: family unit(4+extra)

plan: private unit(for 2) & dorm unit(6+extra)

section

axonometric

product design

project: industrial design tophy 2022, nasa india typology: biomimetic/data buoy/pollution equipment collaborator: ananya gupta

objective: create a purposeful product amalgamating cutting-edge technology with an artist's flair: a revolutionary buoy designed to address the algal bloom crisis. this innovative solution not only serves a functional purpose but is crafted with artistic sensibilities, aiming to make a profound impact on ecological challenges through a unique blend of form and function.

understanding need, relevant information, technology & integration, certain patterns to consider and application of the same into a coherent design that is a representation of a conversation, a dialogue with the artist and the product, a primary focus on mind mapping and getting the basic function right will help us find the best possible opportunities and explore dierent ways to solve them.

with the delicacy, she saw in her mother’s hands, pruning and arranging the flowers in her garden. recreated the nature through the rhythms of her past weaved every cay unique to its own as if made through the highs and lows, the darks and through the tides. turned into a beacon of light preserving the precious pearls within .

united with the strength of its brethren , it has set out on a goal

protecting the world from the crimson blooms of the sea and bring back the spirits of long lost shoal.

INITIAL SKETCHES & FORM EVOLUTION

problem response

what exactly is a red tide?

red tides, also known as harmful algal blooms (habs), occur when minuscule algae proliferate to elevated amounts and produceharmfultoxins which directly aects the biodiversity, also discolouring the water. karenia brevis, the red tide organism, is one of the most well-known.

mental map implications

•produce extremely hazardous toxins that can sicken or kill people and creatures.

•fish defiled with the algae and eaten by other organisms, including humans, canbedangeroustothem.

•algal blooms can also impact mariculture, or the farming of marine life.

•there have also been complaints of respiratory distress in humans due to redtide.

•algal blooms deprive submarine organisms of sunlight and oxygen and negatively impact a variety of species byproducingadeadzone.

farming & sewage

•nutrients promote and support the growth of algae and cyanobacteria. the eutrophication( nutrient enrichment) of aqueducts is consideredasamajorfactor. the causes and mechanism of red tide are complex, besides, currently there is none but “probable” conclusions about red blooms. to minimize the losses, an emergency solution is needed by establishing relationship between man & naturetopreventredblooms.

mitigation

•simple treatment options are not eective; multiple treatment steps are typically needed to remove algae toxins.

•using tertiary sewage treatment methods to remove phosphate and nitrate before discharging the euent intoriversandlakes.

•modified clay has been proved to be in-situ method to eectively mitigate harmfulalgalblooms.

modified clay treatment

clay mitigation involves spraying the surface of the water with a slurry of modified clay particles and seawater, and as the dense clay particles sink they combine with red tide cells. this process can kill the cells and also bury them in the sedimentontheseafloor.

how it works

modified clay is added via the addition port, manually by personnel or by specially equippeddrones.

electricitygeneration the permanent magnet moves up and down in the copper coil, creating changes in the flux. an induced current is generated which chargesthebatteryandsodothesolarcells. sensing&datacollection this product is also a device of research, sensing and collecting data periodically as per requirement, monitoring all the changes in the seawater and the data collected from all the buoys is sent over to a research station over satelliteinternet.

SURFACE CHARGE OF THE MODIFIED CLAY IS OPPOSITE TO THATOFTHEALGAE. SETTLEMENTS EFFICIENCY IS

MULTIFOLDS

sprayingofmodifiedclay

the mixing bin will be filled with seawater and clay mix, mixed into a slurry. the slurry is sent up with the help of the pump to the spray nozzle above the surface of the water.andasthedenseclayparticlessink they combine with red tide cells. this process can kill the cells and also bury theminthesedimentontheseafloor.

sectional drawing & materiality

“there, the ocean is one of the most important elements for the city's sustenance. the entire city and life there revolvesaroundtheseaand,ofcourse,my inspiration comes from it. and all of this influenced me as a citizen there, to protectit.“

bioplastic-pla is the chosen primary material for the product as is the world’s foremost 100 percent biobased and fully compostable polymer.

•structurallystableanddurable.

•highwaterresistance.

•easy to manufacture(can be 3d printedaswell).

•still fairly new and new research show how tweaking the nanostructure can resultinevenbetterresults.

storyboard

"semper fidelis" as a symbol of coming togethercanmarkthebeginningofavow tosafeguardthewell-beingofmarinelife.

this idea of unity and bringing down a revolution is rooted in the fact that such a change can not be brought by standalone product unlessthestrengthof numbers is harnessed the product pipeline is to deploy a vast number of these buoys near the coast, especially closer to where the threat to the biodiversity is the most. these network of buoys will be in constant contact with each other as well the research/control station via the satellite internet link for which the tentacles of this design acts as areceiverandthetransmitter.

anc-industrial des. jury pin-up
model furniture-1st place
model making-skyscraper
model making-final product

artworks

indian arch 2022-23-design team member
ia 22-23
moodi avatarist 2nd place
Mehta,

Turn static files into dynamic content formats.

Create a flipbook