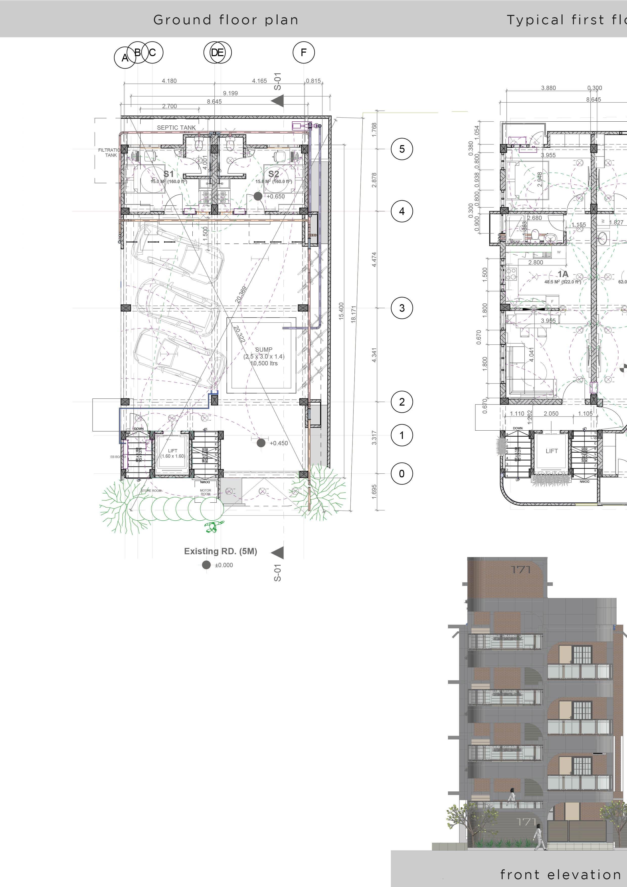
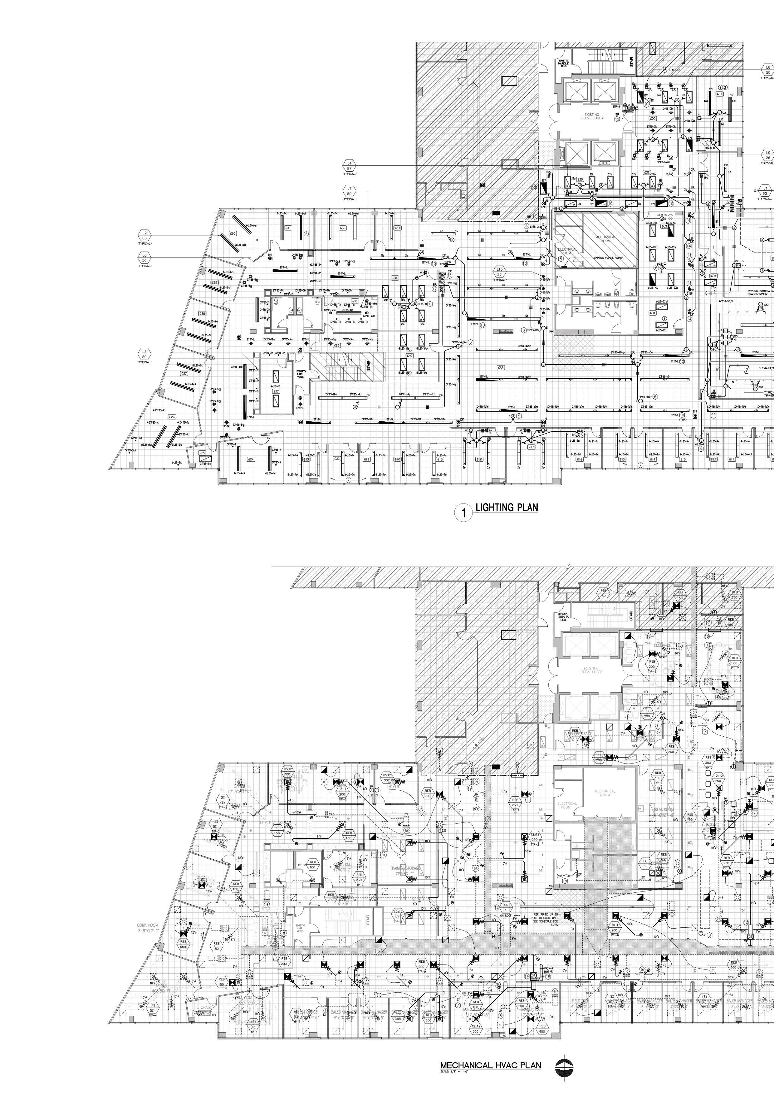
My portfolio consists of a selection of my professional and academic works from my Undergraduate degree at Manipal University in India and my Master's degree at the University of Waterloo focusing on sustainable practices. Through various professional opportunities, I have gained diverse exposure to construction systems and processes on a global scale, contributing to my broad knowledge in this field.