DESIGNING STRUCTURE AND FACADE SYSYTEM FOR STUDENT HOUSING IN THE CAMPUS

Page 1

DOCUMENTATION

1|Page
S7-PROGRAMMINGANDSIMULATION-C2-CONSTRUCTIONANDDIMENSIONING DesigningStructuralandFacadeSystemsforStudentHousing SEPTEMBER2023–APRIL2024
Preparedby:
SaraDaniel, Technische
2|Page Contents ABSTRACT.......................................................................................................................................................................4 Chapter1–Introduction....................................................................................................................................................5 1.1 ProjectDescription................................................................................................................................................5 1.1.1GeneralInformation:........................................................................................................................................5 1.1.2GeneralAssignment:........................................................................................................................................5 1.1.3Generaltasks:..................................................................................................................................................5 1.2 Proposedlocation.................................................................................................................................................6 1.3 SiteAnalysis..........................................................................................................................................................7 1.3.1TemperatureGraph..........................................................................................................................................7 1.3.2WindVelocityChart..........................................................................................................................................7 Chapter2-ProjectPlanning.............................................................................................................................................8 2.1 DefinitionoftheElements.....................................................................................................................................8 2.1.1Block.................................................................................................................................................................8 2.1.2Unit...................................................................................................................................................................9 2.1.3Core..................................................................................................................................................................9 2.1.4Balconies..........................................................................................................................................................9 2.2 BuildingLogic......................................................................................................................................................10 Chapter3-Code.............................................................................................................................................................12 3.1 Introduction.........................................................................................................................................................12 3.1.1CodeStructure...............................................................................................................................................12 3.1.2Configurations................................................................................................................................................13 3.2 ManualInputParameters....................................................................................................................................14 3.3 PredefinedParameters.......................................................................................................................................15 3.4 Step-by-StepCodedescription...........................................................................................................................15 3.5 HTMLFront-endofETOform.............................................................................................................................25 3.6 FolderStructure.................................................................................................................................................26 Chapter4–StructureAnalysis.......................................................................................................................................27 4.1KarambaDefinition(Building)...............................................................................................................................27 Chapter5-CalculationofSystemStatics......................................................................................................................31 5.1 Windloadcalculation..........................................................................................................................................31
Guidedby:
ThomazDaSilvaLopezViera, Daya
HochschuleOstwestfalen-Lippe, BekirAlperenKalkan, Detmold,Germany KrishnaTejJami

This paper presents a parametric design approach for student housing at TH OWL campus, Detmold. The project adherestospecificconstraints,includingmaximumvolume,numberofstories,height,andminimumdistances.Using RhinoPython,adesignconfiguratorisdevelopedtogeneratebuildingmodelswithprimarystructures,internalwalls, and facade systems. The configurator allows user interaction within predefined constraints, facilitating efficient exploration of design alternatives. Structural analysis is conducted using Karamba3d software to evaluate stability undervariousloads.Integrationwithfiniteelementanalysis(FEA)softwareensuresaccurateassessmentofstructural jointsanddynamics.Additionally,afacadeconceptisdevelopedconsideringwindload,impactload,andself-weight. Fabrication of a physical prototype at 1:50 scale demonstrates the feasibility of the proposed design. This research contributes to advancing parametric design methodologies for sustainable architectural solutions in educational campuses.

3|Page 5.1.1ManualCalculation.........................................................................................................................................31 5.1.2 WindLoadWithBPSolver...........................................................................................................................32 5.2FindingRequiredDeflectionValuesforFaçade1................................................................................................33 5.2.1MomentOfInertiaForTransom.....................................................................................................................33 5.2.2MomentOfInertiaForMullion........................................................................................................................34 5.2.3RequiredGlassDeflection.............................................................................................................................34 5.3FindingRequiredDeflectionValuesForFaçade2...............................................................................................35 5.3.1MomentOfInertiaForTransom.....................................................................................................................35 5.3.2MomentOfInertiaForMullion........................................................................................................................35 5.3.3RequiredGlassDeflection.............................................................................................................................36 5.4 FindingRequiredIxx AndIyy ForProfiles..............................................................................................................36 5.4.1ForFaçadeType1-MainFaçadeInTheFront.............................................................................................36
ForFaçadeType2-BalconyDoorAndWindow............................................................................................37 5.5 ThermalExpansion..............................................................................................................................................37 5.6 BuildingDetails..................................................................................................................................................38 5.6.1 Plan.............................................................................................................................................................38 5.6.2 FrontElevation............................................................................................................................................39 ....................................................................................................................................................................................39 5.7 FaçadeDetails...................................................................................................................................................40 5.7.1 Façade1.....................................................................................................................................................40 5.7.2 Façade2.....................................................................................................................................................42 5.8 StructuralAnalysis–BPSolver.........................................................................................................................43 5.8.1 Façade1–BPSolverResult.......................................................................................................................43 5.8.2 Façade2–BPSolverResult.......................................................................................................................47 5.9 StructuralAnalysis–Karamba...........................................................................................................................51 5.9.1 Façade1.....................................................................................................................................................51 5.9.2 Façade2.....................................................................................................................................................56 5.10 GlassDeflection-Mepla..................................................................................................................................61 Chapter6–Model............................................................................................................................................................62 6.1PhysicalModel......................................................................................................................................................62 6.2 Renderings...........................................................................................................................................................63 Chapter6-Bibliography.................................................................................................................................................65 6.1 UsedProgramsandSoftware's..........................................................................................................................65 4|Page
5.4.2
ABSTRACT

Chapter1–Introduction

1.1 ProjectDescription

TheTaskistodesignastructureforstudenthousingfortheTHOWLcampusatDetmold.

1.1.1GeneralInformation:

 Location:BielefeldStr.KreativCampusDetmold

 Maximumvolume:4000m²

 Numberoflevels:2to4stores.

 Maximumheight:16m

 MinimumdistancefromKreativbuilding:10m

 Minimumdistancefromstreet:5m

1.1.2GeneralAssignment:

 Create a design configurator to generate a building model, including primary structure, internal walls and the facadesystem.

 Constraintstheconfiguratorshouldlimittheuserincreatingoptionsfrom2to4stories.

1.1.3Generaltasks:

 DesignanddevelopaparametricconfiguratorforatowerusingRhinoPython.

 Inthecaseofa2ndmember:thestudentshouldimplementthefacadesystemintotheparametricconfigurator.

 Defineinputparameters:CreateuserconfiguratorusingRhinoEtoForm.

 AnalyzeBuildingstructureusingKaramba3dsoftwareorotherstaticsoftwareaccordingtoFiniteElementTheory forbeams,surface,ormeshelements.Consider:windload.

 Inthecaseofa2ndmembertheanalysisofthemainstructurejointhastobedone.Additionally,theintegration betweenthegeneratedTowerandtheKaramba3DoranyotherFEAsoftware

 shouldbeautomatic/sync.UsinglayersthestudentcanreadtheRhinoelementsintograsshopper.

 Design and develop the facade concept for the building and calculate the system statics. Dimension the parts accordingly.Takeintoconsideration:windload,impactloadandself-weight.

 FabricateaphysicalprototypeoftheTowerstructure(onlyfiniteelementsarenecessary)andpartofthefacade, usinglasercuttingtechniquesor3dprinters.Scale1:50.

1.2 Proposedlocation

 Location:BielefeldStr.KreativCampusDetmold

5|Page
6|Page

1.3.1TemperatureGraph

1.3.2WindVelocityChart

Chapter2-ProjectPlanning

2.1 DefinitionoftheElements

2.1.1Block

7|Page 1.3 SiteAnalysis
8|Page

2.2 BuildingLogic

 SelectthetypeofBlock.

 PicktheOriginfortheBlock.

 Selectionofdynamicvariablesbyuser.

 GeneratetheBlock.

 Drawapoly-lineforcore.

9|Page
2.1.2Unit 2.1.3Core 2.1.4Balconies BalconyType1 BalconyType2
10|Page
BalconyType3

 Removeoverlaps–Spatialcalculation.

 Selecttheentranceofbuilding.

 Selectthetypeofbalcony.

 HitSubmit!

Chapter3-Code

3.1 Introduction

3.1.1CodeStructure

 Blocksarestoredasapythondictionarywiththecentroidofeachunitasthekey.

 Allblockstogetherarestoredinallblockslist

11|Page
12|Page
13|Page 3.1.2Configurations 14|Page 3.2 ManualInputParameters

3.3 PredefinedParameters

HeightofaLevelisfixedat3meters

3.4 Step-by-StepCodedescription

Creatingtheblock:

#Function for generating a block at a time”

def create_block(self):

#Creation of block type A

if int(self.block_type_radiobutton) == 0:

#Creating a single room:

self.room_plane = rs.MovePlane(self.room_plane, self.room_origin[0])

self.room_plane = rs.RotatePlane(self.room_plane , self.room_plane_rotation , [0,0,1])

room = rs.AddRectangle(self.room_plane, self.room_lenght, self.room_width)

#Creating a translation vector to copy with a room edge

rs.EnableObjectGrips(room, enable = True)

translation_Vector_pt1 = rs.ObjectGripLocation(room,0)

translation_Vector_pt2 = rs.ObjectGripLocation(room,1)

rs.EnableObjectGrips(room, enable = False)

translation_Vector = rs.VectorCreate(translation_Vector_pt2,translation_Vector_pt1)

#Copying rooms along the lenght

self.all_rooms=[]

self.all_rooms.append(room)

i = 0

while i in range(self.num_of_rooms-1):

room = rs.CopyObjects(room,translation_Vector)

self.all_rooms.append(room)

i += 1

#Creating corridor origin

room_first = self.all_rooms[0]

rs.EnableObjectGrips(room_first, enable=True)

corridor_first_p = rs.ObjectGripLocation(room_first, 3)

rs.EnableObjectGrips(room_first, enable=False)

#Creating the corridor automatically

corridor_origin = [corridor_first_p.X,corridor_first_p.Y,corridor_first_p.Z]

self.corridor_plane = rs.MovePlane(self.corridor_plane, corridor_origin)

self.corridor_plane = rs.RotatePlane(self.corridor_plane, self.room_plane_rotation , [0,0,1]) corridor_lenght = float(self.num_of_rooms*self.room_lenght)

corridor_Curve = rs.AddRectangle(self.corridor_plane, corridor_lenght,self.width_corridor )

#Adding the curve to a list to export self.corridor_list.append(corridor_Curve)

print(" Succesfully Generated a new block - Type A ")

text_plane = rs.WorldXYPlane()

#Geting Centroid of all rooms for keys

self.all_centroid = [] for curve in self.all_rooms: centroid = rs.CurveAreaCentroid(curve) self.all_centroid.append(centroid[0])

#Creating a dict for every block generated with keys as centroid and curves as values self.block = dict(zip(self.all_centroid,self.all_rooms))

return self.block

Selectingoriginforblock:

def origin_select(self, sender, e):

origin_select.Click += SelectPtsButtonClick

#Select points from Rhino and return to dialog

def OnGetRhinoObjects(self, sender, e):

pts = rs.GetPoint('Select point of origin for rooms :')

p = (pts.X),(pts.Y),(pts.Z)

self.origin.insert(0,p)

print("Origin selected: ")

print((self.origin)[0])

Blockgeneratebutton:

def block_generate_ButtonClick(self, sender, e):

if isinstance ( sender , forms.Button): if len(self.origin)==0:

print('Error : Origin point to be selected to generate block!')

else:

Rhino.UI.EtoExtensions.PushPickButton(self, self.OnRowGenerate)

#calling function to create a block self.block = self.create_block()

#Adding every block at generate to all blocks list self.all_blocks.append(self.block)

print("Total no of rooms:",len(self.block),type(self.block))

#Reseting the world plane after generating a block self.room_plane = rs.WorldXYPlane() self.corridor_plane = rs.WorldXYPlane()

Drawcorebutton:

def draw_core_ButtonClick(self , sender ,e): if isinstance (sender , forms.Button): if len(self.all_blocks) == 0:

print("Error : Cannot draw core before generating atleast one block!") else:

Rhino.UI.EtoExtensions.PushPickButton(self, self.OnGetCorePoints)

Pickentrancebutton:

def pick_entrance_ButtonClick(self , sender ,e): if isinstance (sender , forms.Button):

if len(self.all_blocks) == 0:

print("Error : Cannot pick entrance before generating atleast one block!") else:

Rhino.UI.EtoExtensions.PushPickButton(self, self.OnGetEntrancePoint) sender.Text = "Entrance Selected"

Pickentrancebutton:

# Delete rooms on core function

def delete_rooms_on_core(self): centroid_delete = [] for block in self.all_blocks: for centroid,room in block.items(): centroid_point = rs.AddPoint(centroid)

value = rs.PointInPlanarClosedCurve(centroid_point ,self.core_curve) if value == 1 : centroid_delete.append(centroid) rs.DeleteObject(room) rs.DeleteObjects(centroid_point) else: pass

print('No of rooms deleted by core',len(centroid_delete)) for block in self.all_blocks: for key in centroid_delete: block.pop(key,None)

15 Page
16 Page

Spatialcalculatebutton:

# Spatial calculation function

def OnCalculateButtonClick(self,sender,e):

self.delete_rooms_on_core()

print("Total no of blocks" ,len(self.all_blocks),type(self.all_blocks))

area_generated_list = [] for block in self.all_blocks:

single_unit_curve = list(block.values())[0]

unit_area = rs.CurveArea(single_unit_curve)

block_area = unit_area[0]*len(block)

area_generated_list.append(block_area)

print('Area Generaed list',area_generated_list)

self.volume_generated_textbox.Text = str("Total_volume_Generated (Cu.M) : ")+ str(sum(area_generated_list)*self.no_of_levels)

self.area_singleunit_textbox.Text = str("Singleunit_area_Generated (Sq.M) : ") + str(unit_area[0]) self.area_generated_textbox.Text = str("Total_floorarea_Generated (Sq.M) : ") + str(sum(area_generated_list))

FunctiontocalltheETOform:

# Function to call the Configurator Dialog def RequestHouseGenerator():

dialog = ConfiguratorDialog();

rc = dialog.ShowModal(Rhino.UI.RhinoEtoApp.MainWindow)

all_blocks_list = dialog.get_all_blocks_list() no_of_levels = dialog.get_no_of_levels()

room_lenght = dialog.get_room_lenght()

room_width = dialog.get_room_width()

corridor_list = dialog.get_corridor_list() core_list = dialog.get_core_list()

balcony_type = dialog.get_balcony_type()

entrance_points = dialog.get_entrance_points()

block_rotation = dialog.get_block_rotation()

return all_blocks_list, no_of_levels, room_lenght, room_width, corridor_list, core_list , balcony_type , entrance_points,block_rotation

MainFunction:

if __name__ == "__main__":

#Getting the vaiables from the dialog all_blocks_list, no_of_levels, room_lenght, room_width, corridor_list, core_list,balcony_type ,entrance_points,block_rotation = RequestHouseGenerator()

#Creating balconies type 1

def create_balcony_1(type,room_lenght,room_width):

room_lenght = room_lenght

room_width = room_width

if type == 1 :

import rhinoscriptsyntax as rs rs.CurrentLayer("Default")

balcony_depth = 1.5

room_plane = rs.WorldXYPlane()

#room_plane = rs.RotatePlane(room_plane,180,(0,0,1))

room = rs.AddRectangle(room_plane, room_lenght, room_width)

balcony_translation = [0,-balcony_depth,0]

rs.EnableObjectGrips(room, enable=True) print("Generating balcony 1")

balcony_first_pt = rs.ObjectGripLocation(room, 0)

balcony_second_pt = rs.ObjectGripLocation(room, 1)

balcony_edge = rs.AddLine(balcony_first_pt,balcony_second_pt)

balcony_third_pt = rs.CurveMidPoint(balcony_edge, segment_index=-1)

balcony_third_pt = rs.MoveObject(balcony_third_pt, balcony_translation)

balcony_points = [balcony_second_pt,balcony_third_pt,balcony_first_pt]

balcony_curve = rs.AddPolyline(balcony_points)

rs.EnableObjectGrips(room, enable=False)

path = rs.AddLine([0,0,0], [0,0,1.0])

balcony = rs.ExtrudeCurve(balcony_curve , path )

return balcony

elif type == 2: import rhinoscriptsyntax as rs

rs.CurrentLayer("Default")

balcony_depth = 1.5

room_plane = rs.WorldXYPlane()

#room_plane = rs.RotatePlane(room_plane,180,(0,0,1))

room = rs.AddRectangle(room_plane, room_lenght, room_width)

balcony_translation = [0,-balcony_depth,0]

rs.EnableObjectGrips(room, enable=True)

print("Generating balcony 1")

balcony_first_pt = rs.ObjectGripLocation(room, 0)

balcony_second_pt = rs.ObjectGripLocation(room, 1)

balcony_edge = rs.AddLine(balcony_first_pt,balcony_second_pt)

balcony_third_pt = rs.CurveMidPoint(balcony_edge, segment_index=-1)

balcony_third_pt = rs.MoveObject(balcony_third_pt, balcony_translation)

balcony_points = [balcony_second_pt,balcony_third_pt,balcony_first_pt]

balcony_curve = rs.AddPolyline(balcony_points)

rs.EnableObjectGrips(room, enable=False)

path = rs.AddLine([0,0,0], [0,0,1.0])

balcony = rs.ExtrudeCurve(balcony_curve , path )

return balcony

else: pass

17 Page
18|Page
1:
Balconytype

#Creating balconies type 2

def create_balcony_2(type,room_lenght,room_width):

room_lenght = room_lenght

room_width = room_width

if type == 1:

import rhinoscriptsyntax as rs

rs.CurrentLayer("Default")

balcony_depth = 2

balcony_depth_2 = 1

room_plane = rs.WorldXYPlane()

#room_plane = rs.RotatePlane(room_plane,180,(0,0,1))

room = rs.AddRectangle(room_plane, room_lenght, room_width)

rs.EnableObjectGrips(room, enable=True)

balcony_first_pt = rs.ObjectGripLocation(room, 0)

balcony_second_pt = rs.ObjectGripLocation(room, 1)

balcony_edge = rs.AddLine(balcony_first_pt,balcony_second_pt)

balcony_third_pt = rs.CurveMidPoint(balcony_edge, segment_index=-1)

balcony_third_new_pt = (balcony_third_pt[0],balcony_third_pt[1]-balcony_depth_2,balcony_third_pt[2] )

balcony_first_new_pt = (balcony_first_pt[0],balcony_first_pt[1]-balcony_depth,balcony_first_pt[2] )

balcony_second_new_pt = (balcony_second_pt[0],balcony_second_pt[1]-balcony_depth,balcony_second_pt[2])

print("Generating balcony 2 - Type 1")

rs.EnableObjectGrips(room, enable=False)

balcony_points_1 = [balcony_second_pt,balcony_third_pt,balcony_third_new_pt,balcony_second_new_pt,balcony_second_pt]

balcony_part_1 = rs.AddPolyline(balcony_points_1)

balcony_points_2 = [balcony_third_pt,balcony_first_pt,balcony_first_new_pt,balcony_third_new_pt,balcony_third_pt]

balcony_part_2 = rs.AddPolyline(balcony_points_2)

balcony_top_first_pt = (balcony_first_pt[0],balcony_first_pt[1],balcony_first_pt[2]+3)

balcony_top_second_pt = (balcony_second_pt[0],balcony_second_pt[1],balcony_second_pt[2]+3)

balcony_top_third_pt = (balcony_third_pt[0],balcony_third_pt[1],balcony_third_pt[2]+3)

balcony_top_first_new_pt = (balcony_first_new_pt[0],balcony_first_new_pt[1]+balcony_depth_2,balcony_first_new_pt[2]+3)

balcony_top_second_new_pt = (balcony_second_new_pt[0],balcony_second_new_pt[1]+balcony_depth_2,balcony_second_new_pt[2]+3)

balcony_top_third_new_pt = (balcony_third_new_pt[0],balcony_third_new_pt[1]-balcony_depth_2,balcony_third_new_pt[2]+3)

balcony_points_3 = [balcony_top_second_pt,balcony_top_third_pt,balcony_top_third_new_pt,balcony_top_second_new_pt,balcony_top_second_pt]

balcony_top_part_1 = rs.AddPolyline(balcony_points_3)

balcony_top_part_1_srf = rs.AddPlanarSrf(balcony_top_part_1)

balcony_points_4 = [balcony_top_third_pt,balcony_top_first_pt,balcony_top_first_new_pt,balcony_top_third_new_pt,balcony_top_third_pt]

balcony_top_part_2 = rs.AddPolyline(balcony_points_4)

balcony_top_part_2_srf = rs.AddPlanarSrf(balcony_top_part_2)

#balcony = rs.JoinCurves([balcony_part_1,balcony_part_2,balcony_top_part_1,balcony_top_part_2],delete_input=True)

balcony_loft_1 = rs.AddLoftSrf([balcony_part_1,balcony_top_part_1])

balcony_loft_1 = rs.ExplodePolysurfaces(balcony_loft_1)

balcony_loft_2 = rs.AddLoftSrf([balcony_part_2,balcony_top_part_2])

balcony_loft_2 = rs.ExplodePolysurfaces(balcony_loft_2)

balcony_loft_1_trimmed = rs.TrimSurface(balcony_loft_1[3] ,0, (0,1), True )

balcony_loft_1[3] = balcony_loft_1_trimmed #balcony_loft_1 = rs.JoinSurfaces([balcony_loft_1],delete_input=True )

balcony_loft_2_trimmed = rs.TrimSurface(balcony_loft_2[3], 0, (0,1), True )

balcony_loft_2[3] = balcony_loft_2_trimmed #balcony_loft_2 = rs.JoinSurfaces([balcony_loft_2],delete_input=True )

balcony = balcony_loft_1+balcony_loft_2+balcony_top_part_1_srf+balcony_top_part_2_srf

return balcony elif type == 2: import rhinoscriptsyntax as rs rs.CurrentLayer("Default")

balcony_depth = 2

balcony_depth_2 = 1

room_plane = rs.WorldXYPlane()

#room_plane = rs.RotatePlane(room_plane,180,(0,0,1))

room = rs.AddRectangle(room_plane, room_lenght, room_width)

print("Generating balcony 2 - Type 2")

rs.EnableObjectGrips(room, enable=True)

balcony_first_pt = rs.ObjectGripLocation(room, 0)

balcony_second_pt = rs.ObjectGripLocation(room, 1)

balcony_edge = rs.AddLine(balcony_first_pt,balcony_second_pt)

balcony_third_pt = rs.CurveMidPoint(balcony_edge, segment_index=-1)

balcony_third_new_pt = (balcony_third_pt[0],balcony_third_pt[1]-balcony_depth,balcony_third_pt[2] )

balcony_first_new_pt = (balcony_first_pt[0],balcony_first_pt[1]-balcony_depth_2,balcony_first_pt[2] )

balcony_second_new_pt = (balcony_second_pt[0],balcony_second_pt[1]-balcony_depth_2,balcony_second_pt[2])

rs.EnableObjectGrips(room, enable=False)

balcony_points_1 = [balcony_second_pt,balcony_third_pt,balcony_third_new_pt,balcony_second_new_pt,balcony_second_pt]

balcony_part_1 = rs.AddPolyline(balcony_points_1)

balcony_points_2 = [balcony_third_pt,balcony_first_pt,balcony_first_new_pt,balcony_third_new_pt,balcony_third_pt]

balcony_part_2 = rs.AddPolyline(balcony_points_2)

balcony_top_first_pt = (balcony_first_pt[0],balcony_first_pt[1],balcony_first_pt[2]+3)

balcony_top_second_pt = (balcony_second_pt[0],balcony_second_pt[1],balcony_second_pt[2]+3)

balcony_top_third_pt = (balcony_third_pt[0],balcony_third_pt[1],balcony_third_pt[2]+3)

balcony_top_first_new_pt = (balcony_first_new_pt[0],balcony_first_new_pt[1]-balcony_depth_2,balcony_first_new_pt[2]+3)

balcony_top_second_new_pt = (balcony_second_new_pt[0],balcony_second_new_pt[1]-balcony_depth_2,balcony_second_new_pt[2]+3)

balcony_top_third_new_pt = (balcony_third_new_pt[0],balcony_third_new_pt[1]+balcony_depth_2,balcony_third_new_pt[2]+3)

balcony_points_3 = [balcony_top_second_pt,balcony_top_third_pt,balcony_top_third_new_pt,balcony_top_second_new_pt,balcony_top_second_pt]

balcony_top_part_1 = rs.AddPolyline(balcony_points_3)

balcony_top_part_1_srf = rs.AddPlanarSrf(balcony_top_part_1)

balcony_points_4 = [balcony_top_third_pt,balcony_top_first_pt,balcony_top_first_new_pt,balcony_top_third_new_pt,balcony_top_third_pt]

balcony_top_part_2

= rs.AddPolyline(balcony_points_4)

balcony_top_part_2_srf = rs.AddPlanarSrf(balcony_top_part_2)

#balcony = rs.JoinCurves([balcony_part_1,balcony_part_2,balcony_top_part_1,balcony_top_part_2],delete_input=True)

balcony_loft_1 = rs.AddLoftSrf([balcony_part_1,balcony_top_part_1])

balcony_loft_1 = rs.ExplodePolysurfaces(balcony_loft_1)

balcony_loft_2 = rs.AddLoftSrf([balcony_part_2,balcony_top_part_2])

balcony_loft_2 = rs.ExplodePolysurfaces(balcony_loft_2)

balcony_loft_1_trimmed = rs.TrimSurface(balcony_loft_1[3] ,0, (0,1), True )

balcony_loft_1[3] = balcony_loft_1_trimmed

#balcony_loft_1 = rs.JoinSurfaces([balcony_loft_1],delete_input=True )

balcony_loft_2_trimmed = rs.TrimSurface(balcony_loft_2[3], 0, (0,1), True )

balcony_loft_2[3] = balcony_loft_2_trimmed #balcony_loft_2 = rs.JoinSurfaces([balcony_loft_2],delete_input=True )

#balcony = rs.JoinSurfaces([balcony_loft_1,balcony_loft_2],delete_input=True )

balcony = balcony_loft_1+balcony_loft_2+balcony_top_part_1_srf+balcony_top_part_2_srf return balcony else: import rhinoscriptsyntax as rs rs.CurrentLayer("Default")

balcony_depth = 2

balcony_depth_2 = 1 room_plane = rs.WorldXYPlane() #room_plane = rs.RotatePlane(room_plane,180,(0,0,1))

room = rs.AddRectangle(room_plane, room_lenght, room_width)

print("Generating balcony 2 - Type 2")

rs.EnableObjectGrips(room, enable=True)

balcony_first_pt = rs.ObjectGripLocation(room, 0)

balcony_second_pt = rs.ObjectGripLocation(room, 1)

19|Page Balconytype2:
20 Page

balcony_edge = rs.AddLine(balcony_first_pt,balcony_second_pt)

balcony_third_pt = rs.CurveMidPoint(balcony_edge, segment_index=-1)

balcony_third_new_pt = (balcony_third_pt[0],balcony_third_pt[1]-balcony_depth,balcony_third_pt[2] )

balcony_first_new_pt = (balcony_first_pt[0],balcony_first_pt[1]-balcony_depth_2,balcony_first_pt[2] )

balcony_second_new_pt = (balcony_second_pt[0],balcony_second_pt[1]-balcony_depth_2,balcony_second_pt[2])

rs.EnableObjectGrips(room, enable=False)

balcony_points_1 = [balcony_second_pt,balcony_third_pt,balcony_third_new_pt,balcony_second_new_pt,balcony_second_pt]

balcony_part_1 = rs.AddPolyline(balcony_points_1)

balcony_points_2 = [balcony_third_pt,balcony_first_pt,balcony_first_new_pt,balcony_third_new_pt,balcony_third_pt]

balcony_part_2 = rs.AddPolyline(balcony_points_2)

balcony_top_first_pt = (balcony_first_pt[0],balcony_first_pt[1],balcony_first_pt[2]+3)

balcony_top_second_pt = (balcony_second_pt[0],balcony_second_pt[1],balcony_second_pt[2]+3)

balcony_top_third_pt = (balcony_third_pt[0],balcony_third_pt[1],balcony_third_pt[2]+3)

balcony_top_first_new_pt = (balcony_first_new_pt[0],balcony_first_new_pt[1]-balcony_depth_2,balcony_first_new_pt[2]+3)

balcony_top_second_new_pt = (balcony_second_new_pt[0],balcony_second_new_pt[1]-balcony_depth_2,balcony_second_new_pt[2]+3)

balcony_top_third_new_pt = (balcony_third_new_pt[0],balcony_third_new_pt[1]+balcony_depth_2,balcony_third_new_pt[2]+3)

balcony_points_3 = [balcony_top_second_pt,balcony_top_third_pt,balcony_top_third_new_pt,balcony_top_second_new_pt,balcony_top_second_pt]

balcony_top_part_1 = rs.AddPolyline(balcony_points_3)

balcony_top_part_1_srf = rs.AddPlanarSrf(balcony_top_part_1)

balcony_points_4 = [balcony_top_third_pt,balcony_top_first_pt,balcony_top_first_new_pt,balcony_top_third_new_pt,balcony_top_third_pt]

balcony_top_part_2 = rs.AddPolyline(balcony_points_4)

balcony_top_part_2_srf = rs.AddPlanarSrf(balcony_top_part_2)

#balcony = rs.JoinCurves([balcony_part_1,balcony_part_2,balcony_top_part_1,balcony_top_part_2],delete_input=True)

balcony_loft_1 = rs.AddLoftSrf([balcony_part_1,balcony_top_part_1])

balcony_loft_1 = rs.ExplodePolysurfaces(balcony_loft_1)

balcony_loft_2 = rs.AddLoftSrf([balcony_part_2,balcony_top_part_2])

balcony_loft_2 = rs.ExplodePolysurfaces(balcony_loft_2)

balcony_loft_1_trimmed = rs.TrimSurface(balcony_loft_1[3] ,0, (0,0.01), True )

balcony_loft_1[3] = balcony_loft_1_trimmed

#balcony_loft_1 = rs.JoinSurfaces([balcony_loft_1],delete_input=True )

balcony_loft_2_trimmed = rs.TrimSurface(balcony_loft_2[3], 0, (0,0.01), True )

balcony_loft_2[3] = balcony_loft_2_trimmed

#balcony_loft_2 = rs.JoinSurfaces([balcony_loft_2],delete_input=True )

#balcony = rs.JoinSurfaces([balcony_loft_1,balcony_loft_2],delete_input=True )

balcony = balcony_loft_1+balcony_loft_2+balcony_top_part_1_srf+balcony_top_part_2_srf return balcony

Translationofthebalconies:

#Translating the balconies def balcony_translation(all_blocks_list,balcony_type,no_of_levels,room_lenght,room_width): balcony_curves_list=[] no_of_levels = no_of_levels room_lenght = room_lenght room_width = room_width def calcDist(p1,p2): if len(p1) == 2 or len(p2) == 2:

dist = math.sqrt( (p2[0] - p1[0])**2 + (p2[1] - p1[1])**2 ) else: dist = math.sqrt( (p2[0] - p1[0])**2 + (p2[1] - p1[1] )**2 + (p2[2] - p1[2])**2 )

return dist

def calcVect(p1,p2): lenght = calcDist(p1,p2)

if len(p1) == 2 or len(p2) == 2:

vector = ((p2[0] - p1[0])/lenght,(p2[1] - p1[1])/lenght,0)

else:

vector = ((p2[0] - p1[0])/lenght,(p2[1] - p1[1])/lenght,(p2[2] - p1[2])/lenght)

return vector

def cross_prod(v1,v2):

c = [v1[1] * v2[2] - v1[2] * v2[1], v1[2] * v2[0] - v1[0] * v2[2], v1[0] * v2[1] - v1[1] * v2[0]]

return c

def matrixTransformation_LCS2GCS(v1,v2,v3,p1):

matrix=[]

matrix.append([v1[0],v2[0],v3[0],p1[0]])

matrix.append([v1[1],v2[1],v3[1],p1[1]])

matrix.append([v1[2],v2[2],v3[2],p1[2]]) matrix.append([0,0,0,1])

21 Page
22|Page Balconytype3:

def balc(type,balcony_type):

if balcony_type == 1:

obj = create_balcony_1(type,room_lenght,room_width)

elif balcony_type == 2:

obj = create_balcony_2(type,room_lenght,room_width)

elif balcony_type == 3:

obj = create_balcony_3(type,room_lenght,room_width)

else:

print("Invalid Balcony Type")

rs.EnableObjectGrips(room, enable=True)

balcony_first_pt = rs.ObjectGripLocation(room, 0)

balcony_second_pt = rs.ObjectGripLocation(room, 1)

balcony_third_pt = rs.ObjectGripLocation(room , 2)

balcony_fourth_pt = rs.ObjectGripLocation(room,3)

rs.EnableObjectGrips(room, enable=False)

p1 = rs.CreatePoint(balcony_first_pt)

p2 = rs.CreatePoint(balcony_second_pt)

p3 = rs.CreatePoint(balcony_fourth_pt)

v1 = calcVect(p1,p2)

v2 = calcVect(p1,p3)

v3 = cross_prod(v1,v2)

if obj:

rs.TransformObject(obj,matrixTransformation_LCS2GCS(v1,v2,v3,p1))

balcony_curves_list.append(obj)

for block in all_blocks_list:

curves = list(block.values())

if no_of_levels == 2: for room in curves:

balc(3,balcony_type)

level_1 = rs.CopyObjects(curves,(0,0,3))

level_1_odd = level_1[::2]

level_1_even = level_1[1::2] for room in level_1_odd:

balc(1,balcony_type) for room in level_1_even: balc(2,balcony_type)

elif no_of_levels == 3: for room in curves:

balc(3,balcony_type)

level_1 = rs.CopyObjects(curves,(0,0,3)) level_2 = rs.CopyObjects(level_1,(0,0,3)) for room in level_1: balc(1,balcony_type) for room in level_2: balc(2,balcony_type) else: for room in curves:

balc(3,balcony_type)

level_1 = rs.CopyObjects(curves,(0,0,3))

level_2 = rs.CopyObjects(level_1,(0,0,3))

level_3 = rs.CopyObjects(level_2,(0,0,3)) for room in level_1:

balc(1,balcony_type) for room in level_2: balc(2,balcony_type) for room in level_3:

balc(1,balcony_type)

return balcony_curves_list

Createfacadefunction:

# Create the facade at the origin for one level def create_facade(curvelenght): curvelenght = curvelenght if curvelenght < 10: length_transom = (curvelenght-0.45)/8 mullions = [] transoms = [] plane = rs.WorldXYPlane() plane = rs.MovePlane(plane, [0,0,3]) mull = rs.AddRectangle(plane, 0.05, 0.11) mull = rs.ExtrudeCurveStraight(mull, [0,0,0], [0,0,1.5]) rs.CapPlanarHoles(mull) mullions.append(mull) plane = rs.MovePlane(plane,(0.05,0,3)) transom = rs.AddRectangle(plane, float(length_transom), 0.11) transom = rs.ExtrudeCurveStraight(transom, [0,0,0], [0,0,0.05])

rs.CapPlanarHoles(transom) transoms.append(transom) transom2 = rs.CopyObject(transom, [0,0,1.45])

transoms.append(transom2) for i in range(0, 9):

mull1 = rs.CopyObject(mull, [(length_transom+0.05)*i,0,0])

mullions.append(mull1) for j in range(0, 8):

tran1 = rs.CopyObject(transom, [(length_transom+0.05)*j,0,0])

transoms.append(tran1)

tran2 = rs.CopyObject(transom2, [(length_transom+0.05)*j,0,0])

transoms.append(tran2)

print("Facade generated - Type 1")

else:

length_transom = (curvelenght-0.85)/16

mullions = []

transoms = []

plane = rs.WorldXYPlane()

plane = rs.MovePlane(plane, [0,0,3])

mull = rs.AddRectangle(plane, 0.05, 0.11)

mull = rs.ExtrudeCurveStraight(mull, [0,0,0], [0,0,1.5])

rs.CapPlanarHoles(mull)

mullions.append(mull)

plane = rs.MovePlane(plane,(0.05,0,3))

transom = rs.AddRectangle(plane, float(length_transom), 0.11)

transom = rs.ExtrudeCurveStraight(transom, [0,0,0], [0,0,0.05])

rs.CapPlanarHoles(transom)

transoms.append(transom) transom2 = rs.CopyObject(transom, [0,0,1.45])

transoms.append(transom2) for i in range(0, 17):

mull1 = rs.CopyObject(mull, [(length_transom+0.05)*i,0,0]) mullions.append(mull1) for j in range(0, 16):

tran1 = rs.CopyObject(transom, [(length_transom+0.05)*j,0,0])

transoms.append(tran1)

tran2 = rs.CopyObject(transom2, [(length_transom+0.05)*j,0,0])

transoms.append(tran2)

print("Facade Generated - Type 2")

return mullions + transoms

23 Page return matrix
24 Page

3.6 FolderStructure

 Allthefunctionsarespiltintothefollowingcategories

 MainpythonfiletocalltheETOformandcallBuildfunctions

 HTMLcodeforETOformcalledusingwebview

 Functionstocreatethebuilding

 Functionstocreatethefacadeparametrically

25|Page 3.5 HTMLFront-endofETOform 26|Page

4.1KarambaDefinition(Building)

 ReferencinggeometrygeneratedbypythoncodeusingLayersandElefrontPlugin

 WindloadCalculation

 CreatingStaticelementsinKaramba

27|Page
Chapter4–StructureAnalysis
28|Page
29|Page
loads
 AddingGravityandUniformlydistributed
30|Page
 ModelViews,AndDeflection ModelView BeamView ShellView ModelviewwithFacade

Chapter5-CalculationofSystemStatics

5.1 Windloadcalculation

5.1.1ManualCalculation

31|Page
32|Page
5.1.2 WindLoadWithBPSolver

5.2.1

5.2.3RequiredGlassDeflection

33|Page 5.2
Façade1
FindingRequiredDeflectionValuesfor
34|Page
MomentOfInertiaForTransom 5.2.2MomentOfInertiaForMullion

5.3.1MomentOfInertiaForTransom

5.3.2MomentOfInertiaForMullion

5.3.3RequiredGlassDeflection

5.4 FindingRequiredIxx AndIyy ForProfiles

5.4.1ForFaçadeType1-MainFaçadeInTheFront

35|Page
5.3FindingRequiredDeflectionValuesForFaçade2
36|Page
37|Page 5.4.2ForFaçadeType2-BalconyDoorAndWindow
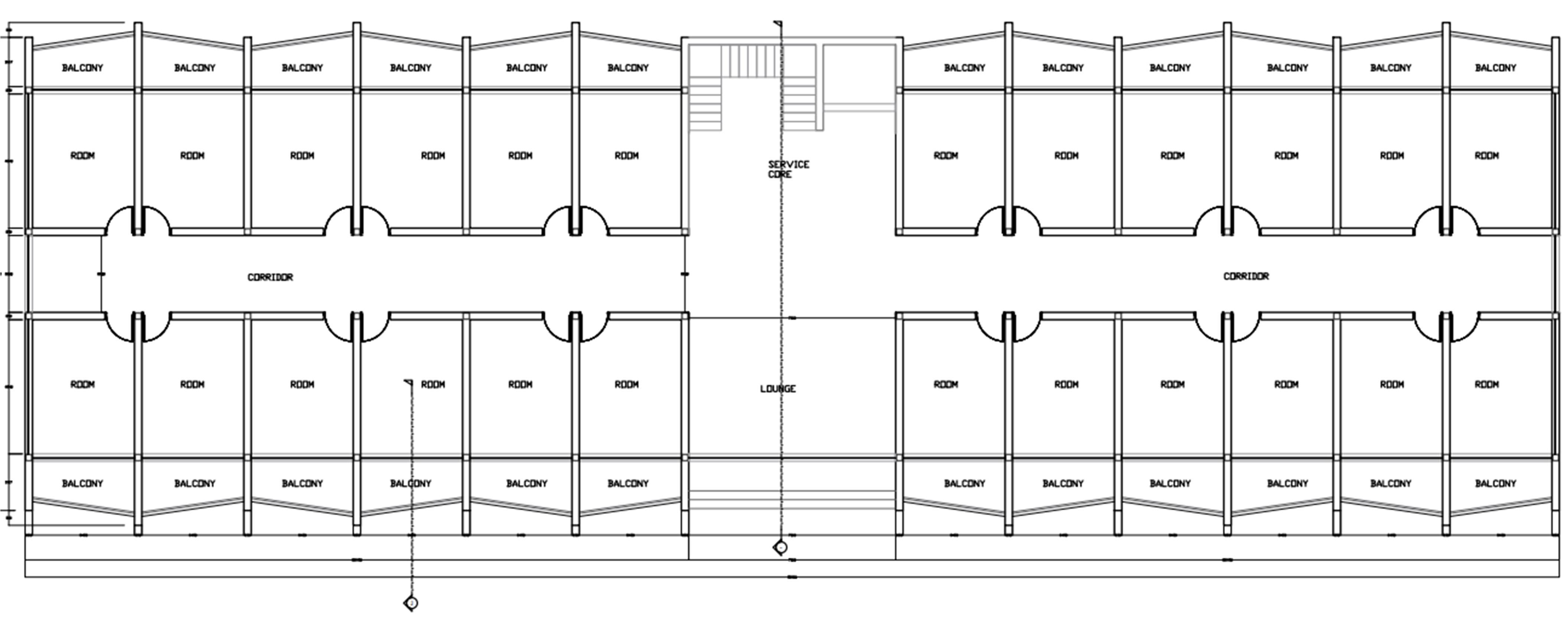
38|Page 5.6
5.6.1
5.5 ThermalExpansion
BuildingDetails
Plan
39|Page
40|Page
5.6.2 FrontElevation
5.7 FaçadeDetails 5.7.1 Façade1
41|Page 42|Page
5.7.2 Façade2
43|Page 5.8 StructuralAnalysis–BPSolver
44|Page
5.8.1
Façade1–BPSolverResult
45|Page 46|Page
47|Page 5.8.2 Façade
48|Page
2–BPSolverResult
49|Page 50|Page
51|Page
Karamba
5.9 StructuralAnalysis–
52|Page
5.9.1 Façade1
53|Page 54|Page
55|Page 56|Page
5.9.2 Façade2
57|Page 58|Page
59|Page 60|Page
61|Page 5.10 GlassDeflection-Mepla 62|Page Chapter6–Model
6.1PhysicalModel
63|Page 6.2 Renderings 64|Page

Chapter6-Bibliography

UsedProgramsandSoftware's

 RHINOCEROS3D

 GRASSHOPPER

 VISUALSTUDIOCODE

 PYTHON

 RHINOPYTHON

 CODELISTENER

 KARAMBA

 BPSOLVER-SHUCO

 ELEFRONTPLUGIN

 MEPLASJ

65 Page
6.1

Turn static files into dynamic content formats.

Create a flipbook
Issuu converts static files into: digital portfolios, online yearbooks, online catalogs, digital photo albums and more. Sign up and create your flipbook.