Skip to main content

Portofolio Arsitektur Part 1 - Dawud Al Ubaidah

Page 1

D A W U D A L U B A I D A H
Bachelor Architectur PORTOFOLIO
ARCH
Part -1

Studio Project

Putih Hotel

(Perancangan Arsitektur 3)

Hotel Bintang Tiga

Golden Patra

(Perancangan Arsitektur 4)

Sport Center

Corner Golden World

(Perancangan Arsitektur 5)

Golden Park

(Perancangan Arsitektur 6

Transit Oriented Development

Tangsel Islamic Center

Akhir)

Architecture Portofolio | 2023
Daftar Isi
Halaman 1 Halaman 9 Halaman 31 Halaman 21 Halaman 41
(Perancangan Arsitektur
Mixed Use Building Islamic Center

Other Studio Project

Growth

Cluster (Arsitektur Kota)

Handwrite Studio Project

JABOTOLAO

(Perancangan Arsitektur 2)

Plataran Villa

(Perancangan Arsitektur 1)

Architecture Portofolio | 2023 Daftar Isi
Mono
3D
Halaman 51 Halaman 59 Halaman
Halaman 67
House (Arsitektur Digital)
Modelling By Revit
63
Rumah Tinggal dan Rumah Inap Villa Resort Rumah Tumbuh kawasan cluster

Industri pariwisata merupakan salah satu sektor non migas yang memiliki peluang untuk berkembang di masa depan Indonesia yang dikenal dengan keindahan alamnya juga turut mengambil peluang tersebut untuk meningkatkan perekonomian negara Untuk itu diperlukan

berbagai persiapan dan kelengkapan fasilitas yang mendukung

pengembangan pariwisata di Indonesia dengan target pasar adalah

kalangan wisatawan domestic maupun manca negara Hotel resort dan villa merupakan salah satu fasilitas pariwisata yang potensial untuk dikembangkan Sebuah Perusahaan Swasta Nasional bermaksud membangun sebuah hotel dan villa berbintang 3 di Kawasan Bogor pada

lahan berkontur. Adapun fasilitas dalam Hotel resort dan villa ini adalah 4 tipe unit kamar hotel dan 2 tipe villa dengan sarana penunjang

Putih Hotel

Mata Kuliah : Studio Perancangan Arsitektur III

Dosen : Dr. Ir. Primi Artiningrum, M.Arch

Architecture Portofolio | 2023 1
1 Architecture Portofolio | 2023 2
Lokasi Desa Cilember, Cisarua, Bogor
hotel
Luas Lahan 6 000 m2
https://bit.ly/putih
Scan untuk melihat animasi

Gubahan Masa

Architecture Portofolio | 2023 3
1 2 3 4 5
Hasil akhir gubahan masa

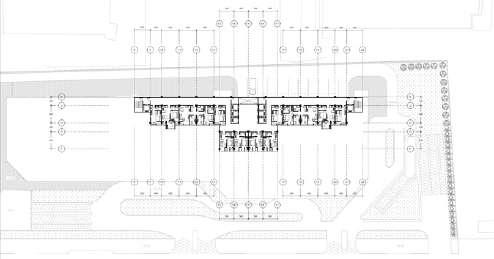
Block Plan

Architecture Portofolio | 2023 4
Potongan
Architecture Portofolio | 2023 5
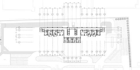
Halte Sarana turun dari transportasi umum Inner Court Taman terbuka publik Bungalow Penginapan kecil dengan teras
Architecture Portofolio | 2023 6
Mini Market Toko swalayan dalam bangunan Akomondasi Unit kamar sewa Lounge Tempat menunggu dengan mini bar
Architecture Portofolio | 2023 7
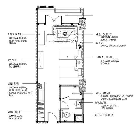
Unit kamar tipe Twin Unit kamar tipe Suite Unit kamar tipe Single Unit kamar tipe Connecting Door
Architecture Portofolio | 2023 8
Detail Halte Detail Fasad Kamar

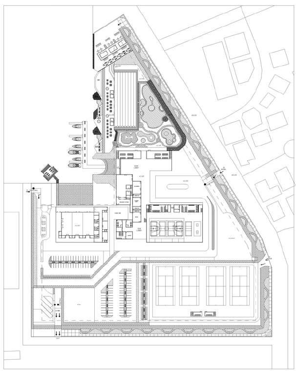
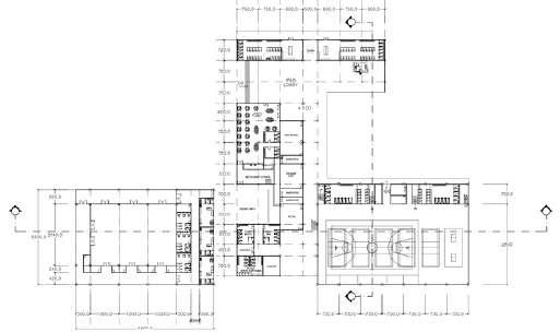
Kawasan perumahan yang dibangun oleh pengembang swasta berskala besar perlu dilengkapi dengan berbagai fasilitas umum untuk menunjang aktifitas warganya, salah satunya berupa sport center. Tantangan perancangan pada kasus kali ini yaitu membuat kawasan komersil yang dapat menjadi daya tarik masyarakat selain untuk berolah raga, juga untuk kegiatan formal dan wisata dengan berbagai sarana penunjang. Kawasan ini memiliki berbagai fasilitas diantaranya lapangan bulu tangkis indoor, lapangan basket indoor, area tenis meja indoor, sarana fitnes, sauna, kolam renang berskala olympic dan anak-anak, lapangan tenis out door, lapangan tenis outdoor, retail , serta gedung serbaguna Tantangan struktur berupa bentang lebar diterapkan pada perancangan kali ini.

Golden Patra

Mata Kuliah : Studio Perancangan Arsitektur IV

Dosen Utama : Dr Ir Tin Budi Utami, MT

Dosen Pembimbing : Nasrudin, ST

Architecture Portofolio | 2023 9
2
bit.ly/golden patra
Architecture Portofolio | 2023 10
Scan untuk melihat animasi Lokasi JalanPantai Mutiara, Jakarta Utara Luas Lahan 40.000 m2

Konsep Bangunan

Analisa View

Utara : Pantai Mutiara

Barat : Oceano Foottball

Selatan : Apartemen Menara Mariana Condominium

Timur : Perumahan Pantai Mutiara

Area yang mendapat view keluar terbaik disebelah utara , yaitu Pantai Mutiara

Tanggapan

Gedung Serba Guna diarahkan menuju view pantai dengan bukaan yang lebar

Analisa Batas Tapak

Utara : Pantai Mutiara

Barat : Sub Jalan Pantai Mutiara dan oceano football

Selatan : Sub Jalan Pantai Mutiara dan Apartement

Menara Marina

Timur : Jalan Utama Pantai Mutiara

Tanggapan

Dibuatkan tempat duduk-dukuk untuk menikmati sunset. Barat site tidak diberi dinding, melainkan menjadi titik temu antara oceana football dengan GSG Batas tapak antar Gedung bisa dimanfaatkan sebagaia titik temu

Analisa Matahari

Barat dan utara tapak cenderung mendapat panas matahari berlebih

Tanggapan

Orientasi kolam renang menghadap utara selatan

Dibuatkan sun shading pada barat bangunan

Dibuatkan bukaan dan void pada sisi barat bangunan

Atap Lapangan Indoor dibuat bukaan kearah timur

Orientasi lapangan tenis outdoorutara selatan

Architecture Portofolio | 2023 11

Analisa Angin

Tanggapan

Pemberian pohon yang cucup besar untuk memecah angn

Penempatan ruang gym di lt 2 secara tertutup untuk mencegah angin berlebih

Konfigurasi ruang dibuat memanjang karena dianggap efektif

Pemberian pohon di sekitar laapangan outdoor untuk memecah angn

Analisa Kebisingan

Tanggapan

Penempatan bangunan yang bising dengan jarak yang cukup jauh

Pemberian Pepohonan di sepanjang jalan Pantai Mutiara

Analisa Sirkulasi

Tanggapan

Pemisahan entrance antara kendaraan motor dan mobil Pintu Keluar dibuat disebelah selatan mengikuti sub Jalan Pantai Mutiara

Retail, toko souvenir, minimarket dibuat memanjang agar membentuk pola sirkulasi yang sedehana sehingga memudahkan pengunjung untuk menjangkau tempat yang dituju

Dibuatkan entrance laut untuk pengunjung yang datang menggunakan speadboat

Dibuatkan Pintu khusus menuju gedung serba guna dengan sistem buka tutup

Architecture Portofolio | 2023 12 2

Konsep Bangunan

Analisa Visibilitas

Tanggapan

Massa bangunan dibuat dua lantai dengan ruang gym

diatasnya agar terlihat ciri khas sport center

Lapangan tenis outdoor diaharapkan mencuri

perhatian pengguna jalan Ketika melintasi jalan utama pantai mutiara

Analisa Ruang Luar

Tanggapan

Dibuatkan mini caffe outdoor dengan view laut untuk menjadi daya tarik kawasan

Kawasan kolam renang dibuat atraktif dengan dilengkapi area dudk-duduk dan area bermain pasir

Dibuatkan Jogging track, trotoar, dan jalur pesepeda pada tepi jalan

Dibuatkan panggung resepsi dengan view laut sehingga meningkatkan daya tarik

Analisa Sigange

Tanggapan

Pemberian signage pada kawasan dengan memperhatikan Visibility, Readibility, Noticeability, Legibility, Proper Material

Architecture Portofolio | 2023 13

Analisa Struktur

Struktur Truss terdiri dari susunan elemen linear yang membentuk segitiga atau kombinasi segitiga, sehingga tidak terjadi deformasi bentuk terhadap beban atau gaya eksternal yang diterima

Susunan rangka batang harus mengakomodasi kekakuan dan kekuatan dalam sistem gaya tarik-tekan saja Rangka batang akan menggunakan susunan konfigurasi segitiga yang secara mekanik dapat memberikan efek kekakuan dan kekangan (penahanan) yang tinggi Dengan fenomena mekanik tersebut makaTruss dapat mengurangi efek lendutan pada bentang panjang.

Struktur truss terpisah antara yang satu dengan yang lain, bisa digabungkan dengan gording pada bagian atap sebagai penumpu material atap, namun terpisah di bagian bawah Struktur atap lapangan indoor menggunakan struktur trus dan pelengkung

Architecture Portofolio | 2023 14 2

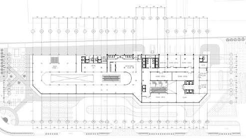
konsep Water Front

Pantai menjadi Vocal Point sekaligus menjadi golden view

Water front Cafetaria

Kafe tepi pantai untuk pengunjung umum yang ingin menikmati view

Public Cafetaria

Kafe tepi pantai untuk pengunjung umum

Architecture Portofolio | 2023 15

Tempat bermain pasir anak-anak

Kolam renang anak

Kolam renang dilengkapi tempat duduk dan vegetasi

Kolam renang Olympic

Kolam renang berukuran besar untuk orang dewasa

Bench Aminities

Kursi panjang untuk duduk-duduk

Bench Aminities

Kursi dekat kolam renang untuk duduk-duduk

Architecture Portofolio | 2023 16
Sand Box
Architecture Portofolio | 2023 17
Block Plan Denah Lantai 1 Denah Lantai 2 Potongan Melintang

Outdoor Cafe

Ruang

Pedastiran Street

Jalur

Jalur Kendaraan Bermotor

Jalur

Panggung

Panggung

Parkir

Pearmebelity Aminities

Sarana

Main Signage

Signage

Architecture Portofolio | 2023 18
pejalan kaki dan Pesepeda Masuk Khusus kendaraan Bermotor Parking Area kendaraan roda dua dan empat Utama yang menjadi vocal signage Entrance Laut jalur masuk orang dari laut Boat Parking Area Parkir spead boat resepsi dengan view terbaik berkumpul kawasan kolam renang publik dengan cafetaria Detail Pedatrian Street dan Entrance Detail Ruang Publik
Architecture Portofolio | 2023 19
Detail Teras Kolam Renang Visualisasi Pedatrian Street dan Entrance Visualisasi Ruang Publik Visualisasl Batas Laut dan Waterfront VisualisasiRuangPublik
Architecture Portofolio | 2023 20
Visualisasi Teras Kolam Renang

Kebutuhan masyarakat Jakarta akan tempat tinggal, bekerja dan melangsungkan kehidupan menjadi sebuah kebutuhan ditengah kepadatan penduduk di Jakarta saat ini. Keterbatasan lahan dan mobilitas yang tinggi menjadi sebuah permasalahan yang kompleks sehingga menjadi sebuah tantangan bagi kami bagaimana merancang suatu kawasan yang bisa memenuhi kebutuhan sandang, pangan, papan sampai bekerja dan berbelanja tanpa jauh-jauh meninggalkan rumah

MIxed Use Building diharapkan bisa menjadi sebuah solusi bagi masyarakat dengan konsep-konsep didalamnya sehingga mempermudah mereka dalam melangsungkan kehidupan

Golden Corner World

Mata Kuliah : Studio Perancangan Arsitektur V

Dosen Utama : Dr Ir Primi Artiningrum, M Arch

Dosen Pembimbing : Dwi Hadi ST

Architecture Portofolio | 2023 21

Scan untuk melihat animasi

bit.ly/golden corner world

2 Architecture Portofolio | 2023 22
Lokasi Jl. Angkasa, Kec. Kemayoran, Kota Jakarta Pusat, Daerah Khusus Ibukota Jakarta
3
Luas Lahan 12.000 m2

Gubahan masa

Konsep Bangunan

Traffic connectivity

Konsep traffic connectivity merupakan konektifitas dan keberlanjutan di dalam dan luar bagungan yang menggunakan ruang terbuka, jalur walkway, penghubung bangunan dan transportasi publik. Konsep ini bisa dirasakan pengunjung saat turun dari kendaraan atau memasuki tapak, hingga keluar

Social connectivity

Konsep social connectivity merupakan konsep ruang yang mendukung interaksi sosial untuk melakukan interaksi dan membangun networking para penghuni apartemen

Public Space

Konsep mendukung ketiga konsep tersebut dengan menyediakan plasa dan ruang publik, untuk mendorong akitivitas di ruang terbuka.

Permeability design

Konsep permeablitiy design memungkinkan pejalan kaki bisa mengakses area di dalam tapak dengan berjalan kaki, baik itu penghuni apartemen hingga pengunjung. Dengan konsep ini pejalan kaki akan lebih mudah merasakan interaksi positif dengan mudahnya akses visual dan fisik dalam tapak dan bangunan.

Aminities pada tapak disediakan seperti Halte, kursi taman, tangga, ramp, dll dapat memudahkan pejalan kaki melintasi seluruh kawasan mixed use ini.

Architecture Portofolio | 2023 23

Pedastrian Street

Area Pejalan kaki yang terintegrasi dengan jalur masuk

Pedastiran Entrance

Jalur masuk bagi pengunjung yang berjalan kaki

Human Ramp

Jalur masuk bagi penyandang disabilitas maupun umum

Halte

Tempat menunggu kendaraan umum dan drop off pengunjung

Cafe Outdoor

Kafe yang berada di pojok tapak untuk tempat berinteraksi dan komersil

Swimming Pool

Kolam renang bagi penghuni apartment yang sekaligus tempat berjemur

Architecture Portofolio | 2023 24 2
Architecture Portofolio | 2023 25
Basement Parking Area Corner Lobby Mall Area Parkir kendaraan penghuni maupun pengunjung Pintu Masuk yang berada di sudut bangunang

Golden Corner World merupakan bangunan dengan fungsi campuran yang dapat menampung tiga aktivitas yaitu pusat perbelanjaan, co-working, dan hunian apartement dengan berbagai macam fasilitas penunjang

Bangunan ini berdiri di tengah perkotaan Jakarta. Dengan fasilitas bangunan Mixed Use ini memungkinkan penguninya melakukan berbagai macam aktivitas mulai dari bekerja, berbelanja, hiburan, olahraga dengan tinggal di Mixed use ini Bangunan ini juga menyediakan public space untuk mengundang orang-orang mengunjungi Golden Corner World ini.

Architecture Portofolio | 2023 26 2
Co-Working Entrance Apartment Entrance Pintu Masuk menuju Co-Working Space Pintu Masuk menuju Apartmentt Jl. Angkasa, Kec. Kemayoran, Kota Jakarta Pusat, Daerah Khusus Ibukota Jakarta. Lokasi
Architecture Portofolio | 2023 27
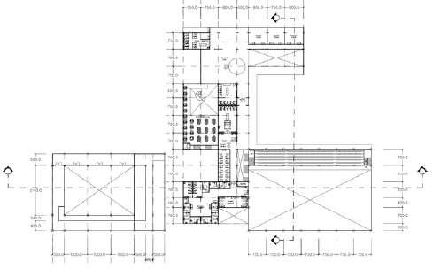
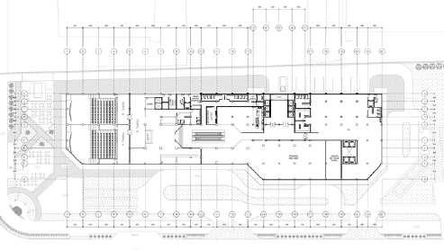
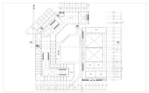
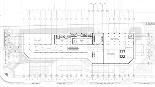
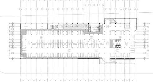
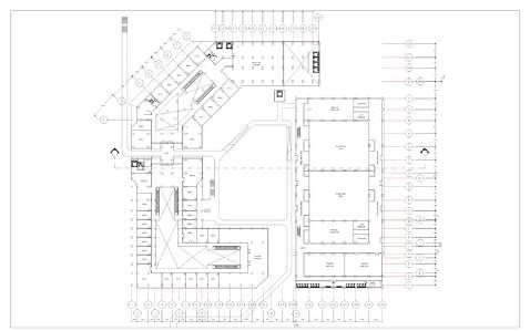
Denah Ground Floor Denah Basement 1 Denah Basement 2 Denah Basement 3 Denah Basement 4
Architecture Portofolio | 2023 28 2
Deskripsi
Denah Lantai 1 Denah Lantai 2 Denah Lantai 3 Denah Lantai 4 Denah Lantai 5 Denah Lantai 6-18 Denah Lantai 17-30 Denah Lantai Refuge
Architecture Portofolio | 2023 29
Potongan Melintang Potongan Memanjang Tampak samping Tampak depan
Architecture Portofolio | 2023 30 2
Detail Window Wall Detail Kantilever Detail Curtain Wall

Kota Jakarta sedang marak dengan banyaknya pembangunan infrastruktur sarana angkutan umum massal (SAUM) yang salah satu nya adalah Light Rail Transit (LRT) atau Kereta Api Ringan, dan Mass Rapid Transit (MRT). LRT merupakan suatu moda layanan transportasi penumpang yang beroperasi diatas rel ringan, sedangkan MRT adalah sebuah sistem kereta api transit cepat dengan dengan menggunakan kereta rel listrik. Keberadaan jalur LRT dan MRT ini akan menjadi salah satu pemicu terjadinya peningkatan daya dukung terhadap kawasan itu sendiri dan perubahan pola pergerakan manusia dalam kawasan tersebut sama seperti yang terjadi dalam perkembangan kota – kota besar di dunia

Transit Oriented Development (TOD) merupakan respon akan peningkatan dan perubahan tersebut. Dalam mengembangkan kawasan yang dimaksud, Transit Oriented Development yang akan dibangun ini tidak hanya mengkombinasikan faktor transit dengan sisi komersial tetapi juga menghadirkan ruang terbuka hijau, ruang terbuka publik dan terciptanya potensi – potensi pergerakan pejalan kaki di kawasan tersebut. Adapun dalam penyusunan masterplan transportasi Jakarta, terdapat beberapa titik – titik strategis untuk dikembangkan menjadi sebuah kawasan berorientasi transit. Dimana dalam pengembangannya akan dijadikan sebagai sebagai sebuah fasilitas publik dengan segala fasilitasnya

Golden Park

Mata Kuliah : Studio Perancangan Arsitektur VI

Dosen : Dr. Ir. Primi Artiningrum, M.Arch

Dosen Pembimbing : Ruli Amir ST

Architecture Portofolio | 2023 31
4 Architecture Portofolio | 2023 32
Lokasi Jalan Panglima Polim, Kebayoran Baru, Jaksel Luas Lahan 20 000 m2 Scan untuk melihat animasi bit ly/golden park TOD

Konsep Bangunan

Permeability design

Konsep permeablitiy design

memungkinkan pejalan kaki bisa

mengakses area di dalam tapak dengan

berjalan kaki, baik itu pengunjung hotel

hingga warga setempat. Dengan

konsep ini pejalan kaki akan lebih

mudah merasakan interaksi positif

dengan mudahnya akses visual dan fisik

dalam tapak dan bangunan.

Inner Court

Ruang terbuka di dalam kompleks massa bangunan sebagai pengikat antar massa bangunan dan dapat dimanfaatkan sebagai pusat pergerakan aksis. Aksis tersebut menjadi pemandu dan pengikat massamassa bangunan.

Outdoor Space

Ruang outdoor yang memiliki perkerasan

jalan yang mengundang orang-orang untuk datang dan berkumpul

1 5 2 6 4 7 3 8 Architecture Portofolio | 2023
33
Gubahan masa

Main Innercourt

Innercourt yang menjadi golden space

Pedastrian Shelter

Shleter bagi pengunjung untuk menunggu taksi/ojek

Pedastrian Bridge

Jembatan pejalan kaki yang terintegrasi dengan MRT

menuju kawasan dan bangunan

Second Cafe floors

Area kafe terbuka di lantai dua

Golden Park Foodcourt

Foodcourt dengan ruang terbuka hijau

Play Ground and foodcourt

Area terbuka untuk bermain anak dan area makan

outdoor

Side Cafe and Tenant

kafe dan tenant yang bisa diakses dari sisi utara mall

Swimming Pool

Kolam renang bagu pengunjung Hotel yang sekaligus tempat berjemur

Architecture Portofolio | 2023 34

Convention Loby

Pintu Masuk Selatan pengunjung Convention

Hotel Loby

Pintu Masuk Timur dan drop off pengunjung Hotel dengan kendaraan mobil

Architecture Portofolio | 2023 35

Gambaran Umum

Golden Park merupakan Kawasan Transit Oriented Development (TOD) yang terintegrasi dengan Mass Rapid Transit (MRT) Jakarta

Bangunan ini berdiri di tengah perkotaan Jakarta. Dengan fasilitas bangunan TOD ini memungkinkan seluruh pengunjung melakukan singgah kedalam kawasan dengan berbagai kegiatan Fasilitas yang ditawarkan adalah Hotel, Convention, dan Mall Bangunan ini juga menyediakan foodcourt dengan suasana terbuka hijau dan asri.

Main Mall Loby

Lokasi

Isu perancangan

Merancang Kawasan Transit dengan memperhatikan pinsip-prinsip sebagai berikut :

Walk

Conncect Transit Mix

Densify Compact

Architecture Portofolio | 2023 36 2 Pedastiran Entrance
Pintu Masuk Selatan Pengunjung Mall Jalan Panglima Polim St, RT 8/RW 1, Pulo, Kebayoran Baru, Jakarta Selatan
Architecture Portofolio | 2023 37
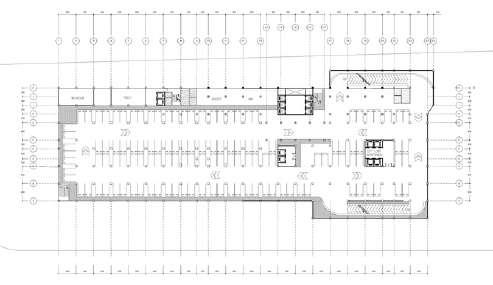
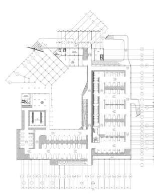
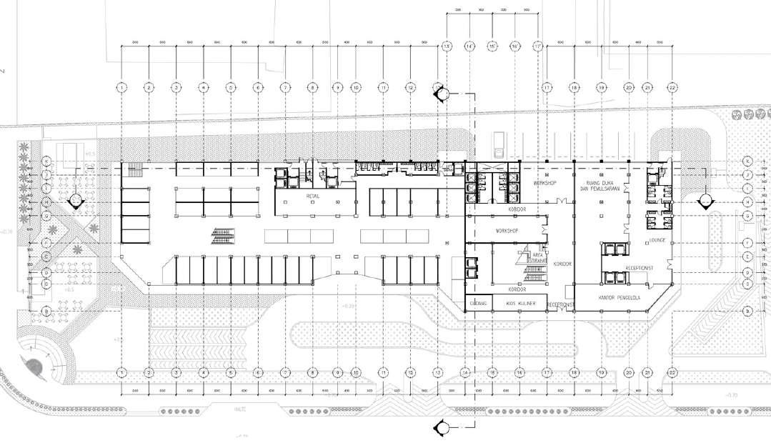
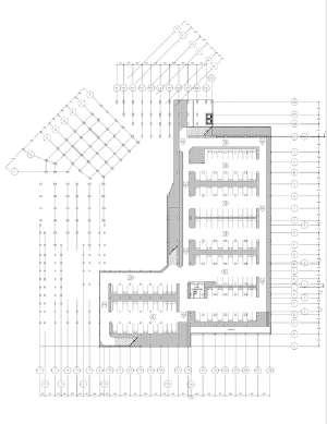
Denah Ground Floor Denah Basement 1 Denah Basement 2
Architecture Portofolio | 2023 38 Pedastiran Entrance
Denah Lantai 1 Denah Lantai 5-6 Denah Lantai 7-8 Denah Lantai 9-10 Denah Lantai 11-12 Denah Lantai 2 Denah Lantai 3 Denah Lantai 4

Tampak Depan

Tampak Kanan

Tampak Kiri

Tampak Belakang

Architecture Portofolio | 2023 39
Detail
Architecture Portofolio | 2023 40 Pedastiran Entrance
Potongan Memanjang Potongan Melintang Detail Plafond Koridor Detail Kanopi Detail Window Retail Detail Plafond Retail Detail Window Frame

Turn static files into dynamic content formats.

Create a flipbook
Portofolio Arsitektur Part 1 - Dawud Al Ubaidah by Dawud Al ubaidah - Issuu