Portfolio

David Samveljan

![]()

David Samveljan

Afstudeer stagiaire architect
WY. Architecten
Eindhoven, Okt 2021 - Mei 2022
Stagiare architect
Architectuurbureau Sluijmer en van Leeuwen
Utrecht, Sept 2020 - Feb 2021
Stagiare werkvoorbereiding
Aartsbouw
Leende, Feb 2020 - April 2020
Stagiaire timmerman
Aannemersbedrijf Lamers
Veldhoven, Feb 2019 - April 2019
Stagiaire Architect
Asnova Architectenbureau
Utrecht, Feb 2018 - April 2018
HAN
University of applied sciences
Bouwkunde, richting architectuur 2023 - Heden
LOI
Cursus
Corporate Identity and Branding 2022-2023
Summa College
Middenkaderfunctionaris Bouw 2018 - 2022, Diploma
ROC
Rijnijssel
Middenkaderfunctionaris Bouw 2017- 2018










Locatie: Schaapsdrift, Arnhem
Projectfase: SO, VO, DO
Gebouwtype: Woningbouw, Utiliteitsbouw
Doelgroep: Inwoners Schaapsdrift en omgeving
“Een ode aan de natuur
een gebouw voor de mens.”

De opgave voor dit project was het ontwerpen van een multifunctioneel, natuurinclusief gebouw in de wijk Schaapsdrift, Arnhem, dat de sociale cohesie versterkt en aansluit bij de omliggende natuur, zoals Park Sacré Coeur. Het gebouw moest ruimte bieden voor diverse functies die aansluiten op de leefstijlatlas, waaronder studentenhuisvesting, atelierappartementen, een boutique hotel, onderwijsruimtes, multifunctionele zalen, Park art-gallery, en een publiek toegankelijk observatorium.
Lotus House is volledig organisch vormgegeven, geïnspireerd door de schoonheid van de lotus. De ronde balkons fungeren als buitentuinen en creëren een verbinding tussen het gebouw en de natuurlijke omgeving.
De toepassing van duurzame materialen, zoals Platowood en CO2 neutraal geprint beton, versterkt de ecologische en esthetische waarde.
Het gebouw representeert een nieuwe visie op architectuur: een plek waar mens en natuur in harmonie samenkomen. Lotus House integreert wonen, werken en recreëren in een ontwerp dat de verbinding met de omgeving centraal stelt.


Traditioneel worden modulair bouwen en organische vormentaal gezien als tegenpolen. Waar modulair bouwen vaak wordt geassocieerd met strakke, gestructureerde blokken, vraagt organische architectuur juist om vloeiende lijnen die een harmonieuze verbinding met de natuur creëren.
Bij Lotus House worden deze ogenschijnlijke tegenstellingen verenigd in het concept ”Organische Modulariteit.” Door een kerngebouw met een modulaire blokkenstructuur te combineren met organisch gevormde gevelfragmenten – zoals de golvende balkons geïnspireerd door de lijnen van Park Sacré Coeur – ontstaat een vernieuwende ontwerpbenadering.
Hier wordt modulariteit niet gezien als een beperking, maar als een middel om organische architectuur te verrijken. Het resultaat is een gebouw waarin esthetiek en functionaliteit in balans zijn, en dat op natuurlijke wijze opgaat in het omliggende landschap, waarbij architectuur en natuur elkaar versterken.

























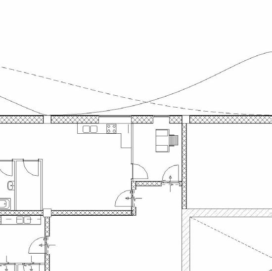
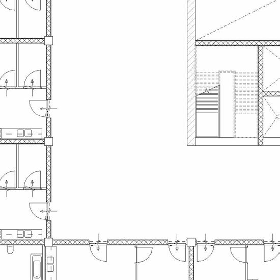
Figuur 4 Voorontwerp Plattegrond Begane Grond













































































*Gebiedsontwikkeling in samenwerking met team Hogeschool Van Hal Larenstein.



“ Waar mens en natuur

Locatie: Stadsblokken, Arnhem
Projectfase: SO, VO, DO
Gebouwtype: Stadspaviljoen, Utiliteitsbouw
Doelgroep: Inwoners Arnhem
in harmonie samen komen.”

Gelegen in Stadsblokken Arnhem, aan de zuidoever van de Neder-Rijn, biedt het Parelpaviljoen een unieke beleving. Met een open binnentuin die natuur en gebouw samenbrengt, creëert het een inspirerende omgeving voor zowel horeca-bezoekers als kantoorwerknemers.
Het ontwerp voegt zich harmonieus in de omgeving en maakt gebruik van CLT-kolommen, die zowel structurele als esthetische waarde toevoegen. Het Parelpaviljoen is een duurzame en waardevolle toevoeging aan dit bruisende stadsdeel.



Figuur 17 Situatie stadsblokken meijnerswijk.



Figuur 19 Sfeerbeeld Interieur entreegebied.
Binnenstad Arnhem


Nederrijn








Figuur 20 Straatprofiel nieuwe situatie Stadsblokken Meijnerswijk

















Figuur 21 Plattegrond Begane Grond
























































































