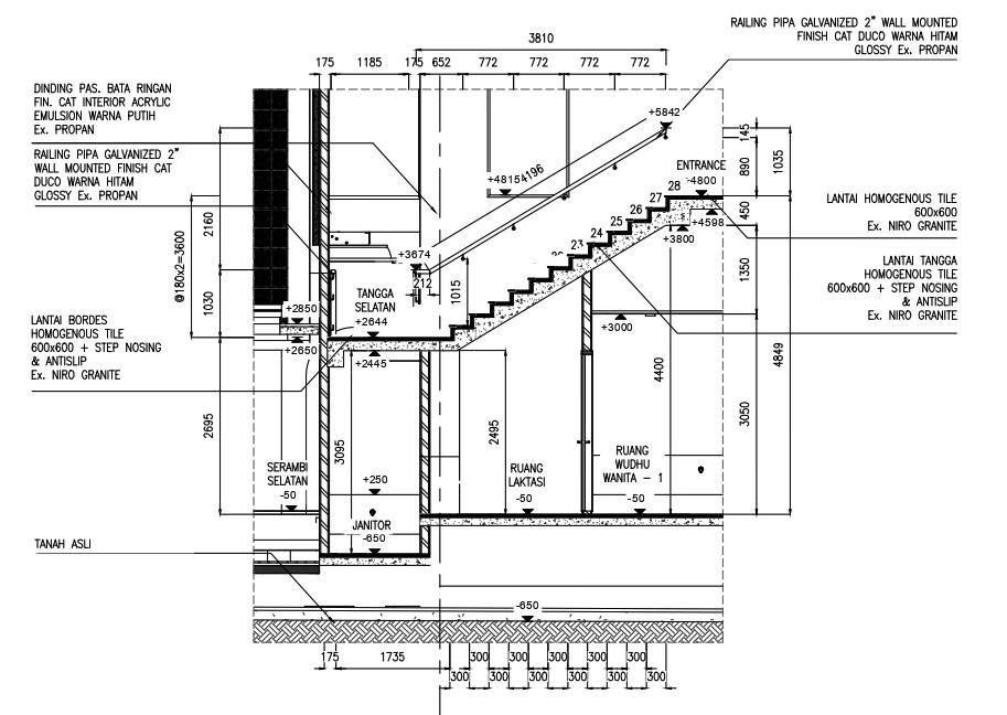
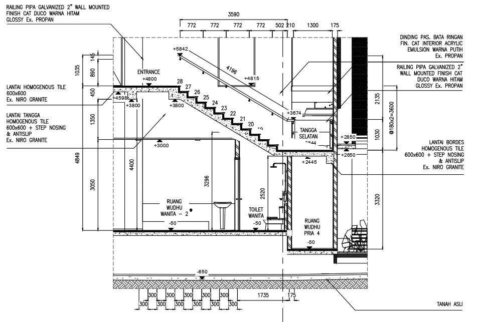
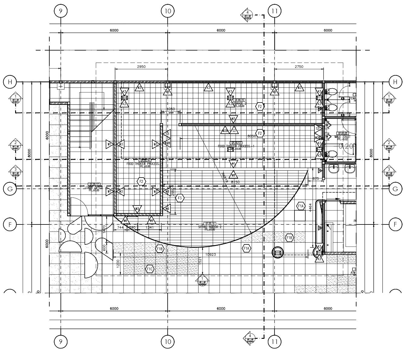
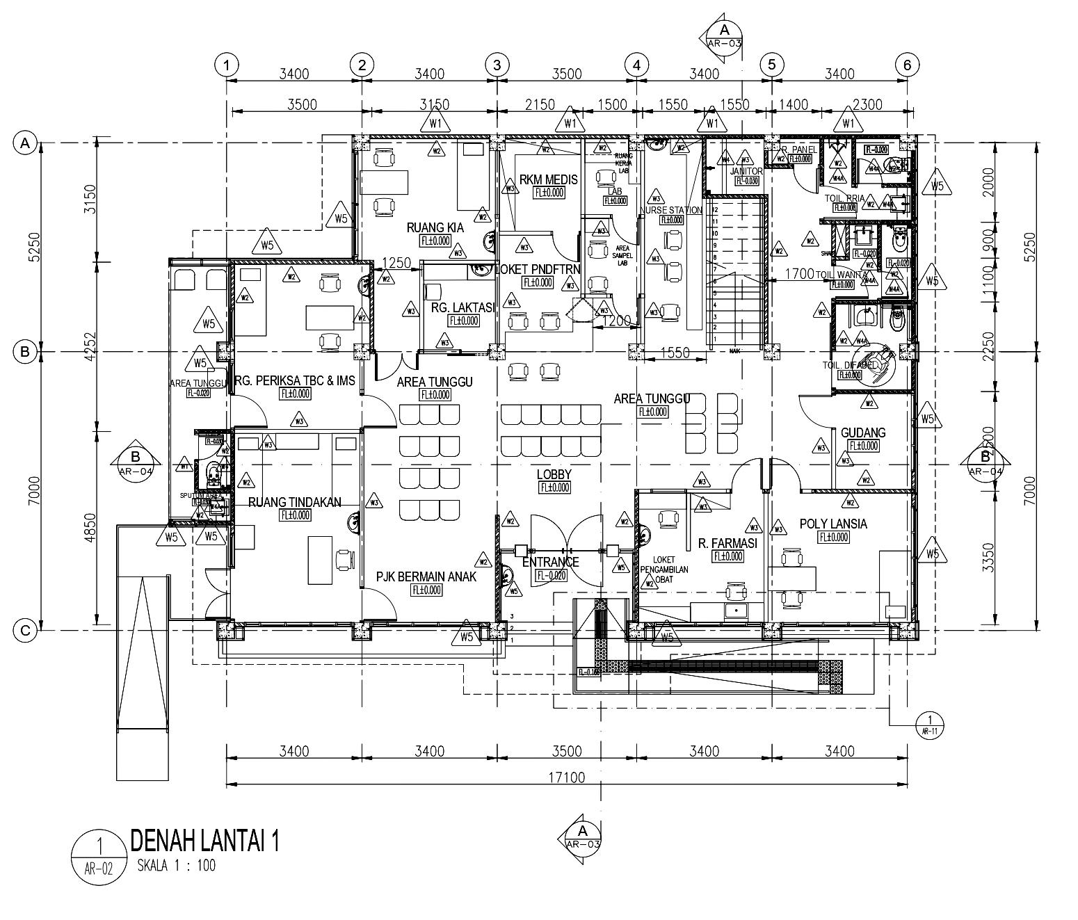
drafting portfolio



KEAHLIAN UTAMA






TENTANG SAYA
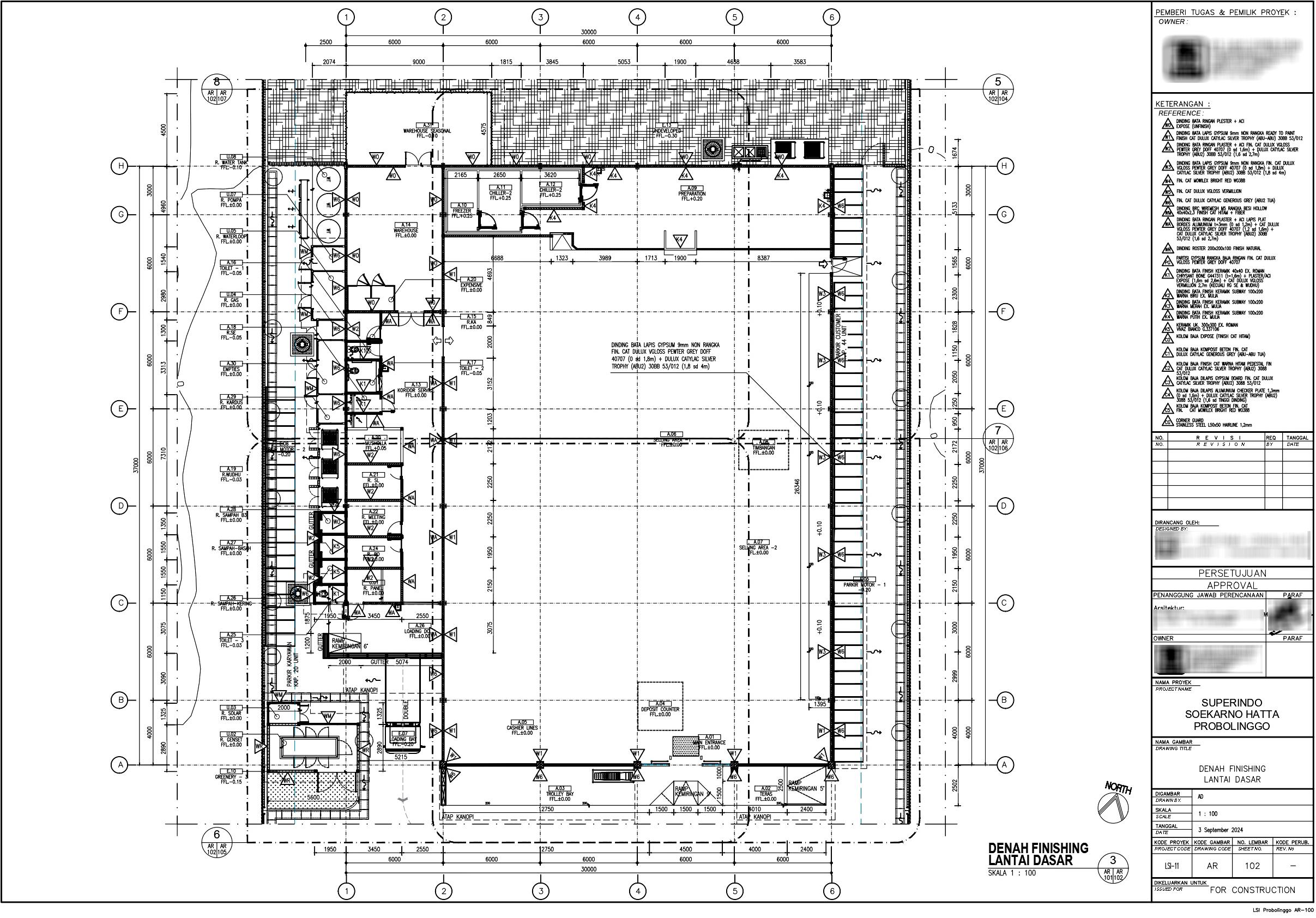
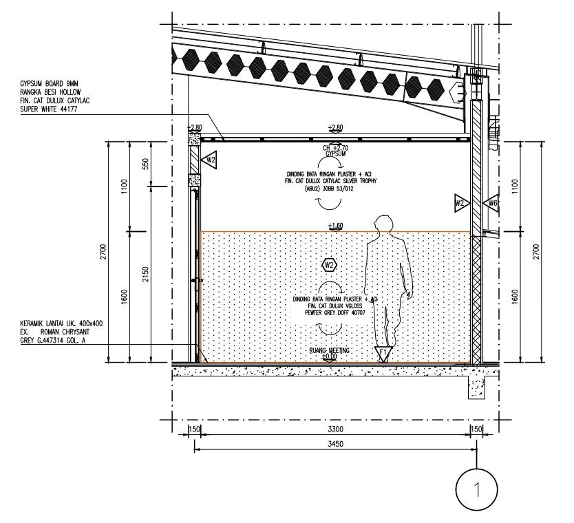
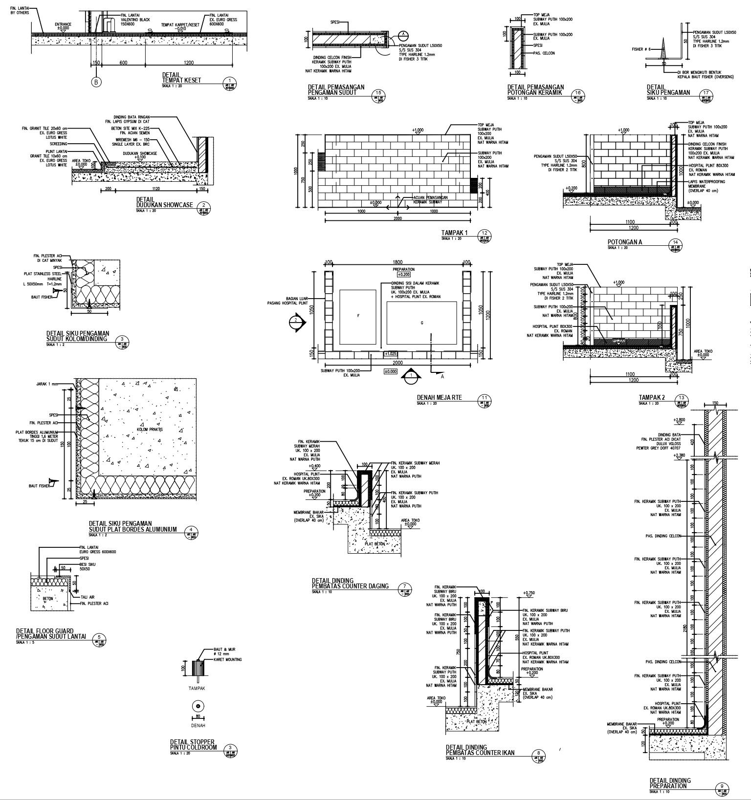
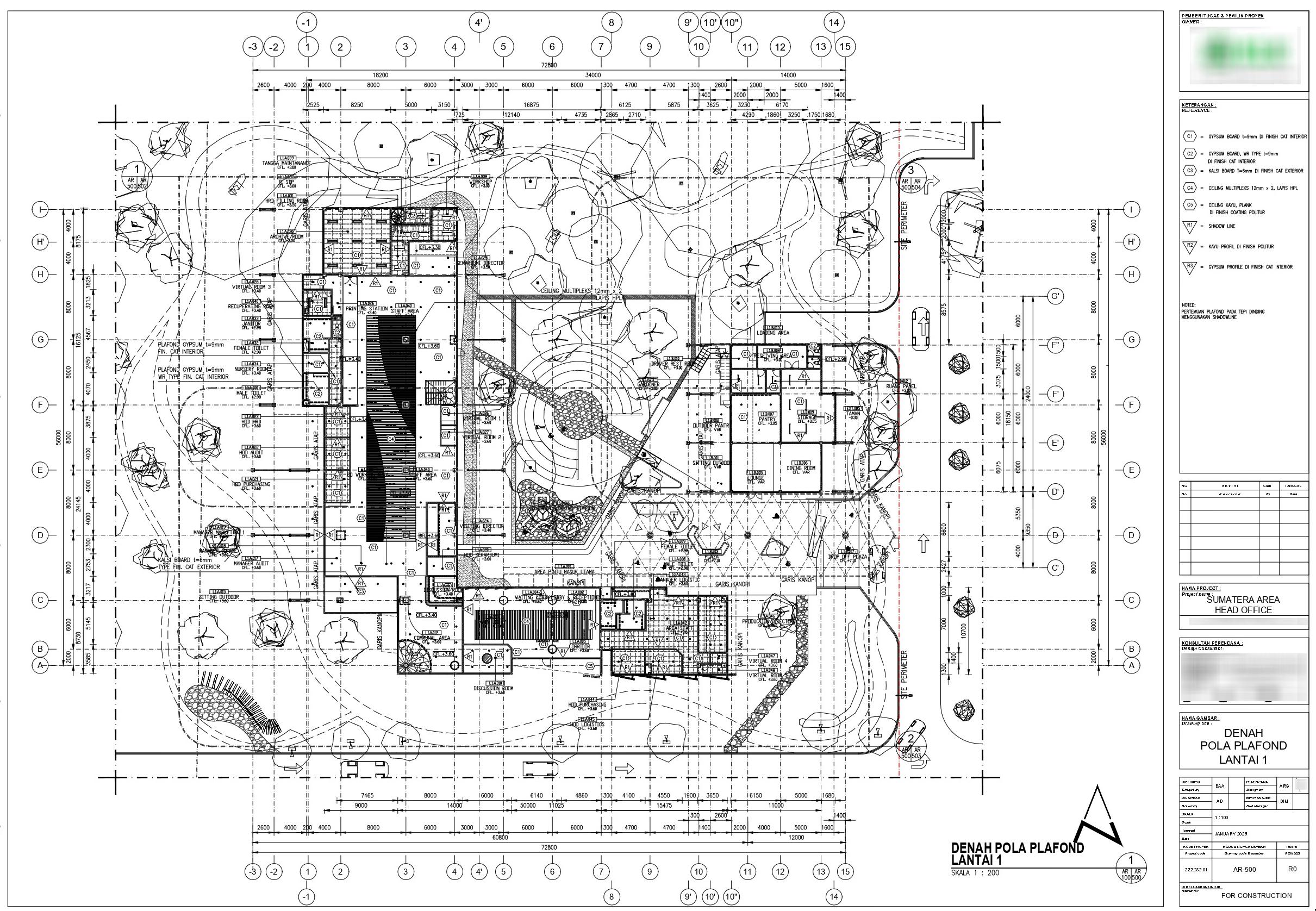
Saya adalah arsitek dengan pengalaman 5 tahun di proyek publik, komersial, dan residensial, berfokus pada desain, dokumentasi teknis, dan visualisasi 3D. Terbiasa dalam penyusunan gambar kerja detail serta koordinasi lintas disiplin (arsitektur, struktur, dan MEP) untuk memastikan dokumen siap konstruksi. Mahir menggunakan AutoCAD, SketchUp, Lumion, dan Enscape, serta saat ini sedang mengembangkan kemampuan BIM melalui Revit untuk mendukung proses desain yang lebih terintegrasi.
Perancangan & dokumentasi arsitektur (AutoCAD)
Pemodelan & visualisasi 3D (Sketchup, Enscape, V-Ray, Lumion)
Pengembangan konsep desain
Koordinasi lintas disiplin (Struktur, MEP, Estimator)
Penyusunan gambar kerja & dokumen tender
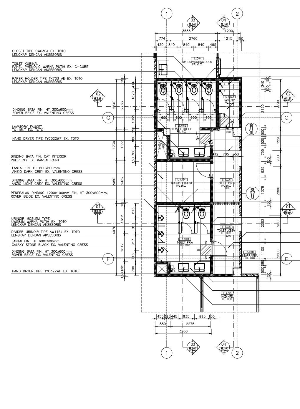
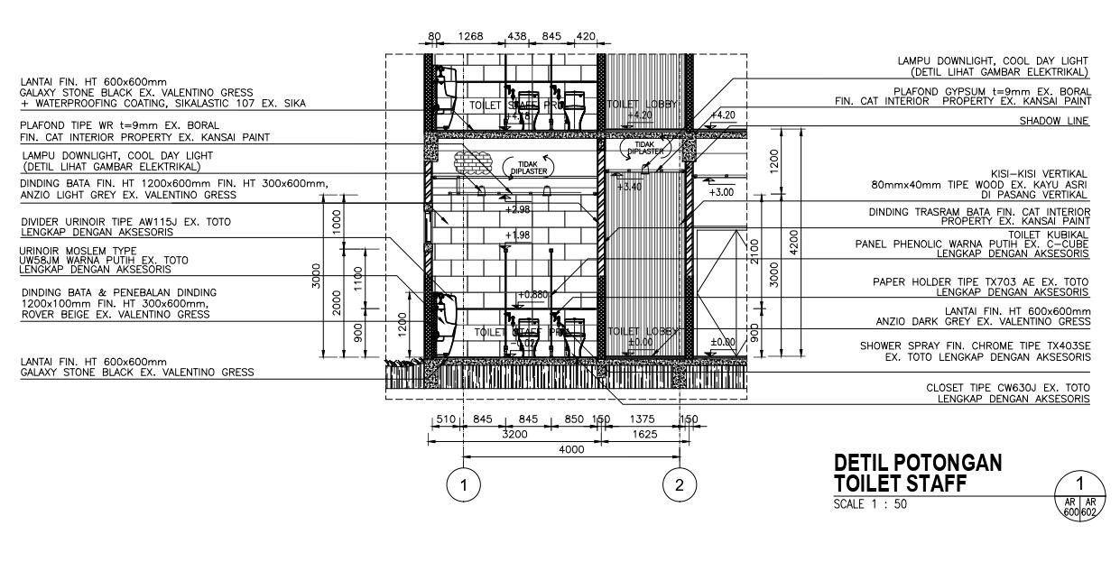
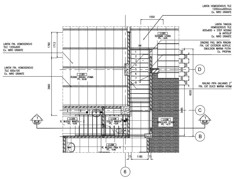
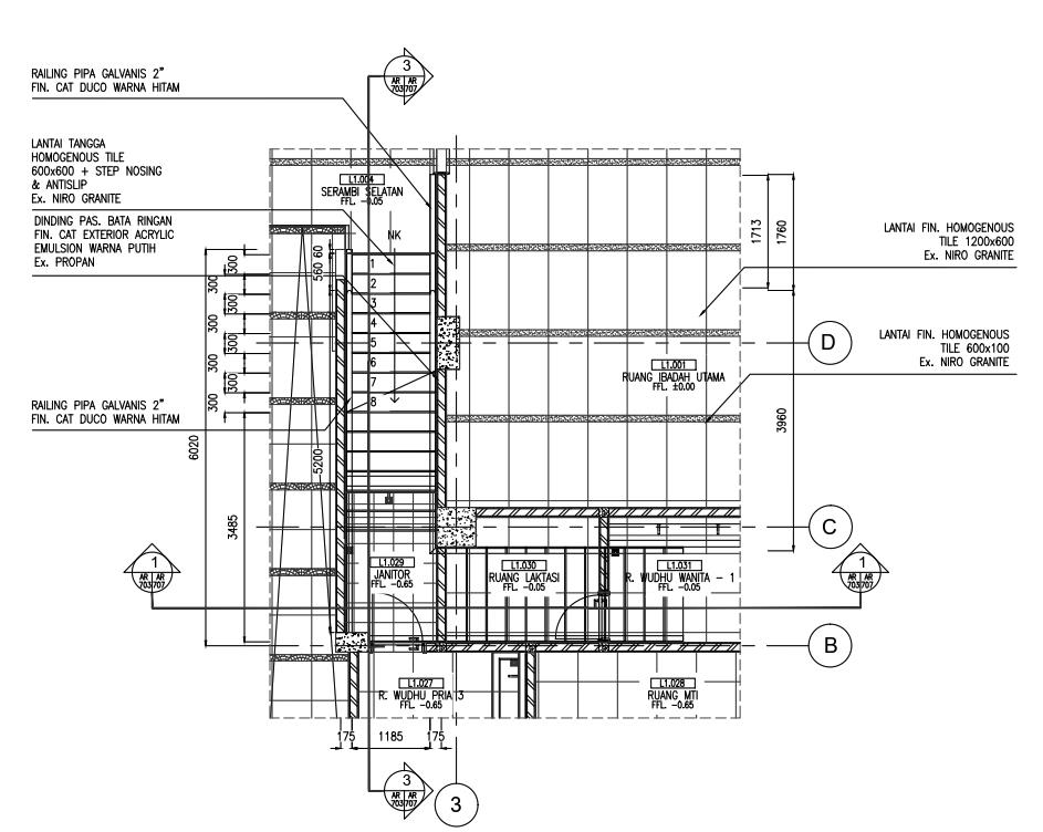
SELECTED WORKS


SOFTWARE









CONTACT

Tanjung Barat, Jakarta Selatan


darmasaputraallan@gmail.com +6281380267009


































































